
Před prvním spuštěním jednotek 30HXC a 30GX by se osoby podílející se na spuštění, provozu a údržbě měly důkladně seznámit s těmito pokyny a dalšími potřebnými údaji o zakázce. Tato kniha poskytuje přehled, abyste se mohli seznámit s řídicím systémem před provedením postupů spuštění. Postupy v tomto manuálu jsou uspořádány v pořadí, které je vyžadováno pro správné spuštění a provoz stroje.
Kapalinové chladiče 30HXC a 30GX jsou navrženy tak, aby poskytovaly bezpečný a spolehlivý provoz, pokud jsou provozovány v rámci konstrukčních specifikací. Při provozu tohoto zařízení používejte zdravý úsudek a bezpečnostní opatření, abyste předešli poškození zařízení a majetku nebo zranění osob.
Ujistěte se, že rozumíte a dodržujete postupy a bezpečnostní opatření obsažené v pokynech ke stroji i ty, které jsou uvedeny v této příručce.
NEODVÁDĚJTE výfukové plyny z pojistných ventilů chladiva uvnitř budovy. Výstup z pojistného ventilu musí být odvětrán ven. Nahromadění chladiva v uzavřeném prostoru může vytlačit kyslík a způsobit udušení nebo výbuch.
ZAJISTĚTE dostatečné větrání, zejména v uzavřených prostorech a prostorech s nízkou světlou výškou. Vdechování vysokých koncentrací par je škodlivé a může způsobit nepravidelnosti srdeční činnosti, bezvědomí nebo smrt. Páry jsou těžší než vzduch a snižují množství kyslíku dostupného pro dýchání. Produkt způsobuje podráždění očí a pokožky. Produkty rozkladu jsou nebezpečné.
NEPOUŽÍVEJTE KYSLÍK k proplachování potrubí nebo k natlakování stroje pro jakýkoli účel. Plynný kyslík prudce reaguje s olejem, tukem a dalšími běžnými látkami.
NIKDY NEPŘEKRAČUJTE stanovené zkušební tlaky, OVĚŘTE si přípustný zkušební tlak kontrolou v návodu a konstrukční tlaky na výrobním štítku zařízení.
NEPOUŽÍVEJTE vzduch pro zkoušky těsnosti. Používejte pouze chladivo nebo suchý dusík.
NEUZAVÍREJTE žádné bezpečnostní zařízení.
Ujistěte se, že jsou všechna pojistná zařízení správně nainstalována před uvedením jakéhokoli stroje do provozu.
NEVAŘTE ANI NEŘEŽTE PLAMENEM žádné potrubí nebo nádobu s chladivem, dokud nebylo z chladiče odstraněno veškeré chladivo (kapalné i plynné). Zbytky par by měly být vytlačeny suchým vzduchem s dusíkem a pracovní prostor by měl být dobře větrán. Chladivo v kontaktu s otevřeným plamenem produkuje toxické plyny.
Nepracujte na zařízeních pod napětím, pokud nejste kvalifikovaný elektrikář.
Nepracujte na elektrických součástech, včetně ovládacích panelů, spínačů, relé atd., dokud si nejste jisti, že je VYPNUTO VEŠKERÉ NAPÁJENÍ a zbytkové napětí nemůže unikat z kondenzátorů nebo polovodičových součástek.
BĚHEM SERVISU UZAMKNĚTE OTEVŘENÉ A OZNAČTE elektrické obvody. PŘI PŘERUŠENÍ PRÁCE zkontrolujte, zda jsou všechny obvody odpojeny od napájení, než budete pokračovat v práci.
Nevypouštějte chladivo sifonem.
ZABRAŇTE ROZLITÍ kapalného chladiva na pokožku nebo jeho vniknutí do očí. POUŽÍVEJTE OCHRANNÉ BRÝLE. Omyjte veškeré rozlité látky z pokožky mýdlem a vodou. Pokud se kapalné chladivo dostane do očí,
OKAMŽITĚ VYPLÁCHNĚTE OČI vodou a poraďte se s lékařem.
NIKDY NEPŘIKLÁDEJTE otevřený plamen nebo živou páru na nádobu s chladivem. Může dojít k nebezpečnému přetlaku. Pokud je nutné chladivo zahřát, používejte pouze teplou vodu.
NEPOUŽÍVEJTE OPAKOVANĚ jednorázové (nevratné) lahve ani se je nepokoušejte znovu naplnit. Je to NEBEZPEČNÉ A NEZÁKONNÉ. Když jsou lahve vyprázdněny, vypusťte zbývající tlak plynu, uvolněte objímku a odšroubujte a zlikvidujte dřík ventilu. NESPALUJTE.
PŘED doplněním chladiva do stroje ZKONTROLUJTE TYP CHLADIVA. Zavedení nesprávného chladiva může způsobit poškození nebo poruchu tohoto stroje.
NEPOKOUŠEJTE SE ODSTRAŇOVAT armatury, součásti atd., pokud je stroj pod tlakem nebo v chodu. Před přerušením připojení chladiva se ujistěte, že je tlak 0 kPa.
PEČLIVĚ ZKONTROLUJTE všechna pojistná zařízení, ALESPOŇ JEDNOU ROČNĚ. Pokud stroj pracuje v korozivním prostředí, kontrolujte zařízení v kratších intervalech.
NEPOKOUŠEJTE SE OPRAVOVAT NEBO REPASOVAT žádné pojistné zařízení, pokud je uvnitř těla ventilu nebo mechanismu nalezena koroze nebo nahromadění cizího materiálu (rez, nečistoty, vodní kámen atd.). Vyměňte zařízení.
Neinstalujte pojistná zařízení do série nebo obráceně.
NEŠLAPTE na potrubí chladiva. Zlomené potrubí se může vymrštit a uvolnit chladivo, což způsobí zranění osob.
NEŠPLHEJTE přes stroj. Použijte plošinu nebo lešení.
POUŽÍVEJTE MECHANICKÉ ZAŘÍZENÍ (jeřáb, kladkostroj atd.) ke zvedání nebo přemisťování těžkých součástí. I když jsou součásti lehké, používejte mechanické zařízení, pokud hrozí uklouznutí nebo ztráta rovnováhy.
UVĚDOMTE SI, že některá automatická spouštěcí zařízení MOHOU ZAPNOUT VENTILÁTOR CHLADICÍ VĚŽE NEBO ČERPADLA. Otevřete odpojovač před ventilátory chladicí věže nebo čerpadly.
POUŽÍVEJTE pouze náhradní nebo výměnné díly, které splňují požadavky předpisů pro původní zařízení.
NEODVĚTRÁVEJTE ANI NEVYPOUŠTĚJTE vodní komory obsahující průmyslové solanky bez povolení příslušného orgánu.
NEPOVOLUJTE šrouby vodní komory, dokud nebyla vodní komora zcela vypuštěna.
NEPOVOLUJTE matici ucpávky, dokud nezkontrolujete, zda má matice pozitivní záběr závitu.
PRAVIDELNĚ KONTROLUJTE všechny ventily, armatury a potrubí, zda nevykazují korozi, rez, netěsnosti nebo poškození.
ZAJISTĚTE ODTOKOVÉ PŘIPOJENÍ ve ventilačním potrubí v blízkosti každého pojistného zařízení, abyste zabránili hromadění kondenzátu nebo dešťové vody.
30HXC080
30HXC090
30HXC100
30HXC110

Vstup vody
Výstup vody
Napájení
kg: celková provozní hmotnost
| A mm | B mm | C mm | D mm | E mm | kg | |
| 30HXC080 30HXC090 30HXC100 |
2705 | 950 | 1850 | 2360 | 1000 | 2447 2462 2504 |
| 30HXC110 | 2705 | 950 | 1900 | 2360 | 1000 | 2650 |
| 30HXC120 30HXC130 30HXC140 30HXC155 |
3535 | 950 | 1875 | 3220 | 1000 | 2846 2861 2956 2971 |
| 30HXC175 30HXC190 |
3550 | 950 | 2000 | 3220 | 1000 | 3283 3438 |
POZNÁMKA: Při navrhování instalace se řiďte certifikovanými výkresy rozměrů dodanými s jednotkou.

Vstup vody
Výstup vody
Napájení
kg: celková provozní hmotnost
| A mm | B mm | C mm | D mm | E mm | kg | |
| 30HXC200 | 3975 | 980 | 2035 | 3620 | 1000 | 4090 |
| 30HXC230 30HXC260 30HXC285 |
3995 | 980 | 2116 | 3620 | 1000 | 4705 4815 4985 |
| 30HXC310 30HXC345 30HXC375 |
4490 | 980 | 2163 | 4120 | 1000 | 5760 5870 6105 |
POZNÁMKA: Při navrhování instalace se řiďte certifikovanými výkresy rozměrů dodanými s jednotkou.
30GX-082
30GX-092
30GX-102
30GX-112
30GX-122
30GX-132
30GX-152
30GX-162
30GX-182


Vstup vody
Výstup vody
Napájení
Výstup vzduchu - neblokujte
kg: celková provozní hmotnost
| A mm | B mm | kg | |
| 30GX082 30GX092 30GX102 |
2970 | 2215 | 3116 3157 3172 |
| 30GX112 30GX122 30GX132 |
3427 | 2045 | 3515 3531 3633 |
| 30GX152 30GX162 |
4342 | 2835 | 3920 3936 |
| 30GX182 | 5996 | 1820 | 4853 |


Poznámky:
POZNÁMKA: Při navrhování instalace se řiďte certifikovanými výkresy rozměrů dodanými s jednotkou.
30GX-207
30GX-227
30GX-247
30GX-267
30GX-298
30GX-328
30GX-358

Vstup vody
Výstup vody
Napájení
Výstup vzduchu - neblokujte
kg: celková provozní hmotnost
| A mm | B mm | kg | |
| 30GX207 30GX227 |
5996 | 2895 | 5540 5570 |
| 30GX247 30GX267 |
6911 | 2470 | 6134 6365 |
| 30GX298 | 7826 | 2220 | 7354 |
| 30GX328 30GX358 |
8741 | 1250 | 7918 8124 |


Poznámky:
POZNÁMKA: Při navrhování instalace se řiďte certifikovanými výkresy rozměrů dodanými s jednotkou.
| 30HXC | 080 | 090 | 100 | 110 | 120 | 130 | 140 | 155 | 175 | 190 | 200 | 230 | 260 | 285 | 310 | 345 | 375 | |
| Čistý chladicí výkon | kW | 292 | 321 | 352 | 389 | 426 | 464 | 514 | 550 | 607 | 663 | 716 | 822 | 918 | 996 | 1119 | 1222 | 1326 |
| Provozní hmotnost | kg | 2447 | 2462 | 2504 | 2650 | 2846 | 2861 | 2956 | 2971 | 3283 | 3438 | 4090 | 4705 | 4815 | 4985 | 5760 | 5870 | 6105 |
| Chladivo Okruh A/B |
HFC-134a | |||||||||||||||||
| kg | 39/36 | 39/36 | 37/32 | 38/38 | 57/55 | 59/50 | 56/50 | 59/52 | 58/61 | 60/70 | 110/58 | 118/63 | 120/75 | 120/75 | 108/110 | 110/110 | 110/120 | |
| Olej Okruh A/B |
Polyolesterový olej CARRIER SPEC: PP 47-32 | |||||||||||||||||
| l | 15/15 | 15/15 | 15/15 | 15/15 | 15/15 | 15/15 | 15/15 | 15/15 | 15/15 | 15/15 | 30/15 | 30/15 | 30/15 | 30/15 | 30/30 | 30/30 | 30/30 | |
| Kompresory | Hermetický dvoušroubový Power3 | |||||||||||||||||
| Circ. A, nom. velikost na kompresor** | 39 | 46 | 46 | 56 | 56 | 66 | 80 | 80 | 80 | 80+ | 66/56 | 80/56 | 80/80 | 80+/80+ | 80/66 | 80/80 | 80+/80+ | |
| Circ. B, nom. velikost na kompresor** | 39 | 39 | 46 | 46 | 56 | 56 | 56 | 66 | 80 | 80+ | 66 | 80 | 80 | 80+ | 80/66 | 80/80 | 80+/80+ | |
| Typ ovládání | PRO-DIALOG Plus control | |||||||||||||||||
| Počet stupňů výkonu | 6 | 6 | 6 | 6 | 6 | 6 | 6 | 6 | 6 | 6 | 8 | 8 | 8 | 8 | 10 | 10 | 10 | |
| Minimální výkon | % | 19 | 19 | 21 | 19 | 21 | 19 | 17 | 19 | 21 | 21 | 14 | 14 | 14 | 14 | 10 | 10 | 10 |
| Výparník | Trubkový, s vnitřně žebrovanými měděnými trubkami | |||||||||||||||||
| Čistý objem vody | l | 65 | 65 | 73 | 87 | 81 | 81 | 91 | 91 | 109 | 109 | 140 | 165 | 181 | 181 | 203 | 229 | 229 |
| Vodní přípojky | Plochá příruba dodávaná z výroby, k přivaření na místě | |||||||||||||||||
| Vstup a výstup | in. | 4 | 4 | 4 | 5 | 5 | 5 | 5 | 5 | 5 | 5 | 6 | 6 | 6 | 6 | 8 | 8 | 8 |
| Vypouštění a odvzdušnění (NPT) | in. | 3/8 | 3/8 | 3/8 | 3/8 | 3/8 | 3/8 | 3/8 | 3/8 | 3/8 | 3/8 | 3/8 | 3/8 | 3/8 | 3/8 | 3/8 | 3/8 | 3/8 |
| Max. provozní tlak na straně vody | kPa | 1000 | 1000 | 1000 | 1000 | 1000 | 1000 | 1000 | 1000 | 1000 | 1000 | 1000 | 1000 | 1000 | 1000 | 1000 | 1000 | 1000 |
| Kondenzátory | Trubkový, s vnitřně žebrovanými měděnými trubkami | |||||||||||||||||
| Čistý objem vody | l | 58 | 58 | 58 | 58 | 92 | 92 | 110 | 110 | 132 | 132 | 162 | 208 | 208 | 208 | 251 | 251 | 251 |
| Vodní přípojky | Plochá příruba dodávaná z výroby, k přivaření na místě | |||||||||||||||||
| Vstup a výstup | in. | 5 | 5 | 5 | 5 | 5 | 5 | 5 | 5 | 6 | 6 | 6 | 6 | 6 | 6 | 8 | 8 | 8 |
| Vypouštění a odvzdušnění (NPT) | in. | 3/8 | 3/8 | 3/8 | 3/8 | 3/8 | 3/8 | 3/8 | 3/8 | 3/8 | 3/8 | 3/8 | 3/8 | 3/8 | 3/8 | 3/8 | 3/8 | 3/8 |
| Max. provozní tlak na straně vody | kPa | 1000 | 1000 | 1000 | 1000 | 1000 | 1000 | 1000 | 1000 | 1000 | 1000 | 1000 | 1000 | 1000 | 1000 | 1000 | 1000 | 1000 |
* Standardizované podmínky Eurovent: vstupní/výstupní teploty vody z výparníku = 12°C/7°C, vstupní/výstupní teploty vody z kondenzátoru = 30°C/35°C Čistý chladicí výkon: Hrubý chladicí výkon minus teplo vodního čerpadla proti vnitřní tlakové ztrátě výparníku. ** Velikost kompresoru odpovídá jmenovitému výkonu v tunách (1 tuna = 3,517 kW).
| 30HXC | 080 | 090 | 100 | 110 | 120 | 130 | 140 | 155 | 175 | 190 | 200 | 230 | 260 | 285 | 310 | 345 | 375 | |
| Napájecí obvod | ||||||||||||||||||
| Jmenovité napájení* | V-ph-Hz | 400-3-50 | ||||||||||||||||
| Rozsah napětí | V | 360-440 | ||||||||||||||||
| Napájení řídicího obvodu | Řídicí obvod je napájen prostřednictvím z výroby instalovaného transformátoru | |||||||||||||||||
| Jmenovitý příkon* | kW | 59 | 67 | 74 | 83 | 88 | 99 | 112 | 123 | 135 | 146 | 156 | 179 | 201 | 219 | 245 | 274 | 298 |
| Jmenovitý odebíraný proud* | A | 98 | 111 | 124 | 139 | 148 | 166 | 186 | 204 | 226 | 242 | 259 | 291 | 335 | 367 | 408 | 456 | 498 |
| Max. příkon** | kW | 76 | 83 | 91 | 101 | 111 | 121 | 135 | 145 | 158 | 181 | 187 | 214 | 237 | 272 | 290 | 316 | 362 |
| Obvod A | kW | - | - | - | - | - | - | - | - | - | - | 121 | 135 | 158 | 181 | 145 | 158 | 181 |
| Obvod B | kW | - | - | - | - | - | - | - | - | - | - | 66 | 79 | 79 | 91 | 145 | 158 | 181 |
| Cos φ, jednotka při plném zatížení | 0.87 | 0.87 | 0.87 | 0.87 | 0.87 | 0.87 | 0.87 | 0.87 | 0.87 | 0.87 | 0.87 | 0.87 | 0.87 | 0.87 | 0.87 | 0.87 | 0.87 | |
| Max. odebíraný proud (Un - 10%)*** | A | 138 | 152 | 166 | 184 | 202 | 221 | 245 | 264 | 288 | 330 | 341 | 389 | 432 | 495 | 528 | 576 | 660 |
| Obvod A | A | - | - | - | - | - | - | - | - | - | - | 221 | 245 | 288 | 330 | 264 | 288 | 330 |
| Obvod B | A | - | - | - | - | - | - | - | - | - | - | 120 | 144 | 144 | 165 | 264 | 288 | 330 |
| Maximální odebíraný proud (Un)*** | A | 125 | 138 | 151 | 167 | 184 | 201 | 223 | 240 | 262 | 300 | 310 | 354 | 393 | 450 | 480 | 524 | 600 |
| Obvod A | A | - | - | - | - | - | - | - | - | - | - | 201 | 223 | 262 | 300 | 240 | 262 | 300 |
| Obvod B | A | - | - | - | - | - | - | - | - | - | - | 109 | 131 | 131 | 150 | 240 | 262 | 300 |
| Max. rozběhový proud, std. jednotka (Un)**** | A | 172 | 197 | 209 | 235 | 252 | 283 | 318 | 335 | 357 | 420 | 806 | 938 | 977 | 1156 | 1064 | 1108 | 1306 |
| Obvod A | A | - | - | - | - | - | - | - | - | - | - | 697 | 807 | 846 | 1006 | 824 | 846 | 1006 |
| Obvod B | A | - | - | - | - | - | - | - | - | - | - | 605 | 715 | 715 | 856 | 824 | 846 | 1006 |
| Max. poměr rozběhového proudu/max. odebíraného proudu, jednotka | 1.37 | 1.42 | 1.39 | 1.41 | 1.37 | 1.41 | 1.43 | 1.40 | 1.36 | 1.40 | 2.60 | 2.65 | 2.49 | 2.57 | 2.22 | 2.12 | 2.18 | |
| Max. poměr rozběhového proudu/max. odebíraného proudu, obvod A | - | - | - | - | - | - | - | - | - | - | 3.47 | 3.62 | 3.23 | 3.35 | 3.43 | 3.23 | 3.35 | |
| Max. poměr rozběhového proudu/max. odebíraného proudu, obvod B | - | - | - | - | - | - | - | - | - | - | 5.55 | 5.46 | 5.46 | 5.71 | 3.43 | 3.23 | 3.35 | |
| Max. rozběhový proud - start s redukovaným proudem (Un) **** | A | std. | std. | std. | std. | std. | std. | std. | std. | std. | std. | 601 | 643 | 682 | 760 | 769 | 813 | 910 |
| Obvod A | A | std. | std. | std. | std. | std. | std. | std. | std. | std. | std. | 492 | 512 | 551 | 610 | 529 | 551 | 610 |
| Obvod B | A | std. | std. | std. | std. | std. | std. | std. | std. | std. | std. | 330 | 370 | 370 | 385 | 529 | 551 | 610 |
| Max.rozběhový proud - start s red. proudem/ max. poměr odebíraného proudu, jednotka | std. | std. | std. | std. | std. | std. | std. | std. | std. | std. | 1.94 | 1.82 | 1.74 | 1.69 | 1.60 | 1.55 | 1.52 | |
| Obvod A | std. | std. | std. | std. | std. | std. | std. | std. | std. | std. | 2.45 | 2.30 | 2.10 | 2.03 | 2.20 | 2.10 | 2.03 | |
| Obvod B | std. | std. | std. | std. | std. | std. | std. | std. | std. | std. | 3.03 | 2.83 | 2.83 | 2.57 | 2.20 | 2.10 | 2.03 | |
| Třífázový zkratový proud | kA | 25 | 25 | 25 | 25 | 25 | 25 | 25 | 25 | 25 | 25 | N/A | N/A | N/A | N/A | N/A | N/A | N/A |
| Obvod A | kA | - | - | - | - | - | - | - | - | - | - | 25 | 25 | 25 | 25 | 25 | 25 | 25 |
| Obvod B | kA | - | - | - | - | - | - | - | - | - | - | 15 | 15 | 15 | 15 | 25 | 25 | 25 |
| Pohotovostní kapacita zákazníka, jednotka nebo obvod A, pro připojení čerpadla odpařovací vody† | kW | 8 | 8 | 8 | 11 | 11 | 11 | 15 | 15 | 15 | 15 | 15 | 18 | 18 | 30 | 30 | 30 | 30 |
* Standardní podmínky Eurovent: Vstupní/výstupní teplota vody výparníku 12°C a 7°C. Vstupní/výstupní teplota vody kondenzátoru 30°C/35°C.
** Příkon, kompresor, při provozních limitech jednotky (vstupní/výstupní teplota vody výparníku = 15°C/10°C, vstupní/výstupní teplota vody kondenzátoru = 40°C/45°C) a jmenovité napětí 400 V (údaje uvedené na štítku jednotky).
*** Maximální provozní proud jednotky při maximálním příkonu jednotky.
**** Maximální okamžitý rozběhový proud (maximální provozní proud nejmenšího kompresoru(ů) + proud zablokovaného rotoru nebo snížený rozběhový proud největšího kompresoru)
† Proudové a výkonové vstupy nejsou zahrnuty ve výše uvedených hodnotách.
N/A Není k dispozici
| Odkaz | Velikost | I nom. | MHA | LRA | LRA (Y) | LRA (S) 1 cp. | LRA (S) 2 cp. |
| 06NW2146S7N | 39 | 48 | 69 | 344 | 109 | 125 | - |
| 06NW2174S7N | 46 | 58 | 83 | 423 | 134 | 154 | - |
| 06NW2209S7N | 56 | 71 | 101 | 506 | 160 | 260 | 350 |
| 06NW2250S7N | 66 | 87 | 120 | 605 | 191 | 330 | 400 |
| 06NW2300S5N | 80 | 104 | 144 | 715 | 226 | 370 | 420 |
| 06NW2300S5E | 80+ | 111 | 165 | 856 | 270 | 385 | 460 |
Legenda:
| 06NW | Kompresor pro vodou chlazené jednotky |
| N | Neekonomizovaný kompresor |
| E | Ekonomizovaný kompresor |
| INOM | Průměrný odběr proudu kompresoru za podmínek Eurovent |
| MHA | Musí udržet ampéry (maximální provozní proud) při 360 V |
| LRA | Proud zablokovaného rotoru se startem napřímo |
| LRA (Y) | Proud zablokovaného rotoru při sníženém proudu (režim spouštění hvězda/trojúhelník) |
| LRA (S) 1 cp. | Spuštění se sníženým proudem s elektronickým startérem (doba spuštění max. 3 sekundy) pro jeden kompresor na obvod |
| LRA (S) 2 cp. | Spuštění se sníženým proudem s elektronickým startérem (doba spuštění max. 3 sekundy) pro dva kompresory na obvod |
Mož;nosti 30HXC 150 a 150A
| 30HXC | 080 | 090 | 100 | 110 | 120 | 130 | 140 | 155 | 175 | 190 | 200 | 230 | 260 | 285 | 310 | 345 | 375 | |
| Napájecí obvod | ||||||||||||||||||
| Jmenovité napájení* | V-ph-Hz | 400-3-50 | ||||||||||||||||
| Rozsah napětí | V | 360-440 | ||||||||||||||||
| Napájení řídicího obvodu | Řídicí obvod je napájen prostřednictvím transformátoru instalovaného ve výrobě | |||||||||||||||||
| Max. příkon** | kW | 104 | 117 | 131 | 145 | 159 | 174 | 194 | 211 | 230 | 263 | 271 | 310 | 345 | 395 | 422 | 460 | 526 |
| Obvod A | kW | - | - | - | - | - | - | - | - | - | - | 175 | 195 | 230 | 263 | 211 | 230 | 263 |
| Obvod B | kW | - | - | - | - | - | - | - | - | - | - | 96 | 115 | 115 | 132 | 211 | 230 | 263 |
| Max. odebíraný proud (Un - 10%)*** | A | 190 | 215 | 240 | 265 | 290 | 320 | 355 | 385 | 420 | 480 | 495 | 564 | 630 | 720 | 770 | 840 | 960 |
| Obvod A | A | - | - | - | - | - | - | - | - | - | - | 320 | 355 | 420 | 480 | 385 | 420 | 480 |
| Obvod B | A | - | - | - | - | - | - | - | - | - | - | 175 | 210 | 210 | 240 | 385 | 420 | 480 |
| Maximální odebíraný proud (Un)*** | A | 173 | 195 | 218 | 241 | 264 | 291 | 323 | 350 | 382 | 436 | 450 | 514 | 573 | 655 | 700 | 764 | 873 |
| Obvod A | A | - | - | - | - | - | - | - | - | - | - | 291 | 323 | 382 | 436 | 350 | 382 | 436 |
| Obvod B | A | - | - | - | - | - | - | - | - | - | - | 159 | 191 | 191 | 218 | 350 | 382 | 436 |
| Max. rozběhový proud, std. jednotka (Un)**** | A | 277 | 312 | 335 | 379 | 402 | 435 | 519 | 546 | 578 | 618 | 1251 | 1549 | 1608 | 1701 | 1735 | 1799 | 1920 |
| Obvod A | A | - | - | - | - | - | - | - | - | - | - | 1092 | 1358 | 1417 | 1483 | 1385 | 1417 | 1483 |
| Obvod B | A | - | - | - | - | - | - | - | - | - | - | 960 | 1226 | 1226 | 1265 | 1385 | 1417 | 1483 |
| Max. poměr rozběhového proudu/max. odebíraného proudu, jednotka | 1.61 | 1.60 | 1.54 | 1.57 | 1.52 | 1.49 | 1.61 | 1.56 | 1.51 | 1.42 | 2.78 | 3.02 | 2.81 | 2.60 | 2.48 | 2.36 | 2.20 | |
| Max. poměr rozběhového proudu/max. odebíraného proudu, obvod A | - | - | - | - | - | - | - | - | - | - | 3.75 | 4.21 | 3.71 | 3.40 | 3.96 | 3.71 | 3.40 | |
| Max. poměr rozběhového proudu/max. odebíraného proudu, obvod B | - | - | - | - | - | - | - | - | - | - | 6.03 | 6.42 | 6.42 | 5.80 | 3.96 | 3.71 | 3.40 | |
| Max. rozběhový proud - snížený rozběh proudu (Un) **** | A | std. | std. | std. | std. | std. | std. | std. | std. | std. | std. | N/A | N/A | N/A | N/A | N/A | N/A | N/A |
| Třífázový zkratový proud | kA | 25 | 25 | 25 | 25 | 25 | 25 | 25 | 25 | 25 | 25 | N/A | N/A | N/A | N/A | N/A | N/A | N/A |
| Obvod A | kA | - | - | - | - | - | - | - | - | - | - | 25 | 25 | 25 | 25 | 25 | 25 | 25 |
| Obvod B | kA | - | - | - | - | - | - | - | - | - | - | 15 | 15 | 15 | 15 | 25 | 25 | 25 |
| Pohotovostní kapacita zákazníka, jednotka nebo obvod A, pro připojení čerpadla odpařovací vody† | kW | 8 | 8 | 8 | 11 | 11 | 11 | 15 | 15 | 15 | 15 | 15 | 18 | 18 | 30 | 30 | 30 | 30 |
** Příkon, kompresor, při provozních limitech jednotky (vstupní/výstupní teplota vody z výparníku = 15°C/10°C, vstupní/výstupní teplota vody z kondenzátoru = 40°C/45°C) a jmenovité napětí 400 V (údaje uvedené na štítku jednotky).
*** Maximální provozní proud jednotky při maximálním příkonu jednotky.
**** Maximální okamžitý rozběhový proud (maximální provozní proud nejmenšího kompresoru(ů) + proud v zablokovaném rotoru nebo snížený rozběhový proud největšího kompresoru)
† Proudové a výkonové vstupy nejsou zahrnuty ve výše uvedených hodnotách.
N/A Není k dispozici
Jednotky 30HXC 080-375 pro vysoké kondenzační teploty jsou přímo odvozeny od standardních modelů. Jejich rozsah použití je stejný jako u standardních jednotek, ale umožňuje provoz při výstupních teplotách vody z kondenzátoru až do 63 °C. Řídicí systém PRO-DIALOG nabízí všechny výhody standardních jednotek a navíc řízení výstupní teploty vody z kondenzátoru.
Hlavní úpravy jsou:
Tyto jednotky jsou určeny pro tradiční aplikace pro vodou chlazené jednotky, ale pro vyšší výstupní teploty vody z kondenzátoru než 45 °C.
Stejně jako standardní jednotky jsou vybaveny snímači vstupní a výstupní vody z kondenzátoru, které jsou instalovány na potrubí.
Je možné řídit stroj na výstupu vody z kondenzátoru, což vyžaduje změnu konfigurace ve výrobě a použití reverzního zařízení pro vstup topení/chlazení.
Tyto jednotky jsou určeny pro tepelná čerpadla voda-voda.
Jsou z výroby konfigurovány jako tepelná čerpadla (řízení topení/chlazení v závislosti na vzdáleném reverzním zařízení). Kondenzátor obsahuje tepelnou izolaci, která je identická s izolací výparníku.
Všechny informace jsou identické s informacemi o standardních jednotkách 30HXC, s výjimkou následujících odstavců.
Pro tento typ jednotky neexistují žádné jmenovité podmínky. Výběr se provádí pomocí aktuálního elektronického katalogu.
Ty jsou identické s rozměry standardních jednotek 30HXC. Jediný rozdíl je v průměru vstupního připojení polního vedení, který je popsán v kapitole "Doporučený výběr". Před zahájením zapojování si prostudujte rozměrové výkresy těchto jednotek.
Viz tabulka kompresorů 30GX.
Všechny volby dostupné pro standardní jednotky 30HXC jsou kompatibilní, s výjimkou:
| Volba 5, jednotka pro solanku | Speciální jednotka |
| Volba 25, soft start, jednotky 30HXC 200-375 | Není k dispozici |
Pozor:
Pokud mají jednotky dva různé provozní režimy - jeden s vysokou kondenzační teplotou a druhý s nízkou kondenzační teplotou - a přechod se provádí za provozu jednotky, nesmí se teplota měnit o více než 3 K za minutu. V případech, kdy to není možné, se doporučuje použít přepínač spuštění/zastavení jednotky (vzdálené spuštění/zastavení je k dispozici pro standardní jednotky).
| 30GX | 082 | 092 | 102 | 112 | 122 | 132 | 152 | 162 | 182 | 207 | 227 | 247 | 267 | 298 | 328 | 358 | ||
| Čistý chladicí výkon | kW | 285 | 309 | 332 | 388 | 417 | 450 | 505 | 536 | 602 | 687 | 744 | 810 | 910 | 1003 | 1103 | 1207 | |
| Provozní hmotnost | kg | 3116 | 3157 | 3172 | 3515 | 3531 | 3633 | 3920 | 3936 | 4853 | 5540 | 5570 | 6134 | 6365 | 7354 | 7918 | 8124 | |
| Náplň chladiva | HFC-134a | |||||||||||||||||
| Obvod A/B | kg | 55/55 | 58/50 | 54/53 | 55/53 | 60/57 | 63/60 | 75/69 | 75/75 | 80/80 | 130/85 | 130/85 | 155/98 | 170/104 | 162/150 | 162/165 | 175/175 | |
| Olej | Polyolesterový olej CARRIER SPEC: PP 47-32 | |||||||||||||||||
| Obvod A/B | l | 20/20 | 20/20 | 20/20 | 20/20 | 20/20 | 20/20 | 20/20 | 20/20 | 20/20 | 40/20 | 40/20 | 40/20 | 40/20 | 40/40 | 40/40 | 40/40 | |
| Kompresory | Hermetický dvoušroubový Power3 | |||||||||||||||||
| Obv. A, nom. velikost na kompresor** | 46 | 46 | 56 | 56 | 66 | 66 | 80 | 80 | 80+ | 66/56 | 80/66 | 80/80 | 80+/80+ | 80/80 | 80/80 | 80+/80+ | ||
| Obv. B, nom. velikost na kompresor** | 39 | 46 | 46 | 56 | 56 | 66 | 66 | 80 | 80+ | 80 | 80 | 80 | 80+ | 66/66 | 80/802 | 80+/80+ | ||
| Typ řízení | Řízení PRO-DIALOG Plus | |||||||||||||||||
| Počet stupňů výkonu | 6 | 6 | 6 | 6 | 6 | 6 | 6 | 6 | 6 | 8 | 8 | 8 | 8 | 10 | 10 | 10 | ||
| Minimální výkon | % | 19 | 21 | 19 | 21 | 19 | 21 | 19 | 21 | 21 | 16 | 14 | 14 | 14 | 9 | 10 | 10 | |
| Výparník | Trubkový, s vnitřně žebrovanými měděnými trubkami | |||||||||||||||||
| Čistý objem vody | l | 65 | 73 | 73 | 87 | 87 | 101 | 91 | 91 | 109 | 140 | 140 | 165 | 181 | 203 | 229 | 229 | |
| Vodní přípojky | Plochá příruba dodávaná z výroby, k přivaření na místě | |||||||||||||||||
| Vstup a výstup | in. | 4 | 4 | 4 | 5 | 5 | 5 | 5 | 5 | 5 | 6 | 6 | 6 | 6 | 8 | 8 | 8 | |
| Vypouštění a odvzdušnění (NPT) | in. | 3/8 | 3/8 | 3/8 | 3/8 | 3/8 | 3/8 | 3/8 | 3/8 | 3/8 | 3/8 | 3/8 | 3/8 | 3/8 | 3/8 | 3/8 | 3/8 | |
| Max. provozní tlak na straně vody | kPa | 1000 | 1000 | 1000 | 1000 | 1000 | 1000 | 1000 | 1000 | 1000 | 1000 | 1000 | 1000 | 1000 | 1000 | 1000 | 1000 | |
| Kondenzátory | Měděné trubky a hliníkové lamely | |||||||||||||||||
| Ventilátory | Axiální ventilátor FLYING BIRD 2 s otočným krytem | |||||||||||||||||
| Množství | 4 | 4 | 4 | 6 | 6 | 6 | 8 | 8 | 8 | 10 | 10 | 12 | 12 | 14 | 16 | 16 | ||
| Rychlost | r/s | 15.8 | 15.8 | 15.8 | 15.8 | 15.8 | 15.8 | 15.8 | 15.8 | 15.8 | 15.8 | 15.8 | 15.8 | 15.8 | 15.8 | 15.8 | 15.8 | |
| Celkový průtok vzduchu | l/s | 21110 | 21110 | 21110 | 31660 | 31660 | 31660 | 42220 | 42220 | 42220 | 52770 | 52770 | 63330 | 63330 | 73880 | 84440 | 84440 | |
* Standardizované podmínky Eurovent: vstupní/výstupní teploty vody z výparníku = 12°C/7°C, teplota venkovního vzduchu = 35°C Čistý chladicí výkon: Hrubý chladicí výkon minus teplo vodního čerpadla proti vnitřní tlakové ztrátě výparníku.
** Velikost kompresoru odpovídá jmenovitému výkonu v tunách (1 tuna = 3,517 kW).
| 30HXC | 082 | 092 | 102 | 112 | 122 | 132 | 152 | 162 | 182 | 207 | 227 | 247 | 267 | 298 | 328 | 358 | ||
| Napájecí obvod | ||||||||||||||||||
| Jmenovité napájení* | V-ph-Hz | 400-3-50 | ||||||||||||||||
| Rozsah napětí | V | 360-440 | ||||||||||||||||
| Napájení řídicího obvodu | Řídicí obvod je napájen prostřednictvím transformátoru instalovaného ve výrobě | |||||||||||||||||
| Jmenovitý příkon* | kW | 98 | 109 | 123 | 133 | 150 | 166 | 179 | 196 | 214 | 246 | 281 | 292 | 332 | 364 | 394 | 449 | |
| Jmenovitý odebíraný proud* | A | 180 | 200 | 223 | 256 | 273 | 290 | 326 | 352 | 388 | 449 | 492 | 528 | 582 | 642 | 704 | 776 | |
| Max. příkon** | kW | 127 | 141 | 154 | 175 | 191 | 207 | 234 | 253 | 286 | 319 | 355 | 380 | 429 | 462 | 506 | 572 | |
| Obvod A | kW | - | - | - | - | - | - | - | - | - | 193 | 228 | 253 | 286 | 253 | 253 | 286 | |
| Obvod B | kW | - | - | - | - | - | - | - | - | - | 127 | 127 | 127 | 143 | 209 | 253 | 286 | |
| Účiník při plném zatížení | 0.85 | 0.85 | 0.85 | 0.85 | 0.85 | 0.85 | 0.86 | 0.86 | 0.86 | 0.86 | 0.86 | 0.86 | 0.86 | 0.86 | 0.86 | 0.86 | ||
| Max. odebíraný proud (Un - 10%)*** | A | 237 | 262 | 287 | 323 | 353 | 383 | 429 | 464 | 524 | 585 | 650 | 696 | 786 | 847 | 928 | 1048 | |
| Obvod A | A | - | - | - | - | - | - | - | - | - | 353 | 418 | 464 | 524 | 464 | 464 | 524 | |
| Obvod B | A | - | - | - | - | - | - | - | - | - | 232 | 232 | 232 | 262 | 383 | 464 | 524 | |
| Maximální odebíraný proud (Un)*** | A | 217 | 240 | 263 | 297 | 324 | 351 | 394 | 426 | 480 | 537 | 596 | 639 | 721 | 777 | 852 | 961 | |
| Obvod A | A | - | - | - | - | - | - | - | - | - | 324 | 383 | 426 | 480 | 426 | 426 | 480 | |
| Obvod B | A | - | - | - | - | - | - | - | - | - | 213 | 213 | 213 | 240 | 351 | 426 | 480 | |
| Max. rozběhový proud, std. jednotka**** (Un) | A | 334 | 357 | 401 | 435 | 468 | 495 | 590 | 622 | 662 | 1338 | 1631 | 1674 | 1767 | 1812 | 1887 | 2008 | |
| Obvod A*** | A | - | - | - | - | - | - | - | - | - | 1125 | 1418 | 1461 | 1527 | 1461 | 1461 | 1527 | |
| Obvod B*** | A | - | - | - | - | - | - | - | - | - | 1248 | 1248 | 1248 | 1287 | 1152 | 1461 | 1527 | |
| Max. rozběhový proud/max. poměr odebíraného proudu, jednotka | 1.54 | 1.49 | 1.53 | 1.47 | 1.44 | 1.41 | 1.50 | 1.46 | 1.38 | 2.49 | 2.74 | 2.62 | 2.45 | 2.33 | 2.22 | 2.09 | ||
| Max. rozběhový proud/max. poměr odebíraného proudu, obvod A | - | - | - | - | - | - | - | - | - | 3.47 | 3.70 | 3.43 | 3.18 | 3.43 | 3.43 | 3.18 | ||
| Max. rozběhový proud/max. poměr odebíraného proudu, obvod B | - | - | - | - | - | - | - | - | - | 5.86 | 5.86 | 5.86 | 5.36 | 3.28 | 3.43 | 3.18 | ||
| Max. rozběhový proud – start s redukovaným proudem (Un) **** | A | std. | std. | std. | std. | std. | std. | std. | std. | std. | 878 | 955 | 998 | 1102 | 1136 | 1211 | 1343 | |
| Obvod A | A | std. | std. | std. | std. | std. | std. | std. | std. | std. | 665 | 742 | 785 | 862 | 785 | 785 | 862 | |
| Obvod B | A | std. | std. | std. | std. | std. | std. | std. | std. | std. | 572 | 572 | 572 | 622 | 692 | 785 | 862 | |
| Max.rozběhový proud – start s red. proudem/ max. poměr odebíraného proudu, jednotka | std. | std. | std. | std. | std. | std. | std. | std. | std. | 1.64 | 1.60 | 1.56 | 1.53 | 1.46 | 1.42 | 1.40 | ||
| Obvod A | std. | std. | std. | std. | std. | std. | std. | std. | std. | 2.05 | 1.94 | 1.84 | 1.79 | 1.84 | 1.84 | 1.79 | ||
| Obvod B | std. | std. | std. | std. | std. | std. | std. | std. | std. | 2.69 | 2.69 | 2.69 | 2.39 | 1.97 | 1.84 | 1.79 | ||
| Třífázový zkratový proud | kA | 25 | 25 | 25 | 25 | 25 | 25 | 25 | 25 | 25 | N/A | N/A | N/A | N/A | N/A | N/A | N/A | |
| Obvod A | kA | - | - | - | - | - | - | - | - | - | 25 | 25 | 25 | 25 | 25 | 25 | 25 | |
| Obvod B | kA | - | - | - | - | - | - | - | - | - | 25 | 25 | 25 | 25 | 25 | 25 | 25 | |
| Pohotovostní kapacita zákazníka, jednotka nebo obvod A, pro připojení čerpadel odpařovací vody† | kW | 4 | 4 | 4 | 5.5 | 5.5 | 5.5 | 7.5 | 7.5 | 7.5 | 7.5 | 9 | 9 | 9 | 15 | 15 | 15 | |
* Standardní podmínky Eurovent: Vstupní/výstupní teplota vody z výparníku 12°C a 7°C. Teplota venkovního vzduchu 35°C.
** Příkon, kompresor a ventilátor, při provozních limitech jednotky (vstupní/výstupní teplota vody z výparníku = 15°C/10°C, teplota venkovního vzduchu = 46°C) a jmenovité napětí 400 V (údaje uvedené na štítku jednotky).
*** Maximální provozní proud jednotky při maximálním příkonu jednotky.
**** Maximální okamžitý rozběhový proud (maximální provozní proud nejmenšího kompresoru(ů) + proud ventilátoru + proud blokovaného rotoru nebo snížený rozběhový proud největšího kompresoru).
† Proudové a výkonové vstupy nejsou zahrnuty ve výše uvedených hodnotách
N/A Není k dispozici
| Odkaz | Velikost | I nom. | MHA | LRA | LRA (Y) | LRA (S) 1 cp. | LRA (S) 2 cp. |
| 06NA2146S7N | 39 | 70 | 95 | 605 | 191 | 220 | - |
| 06NA2174S7N | 46 | 90 | 120 | 715 | 226 | 260 | - |
| 06NA2209S7N | 56 | 113 | 145 | 856 | 270 | 330 | 420 |
| 06NA2250S7N | 66 | 130 | 175 | 960 | 303 | 380 | 500 |
| 06NA2300S5N | 80 | 156 | 210 | 1226 | 387 | 445 | 550 |
| 06NA2300S5E | 80+ | 174 | 240 | 1265 | 400 | 460 | 600 |
Legenda:
| 06NA | Kompresor pro vzduchem chlazené jednotky |
| N | Neekonomizovaný kompresor |
| E | Ekonomizovaný kompresor |
| INOM | Průměrný odběr proudu kompresoru za podmínek Eurovent |
| MHA | Musí udržet ampéry (maximální provozní proud) při 360 V |
| LRA | Proud blokovaného rotoru při spuštění napřímo |
| LRA (Y) | Proud blokovaného rotoru při sníženém proudu (režim spouštění hvězda/trojúhelník) |
| LRA (S) 1 cp. | Spuštění se sníženým proudem s elektronickým startérem (doba spuštění max. 3 sekundy) pro jeden kompresor na obvod |
| LRA (S) 2 cp. | Spuštění se sníženým proudem s elektronickým startérem (doba spuštění max. 3 sekundy) pro dva kompresory na obvod |
| Výparník (Evaporator) | Minimum (Minimum) | Maximum (Maximum) | |
| Vstupní teplota vody do výparníku (Evaporator entering water temperature) | °C | 6.8* | 21 |
| Výstupní teplota vody z výparníku (Evaporator leaving water temperature) | °C | 4** | 15 |
| Kondenzátor (chlazený vodou) (Condenser (water-cooled)) | Minimum (Minimum) | Maximum (Maximum) | |
| Vstupní teplota vody do kondenzátoru (Condenser entering water temperature) | °C | 20*** | 42 |
| Výstupní teplota vody z kondenzátoru (Condenser leaving water temperature) | °C | 25 | 45 |
| Venkovní okolní provozní teplota 30HXC (Outside ambient operating temperature 30HXC) | °C | 6 | 40 |
| Kondenzátor (chlazený vzduchem) (Condenser (air-cooled)) | Minimum (Minimum) | Maximum (Maximum) | |
| Venkovní okolní provozní teplota (Outdoor ambient operating temperature) | °C | 0 | 46 |
| Dostupný statický tlak (Available static pressure) | kPa | 0 |
Poznámky: (Notes:)
* Pro aplikace vyžadující provoz při teplotě nižší než 6,8 °C kontaktujte společnost Carrier s.a. pro výběr jednotky pomocí elektronického katalogu Carrier. (For application requiring operation at less than 6.8°C, contact Carrier s.a. for unit selection using the Carrier electronic catalog.)
** Pro aplikace vyžadující provoz při teplotě nižší než 4 °C vyžadují jednotky použití nemrznoucí směsi. (For application requiring operation at less than 4°C, the units require the use of antifreeze.)
*** Vodou chlazené jednotky (30HXC) pracující při plném zatížení a pod 20 °C vstupní teploty vody do kondenzátoru vyžadují použití regulace tlaku s analogovými vodními regulačními ventily (viz odstavec o regulaci tlaku). (Water-cooled units (30HXC) operating at full load and below 20°C condenser entering water temperature require the use of a head pressure control with analogue water control valves (see paragraph on head pressure control).)
V dočasných provozních režimech (spouštění a při částečném zatížení) může jednotka pracovat se vstupní teplotou vzduchu do kondenzátoru 13 °C. (In temporary operating modes (start-up and at part load) the unit can operate with a condenser entering air temperature of 13°C.)
Minimální průtok chlazené vody je uveden v tabulce na další straně. (The minimum chilled water flow is shown in the table on the next page.) Pokud je průtok menší, může být průtok výparníkem recirkulován, jak je znázorněno na obrázku. (If the flow is less than this, the evaporator flow can be recirculated, as shown in the diagram.) Teplota směsi opouštějící výparník nesmí být nikdy o méně než 2,8 K nižší než vstupní teplota chlazené vody. (The temperature of the mixture leaving the evaporator must never be less than 2.8 K lower than the chilled water entering temperature.)

PRO MINIMÁLNÍ PRŮTOK CHLAZENÉ VODY (FOR MINIMUM CHILLED WATER FLOW RATE)
Maximální průtok chlazené vody je omezen maximální povolenou tlakovou ztrátou ve výparníku. (The maximum chilled water flow is limited by the maximum permitted pressure drop in the evaporator.) Je uveden v tabulce na další straně. (It is provided in the table on the next page.) Pokud průtok překročí maximální hodnotu, jsou možná dvě řešení: (If the flow exceeds the maximum value, two solutions are possible:)

PRO MAXIMÁLNÍ PRŮTOK CHLAZENÉ VODY (FOR MAXIMUM CHILLED WATER FLOW RATE)
Proměnný průtok výparníkem lze použít u standardních chladičů 30HXC a 30GX. (Variable evaporator flow can be used in standard 30HXC and 30GX chillers.) Chladiče udržují konstantní výstupní teplotu vody za všech podmínek průtoku. (The chillers maintain a constant leaving water temperature under all flow conditions.) Aby se tak stalo, musí být minimální průtok vyšší než minimální průtok uvedený v tabulce přípustných průtoků a nesmí se měnit o více než 10 % za minutu. (For this to happen, the minimum flow rate must be higher than the minimum flow given in the table of permissible flow rates and must not vary by more than 10% per minute.) Pokud se průtok mění rychleji, měl by systém obsahovat minimálně 6,5 litru vody na kW namísto 3,25 l/kW. (If the flow rate changes more rapidly, the system should contain a minimum of 6.5 liters of water per kW instead of 3.25 l/kW.)
Ať už je systém jakýkoli, minimální kapacita vodního okruhu je dána vzorcem: (Whichever the system, the water loop minimum capacity is given by the formula:)
Kapacita (Capacity) = Cap (kW) x N Litrů (Liters)
| Aplikace (Application) | N |
| Běžná klimatizace (Normal air conditioning) | 3.25 |
| Chlazení procesního typu (Process type cooling) | 6.5 |
Kde Cap je jmenovitý chladicí výkon systému (kW) při jmenovitých provozních podmínkách instalace. (Where Cap is the nominal system cooling capacity (kW) at the nominal operating conditions of the installation.)
Tento objem je nezbytný pro stabilní provoz a přesnou regulaci teploty. (This volume is necessary for stable operation and accurate temperature control.)
Často je nutné přidat do okruhu vyrovnávací nádrž na vodu, aby se dosáhlo požadovaného objemu. (It is often necessary to add a buffer water tank to the circuit in order to achieve the required volume.) Samotná nádrž musí být uvnitř opatřena přepážkami, aby bylo zajištěno řádné promíchání kapaliny (vody nebo solanky). (The tank must itself be internally baffled in order to ensure proper mixing of the liquid (water or brine).) Viz níže uvedené příklady. (Refer to the examples below.)
POZNÁMKA: Kompresor nesmí restartovat více než 6krát za hodinu. (NOTE: The compressor must not restart more than 6 times in an hour.)


| 30HXC | Min.* | Max.** | ||
| 080-090 | 5.7 | 22.7 | ||
| 100 | 6.0 | 24.1 | ||
| 110 | 6.9 | 27.5 | ||
| 120-130 | 8.3 | 33.0 | ||
| 140-155 | 10.0 | 39.5 | ||
| 175-190 | 10.7 | 42.7 | ||
| 200 | 13.4 | 53.7 | ||
| 230 | 13.4 | 60.6 | ||
| 260-285 | 17.0 | 68.1 | ||
| 310 | 19.4 | 77.8 | ||
| 345-375 | 21.3 | 85.3 | ||
| 30GX | Min.* | Max.** | ||
| 082 | 5.7 | 22.7 | ||
| 092-102 | 6.0 | 24.1 | ||
| 112-122 | 6.9 | 27.5 | ||
| 132 | 8.4 | 33.7 | ||
| 152-162 | 10.0 | 39.9 | ||
| 182 | 10.7 | 42.7 | ||
| 207-227 | 13.4 | 53.7 | ||
| 247 | 15.1 | 60.6 | ||
| 267 | 17.0 | 68.1 | ||
| 298 | 19.4 | 77.8 | ||
| 328-358 | 21.3 | 85.3 | ||
* Založeno na rychlosti vody 0,9 m/s.
** Založeno na rychlosti vody 3,6 m/s.
| 30HXC | Min.* Uzavřený okruh (Closed loop) | Otevřený okruh (Open loop) | Max.** |
| 080-110 | 2.5 | 7.5 | 29.9 |
| 120-130 | 3.1 | 9.3 | 37.3 |
| 140-155 | 3.8 | 11.4 | 45.5 |
| 175-190 | 4.6 | 13.8 | 55.2 |
| 200 | 5.0 | 14.9 | 59.6 |
| 230-285 | 6.7 | 20.1 | 80.3 |
| 310-375 | 7.3 | 22.0 | 88.0 |
* Založeno na rychlosti vody 0,3 m/s v uzavřeném okruhu a 0,9 m/s v otevřeném okruhu.
** Založeno na rychlosti vody 3,6 m/s


Je povinné nainstalovat spínač průtoku chladiče a také připojit blokování čerpadla chlazené vody u jednotek 30HXC a 30GX. Nedodržení tohoto pokynu zruší záruku společnosti Carrier.
Regulátor spínače průtoku chladiče je z výroby dodáván a zapojen na jednotkách 30HXC a 30GX.
Při instalaci postupujte podle pokynů výrobce.
Spínač průtoku může být namontován ve vodorovném potrubí nebo ve svislém potrubí se stoupajícím tokem kapaliny. Neměl by se používat, když kapalina teče směrem dolů.
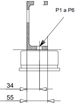
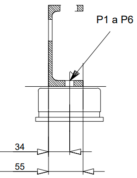
Namontujte do úseku potrubí, kde je přímý úsek o délce alespoň pěti průměrů potrubí na každé straně spínače průtoku. Neumisťujte jej v blízkosti ventilů, kolen nebo otvorů. Lopatka se nikdy nesmí dotýkat potrubí nebo jakéhokoli zúžení v potrubí. Našroubujte spínač průtoku do polohy tak, aby plochá část lopatky byla v pravém úhlu k průtoku. Šipky na krytu a ve spodní části uvnitř pouzdra musí směřovat ve směru průtoku. Spínač by měl být namontován tak, aby byly svorky snadno přístupné pro snadné zapojení.
Svorky 34 a 35 jsou k dispozici pro instalaci blokování čerpadla chlazené vody v terénu (pomocný kontakt stykače čerpadla chlazené vody).
(Připojení potrubí: 1" NPT)

Spínač průtoku kondenzátoru je zařízení instalované v terénu.
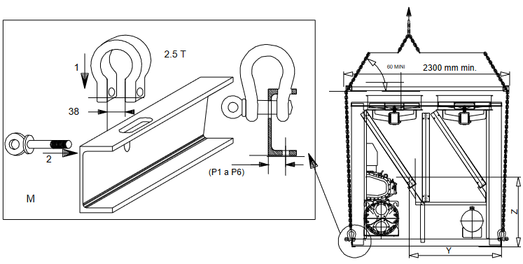
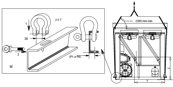
Neodstraňujte lyžiny, palety ani ochranné obaly, dokud není jednotka v konečné poloze. Přemístěte chladič pomocí trubek nebo válečků, nebo jej zvedněte pomocí popruhů se správnou nosností.
(30HXC)
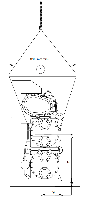
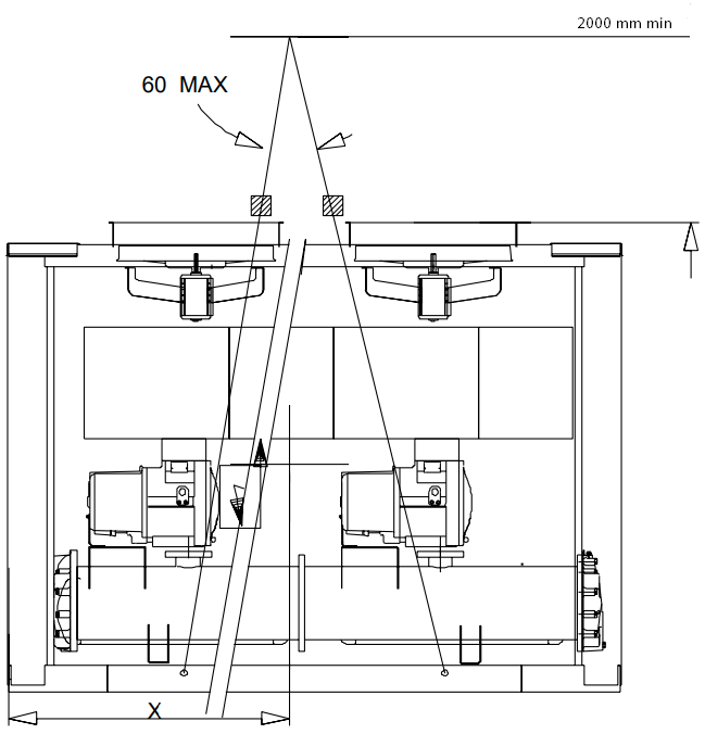
Používejte popruhy pouze v určených zvedacích bodech, které jsou označeny na jednotce, na horní straně chladiče. Zavěšení ze spodní části výměníku tepla způsobí nebezpečné zvednutí jednotky. Může dojít ke zranění osob nebo poškození jednotky. Postupujte podle pokynů pro zavěšení uvedených na certifikovaném rozměrovém výkresu dodaném s jednotkou.
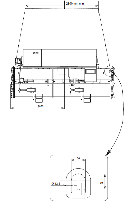
Vždy se řiďte kapitolou "Rozměry a volné prostory" (Dimensions and clearances), abyste se ujistili, že je dostatek místa pro všechna připojení a servisní úkony. Souřadnice těžiště, polohu montážních otvorů jednotky a body rozložení hmotnosti naleznete v certifikovaném rozměrovém výkresu dodaném s jednotkou.
Doporučujeme instalovat tyto chladiče buď v suterénu, nebo v úrovni terénu. Pokud má být instalován nad úrovní terénu, nejprve zkontrolujte, zda je přípustné zatížení podlahy dostatečné a zda je podlaha dostatečně pevná a rovná. V případě potřeby podlahu zpevněte a vyrovnejte.
Když je chladič na svém konečném místě, odstraňte lyžiny a další zařízení používaná k jeho přemístění. Vyrovnejte jednotku pomocí vodováhy a přišroubujte ji k podlaze nebo soklu. Provoz těchto jednotek může být narušen, pokud nejsou vodorovné a bezpečně připevněny k upevňovacím prvkům. V případě potřeby použijte pod jednotku izolační podložky, které pomohou izolovat vibrace.
Tento diagram je uveden pouze pro informaci. Viz "certifikované výkresy" ("certified drawings").

| X mm | Y mm | Z mm | |
| 30HXC080 30HXC090 30HXC100 |
1345 | 402 | 903 |
| 30HXC110 | 1368 | 397 | 935 |
| 30HXC120 30HXC130 30HXC140 30HXC155 |
1731 | 392 | 879 |
| 30HXC175 | 1703 | 386 | 947 |
| 30HXC190 | 1705 | 398 | 955 |


POZNÁMKA
Po dokončení všech operací zvedání a polohování se doporučuje opravit všechny povrchy, kde byla na zvedacích oky odstraněna barva.
Tento diagram je uveden pouze pro informaci. Viz "certifikované výkresy" ("certified drawings").




| X mm | Y mm | Z mm | |
| 30HXC310 | 2195 | 425 | 1085 |
| 30HXC345 | 2195 | 425 | 1085 |
| 30HXC375 | 2205 | 435 | 1025 |
POZNÁMKA
Po dokončení všech operací zvedání a polohování se doporučuje opravit všechny povrchy, kde byla na zvedacích oky odstraněna barva.
Tento diagram je uveden pouze pro informaci. Viz "certifikované výkresy" ("certified drawings").



| X mm | Y mm | Z mm | PTkg | |
| 30GX082 | 1440 | 1460 | 900 | 3115 |
| 30GX092 | 1440 | 1460 | 900 | 3156 |
| 30GX102 | 1440 | 1460 | 900 | 3170 |
| 30GX112 | 1650 | 1460 | 900 | 3574 |
| 30GX122 | 1650 | 1460 | 900 | 3527 |
| 30GX132 | 1650 | 1460 | 900 | 3634 |
| 30GX152 | 2155 | 1430 | 900 | 3938 |
| 30GX162 | 2155 | 1430 | 900 | 3954 |



| X mm | Y mm | Z mm | PTkg | |
| 30GX182 | 3030 | 1370 | 875 | 4853 |
POZNÁMKA
Po dokončení všech operací zvedání a polohování se doporučuje opravit všechny povrchy, kde byla na zvedacích oky odstraněna barva.
Tento diagram je uveden pouze pro informaci. Viz "certifikované výkresy" ("certified drawings").



| X mm | Y mm | Z mm | PTkg | |
| 30GX207 | 2870 | 1440 | 890 | 5536 |
| 30GX227 | 2870 | 1440 | 890 | 5572 |
| 30GX247 | 3320 | 1430 | 927 | 6131 |
| 30GX267 | 3300 | 1420 | 886 | 6363 |



| X mm | Y mm | Z mm | PTkg | |
| 30GX298 | 3630 | 1420 | 890 | 7353 |
| 30GX328 | 4360 | 1455 | 920 | 7840 |
| 30GX358 | 4360 | 1445 | 930 | 8045 |
POZNÁMKA
Po dokončení všech operací zvedání a polohování se doporučuje opravit všechny povrchy, kde byla na zvedacích oky odstraněna barva.
Velikosti a polohy všech přípojek vstupu a výstupu vody naleznete v certifikovaných rozměrových výkresech. Vodovodní potrubí nesmí přenášet žádnou radiální nebo axiální sílu na výměníky tepla ani žádné vibrace na potrubí nebo budovu.
Je nutné analyzovat přívod vody a zabudovat vhodné filtrování, úpravu, ovládací prvky, uzavírací a odvzdušňovací ventily a okruhy podle potřeby. Poraďte se s odborníkem na úpravu vody nebo s příslušnou literaturou na toto téma.
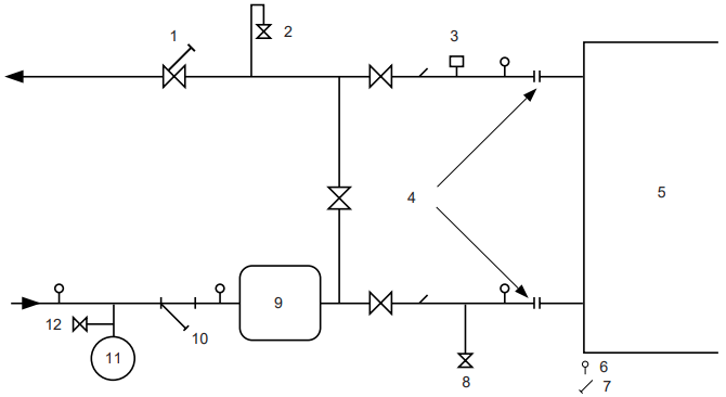
Vodní okruh by měl být navržen tak, aby měl co nejmenší počet kolen a vodorovných úseků potrubí v různých úrovních. Měly by být provedeny následující základní kontroly (viz také obrázek typického hydraulického okruhu níže).
Výparník a kondenzátor jsou více trubkové konstrukce s pláštěm a trubkami s odnímatelnými vodními komorami pro snadné čištění trubek.
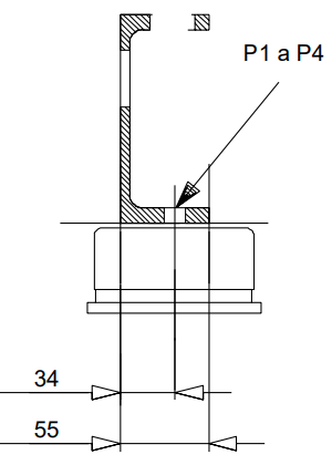
Před provedením vodních přípojek utáhněte šrouby v obou hlavách na nižší uvedený točivý moment podle popsané metody. Utáhněte je v párech a v pořadí uvedeném podle velikosti šroubu (viz tabulka) s použitím hodnoty točivého momentu na dolním konci uvedeného rozsahu.
Před svařováním potrubí k přírubě odstraňte z vodní komory plochou přírubu dodanou z výroby. Pokud přírubu neodstraníte, může dojít k poškození snímačů a izolace.
POZNÁMKA
Doporučujeme vypustit systém a odpojit potrubí, abyste se ujistili, že šrouby hlav, ke kterým je potrubí připojeno, jsou správně a rovnoměrně utaženy.
Ochrana výparníku a vodou chlazeného kondenzátoru
Pokud se chladič nebo vodovodní potrubí nachází v oblasti, kde může okolní teplota klesnout pod 0 °C, doporučuje se přidat nemrznoucí směs, která ochrání jednotku a vodovodní potrubí až do teploty o 8 K nižší, než je nejnižší teplota. Používejte pouze nemrznoucí směsi schválené pro použití ve výměnících tepla. Pokud systém není chráněn nemrznoucí směsí a nebude používán během mrazivého počasí, je nutné vypustit chladič a venkovní potrubí. Na poškození způsobené zamrznutím se nevztahuje záruka.

Legenda

Legenda
Norma EN 60204-1 je dobrým prostředkem pro reakci na požadavky směrnice o strojních zařízeních § 1.5.1. Normativní doporučení IEC 364 je obecně uznáváno jako splňující požadavky instalačního předpisu.
Příloha B normy EN 60204-1 může být použita k popisu elektrických charakteristik, za kterých stroje pracují.
(1) Požadovaná norma ochrany s ohledem na tuto klasifikaci je IP21B (v souladu s referenčním dokumentem IEC 529). Všechny 30HXC mají normu ochrany IP23C, a proto splňují tento požadavek na ochranu.
Způsobilost personálu: klasifikace BA4(2) (personál kvalifikovaný v souladu s IEC 364).
(2) Požadovaná norma ochrany s ohledem na tuto klasifikaci je IP43BW (v souladu s referenčním dokumentem IEC 529). Všechny 30GX mají normu ochrany IP45CW, a proto splňují tento požadavek na ochranu.
POZNÁMKA: Pokud konkrétní aspekty instalace vyžadují jiné charakteristiky, než jsou uvedeny výše (nebo charakteristiky, které zde nejsou uvedeny), kontaktujte svého zástupce společnosti Carrier.
Napájení musí odpovídat specifikaci na štítku chladiče. Napájecí napětí musí být v rozsahu uvedeném v tabulce elektrických dat.
Pro připojení se řiďte schématy zapojení.
Provoz chladiče s nesprávným napájecím napětím nebo nadměrnou fázovou nevyvážeností představuje zneužití, které zneplatní záruku společnosti Carrier. Pokud fázová nevyváženost překročí 2 % u napětí nebo 10 % u proudu, okamžitě kontaktujte místního dodavatele elektřiny a zajistěte, aby chladič nebyl zapnut, dokud nebudou provedena nápravná opatření.
100 x max. odchylka od průměrného napětí
Průměrné napětí
Příklad:
U napájení 400 V - 3 ph - 50 Hz byla naměřena následující jednotlivá fázová napětí:
AB = 406 V; BC = 399; AC = 394 V
| Průměrné napětí | = (406 + 399 + 394)/3 = 1199/3 |
| = 399.7 řekněme 400 V |
Vypočítejte maximální odchylku od průměru 400 V:
(AB) = 406 - 400 = 6
(BC) = 400 - 399 = 1
(CA) = 400 - 394 = 6

Maximální odchylka od průměru je 6 V. Největší procentuální odchylka je:
100 x 6/400 = 1.5 %
To je méně než přípustné 2 %, a proto je to přijatelné.
Za stanovení velikosti vodičů odpovídá instalační technik a závisí na vlastnostech a předpisech platných pro každé místo instalace. Následující text slouží pouze jako vodítko a v žádném případě nezakládá odpovědnost společnosti Carrier. Po dokončení stanovení velikosti vodičů pomocí certifikovaného výkresu rozměrů musí instalační technik zajistit snadné připojení a definovat veškeré úpravy potřebné na místě.
Připojení standardně dodávaná pro napájecí kabely dodávané v terénu k hlavnímu odpojovači/izolátoru jsou navržena pro počet a typ vodičů uvedených v tabulce níže.
Výpočty jsou založeny na maximálním proudu stroje (viz tabulky s elektrickými údaji).
Pro návrh jsou použity následující standardizované metody instalace v souladu s normou IEC 364, tabulka 52C:
Výpočet je založen na kabelech s izolací z PVC nebo XLPE s měděným nebo hliníkovým jádrem. Maximální teplota je 40 °C pro jednotky 30HX a 46 °C pro jednotky 30GX.
Daná délka vodiče omezuje pokles napětí na < 5 %.
| Unit (jednotka) | Min. (mm2) by phase (na fázi) | Wire type (typ vodiče) | L (m) | Max. (mm2) by phase (na fázi) | Wire type (typ vodiče) | L (m) |
| 30HX 080 | 1 x 35 | XLPE Cu | 140 | 1 x 120 | PVC Al | 260 |
| 30HX 090 | 1 x 50 | XLPE Cu | 160 | 1 x 120 | PVC Al | 260 |
| 30HX 100 | 1 x 50 | XLPE Cu | 160 | 1 x 95 | XLPE Al | 195 |
| 30HX 110 | 1 x 70 | XLPE Cu | 170 | 1 x 120 | XLPE Al | 205 |
| 30HX 120/130 | 1 x 70 | XLPE Cu | 170 | 1 x 150 | XLPE Al | 210 |
| 30HX 140 | 1 x 95 | XLPE Cu | 180 | 1 x 185 | XLPE Al | 220 |
| 30HX 155 | 1 x 95 | XLPE Cu | 180 | 1 x 240 | XLPE Al | 225 |
| 30HX 175 | 1 x 120 | XLPE Cu | 185 | 1 x 240 | XLPE Al | 225 |
| 30HX 190 | 1 x150 | XLPE Cu | 190 | 2 x 95 | XLPE Al | 195 |
| 30HX 200 ckt A | 1 x 70 | XLPE Cu | 170 | 2 x120 | PVC Al | 325 |
| 30HX 230 ckt A | 1 x 95 | XLPE Cu | 180 | 2 x 120 | PVC Al | 325 |
| 30HX 260 ckt A | 1 x 120 | XLPE Cu | 185 | 1 x 240 | XLPE Al | 225 |
| 30HX 285 ckt A | 1 x 150 | XLPE Cu | 190 | 2 x 150 | XLPE Al | 265 |
| 30HX 200 ckt B | 1 x 35 | XLPE Cu | 140 | 1 x 95 | PVC Al | 250 |
| 30HX 230 ckt B | 1 x 35 | XLPE Cu | 140 | 1 x 120 | PVC Al | 260 |
| 30HX 260 ckt B | 1 x 35 | XLPE Cu | 140 | 1 x 120 | PVC Al | 260 |
| 30HX 285 ckt B | 1 x 50 | XLPE Cu | 160 | 2 x 70 | PVC Al | 285 |
| 30HX 310 ckt A & B | 1 x 95 | XLPE Cu | 180 | 1 x 240 | XLPE Al | 225 |
| 30HX 345 ckt A & B | 1 x 120 | XLPE Cu | 185 | 1 x 240 | XLPE Al | 225 |
| 30HX 375 ckt A & B | 1 x 150 | XLPE Cu | 190 | 2 x 150 | XLPE Al | 265 |
| 30GX 082 | 1 x 95 | XLPE Cu | 190 | 2 x 185 | PVC Al | 420 |
| 30GX 092 | 1 x 120 | XLPE Cu | 195 | 2 x 185 | PVC Al | 420 |
| 30GX 102 | 1 x 120 | XLPE Cu | 195 | 2 x 240 | PVC Al | 450 |
| 30GX 112 | 1 x 150 | XLPE Cu | 200 | 2 x 150 | XLPE Al | 300 |
| 30GX 122 | 1 x 185 | XLPE Cu | 205 | 2 x 185 | XLPE Al | 315 |
| 30GX 132 | 1 x 185 | XLPE Cu | 205 | 2 x 240 | XLPE Al | 330 |
| 30GX 152 | 1 x 240 | XLPE Cu | 205 | 3x 185 | XLPE CU | 430 |
| 30GX 162 | 2 x 95 | XLPE Cu | 190 | 3x 240 | XLPE CU | 440 |
| 30GX 182 | 2 x 120 | XLPE Cu | 200 | 3x 240 | XLPE CU | 440 |
| 30GX 207 ckt A | 1 x 185 | XLPE Cu | 205 | 3x 185 | XLPE Al | 445 |
| 30GX 227 ckt A | 1 x 240 | XLPE Cu | 205 | 3x 240 | XLPE Al | 470 |
| 30GX 247/298/328 ckt A | 2 x 120 | XLPE Cu | 225 | 3x 185 | XLPE CU | 490 |
| 30HX 267/358 ckt A | 2 x 150 | XLPE Cu | 230 | 3x 240 | XLPE CU | 505 |
| 30GX 207/227/247 ckt B | 1 x 95 | XLPE Cu | 190 | 2 x 240 | PVC Al | 560 |
| 30HX 267 ckt B | 1 x 120 | XLPE Cu | 200 | 2 x 185 | XLPE AL | 395 |
| 30GX 298 ckt B | 1 x 185 | XLPE Cu | 205 | 3x 240 | XLPE AL | 470 |
| 30GX 328 ckt B | 2 x 120 | XLPE Cu | 225 | 3x 185 | XLPE CU | 490 |
| 30GX 358 ckt B | 2 x 150 | XLPE Cu | 230 | 3x 240 | XLPE CU | 505 |
Před připojením hlavních napájecích kabelů (L1 - L2 - L3) na svorkovnici je nezbytné zkontrolovat správné pořadí 3 fází před pokračováním v připojení na svorkovnici nebo na hlavní odpojovač/izolační spínač.
Informace o zapojení polního ovládání následujících funkcí naleznete v dokumentu Controls IOM a v certifikovaném schématu zapojení dodaném s jednotkou:
Doporučené průřezy vodičů pro jednotky s vysokými teplotami kondenzace (400 V - 3 ph - 50 Hz)
| Jednotka, možnosti 150 + 150A 400 V - 3 ph - 50 Hz | Min. (mm2) na fázi | Typ vodiče | L (m) | Max. (mm2) na fázi | Typ vodiče | L (m) |
| 30HXC 080 OPT. 150 | 1 x 50 | XLPE Cu | 150 | 2 x 70 | PVC Al | 230 |
| 30HXC 090 OPT. 150 | 1 x 70 | XLPE Cu | 160 | 2 x 95 | PVC Al | 260 |
| 30HXC 100 OPT. 150 | 1 x 70 | XLPE Cu | 160 | 2 x 95 | PVC Al | 250 |
| 30HXC 110 OPT. 150 | 1 x 95 | XLPE Cu | 170 | 2 x 120 | PVC Al | 265 |
| 30HXC 120 OPT. 150 | 1 x 120 | XLPE Cu | 180 | 2 x 120 | XLPE Al | 205 |
| 30HXC 130 OPT. 150 | 1 x 120 | XLPE Cu | 160 | 2 x 120 | XLPE Al | 210 |
| 30HXC 140 OPT. 150 | 1 x 150 | XLPE Cu | 175 | 2 x 120 | XLPE Al | 205 |
| 30HXC 155 OPT. 150 | 1 x 185 | XLPE Cu | 185 | 2 x 150 | XLPE Al | 215 |
| 30HXC 175 OPT. 150 | 1 x 240 | XLPE Cu | 185 | 2 x 150 | XLPE Al | 210 |
| 30HXC 190 OPT. 150 | 2 x 95 | XLPE Cu | 175 | 2 x 240 | XLPE Al | 220 |
| 30HXC 200 OPT. 150 circ. A | 1 x 120 | XLPE Cu | 170 | 2 x 150 | XLPE Al | 270 |
| 30HXC 230 OPT. 150 circ. A | 1 x 150 | XLPE Cu | 180 | 2 x 185 | XLPE Al | 270 |
| 30HXC 260 OPT. 150 circ. A | 1 x 185 | XLPE Cu | 180 | 2 x 240 | XLPE Al | 295 |
| 30HXC 285 OPT. 150 circ. A | 1 x 240 | XLPE Cu | 170 | 2 x 185 | XLPE Cu | 265 |
| 30HXC 310 OPT. 150 circ. A | 1 x 185 | XLPE Cu | 180 | 2 x 240 | XLPE Al | 300 |
| 30HXC 345 OPT. 150 circ. A | 1 x 185 | XLPE Cu | 170 | 2 x 240 | XLPE Al | 280 |
| 30HXC 375 OPT. 150 circ. A | 1 x 240 | XLPE Cu | 170 | 2 x 185 | XLPE Cu | 265 |
| 30HXC 200 OPT. 150 circ. B | 1 x 35 | XLPE Cu | 125 | 2 x 95 | PVC Al | 320 |
| 30HXC 230 OPT. 150 circ. B | 1 x 50 | XLPE Cu | 140 | 2 x 95 | PVC Al | 310 |
| 30HXC 260 OPT. 150 circ. B | 1 x 50 | XLPE Cu | 140 | 2 x 95 | PVC Al | 310 |
| 30HXC 285 OPT. 150 circ. B | 1 x 70 | XLPE Cu | 160 | 2 x 120 | PVC Al | 325 |
| 30HXC 310 OPT. 150 circ. B | 1 x 150 | XLPE Cu | 180 | 2 x 185 | XLPE Al | 275 |
| 30HXC 345 OPT. 150 circ. B | 1 x 185 | XLPE Cu | 185 | 2 x 240 | XLPE Al | 305 |
| 30HXC 375 OPT. 150 circ. B | 1 x 185 | XLPE Cu | 160 | 2 x 240 | XLPE Al | 280 |
Olejový filtr
Šroubový kompresor 06N má olejový filtr integrovaný v tělese kompresoru. Tento filtr je vyměnitelný v terénu.
Chladivo
Šroubový kompresor 06N je speciálně navržen pro použití pouze v systému R134 a.
Mazivo
Šroubový kompresor 06N je schválen pro použití s následujícím mazivem:
CARRIER MATERIAL SPEC PP 47-32
Elektromagnetický ventil přívodu oleje
Elektromagnetický ventil přívodu oleje je standardní součástí kompresoru a slouží k izolaci kompresoru od průtoku oleje, když kompresor nepracuje.
Olejový solenoid je vyměnitelný v terénu.
Sací a ekonomizérové sítko
Pro zvýšení spolehlivosti kompresoru byla do sacích a ekonomizérových vstupů kompresoru standardně zabudována sítka.
Systém odlehčení
Šroubový kompresor 06N má systém odlehčení, který je standardní součástí všech kompresorů. Tento systém odlehčení se skládá ze dvou stupňů odlehčení, které snižují výkon kompresoru přesměrováním částečně stlačeného plynu zpět do sání.
Chladiče 30HXC a 30GX používají zaplavený výparník. Voda cirkuluje v trubkách a chladivo je na vnější straně v plášti. Jedna nádoba se používá pro oba chladicí okruhy. Uprostřed je trubkovnice, která odděluje oba chladicí okruhy. Trubky jsou měděné o průměru 3/4" s vylepšeným povrchem uvnitř i vně. K dispozici je pouze jeden vodní okruh a v závislosti na velikosti chladiče mohou být dva nebo tři průchody vody. Senzor hladiny chladicí kapaliny zajišťuje optimalizované řízení průtoku.
V horní části chladiče jsou dvě sací trubky, jedna v každém okruhu. Každá z nich má navařenou přírubu a na přírubu se montuje kompresor.
Chladič 30HXC používá nádobu, která je kombinací kondenzátoru a odlučovače oleje. Je namontována pod chladičem. Plyn z výtlaku opouští kompresor a proudí přes externí tlumič do odlučovače oleje, který je horní částí nádoby. Vstupuje do horní části odlučovače, kde se odstraňuje olej, a poté proudí do spodní části nádoby, kde plyn kondenzuje a podchlazuje se. Jedna nádoba se používá pro oba chladicí okruhy. Uprostřed je trubkovnice, která odděluje oba chladicí okruhy. Trubky jsou měděné o průměru 3/4" nebo 1" s vylepšeným povrchem uvnitř i vně. K dispozici je pouze jeden vodní okruh se dvěma průchody vody.
U jednotek chlazených vzduchem je odlučovač oleje tlaková nádoba, která je namontována pod vnějšími vertikálními kondenzátorovými cívkami. Plyn z výtlaku vstupuje do horní části odlučovače, kde se většina oleje oddělí a odtéká do spodní části. Plyn pak proudí přes sítko z drátěného pletiva, kde se zbývající olej oddělí a odtéká do spodní části.
Mikroprocesor řídí EXD prostřednictvím řídicího modulu EXV. EXD bude buď EXV, nebo Economizer. Uvnitř obou těchto zařízení je lineární krokový motor. Kapalné chladivo o vysokém tlaku vstupuje do ventilu spodní stranou. Uvnitř sestavy otvoru je umístěna řada kalibrovaných štěrbin. Jak chladivo prochází otvorem, tlak klesá a chladivo se mění do dvoufázového stavu (kapalina a pára). Pro řízení průtoku chladiva pro různé provozní podmínky se pouzdro pohybuje nahoru a dolů přes otvor, čímž se mění efektivní průtočná plocha expanzního zařízení. Pouzdro je poháněno lineárním krokovým motorem. Krokový motor se pohybuje v krocích a je řízen přímo procesorovým modulem. Jak se krokový motor otáčí, pohyb se přenáší na lineární pohyb pomocí vodicího šroubu. Prostřednictvím krokového motoru a vodicích šroubů se dosáhne 1500 diskrétních kroků pohybu. Velký počet kroků a dlouhý zdvih vedou k velmi přesnému řízení průtoku chladiva. Každý okruh má snímač hladiny kapaliny namontovaný vertikálně do horní části pláště chladiče. Snímač hladiny se skládá z malého elektrického odporového ohřívače a tří termistorů zapojených do série, které jsou umístěny v různých výškách uvnitř tělesa jímky. Ohřívač je navržen tak, aby termistory ukazovaly přibližně 93,3 °C v suchém vzduchu. Jak hladina chladiva v chladiči stoupá, odpor nejbližšího termistoru (termistorů) se výrazně změní. Tento velký rozdíl v odporu umožňuje řídicí jednotce přesně udržovat specifikovanou hladinu. Snímač hladiny monitoruje hladinu kapalného chladiva v chladiči a odesílá tyto informace do PSIO-1. Při počátečním spuštění je poloha EXV na nule. Poté mikroprocesor přesně sleduje polohu ventilu, aby tyto informace mohl použít jako vstup pro ostatní řídicí funkce. Dělá to tak, že inicializuje EXV při spuštění. Procesor vyšle do ventilu dostatek uzavíracích impulsů, aby jej přesunul z plně otevřené do plně uzavřené polohy, a poté resetuje čítač polohy na nulu. Od tohoto okamžiku až do inicializace procesor počítá celkový počet otevřených a uzavřených kroků, které odeslal do každého ventilu.
Ekonomizéry jsou instalovány na 30HXC 190, 285 a 375 a 30GX 182, 267 a 358.
Ekonomizér zlepšuje jak výkon, tak účinnost chladiče a zároveň zajišťuje chlazení motoru kompresoru. Uvnitř ekonomizéru je lineární krokový motor EXV a plovákový ventil. EXV je řízen PIC pro udržování požadované hladiny kapaliny v chladiči (stejně jako u chladičů bez ekonomizéru). Plovákový ventil udržuje hladinu kapaliny ve spodní části ekonomizéru. Kapalné chladivo je dodáváno z kondenzátoru do spodní části ekonomizéru. Jak chladivo prochází EXV, jeho tlak se snižuje na mezilehlou úroveň přibližně 500 kPa. Tento tlak je udržován uvnitř pláště ekonomizéru. Dále chladivo proudí přes plovákový ventil, jehož tlak se dále snižuje na hodnotu mírně nad tlakem v chladiči. Zvýšení výkonu je realizováno, když se část chladiva procházejícího EXV odpaří na páru, čímž se dále podchladí kapalina, která je udržována ve spodní části ekonomizéru. Toto zvýšení podchlazení poskytuje dodatečný výkon. Protože k dosažení tohoto cíle není zapotřebí žádný další výkon, zlepšuje se také účinnost stroje. Pára, která se odpaří, vystoupá do ekonomizéru, kde přejde do kompresoru a je použita podle potřeby k zajištění chlazení motoru. Po průchodu vinutím motoru se chladivo znovu dostane do cyklu v mezilehlém portu v kompresním cyklu.
Šroubové chladiče 30GX/HXC používají jedno externě namontované předmazávací olejové čerpadlo na okruh. Toto čerpadlo se spouští jako součást sekvence spouštění.
POZOR:
Provozní teplota cívky může dosáhnout 80 °C. Za určitých dočasných podmínek (zejména při spouštění při nízké venkovní teplotě nebo nízké teplotě kondenzátorového okruhu) může být olejové čerpadlo znovu aktivováno.
U jednotek 30GX jsou čerpadla namontována na základních lištách na straně odlučovače oleje jednotky. Čerpadla jsou namontována na konzole na kondenzátorech jednotek 30HXC. Když je vyžadováno spuštění okruhu, řídicí jednotky nejprve aktivují olejové čerpadlo, aby se kompresor spustil se správným mazáním. Pokud čerpadlo vytvořilo dostatečný tlak oleje, bude kompresoru umožněno spustit se. Jakmile se kompresor spustí, olejové čerpadlo se vypne. Pokud čerpadlo nebylo schopno vytvořit dostatečný tlak oleje, řídicí jednotka vygeneruje alarm.
Teploty vinutí motoru kompresoru jsou řízeny na optimální nastavenou hodnotu. Řídicí jednotka toho dosahuje cyklováním elektromagnetického ventilu chlazení motoru, aby se podle potřeby umožnil průtok kapalného chladiva přes vinutí motoru. U jednotek vybavených ekonomizéry opouští plyn z odpařování horní část ekonomizéru a nepřetržitě proudí do vinutí motoru. Veškeré chladivo použité pro chlazení motoru se vrací do rotorů přes port umístěný v polovině kompresního cyklu a je stlačeno na výtlačný tlak.
Jednotky používají termistory (včetně dvou termistorů teploty motoru) a dva termistory hladiny a tlakové převodníky pro monitorování a řízení provozu systému.
Výstupní kapalina z výparníku
Tato teplota se používá k měření teploty výstupní kapaliny z výparníku (voda nebo solanka). Teplota se používá pro řízení teploty výstupní kapaliny a pro ochranu proti zamrznutí chladiče. Je umístěn v hrdle kapaliny výparníku.
Vstupní kapalina do výparníku
Tento snímač se používá k měření teploty vstupní kapaliny do výparníku. Je umístěn ve vstupním hrdle výparníku. Používá se k zajištění automatické teplotní kompenzace pro řízení teploty výstupní kapaliny s kompenzací vstupní kapaliny.
Teplota výtlačného plynu (okruhy A a B)
Tento snímač se používá k měření teploty výtlačného plynu a řízení přehřátí výtlačné teploty. Je umístěn na výtlačném potrubí každého okruhu (30HXC) nebo na horní straně odlučovače oleje (30GX).
POZOR: Není zde žádná objímka termostatu.
Teplota motoru
Modul ochrany kompresoru (CPM) monitoruje teplotu motoru. Svorky termistoru jsou umístěny ve spojovací krabici kompresoru.
Hladina kapaliny ve výparníku (okruhy A a B)
Termistor hladiny kapaliny ve výparníku se používá k zajištění optimalizovaného řízení průtoku ve výparníku. Je instalován v horní části výparníku.
Vstupní kapalina do kondenzátoru (30HXC)
Tento snímač se používá k měření teploty kapaliny vstupující do vodou chlazených kondenzátorů. Je umístěn ve společném potrubí kapaliny vstupující do kondenzátorů (instalováno v terénu). U tepelných strojů se používá v rutině řízení výkonu. U vodou chlazených kondenzátorů se používá pouze pro monitorování teploty kapaliny v kondenzátoru.
Výstupní kapalina z kondenzátoru (volitelné u 30HXC)
Tento snímač se používá k měření teploty kapaliny vystupující z vodou chlazených kondenzátorů. Je umístěn ve společném potrubí kapaliny vystupující z kondenzátorů (instalováno v terénu). U tepelných strojů se používá v rutině řízení výkonu. U vodou chlazených kondenzátorů se používá pouze pro monitorování teploty kapaliny v kondenzátoru.

GX082/102

GX112/132

GX152/162

GX182

GX207/227

GX247/267

GX298

GX328/358
Tyto jednotky jsou navrženy pro použití pouze s R-134a.
NEPOUŽÍVEJTE V TĚCHTO JEDNOTKÁCH ŽÁDNÉ JINÉ chladivo.
Při doplňování nebo odstraňování náplně neustále cirkulujte vodu kondenzátorem (HX) a chladičem, abyste zabránili zamrznutí. Poškození mrazem je považováno za zneužití a může vést ke ztrátě záruky Carrier.
SYSTÉM NEPŘEPLŇUJTE. Přeplnění vede k vyššímu výtlačnému tlaku s vyšší spotřebou chladicí kapaliny, možnému poškození kompresoru a vyšší spotřebě energie.
POZNÁMKA
Pro kontrolu nízké náplně chladiva u 30HXC je třeba zvážit několik faktorů. Blikající průhledítko na kapalinovém potrubí nemusí nutně znamenat nedostatečnou náplň. Existuje mnoho systémových podmínek, kdy se blikající průhledítko objevuje za normálního provozu. Dávkovací zařízení 30HXC je navrženo tak, aby správně fungovalo i za těchto podmínek.
POZNÁMKA
Blikající průhledítko kapalinového potrubí za jiných provozních podmínek, než jsou uvedeny výše, nemusí nutně znamenat nízkou náplň chladiva.
Tyto teploty se používají k měření teploty prostoru nebo teploty venkovního vzduchu, respektive pro řízení resetu na základě možností resetu teploty venkovního vzduchu nebo teploty prostoru.
Výtlačný tlak (obvody A & B)
Tento vstup se používá k měření tlaku na vysokotlaké straně každého obvodu jednotky.
Používá se k zajištění tlaku pro nahrazení manometru výtlačného tlaku a k řízení tlaku hlavy.
Sací tlak (obvody A & B)
Tento vstup se používá k měření tlaku na nízkotlaké straně jednotky. Používá se k zajištění tlaku pro nahrazení manometru sacího tlaku.
Tlak oleje (každý kompresor)
Tento vstup se používá k měření tlaku oleje každého kompresoru jednotky. Nachází se na portu tlaku oleje každého kompresoru.
Tlak ekonomaizéru (obvody A & B)
Tento vstup se používá ke sledování rozdílu tlaku oleje dodávaného do kompresoru.
NEDOPLŇUJTE olej na žádném jiném místě, protože by to mohlo vést k nesprávnému provozu jednotky.
Při přenosu náplně chladiva do skladovací jednotky se může olej přenášet, když jednotka nefunguje. Nejprve znovu použijte veškeré přenesené množství chladiva. Po vypuštění oleje doplňte pouze vypuštěné množství (nadměrná olejová náplň může narušit správný provoz jednotky).
Integrovaný olejový filtr ve šroubovém kompresoru 06N je určen k zajištění vysoké úrovně filtrace (3 µ), která je vyžadována pro dlouhou životnost ložisek. Protože je čistota systému kritická pro spolehlivý provoz systému, je v olejovém potrubí na výstupu odlučovače oleje také předfiltr (7 µ).
Číslo dílu náhradní vložky integrovaného olejového filtru je:
Číslo dílu Carrier (včetně filtru a O-kroužku): 06NA 660016S
Filtr by měl být zkontrolován po prvních 500 hodinách provozu a poté každých 2000 hodin. Filtr by měl být vyměněn kdykoli, když tlakový rozdíl na filtru překročí 2,1 baru.
Tlakovou ztrátu na filtru lze určit měřením tlaku na servisním portu filtru a portu tlaku oleje. Rozdíl v těchto dvou tlacích bude tlaková ztráta na filtru, zpětném ventilu a solenoidovém ventilu. Tlaková ztráta na zpětném ventilu a solenoidovém ventilu je přibližně 0,4 baru, což by mělo být odečteno od dvou měření tlaku oleje, aby se získala tlaková ztráta olejového filtru. Tlaková ztráta olejového filtru by měla být zkontrolována po každé příležitosti, kdy je kompresor vypnut z důvodu bezpečnosti nízkého tlaku oleje.
Správné otáčení kompresoru je jedním z nejdůležitějších aspektů aplikace. Zpětné otáčení, i když jen na velmi krátkou dobu, poškodí kompresor.
Schéma ochrany proti zpětnému otáčení musí být schopno určit směr otáčení a zastavit kompresor do 300 milisekund. Ke zpětnému otáčení s největší pravděpodobností dojde, kdykoli je narušeno zapojení svorek kompresoru.
Pro minimalizaci možnosti zpětného otáčení je nutné použít následující postup. Přepojte napájecí kabely ke kolíku svorky kompresoru tak, jak byly původně zapojeny.
Pro výměnu kompresoru je s kompresorem dodáván spínač nízkého tlaku. Tento spínač nízkého tlaku by měl být dočasně nainstalován jako pevná bezpečnostní pojistka na vysokotlaké části kompresoru. Účelem tohoto spínače je chránit kompresor před jakýmikoli chybami zapojení na kolíku svorky kompresoru. Elektrický kontakt spínače by byl zapojen do série s vysokotlakým spínačem. Spínač zůstane na svém místě, dokud nebude kompresor spuštěn a nebude ověřen směr otáčení; v tomto okamžiku bude spínač odstraněn.
Spínač, který byl vybrán pro detekci zpětného otáčení, je číslo dílu Carrier HK01CB001. Je k dispozici jako součást "Compressor installation package" (instalační balíček kompresoru) (číslo dílu 06NA 660 013). Tento spínač otevírá kontakty, když tlak klesne pod 50 mm vakua. Spínač je typu s ručním resetem, který lze resetovat poté, co tlak znovu stoupne nad 70 kPa. Je kritické, aby byl spínač typu s ručním resetem, aby se zabránilo krátkému cyklování kompresoru v opačném směru.
Při diagnostice a opravě problémů s EXD/ Ekonomaizérem postupujte podle níže uvedených kroků.
U jednotek 30HXC/GX s ekonomaizéry ověřte, zda je ventil pro bublinkovou trubici (spodní část ekonomaizéru) otevřený. Nejprve zkontrolujte provoz motoru EXD (viz postup v Controls IOM). Pohyb pohonu byste měli cítit tak, že položíte ruku na tělo EXD nebo ekonomaizéru (pohon je umístěn přibližně v jedné polovině až dvou třetinách cesty nahoru od spodní části pláště ekonomaizéru). Měli byste cítit silné klepání vycházející z pohonu, když dosáhne horní části svého zdvihu (lze slyšet, pokud je okolí relativně tiché). Pohon by měl klepat, když dosáhne spodní části svého zdvihu. Pokud se domníváte, že ventil nefunguje správně, kontaktujte servisní oddělení Carrier pro další kontroly:


Schválení systému environmentálního managementu
Číslo objednávky: 13173-76, 03 1999 - Nahrazuje číslo: 13173-76, březen 1998
Výrobce si vyhrazuje právo změnit specifikace jakéhokoli produktu bez předchozího upozornění.
Výrobce: Carrier s.a., Montluel, Francie.
Vytištěno v Nizozemsku na papíru bez chlóru.
