
Før den første opstart af 30HXC- og 30GX-enheden, bør de, der er involveret i opstart, drift og vedligeholdelse, være grundigt bekendt med disse instruktioner og andre nødvendige jobdata. Denne bog giver et overblik, så du kan blive fortrolig med kontrolsystemet, før du udfører opstartsprocedurer. Procedurerne i denne manual er arrangeret i den rækkefølge, der kræves for korrekt maskinopstart og -drift.
30HXC- og 30GX-væskekølere er designet til at give sikker og pålidelig service, når de betjenes inden for designspecifikationerne. Når du betjener dette udstyr, skal du bruge god dømmekraft og sikkerhedsforanstaltninger for at undgå skader på udstyr og ejendom eller personskade.
Sørg for, at du forstår og følger procedurerne og sikkerhedsforanstaltningerne i maskininstruktionerne samt dem, der er anført i denne vejledning.
MÅ IKKE UDLUFTES kølemiddel sikkerhedsventiler i en bygning. Udtag fra sikkerhedsventil skal udluftes udendørs. Akkumulering af kølemiddel i et lukket rum kan fortrænge ilt og forårsage kvælning eller eksplosioner.
SØRG FOR tilstrækkelig ventilation, især til lukkede rum og rum med lavt til loftet. Indånding af høje koncentrationer af damp er skadeligt og kan forårsage hjerteuregelmæssigheder, bevidstløshed eller død. Damp er tungere end luft og reducerer mængden af ilt, der er tilgængelig for vejrtrækning. Produktet forårsager irritation af øjne og hud. Nedbrydningsprodukter er farlige.
BRUG IKKE ILT til at rense ledninger eller til at sætte en maskine under tryk til noget formål. Iltgas reagerer voldsomt med olie, fedt og andre almindelige stoffer.
OVERSKRID ALDRIG specificerede testtryk, VERIFICER det tilladte testtryk ved at kontrollere instruktionslitteraturen og designtrykkene på udstyrets typeskilt.
BRUG IKKE luft til lækagetest. Brug kun kølemiddel eller tør nitrogen.
LUK IKKE for nogen sikkerhedsanordning.
SØRG FOR, at alle trykaflastningsanordninger er korrekt installeret, før du betjener en maskine.
MÅ IKKE SVEJSES ELLER FLAMMESKÆRES nogen kølemiddelledning eller -beholder, før alt kølemiddel (væske og damp) er fjernet fra køleren. Spor af damp bør fortrænges med tør luftnitrogen, og arbejdsområdet skal være godt ventileret. Kølemiddel i kontakt med åben ild producerer giftige gasser.
UDFØR IKKE arbejde på spændingssat udstyr, medmindre du er en dygtig elektriker.
UDFØR IKKE ARBEJDE PÅ elektriske komponenter, herunder kontrolpaneler, kontakter, relæer osv., før du er sikker på, at AL STRØM ER SLUKKET, og restspænding kan sive fra kondensatorer eller solid state-komponenter.
LÅS ÅBNE OG MÆRK elektriske kredsløb under service. HVIS ARBEJDET AFBRYDES, skal du kontrollere, at alle kredsløb er afbrudt, før du genoptager arbejdet.
HÆVERT IKKE kølemiddel.
UNDGÅ AT SPILDE flydende kølemiddel på huden eller få det i øjnene. BRUG SIKKERHEDSBRILLER. Vask eventuelle spild fra huden med sæbe og vand. Hvis flydende kølemiddel kommer i øjnene,
SKYL ØJEBLIKKELIGT ØJNENE med vand og kontakt en læge.
PÅFØR ALDRIG åben ild eller levende damp på kølemiddelbeholderen. Farligt overtryk kan opstå. Hvis det er nødvendigt at opvarme kølemiddel, skal du kun bruge varmt vand.
GENBRUG IKKE engangscylindre (ikke-returnerbare) eller forsøg at genopfylde dem. Det er FARLIGT OG ULOVLIGT. Når cylindrene er tømt, skal du evakuere det resterende gastryk, løsne kraven og skrue og kassere ventilstammen. MÅ IKKE BRÆNDES.
KONTROLLER KØLEMIDDELTYPEN, før du tilføjer kølemiddel til maskinen. Introduktion af det forkerte kølemiddel kan forårsage skade eller funktionsfejl på denne maskine.
FORSØG IKKE AT FJERNE fittings, komponenter osv., mens maskinen er under tryk, eller mens maskinen kører. Sørg for, at trykket er på 0 kPa, før du afbryder kølemiddelforbindelsen.
INSPICER ALLE aflastningsanordninger OMHYGGELIGT, MINDST EN GANG OM ÅRET. Hvis maskinen kører i en korrosiv atmosfære, skal du inspicere anordningerne med hyppigere intervaller.
FORSØG IKKE AT REPARERE ELLER RENOVERE nogen aflastningsanordning, når der findes korrosion eller ophobning af fremmedlegemer (rust, snavs, kalk osv.) i ventilhuset eller mekanismen. Udskift anordningen.
INSTALLER IKKE aflastningsanordninger i serie eller baglæns.
TRÆD IKKE på kølemiddelledninger. Knækkede ledninger kan piske rundt og frigive kølemiddel, hvilket kan forårsage personskade.
KLATR IKKE over en maskine. Brug platform eller stillads.
BRUG MEKANISK UDSTYR (kran, hejs osv.) til at løfte eller flytte tunge komponenter. Selvom komponenterne er lette, skal du bruge mekanisk udstyr, når der er risiko for at glide eller miste balancen.
VÆR OPPMÆRKSOM på, at visse automatiske startarrangementer KAN AKTIVERE TÅRVENTILATOR ELLER PUMPER. Åbn afbryderen foran tårnventilatorerne eller pumperne.
BRUG kun reparations- eller reservedele, der opfylder kodekravene for det originale udstyr.
UDLUFT ELLER DRÆN IKKE vandkasser, der indeholder industrielle saltlage, uden tilladelse fra et kompetent organ.
LØSN IKKE vandkassens bolte, før vandkassen er helt tømt.
LØSN IKKE en pakningskirtelmøtrik, før du har kontrolleret, at møtrikken har et positivt gevindindgreb.
INSPICER MED JÆVNE MELLEMRUM alle ventiler, fittings og rør for korrosion, rust, lækager eller skader.
SØRG FOR EN DRÆNFORBINDELSE i udluftningsledningen nær hver trykaflastningsanordning for at forhindre ophobning af kondensat eller regnvand.
30HXC080
30HXC090
30HXC100
30HXC110

Vandindløb
Vandudløb
Strømforsyning
kg: total driftsvægt
| A mm | B mm | C mm | D mm | E mm | kg | |
| 30HXC080 30HXC090 30HXC100 |
2705 | 950 | 1850 | 2360 | 1000 | 2447 2462 2504 |
| 30HXC110 | 2705 | 950 | 1900 | 2360 | 1000 | 2650 |
| 30HXC120 30HXC130 30HXC140 30HXC155 |
3535 | 950 | 1875 | 3220 | 1000 | 2846 2861 2956 2971 |
| 30HXC175 30HXC190 |
3550 | 950 | 2000 | 3220 | 1000 | 3283 3438 |
BEMÆRK: Se de certificerede dimensions tegninger, der følger med enheden, når du designer en installation.

Vandindløb
Vandudløb
Strømforsyning
kg: total driftsvægt
| A mm | B mm | C mm | D mm | E mm | kg | |
| 30HXC200 | 3975 | 980 | 2035 | 3620 | 1000 | 4090 |
| 30HXC230 30HXC260 30HXC285 |
3995 | 980 | 2116 | 3620 | 1000 | 4705 4815 4985 |
| 30HXC310 30HXC345 30HXC375 |
4490 | 980 | 2163 | 4120 | 1000 | 5760 5870 6105 |
BEMÆRK: Se de certificerede dimensions tegninger, der følger med enheden, når du designer en installation.
30GX-082
30GX-092
30GX-102
30GX-112
30GX-122
30GX-132
30GX-152
30GX-162
30GX-182


Vandindløb
Vandudløb
Strømforsyning
Luftudtag - må ikke blokeres
kg: total driftsvægt
| A mm | B mm | kg | |
| 30GX082 30GX092 30GX102 |
2970 | 2215 | 3116 3157 3172 |
| 30GX112 30GX122 30GX132 |
3427 | 2045 | 3515 3531 3633 |
| 30GX152 30GX162 |
4342 | 2835 | 3920 3936 |
| 30GX182 | 5996 | 1820 | 4853 |


Noter:
BEMÆRK: Se de certificerede dimensions tegninger, der følger med enheden, når du designer en installation.
30GX-207
30GX-227
30GX-247
30GX-267
30GX-298
30GX-328
30GX-358

Vandindløb
Vandudløb
Strømforsyning
Luftudtag - må ikke blokeres
kg: total driftsvægt
| A mm | B mm | kg | |
| 30GX207 30GX227 |
5996 | 2895 | 5540 5570 |
| 30GX247 30GX267 |
6911 | 2470 | 6134 6365 |
| 30GX298 | 7826 | 2220 | 7354 |
| 30GX328 30GX358 |
8741 | 1250 | 7918 8124 |


Noter:
BEMÆRK: Se de certificerede dimensions tegninger, der følger med enheden, når du designer en installation.
| 30HXC | 080 | 090 | 100 | 110 | 120 | 130 | 140 | 155 | 175 | 190 | 200 | 230 | 260 | 285 | 310 | 345 | 375 | |
| Netto kølekapacitet (Net cooling capacity) | kW | 292 | 321 | 352 | 389 | 426 | 464 | 514 | 550 | 607 | 663 | 716 | 822 | 918 | 996 | 1119 | 1222 | 1326 |
| Driftsvægt (Operating weight) | kg | 2447 | 2462 | 2504 | 2650 | 2846 | 2861 | 2956 | 2971 | 3283 | 3438 | 4090 | 4705 | 4815 | 4985 | 5760 | 5870 | 6105 |
| Kølemiddel (Refrigerant) Kredsløb A/B (Circuit A/B) |
HFC-134a | |||||||||||||||||
| kg | 39/36 | 39/36 | 37/32 | 38/38 | 57/55 | 59/50 | 56/50 | 59/52 | 58/61 | 60/70 | 110/58 | 118/63 | 120/75 | 120/75 | 108/110 | 110/110 | 110/120 | |
| Olie (Oil) Kredsløb A/B (Circuit A/B) |
Polyolester olie CARRIER SPEC: PP 47-32 | |||||||||||||||||
| l | 15/15 | 15/15 | 15/15 | 15/15 | 15/15 | 15/15 | 15/15 | 15/15 | 15/15 | 15/15 | 30/15 | 30/15 | 30/15 | 30/15 | 30/30 | 30/30 | 30/30 | |
| Kompressorer (Compressors) | Hermetisk twin-screw Power3 | |||||||||||||||||
| Kredsløb A, nom. størrelse pr. kompressor** (Circ. A, nom. size per compressor**) | 39 | 46 | 46 | 56 | 56 | 66 | 80 | 80 | 80 | 80+ | 66/56 | 80/56 | 80/80 | 80+/80+ | 80/66 | 80/80 | 80+/80+ | |
| Kredsløb B, nom. størrelse pr. kompressor** (Circ. B, nom. size per compressor**) | 39 | 39 | 46 | 46 | 56 | 56 | 56 | 66 | 80 | 80+ | 66 | 80 | 80 | 80+ | 80/66 | 80/80 | 80+/80+ | |
| Kontroltype (Control type) | PRO-DIALOG Plus kontrol (PRO-DIALOG Plus control) | |||||||||||||||||
| Antal kapacitetstrin (Number of capacity steps) | 6 | 6 | 6 | 6 | 6 | 6 | 6 | 6 | 6 | 6 | 8 | 8 | 8 | 8 | 10 | 10 | 10 | |
| Minimum kapacitet (Minimum capacity) | % | 19 | 19 | 21 | 19 | 21 | 19 | 17 | 19 | 21 | 21 | 14 | 14 | 14 | 14 | 10 | 10 | 10 |
| Fordamper (Evaporator) | Shell and tube type, with internally finned copper tubes | |||||||||||||||||
| Netto vandvolumen (Net water volume) | l | 65 | 65 | 73 | 87 | 81 | 81 | 91 | 91 | 109 | 109 | 140 | 165 | 181 | 181 | 203 | 229 | 229 |
| Vandtilslutninger (Water connections) | Fabriksleveret flad flange, der skal svejses på stedet (Factory-supplied flat flange, to be welded on site) | |||||||||||||||||
| Indløb og udløb (Inlet and outlet) | in. | 4 | 4 | 4 | 5 | 5 | 5 | 5 | 5 | 5 | 5 | 6 | 6 | 6 | 6 | 8 | 8 | 8 |
| Dræn og udluftning (NPT) (Drain and vent (NPT)) | in. | 3/8 | 3/8 | 3/8 | 3/8 | 3/8 | 3/8 | 3/8 | 3/8 | 3/8 | 3/8 | 3/8 | 3/8 | 3/8 | 3/8 | 3/8 | 3/8 | 3/8 |
| Maks. driftstryk på vandsiden (Max. water-side operating pressure) | kPa | 1000 | 1000 | 1000 | 1000 | 1000 | 1000 | 1000 | 1000 | 1000 | 1000 | 1000 | 1000 | 1000 | 1000 | 1000 | 1000 | 1000 |
| Kondensatorer (Condensers) | Shell and tube type, with internally finned copper tubes | |||||||||||||||||
| Netto vandvolumen (Net water volume) | l | 58 | 58 | 58 | 58 | 92 | 92 | 110 | 110 | 132 | 132 | 162 | 208 | 208 | 208 | 251 | 251 | 251 |
| Vandtilslutninger (Water connections) | Fabriksleveret flad flange, der skal svejses på stedet (Factory-supplied flat flange, to be welded on site) | |||||||||||||||||
| Indløb og udløb (Inlet and outlet) | in. | 5 | 5 | 5 | 5 | 5 | 5 | 5 | 5 | 6 | 6 | 6 | 6 | 6 | 6 | 8 | 8 | 8 |
| Dræn og udluftning (NPT) (Drain and vent (NPT)) | in. | 3/8 | 3/8 | 3/8 | 3/8 | 3/8 | 3/8 | 3/8 | 3/8 | 3/8 | 3/8 | 3/8 | 3/8 | 3/8 | 3/8 | 3/8 | 3/8 | 3/8 |
| Maks. driftstryk på vandsiden (Max. water-side operating pressure) | kPa | 1000 | 1000 | 1000 | 1000 | 1000 | 1000 | 1000 | 1000 | 1000 | 1000 | 1000 | 1000 | 1000 | 1000 | 1000 | 1000 | 1000 |
* Standardiserede Eurovent-forhold: fordamper indløbs-/udløbstemperaturer for vand = 12°C/7°C, kondensator indløbs-/udløbstemperaturer for vand = 30°C/35°C Netto kølekapacitet: Brutto kølekapacitet minus vandpumpevarmen mod det interne trykfald i fordamperen. ** Kompressorstørrelsen svarer til den nominelle kapacitet i tons (1 ton = 3,517 kW).
| 30HXC | 080 | 090 | 100 | 110 | 120 | 130 | 140 | 155 | 175 | 190 | 200 | 230 | 260 | 285 | 310 | 345 | 375 | |
| Strømkreds | ||||||||||||||||||
| Nominel strømforsyning* | V-ph-Hz | 400-3-50 | ||||||||||||||||
| Spændingsområde | V | 360-440 | ||||||||||||||||
| Styrekredsforsyning | Styrekredsen forsynes via den fabriksmonterede transformer | |||||||||||||||||
| Nominel effektforbrug* | kW | 59 | 67 | 74 | 83 | 88 | 99 | 112 | 123 | 135 | 146 | 156 | 179 | 201 | 219 | 245 | 274 | 298 |
| Nominel strømforbrug* | A | 98 | 111 | 124 | 139 | 148 | 166 | 186 | 204 | 226 | 242 | 259 | 291 | 335 | 367 | 408 | 456 | 498 |
| Maks. effektforbrug** | kW | 76 | 83 | 91 | 101 | 111 | 121 | 135 | 145 | 158 | 181 | 187 | 214 | 237 | 272 | 290 | 316 | 362 |
| Kredsløb A | kW | - | - | - | - | - | - | - | - | - | - | 121 | 135 | 158 | 181 | 145 | 158 | 181 |
| Kredsløb B | kW | - | - | - | - | - | - | - | - | - | - | 66 | 79 | 79 | 91 | 145 | 158 | 181 |
| Cosinus phi, enhed ved fuld belastning | 0.87 | 0.87 | 0.87 | 0.87 | 0.87 | 0.87 | 0.87 | 0.87 | 0.87 | 0.87 | 0.87 | 0.87 | 0.87 | 0.87 | 0.87 | 0.87 | 0.87 | |
| Maks. strømforbrug (Un - 10%)*** | A | 138 | 152 | 166 | 184 | 202 | 221 | 245 | 264 | 288 | 330 | 341 | 389 | 432 | 495 | 528 | 576 | 660 |
| Kredsløb A | A | - | - | - | - | - | - | - | - | - | - | 221 | 245 | 288 | 330 | 264 | 288 | 330 |
| Kredsløb B | A | - | - | - | - | - | - | - | - | - | - | 120 | 144 | 144 | 165 | 264 | 288 | 330 |
| Maksimalt strømforbrug (Un)*** | A | 125 | 138 | 151 | 167 | 184 | 201 | 223 | 240 | 262 | 300 | 310 | 354 | 393 | 450 | 480 | 524 | 600 |
| Kredsløb A | A | - | - | - | - | - | - | - | - | - | - | 201 | 223 | 262 | 300 | 240 | 262 | 300 |
| Kredsløb B | A | - | - | - | - | - | - | - | - | - | - | 109 | 131 | 131 | 150 | 240 | 262 | 300 |
| Maks. startstrøm, std. enhed (Un)**** | A | 172 | 197 | 209 | 235 | 252 | 283 | 318 | 335 | 357 | 420 | 806 | 938 | 977 | 1156 | 1064 | 1108 | 1306 |
| Kredsløb A | A | - | - | - | - | - | - | - | - | - | - | 697 | 807 | 846 | 1006 | 824 | 846 | 1006 |
| Kredsløb B | A | - | - | - | - | - | - | - | - | - | - | 605 | 715 | 715 | 856 | 824 | 846 | 1006 |
| Maks. startstrøm/maks. strømforbrugsforhold, enhed | 1.37 | 1.42 | 1.39 | 1.41 | 1.37 | 1.41 | 1.43 | 1.40 | 1.36 | 1.40 | 2.60 | 2.65 | 2.49 | 2.57 | 2.22 | 2.12 | 2.18 | |
| Maks. startstrøm/maks. strømforbrugsforhold, kredsløb A | - | - | - | - | - | - | - | - | - | - | 3.47 | 3.62 | 3.23 | 3.35 | 3.43 | 3.23 | 3.35 | |
| Maks. startstrøm/maks. strømforbrugsforhold, kredsløb B | - | - | - | - | - | - | - | - | - | - | 5.55 | 5.46 | 5.46 | 5.71 | 3.43 | 3.23 | 3.35 | |
| Maks. startstrøm - reduceret strømstart (Un) **** | A | std. | std. | std. | std. | std. | std. | std. | std. | std. | std. | 601 | 643 | 682 | 760 | 769 | 813 | 910 |
| Kredsløb A | A | std. | std. | std. | std. | std. | std. | std. | std. | std. | std. | 492 | 512 | 551 | 610 | 529 | 551 | 610 |
| Kredsløb B | A | std. | std. | std. | std. | std. | std. | std. | std. | std. | std. | 330 | 370 | 370 | 385 | 529 | 551 | 610 |
| Maks. startstrøm - red. strømstart/maks. strømforbrugsforhold, enhed | std. | std. | std. | std. | std. | std. | std. | std. | std. | std. | 1.94 | 1.82 | 1.74 | 1.69 | 1.60 | 1.55 | 1.52 | |
| Kredsløb A | std. | std. | std. | std. | std. | std. | std. | std. | std. | std. | 2.45 | 2.30 | 2.10 | 2.03 | 2.20 | 2.10 | 2.03 | |
| Kredsløb B | std. | std. | std. | std. | std. | std. | std. | std. | std. | std. | 3.03 | 2.83 | 2.83 | 2.57 | 2.20 | 2.10 | 2.03 | |
| Trefaset kortslutningsholde strøm | kA | 25 | 25 | 25 | 25 | 25 | 25 | 25 | 25 | 25 | 25 | N/A | N/A | N/A | N/A | N/A | N/A | N/A |
| Kredsløb A | kA | - | - | - | - | - | - | - | - | - | - | 25 | 25 | 25 | 25 | 25 | 25 | 25 |
| Kredsløb B | kA | - | - | - | - | - | - | - | - | - | - | 15 | 15 | 15 | 15 | 25 | 25 | 25 |
| Kundens standby-kapacitet, enhed eller kredsløb A, til tilslutning af fordampervandpumpe† | kW | 8 | 8 | 8 | 11 | 11 | 11 | 15 | 15 | 15 | 15 | 15 | 18 | 18 | 30 | 30 | 30 | 30 |
* Standard Eurovent-betingelser: Fordamperens indgangs-/udgangsvandtemperatur 12°C og 7°C. Kondensatorens indgangs-/udgangsvandtemperatur 30°C/35°C.
** Effektforbrug, kompressor, ved enhedens driftsgrænser (fordamperens indgangs-/udgangsvandtemperatur = 15°C/10°C, kondensatorens indgangs-/udgangsvandtemperatur = 40°C/45°C) og en nominel spænding på 400 V (data angivet på enhedens typeskilt).
*** Maksimal enhedsdriftsstrøm ved maksimalt enhedseffektforbrug.
**** Maksimal øjeblikkelig startstrøm (maksimal driftsstrøm for den/de mindste kompressor(er) + låst rotorstrøm eller reduceret startstrøm for den største kompressor)
† Strøm- og effektforbrug er ikke inkluderet i ovenstående værdier.
N/A Ikke tilgængelig
| Reference | Størrelse | I nom. | MHA | LRA | LRA (Y) | LRA (S) 1 cp. | LRA (S) 2 cp. |
| 06NW2146S7N | 39 | 48 | 69 | 344 | 109 | 125 | - |
| 06NW2174S7N | 46 | 58 | 83 | 423 | 134 | 154 | - |
| 06NW2209S7N | 56 | 71 | 101 | 506 | 160 | 260 | 350 |
| 06NW2250S7N | 66 | 87 | 120 | 605 | 191 | 330 | 400 |
| 06NW2300S5N | 80 | 104 | 144 | 715 | 226 | 370 | 420 |
| 06NW2300S5E | 80+ | 111 | 165 | 856 | 270 | 385 | 460 |
Forklaring:
| 06NW | Kompressor til vandkølede enheder |
| N | Ikke-økonomiseret kompressor |
| E | Økonomiseret kompressor |
| INOM | Gennemsnitligt strømforbrug for kompressoren ved Eurovent-betingelser |
| MHA | "Must hold amperes" (maksimal driftsstrøm) ved 360 V |
| LRA | Låst rotorstrøm med "across-the-line" start |
| LRA (Y) | Låst rotorstrøm ved reduceret strøm (stjerne/trekant-starttilstand) |
| LRA (S) 1 cp. | Opstart med reduceret strøm med elektronisk starter (opstartsvarighed 3 sekunder maks.) for én kompressor pr. kredsløb |
| LRA (S) 2 cp. | Opstart med reduceret strøm med elektronisk starter (opstartsvarighed 3 sekunder maks.) for to kompressorer pr. kredsløb |
30HXC 150 og 150A Valgmuligheder
| 30HXC | 080 | 090 | 100 | 110 | 120 | 130 | 140 | 155 | 175 | 190 | 200 | 230 | 260 | 285 | 310 | 345 | 375 | |
| Strømkreds | ||||||||||||||||||
| Nominel strømforsyning* | V-ph-Hz | 400-3-50 | ||||||||||||||||
| Spændingsområde | V | 360-440 | ||||||||||||||||
| Styrekredsforsyning | Styrekredsen forsynes via den fabriksmonterede transformer | |||||||||||||||||
| Maks. effektforbrug** | kW | 104 | 117 | 131 | 145 | 159 | 174 | 194 | 211 | 230 | 263 | 271 | 310 | 345 | 395 | 422 | 460 | 526 |
| Kreds A | kW | - | - | - | - | - | - | - | - | - | - | 175 | 195 | 230 | 263 | 211 | 230 | 263 |
| Kreds B | kW | - | - | - | - | - | - | - | - | - | - | 96 | 115 | 115 | 132 | 211 | 230 | 263 |
| Maks. strømforbrug (Un - 10%)*** | A | 190 | 215 | 240 | 265 | 290 | 320 | 355 | 385 | 420 | 480 | 495 | 564 | 630 | 720 | 770 | 840 | 960 |
| Kreds A | A | - | - | - | - | - | - | - | - | - | - | 320 | 355 | 420 | 480 | 385 | 420 | 480 |
| Kreds B | A | - | - | - | - | - | - | - | - | - | - | 175 | 210 | 210 | 240 | 385 | 420 | 480 |
| Maksimalt strømforbrug (Un)*** | A | 173 | 195 | 218 | 241 | 264 | 291 | 323 | 350 | 382 | 436 | 450 | 514 | 573 | 655 | 700 | 764 | 873 |
| Kreds A | A | - | - | - | - | - | - | - | - | - | - | 291 | 323 | 382 | 436 | 350 | 382 | 436 |
| Kreds B | A | - | - | - | - | - | - | - | - | - | - | 159 | 191 | 191 | 218 | 350 | 382 | 436 |
| Maks. startstrøm, std. enhed (Un)**** | A | 277 | 312 | 335 | 379 | 402 | 435 | 519 | 546 | 578 | 618 | 1251 | 1549 | 1608 | 1701 | 1735 | 1799 | 1920 |
| Kreds A | A | - | - | - | - | - | - | - | - | - | - | 1092 | 1358 | 1417 | 1483 | 1385 | 1417 | 1483 |
| Kreds B | A | - | - | - | - | - | - | - | - | - | - | 960 | 1226 | 1226 | 1265 | 1385 | 1417 | 1483 |
| Maks. startstrøm/maks. strømforbrugsforhold, enhed | 1.61 | 1.60 | 1.54 | 1.57 | 1.52 | 1.49 | 1.61 | 1.56 | 1.51 | 1.42 | 2.78 | 3.02 | 2.81 | 2.60 | 2.48 | 2.36 | 2.20 | |
| Maks. startstrøm/maks. strømforbrugsforhold, kreds A | - | - | - | - | - | - | - | - | - | - | 3.75 | 4.21 | 3.71 | 3.40 | 3.96 | 3.71 | 3.40 | |
| Maks. startstrøm/maks. strømforbrugsforhold, kreds B | - | - | - | - | - | - | - | - | - | - | 6.03 | 6.42 | 6.42 | 5.80 | 3.96 | 3.71 | 3.40 | |
| Maks. startstrøm - reduceret strømstart (Un) **** | A | std. | std. | std. | std. | std. | std. | std. | std. | std. | std. | N/A | N/A | N/A | N/A | N/A | N/A | N/A |
| Trefaset kortslutningsholde strøm | kA | 25 | 25 | 25 | 25 | 25 | 25 | 25 | 25 | 25 | 25 | N/A | N/A | N/A | N/A | N/A | N/A | N/A |
| Kreds A | kA | - | - | - | - | - | - | - | - | - | - | 25 | 25 | 25 | 25 | 25 | 25 | 25 |
| Kreds B | kA | - | - | - | - | - | - | - | - | - | - | 15 | 15 | 15 | 15 | 25 | 25 | 25 |
| Kundens standbykapacitet, enhed eller kreds A, til tilslutning af fordampervandpumpe† | kW | 8 | 8 | 8 | 11 | 11 | 11 | 15 | 15 | 15 | 15 | 15 | 18 | 18 | 30 | 30 | 30 | 30 |
** Effektforbrug, kompressor, ved enhedens driftsgrænser (fordampervand ind/ud temperatur = 15°C/10°C, kondensator ind/ud vandtemperatur = 40°C/45°C) og en nominel spænding på 400 V (data angivet på enhedens typeskilt).
*** Maksimal enheds driftsstrøm ved maksimal enheds effektforbrug.
**** Maksimal øjeblikkelig startstrøm (maksimal driftsstrøm for den/de mindste kompressor(er) + låst rotorstrøm eller reduceret startstrøm for den største kompressor)
† Strøm- og effektforbrug er ikke inkluderet i ovenstående værdier.
N/A Ikke tilgængelig
30HXC 080-375-enhederne til høje kondenseringstemperaturer er direkte afledt af standardmodellerne. Deres anvendelsesområde er det samme som standardenhedernes, men tillader drift ved kondensatorudgangsvandstemperaturer op til 63°C. PRO-DIALOG-styringen tilbyder alle fordelene ved standardenhederne plus styring af kondensatorudgangsvandstemperaturen.
De vigtigste ændringer er:
Disse enheder er designet til traditionelle anvendelser for vandkølede enheder, men til højere kondensatorudgangsvandstemperaturer end 45°C.
Ligesom standardenhederne er de udstyret med kondensatorindgangs- og udgangsvandsensorer, der er installeret på rørføringen.
Det er muligt at styre maskinen ved kondensatorvandudløbet, hvilket kræver en fabrikskonfigurationsændring og brugen af en vendefordeler til opvarmning/køling.
Disse enheder er designet til vand-til-vand varmepumper.
De er fabrikskonfigureret som varmepumper (opvarmnings-/kølingsstyring som en funktion af den eksterne vendefordeler). Kondensatoren har termisk isolering, der er identisk med fordamperens.
Al information er identisk med standard 30HXC-enhedernes, bortset fra følgende afsnit.
Der er ingen nominelle betingelser for denne enhedstype. Valget foretages ved hjælp af det aktuelle elektroniske katalog.
Disse er identiske med standard 30HXC-enhedernes. Den eneste forskel er i diameteren på den indkommende feltledningsforbindelse, der er beskrevet i kapitlet "Anbefalet valg". Se målstegningerne for disse enheder, før du fortsætter med ledningsføringen.
Se 30GX-kompressortabellen.
Alle valgmuligheder, der er tilgængelige for standard 30HXC-enhederne, er kompatible, undtagen:
| Valgmulighed 5, saltvandsenhed | Speciel enhed |
| Valgmulighed 25, blød start, 30HXC 200-375-enheder | Ikke tilgængelig |
Advarsel:
Hvis enheder har to forskellige driftsformer - en med høj kondenseringstemperatur og den anden med lav kondenseringstemperatur - og overgangen foretages med enheden i drift, må temperaturen ikke variere med mere end 3 K pr. minut. I tilfælde hvor dette ikke er muligt, anbefales det at gå gennem en enheds start/stop-kontakt (fjernstart/stop tilgængelig for standardenheder).
| 30GX | 082 | 092 | 102 | 112 | 122 | 132 | 152 | 162 | 182 | 207 | 227 | 247 | 267 | 298 | 328 | 358 | ||
| Netto kølekapacitet | kW | 285 | 309 | 332 | 388 | 417 | 450 | 505 | 536 | 602 | 687 | 744 | 810 | 910 | 1003 | 1103 | 1207 | |
| Driftsvægt | kg | 3116 | 3157 | 3172 | 3515 | 3531 | 3633 | 3920 | 3936 | 4853 | 5540 | 5570 | 6134 | 6365 | 7354 | 7918 | 8124 | |
| Kølemiddelfyldning | HFC-134a | |||||||||||||||||
| Kreds A/B | kg | 55/55 | 58/50 | 54/53 | 55/53 | 60/57 | 63/60 | 75/69 | 75/75 | 80/80 | 130/85 | 130/85 | 155/98 | 170/104 | 162/150 | 162/165 | 175/175 | |
| Olie | Polyolesterolie CARRIER SPEC: PP 47-32 | |||||||||||||||||
| Kreds A/B | l | 20/20 | 20/20 | 20/20 | 20/20 | 20/20 | 20/20 | 20/20 | 20/20 | 20/20 | 40/20 | 40/20 | 40/20 | 40/20 | 40/40 | 40/40 | 40/40 | |
| Kompressorer | Hermetisk twin-screw Power3 | |||||||||||||||||
| Kreds A, nom. størrelse pr. kompressor** | 46 | 46 | 56 | 56 | 66 | 66 | 80 | 80 | 80+ | 66/56 | 80/66 | 80/80 | 80+/80+ | 80/80 | 80/80 | 80+/80+ | ||
| Kreds B, nom. størrelse pr. kompressor** | 39 | 46 | 46 | 56 | 56 | 66 | 66 | 80 | 80+ | 80 | 80 | 80 | 80+ | 66/66 | 80/802 | 80+/80+ | ||
| Styringstype | PRO-DIALOG Plus-styring | |||||||||||||||||
| Antal kapacitetstrin | 6 | 6 | 6 | 6 | 6 | 6 | 6 | 6 | 6 | 8 | 8 | 8 | 8 | 10 | 10 | 10 | ||
| Minimumskapacitet | % | 19 | 21 | 19 | 21 | 19 | 21 | 19 | 21 | 21 | 16 | 14 | 14 | 14 | 9 | 10 | 10 | |
| Fordamper | Skal- og rørtype med indvendigt ribbede kobberrør | |||||||||||||||||
| Netto vandvolumen | l | 65 | 73 | 73 | 87 | 87 | 101 | 91 | 91 | 109 | 140 | 140 | 165 | 181 | 203 | 229 | 229 | |
| Vandtilslutninger | Fabriksleveret flad flange, der skal svejses på stedet | |||||||||||||||||
| Indløb og udløb | in. | 4 | 4 | 4 | 5 | 5 | 5 | 5 | 5 | 5 | 6 | 6 | 6 | 6 | 8 | 8 | 8 | |
| Dræn og udluftning (NPT) | in. | 3/8 | 3/8 | 3/8 | 3/8 | 3/8 | 3/8 | 3/8 | 3/8 | 3/8 | 3/8 | 3/8 | 3/8 | 3/8 | 3/8 | 3/8 | 3/8 | |
| Maks. vandtryk på vandsiden | kPa | 1000 | 1000 | 1000 | 1000 | 1000 | 1000 | 1000 | 1000 | 1000 | 1000 | 1000 | 1000 | 1000 | 1000 | 1000 | 1000 | |
| Kondensatorer | Kobberrør og aluminiumsfinner | |||||||||||||||||
| Ventilatorer | Aksial FLYING BIRD 2-ventilator med roterende kappe | |||||||||||||||||
| Antal | 4 | 4 | 4 | 6 | 6 | 6 | 8 | 8 | 8 | 10 | 10 | 12 | 12 | 14 | 16 | 16 | ||
| Hastighed | r/s | 15.8 | 15.8 | 15.8 | 15.8 | 15.8 | 15.8 | 15.8 | 15.8 | 15.8 | 15.8 | 15.8 | 15.8 | 15.8 | 15.8 | 15.8 | 15.8 | |
| Samlet luftstrøm | l/s | 21110 | 21110 | 21110 | 31660 | 31660 | 31660 | 42220 | 42220 | 42220 | 52770 | 52770 | 63330 | 63330 | 73880 | 84440 | 84440 | |
* Standardiserede Eurovent-betingelser: fordamper ind/ud vandtemperaturer = 12°C/7°C, udendørs lufttemperatur = 35°C Netto kølekapacitet: Brutto kølekapacitet minus vandpumpens varme mod det interne fordampertrykfald.
** Kompressorstørrelsen svarer til den nominelle kapacitet i tons (1 ton = 3,517 kW).
| 30HXC | 082 | 092 | 102 | 112 | 122 | 132 | 152 | 162 | 182 | 207 | 227 | 247 | 267 | 298 | 328 | 358 | ||
| Strømkreds | ||||||||||||||||||
| Nominel strømforsyning* | V-ph-Hz | 400-3-50 | ||||||||||||||||
| Spændingsområde | V | 360-440 | ||||||||||||||||
| Styrekredsforsyning | Styrekredsen forsynes via den fabriksmonterede transformer | |||||||||||||||||
| Nominel effektforbrug* | kW | 98 | 109 | 123 | 133 | 150 | 166 | 179 | 196 | 214 | 246 | 281 | 292 | 332 | 364 | 394 | 449 | |
| Nominel strømforbrug* | A | 180 | 200 | 223 | 256 | 273 | 290 | 326 | 352 | 388 | 449 | 492 | 528 | 582 | 642 | 704 | 776 | |
| Maks. effektforbrug** | kW | 127 | 141 | 154 | 175 | 191 | 207 | 234 | 253 | 286 | 319 | 355 | 380 | 429 | 462 | 506 | 572 | |
| Kredsløb A | kW | - | - | - | - | - | - | - | - | - | 193 | 228 | 253 | 286 | 253 | 253 | 286 | |
| Kredsløb B | kW | - | - | - | - | - | - | - | - | - | 127 | 127 | 127 | 143 | 209 | 253 | 286 | |
| Cosinus phi, enhed ved fuld belastning | 0.85 | 0.85 | 0.85 | 0.85 | 0.85 | 0.85 | 0.86 | 0.86 | 0.86 | 0.86 | 0.86 | 0.86 | 0.86 | 0.86 | 0.86 | 0.86 | ||
| Maks. strømforbrug (Un - 10%)*** | A | 237 | 262 | 287 | 323 | 353 | 383 | 429 | 464 | 524 | 585 | 650 | 696 | 786 | 847 | 928 | 1048 | |
| Kredsløb A | A | - | - | - | - | - | - | - | - | - | 353 | 418 | 464 | 524 | 464 | 464 | 524 | |
| Kredsløb B | A | - | - | - | - | - | - | - | - | - | 232 | 232 | 232 | 262 | 383 | 464 | 524 | |
| Maksimalt strømforbrug (Un)*** | A | 217 | 240 | 263 | 297 | 324 | 351 | 394 | 426 | 480 | 537 | 596 | 639 | 721 | 777 | 852 | 961 | |
| Kredsløb A | A | - | - | - | - | - | - | - | - | - | 324 | 383 | 426 | 480 | 426 | 426 | 480 | |
| Kredsløb B | A | - | - | - | - | - | - | - | - | - | 213 | 213 | 213 | 240 | 351 | 426 | 480 | |
| Maks. startstrøm, std. enhed**** (Un) | A | 334 | 357 | 401 | 435 | 468 | 495 | 590 | 622 | 662 | 1338 | 1631 | 1674 | 1767 | 1812 | 1887 | 2008 | |
| Kredsløb A*** | A | - | - | - | - | - | - | - | - | - | 1125 | 1418 | 1461 | 1527 | 1461 | 1461 | 1527 | |
| Kredsløb B*** | A | - | - | - | - | - | - | - | - | - | 1248 | 1248 | 1248 | 1287 | 1152 | 1461 | 1527 | |
| Maks. startstrøm/maks. strømforbrugsforhold, enhed | 1.54 | 1.49 | 1.53 | 1.47 | 1.44 | 1.41 | 1.50 | 1.46 | 1.38 | 2.49 | 2.74 | 2.62 | 2.45 | 2.33 | 2.22 | 2.09 | ||
| Maks. startstrøm/maks. strømforbrugsforhold, kredsløb A | - | - | - | - | - | - | - | - | - | 3.47 | 3.70 | 3.43 | 3.18 | 3.43 | 3.43 | 3.18 | ||
| Maks. startstrøm/maks. strømforbrugsforhold, kredsløb B | - | - | - | - | - | - | - | - | - | 5.86 | 5.86 | 5.86 | 5.36 | 3.28 | 3.43 | 3.18 | ||
| Maks. startstrøm - reduceret strømstart (Un) **** | A | std. | std. | std. | std. | std. | std. | std. | std. | std. | 878 | 955 | 998 | 1102 | 1136 | 1211 | 1343 | |
| Kredsløb A | A | std. | std. | std. | std. | std. | std. | std. | std. | std. | 665 | 742 | 785 | 862 | 785 | 785 | 862 | |
| Kredsløb B | A | std. | std. | std. | std. | std. | std. | std. | std. | std. | 572 | 572 | 572 | 622 | 692 | 785 | 862 | |
| Maks. startstrøm - red. strømstart/maks. strømforbrugsforhold, enhed | std. | std. | std. | std. | std. | std. | std. | std. | std. | 1.64 | 1.60 | 1.56 | 1.53 | 1.46 | 1.42 | 1.40 | ||
| Kredsløb A | std. | std. | std. | std. | std. | std. | std. | std. | std. | 2.05 | 1.94 | 1.84 | 1.79 | 1.84 | 1.84 | 1.79 | ||
| Kredsløb B | std. | std. | std. | std. | std. | std. | std. | std. | std. | 2.69 | 2.69 | 2.69 | 2.39 | 1.97 | 1.84 | 1.79 | ||
| Trefaset kortslutningsstrøm | kA | 25 | 25 | 25 | 25 | 25 | 25 | 25 | 25 | 25 | N/A | N/A | N/A | N/A | N/A | N/A | N/A | |
| Kredsløb A | kA | - | - | - | - | - | - | - | - | - | 25 | 25 | 25 | 25 | 25 | 25 | 25 | |
| Kredsløb B | kA | - | - | - | - | - | - | - | - | - | 25 | 25 | 25 | 25 | 25 | 25 | 25 | |
| Kundens standby-kapacitet, enhed eller kredsløb A, til tilslutning af fordampervandpumpe† | kW | 4 | 4 | 4 | 5.5 | 5.5 | 5.5 | 7.5 | 7.5 | 7.5 | 7.5 | 9 | 9 | 9 | 15 | 15 | 15 | |
* Standard Eurovent-forhold: Fordamperens indgangs-/udgangsvandtemperatur 12°C og 7°C. Udendørs lufttemperatur 35°C.
** Effektforbrug, kompressor og ventilator, ved enhedens driftsgrænser (fordamperens indgangs-/udgangsvandtemperatur = 15°C/10°C, udendørs lufttemperatur = 46°C) og en nominel spænding på 400 V (data angivet på enhedens typeskilt).
*** Maksimal enheds driftsstrøm ved maksimal enheds effektforbrug.
**** Maksimal øjeblikkelig startstrøm (maksimal driftsstrøm for den/de mindste kompressor(er) + ventilatorstrøm + fastlåst rotorstrøm eller reduceret startstrøm for den største kompressor).
† Strøm- og effektforbrug er ikke inkluderet i ovenstående værdier
N/A Ikke tilgængelig
| Reference | Størrelse | I nom. | MHA | LRA | LRA (Y) | LRA (S) 1 cp. | LRA (S) 2 cp. |
| 06NA2146S7N | 39 | 70 | 95 | 605 | 191 | 220 | - |
| 06NA2174S7N | 46 | 90 | 120 | 715 | 226 | 260 | - |
| 06NA2209S7N | 56 | 113 | 145 | 856 | 270 | 330 | 420 |
| 06NA2250S7N | 66 | 130 | 175 | 960 | 303 | 380 | 500 |
| 06NA2300S5N | 80 | 156 | 210 | 1226 | 387 | 445 | 550 |
| 06NA2300S5E | 80+ | 174 | 240 | 1265 | 400 | 460 | 600 |
Forklaring:
| 06NA | Kompressor til luftkølede enheder |
| N | Ikke-økonomiseret kompressor |
| E | Økonomiseret kompressor |
| INOM | Gennemsnitligt strømforbrug for kompressoren ved Eurovent-forhold |
| MHA | Skal holde ampere (maksimal driftsstrøm) ved 360 V |
| LRA | Fastlåst rotorstrøm med direkte start |
| LRA (Y) | Fastlåst rotorstrøm ved reduceret strøm (stjerne/trekant-starttilstand) |
| LRA (S) 1 cp. | Opstart med reduceret strøm med elektronisk starter (opstartsvarighed 3 sekunder maks.) for én kompressor pr. kredsløb |
| LRA (S) 2 cp. | Opstart med reduceret strøm med elektronisk starter (opstartsvarighed 3 sekunder maks.) for to kompressorer pr. kredsløb |
| Fordamper | Minimum | Maximum | |
| Fordamperens indgangsvandstemperatur | °C | 6.8* | 21 |
| Fordamperens udgangsvandstemperatur | °C | 4** | 15 |
| Kondensator (vandkølet) | Minimum | Maximum | |
| Kondensatorens indgangsvandstemperatur | °C | 20*** | 42 |
| Kondensatorens udgangsvandstemperatur | °C | 25 | 45 |
| Omgivende driftstemperatur udendørs 30HXC | °C | 6 | 40 |
| Kondensator (luftkølet) | Minimum | Maximum | |
| Omgivende driftstemperatur udendørs | °C | 0 | 46 |
| Tilgængeligt statisk tryk | kPa | 0 |
Bemærkninger:
* For anvendelser, der kræver drift ved mindre end 6,8 °C, skal du kontakte Carrier s.a. for valg af enhed ved hjælp af Carrier elektroniske katalog.
** For anvendelser, der kræver drift ved mindre end 4 °C, kræver enhederne brug af frostvæske.
*** Vandkølede enheder (30HXC), der arbejder ved fuld belastning og under 20 °C kondensatorindgangsvandstemperatur, kræver brug af en hovedtryksregulering med analoge vandreguleringsventiler (se afsnittet om hovedtryksregulering).
I midlertidige driftstilstande (opstart og ved dellast) kan enheden fungere med en kondensatorindgangslufttemperatur på 13 °C.
Det minimale kølevandsflow er vist i tabellen på næste side. Hvis flowet er mindre end dette, kan fordamperflowet recirkuleres, som vist i diagrammet. Temperaturen af blandingen, der forlader fordamperen, må aldrig være mindre end 2,8 K lavere end kølevandets indgangstemperatur.

FOR MINIMUM KØLEVANDSGHASTIGHED
Det maksimale kølevandsflow er begrænset af det maksimalt tilladte trykfald i fordamperen. Det er angivet i tabellen på næste side. Hvis flowet overstiger den maksimale værdi, er to løsninger mulige:

FOR MAKSIMAL KØLEVANDSGHASTIGHED
Variabelt fordamperflow kan bruges i standard 30HXC og 30GX kølere. Kølerne opretholder en konstant udgangsvandstemperatur under alle flowforhold. For at dette kan ske, skal den minimale flowhastighed være højere end det minimale flow, der er angivet i tabellen over tilladte flowhastigheder, og må ikke variere med mere end 10 % pr. minut. Hvis flowhastigheden ændres hurtigere, skal systemet indeholde mindst 6,5 liter vand pr. kW i stedet for 3,25 l/kW.
Uanset systemet er vandkredsløbets minimale kapacitet givet ved formlen:
Kapacitet = Kap (kW) x N liter
| Anvendelse | N |
| Normal aircondition | 3.25 |
| Proceskøling | 6.5 |
Hvor Kap er systemets nominelle kølekapacitet (kW) ved installationens nominelle driftsforhold.
Denne volumen er nødvendig for stabil drift og nøjagtig temperaturregulering.
Det er ofte nødvendigt at tilføje en buffervandtank til kredsløbet for at opnå den krævede volumen. Selve tanken skal være internt bafflet for at sikre korrekt blanding af væsken (vand eller saltvand). Se eksemplerne nedenfor.
BEMÆRK: Kompressoren må ikke genstarte mere end 6 gange i timen.


| 30HXC | Min.* | Max.** | ||
| 080-090 | 5.7 | 22.7 | ||
| 100 | 6.0 | 24.1 | ||
| 110 | 6.9 | 27.5 | ||
| 120-130 | 8.3 | 33.0 | ||
| 140-155 | 10.0 | 39.5 | ||
| 175-190 | 10.7 | 42.7 | ||
| 200 | 13.4 | 53.7 | ||
| 230 | 13.4 | 60.6 | ||
| 260-285 | 17.0 | 68.1 | ||
| 310 | 19.4 | 77.8 | ||
| 345-375 | 21.3 | 85.3 | ||
| 30GX | Min.* | Max.** | ||
| 082 | 5.7 | 22.7 | ||
| 092-102 | 6.0 | 24.1 | ||
| 112-122 | 6.9 | 27.5 | ||
| 132 | 8.4 | 33.7 | ||
| 152-162 | 10.0 | 39.9 | ||
| 182 | 10.7 | 42.7 | ||
| 207-227 | 13.4 | 53.7 | ||
| 247 | 15.1 | 60.6 | ||
| 267 | 17.0 | 68.1 | ||
| 298 | 19.4 | 77.8 | ||
| 328-358 | 21.3 | 85.3 | ||
* Baseret på en vandhastighed på 0,9 m/s.
** Baseret på en vandhastighed på 3,6 m/s.
| 30HXC | Min.* Lukket kredsløb (Closed loop) | Åbent kredsløb (Open loop) | Max.** |
| 080-110 | 2.5 | 7.5 | 29.9 |
| 120-130 | 3.1 | 9.3 | 37.3 |
| 140-155 | 3.8 | 11.4 | 45.5 |
| 175-190 | 4.6 | 13.8 | 55.2 |
| 200 | 5.0 | 14.9 | 59.6 |
| 230-285 | 6.7 | 20.1 | 80.3 |
| 310-375 | 7.3 | 22.0 | 88.0 |
* Baseret på en vandhastighed på 0,3 m/s i et lukket kredsløb og 0,9 m/s i et åbent kredsløb.
** Baseret på en vandhastighed på 3,6 m/s


Det er obligatorisk at installere en køler flow switch og også at tilslutte spærringen af køletvandspumpen på 30HXC og 30GX. Manglende overholdelse af denne instruktion vil annullere Carriers garanti.
Køler flow switch controlleren leveres og er fabriksmonteret på 30HXC og 30GX enheder.
Følg producentens anvisninger for installation.
Flow switchen kan monteres i et vandret rør eller et lodret rør med opadgående væskestrøm. Den bør ikke bruges, når væskestrømmen er nedadgående.
Monter i et rørstykke, hvor der er et lige stykke på mindst fem rør диаметre på hver side af flow switchen. Må ikke placeres ved siden af ventiler, albuer eller åbninger. Paddlen må aldrig røre røret eller nogen begrænsning i røret. Skru flow switchen på plads, så den flade del af paddlen er i rette vinkler i forhold til strømmen. Pilene på dækslet og i bunden, inde i huset, skal pege i strømmens retning. Kontakten skal monteres, så terminalerne er tilgængelige for nem ledningsføring.
Terminalerne 34 og 35 er tilvejebragt til feltinstallation af en spærring af køletvandspumpe (hjælpekontakt til køletvandspumpens kontaktor).
(Rørtilslutning: 1" NPT)

Kondensator flow switchen er en enhed, der installeres i marken.
Do not remove skids, pallets or protective packaging until the unit is in its final position. Move the chiller using tubes or rollers, or lift it, using slings of the correct capacity. (Fjern ikke slæder, paller eller beskyttende emballage, før enheden er i sin endelige position. Flyt køleren ved hjælp af rør eller ruller, eller løft den ved hjælp af stropper med den korrekte kapacitet.)
(30HXC)
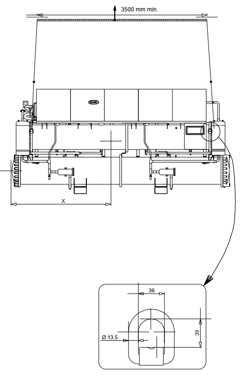
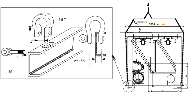
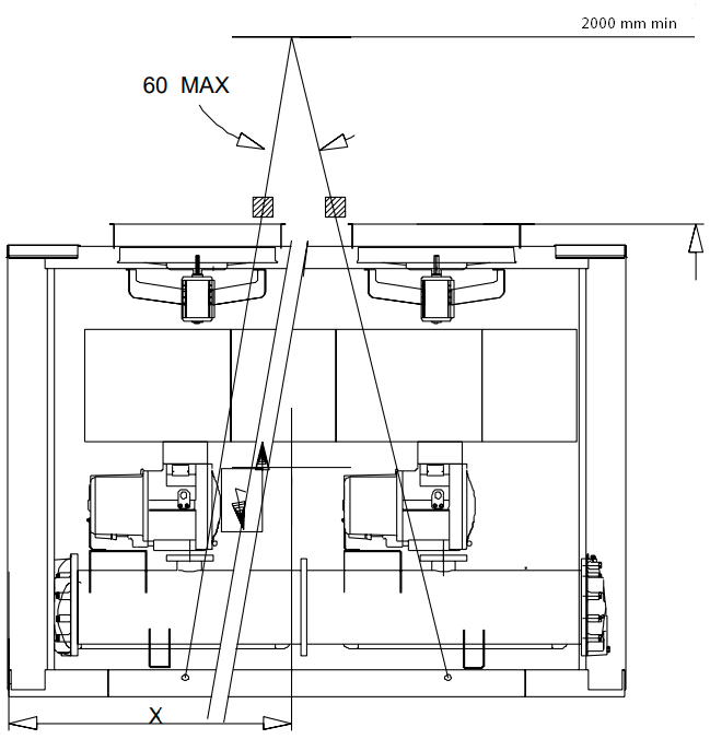
Only use slings at the designated lifting points which are marked on the unit, on the top of the cooler heat exchanger. Rigging from the bottom of the heat exchanger will cause the unit to be lifted unsafely. Personal injury or damage to the unit may occur. Follow the rigging instruction given on the certified dimensional drawing supplied with the unit.
Always refer to the chapter "Dimensions and clearances" (Dimensioner og afstande) to confirm that there is adequate space for all connections and service operation. (Se altid kapitlet "Dimensioner og afstande" for at bekræfte, at der er tilstrækkelig plads til alle tilslutninger og serviceoperationer.) For the center of gravity coordinates, the position of the unit mounting holes, and the weight distribution points, refer to the certified dimensional drawing supplied with the unit. (For tyngdepunktskoordinater, placeringen af enhedens monteringshuller og vægtfordelingspunkterne henvises til den certificerede dimensions tegning, der følger med enheden.)
We recommend that these chillers be installed either in a basement or at ground level. (Vi anbefaler, at disse kølere installeres enten i en kælder eller i stueetagen.) If one is to be installed above ground level, first check that the permissible floor loading is adequate and that the floor is strong enough and level. (Hvis en skal installeres over jordeniveau, skal du først kontrollere, at den tilladte gulvbelastning er tilstrækkelig, og at gulvet er stærkt nok og plant.) If necessary, strengthen and level the floor. (Hvis det er nødvendigt, skal du forstærke og nivellere gulvet.)
With the chiller in its final location remove the skids, and other devices used to aid in moving it. (Når køleren er på sin endelige placering, skal du fjerne slæderne og andre enheder, der bruges til at hjælpe med at flytte den.) Level the unit using a spirit level, and bolt the unit to the floor or plinth. (Niveller enheden ved hjælp af et vaterpas, og bolt enheden fast til gulvet eller soklen.) Operation of these units may be impaired if they are not level and not securely fixed to their mountings. (Driften af disse enheder kan blive forringet, hvis de ikke er i vater og ikke er sikkert fastgjort til deres beslag.) If required use isolation pads under the unit to aid in vibration isolation. (Brug om nødvendigt isoleringspuder under enheden for at hjælpe med vibrationsisolering.)
This diagram is shown for information only. Refer to "certified drawings" ("certificerede tegninger").

| X mm | Y mm | Z mm | |
| 30HXC080 30HXC090 30HXC100 |
1345 | 402 | 903 |
| 30HXC110 | 1368 | 397 | 935 |
| 30HXC120 30HXC130 30HXC140 30HXC155 |
1731 | 392 | 879 |
| 30HXC175 | 1703 | 386 | 947 |
| 30HXC190 | 1705 | 398 | 955 |


NOTE
When all lifting and positioning operations are finished, it is recommended to touch up all surfaces where paint has been removed on lifting lugs.
This diagram is shown for information only. Refer to "certified drawings" ("certificerede tegninger").




| X mm | Y mm | Z mm | |
| 30HXC310 | 2195 | 425 | 1085 |
| 30HXC345 | 2195 | 425 | 1085 |
| 30HXC375 | 2205 | 435 | 1025 |
NOTE
When all lifting and positioning operations are finished, it is recommended to touch up all surfaces where paint has been removed on lifting lugs.
This diagram is shown for information only. Refer to "certified drawings" ("certificerede tegninger").



| X mm | Y mm | Z mm | PTkg | |
| 30GX082 | 1440 | 1460 | 900 | 3115 |
| 30GX092 | 1440 | 1460 | 900 | 3156 |
| 30GX102 | 1440 | 1460 | 900 | 3170 |
| 30GX112 | 1650 | 1460 | 900 | 3574 |
| 30GX122 | 1650 | 1460 | 900 | 3527 |
| 30GX132 | 1650 | 1460 | 900 | 3634 |
| 30GX152 | 2155 | 1430 | 900 | 3938 |
| 30GX162 | 2155 | 1430 | 900 | 3954 |



| X mm | Y mm | Z mm | PTkg | |
| 30GX182 | 3030 | 1370 | 875 | 4853 |
NOTE
When all lifting and positioning operations are finished, it is recommended to touch up all surfaces where paint has been removed on lifting lug
This diagram is shown for information only. Refer to "certified drawings" ("certificerede tegninger").



| X mm | Y mm | Z mm | PTkg | |
| 30GX207 | 2870 | 1440 | 890 | 5536 |
| 30GX227 | 2870 | 1440 | 890 | 5572 |
| 30GX247 | 3320 | 1430 | 927 | 6131 |
| 30GX267 | 3300 | 1420 | 886 | 6363 |



| X mm | Y mm | Z mm | PTkg | |
| 30GX298 | 3630 | 1420 | 890 | 7353 |
| 30GX328 | 4360 | 1455 | 920 | 7840 |
| 30GX358 | 4360 | 1445 | 930 | 8045 |
NOTE
When all lifting and positioning operations are finished, it is recommended to touch up all surfaces where paint has been removed on lifting lugs.
Refer to the certified dimensional drawings for the sizes and positions of all water inlet and outlet connections. (Se de certificerede dimensions tegninger for størrelser og placeringer af alle vandindløbs- og udløbstilslutninger.) The water pipes must not transmit any radial or axial force to the heat exchangers or any vibration to the pipework or building. (Vandrørene må ikke overføre radial eller aksial kraft til varmevekslerne eller vibrationer til rørføringen eller bygningen.)
The water supply must be analysed and appropriate filtering, treatment, control devices, isolation and bleed valves and circuits built in, as necessary. (Vandforsyningen skal analyseres, og passende filtrering, behandling, kontrolenheder, isolations- og udluftningsventiler og kredsløb skal indbygges efter behov.) Consult either a water treatment specialist or appropriate literature on the subject. (Kontakt enten en specialist i vandbehandling eller relevant litteratur om emnet.)
The water circuit should be designed to have the least number of elbows and horizontal pipe runs at different levels. (Vandkredsløbet skal være designet til at have det mindste antal bøjninger og vandrette rørføringer i forskellige niveauer.) The following basic checks should be done (see also the illustration of a typical hydraulic circuit below). (Følgende grundlæggende kontroller skal udføres (se også illustrationen af et typisk hydraulisk kredsløb nedenfor).)
The evaporator and condenser are of the multi-tube shell and tube type with removable water boxes to facilitate cleaning of the tubes. (Fordamperen og kondensatoren er af multi-rørskal- og rørtypen med aftagelige vandkasser for at lette rengøringen af rørene.)
Before making water connections tighten the bolts in both heads to the lower torque shown, following the method described. (Før der foretages vandtilslutninger, skal du spænde boltene i begge hoveder til det lavere viste drejningsmoment i henhold til den beskrevne metode.) Tighten in the pairs and sequence indicated according to the size of bolt (see table) using a torque value at the low end of the range given. (Spænd i de par og den rækkefølge, der er angivet i henhold til boltens størrelse (se tabel) ved hjælp af en drejningsmomentværdi i den lave ende af det givne område.)
Remove the factory supplied flat flange from the water box before welding piping to the flange. Failure to remove the flange may damage the sensors and insulation.
NOTE
We recommend draining the system and disconnecting the pipework to ensure that the bolts of the heads to which the pipework is connected are correctly and uniformly tightened.
Evaporator and water-cooled condenser protection (Beskyttelse af fordamper og vandkølet kondensator)
If the chiller or the water piping is in an area where the ambient temperature can fall below 0°C it is recommended to add an antifreeze solution to protect the unit and the water piping to a temperature of 8 K below the lowest temperature. (Hvis køleren eller vandrørene er i et område, hvor den omgivende temperatur kan falde til under 0 °C, anbefales det at tilsætte en frostvæskeopløsning for at beskytte enheden og vandrørene til en temperatur på 8 K under den laveste temperatur.) Use only antifreeze solutions, approved for heat exchanger duty. (Brug kun frostvæskeopløsninger, der er godkendt til varmevekslerdrift.) If the system is not protected by an antifreeze solution and will not be used during the freezing weather conditions, draining of the cooler and outdoor piping is mandatory. (Hvis systemet ikke er beskyttet af en frostvæskeopløsning og ikke vil blive brugt under frostvejrforhold, er det obligatorisk at dræne køleren og udendørs rør.) Damage due to freezing is not covered by the warranty. (Skader på grund af frost er ikke dækket af garantien.)

Legend (Forklaring)

Legend (Forklaring)
Standard EN 60204-1 er et godt middel til at opfylde kravene i Maskindirektivet § 1.5.1. Den normative anbefaling IEC 364 er generelt anerkendt som opfyldende kravene i installationsforskriften.
Bilag B til standard EN 60204-1 kan bruges til at beskrive de elektriske egenskaber, hvorunder maskinerne fungerer.
(1) Den beskyttelsesstandard, der kræves med hensyn til denne klassificering, er IP21B (i overensstemmelse med referencedokumentet IEC 529). Alle 30HXC har en beskyttelsesstandard på IP23C og opfylder derfor dette beskyttelseskrav.
Personales kompetence: klassifikation BA4(2) (personale kvalificeret i overensstemmelse med IEC 364).
(2) Den beskyttelsesstandard, der kræves med hensyn til denne klassificering, er IP43BW (i overensstemmelse med referencedokumentet IEC 529). Alle 30GX har en beskyttelsesstandard på IP45CW og opfylder derfor dette beskyttelseskrav.
BEMÆRK: Hvis bestemte aspekter af en installation kræver andre egenskaber end dem, der er anført ovenfor (eller egenskaber, der ikke er henvist til her), skal du kontakte din Carrier-repræsentant.
Strømforsyningen skal overholde specifikationen på kølerens typeskilt. Forsyningsspændingen skal være inden for det område, der er angivet i tabellen med elektriske data.
Se ledningsdiagrammerne for tilslutninger.
Drift af køleren med en forkert forsyningsspænding eller overdreven faseubalance udgør misbrug, som vil ugyldiggøre Carrier-garantien. Hvis faseubalancen overstiger 2% for spænding eller 10% for strøm, skal du straks kontakte dit lokale elselskab og sikre, at køleren ikke tændes, før der er truffet korrigerende foranstaltninger.
100 x maks. afvigelse fra gennemsnitsspænding
Gennemsnitsspænding
Eksempel:
På en 400 V - 3 ph - 50 Hz forsyning blev de individuelle fasespændinger målt til at være:
AB = 406 V; BC = 399; AC = 394 V
| Gennemsnitsspænding | = (406 + 399 + 394)/3 = 1199/3 |
| = 399,7 sig 400 V |
Beregn den maksimale afvigelse fra gennemsnittet på 400 V:
(AB) = 406 - 400 = 6
(BC) = 400 - 399 = 1
(CA) = 400 - 394 = 6

Den maksimale afvigelse fra gennemsnittet er 6 V. Den største procentvise afvigelse er:
100 x 6/400 = 1,5 %
Dette er mindre end de tilladte 2 % og er derfor acceptabelt.
Kabeldimensionering er installatørens ansvar og afhænger af de karakteristika og regler, der gælder for hver installationssted. Følgende må kun bruges som en retningslinje og gør ikke Carrier ansvarlig på nogen måde. Når kabeldimensioneringen er gennemført, skal installatøren ved hjælp af den certificerede dimensions tegning sikre nem tilslutning og definere eventuelle nødvendige ændringer på stedet.
De tilslutninger, der leveres som standard til de feltleverede strømtilførselskabler til den generelle afbryder/isolator, er designet til det antal og den type ledninger, der er angivet i tabellen nedenfor.
Beregningerne er baseret på maskinens maksimale strøm (se elektriske datatabeller).
Til designet anvendes følgende standardiserede installationsmetoder i overensstemmelse med IEC 364, tabel 52C:
Beregningen er baseret på PVC- eller XLPE-isolerede kabler med kobber- eller aluminiumkerne. Den maksimale temperatur er 40 °C for 30HX-enheder og 46 °C for 30GX-enheder.
Den givne ledningslængde begrænser spændingsfaldet til < 5 %.
| Unit (Enhed) | Min. (mm2) by phase (pr. fase) | Wire type (Ledningstype) | L (m) | Max. (mm2) by phase (pr. fase) | Wire type (Ledningstype) | L (m) |
| 30HX 080 | 1 x 35 | XLPE Cu | 140 | 1 x 120 | PVC Al | 260 |
| 30HX 090 | 1 x 50 | XLPE Cu | 160 | 1 x 120 | PVC Al | 260 |
| 30HX 100 | 1 x 50 | XLPE Cu | 160 | 1 x 95 | XLPE Al | 195 |
| 30HX 110 | 1 x 70 | XLPE Cu | 170 | 1 x 120 | XLPE Al | 205 |
| 30HX 120/130 | 1 x 70 | XLPE Cu | 170 | 1 x 150 | XLPE Al | 210 |
| 30HX 140 | 1 x 95 | XLPE Cu | 180 | 1 x 185 | XLPE Al | 220 |
| 30HX 155 | 1 x 95 | XLPE Cu | 180 | 1 x 240 | XLPE Al | 225 |
| 30HX 175 | 1 x 120 | XLPE Cu | 185 | 1 x 240 | XLPE Al | 225 |
| 30HX 190 | 1 x150 | XLPE Cu | 190 | 2 x 95 | XLPE Al | 195 |
| 30HX 200 ckt A | 1 x 70 | XLPE Cu | 170 | 2 x120 | PVC Al | 325 |
| 30HX 230 ckt A | 1 x 95 | XLPE Cu | 180 | 2 x 120 | PVC Al | 325 |
| 30HX 260 ckt A | 1 x 120 | XLPE Cu | 185 | 1 x 240 | XLPE Al | 225 |
| 30HX 285 ckt A | 1 x 150 | XLPE Cu | 190 | 2 x 150 | XLPE Al | 265 |
| 30HX 200 ckt B | 1 x 35 | XLPE Cu | 140 | 1 x 95 | PVC Al | 250 |
| 30HX 230 ckt B | 1 x 35 | XLPE Cu | 140 | 1 x 120 | PVC Al | 260 |
| 30HX 260 ckt B | 1 x 35 | XLPE Cu | 140 | 1 x 120 | PVC Al | 260 |
| 30HX 285 ckt B | 1 x 50 | XLPE Cu | 160 | 2 x 70 | PVC Al | 285 |
| 30HX 310 ckt A & B | 1 x 95 | XLPE Cu | 180 | 1 x 240 | XLPE Al | 225 |
| 30HX 345 ckt A & B | 1 x 120 | XLPE Cu | 185 | 1 x 240 | XLPE Al | 225 |
| 30HX 375 ckt A & B | 1 x 150 | XLPE Cu | 190 | 2 x 150 | XLPE Al | 265 |
| 30GX 082 | 1 x 95 | XLPE Cu | 190 | 2 x 185 | PVC Al | 420 |
| 30GX 092 | 1 x 120 | XLPE Cu | 195 | 2 x 185 | PVC Al | 420 |
| 30GX 102 | 1 x 120 | XLPE Cu | 195 | 2 x 240 | PVC Al | 450 |
| 30GX 112 | 1 x 150 | XLPE Cu | 200 | 2 x 150 | XLPE Al | 300 |
| 30GX 122 | 1 x 185 | XLPE Cu | 205 | 2 x 185 | XLPE Al | 315 |
| 30GX 132 | 1 x 185 | XLPE Cu | 205 | 2 x 240 | XLPE Al | 330 |
| 30GX 152 | 1 x 240 | XLPE Cu | 205 | 3x 185 | XLPE CU | 430 |
| 30GX 162 | 2 x 95 | XLPE Cu | 190 | 3x 240 | XLPE CU | 440 |
| 30GX 182 | 2 x 120 | XLPE Cu | 200 | 3x 240 | XLPE CU | 440 |
| 30GX 207 ckt A | 1 x 185 | XLPE Cu | 205 | 3x 185 | XLPE Al | 445 |
| 30GX 227 ckt A | 1 x 240 | XLPE Cu | 205 | 3x 240 | XLPE Al | 470 |
| 30GX 247/298/328 ckt A | 2 x 120 | XLPE Cu | 225 | 3x 185 | XLPE CU | 490 |
| 30HX 267/358 ckt A | 2 x 150 | XLPE Cu | 230 | 3x 240 | XLPE CU | 505 |
| 30GX 207/227/247 ckt B | 1 x 95 | XLPE Cu | 190 | 2 x 240 | PVC Al | 560 |
| 30HX 267 ckt B | 1 x 120 | XLPE Cu | 200 | 2 x 185 | XLPE AL | 395 |
| 30GX 298 ckt B | 1 x 185 | XLPE Cu | 205 | 3x 240 | XLPE AL | 470 |
| 30GX 328 ckt B | 2 x 120 | XLPE Cu | 225 | 3x 185 | XLPE CU | 490 |
| 30GX 358 ckt B | 2 x 150 | XLPE Cu | 230 | 3x 240 | XLPE CU | 505 |
Før tilslutning af hovedstrømkablerne (L1 - L2 - L3) på klemrækken er det bydende nødvendigt at kontrollere den korrekte rækkefølge af de 3 faser, før der fortsættes til tilslutningen på klemrækken eller hovedafbryderen/isolatoren.
Se Controls IOM og det certificerede koblingsdiagram, der følger med enheden, for feltstyringskabling af følgende funktioner:
Anbefalede ledningssektioner til enheder med høje kondenseringstemperaturer (400 V - 3 ph - 50 Hz)
| Unit, options 150 + 150A 400 V - 3 ph - 50 Hz | Min. (mm2) pr. fase | Wire type | L (m) | Max. (mm2) pr. fase | Wire type | L (m) |
| 30HXC 080 OPT. 150 | 1 x 50 | XLPE Cu | 150 | 2 x 70 | PVC Al | 230 |
| 30HXC 090 OPT. 150 | 1 x 70 | XLPE Cu | 160 | 2 x 95 | PVC Al | 260 |
| 30HXC 100 OPT. 150 | 1 x 70 | XLPE Cu | 160 | 2 x 95 | PVC Al | 250 |
| 30HXC 110 OPT. 150 | 1 x 95 | XLPE Cu | 170 | 2 x 120 | PVC Al | 265 |
| 30HXC 120 OPT. 150 | 1 x 120 | XLPE Cu | 180 | 2 x 120 | XLPE Al | 205 |
| 30HXC 130 OPT. 150 | 1 x 120 | XLPE Cu | 160 | 2 x 120 | XLPE Al | 210 |
| 30HXC 140 OPT. 150 | 1 x 150 | XLPE Cu | 175 | 2 x 120 | XLPE Al | 205 |
| 30HXC 155 OPT. 150 | 1 x 185 | XLPE Cu | 185 | 2 x 150 | XLPE Al | 215 |
| 30HXC 175 OPT. 150 | 1 x 240 | XLPE Cu | 185 | 2 x 150 | XLPE Al | 210 |
| 30HXC 190 OPT. 150 | 2 x 95 | XLPE Cu | 175 | 2 x 240 | XLPE Al | 220 |
| 30HXC 200 OPT. 150 circ. A | 1 x 120 | XLPE Cu | 170 | 2 x 150 | XLPE Al | 270 |
| 30HXC 230 OPT. 150 circ. A | 1 x 150 | XLPE Cu | 180 | 2 x 185 | XLPE Al | 270 |
| 30HXC 260 OPT. 150 circ. A | 1 x 185 | XLPE Cu | 180 | 2 x 240 | XLPE Al | 295 |
| 30HXC 285 OPT. 150 circ. A | 1 x 240 | XLPE Cu | 170 | 2 x 185 | XLPE Cu | 265 |
| 30HXC 310 OPT. 150 circ. A | 1 x 185 | XLPE Cu | 180 | 2 x 240 | XLPE Al | 300 |
| 30HXC 345 OPT. 150 circ. A | 1 x 185 | XLPE Cu | 170 | 2 x 240 | XLPE Al | 280 |
| 30HXC 375 OPT. 150 circ. A | 1 x 240 | XLPE Cu | 170 | 2 x 185 | XLPE Cu | 265 |
| 30HXC 200 OPT. 150 circ. B | 1 x 35 | XLPE Cu | 125 | 2 x 95 | PVC Al | 320 |
| 30HXC 230 OPT. 150 circ. B | 1 x 50 | XLPE Cu | 140 | 2 x 95 | PVC Al | 310 |
| 30HXC 260 OPT. 150 circ. B | 1 x 50 | XLPE Cu | 140 | 2 x 95 | PVC Al | 310 |
| 30HXC 285 OPT. 150 circ. B | 1 x 70 | XLPE Cu | 160 | 2 x 120 | PVC Al | 325 |
| 30HXC 310 OPT. 150 circ. B | 1 x 150 | XLPE Cu | 180 | 2 x 185 | XLPE Al | 275 |
| 30HXC 345 OPT. 150 circ. B | 1 x 185 | XLPE Cu | 185 | 2 x 240 | XLPE Al | 305 |
| 30HXC 375 OPT. 150 circ. B | 1 x 185 | XLPE Cu | 160 | 2 x 240 | XLPE Al | 280 |
Olie filter
06N skruekompressoren har et olie filter integreret i kompressorhuset. Dette filter kan udskiftes i marken.
Kølemiddel
06N skruekompressoren er specielt designet til kun at blive brugt i R134 a systemer.
Smøremiddel
06N skruekompressoren er godkendt til brug med følgende smøremiddel.
CARRIER MATERIAL SPEC PP 47-32
Olie tilførselsmagnetventil
En olie tilførselsmagnetventil er standard på kompressoren for at isolere kompressoren fra olieflow, når kompressoren ikke er i drift.
Olie magnetventilen kan udskiftes i marken.
Suge- & Economizer filtre
For at øge kompressorens pålidelighed er et filter blevet indbygget som en standardfunktion i kompressorens suge- og economizer-indløb.
Aflæsningssystem
06N skruekompressoren har et aflæsningssystem, der er standard på alle kompressorer. Dette aflæsningssystem består af to trin af aflæsning, der reducerer kompressorens kapacitet ved at omdirigere delvist komprimeret gas tilbage til suget.
30HXC og 30GX kølere bruger en oversvømmet fordamper. Vandet cirkulerer i rørene, og kølemidlet er på ydersiden i skallen. Et kar bruges til at betjene begge kølemiddelkredsløb. Der er en midterste rørplade, der adskiller de to kølemiddelkredsløb. Rørene er 3/4" diameter kobber med en forbedret overflade indvendigt og udvendigt. Der er kun ét vandkredsløb, og afhængigt af kølerens størrelse kan der være to eller tre vandpassager. En køligere væskeniveau sensor giver optimeret flow kontrol.
På toppen af køleren er de to sugerør, et i hvert kredsløb. Hver har en flange svejset til den, og kompressoren monteres på flangen.
30HXC kølere bruger et kar, der er en kombination af kondensator og olieudskiller. Den er monteret under køleren. Udledningsgas forlader kompressoren og strømmer gennem en ekstern lyddæmper til olieudskilleren, som er den øverste del af karret. Den kommer ind i toppen af udskilleren, hvor olie fjernes, og strømmer derefter til den nederste del af karret, hvor gas kondenseres og underkøles. Et kar bruges til at betjene begge kølemiddelkredsløb. Der er en midterste rørplade, der adskiller de to kølemiddelkredsløb. Rørene er 3/4" eller 1" diameter kobber med forbedret overflade indvendigt og udvendigt. Der er kun ét vandkredsløb med to vandpassager.
I de luftkølede enheder er olieudskilleren et trykkar, der er monteret under de udvendige lodrette kondensatorspiraler. Udledningsgas kommer ind i toppen af udskilleren, hvor meget af olien adskilles og drænes til bunden. Gassen strømmer derefter gennem en trådnetsskærm, hvor den resterende olie adskilles og drænes til bunden.
Mikroprocessoren styrer EXD'en gennem EXV kontrolmodulet. EXD'en vil enten være en EXV eller en Economizer. Indeni begge disse enheder er en lineær aktuator stepmotor. Højtryks flydende kølemiddel kommer ind i ventilen gennem bunden. En række kalibrerede slidser er placeret inde i åbningssamlingen. Når kølemiddel passerer gennem åbningen, falder trykket, og kølemidlet ændres til en 2-faset tilstand (væske og damp). For at kontrollere kølemiddelflowet for forskellige driftsforhold bevæger muffen sig op og ned over åbningen og ændrer derved det effektive flowareal af ekspansionsenheden. Muffen bevæges af en lineær stepmotor. Step motoren bevæger sig i trin og styres direkte af processormodulet. Når stepmotoren roterer, overføres bevægelsen til lineær bevægelse af ledeskruen. Gennem stepmotoren og ledeskruerne opnås 1500 diskrete bevægelsestrin. Det store antal trin og lange slaglængde resulterer i meget nøjagtig kontrol af kølemiddelflowet. Hvert kredsløb har en væskeniveau sensor monteret lodret ind i toppen af kølerskallen. Niveausensoren består af en lille elektrisk modstand varmelegeme og tre termistorer forbundet i serie placeret i forskellige højder inde i brøndens krop. Varmelegemet er designet således, at termistorerne vil aflæse ca. 93,3 °C i tør luft. Når kølemiddelniveauet stiger i køleren, vil modstanden af den nærmeste termistor(er) ændre sig meget. Denne store modstandsforskel gør det muligt for styringen nøjagtigt at opretholde et specificeret niveau. Niveausensoren overvåger kølemiddelvæskeniveauet i køleren og sender disse oplysninger til PSIO-1. Ved første opstart er EXV positionen nul. Derefter holder mikroprocessoren nøjagtigt styr på ventilens position for at bruge disse oplysninger som input til de andre kontrolfunktioner. Den gør dette ved at initialisere EXV'erne ved opstart. Processoren sender nok lukkepulser til ventilen til at flytte den fra helt åben til helt lukket, og nulstiller derefter positionstælleren til nul. Fra dette tidspunkt og indtil initialiseringen tæller processoren det samlede antal åbne og lukkede trin, den har sendt til hver ventil.
Economizere er installeret på 30HXC 190, 285 og 375 og 30GX 182, 267 og 358.
Economizeren forbedrer både kølerens kapacitet og effektivitet samt giver kompressormotorkøling. Indeni economizeren er både en lineær EXV stepmotor og en flydeventil. EXV'en styres af PIC'en for at opretholde det ønskede væskeniveau i køleren (som det gøres for ikke-økonomiserede kølere). Flydeventilen opretholder et væskeniveau i bunden af economizeren. Flydende kølemiddel tilføres fra kondensatoren til bunden af economizeren. Når kølemidlet passerer gennem EXV'en, reduceres dets tryk til et mellemliggende niveau på ca. 500 kPa. Dette tryk opretholdes inde i economizerskallen. Derefter strømmer kølemidlet gennem flydeventilen, dets tryk reduceres yderligere til lidt over trykket i køleren. Stigningen i ydeevne realiseres, når noget af kølemidlet, der passerer gennem EXV'en, fordamper til damp, hvilket yderligere underkøler væsken, der opretholdes i bunden af economizeren. Denne stigning i underkøling giver yderligere kapacitet. Da der ikke kræves yderligere strøm for at opnå dette, forbedres maskinens effektivitet også. Dampen, der fordamper, vil stige til economizeren, hvor den passerer til kompressoren og bruges efter behov til at give motorkøling. Efter at have passeret over motorviklingerne, kommer kølemidlet igen ind i cyklussen ved en mellemliggende port i kompressionscyklussen.
30GX/HXC skruekølere bruger en eksternt monteret forsmørende olie pumpe pr. kredsløb. Denne pumpe betjenes som en del af opstartssekvensen.
ADVARSEL:
Spolens driftstemperatur kan nå 80 °C. Under visse midlertidige forhold (især under opstart ved lav udetemperatur eller lav kondensatorsløjfetemperatur) kan oliepumpen genaktiveres.
På 30GX enheder er pumperne monteret på bundskinnerne på olieudskillersiden af enheden. Pumperne er monteret på en beslag på kondensatorerne på 30HXC enheder. Når et kredsløb skal starte, vil styringen først aktivere oliepumpen, så kompressoren starter med korrekt smøring. Hvis pumpen har opbygget tilstrækkeligt olietryk, får kompressoren lov til at starte. Når kompressoren er startet, slukkes oliepumpen. Hvis pumpen ikke var i stand til at opbygge nok olietryk, vil styringen generere en alarm.
Kompressormotorviklingstemperaturer styres til det optimale indstillingspunkt. Styringen opnår dette ved at cykle motorkøle magnetventilen for at tillade flydende kølemiddel at strømme over motorviklingerne efter behov. På enheder udstyret med economizere forlader flashgas toppen af economizeren og strømmer kontinuerligt til motorviklingerne. Alt kølemiddel, der bruges til motorkøling, kommer igen ind i rotorerne gennem en port placeret midtvejs langs kompressionscyklussen og komprimeres til udledningstryk.
Enhederne bruger termistorer (inklusive to motortemperatur termistorer) og to niveau termistorer og tryktransducere til at overvåge og styre systemets drift.
Fordamper afgangsvæske
Denne temperatur bruges til at måle den afgående fordampervæsketemperatur (vand eller saltvand). Temperaturen bruges til afgangsvæsketemperaturstyring og til at beskytte mod kølerfrysning. Den er placeret i fordampervæskedysen.
Fordamper indgangsvæske
Denne sensor bruges til at måle fordamperens indgangsvæsketemperatur. Den er placeret i den indgående fordamperdyse. Den bruges til at give automatisk temperaturkompensation for afgangsvæsketemperaturstyringen med indgangsvæskekompensation.
Udledningsgastemperatur (kredsløb A & B)
Denne sensor bruges til at måle udledningsgastemperaturen og styre udledningstemperaturens overophedning. Den er placeret på udledningsrøret i hvert kredsløb (30HXC) eller på toppen af olieudskilleren (30GX).
ADVARSEL: Der er ingen termostathylster.
Motortemperatur
Kompressorbeskyttelsesmodulet (Compressor Protection Module (CPM)) overvåger motortemperaturen. Termistorklemmer er placeret i kompressorens samledåse.
Fordamper væskeniveau (kredsløb A & B)
Fordamper væskeniveau termistor bruges til at give optimeret flow kontrol i fordamperen. Den er installeret i toppen af fordamperen.
Kondensator indgangsvæske (30HXC)
Denne sensor bruges til at måle temperaturen af væsken, der kommer ind i de vandkølede kondensatorer. Den er placeret i den fælles væskeledning, der kommer ind i kondensatorerne (feltinstalleret). På varmemaskiner bruges den af kapacitetskontrolrutinen. På vandkølede kondensatorer bruges den kun til overvågning af kondensatorvæsketemperaturen.
Kondensator afgangsvæske (valgfrit på 30HXC)
Denne sensor bruges til at måle temperaturen af væsken, der forlader de vandkølede kondensatorer. Den er placeret i den fælles væskeledning, der forlader kondensatorerne (feltinstalleret). På varmemaskiner bruges den af kapacitetskontrolrutinen. På vandkølede kondensatorer bruges den kun til overvågning af kondensatorvæsketemperaturen.

GX082/102

GX112/132

GX152/162

GX182

GX207/227

GX247/267

GX298

GX328/358
Disse enheder er kun designet til brug med R-134a.
BRUG IKKE ANDET kølemiddel i disse enheder.
Når du tilføjer eller fjerner fyldning, skal du altid cirkulere vand gennem kondensatoren (HX) og køleren for at forhindre frost. Frostskader betragtes som misbrug og kan annullere Carrier-garantien.
OVERFYLD IKKE systemet. Overfyldning resulterer i højere udledningstryk med højere kølevæskeforbrug, mulig kompressorskade og højere strømforbrug.
BEMÆRK
For at kontrollere for lav kølemiddelfyldning på en 30HXC, skal flere faktorer tages i betragtning. Et blinkende sigteglas på væskeledningen er ikke nødvendigvis en indikation af utilstrækkelig fyldning. Der er mange systemforhold, hvor et blinkende sigteglas forekommer under normal drift. 30HXC-måleenheden er designet til at fungere korrekt under disse forhold.
BEMÆRK
Et blinkende sigteglas på væskeledningen ved andre driftsforhold end dem, der er nævnt ovenfor, er ikke nødvendigvis en indikation af lav kølemiddelfyldning.
Disse temperaturer bruges til at måle temperaturen i rummet eller den udendørs lufttemperatur henholdsvis til nulstillingskontrol baseret på nulstillingsmuligheder for udendørs luft eller rumtemperatur.
Udledningstryk (kredsløb A & B)
Denne indgang bruges til at måle det høje sidetryk i hvert kredsløb i enheden.
Det bruges til at tilvejebringe trykket til at erstatte udledningstrykmåleren og til at kontrollere hovedtrykket.
Sugetryk (kredsløb A & B)
Denne indgang bruges til at måle trykket på den lave side af enheden. Det bruges til at tilvejebringe trykket til at erstatte sugetrykmåleren.
Olietryk (hver kompressor)
Denne indgang bruges til at måle olietrykket i hver kompressor i enheden. Den er placeret på olietrykporten på hver kompressor.
Economizer-tryk (kredsløb A & B)
Denne indgang bruges til at overvåge olietrykforskellen, der tilføres kompressoren.
Tilsæt IKKE olie på noget andet sted, da forkert enhedsdrift kan resultere.
Når kølemiddelfyldningen overføres til en opbevaringsenhed, kan olie blive ført med, når enheden ikke er i drift. Genbrug først og fremmest den overførte mængde kølemiddel. Efter aftapning af olien skal du kun genopfylde den aftappede mængde (en overskydende oliefyldning kan forringe korrekt enhedsdrift).
Et integreret oliefilter i 06N-skruekompressoren er specificeret til at give et højt filtreringsniveau (3 µ), der kræves for lang levetid for lejerne. Da systemets renhed er kritisk for pålidelig systemdrift, er der også et forfilter (7 µ) i olielinjen ved olieudskillerens udløb.
Reservedelsnummeret for det integrerede oliefilterelement er:
Carrier-reservedelsnummer (inklusive filter og O-ring): 06NA 660016S
Filteret skal kontrolleres efter de første 500 timers drift og derefter hver 2000 timer. Filteret skal udskiftes, når trykforskellen over filteret overstiger 2,1 bar.
Trykfaldet over filteret kan bestemmes ved at måle trykket ved filterserviceporten og olietrykporten. Forskellen i disse to tryk vil være trykfaldet over filteret, kontraventilen og magnetventilen. Trykfaldet over kontraventilen og magnetventilen er ca. 0,4 bar, hvilket skal trækkes fra de to olietrykmålinger for at give oliefiltrets trykfald. Oliefiltrets trykfald skal kontrolleres efter enhver lejlighed, hvor kompressoren er slukket på grund af en sikkerhedsafbrydelse for lavt olietryk.
Korrekt kompressorrotation er en af de mest kritiske applikationshensyn. Omvendt rotation, selv i en meget kort periode, beskadiger kompressoren.
Beskyttelsesskemaet for omvendt rotation skal være i stand til at bestemme rotationsretningen og stoppe kompressoren inden for 300 millisekunder. Omvendt rotation forekommer mest sandsynligt, når ledningerne til kompressorklemmerne forstyrres.
For at minimere muligheden for omvendt rotation skal følgende procedure anvendes. Tilslut strømkablerne til kompressorklemmenålen som oprindeligt ledningsført.
Ved udskiftning af kompressoren medfølger en lavtryksafbryder. Denne lavtryksafbryder skal midlertidigt installeres som en hård sikkerhedsafbryder på den høje trykdel af kompressoren. Formålet med denne afbryder er at beskytte kompressoren mod eventuelle ledningsfejl ved kompressorklemmenålen. Den elektriske kontakt på afbryderen skal være ledningsført i serie med højtryksafbryderen. Afbryderen forbliver på plads, indtil kompressoren er startet, og rotationsretningen er blevet verificeret; på dette tidspunkt fjernes afbryderen.
Den afbryder, der er valgt til at detektere omvendt rotation, er Carrier-reservedelsnummer HK01CB001. Den er tilgængelig som en del af "Kompressorinstallationspakken" (reservedelsnummer 06NA 660 013). Denne afbryder åbner kontakterne, når trykket falder under 50 mm vakuum. Afbryderen er en manuel nulstillingstype, der kan nulstilles, når trykket igen er steget over 70 kPa. Det er kritisk, at afbryderen er en manuel nulstillingstype for at forhindre kompressoren i at kortcykle i omvendt retning.
Følg nedenstående trin for at diagnosticere og rette EXD/ Economizer-problemer.
På 30HXC/GX-enheder med economizere skal du kontrollere, at ventilen til boblerøret (bunden af Economizer) er åben. Kontroller EXD-motorens drift først (se proceduren i Controls IOM). Du skal være i stand til at føle aktuatoren bevæge sig ved at placere din hånd på EXD- eller economizer-kroppen (aktuatoren er placeret ca. en halv til to tredjedele af vejen op fra bunden af economizer-skallen). Du skal føle et hårdt bank fra aktuatoren, når den når toppen af sit slag (kan høres, hvis omgivelserne er relativt stille). Aktuatoren skal banke, når den når bunden af sit slag. Hvis det menes, at ventilen ikke fungerer korrekt, skal du kontakte din Carrier-serviceafdeling for yderligere kontrol af:


Godkendelse af miljøledelsessystem
Ordrenr.: 13173-76, 03 1999 - Erstatter nr.: 13173-76, marts 1998
Producenten forbeholder sig retten til at ændre produktspecifikationer uden varsel.
Producent: Carrier s.a., Montluel, Frankrig.
Trykt i Holland på klorfrit papir.
