Carrier 30HXC/30GX Schraubenkompressor Handbuch
- 1 EINLEITUNG
- 2 SICHERHEITSHINWEISE
- 3 ABMESSUNGEN, FREIRÄUME, GEWICHTSVERTEILUNG
- 4 PHYSIKALISCHE DATEN 30HXC
- 5 ELEKTRISCHE DATEN 30HXC
- 6 ELEKTRISCHE DATEN FÜR GERÄTE MIT HOHEN KONDENSATIONSTEMPERATUREN
- 7 PHYSIKALISCHE DATEN 30GX
- 8 ELEKTRISCHE DATEN 30GX
-
9
ANWENDUNGSDATEN
- 9.1 Betriebsbereich der Einheit
- 9.2 Minimaler Kaltwasserdurchfluss
- 9.3 Maximaler Kaltwasserdurchfluss
- 9.4 Verdampfer mit variablem Durchfluss
- 9.5 Mindestwasservolumen des Systems
- 9.6 Kühlerdurchflussrate (l/s)
- 9.7 Kondensatordurchflussrate (l/s)
- 9.8 Verdampfer-Druckabfallkurve
- 9.9 Kondensator-Druckabfallkurve
- 9.10 Durchflussregler
- 10 INSTALLATION
- 11 HEBEANWEISUNGEN
- 12 ELEKTRISCHE EIGENSCHAFTEN
- 13 EMPFOHLENE KABELQUERSCHNITTE
- 14 HAUPTSYSTEMKOMPONENTEN UND BETRIEBSDATEN
- 15 WARTUNG
- 16 FEHLERBEHEBUNG
- 17 Anleitung herunterladen
- 18 In anderen Sprachen

EINLEITUNG
Vor der ersten Inbetriebnahme der 30HXC und 30GX Einheit sollten die an Inbetriebnahme, Betrieb und Wartung beteiligten Personen mit diesen Anweisungen und anderen erforderlichen Arbeitsdaten gründlich vertraut sein. Dieses Handbuch bietet einen Überblick, damit Sie sich vor der Durchführung von Inbetriebnahmeverfahren mit dem Steuerungssystem vertraut machen können. Die Verfahren in diesem Handbuch sind in der für die ordnungsgemäße Inbetriebnahme und den Betrieb der Maschine erforderlichen Reihenfolge angeordnet.
SICHERHEITSHINWEISE
Die 30HXC und 30GX Flüssigkeitskühler sind für einen sicheren und zuverlässigen Betrieb innerhalb der Auslegungsspezifikationen konzipiert. Beim Betrieb dieser Ausrüstung ist stets ein gutes Urteilsvermögen und Sicherheitsvorkehrungen anzuwenden, um Schäden an Ausrüstung und Eigentum oder Verletzungen des Personals zu vermeiden.
Stellen Sie sicher, dass Sie die in den Maschinenanweisungen sowie in diesem Leitfaden aufgeführten Verfahren und Sicherheitsvorkehrungen verstehen und befolgen.
Kältemittel-Sicherheitsventile NICHT innerhalb eines Gebäudes entlüften. Der Auslass des Sicherheitsventils muss ins Freie geleitet werden. Die Ansammlung von Kältemittel in einem geschlossenen Raum kann Sauerstoff verdrängen und Erstickung oder Explosionen verursachen.
Sorgen Sie für ausreichende Belüftung, insbesondere in geschlossenen und niedrigen Räumen. Das Einatmen hoher Dampfkonzentrationen ist schädlich und kann Herzrhythmusstörungen, Bewusstlosigkeit oder Tod verursachen. Dampf ist schwerer als Luft und reduziert die für die Atmung verfügbare Sauerstoffmenge. Das Produkt verursacht Augen- und Hautreizungen. Zersetzungsprodukte sind gefährlich.
KEINEN SAUERSTOFF zum Spülen von Leitungen oder zum Druckbeaufschlagen einer Maschine für irgendeinen Zweck verwenden. Sauerstoffgas reagiert heftig mit Öl, Fett und anderen gängigen Substanzen.
Angegebene Prüfdrücke NIEMALS überschreiten. Den zulässigen Prüfdruck durch Überprüfung der Bedienungsanleitung und der Auslegungsdrücke auf dem Typenschild des Geräts überprüfen.
KEINE Luft für Dichtheitsprüfungen verwenden. Nur Kältemittel oder trockenen Stickstoff verwenden.
KEINE Sicherheitsvorrichtungen absperren.
Sicherstellen, dass alle Druckentlastungsvorrichtungen ordnungsgemäß installiert sind, bevor eine Maschine in Betrieb genommen wird.
KEINE Kältemittelleitung oder Behälter SCHWEISSEN ODER BRENNEN, bevor das gesamte Kältemittel (flüssig und gasförmig) aus dem Kühler entfernt wurde. Restdämpfe sollten mit trockener Luft oder Stickstoff verdrängt werden, und der Arbeitsbereich sollte gut belüftet sein. Kältemittel in Kontakt mit offener Flamme erzeugt giftige Gase.
Nicht an unter Spannung stehenden Geräten arbeiten, es sei denn, Sie sind ein ausgebildeter Elektriker.
NICHT an elektrischen Komponenten, einschließlich Bedienfeldern, Schaltern, Relais usw. arbeiten, bevor Sie sichergestellt haben, dass ALLE STROMVERSORGUNG ABGESCHALTET IST und Restspannung aus Kondensatoren oder Halbleiterkomponenten entweichen kann.
Elektrische Stromkreise während der Wartung AUSSCHALTEN UND KENNZEICHNEN. WENN DIE ARBEIT UNTERBROCHEN WIRD, sicherstellen, dass alle Stromkreise spannungsfrei sind, bevor die Arbeit wieder aufgenommen wird.
Kältemittel nicht absaugen.
Vermeiden Sie, flüssiges Kältemittel auf die Haut oder in die Augen zu bekommen. SCHUTZBRILLE TRAGEN. Verschüttetes Material von der Haut mit Seife und Wasser abwaschen. Falls flüssiges Kältemittel in die Augen gelangt,
AUGEN SOFORT mit Wasser spülen und einen Arzt aufsuchen.
NIEMALS offene Flammen oder Heißdampf auf Kältemittelbehälter anwenden. Es kann zu gefährlichem Überdruck kommen. Wenn es notwendig ist, Kältemittel zu erwärmen, nur warmes Wasser verwenden.
Einwegzylinder (nicht wiederbefüllbar) NICHT WIEDERVERWENDEN oder versuchen, sie nachzufüllen. Dies ist GEFÄHRLICH UND ILLEGAL. Wenn Zylinder entleert sind, den restlichen Gasdruck ablassen, den Kragen lockern und den Ventilstiel abschrauben und entsorgen. NICHT VERBRENNEN.
Den KÄLTEMITTELTYP PRÜFEN, bevor Kältemittel in die Maschine gefüllt wird. Das Einfüllen des falschen Kältemittels kann zu Schäden oder Fehlfunktionen an dieser Maschine führen.
NICHT versuchen, Armaturen, Komponenten usw. zu ENTFERNEN, während die Maschine unter Druck steht oder läuft. Sicherstellen, dass der Druck 0 kPa beträgt, bevor die Kältemittelverbindung gelöst wird.
Alle Entlastungseinrichtungen MINDESTENS EINMAL JÄHRLICH SORGFÄLTIG PRÜFEN. Wenn die Maschine in einer korrosiven Atmosphäre betrieben wird, die Geräte in kürzeren Abständen prüfen.
NICHT versuchen, Entlastungseinrichtungen zu REPARIEREN ODER INSTANDZUSETZEN, wenn Korrosion oder Ablagerungen von Fremdmaterial (Rost, Schmutz, Zunder usw.) im Ventilkörper oder -mechanismus festgestellt werden. Das Gerät ersetzen.
Entlastungseinrichtungen NICHT in Reihe oder verkehrt herum installieren.
NICHT auf Kältemittelleitungen treten. Gebrochene Leitungen können umherschlagen und Kältemittel freisetzen, was zu Personenschäden führen kann.
Nicht über eine Maschine klettern. Eine Plattform oder Gerüst verwenden.
Mechanische Ausrüstung (Kran, Hebezeug usw.) zum Heben oder Bewegen schwerer Komponenten verwenden. Auch wenn Komponenten leicht sind, mechanische Ausrüstung verwenden, wenn die Gefahr des Ausrutschens oder des Gleichgewichtsverlusts besteht.
BEACHTEN, dass bestimmte automatische Startanordnungen TURMLÜFTER ODER PUMPEN EINSCHALTEN KÖNNEN. Den Trennschalter vor den Turmlüftern oder Pumpen öffnen.
Nur Reparatur- oder Ersatzteile verwenden, die den Codeanforderungen der Originalausrüstung entsprechen.
Wasserkästen, die Industrie-Sole enthalten, NICHT ohne Genehmigung einer zuständigen Stelle ENTLEEREN ODER ABLASSEN.
Wasserkastenschrauben NICHT LÖSEN, bevor der Wasserkasten vollständig entleert wurde.
Stopfbuchsmutter NICHT LÖSEN, bevor überprüft wurde, ob die Mutter einen sicheren Gewindeeingriff hat.
Alle Ventile, Armaturen und Rohrleitungen PERIODISCH auf Korrosion, Rost, Lecks oder Beschädigungen PRÜFEN.
Einen ABLASSANSCHLUSS in der Entlüftungsleitung in der Nähe jeder Druckentlastungsvorrichtung vorsehen, um die Ansammlung von Kondensat oder Regenwasser zu verhindern.
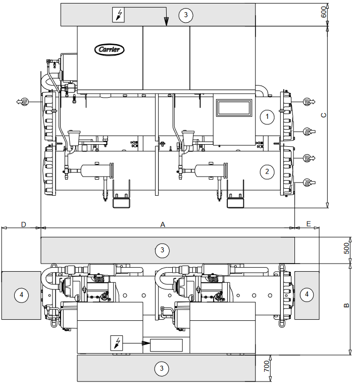
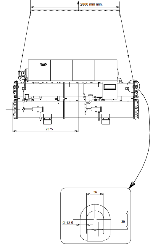
ABMESSUNGEN, FREIRÄUME, GEWICHTSVERTEILUNG
30HXC 080-190
30HXC080
30HXC090
30HXC100
30HXC110

- Verdampfer
- Verflüssiger
- Für Betrieb und Wartung erforderliche Freiräume
- Für den Ausbau der Wärmetauscherrohre erforderliche Freiräume. Die Freiräume D und E können entweder links oder rechts sein.
Wassereinlass
Wasserauslass
Stromversorgung
kg: Gesamtbetriebsgewicht
| A mm | B mm | C mm | D mm | E mm | kg | |
| 30HXC080 30HXC090 30HXC100 |
2705 | 950 | 1850 | 2360 | 1000 | 2447 2462 2504 |
| 30HXC110 | 2705 | 950 | 1900 | 2360 | 1000 | 2650 |
| 30HXC120 30HXC130 30HXC140 30HXC155 |
3535 | 950 | 1875 | 3220 | 1000 | 2846 2861 2956 2971 |
| 30HXC175 30HXC190 |
3550 | 950 | 2000 | 3220 | 1000 | 3283 3438 |
HINWEIS: Bei der Planung einer Installation die mit dem Gerät gelieferten zertifizierten Maßzeichnungen beachten.
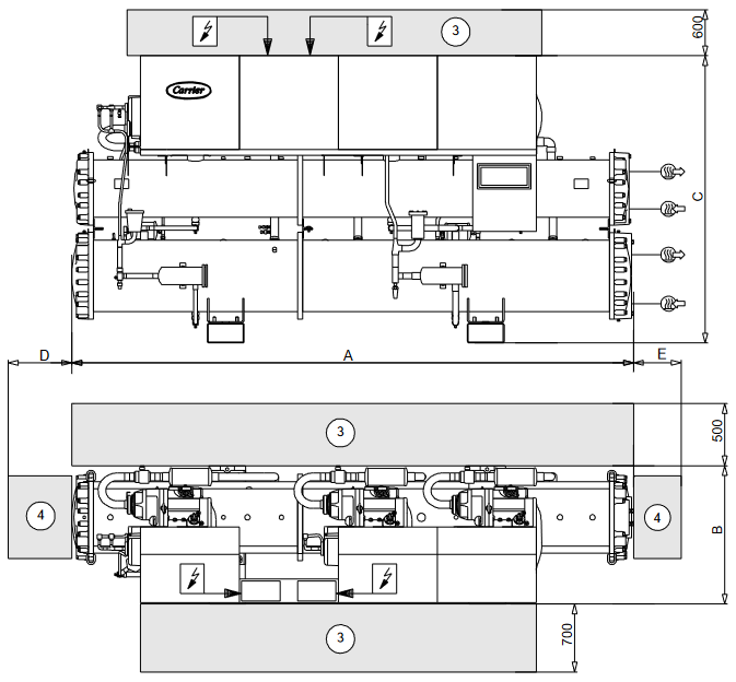
30HXC 200-375

- Verdampfer
- Verflüssiger
- Für Betrieb und Wartung erforderliche Freiräume
- Für den Ausbau der Wärmetauscherrohre erforderliche Freiräume. Die Freiräume D und E können entweder links oder rechts sein.
Wassereinlass
Wasserauslass
Stromversorgung
kg: Gesamtbetriebsgewicht
| A mm | B mm | C mm | D mm | E mm | kg | |
| 30HXC200 | 3975 | 980 | 2035 | 3620 | 1000 | 4090 |
| 30HXC230 30HXC260 30HXC285 |
3995 | 980 | 2116 | 3620 | 1000 | 4705 4815 4985 |
| 30HXC310 30HXC345 30HXC375 |
4490 | 980 | 2163 | 4120 | 1000 | 5760 5870 6105 |
HINWEIS: Bei der Planung einer Installation die mit dem Gerät gelieferten zertifizierten Maßzeichnungen beachten.
30GX 082-182
30GX-082
30GX-092
30GX-102
30GX-112
30GX-122
30GX-132
30GX-152
30GX-162
30GX-182


- Für Betrieb und Wartung erforderliche Freiräume
- Für den Ausbau der Wärmetauscherrohre erforderliche Freiräume. Die Freiräume können entweder links oder rechts sein.
Wassereinlass
Wasserauslass
Stromversorgung
Luftauslass - nicht blockieren
kg: Gesamtbetriebsgewicht
| A mm | B mm | kg | |
| 30GX082 30GX092 30GX102 |
2970 | 2215 | 3116 3157 3172 |
| 30GX112 30GX122 30GX132 |
3427 | 2045 | 3515 3531 3633 |
| 30GX152 30GX162 |
4342 | 2835 | 3920 3936 |
| 30GX182 | 5996 | 1820 | 4853 |
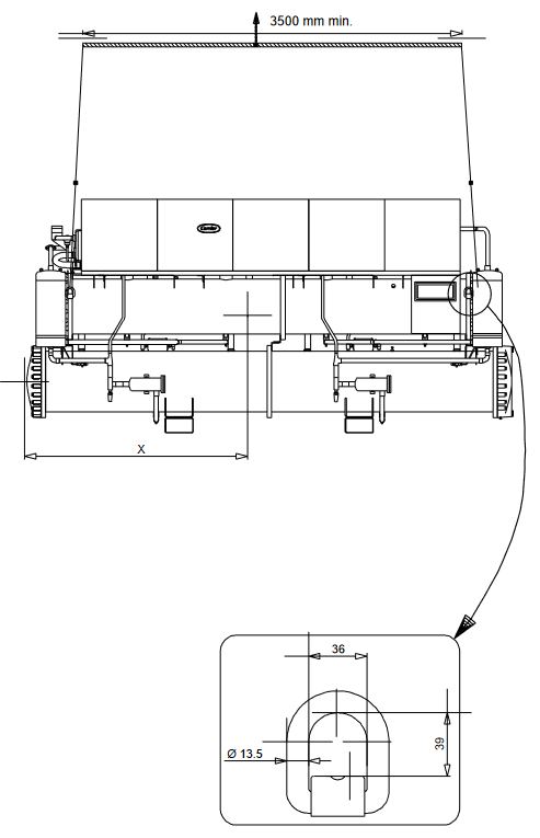
Installation mehrerer Kältemaschinen


Hinweise:
- Das Gerät muss die folgenden Freiräume für den Luftstrom aufweisen:
Oben: In keiner Weise einschränken - Im Falle mehrerer Kältemaschinen (bis zu vier Einheiten) sollte der jeweilige Abstand zwischen ihnen von 1830 auf 2000 mm für den seitlichen Platzbedarf erhöht werden.
- Freiräume sind für den Ausbau der Kühlerrohre erforderlich.
HINWEIS: Bei der Planung einer Installation die mit dem Gerät gelieferten zertifizierten Maßzeichnungen beachten.
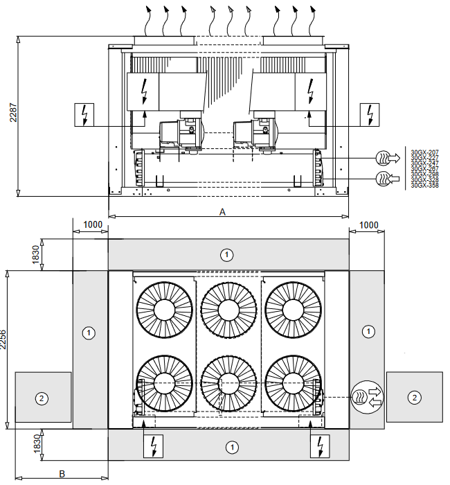
30GX 207-358
30GX-207
30GX-227
30GX-247
30GX-267
30GX-298
30GX-328
30GX-358

- Für Betrieb und Wartung erforderliche Freiräume
- Für den Ausbau der Wärmetauscherrohre erforderliche Freiräume. Die Freiräume können entweder links oder rechts sein.
Wassereinlass
Wasserauslass
Stromversorgung
Luftauslass - nicht blockieren
kg: Gesamtbetriebsgewicht
| A mm | B mm | kg | |
| 30GX207 30GX227 |
5996 | 2895 | 5540 5570 |
| 30GX247 30GX267 |
6911 | 2470 | 6134 6365 |
| 30GX298 | 7826 | 2220 | 7354 |
| 30GX328 30GX358 |
8741 | 1250 | 7918 8124 |
Installation mehrerer Kältemaschinen


Hinweise:
- Das Gerät muss die folgenden Freiräume für den Luftstrom aufweisen:
Oben: In keiner Weise einschränken - Im Falle mehrerer Kältemaschinen (bis zu vier Einheiten) sollte der jeweilige Abstand zwischen ihnen von 1830 auf 2000 mm für den seitlichen Platzbedarf erhöht werden.
- Freiräume sind für den Ausbau der Kühlerrohre erforderlich.
HINWEIS: Bei der Planung einer Installation die mit dem Gerät gelieferten zertifizierten Maßzeichnungen beachten.
PHYSIKALISCHE DATEN 30HXC
| 30HXC | 080 | 090 | 100 | 110 | 120 | 130 | 140 | 155 | 175 | 190 | 200 | 230 | 260 | 285 | 310 | 345 | 375 | |
| Nettokälteleistung | kW | 292 | 321 | 352 | 389 | 426 | 464 | 514 | 550 | 607 | 663 | 716 | 822 | 918 | 996 | 1119 | 1222 | 1326 |
| Betriebsgewicht | kg | 2447 | 2462 | 2504 | 2650 | 2846 | 2861 | 2956 | 2971 | 3283 | 3438 | 4090 | 4705 | 4815 | 4985 | 5760 | 5870 | 6105 |
| Kältemittel Kreislauf A/B |
HFC-134a | |||||||||||||||||
| kg | 39/36 | 39/36 | 37/32 | 38/38 | 57/55 | 59/50 | 56/50 | 59/52 | 58/61 | 60/70 | 110/58 | 118/63 | 120/75 | 120/75 | 108/110 | 110/110 | 110/120 | |
| Öl Kreislauf A/B |
Polyolesteröl CARRIER SPEC: PP 47-32 | |||||||||||||||||
| l | 15/15 | 15/15 | 15/15 | 15/15 | 15/15 | 15/15 | 15/15 | 15/15 | 15/15 | 15/15 | 30/15 | 30/15 | 30/15 | 30/15 | 30/30 | 30/30 | 30/30 | |
| Verdichter | Hermetische Doppelschnecke Power3 | |||||||||||||||||
| Kreislauf A, Nennleistung pro Verdichter** | 39 | 46 | 46 | 56 | 56 | 66 | 80 | 80 | 80 | 80+ | 66/56 | 80/56 | 80/80 | 80+/80+ | 80/66 | 80/80 | 80+/80+ | |
| Kreislauf B, Nennleistung pro Verdichter** | 39 | 39 | 46 | 46 | 56 | 56 | 56 | 66 | 80 | 80+ | 66 | 80 | 80 | 80+ | 80/66 | 80/80 | 80+/80+ | |
| Regelungsart | PRO-DIALOG Plus Regelung | |||||||||||||||||
| Anzahl der Leistungsstufen | 6 | 6 | 6 | 6 | 6 | 6 | 6 | 6 | 6 | 6 | 8 | 8 | 8 | 8 | 10 | 10 | 10 | |
| Mindestleistung | % | 19 | 19 | 21 | 19 | 21 | 19 | 17 | 19 | 21 | 21 | 14 | 14 | 14 | 14 | 10 | 10 | 10 |
| Verdampfer | Rohrbündelwärmetauscher, mit innenberippten Kupferrohren | |||||||||||||||||
| Netto-Wasservolumen | l | 65 | 65 | 73 | 87 | 81 | 81 | 91 | 91 | 109 | 109 | 140 | 165 | 181 | 181 | 203 | 229 | 229 |
| Wasseranschlüsse | Werksseitig gelieferter Flachflansch, bauseits zu schweißen | |||||||||||||||||
| Ein- und Auslass | in. | 4 | 4 | 4 | 5 | 5 | 5 | 5 | 5 | 5 | 5 | 6 | 6 | 6 | 6 | 8 | 8 | 8 |
| Ablass und Entlüftung (NPT) | in. | 3/8 | 3/8 | 3/8 | 3/8 | 3/8 | 3/8 | 3/8 | 3/8 | 3/8 | 3/8 | 3/8 | 3/8 | 3/8 | 3/8 | 3/8 | 3/8 | |
| Max. wasserseitiger Betriebsdruck | kPa | 1000 | 1000 | 1000 | 1000 | 1000 | 1000 | 1000 | 1000 | 1000 | 1000 | 1000 | 1000 | 1000 | 1000 | 1000 | 1000 | |
| Verflüssiger | Rohrbündelwärmetauscher, mit innenberippten Kupferrohren | |||||||||||||||||
| Netto-Wasservolumen | l | 58 | 58 | 58 | 58 | 92 | 92 | 110 | 110 | 132 | 132 | 162 | 208 | 208 | 208 | 251 | 251 | 251 |
| Wasseranschlüsse | Werksseitig gelieferter Flachflansch, bauseits zu schweißen | |||||||||||||||||
| Ein- und Auslass | in. | 5 | 5 | 5 | 5 | 5 | 5 | 5 | 5 | 6 | 6 | 6 | 6 | 6 | 6 | 8 | 8 | 8 |
| Ablass und Entlüftung (NPT) | in. | 3/8 | 3/8 | 3/8 | 3/8 | 3/8 | 3/8 | 3/8 | 3/8 | 3/8 | 3/8 | 3/8 | 3/8 | 3/8 | 3/8 | 3/8 | 3/8 | |
| Max. wasserseitiger Betriebsdruck | kPa | 1000 | 1000 | 1000 | 1000 | 1000 | 1000 | 1000 | 1000 | 1000 | 1000 | 1000 | 1000 | 1000 | 1000 | 1000 | 1000 | |
* Standardisierte Eurovent-Bedingungen: Wassereintritts-/austrittstemperaturen Verdampfer = 12°C/7°C, Wassereintritts-/austrittstemperaturen Verflüssiger = 30°C/35°C Nettokälteleistung: Bruttokälteleistung abzüglich der Wasserpumpenwärme gegen den internen Verdampferdruckabfall. ** Die Verdichtergröße entspricht der Nennleistung in Tonnen (1 Tonne = 3,517 kW).
ELEKTRISCHE DATEN 30HXC
| 30HXC | 080 | 090 | 100 | 110 | 120 | 130 | 140 | 155 | 175 | 190 | 200 | 230 | 260 | 285 | 310 | 345 | 375 | |
| Leistungsstromkreis | ||||||||||||||||||
| Nennstromversorgung* | V-ph-Hz | 400-3-50 | ||||||||||||||||
| Spannungsbereich | V | 360-440 | ||||||||||||||||
| Steuerstromkreisversorgung | Der Steuerstromkreis wird über den werkseitig installierten Transformator versorgt | |||||||||||||||||
| Nennleistungsaufnahme* | kW | 59 | 67 | 74 | 83 | 88 | 99 | 112 | 123 | 135 | 146 | 156 | 179 | 201 | 219 | 245 | 274 | 298 |
| Nennstromaufnahme* | A | 98 | 111 | 124 | 139 | 148 | 166 | 186 | 204 | 226 | 242 | 259 | 291 | 335 | 367 | 408 | 456 | 498 |
| Max. Leistungsaufnahme** | kW | 76 | 83 | 91 | 101 | 111 | 121 | 135 | 145 | 158 | 181 | 187 | 214 | 237 | 272 | 290 | 316 | 362 |
| Stromkreis A | kW | - | - | - | - | - | - | - | - | - | - | 121 | 135 | 158 | 181 | 145 | 158 | 181 |
| Stromkreis B | kW | - | - | - | - | - | - | - | - | - | - | 66 | 79 | 79 | 91 | 145 | 158 | 181 |
| Cosinus Phi, Anlage bei Volllast | 0.87 | 0.87 | 0.87 | 0.87 | 0.87 | 0.87 | 0.87 | 0.87 | 0.87 | 0.87 | 0.87 | 0.87 | 0.87 | 0.87 | 0.87 | 0.87 | 0.87 | |
| Max. Stromaufnahme (Un - 10%)*** | A | 138 | 152 | 166 | 184 | 202 | 221 | 245 | 264 | 288 | 330 | 341 | 389 | 432 | 495 | 528 | 576 | 660 |
| Stromkreis A | A | - | - | - | - | - | - | - | - | - | - | 221 | 245 | 288 | 330 | 264 | 288 | 330 |
| Stromkreis B | A | - | - | - | - | - | - | - | - | - | - | 120 | 144 | 144 | 165 | 264 | 288 | 330 |
| Maximale Stromaufnahme (Un)*** | A | 125 | 138 | 151 | 167 | 184 | 201 | 223 | 240 | 262 | 300 | 310 | 354 | 393 | 450 | 480 | 524 | 600 |
| Stromkreis A | A | - | - | - | - | - | - | - | - | - | - | 201 | 223 | 262 | 300 | 240 | 262 | 300 |
| Stromkreis B | A | - | - | - | - | - | - | - | - | - | - | 109 | 131 | 131 | 150 | 240 | 262 | 300 |
| Max. Anlaufstrom, Standardanlage (Un)**** | A | 172 | 197 | 209 | 235 | 252 | 283 | 318 | 335 | 357 | 420 | 806 | 938 | 977 | 1156 | 1064 | 1108 | 1306 |
| Stromkreis A | A | - | - | - | - | - | - | - | - | - | - | 697 | 807 | 846 | 1006 | 824 | 846 | 1006 |
| Stromkreis B | A | - | - | - | - | - | - | - | - | - | - | 605 | 715 | 715 | 856 | 824 | 846 | 1006 |
| Verhältnis Max. Anlaufstrom/Max. Stromaufnahme, Anlage | 1.37 | 1.42 | 1.39 | 1.41 | 1.37 | 1.41 | 1.43 | 1.40 | 1.36 | 1.40 | 2.60 | 2.65 | 2.49 | 2.57 | 2.22 | 2.12 | 2.18 | |
| Verhältnis Max. Anlaufstrom/Max. Stromaufnahme, Stromkreis A | - | - | - | - | - | - | - | - | - | - | 3.47 | 3.62 | 3.23 | 3.35 | 3.43 | 3.23 | 3.35 | |
| Verhältnis Max. Anlaufstrom/Max. Stromaufnahme, Stromkreis B | - | - | - | - | - | - | - | - | - | - | 5.55 | 5.46 | 5.46 | 5.71 | 3.43 | 3.23 | 3.35 | |
| Max. Anlaufstrom - reduzierter Stromanlauf (Un) **** | A | Standard | Standard | Standard | Standard | Standard | Standard | Standard | Standard | Standard | Standard | 601 | 643 | 682 | 760 | 769 | 813 | 910 |
| Stromkreis A | A | Standard | Standard | Standard | Standard | Standard | Standard | Standard | Standard | Standard | Standard | 492 | 512 | 551 | 610 | 529 | 551 | 610 |
| Stromkreis B | A | Standard | Standard | Standard | Standard | Standard | Standard | Standard | Standard | Standard | Standard | 330 | 370 | 370 | 385 | 529 | 551 | 610 |
| Verhältnis Max. Anlaufstrom - red. Stromanlauf/Max. Stromaufnahme, Anlage | Standard | Standard | Standard | Standard | Standard | Standard | Standard | Standard | Standard | Standard | 1.94 | 1.82 | 1.74 | 1.69 | 1.60 | 1.55 | 1.52 | |
| Stromkreis A | Standard | Standard | Standard | Standard | Standard | Standard | Standard | Standard | Standard | Standard | 2.45 | 2.30 | 2.10 | 2.03 | 2.20 | 2.10 | 2.03 | |
| Stromkreis B | Standard | Standard | Standard | Standard | Standard | Standard | Standard | Standard | Standard | Standard | 3.03 | 2.83 | 2.83 | 2.57 | 2.20 | 2.10 | 2.03 | |
| Dreiphasen-Kurzschluss-Haltestrom | kA | 25 | 25 | 25 | 25 | 25 | 25 | 25 | 25 | 25 | 25 | N/A | N/A | N/A | N/A | N/A | N/A | N/A |
| Stromkreis A | kA | - | - | - | - | - | - | - | - | - | - | 25 | 25 | 25 | 25 | 25 | 25 | 25 |
| Stromkreis B | kA | - | - | - | - | - | - | - | - | - | - | 15 | 15 | 15 | 15 | 25 | 25 | 25 |
| Kunden-Standby-Leistung, Anlage oder Stromkreis A, für Verdampferwasserpumpenanschlüsse† | kW | 8 | 8 | 8 | 11 | 11 | 11 | 15 | 15 | 15 | 15 | 15 | 18 | 18 | 30 | 30 | 30 | 30 |
* Standard-Eurovent-Bedingungen: Eintritts-/Austrittswassertemperatur Verdampfer 12°C und 7°C. Eintritts-/Austrittswassertemperatur Verflüssiger 30°C/35°C.
** Leistungsaufnahme, Kompressor, bei den Betriebsgrenzen der Anlage (Eintritts-/Austrittswassertemperatur Verdampfer = 15°C/10°C, Eintritts-/Austrittswassertemperatur Verflüssiger = 40°C/45°C) und einer Nennspannung von 400 V (Angaben auf dem Typenschild der Anlage).
*** Maximaler Betriebsstrom der Anlage bei maximaler Leistungsaufnahme der Anlage.
**** Maximaler kurzzeitiger Anlaufstrom (maximaler Betriebsstrom des/der kleinsten Kompressoren + Anlaufstrom bei blockiertem Rotor oder reduzierter Anlaufstrom des größten Kompressors)
† Strom- und Leistungsaufnahmen sind nicht in den oben genannten Werten enthalten.
N/A Nicht verfügbar
Kompressoren
| Referenz | Größe | I nom. | MHA | LRA | LRA (Y) | LRA (S) 1 K. | LRA (S) 2 K. |
| 06NW2146S7N | 39 | 48 | 69 | 344 | 109 | 125 | - |
| 06NW2174S7N | 46 | 58 | 83 | 423 | 134 | 154 | - |
| 06NW2209S7N | 56 | 71 | 101 | 506 | 160 | 260 | 350 |
| 06NW2250S7N | 66 | 87 | 120 | 605 | 191 | 330 | 400 |
| 06NW2300S5N | 80 | 104 | 144 | 715 | 226 | 370 | 420 |
| 06NW2300S5E | 80+ | 111 | 165 | 856 | 270 | 385 | 460 |
Legende:
| 06NW | Kompressor für wassergekühlte Einheiten |
| N | Nicht-economisierter Kompressor |
| E | Economisierter Kompressor |
| INOM | Durchschnittliche Stromaufnahme des Kompressors unter Eurovent-Bedingungen |
| MHA | Muss Ampere halten (maximaler Betriebsstrom) bei 360 V |
| LRA | Anlaufstrom bei blockiertem Rotor mit Direktstart |
| LRA (Y) | Anlaufstrom bei blockiertem Rotor mit reduziertem Strom (Stern/Dreieck-Anlaufmodus) |
| LRA (S) 1 K. | Anlauf mit reduziertem Strom mit elektronischem Starter (Anlaufdauer max. 3 Sekunden) für einen Kompressor pro Stromkreis |
| LRA (S) 2 K. | Anlauf mit reduziertem Strom mit elektronischem Starter (Anlaufdauer max. 3 Sekunden) für zwei Kompressoren pro Stromkreis |
ELEKTRISCHE DATEN FÜR GERÄTE MIT HOHEN KONDENSATIONSTEMPERATUREN
30HXC 150 und 150A Optionen
| 30HXC | 080 | 090 | 100 | 110 | 120 | 130 | 140 | 155 | 175 | 190 | 200 | 230 | 260 | 285 | 310 | 345 | 375 | |
| Stromkreis | ||||||||||||||||||
| Nennstromversorgung* | V-ph-Hz | 400-3-50 | ||||||||||||||||
| Spannungsbereich | V | 360-440 | ||||||||||||||||
| Versorgung des Steuerstromkreises | Der Steuerstromkreis wird über den werkseitig installierten Transformator versorgt | |||||||||||||||||
| Max. Leistungsaufnahme** | kW | 104 | 117 | 131 | 145 | 159 | 174 | 194 | 211 | 230 | 263 | 271 | 310 | 345 | 395 | 422 | 460 | 526 |
| Kreis A | kW | - | - | - | - | - | - | - | - | - | - | 175 | 195 | 230 | 263 | 211 | 230 | 263 |
| Kreis B | kW | - | - | - | - | - | - | - | - | - | - | 96 | 115 | 115 | 132 | 211 | 230 | 263 |
| Max. Stromaufnahme (Un - 10%)*** | A | 190 | 215 | 240 | 265 | 290 | 320 | 355 | 385 | 420 | 480 | 495 | 564 | 630 | 720 | 770 | 840 | 960 |
| Kreis A | A | - | - | - | - | - | - | - | - | - | - | 320 | 355 | 420 | 480 | 385 | 420 | 480 |
| Kreis B | A | - | - | - | - | - | - | - | - | - | - | 175 | 210 | 210 | 240 | 385 | 420 | 480 |
| Max. Stromaufnahme (Un)*** | A | 173 | 195 | 218 | 241 | 264 | 291 | 323 | 350 | 382 | 436 | 450 | 514 | 573 | 655 | 700 | 764 | 873 |
| Kreis A | A | - | - | - | - | - | - | - | - | - | - | 291 | 323 | 382 | 436 | 350 | 382 | 436 |
| Kreis B | A | - | - | - | - | - | - | - | - | - | - | 159 | 191 | 191 | 218 | 350 | 382 | 436 |
| Max. Anlaufstrom, Standardgerät (Un)**** | A | 277 | 312 | 335 | 379 | 402 | 435 | 519 | 546 | 578 | 618 | 1251 | 1549 | 1608 | 1701 | 1735 | 1799 | 1920 |
| Kreis A | A | - | - | - | - | - | - | - | - | - | - | 1092 | 1358 | 1417 | 1483 | 1385 | 1417 | 1483 |
| Kreis B | A | - | - | - | - | - | - | - | - | - | - | 960 | 1226 | 1226 | 1265 | 1385 | 1417 | 1483 |
| Verhältnis max. Anlaufstrom/max. Stromaufnahme, Gerät | 1.61 | 1.60 | 1.54 | 1.57 | 1.52 | 1.49 | 1.61 | 1.56 | 1.51 | 1.42 | 2.78 | 3.02 | 2.81 | 2.60 | 2.48 | 2.36 | 2.20 | |
| Verhältnis max. Anlaufstrom/max. Stromaufnahme, Kreis A | - | - | - | - | - | - | - | - | - | - | 3.75 | 4.21 | 3.71 | 3.40 | 3.96 | 3.71 | 3.40 | |
| Verhältnis max. Anlaufstrom/max. Stromaufnahme, Kreis B | - | - | - | - | - | - | - | - | - | - | 6.03 | 6.42 | 6.42 | 5.80 | 3.96 | 3.71 | 3.40 | |
| Max. Anlaufstrom - reduzierter Anlaufstrom (Un) **** | A | Standard | Standard | Standard | Standard | Standard | Standard | Standard | Standard | Standard | Standard | Nicht verfügbar | Nicht verfügbar | Nicht verfügbar | Nicht verfügbar | Nicht verfügbar | Nicht verfügbar | Nicht verfügbar |
| Dreiphasiger Kurzschluss-Haltestrom | kA | 25 | 25 | 25 | 25 | 25 | 25 | 25 | 25 | 25 | 25 | Nicht verfügbar | Nicht verfügbar | Nicht verfügbar | Nicht verfügbar | Nicht verfügbar | Nicht verfügbar | Nicht verfügbar |
| Kreis A | kA | - | - | - | - | - | - | - | - | - | - | 25 | 25 | 25 | 25 | 25 | 25 | 25 |
| Kreis B | kA | - | - | - | - | - | - | - | - | - | - | 15 | 15 | 15 | 15 | 25 | 25 | 25 |
| Kunden-Bereitstellungskapazität, Gerät oder Kreis A, für Verdampferwasserpumpenanschlüsse† | kW | 8 | 8 | 8 | 11 | 11 | 11 | 15 | 15 | 15 | 15 | 15 | 18 | 18 | 30 | 30 | 30 | 30 |
** Leistungsaufnahme, Verdichter, bei Betriebsgrenzen des Geräts (Verdampfer-Wassereintritts-/Austrittstemperatur = 15°C/10°C, Kondensator-Wassereintritts-/Austrittstemperatur = 40°C/45°C) und einer Nennspannung von 400 V (Daten auf dem Typenschild des Geräts angegeben).
*** Maximaler Gerätebetriebsstrom bei maximaler Geräteleistungsaufnahme.
**** Maximaler kurzzeitiger Anlaufstrom (maximaler Betriebsstrom des/der kleinsten Verdichter(s) + Anlaufstrom bei blockiertem Läufer oder reduzierter Anlaufstrom des größten Verdichters)
† Strom- und Leistungsaufnahmen nicht in den oben genannten Werten enthalten.
N/A Nicht verfügbar
Die 30HXC 080-375 Geräte für hohe Kondensationstemperaturen sind direkt von den Standardmodellen abgeleitet. Ihr Anwendungsbereich ist derselbe wie der der Standardgeräte, erlaubt jedoch den Betrieb bei Kondensator-Wasseraustrittstemperaturen von bis zu 63°C. Die PRO-DIALOG Steuerung bietet alle Vorteile der Standardgeräte, plus die Regelung der Kondensator-Wasseraustrittstemperatur.
Die wichtigsten Modifikationen sind:
- Verwendung von 30GX Verdichtern
- Modifikation der elektrischen Komponenten für den Betrieb mit Verdichtern für hohe Kondensationstemperaturen.
- Modifikation der Wärmetauscher zur Erfüllung der Druckvorschriften (falls erforderlich).
Option 150
Diese Geräte sind für traditionelle Anwendungen von wassergekühlten Geräten ausgelegt, jedoch für höhere Kondensator-Wasseraustrittstemperaturen als 45°C.
Wie die Standardgeräte sind sie mit Kondensator-Wasser-Eintritts- und -Austrittssensoren ausgestattet, die an der Verrohrung installiert sind.
Es ist möglich, die Maschine am Kondensator-Wasseraustritt zu steuern, was eine werkseitige Konfigurationsänderung und die Verwendung einer Heiz-/Kühl-Eingangsumschalteinrichtung erfordert.
Option 150A
Diese Geräte sind für Wasser-Wasser-Wärmepumpen ausgelegt.
Sie sind werkseitig als Wärmepumpen konfiguriert (Heiz-/Kühlregelung in Abhängigkeit von der externen Umschalteinrichtung). Der Verflüssiger verfügt über eine Wärmeisolierung, die identisch mit der des Verdampfers ist.
Technische Informationen
Alle Informationen sind identisch mit denen der Standard 30HXC Geräte, mit Ausnahme der folgenden Absätze.
Auswahl
Es gibt keine Nennbedingungen für diesen Gerätetyp. Die Auswahl erfolgt über den aktuellen elektronischen Katalog.
Abmessungen
Diese sind identisch mit denen der Standard 30HXC Geräte. Der einzige Unterschied liegt im Durchmesser des eingehenden Feldverdrahtungsanschlusses, beschrieben im Kapitel "Empfohlene Auswahl". Beachten Sie die Maßzeichnungen für diese Geräte, bevor Sie mit der Verkabelung beginnen.
Verdichter
Siehe 30GX Verdichtertabelle.
Optionen und Zubehör
Alle Optionen, die für die Standard 30HXC Geräte verfügbar sind, sind kompatibel, außer:
| Option 5, Sole-Gerät | Sondergerät |
| Option 25, Sanftanlauf, 30HXC 200-375 Geräte | Nicht verfügbar |
Achtung:
Wenn Geräte zwei verschiedene Betriebsmodi aufweisen – einen mit hoher Kondensationstemperatur und den anderen mit niedriger Kondensationstemperatur – und der Übergang bei laufendem Gerät erfolgt, darf die Temperatur nicht um mehr als 3 K pro Minute variieren. In Fällen, in denen dies nicht möglich ist, wird empfohlen, den Übergang über einen Ein-/Ausschalter des Geräts (Fernstart/-stopp für Standardgeräte verfügbar) vorzunehmen.
PHYSIKALISCHE DATEN 30GX
| 30GX | 082 | 092 | 102 | 112 | 122 | 132 | 152 | 162 | 182 | 207 | 227 | 247 | 267 | 298 | 328 | 358 | ||
| Netto-Kühlleistung | kW | 285 | 309 | 332 | 388 | 417 | 450 | 505 | 536 | 602 | 687 | 744 | 810 | 910 | 1003 | 1103 | 1207 | |
| Betriebsgewicht | kg | 3116 | 3157 | 3172 | 3515 | 3531 | 3633 | 3920 | 3936 | 4853 | 5540 | 5570 | 6134 | 6365 | 7354 | 7918 | 8124 | |
| Kältemittelfüllung | HFC-134a | |||||||||||||||||
| Kreis A/B | kg | 55/55 | 58/50 | 54/53 | 55/53 | 60/57 | 63/60 | 75/69 | 75/75 | 80/80 | 130/85 | 130/85 | 155/98 | 170/104 | 162/150 | 162/165 | 175/175 | |
| Öl | Polyolesteröl CARRIER SPEC: PP 47-32 | |||||||||||||||||
| Kreis A/B | l | 20/20 | 20/20 | 20/20 | 20/20 | 20/20 | 20/20 | 20/20 | 20/20 | 20/20 | 40/20 | 40/20 | 40/20 | 40/20 | 40/40 | 40/40 | 40/40 | |
| Verdichter | Hermetische Doppelschrauben Power3 | |||||||||||||||||
| Kreis A, Nennleistungsgröße pro Verdichter** | 46 | 46 | 56 | 56 | 66 | 66 | 80 | 80 | 80+ | 66/56 | 80/66 | 80/80 | 80+/80+ | 80/80 | 80/80 | 80+/80+ | ||
| Kreis B, Nennleistungsgröße pro Verdichter** | 39 | 46 | 46 | 56 | 56 | 66 | 66 | 80 | 80+ | 80 | 80 | 80 | 80+ | 66/66 | 80/802 | 80+/80+ | ||
| Regelungstyp | PRO-DIALOG Plus Steuerung | |||||||||||||||||
| Anzahl der Leistungsstufen | 6 | 6 | 6 | 6 | 6 | 6 | 6 | 6 | 6 | 8 | 8 | 8 | 8 | 10 | 10 | 10 | ||
| Mindestleistung | % | 19 | 21 | 19 | 21 | 19 | 21 | 19 | 21 | 21 | 16 | 14 | 14 | 14 | 9 | 10 | 10 | |
| Verdampfer | Rohrbündelwärmetauscher, mit innenberippten Kupferrohren | |||||||||||||||||
| Nettowasservolumen | l | 65 | 73 | 73 | 87 | 87 | 101 | 91 | 91 | 109 | 140 | 140 | 165 | 181 | 203 | 229 | 229 | |
| Wasseranschlüsse | Werkseitig gelieferter Flansch, bauseits zu schweißen | |||||||||||||||||
| Ein- und Ausgang | in. | 4 | 4 | 4 | 5 | 5 | 5 | 5 | 5 | 5 | 6 | 6 | 6 | 6 | 8 | 8 | 8 | |
| Ablass und Entlüftung (NPT) | in. | 3/8 | 3/8 | 3/8 | 3/8 | 3/8 | 3/8 | 3/8 | 3/8 | 3/8 | 3/8 | 3/8 | 3/8 | 3/8 | 3/8 | 3/8 | 3/8 | |
| Max. wasserseitiger Betriebsdruck | kPa | 1000 | 1000 | 1000 | 1000 | 1000 | 1000 | 1000 | 1000 | 1000 | 1000 | 1000 | 1000 | 1000 | 1000 | 1000 | 1000 | |
| Kondensatoren | Kupferrohre und Aluminiumlamellen | |||||||||||||||||
| Ventilatoren | Axialventilator FLYING BIRD 2 mit rotierender Ummantelung | |||||||||||||||||
| Anzahl | 4 | 4 | 4 | 6 | 6 | 6 | 8 | 8 | 8 | 10 | 10 | 12 | 12 | 14 | 16 | 16 | ||
| Drehzahl | r/s | 15.8 | 15.8 | 15.8 | 15.8 | 15.8 | 15.8 | 15.8 | 15.8 | 15.8 | 15.8 | 15.8 | 15.8 | 15.8 | 15.8 | 15.8 | 15.8 | |
| Gesamter Luftstrom | l/s | 21110 | 21110 | 21110 | 31660 | 31660 | 31660 | 42220 | 42220 | 42220 | 52770 | 52770 | 63330 | 63330 | 73880 | 84440 | 84440 | |
* Standardisierte Eurovent-Bedingungen: Verdampfer-Wassereintritts-/Austrittstemperaturen = 12°C/7°C, Außentemperatur = 35°C Nettokühlleistung: Brutto-Kühlleistung abzüglich der Wärmeleistung der Wasserpumpe gegen den internen Verdampferdruckabfall.
** Die Verdichtergröße entspricht der Nennleistung in Tonnen (1 Tonne = 3,517 kW).
ELEKTRISCHE DATEN 30GX
| 30HXC | 082 | 092 | 102 | 112 | 122 | 132 | 152 | 162 | 182 | 207 | 227 | 247 | 267 | 298 | 328 | 358 | ||
| Stromkreis | ||||||||||||||||||
| Nennspannungsversorgung* | V-ph-Hz | 400-3-50 | ||||||||||||||||
| Spannungsbereich | V | 360-440 | ||||||||||||||||
| Steuerstromkreisversorgung | Der Steuerstromkreis wird über den werkseitig installierten Transformator versorgt | |||||||||||||||||
| Nennleistungsaufnahme* | kW | 98 | 109 | 123 | 133 | 150 | 166 | 179 | 196 | 214 | 246 | 281 | 292 | 332 | 364 | 394 | 449 | |
| Nennstromaufnahme* | A | 180 | 200 | 223 | 256 | 273 | 290 | 326 | 352 | 388 | 449 | 492 | 528 | 582 | 642 | 704 | 776 | |
| Max. Leistungsaufnahme** | kW | 127 | 141 | 154 | 175 | 191 | 207 | 234 | 253 | 286 | 319 | 355 | 380 | 429 | 462 | 506 | 572 | |
| Stromkreis A | kW | - | - | - | - | - | - | - | - | - | 193 | 228 | 253 | 286 | 253 | 253 | 286 | |
| Stromkreis B | kW | - | - | - | - | - | - | - | - | - | 127 | 127 | 127 | 143 | 209 | 253 | 286 | |
| Cos φ, Gerät bei Volllast | 0.85 | 0.85 | 0.85 | 0.85 | 0.85 | 0.85 | 0.86 | 0.86 | 0.86 | 0.86 | 0.86 | 0.86 | 0.86 | 0.86 | 0.86 | 0.86 | ||
| Max. Stromaufnahme (Un - 10%)*** | A | 237 | 262 | 287 | 323 | 353 | 383 | 429 | 464 | 524 | 585 | 650 | 696 | 786 | 847 | 928 | 1048 | |
| Stromkreis A | A | - | - | - | - | - | - | - | - | - | 353 | 418 | 464 | 524 | 464 | 464 | 524 | |
| Stromkreis B | A | - | - | - | - | - | - | - | - | - | 232 | 232 | 232 | 262 | 383 | 464 | 524 | |
| Maximale Stromaufnahme (Un)*** | A | 217 | 240 | 263 | 297 | 324 | 351 | 394 | 426 | 480 | 537 | 596 | 639 | 721 | 777 | 852 | 961 | |
| Stromkreis A*** | A | - | - | - | - | - | - | - | - | - | 324 | 383 | 426 | 480 | 426 | 426 | 480 | |
| Stromkreis B*** | A | - | - | - | - | - | - | - | - | - | 213 | 213 | 213 | 240 | 351 | 426 | 480 | |
| Max. Anlaufstrom, Standardgerät**** (Un) | A | 334 | 357 | 401 | 435 | 468 | 495 | 590 | 622 | 662 | 1338 | 1631 | 1674 | 1767 | 1812 | 1887 | 2008 | |
| Stromkreis A*** | A | - | - | - | - | - | - | - | - | - | 1125 | 1418 | 1461 | 1527 | 1461 | 1461 | 1527 | |
| Stromkreis B*** | A | - | - | - | - | - | - | - | - | - | 1248 | 1248 | 1248 | 1287 | 1152 | 1461 | 1527 | |
| Max. Anlaufstrom/max. Stromaufnahme-Verhältnis, Gerät | 1.54 | 1.49 | 1.53 | 1.47 | 1.44 | 1.41 | 1.50 | 1.46 | 1.38 | 2.49 | 2.74 | 2.62 | 2.45 | 2.33 | 2.22 | 2.09 | ||
| Max. Anlaufstrom/max. Stromaufnahme-Verhältnis, Stromkreis A | - | - | - | - | - | - | - | - | - | 3.47 | 3.70 | 3.43 | 3.18 | 3.43 | 3.43 | 3.18 | ||
| Max. Anlaufstrom/max. Stromaufnahme-Verhältnis, Stromkreis B | - | - | - | - | - | - | - | - | - | 5.86 | 5.86 | 5.86 | 5.36 | 3.28 | 3.43 | 3.18 | ||
| Max. Anlaufstrom - reduzierter Stromanlauf (Un) **** | A | Standard | Standard | Standard | Standard | Standard | Standard | Standard | Standard | Standard | 878 | 955 | 998 | 1102 | 1136 | 1211 | 1343 | |
| Stromkreis A | A | Standard | Standard | Standard | Standard | Standard | Standard | Standard | Standard | Standard | 665 | 742 | 785 | 862 | 785 | 785 | 862 | |
| Stromkreis B | A | Standard | Standard | Standard | Standard | Standard | Standard | Standard | Standard | Standard | 572 | 572 | 572 | 622 | 692 | 785 | 862 | |
| Max. Anlaufstrom - red. Stromanlauf/max. Stromaufnahme-Verhältnis, Gerät | Standard | Standard | Standard | Standard | Standard | Standard | Standard | Standard | Standard | 1.64 | 1.60 | 1.56 | 1.53 | 1.46 | 1.42 | 1.40 | ||
| Stromkreis A | Standard | Standard | Standard | Standard | Standard | Standard | Standard | Standard | Standard | 2.05 | 1.94 | 1.84 | 1.79 | 1.84 | 1.84 | 1.79 | ||
| Stromkreis B | Standard | Standard | Standard | Standard | Standard | Standard | Standard | Standard | Standard | 2.69 | 2.69 | 2.69 | 2.39 | 1.97 | 1.84 | 1.79 | ||
| Dreiphasen-Kurzschlussaushaltstrom | kA | 25 | 25 | 25 | 25 | 25 | 25 | 25 | 25 | 25 | N/A | N/A | N/A | N/A | N/A | N/A | N/A | |
| Stromkreis A | kA | - | - | - | - | - | - | - | - | - | 25 | 25 | 25 | 25 | 25 | 25 | 25 | |
| Stromkreis B | kA | - | - | - | - | - | - | - | - | - | 25 | 25 | 25 | 25 | 25 | 25 | 25 | |
| Kunden-Bereitschaftsleistung, Gerät oder Stromkr. A, für Verdampferwasserpumpenanschlüsse† | kW | 4 | 4 | 4 | 5.5 | 5.5 | 5.5 | 7.5 | 7.5 | 7.5 | 7.5 | 9 | 9 | 9 | 15 | 15 | 15 | |
* Standard-Eurovent-Bedingungen: Eintritts-/Austritts-Wassertemperatur Verdampfer 12°C und 7°C. Außentemperatur 35°C.
** Leistungsaufnahme, Kompressor und Ventilator, an den Betriebsgrenzen des Geräts (Eintritts-/Austritts-Wassertemperatur Verdampfer = 15°C/10°C, Außentemperatur = 46°C) und einer Nennspannung von 400 V (Angaben auf dem Typenschild des Geräts).
*** Maximaler Gerätebetriebsstrom bei maximaler Geräteleistungsaufnahme.
**** Maximaler momentaner Anlaufstrom (maximaler Betriebsstrom des/der kleinsten Kompressor(en) + Ventilatorstrom + Blockierstrom oder reduzierter Anlaufstrom des größten Kompressors).
† Strom- und Leistungsaufnahmen nicht in den obigen Werten enthalten
N/A Nicht verfügbar
Kompressoren
| Referenz | Größe | I nom. | MHA | LRA | LRA (Y) | LRA (S) 1 Kp. | LRA (S) 2 Kp. |
| 06NA2146S7N | 39 | 70 | 95 | 605 | 191 | 220 | - |
| 06NA2174S7N | 46 | 90 | 120 | 715 | 226 | 260 | - |
| 06NA2209S7N | 56 | 113 | 145 | 856 | 270 | 330 | 420 |
| 06NA2250S7N | 66 | 130 | 175 | 960 | 303 | 380 | 500 |
| 06NA2300S5N | 80 | 156 | 210 | 1226 | 387 | 445 | 550 |
| 06NA2300S5E | 80+ | 174 | 240 | 1265 | 400 | 460 | 600 |
Legende:
| 06NA | Kompressor für luftgekühlte Geräte |
| N | Kompressor ohne Economizer |
| E | Kompressor mit Economizer |
| INOM | Durchschnittliche Stromaufnahme des Kompressors unter Eurovent-Bedingungen |
| MHA | Mindestaushaltstrom (maximaler Betriebsstrom) bei 360 V |
| LRA | Blockierstrom bei Direktstart |
| LRA (Y) | Blockierstrom bei reduziertem Strom (Stern-Dreieck-Anlauf) |
| LRA (S) 1 Kp. | Anlauf mit reduziertem Strom mit elektronischem Starter (Anlaufdauer max. 3 Sekunden) für einen Kompressor pro Stromkreis |
| LRA (S) 2 Kp. | Anlauf mit reduziertem Strom mit elektronischem Starter (Anlaufdauer max. 3 Sekunden) für zwei Kompressoren pro Stromkreis |
ANWENDUNGSDATEN
Betriebsbereich der Einheit
| Verdampfer | Minimum | Maximum | |
| Eintrittswassertemperatur Verdampfer | °C | 6.8* | 21 |
| Austrittswassertemperatur Verdampfer | °C | 4** | 15 |
| Verflüssiger (wassergekühlt) | Minimum | Maximum | |
| Eintrittswassertemperatur Verflüssiger | °C | 20*** | 42 |
| Austrittswassertemperatur Verflüssiger | °C | 25 | 45 |
| Außen-Betriebstemperatur 30HXC | °C | 6 | 40 |
| Verflüssiger (luftgekühlt) | Minimum | Maximum | |
| Außen-Betriebstemperatur | °C | 0 | 46 |
| Verfügbarer statischer Druck | kPa | 0 |
Hinweise:
* Für Anwendungen, die einen Betrieb unter 6,8 °C erfordern, wenden Sie sich an Carrier s.a. für die Auswahl der Einheit mithilfe des elektronischen Katalogs von Carrier.
** Für Anwendungen, die einen Betrieb unter 4 °C erfordern, ist der Einsatz von Frostschutzmittel erforderlich.
*** Wassergekühlte Einheiten (30HXC), die bei Volllast und unter 20 °C Eintrittswassertemperatur des Verflüssigers betrieben werden, erfordern den Einsatz einer Hochdruckregelung mit analogen Wasserventilen (siehe Abschnitt zur Hochdruckregelung).
In temporären Betriebsmodi (Anlauf und Teillast) kann die Einheit mit einer Lufteintrittstemperatur des Verflüssigers von 13 °C betrieben werden.
Minimaler Kaltwasserdurchfluss
Der minimale Kaltwasserdurchfluss ist in der Tabelle auf der nächsten Seite dargestellt. Ist der Durchfluss geringer, kann der Verdampferdurchfluss rezirkuliert werden, wie im Diagramm dargestellt. Die Temperatur des Gemischs, das den Verdampfer verlässt, darf niemals um weniger als 2,8 K unter der Eintrittstemperatur des Kaltwassers liegen.

FÜR MINIMALEN KALTWASSERDURCHFLUSS
Maximaler Kaltwasserdurchfluss
Der maximale Kaltwasserdurchfluss wird durch den maximal zulässigen Druckabfall im Verdampfer begrenzt. Er ist in der Tabelle auf der nächsten Seite angegeben. Übersteigt der Durchfluss den Maximalwert, sind zwei Lösungen möglich:
- Wählen Sie einen nicht-standardmäßigen Verdampfer mit einem Wasserdurchgang weniger, der einen höheren maximalen Wasserdurchfluss ermöglicht.
- Umgehen Sie den Verdampfer, wie im Diagramm gezeigt, um eine höhere Temperaturdifferenz bei einem geringeren Verdampferdurchfluss zu erzielen.

FÜR MAXIMALEN KALTWASSERDURCHFLUSS
Verdampfer mit variablem Durchfluss
Ein variabler Verdampferdurchfluss kann in Standard-Chiller der Serien 30HXC und 30GX verwendet werden. Die Chiller halten unter allen Durchflussbedingungen eine konstante Austrittswassertemperatur. Damit dies geschieht, muss der minimale Durchfluss höher sein als der in der Tabelle der zulässigen Durchflüsse angegebene Mindestdurchfluss und darf nicht mehr als 10 % pro Minute variieren. Ändert sich der Durchfluss schneller, sollte das System statt 3,25 l/kW mindestens 6,5 Liter Wasser pro kW enthalten.
Mindestwasservolumen des Systems
Unabhängig vom System ist das Mindestvolumen des Wasserkreislaufs durch die Formel gegeben:
Volumen = Leistung (kW) x N Liter
| Anwendung | N |
| Normale Klimatisierung | 3.25 |
| Prozesskühlung | 6.5 |
Wobei Leistung die nominelle Systemkühlleistung (kW) unter den nominellen Betriebsbedingungen der Anlage ist.
Dieses Volumen ist für einen stabilen Betrieb und eine präzise Temperaturregelung erforderlich.
Um das erforderliche Volumen zu erreichen, ist es oft notwendig, dem Kreislauf einen Pufferspeicher hinzuzufügen. Der Behälter muss selbst intern mit Leitblechen versehen sein, um eine ordnungsgemäße Mischung der Flüssigkeit (Wasser oder Sole) zu gewährleisten. Siehe die Beispiele unten.
HINWEIS: Der Kompressor darf nicht öfter als 6 Mal pro Stunde neu starten.


Kühlerdurchflussrate (l/s)
| 30HXC | Min.* | Max.** | ||
| 080-090 | 5.7 | 22.7 | ||
| 100 | 6.0 | 24.1 | ||
| 110 | 6.9 | 27.5 | ||
| 120-130 | 8.3 | 33.0 | ||
| 140-155 | 10.0 | 39.5 | ||
| 175-190 | 10.7 | 42.7 | ||
| 200 | 13.4 | 53.7 | ||
| 230 | 13.4 | 60.6 | ||
| 260-285 | 17.0 | 68.1 | ||
| 310 | 19.4 | 77.8 | ||
| 345-375 | 21.3 | 85.3 | ||
| 30GX | Min.* | Max.** | ||
| 082 | 5.7 | 22.7 | ||
| 092-102 | 6.0 | 24.1 | ||
| 112-122 | 6.9 | 27.5 | ||
| 132 | 8.4 | 33.7 | ||
| 152-162 | 10.0 | 39.9 | ||
| 182 | 10.7 | 42.7 | ||
| 207-227 | 13.4 | 53.7 | ||
| 247 | 15.1 | 60.6 | ||
| 267 | 17.0 | 68.1 | ||
| 298 | 19.4 | 77.8 | ||
| 328-358 | 21.3 | 85.3 | ||
* Basiert auf einer Wassergeschwindigkeit von 0,9 m/s.
** Basiert auf einer Wassergeschwindigkeit von 3,6 m/s.
Kondensatordurchflussrate (l/s)
| 30HXC | Min.* Geschlossener Kreislauf | Offener Kreislauf | Max.** |
| 080-110 | 2.5 | 7.5 | 29.9 |
| 120-130 | 3.1 | 9.3 | 37.3 |
| 140-155 | 3.8 | 11.4 | 45.5 |
| 175-190 | 4.6 | 13.8 | 55.2 |
| 200 | 5.0 | 14.9 | 59.6 |
| 230-285 | 6.7 | 20.1 | 80.3 |
| 310-375 | 7.3 | 22.0 | 88.0 |
* Basiert auf einer Wassergeschwindigkeit von 0,3 m/s in einem geschlossenen Kreislauf und 0,9 m/s in einem offenen Kreislauf.
** Basiert auf einer Wassergeschwindigkeit von 3,6 m/s
Verdampfer-Druckabfallkurve

- 30HXC 080-090/30GX 082
- 30HXC 100/30GX 092-102
- 30HXC 110/30GX 112-122
- 30GX 132
- 30HXC 120-130
- 30HXC 140-155/30GX 152-162
- 30HXC 175-190/30GX 182
- 30HXC 200/30GX 207-227
- 30HXC 230/30GX 247
- 30HXC 260-285/30GX 267
- 30HXC 310/30GX 298
- 30HXC 345-375/30GX 328-358
Kondensator-Druckabfallkurve

- 30HXC 080-090-100-110
- 30HXC 120-130
- 30HXC 140-155
- 30HXC 175-190
- 30HXC 200
- 30HXC 230-260-285
- 30HXC 310-345-375
Durchflussregler
Kühler-Durchflussschalter und Verriegelung der Kaltwasserpumpe
Es ist zwingend erforderlich, einen Kühler-Durchflussschalter zu installieren und auch die Kaltwasserpumpenverriegelung an 30HXC- und 30GX-Geräten anzuschließen. Die Nichtbeachtung dieser Anweisung führt zum Erlöschen der Carrier-Garantie.
Der Kühler-Durchflussschalter-Regler wird werksseitig geliefert und ist an 30HXC- und 30GX-Einheiten verdrahtet.
Befolgen Sie die Installationsanweisungen des Herstellers.
Der Durchflussschalter kann in einem horizontalen Rohr oder einem vertikalen Rohr mit aufwärts gerichtetem Flüssigkeitsfluss montiert werden. Er sollte nicht verwendet werden, wenn der Flüssigkeitsfluss abwärts gerichtet ist.
Montieren Sie den Schalter in einem Rohrbereich, wo auf jeder Seite des Durchflussschalters ein gerader Lauf von mindestens fünf Rohrdurchmessern vorhanden ist. Platzieren Sie ihn nicht neben Ventilen, Bögen oder Öffnungen. Das Paddel darf niemals das Rohr oder eine Einschränkung im Rohr berühren. Schrauben Sie den Durchflussschalter so fest, dass der flache Teil des Paddels rechtwinklig zum Fluss steht. Die Pfeile auf der Abdeckung und am Boden, im Inneren des Gehäuses, müssen in Flussrichtung zeigen. Der Schalter sollte so montiert werden, dass die Klemmen für eine einfache Verdrahtung zugänglich sind.
Klemmen 34 und 35 sind für die Feldinstallation einer Kaltwasserpumpenverriegelung (Hilfskontakt des Kaltwasserpumpenschützes) vorgesehen.
(Rohranschluss: 1" NPT)

Kondensator-Durchflussschalter (30HXC)
Der Kondensator-Durchflussschalter ist ein vor Ort zu installierendes Gerät.
INSTALLATION
Überprüfung der erhaltenen Ausrüstung
- Überprüfen Sie das Gerät auf Beschädigungen oder fehlende Teile. Wenn Schäden festgestellt werden oder die Lieferung unvollständig ist, reichen Sie sofort einen Anspruch beim Versandunternehmen ein.
- Bestätigen Sie, dass das erhaltene Gerät das bestellte ist. Vergleichen Sie die Typenschilddaten mit der Bestellung.
- Bestätigen Sie, dass alle für die Installation vor Ort bestellten Zubehörteile geliefert wurden, vollständig und unbeschädigt sind.
- Lagern Sie die Geräte nicht in einem wetterexponierten Bereich, da empfindliche Steuermechanismen und elektronische Geräte vorhanden sind.
Bewegen und Aufstellen des Geräts
Bewegen
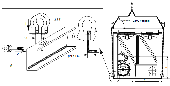
Entfernen Sie die Kufen, Paletten oder Schutzverpackungen erst, wenn das Gerät an seinem endgültigen Standort ist. Bewegen Sie den Kaltwassersatz mit Rohren oder Rollen, oder heben Sie ihn mit Seilen der richtigen Tragfähigkeit an.
(30HXC)
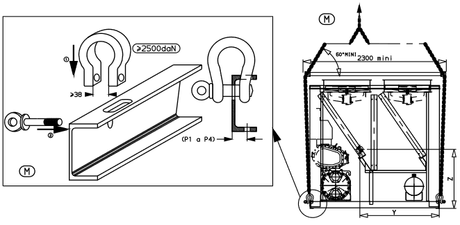
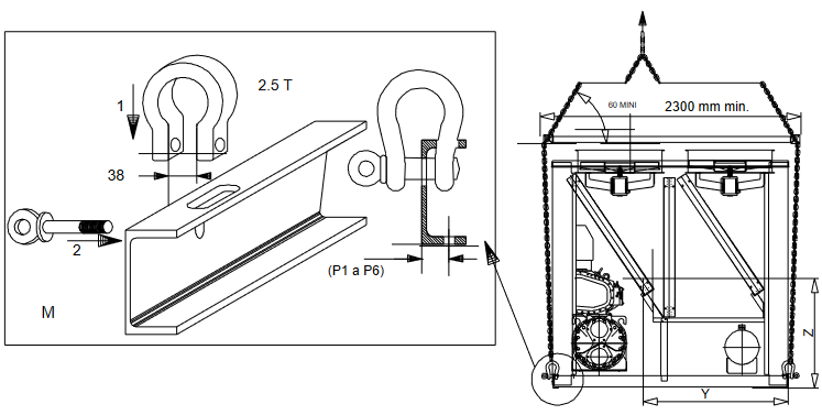
Verwenden Sie Hebebänder nur an den dafür vorgesehenen Hebepunkten, die am Gerät, oben am Kühler-Wärmetauscher, markiert sind. Ein Anschlagen von der Unterseite des Wärmetauschers führt zu einem unsicheren Anheben des Geräts. Es kann zu Personenschäden oder Schäden am Gerät kommen. Befolgen Sie die Hebeanweisungen, die auf der mit dem Gerät gelieferten zertifizierten Maßzeichnung angegeben sind.
Aufstellung
Beachten Sie immer das Kapitel „Abmessungen und Freiräume“, um sicherzustellen, dass ausreichend Platz für alle Anschlüsse und Wartungsarbeiten vorhanden ist. Für die Schwerpunktskoordinaten, die Position der Gerätebefestigungslöcher und die Gewichtsverteilungspunkte siehe die mit dem Gerät gelieferte zertifizierte Maßzeichnung.
Wir empfehlen, diese Kaltwassersätze entweder im Keller oder auf Erdgeschoßebene zu installieren. Soll ein Gerät über dem Erdgeschoß installiert werden, prüfen Sie zuerst, ob die zulässige Bodenbelastung ausreichend ist und der Boden stabil und eben ist. Verstärken und nivellieren Sie gegebenenfalls den Boden.
Wenn der Kaltwassersatz an seinem endgültigen Standort ist, entfernen Sie die Kufen und andere Hilfsmittel, die zum Bewegen verwendet wurden. Nivellieren Sie das Gerät mit einer Wasserwaage und befestigen Sie es mit Bolzen am Boden oder am Sockel. Der Betrieb dieser Geräte kann beeinträchtigt werden, wenn sie nicht eben und nicht sicher an ihren Befestigungen fixiert sind. Verwenden Sie bei Bedarf Isolationspads unter dem Gerät, um die Vibrationsisolation zu unterstützen.
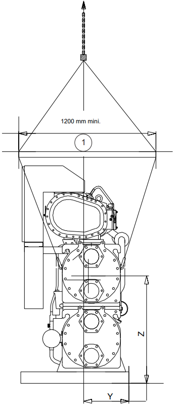
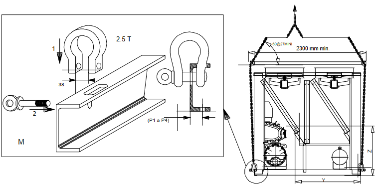
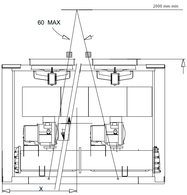
HEBEANWEISUNGEN
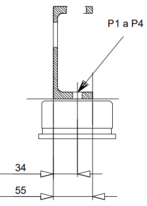
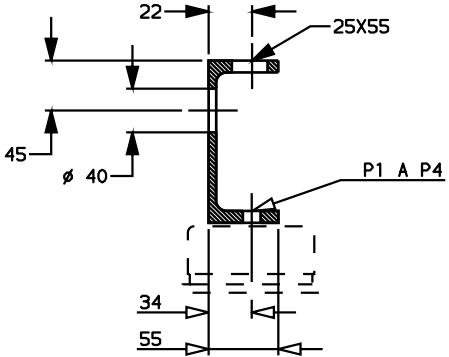
30HXC 080-190
Dieses Diagramm dient nur zur Information. Beachten Sie die „zertifizierten Zeichnungen“.

- AUSSER 30HXC 190
X mm Y mm Z mm 30HXC080
30HXC090
30HXC1001345 402 903 30HXC110 1368 397 935 30HXC120
30HXC130
30HXC140
30HXC1551731 392 879 30HXC175 1703 386 947 30HXC190 1705 398 955


HINWEIS
Wenn alle Hebe- und Positionierungsvorgänge abgeschlossen sind, wird empfohlen, alle Oberflächen an den Hebeösen, an denen Farbe entfernt wurde, nachzubessern.
30HXC 200-285
Dieses Diagramm dient nur zur Information. Beachten Sie die „zertifizierten Zeichnungen“.


30HXC 310-375


| X mm | Y mm | Z mm | |
| 30HXC310 | 2195 | 425 | 1085 |
| 30HXC345 | 2195 | 425 | 1085 |
| 30HXC375 | 2205 | 435 | 1025 |
HINWEIS
Wenn alle Hebe- und Positionierungsvorgänge abgeschlossen sind, wird empfohlen, alle Oberflächen an den Hebeösen, an denen Farbe entfernt wurde, nachzubessern.
30GX 082-162
Dieses Diagramm dient nur zur Information. Beachten Sie die „zertifizierten Zeichnungen“.



| X mm | Y mm | Z mm | PTkg | |
| 30GX082 | 1440 | 1460 | 900 | 3115 |
| 30GX092 | 1440 | 1460 | 900 | 3156 |
| 30GX102 | 1440 | 1460 | 900 | 3170 |
| 30GX112 | 1650 | 1460 | 900 | 3574 |
| 30GX122 | 1650 | 1460 | 900 | 3527 |
| 30GX132 | 1650 | 1460 | 900 | 3634 |
| 30GX152 | 2155 | 1430 | 900 | 3938 |
| 30GX162 | 2155 | 1430 | 900 | 3954 |
30GX 182



| X mm | Y mm | Z mm | PTkg | |
| 30GX182 | 3030 | 1370 | 875 | 4853 |
HINWEIS
Wenn alle Hebe- und Positionierungsvorgänge abgeschlossen sind, wird empfohlen, alle Oberflächen an den Hebeösen, an denen Farbe entfernt wurde, nachzubessern.
30GX 207-267
Dieses Diagramm dient nur zur Information. Beachten Sie die „zertifizierten Zeichnungen“.



| X mm | Y mm | Z mm | PTkg | |
| 30GX207 | 2870 | 1440 | 890 | 5536 |
| 30GX227 | 2870 | 1440 | 890 | 5572 |
| 30GX247 | 3320 | 1430 | 927 | 6131 |
| 30GX267 | 3300 | 1420 | 886 | 6363 |
30GX 298-358



| X mm | Y mm | Z mm | PTkg | |
| 30GX298 | 3630 | 1420 | 890 | 7353 |
| 30GX328 | 4360 | 1455 | 920 | 7840 |
| 30GX358 | 4360 | 1445 | 930 | 8045 |
HINWEIS
Wenn alle Hebe- und Positionierungsvorgänge abgeschlossen sind, wird empfohlen, alle Oberflächen an den Hebeösen, an denen Farbe entfernt wurde, nachzubessern.
Rohrleitungsanschlüsse
Beachten Sie die zertifizierten Maßzeichnungen für die Größen und Positionen aller Wassereinlass- und -auslassanschlüsse. Die Wasserleitungen dürfen keine radialen oder axialen Kräfte auf die Wärmetauscher oder Vibrationen auf das Rohrleitungssystem oder das Gebäude übertragen.
Die Wasserversorgung muss analysiert und bei Bedarf mit geeigneten Filter-, Aufbereitungs-, Steuergeräten, Absperr- und Entlüftungsventilen sowie Kreisläufen ausgestattet werden. Konsultieren Sie entweder einen Spezialisten für Wasseraufbereitung oder entsprechende Fachliteratur zu diesem Thema.
Betriebsvorkehrungen
Der Wasserkreislauf sollte so ausgelegt sein, dass er die geringste Anzahl von Bögen und horizontalen Rohrleitungen auf verschiedenen Ebenen aufweist. Die folgenden grundlegenden Prüfungen sollten durchgeführt werden (siehe auch die Abbildung eines typischen Hydraulik kreislaufs unten).
- Beachten Sie die Wasserein- und -auslässe der Wärmetauscher.
- Installieren Sie manuelle oder automatische Entlüftungsventile an allen Hochpunkten im Wasserkreislauf.
- Verwenden Sie ein Ausdehnungsgefäß oder ein Ausdehnungs-/Überdruckventil, um den Druck im System aufrechtzuerhalten.
- Installieren Sie Wasserthermometer und Manometer sowohl an den eintretenden als auch an den austretenden Wasseranschlüssen nahe am Verdampfer.
- Installieren Sie Ablassventile an allen Tiefpunkten, um den gesamten Kreislauf entleeren zu können. Schließen Sie ein Absperrventil in der Ablassleitung an, bevor Sie den Kaltwassersatz in Betrieb nehmen.
- Installieren Sie Absperrventile und Manometer, nahe am Verdampfer, in den eintretenden und austretenden Wasserleitungen.
- Installieren Sie einen Kühler-Durchflussschalter.
- Verwenden Sie flexible Verbindungen, um die Übertragung von Vibrationen auf das Rohrleitungssystem zu reduzieren.
- Isolieren Sie alle Rohrleitungen nach der Dichtheitsprüfung, um Wärmeverluste zu reduzieren und Kondensation zu verhindern.
- Decken Sie die Isolierung mit einer Dampfsperre ab.
Verdampfer- und Verflüssigeranschlüsse
Verdampfer und Verflüssiger sind vom Typ Mehrrohr-Mantel-und-Rohr mit abnehmbaren Wasserkästen, um die Reinigung der Rohre zu erleichtern.
Ziehen Sie vor dem Herstellen der Wasseranschlüsse die Bolzen in beiden Köpfen mit dem angegebenen geringeren Drehmoment gemäß der beschriebenen Methode fest. Ziehen Sie sie paarweise und in der angegebenen Reihenfolge entsprechend der Bolzengröße (siehe Tabelle) mit einem Drehmomentwert am unteren Ende des angegebenen Bereichs an.
Entfernen Sie den werkseitig gelieferten flachen Flansch vom Wasserkasten, bevor Sie Rohrleitungen an den Flansch schweißen. Wird der Flansch nicht entfernt, können Sensoren und Isolierung beschädigt werden.
HINWEIS
Wir empfehlen, das System zu entleeren und die Rohrleitungen zu trennen, um sicherzustellen, dass die Bolzen der Köpfe, an die die Rohrleitungen angeschlossen sind, korrekt und gleichmäßig angezogen werden.
Frostschutz
Schutz von Verdampfer und wassergekühltem Verflüssiger
Wenn der Kaltwassersatz oder die Wasserleitungen in einem Bereich liegen, in dem die Umgebungstemperatur unter 0 °C fallen kann, wird empfohlen, eine Frostschutzlösung hinzuzufügen, um das Gerät und die Wasserleitungen bis zu einer Temperatur von 8 K unter der niedrigsten Temperatur zu schützen. Verwenden Sie nur Frostschutzlösungen, die für Wärmetauscheranwendungen zugelassen sind. Wenn das System nicht durch eine Frostschutzlösung geschützt ist und während Frostperioden nicht verwendet wird, ist das Entleeren des Kühlers und der Außenleitungen zwingend erforderlich. Schäden durch Gefrieren sind nicht von der Garantie abgedeckt.
Anzugsreihenfolge des Wasserkastens

Legende
- Sequenz 1: 1 2 3 4
Sequenz 2: 5 6 7 8
Sequenz 3: 9 10 11 12 - Anzugsdrehmoment
Bolzengröße M16 - 171 - 210 Nm
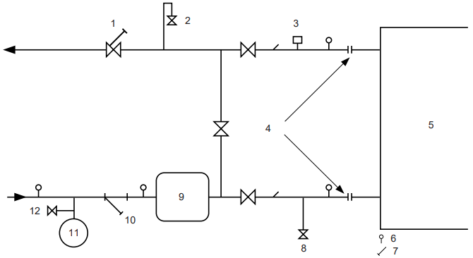
Typischer Hydraulikschaltplan

Legende
- Regelventil
- Entlüfter
- Durchflussschalter
- Flexible Verbindung
- Wärmetauscher
- Druckmessstelle
- Thermostathülse
- Ablass
- Pufferspeicher
- Filter
- Ausdehnungsgefäß
- Füllventil
ELEKTRISCHE EIGENSCHAFTEN
- Die 30HXC 080-190 und 30GX 082-182 verfügen nur über einen Hauptschalter/Trennschalter.
- Die 30HXC 200-375 und 30GX 207-358 verfügen über zwei Hauptschalter/Trennschalter.
- Der Schaltschrank enthält standardmäßig Folgendes:
- Anlasser und Motorschutzvorrichtungen für jeden Kompressor und die Ventilatoren
- Steuerungskomponenten
- Anschlüsse vor Ort:
Alle Netzanschlüsse und Elektroinstallationen müssen gemäß den am Standort geltenden Vorschriften ausgeführt werden. - Die 30HXC und 30GX sind so konzipiert, dass sie die Einhaltung dieser Richtlinien erleichtern. Die Auslegung der elektrischen Ausrüstung für die 30HXC und 30GX berücksichtigt die europäische Norm EN 60204-1 (Sicherheit von Maschinen – elektrische Ausrüstung von Maschinen – Teil 1: Allgemeine Anforderungen).
Die Norm EN 60204-1 ist ein gutes Mittel, um den Anforderungen der Maschinenrichtlinie § 1.5.1 zu entsprechen. Die normative Empfehlung IEC 364 wird allgemein als Erfüllung der Anforderungen der Installationsvorschrift anerkannt.
Anhang B der Norm EN 60204-1 kann zur Beschreibung der elektrischen Eigenschaften verwendet werden, unter denen die Maschinen betrieben werden.
30HXC
- Die Betriebsbedingungen für eine Standard 30HXC sind nachstehend beschrieben:
- Umgebungsbedingungen(1). Die Umgebungsklassifikation ist in der Norm IEC 364 § 3 beschrieben:
- Umgebungstemperaturbereich: + 6°C bis + 40°C, Klassifikation AA4
- Feuchtigkeitsbereich (nicht kondensierend)
50% r.F. bei 40°C
90% r.F. bei 20°C - Höhe - 2000 m(1)
- Für Innenaufstellung
- Vorhandensein von Wasser: Klassifikation AD2(1) (Möglichkeit von Wassertropfen)
- Vorhandensein von Feststoffen: Klassifikation AE2(1) (Vorhandensein von unbedeutenden Partikeln)
- Vorhandensein von korrosiven Substanzen und Verunreinigungen, Klassifikation AF1 (vernachlässigbar)
- Vibration, Schock: Klassifikation AG2, AH2 Kompetenz des Personals: Klassifikation BA4(1) (Personal qualifiziert gemäß IEC 364).
- Umgebungsbedingungen(1). Die Umgebungsklassifikation ist in der Norm IEC 364 § 3 beschrieben:
(1) Der für diese Klassifikation erforderliche Schutzstandard ist IP21B (gemäß dem Referenzdokument IEC 529). Alle 30HXC haben einen Schutzstandard von IP23C und erfüllen daher diese Schutzanforderung.
30GX
- Die Betriebsbedingungen für 30GX sind nachstehend beschrieben:
- Umgebungsbedingungen(2). Die Umgebungsklassifikation ist in der Norm EN 60721 beschrieben:
- Für Außenaufstellung(2)
- Umgebungstemperaturbereich: - 18°C bis + 46°C, Klassifikation 4K3(2)
- Höhe 2000 m(2)
- Vorhandensein von Feststoffen: Klassifikation 4S2 (Vorhandensein von unbedeutenden Partikeln)
- Vorhandensein von korrosiven Substanzen und Verunreinigungen, Klassifikation 4C2 (vernachlässigbar)
- Vibration, Schock: Klassifikation 4M2
- Umgebungsbedingungen(2). Die Umgebungsklassifikation ist in der Norm EN 60721 beschrieben:
Kompetenz des Personals: Klassifikation BA4(2) (Personal qualifiziert gemäß IEC 364).
(2) Der für diese Klassifikation erforderliche Schutzstandard ist IP43BW (gemäß dem Referenzdokument IEC 529). Alle 30GX haben einen Schutzstandard von IP45CW und erfüllen daher diese Schutzanforderung.
30HXC/GX
- Schwankung der Netzfrequenz: ± 2 Hz
- Überstromschutz für die Stromversorgungsleiter wird nicht mit dem Gerät geliefert.
- Der werkseitig installierte Trennschalter/Lasttrennschalter ist ein Trennschalter vom Typ "a". (EN60204-1 § 5.3.2).
HINWEIS: Wenn bestimmte Aspekte einer Installation andere als die oben aufgeführten Eigenschaften (oder hier nicht erwähnte Eigenschaften) erfordern, wenden Sie sich an Ihren Carrier-Vertreter.
Stromversorgung
Die Stromversorgung muss den Angaben auf dem Typenschild des Kaltwassersatzes entsprechen. Die Versorgungsspannung muss innerhalb des in der elektrischen Datentabelle angegebenen Bereichs liegen.
Für Anschlüsse siehe Schaltpläne.
Der Betrieb des Kaltwassersatzes mit einer falschen Versorgungsspannung oder einer übermäßigen Phasenunsymmetrie stellt einen Missbrauch dar, der die Carrier-Garantie ungültig macht. Wenn die Phasenunsymmetrie bei der Spannung 2% oder beim Strom 10% überschreitet, wenden Sie sich sofort an Ihren örtlichen Stromversorger und stellen Sie sicher, dass der Kaltwassersatz erst eingeschaltet wird, wenn Korrekturmaßnahmen ergriffen wurden.
Spannungsphasenunsymmetrie (%):
100 x max. Abweichung von der durchschnittlichen Spannung
Durchschnittliche Spannung
Beispiel:
Bei einer 400 V - 3 Ph - 50 Hz Versorgung wurden die einzelnen Phasenspannungen gemessen:
AB = 406 V; BC = 399; AC = 394 V
| Durchschnittliche Spannung | = (406 + 399 + 394)/3 = 1199/3 |
| = 399.7 d.h. 400 V |
Berechnen Sie die maximale Abweichung vom Durchschnitt von 400 V:
(AB) = 406 - 400 = 6
(BC) = 400 - 399 = 1
(CA) = 400 - 394 = 6

Die maximale Abweichung vom Durchschnitt beträgt 6 V. Die größte prozentuale Abweichung ist:
100 x 6/400 = 1.5 %
Dies ist weniger als die zulässigen 2% und somit akzeptabel.
EMPFOHLENE KABELQUERSCHNITTE
Die Kabeldimensionierung liegt in der Verantwortung des Installateurs und hängt von den Eigenschaften und Vorschriften ab, die für jeden Installationsort gelten. Das Folgende ist nur als Richtlinie zu verstehen und entbindet Carrier in keiner Weise von der Haftung. Nach Abschluss der Kabeldimensionierung, unter Verwendung der zertifizierten Maßzeichnung, muss der Installateur eine einfache Verbindung gewährleisten und alle notwendigen Änderungen vor Ort definieren.
Die standardmäßig vorgesehenen Anschlüsse für die bauseits gelieferten Stromeingangskabel zum allgemeinen Trenn-/Isolierschalter sind für die Anzahl und Art der Kabel ausgelegt, die in der folgenden Tabelle aufgeführt sind.
Die Berechnungen basieren auf dem maximalen Maschinenstrom (siehe elektrische Datentabellen).
Für die Auslegung werden die folgenden standardisierten Installationsmethoden verwendet, gemäß IEC 364, Tabelle 52C:
- Für 30HX-Geräte, die innerhalb des Gebäudes installiert sind: Nr. 13: perforierter horizontaler Kabelkanal, und Nr. 41: geschlossener Kanal.
- Für 30GX-Geräte, die außerhalb des Gebäudes installiert sind: Nr. 17: freiverlegte Luftleitungen, und Nr. 61: Erdkanal mit einem Reduktionsfaktor von 20.
Die Berechnung basiert auf PVC- oder XLPE-isolierten Kabeln mit Kupfer- oder Aluminiumkern. Die maximale Temperatur beträgt 40°C für 30HX-Geräte und 46°C für 30GX-Geräte.
Die gegebene Drahtlänge begrenzt den Spannungsabfall auf < 5%.
| Einheit | Min. (mm2) pro Phase | Aderntyp | L (m) | Max. (mm2) pro Phase | Aderntyp | L (m) |
| 30HX 080 | 1 x 35 | XLPE Cu | 140 | 1 x 120 | PVC Al | 260 |
| 30HX 090 | 1 x 50 | XLPE Cu | 160 | 1 x 120 | PVC Al | 260 |
| 30HX 100 | 1 x 50 | XLPE Cu | 160 | 1 x 95 | XLPE Al | 195 |
| 30HX 110 | 1 x 70 | XLPE Cu | 170 | 1 x 120 | XLPE Al | 205 |
| 30HX 120/130 | 1 x 70 | XLPE Cu | 170 | 1 x 150 | XLPE Al | 210 |
| 30HX 140 | 1 x 95 | XLPE Cu | 180 | 1 x 185 | XLPE Al | 220 |
| 30HX 155 | 1 x 95 | XLPE Cu | 180 | 1 x 240 | XLPE Al | 225 |
| 30HX 175 | 1 x 120 | XLPE Cu | 185 | 1 x 240 | XLPE Al | 225 |
| 30HX 190 | 1 x150 | XLPE Cu | 190 | 2 x 95 | XLPE Al | 195 |
| 30HX 200 ckt A | 1 x 70 | XLPE Cu | 170 | 2 x120 | PVC Al | 325 |
| 30HX 230 ckt A | 1 x 95 | XLPE Cu | 180 | 2 x 120 | PVC Al | 325 |
| 30HX 260 ckt A | 1 x 120 | XLPE Cu | 185 | 1 x 240 | XLPE Al | 225 |
| 30HX 285 ckt A | 1 x 150 | XLPE Cu | 190 | 2 x 150 | XLPE Al | 265 |
| 30HX 200 ckt B | 1 x 35 | XLPE Cu | 140 | 1 x 95 | PVC Al | 250 |
| 30HX 230 ckt B | 1 x 35 | XLPE Cu | 140 | 1 x 120 | PVC Al | 260 |
| 30HX 260 ckt B | 1 x 35 | XLPE Cu | 140 | 1 x 120 | PVC Al | 260 |
| 30HX 285 ckt B | 1 x 50 | XLPE Cu | 160 | 2 x 70 | PVC Al | 285 |
| 30HX 310 ckt A & B | 1 x 95 | XLPE Cu | 180 | 1 x 240 | XLPE Al | 225 |
| 30HX 345 ckt A & B | 1 x 120 | XLPE Cu | 185 | 1 x 240 | XLPE Al | 225 |
| 30HX 375 ckt A & B | 1 x 150 | XLPE Cu | 190 | 2 x 150 | XLPE Al | 265 |
| 30GX 082 | 1 x 95 | XLPE Cu | 190 | 2 x 185 | PVC Al | 420 |
| 30GX 092 | 1 x 120 | XLPE Cu | 195 | 2 x 185 | PVC Al | 420 |
| 30GX 102 | 1 x 120 | XLPE Cu | 195 | 2 x 240 | PVC Al | 450 |
| 30GX 112 | 1 x 150 | XLPE Cu | 200 | 2 x 150 | XLPE Al | 300 |
| 30GX 122 | 1 x 185 | XLPE Cu | 205 | 2 x 185 | XLPE Al | 315 |
| 30GX 132 | 1 x 185 | XLPE Cu | 205 | 2 x 240 | XLPE Al | 330 |
| 30GX 152 | 1 x 240 | XLPE Cu | 205 | 3x 185 | XLPE CU | 430 |
| 30GX 162 | 2 x 95 | XLPE Cu | 190 | 3x 240 | XLPE CU | 440 |
| 30GX 182 | 2 x 120 | XLPE Cu | 200 | 3x 240 | XLPE CU | 440 |
| 30GX 207 ckt A | 1 x 185 | XLPE Cu | 205 | 3x 185 | XLPE Al | 445 |
| 30GX 227 ckt A | 1 x 240 | XLPE Cu | 205 | 3x 240 | XLPE Al | 470 |
| 30GX 247/298/328 ckt A | 2 x 120 | XLPE Cu | 225 | 3x 185 | XLPE CU | 490 |
| 30HX 267/358 ckt A | 2 x 150 | XLPE Cu | 230 | 3x 240 | XLPE CU | 505 |
| 30GX 207/227/247 ckt B | 1 x 95 | XLPE Cu | 190 | 2 x 240 | PVC Al | 560 |
| 30HX 267 ckt B | 1 x 120 | XLPE Cu | 200 | 2 x 185 | XLPE AL | 395 |
| 30GX 298 ckt B | 1 x 185 | XLPE Cu | 205 | 3x 240 | XLPE AL | 470 |
| 30GX 328 ckt B | 2 x 120 | XLPE Cu | 225 | 3x 185 | XLPE CU | 490 |
| 30GX 358 ckt B | 2 x 150 | XLPE Cu | 230 | 3x 240 | XLPE CU | 505 |
Vor dem Anschluss der Hauptstromkabel (L1 - L2 - L3) an den Klemmblock ist es unerlässlich, die korrekte Reihenfolge der 3 Phasen zu überprüfen, bevor Sie mit dem Anschluss am Klemmblock oder dem Haupttrenn-/Isolierschalter fortfahren.
Feldsteuerungsverdrahtung
Beachten Sie die Bedienungsanleitung (IOM) der Steuerung und den mit dem Gerät gelieferten zertifizierten Schaltplan für die Feldsteuerungsverdrahtung der folgenden Funktionen:
- Verriegelung der Verdampferpumpe (obligatorisch)
- Fern-Ein/Aus-Schalter
- Kondensator-Durchflussschalter (bauseitig, nur 30HXC)
- Fern-Heizen/Kühlen-Schalter
- Externer Leistungsgrenzschalter 1
- Ferngesteuerter doppelter Sollwert
- Alarmmeldung pro Stromkreis
- Verdampferpumpensteuerung
- Kondensatorpumpensteuerung (nur 30HXC)
- Ferngesteuerte Sollwertrückstellung oder Rückstellung des Außentemperatursensors (0-10 V)
Empfohlene Kabelquerschnitte für Geräte mit hohen Verflüssigungstemperaturen (400 V - 3 Ph - 50 Hz)
| Gerät, Optionen 150 + 150A 400 V - 3 Ph - 50 Hz | Min. (mm2) pro Phase | Kabeltyp | L (m) | Max. (mm2) pro Phase | Kabeltyp | L (m) |
| 30HXC 080 OPT. 150 | 1 x 50 | XLPE Cu | 150 | 2 x 70 | PVC Al | 230 |
| 30HXC 090 OPT. 150 | 1 x 70 | XLPE Cu | 160 | 2 x 95 | PVC Al | 260 |
| 30HXC 100 OPT. 150 | 1 x 70 | XLPE Cu | 160 | 2 x 95 | PVC Al | 250 |
| 30HXC 110 OPT. 150 | 1 x 95 | XLPE Cu | 170 | 2 x 120 | PVC Al | 265 |
| 30HXC 120 OPT. 150 | 1 x 120 | XLPE Cu | 180 | 2 x 120 | XLPE Al | 205 |
| 30HXC 130 OPT. 150 | 1 x 120 | XLPE Cu | 160 | 2 x 120 | XLPE Al | 210 |
| 30HXC 140 OPT. 150 | 1 x 150 | XLPE Cu | 175 | 2 x 120 | XLPE Al | 205 |
| 30HXC 155 OPT. 150 | 1 x 185 | XLPE Cu | 185 | 2 x 150 | XLPE Al | 215 |
| 30HXC 175 OPT. 150 | 1 x 240 | XLPE Cu | 185 | 2 x 150 | XLPE Al | 210 |
| 30HXC 190 OPT. 150 | 2 x 95 | XLPE Cu | 175 | 2 x 240 | XLPE Al | 220 |
| 30HXC 200 OPT. 150 circ. A | 1 x 120 | XLPE Cu | 170 | 2 x 150 | XLPE Al | 270 |
| 30HXC 230 OPT. 150 circ. A | 1 x 150 | XLPE Cu | 180 | 2 x 185 | XLPE Al | 270 |
| 30HXC 260 OPT. 150 circ. A | 1 x 185 | XLPE Cu | 180 | 2 x 240 | XLPE Al | 295 |
| 30HXC 285 OPT. 150 circ. A | 1 x 240 | XLPE Cu | 170 | 2 x 185 | XLPE Cu | 265 |
| 30HXC 310 OPT. 150 circ. A | 1 x 185 | XLPE Cu | 180 | 2 x 240 | XLPE Al | 300 |
| 30HXC 345 OPT. 150 circ. A | 1 x 185 | XLPE Cu | 170 | 2 x 240 | XLPE Al | 280 |
| 30HXC 375 OPT. 150 circ. A | 1 x 240 | XLPE Cu | 170 | 2 x 185 | XLPE Cu | 265 |
| 30HXC 200 OPT. 150 circ. B | 1 x 35 | XLPE Cu | 125 | 2 x 95 | PVC Al | 320 |
| 30HXC 230 OPT. 150 circ. B | 1 x 50 | XLPE Cu | 140 | 2 x 95 | PVC Al | 310 |
| 30HXC 260 OPT. 150 circ. B | 1 x 50 | XLPE Cu | 140 | 2 x 95 | PVC Al | 310 |
| 30HXC 285 OPT. 150 circ. B | 1 x 70 | XLPE Cu | 160 | 2 x 120 | PVC Al | 325 |
| 30HXC 310 OPT. 150 circ. B | 1 x 150 | XLPE Cu | 180 | 2 x 185 | XLPE Al | 275 |
| 30HXC 345 OPT. 150 circ. B | 1 x 185 | XLPE Cu | 185 | 2 x 240 | XLPE Al | 305 |
| 30HXC 375 OPT. 150 circ. B | 1 x 185 | XLPE Cu | 160 | 2 x 240 | XLPE Al | 280 |
HAUPTSYSTEMKOMPONENTEN UND BETRIEBSDATEN
Getriebe-Doppelschneckenkompressor
- 30HXC- und 30GX-Geräte verwenden 06N Getriebe-Doppelschneckenkompressoren
- 06NA werden bei 30GX-Geräten (luftgekühlte Kondensationsanwendung) verwendet
- 06NW werden bei 30HXC-Geräten (wassergekühlte Kondensationsanwendung) verwendet
- Nennleistungen reichen von 39 bis 80 Tonnen. Je nach Größe des 30HXC- und 30GX-Geräts werden Modelle mit oder ohne Economizer eingesetzt.
Ölfilter
Der 06N Schneckenkompressor verfügt über einen im Kompressorgehäuse integrierten Ölfilter. Dieser Filter ist vor Ort austauschbar.
Kältemittel
Der 06N Schneckenkompressor ist speziell für den Einsatz ausschließlich in R134a-Systemen ausgelegt.
Schmiermittel
Der 06N Schneckenkompressor ist für die Verwendung mit dem folgenden Schmiermittel zugelassen.
CARRIER MATERIAL SPEC PP 47-32
Ölversorgungs-Magnetventil
Ein Ölversorgungs-Magnetventil ist standardmäßig am Kompressor vorhanden, um den Kompressor bei Nichtbetrieb vom Ölfluss zu isolieren.
Das Ölmagnetventil ist vor Ort austauschbar.
Saugleitungs- und Economizer-Siebe
Um die Zuverlässigkeit des Kompressors zu erhöhen, wurde ein Sieb als Standardmerkmal in die Saugleitungs- und Economizer-Einlässe des Kompressors integriert.
Teillastsystem
Der 06N Schneckenkompressor verfügt über ein Teillastsystem, das bei allen Kompressoren Standard ist. Dieses Teillastsystem besteht aus zwei Entlastungsstufen, die die Kompressorleistung verringern, indem teilweise verdichtetes Gas zurück zur Saugleitung geleitet wird.
Verdampfer
30HXC- und 30GX-Kaltwassersätze verwenden einen überfluteten Verdampfer. Das Wasser zirkuliert in den Rohren, und das Kältemittel befindet sich außen im Gehäuse. Ein Behälter dient beiden Kältemittelkreisläufen. Eine mittlere Rohrbodenplatte trennt die beiden Kältemittelkreisläufe. Die Rohre bestehen aus Kupfer mit 3/4" Durchmesser und einer verbesserten Oberfläche innen und außen. Es gibt nur einen Wasserkreislauf, und je nach Größe des Kaltwassersatzes können es zwei oder drei Wasserdurchgänge sein. Ein Flüssigkeitsstandsensor im Kühler sorgt für eine optimierte Durchflussregelung.
Oben am Kühler befinden sich die beiden Saugleitungen, je eine in jedem Kreislauf. Jede ist mit einem Flansch verschweißt, und der Kompressor wird am Flansch montiert.
Verflüssiger und Ölabscheider (30HXC)
30HXC-Kaltwassersätze verwenden einen Behälter, der eine Kombination aus Verflüssiger und Ölabscheider ist. Er ist unter dem Kühler montiert. Das Heißgas verlässt den Kompressor und strömt durch einen externen Schalldämpfer zum Ölabscheider, der den oberen Teil des Behälters bildet. Es tritt oben in den Abscheider ein, wo Öl entfernt wird, und strömt dann zum unteren Teil des Behälters, wo das Gas kondensiert und unterkühlt wird. Ein Behälter dient beiden Kältemittelkreisläufen. Eine mittlere Rohrbodenplatte trennt die beiden Kältemittelkreisläufe. Die Rohre bestehen aus Kupfer mit 3/4" oder 1" Durchmesser und einer verbesserten Oberfläche innen und außen. Es gibt nur einen Wasserkreislauf mit zwei Wasserdurchgängen.
Ölabscheider (30GX)
Bei den luftgekühlten Geräten ist der Ölabscheider ein Druckbehälter, der unter den externen vertikalen Verflüssigerschlangen montiert ist. Das Heißgas tritt oben in den Abscheider ein, wo der Großteil des Öls abgeschieden wird und zum Boden abläuft. Das Gas strömt dann durch ein Drahtgeflechtsieb, wo das restliche Öl abgeschieden wird und zum Boden abläuft.
Elektronisches Expansionsventil (EXD)
Der Mikroprozessor steuert das EXD über das EXV-Steuermodul. Das EXD ist entweder ein EXV oder ein Economizer. Im Inneren beider Geräte befindet sich ein linearer Aktuator-Schrittmotor. Hochdruck-Flüssigkeitskältemittel tritt von unten in das Ventil ein. Eine Reihe kalibrierter Schlitze befindet sich im Düsenkörper. Wenn das Kältemittel die Düse passiert, fällt der Druck ab und das Kältemittel wechselt in einen Zweiphasenzustand (flüssig und dampfförmig). Um den Kältemittelstrom für verschiedene Betriebsbedingungen zu steuern, bewegt sich die Hülse über der Düse auf und ab, wodurch die effektive Durchflussfläche des Expansionsventils verändert wird. Die Hülse wird von einem linearen Schrittmotor bewegt. Der Schrittmotor bewegt sich in Schritten und wird direkt vom Prozessormodul gesteuert. Wenn sich der Schrittmotor dreht, wird die Bewegung durch die Gewindespindel in eine lineare Bewegung übertragen. Durch den Schrittmotor und die Gewindespindeln werden 1500 diskrete Bewegungsschritte erreicht. Die große Anzahl von Schritten und der lange Hub führen zu einer sehr genauen Steuerung des Kältemittelstroms. Jeder Kreislauf verfügt über einen Flüssigkeitsstandsensor, der vertikal oben in das Kühlergehäuse montiert ist. Der Füllstandsensor besteht aus einem kleinen elektrischen Widerstandsheizelement und drei in Reihe geschalteten Thermistoren, die in verschiedenen Höhen im Gehäuse des Brunnens positioniert sind. Das Heizelement ist so ausgelegt, dass die Thermistoren in trockener Luft etwa 93,3°C anzeigen. Wenn der Kältemittelstand im Kühler steigt, ändert sich der Widerstand der nächsten Thermistoren erheblich. Dieser große Widerstandsunterschied ermöglicht es der Steuerung, einen bestimmten Füllstand genau einzuhalten. Der Füllstandsensor überwacht den Kältemittelflüssigkeitsstand im Kühler und sendet diese Informationen an das PSIO-1. Beim ersten Start ist die EXV-Position Null. Danach verfolgt der Mikroprozessor die Ventilposition genau, um diese Informationen als Eingabe für die anderen Steuerfunktionen zu verwenden. Dies geschieht durch Initialisierung der EXV's beim Start. Der Prozessor sendet genügend Schließimpulse an das Ventil, um es von vollständig offen nach vollständig geschlossen zu bewegen, und setzt dann den Positionszähler auf Null zurück. Von diesem Zeitpunkt an, bis zur nächsten Initialisierung, zählt der Prozessor die Gesamtzahl der offenen und geschlossenen Schritte, die er an jedes Ventil gesendet hat.
Economizer
Economizer sind bei den 30HXC 190, 285 und 375 sowie 30GX 182, 267 und 358 installiert.
Der Economizer verbessert sowohl die Kaltwassersatzleistung als auch die Effizienz und sorgt zudem für die Motorkühlung des Kompressors. Im Economizer befinden sich sowohl ein linearer EXV-Schrittmotor als auch ein Schwimmerventil. Das EXV wird vom PIC gesteuert, um den gewünschten Flüssigkeitsstand im Kühler aufrechtzuerhalten (wie bei Kaltwassersätzen ohne Economizer). Das Schwimmerventil hält einen Flüssigkeitsstand am Boden des Economizers aufrecht. Flüssiges Kältemittel wird vom Verflüssiger zum Boden des Economizers geleitet. Wenn das Kältemittel das EXV passiert, wird sein Druck auf ein Zwischenniveau von etwa 500 kPa reduziert. Dieser Druck wird im Economizer-Gehäuse aufrechterhalten. Anschließend strömt das Kältemittel durch das Schwimmerventil, sein Druck wird weiter auf leicht über dem Druck im Kühler reduziert. Die Leistungssteigerung wird erzielt, wenn ein Teil des Kältemittels, das das EXV passiert, zu Dampf entspannt wird und die am Boden des Economizers gehaltene Flüssigkeit weiter unterkühlt. Diese erhöhte Unterkühlung bietet zusätzliche Kapazität. Da hierfür keine zusätzliche Leistung erforderlich ist, verbessert sich auch die Effizienz der Maschine. Der entspannte Dampf steigt zum Economizer auf, wo er zum Kompressor gelangt und bei Bedarf zur Motorkühlung verwendet wird. Nach dem Passieren der Motorwicklungen tritt das Kältemittel an einer Zwischenöffnung im Verdichterkreislauf wieder in den Kreislauf ein.
Ölpumpen
Die 30GX/HXC-Schneckenkaltwassersätze verwenden eine extern montierte Vorlaufölpumpe pro Kreislauf. Diese Pumpe wird als Teil der Startsequenz betrieben.
ACHTUNG:
Die Betriebstemperatur der Spule kann 80°C erreichen. Unter bestimmten temporären Bedingungen (insbesondere beim Start bei niedriger Außentemperatur oder niedriger Verflüssigerkreistemperatur) kann die Ölpumpe reaktiviert werden.
Bei 30GX-Geräten sind die Pumpen an den Basisschienen auf der Ölabscheiderseite des Geräts montiert. Bei 30HXC-Geräten sind die Pumpen an einer Halterung an den Verflüssigern montiert. Wenn ein Kreislauf gestartet werden muss, aktiviert die Steuerung zuerst die Ölpumpe, damit der Kompressor mit ausreichender Schmierung startet. Wenn die Pumpe genügend Öldruck aufgebaut hat, wird dem Kompressor der Start erlaubt. Sobald der Kompressor gestartet ist, wird die Ölpumpe ausgeschaltet. Wenn die Pumpe nicht genügend Öldruck aufbauen konnte, erzeugt die Steuerung einen Alarm.
Motorkühlventile
Die Wicklungstemperaturen des Kompressormotors werden auf den optimalen Sollwert geregelt. Die Steuerung erreicht dies, indem sie das Motorkühl-Magnetventil taktet, um bei Bedarf flüssiges Kältemittel über die Motorwicklungen strömen zu lassen. Bei Geräten, die mit Economizern ausgestattet sind, verlässt Entspannungsdampf den oberen Teil des Economizers und strömt kontinuierlich zu den Motorwicklungen. Das gesamte zur Motorkühlung verwendete Kältemittel tritt über eine mittig im Verdichterkreislauf befindliche Öffnung wieder in die Rotoren ein und wird auf den Austrittsdruck verdichtet.
Sensoren
Die Geräte verwenden Thermistoren (einschließlich zweier Motortemperatur-Thermistoren) sowie zwei Füllstandsthermistoren und Druckmessumformer zur Überwachung und Steuerung des Systembetriebs.
Thermistoren
Verdampfer-Austrittsflüssigkeit
Diese Temperatur wird zur Messung der Austrittsflüssigkeitstemperatur des Verdampfers (Wasser oder Sole) verwendet. Die Temperatur dient zur Regelung der Austrittsflüssigkeitstemperatur und zum Schutz vor Vereisung des Kühlers. Sie befindet sich in der Verdampfer-Fluid-Düse.
Verdampfer-Eintrittsflüssigkeit
Dieser Sensor wird zur Messung der Eintrittsflüssigkeitstemperatur des Verdampfers verwendet. Er befindet sich in der Eintrittsdüse des Verdampfers. Er dient zur automatischen Temperaturkompensation für die Austrittsflüssigkeitstemperaturregelung mit Eintrittsflüssigkeitskompensation.
Heißgastemperatur (Kreisläufe A & B)
Dieser Sensor wird zur Messung der Heißgastemperatur und zur Regelung der Heißgasüberhitzung verwendet. Er befindet sich an der Heißgasleitung jedes Kreislaufs (30HXC) oder oben am Ölabscheider (30GX).
ACHTUNG: Es gibt keine Thermostathülse.
Motortemperatur
Das Kompressorschutzmodul (CPM) überwacht die Motortemperatur. Die Thermistoranschlüsse befinden sich im Kompressor-Anschlusskasten.
Verdampfer-Flüssigkeitsstand (Kreisläufe A & B)
Der Verdampfer-Flüssigkeitsstand-Thermistor wird verwendet, um eine optimierte Durchflussregelung im Verdampfer zu gewährleisten. Er ist oben im Verdampfer installiert.
Verflüssiger-Eintrittsflüssigkeit (30HXC)
Dieser Sensor wird zur Messung der Temperatur der Flüssigkeit verwendet, die in die wassergekühlten Verflüssiger eintritt. Er befindet sich in der gemeinsamen Flüssigkeitsleitung, die in die Verflüssiger eintritt (vor Ort installiert). Bei Wärmepumpen wird er von der Leistungsregelungsroutine verwendet. Bei wassergekühlten Verflüssigern wird er nur zur Überwachung der Verflüssiger-Fluidtemperatur verwendet.
Verflüssiger-Austrittsflüssigkeit (optional bei 30HXC)
Dieser Sensor wird zur Messung der Temperatur der Flüssigkeit verwendet, die die wassergekühlten Verflüssiger verlässt. Er befindet sich in der gemeinsamen Flüssigkeitsleitung, die die Verflüssiger verlässt (vor Ort installiert). Bei Wärmepumpen wird er von der Leistungsregelungsroutine verwendet. Bei wassergekühlten Verflüssigern wird er nur zur Überwachung der Verflüssiger-Fluidtemperatur verwendet.
30GX Lüfteranordnung

GX082/102

GX112/132

GX152/162

GX182

GX207/227

GX247/267

GX298

GX328/358
WARTUNG
Kältemittelbefüllung - Ladung hinzufügen
Diese Geräte sind ausschließlich für die Verwendung mit R-134a ausgelegt.
VERWENDEN SIE KEIN ANDERES Kältemittel in diesen Geräten.
Beim Hinzufügen oder Entfernen von Kältemittel muss jederzeit Wasser durch den Verflüssiger (HX) und den Kühler zirkulieren, um ein Einfrieren zu verhindern. Frostschäden gelten als Missbrauch und können die Carrier-Garantie ungültig machen.
SYSTEM NICHT ÜBERFÜLLEN. Eine Überfüllung führt zu höherem Austrittsdruck mit höherem Kühlflüssigkeitsverbrauch, möglicher Kompressorschaden und höherem Stromverbrauch.
Anzeige von geringer Füllmenge bei einem 30HXC System
HINWEIS
Um einen niedrigen Kältemittelstand bei einem 30HXC zu überprüfen, müssen mehrere Faktoren berücksichtigt werden. Ein blinkendes Flüssigkeitsleitungs-Schauglas ist nicht unbedingt ein Zeichen für eine unzureichende Füllmenge. Es gibt viele Systemzustände, in denen ein blinkendes Schauglas unter normalem Betrieb auftritt. Das 30HXC Drosselorgan ist so konstruiert, dass es unter diesen Bedingungen ordnungsgemäß funktioniert.
- Stellen Sie sicher, dass der Kreislauf unter Volllast läuft. Um zu überprüfen, ob Kreislauf A voll ausgelastet ist, befolgen Sie das im Bedienerhandbuch beschriebene Verfahren.
- Es kann erforderlich sein, die Funktion „Manuelle Steuerung“ zu verwenden, um den Kreislauf in den Volllastzustand zu zwingen. Ist dies der Fall, lesen Sie die Anweisungen zur Verwendung der Funktion „Manuelle Steuerung“ im Bedienerhandbuch.
- Bei Volllastbetrieb des Kreislaufs überprüfen Sie, ob die Austrittstemperatur des Kühlmediums im Bereich von 6°C ± 1,5 liegt.
- Beobachten Sie unter dieser Bedingung das Kältemittel im Flüssigkeitsleitungs-Schauglas. Wenn ein klares Schauglas vorhanden ist und keine Anzeichen von Blasenbildung erkennbar sind, ist der Kreislauf ausreichend gefüllt. Überspringen Sie die restlichen Schritte.
- Wenn das Kältemittel Blasen zu bilden scheint, ist der Kreislauf wahrscheinlich unterfüllt. Überprüfen Sie dies, indem Sie die EXV-Position prüfen (siehe Bedienerhandbuch).
- Wenn die Öffnungsposition des EXD größer als 60 % ist und das Flüssigkeitsleitungs-Schauglas blinkt, ist der Kreislauf unterfüllt. Befolgen Sie das Verfahren zum Hinzufügen von Kältemittel.
Kältemittel in 30HXC-Systeme nachfüllen
- Stellen Sie sicher, dass das Gerät unter Volllast läuft und dass die Austrittstemperatur des Kühlmediums im Bereich von 5,6 – 7,8 °C liegt.
- Überprüfen Sie unter diesen Betriebsbedingungen das Flüssigkeitsleitungs-Schauglas. Wenn ein klares Schauglas vorhanden ist, verfügt das Gerät über eine ausreichende Füllmenge. Wenn das Schauglas blinkt, überprüfen Sie den EXD-Öffnungsgrad in Prozent. Wenn dieser größer als 60 % ist, beginnen Sie mit dem Nachfüllen.
HINWEIS
Ein blinkendes Flüssigkeitsleitungs-Schauglas unter anderen als den oben genannten Betriebsbedingungen ist nicht unbedingt ein Zeichen für einen niedrigen Kältemittelstand.
- Füllen Sie 2,5 kg flüssiges Kältemittel über das Nachfüllventil oben am Verdampfer in den Verdampfer ein.
- Beobachten Sie den EXD-Öffnungsgrad in Prozent. Das EXD sollte sich beim Hinzufügen von Kältemittel schließen. Lassen Sie das Gerät stabilisieren. Wenn der EXD-Öffnungsgrad in Prozent über 60 % bleibt und immer noch Blasen im Schauglas vorhanden sind, fügen Sie weitere 2,5 kg flüssiges Kältemittel hinzu.
- Lassen Sie das Gerät stabilisieren und überprüfen Sie erneut den EXD-Öffnungsgrad in Prozent. Fügen Sie jeweils 2,5 kg flüssiges Kältemittel hinzu und lassen Sie das Gerät stabilisieren, bevor Sie die EXD-Position überprüfen.
- Wenn der EXD-Öffnungsgrad in Prozent im Bereich von 40 - 60 % liegt, überprüfen Sie das Flüssigkeitsleitungs-Schauglas. Fügen Sie langsam ausreichend zusätzliches flüssiges Kältemittel hinzu, um ein klares Schauglas zu gewährleisten. Dies sollte langsam erfolgen, um eine Überfüllung des Geräts zu vermeiden.
- Überprüfen Sie die ausreichende Füllmenge, indem Sie das Gerät weiterhin unter Volllast bei einer Verdampferaustrittstemperatur von 6°C ± 1,5 laufen lassen. Prüfen Sie, dass das Kältemittel im Flüssigkeitsleitungs-Schauglas nicht blasenbildend ist. Der EXD-Öffnungsgrad in Prozent sollte zwischen 40 und 60 % liegen. Die Kühlerfüllstandsanzeige sollte im Bereich von 1,5 - 2,5 liegen.
Anzeige von geringer Füllmenge bei 30GX-Systemen
- Stellen Sie sicher, dass der Kreislauf unter Volllast läuft und dass die Verflüssigungstemperatur 50°C ± 1,5 beträgt. Um zu überprüfen, ob Kreislauf A voll ausgelastet ist, befolgen Sie das Verfahren im Bedienerhandbuch.
- Es kann erforderlich sein, die Funktion „Manuelle Steuerung“ zu verwenden, um den Kreislauf in den Volllastzustand zu zwingen. Ist dies der Fall, lesen Sie die Anweisungen zur Verwendung der Funktion „Manuelle Steuerung“ (Verfahren im Bedienerhandbuch).
- Bei Volllastbetrieb des Kreislaufs überprüfen Sie, ob die Austrittstemperatur des Kühlmediums im Bereich von 6°C ± 1,5 liegt.
- Messen Sie die Lufteintrittstemperatur an den Verflüssigerschlangen. Messen Sie die Flüssigkeitstemperatur nach dem T-Stück, wo die beiden Flüssigkeitsleitungen der Schlangen zusammenlaufen. Die Flüssigkeitstemperatur sollte 8,3°C über der Lufteintrittstemperatur an den Schlangen liegen. Wenn der Unterschied größer ist und das Schauglas blinkt, ist der Kreislauf ungeladen. Fahren Sie mit Schritt 5 fort.
- Füllen Sie 2,5 kg flüssiges Kältemittel über das Nachfüllventil oben am Kühler in den Kühler ein.
- Lassen Sie das System stabilisieren und überprüfen Sie dann die Flüssigkeitstemperatur erneut. Wiederholen Sie Schritt 5 bei Bedarf und lassen Sie das System zwischen jeder Nachfüllung stabilisieren. Fügen Sie die Füllmenge langsam hinzu, wenn das Schauglas beginnt, klar zu werden, um eine Überfüllung zu vermeiden.
Raumtemperatur, Außentemperatur (optional)
Diese Temperaturen werden verwendet, um die Temperatur des Raumes bzw. die Außentemperatur für die Reset-Regelung basierend auf den Reset-Optionen für Außenluft- oder Raumtemperatur zu messen.
Druckaufnehmer
Austrittsdruck (Kreisläufe A & B)
Dieser Eingang wird verwendet, um den Hochdruck jedes Kreislaufs des Geräts zu messen.
Er wird verwendet, um den Druck für den Ersatz des Austrittsdruckmanometers bereitzustellen und den Kopfdruck zu steuern.
Saugedruck (Kreisläufe A & B)
Dieser Eingang wird verwendet, um den Niederdruck des Geräts zu messen. Er wird verwendet, um den Druck für den Ersatz des Saugedruckmanometers bereitzustellen.
Öldruck (jeder Kompressor)
Dieser Eingang wird verwendet, um den Öldruck jedes Kompressors des Geräts zu messen. Er befindet sich am Öldruckanschluss jedes Kompressors.
Economizer-Druck (Kreisläufe A & B)
Dieser Eingang wird verwendet, um die dem Kompressor zugeführte Öldruckdifferenz zu überwachen.
Ölbefüllung - Nachfüllen bei niedrigem Ölstand
Hinzufügen von Ölfüllung zu 30HX/GX Systemen
- Wenn das 30HXC/GX-Gerät wiederholt wegen "Niedrigem Ölstand" abschaltet, kann dies ein Hinweis auf eine unzureichende Ölfüllung sein. Es könnte auch bedeuten, dass Öl aus der Niederdruckseite des Systems zurückgewonnen wird.
- Beginnen Sie damit, das Gerät anderthalb Stunden unter Volllast laufen zu lassen.
- Lassen Sie das Gerät nach 1,5 Stunden Laufzeit neu starten und normal laufen. Wenn die Alarme für "Niedriger Ölstand" bestehen bleiben, hat das Gerät eine niedrige Ölfüllung. Füllen Sie Öl in den Ölabscheider nach, indem Sie das Ölbefüllventil an der Unterseite des Verflüssigers (30HXC) oder an der Unterseite des Ölabscheiders (30GX) verwenden.
Füllen Sie KEIN Öl an einem anderen Ort nach, da dies zu einem fehlerhaften Gerätebetrieb führen kann.
- Stellen Sie sicher, dass das Gerät beim Hinzufügen von Öl nicht läuft, da dies den Ölbefüllvorgang erleichtert. Da das System auch bei Nichtbetrieb unter Druck steht, ist es erforderlich, eine geeignete Pumpe (Hand- oder Elektropumpe) zu verwenden, um Öl in das System zu füllen.
- Füllen Sie mit einer geeigneten Pumpe 2 Liter Polyolesteröl in das System (CARRIER SPEZ: PP47-32) ein. Stellen Sie sicher, dass der Ölstand-Sicherheitsschalter NICHT überbrückt ist, und lassen Sie das Gerät neu starten und normal laufen.
- Bleiben Probleme mit niedrigem Ölstand bestehen, fügen Sie weitere 1 oder 2 Liter Öl hinzu. Wenn es notwendig ist, mehr als 4 Liter Öl in das System zu füllen, wenden Sie sich an die Serviceabteilung Ihres Carrier-Händlers.
Beim Überführen der Kältemittelfüllung in ein Lagergerät kann Öl mitgerissen werden, wenn das Gerät nicht in Betrieb ist. Verwenden Sie zunächst die übertragene Kältemittelmenge wieder. Laden Sie nach dem Ablassen des Öls nur die abgelassene Menge wieder nach (eine überschüssige Ölfüllung kann den korrekten Gerätebetrieb beeinträchtigen).
Wechsel des integrierten Ölfilters
Ein integrierter Ölfilter im 06N-Schraubenkompressor ist so ausgelegt, dass er eine hohe Filtrationsleistung (3 µ) bietet, die für eine lange Lagerlebensdauer erforderlich ist. Da die Sauberkeit des Systems für einen zuverlässigen Systembetrieb entscheidend ist, befindet sich auch ein Vorfilter (7 µ) in der Ölleitung am Ölabscheiderausgang.
Die Ersatzteilnummer für das integrierte Ölfilterelement lautet:
Carrier Teilenummer (einschließlich Filter und O-Ring): 06NA 660016S
Filterwechselplan
Der Filter sollte nach den ersten 500 Betriebsstunden und danach alle 2000 Stunden überprüft werden. Der Filter sollte jederzeit ersetzt werden, wenn die Druckdifferenz über den Filter 2,1 bar überschreitet.
Der Druckabfall über den Filter kann durch Messung des Drucks am Filter-Serviceanschluss und am Öldruckanschluss bestimmt werden. Die Differenz dieser beiden Drücke ist der Druckabfall über den Filter, das Rückschlagventil und das Magnetventil. Der Druckabfall über das Rückschlagventil und das Magnetventil beträgt ca. 0,4 bar, der von den beiden Öldruckmessungen abgezogen werden sollte, um den Öldruckabfall des Filters zu erhalten. Der Öldruckabfall des Filters sollte nach jedem Herunterfahren des Kompressors aufgrund einer Sicherheitsabschaltung bei niedrigem Öldruck überprüft werden.
Verfahren zum Filterwechsel
- Die folgenden Schritte beschreiben das korrekte Verfahren zum Wechsel des integrierten Ölfilters.
- Kompressor abschalten und verriegeln.
- Betätigen Sie das Ölmagnetventil manuell, um den internen Ventilschieber auf seinen Sitz zu drücken.
- Schließen Sie das Ölfilter-Serviceventil. Entlasten Sie den Druck aus dem Filtergehäuse über den Filter-Serviceanschluss.
- Entfernen Sie den Ölfilterstopfen. Entfernen Sie den alten Ölfilter.
- Fetten Sie vor dem Einbau des neuen Ölfilters den O-Ring mit Öl ein. Installieren Sie den Filter und setzen Sie den Stopfen wieder ein.
Bevor Sie das Schmierölsystem schließen, nutzen Sie die Gelegenheit, auch den Vorfilter zu ersetzen. - Nach Abschluss den Filterraum über den Filter-Serviceanschluss evakuieren. Öffnen Sie das Filter-Serviceventil. Entfernen Sie alle Kompressor-Verriegelungsvorrichtungen, der Kompressor ist bereit für die Wiederinbetriebnahme.
Kompressorersatz
Kompressor-Drehrichtungsprüfung
Die korrekte Kompressor-Drehrichtung ist eine der kritischsten Anwendungsüberlegungen. Eine Rückwärtsdrehung, selbst für eine sehr kurze Dauer, beschädigt den Kompressor.
Das Schutzsystem gegen Rückwärtsdrehung muss in der Lage sein, die Drehrichtung zu bestimmen und den Kompressor innerhalb von 300 Millisekunden zu stoppen. Eine Rückwärtsdrehung tritt am wahrscheinlichsten auf, wenn die Verkabelung zu den Kompressorklemmen unterbrochen wird.
Um die Möglichkeit einer Rückwärtsdrehung zu minimieren, muss das folgende Verfahren angewendet werden. Verdrahten Sie die Stromkabel an den Kompressorklemmenstift wie ursprünglich vorgesehen neu.
Für den Kompressorersatz ist ein Niederdruckschalter im Lieferumfang des Kompressors enthalten. Dieser Niederdruckschalter sollte vorübergehend als feste Sicherheitseinrichtung am Hochdruckteil des Kompressors installiert werden. Der Zweck dieses Schalters ist es, den Kompressor vor Verdrahtungsfehlern am Kompressorklemmenstift zu schützen. Der elektrische Kontakt des Schalters würde in Reihe mit dem Hochdruckschalter verdrahtet. Der Schalter bleibt so lange installiert, bis der Kompressor gestartet und die Drehrichtung überprüft wurde; zu diesem Zeitpunkt wird der Schalter entfernt.
Der für die Erkennung der Rückwärtsdrehung ausgewählte Schalter ist die Carrier-Teilenummer HK01CB001. Er ist als Teil des „Kompressor-Installationspakets“ (Teilenummer 06NA 660 013) erhältlich. Dieser Schalter öffnet die Kontakte, wenn der Druck unter 50 mm Vakuum fällt. Der Schalter ist ein manueller Reset-Typ, der zurückgesetzt werden kann, nachdem der Druck wieder über 70 kPa gestiegen ist. Es ist entscheidend, dass der Schalter ein manueller Reset-Typ ist, um zu verhindern, dass der Kompressor im Rückwärtsgang kurzschließt.
FEHLERBEHEBUNG
Befolgen Sie die nachstehenden Schritte, um EXD-/Economizer-Probleme zu diagnostizieren und zu beheben.
Überprüfen Sie bei 30HXC/GX-Geräten mit Economizern, ob das Ventil für das Blasenrohr (Boden des Economizers) geöffnet ist. Überprüfen Sie zuerst den Betrieb des EXD-Motors (siehe Verfahren im Bedienerhandbuch). Sie sollten die Bewegung des Aktuators spüren können, indem Sie Ihre Hand auf den EXD- oder Economizer-Körper legen (der Aktuator befindet sich etwa auf halber bis zwei Drittel der Höhe von der Unterseite des Economizer-Gehäuses). Sie sollten ein hartes Klopfen vom Aktuator spüren, wenn er das obere Ende seines Hubs erreicht (bei relativ ruhiger Umgebung hörbar). Der Aktuator sollte klopfen, wenn er das untere Ende seines Hubs erreicht. Falls angenommen wird, dass das Ventil nicht ordnungsgemäß funktioniert, wenden Sie sich an Ihren Carrier-Service für weitere Überprüfungen bezüglich:
- Ausgangssignale am EXD-Modul
- Kabelverbindungen (Durchgang und fester Anschluss an allen Stiftklemmen)
- Widerstand der EXD-Motorwicklungen.


Zulassung des Umweltmanagementsystems
Bestell-Nr.: 13173-76, 03 1999 - Ersetzt Nr.: 13173-76, März 1998
Der Hersteller behält sich das Recht vor, Produktspezifikationen ohne vorherige Ankündigung zu ändern.
Hersteller: Carrier s.a., Montluel, Frankreich.
Gedruckt in den Niederlanden auf chlorfreiem Papier.

Anleitung herunterladen
Hier können Sie die vollständige PDF-Version des Handbuchs herunterladen. Sie kann zusätzliche Sicherheitsanweisungen, Garantieinformationen, FCC-Regeln usw. enthalten.
Carrier 30HXC/30GX Schraubenkompressor Handbuch herunterladen