Manual del compresor de tornillo Carrier 30HXC/30GX
- 1 INTRODUCCIÓN
- 2 CONSIDERACIONES DE SEGURIDAD
- 3 DIMENSIONES, HOLGURAS, DISTRIBUCIÓN DEL PESO
- 4 DATOS FÍSICOS 30HXC
- 5 DATOS ELÉCTRICOS 30HXC
- 6 DATOS ELÉCTRICOS PARA UNIDADES CON ALTAS TEMPERATURAS DE CONDENSACIÓN
- 7 DATOS FÍSICOS 30GX
- 8 DATOS ELÉCTRICOS 30GX
-
9
DATOS DE LA APLICACIÓN
- 9.1 Rango de operación de la unidad
- 9.2 Caudal mínimo de agua enfriada
- 9.3 Caudal máximo de agua enfriada
- 9.4 Evaporador de caudal variable
- 9.5 Volumen mínimo de agua del sistema
- 9.6 Caudal del enfriador (l/s)
- 9.7 Caudal del condensador (l/s)
- 9.8 Curva de caída de presión del evaporador
- 9.9 Curva de caída de presión del condensador
- 9.10 Controladores de flujo
- 10 INSTALACIÓN
- 11 INSTRUCCIONES DE ELEVACIÓN
- 12 CARACTERÍSTICAS ELÉCTRICAS
- 13 SECCIONES DE CABLE RECOMENDADAS
-
14
COMPONENTES PRINCIPALES DEL SISTEMA Y DATOS DE OPERACIÓN
- 14.1 Compresor de doble tornillo con engranajes
- 14.2 Evaporador
- 14.3 Condensador y separador de aceite (30HXC)
- 14.4 Separador de aceite (30GX)
- 14.5 Dispositivo de expansión electrónico (EXD)
- 14.6 Economizador
- 14.7 Bombas de aceite
- 14.8 Válvulas de refrigeración del motor
- 14.9 Sensores
- 14.10 Termistores
- 14.11 Disposición de los ventiladores 30GX
- 15 MANTENIMIENTO
- 16 Resolución de problemas
- 17 Descargar manual
- 18 En otros idiomas

INTRODUCCIÓN
Antes de la puesta en marcha inicial de las unidades 30HXC y 30GX, las personas involucradas en la puesta en marcha, operación y mantenimiento deben estar completamente familiarizadas con estas instrucciones y otros datos de trabajo necesarios. Este libro proporciona una visión general para que pueda familiarizarse con el sistema de control antes de realizar los procedimientos de puesta en marcha. Los procedimientos en este manual están organizados en la secuencia requerida para la correcta puesta en marcha y operación de la máquina.
CONSIDERACIONES DE SEGURIDAD
Los enfriadores de líquido 30HXC y 30GX están diseñados para proporcionar un servicio seguro y confiable cuando se operan dentro de las especificaciones de diseño. Al operar este equipo, use el buen juicio y las precauciones de seguridad para evitar daños al equipo y la propiedad o lesiones al personal.
Asegúrese de comprender y seguir los procedimientos y las precauciones de seguridad contenidas en las instrucciones de la máquina, así como las que se enumeran en esta guía.
NO VENTILE las válvulas de alivio de refrigerante dentro de un edificio. La salida de la válvula de alivio debe ventilarse al exterior. La acumulación de refrigerante en un espacio cerrado puede desplazar el oxígeno y causar asfixia o explosiones.
PROPORCIONE ventilación adecuada, especialmente para espacios cerrados y de baja altura. La inhalación de altas concentraciones de vapor es dañina y puede causar irregularidades cardíacas, pérdida del conocimiento o la muerte. El vapor es más pesado que el aire y reduce la cantidad de oxígeno disponible para respirar. El producto causa irritación en los ojos y la piel. Los productos de descomposición son peligrosos.
NO USE OXÍGENO para purgar las líneas o para presurizar una máquina para ningún propósito. El gas de oxígeno reacciona violentamente con el aceite, la grasa y otras sustancias comunes.
NUNCA EXCEDA las presiones de prueba especificadas, VERIFIQUE la presión de prueba permitida revisando la literatura de instrucciones y las presiones de diseño en la placa de identificación del equipo.
NO USE aire para la prueba de fugas. Use solo refrigerante o nitrógeno seco.
NO CIERRE CON VÁLVULA ningún dispositivo de seguridad.
ASEGÚRESE de que todos los dispositivos de alivio de presión estén instalados correctamente antes de operar cualquier máquina.
NO SUELDE NI CORTE CON LLAMA ninguna línea o recipiente de refrigerante hasta que todo el refrigerante (líquido y vapor) haya sido retirado del enfriador. Los rastros de vapor deben ser desplazados con nitrógeno de aire seco y el área de trabajo debe estar bien ventilada. El refrigerante en contacto con una llama abierta produce gases tóxicos.
NO trabaje en equipos energizados a menos que sea un electricista capacitado.
NO TRABAJE EN componentes eléctricos, incluidos paneles de control, interruptores, relés, etc., hasta que esté seguro de que TODA LA ENERGÍA ESTÁ APAGADA y que el voltaje residual pueda filtrarse de los capacitores o componentes de estado sólido.
BLOQUEE ABIERTOS Y ETIQUETE los circuitos eléctricos durante el servicio. SI EL TRABAJO SE INTERRUMPE, verifique que todos los circuitos estén desenergizados antes de reanudar el trabajo.
NO sifonee refrigerante.
EVITE DERRAMAR refrigerante líquido sobre la piel o que entre en los ojos. USE GAFAS DE SEGURIDAD. Lave cualquier derrame de la piel con agua y jabón. Si el refrigerante líquido entra en los ojos,
LAVE INMEDIATAMENTE LOS OJOS con agua y consulte a un médico.
NUNCA APLIQUE una llama abierta o vapor vivo al recipiente de refrigerante. Puede resultar una sobrepresión peligrosa. Si es necesario calentar el refrigerante, use solo agua tibia.
NO REUTILICE cilindros desechables (no retornables) ni intente rellenarlos. Es PELIGROSO E ILEGAL. Cuando los cilindros estén vacíos, evacue la presión de gas restante, afloje el collar y desenrosque y deseche el vástago de la válvula. NO INCINERE.
VERIFIQUE EL TIPO DE REFRIGERANTE antes de agregar refrigerante a la máquina. La introducción del refrigerante incorrecto puede causar daños o mal funcionamiento a esta máquina.
NO INTENTE QUITAR accesorios, componentes, etc., mientras la máquina está bajo presión o mientras la máquina está funcionando. Asegúrese de que la presión esté a 0 kPa antes de romper la conexión del refrigerante.
INSPECCIONE CUIDADOSAMENTE todos los dispositivos de alivio, AL MENOS UNA VEZ AL AÑO. Si la máquina funciona en una atmósfera corrosiva, inspeccione los dispositivos a intervalos más frecuentes.
NO INTENTE REPARAR O REACONDICIONAR ningún dispositivo de alivio cuando se encuentre corrosión o acumulación de material extraño (óxido, suciedad, escamas, etc.) dentro del cuerpo o mecanismo de la válvula. Reemplace el dispositivo.
NO instale dispositivos de alivio en serie o al revés.
NO Pise las líneas de refrigerante. Las líneas rotas pueden azotar y liberar refrigerante, causando lesiones personales.
NO se suba a una máquina. Use plataforma o andamios.
USE EQUIPO MECÁNICO (grúa, polipasto, etc.) para levantar o mover componentes pesados. Incluso si los componentes son livianos, use equipo mecánico cuando exista el riesgo de resbalar o perder el equilibrio.
TENGA EN CUENTA que ciertos arreglos de arranque automático PUEDEN ACTIVAR EL VENTILADOR DE LA TORRE O LAS BOMBAS. Abra el desconectador delante de los ventiladores de la torre o las bombas.
USE solo piezas de reparación o reemplazo que cumplan con los requisitos del código del equipo original.
NO VENTILE NI DRENE cajas de agua que contengan salmueras industriales sin el permiso de un organismo competente.
NO AFLOJE los pernos de la caja de agua hasta que la caja de agua se haya drenado por completo.
NO AFLOJE la tuerca de un prensaestopas antes de verificar que la tuerca tenga un enganche de rosca positivo.
INSPECCIONE PERIÓDICAMENTE todas las válvulas, accesorios y tuberías en busca de corrosión, óxido, fugas o daños.
PROPORCIONE UNA conexión de DRENAJE en la línea de ventilación cerca de cada dispositivo de alivio de presión para evitar la acumulación de condensado o agua de lluvia.
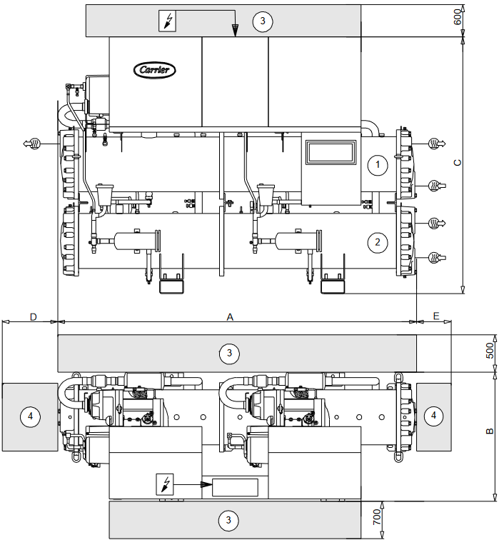
DIMENSIONES, HOLGURAS, DISTRIBUCIÓN DEL PESO
30HXC 080-190
30HXC080
30HXC090
30HXC100
30HXC110

- Evaporador
- Condensador
- Holguras requeridas para la operación y el mantenimiento
- Holguras requeridas para la extracción del tubo del intercambiador de calor. Las holguras D y E pueden estar en el lado izquierdo o en el lado derecho.
Entrada de agua
Salida de agua
Suministro de energía
kg: peso operativo total
| A mm | B mm | C mm | D mm | E mm | kg | |
| 30HXC080 30HXC090 30HXC100 |
2705 | 950 | 1850 | 2360 | 1000 | 2447 2462 2504 |
| 30HXC110 | 2705 | 950 | 1900 | 2360 | 1000 | 2650 |
| 30HXC120 30HXC130 30HXC140 30HXC155 |
3535 | 950 | 1875 | 3220 | 1000 | 2846 2861 2956 2971 |
| 30HXC175 30HXC190 |
3550 | 950 | 2000 | 3220 | 1000 | 3283 3438 |
NOTA: Consulte los planos dimensionales certificados suministrados con la unidad, al diseñar una instalación.
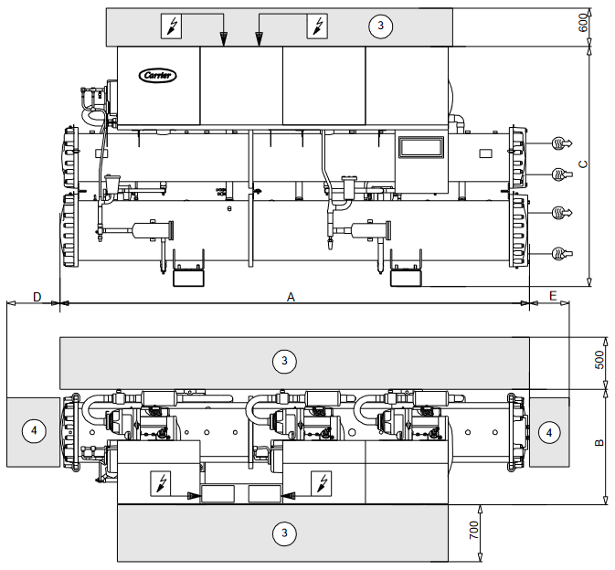
30HXC 200-375

- Evaporador
- Condensador
- Holguras requeridas para la operación y el mantenimiento
- Holguras requeridas para la extracción del tubo del intercambiador de calor. Las holguras D y E pueden estar en el lado izquierdo o en el lado derecho.
Entrada de agua
Salida de agua
Suministro de energía
kg: peso operativo total
| A mm | B mm | C mm | D mm | E mm | kg | |
| 30HXC200 | 3975 | 980 | 2035 | 3620 | 1000 | 4090 |
| 30HXC230 30HXC260 30HXC285 |
3995 | 980 | 2116 | 3620 | 1000 | 4705 4815 4985 |
| 30HXC310 30HXC345 30HXC375 |
4490 | 980 | 2163 | 4120 | 1000 | 5760 5870 6105 |
NOTA: Consulte los planos dimensionales certificados suministrados con la unidad, al diseñar una instalación.
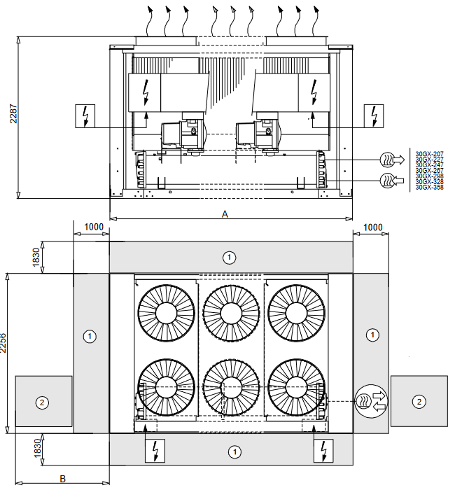
30GX 082-182
30GX-082
30GX-092
30GX-102
30GX-112
30GX-122
30GX-132
30GX-152
30GX-162
30GX-182


- Holguras requeridas para la operación y el mantenimiento
- Holguras requeridas para la extracción del tubo del intercambiador de calor. Las holguras pueden estar en el lado izquierdo o en el lado derecho.
Entrada de agua
Salida de agua
Suministro de energía
Salida de aire: no obstruir
kg: peso operativo total
| A mm | B mm | kg | |
| 30GX082 30GX092 30GX102 |
2970 | 2215 | 3116 3157 3172 |
| 30GX112 30GX122 30GX132 |
3427 | 2045 | 3515 3531 3633 |
| 30GX152 30GX162 |
4342 | 2835 | 3920 3936 |
| 30GX182 | 5996 | 1820 | 4853 |
Instalación de enfriadores múltiples


Notas:
- La unidad debe tener holguras para el flujo de aire de la siguiente manera:
Parte superior: no restringir de ninguna manera - En el caso de enfriadores múltiples (hasta cuatro unidades), la holgura respectiva entre ellos debe aumentarse de 1830 a 2000 mm para el requisito de espacio lateral.
- Se requieren holguras para la extracción del tubo del enfriador.
NOTA: Consulte los planos dimensionales certificados suministrados con la unidad, al diseñar una instalación.
30GX 207-358
30GX-207
30GX-227
30GX-247
30GX-267
30GX-298
30GX-328
30GX-358

- Holguras requeridas para la operación y el mantenimiento
- Holguras requeridas para la extracción del tubo del intercambiador de calor. Las holguras pueden estar en el lado izquierdo o en el lado derecho.
Entrada de agua
Salida de agua
Suministro de energía
Salida de aire: no obstruir
kg: peso operativo total
| A mm | B mm | kg | |
| 30GX207 30GX227 |
5996 | 2895 | 5540 5570 |
| 30GX247 30GX267 |
6911 | 2470 | 6134 6365 |
| 30GX298 | 7826 | 2220 | 7354 |
| 30GX328 30GX358 |
8741 | 1250 | 7918 8124 |
Instalación de enfriadores múltiples


Notas:
- La unidad debe tener holguras para el flujo de aire de la siguiente manera:
Parte superior: no restringir de ninguna manera - En el caso de enfriadores múltiples (hasta cuatro unidades), la holgura respectiva entre ellos debe aumentarse de 1830 a 2000 mm para el requisito de espacio lateral.
- Se requieren holguras para la extracción del tubo del enfriador.
NOTA: Consulte los planos dimensionales certificados suministrados con la unidad, al diseñar una instalación.
DATOS FÍSICOS 30HXC
| 30HXC | 080 | 090 | 100 | 110 | 120 | 130 | 140 | 155 | 175 | 190 | 200 | 230 | 260 | 285 | 310 | 345 | 375 | |
| Capacidad neta de refrigeración | kW | 292 | 321 | 352 | 389 | 426 | 464 | 514 | 550 | 607 | 663 | 716 | 822 | 918 | 996 | 1119 | 1222 | 1326 |
| Peso operativo | kg | 2447 | 2462 | 2504 | 2650 | 2846 | 2861 | 2956 | 2971 | 3283 | 3438 | 4090 | 4705 | 4815 | 4985 | 5760 | 5870 | 6105 |
| Refrigerante Circuito A/B |
HFC-134a | |||||||||||||||||
| kg | 39/36 | 39/36 | 37/32 | 38/38 | 57/55 | 59/50 | 56/50 | 59/52 | 58/61 | 60/70 | 110/58 | 118/63 | 120/75 | 120/75 | 108/110 | 110/110 | 110/120 | |
| Aceite Circuito A/B |
Aceite de polioléster CARRIER SPEC: PP 47-32 | |||||||||||||||||
| l | 15/15 | 15/15 | 15/15 | 15/15 | 15/15 | 15/15 | 15/15 | 15/15 | 15/15 | 15/15 | 30/15 | 30/15 | 30/15 | 30/15 | 30/30 | 30/30 | 30/30 | |
| Compresores | Tornillo doble hermético Power3 | |||||||||||||||||
| Circ. A, tamaño nominal por compresor** | 39 | 46 | 46 | 56 | 56 | 66 | 80 | 80 | 80 | 80+ | 66/56 | 80/56 | 80/80 | 80+/80+ | 80/66 | 80/80 | 80+/80+ | |
| Circ. B, tamaño nominal por compresor** | 39 | 39 | 46 | 46 | 56 | 56 | 56 | 66 | 80 | 80+ | 66 | 80 | 80 | 80+ | 80/66 | 80/80 | 80+/80+ | |
| Tipo de control | Control PRO-DIALOG Plus | |||||||||||||||||
| Número de pasos de capacidad | 6 | 6 | 6 | 6 | 6 | 6 | 6 | 6 | 6 | 6 | 8 | 8 | 8 | 8 | 10 | 10 | 10 | |
| Capacidad mínima | % | 19 | 19 | 21 | 19 | 21 | 19 | 17 | 19 | 21 | 21 | 14 | 14 | 14 | 14 | 10 | 10 | 10 |
| Evaporador | Tipo de carcasa y tubo, con tubos de cobre con aletas internas | |||||||||||||||||
| Volumen neto de agua | l | 65 | 65 | 73 | 87 | 81 | 81 | 91 | 91 | 109 | 109 | 140 | 165 | 181 | 181 | 203 | 229 | 229 |
| Conexiones de agua | Brida plana suministrada de fábrica, para ser soldada en el sitio | |||||||||||||||||
| Entrada y salida | in. | 4 | 4 | 4 | 5 | 5 | 5 | 5 | 5 | 5 | 5 | 6 | 6 | 6 | 6 | 8 | 8 | 8 |
| Drenaje y ventilación (NPT) | in. | 3/8 | 3/8 | 3/8 | 3/8 | 3/8 | 3/8 | 3/8 | 3/8 | 3/8 | 3/8 | 3/8 | 3/8 | 3/8 | 3/8 | 3/8 | 3/8 | 3/8 |
| Max. presión de operación del lado del agua | kPa | 1000 | 1000 | 1000 | 1000 | 1000 | 1000 | 1000 | 1000 | 1000 | 1000 | 1000 | 1000 | 1000 | 1000 | 1000 | 1000 | 1000 |
| Condensadores | Tipo de carcasa y tubo, con tubos de cobre con aletas internas | |||||||||||||||||
| Volumen neto de agua | l | 58 | 58 | 58 | 58 | 92 | 92 | 110 | 110 | 132 | 132 | 162 | 208 | 208 | 208 | 251 | 251 | 251 |
| Conexiones de agua | Brida plana suministrada de fábrica, para ser soldada en el sitio | |||||||||||||||||
| Entrada y salida | in. | 5 | 5 | 5 | 5 | 5 | 5 | 5 | 5 | 6 | 6 | 6 | 6 | 6 | 6 | 8 | 8 | 8 |
| Drenaje y ventilación (NPT) | in. | 3/8 | 3/8 | 3/8 | 3/8 | 3/8 | 3/8 | 3/8 | 3/8 | 3/8 | 3/8 | 3/8 | 3/8 | 3/8 | 3/8 | 3/8 | 3/8 | 3/8 |
| Max. presión de operación del lado del agua | kPa | 1000 | 1000 | 1000 | 1000 | 1000 | 1000 | 1000 | 1000 | 1000 | 1000 | 1000 | 1000 | 1000 | 1000 | 1000 | 1000 | 1000 |
* Condiciones Eurovent estandarizadas: temperaturas del agua de entrada/salida del evaporador = 12°C/7°C, temperaturas del agua de entrada/salida del condensador = 30°C/35°C Capacidad neta de refrigeración: Capacidad bruta de refrigeración menos el calor de la bomba de agua contra la caída de presión interna del evaporador. ** El tamaño del compresor corresponde a la capacidad nominal en toneladas (1 tonelada = 3.517 kW).
DATOS ELÉCTRICOS 30HXC
| 30HXC | 080 | 090 | 100 | 110 | 120 | 130 | 140 | 155 | 175 | 190 | 200 | 230 | 260 | 285 | 310 | 345 | 375 | |
| Circuito de alimentación | ||||||||||||||||||
| Alimentación nominal* | V-ph-Hz | 400-3-50 | ||||||||||||||||
| Rango de voltaje | V | 360-440 | ||||||||||||||||
| Suministro del circuito de control | El circuito de control se alimenta a través del transformador instalado de fábrica | |||||||||||||||||
| Entrada de energía nominal* | kW | 59 | 67 | 74 | 83 | 88 | 99 | 112 | 123 | 135 | 146 | 156 | 179 | 201 | 219 | 245 | 274 | 298 |
| Corriente nominal consumida* | A | 98 | 111 | 124 | 139 | 148 | 166 | 186 | 204 | 226 | 242 | 259 | 291 | 335 | 367 | 408 | 456 | 498 |
| Máx. entrada de energía** | kW | 76 | 83 | 91 | 101 | 111 | 121 | 135 | 145 | 158 | 181 | 187 | 214 | 237 | 272 | 290 | 316 | 362 |
| Circuito A | kW | - | - | - | - | - | - | - | - | - | - | 121 | 135 | 158 | 181 | 145 | 158 | 181 |
| Circuito B | kW | - | - | - | - | - | - | - | - | - | - | 66 | 79 | 79 | 91 | 145 | 158 | 181 |
| Coseno phi, unidad a plena carga | 0.87 | 0.87 | 0.87 | 0.87 | 0.87 | 0.87 | 0.87 | 0.87 | 0.87 | 0.87 | 0.87 | 0.87 | 0.87 | 0.87 | 0.87 | 0.87 | 0.87 | |
| Máx. corriente consumida (Un - 10%)*** | A | 138 | 152 | 166 | 184 | 202 | 221 | 245 | 264 | 288 | 330 | 341 | 389 | 432 | 495 | 528 | 576 | 660 |
| Circuito A | A | - | - | - | - | - | - | - | - | - | - | 221 | 245 | 288 | 330 | 264 | 288 | 330 |
| Circuito B | A | - | - | - | - | - | - | - | - | - | - | 120 | 144 | 144 | 165 | 264 | 288 | 330 |
| Corriente máxima consumida (Un)*** | A | 125 | 138 | 151 | 167 | 184 | 201 | 223 | 240 | 262 | 300 | 310 | 354 | 393 | 450 | 480 | 524 | 600 |
| Circuito A | A | - | - | - | - | - | - | - | - | - | - | 201 | 223 | 262 | 300 | 240 | 262 | 300 |
| Circuito B | A | - | - | - | - | - | - | - | - | - | - | 109 | 131 | 131 | 150 | 240 | 262 | 300 |
| Máx. corriente de arranque, unidad estándar (Un)**** | A | 172 | 197 | 209 | 235 | 252 | 283 | 318 | 335 | 357 | 420 | 806 | 938 | 977 | 1156 | 1064 | 1108 | 1306 |
| Circuito A | A | - | - | - | - | - | - | - | - | - | - | 697 | 807 | 846 | 1006 | 824 | 846 | 1006 |
| Circuito B | A | - | - | - | - | - | - | - | - | - | - | 605 | 715 | 715 | 856 | 824 | 846 | 1006 |
| Máx. corriente de arranque/relación de consumo máximo de corriente, unidad | 1.37 | 1.42 | 1.39 | 1.41 | 1.37 | 1.41 | 1.43 | 1.40 | 1.36 | 1.40 | 2.60 | 2.65 | 2.49 | 2.57 | 2.22 | 2.12 | 2.18 | |
| Máx. corriente de arranque/relación de consumo máximo de corriente, circuito A | - | - | - | - | - | - | - | - | - | - | 3.47 | 3.62 | 3.23 | 3.35 | 3.43 | 3.23 | 3.35 | |
| Máx. corriente de arranque/relación de consumo máximo de corriente, circuito B | - | - | - | - | - | - | - | - | - | - | 5.55 | 5.46 | 5.46 | 5.71 | 3.43 | 3.23 | 3.35 | |
| Máx. corriente de arranque - arranque de corriente reducida (Un) **** | A | std. | std. | std. | std. | std. | std. | std. | std. | std. | std. | 601 | 643 | 682 | 760 | 769 | 813 | 910 |
| Circuito A | A | std. | std. | std. | std. | std. | std. | std. | std. | std. | std. | 492 | 512 | 551 | 610 | 529 | 551 | 610 |
| Circuito B | A | std. | std. | std. | std. | std. | std. | std. | std. | std. | std. | 330 | 370 | 370 | 385 | 529 | 551 | 610 |
| Máx.corriente de arranque - inicio de corr. reducida/ relación de consumo máximo de corriente, unidad | std. | std. | std. | std. | std. | std. | std. | std. | std. | std. | 1.94 | 1.82 | 1.74 | 1.69 | 1.60 | 1.55 | 1.52 | |
| Circuito A | std. | std. | std. | std. | std. | std. | std. | std. | std. | std. | 2.45 | 2.30 | 2.10 | 2.03 | 2.20 | 2.10 | 2.03 | |
| Circuito B | std. | std. | std. | std. | std. | std. | std. | std. | std. | std. | 3.03 | 2.83 | 2.83 | 2.57 | 2.20 | 2.10 | 2.03 | |
| Corriente de mantenimiento de cortocircuito trifásica | kA | 25 | 25 | 25 | 25 | 25 | 25 | 25 | 25 | 25 | 25 | N/A | N/A | N/A | N/A | N/A | N/A | N/A |
| Circuito A | kA | - | - | - | - | - | - | - | - | - | - | 25 | 25 | 25 | 25 | 25 | 25 | 25 |
| Circuito B | kA | - | - | - | - | - | - | - | - | - | - | 15 | 15 | 15 | 15 | 25 | 25 | 25 |
| Capacidad de reserva del cliente, unidad o circ. A, para conexiones de bomba de agua del evaporador† | kW | 8 | 8 | 8 | 11 | 11 | 11 | 15 | 15 | 15 | 15 | 15 | 18 | 18 | 30 | 30 | 30 | 30 |
* Condiciones estándar de Eurovent: Temperatura del agua de entrada/salida del evaporador 12°C y 7°C. Temperatura del agua de entrada/salida del condensador 30°C/35°C.
** Entrada de energía, compresor, en los límites de funcionamiento de la unidad (temperatura del agua de entrada/salida del evaporador = 15°C/10°C, temperatura del agua de entrada/salida del condensador = 40°C/45°C) y un voltaje nominal de 400 V (datos proporcionados en la placa de identificación de la unidad).
*** Corriente máxima de funcionamiento de la unidad a la entrada de energía máxima de la unidad.
**** Corriente de arranque instantánea máxima (corriente de funcionamiento máxima del compresor(es) más pequeño(s) + corriente de rotor bloqueado o corriente de arranque reducida del compresor más grande)
† Entradas de corriente y energía no incluidas en los valores anteriores.
N/A No disponible
Compresores
| Referencia | Tamaño | I nom. | MHA | LRA | LRA (Y) | LRA (S) 1 cp. | LRA (S) 2 cp. |
| 06NW2146S7N | 39 | 48 | 69 | 344 | 109 | 125 | - |
| 06NW2174S7N | 46 | 58 | 83 | 423 | 134 | 154 | - |
| 06NW2209S7N | 56 | 71 | 101 | 506 | 160 | 260 | 350 |
| 06NW2250S7N | 66 | 87 | 120 | 605 | 191 | 330 | 400 |
| 06NW2300S5N | 80 | 104 | 144 | 715 | 226 | 370 | 420 |
| 06NW2300S5E | 80+ | 111 | 165 | 856 | 270 | 385 | 460 |
Leyenda:
| 06NW | Compresor para unidades enfriadas por agua |
| N | Compresor no economizado |
| E | Compresor economizado |
| INOM | Consumo de corriente promedio del compresor en condiciones Eurovent |
| MHA | Amperios de retención obligatoria (corriente máxima de funcionamiento) a 360 V |
| LRA | Corriente de rotor bloqueado con arranque directo |
| LRA (Y) | Corriente de rotor bloqueado a corriente reducida (modo de arranque estrella/delta) |
| LRA (S) 1 cp. | Arranque con corriente reducida con arrancador electrónico (duración del arranque 3 segundos máx.) para un compresor por circuito |
| LRA (S) 2 cp. | Arranque con corriente reducida con arrancador electrónico (duración del arranque 3 segundos máx.) para dos compresores por circuito |
DATOS ELÉCTRICOS PARA UNIDADES CON ALTAS TEMPERATURAS DE CONDENSACIÓN
Opciones 30HXC 150 y 150A
| 30HXC | 080 | 090 | 100 | 110 | 120 | 130 | 140 | 155 | 175 | 190 | 200 | 230 | 260 | 285 | 310 | 345 | 375 | |
| Circuito de alimentación | ||||||||||||||||||
| Suministro de energía nominal* | V-ph-Hz | 400-3-50 | ||||||||||||||||
| Rango de voltaje | V | 360-440 | ||||||||||||||||
| Suministro del circuito de control | El circuito de control se suministra a través del transformador instalado de fábrica | |||||||||||||||||
| Entrada de potencia máxima** | kW | 104 | 117 | 131 | 145 | 159 | 174 | 194 | 211 | 230 | 263 | 271 | 310 | 345 | 395 | 422 | 460 | 526 |
| Circuito A | kW | - | - | - | - | - | - | - | - | - | - | 175 | 195 | 230 | 263 | 211 | 230 | 263 |
| Circuito B | kW | - | - | - | - | - | - | - | - | - | - | 96 | 115 | 115 | 132 | 211 | 230 | 263 |
| Consumo máximo de corriente (Un - 10%)*** | A | 190 | 215 | 240 | 265 | 290 | 320 | 355 | 385 | 420 | 480 | 495 | 564 | 630 | 720 | 770 | 840 | 960 |
| Circuito A | A | - | - | - | - | - | - | - | - | - | - | 320 | 355 | 420 | 480 | 385 | 420 | 480 |
| Circuito B | A | - | - | - | - | - | - | - | - | - | - | 175 | 210 | 210 | 240 | 385 | 420 | 480 |
| Consumo máximo de corriente (Un)*** | A | 173 | 195 | 218 | 241 | 264 | 291 | 323 | 350 | 382 | 436 | 450 | 514 | 573 | 655 | 700 | 764 | 873 |
| Circuito A | A | - | - | - | - | - | - | - | - | - | - | 291 | 323 | 382 | 436 | 350 | 382 | 436 |
| Circuito B | A | - | - | - | - | - | - | - | - | - | - | 159 | 191 | 191 | 218 | 350 | 382 | 436 |
| Corriente máxima de arranque, unidad estándar (Un)**** | A | 277 | 312 | 335 | 379 | 402 | 435 | 519 | 546 | 578 | 618 | 1251 | 1549 | 1608 | 1701 | 1735 | 1799 | 1920 |
| Circuito A | A | - | - | - | - | - | - | - | - | - | - | 1092 | 1358 | 1417 | 1483 | 1385 | 1417 | 1483 |
| Circuito B | A | - | - | - | - | - | - | - | - | - | - | 960 | 1226 | 1226 | 1265 | 1385 | 1417 | 1483 |
| Corriente máxima de arranque/relación de consumo máximo de corriente, unidad | 1.61 | 1.60 | 1.54 | 1.57 | 1.52 | 1.49 | 1.61 | 1.56 | 1.51 | 1.42 | 2.78 | 3.02 | 2.81 | 2.60 | 2.48 | 2.36 | 2.20 | |
| Corriente máxima de arranque/relación de consumo máximo de corriente, circuito A | - | - | - | - | - | - | - | - | - | - | 3.75 | 4.21 | 3.71 | 3.40 | 3.96 | 3.71 | 3.40 | |
| Corriente máxima de arranque/relación de consumo máximo de corriente, circuito B | - | - | - | - | - | - | - | - | - | - | 6.03 | 6.42 | 6.42 | 5.80 | 3.96 | 3.71 | 3.40 | |
| Corriente máxima de arranque - arranque de corriente reducida (Un) **** | A | std. | std. | std. | std. | std. | std. | std. | std. | std. | std. | N/A | N/A | N/A | N/A | N/A | N/A | N/A |
| Corriente de retención de cortocircuito trifásica | kA | 25 | 25 | 25 | 25 | 25 | 25 | 25 | 25 | 25 | 25 | N/A | N/A | N/A | N/A | N/A | N/A | N/A |
| Circuito A | kA | - | - | - | - | - | - | - | - | - | - | 25 | 25 | 25 | 25 | 25 | 25 | 25 |
| Circuito B | kA | - | - | - | - | - | - | - | - | - | - | 15 | 15 | 15 | 15 | 25 | 25 | 25 |
| Capacidad de reserva del cliente, unidad o circ. A, para conexiones de bomba de agua del evaporador† | kW | 8 | 8 | 8 | 11 | 11 | 11 | 15 | 15 | 15 | 15 | 15 | 18 | 18 | 30 | 30 | 30 | 30 |
** Entrada de potencia, compresor, en los límites de funcionamiento de la unidad (temperatura del agua de entrada/salida del evaporador = 15°C/10°C, temperatura del agua de entrada/salida del condensador = 40°C/45°C) y un voltaje nominal de 400 V (datos indicados en la placa de identificación de la unidad).
*** Corriente máxima de funcionamiento de la unidad con la entrada de potencia máxima de la unidad.
**** Corriente de arranque instantánea máxima (corriente de funcionamiento máxima del compresor(es) más pequeño(s) + corriente de rotor bloqueado o corriente de arranque reducida del compresor más grande)
† Entradas de corriente y potencia no incluidas en los valores anteriores.
N/A No disponible
Las unidades 30HXC 080-375 para altas temperaturas de condensación se derivan directamente de los modelos estándar. Su rango de aplicación es el mismo que el de las unidades estándar, pero permite el funcionamiento a temperaturas del agua de salida del condensador de hasta 63°C. El control PRO-DIALOG ofrece todas las ventajas de las unidades estándar, además del control de la temperatura del agua de salida del condensador.
Las principales modificaciones son:
- Uso de compresores 30GX
- Modificación de los componentes eléctricos para operar con compresores para altas temperaturas de condensación.
- Modificación de los intercambiadores de calor para cumplir con los requisitos del código de presión (si es necesario).
Opción 150
Estas unidades están diseñadas para aplicaciones tradicionales para unidades enfriadas por agua, pero para temperaturas del agua de salida del condensador más altas que 45°C.
Al igual que las unidades estándar, están equipadas con sensores de agua de entrada y salida del condensador, instalados en la tubería.
Es posible controlar la máquina en la salida de agua del condensador, lo que requiere un cambio de configuración de fábrica y el uso de un dispositivo de inversión de entrada de calefacción/refrigeración.
Opción 150A
Estas unidades están diseñadas para bombas de calor agua-agua.
Están configuradas de fábrica como bombas de calor (control de calefacción/refrigeración en función del dispositivo de inversión remoto). El condensador incorpora un aislamiento térmico idéntico al del evaporador.
Información técnica
Toda la información es idéntica a la de las unidades 30HXC estándar, excepto los siguientes párrafos.
Selección
No existen condiciones nominales para este tipo de unidad. La selección se realiza utilizando el catálogo electrónico actual.
Dimensiones
Estas son idénticas a las de las unidades 30HXC estándar. La única diferencia está en el diámetro de la conexión del cableado de campo entrante, que se describe en el capítulo "Selección recomendada". Consulte los dibujos dimensionales de estas unidades antes de proceder con el cableado.
Compresor
Consulte la tabla de compresores 30GX.
Opciones y accesorios
Todas las opciones disponibles para las unidades 30HXC estándar son compatibles, excepto:
| Opción 5, unidad de salmuera | Unidad especial |
| Opción 25, arranque suave, unidades 30HXC 200-375 | No disponible |
Atención:
Si las unidades tienen dos modos de funcionamiento diferentes, uno con alta temperatura de condensación y el otro con baja temperatura de condensación, y la transición se realiza con la unidad en funcionamiento, la temperatura no debe variar en más de 3 K por minuto. En los casos en que esto no sea posible, se recomienda pasar por un interruptor de arranque/parada de la unidad (arranque/parada remoto disponible para las unidades estándar).
DATOS FÍSICOS 30GX
| 30GX | 082 | 092 | 102 | 112 | 122 | 132 | 152 | 162 | 182 | 207 | 227 | 247 | 267 | 298 | 328 | 358 | ||
| Capacidad de refrigeración neta | kW | 285 | 309 | 332 | 388 | 417 | 450 | 505 | 536 | 602 | 687 | 744 | 810 | 910 | 1003 | 1103 | 1207 | |
| Peso operativo | kg | 3116 | 3157 | 3172 | 3515 | 3531 | 3633 | 3920 | 3936 | 4853 | 5540 | 5570 | 6134 | 6365 | 7354 | 7918 | 8124 | |
| Carga de refrigerante | HFC-134a | |||||||||||||||||
| Circuito A/B | kg | 55/55 | 58/50 | 54/53 | 55/53 | 60/57 | 63/60 | 75/69 | 75/75 | 80/80 | 130/85 | 130/85 | 155/98 | 170/104 | 162/150 | 162/165 | 175/175 | |
| Aceite | Aceite de polioléster CARRIER SPEC: PP 47-32 | |||||||||||||||||
| Circuito A/B | l | 20/20 | 20/20 | 20/20 | 20/20 | 20/20 | 20/20 | 20/20 | 20/20 | 20/20 | 40/20 | 40/20 | 40/20 | 40/20 | 40/40 | 40/40 | 40/40 | |
| Compresores | Tornillo doble hermético Power3 | |||||||||||||||||
| Circ. A, tamaño nominal por compresor** | 46 | 46 | 56 | 56 | 66 | 66 | 80 | 80 | 80+ | 66/56 | 80/66 | 80/80 | 80+/80+ | 80/80 | 80/80 | 80+/80+ | ||
| Circ. B, tamaño nominal por compresor** | 39 | 46 | 46 | 56 | 56 | 66 | 66 | 80 | 80+ | 80 | 80 | 80 | 80+ | 66/66 | 80/802 | 80+/80+ | ||
| Tipo de control | Control PRO-DIALOG Plus | |||||||||||||||||
| Número de pasos de capacidad | 6 | 6 | 6 | 6 | 6 | 6 | 6 | 6 | 6 | 8 | 8 | 8 | 8 | 10 | 10 | 10 | ||
| Capacidad mínima | % | 19 | 21 | 19 | 21 | 19 | 21 | 19 | 21 | 21 | 16 | 14 | 14 | 14 | 9 | 10 | 10 | |
| Evaporador | Tipo de carcasa y tubo, con tubos de cobre con aletas internas | |||||||||||||||||
| Volumen neto de agua | l | 65 | 73 | 73 | 87 | 87 | 101 | 91 | 91 | 109 | 140 | 140 | 165 | 181 | 203 | 229 | 229 | |
| Conexiones de agua | Brida plana suministrada de fábrica, para soldar en el sitio | |||||||||||||||||
| Entrada y salida | in. | 4 | 4 | 4 | 5 | 5 | 5 | 5 | 5 | 5 | 6 | 6 | 6 | 6 | 8 | 8 | 8 | |
| Drenaje y ventilación (NPT) | in. | 3/8 | 3/8 | 3/8 | 3/8 | 3/8 | 3/8 | 3/8 | 3/8 | 3/8 | 3/8 | 3/8 | 3/8 | 3/8 | 3/8 | 3/8 | 3/8 | |
| Presión máxima de funcionamiento del lado del agua | kPa | 1000 | 1000 | 1000 | 1000 | 1000 | 1000 | 1000 | 1000 | 1000 | 1000 | 1000 | 1000 | 1000 | 1000 | 1000 | 1000 | |
| Condensadores | Tubos de cobre y aletas de aluminio | |||||||||||||||||
| Ventiladores | Ventilador axial FLYING BIRD 2 con cubierta giratoria | |||||||||||||||||
| Cantidad | 4 | 4 | 4 | 6 | 6 | 6 | 8 | 8 | 8 | 10 | 10 | 12 | 12 | 14 | 16 | 16 | ||
| Velocidad | r/s | 15.8 | 15.8 | 15.8 | 15.8 | 15.8 | 15.8 | 15.8 | 15.8 | 15.8 | 15.8 | 15.8 | 15.8 | 15.8 | 15.8 | 15.8 | 15.8 | |
| Flujo de aire total | l/s | 21110 | 21110 | 21110 | 31660 | 31660 | 31660 | 42220 | 42220 | 42220 | 52770 | 52770 | 63330 | 63330 | 73880 | 84440 | 84440 | |
* Condiciones Eurovent estandarizadas: temperaturas del agua de entrada/salida del evaporador = 12°C/7°C, temperatura del aire exterior = 35°C Capacidad de refrigeración neta: Capacidad de refrigeración bruta menos el calor de la bomba de agua contra la caída de presión interna del evaporador.
** El tamaño del compresor corresponde a la capacidad nominal en toneladas (1 tonelada = 3,517 kW).
DATOS ELÉCTRICOS 30GX
| 30HXC | 082 | 092 | 102 | 112 | 122 | 132 | 152 | 162 | 182 | 207 | 227 | 247 | 267 | 298 | 328 | 358 | ||
| Circuito de alimentación | ||||||||||||||||||
| Alimentación nominal* | V-ph-Hz | 400-3-50 | ||||||||||||||||
| Rango de voltaje | V | 360-440 | ||||||||||||||||
| Suministro del circuito de control | El circuito de control se alimenta a través del transformador instalado de fábrica | |||||||||||||||||
| Entrada de energía nominal* | kW | 98 | 109 | 123 | 133 | 150 | 166 | 179 | 196 | 214 | 246 | 281 | 292 | 332 | 364 | 394 | 449 | |
| Corriente nominal consumida* | A | 180 | 200 | 223 | 256 | 273 | 290 | 326 | 352 | 388 | 449 | 492 | 528 | 582 | 642 | 704 | 776 | |
| Máx. entrada de energía** | kW | 127 | 141 | 154 | 175 | 191 | 207 | 234 | 253 | 286 | 319 | 355 | 380 | 429 | 462 | 506 | 572 | |
| Circuito A | kW | - | - | - | - | - | - | - | - | - | 193 | 228 | 253 | 286 | 253 | 253 | 286 | |
| Circuito B | kW | - | - | - | - | - | - | - | - | - | 127 | 127 | 127 | 143 | 209 | 253 | 286 | |
| Coseno phi, unidad a plena carga | 0.85 | 0.85 | 0.85 | 0.85 | 0.85 | 0.85 | 0.86 | 0.86 | 0.86 | 0.86 | 0.86 | 0.86 | 0.86 | 0.86 | 0.86 | 0.86 | ||
| Máx. corriente consumida (Un - 10%)*** | A | 237 | 262 | 287 | 323 | 353 | 383 | 429 | 464 | 524 | 585 | 650 | 696 | 786 | 847 | 928 | 1048 | |
| Circuito A | A | - | - | - | - | - | - | - | - | - | 353 | 418 | 464 | 524 | 464 | 464 | 524 | |
| Circuito B | A | - | - | - | - | - | - | - | - | - | 232 | 232 | 232 | 262 | 383 | 464 | 524 | |
| Corriente máxima consumida (Un)*** | A | 217 | 240 | 263 | 297 | 324 | 351 | 394 | 426 | 480 | 537 | 596 | 639 | 721 | 777 | 852 | 961 | |
| Circuito A | A | - | - | - | - | - | - | - | - | - | 324 | 383 | 426 | 480 | 426 | 426 | 480 | |
| Circuito B | A | - | - | - | - | - | - | - | - | - | 213 | 213 | 213 | 240 | 351 | 426 | 480 | |
| Máx. corriente de arranque, unidad estándar**** (Un) | A | 334 | 357 | 401 | 435 | 468 | 495 | 590 | 622 | 662 | 1338 | 1631 | 1674 | 1767 | 1812 | 1887 | 2008 | |
| Circuito A*** | A | - | - | - | - | - | - | - | - | - | 1125 | 1418 | 1461 | 1527 | 1461 | 1461 | 1527 | |
| Circuito B*** | A | - | - | - | - | - | - | - | - | - | 1248 | 1248 | 1248 | 1287 | 1152 | 1461 | 1527 | |
| Máx. corriente de arranque/relación de consumo de corriente máx., unidad | 1.54 | 1.49 | 1.53 | 1.47 | 1.44 | 1.41 | 1.50 | 1.46 | 1.38 | 2.49 | 2.74 | 2.62 | 2.45 | 2.33 | 2.22 | 2.09 | ||
| Máx. corriente de arranque/relación de consumo de corriente máx., circuito A | - | - | - | - | - | - | - | - | - | 3.47 | 3.70 | 3.43 | 3.18 | 3.43 | 3.43 | 3.18 | ||
| Máx. corriente de arranque/relación de consumo de corriente máx., circuito B | - | - | - | - | - | - | - | - | - | 5.86 | 5.86 | 5.86 | 5.36 | 3.28 | 3.43 | 3.18 | ||
| Máx. corriente de arranque - inicio de corriente reducida (Un) **** | A | std. | std. | std. | std. | std. | std. | std. | std. | std. | 878 | 955 | 998 | 1102 | 1136 | 1211 | 1343 | |
| Circuito A | A | std. | std. | std. | std. | std. | std. | std. | std. | std. | 665 | 742 | 785 | 862 | 785 | 785 | 862 | |
| Circuito B | A | std. | std. | std. | std. | std. | std. | std. | std. | std. | 572 | 572 | 572 | 622 | 692 | 785 | 862 | |
| Máx. corriente de arranque - relación de inicio de corriente reducida/consumo de corriente máx., unidad | std. | std. | std. | std. | std. | std. | std. | std. | std. | 1.64 | 1.60 | 1.56 | 1.53 | 1.46 | 1.42 | 1.40 | ||
| Circuito A | std. | std. | std. | std. | std. | std. | std. | std. | std. | 2.05 | 1.94 | 1.84 | 1.79 | 1.84 | 1.84 | 1.79 | ||
| Circuito B | std. | std. | std. | std. | std. | std. | std. | std. | std. | 2.69 | 2.69 | 2.69 | 2.39 | 1.97 | 1.84 | 1.79 | ||
| Corriente de mantenimiento de cortocircuito trifásica | kA | 25 | 25 | 25 | 25 | 25 | 25 | 25 | 25 | 25 | N/A | N/A | N/A | N/A | N/A | N/A | N/A | |
| Circuito A | kA | - | - | - | - | - | - | - | - | - | 25 | 25 | 25 | 25 | 25 | 25 | 25 | |
| Circuito B | kA | - | - | - | - | - | - | - | - | - | 25 | 25 | 25 | 25 | 25 | 25 | 25 | |
| Capacidad de reserva del cliente, unidad o circ. A, para conexiones de bomba de agua del evaporador† | kW | 4 | 4 | 4 | 5.5 | 5.5 | 5.5 | 7.5 | 7.5 | 7.5 | 7.5 | 9 | 9 | 9 | 15 | 15 | 15 | |
* Condiciones estándar de Eurovent: Temperatura del agua entrando/saliendo del evaporador 12°C y 7°C. Temperatura del aire exterior 35°C.
** Entrada de energía, compresor y ventilador, en los límites de funcionamiento de la unidad (temperatura del agua entrando/saliendo del evaporador = 15°C/10°C, temperatura del aire exterior = 46°C) y un voltaje nominal de 400 V (datos proporcionados en la placa de identificación de la unidad).
*** Corriente máxima de funcionamiento de la unidad a la entrada de energía máxima de la unidad.
**** Corriente de arranque instantánea máxima (corriente de funcionamiento máxima del compresor(es) más pequeño(s) + corriente del ventilador + corriente de rotor bloqueado o corriente de arranque reducida del compresor más grande).
† Entradas de corriente y energía no incluidas en los valores anteriores
N/A No disponible
Compresores
| Referencia | Tamaño | I nom. | MHA | LRA | LRA (Y) | LRA (S) 1 cp. | LRA (S) 2 cp. |
| 06NA2146S7N | 39 | 70 | 95 | 605 | 191 | 220 | - |
| 06NA2174S7N | 46 | 90 | 120 | 715 | 226 | 260 | - |
| 06NA2209S7N | 56 | 113 | 145 | 856 | 270 | 330 | 420 |
| 06NA2250S7N | 66 | 130 | 175 | 960 | 303 | 380 | 500 |
| 06NA2300S5N | 80 | 156 | 210 | 1226 | 387 | 445 | 550 |
| 06NA2300S5E | 80+ | 174 | 240 | 1265 | 400 | 460 | 600 |
Leyenda:
| 06NA | Compresor para unidades enfriadas por aire |
| N | Compresor no economizado |
| E | Compresor economizado |
| INOM | Consumo de corriente promedio del compresor en condiciones Eurovent |
| MHA | Amperios de retención obligatoria (corriente máxima de funcionamiento) a 360 V |
| LRA | Corriente de rotor bloqueado con arranque directo |
| LRA (Y) | Corriente de rotor bloqueado a corriente reducida (modo de arranque estrella/delta) |
| LRA (S) 1 cp. | Arranque con corriente reducida con arrancador electrónico (duración del arranque 3 segundos máx.) para un compresor por circuito |
| LRA (S) 2 cp. | Arranque con corriente reducida con arrancador electrónico (duración del arranque 3 segundos máx.) para dos compresores por circuito |
DATOS DE LA APLICACIÓN
Rango de operación de la unidad
| Evaporador | Mínimo | Máximo | |
| Temperatura del agua de entrada al evaporador | °C | 6.8* | 21 |
| Temperatura del agua de salida del evaporador | °C | 4** | 15 |
| Condensador (refrigerado por agua) | Mínimo | Máximo | |
| Temperatura del agua de entrada al condensador | °C | 20*** | 42 |
| Temperatura del agua de salida del condensador | °C | 25 | 45 |
| Temperatura ambiente exterior de operación 30HXC | °C | 6 | 40 |
| Condensador (refrigerado por aire) | Mínimo | Máximo | |
| Temperatura ambiente exterior de operación | °C | 0 | 46 |
| Presión estática disponible | kPa | 0 |
Notas:
* Para aplicaciones que requieran operación a menos de 6.8°C, póngase en contacto con Carrier s.a. para la selección de la unidad utilizando el catálogo electrónico de Carrier.
** Para aplicaciones que requieran operación a menos de 4°C, las unidades requieren el uso de anticongelante.
*** Las unidades refrigeradas por agua (30HXC) que operan a plena carga y por debajo de 20°C de temperatura del agua de entrada al condensador requieren el uso de un control de presión de cabezal con válvulas de control de agua analógicas (véase el párrafo sobre el control de presión de cabezal).
En los modos de funcionamiento temporales (puesta en marcha y a carga parcial), la unidad puede funcionar con una temperatura del aire de entrada al condensador de 13°C.
Caudal mínimo de agua enfriada
El caudal mínimo de agua enfriada se muestra en la tabla de la página siguiente. Si el caudal es inferior a este, el caudal del evaporador puede recircularse, como se muestra en el diagrama. La temperatura de la mezcla que sale del evaporador nunca debe ser inferior a 2,8 K menos que la temperatura del agua enfriada que entra.

PARA EL CAUDAL MÍNIMO DE AGUA ENFRIADA
Caudal máximo de agua enfriada
El caudal máximo de agua enfriada está limitado por la caída de presión máxima permitida en el evaporador. Se proporciona en la tabla de la página siguiente. Si el caudal supera el valor máximo, son posibles dos soluciones:
- Seleccione un evaporador no estándar con un paso de agua menos, lo que permitirá un caudal máximo de agua más elevado.
- Derive el evaporador como se muestra en el diagrama para obtener una diferencia de temperatura más alta con un caudal de evaporador más bajo.

PARA EL CAUDAL MÁXIMO DE AGUA ENFRIADA
Evaporador de caudal variable
El caudal variable del evaporador puede utilizarse en los enfriadores estándar 30HXC y 30GX. Los enfriadores mantienen una temperatura constante del agua de salida en todas las condiciones de caudal. Para que esto ocurra, el caudal mínimo debe ser superior al caudal mínimo indicado en la tabla de caudales permitidos y no debe variar en más de un 10% por minuto. Si el caudal cambia más rápidamente, el sistema debe contener un mínimo de 6,5 litros de agua por kW en lugar de 3,25 l/kW.
Volumen mínimo de agua del sistema
Sea cual sea el sistema, la capacidad mínima del circuito de agua viene dada por la fórmula:
Capacidad = Cap (kW) x N Litros
| Aplicación | N |
| Aire acondicionado normal | 3.25 |
| Refrigeración de tipo proceso | 6.5 |
Donde Cap es la capacidad nominal de refrigeración del sistema (kW) en las condiciones nominales de funcionamiento de la instalación.
Este volumen es necesario para un funcionamiento estable y un control preciso de la temperatura.
A menudo es necesario añadir un depósito de agua de compensación al circuito para alcanzar el volumen requerido. El propio depósito debe estar internamente deflectado para asegurar una mezcla adecuada del líquido (agua o salmuera). Consulte los ejemplos siguientes.
NOTA: El compresor no debe rearrancar más de 6 veces en una hora.


Caudal del enfriador (l/s)
| 30HXC | Mín.* | Máx.** | ||
| 080-090 | 5.7 | 22.7 | ||
| 100 | 6.0 | 24.1 | ||
| 110 | 6.9 | 27.5 | ||
| 120-130 | 8.3 | 33.0 | ||
| 140-155 | 10.0 | 39.5 | ||
| 175-190 | 10.7 | 42.7 | ||
| 200 | 13.4 | 53.7 | ||
| 230 | 13.4 | 60.6 | ||
| 260-285 | 17.0 | 68.1 | ||
| 310 | 19.4 | 77.8 | ||
| 345-375 | 21.3 | 85.3 | ||
| 30GX | Mín.* | Máx.** | ||
| 082 | 5.7 | 22.7 | ||
| 092-102 | 6.0 | 24.1 | ||
| 112-122 | 6.9 | 27.5 | ||
| 132 | 8.4 | 33.7 | ||
| 152-162 | 10.0 | 39.9 | ||
| 182 | 10.7 | 42.7 | ||
| 207-227 | 13.4 | 53.7 | ||
| 247 | 15.1 | 60.6 | ||
| 267 | 17.0 | 68.1 | ||
| 298 | 19.4 | 77.8 | ||
| 328-358 | 21.3 | 85.3 | ||
* Basado en una velocidad del agua de 0.9 m/s.
** Basado en una velocidad del agua de 3.6 m/s.
Caudal del condensador (l/s)
| 30HXC | Mín.* Lazo cerrado (Closed loop) | Lazo abierto (Open loop) | Máx.** |
| 080-110 | 2.5 | 7.5 | 29.9 |
| 120-130 | 3.1 | 9.3 | 37.3 |
| 140-155 | 3.8 | 11.4 | 45.5 |
| 175-190 | 4.6 | 13.8 | 55.2 |
| 200 | 5.0 | 14.9 | 59.6 |
| 230-285 | 6.7 | 20.1 | 80.3 |
| 310-375 | 7.3 | 22.0 | 88.0 |
* Basado en una velocidad del agua de 0.3 m/s en un lazo cerrado y 0.9 m/s en un lazo abierto.
** Basado en una velocidad del agua de 3.6 m/s
Curva de caída de presión del evaporador

- 30HXC 080-090/30GX 082
- 30HXC 100/30GX 092-102
- 30HXC 110/30GX 112-122
- 30GX 132
- 30HXC 120-130
- 30HXC 140-155/30GX 152-162
- 30HXC 175-190/30GX 182
- 30HXC 200/30GX 207-227
- 30HXC 230/30GX 247
- 30HXC 260-285/30GX 267
- 30HXC 310/30GX 298
- 30HXC 345-375/30GX 328-358
Curva de caída de presión del condensador

- 30HXC 080-090-100-110
- 30HXC 120-130
- 30HXC 140-155
- 30HXC 175-190
- 30HXC 200
- 30HXC 230-260-285
- 30HXC 310-345-375
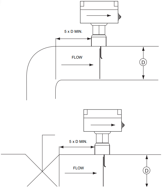
Controladores de flujo
Interruptor de flujo del enfriador y enclavamiento de la bomba de agua helada
Es obligatorio instalar el interruptor de flujo del enfriador y también conectar el enclavamiento de la bomba de agua helada en las unidades 30HXC y 30GX. El incumplimiento de esta instrucción anulará la garantía de Carrier.
El controlador del interruptor de flujo del enfriador se suministra de fábrica y está cableado en las unidades 30HXC y 30GX.
Siga las instrucciones del fabricante para la instalación.
El interruptor de flujo puede montarse en una tubería horizontal o en una tubería vertical con flujo de líquido ascendente. No debe utilizarse cuando el flujo de líquido es descendente.
Monte en una sección de tubería donde haya un tramo recto de al menos cinco diámetros de tubería a cada lado del interruptor de flujo. No lo coloque adyacente a válvulas, codos u orificios. La paleta nunca debe tocar la tubería ni ninguna restricción en la tubería. Atornille el interruptor de flujo en posición de modo que la parte plana de la paleta quede en ángulo recto con el flujo. Las flechas en la cubierta y en la parte inferior, dentro de la carcasa, deben apuntar en la dirección del flujo. El interruptor debe montarse de manera que los terminales sean accesibles para facilitar el cableado.
Los terminales 34 y 35 están provistos para la instalación en campo de un enclavamiento de la bomba de agua helada (contacto auxiliar del contactor de la bomba de agua helada).
(Conexión de tubería: 1" NPT)

Interruptor de flujo del condensador (30HXC)
El interruptor de flujo del condensador es un dispositivo instalado en campo.
INSTALACIÓN
Verificar el equipo recibido
- Inspeccione la unidad para detectar daños o piezas faltantes. Si se detectan daños o si el envío está incompleto, presente inmediatamente un reclamo a la compañía de transporte.
- Confirme que la unidad recibida sea la que se ordenó. Compare los datos de la placa de identificación con el pedido.
- Confirme que todos los accesorios solicitados para la instalación en el sitio se hayan entregado y estén completos y sin daños.
- No almacene las unidades en un área expuesta a la intemperie debido a los mecanismos de control sensibles y los dispositivos electrónicos.
Traslado y ubicación de la unidad
Traslado
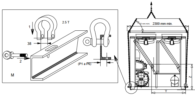
No retire los patines, paletas o embalajes protectores hasta que la unidad esté en su posición final. Mueva el enfriador usando tubos o rodillos, o levántelo, usando eslingas de la capacidad correcta.
(30HXC)
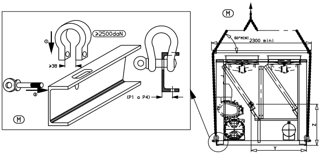
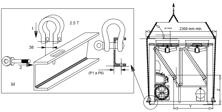
Utilice únicamente eslingas en los puntos de elevación designados que están marcados en la unidad, en la parte superior del intercambiador de calor del enfriador. El aparejo desde la parte inferior del intercambiador de calor provocará que la unidad se levante de forma insegura. Pueden producirse lesiones personales o daños a la unidad. Siga las instrucciones de aparejo que se indican en el dibujo dimensional certificado que se suministra con la unidad.
Ubicación
Siempre consulte el capítulo "Dimensiones y espacios libres" para confirmar que haya espacio adecuado para todas las conexiones y operaciones de servicio. Para las coordenadas del centro de gravedad, la posición de los orificios de montaje de la unidad y los puntos de distribución del peso, consulte el dibujo dimensional certificado que se suministra con la unidad.
Recomendamos que estos enfriadores se instalen en un sótano o a nivel del suelo. Si se va a instalar uno por encima del nivel del suelo, primero verifique que la carga permisible del piso sea adecuada y que el piso sea lo suficientemente resistente y nivelado. Si es necesario, refuerce y nivele el piso.
Con el enfriador en su ubicación final, retire los patines y otros dispositivos utilizados para ayudar a moverlo. Nivele la unidad con un nivel de burbuja y atornille la unidad al piso o al pedestal. El funcionamiento de estas unidades puede verse afectado si no están niveladas y no están fijadas de forma segura a sus montajes. Si es necesario, utilice almohadillas de aislamiento debajo de la unidad para ayudar con el aislamiento de vibraciones.
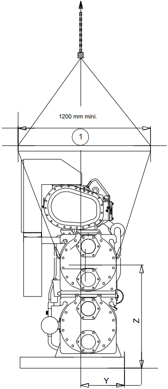
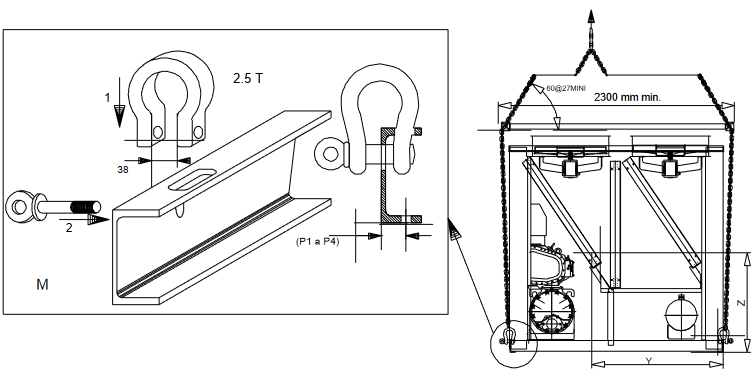
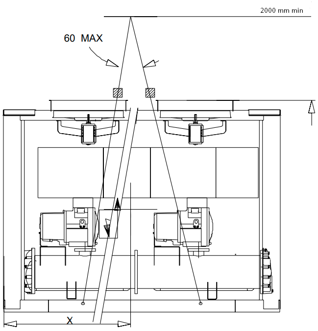
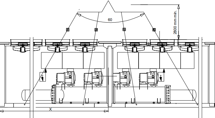
INSTRUCCIONES DE ELEVACIÓN
30HXC 080-190
Este diagrama se muestra solo con fines informativos. Consulte los "planos certificados".

- EXCEPTO 30HXC 190
X mm Y mm Z mm 30HXC080
30HXC090
30HXC1001345 402 903 30HXC110 1368 397 935 30HXC120
30HXC130
30HXC140
30HXC1551731 392 879 30HXC175 1703 386 947 30HXC190 1705 398 955


NOTA
Cuando todas las operaciones de elevación y posicionamiento hayan finalizado, se recomienda retocar todas las superficies donde se haya quitado la pintura en las orejetas de elevación.
30HXC 200-285
Este diagrama se muestra solo con fines informativos. Consulte los "planos certificados".


30HXC 310-375


| X mm | Y mm | Z mm | |
| 30HXC310 | 2195 | 425 | 1085 |
| 30HXC345 | 2195 | 425 | 1085 |
| 30HXC375 | 2205 | 435 | 1025 |
NOTA
Cuando todas las operaciones de elevación y posicionamiento hayan finalizado, se recomienda retocar todas las superficies donde se haya quitado la pintura en las orejetas de elevación.
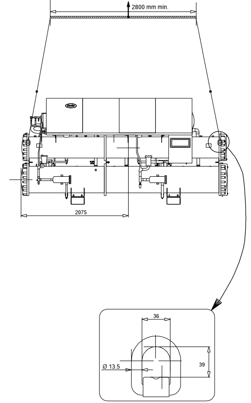
30GX 082-162
Este diagrama se muestra solo con fines informativos. Consulte los "planos certificados".



| X mm | Y mm | Z mm | PTkg | |
| 30GX082 | 1440 | 1460 | 900 | 3115 |
| 30GX092 | 1440 | 1460 | 900 | 3156 |
| 30GX102 | 1440 | 1460 | 900 | 3170 |
| 30GX112 | 1650 | 1460 | 900 | 3574 |
| 30GX122 | 1650 | 1460 | 900 | 3527 |
| 30GX132 | 1650 | 1460 | 900 | 3634 |
| 30GX152 | 2155 | 1430 | 900 | 3938 |
| 30GX162 | 2155 | 1430 | 900 | 3954 |
30GX 182



| X mm | Y mm | Z mm | PTkg | |
| 30GX182 | 3030 | 1370 | 875 | 4853 |
NOTA
Cuando todas las operaciones de elevación y posicionamiento hayan finalizado, se recomienda retocar todas las superficies donde se haya quitado la pintura en la orejeta de elevación.
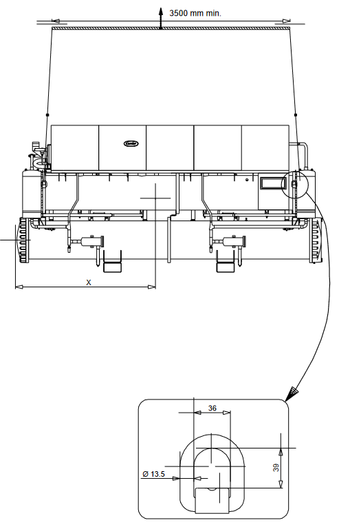
30GX 207-267
Este diagrama se muestra solo con fines informativos. Consulte los "planos certificados".



| X mm | Y mm | Z mm | PTkg | |
| 30GX207 | 2870 | 1440 | 890 | 5536 |
| 30GX227 | 2870 | 1440 | 890 | 5572 |
| 30GX247 | 3320 | 1430 | 927 | 6131 |
| 30GX267 | 3300 | 1420 | 886 | 6363 |
30GX 298-358



| X mm | Y mm | Z mm | PTkg | |
| 30GX298 | 3630 | 1420 | 890 | 7353 |
| 30GX328 | 4360 | 1455 | 920 | 7840 |
| 30GX358 | 4360 | 1445 | 930 | 8045 |
NOTA
Cuando todas las operaciones de elevación y posicionamiento hayan finalizado, se recomienda retocar todas las superficies donde se haya quitado la pintura en las orejetas de elevación.
Conexiones de tuberías
Consulte los planos dimensionales certificados para conocer los tamaños y las posiciones de todas las conexiones de entrada y salida de agua. Las tuberías de agua no deben transmitir ninguna fuerza radial o axial a los intercambiadores de calor ni ninguna vibración a las tuberías o al edificio.
El suministro de agua debe analizarse y se deben incorporar los dispositivos de filtrado, tratamiento y control adecuados, las válvulas y los circuitos de aislamiento y purga, según sea necesario. Consulte a un especialista en tratamiento de agua o la literatura apropiada sobre el tema.
Precauciones de funcionamiento
El circuito de agua debe diseñarse para tener la menor cantidad de codos y tramos de tubería horizontales en diferentes niveles. Se deben realizar las siguientes comprobaciones básicas (consulte también la ilustración de un circuito hidráulico típico a continuación).
- Tome nota de las entradas y salidas de agua de los intercambiadores de calor.
- Instale válvulas de purga de aire manuales o automáticas en todos los puntos altos del circuito de agua.
- Utilice una cámara de expansión o una válvula de expansión/alivio para mantener la presión en el sistema.
- Instale termómetros de agua y manómetros en las conexiones de agua entrante y saliente cerca del evaporador.
- Instale válvulas de drenaje en todos los puntos bajos para permitir que se drene todo el circuito. Conecte una válvula de cierre en la línea de drenaje antes de operar el enfriador.
- Instale válvulas de cierre y manómetros, cerca del evaporador, en las líneas de agua entrante y saliente.
- Instale un interruptor de flujo del enfriador.
- Utilice conexiones flexibles para reducir la transmisión de vibraciones a las tuberías.
- Aísle todas las tuberías, después de probar si hay fugas, tanto para reducir las fugas térmicas como para evitar la condensación.
- Cubra el aislamiento con una barrera de vapor.
Conexiones del evaporador y del condensador
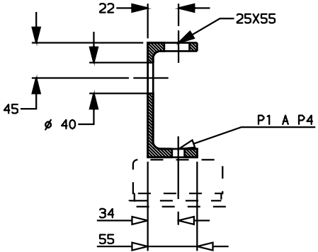
El evaporador y el condensador son del tipo de carcasa y tubo multi-tubo con cajas de agua extraíbles para facilitar la limpieza de los tubos.
Antes de realizar las conexiones de agua, apriete los pernos en ambas cabezas al par de torsión inferior que se muestra, siguiendo el método descrito. Apriete en los pares y la secuencia indicada según el tamaño del perno (ver tabla) utilizando un valor de par en el extremo inferior del rango dado.
Retire la brida plana suministrada de fábrica de la caja de agua antes de soldar la tubería a la brida. Si no se retira la brida, se pueden dañar los sensores y el aislamiento.
NOTA
Recomendamos drenar el sistema y desconectar las tuberías para garantizar que los pernos de las cabezas a las que están conectadas las tuberías estén apretados correcta y uniformemente.
Protección contra congelamiento
Protección del evaporador y del condensador enfriado por agua
Si el enfriador o la tubería de agua se encuentran en un área donde la temperatura ambiente puede caer por debajo de 0 °C, se recomienda agregar una solución anticongelante para proteger la unidad y la tubería de agua a una temperatura de 8 K por debajo de la temperatura más baja. Utilice únicamente soluciones anticongelantes aprobadas para el servicio de intercambiadores de calor. Si el sistema no está protegido por una solución anticongelante y no se utilizará durante las condiciones climáticas de congelación, es obligatorio drenar el enfriador y las tuberías exteriores. Los daños debidos a la congelación no están cubiertos por la garantía.
Secuencia de apriete de la caja de agua

Leyenda
- Secuencia 1: 1 2 3 4
Secuencia 2: 5 6 7 8
Secuencia 3: 9 10 11 12 - Par de apriete
Tamaño del perno M16 - 171 - 210 Nm
Diagrama de circuito hidráulico típico

Leyenda
- Válvula de control
- Ventilación de aire
- Interruptor de flujo
- Conexión flexible
- Intercambiador de calor
- Toma de presión
- Manguito del termostato
- Drenaje
- Tanque de compensación
- Filtro
- Tanque de expansión
- Válvula de llenado
CARACTERÍSTICAS ELÉCTRICAS
- Los modelos 30HXC 080-190 y 30GX 082-182 tienen solo un interruptor de desconexión/aislamiento de alimentación.
- Los modelos 30HXC 200-375 y 30GX 207-358 tienen dos interruptores de desconexión/aislamiento de alimentación.
- La caja de control incorpora de serie lo siguiente:
- Arrancadores y dispositivos de protección del motor para cada compresor y los ventiladores
- Componentes de control
- Conexiones en el sitio:
Todas las conexiones a la red eléctrica y la instalación eléctrica deben realizarse de acuerdo con las directivas aplicables al sitio. - Los modelos 30HXC y 30GX están diseñados para facilitar el cumplimiento de estas directivas. La ingeniería del equipo eléctrico para los modelos 30HXC y 30GX tiene en cuenta la norma europea EN 60204-1 (seguridad de la maquinaria - equipo eléctrico de las máquinas - Parte 1: reglas generales).
La norma EN 60204-1 es un buen medio para responder a los requisitos de la Directiva de Maquinaria § 1.5.1. La recomendación normativa IEC 364, se reconoce generalmente como que cumple con los requisitos de la regulación de la instalación.
El Anexo B de la norma EN 60204-1 puede utilizarse para describir las características eléctricas bajo las cuales operan las máquinas.
30HXC
- Las condiciones de funcionamiento para un 30HXC estándar se describen a continuación:
- Condiciones ambientales(1). La clasificación ambiental se describe en la norma IEC 364 § 3:
- Rango de temperatura ambiente: + 6°C a + 40°C, clasificación AA4
- Rango de humedad (sin condensación)
50% rh a 40°C
90% rh a 20°C - Altitud - 2000 m(1)
- Para instalación en interiores
- Presencia de agua: clasificación AD2(1) (posibilidad de gotas de agua)
- Presencia de sólidos: clasificación AE2(1) (presencia de partículas insignificantes)
- Presencia de corrosivos y contaminantes, clasificación AF1 (despreciable)
- Vibración, choque: clasificación AG2, AH2 Competencia del personal: clasificación BA4(1) (personal cualificado de acuerdo con IEC 364).
- Condiciones ambientales(1). La clasificación ambiental se describe en la norma IEC 364 § 3:
(1) El estándar de protección requerido con respecto a esta clasificación es IP21B (de acuerdo con el documento de referencia IEC 529). Todos los 30HXC tienen un estándar de protección de IP23C y, por lo tanto, cumplen con este requisito de protección.
30GX
- Las condiciones de funcionamiento para 30GX se describen a continuación:
- Condiciones ambientales(2). La clasificación ambiental se describe en la norma EN 60721:
- Para instalación en exteriores(2)
- Rango de temperatura ambiente: - 18°C a + 46°C, clasificación 4K3(2)
- Altitud 2000 m(2)
- Presencia de sólidos: clasificación 4S2 (presencia de partículas insignificantes)
- Presencia de corrosivos y contaminantes, clasificación 4C2 (despreciable)
- Vibración, choque: clasificación 4M2
- Condiciones ambientales(2). La clasificación ambiental se describe en la norma EN 60721:
Competencia del personal: clasificación BA4(2) (personal cualificado de acuerdo con IEC 364).
(2) El estándar de protección requerido con respecto a esta clasificación es IP43BW (de acuerdo con el documento de referencia IEC 529). Todos los 30GX tienen un estándar de protección de IP45CW y, por lo tanto, cumplen con este requisito de protección.
30HXC/GX
- Fluctuación en la frecuencia de la fuente de alimentación: ± 2 Hz
- La protección contra sobrecorriente para los conductores de la fuente de alimentación no se suministra con el dispositivo.
- El interruptor de desconexión/aislamiento instalado de fábrica es un aislador de tipo "a". (EN60204-1 § 5.3.2).
NOTA: Si aspectos particulares de una instalación requieren características distintas a las enumeradas anteriormente (o características no mencionadas aquí), póngase en contacto con su representante de Carrier.
Fuente de alimentación
La fuente de alimentación debe ajustarse a la especificación en la placa de identificación del enfriador. El voltaje de suministro debe estar dentro del rango especificado en la tabla de datos eléctricos.
Para las conexiones, consulte los diagramas de cableado.
El funcionamiento del enfriador con un voltaje de suministro incorrecto o un desequilibrio de fase excesivo constituye un abuso que invalidará la garantía de Carrier. Si el desequilibrio de fase supera el 2% para el voltaje o el 10% para la corriente, póngase en contacto con su suministro de electricidad local de inmediato y asegúrese de que el enfriador no se encienda hasta que se hayan tomado medidas correctivas.
Desequilibrio de fase de voltaje (%):
100 x desviación máxima del voltaje promedio
Voltaje promedio
Ejemplo:
En un suministro de 400 V - 3 ph - 50 Hz, se midieron los voltajes de fase individuales y fueron:
AB = 406 V; BC = 399; AC = 394 V
| Voltaje promedio | = (406 + 399 + 394)/3 = 1199/3 |
| = 399.7 digamos 400 V |
Calcule la desviación máxima del promedio de 400 V:
(AB) = 406 - 400 = 6
(BC) = 400 - 399 = 1
(CA) = 400 - 394 = 6

La desviación máxima del promedio es de 6 V. La mayor desviación porcentual es:
100 x 6/400 = 1.5 %
Esto es menos del 2% permitido y, por lo tanto, es aceptable.
SECCIONES DE CABLE RECOMENDADAS
El dimensionamiento del cable es responsabilidad del instalador y depende de las características y regulaciones aplicables a cada sitio de instalación. Lo siguiente solo debe usarse como una guía y no hace que Carrier sea responsable de ninguna manera. Una vez que se haya completado el dimensionamiento del cable, utilizando el dibujo dimensional certificado, el instalador debe asegurar una fácil conexión y definir cualquier modificación necesaria en el sitio.
Las conexiones provistas como estándar para los cables de entrada de alimentación suministrados en el campo al interruptor general de desconexión/aislador están diseñadas para el número y tipo de cables, que se enumeran en la tabla a continuación.
Los cálculos se basan en la corriente máxima de la máquina (ver tablas de datos eléctricos).
Para el diseño se utilizan los siguientes métodos de instalación estandarizados, de acuerdo con IEC 364, tabla 52C:
- Para unidades 30HX instaladas dentro del edificio: No. 13: conducto de cable horizontal perforado, y No. 41: conducto cerrado.
- Para unidades 30GX instaladas fuera del edificio: No. 17: líneas aéreas suspendidas, y No. 61: conducto enterrado con un coeficiente de reducción del 20.
El cálculo se basa en cables aislados de PVC o XLPE con núcleo de cobre o aluminio. La temperatura máxima es de 40 °C para las unidades 30HX y de 46 °C para las unidades 30GX.
La longitud del cable dada limita la caída de tensión a < 5%.
| Unit (Unidad) | Min. (mm2) by phase (Mín. (mm2) por fase) | Wire type (Tipo de cable) | L (m) | Max. (mm2) by phase (Máx. (mm2) por fase) | Wire type (Tipo de cable) | L (m) |
| 30HX 080 | 1 x 35 | XLPE Cu | 140 | 1 x 120 | PVC Al | 260 |
| 30HX 090 | 1 x 50 | XLPE Cu | 160 | 1 x 120 | PVC Al | 260 |
| 30HX 100 | 1 x 50 | XLPE Cu | 160 | 1 x 95 | XLPE Al | 195 |
| 30HX 110 | 1 x 70 | XLPE Cu | 170 | 1 x 120 | XLPE Al | 205 |
| 30HX 120/130 | 1 x 70 | XLPE Cu | 170 | 1 x 150 | XLPE Al | 210 |
| 30HX 140 | 1 x 95 | XLPE Cu | 180 | 1 x 185 | XLPE Al | 220 |
| 30HX 155 | 1 x 95 | XLPE Cu | 180 | 1 x 240 | XLPE Al | 225 |
| 30HX 175 | 1 x 120 | XLPE Cu | 185 | 1 x 240 | XLPE Al | 225 |
| 30HX 190 | 1 x150 | XLPE Cu | 190 | 2 x 95 | XLPE Al | 195 |
| 30HX 200 ckt A | 1 x 70 | XLPE Cu | 170 | 2 x120 | PVC Al | 325 |
| 30HX 230 ckt A | 1 x 95 | XLPE Cu | 180 | 2 x 120 | PVC Al | 325 |
| 30HX 260 ckt A | 1 x 120 | XLPE Cu | 185 | 1 x 240 | XLPE Al | 225 |
| 30HX 285 ckt A | 1 x 150 | XLPE Cu | 190 | 2 x 150 | XLPE Al | 265 |
| 30HX 200 ckt B | 1 x 35 | XLPE Cu | 140 | 1 x 95 | PVC Al | 250 |
| 30HX 230 ckt B | 1 x 35 | XLPE Cu | 140 | 1 x 120 | PVC Al | 260 |
| 30HX 260 ckt B | 1 x 35 | XLPE Cu | 140 | 1 x 120 | PVC Al | 260 |
| 30HX 285 ckt B | 1 x 50 | XLPE Cu | 160 | 2 x 70 | PVC Al | 285 |
| 30HX 310 ckt A & B | 1 x 95 | XLPE Cu | 180 | 1 x 240 | XLPE Al | 225 |
| 30HX 345 ckt A & B | 1 x 120 | XLPE Cu | 185 | 1 x 240 | XLPE Al | 225 |
| 30HX 375 ckt A & B | 1 x 150 | XLPE Cu | 190 | 2 x 150 | XLPE Al | 265 |
| 30GX 082 | 1 x 95 | XLPE Cu | 190 | 2 x 185 | PVC Al | 420 |
| 30GX 092 | 1 x 120 | XLPE Cu | 195 | 2 x 185 | PVC Al | 420 |
| 30GX 102 | 1 x 120 | XLPE Cu | 195 | 2 x 240 | PVC Al | 450 |
| 30GX 112 | 1 x 150 | XLPE Cu | 200 | 2 x 150 | XLPE Al | 300 |
| 30GX 122 | 1 x 185 | XLPE Cu | 205 | 2 x 185 | XLPE Al | 315 |
| 30GX 132 | 1 x 185 | XLPE Cu | 205 | 2 x 240 | XLPE Al | 330 |
| 30GX 152 | 1 x 240 | XLPE Cu | 205 | 3x 185 | XLPE CU | 430 |
| 30GX 162 | 2 x 95 | XLPE Cu | 190 | 3x 240 | XLPE CU | 440 |
| 30GX 182 | 2 x 120 | XLPE Cu | 200 | 3x 240 | XLPE CU | 440 |
| 30GX 207 ckt A | 1 x 185 | XLPE Cu | 205 | 3x 185 | XLPE Al | 445 |
| 30GX 227 ckt A | 1 x 240 | XLPE Cu | 205 | 3x 240 | XLPE Al | 470 |
| 30GX 247/298/328 ckt A | 2 x 120 | XLPE Cu | 225 | 3x 185 | XLPE CU | 490 |
| 30HX 267/358 ckt A | 2 x 150 | XLPE Cu | 230 | 3x 240 | XLPE CU | 505 |
| 30GX 207/227/247 ckt B | 1 x 95 | XLPE Cu | 190 | 2 x 240 | PVC Al | 560 |
| 30HX 267 ckt B | 1 x 120 | XLPE Cu | 200 | 2 x 185 | XLPE AL | 395 |
| 30GX 298 ckt B | 1 x 185 | XLPE Cu | 205 | 3x 240 | XLPE AL | 470 |
| 30GX 328 ckt B | 2 x 120 | XLPE Cu | 225 | 3x 185 | XLPE CU | 490 |
| 30GX 358 ckt B | 2 x 150 | XLPE Cu | 230 | 3x 240 | XLPE CU | 505 |
Antes de conectar los cables de alimentación principales (L1 - L2 - L3) en el bloque de terminales, es imprescindible verificar el orden correcto de las 3 fases antes de proceder a la conexión en el bloque de terminales o en el interruptor principal de desconexión/aislamiento.
Cableado de control de campo
Consulte el Controls IOM y el diagrama de cableado certificado suministrado con la unidad para el cableado de control de campo de las siguientes características:
- Interbloqueo de la bomba del evaporador (obligatorio)
- Interruptor de encendido/apagado remoto
- Interruptor de flujo del condensador (suministrado en campo, solo 30HXC)
- Interruptor remoto de calor/frío
- Interruptor externo de límite de demanda 1
- Punto de ajuste dual remoto
- Informe de alarma por circuito
- Control de la bomba del evaporador
- Control de la bomba del condensador (solo 30HXC)
- Restablecimiento remoto del punto de ajuste o restablecimiento del sensor de temperatura del aire exterior (0-10 V)
Secciones de cable recomendadas para unidades con altas temperaturas de condensación (400 V - 3 ph - 50 Hz)
| Unidad, opciones 150 + 150A 400 V - 3 ph - 50 Hz | Mín. (mm2) por fase | Tipo de cable | L (m) | Máx. (mm2) por fase | Tipo de cable | L (m) |
| 30HXC 080 OPT. 150 | 1 x 50 | XLPE Cu | 150 | 2 x 70 | PVC Al | 230 |
| 30HXC 090 OPT. 150 | 1 x 70 | XLPE Cu | 160 | 2 x 95 | PVC Al | 260 |
| 30HXC 100 OPT. 150 | 1 x 70 | XLPE Cu | 160 | 2 x 95 | PVC Al | 250 |
| 30HXC 110 OPT. 150 | 1 x 95 | XLPE Cu | 170 | 2 x 120 | PVC Al | 265 |
| 30HXC 120 OPT. 150 | 1 x 120 | XLPE Cu | 180 | 2 x 120 | XLPE Al | 205 |
| 30HXC 130 OPT. 150 | 1 x 120 | XLPE Cu | 160 | 2 x 120 | XLPE Al | 210 |
| 30HXC 140 OPT. 150 | 1 x 150 | XLPE Cu | 175 | 2 x 120 | XLPE Al | 205 |
| 30HXC 155 OPT. 150 | 1 x 185 | XLPE Cu | 185 | 2 x 150 | XLPE Al | 215 |
| 30HXC 175 OPT. 150 | 1 x 240 | XLPE Cu | 185 | 2 x 150 | XLPE Al | 210 |
| 30HXC 190 OPT. 150 | 2 x 95 | XLPE Cu | 175 | 2 x 240 | XLPE Al | 220 |
| 30HXC 200 OPT. 150 circ. A | 1 x 120 | XLPE Cu | 170 | 2 x 150 | XLPE Al | 270 |
| 30HXC 230 OPT. 150 circ. A | 1 x 150 | XLPE Cu | 180 | 2 x 185 | XLPE Al | 270 |
| 30HXC 260 OPT. 150 circ. A | 1 x 185 | XLPE Cu | 180 | 2 x 240 | XLPE Al | 295 |
| 30HXC 285 OPT. 150 circ. A | 1 x 240 | XLPE Cu | 170 | 2 x 185 | XLPE Cu | 265 |
| 30HXC 310 OPT. 150 circ. A | 1 x 185 | XLPE Cu | 180 | 2 x 240 | XLPE Al | 300 |
| 30HXC 345 OPT. 150 circ. A | 1 x 185 | XLPE Cu | 170 | 2 x 240 | XLPE Al | 280 |
| 30HXC 375 OPT. 150 circ. A | 1 x 240 | XLPE Cu | 170 | 2 x 185 | XLPE Cu | 265 |
| 30HXC 200 OPT. 150 circ. B | 1 x 35 | XLPE Cu | 125 | 2 x 95 | PVC Al | 320 |
| 30HXC 230 OPT. 150 circ. B | 1 x 50 | XLPE Cu | 140 | 2 x 95 | PVC Al | 310 |
| 30HXC 260 OPT. 150 circ. B | 1 x 50 | XLPE Cu | 140 | 2 x 95 | PVC Al | 310 |
| 30HXC 285 OPT. 150 circ. B | 1 x 70 | XLPE Cu | 160 | 2 x 120 | PVC Al | 325 |
| 30HXC 310 OPT. 150 circ. B | 1 x 150 | XLPE Cu | 180 | 2 x 185 | XLPE Al | 275 |
| 30HXC 345 OPT. 150 circ. B | 1 x 185 | XLPE Cu | 185 | 2 x 240 | XLPE Al | 305 |
| 30HXC 375 OPT. 150 circ. B | 1 x 185 | XLPE Cu | 160 | 2 x 240 | XLPE Al | 280 |
COMPONENTES PRINCIPALES DEL SISTEMA Y DATOS DE OPERACIÓN
Compresor de doble tornillo con engranajes
- Las unidades 30HXC y 30GX utilizan compresores de doble tornillo con engranajes 06N
- Los 06NA se utilizan en 30GX (aplicación de condensación enfriada por aire)
- Los 06NW se utilizan en 30HXC (aplicación de condensación enfriada por agua)
- Las capacidades nominales varían de 39 a 80 toneladas. Se utilizan modelos economizados o no economizados según el tamaño de la unidad 30HXC y 30GX.
Filtro de aceite
El compresor de tornillo 06N tiene un filtro de aceite integrado en la carcasa del compresor. Este filtro es reemplazable en el campo.
Refrigerante
El compresor de tornillo 06N está especialmente diseñado para ser utilizado únicamente en un sistema R134 a.
Lubricante
El compresor de tornillo 06N está aprobado para su uso con el siguiente lubricante.
CARRIER MATERIAL SPEC PP 47-32
Válvula solenoide de suministro de aceite
Una válvula solenoide de suministro de aceite es estándar en el compresor para aislar el compresor del flujo de aceite cuando el compresor no está en funcionamiento.
El solenoide de aceite es reemplazable en el campo.
Filtros de succión y economizador
Para aumentar la confiabilidad del compresor, se ha incorporado un filtro como característica estándar en las entradas de succión y economizador del compresor.
Sistema de descarga
El compresor de tornillo 06N tiene un sistema de descarga que es estándar en todos los compresores. Este sistema de descarga consta de dos pasos de descarga que disminuyen la capacidad del compresor al redirigir el gas parcialmente comprimido de vuelta a la succión.
Evaporador
Los enfriadores 30HXC y 30GX utilizan un evaporador inundado. El agua circula por los tubos y el refrigerante está en el exterior, en la carcasa. Se utiliza un recipiente para ambos circuitos de refrigerante. Hay una placa tubular central que separa los dos circuitos de refrigerante. Los tubos son de cobre de 3/4" de diámetro con una superficie mejorada por dentro y por fuera. Solo hay un circuito de agua y, según el tamaño del enfriador, puede haber dos o tres pasos de agua. Un sensor de nivel de líquido más frío proporciona un control de flujo optimizado.
En la parte superior del enfriador se encuentran las dos tuberías de succión, una en cada circuito. Cada una tiene una brida soldada y el compresor se monta en la brida.
Condensador y separador de aceite (30HXC)
El enfriador 30HXC utiliza un recipiente que es una combinación de condensador y separador de aceite. Está montado debajo del enfriador. El gas de descarga sale del compresor y fluye a través de un silenciador externo hacia el separador de aceite, que es la parte superior del recipiente. Entra en la parte superior del separador donde se elimina el aceite y luego fluye a la parte inferior del recipiente, donde el gas se condensa y se subenfría. Se utiliza un recipiente para ambos circuitos de refrigerante. Hay una placa tubular central que separa los dos circuitos de refrigerante. Los tubos son de cobre de 3/4" o 1" de diámetro con una superficie mejorada por dentro y por fuera. Solo hay un circuito de agua con dos pasos de agua.
Separador de aceite (30GX)
En las unidades enfriadas por aire, el separador de aceite es un recipiente a presión que está montado debajo de las serpentinas del condensador vertical exterior. El gas de descarga entra en la parte superior del separador donde gran parte del aceite se separa y drena hacia la parte inferior. Luego, el gas fluye a través de una malla metálica donde el aceite restante se separa y drena hacia la parte inferior.
Dispositivo de expansión electrónico (EXD)
El microprocesador controla el EXD a través del módulo de control EXV. El EXD será un EXV o un economizador. Dentro de ambos dispositivos hay un motor paso a paso de actuador lineal. El refrigerante líquido de alta presión entra en la válvula a través de la parte inferior. Una serie de ranuras calibradas se encuentran dentro del conjunto del orificio. A medida que el refrigerante pasa a través del orificio, la presión cae y el refrigerante cambia a una condición de 2 fases (líquido y vapor). Para controlar el flujo de refrigerante para diferentes condiciones de funcionamiento, el manguito se mueve hacia arriba y hacia abajo sobre el orificio, cambiando así el área de flujo efectiva del dispositivo de expansión. El manguito es movido por un motor paso a paso lineal. El motor paso a paso se mueve en incrementos y es controlado directamente por el módulo del procesador. A medida que el motor paso a paso gira, el movimiento se transfiere al movimiento lineal mediante el husillo. A través del motor paso a paso y los husillos, se obtienen 1500 pasos discretos de movimiento. La gran cantidad de pasos y la larga carrera dan como resultado un control muy preciso del flujo de refrigerante. Cada circuito tiene un sensor de nivel de líquido montado verticalmente en la parte superior de la carcasa del enfriador. El sensor de nivel consta de un pequeño calentador de resistencia eléctrica y tres termistores conectados en serie colocados a diferentes alturas dentro del cuerpo del pozo. El calentador está diseñado para que los termistores lean aproximadamente 93.3°C en aire seco. A medida que el nivel de refrigerante sube en el enfriador, la resistencia del termistor(es) más cercano cambiará enormemente. Esta gran diferencia de resistencia permite que el control mantenga con precisión un nivel especificado. El sensor de nivel monitorea el nivel de líquido refrigerante en el enfriador y envía esta información al PSIO-1. En el arranque inicial, la posición del EXV es cero. Después de eso, el microprocesador realiza un seguimiento preciso de la posición de la válvula para utilizar esta información como entrada para las otras funciones de control. Lo hace inicializando los EXV al inicio. El procesador envía suficientes pulsos de cierre a la válvula para moverla de completamente abierta a completamente cerrada, luego restablece el contador de posición a cero. A partir de este punto, hasta la inicialización, el procesador cuenta el número total de pasos abiertos y cerrados que ha enviado a cada válvula.
Economizador
Los economizadores están instalados en 30HXC 190, 285 y 375 y 30GX 182, 267 y 358.
El economizador mejora tanto la capacidad como la eficiencia del enfriador, además de proporcionar refrigeración al motor del compresor. Dentro del economizador hay tanto un motor paso a paso EXV lineal como una válvula de flotador. El PIC controla el EXV para mantener el nivel de líquido deseado en el enfriador (como se hace para los enfriadores no economizados). La válvula de flotador mantiene un nivel de líquido en la parte inferior del economizador. El refrigerante líquido se suministra desde el condensador a la parte inferior del economizador. A medida que el refrigerante pasa a través del EXV, su presión se reduce a un nivel intermedio de aproximadamente 500 kPa. Esta presión se mantiene dentro de la carcasa del economizador. A continuación, el refrigerante fluye a través de la válvula de flotador, su presión se reduce aún más a ligeramente por encima de la presión en el enfriador. El aumento en el rendimiento se realiza cuando parte del refrigerante que pasa a través del EXV se convierte en vapor, subenfriando aún más el líquido que se mantiene en la parte inferior del economizador. Este aumento en el subenfriamiento proporciona capacidad adicional. Dado que no se requiere energía adicional para lograr esto, la eficiencia de la máquina también mejora. El vapor que se convierte en vapor subirá al economizador donde pasará al compresor y se utilizará según sea necesario para proporcionar refrigeración al motor. Después de pasar sobre los devanados del motor, el refrigerante vuelve a entrar en el ciclo en un puerto intermedio en el ciclo de compresión.
Bombas de aceite
Los enfriadores de tornillo 30GX/HXC utilizan una bomba de aceite de prelubricación montada externamente por circuito. Esta bomba se opera como parte de la secuencia de arranque.
ATENCIÓN:
La temperatura de funcionamiento de la bobina puede alcanzar los 80°C. En ciertas condiciones temporales (especialmente durante el arranque a baja temperatura exterior o baja temperatura del circuito del condensador) la bomba de aceite puede ser reactivada.
En las unidades 30GX, las bombas están montadas en los rieles de la base en el lado del separador de aceite de la unidad. Las bombas están montadas en un soporte en los condensadores de las unidades 30HXC. Cuando se requiere que un circuito arranque, los controles energizarán primero la bomba de aceite para que el compresor arranque con la lubricación correcta. Si la bomba ha acumulado suficiente presión de aceite, se permitirá que el compresor arranque. Una vez que el compresor ha arrancado, la bomba de aceite se apagará. Si la bomba no pudo acumular suficiente presión de aceite, el control generará una alarma.
Válvulas de refrigeración del motor
Las temperaturas de los devanados del motor del compresor se controlan al punto de ajuste óptimo. El control logra esto ciclando la válvula solenoide de refrigeración del motor para permitir que el refrigerante líquido fluya a través de los devanados del motor según sea necesario. En las unidades equipadas con economizadores, el gas flash sale de la parte superior del economizador y fluye continuamente hacia los devanados del motor. Todo el refrigerante utilizado para la refrigeración del motor vuelve a entrar en los rotores a través de un puerto ubicado a mitad del ciclo de compresión y se comprime a la presión de descarga.
Sensores
Las unidades utilizan termistores (incluidos dos termistores de temperatura del motor) y dos termistores de nivel y transductores de presión para monitorear y controlar el funcionamiento del sistema.
Termistores
Fluido de salida del evaporador
Esta temperatura se utiliza para medir la temperatura del fluido de salida del evaporador (agua o salmuera). La temperatura se utiliza para el control de la temperatura del fluido de salida y para proteger contra la congelación del enfriador. Se encuentra en la boquilla del fluido del evaporador.
Fluido de entrada del evaporador
Este sensor se utiliza para medir la temperatura del fluido de entrada del evaporador. Se encuentra en la boquilla de entrada del evaporador. Se utiliza para proporcionar una compensación automática de temperatura para el control de la temperatura del fluido de salida con compensación del fluido de entrada.
Temperatura del gas de descarga (circuitos A y B)
Este sensor se utiliza para medir la temperatura del gas de descarga y controlar el recalentamiento de la temperatura de descarga. Se encuentra en la tubería de descarga de cada circuito (30HXC) o en la parte superior del separador de aceite (30GX).
ATENCIÓN: No hay manguito de termostato.
Temperatura del motor
El Módulo de Protección del Compresor (CPM, por sus siglas en inglés) monitorea la temperatura del motor. Los terminales del termistor se encuentran en la caja de conexiones del compresor.
Nivel de líquido del evaporador (circuitos A y B)
El termistor de nivel de líquido del evaporador se utiliza para proporcionar un control de flujo optimizado en el evaporador. Está instalado en la parte superior del evaporador.
Fluido de entrada del condensador (30HXC)
Este sensor se utiliza para medir la temperatura del fluido que entra en los condensadores enfriados por agua. Se encuentra en la línea de fluido común que entra en los condensadores (instalado en el campo). En las máquinas de calor, la rutina de control de capacidad lo utiliza. En los condensadores enfriados por agua, solo se utiliza para monitorear la temperatura del fluido del condensador.
Fluido de salida del condensador (opcional en 30HXC)
Este sensor se utiliza para medir la temperatura del fluido que sale de los condensadores enfriados por agua. Se encuentra en la línea de fluido común que sale de los condensadores (instalado en el campo). En las máquinas de calor, la rutina de control de capacidad lo utiliza. En los condensadores enfriados por agua, solo se utiliza para monitorear la temperatura del fluido del condensador.
Disposición de los ventiladores 30GX

GX082/102

GX112/132

GX152/162

GX182

GX207/227

GX247/267

GX298

GX328/358
MANTENIMIENTO
Carga de refrigerante: añadir carga
Estas unidades están diseñadas para usarse solo con R-134a.
NO UTILICE NINGÚN OTRO refrigerante en estas unidades.
Cuando añada o retire carga, haga circular agua a través del condensador (HX) y el enfriador en todo momento para evitar la congelación. Los daños por congelación se consideran un uso indebido y pueden anular la garantía de Carrier.
NO SOBRECARGUE el sistema. La sobrecarga provoca una mayor presión de descarga con un mayor consumo de fluido de refrigeración, posibles daños en el compresor y un mayor consumo de energía.
Indicación de carga baja en un sistema 30HXC
NOTA
Para verificar si hay una carga baja de refrigerante en un 30HXC, se deben considerar varios factores. Un visor de línea de líquido parpadeante no es necesariamente una indicación de carga inadecuada. Existen muchas condiciones del sistema en las que se produce un visor parpadeante durante el funcionamiento normal. El dispositivo de medición 30HXC está diseñado para funcionar correctamente en estas condiciones.
- Asegúrese de que el circuito esté funcionando en una condición de carga completa. Para verificar si el circuito A está completamente cargado, siga el procedimiento descrito en el manual de Controles.
- Puede ser necesario utilizar la función de Control Manual para forzar el circuito a una condición de carga completa. Si este es el caso, consulte las instrucciones para usar la función de Control Manual en el manual de Controles.
- Con el circuito funcionando a plena carga, verifique que la temperatura del fluido que sale del enfriador esté en el rango de 6 °C ± 1,5.
- En esta condición, observe el refrigerante en el visor de la línea de líquido. Si hay un visor transparente y no hay signos de parpadeo, entonces el circuito está cargado adecuadamente. Omita los pasos restantes.
- Si el refrigerante parece estar parpadeando, es probable que el circuito tenga poca carga. Verifique esto revisando la posición de la EXV (consulte el IOM de Controles).
- Si la posición de apertura del EXD es superior al 60 % y si el visor de la línea de líquido está parpadeando, entonces el circuito tiene poca carga. Siga el procedimiento para añadir carga.
Para añadir carga a los sistemas 30HXC
- Asegúrese de que la unidad esté funcionando a plena carga y que la temperatura del fluido que sale del enfriador esté en el rango de 5,6 a 7,8 °C.
- En estas condiciones de funcionamiento, revise el visor de la línea de líquido. Si hay un visor transparente, entonces la unidad tiene suficiente carga. Si el visor está parpadeando, revise el porcentaje de apertura del EXD. Si es superior al 60 %, comience a añadir carga.
NOTA
Un visor de línea de líquido parpadeante en condiciones de funcionamiento distintas a las mencionadas anteriormente no es necesariamente una indicación de carga baja de refrigerante.
- Añada 2,5 kg de carga líquida en el evaporador utilizando la válvula de carga ubicada en la parte superior del evaporador.
- Observe el valor del porcentaje de apertura del EXD. El EXD debería comenzar a cerrarse a medida que se añade carga. Permita que la unidad se estabilice. Si el porcentaje de apertura del EXD permanece por encima del 60 % y todavía hay burbujas en el visor, añada 2,5 kg adicionales de carga líquida.
- Permita que la unidad se estabilice y vuelva a revisar el porcentaje de apertura del EXD. Continúe añadiendo 2,5 kg de carga de refrigerante líquido a la vez y permita que la unidad se estabilice antes de revisar la posición del EXD.
- Cuando el porcentaje de apertura del EXD esté en el rango de 40 a 60 %, revise el visor de la línea de líquido. Añada lentamente suficiente carga líquida adicional para asegurar un visor transparente. Esto debe hacerse lentamente para evitar la sobrecarga de la unidad.
- Verifique la carga adecuada continuando funcionando a plena carga con una temperatura del fluido que sale del evaporador de 6 °C ± 1,5. Compruebe que el refrigerante no esté parpadeando en el visor de la línea de líquido. El porcentaje de apertura del EXD debe estar entre 40 y 60 %. El indicador de nivel del enfriador debe estar en el rango de 1,5 a 2,5.
Indicación de carga baja en sistemas 30GX
- Asegúrese de que el circuito esté funcionando en una condición de carga completa y que la temperatura de condensación sea de 50 °C ± 1,5. Para verificar si el circuito A está completamente cargado, siga el procedimiento en el IOM de Controles.
- Puede ser necesario utilizar la función de Control Manual para forzar el circuito a una condición de carga completa. Si este es el caso, consulte las instrucciones para usar la función de Control Manual (procedimiento en el IOM de Controles).
- Con el circuito funcionando a plena carga, verifique que la temperatura del fluido que sale del enfriador esté en el rango de 6 °C ± 1,5.
- Mida la temperatura del aire que entra en las serpentinas del condensador. Mida la temperatura del líquido después de la T donde se unen las dos líneas de líquido de la serpentina. La temperatura del líquido debe ser 8,3 °C superior a la temperatura del aire que entra en las serpentinas. Si la diferencia es mayor que esto y el visor está parpadeando, el circuito está descargado. Continúe con el paso 5.
- Añada 2,5 kg de carga líquida en el enfriador utilizando la válvula de carga ubicada en la parte superior del enfriador.
- Permita que el sistema se estabilice y luego vuelva a revisar la temperatura del líquido. Repita el paso 5 según sea necesario, permitiendo que el sistema se estabilice entre cada adición de carga. Añada carga lentamente a medida que el visor comience a aclararse para evitar la sobrecarga.
Temperatura ambiente, temperatura del aire exterior (opcional)
Estas temperaturas se utilizan para medir la temperatura del espacio o la temperatura del aire exterior, respectivamente, para el control de reinicio basado en las opciones de reinicio de temperatura del aire exterior o del espacio.
Transductores de presión
Presión de descarga (circuitos A y B)
Esta entrada se utiliza para medir la presión del lado de alta de cada circuito de la unidad.
Se utiliza para proporcionar la presión para reemplazar el manómetro de presión de descarga y para controlar la presión de cabecera.
Presión de succión (circuitos A y B)
Esta entrada se utiliza para medir la presión del lado de baja de la unidad. Se utiliza para proporcionar la presión para reemplazar el manómetro de presión de succión.
Presión de aceite (cada compresor)
Esta entrada se utiliza para medir la presión de aceite de cada compresor de la unidad. Se encuentra en el puerto de presión de aceite de cada compresor.
Presión del economizador (circuitos A y B)
Esta entrada se utiliza para monitorear el diferencial de presión de aceite suministrado al compresor.
Carga de aceite: recarga de aceite bajo
Adición de carga de aceite a los sistemas 30HX/GX
- Si la unidad 30HXC/GX se apaga repetidamente por nivel bajo de aceite, esto puede ser una indicación de carga de aceite inadecuada. También podría significar simplemente que el aceite está en proceso de ser recuperado del lado de baja del sistema.
- Comience por hacer funcionar la unidad a plena carga durante una hora y media.
- Después de funcionar durante 1 hora y media, permita que la unidad se reinicie y funcione normalmente. Si las alarmas de nivel bajo de aceite persisten, la unidad tiene una carga de aceite baja. Añada aceite al separador de aceite, utilizando la válvula de carga de aceite en la parte inferior del condensador (30HXC) o en la parte inferior del separador de aceite (30GX).
NO añada aceite en ningún otro lugar, ya que puede resultar en un funcionamiento incorrecto de la unidad.
- Asegúrese de que la unidad no esté funcionando al añadir aceite, ya que esto facilitará el proceso de carga de aceite. Debido a que el sistema está bajo presión incluso cuando la unidad no está funcionando, será necesario utilizar una bomba adecuada (bomba manual o eléctrica) para añadir aceite al sistema.
- Utilizando una bomba adecuada, añada 2 litros de aceite de polioléster al sistema (ESPECIFICACIÓN DE CARRIER: PP47-32). Asegúrese de que el interruptor de seguridad de nivel de aceite NO esté puenteado y permita que la unidad se reinicie y funcione normalmente.
- Si los problemas de nivel bajo de aceite persisten, añada otros 1 o 2 litros de aceite. Si es necesario añadir más de 4 litros de aceite al sistema, póngase en contacto con el departamento de servicio de su distribuidor de Carrier.
Al transferir la carga de refrigerante a una unidad de almacenamiento, el aceite puede ser arrastrado cuando la unidad no está funcionando. Reutilice primero la cantidad de refrigerante transferida. Después de drenar el aceite, solo recargue la cantidad drenada (una carga excesiva de aceite puede afectar el funcionamiento correcto de la unidad).
Cambio del filtro de aceite integral
Se especifica un filtro de aceite integral en el compresor de tornillo 06N para proporcionar un alto nivel de filtración (3 µ) requerido para una larga vida útil de los cojinetes. Como la limpieza del sistema es fundamental para un funcionamiento fiable del sistema, también hay un prefiltro (7 µ) en la línea de aceite en la salida del separador de aceite.
El número de pieza del elemento de filtro de aceite integral de repuesto es:
Número de pieza de Carrier (incluido el filtro y la junta tórica): 06NA 660016S
Programa de cambio de filtro
El filtro debe revisarse después de las primeras 500 horas de funcionamiento y cada 2000 horas posteriores. El filtro debe reemplazarse en cualquier momento en que la diferencia de presión a través del filtro exceda los 2,1 bar.
La caída de presión a través del filtro se puede determinar midiendo la presión en el puerto de servicio del filtro y en el puerto de presión de aceite. La diferencia en estas dos presiones será la caída de presión a través del filtro, la válvula de retención y la válvula solenoide. La caída de presión a través de la válvula de retención y la válvula solenoide es de aproximadamente 0,4 bar, que debe restarse de las dos mediciones de presión de aceite para dar la caída de presión del filtro de aceite. La caída de presión del filtro de aceite debe revisarse después de cualquier ocasión en que el compresor se apague por una seguridad de baja presión de aceite.
Procedimiento de cambio de filtro
- Los siguientes pasos describen el método adecuado para cambiar el filtro de aceite integral.
- Apague y bloquee el compresor.
- Fuerce manualmente el funcionamiento de la válvula solenoide de aceite, para presionar el obturador de la válvula interna en su asiento.
- Cierre la válvula de servicio del filtro de aceite. Libere la presión de la cavidad del filtro a través del puerto de servicio del filtro.
- Retire el tapón del filtro de aceite. Retire el filtro de aceite viejo.
- Antes de instalar el nuevo filtro de aceite, "engrase" la junta tórica con aceite. Instale el filtro y vuelva a colocar el tapón.
Antes de cerrar el sistema de aceite lubricante, aproveche la oportunidad para reemplazar también el prefiltro. - Cuando termine, evacue la cavidad del filtro a través del puerto de servicio del filtro. Abra la válvula de servicio del filtro. Retire cualquier dispositivo de bloqueo del compresor, el compresor está listo para volver a funcionar.
Reemplazo del compresor
Control de rotación del compresor
La rotación correcta del compresor es una de las consideraciones de aplicación más críticas. La rotación inversa, incluso por un período muy corto, daña el compresor.
El esquema de protección contra rotación inversa debe ser capaz de determinar la dirección de rotación y detener el compresor en 300 milisegundos. Es más probable que se produzca una rotación inversa siempre que se altere el cableado de los terminales del compresor.
Para minimizar la oportunidad de rotación inversa, se debe aplicar el siguiente procedimiento. Vuelva a cablear los cables de alimentación al pin del terminal del compresor como se cableó originalmente.
Para el reemplazo del compresor, se incluye un interruptor de baja presión con el compresor. Este interruptor de baja presión debe instalarse temporalmente como una seguridad dura en la parte de alta presión del compresor. El propósito de este interruptor es proteger el compresor contra cualquier error de cableado en el pin del terminal del compresor. El contacto eléctrico del interruptor se cablearía en serie con el interruptor de alta presión. El interruptor permanecerá en su lugar hasta que el compresor se haya puesto en marcha y se haya verificado la dirección de rotación; en este punto, se retirará el interruptor.
El interruptor que se ha seleccionado para detectar la rotación inversa es el número de pieza de Carrier HK01CB001. Está disponible como parte del "Paquete de instalación del compresor" (n.º de pieza 06NA 660 013). Este interruptor abre los contactos cuando la presión cae por debajo de 50 mm de vacío. El interruptor es un tipo de reinicio manual que se puede restablecer después de que la presión haya vuelto a subir por encima de 70 kPa. Es fundamental que el interruptor sea un tipo de reinicio manual para evitar que el compresor realice ciclos cortos en la dirección inversa.
Resolución de problemas
Siga los pasos a continuación para diagnosticar y corregir los problemas de EXD/Economizador.
En las unidades 30HXC/GX con economizadores, verifique que la válvula para el tubo de burbujas (parte inferior del economizador) esté abierta. Primero revise el funcionamiento del motor EXD (consulte el procedimiento en el IOM de Controles). Debería poder sentir que el actuador se mueve colocando la mano sobre el cuerpo del EXD o del economizador (el actuador está ubicado aproximadamente a la mitad o dos tercios de la parte inferior de la carcasa del economizador). Debería sentir un golpe fuerte proveniente del actuador cuando alcanza la parte superior de su carrera (se puede escuchar si los alrededores son relativamente silenciosos). El actuador debe golpear cuando alcanza la parte inferior de su carrera. Si se cree que la válvula no funciona correctamente, póngase en contacto con su departamento de servicio de Carrier para obtener más información sobre:
- señales de salida en el módulo EXD
- conexiones de cables (continuidad y conexión apretada en todos los terminales de los pines)
- resistencia de los devanados del motor EXD.


Aprobación del Sistema de Gestión Ambiental
N.º de pedido: 13173-76, 03 1999 - Sustituye al N.º: 13173-76, marzo de 1998
El fabricante se reserva el derecho de cambiar cualquier especificación del producto sin previo aviso.
Fabricante: Carrier s.a., Montluel, Francia.
Impreso en los Países Bajos en papel sin cloro.

Descargar manual
Aquí puedes descargar la versión completa en pdf del manual, puede contener instrucciones de seguridad adicionales, información de garantía, reglas de la FCC, etc.
Descargar Manual del compresor de tornillo Carrier 30HXC/30GX