
Ennen 30HXC- ja 30GX -yksikön ensimmäistä käynnistystä, käynnistykseen, käyttöön ja huoltoon osallistuvien henkilöiden tulee olla perillä näistä ohjeista ja muista tarvittavista työtiedoista. Tämä kirja tarjoaa yleiskatsauksen, jotta voit tutustua ohjausjärjestelmään ennen käynnistystoimenpiteiden suorittamista. Tämän käsikirjan toimenpiteet on järjestetty oikean koneen käynnistyksen ja käytön edellyttämässä järjestyksessä.
30HXC- ja 30GX -nestelauhduttimet on suunniteltu tarjoamaan turvallista ja luotettavaa palvelua, kun niitä käytetään suunnitteluvaatimusten mukaisesti. Kun käytät tätä laitetta, käytä hyvää harkintakykyä ja noudata turvallisuusvarotoimia välttääksesi laitteiden ja omaisuuden vahingoittumisen tai henkilövahingot.
Varmista, että ymmärrät ja noudatat koneen ohjeissa olevia menettelyjä ja turvallisuusvarotoimia sekä tässä oppaassa lueteltuja.
ÄLÄ TUULETA kylmäaineen varoventtiilejä rakennuksen sisällä. Varoventtiilin ulostulo on tuuletettava ulos. Kylmäaineen kerääntyminen suljettuun tilaan voi syrjäyttää hapen ja aiheuttaa tukehtumisen tai räjähdyksiä.
HUOLEHDI riittävästä ilmanvaihdosta, erityisesti suljetuissa ja matalissa tiloissa. Suurten höyrypitoisuuksien hengittäminen on haitallista ja voi aiheuttaa sydämen rytmihäiriöitä, tajuttomuutta tai kuoleman. Höyry on ilmaa raskaampaa ja vähentää hengitykseen käytettävissä olevan hapen määrää. Tuote aiheuttaa silmien ja ihon ärsytystä. Hajoamistuotteet ovat vaarallisia.
ÄLÄ KÄYTÄ HAPPEA linjojen puhdistamiseen tai koneen paineistamiseen missään tarkoituksessa. Happikaasu reagoi voimakkaasti öljyn, rasvan ja muiden yleisten aineiden kanssa.
ÄLÄ KOSKAAN YLITÄ määritettyjä testauspaineita, VARMISTA sallittu testauspaine tarkistamalla ohjekirjallisuus ja laitteen tyyppikilvessä olevat suunnittelupaineet.
ÄLÄ KÄYTÄ ilmaa vuotojen testaamiseen. Käytä vain kylmäainetta tai kuivaa typpeä.
ÄLÄ SULJE mitään turvalaitetta.
VARMISTA, että kaikki paineenrajoituslaitteet on asennettu oikein ennen koneen käyttöä.
ÄLÄ HITSATA TAI LIEKKILEIKKAA mitään kylmäaineputkea tai -astiaa, ennen kuin kaikki kylmäaine (neste ja höyry) on poistettu jäähdyttimestä. Höyryjäämät on syrjäytettävä kuivalla ilmatyypellä ja työskentelyalueen on oltava hyvin tuuletettu. Kylmäaine kosketuksissa avotuleen tuottaa myrkyllisiä kaasuja.
ÄLÄ työskentele jännitteisen laitteiston parissa, ellet ole ammattitaitoinen sähköasentaja.
ÄLÄ TYÖSKENTELE sähkökomponenttien, mukaan lukien ohjauspaneelit, kytkimet, releet jne. parissa, ennen kuin olet varma, että KAIKKI VIRTA ON POIS PÄÄLTÄ ja jäännösjännite voi vuotaa kondensaattoreista tai puolijohdekomponenteista.
LUKITSE AUKI JA MERKITSE sähköpiirit huollon aikana. JOS TYÖ KESKEYTYY, tarkista, että kaikki piirit on jännitteettömiä ennen työn jatkamista.
ÄLÄ ime kylmäainetta.
VÄLTÄ nesteen kylmäaineen roiskumista iholle tai silmiin. KÄYTÄ SUOJALASEJA. Pese kaikki roiskeet iholta saippualla ja vedellä. Jos nestemäistä kylmäainetta pääsee silmiin,
HUUHTELE SILMÄT VÄLITTÖMÄSTI vedellä ja ota yhteys lääkäriin.
ÄLÄ KOSKAAN KÄYTÄ avotulta tai elävää höyryä kylmäainesäiliöön. Vaarallinen ylipaine voi aiheutua. Jos kylmäainetta on tarpeen lämmittää, käytä vain lämmintä vettä.
ÄLÄ KÄYTÄ UUDELLEEN kertakäyttöisiä (ei palautettavia) pulloja tai yritä täyttää niitä uudelleen. Se on VAARALLISTA JA LAITONTA. Kun pullot on tyhjennetty, tyhjennä jäljellä oleva kaasunpaine, löysää kaulusta ja kierrä irti ja hävitä venttiilin varsi. ÄLÄ POLTA.
TARKISTA KYLMÄAINEEN TYYPPI ennen kylmäaineen lisäämistä koneeseen. Väärän kylmäaineen lisääminen voi aiheuttaa vahinkoa tai toimintahäiriön tälle koneelle.
ÄLÄ YRITÄ IRROTTAA liittimiä, komponentteja jne., kun kone on paineen alaisena tai kun kone on käynnissä. Varmista, että paine on 0 kPa ennen kylmäaineliitoksen katkaisemista.
TARKASTA HUOLELLISESTI kaikki paineenrajoituslaitteet VÄHINTÄÄN KERRAN VUODESSA. Jos kone toimii syövyttävässä ilmakehässä, tarkasta laitteet useammin.
ÄLÄ YRITÄ KORJATA TAI KUNNOSTAA mitään paineenrajoituslaitetta, kun venttiilin rungossa tai mekanismissa havaitaan korroosiota tai vieraiden aineiden (ruoste, lika, hilse jne.) kertymistä. Vaihda laite.
ÄLÄ asenna paineenrajoituslaitteita sarjaan tai taaksepäin.
ÄLÄ ASTU kylmäaineputkien päälle. Rikkoutuneet putket voivat piiskata ympäriinsä ja vapauttaa kylmäainetta aiheuttaen henkilövahinkoja.
ÄLÄ KIIREÄ koneen yli. Käytä tasoa tai lavastusta.
KÄYTÄ MEKAANISIA LAITTEITA (nosturi, hissi jne.) raskaiden komponenttien nostamiseen tai siirtämiseen. Vaikka komponentit olisivat kevyitä, käytä mekaanisia laitteita, kun on olemassa liukastumisen tai tasapainon menettämisen vaara.
OLE TIETOINEN siitä, että tietyt automaattiset käynnistysjärjestelyt VOIVAT KYTKEÄ PÄÄLLE TORNITUULETTIMEN TAI PUMPUT. Avaa katkaisin ennen tornituulettimia tai pumppuja.
KÄYTÄ vain korjaus- tai varaosia, jotka täyttävät alkuperäisen laitteen vaatimukset.
ÄLÄ TUULETA TAI TYHJENNÄ teollisia suoloja sisältäviä vesilaatikoita ilman toimivaltaisen elimen lupaa.
ÄLÄ LÖYSÄÄ vesilaatikon pultteja, ennen kuin vesilaatikko on tyhjennetty kokonaan.
ÄLÄ LÖYSÄÄ tiivisteholkin mutteria ennen kuin tarkistat, että mutterissa on positiivinen kierteen tartunta.
TARKASTA SÄÄNNÖLLISESTI kaikki venttiilit, liittimet ja putket korroosion, ruosteen, vuotojen tai vaurioiden varalta.
JÄRJESTÄ VIEMÄRILIITÄNTÄ tuuletusputkeen lähelle jokaista paineenrajoituslaitetta estämään kondensaatin tai sadeveden kertymistä.
30HXC080
30HXC090
30HXC100
30HXC110

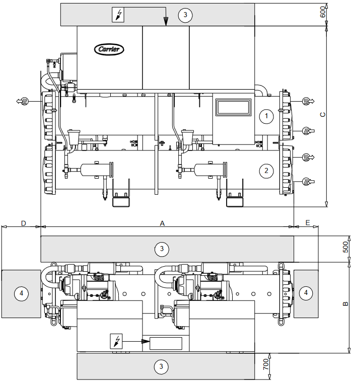
Veden sisääntulo
Veden ulostulo
Virtalähde
kg: kokonaiskäyttöpaino
| A mm | B mm | C mm | D mm | E mm | kg | |
| 30HXC080 30HXC090 30HXC100 |
2705 | 950 | 1850 | 2360 | 1000 | 2447 2462 2504 |
| 30HXC110 | 2705 | 950 | 1900 | 2360 | 1000 | 2650 |
| 30HXC120 30HXC130 30HXC140 30HXC155 |
3535 | 950 | 1875 | 3220 | 1000 | 2846 2861 2956 2971 |
| 30HXC175 30HXC190 |
3550 | 950 | 2000 | 3220 | 1000 | 3283 3438 |
HUOMAUTUS: Katso yksikön mukana toimitettuja sertifioituja mittapiirustuksia asennuksen suunnittelussa.

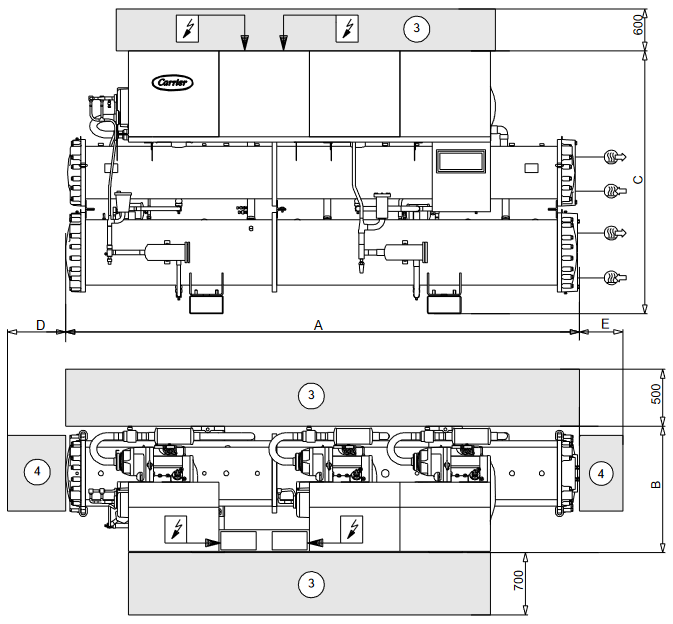
Veden sisääntulo
Veden ulostulo
Virtalähde
kg: kokonaiskäyttöpaino
| A mm | B mm | C mm | D mm | E mm | kg | |
| 30HXC200 | 3975 | 980 | 2035 | 3620 | 1000 | 4090 |
| 30HXC230 30HXC260 30HXC285 |
3995 | 980 | 2116 | 3620 | 1000 | 4705 4815 4985 |
| 30HXC310 30HXC345 30HXC375 |
4490 | 980 | 2163 | 4120 | 1000 | 5760 5870 6105 |
HUOMAUTUS: Katso yksikön mukana toimitettuja sertifioituja mittapiirustuksia asennuksen suunnittelussa.
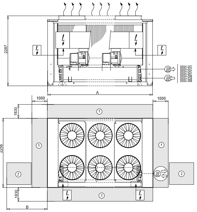
30GX-082
30GX-092
30GX-102
30GX-112
30GX-122
30GX-132
30GX-152
30GX-162
30GX-182


Veden sisääntulo
Veden ulostulo
Virtalähde
Ilman ulostulo - älä tuki
kg: kokonaiskäyttöpaino
| A mm | B mm | kg | |
| 30GX082 30GX092 30GX102 |
2970 | 2215 | 3116 3157 3172 |
| 30GX112 30GX122 30GX132 |
3427 | 2045 | 3515 3531 3633 |
| 30GX152 30GX162 |
4342 | 2835 | 3920 3936 |
| 30GX182 | 5996 | 1820 | 4853 |


Huomautuksia:
HUOMAUTUS: Katso yksikön mukana toimitettuja sertifioituja mittapiirustuksia asennuksen suunnittelussa.
30GX-207
30GX-227
30GX-247
30GX-267
30GX-298
30GX-328
30GX-358

Veden sisääntulo
Veden ulostulo
Virtalähde
Ilman ulostulo - älä tuki
kg: kokonaiskäyttöpaino
| A mm | B mm | kg | |
| 30GX207 30GX227 |
5996 | 2895 | 5540 5570 |
| 30GX247 30GX267 |
6911 | 2470 | 6134 6365 |
| 30GX298 | 7826 | 2220 | 7354 |
| 30GX328 30GX358 |
8741 | 1250 | 7918 8124 |


Huomautuksia:
HUOMAUTUS: Katso yksikön mukana toimitettuja sertifioituja mittapiirustuksia asennuksen suunnittelussa.
| 30HXC | 080 | 090 | 100 | 110 | 120 | 130 | 140 | 155 | 175 | 190 | 200 | 230 | 260 | 285 | 310 | 345 | 375 | |
| Net cooling capacity (nettojäähdytysteho) | kW | 292 | 321 | 352 | 389 | 426 | 464 | 514 | 550 | 607 | 663 | 716 | 822 | 918 | 996 | 1119 | 1222 | 1326 |
| Operating weight (käyttöpaino) | kg | 2447 | 2462 | 2504 | 2650 | 2846 | 2861 | 2956 | 2971 | 3283 | 3438 | 4090 | 4705 | 4815 | 4985 | 5760 | 5870 | 6105 |
| Refrigerant (kylmäaine) Circuit A/B (piiri A/B) |
HFC-134a | |||||||||||||||||
| kg | 39/36 | 39/36 | 37/32 | 38/38 | 57/55 | 59/50 | 56/50 | 59/52 | 58/61 | 60/70 | 110/58 | 118/63 | 120/75 | 120/75 | 108/110 | 110/110 | 110/120 | |
| Oil (öljy) Circuit A/B (piiri A/B) |
Polyolester oil CARRIER SPEC: PP 47-32 | |||||||||||||||||
| l | 15/15 | 15/15 | 15/15 | 15/15 | 15/15 | 15/15 | 15/15 | 15/15 | 15/15 | 15/15 | 30/15 | 30/15 | 30/15 | 30/15 | 30/30 | 30/30 | 30/30 | |
| Compressors (kompressorit) | Hermetic twin-screw Power3 | |||||||||||||||||
| Circ. A, nom. size per compressor** (piiri A, nimelliskoko per kompressori**) | 39 | 46 | 46 | 56 | 56 | 66 | 80 | 80 | 80 | 80+ | 66/56 | 80/56 | 80/80 | 80+/80+ | 80/66 | 80/80 | 80+/80+ | |
| Circ. B, nom. size per compressor** (piiri B, nimelliskoko per kompressori**) | 39 | 39 | 46 | 46 | 56 | 56 | 56 | 66 | 80 | 80+ | 66 | 80 | 80 | 80+ | 80/66 | 80/80 | 80+/80+ | |
| Control type (ohjaustyyppi) | PRO-DIALOG Plus control | |||||||||||||||||
| Number of capacity steps (tehoalueiden määrä) | 6 | 6 | 6 | 6 | 6 | 6 | 6 | 6 | 6 | 6 | 8 | 8 | 8 | 8 | 10 | 10 | 10 | |
| Minimum capacity (vähimmäisteho) | % | 19 | 19 | 21 | 19 | 21 | 19 | 17 | 19 | 21 | 21 | 14 | 14 | 14 | 14 | 10 | 10 | 10 |
| Evaporator (höyrystin) | Shell and tube type, with internally finned copper tubes (putkikennohöyrystin, jossa sisäpuoliset rivoitetut kupariputket) | |||||||||||||||||
| Net water volume (netto vesimäärä) | l | 65 | 65 | 73 | 87 | 81 | 81 | 91 | 91 | 109 | 109 | 140 | 165 | 181 | 181 | 203 | 229 | 229 |
| Water connections (vesiliitännät) | Factory-supplied flat flange, to be welded on site (tehtaalla asennettu litteä laippa, hitsataan asennuspaikalla) | |||||||||||||||||
| Inlet and outlet (tulo ja meno) | in. | 4 | 4 | 4 | 5 | 5 | 5 | 5 | 5 | 5 | 5 | 6 | 6 | 6 | 6 | 8 | 8 | 8 |
| Drain and vent (NPT) (tyhjennys ja ilmaus (NPT)) | in. | 3/8 | 3/8 | 3/8 | 3/8 | 3/8 | 3/8 | 3/8 | 3/8 | 3/8 | 3/8 | 3/8 | 3/8 | 3/8 | 3/8 | 3/8 | 3/8 | 3/8 |
| Max. water-side operating pressure (suurin sallittu vedenpuolen käyttöpaine) | kPa | 1000 | 1000 | 1000 | 1000 | 1000 | 1000 | 1000 | 1000 | 1000 | 1000 | 1000 | 1000 | 1000 | 1000 | 1000 | 1000 | 1000 |
| Condensers (lauhduttimet) | Shell and tube type, with internally finned copper tubes (putkikennolauhdutin, jossa sisäpuoliset rivoitetut kupariputket) | |||||||||||||||||
| Net water volume (netto vesimäärä) | l | 58 | 58 | 58 | 58 | 92 | 92 | 110 | 110 | 132 | 132 | 162 | 208 | 208 | 208 | 251 | 251 | 251 |
| Water connections (vesiliitännät) | Factory-supplied flat flange, to be welded on site (tehtaalla asennettu litteä laippa, hitsataan asennuspaikalla) | |||||||||||||||||
| Inlet and outlet (tulo ja meno) | in. | 5 | 5 | 5 | 5 | 5 | 5 | 5 | 5 | 6 | 6 | 6 | 6 | 6 | 6 | 8 | 8 | 8 |
| Drain and vent (NPT) (tyhjennys ja ilmaus (NPT)) | in. | 3/8 | 3/8 | 3/8 | 3/8 | 3/8 | 3/8 | 3/8 | 3/8 | 3/8 | 3/8 | 3/8 | 3/8 | 3/8 | 3/8 | 3/8 | 3/8 | 3/8 |
| Max. water-side operating pressure (suurin sallittu vedenpuolen käyttöpaine) | kPa | 1000 | 1000 | 1000 | 1000 | 1000 | 1000 | 1000 | 1000 | 1000 | 1000 | 1000 | 1000 | 1000 | 1000 | 1000 | 1000 | 1000 |
* Standardisoidut Eurovent-olosuhteet: höyrystimen tuloveden/menoveden lämpötilat = 12°C/7°C, lauhduttimen tuloveden/menoveden lämpötilat = 30°C/35°C Net cooling capacity (nettojäähdytysteho): Bruttojäähdytysteho miinus vesipumpun lämpö sisäistä höyrystimen painehäviötä vastaan. ** The compressor size corresponds to the nominal capacity in tons (1 ton = 3.517 kW) (Kompressorin koko vastaa nimellistehoa tonneissa (1 tonni = 3,517 kW)).
| 30HXC | 080 | 090 | 100 | 110 | 120 | 130 | 140 | 155 | 175 | 190 | 200 | 230 | 260 | 285 | 310 | 345 | 375 | |
| Virtapiiri | ||||||||||||||||||
| Nimellinen virransyöttö* | V-ph-Hz | 400-3-50 | ||||||||||||||||
| Jännitealue | V | 360-440 | ||||||||||||||||
| Ohjauspiirin syöttö | Ohjauspiiri saa virtansa tehtaalla asennetun muuntajan kautta | |||||||||||||||||
| Nimellinen ottoteho* | kW | 59 | 67 | 74 | 83 | 88 | 99 | 112 | 123 | 135 | 146 | 156 | 179 | 201 | 219 | 245 | 274 | 298 |
| Nimellisvirranotto* | A | 98 | 111 | 124 | 139 | 148 | 166 | 186 | 204 | 226 | 242 | 259 | 291 | 335 | 367 | 408 | 456 | 498 |
| Suurin ottoteho** | kW | 76 | 83 | 91 | 101 | 111 | 121 | 135 | 145 | 158 | 181 | 187 | 214 | 237 | 272 | 290 | 316 | 362 |
| Piiri A | kW | - | - | - | - | - | - | - | - | - | - | 121 | 135 | 158 | 181 | 145 | 158 | 181 |
| Piiri B | kW | - | - | - | - | - | - | - | - | - | - | 66 | 79 | 79 | 91 | 145 | 158 | 181 |
| Cos φ, yksikkö täydellä kuormalla | 0.87 | 0.87 | 0.87 | 0.87 | 0.87 | 0.87 | 0.87 | 0.87 | 0.87 | 0.87 | 0.87 | 0.87 | 0.87 | 0.87 | 0.87 | 0.87 | 0.87 | |
| Suurin virranotto (Un - 10%)*** | A | 138 | 152 | 166 | 184 | 202 | 221 | 245 | 264 | 288 | 330 | 341 | 389 | 432 | 495 | 528 | 576 | 660 |
| Piiri A | A | - | - | - | - | - | - | - | - | - | - | 221 | 245 | 288 | 330 | 264 | 288 | 330 |
| Piiri B | A | - | - | - | - | - | - | - | - | - | - | 120 | 144 | 144 | 165 | 264 | 288 | 330 |
| Suurin virranotto (Un)*** | A | 125 | 138 | 151 | 167 | 184 | 201 | 223 | 240 | 262 | 300 | 310 | 354 | 393 | 450 | 480 | 524 | 600 |
| Piiri A | A | - | - | - | - | - | - | - | - | - | - | 201 | 223 | 262 | 300 | 240 | 262 | 300 |
| Piiri B | A | - | - | - | - | - | - | - | - | - | - | 109 | 131 | 131 | 150 | 240 | 262 | 300 |
| Suurin käynnistysvirta, vakioyksikkö (Un)**** | A | 172 | 197 | 209 | 235 | 252 | 283 | 318 | 335 | 357 | 420 | 806 | 938 | 977 | 1156 | 1064 | 1108 | 1306 |
| Piiri A | A | - | - | - | - | - | - | - | - | - | - | 697 | 807 | 846 | 1006 | 824 | 846 | 1006 |
| Piiri B | A | - | - | - | - | - | - | - | - | - | - | 605 | 715 | 715 | 856 | 824 | 846 | 1006 |
| Suurin käynnistysvirta/suurin virranotto -suhde, yksikkö | 1.37 | 1.42 | 1.39 | 1.41 | 1.37 | 1.41 | 1.43 | 1.40 | 1.36 | 1.40 | 2.60 | 2.65 | 2.49 | 2.57 | 2.22 | 2.12 | 2.18 | |
| Suurin käynnistysvirta/suurin virranotto -suhde, piiri A | - | - | - | - | - | - | - | - | - | - | 3.47 | 3.62 | 3.23 | 3.35 | 3.43 | 3.23 | 3.35 | |
| Suurin käynnistysvirta/suurin virranotto -suhde, piiri B | - | - | - | - | - | - | - | - | - | - | 5.55 | 5.46 | 5.46 | 5.71 | 3.43 | 3.23 | 3.35 | |
| Suurin käynnistysvirta - alennettu käynnistysvirta (Un) **** | A | std. | std. | std. | std. | std. | std. | std. | std. | std. | std. | 601 | 643 | 682 | 760 | 769 | 813 | 910 |
| Piiri A | A | std. | std. | std. | std. | std. | std. | std. | std. | std. | std. | 492 | 512 | 551 | 610 | 529 | 551 | 610 |
| Piiri B | A | std. | std. | std. | std. | std. | std. | std. | std. | std. | std. | 330 | 370 | 370 | 385 | 529 | 551 | 610 |
| Suurin käynnistysvirta - alennettu käynnistysvirta/suurin virranotto -suhde, yksikkö | std. | std. | std. | std. | std. | std. | std. | std. | std. | std. | 1.94 | 1.82 | 1.74 | 1.69 | 1.60 | 1.55 | 1.52 | |
| Piiri A | std. | std. | std. | std. | std. | std. | std. | std. | std. | std. | 2.45 | 2.30 | 2.10 | 2.03 | 2.20 | 2.10 | 2.03 | |
| Piiri B | std. | std. | std. | std. | std. | std. | std. | std. | std. | std. | 3.03 | 2.83 | 2.83 | 2.57 | 2.20 | 2.10 | 2.03 | |
| Kolmivaiheinen oikosulkuvirran kesto | kA | 25 | 25 | 25 | 25 | 25 | 25 | 25 | 25 | 25 | 25 | N/A | N/A | N/A | N/A | N/A | N/A | N/A |
| Piiri A | kA | - | - | - | - | - | - | - | - | - | - | 25 | 25 | 25 | 25 | 25 | 25 | 25 |
| Piiri B | kA | - | - | - | - | - | - | - | - | - | - | 15 | 15 | 15 | 15 | 25 | 25 | 25 |
| Asiakkaan valmiuskapasiteetti, yksikkö tai piiri A, höyrystimen vesipumppuliitännöille† | kW | 8 | 8 | 8 | 11 | 11 | 11 | 15 | 15 | 15 | 15 | 15 | 18 | 18 | 30 | 30 | 30 | 30 |
* Euroventin vakio-olosuhteet: Höyrystimen sisään tulevan/poistuvan veden lämpötila 12 °C ja 7 °C. Lauhduttimen sisään tulevan/poistuvan veden lämpötila 30 °C / 35 °C.
** Ottoteho, kompressori, yksikön käyttörajojen sisällä (höyrystimen sisään tulevan/poistuvan veden lämpötila = 15 °C / 10 °C, lauhduttimen sisään tulevan/poistuvan veden lämpötila = 40 °C / 45 °C) ja nimellisjännite 400 V (tiedot yksikön tyyppikilvessä).
*** Suurin yksikön käyttövirta suurimmalla yksikön ottoteholla.
**** Suurin hetkellinen käynnistysvirta (pienimmän kompressorin/kompressoreiden suurin käyttövirta + suurimman kompressorin lukittu roottorivirta tai alennettu käynnistysvirta)
† Virta- ja tehonkulutus ei sisälly yllä oleviin arvoihin.
N/A Ei saatavilla
| Viite | Koko | I nom. | MHA | LRA | LRA (Y) | LRA (S) 1 cp. | LRA (S) 2 cp. |
| 06NW2146S7N | 39 | 48 | 69 | 344 | 109 | 125 | - |
| 06NW2174S7N | 46 | 58 | 83 | 423 | 134 | 154 | - |
| 06NW2209S7N | 56 | 71 | 101 | 506 | 160 | 260 | 350 |
| 06NW2250S7N | 66 | 87 | 120 | 605 | 191 | 330 | 400 |
| 06NW2300S5N | 80 | 104 | 144 | 715 | 226 | 370 | 420 |
| 06NW2300S5E | 80+ | 111 | 165 | 856 | 270 | 385 | 460 |
Selite:
| 06NW | Kompressori vesijäähdytteisille yksiköille |
| N | Ei-taloudellinen kompressori |
| E | Taloudellinen kompressori |
| INOM | Kompressorin keskimääräinen virranotto Eurovent-olosuhteissa |
| MHA | Must hold amperes (suurin käyttövirta) 360 V:lla |
| LRA | Lukittu roottorivirta suoralla käynnistyksellä |
| LRA (Y) | Lukittu roottorivirta alennetulla virralla (tähti/kolmio-käynnistystila) |
| LRA (S) 1 cp. | Käynnistys alennetulla virralla elektronisella käynnistimellä (käynnistyskesto enintään 3 sekuntia) yhdelle kompressorille per piiri |
| LRA (S) 2 cp. | Käynnistys alennetulla virralla elektronisella käynnistimellä (käynnistyskesto enintään 3 sekuntia) kahdelle kompressorille per piiri |
30HXC 150 ja 150A -optiot
| 30HXC | 080 | 090 | 100 | 110 | 120 | 130 | 140 | 155 | 175 | 190 | 200 | 230 | 260 | 285 | 310 | 345 | 375 | |
| Tehopiiri | ||||||||||||||||||
| Nimellinen virransyöttö* | V-ph-Hz | 400-3-50 | ||||||||||||||||
| Jännitealue | V | 360-440 | ||||||||||||||||
| Ohjauspiirin syöttö | Ohjauspiiri saa virtansa tehtaalla asennetun muuntajan kautta | |||||||||||||||||
| Suurin tehonkulutus** | kW | 104 | 117 | 131 | 145 | 159 | 174 | 194 | 211 | 230 | 263 | 271 | 310 | 345 | 395 | 422 | 460 | 526 |
| Piiri A | kW | - | - | - | - | - | - | - | - | - | - | 175 | 195 | 230 | 263 | 211 | 230 | 263 |
| Piiri B | kW | - | - | - | - | - | - | - | - | - | - | 96 | 115 | 115 | 132 | 211 | 230 | 263 |
| Suurin virrankulutus (Un - 10%)*** | A | 190 | 215 | 240 | 265 | 290 | 320 | 355 | 385 | 420 | 480 | 495 | 564 | 630 | 720 | 770 | 840 | 960 |
| Piiri A | A | - | - | - | - | - | - | - | - | - | - | 320 | 355 | 420 | 480 | 385 | 420 | 480 |
| Piiri B | A | - | - | - | - | - | - | - | - | - | - | 175 | 210 | 210 | 240 | 385 | 420 | 480 |
| Suurin virrankulutus (Un)*** | A | 173 | 195 | 218 | 241 | 264 | 291 | 323 | 350 | 382 | 436 | 450 | 514 | 573 | 655 | 700 | 764 | 873 |
| Piiri A | A | - | - | - | - | - | - | - | - | - | - | 291 | 323 | 382 | 436 | 350 | 382 | 436 |
| Piiri B | A | - | - | - | - | - | - | - | - | - | - | 159 | 191 | 191 | 218 | 350 | 382 | 436 |
| Suurin käynnistysvirta, vakioyksikkö (Un)**** | A | 277 | 312 | 335 | 379 | 402 | 435 | 519 | 546 | 578 | 618 | 1251 | 1549 | 1608 | 1701 | 1735 | 1799 | 1920 |
| Piiri A | A | - | - | - | - | - | - | - | - | - | - | 1092 | 1358 | 1417 | 1483 | 1385 | 1417 | 1483 |
| Piiri B | A | - | - | - | - | - | - | - | - | - | - | 960 | 1226 | 1226 | 1265 | 1385 | 1417 | 1483 |
| Suurin käynnistysvirta/suurin virrankulutussuhde, yksikkö | 1.61 | 1.60 | 1.54 | 1.57 | 1.52 | 1.49 | 1.61 | 1.56 | 1.51 | 1.42 | 2.78 | 3.02 | 2.81 | 2.60 | 2.48 | 2.36 | 2.20 | |
| Suurin käynnistysvirta/suurin virrankulutussuhde, piiri A | - | - | - | - | - | - | - | - | - | - | 3.75 | 4.21 | 3.71 | 3.40 | 3.96 | 3.71 | 3.40 | |
| Suurin käynnistysvirta/suurin virrankulutussuhde, piiri B | - | - | - | - | - | - | - | - | - | - | 6.03 | 6.42 | 6.42 | 5.80 | 3.96 | 3.71 | 3.40 | |
| Suurin käynnistysvirta - alennettu käynnistysvirta (Un) **** | A | std. | std. | std. | std. | std. | std. | std. | std. | std. | std. | N/A | N/A | N/A | N/A | N/A | N/A | N/A |
| Kolmivaiheinen oikosulkuvirran kesto | kA | 25 | 25 | 25 | 25 | 25 | 25 | 25 | 25 | 25 | 25 | N/A | N/A | N/A | N/A | N/A | N/A | N/A |
| Piiri A | kA | - | - | - | - | - | - | - | - | - | - | 25 | 25 | 25 | 25 | 25 | 25 | 25 |
| Piiri B | kA | - | - | - | - | - | - | - | - | - | - | 15 | 15 | 15 | 15 | 25 | 25 | 25 |
| Asiakkaan valmiuskapasiteetti, yksikkö tai piiri A, höyrystimen vesipumppuliitäntöjä varten† | kW | 8 | 8 | 8 | 11 | 11 | 11 | 15 | 15 | 15 | 15 | 15 | 18 | 18 | 30 | 30 | 30 | 30 |
** Tehonkulutus, kompressori, yksikön toimintarajojen sisällä (höyrystimen vesi sisään/ulos -lämpötila = 15°C/10°C, lauhduttimen vesi sisään/ulos -lämpötila = 40°C/45°C) ja nimellisjännite 400 V (tiedot yksikön tyyppikilvessä).
*** Suurin yksikön käyttövirta suurimmalla yksikön tehonkulutuksella.
**** Suurin hetkellinen käynnistysvirta (pienimmän kompressorin/kompressoreiden suurin käyttövirta + suurimman kompressorin lukittu roottorivirta tai alennettu käynnistysvirta)
† Virta- ja tehonkulutukset eivät sisälly yllä oleviin arvoihin.
N/A Ei saatavilla
30HXC 080-375 -yksiköt korkeille lauhdelämpötiloille on johdettu suoraan vakiomalleista. Niiden käyttöalue on sama kuin vakioyksiköiden, mutta mahdollistaa toiminnan lauhduttimen poistuvan veden lämpötiloissa jopa 63°C. PRO-DIALOG -ohjaus tarjoaa kaikki vakioyksiköiden edut sekä lauhduttimen poistuvan veden lämpötilan ohjauksen.
Tärkeimmät muutokset ovat:
Nämä yksiköt on suunniteltu perinteisiin sovelluksiin vesijäähdytteisille yksiköille, mutta korkeammille lauhduttimen poistuvan veden lämpötiloille kuin 45°C.
Kuten vakioyksiköt, ne on varustettu lauhduttimen sisään- ja ulostuloveden antureilla, jotka on asennettu putkistoon.
Koneen ohjaus on mahdollista lauhdeveden ulostulossa, mikä edellyttää tehdasasetusten muutosta ja lämmitys-/jäähdytystulon kääntölaitteen käyttöä.
Nämä yksiköt on suunniteltu vesi-vesilämpöpumpuille.
Ne on tehtaalla määritetty lämpöpumpuiksi (lämmitys-/jäähdytys-ohjaus etäkääntölaitteen funktiona). Lauhdutin sisältää lämpöeristyksen, joka on identtinen höyrystimen kanssa.
Kaikki tiedot ovat identtisiä vakio-30HXC-yksiköiden kanssa, paitsi seuraavat kohdat.
Tälle yksikkötyypille ei ole nimellisolosuhteita. Valinta tehdään nykyisen sähköisen luettelon avulla.
Nämä ovat identtisiä vakio-30HXC-yksiköiden kanssa. Ainoa ero on tulevan kenttäjohdotuksen liitännän halkaisijassa, joka on kuvattu luvussa "Suositeltava valinta". Katso näiden yksiköiden mittapiirustukset ennen johdotuksen aloittamista.
Katso 30GX-kompressoritaulukko.
Kaikki vakio-30HXC-yksiköille saatavilla olevat optiot ovat yhteensopivia, paitsi:
| Optio 5, suolaliuosyksikkö | Erikoisyksikkö |
| Optio 25, pehmokäynnistys, 30HXC 200-375 -yksiköt | Ei saatavilla |
Huomio:
Jos yksiköillä on kaksi eri toimintatilaa - yksi korkealla lauhdelämpötilalla ja toinen matalalla lauhdelämpötilalla - ja siirtyminen tehdään yksikön ollessa käynnissä, lämpötila ei saa vaihdella enempää kuin 3 K minuutissa. Tapauksissa, joissa tämä ei ole mahdollista, on suositeltavaa käyttää yksikön käynnistys-/pysäytyskytkintä (etäkäynnistys/pysäytys saatavilla vakioyksiköille).
| 30GX | 082 | 092 | 102 | 112 | 122 | 132 | 152 | 162 | 182 | 207 | 227 | 247 | 267 | 298 | 328 | 358 | ||
| Nettokylmäteho | kW | 285 | 309 | 332 | 388 | 417 | 450 | 505 | 536 | 602 | 687 | 744 | 810 | 910 | 1003 | 1103 | 1207 | |
| Käyttöpaino | kg | 3116 | 3157 | 3172 | 3515 | 3531 | 3633 | 3920 | 3936 | 4853 | 5540 | 5570 | 6134 | 6365 | 7354 | 7918 | 8124 | |
| Kylmäaineen täyttömäärä | HFC-134a | |||||||||||||||||
| Piiri A/B | kg | 55/55 | 58/50 | 54/53 | 55/53 | 60/57 | 63/60 | 75/69 | 75/75 | 80/80 | 130/85 | 130/85 | 155/98 | 170/104 | 162/150 | 162/165 | 175/175 | |
| Öljy | Polyesteriöljy CARRIER SPEC: PP 47-32 | |||||||||||||||||
| Piiri A/B | l | 20/20 | 20/20 | 20/20 | 20/20 | 20/20 | 20/20 | 20/20 | 20/20 | 20/20 | 40/20 | 40/20 | 40/20 | 40/20 | 40/40 | 40/40 | 40/40 | |
| Kompressorit | Hermeettinen kaksoisruuvi Power3 | |||||||||||||||||
| Piiri A, nimelliskoko per kompressori** | 46 | 46 | 56 | 56 | 66 | 66 | 80 | 80 | 80+ | 66/56 | 80/66 | 80/80 | 80+/80+ | 80/80 | 80/80 | 80+/80+ | ||
| Piiri B, nimelliskoko per kompressori** | 39 | 46 | 46 | 56 | 56 | 66 | 66 | 80 | 80+ | 80 | 80 | 80 | 80+ | 66/66 | 80/802 | 80+/80+ | ||
| Ohjaustyyppi | PRO-DIALOG Plus -ohjaus | |||||||||||||||||
| Kapasiteetin säätöportaita | 6 | 6 | 6 | 6 | 6 | 6 | 6 | 6 | 6 | 8 | 8 | 8 | 8 | 10 | 10 | 10 | ||
| Minimikapasiteetti | % | 19 | 21 | 19 | 21 | 19 | 21 | 19 | 21 | 21 | 16 | 14 | 14 | 14 | 9 | 10 | 10 | |
| Höyrystin | Putkikennorakenteinen, sisäpuolisesti rihlatuilla kupariputkilla | |||||||||||||||||
| Nettovesimäärä | l | 65 | 73 | 73 | 87 | 87 | 101 | 91 | 91 | 109 | 140 | 140 | 165 | 181 | 203 | 229 | 229 | |
| Vesiliitännät | Tehtaalla toimitettu litteä laippa, joka hitsataan paikan päällä | |||||||||||||||||
| Tulo ja poisto | in. | 4 | 4 | 4 | 5 | 5 | 5 | 5 | 5 | 5 | 6 | 6 | 6 | 6 | 8 | 8 | 8 | |
| Tyhjennys ja tuuletus (NPT) | in. | 3/8 | 3/8 | 3/8 | 3/8 | 3/8 | 3/8 | 3/8 | 3/8 | 3/8 | 3/8 | 3/8 | 3/8 | 3/8 | 3/8 | 3/8 | 3/8 | |
| Suurin vedenpuoleinen käyttöpaine | kPa | 1000 | 1000 | 1000 | 1000 | 1000 | 1000 | 1000 | 1000 | 1000 | 1000 | 1000 | 1000 | 1000 | 1000 | 1000 | 1000 | |
| Lauhduttimet | Kupariputket ja alumiinirippaat | |||||||||||||||||
| Puhaltimet | Aksiaalinen FLYING BIRD 2 -puhallin pyörivällä suojuksella | |||||||||||||||||
| Määrä | 4 | 4 | 4 | 6 | 6 | 6 | 8 | 8 | 8 | 10 | 10 | 12 | 12 | 14 | 16 | 16 | ||
| Nopeus | r/s | 15.8 | 15.8 | 15.8 | 15.8 | 15.8 | 15.8 | 15.8 | 15.8 | 15.8 | 15.8 | 15.8 | 15.8 | 15.8 | 15.8 | 15.8 | 15.8 | |
| Ilmavirta yhteensä | l/s | 21110 | 21110 | 21110 | 31660 | 31660 | 31660 | 42220 | 42220 | 42220 | 52770 | 52770 | 63330 | 63330 | 73880 | 84440 | 84440 | |
* Standardoidut Eurovent-olosuhteet: höyrystimen vesi sisään/ulos -lämpötilat = 12°C/7°C, ulkoilman lämpötila = 35°C Nettokylmäteho: Bruttokylmäteho miinus vesipumpun lämpö sisäistä höyrystimen painehäviötä vastaan.
** Kompressorin koko vastaa nimelliskapasiteettia tonneissa (1 tonni = 3,517 kW).
| 30HXC | 082 | 092 | 102 | 112 | 122 | 132 | 152 | 162 | 182 | 207 | 227 | 247 | 267 | 298 | 328 | 358 | ||
| Power circuit (virtapiiri) | ||||||||||||||||||
| Nominal power supply* (nimellistehonsyöttö*) | V-ph-Hz | 400-3-50 | ||||||||||||||||
| Voltage range (jännitealue) | V | 360-440 | ||||||||||||||||
| Control circuit supply (ohjauspiirin syöttö) | The control circuit is supplied via the factory-installed transformer (Ohjauspiiri saa virtansa tehtaalla asennetun muuntajan kautta) | |||||||||||||||||
| Nominal power input* (nimellistehonotto*) | kW | 98 | 109 | 123 | 133 | 150 | 166 | 179 | 196 | 214 | 246 | 281 | 292 | 332 | 364 | 394 | 449 | |
| Nominal current drawn* (nimellisvirrankulutus*) | A | 180 | 200 | 223 | 256 | 273 | 290 | 326 | 352 | 388 | 449 | 492 | 528 | 582 | 642 | 704 | 776 | |
| Max. power input** (suurin tehonotto**) | kW | 127 | 141 | 154 | 175 | 191 | 207 | 234 | 253 | 286 | 319 | 355 | 380 | 429 | 462 | 506 | 572 | |
| Circuit A (piiri A) | kW | - | - | - | - | - | - | - | - | - | 193 | 228 | 253 | 286 | 253 | 253 | 286 | |
| Circuit B (piiri B) | kW | - | - | - | - | - | - | - | - | - | 127 | 127 | 127 | 143 | 209 | 253 | 286 | |
| Cosine phi, unit at full load (cos φ, yksikkö täydellä kuormalla) | 0.85 | 0.85 | 0.85 | 0.85 | 0.85 | 0.85 | 0.86 | 0.86 | 0.86 | 0.86 | 0.86 | 0.86 | 0.86 | 0.86 | 0.86 | 0.86 | ||
| Max. current drawn (Un - 10%)*** (suurin virrankulutus (Un - 10%)***) | A | 237 | 262 | 287 | 323 | 353 | 383 | 429 | 464 | 524 | 585 | 650 | 696 | 786 | 847 | 928 | 1048 | |
| Circuit A (piiri A) | A | - | - | - | - | - | - | - | - | - | 353 | 418 | 464 | 524 | 464 | 464 | 524 | |
| Circuit B (piiri B) | A | - | - | - | - | - | - | - | - | - | 232 | 232 | 232 | 262 | 383 | 464 | 524 | |
| Maximum current drawn (Un)*** (suurin virrankulutus (Un)***) | A | 217 | 240 | 263 | 297 | 324 | 351 | 394 | 426 | 480 | 537 | 596 | 639 | 721 | 777 | 852 | 961 | |
| Circuit A (piiri A) | A | - | - | - | - | - | - | - | - | - | 324 | 383 | 426 | 480 | 426 | 426 | 480 | |
| Circuit B (piiri B) | A | - | - | - | - | - | - | - | - | - | 213 | 213 | 213 | 240 | 351 | 426 | 480 | |
| Max. starting current, std. unit**** (Un) (suurin käynnistysvirta, vakioyksikkö**** (Un)) | A | 334 | 357 | 401 | 435 | 468 | 495 | 590 | 622 | 662 | 1338 | 1631 | 1674 | 1767 | 1812 | 1887 | 2008 | |
| Circuit A*** (piiri A***) | A | - | - | - | - | - | - | - | - | - | 1125 | 1418 | 1461 | 1527 | 1461 | 1461 | 1527 | |
| Circuit B*** (piiri B***) | A | - | - | - | - | - | - | - | - | - | 1248 | 1248 | 1248 | 1287 | 1152 | 1461 | 1527 | |
| Max. starting current/max. current draw ratio, unit (suurin käynnistysvirta/suurin virrankulutussuhde, yksikkö) | 1.54 | 1.49 | 1.53 | 1.47 | 1.44 | 1.41 | 1.50 | 1.46 | 1.38 | 2.49 | 2.74 | 2.62 | 2.45 | 2.33 | 2.22 | 2.09 | ||
| Max. starting current/max. current draw ratio, circuit A (suurin käynnistysvirta/suurin virrankulutussuhde, piiri A) | - | - | - | - | - | - | - | - | - | 3.47 | 3.70 | 3.43 | 3.18 | 3.43 | 3.43 | 3.18 | ||
| Max. starting current/max. current draw ratio, circuit B (suurin käynnistysvirta/suurin virrankulutussuhde, piiri B) | - | - | - | - | - | - | - | - | - | 5.86 | 5.86 | 5.86 | 5.36 | 3.28 | 3.43 | 3.18 | ||
| Max. starting current - reduced current start (Un) **** (suurin käynnistysvirta - pienempi virrankäynnistys (Un) ****) | A | std. | std. | std. | std. | std. | std. | std. | std. | std. | 878 | 955 | 998 | 1102 | 1136 | 1211 | 1343 | |
| Circuit A (piiri A) | A | std. | std. | std. | std. | std. | std. | std. | std. | std. | 665 | 742 | 785 | 862 | 785 | 785 | 862 | |
| Circuit B (piiri B) | A | std. | std. | std. | std. | std. | std. | std. | std. | std. | 572 | 572 | 572 | 622 | 692 | 785 | 862 | |
| Max.starting current - red. current start/ max. current draw ratio, unit (suurin käynnistysvirta - pun. virrankäynnistys/ suurin virrankulutussuhde, yksikkö) | std. | std. | std. | std. | std. | std. | std. | std. | std. | 1.64 | 1.60 | 1.56 | 1.53 | 1.46 | 1.42 | 1.40 | ||
| Circuit A (piiri A) | std. | std. | std. | std. | std. | std. | std. | std. | std. | 2.05 | 1.94 | 1.84 | 1.79 | 1.84 | 1.84 | 1.79 | ||
| Circuit B (piiri B) | std. | std. | std. | std. | std. | std. | std. | std. | std. | 2.69 | 2.69 | 2.69 | 2.39 | 1.97 | 1.84 | 1.79 | ||
| Three-phase short circuit holding current (kolmivaiheinen oikosulkuvirran kesto) | kA | 25 | 25 | 25 | 25 | 25 | 25 | 25 | 25 | 25 | N/A | N/A | N/A | N/A | N/A | N/A | N/A | |
| Circuit A (piiri A) | kA | - | - | - | - | - | - | - | - | - | 25 | 25 | 25 | 25 | 25 | 25 | 25 | |
| Circuit B (piiri B) | kA | - | - | - | - | - | - | - | - | - | 25 | 25 | 25 | 25 | 25 | 25 | 25 | |
| Customer standby capacity, unit or circ. A, for evaporatorwater pump connections† (asiakkaan valmiuskapasiteetti, yksikkö tai piiri A, haihduttimen vesipumppuliitäntöjä varten†) | kW | 4 | 4 | 4 | 5.5 | 5.5 | 5.5 | 7.5 | 7.5 | 7.5 | 7.5 | 9 | 9 | 9 | 15 | 15 | 15 | |
* Standard Eurovent conditions: Evaporator entering/leaving water temperature 12°C and 7°C. Outdoor air temperature 35°C. (Vakio Eurovent -olosuhteet: Haihduttimen sisään- ja ulostulevan veden lämpötila 12°C ja 7°C. Ulkoilman lämpötila 35°C.)
** Power input, compressor and fan, at unit operating limits (evaporator water entering/leaving temperature = 15°C/10°C, outdoor air temperature = 46°C) and a nominal voltage of 400 V (data given on the unit name plate). (Tehonotto, kompressori ja tuuletin, yksikön toimintarajojen sisällä (haihduttimen sisään- ja ulostulevan veden lämpötila = 15°C/10°C, ulkoilman lämpötila = 46°C) ja nimellisjännite 400 V (tiedot yksikön tyyppikilvessä).)
*** Maximum unit operating current at maximum unit power input. (Suurin yksikön käyttövirta suurimmalla yksikön tehonotolla.)
**** Maximum instantaneous starting current (maximum operating current of the smallest compressor(s) + fan current + locked rotor current or reduced starting current of the largest compressor). (Suurin hetkellinen käynnistysvirta (pienimmän kompressorin/kompressoreiden suurin käyttövirta + tuulettimen virta + lukittu roottorivirta tai suurimman kompressorin pienempi käynnistysvirta).)
† Current and power inputs not included in the values above (Virta- ja tehonotot eivät sisälly yllä oleviin arvoihin)
N/A Not available (Ei saatavilla)
| Reference (viite) | Size (koko) | I nom. | MHA | LRA | LRA (Y) | LRA (S) 1 cp. | LRA (S) 2 cp. |
| 06NA2146S7N | 39 | 70 | 95 | 605 | 191 | 220 | - |
| 06NA2174S7N | 46 | 90 | 120 | 715 | 226 | 260 | - |
| 06NA2209S7N | 56 | 113 | 145 | 856 | 270 | 330 | 420 |
| 06NA2250S7N | 66 | 130 | 175 | 960 | 303 | 380 | 500 |
| 06NA2300S5N | 80 | 156 | 210 | 1226 | 387 | 445 | 550 |
| 06NA2300S5E | 80+ | 174 | 240 | 1265 | 400 | 460 | 600 |
Legend: (selite:)
| 06NA | Compressor for air-cooled units (kompressori ilmajäähdytteisille yksiköille) |
| N | Non-economized compressor (ei-taloudellinen kompressori) |
| E | Economized compressor (taloudellinen kompressori) |
| INOM | Average current draw of the compressor at Eurovent conditions (kompressorin keskimääräinen virrankulutus Eurovent -olosuhteissa) |
| MHA | Must hold amperes (maximum operating current) at 360 V (on pidettävä ampeereina (suurin käyttövirta) 360 V:ssa) |
| LRA | Locked rotor current with across-the-line start (lukittu roottorivirta suoralla käynnistyksellä) |
| LRA (Y) | Locked rotor current at reduced current (star/delta start-up mode) (lukittu roottorivirta pienemmällä virralla (tähti/kolmio -käynnistystila)) |
| LRA (S) 1 cp. | Start-up with reduced current with electronic starter (start-up duration 3 seconds max.) for one compressor per circuit (käynnistys pienemmällä virralla elektronisella käynnistimellä (käynnistyskesto enintään 3 sekuntia) yhdelle kompressorille per piiri) |
| LRA (S) 2 cp. | Start-up with reduced current with electronic starter (start-up duration 3 seconds max.) for two compressors per circuit (käynnistys pienemmällä virralla elektronisella käynnistimellä (käynnistyskesto enintään 3 sekuntia) kahdelle kompressorille per piiri) |
| Höyrystin (Evaporator) | Minimi (Minimum) | Maksimi (Maximum) | |
| Höyrystimeen tulevan veden lämpötila (Evaporator entering water temperature) | °C | 6.8* | 21 |
| Höyrystimestä poistuvan veden lämpötila (Evaporator leaving water temperature) | °C | 4** | 15 |
| Lauhdutin (vesijäähdytteinen) (Condenser (water-cooled)) | Minimi (Minimum) | Maksimi (Maximum) | |
| Lauhduttimeen tulevan veden lämpötila (Condenser entering water temperature) | °C | 20*** | 42 |
| Lauhduttimesta poistuvan veden lämpötila (Condenser leaving water temperature) | °C | 25 | 45 |
| Ulkolämpötila 30HXC (Outside ambient operating temperature 30HXC) | °C | 6 | 40 |
| Lauhdutin (ilmajäähdytteinen) (Condenser (air-cooled)) | Minimi (Minimum) | Maksimi (Maximum) | |
| Ulkolämpötila (Outdoor ambient operating temperature) | °C | 0 | 46 |
| Käytettävissä oleva staattinen paine (Available static pressure) | kPa | 0 |
Huomautuksia: (Notes:)
* Jos sovellus vaatii toimintaa alle 6,8 °C:ssa, ota yhteyttä Carrier s.a.:han yksikön valitsemiseksi Carrierin sähköisen luettelon avulla. (For application requiring operation at less than 6.8°C, contact Carrier s.a. for unit selection using the Carrier electronic catalog.)
** Jos sovellus vaatii toimintaa alle 4 °C:ssa, yksiköt vaativat pakkasnesteen käyttöä. (For application requiring operation at less than 4°C, the units require the use of antifreeze.)
*** Vesijäähdytteiset yksiköt (30HXC), jotka toimivat täydellä kuormalla ja alle 20 °C:n lauhduttimen tuloveden lämpötilassa, vaativat paineenohjauksen analogisilla vedenohjausventtiileillä (katso paineenohjausta koskeva kohta). (Water-cooled units (30HXC) operating at full load and below 20°C condenser entering water temperature require the use of a head pressure control with analogue water control valves (see paragraph on head pressure control).)
Tilapäisissä toimintatiloissa (käynnistys ja osakuormalla) yksikkö voi toimia lauhduttimen tuloveden lämpötilassa 13 °C. (In temporary operating modes (start-up and at part load) the unit can operate with a condenser entering air temperature of 13°C.)
Minimi jäähdytetyn veden virtaus on esitetty seuraavan sivun taulukossa. (The minimum chilled water flow is shown in the table on the next page.) Jos virtaus on pienempi kuin tämä, höyrystimen virtausta voidaan kierrättää uudelleen, kuten kaaviossa on esitetty. (If the flow is less than this, the evaporator flow can be recirculated, as shown in the diagram.) Höyrystimestä poistuvan seoksen lämpötila ei saa koskaan olla alle 2,8 K alhaisempi kuin jäähdytetyn veden tulolämpötila. (The temperature of the mixture leaving the evaporator must never be less than 2.8 K lower than the chilled water entering temperature.)

MINIMI JÄÄHDYTETYN VEDEN VIRTAUSNOPEUDELLE (FOR MINIMUM CHILLED WATER FLOW RATE)
Maksimi jäähdytetyn veden virtausta rajoittaa suurin sallittu painehäviö höyrystimessä. (The maximum chilled water flow is limited by the maximum permitted pressure drop in the evaporator.) Se on esitetty seuraavan sivun taulukossa. (It is provided in the table on the next page.) Jos virtaus ylittää maksimiarvon, on mahdollista kaksi ratkaisua: (If the flow exceeds the maximum value, two solutions are possible:)

MAKSIMI JÄÄHDYTETYN VEDEN VIRTAUSNOPEUDELLE (FOR MAXIMUM CHILLED WATER FLOW RATE)
Säädettävää höyrystimen virtausta voidaan käyttää vakio 30HXC- ja 30GX -jäähdyttimissä. (Variable evaporator flow can be used in standard 30HXC and 30GX chillers.) Jäähdyttimet pitävät yllä vakion poistuvan veden lämpötilan kaikissa virtausolosuhteissa. (The chillers maintain a constant leaving water temperature under all flow conditions.) Jotta tämä tapahtuisi, minimivirtausnopeuden on oltava suurempi kuin sallittujen virtausnopeuksien taulukossa annettu minimivirtaus ja se ei saa vaihdella enempää kuin 10 % minuutissa. (For this to happen, the minimum flow rate must be higher than the minimum flow given in the table of permissible flow rates and must not vary by more than 10% per minute.) Jos virtausnopeus muuttuu nopeammin, järjestelmän tulisi sisältää vähintään 6,5 litraa vettä per kW 3,25 l/kW:n sijaan. (If the flow rate changes more rapidly, the system should contain a minimum of 6.5 liters of water per kW instead of 3.25 l/kW.)
Järjestelmästä riippumatta vesikierron minimikapasiteetti saadaan kaavalla: (Whichever the system, the water loop minimum capacity is given by the formula:)
Kapasiteetti (Capacity) = Kap (kW) x N Litraa (Liters)
| Sovellus (Application) | N |
| Normaali ilmastointi (Normal air conditioning) | 3.25 |
| Prosessityyppinen jäähdytys (Process type cooling) | 6.5 |
Missä Kap on järjestelmän nimellinen jäähdytysteho (kW) asennuksen nimellisissä käyttöolosuhteissa. (Where Cap is the nominal system cooling capacity (kW) at the nominal operating conditions of the installation.)
Tämä tilavuus on välttämätön vakaan toiminnan ja tarkan lämpötilan säädön kannalta. (This volume is necessary for stable operation and accurate temperature control.)
Usein on tarpeen lisätä puskurivesisäiliö piiriin vaaditun tilavuuden saavuttamiseksi. (It is often necessary to add a buffer water tank to the circuit in order to achieve the required volume.) Säiliön itsensä on oltava sisäisesti ohjattu, jotta varmistetaan nesteen (vesi tai suolaliuos) asianmukainen sekoittuminen. (The tank must itself be internally baffled in order to ensure proper mixing of the liquid (water or brine).) Katso alla olevia esimerkkejä. (Refer to the examples below.)
HUOMAUTUS: Kompressori ei saa käynnistyä uudelleen useammin kuin 6 kertaa tunnissa. (NOTE: The compressor must not restart more than 6 times in an hour.)


| 30HXC | Min.* | Max.** | ||
| 080-090 | 5.7 | 22.7 | ||
| 100 | 6.0 | 24.1 | ||
| 110 | 6.9 | 27.5 | ||
| 120-130 | 8.3 | 33.0 | ||
| 140-155 | 10.0 | 39.5 | ||
| 175-190 | 10.7 | 42.7 | ||
| 200 | 13.4 | 53.7 | ||
| 230 | 13.4 | 60.6 | ||
| 260-285 | 17.0 | 68.1 | ||
| 310 | 19.4 | 77.8 | ||
| 345-375 | 21.3 | 85.3 | ||
| 30GX | Min.* | Max.** | ||
| 082 | 5.7 | 22.7 | ||
| 092-102 | 6.0 | 24.1 | ||
| 112-122 | 6.9 | 27.5 | ||
| 132 | 8.4 | 33.7 | ||
| 152-162 | 10.0 | 39.9 | ||
| 182 | 10.7 | 42.7 | ||
| 207-227 | 13.4 | 53.7 | ||
| 247 | 15.1 | 60.6 | ||
| 267 | 17.0 | 68.1 | ||
| 298 | 19.4 | 77.8 | ||
| 328-358 | 21.3 | 85.3 | ||
* Perustuu veden nopeuteen 0,9 m/s.
** Perustuu veden nopeuteen 3,6 m/s.
| 30HXC | Min.* Suljettu piiri (Closed loop) | Avoin piiri (Open loop) | Max.** |
| 080-110 | 2.5 | 7.5 | 29.9 |
| 120-130 | 3.1 | 9.3 | 37.3 |
| 140-155 | 3.8 | 11.4 | 45.5 |
| 175-190 | 4.6 | 13.8 | 55.2 |
| 200 | 5.0 | 14.9 | 59.6 |
| 230-285 | 6.7 | 20.1 | 80.3 |
| 310-375 | 7.3 | 22.0 | 88.0 |
* Perustuu veden nopeuteen 0,3 m/s suljetussa piirissä ja 0,9 m/s avoimessa piirissä.
** Perustuu veden nopeuteen 3,6 m/s


Jäähdyttimen virtauskytkin on asennettava ja jäähdytetyn vesipumpun lukitus on kytkettävä 30HXC- ja 30GX-malleissa. Tämän ohjeen noudattamatta jättäminen mitätöi Carrierin takuun.
Jäähdyttimen virtauskytkinohjain on tehtaalla asennettu ja johdotettu 30HXC- ja 30GX-yksiköihin.
Noudata valmistajan ohjeita asennuksessa.
Virtauskytkin voidaan asentaa vaakasuoraan tai pystysuoraan putkeen, jossa neste virtaa ylöspäin. Sitä ei tule käyttää, kun neste virtaa alaspäin.
Asenna putken osaan, jossa on suora osuus vähintään viisi putken halkaisijaa virtauskytkimen kummallakin puolella. Älä sijoita lähelle venttiilejä, mutkia tai aukkoja. Siiveke ei saa koskaan koskettaa putkea tai mitään putken rajoitusta. Kierrä virtauskytkin paikalleen siten, että siivekkeen litteä osa on suorassa kulmassa virtaukseen nähden. Kannen ja kotelon sisällä olevan pohjan nuolien on osoitettava virtauksen suuntaan. Kytkin on asennettava siten, että liittimiin on helppo pääsy johdotusta varten.
Liittimet 34 ja 35 on varattu jäähdytetyn vesipumpun lukituksen (jäähdytetyn vesipumpun kontaktorin apukosketin) kenttäasennusta varten.
(Putkiliitäntä: 1" NPT)

Lauhduttimen virtauskytkin on kentällä asennettava laite.
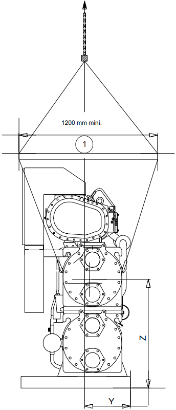
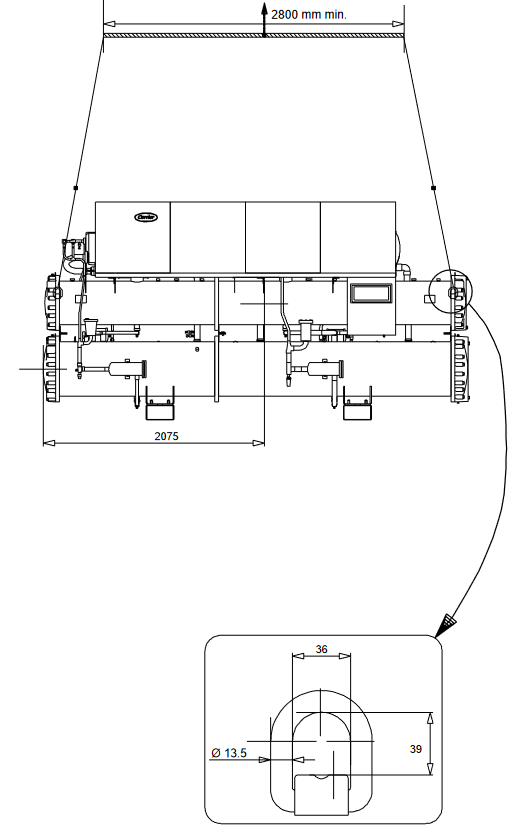
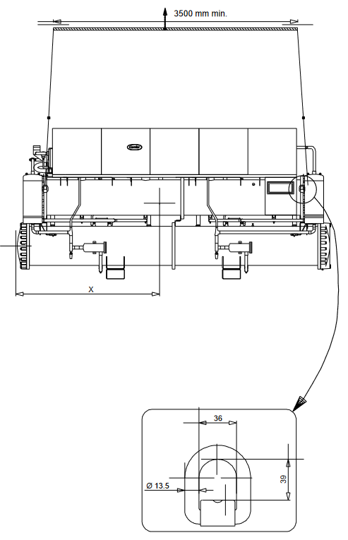
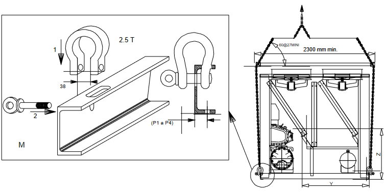
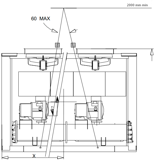
Älä poista liukuesteitä, kuormalavoja tai suojapakkausta, ennen kuin yksikkö on lopullisessa asennossaan. Siirrä jäähdytintä putkien tai rullien avulla tai nosta se käyttämällä oikean kapasiteetin liinoja.
(30HXC)
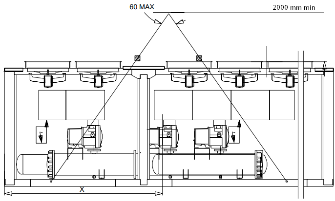
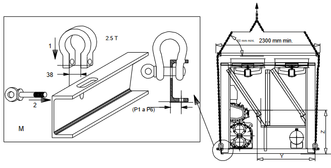
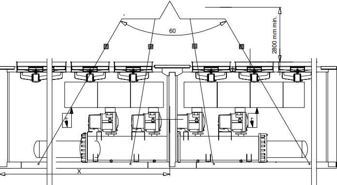
Käytä liinoja vain niissä nimetyissä nostokohdissa, jotka on merkitty yksikköön, jäähdyttimen lämmönvaihtimen yläosassa. Lämmönvaihtimen pohjasta tapahtuva kiinnitys aiheuttaa yksikön vaarallisen noston. Henkilövahinko tai yksikön vaurioituminen voi tapahtua. Noudata yksikön mukana toimitetussa sertifioidussa mittapiirustuksessa annettuja kiinnitysohjeita.
Katso aina luvusta "Mitat ja vapaat tilat" varmistaaksesi, että kaikille liitännöille ja huoltotoimenpiteille on riittävästi tilaa. Painopistekoordinaatit, yksikön kiinnitysreikien sijainti ja painon jakautumispisteet löytyvät yksikön mukana toimitetusta sertifioidusta mittapiirustuksesta.
Suosittelemme, että nämä jäähdyttimet asennetaan joko kellariin tai maan tasolle. Jos se asennetaan maanpinnan yläpuolelle, tarkista ensin, että sallittu lattian kuormitus on riittävä ja että lattia on riittävän vahva ja tasainen. Tarvittaessa vahvista ja tasoita lattia.
Kun jäähdytin on lopullisessa paikassaan, poista liukuesteet ja muut siirtämisessä käytetyt laitteet. Tasoita yksikkö käyttämällä vesivaakaa ja pulttaa yksikkö lattiaan tai pohjalaattaan. Näiden yksiköiden toiminta voi heikentyä, jos ne eivät ole vaakasuorassa ja kunnolla kiinnitettyinä kiinnikkeisiinsä. Käytä tarvittaessa eristyslevyjä yksikön alla tärinän eristämiseksi.
Tämä kaavio on esitetty vain tiedoksi. Katso "sertifioituja piirustuksia".

| X mm | Y mm | Z mm | |
| 30HXC080 30HXC090 30HXC100 |
1345 | 402 | 903 |
| 30HXC110 | 1368 | 397 | 935 |
| 30HXC120 30HXC130 30HXC140 30HXC155 |
1731 | 392 | 879 |
| 30HXC175 | 1703 | 386 | 947 |
| 30HXC190 | 1705 | 398 | 955 |


HUOMAUTUS
Kun kaikki nosto- ja paikannustoimenpiteet on suoritettu, on suositeltavaa korjata kaikki pinnat, joista maali on poistettu nostokorvakkeista.
Tämä kaavio on esitetty vain tiedoksi. Katso "sertifioituja piirustuksia".




| X mm | Y mm | Z mm | |
| 30HXC310 | 2195 | 425 | 1085 |
| 30HXC345 | 2195 | 425 | 1085 |
| 30HXC375 | 2205 | 435 | 1025 |
HUOMAUTUS
Kun kaikki nosto- ja paikannustoimenpiteet on suoritettu, on suositeltavaa korjata kaikki pinnat, joista maali on poistettu nostokorvakkeista.
Tämä kaavio on esitetty vain tiedoksi. Katso "sertifioituja piirustuksia".



| X mm | Y mm | Z mm | PTkg | |
| 30GX082 | 1440 | 1460 | 900 | 3115 |
| 30GX092 | 1440 | 1460 | 900 | 3156 |
| 30GX102 | 1440 | 1460 | 900 | 3170 |
| 30GX112 | 1650 | 1460 | 900 | 3574 |
| 30GX122 | 1650 | 1460 | 900 | 3527 |
| 30GX132 | 1650 | 1460 | 900 | 3634 |
| 30GX152 | 2155 | 1430 | 900 | 3938 |
| 30GX162 | 2155 | 1430 | 900 | 3954 |



| X mm | Y mm | Z mm | PTkg | |
| 30GX182 | 3030 | 1370 | 875 | 4853 |
HUOMAUTUS
Kun kaikki nosto- ja paikannustoimenpiteet on suoritettu, on suositeltavaa korjata kaikki pinnat, joista maali on poistettu nostokorvakkeesta
Tämä kaavio on esitetty vain tiedoksi. Katso "sertifioituja piirustuksia".



| X mm | Y mm | Z mm | PTkg | |
| 30GX207 | 2870 | 1440 | 890 | 5536 |
| 30GX227 | 2870 | 1440 | 890 | 5572 |
| 30GX247 | 3320 | 1430 | 927 | 6131 |
| 30GX267 | 3300 | 1420 | 886 | 6363 |



| X mm | Y mm | Z mm | PTkg | |
| 30GX298 | 3630 | 1420 | 890 | 7353 |
| 30GX328 | 4360 | 1455 | 920 | 7840 |
| 30GX358 | 4360 | 1445 | 930 | 8045 |
HUOMAUTUS
Kun kaikki nosto- ja paikannustoimenpiteet on suoritettu, on suositeltavaa korjata kaikki pinnat, joista maali on poistettu nostokorvakkeista.
Katso sertifioiduista mittapiirustuksista kaikkien veden sisään- ja ulostuloliitäntöjen koot ja sijainnit. Vesiputket eivät saa välittää säteittäistä tai aksiaalista voimaa lämmönvaihtimille tai tärinää putkistolle tai rakennukselle.
Vesihuolto on analysoitava ja asianmukaiset suodatus-, käsittely-, ohjauslaitteet, eristys- ja tyhjennysventtiilit sekä piirit on rakennettava tarpeen mukaan. Ota yhteyttä joko vedenkäsittelyasiantuntijaan tai aiheeseen liittyvään asianmukaiseen kirjallisuuteen.
Vesipiiri on suunniteltava siten, että siinä on mahdollisimman vähän mutkia ja vaakasuoria putkivetoja eri tasoilla. Seuraavat perustarkastukset on tehtävä (katso myös tyypillisen hydraulipiirin kuva alla).
Höyrystin ja lauhdutin ovat moniputkisia kuori- ja putkityyppejä, joissa on irrotettavat vesilaatikot putkien puhdistamisen helpottamiseksi.
Ennen vesiliitäntöjen tekemistä kiristä pultit molemmissa päissä alempaan vääntömomenttiin noudattaen kuvattua menetelmää. Kiristä pareittain ja ilmoitetussa järjestyksessä pultin koon mukaan (katso taulukko) käyttämällä annetun alueen alaosassa olevaa vääntömomenttiarvoa.
Irrota tehtaalla toimitettu litteä laippa vesilaatikosta ennen putkien hitsaamista laippaan. Jos laippaa ei irroteta, anturit ja eristys voivat vaurioitua.
HUOMAUTUS
Suosittelemme järjestelmän tyhjentämistä ja putkiston irrottamista sen varmistamiseksi, että niiden päiden pultit, joihin putkisto on liitetty, on kiristetty oikein ja tasaisesti.
Höyrystimen ja vesijäähdytteisen lauhduttimen suojaus
Jos jäähdytin tai vesiputkisto on alueella, jossa ympäristön lämpötila voi laskea alle 0 °C:een, on suositeltavaa lisätä pakkasneste suojaamaan yksikköä ja vesiputkistoa 8 K:n lämpötilaan alimman lämpötilan alapuolella. Käytä vain lämmönvaihdinkäyttöön hyväksyttyjä pakkasnesteitä. Jos järjestelmää ei ole suojattu pakkasnesteellä ja sitä ei käytetä pakkassääolosuhteissa, jäähdyttimen ja ulkoputkiston tyhjentäminen on pakollista. Jäätymisestä johtuvia vahinkoja ei kata takuu.

Selite

Selite
Standardi EN 60204-1 on hyvä tapa vastata konedirektiivin § 1.5.1 vaatimuksiin. Normatiivinen suositus IEC 364 on yleisesti tunnustettu täyttämään asennusmääräysten vaatimukset.
Standardin EN 60204-1 liitettä B voidaan käyttää kuvaamaan sähköisiä ominaisuuksia, joilla koneet toimivat.
(1) Tämän luokituksen edellyttämä suojausstandardi on IP21B (viiteasiakirjan IEC 529 mukaisesti). Kaikilla 30HXC-malleilla on suojausstandardi IP23C, ja ne täyttävät siten tämän suojausvaatimuksen.
Henkilöstön pätevyys: luokitus BA4(2) (IEC 364 -standardin mukaisesti pätevöitynyt henkilöstö).
(2) Tämän luokituksen edellyttämä suojausstandardi on IP43BW (viiteasiakirjan IEC 529 mukaisesti). Kaikilla 30GX-malleilla on suojausstandardi IP45CW, ja ne täyttävät siten tämän suojausvaatimuksen.
HUOMAUTUS: Jos asennuksen tietyt näkökohdat edellyttävät muita kuin yllä lueteltuja ominaisuuksia (tai ominaisuuksia, joihin ei tässä viitata), ota yhteyttä Carrier-edustajaasi.
Virtalähteen on oltava jäähdyttimen tyyppikilven spesifikaation mukainen. Syöttöjännitteen on oltava sähköisten tietojen taulukossa määritellyn alueen sisällä.
Katso kytkennät kytkentäkaavioista.
Jäähdyttimen käyttö väärällä syöttöjännitteellä tai liiallisella vaihe-epätasapainolla on väärinkäyttöä, joka mitätöi Carrierin takuun. Jos vaihe-epätasapaino ylittää 2 % jännitteen osalta tai 10 % virran osalta, ota välittömästi yhteyttä paikalliseen sähköyhtiöön ja varmista, että jäähdytintä ei kytketä päälle ennen kuin korjaavat toimenpiteet on suoritettu.
100 x suurin poikkeama keskimääräisestä jännitteestä
Keskimääräinen jännite
Esimerkki:
400 V - 3 ph - 50 Hz syötössä yksittäisten vaiheiden jännitteet mitattiin seuraavasti:
AB = 406 V; BC = 399; AC = 394 V
| Keskimääräinen jännite | = (406 + 399 + 394)/3 = 1199/3 |
| = 399,7, sanotaan 400 V |
Laske suurin poikkeama 400 V:n keskiarvosta:
(AB) = 406 - 400 = 6
(BC) = 400 - 399 = 1
(CA) = 400 - 394 = 6

Suurin poikkeama keskiarvosta on 6 V. Suurin prosentuaalinen poikkeama on:
100 x 6/400 = 1,5 %
Tämä on alle sallitun 2 %:n ja on siksi hyväksyttävää.
Johdinkoon valinta on asentajan vastuulla, ja se riippuu kunkin asennuspaikan ominaisuuksista ja määräyksistä. Seuraavaa tulee käyttää vain ohjeena, eikä se tee Carrierista millään tavalla vastuullista. Kun johdinkoon valinta on suoritettu, asentajan on varmistettava sertifioidun mittapiirustuksen avulla helppo liitettävyys ja määritettävä mahdolliset tarvittavat muutokset paikan päällä.
Yleiseen katkaisija-/erotuskytkimeen tulevien, kentällä toimitettavien virransyöttökaapeleiden vakioliitännät on suunniteltu alla olevassa taulukossa luetelluille johtimien määrälle ja tyypille.
Laskelmat perustuvat koneen enimmäisvirtaan (katso sähköiset tiedot -taulukot).
Suunnittelussa käytetään seuraavia standardoituja asennusmenetelmiä standardin IEC 364, taulukko 52C mukaisesti:
Laskelma perustuu PVC- tai XLPE-eristeisiin kaapeleihin, joissa on kupari- tai alumiiniydin. Enimmäislämpötila on 40 °C 30HX-yksiköille ja 46 °C 30GX-yksiköille.
The given wire length limits the voltage drop to < 5% (Annettu johdon pituus rajoittaa jännitehäviön alle 5 prosenttiin).
| Unit | Min. (mm2) by phase (vaiheen mukaan) | Wire type (johdintyyppi) | L (m) | Max. (mm2) by phase (vaiheen mukaan) | Wire type (johdintyyppi) | L (m) |
| 30HX 080 | 1 x 35 | XLPE Cu | 140 | 1 x 120 | PVC Al | 260 |
| 30HX 090 | 1 x 50 | XLPE Cu | 160 | 1 x 120 | PVC Al | 260 |
| 30HX 100 | 1 x 50 | XLPE Cu | 160 | 1 x 95 | XLPE Al | 195 |
| 30HX 110 | 1 x 70 | XLPE Cu | 170 | 1 x 120 | XLPE Al | 205 |
| 30HX 120/130 | 1 x 70 | XLPE Cu | 170 | 1 x 150 | XLPE Al | 210 |
| 30HX 140 | 1 x 95 | XLPE Cu | 180 | 1 x 185 | XLPE Al | 220 |
| 30HX 155 | 1 x 95 | XLPE Cu | 180 | 1 x 240 | XLPE Al | 225 |
| 30HX 175 | 1 x 120 | XLPE Cu | 185 | 1 x 240 | XLPE Al | 225 |
| 30HX 190 | 1 x150 | XLPE Cu | 190 | 2 x 95 | XLPE Al | 195 |
| 30HX 200 ckt A | 1 x 70 | XLPE Cu | 170 | 2 x120 | PVC Al | 325 |
| 30HX 230 ckt A | 1 x 95 | XLPE Cu | 180 | 2 x 120 | PVC Al | 325 |
| 30HX 260 ckt A | 1 x 120 | XLPE Cu | 185 | 1 x 240 | XLPE Al | 225 |
| 30HX 285 ckt A | 1 x 150 | XLPE Cu | 190 | 2 x 150 | XLPE Al | 265 |
| 30HX 200 ckt B | 1 x 35 | XLPE Cu | 140 | 1 x 95 | PVC Al | 250 |
| 30HX 230 ckt B | 1 x 35 | XLPE Cu | 140 | 1 x 120 | PVC Al | 260 |
| 30HX 260 ckt B | 1 x 35 | XLPE Cu | 140 | 1 x 120 | PVC Al | 260 |
| 30HX 285 ckt B | 1 x 50 | XLPE Cu | 160 | 2 x 70 | PVC Al | 285 |
| 30HX 310 ckt A & B | 1 x 95 | XLPE Cu | 180 | 1 x 240 | XLPE Al | 225 |
| 30HX 345 ckt A & B | 1 x 120 | XLPE Cu | 185 | 1 x 240 | XLPE Al | 225 |
| 30HX 375 ckt A & B | 1 x 150 | XLPE Cu | 190 | 2 x 150 | XLPE Al | 265 |
| 30GX 082 | 1 x 95 | XLPE Cu | 190 | 2 x 185 | PVC Al | 420 |
| 30GX 092 | 1 x 120 | XLPE Cu | 195 | 2 x 185 | PVC Al | 420 |
| 30GX 102 | 1 x 120 | XLPE Cu | 195 | 2 x 240 | PVC Al | 450 |
| 30GX 112 | 1 x 150 | XLPE Cu | 200 | 2 x 150 | XLPE Al | 300 |
| 30GX 122 | 1 x 185 | XLPE Cu | 205 | 2 x 185 | XLPE Al | 315 |
| 30GX 132 | 1 x 185 | XLPE Cu | 205 | 2 x 240 | XLPE Al | 330 |
| 30GX 152 | 1 x 240 | XLPE Cu | 205 | 3x 185 | XLPE CU | 430 |
| 30GX 162 | 2 x 95 | XLPE Cu | 190 | 3x 240 | XLPE CU | 440 |
| 30GX 182 | 2 x 120 | XLPE Cu | 200 | 3x 240 | XLPE CU | 440 |
| 30GX 207 ckt A | 1 x 185 | XLPE Cu | 205 | 3x 185 | XLPE Al | 445 |
| 30GX 227 ckt A | 1 x 240 | XLPE Cu | 205 | 3x 240 | XLPE Al | 470 |
| 30GX 247/298/328 ckt A | 2 x 120 | XLPE Cu | 225 | 3x 185 | XLPE CU | 490 |
| 30HX 267/358 ckt A | 2 x 150 | XLPE Cu | 230 | 3x 240 | XLPE CU | 505 |
| 30GX 207/227/247 ckt B | 1 x 95 | XLPE Cu | 190 | 2 x 240 | PVC Al | 560 |
| 30HX 267 ckt B | 1 x 120 | XLPE Cu | 200 | 2 x 185 | XLPE AL | 395 |
| 30GX 298 ckt B | 1 x 185 | XLPE Cu | 205 | 3x 240 | XLPE AL | 470 |
| 30GX 328 ckt B | 2 x 120 | XLPE Cu | 225 | 3x 185 | XLPE CU | 490 |
| 30GX 358 ckt B | 2 x 150 | XLPE Cu | 230 | 3x 240 | XLPE CU | 505 |
Ennen päävirtakaapeleiden (L1 - L2 - L3) liittämistä riviliittimeen, on ehdottomasti tarkistettava 3 vaiheen oikea järjestys ennen kuin jatketaan liittämistä riviliittimeen tai pääkytkimeen/erotuskytkimeen.
Katso Controls IOM ja yksikön mukana toimitettu sertifioitu kytkentäkaavio seuraavien ominaisuuksien kenttäohjauksen johdotusta varten:
Suositellut johdinpoikkipinnat yksiköille, joissa on korkeat lauhdutustasot (400 V - 3 vaihetta - 50 Hz)
| Yksikkö, lisävarusteet 150 + 150A 400 V - 3 vaihetta - 50 Hz | Min. (mm2) vaihetta kohti | Johdintyyppi | L (m) | Maks. (mm2) vaihetta kohti | Johdintyyppi | L (m) |
| 30HXC 080 OPT. 150 | 1 x 50 | XLPE Cu | 150 | 2 x 70 | PVC Al | 230 |
| 30HXC 090 OPT. 150 | 1 x 70 | XLPE Cu | 160 | 2 x 95 | PVC Al | 260 |
| 30HXC 100 OPT. 150 | 1 x 70 | XLPE Cu | 160 | 2 x 95 | PVC Al | 250 |
| 30HXC 110 OPT. 150 | 1 x 95 | XLPE Cu | 170 | 2 x 120 | PVC Al | 265 |
| 30HXC 120 OPT. 150 | 1 x 120 | XLPE Cu | 180 | 2 x 120 | XLPE Al | 205 |
| 30HXC 130 OPT. 150 | 1 x 120 | XLPE Cu | 160 | 2 x 120 | XLPE Al | 210 |
| 30HXC 140 OPT. 150 | 1 x 150 | XLPE Cu | 175 | 2 x 120 | XLPE Al | 205 |
| 30HXC 155 OPT. 150 | 1 x 185 | XLPE Cu | 185 | 2 x 150 | XLPE Al | 215 |
| 30HXC 175 OPT. 150 | 1 x 240 | XLPE Cu | 185 | 2 x 150 | XLPE Al | 210 |
| 30HXC 190 OPT. 150 | 2 x 95 | XLPE Cu | 175 | 2 x 240 | XLPE Al | 220 |
| 30HXC 200 OPT. 150 circ. A | 1 x 120 | XLPE Cu | 170 | 2 x 150 | XLPE Al | 270 |
| 30HXC 230 OPT. 150 circ. A | 1 x 150 | XLPE Cu | 180 | 2 x 185 | XLPE Al | 270 |
| 30HXC 260 OPT. 150 circ. A | 1 x 185 | XLPE Cu | 180 | 2 x 240 | XLPE Al | 295 |
| 30HXC 285 OPT. 150 circ. A | 1 x 240 | XLPE Cu | 170 | 2 x 185 | XLPE Cu | 265 |
| 30HXC 310 OPT. 150 circ. A | 1 x 185 | XLPE Cu | 180 | 2 x 240 | XLPE Al | 300 |
| 30HXC 345 OPT. 150 circ. A | 1 x 185 | XLPE Cu | 170 | 2 x 240 | XLPE Al | 280 |
| 30HXC 375 OPT. 150 circ. A | 1 x 240 | XLPE Cu | 170 | 2 x 185 | XLPE Cu | 265 |
| 30HXC 200 OPT. 150 circ. B | 1 x 35 | XLPE Cu | 125 | 2 x 95 | PVC Al | 320 |
| 30HXC 230 OPT. 150 circ. B | 1 x 50 | XLPE Cu | 140 | 2 x 95 | PVC Al | 310 |
| 30HXC 260 OPT. 150 circ. B | 1 x 50 | XLPE Cu | 140 | 2 x 95 | PVC Al | 310 |
| 30HXC 285 OPT. 150 circ. B | 1 x 70 | XLPE Cu | 160 | 2 x 120 | PVC Al | 325 |
| 30HXC 310 OPT. 150 circ. B | 1 x 150 | XLPE Cu | 180 | 2 x 185 | XLPE Al | 275 |
| 30HXC 345 OPT. 150 circ. B | 1 x 185 | XLPE Cu | 185 | 2 x 240 | XLPE Al | 305 |
| 30HXC 375 OPT. 150 circ. B | 1 x 185 | XLPE Cu | 160 | 2 x 240 | XLPE Al | 280 |
Öljynsuodatin
06N-ruuvikompressorissa on öljynsuodatin, joka on integroitu kompressorin koteloon. Tämä suodatin on vaihdettavissa kentällä.
Kylmäaine
06N-ruuvikompressori on suunniteltu erityisesti käytettäväksi vain R134 a -järjestelmässä.
Voiteluaine
06N-ruuvikompressori on hyväksytty käytettäväksi seuraavan voiteluaineen kanssa.
CARRIER MATERIAL SPEC PP 47-32
Öljynsyötön solenoidiventtiili
Öljynsyötön solenoidiventtiili on kompressorissa vakiona, jotta kompressori voidaan eristää öljyvirtauksesta, kun kompressori ei ole käynnissä.
Öljysolenoidi on vaihdettavissa kentällä.
Imu- ja ekonomaiserisuodattimet
Kompressorin luotettavuuden lisäämiseksi kompressorin imu- ja ekonomaisertuloihin on sisällytetty suodatin vakiovarusteena.
Tyhjennysjärjestelmä
06N-ruuvikompressorissa on tyhjennysjärjestelmä, joka on vakiona kaikissa kompressoreissa. Tämä tyhjennysjärjestelmä koostuu kahdesta tyhjennysvaiheesta, jotka pienentävät kompressorin kapasiteettia ohjaamalla osittain puristetun kaasun takaisin imuun.
30HXC- ja 30GX-jäähdyttimissä käytetään tulvahaihdutinta. Vesi kiertää putkissa ja kylmäaine on ulkopuolella kuoressa. Yhtä säiliötä käytetään molempien kylmäainepiirien palvelemiseen. Keskellä on putkilevy, joka erottaa kaksi kylmäainepiiriä. Putket ovat halkaisijaltaan 3/4 tuumaa kuparia, ja niissä on parannettu pinta sisä- ja ulkopuolella. Vesi on vain yksi vesipiiri, ja jäähdyttimen koosta riippuen vesikertoja voi olla kaksi tai kolme. Jäähdyttimen nestetason anturi tarjoaa optimoidun virtauksenohjauksen.
Jäähdyttimen yläosassa on kaksi imuputkea, yksi kummassakin piirissä. Kummassakin on siihen hitsattu laippa, ja kompressori asennetaan laippaan.
30HXC-jäähdyttimessä käytetään säiliötä, joka on yhdistetty lauhdutin ja öljynerotin. Se on asennettu jäähdyttimen alapuolelle. Purkauskaasu poistuu kompressorista ja virtaa ulkoisen äänenvaimentimen läpi öljynerottimeen, joka on säiliön yläosa. Se tulee erottimen yläosaan, jossa öljy poistetaan, ja virtaa sitten säiliön alaosaan, jossa kaasu lauhdutetaan ja alijäähdytetään. Yhtä säiliötä käytetään molempien kylmäainepiirien palvelemiseen. Keskellä on putkilevy, joka erottaa kaksi kylmäainepiiriä. Putket ovat halkaisijaltaan 3/4 tai 1 tuumaa kuparia, ja niissä on parannettu pinta sisä- ja ulkopuolella. Vesi on vain yksi vesipiiri, jossa on kaksi vesikertaa.
Ilmajäähdytteisissä yksiköissä öljynerotin on painesäiliö, joka on asennettu ulkoisten pystysuorien lauhdutinpatruunoiden alle. Purkauskaasu tulee erottimen yläosaan, jossa suuri osa öljystä erottuu ja valuu pohjalle. Kaasu virtaa sitten metalliverkkosuodattimen läpi, jossa jäljellä oleva öljy erotetaan ja valuu pohjalle.
Mikroprosessori ohjaa EXD:tä EXV-ohjausmoduulin kautta. EXD on joko EXV tai ekonomaiseri. Molempien laitteiden sisällä on lineaarinen toimilaiteaskelmoottori. Korkeapaineinen nestemäinen kylmäaine tulee venttiiliin pohjan kautta. Aukkokokoonpanon sisällä on sarja kalibroituja aukkoja. Kun kylmäaine kulkee aukon läpi, paine laskee ja kylmäaine muuttuu kaksifaasitilaan (neste ja höyry). Kylmäaineen virtauksen ohjaamiseksi eri käyttöolosuhteissa holkki liikkuu ylös ja alas aukon yli, mikä muuttaa paisuntalaitteen tehokasta virtauspinta-alaa. Holkkia liikuttaa lineaarinen askelmoottori. Askelmoottori liikkuu askelin ja sitä ohjaa suoraan prosessorimoduuli. Kun askelmoottori pyörii, liike siirretään lineaariseksi liikkeeksi johtoruuvin avulla. Askelmoottorin ja johtoruuvien avulla saadaan 1500 erillistä liikeaskelta. Suuri askelmäärä ja pitkä isku johtavat kylmäaineen virtauksen erittäin tarkkaan ohjaukseen. Jokaisessa piirissä on nestetason anturi, joka on asennettu pystysuoraan jäähdytyskuoren yläosaan. Tasoanturi koostuu pienestä sähkövastuslämmittimestä ja kolmesta sarjaan kytketystä termistorista, jotka on sijoitettu eri korkeuksille kaivon sisään. Lämmitin on suunniteltu siten, että termistorit lukevat noin 93,3 °C kuivassa ilmassa. Kun kylmäaineen taso nousee jäähdyttimessä, lähimmän termistorin (termistorien) vastus muuttuu huomattavasti. Tämä suuri vastusero mahdollistaa ohjauksen tarkan ylläpitämisen määritellyllä tasolla. Tasoanturi valvoo kylmäaineen nestetasoa jäähdyttimessä ja lähettää nämä tiedot PSIO-1:lle. Alkuvaiheen käynnistyksessä EXV-asento on nolla. Sen jälkeen mikroprosessori pitää tarkasti kirjaa venttiilin asennosta voidakseen käyttää näitä tietoja syötteenä muihin ohjaustoimintoihin. Se tekee tämän alustamalla EXV:t käynnistyksen yhteydessä. Prosessori lähettää venttiilille tarpeeksi sulkeutumispulsseja siirtääkseen sen täysin auki olevasta täysin suljettuun asentoon ja nollaa sitten asennon laskurin. Tästä hetkestä lähtien, kunnes alustus, prosessori laskee kunkin venttiilin lähettämien avaus- ja sulkeutumisaskelten kokonaismäärän.
Ekonomaiserit on asennettu malleihin 30HXC 190, 285 ja 375 sekä 30GX 182, 267 ja 358.
Ekonomaiseri parantaa sekä jäähdyttimen kapasiteettia että hyötysuhdetta sekä tarjoaa kompressorin moottorin jäähdytyksen. Ekonomaiserin sisällä on sekä lineaarinen EXV-askelmoottori että uimuriventtiili. PIC ohjaa EXV:tä ylläpitämään haluttua nestetasoa jäähdyttimessä (kuten tehdään ei-ekonomisoiduissa jäähdyttimissä). Uimuriventtiili ylläpitää nestetasoa ekonomaiserin pohjassa. Nestemäistä kylmäainetta syötetään lauhduttimesta ekonomaiserin pohjaan. Kun kylmäaine kulkee EXV:n läpi, sen paine laskee välitasolle noin 500 kPa. Tätä painetta ylläpidetään ekonomaiserin kuoren sisällä. Seuraavaksi kylmäaine virtaa uimuriventtiilin läpi, sen paine laskee edelleen hieman jäähdyttimen paineen yläpuolelle. Suorituskyvyn parannus toteutuu, kun osa EXV:n läpi kulkevasta kylmäaineesta höyrystyy, mikä alijäähdyttää edelleen nestettä, jota pidetään ekonomaiserin pohjassa. Tämä alijäähdytyksen lisäys tarjoaa lisäkapasiteettia. Koska tämän toteuttamiseen ei tarvita lisätehoa, myös koneen hyötysuhde paranee. Höyry, joka höyrystyy, nousee ekonomaiseriin, jossa se siirtyy kompressoriin ja sitä käytetään tarpeen mukaan moottorin jäähdytykseen. Kuljettuaan moottorin käämien yli kylmäaine palaa takaisin kiertoon puristusjakson väliliitännän kautta.
30GX/HXC-ruuvijäähdyttimissä käytetään yhtä ulkoisesti asennettua esivoiteluöljypumppua piiriä kohden. Tätä pumppua käytetään osana käynnistyssekvenssiä.
HUOMIO:
Patruunan käyttölämpötila voi nousta 80 °C:seen. Tietyissä tilapäisissä olosuhteissa (erityisesti käynnistyksen aikana alhaisessa ulkolämpötilassa tai alhaisessa lauhduttimen silmukan lämpötilassa) öljypumppu voidaan aktivoida uudelleen.
30GX-yksiköissä pumput on asennettu pohjakiskoihin yksikön öljynerottimen puolelle. Pumput on asennettu 30HXC-yksiköiden lauhduttimien kiinnikkeeseen. Kun piiri on käynnistettävä, ohjaimet aktivoivat ensin öljypumpun, jotta kompressori käynnistyy oikealla voitelulla. Jos pumppu on kehittänyt riittävän öljynpaineen, kompressorin annetaan käynnistyä. Kun kompressori on käynnistynyt, öljypumppu sammutetaan. Jos pumppu ei pystynyt kehittämään riittävästi öljynpainetta, ohjaus antaa hälytyksen.
Kompressorin moottorin käämien lämpötiloja ohjataan optimaaliseen asetuspisteeseen. Ohjaus toteuttaa tämän syklittämällä moottorin jäähdytyksen solenoidiventtiiliä, jotta nestemäinen kylmäaine pääsee virtaamaan moottorin käämien yli tarpeen mukaan. Yksiköissä, joissa on ekonomaiserit, höyrystyskaasu poistuu ekonomaiserin yläosasta ja virtaa jatkuvasti moottorin käämeihin. Kaikki moottorin jäähdytykseen käytetty kylmäaine palaa roottoreihin puristusjakson puolivälissä sijaitsevan portin kautta ja puristetaan purkauspaineeseen.
Yksiköt käyttävät termistoreita (mukaan lukien kaksi moottorin lämpötilan termistoria) ja kahta tasotermistoria sekä paineantureita järjestelmän toiminnan valvontaan ja ohjaamiseen.
Haihduttimesta poistuvan nesteen lämpötila
Tätä lämpötilaa käytetään haihduttimesta poistuvan nesteen (veden tai suolaveden) lämpötilan mittaamiseen. Lämpötilaa käytetään poistuvan nesteen lämpötilan ohjaukseen ja jäähdyttimen jäätymisen estämiseen. Se sijaitsee haihduttimen nestesuuttimessa.
Haihduttimeen tulevan nesteen lämpötila
Tätä anturia käytetään haihduttimeen tulevan nesteen lämpötilan mittaamiseen. Se sijaitsee haihduttimeen tulevassa suuttimessa. Sitä käytetään automaattiseen lämpötilan kompensointiin poistuvan nesteen lämpötilan ohjauksessa tulevan nesteen kompensoinnilla.
Purkauskaasun lämpötila (piirit A ja B)
Tätä anturia käytetään purkauskaasun lämpötilan mittaamiseen ja purkauslämpötilan ylikuumenemisen ohjaamiseen. Se sijaitsee kunkin piirin purkausputkessa (30HXC) tai öljynerottimen päällä (30GX).
HUOMIO: Termostaatin holkkia ei ole.
Moottorin lämpötila
Kompressorin suojamoduuli (CPM) valvoo moottorin lämpötilaa. Termistoriliittimet sijaitsevat kompressorin kytkentärasiassa.
Haihduttimen nestetaso (piirit A ja B)
Haihduttimen nestetason termistoria käytetään optimoidun virtauksenohjauksen tarjoamiseen haihduttimessa. Se on asennettu haihduttimen yläosaan.
Lauhduttimeen tulevan nesteen lämpötila (30HXC)
Tätä anturia käytetään vesijäähdytteisiin lauhduttimiin tulevan nesteen lämpötilan mittaamiseen. Se sijaitsee lauhduttimiin tulevassa yhteisessä nesteputkessa (kenttäasennus). Lämmityskoneissa sitä käytetään kapasiteetin ohjausrutiinissa. Vesijäähdytteisissä lauhduttimissa sitä käytetään vain lauhduttimen nesteen lämpötilan valvontaan.
Lauhduttimesta poistuvan nesteen lämpötila (valinnainen 30HXC:ssä)
Tätä anturia käytetään vesijäähdytteisistä lauhduttimista poistuvan nesteen lämpötilan mittaamiseen. Se sijaitsee lauhduttimista poistuvassa yhteisessä nesteputkessa (kenttäasennus). Lämmityskoneissa sitä käytetään kapasiteetin ohjausrutiinissa. Vesijäähdytteisissä lauhduttimissa sitä käytetään vain lauhduttimen nesteen lämpötilan valvontaan.

GX082/102

GX112/132

GX152/162

GX182

GX207/227

GX247/267

GX298

GX328/358
Nämä yksiköt on suunniteltu käytettäväksi vain R-134a:n kanssa.
ÄLÄ KÄYTÄ MITÄÄN MUUTA kylmäainetta näissä yksiköissä.
Kun lisäät tai poistat latausta, kierrätä vettä lauhduttimen (HX) ja jäähdyttimen läpi koko ajan jäätymisen estämiseksi. Jäätymisvauriota pidetään väärinkäyttönä ja se voi mitätöidä Carrier-takuun.
ÄLÄ YLILADAA järjestelmää. Ylilataus johtaa korkeampaan purkauspaineeseen, suurempaan jäähdytysnesteen kulutukseen, mahdollisiin kompressorivaurioihin ja suurempaan virrankulutukseen.
HUOMAUTUS
30HXC:n alhaisen kylmäainelatauksen tarkistamiseksi on otettava huomioon useita tekijöitä. Vilkkuva nestelinjan tarkastuslasi ei välttämättä ole merkki riittämättömästä latauksesta. On monia järjestelmäolosuhteita, joissa vilkkuva tarkastuslasi esiintyy normaalin toiminnan aikana. 30HXC-mittauslaite on suunniteltu toimimaan oikein näissä olosuhteissa.
HUOMAUTUS
Vilkkuva nestelinjan tarkastuslasi muissa kuin edellä mainituissa käyttöolosuhteissa ei välttämättä ole merkki alhaisesta kylmäainelatauksesta.
Näitä lämpötiloja käytetään mittaamaan tilan lämpötilaa tai ulkoilman lämpötilaa vastaavasti nollausohjausta varten, joka perustuu ulkoilman tai tilan lämpötilan nollausvaihtoehtoihin.
Purkauspaine (piirit A ja B)
Tätä tuloa käytetään mittaamaan yksikön kunkin piirin korkean paineen puolta.
Sitä käytetään paineen tuottamiseen purkauspainemittarin korvaamiseksi ja pääpaineen ohjaamiseksi.
Imupaine (piirit A ja B)
Tätä tuloa käytetään mittaamaan yksikön matalan paineen puolen painetta. Sitä käytetään paineen tuottamiseen imupainemittarin korvaamiseksi.
Öljynpaine (jokainen kompressori)
Tätä tuloa käytetään mittaamaan yksikön kunkin kompressorin öljynpainetta. Se sijaitsee kunkin kompressorin öljynpaineportissa.
Ekonomaiserin paine (piirit A ja B)
Tätä tuloa käytetään kompressorille syötetyn öljynpaine-eron seuraamiseen.
ÄLÄ lisää öljyä missään muussa kohdassa, koska se voi johtaa yksikön virheelliseen toimintaan.
Kun kylmäainetta siirretään varastoyksikköön, öljyä voi kulkeutua mukana, kun yksikkö ei ole toiminnassa. Käytä ensin uudelleen siirretty kylmäaineen määrä. Öljyn tyhjentämisen jälkeen lataa vain tyhjennetty määrä (liiallinen öljymäärä voi heikentää yksikön oikeaa toimintaa).
06N-ruuvikompressorin integraaliöljynsuodatin on määritetty tarjoamaan korkean suodatustason (3 µ), jota vaaditaan pitkän laakerin käyttöiän saavuttamiseksi. Koska järjestelmän puhtaus on kriittistä luotettavan järjestelmän toiminnan kannalta, öljynerottimen ulostulossa öljylinjassa on myös esisuodatin (7 µ).
Varaosa integraaliöljynsuodatinelementille on:
Carrier-osanumero (sisältää suodattimen ja O-renkaan): 06NA 660016S
Suodatin on tarkistettava ensimmäisten 500 käyttötunnin jälkeen ja sen jälkeen 2000 tunnin välein. Suodatin on vaihdettava aina, kun paine-ero suodattimen yli ylittää 2,1 baria.
Painehäviö suodattimen yli voidaan määrittää mittaamalla paine suodattimen huoltoportissa ja öljynpaineportissa. Näiden kahden paineen ero on painehäviö suodattimen, takaiskuventtiilin ja solenoidiventtiilin yli. Painehäviö takaiskuventtiilin ja solenoidiventtiilin yli on noin 0,4 baria, joka on vähennettävä kahdesta öljynpainemittauksesta öljynsuodattimen painehäviön saamiseksi. Öljynsuodattimen painehäviö on tarkistettava aina, kun kompressori on sammutettu alhaisen öljynpaineen turvallisuuden vuoksi.
Oikea kompressorin pyörimissuunta on yksi kriittisimmistä sovellusnäkökohdista. Väärä pyörimissuunta, jopa hyvin lyhyen aikaa, vahingoittaa kompressoria.
Väärän pyörimissuunnan suojajärjestelmän on pystyttävä määrittämään pyörimissuunta ja pysäyttämään kompressori 300 millisekunnin sisällä. Väärä pyörimissuunta on todennäköisintä aina, kun kompressorin liittimiin meneviä johtoja häiritään.
Väärän pyörimissuunnan mahdollisuuden minimoimiseksi on noudatettava seuraavaa menettelyä. Kytke virtajohdot kompressorin liittimiin samalla tavalla kuin alun perin oli kytketty.
Kompressorin vaihtoa varten kompressorin mukana toimitetaan matalapainekytkin. Tämä matalapainekytkin on asennettava väliaikaisesti kompressorin korkeapaineosan kovaan turvallisuuteen. Tämän kytkimen tarkoituksena on suojata kompressoria kaikilta johdotusvirheiltä kompressorin liittimissä. Kytkimen sähköinen kosketus kytketään sarjaan korkeapainekytkimen kanssa. Kytkin pysyy paikallaan, kunnes kompressori on käynnistetty ja pyörimissuunta on varmistettu; tässä vaiheessa kytkin poistetaan.
Kytkin, joka on valittu väärän pyörimissuunnan havaitsemiseen, on Carrier-osanumero HK01CB001. Se on saatavana osana "Kompressorin asennuspakettia" (osanumero 06NA 660 013). Tämä kytkin avaa koskettimet, kun paine laskee alle 50 mm Hg:n tyhjiön. Kytkin on manuaalinen nollaustyyppi, joka voidaan nollata, kun paine on jälleen noussut yli 70 kPa:n. On erittäin tärkeää, että kytkin on manuaalinen nollaustyyppi, jotta kompressori ei käynnisty lyhyen syklin aikana väärään suuntaan.
Noudata alla olevia vaiheita EXD/Economizer-ongelmien diagnosoimiseksi ja korjaamiseksi.
30HXC/GX-yksiköissä, joissa on ekonomaiserit, varmista, että kuplaputken (Economizerin pohjassa) venttiili on auki. Tarkista ensin EXD-moottorin toiminta (katso menettely Controls IOM:stä). Sinun pitäisi pystyä tuntemaan toimilaitteen liikkuvan asettamalla kätesi EXD:n tai ekonomaiserin rungolle (toimilaite sijaitsee noin puolivälissä tai kaksi kolmasosaa ekonomaiserin kuoren pohjasta ylöspäin). Sinun pitäisi tuntea kova koputus toimilaitteesta, kun se saavuttaa iskunsa yläosan (voidaan kuulla, jos ympäristö on suhteellisen hiljainen). Toimilaitteen pitäisi koputtaa, kun se saavuttaa iskunsa alaosan. Jos uskotaan, että venttiili ei toimi oikein, ota yhteyttä Carrier-huolto-osastoon saadaksesi lisätarkastuksia:


Ympäristönhallintajärjestelmän hyväksyntä
Tilausnumero: 13173-76, 03 1999 - Korvaa numeron: 13173-76, maaliskuu 1998
Valmistaja pidättää oikeuden muuttaa tuotetietoja ilman erillistä ilmoitusta.
Valmistaja: Carrier s.a., Montluel, Ranska.
Painettu Alankomaissa kloorivapaalle paperille.
