Priručnik za vijčani kompresor Carrier 30HXC/30GX
- 1 UVOD
- 2 SIGURNOSNE NAPOMENE
- 3 DIMENZIJE, RAZMAKNUTOSTI, RASPODJELA TEŽINE
- 4 FIZIČKI PODACI 30HXC
- 5 ELEKTRIČNI PODACI 30HXC
- 6 ELEKTRIČNI PODACI ZA JEDINICE S VISOKIM TEMPERATURAMA KONDENZACIJE
- 7 FIZIČKI PODACI 30GX
- 8 ELEKTRIČNI PODACI 30GX
-
9
PODACI O PRIMJENI
- 9.1 Radni raspon jedinice
- 9.2 Minimalni protok rashladne vode
- 9.3 Maksimalni protok rashladne vode
- 9.4 Isparivač s promjenjivim protokom
- 9.5 Minimalni volumen vode u sustavu
- 9.6 Protok rashladnog sredstva (l/s)
- 9.7 Protok kondenzatora (l/s)
- 9.8 Krivulja pada tlaka isparivača
- 9.9 Krivulja pada tlaka kondenzatora
- 9.10 Regulatori protoka
- 10 INSTALACIJA
- 11 UPUTE ZA PODIZANJE
- 12 ELEKTRIČNE KARAKTERISTIKE
- 13 PREPORUČENI PRESJECI ŽICA
-
14
GLAVNE KOMPONENTE SUSTAVA I PODACI O RADU
- 14.1 Zupčasti dvostruki vijčani kompresor
- 14.2 Isparivač
- 14.3 Kondenzator i separator ulja (30HXC)
- 14.4 Separator ulja (30GX)
- 14.5 Elektronički ekspanzijski uređaj (EXD)
- 14.6 Ekonomizator
- 14.7 Pumpe za ulje
- 14.8 Ventili za hlađenje motora
- 14.9 Senzori
- 14.10 Termistori
- 14.11 30GX raspored ventilatora
- 15 ODRŽAVANJE
- 16 Rješavanje problema
- 17 Preuzmi priručnik
- 18 Na drugim jezicima

UVOD
Prije početnog puštanja u rad jedinica 30HXC i 30GX, osobe uključene u puštanje u rad, rad i održavanje trebaju biti temeljito upoznate s ovim uputama i drugim potrebnim podacima o poslu. Ova knjiga pruža pregled kako biste se mogli upoznati s upravljačkim sustavom prije izvođenja postupaka puštanja u rad. Postupci u ovom priručniku raspoređeni su redoslijedom potrebnim za pravilno pokretanje i rad stroja.
SIGURNOSNE NAPOMENE
Rashladni uređaji s tekućinom 30HXC i 30GX dizajnirani su za pružanje sigurne i pouzdane usluge kada se njima upravlja unutar projektnih specifikacija. Prilikom rada s ovom opremom, koristite zdrav razum i sigurnosne mjere opreza kako biste izbjegli oštećenje opreme i imovine ili ozljede osoblja.
Provjerite razumijete li i slijedite postupke i sigurnosne mjere opreza sadržane u uputama za stroj, kao i one navedene u ovom vodiču.
NEMOJTE ISPUŠTATI ventile za rasterećenje rashladnog sredstva unutar zgrade. Izlaz iz rasteretnog ventila mora biti usmjeren van. Akumulacija rashladnog sredstva u zatvorenom prostoru može istisnuti kisik i uzrokovati gušenje ili eksplozije.
OSIGURAJTE odgovarajuću ventilaciju, posebno za zatvorene prostore i prostore s niskim stropom. Udisanje visokih koncentracija pare je štetno i može uzrokovati nepravilnosti u radu srca, nesvjesticu ili smrt. Para je teža od zraka i smanjuje količinu kisika dostupnog za disanje. Proizvod uzrokuje iritaciju očiju i kože. Produkti raspadanja su opasni.
NEMOJTE KORISTITI KISIK za pročišćavanje vodova ili za tlačno ispitivanje stroja u bilo koju svrhu. Plinoviti kisik burno reagira s uljem, mašću i drugim uobičajenim tvarima.
NIKADA NEMOJTE PREKORAČITI specificirane ispitne tlakove, PROVJERITE dopušteni ispitni tlak provjerom uputa i projektnih tlakova na natpisnoj pločici opreme.
NEMOJTE KORISTITI zrak za ispitivanje nepropusnosti. Koristite samo rashladno sredstvo ili suhi dušik.
NEMOJTE ZATVARATI ventilom bilo koji sigurnosni uređaj.
PROVJERITE jesu li svi uređaji za rasterećenje tlaka pravilno instalirani prije rada bilo kojeg stroja.
NEMOJTE ZAVARIVATI ILI REZATI PLAMENOM bilo koji vod ili spremnik rashladnog sredstva dok se svo rashladno sredstvo (tekuće i plinovito) ne ukloni iz rashladnog uređaja. Tragove pare treba istisnuti suhim zrakom ili dušikom, a radni prostor treba biti dobro prozračen. Rashladno sredstvo u dodiru s otvorenim plamenom proizvodi otrovne plinove.
NEMOJTE raditi na opremi pod naponom osim ako niste kvalificirani električar.
NEMOJTE RADITI NA električnim komponentama, uključujući upravljačke ploče, prekidače, releje itd., dok niste sigurni DA JE SVA STRUJA ISKLJUČENA i da rezidualni napon ne može iscuriti iz kondenzatora ili poluvodičkih komponenti.
ZAKLJUČAJTE OTVORENE I OZNAČITE električne krugove tijekom servisiranja. AKO JE RAD PREKINUT, provjerite jesu li svi krugovi isključeni prije nastavka rada.
NEMOJTE sifonirati rashladno sredstvo.
IZBJEGAVAJTE PROLIJEVANJE tekućeg rashladnog sredstva po koži ili u oči. KORISTITE ZAŠTITNE NAOČALE. Isperite kožu sa sapunom i vodom ako dođe do prolijevanja. Ako tekuće rashladno sredstvo uđe u oči,
ODMAH ISPERITE OČI vodom i posavjetujte se s liječnikom.
NIKADA NEMOJTE PRIMJENJIVATI otvoreni plamen ili živu paru na spremnik rashladnog sredstva. Može doći do opasnog prekomjernog tlaka. Ako je potrebno zagrijati rashladno sredstvo, koristite samo toplu vodu.
NEMOJTE PONOVNO KORISTITI jednokratne (nepovratne) cilindre niti ih pokušavati ponovno napuniti. To je OPASNO I PROTUZAKONITO. Kada se cilindri isprazne, ispustite preostali tlak plina, olabavite ovratnik i odvrnite i bacite vreteno ventila. NEMOJTE SPALJIVATI.
PROVJERITE VRSTU RASHLADNOG SREDSTVA prije dodavanja rashladnog sredstva u stroj. Uvođenje pogrešnog rashladnog sredstva može uzrokovati oštećenje ili kvar ovog stroja.
NEMOJTE POKUŠAVATI UKLONITI priključke, komponente itd. dok je stroj pod tlakom ili dok stroj radi. Provjerite je li tlak na 0 kPa prije prekidanja priključka rashladnog sredstva.
PAŽLJIVO PREGLEDAJTE sve uređaje za rasterećenje, BAREM JEDNOM GODIŠNJE. Ako stroj radi u korozivnoj atmosferi, pregledavajte uređaje u češćim intervalima.
NEMOJTE POKUŠAVATI POPRAVITI ILI OBNOVITI bilo koji uređaj za rasterećenje kada se unutar tijela ventila ili mehanizma pronađe korozija ili nakupljanje stranog materijala (hrđa, prljavština, kamenac itd.). Zamijenite uređaj.
NEMOJTE instalirati uređaje za rasterećenje u seriju ili unatrag.
NEMOJTE GAZITI po vodovima rashladnog sredstva. Puknuti vodovi mogu se izvijati i ispuštati rashladno sredstvo, uzrokujući osobne ozljede.
NEMOJTE se penjati preko stroja. Koristite platformu ili pozornicu.
KORISTITE MEHANIČKU OPREMU (dizalicu, vitlo itd.) za podizanje ili premještanje teških komponenti. Čak i ako su komponente lagane, koristite mehaničku opremu kada postoji rizik od klizanja ili gubitka ravnoteže.
BUDITE SVJESNI da određeni automatski startni aranžmani MOGU UKLJUČITI VENTILATOR HLADNJAKA ILI PUMPE. Otvorite prekidač ispred ventilatora hladnjaka ili pumpi.
KORISTITE samo dijelove za popravak ili zamjenu koji zadovoljavaju zahtjeve koda originalne opreme.
NEMOJTE ISPUŠTATI ILI ISPUŠTATI vodene kutije koje sadrže industrijske salamure, bez dopuštenja nadležnog tijela.
NEMOJTE OLABAVLJIVATI vijke vodene kutije dok se vodena kutija potpuno ne isprazni.
NEMOJTE OLABAVLJIVATI maticu brtvene žlijezde prije nego što provjerite ima li matica pozitivan zahvat navoja.
PERIODIČKI PREGLEDAJTE sve ventile, priključke i cjevovode na koroziju, hrđu, curenje ili oštećenja.
OSIGURAJTE PRIKLJUČAK ZA ODVOD u ventilacijskom vodu u blizini svakog uređaja za rasterećenje tlaka kako biste spriječili nakupljanje kondenzata ili kišnice.
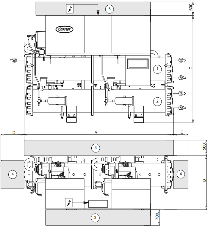
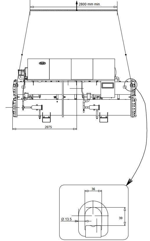
DIMENZIJE, RAZMAKNUTOSTI, RASPODJELA TEŽINE
30HXC 080-190
30HXC080
30HXC090
30HXC100
30HXC110

- Isparivač
- Kondenzator
- Potrebni razmaci za rad i održavanje
- Potrebni razmaci za uklanjanje cijevi izmjenjivača topline. Razmaci D i E mogu biti s lijeve ili desne strane.
Ulaz vode
Izlaz vode
Napajanje
kg: ukupna radna težina
| A mm | B mm | C mm | D mm | E mm | kg | |
| 30HXC080 30HXC090 30HXC100 |
2705 | 950 | 1850 | 2360 | 1000 | 2447 2462 2504 |
| 30HXC110 | 2705 | 950 | 1900 | 2360 | 1000 | 2650 |
| 30HXC120 30HXC130 30HXC140 30HXC155 |
3535 | 950 | 1875 | 3220 | 1000 | 2846 2861 2956 2971 |
| 30HXC175 30HXC190 |
3550 | 950 | 2000 | 3220 | 1000 | 3283 3438 |
NAPOMENA: Prilikom projektiranja instalacije pogledajte ovjerene crteže dimenzija isporučene s jedinicom.
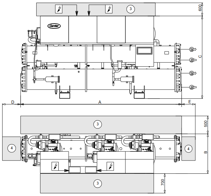
30HXC 200-375

- Isparivač
- Kondenzator
- Potrebni razmaci za rad i održavanje
- Potrebni razmaci za uklanjanje cijevi izmjenjivača topline. Razmaci D i E mogu biti s lijeve ili desne strane.
Ulaz vode
Izlaz vode
Napajanje
kg: ukupna radna težina
| A mm | B mm | C mm | D mm | E mm | kg | |
| 30HXC200 | 3975 | 980 | 2035 | 3620 | 1000 | 4090 |
| 30HXC230 30HXC260 30HXC285 |
3995 | 980 | 2116 | 3620 | 1000 | 4705 4815 4985 |
| 30HXC310 30HXC345 30HXC375 |
4490 | 980 | 2163 | 4120 | 1000 | 5760 5870 6105 |
NAPOMENA: Prilikom projektiranja instalacije pogledajte ovjerene crteže dimenzija isporučene s jedinicom.
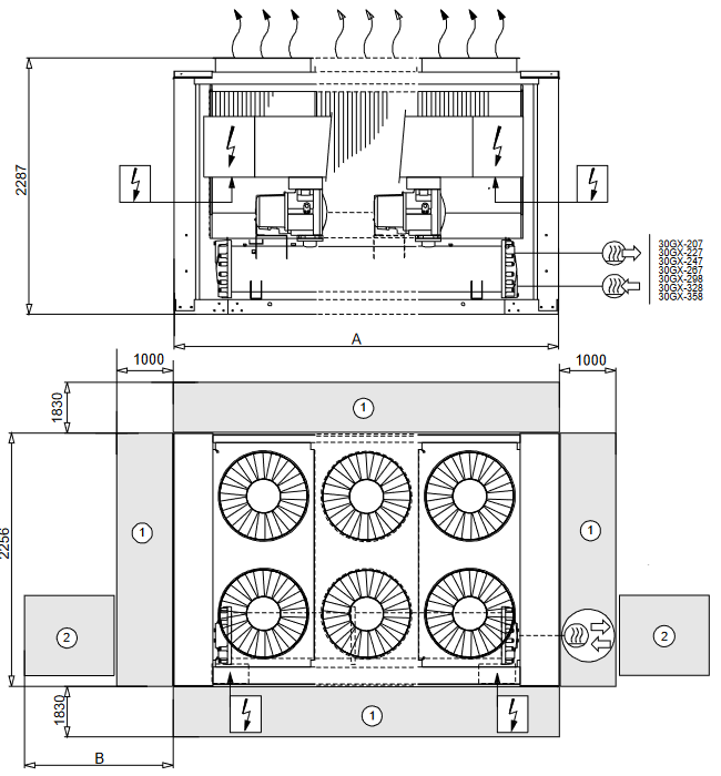
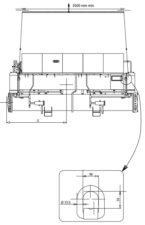
30GX 082-182
30GX-082
30GX-092
30GX-102
30GX-112
30GX-122
30GX-132
30GX-152
30GX-162
30GX-182


- Potrebni razmaci za rad i održavanje
- Potrebni razmaci za uklanjanje cijevi izmjenjivača topline. Razmaci mogu biti s lijeve ili desne strane.
Ulaz vode
Izlaz vode
Napajanje
Izlaz zraka - nemojte ometati
kg: ukupna radna težina
| A mm | B mm | kg | |
| 30GX082 30GX092 30GX102 |
2970 | 2215 | 3116 3157 3172 |
| 30GX112 30GX122 30GX132 |
3427 | 2045 | 3515 3531 3633 |
| 30GX152 30GX162 |
4342 | 2835 | 3920 3936 |
| 30GX182 | 5996 | 1820 | 4853 |
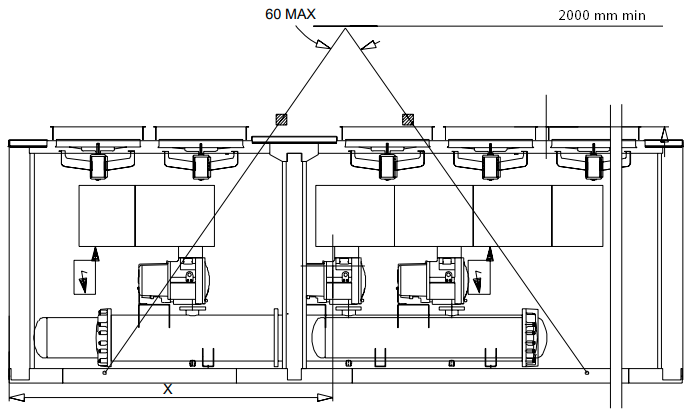
Instalacija više rashladnih uređaja


Napomene:
- Jedinica mora imati razmake za protok zraka kako slijedi:
Vrh: ni na koji način ne ograničavajte - U slučaju više rashladnih uređaja (do četiri jedinice), odgovarajući razmak između njih treba povećati s 1830 na 2000 mm za bočni prostor.
- Potrebni su razmaci za uklanjanje cijevi hladnjaka.
NAPOMENA: Prilikom projektiranja instalacije pogledajte ovjerene crteže dimenzija isporučene s jedinicom.
30GX 207-358
30GX-207
30GX-227
30GX-247
30GX-267
30GX-298
30GX-328
30GX-358

- Potrebni razmaci za rad i održavanje
- Potrebni razmaci za uklanjanje cijevi izmjenjivača topline. Razmaci mogu biti s lijeve ili desne strane.
Ulaz vode
Izlaz vode
Napajanje
Izlaz zraka - nemojte ometati
kg: ukupna radna težina
| A mm | B mm | kg | |
| 30GX207 30GX227 |
5996 | 2895 | 5540 5570 |
| 30GX247 30GX267 |
6911 | 2470 | 6134 6365 |
| 30GX298 | 7826 | 2220 | 7354 |
| 30GX328 30GX358 |
8741 | 1250 | 7918 8124 |
Instalacija više rashladnih uređaja


Napomene:
- Jedinica mora imati razmake za protok zraka kako slijedi:
Vrh: ni na koji način ne ograničavajte - U slučaju više rashladnih uređaja (do četiri jedinice), odgovarajući razmak između njih treba povećati s 1830 na 2000 mm za bočni prostor.
- Potrebni su razmaci za uklanjanje cijevi hladnjaka.
NAPOMENA: Prilikom projektiranja instalacije pogledajte ovjerene crteže dimenzija isporučene s jedinicom.
FIZIČKI PODACI 30HXC
| 30HXC | 080 | 090 | 100 | 110 | 120 | 130 | 140 | 155 | 175 | 190 | 200 | 230 | 260 | 285 | 310 | 345 | 375 | |
| Neto rashladni kapacitet | kW | 292 | 321 | 352 | 389 | 426 | 464 | 514 | 550 | 607 | 663 | 716 | 822 | 918 | 996 | 1119 | 1222 | 1326 |
| Radna težina | kg | 2447 | 2462 | 2504 | 2650 | 2846 | 2861 | 2956 | 2971 | 3283 | 3438 | 4090 | 4705 | 4815 | 4985 | 5760 | 5870 | 6105 |
| Rashladno sredstvo Krug A/B |
HFC-134a | |||||||||||||||||
| kg | 39/36 | 39/36 | 37/32 | 38/38 | 57/55 | 59/50 | 56/50 | 59/52 | 58/61 | 60/70 | 110/58 | 118/63 | 120/75 | 120/75 | 108/110 | 110/110 | 110/120 | |
| Ulje Krug A/B |
Poliolestersko ulje CARRIER SPEC: PP 47-32 | |||||||||||||||||
| l | 15/15 | 15/15 | 15/15 | 15/15 | 15/15 | 15/15 | 15/15 | 15/15 | 15/15 | 15/15 | 30/15 | 30/15 | 30/15 | 30/15 | 30/30 | 30/30 | 30/30 | |
| Kompresori | Hermetički dvostruki vijak Power3 | |||||||||||||||||
| Krug A, nom. veličina po kompresoru** | 39 | 46 | 46 | 56 | 56 | 66 | 80 | 80 | 80 | 80+ | 66/56 | 80/56 | 80/80 | 80+/80+ | 80/66 | 80/80 | 80+/80+ | |
| Krug B, nom. veličina po kompresoru** | 39 | 39 | 46 | 46 | 56 | 56 | 56 | 66 | 80 | 80+ | 66 | 80 | 80 | 80+ | 80/66 | 80/80 | 80+/80+ | |
| Vrsta upravljanja | PRO-DIALOG Plus control | |||||||||||||||||
| Broj stupnjeva kapaciteta | 6 | 6 | 6 | 6 | 6 | 6 | 6 | 6 | 6 | 6 | 8 | 8 | 8 | 8 | 10 | 10 | 10 | |
| Minimalni kapacitet | % | 19 | 19 | 21 | 19 | 21 | 19 | 17 | 19 | 21 | 21 | 14 | 14 | 14 | 14 | 10 | 10 | 10 |
| Isparivač | Tip plašta i cijevi, s unutarnje rebrastim bakrenim cijevima | |||||||||||||||||
| Neto volumen vode | l | 65 | 65 | 73 | 87 | 81 | 81 | 91 | 91 | 109 | 109 | 140 | 165 | 181 | 181 | 203 | 229 | 229 |
| Priključci za vodu | Tvornički isporučena ravna prirubnica, za zavarivanje na licu mjesta | |||||||||||||||||
| Ulaz i izlaz | in. | 4 | 4 | 4 | 5 | 5 | 5 | 5 | 5 | 5 | 5 | 6 | 6 | 6 | 6 | 8 | 8 | 8 |
| Ispust i otvor za zrak (NPT) | in. | 3/8 | 3/8 | 3/8 | 3/8 | 3/8 | 3/8 | 3/8 | 3/8 | 3/8 | 3/8 | 3/8 | 3/8 | 3/8 | 3/8 | 3/8 | 3/8 | 3/8 |
| Maks. radni tlak na strani vode | kPa | 1000 | 1000 | 1000 | 1000 | 1000 | 1000 | 1000 | 1000 | 1000 | 1000 | 1000 | 1000 | 1000 | 1000 | 1000 | 1000 | 1000 |
| Kondenzatori | Tip plašta i cijevi, s unutarnje rebrastim bakrenim cijevima | |||||||||||||||||
| Neto volumen vode | l | 58 | 58 | 58 | 58 | 92 | 92 | 110 | 110 | 132 | 132 | 162 | 208 | 208 | 208 | 251 | 251 | 251 |
| Priključci za vodu | Tvornički isporučena ravna prirubnica, za zavarivanje na licu mjesta | |||||||||||||||||
| Ulaz i izlaz | in. | 5 | 5 | 5 | 5 | 5 | 5 | 5 | 5 | 6 | 6 | 6 | 6 | 6 | 6 | 8 | 8 | 8 |
| Ispust i otvor za zrak (NPT) | in. | 3/8 | 3/8 | 3/8 | 3/8 | 3/8 | 3/8 | 3/8 | 3/8 | 3/8 | 3/8 | 3/8 | 3/8 | 3/8 | 3/8 | 3/8 | 3/8 | 3/8 |
| Maks. radni tlak na strani vode | kPa | 1000 | 1000 | 1000 | 1000 | 1000 | 1000 | 1000 | 1000 | 1000 | 1000 | 1000 | 1000 | 1000 | 1000 | 1000 | 1000 | 1000 |
* Standardizirani Eurovent uvjeti: temperature vode na ulazu/izlazu isparivača = 12°C/7°C, temperature vode na ulazu/izlazu kondenzatora = 30°C/35°C Neto rashladni kapacitet: Bruto rashladni kapacitet umanjen za toplinu vodene pumpe u odnosu na unutarnji pad tlaka isparivača. ** Veličina kompresora odgovara nominalnom kapacitetu u tonama (1 tona = 3,517 kW).
ELEKTRIČNI PODACI 30HXC
| 30HXC | 080 | 090 | 100 | 110 | 120 | 130 | 140 | 155 | 175 | 190 | 200 | 230 | 260 | 285 | 310 | 345 | 375 | |
| Strujni krug | ||||||||||||||||||
| Nominalni izvor napajanja* | V-ph-Hz | 400-3-50 | ||||||||||||||||
| Raspon napona | V | 360-440 | ||||||||||||||||
| Napajanje upravljačkog kruga | Upravljački krug se napaja putem tvornički ugrađenog transformatora | |||||||||||||||||
| Nominalna ulazna snaga* | kW | 59 | 67 | 74 | 83 | 88 | 99 | 112 | 123 | 135 | 146 | 156 | 179 | 201 | 219 | 245 | 274 | 298 |
| Nominalna potrošnja struje* | A | 98 | 111 | 124 | 139 | 148 | 166 | 186 | 204 | 226 | 242 | 259 | 291 | 335 | 367 | 408 | 456 | 498 |
| Maks. ulazna snaga** | kW | 76 | 83 | 91 | 101 | 111 | 121 | 135 | 145 | 158 | 181 | 187 | 214 | 237 | 272 | 290 | 316 | 362 |
| Krug A | kW | - | - | - | - | - | - | - | - | - | - | 121 | 135 | 158 | 181 | 145 | 158 | 181 |
| Krug B | kW | - | - | - | - | - | - | - | - | - | - | 66 | 79 | 79 | 91 | 145 | 158 | 181 |
| Cosinus phi, jedinica pri punom opterećenju | 0.87 | 0.87 | 0.87 | 0.87 | 0.87 | 0.87 | 0.87 | 0.87 | 0.87 | 0.87 | 0.87 | 0.87 | 0.87 | 0.87 | 0.87 | 0.87 | 0.87 | |
| Maks. potrošnja struje (Un - 10%)*** | A | 138 | 152 | 166 | 184 | 202 | 221 | 245 | 264 | 288 | 330 | 341 | 389 | 432 | 495 | 528 | 576 | 660 |
| Krug A | A | - | - | - | - | - | - | - | - | - | - | 221 | 245 | 288 | 330 | 264 | 288 | 330 |
| Krug B | A | - | - | - | - | - | - | - | - | - | - | 120 | 144 | 144 | 165 | 264 | 288 | 330 |
| Maksimalna potrošnja struje (Un)*** | A | 125 | 138 | 151 | 167 | 184 | 201 | 223 | 240 | 262 | 300 | 310 | 354 | 393 | 450 | 480 | 524 | 600 |
| Krug A | A | - | - | - | - | - | - | - | - | - | - | 201 | 223 | 262 | 300 | 240 | 262 | 300 |
| Krug B | A | - | - | - | - | - | - | - | - | - | - | 109 | 131 | 131 | 150 | 240 | 262 | 300 |
| Maks. struja pokretanja, std. jedinica (Un)**** | A | 172 | 197 | 209 | 235 | 252 | 283 | 318 | 335 | 357 | 420 | 806 | 938 | 977 | 1156 | 1064 | 1108 | 1306 |
| Krug A | A | - | - | - | - | - | - | - | - | - | - | 697 | 807 | 846 | 1006 | 824 | 846 | 1006 |
| Krug B | A | - | - | - | - | - | - | - | - | - | - | 605 | 715 | 715 | 856 | 824 | 846 | 1006 |
| Maks. struja pokretanja/maks. omjer potrošnje struje, jedinica | 1.37 | 1.42 | 1.39 | 1.41 | 1.37 | 1.41 | 1.43 | 1.40 | 1.36 | 1.40 | 2.60 | 2.65 | 2.49 | 2.57 | 2.22 | 2.12 | 2.18 | |
| Maks. struja pokretanja/maks. omjer potrošnje struje, krug A | - | - | - | - | - | - | - | - | - | - | 3.47 | 3.62 | 3.23 | 3.35 | 3.43 | 3.23 | 3.35 | |
| Maks. struja pokretanja/maks. omjer potrošnje struje, krug B | - | - | - | - | - | - | - | - | - | - | 5.55 | 5.46 | 5.46 | 5.71 | 3.43 | 3.23 | 3.35 | |
| Maks. struja pokretanja - smanjeni start struje (Un) **** | A | std. | std. | std. | std. | std. | std. | std. | std. | std. | std. | 601 | 643 | 682 | 760 | 769 | 813 | 910 |
| Krug A | A | std. | std. | std. | std. | std. | std. | std. | std. | std. | std. | 492 | 512 | 551 | 610 | 529 | 551 | 610 |
| Krug B | A | std. | std. | std. | std. | std. | std. | std. | std. | std. | std. | 330 | 370 | 370 | 385 | 529 | 551 | 610 |
| Maks.struja pokretanja - crvena. start struje/ maks. omjer potrošnje struje, jedinica | std. | std. | std. | std. | std. | std. | std. | std. | std. | std. | 1.94 | 1.82 | 1.74 | 1.69 | 1.60 | 1.55 | 1.52 | |
| Krug A | std. | std. | std. | std. | std. | std. | std. | std. | std. | std. | 2.45 | 2.30 | 2.10 | 2.03 | 2.20 | 2.10 | 2.03 | |
| Krug B | std. | std. | std. | std. | std. | std. | std. | std. | std. | std. | 3.03 | 2.83 | 2.83 | 2.57 | 2.20 | 2.10 | 2.03 | |
| Trofazna struja kratkog spoja | kA | 25 | 25 | 25 | 25 | 25 | 25 | 25 | 25 | 25 | 25 | N/A | N/A | N/A | N/A | N/A | N/A | N/A |
| Krug A | kA | - | - | - | - | - | - | - | - | - | - | 25 | 25 | 25 | 25 | 25 | 25 | 25 |
| Krug B | kA | - | - | - | - | - | - | - | - | - | - | 15 | 15 | 15 | 15 | 25 | 25 | 25 |
| Kapacitet stanja pripravnosti kupca, jedinica ili krug A, za priključke pumpe za vodu isparivača† | kW | 8 | 8 | 8 | 11 | 11 | 11 | 15 | 15 | 15 | 15 | 15 | 18 | 18 | 30 | 30 | 30 | 30 |
* Standardni Eurovent uvjeti: Temperatura vode na ulazu/izlazu isparivača 12°C i 7°C. Temperatura vode na ulazu/izlazu kondenzatora 30°C/35°C.
** Ulazna snaga, kompresor, pri radnim granicama jedinice (temperatura vode na ulazu/izlazu isparivača = 15°C/10°C, temperatura vode na ulazu/izlazu kondenzatora = 40°C/45°C) i nominalni napon od 400 V (podaci navedeni na natpisnoj pločici jedinice).
*** Maksimalna radna struja jedinice pri maksimalnoj ulaznoj snazi jedinice.
**** Maksimalna trenutna struja pokretanja (maksimalna radna struja najmanjeg kompresora(a) + struja blokiranog rotora ili smanjena struja pokretanja najvećeg kompresora)
† Struja i ulazna snaga nisu uključeni u gore navedene vrijednosti.
N/A Nije dostupno
Kompresori
| Referenca | Veličina | I nom. | MHA | LRA | LRA (Y) | LRA (S) 1 cp. | LRA (S) 2 cp. |
| 06NW2146S7N | 39 | 48 | 69 | 344 | 109 | 125 | - |
| 06NW2174S7N | 46 | 58 | 83 | 423 | 134 | 154 | - |
| 06NW2209S7N | 56 | 71 | 101 | 506 | 160 | 260 | 350 |
| 06NW2250S7N | 66 | 87 | 120 | 605 | 191 | 330 | 400 |
| 06NW2300S5N | 80 | 104 | 144 | 715 | 226 | 370 | 420 |
| 06NW2300S5E | 80+ | 111 | 165 | 856 | 270 | 385 | 460 |
Legenda:
| 06NW | Kompresor za jedinice hlađene vodom |
| N | Neeconomized kompresor |
| E | Economized kompresor |
| INOM | Prosječna potrošnja struje kompresora u Eurovent uvjetima |
| MHA | Amperi koje mora izdržati (maksimalna radna struja) pri 360 V |
| LRA | Struja blokiranog rotora s pokretanjem preko linije |
| LRA (Y) | Struja blokiranog rotora pri smanjenoj struji (način pokretanja zvijezda/trokut) |
| LRA (S) 1 cp. | Pokretanje sa smanjenom strujom s elektroničkim starterom (trajanje pokretanja 3 sekunde maks.) za jedan kompresor po krugu |
| LRA (S) 2 cp. | Pokretanje sa smanjenom strujom s elektroničkim starterom (trajanje pokretanja 3 sekunde maks.) za dva kompresora po krugu |
ELEKTRIČNI PODACI ZA JEDINICE S VISOKIM TEMPERATURAMA KONDENZACIJE
30HXC 150 i 150A Opcije
| 30HXC | 080 | 090 | 100 | 110 | 120 | 130 | 140 | 155 | 175 | 190 | 200 | 230 | 260 | 285 | 310 | 345 | 375 | |
| Strujni krug | ||||||||||||||||||
| Nominalno napajanje* | V-ph-Hz | 400-3-50 | ||||||||||||||||
| Raspon napona | V | 360-440 | ||||||||||||||||
| Napajanje upravljačkog kruga | Upravljački krug se napaja putem tvornički ugrađenog transformatora | |||||||||||||||||
| Maks. ulazna snaga** | kW | 104 | 117 | 131 | 145 | 159 | 174 | 194 | 211 | 230 | 263 | 271 | 310 | 345 | 395 | 422 | 460 | 526 |
| Krug A | kW | - | - | - | - | - | - | - | - | - | - | 175 | 195 | 230 | 263 | 211 | 230 | 263 |
| Krug B | kW | - | - | - | - | - | - | - | - | - | - | 96 | 115 | 115 | 132 | 211 | 230 | 263 |
| Maks. potrošena struja (Un - 10%)*** | A | 190 | 215 | 240 | 265 | 290 | 320 | 355 | 385 | 420 | 480 | 495 | 564 | 630 | 720 | 770 | 840 | 960 |
| Krug A | A | - | - | - | - | - | - | - | - | - | - | 320 | 355 | 420 | 480 | 385 | 420 | 480 |
| Krug B | A | - | - | - | - | - | - | - | - | - | - | 175 | 210 | 210 | 240 | 385 | 420 | 480 |
| Maksimalna potrošena struja (Un)*** | A | 173 | 195 | 218 | 241 | 264 | 291 | 323 | 350 | 382 | 436 | 450 | 514 | 573 | 655 | 700 | 764 | 873 |
| Krug A | A | - | - | - | - | - | - | - | - | - | - | 291 | 323 | 382 | 436 | 350 | 382 | 436 |
| Krug B | A | - | - | - | - | - | - | - | - | - | - | 159 | 191 | 191 | 218 | 350 | 382 | 436 |
| Maks. struja pokretanja, std. jedinica (Un)**** | A | 277 | 312 | 335 | 379 | 402 | 435 | 519 | 546 | 578 | 618 | 1251 | 1549 | 1608 | 1701 | 1735 | 1799 | 1920 |
| Krug A | A | - | - | - | - | - | - | - | - | - | - | 1092 | 1358 | 1417 | 1483 | 1385 | 1417 | 1483 |
| Krug B | A | - | - | - | - | - | - | - | - | - | - | 960 | 1226 | 1226 | 1265 | 1385 | 1417 | 1483 |
| Maks. omjer struje pokretanja/maks. potrošnje struje, jedinica | 1.61 | 1.60 | 1.54 | 1.57 | 1.52 | 1.49 | 1.61 | 1.56 | 1.51 | 1.42 | 2.78 | 3.02 | 2.81 | 2.60 | 2.48 | 2.36 | 2.20 | |
| Maks. omjer struje pokretanja/maks. potrošnje struje, krug A | - | - | - | - | - | - | - | - | - | - | 3.75 | 4.21 | 3.71 | 3.40 | 3.96 | 3.71 | 3.40 | |
| Maks. omjer struje pokretanja/maks. potrošnje struje, krug B | - | - | - | - | - | - | - | - | - | - | 6.03 | 6.42 | 6.42 | 5.80 | 3.96 | 3.71 | 3.40 | |
| Maks. struja pokretanja - smanjeni start struje (Un) **** | A | std. | std. | std. | std. | std. | std. | std. | std. | std. | std. | N/A | N/A | N/A | N/A | N/A | N/A | N/A |
| Trofazna struja kratkog spoja | kA | 25 | 25 | 25 | 25 | 25 | 25 | 25 | 25 | 25 | 25 | N/A | N/A | N/A | N/A | N/A | N/A | N/A |
| Krug A | kA | - | - | - | - | - | - | - | - | - | - | 25 | 25 | 25 | 25 | 25 | 25 | 25 |
| Krug B | kA | - | - | - | - | - | - | - | - | - | - | 15 | 15 | 15 | 15 | 25 | 25 | 25 |
| Kapacitet stanja pripravnosti kupca, jedinica ili krug A, za priključke pumpe za vodu isparivača† | kW | 8 | 8 | 8 | 11 | 11 | 11 | 15 | 15 | 15 | 15 | 15 | 18 | 18 | 30 | 30 | 30 | 30 |
** Ulazna snaga, kompresor, pri radnim granicama jedinice (temperatura ulazne/izlazne vode isparivača = 15°C/10°C, temperatura ulazne/izlazne vode kondenzatora = 40°C/45°C) i nominalni napon od 400 V (podaci navedeni na natpisnoj pločici jedinice).
*** Maksimalna radna struja jedinice pri maksimalnoj ulaznoj snazi jedinice.
**** Maksimalna trenutna struja pokretanja (maksimalna radna struja najmanjeg kompresora(a) + struja blokiranog rotora ili smanjena struja pokretanja najvećeg kompresora)
† Struja i ulazna snaga nisu uključeni u gore navedene vrijednosti.
N/A Nije dostupno
Jedinice 30HXC 080-375 za visoke temperature kondenzacije izvedene su izravno iz standardnih modela. Njihov raspon primjene isti je kao i kod standardnih jedinica, ali omogućuje rad pri temperaturama izlazne vode kondenzatora do 63°C. Upravljačka jedinica PRO-DIALOG nudi sve prednosti standardnih jedinica, plus kontrolu temperature izlazne vode kondenzatora.
Glavne izmjene su:
- Upotreba 30GX kompresora
- Modifikacija električnih komponenti za rad s kompresorima za visoke temperature kondenzacije.
- Modifikacija izmjenjivača topline kako bi se zadovoljili zahtjevi tlačnog koda (ako je potrebno).
Opcija 150
Ove su jedinice dizajnirane za tradicionalne primjene za vodom hlađene jedinice, ali za više temperature izlazne vode kondenzatora od 45°C.
Poput standardnih jedinica, opremljene su senzorima ulazne i izlazne vode kondenzatora, instaliranim na cjevovodu.
Moguće je upravljati strojem na izlazu vode kondenzatora, što zahtijeva promjenu tvorničke konfiguracije i upotrebu uređaja za preokret ulaza grijanja/hlađenja.
Opcija 150A
Ove su jedinice dizajnirane za toplinske pumpe voda-voda.
Tvornički su konfigurirane kao toplinske pumpe (upravljanje grijanjem/hlađenjem kao funkcija udaljenog uređaja za preokret). Kondenzator uključuje toplinsku izolaciju koja je identična onoj isparivača.
Tehničke informacije
Sve su informacije identične onima standardnih jedinica 30HXC, osim sljedećih odlomaka.
Odabir
Ne postoje nominalni uvjeti za ovu vrstu jedinice. Odabir se vrši pomoću trenutnog elektroničkog kataloga.
Dimenzije
Ove su identične onima standardnih jedinica 30HXC. Jedina je razlika u promjeru ulaznog priključka terenskog ožičenja, opisanog u poglavlju "Preporučeni odabir". Prije nastavka s ožičenjem, pogledajte dimenzijske crteže za ove jedinice.
Kompresor
Pogledajte tablicu kompresora 30GX.
Opcije i pribor
Sve opcije dostupne za standardne jedinice 30HXC su kompatibilne, osim:
| Opcija 5, jedinica za salamuru | Posebna jedinica |
| Opcija 25, meki start, jedinice 30HXC 200-375 | Nije dostupno |
Pažnja:
Ako jedinice imaju dva različita načina rada - jedan s visokom temperaturom kondenzacije, a drugi s niskom temperaturom kondenzacije - a prijelaz se vrši dok jedinica radi, temperatura ne smije varirati za više od 3 K po minuti. U slučajevima kada to nije moguće, preporučuje se proći kroz prekidač za pokretanje/zaustavljanje jedinice (daljinsko pokretanje/zaustavljanje dostupno za standardne jedinice).
FIZIČKI PODACI 30GX
| 30GX | 082 | 092 | 102 | 112 | 122 | 132 | 152 | 162 | 182 | 207 | 227 | 247 | 267 | 298 | 328 | 358 | ||
| Neto rashladni kapacitet | kW | 285 | 309 | 332 | 388 | 417 | 450 | 505 | 536 | 602 | 687 | 744 | 810 | 910 | 1003 | 1103 | 1207 | |
| Radna težina | kg | 3116 | 3157 | 3172 | 3515 | 3531 | 3633 | 3920 | 3936 | 4853 | 5540 | 5570 | 6134 | 6365 | 7354 | 7918 | 8124 | |
| Punjenje rashladnim sredstvom | HFC-134a | |||||||||||||||||
| Krug A/B | kg | 55/55 | 58/50 | 54/53 | 55/53 | 60/57 | 63/60 | 75/69 | 75/75 | 80/80 | 130/85 | 130/85 | 155/98 | 170/104 | 162/150 | 162/165 | 175/175 | |
| Ulje | Poliolester ulje CARRIER SPEC: PP 47-32 | |||||||||||||||||
| Krug A/B | l | 20/20 | 20/20 | 20/20 | 20/20 | 20/20 | 20/20 | 20/20 | 20/20 | 20/20 | 40/20 | 40/20 | 40/20 | 40/20 | 40/40 | 40/40 | 40/40 | |
| Kompresori | Hermetički dvostruki vijak Power3 | |||||||||||||||||
| Krug A, nom. veličina po kompresoru** | 46 | 46 | 56 | 56 | 66 | 66 | 80 | 80 | 80+ | 66/56 | 80/66 | 80/80 | 80+/80+ | 80/80 | 80/80 | 80+/80+ | ||
| Krug B, nom. veličina po kompresoru** | 39 | 46 | 46 | 56 | 56 | 66 | 66 | 80 | 80+ | 80 | 80 | 80 | 80+ | 66/66 | 80/802 | 80+/80+ | ||
| Vrsta upravljanja | PRO-DIALOG Plus kontrola | |||||||||||||||||
| Broj stupnjeva kapaciteta | 6 | 6 | 6 | 6 | 6 | 6 | 6 | 6 | 6 | 8 | 8 | 8 | 8 | 10 | 10 | 10 | ||
| Minimalni kapacitet | % | 19 | 21 | 19 | 21 | 19 | 21 | 19 | 21 | 21 | 16 | 14 | 14 | 14 | 9 | 10 | 10 | |
| Isparivač | Tip s plaštem i cijevi, s unutarnje rebrastim bakrenim cijevima | |||||||||||||||||
| Neto volumen vode | l | 65 | 73 | 73 | 87 | 87 | 101 | 91 | 91 | 109 | 140 | 140 | 165 | 181 | 203 | 229 | 229 | |
| Priključci za vodu | Tvornički isporučena ravna prirubnica, za zavarivanje na licu mjesta | |||||||||||||||||
| Ulaz i izlaz | in. | 4 | 4 | 4 | 5 | 5 | 5 | 5 | 5 | 5 | 6 | 6 | 6 | 6 | 8 | 8 | 8 | |
| Odvod i otvor za zrak (NPT) | in. | 3/8 | 3/8 | 3/8 | 3/8 | 3/8 | 3/8 | 3/8 | 3/8 | 3/8 | 3/8 | 3/8 | 3/8 | 3/8 | 3/8 | 3/8 | 3/8 | |
| Maks. radni tlak na strani vode | kPa | 1000 | 1000 | 1000 | 1000 | 1000 | 1000 | 1000 | 1000 | 1000 | 1000 | 1000 | 1000 | 1000 | 1000 | 1000 | 1000 | |
| Kondenzatori | Bakrene cijevi i aluminijska rebra | |||||||||||||||||
| Ventilatori | Aksijalni FLYING BIRD 2 ventilator s rotirajućim pokrovom | |||||||||||||||||
| Količina | 4 | 4 | 4 | 6 | 6 | 6 | 8 | 8 | 8 | 10 | 10 | 12 | 12 | 14 | 16 | 16 | ||
| Brzina | r/s | 15.8 | 15.8 | 15.8 | 15.8 | 15.8 | 15.8 | 15.8 | 15.8 | 15.8 | 15.8 | 15.8 | 15.8 | 15.8 | 15.8 | 15.8 | 15.8 | |
| Ukupni protok zraka | l/s | 21110 | 21110 | 21110 | 31660 | 31660 | 31660 | 42220 | 42220 | 42220 | 52770 | 52770 | 63330 | 63330 | 73880 | 84440 | 84440 | |
* Standardizirani Eurovent uvjeti: temperatura ulazne/izlazne vode isparivača = 12°C/7°C, temperatura vanjskog zraka = 35°C Neto rashladni kapacitet: Bruto rashladni kapacitet umanjen za toplinu pumpe za vodu u odnosu na unutarnji pad tlaka isparivača.
** Veličina kompresora odgovara nominalnom kapacitetu u tonama (1 tona = 3,517 kW).
ELEKTRIČNI PODACI 30GX
| 30HXC | 082 | 092 | 102 | 112 | 122 | 132 | 152 | 162 | 182 | 207 | 227 | 247 | 267 | 298 | 328 | 358 | ||
| Strujni krug | ||||||||||||||||||
| Nominalni izvor napajanja* | V-ph-Hz | 400-3-50 | ||||||||||||||||
| Raspon napona | V | 360-440 | ||||||||||||||||
| Napajanje upravljačkog kruga | Upravljački krug se napaja putem tvornički ugrađenog transformatora | |||||||||||||||||
| Nominalna ulazna snaga* | kW | 98 | 109 | 123 | 133 | 150 | 166 | 179 | 196 | 214 | 246 | 281 | 292 | 332 | 364 | 394 | 449 | |
| Nominalna potrošnja struje* | A | 180 | 200 | 223 | 256 | 273 | 290 | 326 | 352 | 388 | 449 | 492 | 528 | 582 | 642 | 704 | 776 | |
| Maks. ulazna snaga** | kW | 127 | 141 | 154 | 175 | 191 | 207 | 234 | 253 | 286 | 319 | 355 | 380 | 429 | 462 | 506 | 572 | |
| Krug A | kW | - | - | - | - | - | - | - | - | - | 193 | 228 | 253 | 286 | 253 | 253 | 286 | |
| Krug B | kW | - | - | - | - | - | - | - | - | - | 127 | 127 | 127 | 143 | 209 | 253 | 286 | |
| Cosinus phi, jedinica pri punom opterećenju | 0.85 | 0.85 | 0.85 | 0.85 | 0.85 | 0.85 | 0.86 | 0.86 | 0.86 | 0.86 | 0.86 | 0.86 | 0.86 | 0.86 | 0.86 | 0.86 | ||
| Maks. potrošnja struje (Un - 10%)*** | A | 237 | 262 | 287 | 323 | 353 | 383 | 429 | 464 | 524 | 585 | 650 | 696 | 786 | 847 | 928 | 1048 | |
| Krug A | A | - | - | - | - | - | - | - | - | - | 353 | 418 | 464 | 524 | 464 | 464 | 524 | |
| Krug B | A | - | - | - | - | - | - | - | - | - | 232 | 232 | 232 | 262 | 383 | 464 | 524 | |
| Maksimalna potrošnja struje (Un)*** | A | 217 | 240 | 263 | 297 | 324 | 351 | 394 | 426 | 480 | 537 | 596 | 639 | 721 | 777 | 852 | 961 | |
| Krug A | A | - | - | - | - | - | - | - | - | - | 324 | 383 | 426 | 480 | 426 | 426 | 480 | |
| Krug B | A | - | - | - | - | - | - | - | - | - | 213 | 213 | 213 | 240 | 351 | 426 | 480 | |
| Maks. struja pokretanja, std. jedinica**** (Un) | A | 334 | 357 | 401 | 435 | 468 | 495 | 590 | 622 | 662 | 1338 | 1631 | 1674 | 1767 | 1812 | 1887 | 2008 | |
| Krug A*** | A | - | - | - | - | - | - | - | - | - | 1125 | 1418 | 1461 | 1527 | 1461 | 1461 | 1527 | |
| Krug B*** | A | - | - | - | - | - | - | - | - | - | 1248 | 1248 | 1248 | 1287 | 1152 | 1461 | 1527 | |
| Maks. struja pokretanja/maks. omjer potrošnje struje, jedinica | 1.54 | 1.49 | 1.53 | 1.47 | 1.44 | 1.41 | 1.50 | 1.46 | 1.38 | 2.49 | 2.74 | 2.62 | 2.45 | 2.33 | 2.22 | 2.09 | ||
| Maks. struja pokretanja/maks. omjer potrošnje struje, krug A | - | - | - | - | - | - | - | - | - | 3.47 | 3.70 | 3.43 | 3.18 | 3.43 | 3.43 | 3.18 | ||
| Maks. struja pokretanja/maks. omjer potrošnje struje, krug B | - | - | - | - | - | - | - | - | - | 5.86 | 5.86 | 5.86 | 5.36 | 3.28 | 3.43 | 3.18 | ||
| Maks. struja pokretanja - pokretanje sa smanjenom strujom (Un) **** | A | std. | std. | std. | std. | std. | std. | std. | std. | std. | 878 | 955 | 998 | 1102 | 1136 | 1211 | 1343 | |
| Krug A | A | std. | std. | std. | std. | std. | std. | std. | std. | std. | 665 | 742 | 785 | 862 | 785 | 785 | 862 | |
| Krug B | A | std. | std. | std. | std. | std. | std. | std. | std. | std. | 572 | 572 | 572 | 622 | 692 | 785 | 862 | |
| Maks.struja pokretanja - crvena. pokretanje struje/ maks. omjer potrošnje struje, jedinica | std. | std. | std. | std. | std. | std. | std. | std. | std. | 1.64 | 1.60 | 1.56 | 1.53 | 1.46 | 1.42 | 1.40 | ||
| Krug A | std. | std. | std. | std. | std. | std. | std. | std. | std. | 2.05 | 1.94 | 1.84 | 1.79 | 1.84 | 1.84 | 1.79 | ||
| Krug B | std. | std. | std. | std. | std. | std. | std. | std. | std. | 2.69 | 2.69 | 2.69 | 2.39 | 1.97 | 1.84 | 1.79 | ||
| Trofazna struja držanja kratkog spoja | kA | 25 | 25 | 25 | 25 | 25 | 25 | 25 | 25 | 25 | N/A | N/A | N/A | N/A | N/A | N/A | N/A | |
| Krug A | kA | - | - | - | - | - | - | - | - | - | 25 | 25 | 25 | 25 | 25 | 25 | 25 | |
| Krug B | kA | - | - | - | - | - | - | - | - | - | 25 | 25 | 25 | 25 | 25 | 25 | 25 | |
| Kapacitet stanja pripravnosti kupca, jedinica ili krug A, za priključke pumpe za vodu isparivača† | kW | 4 | 4 | 4 | 5.5 | 5.5 | 5.5 | 7.5 | 7.5 | 7.5 | 7.5 | 9 | 9 | 9 | 15 | 15 | 15 | |
* Standardni Eurovent uvjeti: Temperatura vode na ulazu/izlazu isparivača 12°C i 7°C. Temperatura vanjskog zraka 35°C.
** Ulazna snaga, kompresor i ventilator, pri radnim granicama jedinice (temperatura vode na ulazu/izlazu isparivača = 15°C/10°C, temperatura vanjskog zraka = 46°C) i nominalni napon od 400 V (podaci navedeni na natpisnoj pločici jedinice).
*** Maksimalna radna struja jedinice pri maksimalnoj ulaznoj snazi jedinice.
**** Maksimalna trenutna struja pokretanja (maksimalna radna struja najmanjeg kompresora(a) + struja ventilatora + struja blokiranog rotora ili smanjena struja pokretanja najvećeg kompresora).
† Struja i ulazna snaga nisu uključeni u gore navedene vrijednosti
N/A Nije dostupno
Kompresori
| Referenca | Veličina | I nom. | MHA | LRA | LRA (Y) | LRA (S) 1 cp. | LRA (S) 2 cp. |
| 06NA2146S7N | 39 | 70 | 95 | 605 | 191 | 220 | - |
| 06NA2174S7N | 46 | 90 | 120 | 715 | 226 | 260 | - |
| 06NA2209S7N | 56 | 113 | 145 | 856 | 270 | 330 | 420 |
| 06NA2250S7N | 66 | 130 | 175 | 960 | 303 | 380 | 500 |
| 06NA2300S5N | 80 | 156 | 210 | 1226 | 387 | 445 | 550 |
| 06NA2300S5E | 80+ | 174 | 240 | 1265 | 400 | 460 | 600 |
Legenda:
| 06NA | Kompresor za zračno hlađene jedinice |
| N | Neekonomizirani kompresor |
| E | Ekonomizirani kompresor |
| INOM | Prosječna potrošnja struje kompresora u Eurovent uvjetima |
| MHA | Mora držati ampere (maksimalna radna struja) na 360 V |
| LRA | Struja blokiranog rotora s pokretanjem preko linije |
| LRA (Y) | Struja blokiranog rotora pri smanjenoj struji (način pokretanja zvijezda/trokut) |
| LRA (S) 1 cp. | Pokretanje sa smanjenom strujom s elektroničkim starterom (trajanje pokretanja maks. 3 sekunde) za jedan kompresor po krugu |
| LRA (S) 2 cp. | Pokretanje sa smanjenom strujom s elektroničkim starterom (trajanje pokretanja maks. 3 sekunde) za dva kompresora po krugu |
PODACI O PRIMJENI
Radni raspon jedinice
| Isparivač (Evaporator) | Minimum (Minimum) | Maximum (Maksimum) | |
| Temperatura vode na ulazu u isparivač (Evaporator entering water temperature) | °C | 6.8* | 21 |
| Temperatura vode na izlazu iz isparivača (Evaporator leaving water temperature) | °C | 4** | 15 |
| Kondenzator (hlađen vodom) (Condenser (water-cooled)) | Minimum (Minimum) | Maximum (Maksimum) | |
| Temperatura vode na ulazu u kondenzator (Condenser entering water temperature) | °C | 20*** | 42 |
| Temperatura vode na izlazu iz kondenzatora (Condenser leaving water temperature) | °C | 25 | 45 |
| Vanjska temperatura okoline pri radu 30HXC (Outside ambient operating temperature 30HXC) | °C | 6 | 40 |
| Kondenzator (hlađen zrakom) (Condenser (air-cooled)) | Minimum (Minimum) | Maximum (Maksimum) | |
| Vanjska temperatura okoline pri radu (Outdoor ambient operating temperature) | °C | 0 | 46 |
| Dostupan statički tlak (Available static pressure) | kPa | 0 |
Napomene: (Notes:)
* Za primjenu koja zahtijeva rad na temperaturi manjoj od 6.8°C, kontaktirajte Carrier s.a. za odabir jedinice pomoću Carrier elektroničkog kataloga.
** Za primjenu koja zahtijeva rad na temperaturi manjoj od 4°C, jedinice zahtijevaju upotrebu antifriza.
*** Jedinice hlađene vodom (30HXC) koje rade pri punom opterećenju i ispod 20°C temperature vode na ulazu u kondenzator zahtijevaju upotrebu kontrole tlaka glave s analognim ventilima za kontrolu vode (pogledajte odlomak o kontroli tlaka glave).
U privremenim načinima rada (pokretanje i pri djelomičnom opterećenju) jedinica može raditi s temperaturom zraka na ulazu u kondenzator od 13°C.
Minimalni protok rashladne vode
Minimalni protok rashladne vode prikazan je u tablici na sljedećoj stranici. Ako je protok manji od toga, protok isparivača može se recirkulirati, kao što je prikazano na dijagramu. Temperatura smjese koja izlazi iz isparivača nikada ne smije biti manja od 2.8 K od temperature ulazne rashladne vode.

ZA MINIMALNI PROTOK RASHLADNE VODE
Maksimalni protok rashladne vode
Maksimalni protok rashladne vode ograničen je maksimalnim dopuštenim padom tlaka u isparivaču. Naveden je u tablici na sljedećoj stranici. Ako protok premašuje maksimalnu vrijednost, moguća su dva rješenja:
- Odaberite nestandardni isparivač s jednim prolazom vode manje, što će omogućiti veći maksimalni protok vode.
- Zaobiđite isparivač kao što je prikazano na dijagramu kako biste dobili veću razliku temperature s manjim protokom isparivača.

ZA MAKSIMALNI PROTOK RASHLADNE VODE
Isparivač s promjenjivim protokom
Promjenjivi protok isparivača može se koristiti u standardnim 30HXC i 30GX chillerima. Chilleri održavaju konstantnu temperaturu vode na izlazu u svim uvjetima protoka. Da bi se to dogodilo, minimalni protok mora biti veći od minimalnog protoka navedenog u tablici dopuštenih protoka i ne smije varirati za više od 10% po minuti. Ako se protok mijenja brže, sustav bi trebao sadržavati najmanje 6.5 litara vode po kW umjesto 3.25 l/kW.
Minimalni volumen vode u sustavu
Bez obzira na sustav, minimalni kapacitet vodenog kruga dan je formulom:
Kapacitet (Capacity) = Kap (Cap) (kW) x N Litara
| Primjena (Application) | N |
| Normalna klimatizacija (Normal air conditioning) | 3.25 |
| Hlađenje procesnog tipa (Process type cooling) | 6.5 |
Gdje je Kap (Cap) nominalni kapacitet hlađenja sustava (kW) pri nominalnim radnim uvjetima instalacije.
Ovaj volumen je neophodan za stabilan rad i preciznu kontrolu temperature.
Često je potrebno dodati spremnik za vodu u krug kako bi se postigao potreban volumen. Sam spremnik mora biti interno pregrađen kako bi se osiguralo pravilno miješanje tekućine (vode ili salamure). Pogledajte primjere u nastavku.
NAPOMENA: Kompresor se ne smije ponovno pokrenuti više od 6 puta u satu.


Protok rashladnog sredstva (l/s)
| 30HXC | Min.* | Max.** | ||
| 080-090 | 5.7 | 22.7 | ||
| 100 | 6.0 | 24.1 | ||
| 110 | 6.9 | 27.5 | ||
| 120-130 | 8.3 | 33.0 | ||
| 140-155 | 10.0 | 39.5 | ||
| 175-190 | 10.7 | 42.7 | ||
| 200 | 13.4 | 53.7 | ||
| 230 | 13.4 | 60.6 | ||
| 260-285 | 17.0 | 68.1 | ||
| 310 | 19.4 | 77.8 | ||
| 345-375 | 21.3 | 85.3 | ||
| 30GX | Min.* | Max.** | ||
| 082 | 5.7 | 22.7 | ||
| 092-102 | 6.0 | 24.1 | ||
| 112-122 | 6.9 | 27.5 | ||
| 132 | 8.4 | 33.7 | ||
| 152-162 | 10.0 | 39.9 | ||
| 182 | 10.7 | 42.7 | ||
| 207-227 | 13.4 | 53.7 | ||
| 247 | 15.1 | 60.6 | ||
| 267 | 17.0 | 68.1 | ||
| 298 | 19.4 | 77.8 | ||
| 328-358 | 21.3 | 85.3 | ||
* Temeljeno na brzini vode od 0.9 m/s.
** Temeljeno na brzini vode od 3.6 m/s.
Protok kondenzatora (l/s)
| 30HXC | Min.* Zatvorena petlja (Closed loop) | Otvorena petlja (Open loop) | Max.** |
| 080-110 | 2.5 | 7.5 | 29.9 |
| 120-130 | 3.1 | 9.3 | 37.3 |
| 140-155 | 3.8 | 11.4 | 45.5 |
| 175-190 | 4.6 | 13.8 | 55.2 |
| 200 | 5.0 | 14.9 | 59.6 |
| 230-285 | 6.7 | 20.1 | 80.3 |
| 310-375 | 7.3 | 22.0 | 88.0 |
* Temeljeno na brzini vode od 0.3 m/s u zatvorenoj petlji i 0.9 m/s u otvorenoj petlji.
** Temeljeno na brzini vode od 3.6 m/s
Krivulja pada tlaka isparivača

- 30HXC 080-090/30GX 082
- 30HXC 100/30GX 092-102
- 30HXC 110/30GX 112-122
- 30GX 132
- 30HXC 120-130
- 30HXC 140-155/30GX 152-162
- 30HXC 175-190/30GX 182
- 30HXC 200/30GX 207-227
- 30HXC 230/30GX 247
- 30HXC 260-285/30GX 267
- 30HXC 310/30GX 298
- 30HXC 345-375/30GX 328-358
Krivulja pada tlaka kondenzatora

- 30HXC 080-090-100-110
- 30HXC 120-130
- 30HXC 140-155
- 30HXC 175-190
- 30HXC 200
- 30HXC 230-260-285
- 30HXC 310-345-375
Regulatori protoka
Prekidač protoka hladnjaka i blokada pumpe rashlađene vode
Obavezno je instalirati prekidač protoka hladnjaka i spojiti blokadu pumpe rashlađene vode na 30HXC i 30GX. Nepoštivanje ovih uputa poništava Carrier jamstvo.
Kontroler prekidača protoka hladnjaka tvornički je isporučen i ožičen na jedinicama 30HXC i 30GX.
Slijedite upute proizvođača za instalaciju.
Prekidač protoka može se montirati u vodoravnu cijev ili okomitu cijev s uzlaznim protokom tekućine. Ne smije se koristiti kada je protok tekućine prema dolje.
Montirajte u dio cijevi gdje postoji ravni dio od najmanje pet promjera cijevi sa svake strane prekidača protoka. Ne postavljajte uz ventile, koljena ili otvore. Lopatica nikada ne smije dodirivati cijev ili bilo kakvo suženje u cijevi. Zavijte prekidač protoka u položaj tako da ravni dio lopatice bude pod pravim kutom u odnosu na protok. Strelice na poklopcu i na dnu, unutar kućišta, moraju pokazivati smjer protoka. Prekidač treba montirati tako da su priključci dostupni za jednostavno ožičenje.
Priključci 34 i 35 predviđeni su za terensku instalaciju blokade pumpe rashlađene vode (pomoćni kontakt kontaktora pumpe rashlađene vode).
(Priključak cijevi: 1" NPT)

Prekidač protoka kondenzatora (30HXC)
Prekidač protoka kondenzatora je uređaj koji se instalira na terenu.
INSTALACIJA
Provjera primljene opreme
- Pregledajte jedinicu radi oštećenja ili nedostajućih dijelova. Ako se otkrije oštećenje ili je pošiljka nepotpuna, odmah podnesite zahtjev prijevozničkoj tvrtki.
- Potvrdite da je primljena jedinica ona koja je naručena. Usporedite podatke na natpisnoj pločici s narudžbom.
- Potvrdite da je sav pribor naručen za instalaciju na licu mjesta isporučen, potpun i neoštećen.
- Ne skladištite jedinice na području izloženom vremenskim uvjetima zbog osjetljivog upravljačkog mehanizma i elektroničkih uređaja.
Premještanje i postavljanje jedinice
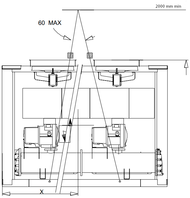
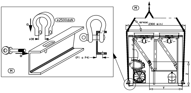
Premještanje
Ne uklanjajte klizače, palete ili zaštitnu ambalažu dok jedinica ne bude u konačnom položaju. Pomaknite rashladni uređaj pomoću cijevi ili valjaka ili ga podignite pomoću remena odgovarajuće nosivosti.
(30HXC)
Koristite samo remene na označenim točkama za podizanje koje su označene na jedinici, na vrhu izmjenjivača topline hladnjaka. Pričvršćivanje s dna izmjenjivača topline uzrokovat će nesigurno podizanje jedinice. Može doći do ozljeda ili oštećenja jedinice. Slijedite upute za pričvršćivanje navedene na ovjerenom dimenzionalnom crtežu isporučenom s jedinicom.
Postavljanje
Uvijek se pozovite na poglavlje "Dimenzije i razmaci" kako biste potvrdili da ima dovoljno prostora za sve priključke i servisne radove. Za koordinate težišta, položaj rupa za montažu jedinice i točke raspodjele težine, pogledajte ovjereni dimenzionalni crtež isporučen s jedinicom.
Preporučujemo da se ovi rashladni uređaji instaliraju u podrumu ili u prizemlju. Ako se jedan instalira iznad razine tla, prvo provjerite je li dopušteno opterećenje poda odgovarajuće i je li pod dovoljno čvrst i ravan. Ako je potrebno, ojačajte i izravnajte pod.
Kad je rashladni uređaj na svom konačnom mjestu, uklonite klizače i druge uređaje koji se koriste za pomoć pri premještanju. Izravnajte jedinicu pomoću libele i pričvrstite jedinicu vijcima za pod ili postolje. Rad ovih jedinica može biti otežan ako nisu ravne i sigurno pričvršćene na svoje nosače. Ako je potrebno, koristite izolacijske podloške ispod jedinice kako biste pomogli u izolaciji vibracija.
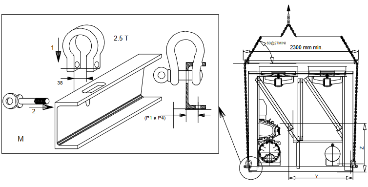
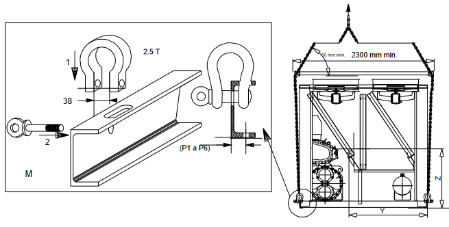
UPUTE ZA PODIZANJE
30HXC 080-190
Ovaj je dijagram prikazan samo za informaciju. Pogledajte "ovjerene crteže".

- OSIM 30HXC 190
X mm Y mm Z mm 30HXC080
30HXC090
30HXC1001345 402 903 30HXC110 1368 397 935 30HXC120
30HXC130
30HXC140
30HXC1551731 392 879 30HXC175 1703 386 947 30HXC190 1705 398 955


NAPOMENA
Kada su sve operacije podizanja i pozicioniranja završene, preporučuje se popraviti sve površine s kojih je uklonjena boja na ušicama za podizanje.
30HXC 200-285
Ovaj je dijagram prikazan samo za informaciju. Pogledajte "ovjerene crteže".


30HXC 310-375


| X mm | Y mm | Z mm | |
| 30HXC310 | 2195 | 425 | 1085 |
| 30HXC345 | 2195 | 425 | 1085 |
| 30HXC375 | 2205 | 435 | 1025 |
NAPOMENA
Kada su sve operacije podizanja i pozicioniranja završene, preporučuje se popraviti sve površine s kojih je uklonjena boja na ušicama za podizanje.
30GX 082-162
Ovaj je dijagram prikazan samo za informaciju. Pogledajte "ovjerene crteže".



| X mm | Y mm | Z mm | PTkg | |
| 30GX082 | 1440 | 1460 | 900 | 3115 |
| 30GX092 | 1440 | 1460 | 900 | 3156 |
| 30GX102 | 1440 | 1460 | 900 | 3170 |
| 30GX112 | 1650 | 1460 | 900 | 3574 |
| 30GX122 | 1650 | 1460 | 900 | 3527 |
| 30GX132 | 1650 | 1460 | 900 | 3634 |
| 30GX152 | 2155 | 1430 | 900 | 3938 |
| 30GX162 | 2155 | 1430 | 900 | 3954 |
30GX 182



| X mm | Y mm | Z mm | PTkg | |
| 30GX182 | 3030 | 1370 | 875 | 4853 |
NAPOMENA
Kada su sve operacije podizanja i pozicioniranja završene, preporučuje se popraviti sve površine s kojih je uklonjena boja na ušici za podizanje
30GX 207-267
Ovaj je dijagram prikazan samo za informaciju. Pogledajte "ovjerene crteže".



| X mm | Y mm | Z mm | PTkg | |
| 30GX207 | 2870 | 1440 | 890 | 5536 |
| 30GX227 | 2870 | 1440 | 890 | 5572 |
| 30GX247 | 3320 | 1430 | 927 | 6131 |
| 30GX267 | 3300 | 1420 | 886 | 6363 |
30GX 298-358



| X mm | Y mm | Z mm | PTkg | |
| 30GX298 | 3630 | 1420 | 890 | 7353 |
| 30GX328 | 4360 | 1455 | 920 | 7840 |
| 30GX358 | 4360 | 1445 | 930 | 8045 |
NAPOMENA
Kada su sve operacije podizanja i pozicioniranja završene, preporučuje se popraviti sve površine s kojih je uklonjena boja na ušicama za podizanje.
Spojevi cijevi
Pogledajte ovjerene dimenzionalne crteže za veličine i položaje svih priključaka za ulaz i izlaz vode. Vodovodne cijevi ne smiju prenositi nikakvu radijalnu ili aksijalnu silu na izmjenjivače topline ili bilo kakve vibracije na cjevovod ili zgradu.
Opskrbu vodom potrebno je analizirati i ugraditi odgovarajuće filtriranje, obradu, upravljačke uređaje, izolacijske i odzračne ventile i krugove, prema potrebi. Posavjetujte se sa stručnjakom za obradu vode ili odgovarajućom literaturom o toj temi.
Mjere opreza pri radu
Vodeni krug trebao bi biti dizajniran tako da ima najmanji broj koljena i vodoravnih cijevi na različitim razinama. Potrebno je izvršiti sljedeće osnovne provjere (pogledajte i ilustraciju tipičnog hidrauličkog kruga u nastavku).
- Obratite pozornost na ulaze i izlaze vode izmjenjivača topline.
- Ugradite ručne ili automatske ventile za odzračivanje na svim visokim točkama u vodenom krugu.
- Koristite ekspanzijsku komoru ili ekspanzijski/sigurnosni ventil za održavanje tlaka u sustavu.
- Ugradite vodene termometre i manometre u ulazne i izlazne priključke vode blizu isparivača.
- Ugradite odvodne ventile na svim niskim točkama kako bi se omogućilo ispuštanje cijelog kruga. Spojite zaporni ventil u odvodni vod prije rada rashladnog uređaja.
- Ugradite zaporne ventile i manometre, blizu isparivača, u ulazne i izlazne vodove vode.
- Ugradite prekidač protoka hladnjaka.
- Koristite fleksibilne priključke kako biste smanjili prijenos vibracija na cjevovod.
- Izolirajte sav cjevovod, nakon ispitivanja curenja, kako biste smanjili toplinske gubitke i spriječili kondenzaciju.
- Pokrijte izolaciju parnom branom.
Priključci isparivača i kondenzatora
Isparivač i kondenzator su višecijevnog tipa s plaštem i cijevi s uklonjivim vodenim kutijama kako bi se olakšalo čišćenje cijevi.
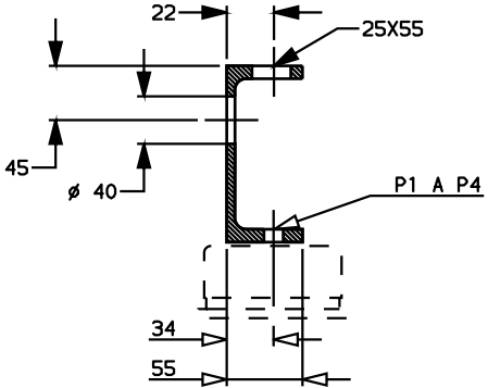
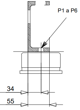
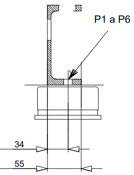
Prije spajanja vode zategnite vijke u obje glave na niži prikazani moment, slijedeći opisanu metodu. Zategnite u parovima i redoslijedom naznačenim prema veličini vijka (vidi tablicu) koristeći vrijednost momenta na donjem kraju zadanog raspona.
Uklonite tvornički isporučenu ravnu prirubnicu s vodene kutije prije zavarivanja cijevi na prirubnicu. Ako ne uklonite prirubnicu, možete oštetiti senzore i izolaciju.
NAPOMENA
Preporučujemo ispuštanje sustava i odspajanje cjevovoda kako biste osigurali da su vijci glava na koje je spojen cjevovod ispravno i ravnomjerno zategnuti.
Zaštita od smrzavanja
Zaštita isparivača i kondenzatora hlađenog vodom
Ako se rashladni uređaj ili vodovodne cijevi nalaze u području gdje temperatura okoline može pasti ispod 0°C, preporučuje se dodavanje antifrizne otopine za zaštitu jedinice i vodovodnih cijevi do temperature od 8 K ispod najniže temperature. Koristite samo antifrizne otopine odobrene za rad izmjenjivača topline. Ako sustav nije zaštićen antifriznom otopinom i neće se koristiti tijekom uvjeta smrzavanja, obavezno je ispuštanje hladnjaka i vanjskih cijevi. Oštećenje uzrokovano smrzavanjem ne pokriva jamstvo.
Redoslijed zatezanja vodene kutije

Legenda
- Slijed 1: 1 2 3 4
Slijed 2: 5 6 7 8
Slijed 3: 9 10 11 12 - Moment zatezanja
Veličina vijka M16 - 171 - 210 Nm
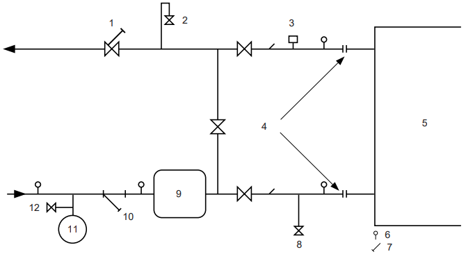
Tipični dijagram hidrauličkog kruga

Legenda
- Upravljački ventil
- Odzračni ventil
- Prekidač protoka
- Fleksibilni priključak
- Izmjenjivač topline
- Priključak za tlak
- Čahura termostata
- Odvod
- Spremnik za pohranu
- Filter
- Ekspanzijska posuda
- Ventil za punjenje
ELEKTRIČNE KARAKTERISTIKE
- 30HXC 080-190 i 30GX 082-182 imaju samo jedan prekidač za isključivanje/izolaciju napajanja.
- 30HXC 200-375 i 30GX 207-358 imaju dva prekidača za isključivanje/izolaciju napajanja.
- Upravljačka kutija standardno uključuje sljedeće:
- Starteri i uređaji za zaštitu motora za svaki kompresor i ventilatore
- Upravljačke komponente
- Priključci na licu mjesta:
Svi glavni priključci i električna instalacija moraju se izvesti u skladu s direktivama koje vrijede za lokaciju. - 30HXC i 30GX dizajnirani su kako bi olakšali usklađenost s ovim direktivama. Projektiranje električne opreme za 30HXC i 30GX uzima u obzir europski standard EN 60204-1 (sigurnost strojeva - električna oprema strojeva - Dio 1: opća pravila).
Standard EN 60204-1 dobar je način odgovora na zahtjeve Direktive o strojevima § 1.5.1. Normativna preporuka IEC 364 općenito je priznata kao ispunjavanje zahtjeva propisa o instalaciji.
Prilog B standarda EN 60204-1 može se koristiti za opis električnih karakteristika pod kojima strojevi rade.
30HXC
- Uvjeti rada za standardni 30HXC opisani su u nastavku:
- Uvjeti okoline(1). Klasifikacija okoliša opisana je u standardu IEC 364 § 3:
- Raspon temperature okoline: + 6°C do + 40°C, klasifikacija AA4
- Raspon vlažnosti (bez kondenzacije)
50% rh pri 40°C
90% rh pri 20°C - Nadmorska visina - 2000 m(1)
- Za unutarnju instalaciju
- Prisutnost vode: klasifikacija AD2(1) (mogućnost kapljica vode)
- Prisutnost krutina: klasifikacija AE2(1) (prisutnost beznačajnih čestica)
- Prisutnost koroziva i onečišćivača, klasifikacija AF1 (zanemarivo)
- Vibracije, udar: klasifikacija AG2, AH2 Kompetentnost osoblja: klasifikacija BA4(1) (osoblje kvalificirano u skladu s IEC 364).
- Uvjeti okoline(1). Klasifikacija okoliša opisana je u standardu IEC 364 § 3:
(1) Standard zaštite koji se zahtijeva u vezi s ovom klasifikacijom je IP21B (u skladu s referentnim dokumentom IEC 529). Svi 30HXC imaju standard zaštite IP23C i stoga ispunjavaju ovaj zahtjev zaštite.
30GX
- Uvjeti rada za 30GX opisani su u nastavku:
- Uvjeti okoline(2). Klasifikacija okoliša opisana je u standardu EN 60721:
- Za vanjsku instalaciju(2)
- Raspon temperature okoline: - 18°C do + 46°C, klasifikacija 4K3(2)
- Nadmorska visina 2000 m(2)
- Prisutnost krutina: klasifikacija 4S2 (prisutnost beznačajnih čestica)
- Prisutnost koroziva i onečišćivača, klasifikacija 4C2 (zanemarivo)
- Vibracije, udar: klasifikacija 4M2
- Uvjeti okoline(2). Klasifikacija okoliša opisana je u standardu EN 60721:
Kompetentnost osoblja: klasifikacija BA4(2) (osoblje kvalificirano u skladu s IEC 364).
(2) Standard zaštite koji se zahtijeva u vezi s ovom klasifikacijom je IP43BW (u skladu s referentnim dokumentom IEC 529). Svi 30GX imaju standard zaštite IP45CW i stoga ispunjavaju ovaj zahtjev zaštite.
30HXC/GX
- Fluktuacija frekvencije napajanja: ± 2 Hz
- Zaštita od prekomjerne struje za vodiče napajanja ne isporučuje se s uređajem.
- Tvornički ugrađen prekidač za isključivanje/izolaciju je izolator tipa "a". (EN60204-1 § 5.3.2).
NAPOMENA: Ako posebni aspekti instalacije zahtijevaju karakteristike koje nisu navedene gore (ili karakteristike koje ovdje nisu navedene), obratite se svom predstavniku tvrtke Carrier.
Napajanje
Napajanje mora biti u skladu sa specifikacijom na natpisnoj pločici rashladnog uređaja. Napon napajanja mora biti unutar raspona navedenog u tablici električnih podataka.
Za priključke pogledajte električne sheme.
Rad rashladnog uređaja s neodgovarajućim naponom napajanja ili prekomjernom neravnotežom faza predstavlja zlouporabu koja će poništiti jamstvo tvrtke Carrier. Ako neravnoteža faza prelazi 2% za napon ili 10% za struju, odmah se obratite lokalnom distributeru električne energije i osigurajte da se rashladni uređaj ne uključi dok se ne poduzmu korektivne mjere.
Neravnoteža napona faza (%):
100 x maks. odstupanje od prosječnog napona
Prosječni napon
Primjer:
Na napajanju od 400 V - 3 ph - 50 Hz, izmjereni su sljedeći pojedinačni fazni naponi:
AB = 406 V; BC = 399; AC = 394 V
| Prosječni napon | = (406 + 399 + 394)/3 = 1199/3 |
| = 399.7 recimo 400 V |
Izračunajte maksimalno odstupanje od prosjeka od 400 V:
(AB) = 406 - 400 = 6
(BC) = 400 - 399 = 1
(CA) = 400 - 394 = 6

Maksimalno odstupanje od prosjeka je 6 V. Najveće postotno odstupanje je:
100 x 6/400 = 1.5 %
Ovo je manje od dopuštenih 2% i stoga je prihvatljivo.
PREPORUČENI PRESJECI ŽICA
Određivanje veličine žice je odgovornost instalatera i ovisi o karakteristikama i propisima koji vrijede za svako mjesto instalacije. Sljedeće se smije koristiti samo kao smjernica i ni na koji način ne obvezuje Carrier. Nakon što je određivanje veličine žice završeno, koristeći ovjereni dimenzionalni crtež, instalater mora osigurati jednostavnu vezu i definirati sve potrebne preinake na licu mjesta.
Priključci koji su standardno predviđeni za kabele za ulaz napajanja koje osigurava korisnik na opći prekidač/izolator dizajnirani su za broj i vrstu žica, navedene u tablici u nastavku.
Izračuni se temelje na maksimalnoj struji stroja (vidi tablice s električnim podacima).
Za projektiranje se koriste sljedeće standardizirane metode instalacije, u skladu s IEC 364, tablica 52C:
- Za jedinice 30HX instalirane unutar zgrade: br. 13: perforirani horizontalni kabelski kanal i br. 41: zatvoreni kanal.
- Za jedinice 30GX instalirane izvan zgrade: br. 17: ovješeni nadzemni vodovi i br. 61: ukopani kanal s koeficijentom smanjenja od 20.
Izračun se temelji na PVC ili XLPE izoliranim kabelima s bakrenom ili aluminijskom jezgrom. Maksimalna temperatura je 40°C za jedinice 30HX i 46°C za jedinice 30GX.
Zadana duljina žice ograničava pad napona na < 5%.
| Jedinica (Unit) | Min. (mm2) po fazi (by phase) | Vrsta žice (Wire type) | L (m) | Max. (mm2) po fazi (by phase) | Vrsta žice (Wire type) | L (m) |
| 30HX 080 | 1 x 35 | XLPE Cu | 140 | 1 x 120 | PVC Al | 260 |
| 30HX 090 | 1 x 50 | XLPE Cu | 160 | 1 x 120 | PVC Al | 260 |
| 30HX 100 | 1 x 50 | XLPE Cu | 160 | 1 x 95 | XLPE Al | 195 |
| 30HX 110 | 1 x 70 | XLPE Cu | 170 | 1 x 120 | XLPE Al | 205 |
| 30HX 120/130 | 1 x 70 | XLPE Cu | 170 | 1 x 150 | XLPE Al | 210 |
| 30HX 140 | 1 x 95 | XLPE Cu | 180 | 1 x 185 | XLPE Al | 220 |
| 30HX 155 | 1 x 95 | XLPE Cu | 180 | 1 x 240 | XLPE Al | 225 |
| 30HX 175 | 1 x 120 | XLPE Cu | 185 | 1 x 240 | XLPE Al | 225 |
| 30HX 190 | 1 x150 | XLPE Cu | 190 | 2 x 95 | XLPE Al | 195 |
| 30HX 200 ckt A | 1 x 70 | XLPE Cu | 170 | 2 x120 | PVC Al | 325 |
| 30HX 230 ckt A | 1 x 95 | XLPE Cu | 180 | 2 x 120 | PVC Al | 325 |
| 30HX 260 ckt A | 1 x 120 | XLPE Cu | 185 | 1 x 240 | XLPE Al | 225 |
| 30HX 285 ckt A | 1 x 150 | XLPE Cu | 190 | 2 x 150 | XLPE Al | 265 |
| 30HX 200 ckt B | 1 x 35 | XLPE Cu | 140 | 1 x 95 | PVC Al | 250 |
| 30HX 230 ckt B | 1 x 35 | XLPE Cu | 140 | 1 x 120 | PVC Al | 260 |
| 30HX 260 ckt B | 1 x 35 | XLPE Cu | 140 | 1 x 120 | PVC Al | 260 |
| 30HX 285 ckt B | 1 x 50 | XLPE Cu | 160 | 2 x 70 | PVC Al | 285 |
| 30HX 310 ckt A & B | 1 x 95 | XLPE Cu | 180 | 1 x 240 | XLPE Al | 225 |
| 30HX 345 ckt A & B | 1 x 120 | XLPE Cu | 185 | 1 x 240 | XLPE Al | 225 |
| 30HX 375 ckt A & B | 1 x 150 | XLPE Cu | 190 | 2 x 150 | XLPE Al | 265 |
| 30GX 082 | 1 x 95 | XLPE Cu | 190 | 2 x 185 | PVC Al | 420 |
| 30GX 092 | 1 x 120 | XLPE Cu | 195 | 2 x 185 | PVC Al | 420 |
| 30GX 102 | 1 x 120 | XLPE Cu | 195 | 2 x 240 | PVC Al | 450 |
| 30GX 112 | 1 x 150 | XLPE Cu | 200 | 2 x 150 | XLPE Al | 300 |
| 30GX 122 | 1 x 185 | XLPE Cu | 205 | 2 x 185 | XLPE Al | 315 |
| 30GX 132 | 1 x 185 | XLPE Cu | 205 | 2 x 240 | XLPE Al | 330 |
| 30GX 152 | 1 x 240 | XLPE Cu | 205 | 3x 185 | XLPE CU | 430 |
| 30GX 162 | 2 x 95 | XLPE Cu | 190 | 3x 240 | XLPE CU | 440 |
| 30GX 182 | 2 x 120 | XLPE Cu | 200 | 3x 240 | XLPE CU | 440 |
| 30GX 207 ckt A | 1 x 185 | XLPE Cu | 205 | 3x 185 | XLPE Al | 445 |
| 30GX 227 ckt A | 1 x 240 | XLPE Cu | 205 | 3x 240 | XLPE Al | 470 |
| 30GX 247/298/328 ckt A | 2 x 120 | XLPE Cu | 225 | 3x 185 | XLPE CU | 490 |
| 30HX 267/358 ckt A | 2 x 150 | XLPE Cu | 230 | 3x 240 | XLPE CU | 505 |
| 30GX 207/227/247 ckt B | 1 x 95 | XLPE Cu | 190 | 2 x 240 | PVC Al | 560 |
| 30HX 267 ckt B | 1 x 120 | XLPE Cu | 200 | 2 x 185 | XLPE AL | 395 |
| 30GX 298 ckt B | 1 x 185 | XLPE Cu | 205 | 3x 240 | XLPE AL | 470 |
| 30GX 328 ckt B | 2 x 120 | XLPE Cu | 225 | 3x 185 | XLPE CU | 490 |
| 30GX 358 ckt B | 2 x 150 | XLPE Cu | 230 | 3x 240 | XLPE CU | 505 |
Prije spajanja glavnih kabela za napajanje (L1 - L2 - L3) na stezaljku, imperativ je provjeriti ispravan redoslijed 3 faze prije nastavka spajanja na stezaljku ili glavni prekidač/izolator.
Ožičenje upravljanja na terenu
Pogledajte Controls IOM i certificirani dijagram ožičenja isporučen s jedinicom za ožičenje upravljanja na terenu sljedećih značajki:
- Međusklopka pumpe isparivača (obavezno)
- Daljinski prekidač za uključivanje/isključivanje (Remote on/off switch)
- Prekidač protoka kondenzatora (isporučuje se na terenu, samo 30HXC)
- Daljinski prekidač za grijanje/hlađenje (Remote heat/cool switch)
- Vanjski prekidač 1 za ograničenje potražnje (Demand limit external switch 1)
- Daljinska dvostruka zadana točka (Remote dual set point)
- Izvješće o alarmu po krugu (Alarm report by circuit)
- Upravljanje pumpom isparivača (Evaporator pump control)
- Upravljanje pumpom kondenzatora (samo 30HXC)
- Daljinsko resetiranje zadane točke ili resetiranje senzora temperature vanjskog zraka (0-10 V)
Preporučeni presjeci žica za jedinice s visokim temperaturama kondenzacije (400 V - 3 ph - 50 Hz)
| Jedinica, opcije 150 + 150A 400 V - 3 ph - 50 Hz | Min. (mm2) po fazi | Vrsta žice | L (m) | Maks. (mm2) po fazi | Vrsta žice | L (m) |
| 30HXC 080 OPT. 150 | 1 x 50 | XLPE Cu | 150 | 2 x 70 | PVC Al | 230 |
| 30HXC 090 OPT. 150 | 1 x 70 | XLPE Cu | 160 | 2 x 95 | PVC Al | 260 |
| 30HXC 100 OPT. 150 | 1 x 70 | XLPE Cu | 160 | 2 x 95 | PVC Al | 250 |
| 30HXC 110 OPT. 150 | 1 x 95 | XLPE Cu | 170 | 2 x 120 | PVC Al | 265 |
| 30HXC 120 OPT. 150 | 1 x 120 | XLPE Cu | 180 | 2 x 120 | XLPE Al | 205 |
| 30HXC 130 OPT. 150 | 1 x 120 | XLPE Cu | 160 | 2 x 120 | XLPE Al | 210 |
| 30HXC 140 OPT. 150 | 1 x 150 | XLPE Cu | 175 | 2 x 120 | XLPE Al | 205 |
| 30HXC 155 OPT. 150 | 1 x 185 | XLPE Cu | 185 | 2 x 150 | XLPE Al | 215 |
| 30HXC 175 OPT. 150 | 1 x 240 | XLPE Cu | 185 | 2 x 150 | XLPE Al | 210 |
| 30HXC 190 OPT. 150 | 2 x 95 | XLPE Cu | 175 | 2 x 240 | XLPE Al | 220 |
| 30HXC 200 OPT. 150 circ. A | 1 x 120 | XLPE Cu | 170 | 2 x 150 | XLPE Al | 270 |
| 30HXC 230 OPT. 150 circ. A | 1 x 150 | XLPE Cu | 180 | 2 x 185 | XLPE Al | 270 |
| 30HXC 260 OPT. 150 circ. A | 1 x 185 | XLPE Cu | 180 | 2 x 240 | XLPE Al | 295 |
| 30HXC 285 OPT. 150 circ. A | 1 x 240 | XLPE Cu | 170 | 2 x 185 | XLPE Cu | 265 |
| 30HXC 310 OPT. 150 circ. A | 1 x 185 | XLPE Cu | 180 | 2 x 240 | XLPE Al | 300 |
| 30HXC 345 OPT. 150 circ. A | 1 x 185 | XLPE Cu | 170 | 2 x 240 | XLPE Al | 280 |
| 30HXC 375 OPT. 150 circ. A | 1 x 240 | XLPE Cu | 170 | 2 x 185 | XLPE Cu | 265 |
| 30HXC 200 OPT. 150 circ. B | 1 x 35 | XLPE Cu | 125 | 2 x 95 | PVC Al | 320 |
| 30HXC 230 OPT. 150 circ. B | 1 x 50 | XLPE Cu | 140 | 2 x 95 | PVC Al | 310 |
| 30HXC 260 OPT. 150 circ. B | 1 x 50 | XLPE Cu | 140 | 2 x 95 | PVC Al | 310 |
| 30HXC 285 OPT. 150 circ. B | 1 x 70 | XLPE Cu | 160 | 2 x 120 | PVC Al | 325 |
| 30HXC 310 OPT. 150 circ. B | 1 x 150 | XLPE Cu | 180 | 2 x 185 | XLPE Al | 275 |
| 30HXC 345 OPT. 150 circ. B | 1 x 185 | XLPE Cu | 185 | 2 x 240 | XLPE Al | 305 |
| 30HXC 375 OPT. 150 circ. B | 1 x 185 | XLPE Cu | 160 | 2 x 240 | XLPE Al | 280 |
GLAVNE KOMPONENTE SUSTAVA I PODACI O RADU
Zupčasti dvostruki vijčani kompresor
- Jedinice 30HXC i 30GX koriste 06N zupčaste dvostruke vijčane kompresore
- 06NA se koriste na 30GX (aplikacija s zračnim hlađenjem kondenzatora)
- 06NW se koriste na 30HXC (aplikacija s vodenim hlađenjem kondenzatora)
- Nominalni kapaciteti se kreću od 39 do 80 tona. Ekonomizirani ili neekonomizirani modeli se koriste ovisno o veličini jedinice 30HXC i 30GX.
Filter ulja
06N vijčani kompresor ima integrirani filter ulja u kućištu kompresora. Ovaj filter se može zamijeniti na terenu.
Rashladno sredstvo
06N vijčani kompresor je posebno dizajniran za korištenje samo u R134 a sustavu.
Lubrikant
06N vijčani kompresor je odobren za korištenje sa sljedećim lubrikantom.
CARRIER MATERIAL SPEC PP 47-32
Elektromagnetski ventil za dovod ulja
Elektromagnetski ventil za dovod ulja je standardna oprema na kompresoru za izolaciju kompresora od protoka ulja kada kompresor ne radi.
Elektromagnetski ventil za ulje se može zamijeniti na terenu.
Usisni i ekonomizatorski zasloni
Kako bi se povećala pouzdanost kompresora, zaslon je ugrađen kao standardna značajka u usisne i ekonomizatorske ulaze kompresora.
Sustav rasterećenja
06N vijčani kompresor ima sustav rasterećenja koji je standardan na svim kompresorima. Ovaj sustav rasterećenja se sastoji od dva stupnja rasterećenja koji smanjuju kapacitet kompresora preusmjeravanjem djelomično komprimiranog plina natrag u usis.
Isparivač
Rashladni uređaji 30HXC i 30GX koriste poplavljeni isparivač. Voda cirkulira u cijevima, a rashladno sredstvo je s vanjske strane u plaštu. Jedna posuda se koristi za oba kruga rashladnog sredstva. Postoji središnja cijevna ploča koja razdvaja dva kruga rashladnog sredstva. Cijevi su promjera 3/4" bakrene s poboljšanom površinom iznutra i izvana. Postoji samo jedan vodeni krug, a ovisno o veličini rashladnog uređaja, može biti dva ili tri prolaza vode. Senzor razine tekućine hladnjaka osigurava optimiziranu kontrolu protoka.
Na vrhu hladnjaka su dvije usisne cijevi, po jedna u svakom krugu. Svaka ima prirubnicu zavarenu na nju, a kompresor se montira na prirubnicu.
Kondenzator i separator ulja (30HXC)
30HXC rashladni uređaj koristi posudu koja je kombinacija kondenzatora i separatora ulja. Montira se ispod hladnjaka. Ispusni plin napušta kompresor i teče kroz vanjski prigušivač do separatora ulja, koji je gornji dio posude. Ulazi na vrh separatora gdje se ulje uklanja, a zatim teče do donjeg dijela posude, gdje se plin kondenzira i pothlađuje. Jedna posuda se koristi za oba kruga rashladnog sredstva. Postoji središnja cijevna ploča koja razdvaja dva kruga rashladnog sredstva. Cijevi su promjera 3/4" ili 1" bakrene s poboljšanom površinom iznutra i izvana. Postoji samo jedan vodeni krug s dva prolaza vode.
Separator ulja (30GX)
U jedinicama s zračnim hlađenjem, separator ulja je tlačna posuda koja je montirana ispod vanjskih okomitih kondenzatorskih zavojnica. Ispusni plin ulazi na vrh separatora gdje se veći dio ulja odvaja i ispušta na dno. Plin zatim teče kroz zaslon od žičane mreže gdje se preostalo ulje odvaja i ispušta na dno.
Elektronički ekspanzijski uređaj (EXD)
Mikroprocesor kontrolira EXD putem EXV upravljačkog modula. EXD će biti ili EXV ili ekonomizator. Unutar oba ova uređaja nalazi se linearni aktuator koračni motor. Visokotlačno tekuće rashladno sredstvo ulazi u ventil kroz dno. Niz kalibriranih utora nalazi se unutar sklopa otvora. Kako rashladno sredstvo prolazi kroz otvor, tlak pada i rashladno sredstvo prelazi u dvofazno stanje (tekuće i plinovito). Za kontrolu protoka rashladnog sredstva za različite radne uvjete, rukavac se pomiče gore i dolje preko otvora, čime se mijenja efektivna površina protoka ekspanzijskog uređaja. Rukavac se pomiče linearnim koračnim motorom. Koračni motor se pomiče u koracima i kontrolira ga izravno procesorski modul. Kako se koračni motor okreće, kretanje se prenosi u linearno kretanje pomoću vodećeg vijka. Kroz koračni motor i vodeće vijke, dobiva se 1500 diskretnih koraka kretanja. Veliki broj koraka i dugi hod rezultiraju vrlo preciznom kontrolom protoka rashladnog sredstva. Svaki krug ima senzor razine tekućine montiran okomito u vrh plašta hladnjaka. Senzor razine se sastoji od malog električnog otpornog grijača i tri termistora spojena u seriju smještena na različitim visinama unutar tijela bunara. Grijač je dizajniran tako da će termistori očitati približno 93,3°C u suhom zraku. Kako se razina rashladnog sredstva podiže u hladnjaku, otpor najbližeg termistora(a) će se uvelike promijeniti. Ova velika razlika u otporu omogućuje kontroli da točno održava specificiranu razinu. Senzor razine prati razinu tekućeg rashladnog sredstva u hladnjaku i šalje te informacije PSIO-1. Pri početnom pokretanju, položaj EXV-a je na nuli. Nakon toga, mikroprocesor točno prati položaj ventila kako bi koristio te informacije kao ulaz za druge upravljačke funkcije. To čini inicijalizacijom EXV-a pri pokretanju. Procesor šalje dovoljno impulsa zatvaranja ventilu da ga pomakne od potpuno otvorenog do potpuno zatvorenog, a zatim resetira brojač položaja na nulu. Od ove točke nadalje, do inicijalizacije, procesor broji ukupan broj otvorenih i zatvorenih koraka koje je poslao svakom ventilu.
Ekonomizator
Ekonomizatori su instalirani na 30HXC 190, 285 i 375 i 30GX 182, 267 i 358.
Ekonomizator poboljšava kapacitet i učinkovitost rashladnog uređaja, kao i osigurava hlađenje motora kompresora. Unutar ekonomizatora nalaze se linearni EXV koračni motor i plovni ventil. EXV kontrolira PIC za održavanje željene razine tekućine u hladnjaku (kao što se radi za neekonomizirane rashladne uređaje). Plovni ventil održava razinu tekućine na dnu ekonomizatora. Tekuće rashladno sredstvo se dovodi iz kondenzatora na dno ekonomizatora. Kako rashladno sredstvo prolazi kroz EXV, njegov tlak se smanjuje na srednju razinu od oko 500 kPa. Ovaj tlak se održava unutar plašta ekonomizatora. Zatim, rashladno sredstvo teče kroz plovni ventil, njegov tlak se dodatno smanjuje na nešto iznad tlaka u hladnjaku. Povećanje performansi se ostvaruje kada dio rashladnog sredstva koje prolazi kroz EXV isparava, dodatno pothlađujući tekućinu koja se održava na dnu ekonomizatora. Ovo povećanje pothlađivanja osigurava dodatni kapacitet. Budući da nije potrebna dodatna snaga za postizanje toga, učinkovitost stroja se također poboljšava. Para koja isparava će se podići do ekonomizatora gdje prolazi do kompresora i koristi se prema potrebi za osiguravanje hlađenja motora. Nakon prolaska preko namota motora, rashladno sredstvo ponovno ulazi u ciklus na srednjem otvoru u ciklusu kompresije.
Pumpe za ulje
30GX/HXC vijčani rashladni uređaji koriste jednu vanjski montiranu pumpu za predpodmazivanje ulja po krugu. Ova pumpa se pokreće kao dio slijeda pokretanja.
PAŽNJA:
Radna temperatura zavojnice može doseći 80°C. U određenim privremenim uvjetima (posebno tijekom pokretanja pri niskoj vanjskoj temperaturi ili niskoj temperaturi kruga kondenzatora) pumpa za ulje se može ponovno aktivirati.
Na 30GX jedinicama, pumpe su montirane na osnovne šine na strani separatora ulja jedinice. Pumpe su montirane na nosač na kondenzatorima 30HXC jedinica. Kada se krug treba pokrenuti, kontrole će prvo uključiti pumpu za ulje kako bi se kompresor pokrenuo s ispravnim podmazivanjem. Ako je pumpa stvorila dovoljan tlak ulja, kompresoru će biti dopušteno da se pokrene. Nakon što se kompresor pokrene, pumpa za ulje će se isključiti. Ako pumpa nije uspjela stvoriti dovoljan tlak ulja, kontrola će generirati alarm.
Ventili za hlađenje motora
Temperature namota motora kompresora se kontroliraju na optimalnu zadanu točku. Kontrola to postiže cikličkim radom elektromagnetskog ventila za hlađenje motora kako bi se omogućilo tekućem rashladnom sredstvu da teče preko namota motora prema potrebi. Na jedinicama opremljenim ekonomizatorima, isparavajući plin napušta vrh ekonomizatora i kontinuirano teče do namota motora. Svo rashladno sredstvo koje se koristi za hlađenje motora ponovno ulazi u rotore kroz otvor koji se nalazi na pola puta duž ciklusa kompresije i komprimira se do ispusnog tlaka.
Senzori
Jedinice koriste termistore (uključujući dva termistora temperature motora) i dva termistora razine i pretvarače tlaka za praćenje i kontrolu rada sustava.
Termistori
Izlazna tekućina isparivača
Ova temperatura se koristi za mjerenje temperature izlazne tekućine isparivača (voda ili salamura). Temperatura se koristi za kontrolu temperature izlazne tekućine i za zaštitu od smrzavanja hladnjaka. Nalazi se u mlaznici tekućine isparivača.
Ulazna tekućina isparivača
Ovaj senzor se koristi za mjerenje temperature ulazne tekućine isparivača. Nalazi se u ulaznoj mlaznici isparivača. Koristi se za osiguravanje automatske kompenzacije temperature za kontrolu temperature izlazne tekućine s kompenzacijom ulazne tekućine.
Temperatura ispusnog plina (krugovi A i B)
Ovaj senzor se koristi za mjerenje temperature ispusnog plina i kontrolu pregrijavanja temperature ispuha. Nalazi se na ispusnoj cijevi svakog kruga (30HXC) ili na vrhu separatora ulja (30GX).
PAŽNJA: Nema termostatske čahure.
Temperatura motora
Modul za zaštitu kompresora (CPM) prati temperaturu motora. Terminali termistora nalaze se u priključnoj kutiji kompresora.
Razina tekućine isparivača (krugovi A i B)
Termistor razine tekućine isparivača se koristi za osiguravanje optimizirane kontrole protoka u isparivaču. Instaliran je na vrhu isparivača.
Ulazna tekućina kondenzatora (30HXC)
Ovaj senzor se koristi za mjerenje temperature tekućine koja ulazi u vodom hlađene kondenzatore. Nalazi se u zajedničkom vodu tekućine koja ulazi u kondenzatore (instaliran na terenu). Na toplinskim strojevima ga koristi rutina kontrole kapaciteta. Na vodom hlađenim kondenzatorima se koristi samo za praćenje temperature tekućine kondenzatora.
Izlazna tekućina kondenzatora (opcionalno na 30HXC)
Ovaj senzor se koristi za mjerenje temperature tekućine koja izlazi iz vodom hlađenih kondenzatora. Nalazi se u zajedničkom vodu tekućine koja izlazi iz kondenzatora (instaliran na terenu). Na toplinskim strojevima ga koristi rutina kontrole kapaciteta. Na vodom hlađenim kondenzatorima se koristi samo za praćenje temperature tekućine kondenzatora.
30GX raspored ventilatora

GX082/102

GX112/132

GX152/162

GX182

GX207/227

GX247/267

GX298

GX328/358
ODRŽAVANJE
Punjenje rashladnim sredstvom - dodavanje punjenja
Ove jedinice su dizajnirane za korištenje samo s R-134a.
NEMOJTE KORISTITI NITI JEDNO DRUGO rashladno sredstvo u ovim jedinicama.
Prilikom dodavanja ili uklanjanja punjenja, cijelo vrijeme cirkulirajte vodu kroz kondenzator (HX) i hladnjak kako biste spriječili smrzavanje. Oštećenje smrzavanjem smatra se zlouporabom i može poništiti jamstvo tvrtke Carrier.
NEMOJTE PREPUNITI sustav. Prekomjerno punjenje rezultira višim tlakom ispuštanja uz veću potrošnju rashladne tekućine, moguće oštećenje kompresora i veću potrošnju energije.
Indikacija niskog punjenja na sustavu 30HXC
NAPOMENA
Za provjeru niskog punjenja rashladnog sredstva na 30HXC, potrebno je uzeti u obzir nekoliko čimbenika. Treperenje stakla za kontrolu tekućine nije nužno pokazatelj nedovoljnog punjenja. Postoje mnogi uvjeti sustava u kojima se treperenje stakla javlja tijekom normalnog rada. Uređaj za mjerenje 30HXC dizajniran je za ispravan rad u tim uvjetima.
- Provjerite radi li krug u uvjetima punog opterećenja. Da biste provjerili je li krug A potpuno opterećen, slijedite postupak opisan u priručniku za upravljanje.
- Možda će biti potrebno koristiti značajku ručnog upravljanja (Manual Control) kako biste prisilili krug u uvjete punog opterećenja. Ako je to slučaj, pogledajte upute za korištenje značajke ručnog upravljanja (Manual Control) u priručniku za upravljanje.
- Dok krug radi pod punim opterećenjem, provjerite je li temperatura tekućine koja izlazi iz hladnjaka u rasponu od 6°C ± 1.5.
- U tim uvjetima promatrajte rashladno sredstvo u staklu za kontrolu tekućine. Ako je staklo čisto i nema znakova treperenja, tada je krug adekvatno napunjen. Preskočite preostale korake.
- Ako se čini da rashladno sredstvo treperi, vjerojatno je da je krug nedovoljno napunjen. Provjerite to provjerom položaja EXV (pogledajte Controls IOM).
- Ako je položaj otvaranja EXD veći od 60%, a ako staklo za kontrolu tekućine treperi, tada je krug nedovoljno napunjen. Slijedite postupak za dodavanje punjenja.
Za dodavanje punjenja u sustave 30HXC
- Provjerite radi li jedinica pod punim opterećenjem i da je temperatura tekućine koja izlazi iz hladnjaka u rasponu od 5.6 7.8°C.
- U tim radnim uvjetima provjerite staklo za kontrolu tekućine. Ako je staklo čisto, tada jedinica ima dovoljno punjenja. Ako staklo treperi, provjerite EXD Percent Open (Postotak otvaranja EXD). Ako je to veće od 60%, počnite dodavati punjenje.
NAPOMENA
Treperenje stakla za kontrolu tekućine u radnim uvjetima koji nisu gore navedeni nije nužno pokazatelj niskog punjenja rashladnog sredstva.
- Dodajte 2.5 kg tekućeg punjenja u isparivač pomoću ventila za punjenje koji se nalazi na vrhu isparivača.
- Promatrajte EXD Percent Open (Postotak otvaranja EXD). EXD bi se trebao početi zatvarati kako se punjenje dodaje. Pustite da se jedinica stabilizira. Ako EXD Percent Open (Postotak otvaranja EXD) ostane iznad 60%, a još uvijek ima mjehurića u staklu, dodajte dodatnih 2.5 kg tekućeg punjenja.
- Pustite da se jedinica stabilizira i ponovno provjerite EXDPercent Open (Postotak otvaranja EXD). Nastavite dodavati 2.5 kg tekućeg rashladnog sredstva odjednom i pustite da se jedinica stabilizira prije provjere položaja EXD.
- Kada je EXD Percent Open (Postotak otvaranja EXD) u rasponu od 40 - 60%, provjerite staklo za kontrolu tekućine. Polako dodajte dovoljno dodatnog tekućeg punjenja kako biste osigurali čisto staklo. To treba učiniti polako kako biste izbjegli prekomjerno punjenje jedinice.
- Provjerite adekvatno punjenje nastavkom rada pod punim opterećenjem s temperaturom tekućine koja izlazi iz isparivača od 6°C ± 1.5. Provjerite ne treperi li rashladno sredstvo u staklu za kontrolu tekućine. EXD Percent Open (Postotak otvaranja EXD) trebao bi biti između 40 i 60%. Indikator razine hladnjaka trebao bi biti u rasponu od 1.5 - 2.5.
Indikacija niskog punjenja na sustavima 30GX
- Provjerite radi li krug u uvjetima punog opterećenja i da je temperatura kondenzacije 50°C ± 1.5. Da biste provjerili je li krug A potpuno opterećen, slijedite postupak u Controls IOM.
- Možda će biti potrebno koristiti značajku ručnog upravljanja (Manual Control) kako biste prisilili krug u uvjete punog opterećenja. Ako je to slučaj, pogledajte upute za korištenje funkcije ručnog upravljanja (Manual Control) (postupak u Controls IOM).
- Dok krug radi pod punim opterećenjem, provjerite je li temperatura tekućine koja izlazi iz hladnjaka u rasponu od 6°C ± 1.5.
- Izmjerite temperaturu zraka koji ulazi u zavojnice kondenzatora. Izmjerite temperaturu tekućine nakon T-račve gdje se spajaju dvije linije tekućine zavojnice. Temperatura tekućine trebala bi biti 8.3°C iznad temperature zraka koji ulazi u zavojnice. Ako je razlika veća od toga, a staklo treperi, krug nije napunjen. Prijeđite na korak 5.
- Dodajte 2.5 kg tekućeg punjenja u hladnjak pomoću ventila za punjenje koji se nalazi na vrhu hladnjaka.
- Pustite da se sustav stabilizira, a zatim ponovno provjerite temperaturu tekućine. Ponovite korak 5 prema potrebi, dopuštajući sustavu da se stabilizira između svakog dodavanja punjenja. Polako dodajte punjenje kako se staklo počinje čistiti kako biste izbjegli prekomjerno punjenje.
Temperatura prostora, temperatura vanjskog zraka (izborno)
Ove se temperature koriste za mjerenje temperature prostora ili temperature vanjskog zraka, redom, za kontrolu resetiranja na temelju opcija resetiranja temperature vanjskog zraka ili prostora.
Pretvarači tlaka
Tlak ispuštanja (krugovi A i B)
Ovaj se ulaz koristi za mjerenje tlaka na visokoj strani svakog kruga jedinice.
Koristi se za osiguravanje tlaka za zamjenu manometra tlaka ispuštanja i za kontrolu tlaka glave.
Tlak usisa (krugovi A i B)
Ovaj se ulaz koristi za mjerenje tlaka na niskoj strani jedinice. Koristi se za osiguravanje tlaka za zamjenu manometra tlaka usisa.
Tlak ulja (svaki kompresor)
Ovaj se ulaz koristi za mjerenje tlaka ulja svakog kompresora jedinice. Nalazi se na priključku za tlak ulja svakog kompresora.
Tlak ekonomizatora (krugovi A i B)
Ovaj se ulaz koristi za praćenje diferencijalnog tlaka ulja koji se dovodi do kompresora.
Punjenje uljem - ponovno punjenje niskog ulja
Dodavanje punjenja uljem u sustave 30HX/GX
- Ako se jedinica 30HXC/GX više puta isključuje zbog niske razine ulja (Low oil Level), to može biti pokazatelj nedovoljnog punjenja uljem. To bi također moglo značiti jednostavno da se ulje u procesu povrata s niske strane sustava.
- Započnite pokretanjem jedinice pod punim opterećenjem sat i pol.
- Nakon rada od 1-1/2 sata, dopustite jedinici da se ponovno pokrene i radi normalno. Ako alarmi niske razine ulja (Low Oil Level) i dalje postoje, jedinica ima nisko punjenje uljem. Dodajte ulje u separator ulja, pomoću ventila za punjenje uljem na dnu kondenzatora (30HXC) ili na dnu separatora ulja (30GX).
NEMOJTE dodavati ulje na bilo kojem drugom mjestu jer može doći do nepravilnog rada jedinice.
- Provjerite ne radi li jedinica prilikom dodavanja ulja, jer će to olakšati postupak punjenja uljem. Budući da je sustav pod tlakom čak i kada jedinica ne radi, bit će potrebno koristiti odgovarajuću pumpu (ručnu ili električnu pumpu) za dodavanje ulja u sustav.
- Pomoću odgovarajuće pumpe dodajte 2 litre poliolesterskog ulja u sustav (CARRIER SPEC: PP47-32). Provjerite NIJE li sigurnosni prekidač razine ulja premošten i dopustite jedinici da se ponovno pokrene i radi normalno.
- Ako problemi s niskom razinom ulja i dalje postoje, dodajte još 1 ili 2 litre ulja. Ako je potrebno dodati više od 4 litre ulja u sustav, obratite se servisnom odjelu svog distributera tvrtke Carrier.
Prilikom prijenosa punjenja rashladnog sredstva u spremnik, ulje se može prenijeti zajedno kada jedinica ne radi. Prije svega ponovno upotrijebite količinu prenesenog rashladnog sredstva. Nakon ispuštanja ulja, napunite samo ispuštenu količinu (višak punjenja uljem može narušiti ispravan rad jedinice).
Zamjena integriranog filtra ulja
Integrirani filtar ulja u vijčanom kompresoru 06N specificiran je za pružanje visoke razine filtracije (3 µ) potrebne za dugi vijek trajanja ležaja. Budući da je čistoća sustava kritična za pouzdan rad sustava, postoji i predfiltar (7 µ) u liniji ulja na izlazu separatora ulja.
Broj dijela elementa zamjenskog integriranog filtra ulja je:
Broj dijela tvrtke Carrier (uključujući filtar i O-prsten): 06NA 660016S
Raspored zamjene filtra
Filtar treba provjeriti nakon prvih 500 sati rada i svakih sljedećih 2000 sati. Filtar treba zamijeniti u bilo kojem trenutku kada diferencijalni tlak preko filtra premaši 2.1 bar.
Pad tlaka preko filtra može se odrediti mjerenjem tlaka na servisnom priključku filtra i priključku tlaka ulja. Razlika u ova dva tlaka bit će pad tlaka preko filtra, povratnog ventila i solenoidnog ventila. Pad tlaka preko povratnog ventila i solenoidnog ventila je približno 0.4 bara, što treba oduzeti od dva mjerenja tlaka ulja kako bi se dobio pad tlaka filtra ulja. Pad tlaka filtra ulja treba provjeriti nakon svakog slučaja kada se kompresor isključi zbog sigurnosti niskog tlaka ulja.
Postupak zamjene filtra
- Sljedeći koraci opisuju ispravan način zamjene integriranog filtra ulja.
- Isključite i zaključajte kompresor.
- Ručno prisilite rad solenoidnog ventila ulja kako biste pritisnuli unutarnju zaklopku ventila na njegovo sjedište.
- Zatvorite servisni ventil filtra ulja. Ispustite tlak iz šupljine filtra kroz servisni priključak filtra.
- Uklonite čep filtra ulja. Uklonite stari filtar ulja.
- Prije ugradnje novog filtra ulja, "podmažite" O-prsten uljem. Ugradite filtar i vratite čep.
Prije zatvaranja sustava ulja za podmazivanje, iskoristite priliku da zamijenite i predfiltar. - Kada završite, evakuirajte šupljinu filtra kroz servisni priključak filtra. Otvorite servisni ventil filtra. Uklonite sve uređaje za zaključavanje kompresora, kompresor je spreman za povratak u rad.
Zamjena kompresora
Kontrola rotacije kompresora
Ispravna rotacija kompresora jedna je od najkritičnijih razmatranja primjene. Obrnuta rotacija, čak i za vrlo kratko vrijeme, oštećuje kompresor.
Shema zaštite od obrnute rotacije mora biti sposobna odrediti smjer rotacije i zaustaviti kompresor unutar 300 milisekundi. Obrnuta rotacija najvjerojatnije će se dogoditi kad god se poremete žice na priključcima kompresora.
Kako bi se smanjila mogućnost obrnute rotacije, mora se primijeniti sljedeći postupak. Ponovno spojite kabele napajanja na priključni pin kompresora kao što je izvorno spojeno.
Za zamjenu kompresora, s kompresorom je uključen prekidač niskog tlaka. Ovaj prekidač niskog tlaka treba privremeno ugraditi kao tvrdu sigurnost na dio kompresora visokog tlaka. Svrha ovog prekidača je zaštititi kompresor od bilo kakvih pogrešaka u ožičenju na priključnom pinu kompresora. Električni kontakt prekidača bio bi spojen serijski s prekidačem visokog tlaka. Prekidač će ostati na mjestu dok se kompresor ne pokrene i ne provjeri smjer rotacije; u ovom trenutku prekidač će biti uklonjen.
Prekidač koji je odabran za otkrivanje obrnute rotacije je broj dijela tvrtke Carrier HK01CB001. Dostupan je kao dio "Paketa za ugradnju kompresora" (broj dijela 06NA 660 013). Ovaj prekidač otvara kontakte kada tlak padne ispod 50 mm vakuuma. Prekidač je tipa ručnog resetiranja koji se može resetirati nakon što se tlak ponovno podigne iznad 70 kPa. Kritično je da prekidač bude tipa ručnog resetiranja kako bi se spriječilo kratko cikliranje kompresora u obrnutom smjeru.
Rješavanje problema
Slijedite korake u nastavku za dijagnosticiranje i ispravljanje problema s EXD/ekonomizatorom.
Na jedinicama 30HXC/GX s ekonomizatorima provjerite je li otvoren ventil za cijev za mjehuriće (dno ekonomizatora). Prvo provjerite rad motora EXD (pogledajte postupak u Controls IOM). Trebali biste moći osjetiti pomicanje aktuatora stavljanjem ruke na tijelo EXD ili ekonomizatora (aktuator se nalazi otprilike na jednoj polovici do dvije trećine puta od dna kućišta ekonomizatora). Trebali biste osjetiti snažno kucanje koje dolazi iz aktuatora kada dosegne vrh svog hoda (može se čuti ako je okolina relativno tiha). Aktuator bi trebao kucati kada dosegne dno svog hoda. Ako se vjeruje da ventil ne radi ispravno, obratite se servisnom odjelu tvrtke Carrier za daljnje provjere na:
- izlazne signale na EXD modulu
- žičane veze (kontinuitet i čvrsta veza na svim pinskim priključcima)
- otpor namota motora EXD.


Odobrenje sustava upravljanja okolišem
Broj narudžbe: 13173-76, 03 1999 - Zamjenjuje broj: 13173-76, ožujak 1998.
Proizvođač zadržava pravo izmjene bilo koje specifikacije proizvoda bez prethodne najave.
Proizvođač: Carrier s.a., Montluel, Francuska.
Tiskano u Nizozemskoj na papiru bez klora.

Preuzmi priručnik
Ovdje možete preuzeti punu pdf verziju priručnika, koja može sadržavati dodatne sigurnosne upute, informacije o jamstvu, FCC pravila, itd.
Preuzmi Priručnik za vijčani kompresor Carrier 30HXC/30GX