
Sebelum memulai pengoperasian unit 30HXC dan 30GX, mereka yang terlibat dalam memulai, mengoperasikan, dan memelihara harus benar-benar memahami instruksi ini dan data pekerjaan lain yang diperlukan. Buku ini memberikan gambaran umum sehingga Anda dapat memahami sistem kontrol sebelum melakukan prosedur memulai. Prosedur dalam manual ini disusun dalam urutan yang diperlukan untuk memulai dan mengoperasikan mesin dengan benar.
Chiller cairan 30HXC dan 30GX dirancang untuk memberikan layanan yang aman dan andal saat dioperasikan sesuai dengan spesifikasi desain. Saat mengoperasikan peralatan ini, gunakan penilaian yang baik dan tindakan pencegahan keselamatan untuk menghindari kerusakan pada peralatan dan properti atau cedera pada personel.
Pastikan Anda memahami dan mengikuti prosedur dan tindakan pencegahan keselamatan yang terdapat dalam instruksi mesin serta yang tercantum dalam panduan ini.
JANGAN MENGELUARKAN katup pelepas refrigeran di dalam gedung. Outlet dari katup pelepas harus dikeluarkan ke luar ruangan. Akumulasi refrigeran di ruang tertutup dapat menggantikan oksigen dan menyebabkan mati lemas atau ledakan.
SEDIAKAN ventilasi yang memadai, terutama untuk ruang tertutup dan ruang dengan langit-langit rendah. Menghirup konsentrasi uap yang tinggi berbahaya dan dapat menyebabkan gangguan jantung, tidak sadarkan diri, atau kematian. Uap lebih berat dari udara dan mengurangi jumlah oksigen yang tersedia untuk bernapas. Produk menyebabkan iritasi mata dan kulit. Produk dekomposisi berbahaya.
JANGAN GUNAKAN OKSIGEN untuk membersihkan saluran atau memberi tekanan pada mesin untuk tujuan apa pun. Gas oksigen bereaksi hebat dengan minyak, gemuk, dan zat umum lainnya.
JANGAN PERNAH MELEBIHI tekanan uji yang ditentukan, VERIFIKASI tekanan uji yang diizinkan dengan memeriksa literatur instruksi dan tekanan desain pada pelat nama peralatan.
JANGAN GUNAKAN udara untuk pengujian kebocoran. Gunakan hanya refrigeran atau nitrogen kering.
JANGAN MENUTUP katup perangkat keselamatan apa pun.
PASTIKAN bahwa semua perangkat pelepas tekanan terpasang dengan benar sebelum mengoperasikan mesin apa pun.
JANGAN MENGELAS ATAU MEMOTONG API saluran atau bejana refrigeran apa pun sampai semua refrigeran (cair dan uap) dikeluarkan dari chiller. Sisa uap harus digantikan dengan nitrogen udara kering dan area kerja harus berventilasi baik. Refrigeran yang bersentuhan dengan api terbuka menghasilkan gas beracun.
JANGAN bekerja pada peralatan yang berenergi kecuali Anda seorang ahli listrik yang terampil.
JANGAN BEKERJA PADA komponen listrik, termasuk panel kontrol, sakelar, relai, dll., sampai Anda yakin SEMUA DAYA MATI dan tegangan sisa dapat bocor dari kapasitor atau komponen solid state.
KUNCI TERBUKA DAN BERI TAG pada sirkuit listrik selama servis. JIKA PEKERJAAN TERGANGGU, periksa apakah semua sirkuit tidak berenergi sebelum melanjutkan pekerjaan.
JANGAN menyedot refrigeran.
HINDARI TUMPAHAN refrigeran cair pada kulit atau terkena mata. GUNAKAN KACAMATA KESELAMATAN. Cuci tumpahan dari kulit dengan sabun dan air. Jika refrigeran cair masuk ke mata,
SEGERA SIRAM MATA dengan air dan konsultasikan dengan dokter.
JANGAN PERNAH MENERAPKAN api terbuka atau uap hidup ke wadah refrigeran. Tekanan berlebihan yang berbahaya dapat terjadi. Jika perlu memanaskan refrigeran, gunakan hanya air hangat.
JANGAN GUNAKAN KEMBALI silinder sekali pakai (tidak dapat dikembalikan) atau mencoba mengisinya kembali. Ini BERBAHAYA DAN ILEGAL. Saat silinder dikosongkan, evakuasi sisa tekanan gas, kendurkan kerah dan buka dan buang batang katup. JANGAN DIBAKAR.
PERIKSA JENIS REFRIGERAN sebelum menambahkan refrigeran ke mesin. Pengenalan refrigeran yang salah dapat menyebabkan kerusakan atau malfungsi pada mesin ini.
JANGAN BERUSAHA MELEPAS fitting, komponen, dll., saat mesin berada di bawah tekanan atau saat mesin berjalan. Pastikan tekanan pada 0 kPa sebelum memutuskan sambungan refrigeran.
PERIKSA DENGAN HATI-HATI semua perangkat pelepas, SETIDAKNYA SEKALI SETAHUN. Jika mesin beroperasi di lingkungan yang korosif, periksa perangkat dengan interval yang lebih sering.
JANGAN BERUSAHA MEMPERBAIKI ATAU MEREKONDISI perangkat pelepas apa pun saat korosi atau penumpukan bahan asing (karat, kotoran, kerak, dll.) ditemukan di dalam badan atau mekanisme katup. Ganti perangkat.
JANGAN memasang perangkat pelepas secara seri atau terbalik.
JANGAN MENGINJAK saluran refrigeran. Saluran yang rusak dapat mencambuk dan melepaskan refrigeran, menyebabkan cedera pribadi.
JANGAN memanjat mesin. Gunakan platform, atau panggung.
GUNAKAN PERALATAN MEKANIS (crane, hoist, dll.) untuk mengangkat atau memindahkan komponen berat. Bahkan jika komponen ringan, gunakan peralatan mekanis jika ada risiko tergelincir atau kehilangan keseimbangan Anda.
SADARLAH bahwa pengaturan start otomatis tertentu DAPAT MENGAKTIFKAN KIPAS MENARA, ATAU POMPA. Buka pemutus di depan kipas menara, atau pompa.
GUNAKAN hanya suku cadang perbaikan atau pengganti yang memenuhi persyaratan kode peralatan asli.
JANGAN MENGELUARKAN ATAU MENGURAS kotak air yang mengandung air garam industri, tanpa izin dari badan yang kompeten.
JANGAN MELONGGARKAN baut kotak air sampai kotak air benar-benar dikeringkan.
JANGAN MELONGGARKAN mur kelenjar pengepakan sebelum memeriksa apakah mur memiliki keterikatan ulir yang positif.
SECARA BERKALA PERIKSA semua katup, fitting, dan pipa untuk korosi, karat, kebocoran, atau kerusakan.
SEDIAKAN sambungan DRAIN di saluran ventilasi dekat setiap perangkat pelepas tekanan untuk mencegah penumpukan kondensat atau air hujan.
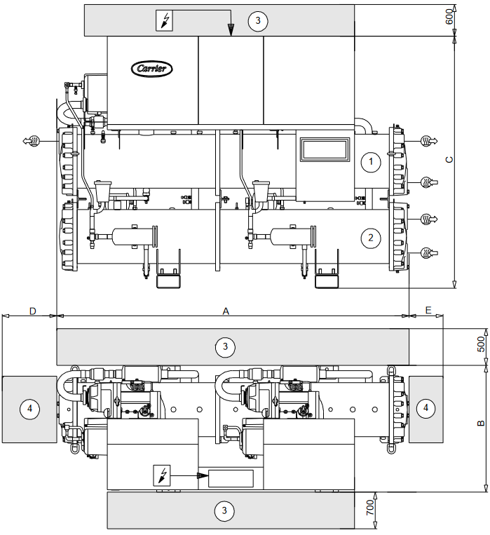
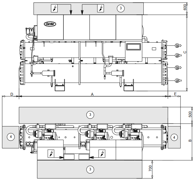
30HXC080
30HXC090
30HXC100
30HXC110

Saluran masuk air
Saluran keluar air
Catu daya
kg: berat operasi total
| A mm | B mm | C mm | D mm | E mm | kg | |
| 30HXC080 30HXC090 30HXC100 |
2705 | 950 | 1850 | 2360 | 1000 | 2447 2462 2504 |
| 30HXC110 | 2705 | 950 | 1900 | 2360 | 1000 | 2650 |
| 30HXC120 30HXC130 30HXC140 30HXC155 |
3535 | 950 | 1875 | 3220 | 1000 | 2846 2861 2956 2971 |
| 30HXC175 30HXC190 |
3550 | 950 | 2000 | 3220 | 1000 | 3283 3438 |
CATATAN: Lihat gambar dimensi bersertifikat yang disertakan dengan unit, saat merancang instalasi.

Saluran masuk air
Saluran keluar air
Catu daya
kg: berat operasi total
| A mm | B mm | C mm | D mm | E mm | kg | |
| 30HXC200 | 3975 | 980 | 2035 | 3620 | 1000 | 4090 |
| 30HXC230 30HXC260 30HXC285 |
3995 | 980 | 2116 | 3620 | 1000 | 4705 4815 4985 |
| 30HXC310 30HXC345 30HXC375 |
4490 | 980 | 2163 | 4120 | 1000 | 5760 5870 6105 |
CATATAN: Lihat gambar dimensi bersertifikat yang disertakan dengan unit, saat merancang instalasi.
30GX-082
30GX-092
30GX-102
30GX-112
30GX-122
30GX-132
30GX-152
30GX-162
30GX-182


Saluran masuk air
Saluran keluar air
Catu daya
Saluran keluar udara - jangan menghalangi
kg: berat operasi total
| A mm | B mm | kg | |
| 30GX082 30GX092 30GX102 |
2970 | 2215 | 3116 3157 3172 |
| 30GX112 30GX122 30GX132 |
3427 | 2045 | 3515 3531 3633 |
| 30GX152 30GX162 |
4342 | 2835 | 3920 3936 |
| 30GX182 | 5996 | 1820 | 4853 |


Catatan:
CATATAN: Lihat gambar dimensi bersertifikat yang disertakan dengan unit, saat merancang instalasi.
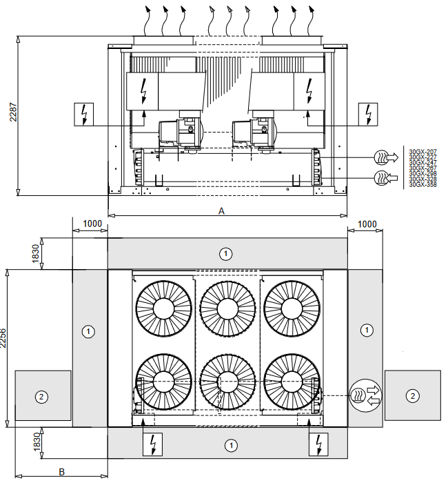
30GX-207
30GX-227
30GX-247
30GX-267
30GX-298
30GX-328
30GX-358

Saluran masuk air
Saluran keluar air
Catu daya
Saluran keluar udara - jangan menghalangi
kg: berat operasi total
| A mm | B mm | kg | |
| 30GX207 30GX227 |
5996 | 2895 | 5540 5570 |
| 30GX247 30GX267 |
6911 | 2470 | 6134 6365 |
| 30GX298 | 7826 | 2220 | 7354 |
| 30GX328 30GX358 |
8741 | 1250 | 7918 8124 |


Catatan:
CATATAN: Lihat gambar dimensi bersertifikat yang disertakan dengan unit, saat merancang instalasi.
| 30HXC | 080 | 090 | 100 | 110 | 120 | 130 | 140 | 155 | 175 | 190 | 200 | 230 | 260 | 285 | 310 | 345 | 375 | |
| Net cooling capacity (Kapasitas pendinginan bersih) | kW | 292 | 321 | 352 | 389 | 426 | 464 | 514 | 550 | 607 | 663 | 716 | 822 | 918 | 996 | 1119 | 1222 | 1326 |
| Operating weight (Berat operasi) | kg | 2447 | 2462 | 2504 | 2650 | 2846 | 2861 | 2956 | 2971 | 3283 | 3438 | 4090 | 4705 | 4815 | 4985 | 5760 | 5870 | 6105 |
| Refrigerant (Refrigeran) Circuit A/B |
HFC-134a | |||||||||||||||||
| kg | 39/36 | 39/36 | 37/32 | 38/38 | 57/55 | 59/50 | 56/50 | 59/52 | 58/61 | 60/70 | 110/58 | 118/63 | 120/75 | 120/75 | 108/110 | 110/110 | 110/120 | |
| Oil (Oli) Circuit A/B |
Polyolester oil CARRIER SPEC: PP 47-32 | |||||||||||||||||
| l | 15/15 | 15/15 | 15/15 | 15/15 | 15/15 | 15/15 | 15/15 | 15/15 | 15/15 | 15/15 | 30/15 | 30/15 | 30/15 | 30/15 | 30/30 | 30/30 | 30/30 | |
| Compressors (Kompresor) | Hermetic twin-screw Power3 | |||||||||||||||||
| Circ. A, nom. size per compressor** (Ukuran nominal per kompresor**) | 39 | 46 | 46 | 56 | 56 | 66 | 80 | 80 | 80 | 80+ | 66/56 | 80/56 | 80/80 | 80+/80+ | 80/66 | 80/80 | 80+/80+ | |
| Circ. B, nom. size per compressor** (Ukuran nominal per kompresor**) | 39 | 39 | 46 | 46 | 56 | 56 | 56 | 66 | 80 | 80+ | 66 | 80 | 80 | 80+ | 80/66 | 80/80 | 80+/80+ | |
| Control type (Jenis kontrol) | PRO-DIALOG Plus control (kontrol PRO-DIALOG Plus) | |||||||||||||||||
| Number of capacity steps (Jumlah langkah kapasitas) | 6 | 6 | 6 | 6 | 6 | 6 | 6 | 6 | 6 | 6 | 8 | 8 | 8 | 8 | 10 | 10 | 10 | |
| Minimum capacity (Kapasitas minimum) | % | 19 | 19 | 21 | 19 | 21 | 19 | 17 | 19 | 21 | 21 | 14 | 14 | 14 | 14 | 10 | 10 | 10 |
| Evaporator (Evaporator) | Shell and tube type, with internally finned copper tubes (Jenis shell dan tube, dengan tabung tembaga berfin internal) | |||||||||||||||||
| Net water volume (Volume air bersih) | l | 65 | 65 | 73 | 87 | 81 | 81 | 91 | 91 | 109 | 109 | 140 | 165 | 181 | 181 | 203 | 229 | 229 |
| Water connections (Koneksi air) | Factory-supplied flat flange, to be welded on site (Flensa datar yang dipasok pabrik, untuk dilas di lokasi) | |||||||||||||||||
| Inlet and outlet (Saluran masuk dan keluar) | in. | 4 | 4 | 4 | 5 | 5 | 5 | 5 | 5 | 5 | 5 | 6 | 6 | 6 | 6 | 8 | 8 | 8 |
| Drain and vent (NPT) (Drain dan ventilasi (NPT)) | in. | 3/8 | 3/8 | 3/8 | 3/8 | 3/8 | 3/8 | 3/8 | 3/8 | 3/8 | 3/8 | 3/8 | 3/8 | 3/8 | 3/8 | 3/8 | 3/8 | 3/8 |
| Max. water-side operating pressure (Tekanan operasi sisi air maks.) | kPa | 1000 | 1000 | 1000 | 1000 | 1000 | 1000 | 1000 | 1000 | 1000 | 1000 | 1000 | 1000 | 1000 | 1000 | 1000 | 1000 | 1000 |
| Condensers (Kondensor) | Shell and tube type, with internally finned copper tubes (Jenis shell dan tube, dengan tabung tembaga berfin internal) | |||||||||||||||||
| Net water volume (Volume air bersih) | l | 58 | 58 | 58 | 58 | 92 | 92 | 110 | 110 | 132 | 132 | 162 | 208 | 208 | 208 | 251 | 251 | 251 |
| Water connections (Koneksi air) | Factory-supplied flat flange, to be welded on site (Flensa datar yang dipasok pabrik, untuk dilas di lokasi) | |||||||||||||||||
| Inlet and outlet (Saluran masuk dan keluar) | in. | 5 | 5 | 5 | 5 | 5 | 5 | 5 | 5 | 6 | 6 | 6 | 6 | 6 | 6 | 8 | 8 | 8 |
| Drain and vent (NPT) (Drain dan ventilasi (NPT)) | in. | 3/8 | 3/8 | 3/8 | 3/8 | 3/8 | 3/8 | 3/8 | 3/8 | 3/8 | 3/8 | 3/8 | 3/8 | 3/8 | 3/8 | 3/8 | 3/8 | 3/8 |
| Max. water-side operating pressure (Tekanan operasi sisi air maks.) | kPa | 1000 | 1000 | 1000 | 1000 | 1000 | 1000 | 1000 | 1000 | 1000 | 1000 | 1000 | 1000 | 1000 | 1000 | 1000 | 1000 | 1000 |
* Standardised Eurovent conditions: evaporator entering/leaving water temperatures = 12°C/7°C, condenser water entering/leaving water temperatures = 30°C/35°C Net cooling capacity: Gross cooling capacity minus the water pump heat against the internal evaporator pressure drop. ** The compressor size corresponds to the nominal capacity in tons (1 ton = 3.517 kW). (Kondisi Eurovent standar: suhu air masuk/keluar evaporator = 12°C/7°C, suhu air masuk/keluar kondensor = 30°C/35°C Kapasitas pendinginan bersih: Kapasitas pendinginan kotor dikurangi panas pompa air terhadap penurunan tekanan evaporator internal. ** Ukuran kompresor sesuai dengan kapasitas nominal dalam ton (1 ton = 3,517 kW).)
| 30HXC | 080 | 090 | 100 | 110 | 120 | 130 | 140 | 155 | 175 | 190 | 200 | 230 | 260 | 285 | 310 | 345 | 375 | |
| Power circuit (Sirkuit daya) | ||||||||||||||||||
| Nominal power supply* (Suplai daya nominal*) | V-ph-Hz | 400-3-50 | ||||||||||||||||
| Voltage range (Rentang voltase) | V | 360-440 | ||||||||||||||||
| Control circuit supply (Suplai sirkuit kontrol) | The control circuit is supplied via the factory-installed transformer (Sirkuit kontrol disuplai melalui transformer yang dipasang di pabrik) | |||||||||||||||||
| Nominal power input* (Input daya nominal*) | kW | 59 | 67 | 74 | 83 | 88 | 99 | 112 | 123 | 135 | 146 | 156 | 179 | 201 | 219 | 245 | 274 | 298 |
| Nominal current drawn* (Arus nominal yang ditarik*) | A | 98 | 111 | 124 | 139 | 148 | 166 | 186 | 204 | 226 | 242 | 259 | 291 | 335 | 367 | 408 | 456 | 498 |
| Max. power input** (Input daya maks**) | kW | 76 | 83 | 91 | 101 | 111 | 121 | 135 | 145 | 158 | 181 | 187 | 214 | 237 | 272 | 290 | 316 | 362 |
| Circuit A | kW | - | - | - | - | - | - | - | - | - | - | 121 | 135 | 158 | 181 | 145 | 158 | 181 |
| Circuit B | kW | - | - | - | - | - | - | - | - | - | - | 66 | 79 | 79 | 91 | 145 | 158 | 181 |
| Cosine phi, unit at full load (Cosinus phi, unit pada beban penuh) | 0.87 | 0.87 | 0.87 | 0.87 | 0.87 | 0.87 | 0.87 | 0.87 | 0.87 | 0.87 | 0.87 | 0.87 | 0.87 | 0.87 | 0.87 | 0.87 | 0.87 | |
| Max. current drawn (Un - 10%)*** (Arus maks. yang ditarik (Un - 10%)***) | A | 138 | 152 | 166 | 184 | 202 | 221 | 245 | 264 | 288 | 330 | 341 | 389 | 432 | 495 | 528 | 576 | 660 |
| Circuit A | A | - | - | - | - | - | - | - | - | - | - | 221 | 245 | 288 | 330 | 264 | 288 | 330 |
| Circuit B | A | - | - | - | - | - | - | - | - | - | - | 120 | 144 | 144 | 165 | 264 | 288 | 330 |
| Maximum current drawn (Un)*** (Arus maksimum yang ditarik (Un)***) | A | 125 | 138 | 151 | 167 | 184 | 201 | 223 | 240 | 262 | 300 | 310 | 354 | 393 | 450 | 480 | 524 | 600 |
| Circuit A | A | - | - | - | - | - | - | - | - | - | - | 201 | 223 | 262 | 300 | 240 | 262 | 300 |
| Circuit B | A | - | - | - | - | - | - | - | - | - | - | 109 | 131 | 131 | 150 | 240 | 262 | 300 |
| Max. starting current, std. unit (Un)**** (Arus start maks., unit standar (Un)****) | A | 172 | 197 | 209 | 235 | 252 | 283 | 318 | 335 | 357 | 420 | 806 | 938 | 977 | 1156 | 1064 | 1108 | 1306 |
| Circuit A | A | - | - | - | - | - | - | - | - | - | - | 697 | 807 | 846 | 1006 | 824 | 846 | 1006 |
| Circuit B | A | - | - | - | - | - | - | - | - | - | - | 605 | 715 | 715 | 856 | 824 | 846 | 1006 |
| Max. starting current/max. current draw ratio, unit (Rasio arus start maks./rasio penarikan arus maks., unit) | 1.37 | 1.42 | 1.39 | 1.41 | 1.37 | 1.41 | 1.43 | 1.40 | 1.36 | 1.40 | 2.60 | 2.65 | 2.49 | 2.57 | 2.22 | 2.12 | 2.18 | |
| Max. starting current/max. current draw ratio, circuit A (Rasio arus start maks./rasio penarikan arus maks., sirkuit A) | - | - | - | - | - | - | - | - | - | - | 3.47 | 3.62 | 3.23 | 3.35 | 3.43 | 3.23 | 3.35 | |
| Max. starting current/max. current draw ratio, circuit B (Rasio arus start maks./rasio penarikan arus maks., sirkuit B) | - | - | - | - | - | - | - | - | - | - | 5.55 | 5.46 | 5.46 | 5.71 | 3.43 | 3.23 | 3.35 | |
| Max. starting current - reduced current start (Un) **** (Arus start maks. - start arus tereduksi (Un) ****) | A | std. | std. | std. | std. | std. | std. | std. | std. | std. | std. | 601 | 643 | 682 | 760 | 769 | 813 | 910 |
| Circuit A | A | std. | std. | std. | std. | std. | std. | std. | std. | std. | std. | 492 | 512 | 551 | 610 | 529 | 551 | 610 |
| Circuit B | A | std. | std. | std. | std. | std. | std. | std. | std. | std. | std. | 330 | 370 | 370 | 385 | 529 | 551 | 610 |
| Max.starting current - red. current start/ max. current draw ratio, unit (Arus start maks. - start arus tereduksi/ rasio penarikan arus maks., unit) | std. | std. | std. | std. | std. | std. | std. | std. | std. | std. | 1.94 | 1.82 | 1.74 | 1.69 | 1.60 | 1.55 | 1.52 | |
| Circuit A | std. | std. | std. | std. | std. | std. | std. | std. | std. | std. | 2.45 | 2.30 | 2.10 | 2.03 | 2.20 | 2.10 | 2.03 | |
| Circuit B | std. | std. | std. | std. | std. | std. | std. | std. | std. | std. | 3.03 | 2.83 | 2.83 | 2.57 | 2.20 | 2.10 | 2.03 | |
| Three-phase short circuit holding current (Arus penahan hubung singkat tiga fase) | kA | 25 | 25 | 25 | 25 | 25 | 25 | 25 | 25 | 25 | 25 | N/A | N/A | N/A | N/A | N/A | N/A | N/A |
| Circuit A | kA | - | - | - | - | - | - | - | - | - | - | 25 | 25 | 25 | 25 | 25 | 25 | 25 |
| Circuit B | kA | - | - | - | - | - | - | - | - | - | - | 15 | 15 | 15 | 15 | 25 | 25 | 25 |
| Customer standby capacity, unit or circ. A, for evaporatorwater pump connections† (Kapasitas siaga pelanggan, unit atau sirkuit A, untuk koneksi pompa air evaporator†) | kW | 8 | 8 | 8 | 11 | 11 | 11 | 15 | 15 | 15 | 15 | 15 | 18 | 18 | 30 | 30 | 30 | 30 |
* Standard Eurovent conditions: Evaporator entering/leaving water temperature 12°C and 7°C. Condenser entering/leaving water temperature 30°C/35°C. (Kondisi Eurovent standar: Temperatur air masuk/keluar evaporator 12°C dan 7°C. Temperatur air masuk/keluar kondensor 30°C/35°C.)
** Power input, compressor, at unit operating limits (evaporator water entering/leaving temperature = 15°C/10°C, condenser entering/leaving water temperature = 40°C/45°C) and a nominal voltage of 400 V (data given on the unit name plate). (Input daya, kompresor, pada batas operasi unit (temperatur air masuk/keluar evaporator = 15°C/10°C, temperatur air masuk/keluar kondensor = 40°C/45°C) dan voltase nominal 400 V (data diberikan pada name plate unit).)
*** Maximum unit operating current at maximum unit power input. (Arus operasi unit maksimum pada input daya unit maksimum.)
**** Maximum instantaneous starting current (maximum operating current of the smallest compressor(s) + locked rotor current or reduced starting current of the largest compressor) (Arus start sesaat maksimum (arus operasi maksimum dari kompresor terkecil + arus rotor terkunci atau arus start tereduksi dari kompresor terbesar))
† Current and power inputs not included in the values above. (Input arus dan daya tidak termasuk dalam nilai di atas.)
N/A Not available (Tidak tersedia)
| Reference (Referensi) | Size (Ukuran) | I nom. | MHA | LRA | LRA (Y) | LRA (S) 1 cp. | LRA (S) 2 cp. |
| 06NW2146S7N | 39 | 48 | 69 | 344 | 109 | 125 | - |
| 06NW2174S7N | 46 | 58 | 83 | 423 | 134 | 154 | - |
| 06NW2209S7N | 56 | 71 | 101 | 506 | 160 | 260 | 350 |
| 06NW2250S7N | 66 | 87 | 120 | 605 | 191 | 330 | 400 |
| 06NW2300S5N | 80 | 104 | 144 | 715 | 226 | 370 | 420 |
| 06NW2300S5E | 80+ | 111 | 165 | 856 | 270 | 385 | 460 |
Legend: (Legenda:)
| 06NW | Compressor for water-cooled units (Kompresor untuk unit berpendingin air) |
| N | Non-economized compressor (Kompresor non-ekonomis) |
| E | Economized compressor (Kompresor ekonomis) |
| INOM | Average current draw of the compressor at Eurovent conditions (Penarikan arus rata-rata kompresor pada kondisi Eurovent) |
| MHA | Must hold amperes (maximum operating current) at 360 V (Harus menahan ampere (arus operasi maksimum) pada 360 V) |
| LRA | Locked rotor current with across-the-line start (Arus rotor terkunci dengan start across-the-line) |
| LRA (Y) | Locked rotor current at reduced current (star/delta start-up mode) (Arus rotor terkunci pada arus tereduksi (mode start-up bintang/delta)) |
| LRA (S) 1 cp. | Start-up with reduced current with electronic starter (start-up duration 3 seconds max.) for one compressor per circuit (Start-up dengan arus tereduksi dengan starter elektronik (durasi start-up maks. 3 detik) untuk satu kompresor per sirkuit) |
| LRA (S) 2 cp. | Start-up with reduced current with electronic starter (start-up duration 3 seconds max.) for two compressors per circuit (Start-up dengan arus tereduksi dengan starter elektronik (durasi start-up maks. 3 detik) untuk dua kompresor per sirkuit) |
Pilihan 30HXC 150 dan 150A
| 30HXC | 080 | 090 | 100 | 110 | 120 | 130 | 140 | 155 | 175 | 190 | 200 | 230 | 260 | 285 | 310 | 345 | 375 | |
| Sirkuit daya | ||||||||||||||||||
| Suplai daya nominal* | V-ph-Hz | 400-3-50 | ||||||||||||||||
| Rentang tegangan | V | 360-440 | ||||||||||||||||
| Suplai sirkuit kontrol | Sirkuit kontrol disuplai melalui transformator yang dipasang di pabrik | |||||||||||||||||
| Input daya maks.** | kW | 104 | 117 | 131 | 145 | 159 | 174 | 194 | 211 | 230 | 263 | 271 | 310 | 345 | 395 | 422 | 460 | 526 |
| Sirkuit A | kW | - | - | - | - | - | - | - | - | - | - | 175 | 195 | 230 | 263 | 211 | 230 | 263 |
| Sirkuit B | kW | - | - | - | - | - | - | - | - | - | - | 96 | 115 | 115 | 132 | 211 | 230 | 263 |
| Arus maksimum yang ditarik (Un - 10%)*** | A | 190 | 215 | 240 | 265 | 290 | 320 | 355 | 385 | 420 | 480 | 495 | 564 | 630 | 720 | 770 | 840 | 960 |
| Sirkuit A | A | - | - | - | - | - | - | - | - | - | - | 320 | 355 | 420 | 480 | 385 | 420 | 480 |
| Sirkuit B | A | - | - | - | - | - | - | - | - | - | - | 175 | 210 | 210 | 240 | 385 | 420 | 480 |
| Arus maksimum yang ditarik (Un)*** | A | 173 | 195 | 218 | 241 | 264 | 291 | 323 | 350 | 382 | 436 | 450 | 514 | 573 | 655 | 700 | 764 | 873 |
| Sirkuit A | A | - | - | - | - | - | - | - | - | - | - | 291 | 323 | 382 | 436 | 350 | 382 | 436 |
| Sirkuit B | A | - | - | - | - | - | - | - | - | - | - | 159 | 191 | 191 | 218 | 350 | 382 | 436 |
| Arus start maks., unit standar (Un)**** | A | 277 | 312 | 335 | 379 | 402 | 435 | 519 | 546 | 578 | 618 | 1251 | 1549 | 1608 | 1701 | 1735 | 1799 | 1920 |
| Sirkuit A | A | - | - | - | - | - | - | - | - | - | - | 1092 | 1358 | 1417 | 1483 | 1385 | 1417 | 1483 |
| Sirkuit B | A | - | - | - | - | - | - | - | - | - | - | 960 | 1226 | 1226 | 1265 | 1385 | 1417 | 1483 |
| Rasio arus start maks./penarikan arus maks., unit | 1.61 | 1.60 | 1.54 | 1.57 | 1.52 | 1.49 | 1.61 | 1.56 | 1.51 | 1.42 | 2.78 | 3.02 | 2.81 | 2.60 | 2.48 | 2.36 | 2.20 | |
| Rasio arus start maks./penarikan arus maks., sirkuit A | - | - | - | - | - | - | - | - | - | - | 3.75 | 4.21 | 3.71 | 3.40 | 3.96 | 3.71 | 3.40 | |
| Rasio arus start maks./penarikan arus maks., sirkuit B | - | - | - | - | - | - | - | - | - | - | 6.03 | 6.42 | 6.42 | 5.80 | 3.96 | 3.71 | 3.40 | |
| Arus start maks. - start arus tereduksi (Un) **** | A | std. | std. | std. | std. | std. | std. | std. | std. | std. | std. | N/A | N/A | N/A | N/A | N/A | N/A | N/A |
| Arus penahan hubung singkat tiga fase | kA | 25 | 25 | 25 | 25 | 25 | 25 | 25 | 25 | 25 | 25 | N/A | N/A | N/A | N/A | N/A | N/A | N/A |
| Sirkuit A | kA | - | - | - | - | - | - | - | - | - | - | 25 | 25 | 25 | 25 | 25 | 25 | 25 |
| Sirkuit B | kA | - | - | - | - | - | - | - | - | - | - | 15 | 15 | 15 | 15 | 25 | 25 | 25 |
| Kapasitas siaga pelanggan, unit atau sirkuit A, untuk sambungan pompa air evaporator† | kW | 8 | 8 | 8 | 11 | 11 | 11 | 15 | 15 | 15 | 15 | 15 | 18 | 18 | 30 | 30 | 30 | 30 |
** Input daya, kompresor, pada batas operasi unit (air evaporator masuk/keluar temperatur = 15°C/10°C, kondensor masuk/keluar temperatur air = 40°C/45°C) dan tegangan nominal 400 V (data diberikan pada pelat nama unit).
*** Arus operasi unit maksimum pada input daya unit maksimum.
**** Arus start sesaat maksimum (arus operasi maksimum dari kompresor terkecil + arus rotor terkunci atau arus start tereduksi dari kompresor terbesar)
† Input arus dan daya tidak termasuk dalam nilai di atas.
N/A Tidak tersedia
Unit 30HXC 080-375 untuk temperatur kondensasi tinggi diturunkan langsung dari model standar. Rentang aplikasinya sama dengan unit standar, tetapi memungkinkan operasi pada temperatur air keluar kondensor hingga 63°C. Kontrol PRO-DIALOG menawarkan semua keuntungan dari unit standar, ditambah kontrol temperatur air keluar kondensor.
Modifikasi utamanya adalah:
Unit-unit ini dirancang untuk aplikasi tradisional untuk unit berpendingin air, tetapi untuk temperatur air keluar kondensor yang lebih tinggi dari 45°C.
Seperti unit standar, unit ini dilengkapi dengan sensor air masuk dan keluar kondensor, yang dipasang pada pipa.
Dimungkinkan untuk mengontrol mesin di outlet air kondensor, yang memerlukan perubahan konfigurasi pabrik dan penggunaan perangkat pembalik saluran masuk pemanas/pendingin.
Unit-unit ini dirancang untuk pompa panas air-ke-air.
Unit ini dikonfigurasi dari pabrik sebagai pompa panas (kontrol pemanasan/pendinginan sebagai fungsi dari perangkat pembalik jarak jauh). Kondensor menggabungkan insulasi termal yang identik dengan evaporator.
Semua informasi identik dengan unit 30HXC standar, kecuali untuk paragraf berikut.
Tidak ada kondisi nominal untuk jenis unit ini. Pemilihan dilakukan menggunakan katalog elektronik saat ini.
Ini identik dengan unit 30HXC standar. Satu-satunya perbedaan adalah pada diameter sambungan kabel lapangan yang masuk, yang dijelaskan dalam bab "Pemilihan yang Direkomendasikan". Lihat gambar dimensi untuk unit-unit ini, sebelum melanjutkan dengan pemasangan kabel.
Lihat tabel kompresor 30GX.
Semua pilihan yang tersedia untuk unit 30HXC standar kompatibel, kecuali:
| Pilihan 5, unit air garam | Unit khusus |
| Pilihan 25, soft start (start lembut), unit 30HXC 200-375 | Tidak tersedia |
Perhatian:
Jika unit memiliki dua mode operasi yang berbeda - satu dengan temperatur kondensasi tinggi dan yang lainnya dengan temperatur kondensasi rendah - dan transisi dilakukan dengan unit beroperasi, temperatur tidak boleh bervariasi lebih dari 3 K per menit. Dalam kasus di mana ini tidak mungkin, disarankan untuk melalui sakelar start/stop unit (start/stop jarak jauh tersedia untuk unit standar).
| 30GX | 082 | 092 | 102 | 112 | 122 | 132 | 152 | 162 | 182 | 207 | 227 | 247 | 267 | 298 | 328 | 358 | ||
| Kapasitas pendinginan bersih | kW | 285 | 309 | 332 | 388 | 417 | 450 | 505 | 536 | 602 | 687 | 744 | 810 | 910 | 1003 | 1103 | 1207 | |
| Berat operasi | kg | 3116 | 3157 | 3172 | 3515 | 3531 | 3633 | 3920 | 3936 | 4853 | 5540 | 5570 | 6134 | 6365 | 7354 | 7918 | 8124 | |
| Muatan refrigeran | HFC-134a | |||||||||||||||||
| Sirkuit A/B | kg | 55/55 | 58/50 | 54/53 | 55/53 | 60/57 | 63/60 | 75/69 | 75/75 | 80/80 | 130/85 | 130/85 | 155/98 | 170/104 | 162/150 | 162/165 | 175/175 | |
| Oli | Oli Polyolester CARRIER SPEC: PP 47-32 | |||||||||||||||||
| Sirkuit A/B | l | 20/20 | 20/20 | 20/20 | 20/20 | 20/20 | 20/20 | 20/20 | 20/20 | 20/20 | 40/20 | 40/20 | 40/20 | 40/20 | 40/40 | 40/40 | 40/40 | |
| Kompresor | Sekrup kembar hermetik Power3 | |||||||||||||||||
| Sirk. A, ukuran nominal per kompresor** | 46 | 46 | 56 | 56 | 66 | 66 | 80 | 80 | 80+ | 66/56 | 80/66 | 80/80 | 80+/80+ | 80/80 | 80/80 | 80+/80+ | ||
| Sirk. B, ukuran nominal per kompresor** | 39 | 46 | 46 | 56 | 56 | 66 | 66 | 80 | 80+ | 80 | 80 | 80 | 80+ | 66/66 | 80/802 | 80+/80+ | ||
| Jenis kontrol | Kontrol PRO-DIALOG Plus | |||||||||||||||||
| Jumlah langkah kapasitas | 6 | 6 | 6 | 6 | 6 | 6 | 6 | 6 | 6 | 8 | 8 | 8 | 8 | 10 | 10 | 10 | ||
| Kapasitas minimum | % | 19 | 21 | 19 | 21 | 19 | 21 | 19 | 21 | 21 | 16 | 14 | 14 | 14 | 9 | 10 | 10 | |
| Evaporator | Jenis shell and tube (cangkang dan tabung), dengan tabung tembaga bersirip internal | |||||||||||||||||
| Volume air bersih | l | 65 | 73 | 73 | 87 | 87 | 101 | 91 | 91 | 109 | 140 | 140 | 165 | 181 | 203 | 229 | 229 | |
| Sambungan air | Flensa datar yang dipasok pabrik, untuk dilas di lokasi | |||||||||||||||||
| Saluran masuk dan keluar | in. | 4 | 4 | 4 | 5 | 5 | 5 | 5 | 5 | 5 | 6 | 6 | 6 | 6 | 8 | 8 | 8 | |
| Saluran pembuangan dan ventilasi (NPT) | in. | 3/8 | 3/8 | 3/8 | 3/8 | 3/8 | 3/8 | 3/8 | 3/8 | 3/8 | 3/8 | 3/8 | 3/8 | 3/8 | 3/8 | 3/8 | 3/8 | |
| Tekanan operasi sisi air maks. | kPa | 1000 | 1000 | 1000 | 1000 | 1000 | 1000 | 1000 | 1000 | 1000 | 1000 | 1000 | 1000 | 1000 | 1000 | 1000 | 1000 | |
| Kondensor | Tabung tembaga dan sirip aluminium | |||||||||||||||||
| Kipas | Kipas FLYING BIRD 2 aksial dengan penutup berputar | |||||||||||||||||
| Kuantitas | 4 | 4 | 4 | 6 | 6 | 6 | 8 | 8 | 8 | 10 | 10 | 12 | 12 | 14 | 16 | 16 | ||
| Kecepatan | r/s | 15.8 | 15.8 | 15.8 | 15.8 | 15.8 | 15.8 | 15.8 | 15.8 | 15.8 | 15.8 | 15.8 | 15.8 | 15.8 | 15.8 | 15.8 | 15.8 | |
| Total aliran udara | l/s | 21110 | 21110 | 21110 | 31660 | 31660 | 31660 | 42220 | 42220 | 42220 | 52770 | 52770 | 63330 | 63330 | 73880 | 84440 | 84440 | |
* Kondisi Eurovent standar: temperatur air masuk/keluar evaporator = 12°C/7°C, temperatur udara luar = 35°C Kapasitas pendinginan bersih: Kapasitas pendinginan kotor dikurangi panas pompa air terhadap penurunan tekanan evaporator internal.
** Ukuran kompresor sesuai dengan kapasitas nominal dalam ton (1 ton = 3,517 kW).
| 30HXC | 082 | 092 | 102 | 112 | 122 | 132 | 152 | 162 | 182 | 207 | 227 | 247 | 267 | 298 | 328 | 358 | ||
| Rangkaian daya | ||||||||||||||||||
| Catu daya nominal* | V-ph-Hz | 400-3-50 | ||||||||||||||||
| Rentang tegangan | V | 360-440 | ||||||||||||||||
| Catu daya rangkaian kontrol | Rangkaian kontrol disuplai melalui transformator yang dipasang di pabrik | |||||||||||||||||
| Input daya nominal* | kW | 98 | 109 | 123 | 133 | 150 | 166 | 179 | 196 | 214 | 246 | 281 | 292 | 332 | 364 | 394 | 449 | |
| Arus nominal yang ditarik* | A | 180 | 200 | 223 | 256 | 273 | 290 | 326 | 352 | 388 | 449 | 492 | 528 | 582 | 642 | 704 | 776 | |
| Input daya maks.** | kW | 127 | 141 | 154 | 175 | 191 | 207 | 234 | 253 | 286 | 319 | 355 | 380 | 429 | 462 | 506 | 572 | |
| Rangkaian A | kW | - | - | - | - | - | - | - | - | - | 193 | 228 | 253 | 286 | 253 | 253 | 286 | |
| Rangkaian B | kW | - | - | - | - | - | - | - | - | - | 127 | 127 | 127 | 143 | 209 | 253 | 286 | |
| Cosinus phi, unit pada beban penuh | 0.85 | 0.85 | 0.85 | 0.85 | 0.85 | 0.85 | 0.86 | 0.86 | 0.86 | 0.86 | 0.86 | 0.86 | 0.86 | 0.86 | 0.86 | 0.86 | ||
| Arus maks. yang ditarik (Un - 10%)*** | A | 237 | 262 | 287 | 323 | 353 | 383 | 429 | 464 | 524 | 585 | 650 | 696 | 786 | 847 | 928 | 1048 | |
| Rangkaian A | A | - | - | - | - | - | - | - | - | - | 353 | 418 | 464 | 524 | 464 | 464 | 524 | |
| Rangkaian B | A | - | - | - | - | - | - | - | - | - | 232 | 232 | 232 | 262 | 383 | 464 | 524 | |
| Arus maksimum yang ditarik (Un)*** | A | 217 | 240 | 263 | 297 | 324 | 351 | 394 | 426 | 480 | 537 | 596 | 639 | 721 | 777 | 852 | 961 | |
| Rangkaian A | A | - | - | - | - | - | - | - | - | - | 324 | 383 | 426 | 480 | 426 | 426 | 480 | |
| Rangkaian B | A | - | - | - | - | - | - | - | - | - | 213 | 213 | 213 | 240 | 351 | 426 | 480 | |
| Arus start maks., unit standar**** (Un) | A | 334 | 357 | 401 | 435 | 468 | 495 | 590 | 622 | 662 | 1338 | 1631 | 1674 | 1767 | 1812 | 1887 | 2008 | |
| Rangkaian A*** | A | - | - | - | - | - | - | - | - | - | 1125 | 1418 | 1461 | 1527 | 1461 | 1461 | 1527 | |
| Rangkaian B*** | A | - | - | - | - | - | - | - | - | - | 1248 | 1248 | 1248 | 1287 | 1152 | 1461 | 1527 | |
| Arus start maks./rasio penarikan arus maks., unit | 1.54 | 1.49 | 1.53 | 1.47 | 1.44 | 1.41 | 1.50 | 1.46 | 1.38 | 2.49 | 2.74 | 2.62 | 2.45 | 2.33 | 2.22 | 2.09 | ||
| Arus start maks./rasio penarikan arus maks., rangkaian A | - | - | - | - | - | - | - | - | - | 3.47 | 3.70 | 3.43 | 3.18 | 3.43 | 3.43 | 3.18 | ||
| Arus start maks./rasio penarikan arus maks., rangkaian B | - | - | - | - | - | - | - | - | - | 5.86 | 5.86 | 5.86 | 5.36 | 3.28 | 3.43 | 3.18 | ||
| Arus start maks. - start arus tereduksi (Un) **** | A | std. | std. | std. | std. | std. | std. | std. | std. | std. | 878 | 955 | 998 | 1102 | 1136 | 1211 | 1343 | |
| Rangkaian A | A | std. | std. | std. | std. | std. | std. | std. | std. | std. | 665 | 742 | 785 | 862 | 785 | 785 | 862 | |
| Rangkaian B | A | std. | std. | std. | std. | std. | std. | std. | std. | std. | 572 | 572 | 572 | 622 | 692 | 785 | 862 | |
| Arus start maks. - start arus tereduksi/ rasio penarikan arus maks., unit | std. | std. | std. | std. | std. | std. | std. | std. | std. | 1.64 | 1.60 | 1.56 | 1.53 | 1.46 | 1.42 | 1.40 | ||
| Rangkaian A | std. | std. | std. | std. | std. | std. | std. | std. | std. | 2.05 | 1.94 | 1.84 | 1.79 | 1.84 | 1.84 | 1.79 | ||
| Rangkaian B | std. | std. | std. | std. | std. | std. | std. | std. | std. | 2.69 | 2.69 | 2.69 | 2.39 | 1.97 | 1.84 | 1.79 | ||
| Arus penahan hubung singkat tiga fase | kA | 25 | 25 | 25 | 25 | 25 | 25 | 25 | 25 | 25 | N/A | N/A | N/A | N/A | N/A | N/A | N/A | |
| Rangkaian A | kA | - | - | - | - | - | - | - | - | - | 25 | 25 | 25 | 25 | 25 | 25 | 25 | |
| Rangkaian B | kA | - | - | - | - | - | - | - | - | - | 25 | 25 | 25 | 25 | 25 | 25 | 25 | |
| Kapasitas siaga pelanggan, unit atau sirkuit A, untuk sambungan pompa air evaporator† | kW | 4 | 4 | 4 | 5.5 | 5.5 | 5.5 | 7.5 | 7.5 | 7.5 | 7.5 | 9 | 9 | 9 | 15 | 15 | 15 | |
* Kondisi Eurovent standar: Suhu air masuk/keluar evaporator 12°C dan 7°C. Suhu udara luar 35°C.
** Input daya, kompresor dan kipas, pada batas pengoperasian unit (suhu air masuk/keluar evaporator = 15°C/10°C, suhu udara luar = 46°C) dan tegangan nominal 400 V (data diberikan pada pelat nama unit).
*** Arus pengoperasian unit maksimum pada input daya unit maksimum.
**** Arus start sesaat maksimum (arus pengoperasian maksimum kompresor terkecil + arus kipas + arus rotor terkunci atau arus start tereduksi dari kompresor terbesar).
† Input arus dan daya tidak termasuk dalam nilai di atas
N/A Tidak tersedia
| Referensi | Ukuran | I nom. | MHA | LRA | LRA (Y) | LRA (S) 1 cp. | LRA (S) 2 cp. |
| 06NA2146S7N | 39 | 70 | 95 | 605 | 191 | 220 | - |
| 06NA2174S7N | 46 | 90 | 120 | 715 | 226 | 260 | - |
| 06NA2209S7N | 56 | 113 | 145 | 856 | 270 | 330 | 420 |
| 06NA2250S7N | 66 | 130 | 175 | 960 | 303 | 380 | 500 |
| 06NA2300S5N | 80 | 156 | 210 | 1226 | 387 | 445 | 550 |
| 06NA2300S5E | 80+ | 174 | 240 | 1265 | 400 | 460 | 600 |
Legenda:
| 06NA | Kompresor untuk unit berpendingin udara |
| N | Kompresor non-ekonomis |
| E | Kompresor ekonomis |
| INOM | Penarikan arus rata-rata kompresor pada kondisi Eurovent |
| MHA | Harus menahan ampere (arus pengoperasian maksimum) pada 360 V |
| LRA | Arus rotor terkunci dengan start across-the-line |
| LRA (Y) | Arus rotor terkunci pada arus tereduksi (mode start-up bintang/delta) |
| LRA (S) 1 cp. | Start-up dengan arus tereduksi dengan starter elektronik (durasi start-up maks. 3 detik) untuk satu kompresor per rangkaian |
| LRA (S) 2 cp. | Start-up dengan arus tereduksi dengan starter elektronik (durasi start-up maks. 3 detik) untuk dua kompresor per rangkaian |
| Evaporator | Minimum (Minimal) | Maximum (Maksimal) | |
| Suhu air masuk Evaporator | °C | 6.8* | 21 |
| Suhu air keluar Evaporator | °C | 4** | 15 |
| Kondensor (berpendingin air) | Minimum (Minimal) | Maximum (Maksimal) | |
| Suhu air masuk Kondensor | °C | 20*** | 42 |
| Suhu air keluar Kondensor | °C | 25 | 45 |
| Suhu pengoperasian ambien luar ruangan 30HXC | °C | 6 | 40 |
| Kondensor (berpendingin udara) | Minimum (Minimal) | Maximum (Maksimal) | |
| Suhu pengoperasian ambien luar ruangan | °C | 0 | 46 |
| Tekanan statis yang tersedia | kPa | 0 |
Catatan:
* Untuk aplikasi yang memerlukan pengoperasian pada suhu kurang dari 6.8°C, hubungi Carrier s.a. untuk pemilihan unit menggunakan katalog elektronik Carrier.
** Untuk aplikasi yang memerlukan pengoperasian pada suhu kurang dari 4°C, unit memerlukan penggunaan antibeku.
*** Unit berpendingin air (30HXC) yang beroperasi pada beban penuh dan di bawah suhu air masuk kondensor 20°C memerlukan penggunaan kontrol tekanan head dengan katup kontrol air analog (lihat paragraf tentang kontrol tekanan head).
Dalam mode pengoperasian sementara (saat start-up dan pada beban sebagian), unit dapat beroperasi dengan suhu udara masuk kondensor 13°C.
Aliran air dingin minimum ditunjukkan dalam tabel di halaman berikutnya. Jika aliran kurang dari ini, aliran evaporator dapat disirkulasikan ulang, seperti yang ditunjukkan pada diagram. Suhu campuran yang keluar dari evaporator tidak boleh kurang dari 2.8 K lebih rendah dari suhu air dingin yang masuk.

UNTUK LAJU ALIRAN AIR DINGIN MINIMUM
Aliran air dingin maksimum dibatasi oleh penurunan tekanan maksimum yang diizinkan di evaporator. Ini disediakan dalam tabel di halaman berikutnya. Jika aliran melebihi nilai maksimum, dua solusi dimungkinkan:

UNTUK LAJU ALIRAN AIR DINGIN MAKSIMUM
Aliran evaporator variabel dapat digunakan dalam chiller standar 30HXC dan 30GX. Chiller mempertahankan suhu air keluar yang konstan di bawah semua kondisi aliran. Agar ini terjadi, laju aliran minimum harus lebih tinggi dari aliran minimum yang diberikan dalam tabel laju aliran yang diizinkan dan tidak boleh bervariasi lebih dari 10% per menit. Jika laju aliran berubah lebih cepat, sistem harus berisi minimal 6.5 liter air per kW, bukan 3.25 l/kW.
Apa pun sistemnya, kapasitas minimum loop air diberikan oleh rumus:
Kapasitas = Cap (kW) x N Liter
| Aplikasi | N |
| Pendingin udara normal | 3.25 |
| Pendinginan jenis proses | 6.5 |
Di mana Cap adalah kapasitas pendinginan sistem nominal (kW) pada kondisi pengoperasian nominal instalasi.
Volume ini diperlukan untuk operasi yang stabil dan kontrol suhu yang akurat.
Seringkali perlu menambahkan tangki air penyangga ke sirkuit untuk mencapai volume yang diperlukan. Tangki itu sendiri harus memiliki sekat internal untuk memastikan pencampuran cairan (air atau air garam) yang tepat. Lihat contoh di bawah ini.
CATATAN: Kompresor tidak boleh restart lebih dari 6 kali dalam satu jam.


| 30HXC | Min.* | Maks.** | ||
| 080-090 | 5.7 | 22.7 | ||
| 100 | 6.0 | 24.1 | ||
| 110 | 6.9 | 27.5 | ||
| 120-130 | 8.3 | 33.0 | ||
| 140-155 | 10.0 | 39.5 | ||
| 175-190 | 10.7 | 42.7 | ||
| 200 | 13.4 | 53.7 | ||
| 230 | 13.4 | 60.6 | ||
| 260-285 | 17.0 | 68.1 | ||
| 310 | 19.4 | 77.8 | ||
| 345-375 | 21.3 | 85.3 | ||
| 30GX | Min.* | Maks.** | ||
| 082 | 5.7 | 22.7 | ||
| 092-102 | 6.0 | 24.1 | ||
| 112-122 | 6.9 | 27.5 | ||
| 132 | 8.4 | 33.7 | ||
| 152-162 | 10.0 | 39.9 | ||
| 182 | 10.7 | 42.7 | ||
| 207-227 | 13.4 | 53.7 | ||
| 247 | 15.1 | 60.6 | ||
| 267 | 17.0 | 68.1 | ||
| 298 | 19.4 | 77.8 | ||
| 328-358 | 21.3 | 85.3 | ||
* Berdasarkan kecepatan air 0.9 m/s.
** Berdasarkan kecepatan air 3.6 m/s.
| 30HXC | Min.* Lingkar tertutup (Closed loop) | Lingkar terbuka (Open loop) | Maks.** |
| 080-110 | 2.5 | 7.5 | 29.9 |
| 120-130 | 3.1 | 9.3 | 37.3 |
| 140-155 | 3.8 | 11.4 | 45.5 |
| 175-190 | 4.6 | 13.8 | 55.2 |
| 200 | 5.0 | 14.9 | 59.6 |
| 230-285 | 6.7 | 20.1 | 80.3 |
| 310-375 | 7.3 | 22.0 | 88.0 |
* Berdasarkan kecepatan air 0.3 m/s dalam lingkar tertutup dan 0.9 m/s dalam lingkar terbuka.
** Berdasarkan kecepatan air 3.6 m/s


Wajib memasang sakelar aliran cooler dan juga menghubungkan interlock pompa air dingin pada 30HXC dan 30GX. Kegagalan mengikuti instruksi ini akan membatalkan garansi Carrier.
Pengontrol sakelar aliran cooler dipasok dan disambungkan di pabrik pada unit 30HXC dan 30GX.
Ikuti instruksi pabrikan untuk pemasangan.
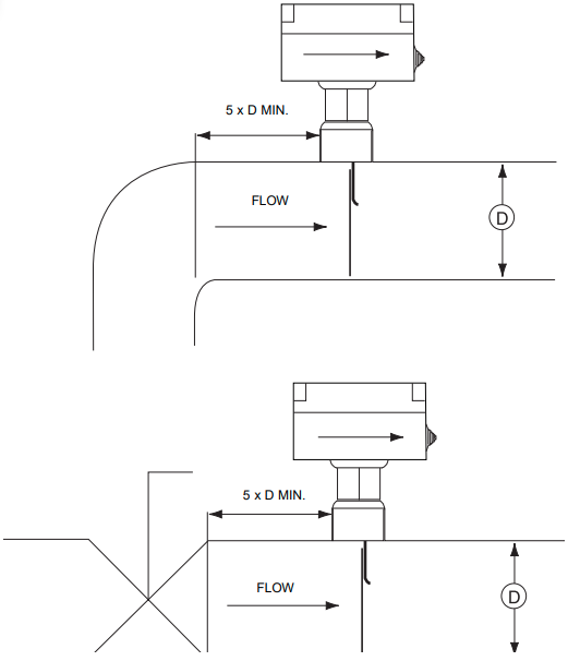
Sakelar aliran dapat dipasang di pipa horizontal atau pipa vertikal dengan aliran cairan ke atas. Tidak boleh digunakan saat aliran cairan ke bawah.
Pasang di bagian pipa di mana terdapat jalur lurus setidaknya lima diameter pipa di setiap sisi sakelar aliran. Jangan letakkan berdekatan dengan katup, siku, atau lubang. Dayung tidak boleh menyentuh pipa atau batasan apa pun di dalam pipa. Sekrup sakelar aliran pada posisinya sehingga bagian datar dayung berada pada sudut kanan terhadap aliran. Panah pada penutup dan di bagian bawah, di dalam wadah, harus mengarah ke arah aliran. Sakelar harus dipasang sehingga terminal mudah diakses untuk pemasangan kabel yang mudah.
Terminal 34 dan 35 disediakan untuk pemasangan di lapangan interlock pompa air dingin (kontak bantu kontaktor pompa air dingin).
(Koneksi pipa: 1" NPT)

Sakelar aliran kondensor adalah perangkat yang dipasang di lapangan.
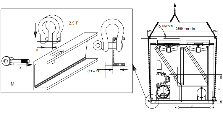
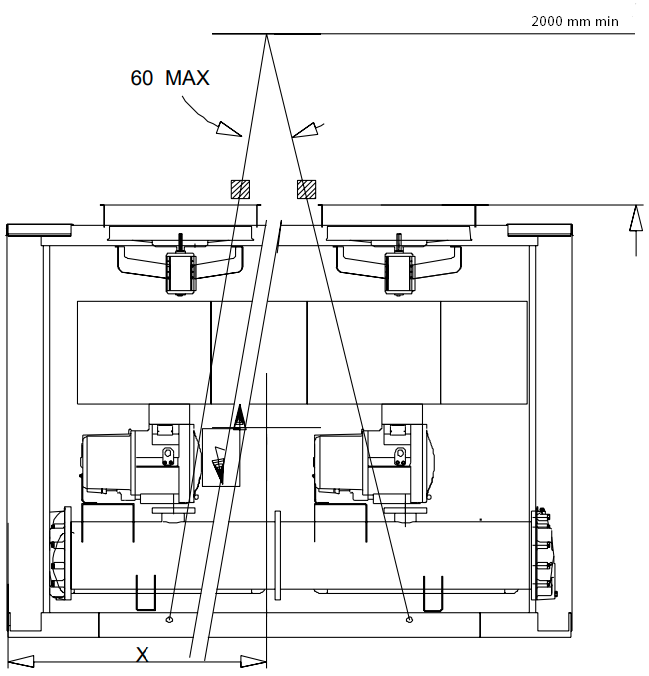
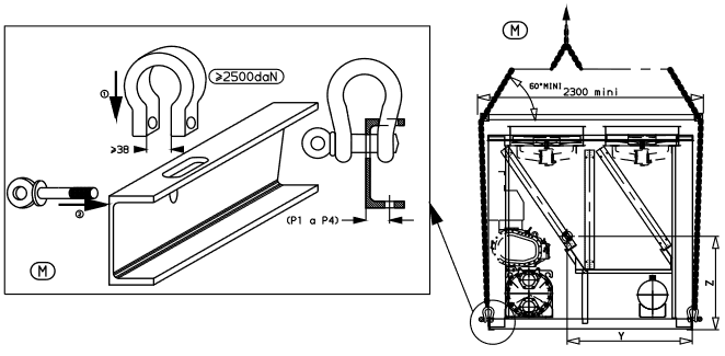
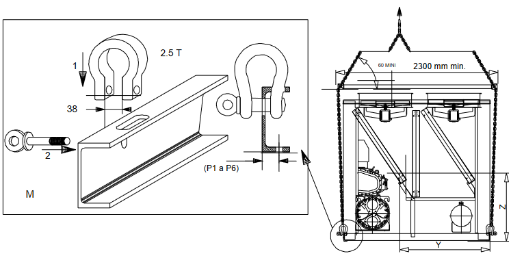
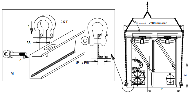
Jangan lepaskan skid, palet, atau kemasan pelindung sampai unit berada di posisi akhirnya. Pindahkan chiller menggunakan tabung atau rol, atau angkat, menggunakan sling dengan kapasitas yang benar.
(30HXC)
Hanya gunakan sling pada titik pengangkatan yang ditentukan yang ditandai pada unit, di bagian atas penukar panas cooler. Pemasangan dari bagian bawah penukar panas akan menyebabkan unit terangkat secara tidak aman. Cedera pribadi atau kerusakan pada unit dapat terjadi. Ikuti instruksi pemasangan yang diberikan pada gambar dimensi bersertifikat yang disertakan dengan unit.
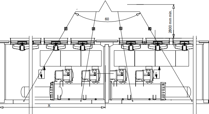
Selalu rujuk ke bab "Dimensi dan jarak bebas" untuk memastikan bahwa ada ruang yang cukup untuk semua koneksi dan operasi servis. Untuk koordinat pusat gravitasi, posisi lubang pemasangan unit, dan titik distribusi berat, lihat gambar dimensi bersertifikat yang disertakan dengan unit.
Kami merekomendasikan agar chiller ini dipasang di ruang bawah tanah atau di permukaan tanah. Jika akan dipasang di atas permukaan tanah, pertama-tama periksa apakah beban lantai yang diizinkan memadai dan apakah lantai cukup kuat dan rata. Jika perlu, perkuat dan ratakan lantai.
Dengan chiller di lokasi akhirnya, lepaskan skid, dan perangkat lain yang digunakan untuk membantu memindahkannya. Ratakan unit menggunakan waterpass, dan baut unit ke lantai atau alas. Pengoperasian unit ini dapat terganggu jika tidak rata dan tidak terpasang dengan aman pada dudukannya. Jika diperlukan, gunakan bantalan isolasi di bawah unit untuk membantu isolasi getaran.
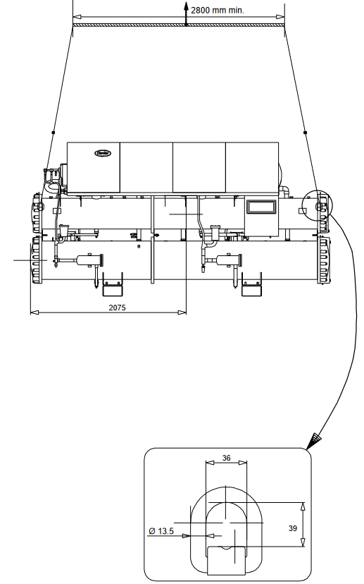
Diagram ini ditampilkan hanya untuk informasi. Lihat "gambar bersertifikat".

| X mm | Y mm | Z mm | |
| 30HXC080 30HXC090 30HXC100 |
1345 | 402 | 903 |
| 30HXC110 | 1368 | 397 | 935 |
| 30HXC120 30HXC130 30HXC140 30HXC155 |
1731 | 392 | 879 |
| 30HXC175 | 1703 | 386 | 947 |
| 30HXC190 | 1705 | 398 | 955 |


CATATAN
Ketika semua operasi pengangkatan dan pemosisian selesai, disarankan untuk memperbaiki semua permukaan tempat cat telah dihilangkan pada lug pengangkat.
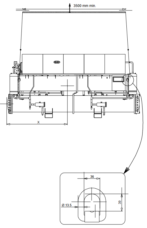
Diagram ini ditampilkan hanya untuk informasi. Lihat "gambar bersertifikat".




| X mm | Y mm | Z mm | |
| 30HXC310 | 2195 | 425 | 1085 |
| 30HXC345 | 2195 | 425 | 1085 |
| 30HXC375 | 2205 | 435 | 1025 |
CATATAN
Ketika semua operasi pengangkatan dan pemosisian selesai, disarankan untuk memperbaiki semua permukaan tempat cat telah dihilangkan pada lug pengangkat.
Diagram ini ditampilkan hanya untuk informasi. Lihat "gambar bersertifikat".



| X mm | Y mm | Z mm | PTkg | |
| 30GX082 | 1440 | 1460 | 900 | 3115 |
| 30GX092 | 1440 | 1460 | 900 | 3156 |
| 30GX102 | 1440 | 1460 | 900 | 3170 |
| 30GX112 | 1650 | 1460 | 900 | 3574 |
| 30GX122 | 1650 | 1460 | 900 | 3527 |
| 30GX132 | 1650 | 1460 | 900 | 3634 |
| 30GX152 | 2155 | 1430 | 900 | 3938 |
| 30GX162 | 2155 | 1430 | 900 | 3954 |



| X mm | Y mm | Z mm | PTkg | |
| 30GX182 | 3030 | 1370 | 875 | 4853 |
CATATAN
Ketika semua operasi pengangkatan dan pemosisian selesai, disarankan untuk memperbaiki semua permukaan tempat cat telah dihilangkan pada lug pengangkat
Diagram ini ditampilkan hanya untuk informasi. Lihat "gambar bersertifikat".



| X mm | Y mm | Z mm | PTkg | |
| 30GX207 | 2870 | 1440 | 890 | 5536 |
| 30GX227 | 2870 | 1440 | 890 | 5572 |
| 30GX247 | 3320 | 1430 | 927 | 6131 |
| 30GX267 | 3300 | 1420 | 886 | 6363 |



| X mm | Y mm | Z mm | PTkg | |
| 30GX298 | 3630 | 1420 | 890 | 7353 |
| 30GX328 | 4360 | 1455 | 920 | 7840 |
| 30GX358 | 4360 | 1445 | 930 | 8045 |
CATATAN
Ketika semua operasi pengangkatan dan pemosisian selesai, disarankan untuk memperbaiki semua permukaan tempat cat telah dihilangkan pada lug pengangkat.
Lihat gambar dimensi bersertifikat untuk ukuran dan posisi semua koneksi saluran masuk dan keluar air. Pipa air tidak boleh mengirimkan gaya radial atau aksial apa pun ke penukar panas atau getaran apa pun ke pipa atau bangunan.
Pasokan air harus dianalisis dan penyaringan, perawatan, perangkat kontrol, isolasi dan katup pembuangan serta sirkuit yang sesuai harus dibangun, sebagaimana diperlukan. Konsultasikan dengan spesialis pengolahan air atau literatur yang sesuai tentang subjek tersebut.
Sirkuit air harus dirancang untuk memiliki jumlah siku dan jalur pipa horizontal paling sedikit pada ketinggian yang berbeda. Pemeriksaan dasar berikut harus dilakukan (lihat juga ilustrasi sirkuit hidrolik tipikal di bawah ini).
Evaporator dan kondensor adalah tipe shell dan tube multi-tabung dengan kotak air yang dapat dilepas untuk memudahkan pembersihan tabung.
Sebelum membuat sambungan air, kencangkan baut di kedua kepala ke torsi yang lebih rendah yang ditunjukkan, ikuti metode yang dijelaskan. Kencangkan berpasangan dan urutan yang ditunjukkan sesuai dengan ukuran baut (lihat tabel) menggunakan nilai torsi di ujung bawah rentang yang diberikan.
Lepaskan flensa datar yang dipasok pabrik dari kotak air sebelum mengelas pipa ke flensa. Kegagalan melepas flensa dapat merusak sensor dan insulasi.
CATATAN
Kami merekomendasikan untuk menguras sistem dan memutuskan sambungan pipa untuk memastikan bahwa baut kepala tempat pipa terhubung dikencangkan dengan benar dan seragam.
Perlindungan evaporator dan kondensor berpendingin air
Jika chiller atau pipa air berada di area di mana suhu sekitar dapat turun di bawah 0°C, disarankan untuk menambahkan larutan antibeku untuk melindungi unit dan pipa air hingga suhu 8 K di bawah suhu terendah. Gunakan hanya larutan antibeku yang disetujui untuk tugas penukar panas. Jika sistem tidak dilindungi oleh larutan antibeku dan tidak akan digunakan selama kondisi cuaca beku, pengurasan cooler dan pipa luar ruangan wajib dilakukan. Kerusakan akibat pembekuan tidak tercakup dalam garansi.

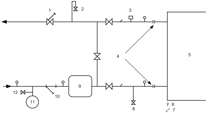
Legenda

Legenda
Standar EN 60204-1 adalah sarana yang baik untuk menanggapi persyaratan Arahan Mesin § 1.5.1. Rekomendasi normatif IEC 364, umumnya diakui memenuhi persyaratan peraturan instalasi.
Lampiran B standar EN 60204-1 dapat digunakan untuk menggambarkan karakteristik listrik di mana mesin beroperasi.
(1) Standar perlindungan yang diperlukan sehubungan dengan klasifikasi ini adalah IP21B (sesuai dengan dokumen referensi IEC 529). Semua 30HXC memiliki standar perlindungan IP23C dan oleh karena itu memenuhi persyaratan perlindungan ini.
Kompetensi personel: klasifikasi BA4(2) (personel yang memenuhi syarat sesuai dengan IEC 364).
(2) Standar perlindungan yang diperlukan sehubungan dengan klasifikasi ini adalah IP43BW (sesuai dengan dokumen referensi IEC 529). Semua 30GX memiliki standar perlindungan IP45CW dan oleh karena itu memenuhi persyaratan perlindungan ini.
CATATAN: Jika aspek tertentu dari instalasi memerlukan karakteristik selain yang tercantum di atas (atau karakteristik yang tidak disebutkan di sini) hubungi perwakilan Carrier Anda.
Catu daya harus sesuai dengan spesifikasi pada nameplate chiller. Tegangan catu daya harus berada dalam rentang yang ditentukan dalam tabel data listrik.
Untuk koneksi, lihat diagram pengkabelan.
Pengoperasian chiller dengan tegangan catu daya yang tidak tepat atau ketidakseimbangan fase yang berlebihan merupakan penyalahgunaan yang akan membatalkan garansi Carrier. Jika ketidakseimbangan fase melebihi 2% untuk tegangan, atau 10% untuk arus, segera hubungi pemasok listrik setempat dan pastikan bahwa chiller tidak dinyalakan sampai tindakan korektif telah diambil.
100 x deviasi maks. dari tegangan rata-rata
Tegangan rata-rata
Contoh:
Pada catu daya 400 V - 3 ph - 50 Hz, tegangan fase individual diukur sebagai:
AB = 406 V; BC = 399; AC = 394 V
| Tegangan rata-rata | = (406 + 399 + 394)/3 = 1199/3 |
| = 399.7 katakan 400 V |
Hitung deviasi maksimum dari rata-rata 400 V:
(AB) = 406 - 400 = 6
(BC) = 400 - 399 = 1
(CA) = 400 - 394 = 6

Deviasi maksimum dari rata-rata adalah 6 V. Persentase deviasi terbesar adalah:
100 x 6/400 = 1.5 %
Ini kurang dari 2% yang diizinkan dan oleh karena itu dapat diterima.
Ukuran kabel adalah tanggung jawab pemasang, dan tergantung pada karakteristik dan peraturan yang berlaku untuk setiap lokasi pemasangan. Berikut ini hanya untuk digunakan sebagai panduan, dan tidak membuat Carrier bertanggung jawab dengan cara apa pun. Setelah ukuran kabel selesai, dengan menggunakan gambar dimensi bersertifikat, pemasang harus memastikan koneksi yang mudah dan menentukan modifikasi apa pun yang diperlukan di lokasi.
Koneksi yang disediakan sebagai standar untuk kabel masuk daya yang dipasok lapangan ke sakelar pemutus/isolator umum dirancang untuk jumlah dan jenis kabel, yang tercantum dalam tabel di bawah ini.
Perhitungan didasarkan pada arus maksimum mesin (lihat tabel data listrik).
Untuk desain, metode pemasangan standar berikut digunakan, sesuai dengan IEC 364, tabel 52C:
Perhitungan didasarkan pada kabel berinsulasi PVC atau XLPE dengan inti tembaga atau aluminium. Suhu maksimum adalah 40°C untuk unit 30HX dan 46°C untuk unit 30GX.
Panjang kabel yang diberikan membatasi penurunan tegangan hingga < 5%.
| Unit (Unit) | Min. (mm2) by phase (Minimal (mm2) per fase) | Wire type (Jenis kabel) | L (m) | Max. (mm2) by phase (Maksimal (mm2) per fase) | Wire type (Jenis kabel) | L (m) |
| 30HX 080 | 1 x 35 | XLPE Cu | 140 | 1 x 120 | PVC Al | 260 |
| 30HX 090 | 1 x 50 | XLPE Cu | 160 | 1 x 120 | PVC Al | 260 |
| 30HX 100 | 1 x 50 | XLPE Cu | 160 | 1 x 95 | XLPE Al | 195 |
| 30HX 110 | 1 x 70 | XLPE Cu | 170 | 1 x 120 | XLPE Al | 205 |
| 30HX 120/130 | 1 x 70 | XLPE Cu | 170 | 1 x 150 | XLPE Al | 210 |
| 30HX 140 | 1 x 95 | XLPE Cu | 180 | 1 x 185 | XLPE Al | 220 |
| 30HX 155 | 1 x 95 | XLPE Cu | 180 | 1 x 240 | XLPE Al | 225 |
| 30HX 175 | 1 x 120 | XLPE Cu | 185 | 1 x 240 | XLPE Al | 225 |
| 30HX 190 | 1 x150 | XLPE Cu | 190 | 2 x 95 | XLPE Al | 195 |
| 30HX 200 ckt A | 1 x 70 | XLPE Cu | 170 | 2 x120 | PVC Al | 325 |
| 30HX 230 ckt A | 1 x 95 | XLPE Cu | 180 | 2 x 120 | PVC Al | 325 |
| 30HX 260 ckt A | 1 x 120 | XLPE Cu | 185 | 1 x 240 | XLPE Al | 225 |
| 30HX 285 ckt A | 1 x 150 | XLPE Cu | 190 | 2 x 150 | XLPE Al | 265 |
| 30HX 200 ckt B | 1 x 35 | XLPE Cu | 140 | 1 x 95 | PVC Al | 250 |
| 30HX 230 ckt B | 1 x 35 | XLPE Cu | 140 | 1 x 120 | PVC Al | 260 |
| 30HX 260 ckt B | 1 x 35 | XLPE Cu | 140 | 1 x 120 | PVC Al | 260 |
| 30HX 285 ckt B | 1 x 50 | XLPE Cu | 160 | 2 x 70 | PVC Al | 285 |
| 30HX 310 ckt A & B | 1 x 95 | XLPE Cu | 180 | 1 x 240 | XLPE Al | 225 |
| 30HX 345 ckt A & B | 1 x 120 | XLPE Cu | 185 | 1 x 240 | XLPE Al | 225 |
| 30HX 375 ckt A & B | 1 x 150 | XLPE Cu | 190 | 2 x 150 | XLPE Al | 265 |
| 30GX 082 | 1 x 95 | XLPE Cu | 190 | 2 x 185 | PVC Al | 420 |
| 30GX 092 | 1 x 120 | XLPE Cu | 195 | 2 x 185 | PVC Al | 420 |
| 30GX 102 | 1 x 120 | XLPE Cu | 195 | 2 x 240 | PVC Al | 450 |
| 30GX 112 | 1 x 150 | XLPE Cu | 200 | 2 x 150 | XLPE Al | 300 |
| 30GX 122 | 1 x 185 | XLPE Cu | 205 | 2 x 185 | XLPE Al | 315 |
| 30GX 132 | 1 x 185 | XLPE Cu | 205 | 2 x 240 | XLPE Al | 330 |
| 30GX 152 | 1 x 240 | XLPE Cu | 205 | 3x 185 | XLPE CU | 430 |
| 30GX 162 | 2 x 95 | XLPE Cu | 190 | 3x 240 | XLPE CU | 440 |
| 30GX 182 | 2 x 120 | XLPE Cu | 200 | 3x 240 | XLPE CU | 440 |
| 30GX 207 ckt A | 1 x 185 | XLPE Cu | 205 | 3x 185 | XLPE Al | 445 |
| 30GX 227 ckt A | 1 x 240 | XLPE Cu | 205 | 3x 240 | XLPE Al | 470 |
| 30GX 247/298/328 ckt A | 2 x 120 | XLPE Cu | 225 | 3x 185 | XLPE CU | 490 |
| 30HX 267/358 ckt A | 2 x 150 | XLPE Cu | 230 | 3x 240 | XLPE CU | 505 |
| 30GX 207/227/247 ckt B | 1 x 95 | XLPE Cu | 190 | 2 x 240 | PVC Al | 560 |
| 30HX 267 ckt B | 1 x 120 | XLPE Cu | 200 | 2 x 185 | XLPE AL | 395 |
| 30GX 298 ckt B | 1 x 185 | XLPE Cu | 205 | 3x 240 | XLPE AL | 470 |
| 30GX 328 ckt B | 2 x 120 | XLPE Cu | 225 | 3x 185 | XLPE CU | 490 |
| 30GX 358 ckt B | 2 x 150 | XLPE Cu | 230 | 3x 240 | XLPE CU | 505 |
Sebelum menghubungkan kabel daya utama (L1 - L2 - L3) pada blok terminal, sangat penting untuk memeriksa urutan yang benar dari 3 fase sebelum melanjutkan ke koneksi pada blok terminal atau sakelar pemutus/isolator utama.
Lihat Controls IOM dan diagram pengkabelan bersertifikat yang disertakan bersama unit untuk pengkabelan kontrol lapangan dari fitur-fitur berikut:
Bagian kabel yang direkomendasikan untuk unit dengan suhu kondensasi tinggi (400 V - 3 ph - 50 Hz)
| Unit, opsi 150 + 150A 400 V - 3 ph - 50 Hz | Min. (mm2) per fase | Jenis kabel | L (m) | Maks. (mm2) per fase | Jenis kabel | L (m) |
| 30HXC 080 OPT. 150 | 1 x 50 | XLPE Cu | 150 | 2 x 70 | PVC Al | 230 |
| 30HXC 090 OPT. 150 | 1 x 70 | XLPE Cu | 160 | 2 x 95 | PVC Al | 260 |
| 30HXC 100 OPT. 150 | 1 x 70 | XLPE Cu | 160 | 2 x 95 | PVC Al | 250 |
| 30HXC 110 OPT. 150 | 1 x 95 | XLPE Cu | 170 | 2 x 120 | PVC Al | 265 |
| 30HXC 120 OPT. 150 | 1 x 120 | XLPE Cu | 180 | 2 x 120 | XLPE Al | 205 |
| 30HXC 130 OPT. 150 | 1 x 120 | XLPE Cu | 160 | 2 x 120 | XLPE Al | 210 |
| 30HXC 140 OPT. 150 | 1 x 150 | XLPE Cu | 175 | 2 x 120 | XLPE Al | 205 |
| 30HXC 155 OPT. 150 | 1 x 185 | XLPE Cu | 185 | 2 x 150 | XLPE Al | 215 |
| 30HXC 175 OPT. 150 | 1 x 240 | XLPE Cu | 185 | 2 x 150 | XLPE Al | 210 |
| 30HXC 190 OPT. 150 | 2 x 95 | XLPE Cu | 175 | 2 x 240 | XLPE Al | 220 |
| 30HXC 200 OPT. 150 circ. A | 1 x 120 | XLPE Cu | 170 | 2 x 150 | XLPE Al | 270 |
| 30HXC 230 OPT. 150 circ. A | 1 x 150 | XLPE Cu | 180 | 2 x 185 | XLPE Al | 270 |
| 30HXC 260 OPT. 150 circ. A | 1 x 185 | XLPE Cu | 180 | 2 x 240 | XLPE Al | 295 |
| 30HXC 285 OPT. 150 circ. A | 1 x 240 | XLPE Cu | 170 | 2 x 185 | XLPE Cu | 265 |
| 30HXC 310 OPT. 150 circ. A | 1 x 185 | XLPE Cu | 180 | 2 x 240 | XLPE Al | 300 |
| 30HXC 345 OPT. 150 circ. A | 1 x 185 | XLPE Cu | 170 | 2 x 240 | XLPE Al | 280 |
| 30HXC 375 OPT. 150 circ. A | 1 x 240 | XLPE Cu | 170 | 2 x 185 | XLPE Cu | 265 |
| 30HXC 200 OPT. 150 circ. B | 1 x 35 | XLPE Cu | 125 | 2 x 95 | PVC Al | 320 |
| 30HXC 230 OPT. 150 circ. B | 1 x 50 | XLPE Cu | 140 | 2 x 95 | PVC Al | 310 |
| 30HXC 260 OPT. 150 circ. B | 1 x 50 | XLPE Cu | 140 | 2 x 95 | PVC Al | 310 |
| 30HXC 285 OPT. 150 circ. B | 1 x 70 | XLPE Cu | 160 | 2 x 120 | PVC Al | 325 |
| 30HXC 310 OPT. 150 circ. B | 1 x 150 | XLPE Cu | 180 | 2 x 185 | XLPE Al | 275 |
| 30HXC 345 OPT. 150 circ. B | 1 x 185 | XLPE Cu | 185 | 2 x 240 | XLPE Al | 305 |
| 30HXC 375 OPT. 150 circ. B | 1 x 185 | XLPE Cu | 160 | 2 x 240 | XLPE Al | 280 |
Filter Oli
Kompresor ulir 06N memiliki filter oli yang terintegrasi dalam rumah kompresor. Filter ini dapat diganti di lapangan.
Refrigeran
Kompresor ulir 06N dirancang khusus untuk digunakan hanya dalam sistem R134 a.
Pelumas
Kompresor ulir 06N disetujui untuk digunakan dengan pelumas berikut.
SPESIFIKASI MATERIAL CARRIER PP 47-32
Solenoid Valve Pasokan Oli
Solenoid valve pasokan oli adalah standar pada kompresor untuk mengisolasi kompresor dari aliran oli saat kompresor tidak beroperasi.
Solenoid oli dapat diganti di lapangan.
Saringan Hisap & Ekonomiser
Untuk meningkatkan keandalan kompresor, saringan telah dimasukkan sebagai fitur standar ke dalam saluran masuk hisap dan ekonomiser kompresor.
Sistem Pembongkaran
Kompresor ulir 06N memiliki sistem pembongkaran yang merupakan standar pada semua kompresor. Sistem pembongkaran ini terdiri dari dua langkah pembongkaran yang mengurangi kapasitas kompresor dengan mengarahkan kembali gas yang sebagian terkompresi kembali ke hisap.
Chiller 30HXC dan 30GX menggunakan evaporator banjir. Air bersirkulasi di dalam tabung dan refrigeran berada di luar di dalam shell. Satu bejana digunakan untuk melayani kedua sirkuit refrigeran. Ada lembaran tabung tengah yang memisahkan kedua sirkuit refrigeran. Tabung berdiameter 3/4" tembaga dengan permukaan yang ditingkatkan di dalam dan di luar. Hanya ada satu sirkuit air, dan tergantung pada ukuran chiller, mungkin ada dua atau tiga lintasan air. Sensor level cairan pendingin memberikan kontrol aliran yang optimal.
Di bagian atas pendingin terdapat dua pipa hisap, satu di setiap sirkuit. Masing-masing memiliki flensa yang dilas ke sana, dan kompresor dipasang pada flensa.
Chiller 30HXC menggunakan bejana yang merupakan kombinasi kondensor dan pemisah oli. Itu dipasang di bawah pendingin. Gas buang meninggalkan kompresor dan mengalir melalui muffler eksternal ke pemisah oli, yang merupakan bagian atas bejana. Ia memasuki bagian atas pemisah di mana oli dihilangkan, dan kemudian mengalir ke bagian bawah bejana, di mana gas dikondensasi dan didinginkan lebih lanjut. Satu bejana digunakan untuk melayani kedua sirkuit refrigeran. Ada lembaran tabung tengah yang memisahkan kedua sirkuit refrigeran. Tabung berdiameter 3/4" atau 1" tembaga dengan permukaan yang ditingkatkan di dalam dan di luar. Hanya ada satu sirkuit air dengan dua lintasan air.
Pada unit berpendingin udara, pemisah oli adalah bejana tekan yang dipasang di bawah koil kondensor vertikal luar. Gas buang masuk di bagian atas pemisah di mana sebagian besar oli terpisah dan mengalir ke bagian bawah. Gas kemudian mengalir melalui saringan kawat di mana sisa oli dipisahkan dan mengalir ke bagian bawah.
Mikroprosesor mengontrol EXD melalui modul kontrol EXV. EXD akan menjadi EXV atau Ekonomiser. Di dalam kedua perangkat ini terdapat motor stepper aktuator linier. Refrigeran cair bertekanan tinggi memasuki katup melalui bagian bawah. Serangkaian slot terkalibrasi terletak di dalam rakitan lubang. Saat refrigeran melewati lubang, tekanan turun dan refrigeran berubah menjadi kondisi 2 fase (cair dan uap). Untuk mengontrol aliran refrigeran untuk kondisi operasi yang berbeda, selongsong bergerak naik dan turun di atas lubang, sehingga mengubah area aliran efektif perangkat ekspansi. Selongsong digerakkan oleh motor stepper linier. Motor stepper bergerak dalam peningkatan dan dikendalikan langsung oleh modul prosesor. Saat motor stepper berputar, gerakan ditransfer menjadi gerakan linier oleh sekrup utama. Melalui motor stepper dan sekrup utama, 1500 langkah gerakan diskrit diperoleh. Jumlah langkah yang besar dan langkah yang panjang menghasilkan kontrol aliran refrigeran yang sangat akurat. Setiap sirkuit memiliki sensor level cairan yang dipasang secara vertikal ke bagian atas shell pendingin. Sensor level terdiri dari pemanas resistansi listrik kecil dan tiga termistor yang dihubungkan secara seri yang diposisikan pada ketinggian yang berbeda di dalam badan sumur. Pemanas dirancang sedemikian rupa sehingga termistor akan membaca sekitar 93,3°C di udara kering. Saat level refrigeran naik di pendingin, resistansi termistor terdekat akan sangat berubah. Perbedaan resistansi yang besar ini memungkinkan kontrol untuk secara akurat mempertahankan level yang ditentukan. Sensor level memantau level cairan refrigeran di pendingin dan mengirimkan informasi ini ke PSIO-1. Pada saat start-up awal, posisi EXV berada pada nol. Setelah itu, mikroprosesor melacak posisi katup secara akurat untuk menggunakan informasi ini sebagai input untuk fungsi kontrol lainnya. Ia melakukan ini dengan menginisialisasi EXV saat start-up. Prosesor mengirimkan pulsa penutup yang cukup ke katup untuk memindahkannya dari terbuka penuh ke tertutup penuh, kemudian mengatur ulang penghitung posisi ke nol. Mulai saat ini, hingga inisialisasi, prosesor menghitung jumlah total langkah terbuka dan tertutup yang telah dikirim ke setiap katup.
Ekonomiser dipasang pada 30HXC 190, 285 dan 375 dan 30GX 182, 267 dan 358.
Ekonomiser meningkatkan kapasitas dan efisiensi chiller serta menyediakan pendinginan motor kompresor. Di dalam ekonomiser terdapat motor stepper EXV linier dan katup pelampung. EXV dikendalikan oleh PIC untuk mempertahankan level cairan yang diinginkan di pendingin (seperti yang dilakukan untuk chiller NonEconomized). Katup pelampung mempertahankan level cairan di bagian bawah ekonomiser. Refrigeran cair disuplai dari kondensor ke bagian bawah ekonomiser. Saat refrigeran melewati EXV, tekanannya dikurangi ke tingkat menengah sekitar 500 kPa. Tekanan ini dipertahankan di dalam shell ekonomiser. Selanjutnya, refrigeran mengalir melalui katup pelampung, tekanannya selanjutnya dikurangi sedikit di atas tekanan di pendingin. Peningkatan kinerja direalisasikan ketika sebagian refrigeran yang melewati EXV berubah menjadi uap, selanjutnya mendinginkan cairan yang dipertahankan di bagian bawah ekonomiser. Peningkatan pendinginan ini memberikan kapasitas tambahan. Karena tidak ada daya tambahan yang diperlukan untuk mencapai ini, efisiensi mesin juga meningkat. Uap yang berubah menjadi uap akan naik ke ekonomiser di mana ia melewati kompresor dan digunakan sesuai kebutuhan untuk menyediakan pendinginan motor. Setelah melewati belitan motor, refrigeran masuk kembali ke siklus pada port menengah dalam siklus kompresi.
Chiller ulir 30GX/HXC menggunakan satu pompa oli pra-pelumas yang dipasang secara eksternal per sirkuit. Pompa ini dioperasikan sebagai bagian dari urutan start-up.
PERHATIAN:
Suhu operasi koil dapat mencapai 80°C. Dalam kondisi sementara tertentu (terutama selama start-up pada suhu luar rendah atau suhu loop kondensor rendah) pompa oli dapat diaktifkan kembali.
Pada unit 30GX, pompa dipasang ke rel dasar di sisi pemisah oli unit. Pompa dipasang ke braket pada kondensor unit 30HXC. Ketika suatu sirkuit diperlukan untuk memulai, kontrol akan memberi energi pada pompa oli terlebih dahulu sehingga kompresor memulai dengan pelumasan yang benar. Jika pompa telah membangun tekanan oli yang cukup, kompresor akan diizinkan untuk memulai. Setelah kompresor dimulai, pompa oli akan dimatikan. Jika pompa tidak dapat membangun tekanan oli yang cukup, kontrol akan menghasilkan alarm.
Suhu belitan motor kompresor dikendalikan ke titik setel optimal. Kontrol mencapai ini dengan memutar solenoid valve pendingin motor untuk memungkinkan refrigeran cair mengalir melintasi belitan motor sesuai kebutuhan. Pada unit yang dilengkapi dengan ekonomiser, gas flash meninggalkan bagian atas ekonomiser dan terus mengalir ke belitan motor. Semua refrigeran yang digunakan untuk pendinginan motor masuk kembali ke rotor melalui port yang terletak di tengah siklus kompresi dan dikompresi ke tekanan buang.
Unit menggunakan termistor (termasuk dua termistor suhu motor) dan dua termistor level dan transduser tekanan untuk memantau dan mengontrol operasi sistem.
Cairan keluar evaporator
Suhu ini digunakan untuk mengukur suhu cairan keluar evaporator (air atau air garam). Suhu digunakan untuk kontrol suhu cairan keluar dan untuk melindungi terhadap pembekuan pendingin. Itu terletak di nozzle cairan evaporator.
Cairan masuk evaporator
Sensor ini digunakan untuk mengukur suhu cairan masuk evaporator. Itu terletak di nozzle evaporator masuk. Ini digunakan untuk memberikan kompensasi suhu otomatis untuk kontrol suhu cairan keluar dengan kompensasi cairan masuk.
Suhu gas buang (sirkuit A & B)
Sensor ini digunakan untuk mengukur suhu gas buang dan mengontrol superheat suhu buang. Itu terletak di pipa buang setiap sirkuit (30HXC) atau di bagian atas pemisah oli (30GX).
PERHATIAN: Tidak ada selongsong termostat.
Suhu motor
Modul Perlindungan Kompresor (Compressor Protection Module/CPM) memantau suhu motor. Terminal termistor terletak di kotak sambungan kompresor.
Level cairan evaporator (sirkuit A & B)
Termistor level cairan evaporator digunakan untuk memberikan kontrol aliran yang optimal di evaporator. Itu dipasang di bagian atas evaporator.
Cairan masuk kondensor (30HXC)
Sensor ini digunakan untuk mengukur suhu cairan yang memasuki kondensor berpendingin air. Itu terletak di saluran cairan umum yang memasuki kondensor (dipasang di lapangan). Pada Mesin Panas, itu digunakan oleh rutinitas kontrol kapasitas. Pada kondensor berpendingin air, itu hanya digunakan untuk memantau suhu cairan kondensor.
Cairan keluar kondensor (opsional pada 30HXC)
Sensor ini digunakan untuk mengukur suhu cairan yang meninggalkan kondensor berpendingin air. Itu terletak di saluran cairan umum yang meninggalkan kondensor (dipasang di lapangan). Pada Mesin Panas, itu digunakan oleh rutinitas kontrol kapasitas. Pada kondensor berpendingin air, itu hanya digunakan untuk memantau suhu cairan kondensor.

GX082/102

GX112/132

GX152/162

GX182

GX207/227

GX247/267

GX298

GX328/358
Unit-unit ini dirancang untuk digunakan hanya dengan R-134a.
JANGAN GUNAKAN REFRIGERAN LAIN apa pun pada unit-unit ini.
Saat menambah atau mengurangi muatan, alirkan air melalui kondensor (HX) dan pendingin setiap saat untuk mencegah pembekuan. Kerusakan akibat pembekuan dianggap sebagai penyalahgunaan dan dapat membatalkan garansi Carrier.
JANGAN MENGISI SISTEM TERLALU BANYAK. Pengisian berlebihan menghasilkan tekanan pembuangan yang lebih tinggi dengan konsumsi cairan pendingin yang lebih tinggi, kemungkinan kerusakan kompresor, dan konsumsi daya yang lebih tinggi.
CATATAN
Untuk memeriksa muatan refrigeran rendah pada 30HXC, beberapa faktor harus dipertimbangkan. Kaca penglihatan saluran cairan yang berkedip tidak selalu merupakan indikasi muatan yang tidak memadai. Ada banyak kondisi sistem di mana kaca penglihatan yang berkedip terjadi dalam operasi normal. Perangkat pengukur 30HXC dirancang untuk bekerja dengan baik dalam kondisi ini.
CATATAN
Kaca penglihatan saluran cairan yang berkedip pada kondisi operasi selain yang disebutkan di atas tidak selalu merupakan indikasi muatan refrigeran rendah.
Suhu ini digunakan untuk mengukur suhu ruangan atau suhu udara luar ruangan masing-masing untuk kontrol reset berdasarkan opsi reset Suhu Udara Luar atau Suhu Ruangan.
Tekanan pembuangan (sirkuit A & B)
Input ini digunakan untuk mengukur tekanan sisi tinggi dari setiap sirkuit unit.
Ini digunakan untuk memberikan tekanan untuk menggantikan pengukur tekanan pembuangan dan untuk mengontrol tekanan head.
Tekanan hisap (sirkuit A & B)
Input ini digunakan untuk mengukur tekanan sisi rendah unit. Ini digunakan untuk memberikan tekanan untuk menggantikan pengukur tekanan hisap.
Tekanan oli (setiap kompresor)
Input ini digunakan untuk mengukur tekanan oli setiap kompresor unit. Ini terletak di port tekanan oli setiap kompresor.
Tekanan ekonomiser (sirkuit A & B)
Input ini digunakan untuk memantau perbedaan tekanan oli yang disuplai ke kompresor.
JANGAN menambahkan oli di lokasi lain mana pun karena operasi unit yang tidak tepat dapat terjadi.
Saat mentransfer muatan refrigeran ke unit penyimpanan, oli dapat terbawa saat unit tidak beroperasi. Gunakan kembali terlebih dahulu jumlah refrigeran yang ditransfer. Setelah menguras oli, hanya isi ulang jumlah yang dikuras (muatan oli berlebih dapat mengganggu operasi unit yang benar).
Filter oli integral pada kompresor ulir 06N ditentukan untuk memberikan tingkat filtrasi tinggi (3 µ) yang diperlukan untuk umur bantalan yang panjang. Karena kebersihan sistem sangat penting untuk operasi sistem yang andal, ada juga pra-filter (7 µ) di saluran oli di outlet pemisah oli.
Nomor bagian elemen filter oli integral pengganti adalah:
Nomor bagian Carrier (termasuk filter dan O-ring): 06NA 660016S
Filter harus diperiksa setelah 500 jam operasi pertama, dan setiap 2000 jam berikutnya. Filter harus diganti setiap saat ketika perbedaan tekanan di seluruh filter melebihi 2,1 bar.
Penurunan tekanan di seluruh filter dapat ditentukan dengan mengukur tekanan di port servis filter dan port tekanan oli. Perbedaan dalam kedua tekanan ini akan menjadi penurunan tekanan di seluruh filter, katup periksa, dan katup solenoida. Penurunan tekanan di seluruh katup periksa dan katup solenoida kira-kira 0,4 bar, yang harus dikurangkan dari dua pengukuran tekanan oli untuk memberikan penurunan tekanan filter oli. Penurunan tekanan filter oli harus diperiksa setelah setiap kesempatan kompresor dimatikan karena pengaman tekanan oli rendah.
Rotasi kompresor yang benar adalah salah satu pertimbangan aplikasi yang paling penting. Rotasi terbalik, bahkan untuk durasi yang sangat singkat, merusak kompresor.
Skema perlindungan rotasi terbalik harus mampu menentukan arah rotasi dan menghentikan kompresor dalam 300 milidetik. Rotasi terbalik kemungkinan besar terjadi setiap kali kabel ke terminal kompresor terganggu.
Untuk meminimalkan kesempatan untuk rotasi terbalik, prosedur berikut harus diterapkan. Sambungkan kembali kabel daya ke pin terminal kompresor seperti yang awalnya dikabelkan.
Untuk penggantian kompresor, sakelar tekanan rendah disertakan dengan kompresor. Sakelar tekanan rendah ini harus dipasang sementara sebagai pengaman keras pada bagian tekanan tinggi kompresor. Tujuan dari sakelar ini adalah untuk melindungi kompresor terhadap kesalahan pengkabelan apa pun pada pin terminal kompresor. Kontak listrik sakelar akan dikabelkan secara seri dengan sakelar tekanan tinggi. Sakelar akan tetap di tempat sampai kompresor telah dihidupkan dan arah rotasi telah diverifikasi; pada titik ini, sakelar akan dilepas.
Sakelar yang telah dipilih untuk mendeteksi rotasi terbalik adalah nomor bagian Carrier HK01CB001. Ini tersedia sebagai bagian dari "Paket instalasi kompresor" (bagian No. 06NA 660 013). Sakelar ini membuka kontak ketika tekanan turun di bawah 50 mm vakum. Sakelar ini adalah tipe reset manual yang dapat direset setelah tekanan sekali lagi naik di atas 70 kPa. Sangat penting bahwa sakelar tersebut adalah tipe reset manual untuk mencegah kompresor dari siklus pendek dalam arah terbalik.
Ikuti langkah-langkah di bawah ini untuk mendiagnosis dan memperbaiki masalah EXD/Ekonomiser.
Pada unit 30HXC/GX dengan ekonomiser, verifikasi bahwa katup untuk tabung bubbler (bagian bawah Ekonomiser) terbuka. Periksa operasi motor EXD terlebih dahulu (lihat prosedur di Kontrol IOM). Anda seharusnya dapat merasakan aktuator bergerak dengan meletakkan tangan Anda di badan EXD atau ekonomiser (aktuator terletak sekitar setengah hingga dua pertiga dari bagian bawah cangkang ekonomiser). Anda harus merasakan ketukan keras yang berasal dari aktuator ketika mencapai bagian atas langkahnya (dapat didengar jika lingkungan relatif tenang). Aktuator harus mengetuk ketika mencapai bagian bawah langkahnya. Jika diyakini bahwa katup tidak berfungsi dengan baik, hubungi departemen layanan Carrier Anda untuk pemeriksaan lebih lanjut tentang:


Persetujuan Sistem Manajemen Lingkungan
Nomor Pesanan: 13173-76, 03 1999 - Menggantikan Nomor: 13173-76, Maret 1998
Pabrikan berhak mengubah spesifikasi produk apa pun tanpa pemberitahuan.
Pabrikan: Carrier s.a., Montluel, Prancis.
Dicetak di Belanda di atas kertas bebas klorin.
