
30HXC және 30GX қондырғысын алғашқы іске қосудан бұрын, іске қосуға, пайдалануға және техникалық қызмет көрсетуге қатысатындар осы нұсқаулықпен және басқа да қажетті жұмыс деректерімен мұқият танысуы керек. Бұл кітап іске қосу процедураларын орындамас бұрын басқару жүйесімен танысу үшін жалпы шолуды ұсынады. Осы нұсқаулықтағы процедуралар машинаны дұрыс іске қосу және пайдалану үшін қажетті ретпен орналастырылған.
30HXC және 30GX сұйық салқындатқыштары конструкциялық сипаттамалар шегінде жұмыс істегенде қауіпсіз және сенімді қызмет көрсетуді қамтамасыз етуге арналған. Бұл жабдықты пайдалану кезінде жабдық пен мүлікке зақым келтірмеу немесе персоналдың жарақат алуын болдырмау үшін дұрыс шешім қабылдаңыз және қауіпсіздік шараларын сақтаңыз.
Машина нұсқаулығында, сондай-ақ осы нұсқауда көрсетілген процедуралар мен қауіпсіздік шараларын түсініп, орындаңыз.
Салқындатқыш заттардың рельефтік клапандарын ғимарат ішінде ЖЕЛДЕТПЕҢІЗ. Рельефтік клапаннан шығатын жер сыртқа шығарылуы керек. Жабық кеңістіктегі салқындатқыш заттың жиналуы оттегін ығыстырып, тұншығуға немесе жарылысқа әкелуі мүмкін.
Әсіресе жабық және төмен төбелі кеңістіктер үшін жеткілікті желдетуді ҚАМТАМАСЫЗ ЕТІҢІЗ. Будың жоғары концентрациясын жұту зиянды және жүрек жұмысының бұзылуына, ес-түссіздікке немесе өлімге әкелуі мүмкін. Бу ауадан ауыр және тыныс алу үшін қол жетімді оттегінің мөлшерін азайтады. Өнім көзді және теріні тітіркендіреді. Ыдырау өнімдері қауіпті.
Желілерді тазарту немесе машинаны кез келген мақсатта қысымдау үшін ОТТЕГІНІ ПАЙДАЛАНБАҢЫЗ. Оттегі газы маймен, консистентті маймен және басқа да жалпы заттармен қатты әрекеттеседі.
Көрсетілген сынақ қысымдарынан ЕШҚАШАН АСЫРМАҢЫЗ, нұсқаулық әдебиетін және жабдық тақтасындағы конструкциялық қысымдарды тексеру арқылы рұқсат етілген сынақ қысымын ТЕКСЕРІҢІЗ.
Ағып кетуді тексеру үшін АУАНЫ ПАЙДАЛАНБАҢЫЗ. Тек салқындатқыш затты немесе құрғақ азотты пайдаланыңыз.
Кез келген қауіпсіздік құрылғысын ӨШІРМЕҢІЗ.
Кез келген машинаны іске қосудан бұрын барлық қысымды басатын құрылғылардың дұрыс орнатылғанына КӨЗ ЖЕТКІЗІҢІЗ.
Салқындатқыш заттың барлық желісінен немесе ыдысынан барлық салқындатқыш зат (сұйық және бу) шығарылмайынша, кез келген салқындатқыш желісін немесе ыдысын ДӘНЕКЕРЛЕМЕҢІЗ НЕМЕСЕ ЖАЛЫНМЕН КЕСПЕҢІЗ. Бу іздерін құрғақ ауа азотымен ығыстыру керек, ал жұмыс аймағы жақсы желдетілуі керек. Ашық жалынмен жанасқан салқындатқыш зат улы газдарды шығарады.
Білікті электрик болмасаңыз, қуаттандырылған жабдықта ЖҰМЫС ЖАСАМАҢЫЗ.
БАРЛЫҚ ҚУАТ ӨШІРІЛГЕНІНЕ және қалдық кернеу конденсаторлардан немесе қатты күйдегі компоненттерден ағып кетуі мүмкін екеніне сенімді болмайынша, басқару панельдерін, ажыратқыштарды, релелерді және т.б. қоса алғанда, электрлік компоненттерде ЖҰМЫС ЖАСАМАҢЫЗ.
Техникалық қызмет көрсету кезінде электр тізбектерін АШЫҚ КҮЙІНДЕ БЕКІТІП, БЕЛГІЛЕҢІЗ. ЕГЕР ЖҰМЫС ҮЗІЛСЕ, жұмысты қайта бастамас бұрын барлық тізбектердің қуатсыздандырылғанын тексеріңіз.
Салқындатқыш затты СИФОНДАМАҢЫЗ.
Теріге сұйық салқындатқыш заттың ТӨГІЛУІНЕН немесе оның көздерге түсуінен САҚ БОЛЫҢЫЗ. ҚАУІПСІЗДІК КӨЗІЛДІРІГІН ПАЙДАЛАНЫҢЫЗ. Теріге төгілген кез келген затты сабынмен және сумен жуыңыз. Егер сұйық салқындатқыш зат көздерге түссе,
ДЕРЕУ КӨЗДЕРДІ сумен ШАЙЫҢЫЗ және дәрігерге қаралыңыз.
Салқындатқыш контейнеріне ЕШҚАШАН ашық жалынды немесе тірі буды ҚОЛДАНБАҢЫЗ. Қауіпті шамадан тыс қысым пайда болуы мүмкін. Егер салқындатқышты қыздыру қажет болса, тек жылы суды пайдаланыңыз.
Бір реттік (қайтарылмайтын) баллондарды ҚАЙТА ПАЙДАЛАНБАҢЫЗ немесе оларды қайта толтыруға тырыспаңыз. Бұл ҚАУІПТІ ЖӘНЕ ЗАҢСЫЗ. Баллондар босатылған кезде қалған газ қысымын эвакуациялаңыз, жағаны босатыңыз және клапан сабағын бұрап алыңыз және тастаңыз. ӨРТЕМЕҢІЗ.
Машинаға салқындатқыш затты қоспас бұрын САЛҚЫНДАТҚЫШ ЗАТТЫҢ ТҮРІН ТЕКСЕРІҢІЗ. Дұрыс емес салқындатқыш затты енгізу осы машинаның зақымдалуына немесе дұрыс жұмыс істемеуіне әкелуі мүмкін.
Машина қысымда тұрғанда немесе машина жұмыс істеп тұрғанда фитингтерді, компоненттерді және т.б. АЛЫП ТАСТАУҒА ТЫРЫСПАҢЫЗ. Салқындатқыш қосылымын ажыратпас бұрын қысымның 0 кПа екеніне көз жеткізіңіз.
ЖЫЛЫНА КЕМ ДЕГЕНДЕ БІР РЕТ барлық рельефтік құрылғыларды МҰҚИЯТ ТЕКСЕРІҢІЗ. Егер машина коррозиялық ортада жұмыс істесе, құрылғыларды жиірек аралықтармен тексеріңіз.
Клапан корпусының немесе механизмінің ішінде коррозия немесе бөгде заттың (тот, кір, қақ және т.б.) жиналуы табылған кезде кез келген рельефтік құрылғыны ЖӨНДЕУГЕ НЕМЕСЕ ҚАЛПЫНА КЕЛТІРУГЕ ТЫРЫСПАҢЫЗ. Құрылғыны ауыстырыңыз.
Рельефтік құрылғыларды тізбектей немесе кері орнатпаңыз.
Салқындатқыш желілеріне АЯҚ БАСПАҢЫЗ. Үзілген желілер шамадан тыс қозғалып, салқындатқыш затты шығарып, жарақатқа әкелуі мүмкін.
Машинаның үстіне ӨРМЕЛЕП ШЫҚПАҢЫЗ. Платформаны немесе сахнаны пайдаланыңыз.
Ауыр компоненттерді көтеру немесе жылжыту үшін МЕХАНИКАЛЫҚ ЖАБДЫҚТЫ (кран, көтергіш және т.б.) ПАЙДАЛАНЫҢЫЗ. Компоненттер жеңіл болса да, сырғып кету немесе тепе-теңдікті жоғалту қаупі болған кезде механикалық жабдықты пайдаланыңыз.
Белгілі бір автоматты іске қосу құрылғылары МҰНАРА ЖЕЛДЕТКІШІН НЕМЕСЕ СОРҒЫЛАРДЫ ҚОСУЫ МҮМКІН екенін ЕСКЕРІҢІЗ. Мұнара желдеткіштерінің немесе сорғылардың алдындағы ажыратқышты ашыңыз.
Тек түпнұсқа жабдықтың кодтық талаптарына сәйкес келетін жөндеу немесе ауыстыру бөлшектерін ғана ПАЙДАЛАНЫҢЫЗ.
Білікті органның рұқсатынсыз өнеркәсіптік тұздықтар бар су қораптарын ЖЕЛДЕТПЕҢІЗ НЕМЕСЕ СУЫН АҒЫЗБАҢЫЗ.
Су қорабы толығымен құрғатылмайынша, су қорабының болттарын БОСАТПАҢЫЗ.
Гайканың оң жіппен ілінісуін тексермейінше, тығыздағыш безінің гайкасын БОСАТПАҢЫЗ.
Барлық клапандарды, фитингтерді және құбырларды коррозия, тот, ағып кету немесе зақымдану үшін ПЕРИОДТЫ ТҮРДЕ ТЕКСЕРІП ТҰРЫҢЫЗ.
Конденсаттың немесе жаңбыр суының жиналуын болдырмау үшін әрбір қысымды басатын құрылғының жанындағы желдету желісінде ДРЕНАЖДЫҚ қосылымды ҚАМТАМАСЫЗ ЕТІҢІЗ.
30HXC080
30HXC090
30HXC100
30HXC110

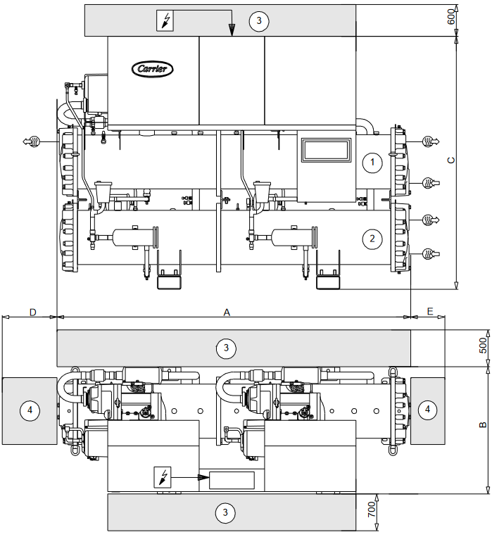
Су кіретін жер
Су шығатын жер
Қуат көзі
кг: жалпы жұмыс салмағы
| A мм | B мм | C мм | D мм | E мм | кг | |
| 30HXC080 30HXC090 30HXC100 |
2705 | 950 | 1850 | 2360 | 1000 | 2447 2462 2504 |
| 30HXC110 | 2705 | 950 | 1900 | 2360 | 1000 | 2650 |
| 30HXC120 30HXC130 30HXC140 30HXC155 |
3535 | 950 | 1875 | 3220 | 1000 | 2846 2861 2956 2971 |
| 30HXC175 30HXC190 |
3550 | 950 | 2000 | 3220 | 1000 | 3283 3438 |
ЕСКЕРТПЕ: Орнатуды жобалау кезінде қондырғымен бірге берілген сертификатталған өлшемдік сызбаларға жүгініңіз.

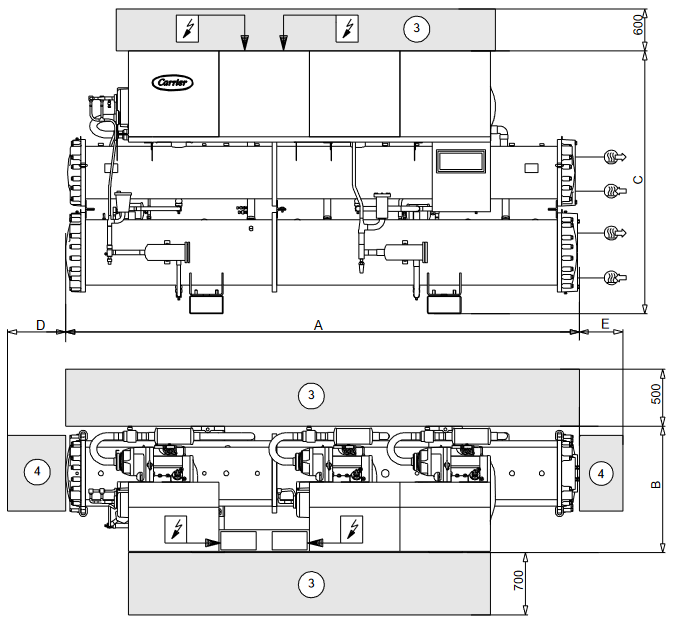
Су кіретін жер
Су шығатын жер
Қуат көзі
кг: жалпы жұмыс салмағы
| A мм | B мм | C мм | D мм | E мм | кг | |
| 30HXC200 | 3975 | 980 | 2035 | 3620 | 1000 | 4090 |
| 30HXC230 30HXC260 30HXC285 |
3995 | 980 | 2116 | 3620 | 1000 | 4705 4815 4985 |
| 30HXC310 30HXC345 30HXC375 |
4490 | 980 | 2163 | 4120 | 1000 | 5760 5870 6105 |
ЕСКЕРТПЕ: Орнатуды жобалау кезінде қондырғымен бірге берілген сертификатталған өлшемдік сызбаларға жүгініңіз.
30GX-082
30GX-092
30GX-102
30GX-112
30GX-122
30GX-132
30GX-152
30GX-162
30GX-182


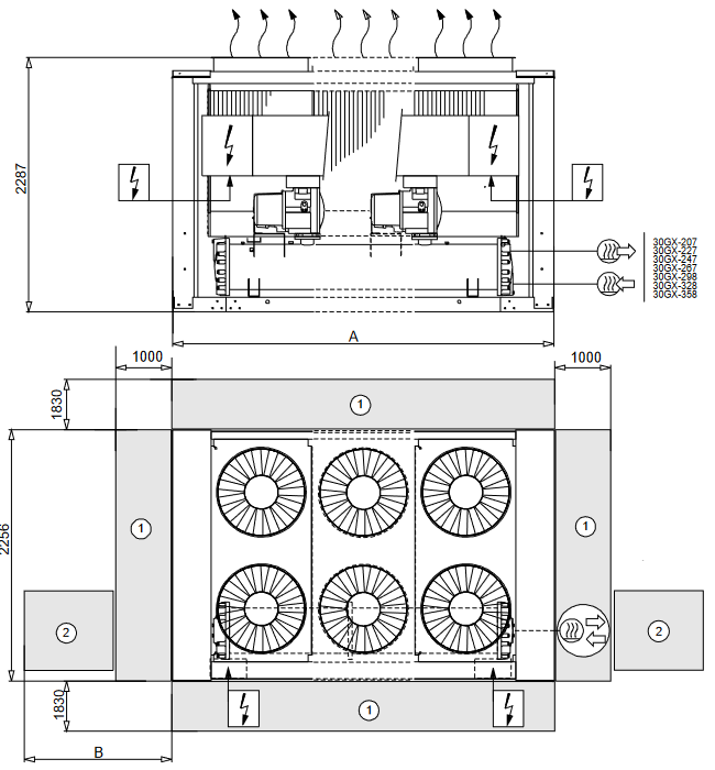
Су кіретін жер
Су шығатын жер
Қуат көзі
Ауа шығатын жер - кедергі жасамаңыз
кг: жалпы жұмыс салмағы
| A мм | B мм | кг | |
| 30GX082 30GX092 30GX102 |
2970 | 2215 | 3116 3157 3172 |
| 30GX112 30GX122 30GX132 |
3427 | 2045 | 3515 3531 3633 |
| 30GX152 30GX162 |
4342 | 2835 | 3920 3936 |
| 30GX182 | 5996 | 1820 | 4853 |


Ескертпелер:
ЕСКЕРТПЕ: Орнатуды жобалау кезінде қондырғымен бірге берілген сертификатталған өлшемдік сызбаларға жүгініңіз.
30GX-207
30GX-227
30GX-247
30GX-267
30GX-298
30GX-328
30GX-358

Су кіретін жер
Су шығатын жер
Қуат көзі
Ауа шығатын жер - кедергі жасамаңыз
кг: жалпы жұмыс салмағы
| A мм | B мм | кг | |
| 30GX207 30GX227 |
5996 | 2895 | 5540 5570 |
| 30GX247 30GX267 |
6911 | 2470 | 6134 6365 |
| 30GX298 | 7826 | 2220 | 7354 |
| 30GX328 30GX358 |
8741 | 1250 | 7918 8124 |


Ескертпелер:
ЕСКЕРТПЕ: Орнатуды жобалау кезінде қондырғымен бірге берілген сертификатталған өлшемдік сызбаларға жүгініңіз.
| 30HXC | 080 | 090 | 100 | 110 | 120 | 130 | 140 | 155 | 175 | 190 | 200 | 230 | 260 | 285 | 310 | 345 | 375 | |
| Net cooling capacity (Таза салқындату қуаты) | kW | 292 | 321 | 352 | 389 | 426 | 464 | 514 | 550 | 607 | 663 | 716 | 822 | 918 | 996 | 1119 | 1222 | 1326 |
| Operating weight (Жұмыс салмағы) | kg | 2447 | 2462 | 2504 | 2650 | 2846 | 2861 | 2956 | 2971 | 3283 | 3438 | 4090 | 4705 | 4815 | 4985 | 5760 | 5870 | 6105 |
| Refrigerant (Салқындатқыш) Circuit A/B |
HFC-134a | |||||||||||||||||
| kg | 39/36 | 39/36 | 37/32 | 38/38 | 57/55 | 59/50 | 56/50 | 59/52 | 58/61 | 60/70 | 110/58 | 118/63 | 120/75 | 120/75 | 108/110 | 110/110 | 110/120 | |
| Oil (Май) Circuit A/B |
Polyolester oil CARRIER SPEC: PP 47-32 | |||||||||||||||||
| l | 15/15 | 15/15 | 15/15 | 15/15 | 15/15 | 15/15 | 15/15 | 15/15 | 15/15 | 15/15 | 30/15 | 30/15 | 30/15 | 30/15 | 30/30 | 30/30 | 30/30 | |
| Compressors (Компрессорлар) | Hermetic twin-screw Power3 | |||||||||||||||||
| Circ. A, nom. size per compressor** | 39 | 46 | 46 | 56 | 56 | 66 | 80 | 80 | 80 | 80+ | 66/56 | 80/56 | 80/80 | 80+/80+ | 80/66 | 80/80 | 80+/80+ | |
| Circ. B, nom. size per compressor** | 39 | 39 | 46 | 46 | 56 | 56 | 56 | 66 | 80 | 80+ | 66 | 80 | 80 | 80+ | 80/66 | 80/80 | 80+/80+ | |
| Control type (Басқару түрі) | PRO-DIALOG Plus control | |||||||||||||||||
| Number of capacity steps (Қуат қадамдарының саны) | 6 | 6 | 6 | 6 | 6 | 6 | 6 | 6 | 6 | 6 | 8 | 8 | 8 | 8 | 10 | 10 | 10 | |
| Minimum capacity (Ең аз қуат) | % | 19 | 19 | 21 | 19 | 21 | 19 | 17 | 19 | 21 | 21 | 14 | 14 | 14 | 14 | 10 | 10 | 10 |
| Evaporator (Буландырғыш) | Shell and tube type, with internally finned copper tubes | |||||||||||||||||
| Net water volume (Таза су көлемі) | l | 65 | 65 | 73 | 87 | 81 | 81 | 91 | 91 | 109 | 109 | 140 | 165 | 181 | 181 | 203 | 229 | 229 |
| Water connections (Су қосылымдары) | Factory-supplied flat flange, to be welded on site | |||||||||||||||||
| Inlet and outlet (Кіріс және шығыс) | in. | 4 | 4 | 4 | 5 | 5 | 5 | 5 | 5 | 5 | 5 | 6 | 6 | 6 | 6 | 8 | 8 | 8 |
| Drain and vent (NPT) (Дренаж және желдеткіш (NPT)) | in. | 3/8 | 3/8 | 3/8 | 3/8 | 3/8 | 3/8 | 3/8 | 3/8 | 3/8 | 3/8 | 3/8 | 3/8 | 3/8 | 3/8 | 3/8 | 3/8 | 3/8 |
| Max. water-side operating pressure (Су жағындағы макс. жұмыс қысымы) | kPa | 1000 | 1000 | 1000 | 1000 | 1000 | 1000 | 1000 | 1000 | 1000 | 1000 | 1000 | 1000 | 1000 | 1000 | 1000 | 1000 | 1000 |
| Condensers (Конденсаторлар) | Shell and tube type, with internally finned copper tubes | |||||||||||||||||
| Net water volume (Таза су көлемі) | l | 58 | 58 | 58 | 58 | 92 | 92 | 110 | 110 | 132 | 132 | 162 | 208 | 208 | 208 | 251 | 251 | 251 |
| Water connections (Су қосылымдары) | Factory-supplied flat flange, to be welded on site | |||||||||||||||||
| Inlet and outlet (Кіріс және шығыс) | in. | 5 | 5 | 5 | 5 | 5 | 5 | 5 | 5 | 6 | 6 | 6 | 6 | 6 | 6 | 8 | 8 | 8 |
| Drain and vent (NPT) (Дренаж және желдеткіш (NPT)) | in. | 3/8 | 3/8 | 3/8 | 3/8 | 3/8 | 3/8 | 3/8 | 3/8 | 3/8 | 3/8 | 3/8 | 3/8 | 3/8 | 3/8 | 3/8 | 3/8 | 3/8 |
| Max. water-side operating pressure (Су жағындағы макс. жұмыс қысымы) | kPa | 1000 | 1000 | 1000 | 1000 | 1000 | 1000 | 1000 | 1000 | 1000 | 1000 | 1000 | 1000 | 1000 | 1000 | 1000 | 1000 | 1000 |
* Standardised Eurovent conditions: evaporator entering/leaving water temperatures = 12°C/7°C, condenser water entering/leaving water temperatures = 30°C/35°C Net cooling capacity: Gross cooling capacity minus the water pump heat against the internal evaporator pressure drop. ** The compressor size corresponds to the nominal capacity in tons (1 ton = 3.517 kW). (Стандартталған Eurovent жағдайлары: буландырғышқа кіретін/шығатын су температурасы = 12°C/7°C, конденсаторға кіретін/шығатын су температурасы = 30°C/35°C. Таза салқындату қуаты: Жалпы салқындату қуатынан ішкі буландырғыш қысымының төмендеуіне қарсы су сорғысының жылуын алып тастау. ** Компрессордың өлшемі тоннадағы номиналды қуатқа сәйкес келеді (1 тонна = 3,517 кВТ).)
| 30HXC | 080 | 090 | 100 | 110 | 120 | 130 | 140 | 155 | 175 | 190 | 200 | 230 | 260 | 285 | 310 | 345 | 375 | |
| Қуат тізбегі | ||||||||||||||||||
| Номиналды қуат көзі* | V-ph-Hz | 400-3-50 | ||||||||||||||||
| Кернеу диапазоны | V | 360-440 | ||||||||||||||||
| Басқару тізбегінің қоректенуі | Басқару тізбегі зауытта орнатылған трансформатор арқылы қоректенеді | |||||||||||||||||
| Номиналды қуат кірісі* | kW | 59 | 67 | 74 | 83 | 88 | 99 | 112 | 123 | 135 | 146 | 156 | 179 | 201 | 219 | 245 | 274 | 298 |
| Номиналды ток тұтыну* | A | 98 | 111 | 124 | 139 | 148 | 166 | 186 | 204 | 226 | 242 | 259 | 291 | 335 | 367 | 408 | 456 | 498 |
| Макс. қуат кірісі** | kW | 76 | 83 | 91 | 101 | 111 | 121 | 135 | 145 | 158 | 181 | 187 | 214 | 237 | 272 | 290 | 316 | 362 |
| A тізбегі | kW | - | - | - | - | - | - | - | - | - | - | 121 | 135 | 158 | 181 | 145 | 158 | 181 |
| B тізбегі | kW | - | - | - | - | - | - | - | - | - | - | 66 | 79 | 79 | 91 | 145 | 158 | 181 |
| Cosine phi, толық жүктеме кезіндегі бірлік | 0.87 | 0.87 | 0.87 | 0.87 | 0.87 | 0.87 | 0.87 | 0.87 | 0.87 | 0.87 | 0.87 | 0.87 | 0.87 | 0.87 | 0.87 | 0.87 | 0.87 | |
| Макс. ток тұтыну (Un - 10%)*** | A | 138 | 152 | 166 | 184 | 202 | 221 | 245 | 264 | 288 | 330 | 341 | 389 | 432 | 495 | 528 | 576 | 660 |
| A тізбегі | A | - | - | - | - | - | - | - | - | - | - | 221 | 245 | 288 | 330 | 264 | 288 | 330 |
| B тізбегі | A | - | - | - | - | - | - | - | - | - | - | 120 | 144 | 144 | 165 | 264 | 288 | 330 |
| Ең жоғары ток тұтыну (Un)*** | A | 125 | 138 | 151 | 167 | 184 | 201 | 223 | 240 | 262 | 300 | 310 | 354 | 393 | 450 | 480 | 524 | 600 |
| A тізбегі | A | - | - | - | - | - | - | - | - | - | - | 201 | 223 | 262 | 300 | 240 | 262 | 300 |
| B тізбегі | A | - | - | - | - | - | - | - | - | - | - | 109 | 131 | 131 | 150 | 240 | 262 | 300 |
| Макс. іске қосу тогы, std. қондырғы (Un)**** | A | 172 | 197 | 209 | 235 | 252 | 283 | 318 | 335 | 357 | 420 | 806 | 938 | 977 | 1156 | 1064 | 1108 | 1306 |
| A тізбегі | A | - | - | - | - | - | - | - | - | - | - | 697 | 807 | 846 | 1006 | 824 | 846 | 1006 |
| B тізбегі | A | - | - | - | - | - | - | - | - | - | - | 605 | 715 | 715 | 856 | 824 | 846 | 1006 |
| Макс. іске қосу тогы/макс. ток тұтыну коэффициенті, қондырғы | 1.37 | 1.42 | 1.39 | 1.41 | 1.37 | 1.41 | 1.43 | 1.40 | 1.36 | 1.40 | 2.60 | 2.65 | 2.49 | 2.57 | 2.22 | 2.12 | 2.18 | |
| Макс. іске қосу тогы/макс. ток тұтыну коэффициенті, A тізбегі | - | - | - | - | - | - | - | - | - | - | 3.47 | 3.62 | 3.23 | 3.35 | 3.43 | 3.23 | 3.35 | |
| Макс. іске қосу тогы/макс. ток тұтыну коэффициенті, B тізбегі | - | - | - | - | - | - | - | - | - | - | 5.55 | 5.46 | 5.46 | 5.71 | 3.43 | 3.23 | 3.35 | |
| Макс. іске қосу тогы - төмендетілген токпен іске қосу (Un) **** | A | std. | std. | std. | std. | std. | std. | std. | std. | std. | std. | 601 | 643 | 682 | 760 | 769 | 813 | 910 |
| A тізбегі | A | std. | std. | std. | std. | std. | std. | std. | std. | std. | std. | 492 | 512 | 551 | 610 | 529 | 551 | 610 |
| B тізбегі | A | std. | std. | std. | std. | std. | std. | std. | std. | std. | std. | 330 | 370 | 370 | 385 | 529 | 551 | 610 |
| Макс.іске қосу тогы - red. токпен іске қосу/ макс. ток тұтыну коэффициенті, қондырғы | std. | std. | std. | std. | std. | std. | std. | std. | std. | std. | 1.94 | 1.82 | 1.74 | 1.69 | 1.60 | 1.55 | 1.52 | |
| A тізбегі | std. | std. | std. | std. | std. | std. | std. | std. | std. | std. | 2.45 | 2.30 | 2.10 | 2.03 | 2.20 | 2.10 | 2.03 | |
| B тізбегі | std. | std. | std. | std. | std. | std. | std. | std. | std. | std. | 3.03 | 2.83 | 2.83 | 2.57 | 2.20 | 2.10 | 2.03 | |
| Үш фазалы қысқа тұйықталуды ұстау тогы | kA | 25 | 25 | 25 | 25 | 25 | 25 | 25 | 25 | 25 | 25 | N/A | N/A | N/A | N/A | N/A | N/A | N/A |
| A тізбегі | kA | - | - | - | - | - | - | - | - | - | - | 25 | 25 | 25 | 25 | 25 | 25 | 25 |
| B тізбегі | kA | - | - | - | - | - | - | - | - | - | - | 15 | 15 | 15 | 15 | 25 | 25 | 25 |
| Эвапораторлық су сорғысының қосылымдары үшін тұтынушының күту қуаты, қондырғы немесе A айналымы† | kW | 8 | 8 | 8 | 11 | 11 | 11 | 15 | 15 | 15 | 15 | 15 | 18 | 18 | 30 | 30 | 30 | 30 |
* Eurovent стандартының шарттары: Эвапораторға кіретін/шығатын су температурасы 12°C және 7°C. Конденсаторға кіретін/шығатын су температурасы 30°C/35°C.
** Қуат кірісі, компрессор, қондырғының жұмыс шектерінде (эвапораторға кіретін/шығатын су температурасы = 15°C/10°C, конденсаторға кіретін/шығатын су температурасы = 40°C/45°C) және 400 V номиналды кернеу (қондырғының атаулық тақтайшасында берілген деректер).
*** Қондырғының ең жоғары қуат кірісіндегі ең жоғары жұмыс тогы.
**** Лездік іске қосудың ең жоғары тогы (ең кіші компрессордың(дардың) ең жоғары жұмыс тогы + ең үлкен компрессордың роторының құлыпталу тогы немесе төмендетілген іске қосу тогы)
† Жоғарыдағы мәндерге ток және қуат кірістері кірмейді.
N/A Жоқ
| Сілтеме | Өлшем | I nom. | MHA | LRA | LRA (Y) | LRA (S) 1 cp. | LRA (S) 2 cp. |
| 06NW2146S7N | 39 | 48 | 69 | 344 | 109 | 125 | - |
| 06NW2174S7N | 46 | 58 | 83 | 423 | 134 | 154 | - |
| 06NW2209S7N | 56 | 71 | 101 | 506 | 160 | 260 | 350 |
| 06NW2250S7N | 66 | 87 | 120 | 605 | 191 | 330 | 400 |
| 06NW2300S5N | 80 | 104 | 144 | 715 | 226 | 370 | 420 |
| 06NW2300S5E | 80+ | 111 | 165 | 856 | 270 | 385 | 460 |
Анықтама:
| 06NW | Сумен салқындатылатын қондырғыларға арналған компрессор |
| N | Экономикаланбаған компрессор |
| E | Экономикаланған компрессор |
| INOM | Eurovent шарттарындағы компрессордың орташа ток тұтынуы |
| MHA | 360 V кезінде ұстап тұру керек ампер (ең жоғары жұмыс тогы) |
| LRA | Желі арқылы іске қосу кезіндегі ротордың құлыпталу тогы |
| LRA (Y) | Төмендетілген ток кезіндегі ротордың құлыпталу тогы (жұлдызша/үшбұрыш іске қосу режимі) |
| LRA (S) 1 cp. | Тізбекке бір компрессор үшін электрондық стартермен төмендетілген токпен іске қосу (іске қосу ұзақтығы ең көбі 3 секунд) |
| LRA (S) 2 cp. | Тізбекке екі компрессор үшін электрондық стартермен төмендетілген токпен іске қосу (іске қосу ұзақтығы ең көбі 3 секунд) |
30HXC 150 ж;әне 150A Опциялары
| 30HXC | 080 | 090 | 100 | 110 | 120 | 130 | 140 | 155 | 175 | 190 | 200 | 230 | 260 | 285 | 310 | 345 | 375 | |
| Қуат тізбегі | ||||||||||||||||||
| Номиналды қуат көзі* | V-ph-Hz | 400-3-50 | ||||||||||||||||
| Кернеу диапазоны | V | 360-440 | ||||||||||||||||
| Басқару тізбегінің қоректенуі | Басқару тізбегі зауытта орнатылған трансформатор арқылы қоректенеді | |||||||||||||||||
| Макс. қуат кірісі** | kW | 104 | 117 | 131 | 145 | 159 | 174 | 194 | 211 | 230 | 263 | 271 | 310 | 345 | 395 | 422 | 460 | 526 |
| A тізбегі | kW | - | - | - | - | - | - | - | - | - | - | 175 | 195 | 230 | 263 | 211 | 230 | 263 |
| B тізбегі | kW | - | - | - | - | - | - | - | - | - | - | 96 | 115 | 115 | 132 | 211 | 230 | 263 |
| Макс. тұтынылатын ток (Un - 10%)*** | A | 190 | 215 | 240 | 265 | 290 | 320 | 355 | 385 | 420 | 480 | 495 | 564 | 630 | 720 | 770 | 840 | 960 |
| A тізбегі | A | - | - | - | - | - | - | - | - | - | - | 320 | 355 | 420 | 480 | 385 | 420 | 480 |
| B тізбегі | A | - | - | - | - | - | - | - | - | - | - | 175 | 210 | 210 | 240 | 385 | 420 | 480 |
| Максималды тұтынылатын ток (Un)*** | A | 173 | 195 | 218 | 241 | 264 | 291 | 323 | 350 | 382 | 436 | 450 | 514 | 573 | 655 | 700 | 764 | 873 |
| A тізбегі | A | - | - | - | - | - | - | - | - | - | - | 291 | 323 | 382 | 436 | 350 | 382 | 436 |
| B тізбегі | A | - | - | - | - | - | - | - | - | - | - | 159 | 191 | 191 | 218 | 350 | 382 | 436 |
| Макс. іске қосу тогы, стандартты қондырғы (Un)**** | A | 277 | 312 | 335 | 379 | 402 | 435 | 519 | 546 | 578 | 618 | 1251 | 1549 | 1608 | 1701 | 1735 | 1799 | 1920 |
| A тізбегі | A | - | - | - | - | - | - | - | - | - | - | 1092 | 1358 | 1417 | 1483 | 1385 | 1417 | 1483 |
| B тізбегі | A | - | - | - | - | - | - | - | - | - | - | 960 | 1226 | 1226 | 1265 | 1385 | 1417 | 1483 |
| Макс. іске қосу тогы/макс. токты тұтыну коэффициенті, қондырғы | 1.61 | 1.60 | 1.54 | 1.57 | 1.52 | 1.49 | 1.61 | 1.56 | 1.51 | 1.42 | 2.78 | 3.02 | 2.81 | 2.60 | 2.48 | 2.36 | 2.20 | |
| Макс. іске қосу тогы/макс. токты тұтыну коэффициенті, A тізбегі | - | - | - | - | - | - | - | - | - | - | 3.75 | 4.21 | 3.71 | 3.40 | 3.96 | 3.71 | 3.40 | |
| Макс. іске қосу тогы/макс. токты тұтыну коэффициенті, B тізбегі | - | - | - | - | - | - | - | - | - | - | 6.03 | 6.42 | 6.42 | 5.80 | 3.96 | 3.71 | 3.40 | |
| Макс. іске қосу тогы - төмендетілген токпен іске қосу (Un) **** | A | стандартты | стандартты | стандартты | стандартты | стандартты | стандартты | стандартты | стандартты | стандартты | стандартты | ЖҚ | ЖҚ | ЖҚ | ЖҚ | ЖҚ | ЖҚ | ЖҚ |
| Үш фазалы қысқа тұйықталуды ұстау тогы | kA | 25 | 25 | 25 | 25 | 25 | 25 | 25 | 25 | 25 | 25 | ЖҚ | ЖҚ | ЖҚ | ЖҚ | ЖҚ | ЖҚ | ЖҚ |
| A тізбегі | kA | - | - | - | - | - | - | - | - | - | - | 25 | 25 | 25 | 25 | 25 | 25 | 25 |
| B тізбегі | kA | - | - | - | - | - | - | - | - | - | - | 15 | 15 | 15 | 15 | 25 | 25 | 25 |
| Эвапоратор су сорғысының қосылымдары үшін тұтынушының күту қуаты, қондырғы немесе A тізбегі† | kW | 8 | 8 | 8 | 11 | 11 | 11 | 15 | 15 | 15 | 15 | 15 | 18 | 18 | 30 | 30 | 30 | 30 |
** Қуат кірісі, компрессор, қондырғының жұмыс шектеулерінде (кіретін/шығатын эвапоратор суының температурасы = 15°C/10°C, кіретін/шығатын конденсатор суының температурасы = 40°C/45°C) және 400 В номиналды кернеуде (қондырғының атаулық тақтайшасында берілген деректер).
*** Қондырғының максималды қуат кірісіндегі максималды жұмыс тогы.
**** Максималды лездік іске қосу тогы (ең кіші компрессордың(дардың) максималды жұмыс тогы + ең үлкен компрессордың роторының құлыпталу тогы немесе төмендетілген іске қосу тогы)
† Ток және қуат кірістері жоғарыдағы мәндерге кірмейді.
N/A ЖҚ (Жеткіліксіз)
Жоғары конденсация температурасына арналған 30HXC 080-375 қондырғылары стандартты модельдерден тікелей алынған. Олардың қолдану ауқымы стандартты қондырғылармен бірдей, бірақ конденсатордан шығатын судың температурасында 63°C-қа дейін жұмыс істеуге мүмкіндік береді. PRO-DIALOG басқару элементі стандартты қондырғылардың барлық артықшылықтарын, сонымен қатар конденсатордан шығатын судың температурасын басқаруды ұсынады.
Негізгі өзгерістер:
Бұл қондырғылар сумен салқындатылатын қондырғыларға арналған дәстүрлі қолданбаларға арналған, бірақ 45°C-тан жоғары конденсатордан шығатын су температурасына арналған.
Стандартты қондырғылар сияқты, олар құбырға орнатылған конденсаторға кіретін және шығатын су датчиктерімен жабдықталған.
Машинаны конденсатор суының шығысында басқаруға болады, бұл зауыттық конфигурацияның өзгеруін және жылыту/салқындату кірісін ауыстыратын құрылғыны пайдалануды талап етеді.
Бұл қондырғылар су-су жылу сорғыларына арналған.
Олар жылу сорғылары ретінде зауытта конфигурацияланған (қашықтан ауыстыратын құрылғының функциясы ретінде жылыту/салқындатуды басқару). Конденсатор эвапоратормен бірдей жылу оқшаулауын қамтиды.
Барлық ақпарат стандартты 30HXC қондырғыларымен бірдей, келесі абзацтарды қоспағанда.
Бұл қондырғы түрі үшін номиналды жағдайлар жоқ. Таңдау ағымдағы электрондық каталогты пайдалану арқылы жасалады.
Бұлар стандартты 30HXC қондырғыларының өлшемдерімен бірдей. Жалғыз айырмашылық - "Ұсынылатын таңдау" тарауында сипатталған кіріс алаңының сым қосылымының диаметрінде. Сымдарды жалғауды бастамас бұрын, осы қондырғылардың өлшемдік сызбаларына жүгініңіз.
30GX компрессор кестесін қараңыз.
Стандартты 30HXC қондырғылары үшін қол жетімді барлық опциялар үйлесімді, мыналарды қоспағанда:
| 5 Опциясы, тұздық қондырғысы | Арнайы қондырғы |
| 25 Опциясы, жұмсақ іске қосу, 30HXC 200-375 қондырғылары | Жеткіліксіз |
Назар аударыңыз:
Егер қондырғылардың екі түрлі жұмыс режимі болса - біреуі жоғары конденсация температурасымен, ал екіншісі төмен конденсация температурасымен - және ауысу қондырғы жұмыс істеп тұрғанда жасалса, температура минутына 3 К-ден аспауы керек. Бұл мүмкін болмаған жағдайда, қондырғыны іске қосу/тоқтату қосқышы арқылы өту ұсынылады (стандартты қондырғылар үшін қашықтан іске қосу/тоқтату қол жетімді).
| 30GX | 082 | 092 | 102 | 112 | 122 | 132 | 152 | 162 | 182 | 207 | 227 | 247 | 267 | 298 | 328 | 358 | ||
| Салқындатудың таза қуаты | kW | 285 | 309 | 332 | 388 | 417 | 450 | 505 | 536 | 602 | 687 | 744 | 810 | 910 | 1003 | 1103 | 1207 | |
| Жұмыс салмағы | kg | 3116 | 3157 | 3172 | 3515 | 3531 | 3633 | 3920 | 3936 | 4853 | 5540 | 5570 | 6134 | 6365 | 7354 | 7918 | 8124 | |
| Хладагент заряды | HFC-134a | |||||||||||||||||
| A/B тізбегі | kg | 55/55 | 58/50 | 54/53 | 55/53 | 60/57 | 63/60 | 75/69 | 75/75 | 80/80 | 130/85 | 130/85 | 155/98 | 170/104 | 162/150 | 162/165 | 175/175 | |
| Май | Полиолэстер майы CARRIER SPEC: PP 47-32 | |||||||||||||||||
| A/B тізбегі | l | 20/20 | 20/20 | 20/20 | 20/20 | 20/20 | 20/20 | 20/20 | 20/20 | 20/20 | 40/20 | 40/20 | 40/20 | 40/20 | 40/40 | 40/40 | 40/40 | |
| Компрессорлар | Герметикалық қос бұрандалы Power3 | |||||||||||||||||
| Айналым. A, компрессорға шаққандағы номиналды өлшем** | 46 | 46 | 56 | 56 | 66 | 66 | 80 | 80 | 80+ | 66/56 | 80/66 | 80/80 | 80+/80+ | 80/80 | 80/80 | 80+/80+ | ||
| Айналым. B, компрессорға шаққандағы номиналды өлшем** | 39 | 46 | 46 | 56 | 56 | 66 | 66 | 80 | 80+ | 80 | 80 | 80 | 80+ | 66/66 | 80/802 | 80+/80+ | ||
| Басқару түрі | PRO-DIALOG Plus басқару элементі | |||||||||||||||||
| Өнімділік қадамдарының саны | 6 | 6 | 6 | 6 | 6 | 6 | 6 | 6 | 6 | 8 | 8 | 8 | 8 | 10 | 10 | 10 | ||
| Минималды өнімділік | % | 19 | 21 | 19 | 21 | 19 | 21 | 19 | 21 | 21 | 16 | 14 | 14 | 14 | 9 | 10 | 10 | |
| Эвапоратор | Ішкі жағынан қанатты мыс түтіктері бар қабықшалы және түтіктік тип | |||||||||||||||||
| Судың таза көлемі | l | 65 | 73 | 73 | 87 | 87 | 101 | 91 | 91 | 109 | 140 | 140 | 165 | 181 | 203 | 229 | 229 | |
| Су қосылымдары | Зауытта жеткізілетін жалпақ фланец, сайтта дәнекерленеді | |||||||||||||||||
| Кіріс және шығыс | in. | 4 | 4 | 4 | 5 | 5 | 5 | 5 | 5 | 5 | 6 | 6 | 6 | 6 | 8 | 8 | 8 | |
| Дренаж және желдету (NPT) | in. | 3/8 | 3/8 | 3/8 | 3/8 | 3/8 | 3/8 | 3/8 | 3/8 | 3/8 | 3/8 | 3/8 | 3/8 | 3/8 | 3/8 | 3/8 | 3/8 | |
| Су жағындағы максималды жұмыс қысымы | kPa | 1000 | 1000 | 1000 | 1000 | 1000 | 1000 | 1000 | 1000 | 1000 | 1000 | 1000 | 1000 | 1000 | 1000 | 1000 | 1000 | |
| Конденсаторлар | Мыс түтіктері және алюминий қанаттары | |||||||||||||||||
| Желдеткіштер | Айналмалы қаптамасы бар осьтік FLYING BIRD 2 желдеткіші | |||||||||||||||||
| Саны | 4 | 4 | 4 | 6 | 6 | 6 | 8 | 8 | 8 | 10 | 10 | 12 | 12 | 14 | 16 | 16 | ||
| Жылдамдық | r/s | 15.8 | 15.8 | 15.8 | 15.8 | 15.8 | 15.8 | 15.8 | 15.8 | 15.8 | 15.8 | 15.8 | 15.8 | 15.8 | 15.8 | 15.8 | 15.8 | |
| Жалпы ауа ағыны | l/s | 21110 | 21110 | 21110 | 31660 | 31660 | 31660 | 42220 | 42220 | 42220 | 52770 | 52770 | 63330 | 63330 | 73880 | 84440 | 84440 | |
* Стандартталған Eurovent жағдайлары: эвапораторға кіретін/шығатын судың температурасы = 12°C/7°C, сыртқы ауа температурасы = 35°C Салқындатудың таза қуаты: Жалпы салқындату қуаты минус ішкі эвапоратордың қысымның төмендеуіне қарсы су сорғысының жылуы.
** Компрессордың өлшемі тоннадағы номиналды өнімділікке сәйкес келеді (1 тонна = 3,517 kW).
| 30HXC | 082 | 092 | 102 | 112 | 122 | 132 | 152 | 162 | 182 | 207 | 227 | 247 | 267 | 298 | 328 | 358 | ||
| Power circuit (Қуат тізбегі) | ||||||||||||||||||
| Nominal power supply* (Номиналды қуат көзі*) | V-ph-Hz | 400-3-50 | ||||||||||||||||
| Voltage range (Кернеу диапазоны) | V | 360-440 | ||||||||||||||||
| Control circuit supply (Басқару тізбегінің қоректенуі) | The control circuit is supplied via the factory-installed transformer (Басқару тізбегі зауытта орнатылған трансформатор арқылы қоректенеді) | |||||||||||||||||
| Nominal power input* (Номиналды қуат кірісі*) | kW | 98 | 109 | 123 | 133 | 150 | 166 | 179 | 196 | 214 | 246 | 281 | 292 | 332 | 364 | 394 | 449 | |
| Nominal current drawn* (Номиналды ток тұтыну*) | A | 180 | 200 | 223 | 256 | 273 | 290 | 326 | 352 | 388 | 449 | 492 | 528 | 582 | 642 | 704 | 776 | |
| Max. power input** (Макс. қуат кірісі**) | kW | 127 | 141 | 154 | 175 | 191 | 207 | 234 | 253 | 286 | 319 | 355 | 380 | 429 | 462 | 506 | 572 | |
| Circuit A (А тізбегі) | kW | - | - | - | - | - | - | - | - | - | 193 | 228 | 253 | 286 | 253 | 253 | 286 | |
| Circuit B (B тізбегі) | kW | - | - | - | - | - | - | - | - | - | 127 | 127 | 127 | 143 | 209 | 253 | 286 | |
| Cosine phi, unit at full load (Толық жүктеме кезіндегі косинус фи, бірлік) | 0.85 | 0.85 | 0.85 | 0.85 | 0.85 | 0.85 | 0.86 | 0.86 | 0.86 | 0.86 | 0.86 | 0.86 | 0.86 | 0.86 | 0.86 | 0.86 | ||
| Max. current drawn (Un - 10%)*** (Макс. тұтынылатын ток (Un - 10%)***) | A | 237 | 262 | 287 | 323 | 353 | 383 | 429 | 464 | 524 | 585 | 650 | 696 | 786 | 847 | 928 | 1048 | |
| Circuit A (А тізбегі) | A | - | - | - | - | - | - | - | - | - | 353 | 418 | 464 | 524 | 464 | 464 | 524 | |
| Circuit B (B тізбегі) | A | - | - | - | - | - | - | - | - | - | 232 | 232 | 232 | 262 | 383 | 464 | 524 | |
| Maximum current drawn (Un)*** (Максималды тұтынылатын ток (Un)***) | A | 217 | 240 | 263 | 297 | 324 | 351 | 394 | 426 | 480 | 537 | 596 | 639 | 721 | 777 | 852 | 961 | |
| Circuit A (А тізбегі) | A | - | - | - | - | - | - | - | - | - | 324 | 383 | 426 | 480 | 426 | 426 | 480 | |
| Circuit B (B тізбегі) | A | - | - | - | - | - | - | - | - | - | 213 | 213 | 213 | 240 | 351 | 426 | 480 | |
| Max. starting current, std. unit**** (Un) (Макс. іске қосу тогы, стандартты құрылғы**** (Un)) | A | 334 | 357 | 401 | 435 | 468 | 495 | 590 | 622 | 662 | 1338 | 1631 | 1674 | 1767 | 1812 | 1887 | 2008 | |
| Circuit A*** (А тізбегі***) | A | - | - | - | - | - | - | - | - | - | 1125 | 1418 | 1461 | 1527 | 1461 | 1461 | 1527 | |
| Circuit B*** (B тізбегі***) | A | - | - | - | - | - | - | - | - | - | 1248 | 1248 | 1248 | 1287 | 1152 | 1461 | 1527 | |
| Max. starting current/max. current draw ratio, unit (Макс. іске қосу тогы/макс. ток тұтыну қатынасы, бірлік) | 1.54 | 1.49 | 1.53 | 1.47 | 1.44 | 1.41 | 1.50 | 1.46 | 1.38 | 2.49 | 2.74 | 2.62 | 2.45 | 2.33 | 2.22 | 2.09 | ||
| Max. starting current/max. current draw ratio, circuit A (Макс. іске қосу тогы/макс. ток тұтыну қатынасы, А тізбегі) | - | - | - | - | - | - | - | - | - | 3.47 | 3.70 | 3.43 | 3.18 | 3.43 | 3.43 | 3.18 | ||
| Max. starting current/max. current draw ratio, circuit B (Макс. іске қосу тогы/макс. ток тұтыну қатынасы, B тізбегі) | - | - | - | - | - | - | - | - | - | 5.86 | 5.86 | 5.86 | 5.36 | 3.28 | 3.43 | 3.18 | ||
| Max. starting current - reduced current start (Un) **** (Макс. іске қосу тогы - төмендетілген токпен іске қосу (Un) ****) | A | std. | std. | std. | std. | std. | std. | std. | std. | std. | 878 | 955 | 998 | 1102 | 1136 | 1211 | 1343 | |
| Circuit A (А тізбегі) | A | std. | std. | std. | std. | std. | std. | std. | std. | std. | 665 | 742 | 785 | 862 | 785 | 785 | 862 | |
| Circuit B (B тізбегі) | A | std. | std. | std. | std. | std. | std. | std. | std. | std. | 572 | 572 | 572 | 622 | 692 | 785 | 862 | |
| Max.starting current - red. current start/ max. current draw ratio, unit (Макс. іске қосу тогы - төмендетілген токпен іске қосу/ макс. ток тұтыну қатынасы, бірлік) | std. | std. | std. | std. | std. | std. | std. | std. | std. | 1.64 | 1.60 | 1.56 | 1.53 | 1.46 | 1.42 | 1.40 | ||
| Circuit A (А тізбегі) | std. | std. | std. | std. | std. | std. | std. | std. | std. | 2.05 | 1.94 | 1.84 | 1.79 | 1.84 | 1.84 | 1.79 | ||
| Circuit B (B тізбегі) | std. | std. | std. | std. | std. | std. | std. | std. | std. | 2.69 | 2.69 | 2.69 | 2.39 | 1.97 | 1.84 | 1.79 | ||
| Three-phase short circuit holding current (Үш фазалы қысқа тұйықталуды ұстау тогы) | kA | 25 | 25 | 25 | 25 | 25 | 25 | 25 | 25 | 25 | N/A | N/A | N/A | N/A | N/A | N/A | N/A | |
| Circuit A (А тізбегі) | kA | - | - | - | - | - | - | - | - | - | 25 | 25 | 25 | 25 | 25 | 25 | 25 | |
| Circuit B (B тізбегі) | kA | - | - | - | - | - | - | - | - | - | 25 | 25 | 25 | 25 | 25 | 25 | 25 | |
| Customer standby capacity, unit or circ. A, for evaporatorwater pump connections† (Тұтынушының күту қуаты, құрылғы немесе А тізбегі, буландырғыш су сорғысының қосылымдары үшін†) | kW | 4 | 4 | 4 | 5.5 | 5.5 | 5.5 | 7.5 | 7.5 | 7.5 | 7.5 | 9 | 9 | 9 | 15 | 15 | 15 | |
* Standard Eurovent conditions: Evaporator entering/leaving water temperature 12°C and 7°C. Outdoor air temperature 35°C. (Eurovent стандартының шарттары: Буландырғышқа кіретін/шығатын су температурасы 12°C және 7°C. Сыртқы ауа температурасы 35°C.)
** Power input, compressor and fan, at unit operating limits (evaporator water entering/leaving temperature = 15°C/10°C, outdoor air temperature = 46°C) and a nominal voltage of 400 V (data given on the unit name plate). (Қуат кірісі, компрессор және желдеткіш, құрылғының жұмыс шектерінде (буландырғышқа кіретін/шығатын су температурасы = 15°C/10°C, сыртқы ауа температурасы = 46°C) және номиналды кернеу 400 V (құрылғының атаулық тақтайшасында көрсетілген мәліметтер).)
*** Maximum unit operating current at maximum unit power input. (Құрылғының максималды қуат кірісі кезіндегі максималды жұмыс тогы.)
**** Maximum instantaneous starting current (maximum operating current of the smallest compressor(s) + fan current + locked rotor current or reduced starting current of the largest compressor). (Максималды лездік іске қосу тогы (ең кіші компрессор(лар)дың максималды жұмыс тогы + желдеткіш тогы + ротордың құлыпталу тогы немесе ең үлкен компрессордың төмендетілген іске қосу тогы).)
† Current and power inputs not included in the values above (Жоғарыдағы мәндерге ток және қуат кірістері кірмейді)
N/A Not available (Қол жетімді емес)
| Reference (Анықтама) | Size (Өлшем) | I nom. | MHA | LRA | LRA (Y) | LRA (S) 1 cp. | LRA (S) 2 cp. |
| 06NA2146S7N | 39 | 70 | 95 | 605 | 191 | 220 | - |
| 06NA2174S7N | 46 | 90 | 120 | 715 | 226 | 260 | - |
| 06NA2209S7N | 56 | 113 | 145 | 856 | 270 | 330 | 420 |
| 06NA2250S7N | 66 | 130 | 175 | 960 | 303 | 380 | 500 |
| 06NA2300S5N | 80 | 156 | 210 | 1226 | 387 | 445 | 550 |
| 06NA2300S5E | 80+ | 174 | 240 | 1265 | 400 | 460 | 600 |
Legend: (Аңыздар:)
| 06NA | Compressor for air-cooled units (Ауамен салқындатылатын қондырғыларға арналған компрессор) |
| N | Non-economized compressor (Үнемделмеген компрессор) |
| E | Economized compressor (Үнемделген компрессор) |
| INOM | Average current draw of the compressor at Eurovent conditions (Eurovent жағдайларындағы компрессордың орташа ток тұтынуы) |
| MHA | Must hold amperes (maximum operating current) at 360 V (360 В кезінде амперді ұстап тұру керек (максималды жұмыс тогы)) |
| LRA | Locked rotor current with across-the-line start (Желілік іске қосу кезіндегі ротордың құлыпталу тогы) |
| LRA (Y) | Locked rotor current at reduced current (star/delta start-up mode) (Төмендетілген ток кезіндегі ротордың құлыпталу тогы (жұлдызша/дельта іске қосу режимі)) |
| LRA (S) 1 cp. | Start-up with reduced current with electronic starter (start-up duration 3 seconds max.) for one compressor per circuit (Тізбекке бір компрессор үшін электронды стартермен төмендетілген токпен іске қосу (іске қосу ұзақтығы макс. 3 секунд)) |
| LRA (S) 2 cp. | Start-up with reduced current with electronic starter (start-up duration 3 seconds max.) for two compressors per circuit (Тізбекке екі компрессор үшін электронды стартермен төмендетілген токпен іске қосу (іске қосу ұзақтығы макс. 3 секунд)) |
| Evaporator (Буландырғыш) | Minimum (Минимум) | Maximum (Максимум) | |
| Evaporator entering water temperature (Буландырғышқа кіретін су температурасы) | °C | 6.8* | 21 |
| Evaporator leaving water temperature (Буландырғыштан шығатын су температурасы) | °C | 4** | 15 |
| Condenser (water-cooled) (Конденсатор (сумен салқындатылған)) | Minimum (Минимум) | Maximum (Максимум) | |
| Condenser entering water temperature (Конденсаторға кіретін су температурасы) | °C | 20*** | 42 |
| Condenser leaving water temperature (Конденсатордан шығатын су температурасы) | °C | 25 | 45 |
| Outside ambient operating temperature 30HXC (Сыртқы ортаның жұмыс температурасы 30HXC) | °C | 6 | 40 |
| Condenser (air-cooled) (Конденсатор (ауамен салқындатылған)) | Minimum (Минимум) | Maximum (Максимум) | |
| Outdoor ambient operating temperature (Сыртқы ортаның жұмыс температурасы) | °C | 0 | 46 |
| Available static pressure (Қолжетімді статикалық қысым) | kPa | 0 |
Notes: (Ескертпелер:)
* For application requiring operation at less than 6.8°C, contact Carrier s.a. for unit selection using the Carrier electronic catalog. (6.8°C-тан төмен температурада жұмыс істеуді қажет ететін қолданба үшін, қондырғыны таңдау үшін Carrier электрондық каталогын пайдаланып Carrier s.a.-ға хабарласыңыз.)
** For application requiring operation at less than 4°C, the units require the use of antifreeze. (4°C-тан төмен температурада жұмыс істеуді қажет ететін қолданба үшін, қондырғылар антифризді пайдалануды қажет етеді.)
*** Water-cooled units (30HXC) operating at full load and below 20°C condenser entering water temperature require the use of a head pressure control with analogue water control valves (see paragraph on head pressure control). (Толық жүктемеде және 20°C-тан төмен конденсаторға кіретін су температурасында жұмыс істейтін сумен салқындатылған қондырғылар (30HXC) аналогты суды басқару клапандары бар қысымды басқаруды қажет етеді (қысымды басқару туралы абзацты қараңыз).)
In temporary operating modes (start-up and at part load) the unit can operate with a condenser entering air temperature of 13°C. (Уақытша жұмыс режимдерінде (іске қосу және ішінара жүктеме кезінде) қондырғы конденсаторға кіретін ауа температурасы 13°C болғанда жұмыс істей алады.)
Салқындатылған судың ең аз ағыны келесі беттегі кестеде көрсетілген. Егер ағын осыдан аз болса, буландырғыш ағынын диаграммада көрсетілгендей қайта айналдыруға болады. Буландырғыштан шығатын қоспаның температурасы салқындатылған судың кіру температурасынан 2,8 К-ден кем болмауы керек.

САЛҚЫНДАТЫЛҒАН СУДЫҢ ЕҢ АЗ АҒЫН ЖЫЛДАМДЫҒЫ ҮШІН
Салқындатылған судың ең көп ағыны буландырғыштағы рұқсат етілген ең көп қысымның төмендеуімен шектеледі. Ол келесі беттегі кестеде келтірілген. Егер ағын ең көп мәннен асып кетсе, екі шешім бар:

САЛҚЫНДАТЫЛҒАН СУДЫҢ ЕҢ КӨП АҒЫН ЖЫЛДАМДЫҒЫ ҮШІН
Стандартты 30HXC және 30GX чиллерлерінде айнымалы буландырғыш ағынын пайдалануға болады. Салқындатқыштар барлық ағын жағдайларында судың тұрақты шығу температурасын сақтайды. Бұл үшін ең аз ағын жылдамдығы рұқсат етілген ағын жылдамдықтары кестесінде көрсетілген ең аз ағыннан жоғары болуы керек және минутына 10%-дан аспауы керек. Егер ағын жылдамдығы тезірек өзгерсе, жүйеде 3,25 л/кВ орнына әр кВ үшін кемінде 6,5 литр су болуы керек.
Жүйе қандай болса да, су контурының ең аз сыйымдылығы келесі формуламен беріледі:
Сыйымдылық = Cap (кВ) x N Литр
| Қолдану | N |
| Қалыпты ауаны кондиционерлеу | 3.25 |
| Процестік типтегі салқындату | 6.5 |
Мұнда Cap - қондырғының номиналды жұмыс жағдайларындағы номиналды жүйені салқындату сыйымдылығы (кВ).
Бұл көлем тұрақты жұмыс істеу және температураны дәл басқару үшін қажет.
Көбінесе қажетті көлемге қол жеткізу үшін тізбекке буферлік су багын қосу қажет. Сұйықтықтың (су немесе тұздық) дұрыс араласуын қамтамасыз ету үшін резервуардың өзі ішкі жағынан бөлшектелуі керек. Төмендегі мысалдарды қараңыз.
ЕСКЕРТПЕ: Компрессор сағатына 6 реттен артық қайта іске қосылмауы керек.


| 30HXC | Min.* | Max.** | ||
| 080-090 | 5.7 | 22.7 | ||
| 100 | 6.0 | 24.1 | ||
| 110 | 6.9 | 27.5 | ||
| 120-130 | 8.3 | 33.0 | ||
| 140-155 | 10.0 | 39.5 | ||
| 175-190 | 10.7 | 42.7 | ||
| 200 | 13.4 | 53.7 | ||
| 230 | 13.4 | 60.6 | ||
| 260-285 | 17.0 | 68.1 | ||
| 310 | 19.4 | 77.8 | ||
| 345-375 | 21.3 | 85.3 | ||
| 30GX | Min.* | Max.** | ||
| 082 | 5.7 | 22.7 | ||
| 092-102 | 6.0 | 24.1 | ||
| 112-122 | 6.9 | 27.5 | ||
| 132 | 8.4 | 33.7 | ||
| 152-162 | 10.0 | 39.9 | ||
| 182 | 10.7 | 42.7 | ||
| 207-227 | 13.4 | 53.7 | ||
| 247 | 15.1 | 60.6 | ||
| 267 | 17.0 | 68.1 | ||
| 298 | 19.4 | 77.8 | ||
| 328-358 | 21.3 | 85.3 | ||
* 0.9 м/с су жылдамдығына негізделген.
** 3.6 м/с су жылдамдығына негізделген.
| 30HXC | Min.* Жабық контур (Closed loop) | Ашық контур (Open loop) | Max.** |
| 080-110 | 2.5 | 7.5 | 29.9 |
| 120-130 | 3.1 | 9.3 | 37.3 |
| 140-155 | 3.8 | 11.4 | 45.5 |
| 175-190 | 4.6 | 13.8 | 55.2 |
| 200 | 5.0 | 14.9 | 59.6 |
| 230-285 | 6.7 | 20.1 | 80.3 |
| 310-375 | 7.3 | 22.0 | 88.0 |
* Жабық контурда 0.3 м/с және ашық контурда 0.9 м/с су жылдамдығына негізделген.
** 3.6 м/с су жылдамдығына негізделген


Салқындатқыш ағынының қосқышын орнату және 30HXC және 30GX құрылғыларында салқындатылған су сорғысының құлыптауын қосу міндетті. Бұл нұсқаулықты орындамау Carrier кепілдігін жояды.
Салқындатқыш ағынының қосқыш контроллері зауытта 30HXC және 30GX құрылғыларына жеткізіледі және сыммен жалғанады.
Орнату үшін өндірушінің нұсқауларын орындаңыз.
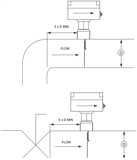
Ағын қосқышын көлденең құбырға немесе жоғары қарай сұйық ағыны бар тік құбырға орнатуға болады. Сұйық ағыны төмен қарай бағытталған кезде оны пайдалануға болмайды.
Ағын қосқышының әр жағында кемінде бес құбыр диаметрі болатын түзу құбыр бөлігіне орнатыңыз. Клапандардың, иіндердің немесе тесіктердің жанына орналастырмаңыз. Күрекше ешқашан құбырға немесе құбырдағы кез келген шектеуге тиіспеуі керек. Ағын қосқышын күрекшенің жалпақ бөлігі ағынға тік бұрыш жасайтындай етіп бұраңыз. Қақпақтағы және төменгі жағындағы, корпустың ішіндегі көрсеткілер ағын бағытын көрсетуі керек. Қосқыш сымдарды оңай қосу үшін терминалдарға қол жетімді болатындай етіп орнатылуы керек.
34 және 35 терминалдары салқындатылған су сорғысының құлыптауын (салқындатылған су сорғысы контакторының қосалқы контакты) далалық орнату үшін қарастырылған.
(Құбыр қосылымы: 1" NPT)

Конденсатор ағынының қосқышы - далада орнатылатын құрылғы.
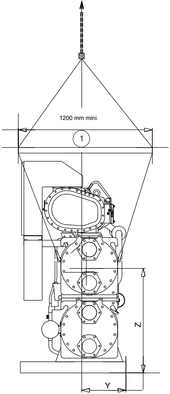
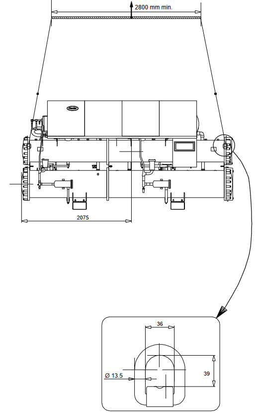
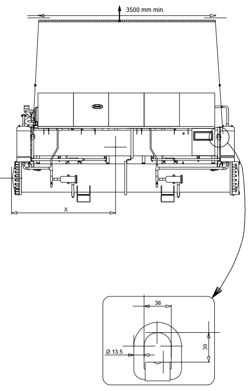
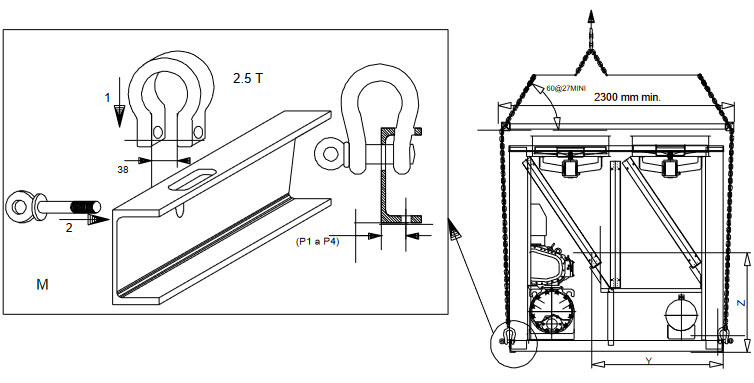
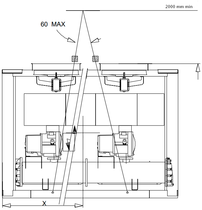
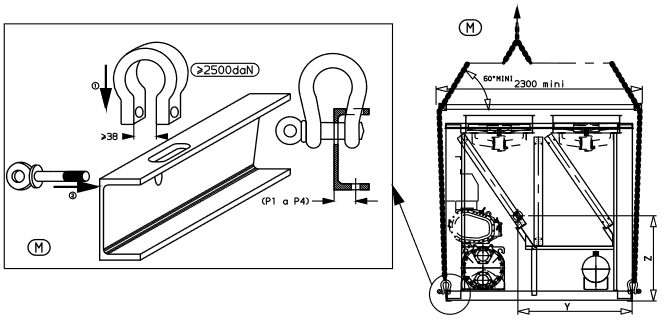
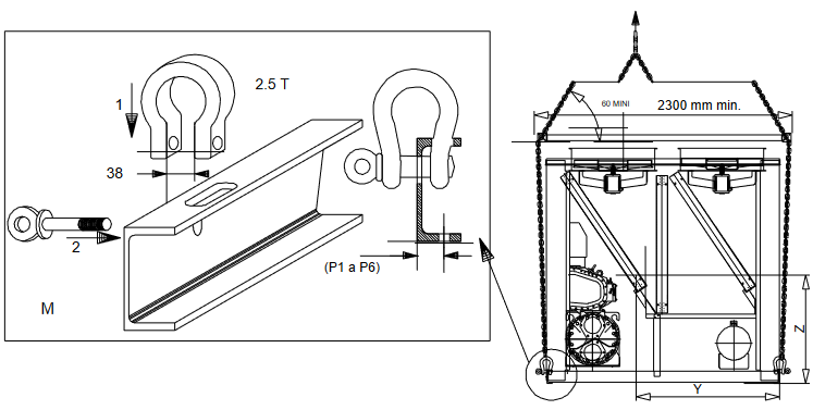
Құрылғы соңғы орнына келгенше сырғанақтарды, поддондарды немесе қорғаныш орамасын шешпеңіз. Салқындатқышты түтіктер немесе роликтер арқылы жылжытыңыз немесе дұрыс сыйымдылықтағы ілмектерді пайдаланып көтеріңіз.
(30HXC)
Ілмектерді тек құрылғыда, салқындатқыш жылу алмастырғышының үстінде белгіленген көтеру нүктелерінде ғана пайдаланыңыз. Жылу алмастырғыштың төменгі жағынан бекіту құрылғының қауіпсіз көтерілуіне әкеледі. Жеке жарақат алу немесе құрылғының зақымдалуы мүмкін. Құрылғымен бірге берілген сертификатталған өлшемдік сызбада берілген бекіту нұсқауларын орындаңыз.
Барлық қосылымдар мен қызмет көрсету операциялары үшін жеткілікті орын бар екенін растау үшін әрқашан "Өлшемдер мен саңылаулар" тарауын қараңыз. Ауырлық орталығының координаттары, құрылғыны бекіту тесіктерінің орны және салмақ бөлу нүктелері үшін құрылғымен бірге берілген сертификатталған өлшемдік сызбаны қараңыз.
Бұл салқындатқыштарды жертөледе немесе жер деңгейінде орнатуды ұсынамыз. Егер оны жер деңгейінен жоғары орнату керек болса, алдымен рұқсат етілген еденнің жүктемесі жеткілікті екенін және еденнің жеткілікті берік және тегіс екенін тексеріңіз. Қажет болса, еденді нығайтыңыз және тегістеңіз.
Салқындатқыш соңғы орнында тұрғанда, оны жылжытуға көмектесетін сырғанақтарды және басқа құрылғыларды алыңыз. Құрылғыны көпіршікті деңгейді пайдаланып тегістеңіз және құрылғыны еденге немесе іргетасқа бұрандаңыз. Егер бұл құрылғылар тегіс болмаса және бекіткіштеріне мықтап бекітілмесе, олардың жұмысы нашарлауы мүмкін. Қажет болса, дірілді оқшаулауға көмектесу үшін құрылғының астына оқшаулағыш төсемдерді пайдаланыңыз.
Бұл диаграмма тек ақпарат үшін көрсетілген. "Сертификатталған сызбаларды" қараңыз.

| X мм | Y мм | Z мм | |
| 30HXC080 30HXC090 30HXC100 |
1345 | 402 | 903 |
| 30HXC110 | 1368 | 397 | 935 |
| 30HXC120 30HXC130 30HXC140 30HXC155 |
1731 | 392 | 879 |
| 30HXC175 | 1703 | 386 | 947 |
| 30HXC190 | 1705 | 398 | 955 |


ЕСКЕРТПЕ
Барлық көтеру және орналастыру операциялары аяқталғаннан кейін көтеру ілмектеріндегі бояу алынып тасталған барлық беттерді бояу ұсынылады.
Бұл диаграмма тек ақпарат үшін көрсетілген. "Сертификатталған сызбаларды" қараңыз.




| X мм | Y мм | Z мм | |
| 30HXC310 | 2195 | 425 | 1085 |
| 30HXC345 | 2195 | 425 | 1085 |
| 30HXC375 | 2205 | 435 | 1025 |
ЕСКЕРТПЕ
Барлық көтеру және орналастыру операциялары аяқталғаннан кейін көтеру ілмектеріндегі бояу алынып тасталған барлық беттерді бояу ұсынылады.
Бұл диаграмма тек ақпарат үшін көрсетілген. "Сертификатталған сызбаларды" қараңыз.



| X мм | Y мм | Z мм | PTkg | |
| 30GX082 | 1440 | 1460 | 900 | 3115 |
| 30GX092 | 1440 | 1460 | 900 | 3156 |
| 30GX102 | 1440 | 1460 | 900 | 3170 |
| 30GX112 | 1650 | 1460 | 900 | 3574 |
| 30GX122 | 1650 | 1460 | 900 | 3527 |
| 30GX132 | 1650 | 1460 | 900 | 3634 |
| 30GX152 | 2155 | 1430 | 900 | 3938 |
| 30GX162 | 2155 | 1430 | 900 | 3954 |



| X мм | Y мм | Z мм | PTkg | |
| 30GX182 | 3030 | 1370 | 875 | 4853 |
ЕСКЕРТПЕ
Барлық көтеру және орналастыру операциялары аяқталғаннан кейін көтеру ілмегіндегі бояу алынып тасталған барлық беттерді бояу ұсынылады.
Бұл диаграмма тек ақпарат үшін көрсетілген. "Сертификатталған сызбаларды" қараңыз.



| X мм | Y мм | Z мм | PTkg | |
| 30GX207 | 2870 | 1440 | 890 | 5536 |
| 30GX227 | 2870 | 1440 | 890 | 5572 |
| 30GX247 | 3320 | 1430 | 927 | 6131 |
| 30GX267 | 3300 | 1420 | 886 | 6363 |



| X мм | Y мм | Z мм | PTkg | |
| 30GX298 | 3630 | 1420 | 890 | 7353 |
| 30GX328 | 4360 | 1455 | 920 | 7840 |
| 30GX358 | 4360 | 1445 | 930 | 8045 |
ЕСКЕРТПЕ
Барлық көтеру және орналастыру операциялары аяқталғаннан кейін көтеру ілмектеріндегі бояу алынып тасталған барлық беттерді бояу ұсынылады.
Барлық су кірістері мен шығыстарының өлшемдері мен орналасуы үшін сертификатталған өлшемдік сызбаларды қараңыз. Су құбырлары жылу алмастырғыштарға радиалды немесе осьтік күш бермеуі керек немесе құбырларға немесе ғимаратқа діріл бермеуі керек.
Сумен жабдықтауды талдау керек және қажет болған жағдайда сүзгілеу, өңдеу, басқару құрылғылары, оқшаулау және шығару клапандары мен тізбектері орнатылуы керек. Суды тазарту маманымен немесе тақырып бойынша тиісті әдебиеттермен кеңесіңіз.
Су тізбегі ең аз иіндер мен әртүрлі деңгейлердегі көлденең құбырлардың болуы үшін жасалуы керек. Төмендегі негізгі тексерулерді орындау керек (сонымен қатар төмендегі типтік гидравликалық тізбектің суретін қараңыз).
Буландырғыш пен конденсатор көп түтікті қабықша және түтік түрінде болады, түтіктерді тазалауды жеңілдету үшін алынбалы су қораптары бар.
Су қосылымдарын жасамас бұрын, көрсетілген әдісті қолдана отырып, екі басындағы болттарды көрсетілген төменгі моментке дейін қатайтыңыз. Болттың өлшеміне сәйкес көрсетілген диапазонның төменгі жағындағы момент мәнін пайдаланып, жұптармен және көрсетілген ретпен қатайтыңыз (кестені қараңыз).
Құбырларды фланецке дәнекерлемес бұрын, зауытта жеткізілген жалпақ фланецті су қорабынан алыңыз. Фланецті алып тастамау сенсорлар мен оқшаулауды зақымдауы мүмкін.
ЕСКЕРТПЕ
Құбырлар қосылған бастардың болттары дұрыс және біркелкі қатайтылғанына көз жеткізу үшін жүйені құрғатып, құбырларды ажыратуды ұсынамыз.
Буландырғыш пен сумен салқындатылған конденсаторды қорғау
Егер салқындатқыш немесе су құбырлары қоршаған орта температурасы 0°C-тан төмен түсетін аймақта болса, құрылғыны және су құбырларын ең төменгі температурадан 8 K төмен температураға дейін қорғау үшін антифриз ерітіндісін қосу ұсынылады. Жылу алмастырғыш үшін мақұлданған антифриз ерітінділерін ғана пайдаланыңыз. Егер жүйе антифриз ерітіндісімен қорғалмаса және қату ауа райы жағдайында пайдаланылмаса, салқындатқышты және сыртқы құбырларды құрғату міндетті болып табылады. Қату салдарынан болған зақымдану кепілдікке кірмейді.

Аңыз

Аңыз
EN 60204-1 стандарты Машиналар директивасының § 1.5.1 талаптарына жауап берудің жақсы тәсілі болып табылады. IEC 364 нормативтік ұсынысы, әдетте, орнату ережесінің талаптарына сәйкес келеді деп танылады.
EN 60204-1 стандартының B қосымшасы машиналар жұмыс істейтін электрлік сипаттамаларды сипаттау үшін пайдаланылуы мүмкін.
(1) Осы жіктеуге қатысты талап етілетін қорғау стандарты IP21B (IEC 529 анықтамалық құжатына сәйкес). Барлық 30HXC IP23C қорғау стандартына ие және сондықтан осы қорғау талабын орындайды.
Персоналдың құзыреттілігі: BA4 жіктелуі(2) (IEC 364 стандартына сәйкес біліктілігі бар персонал).
(2) Осы жіктеуге қатысты талап етілетін қорғау стандарты IP43BW (IEC 529 анықтамалық құжатына сәйкес). Барлық 30GX IP45CW қорғау стандартына ие және сондықтан осы қорғау талабын орындайды.
ЕСКЕРТПЕ: Егер орнатудың белгілі бір аспектілері жоғарыда тізімделгеннен өзгеше сипаттамаларды (немесе мұнда айтылмаған сипаттамаларды) талап етсе, Carrier өкіліне хабарласыңыз.
Қуат көзі чиллердің зауыттық тақтайшасындағы спецификацияға сәйкес келуі керек. Қоректендіру кернеуі электрлік деректер кестесінде көрсетілген диапазон ішінде болуы керек.
Қосылымдар үшін сымдар схемаларына жүгініңіз.
Чиллерді дұрыс емес қоректендіру кернеуімен немесе фазалық теңгерімсіздікпен пайдалану Carrier кепілдігін жоятын теріс пайдалану болып табылады. Егер фазалық теңгерімсіздік кернеу үшін 2%-дан немесе ток үшін 10%-дан асып кетсе, жергілікті электрмен жабдықтау ұйымына дереу хабарласыңыз және түзету шаралары қабылданғанға дейін чиллердің қосылмауын қамтамасыз етіңіз.
100 x орташа кернеуден макс. ауытқу
Орташа кернеу
Мысал:
400 V - 3 ph - 50 Hz қоректендіруде жеке фазалық кернеулер келесідей өлшенді:
AB = 406 V; BC = 399; AC = 394 V
| Орташа кернеу | = (406 + 399 + 394)/3 = 1199/3 |
| = 399.7 шамамен 400 V |
400 V орташа мәнінен максималды ауытқуды есептеңіз:
(AB) = 406 - 400 = 6
(BC) = 400 - 399 = 1
(CA) = 400 - 394 = 6

Орташа мәннен максималды ауытқу 6 V құрайды. Ең үлкен пайыздық ауытқу:
100 x 6/400 = 1.5 %
Бұл рұқсат етілген 2%-дан аз және сондықтан қолайлы.
Сымның өлшемін орнатушы анықтайды және ол әрбір орнату орнына қатысты сипаттамалар мен ережелерге байланысты. Төмендегілер тек нұсқаулық ретінде ғана пайдаланылады және Carrier-ді ешбір жағдайда жауапты етпейді. Сымның өлшемі аяқталғаннан кейін, сертификатталған өлшемдік сызбаны пайдалана отырып, орнатушы оңай қосылуды қамтамасыз етуі және сайтта қажетті кез келген өзгерістерді анықтауы керек.
Жалпы ажыратқышқа/оқшаулағышқа далалық қуат кіріс кабельдеріне арналған стандартты қосылымдар төмендегі кестеде көрсетілген сымдардың саны мен түріне арналған.
Есептеулер машинаның максималды тогына негізделген (электрлік деректер кестелерін қараңыз).
Жобалау үшін IEC 364, 52C кестесіне сәйкес келетін келесі стандартталған орнату әдістері қолданылады:
Есептеу мыс немесе алюминий өзекшелі ПВХ немесе XLPE оқшауланған кабельдерге негізделген. Максималды температура 30HX құрылғылары үшін 40°C және 30GX құрылғылары үшін 46°C.
Берілген сым ұзындығы кернеудің төмендеуін < 5%-ға дейін шектейді.
| Unit (Блок) | Min. (mm2) by phase (фаза бойынша) | Wire type (Сым түрі) | L (m) | Max. (mm2) by phase (фаза бойынша) | Wire type (Сым түрі) | L (m) |
| 30HX 080 | 1 x 35 | XLPE Cu | 140 | 1 x 120 | PVC Al | 260 |
| 30HX 090 | 1 x 50 | XLPE Cu | 160 | 1 x 120 | PVC Al | 260 |
| 30HX 100 | 1 x 50 | XLPE Cu | 160 | 1 x 95 | XLPE Al | 195 |
| 30HX 110 | 1 x 70 | XLPE Cu | 170 | 1 x 120 | XLPE Al | 205 |
| 30HX 120/130 | 1 x 70 | XLPE Cu | 170 | 1 x 150 | XLPE Al | 210 |
| 30HX 140 | 1 x 95 | XLPE Cu | 180 | 1 x 185 | XLPE Al | 220 |
| 30HX 155 | 1 x 95 | XLPE Cu | 180 | 1 x 240 | XLPE Al | 225 |
| 30HX 175 | 1 x 120 | XLPE Cu | 185 | 1 x 240 | XLPE Al | 225 |
| 30HX 190 | 1 x150 | XLPE Cu | 190 | 2 x 95 | XLPE Al | 195 |
| 30HX 200 ckt A | 1 x 70 | XLPE Cu | 170 | 2 x120 | PVC Al | 325 |
| 30HX 230 ckt A | 1 x 95 | XLPE Cu | 180 | 2 x 120 | PVC Al | 325 |
| 30HX 260 ckt A | 1 x 120 | XLPE Cu | 185 | 1 x 240 | XLPE Al | 225 |
| 30HX 285 ckt A | 1 x 150 | XLPE Cu | 190 | 2 x 150 | XLPE Al | 265 |
| 30HX 200 ckt B | 1 x 35 | XLPE Cu | 140 | 1 x 95 | PVC Al | 250 |
| 30HX 230 ckt B | 1 x 35 | XLPE Cu | 140 | 1 x 120 | PVC Al | 260 |
| 30HX 260 ckt B | 1 x 35 | XLPE Cu | 140 | 1 x 120 | PVC Al | 260 |
| 30HX 285 ckt B | 1 x 50 | XLPE Cu | 160 | 2 x 70 | PVC Al | 285 |
| 30HX 310 ckt A & B | 1 x 95 | XLPE Cu | 180 | 1 x 240 | XLPE Al | 225 |
| 30HX 345 ckt A & B | 1 x 120 | XLPE Cu | 185 | 1 x 240 | XLPE Al | 225 |
| 30HX 375 ckt A & B | 1 x 150 | XLPE Cu | 190 | 2 x 150 | XLPE Al | 265 |
| 30GX 082 | 1 x 95 | XLPE Cu | 190 | 2 x 185 | PVC Al | 420 |
| 30GX 092 | 1 x 120 | XLPE Cu | 195 | 2 x 185 | PVC Al | 420 |
| 30GX 102 | 1 x 120 | XLPE Cu | 195 | 2 x 240 | PVC Al | 450 |
| 30GX 112 | 1 x 150 | XLPE Cu | 200 | 2 x 150 | XLPE Al | 300 |
| 30GX 122 | 1 x 185 | XLPE Cu | 205 | 2 x 185 | XLPE Al | 315 |
| 30GX 132 | 1 x 185 | XLPE Cu | 205 | 2 x 240 | XLPE Al | 330 |
| 30GX 152 | 1 x 240 | XLPE Cu | 205 | 3x 185 | XLPE CU | 430 |
| 30GX 162 | 2 x 95 | XLPE Cu | 190 | 3x 240 | XLPE CU | 440 |
| 30GX 182 | 2 x 120 | XLPE Cu | 200 | 3x 240 | XLPE CU | 440 |
| 30GX 207 ckt A | 1 x 185 | XLPE Cu | 205 | 3x 185 | XLPE Al | 445 |
| 30GX 227 ckt A | 1 x 240 | XLPE Cu | 205 | 3x 240 | XLPE Al | 470 |
| 30GX 247/298/328 ckt A | 2 x 120 | XLPE Cu | 225 | 3x 185 | XLPE CU | 490 |
| 30HX 267/358 ckt A | 2 x 150 | XLPE Cu | 230 | 3x 240 | XLPE CU | 505 |
| 30GX 207/227/247 ckt B | 1 x 95 | XLPE Cu | 190 | 2 x 240 | PVC Al | 560 |
| 30HX 267 ckt B | 1 x 120 | XLPE Cu | 200 | 2 x 185 | XLPE AL | 395 |
| 30GX 298 ckt B | 1 x 185 | XLPE Cu | 205 | 3x 240 | XLPE AL | 470 |
| 30GX 328 ckt B | 2 x 120 | XLPE Cu | 225 | 3x 185 | XLPE CU | 490 |
| 30GX 358 ckt B | 2 x 150 | XLPE Cu | 230 | 3x 240 | XLPE CU | 505 |
Негізгі қуат кабелдерін (L1 - L2 - L3) терминал блогына қосу алдында, терминал блогына немесе негізгі ажыратқышқа/изолятор қосқышқа қосылуды жалғастырмас бұрын 3 фазаның дұрыс ретін тексеру міндетті.
Келесі мүмкіндіктердің алаңды басқару сымдары үшін Controls IOM және құрылғымен бірге берілген сертификатталған сымдық диаграмманы қараңыз:
Жоғары конденсация температурасы бар құрылғылар үшін ұсынылатын сым қималары (400 V - 3 ph - 50 Hz)
| Құрылғы, опциялар 150 + 150A 400 V - 3 ph - 50 Hz | Минимум (mm2) фаза бойынша | Сым түрі | L (m) | Максимум (mm2) фаза бойынша | Сым түрі | L (m) |
| 30HXC 080 OPT. 150 | 1 x 50 | XLPE Cu | 150 | 2 x 70 | PVC Al | 230 |
| 30HXC 090 OPT. 150 | 1 x 70 | XLPE Cu | 160 | 2 x 95 | PVC Al | 260 |
| 30HXC 100 OPT. 150 | 1 x 70 | XLPE Cu | 160 | 2 x 95 | PVC Al | 250 |
| 30HXC 110 OPT. 150 | 1 x 95 | XLPE Cu | 170 | 2 x 120 | PVC Al | 265 |
| 30HXC 120 OPT. 150 | 1 x 120 | XLPE Cu | 180 | 2 x 120 | XLPE Al | 205 |
| 30HXC 130 OPT. 150 | 1 x 120 | XLPE Cu | 160 | 2 x 120 | XLPE Al | 210 |
| 30HXC 140 OPT. 150 | 1 x 150 | XLPE Cu | 175 | 2 x 120 | XLPE Al | 205 |
| 30HXC 155 OPT. 150 | 1 x 185 | XLPE Cu | 185 | 2 x 150 | XLPE Al | 215 |
| 30HXC 175 OPT. 150 | 1 x 240 | XLPE Cu | 185 | 2 x 150 | XLPE Al | 210 |
| 30HXC 190 OPT. 150 | 2 x 95 | XLPE Cu | 175 | 2 x 240 | XLPE Al | 220 |
| 30HXC 200 OPT. 150 circ. A | 1 x 120 | XLPE Cu | 170 | 2 x 150 | XLPE Al | 270 |
| 30HXC 230 OPT. 150 circ. A | 1 x 150 | XLPE Cu | 180 | 2 x 185 | XLPE Al | 270 |
| 30HXC 260 OPT. 150 circ. A | 1 x 185 | XLPE Cu | 180 | 2 x 240 | XLPE Al | 295 |
| 30HXC 285 OPT. 150 circ. A | 1 x 240 | XLPE Cu | 170 | 2 x 185 | XLPE Cu | 265 |
| 30HXC 310 OPT. 150 circ. A | 1 x 185 | XLPE Cu | 180 | 2 x 240 | XLPE Al | 300 |
| 30HXC 345 OPT. 150 circ. A | 1 x 185 | XLPE Cu | 170 | 2 x 240 | XLPE Al | 280 |
| 30HXC 375 OPT. 150 circ. A | 1 x 240 | XLPE Cu | 170 | 2 x 185 | XLPE Cu | 265 |
| 30HXC 200 OPT. 150 circ. B | 1 x 35 | XLPE Cu | 125 | 2 x 95 | PVC Al | 320 |
| 30HXC 230 OPT. 150 circ. B | 1 x 50 | XLPE Cu | 140 | 2 x 95 | PVC Al | 310 |
| 30HXC 260 OPT. 150 circ. B | 1 x 50 | XLPE Cu | 140 | 2 x 95 | PVC Al | 310 |
| 30HXC 285 OPT. 150 circ. B | 1 x 70 | XLPE Cu | 160 | 2 x 120 | PVC Al | 325 |
| 30HXC 310 OPT. 150 circ. B | 1 x 150 | XLPE Cu | 180 | 2 x 185 | XLPE Al | 275 |
| 30HXC 345 OPT. 150 circ. B | 1 x 185 | XLPE Cu | 185 | 2 x 240 | XLPE Al | 305 |
| 30HXC 375 OPT. 150 circ. B | 1 x 185 | XLPE Cu | 160 | 2 x 240 | XLPE Al | 280 |
Май сүзгісі
06N роторлы компрессорының компрессор корпусына кіріктірілген май сүзгісі бар. Бұл сүзгіні далада ауыстыруға болады.
Салқындатқыш
06N роторлы компрессоры тек R134 a жүйесінде ғана қолданылуы үшін арнайы жасалған.
Жағармай
06N роторлы компрессоры келесі жағармаймен пайдалануға рұқсат етілген.
CARRIER MATERIAL SPEC PP 47-32
Май беру электромагниттік клапаны
Компрессор жұмыс істемеген кезде компрессорды май ағынынан оқшаулау үшін компрессорда май беру электромагниттік клапаны стандартты болып табылады.
Май электромагнитті клапанын далада ауыстыруға болады.
Сорғыш және үнемдегіш торлары
Компрессордың сенімділігін арттыру үшін компрессордың сорғыш және үнемдегіш кірістеріне стандартты функция ретінде тор енгізілген.
Түсіру жүйесі
06N роторлы компрессорында барлық компрессорларда стандартты болып табылатын түсіру жүйесі бар. Бұл түсіру жүйесі компрессордың өнімділігін ішінара сығылған газды қайтадан соруға бағыттау арқылы төмендететін түсірудің екі қадамынан тұрады.
30HXC және 30GX салқындатқыштары су басылған буландырғышты пайдаланады. Су түтіктерде айналады, ал салқындатқыш сыртында қабықта болады. Екі салқындатқыш контуріне де қызмет көрсету үшін бір ыдыс қолданылады. Екі салқындатқыш контурін бөлетін орталық түтік парағы бар. Түтіктердің диаметрі 3/4" мыс, ішінде және сыртында жақсартылған беті бар. Тек бір су контурі ғана бар және салқындатқыштың өлшеміне байланысты екі немесе үш су өткелі болуы мүмкін. Салқындатқыш сұйықтық деңгейінің сенсоры оңтайландырылған ағынды басқаруды қамтамасыз етеді.
Салқындатқыштың жоғарғы жағында екі сорғыш құбыры бар, олардың әрқайсысы контурда орналасқан. Әрқайсысына фланец дәнекерленген және компрессор фланецке орнатылады.
30HXC салқындатқышы конденсатор мен май бөлгіштің комбинациясы болып табылатын ыдысты пайдаланады. Ол салқындатқыштың астына орнатылады. Шығару газы компрессордан шығып, сыртқы глушитель арқылы май бөлгішке өтеді, ол ыдыстың жоғарғы бөлігі болып табылады. Ол бөлгіштің жоғарғы жағына кіреді, онда май алынады, содан кейін ыдыстың төменгі бөлігіне өтеді, онда газ конденсацияланып, салқындатылады. Екі салқындатқыш контуріне де қызмет көрсету үшін бір ыдыс қолданылады. Екі салқындатқыш контурін бөлетін орталық түтік парағы бар. Түтіктердің диаметрі 3/4" немесе 1" мыс, ішінде және сыртында жақсартылған беті бар. Екі су өткелі бар тек бір су контурі ғана бар.
Ауамен салқындатылатын құрылғыларда май бөлгіш - бұл сыртқы тік конденсатор катушкаларының астына орнатылған қысымды ыдыс. Шығару газы бөлгіштің жоғарғы жағына кіреді, онда майдың көп бөлігі бөлініп, төменгі жағына ағып кетеді. Содан кейін газ сымды торлы экран арқылы өтеді, онда қалған май бөлініп, төменгі жағына ағып кетеді.
Микропроцессор EXV басқару модулі арқылы EXD-ны басқарады. EXD не EXV, не үнемдегіш болады. Осы құрылғылардың екеуінің ішінде сызықтық жетектегі қадамдық қозғалтқыш бар. Жоғары қысымды сұйық салқындатқыш клапанға төменгі жағынан кіреді. Саңылау жинағының ішінде калибрленген саңылаулар сериясы орналасқан. Салқындатқыш саңылаудан өткен кезде қысым төмендейді және салқындатқыш 2 фазалы күйге (сұйық және бу) өзгереді. Әртүрлі жұмыс жағдайлары үшін салқындатқыш ағынын басқару үшін жең саңылаудың үстінен жоғары және төмен қозғалады, осылайша кеңейту құрылғысының тиімді ағын ауданын өзгертеді. Жең сызықтық қадамдық қозғалтқышпен жылжытылады. Қадамдық қозғалтқыш қадамдармен қозғалады және процессор модулімен тікелей басқарылады. Қадамдық қозғалтқыш айналған кезде қозғалыс жетекші бұранда арқылы сызықтық қозғалысқа беріледі. Қадамдық қозғалтқыш пен жетекші бұрандалар арқылы қозғалыстың 1500 дискретті қадамы алынады. Қадамдардың көп саны және ұзақ жүріс салқындатқыш ағынын өте дәл басқаруға әкеледі. Әрбір контурдың салқындатқыш қабығының жоғарғы жағына тігінен орнатылған сұйықтық деңгейінің сенсоры бар. Деңгей сенсоры шағын электрлік кедергі жылытқышынан және құдық корпусының ішінде әртүрлі биіктіктерде орналасқан тізбектей қосылған үш термистордан тұрады. Жылытқыш термисторлар құрғақ ауада шамамен 93,3°C көрсететіндей етіп жасалған. Салқындатқыштағы салқындатқыш деңгейі көтерілген сайын ең жақын термистордың кедергісі айтарлықтай өзгереді. Бұл үлкен кедергі айырмашылығы басқаруға көрсетілген деңгейді дәл ұстап тұруға мүмкіндік береді. Деңгей сенсоры салқындатқыштағы салқындатқыш сұйықтық деңгейін бақылайды және бұл ақпаратты PSIO-1-ге жібереді. Бастапқы іске қосу кезінде EXV позициясы нөлде болады. Одан кейін микропроцессор клапанның позициясын дәл қадағалап отырады, осы ақпаратты басқа басқару функциялары үшін кіріс ретінде пайдалану үшін. Ол мұны EXV-лерді іске қосу кезінде іске асырады. Процессор клапанға толық ашықтан толық жабыққа дейін жылжыту үшін жеткілікті жабу импульстарын жібереді, содан кейін позиция есептегішін нөлге қайтарады. Осы сәттен бастап іске қосуға дейін процессор әр клапанға жіберген ашық және жабық қадамдардың жалпы санын есептейді.
Үнемдегіштер 30HXC 190, 285 және 375 және 30GX 182, 267 және 358-ге орнатылған.
Үнемдегіш салқындатқыштың сыйымдылығы мен тиімділігін жақсартады, сонымен қатар компрессор қозғалтқышын салқындатуды қамтамасыз етеді. Үнемдегіштің ішінде сызықтық EXV қадамдық қозғалтқышы да, қалқымалы клапан да бар. EXV PIC арқылы салқындатқыштағы қажетті сұйықтық деңгейін ұстап тұру үшін басқарылады (үнемделмеген салқындатқыштар үшін жасалғандай). Қалқымалы клапан үнемдегіштің төменгі жағындағы сұйықтық деңгейін ұстап тұрады. Сұйық салқындатқыш конденсатордан үнемдегіштің төменгі жағына беріледі. Салқындатқыш EXV арқылы өткен кезде оның қысымы шамамен 500 кПа аралық деңгейге дейін төмендейді. Бұл қысым үнемдегіш қабығының ішінде сақталады. Содан кейін салқындатқыш қалқымалы клапан арқылы өтеді, оның қысымы салқындатқыштағы қысымнан сәл жоғарырақ төмендейді. Өнімділіктің жоғарылауы EXV арқылы өтетін салқындатқыштың бір бөлігі буға айналған кезде, үнемдегіштің төменгі жағында сақталатын сұйықтықты одан әрі салқындатады. Салқындатудың бұл жоғарылауы қосымша сыйымдылықты қамтамасыз етеді. Бұған қол жеткізу үшін қосымша қуат қажет болмағандықтан, машинаның тиімділігі де артады. Буға айналатын бу үнемдегішке көтеріледі, онда ол компрессорға өтеді және қозғалтқышты салқындатуды қамтамасыз ету үшін қажетінше пайдаланылады. Қозғалтқыш орамаларының үстінен өткеннен кейін салқындатқыш сығылу цикліндегі аралық портта циклге қайта кіреді.
30GX/HXC роторлы салқындатқыштары әр контурға арналған сыртқы орнатылған алдын ала майлау май сорғысын пайдаланады. Бұл сорғы іске қосу тізбегінің бөлігі ретінде жұмыс істейді.
НАЗАР АУДАРЫҢЫЗ:
Катушканың жұмыс температурасы 80°C-қа жетуі мүмкін. Кейбір уақытша жағдайларда (әсіресе сыртқы төмен температурада немесе төмен конденсатор контурының температурасында іске қосу кезінде) май сорғысы қайта қосылуы мүмкін.
30GX құрылғыларында сорғылар құрылғының май бөлгіш жағындағы негізгі рельстерге орнатылады. Сорғылар 30HXC құрылғыларының конденсаторларындағы кронштейнге орнатылады. Контурды іске қосу қажет болғанда басқару элементтері алдымен май сорғысын іске қосады, осылайша компрессор дұрыс майлаумен іске қосылады. Егер сорғы жеткілікті май қысымын жасаса, компрессордың іске қосылуына рұқсат етіледі. Компрессор іске қосылғаннан кейін май сорғысы өшіріледі. Егер сорғы жеткілікті май қысымын жасай алмаса басқару дабылды жасайды.
Компрессор қозғалтқышы орамаларының температурасы оңтайлы мәнге дейін басқарылады. Басқару қозғалтқышты салқындату электромагниттік клапанын циклдеу арқылы қажетінше сұйық салқындатқыштың қозғалтқыш орамалары арқылы өтуіне мүмкіндік береді. Үнемдегіштермен жабдықталған құрылғыларда бу газы үнемдегіштің жоғарғы жағынан шығып, қозғалтқыш орамаларына үздіксіз ағып тұрады. Қозғалтқышты салқындату үшін пайдаланылатын барлық салқындатқыш роторларға сығылу циклінің ортасында орналасқан порт арқылы қайта кіреді және шығару қысымына дейін сығылады.
Құрылғылар жүйенің жұмысын бақылау және басқару үшін термисторларды (екі қозғалтқыш температурасының термисторын қоса) және екі деңгейлік термисторды және қысым түрлендіргіштерін пайдаланады.
Буландырғыштан шығатын сұйықтық
Бұл температура буландырғыштан шығатын сұйықтық температурасын (су немесе тұздық) өлшеу үшін пайдаланылады. Температура шығатын сұйықтық температурасын басқару және салқындатқыштың қатып қалуынан қорғау үшін пайдаланылады. Ол буландырғыш сұйықтық саптамасында орналасқан.
Буландырғышқа кіретін сұйықтық
Бұл сенсор буландырғышқа кіретін сұйықтық температурасын өлшеу үшін пайдаланылады. Ол кіретін буландырғыш саптамасында орналасқан. Ол кіретін сұйықтықпен шығатын сұйықтық температурасын басқару үшін автоматты температуралық компенсацияны қамтамасыз ету үшін пайдаланылады.
Шығару газының температурасы (A және B контурлары)
Бұл сенсор шығару газының температурасын өлшеу және шығару температурасының қызып кетуін басқару үшін пайдаланылады. Ол әрбір контурдың шығару құбырында (30HXC) немесе май бөлгіштің жоғарғы жағында (30GX) орналасқан.
НАЗАР АУДАРЫҢЫЗ: Термостат жеңі жоқ.
Қозғалтқыш температурасы
Компрессорды қорғау модулі (CPM) қозғалтқыш температурасын бақылайды. Термистор терминалдары компрессор қорапшасында орналасқан.
Буландырғыш сұйықтық деңгейі (A және B контурлары)
Буландырғыш сұйықтық деңгейінің термисторы буландырғышта оңтайландырылған ағынды басқаруды қамтамасыз ету үшін пайдаланылады. Ол буландырғыштың жоғарғы жағына орнатылған.
Конденсаторға кіретін сұйықтық (30HXC)
Бұл сенсор сумен салқындатылатын конденсаторларға кіретін сұйықтықтың температурасын өлшеу үшін пайдаланылады. Ол конденсаторларға кіретін жалпы сұйықтық желісінде орналасқан (далада орнатылған). Жылу машиналарында ол сыйымдылықты басқару тәртібімен пайдаланылады. Сумен салқындатылатын конденсаторларда ол тек конденсатор сұйықтығының температурасын бақылау үшін пайдаланылады.
Конденсатордан шығатын сұйықтық (30HXC-де қосымша)
Бұл сенсор сумен салқындатылатын конденсаторлардан шығатын сұйықтықтың температурасын өлшеу үшін пайдаланылады. Ол конденсаторлардан шығатын жалпы сұйықтық желісінде орналасқан (далада орнатылған). Жылу машиналарында ол сыйымдылықты басқару тәртібімен пайдаланылады. Сумен салқындатылатын конденсаторларда ол тек конденсатор сұйықтығының температурасын бақылау үшін пайдаланылады.

GX082/102

GX112/132

GX152/162

GX182

GX207/227

GX247/267

GX298

GX328/358
Бұл құрылғылар тек R-134a-мен пайдалануға арналған.
Бұл құрылғыларда БАСҚА ешқандай салқындатқыш агентті ПАЙДАЛАНБАҢЫЗ.
Зарядты қосқанда немесе шығарғанда, қатып қалуды болдырмау үшін конденсатор (HX) және салқындатқыш арқылы әрдайым суды айналдырыңыз. Қатып қалу салдарынан болған зақымдану дұрыс пайдаланбау болып саналады және Carrier кепілдігін жоюы мүмкін.
Жүйені ШЕКТЕН ТЫС ТОЛТЫРМАҢЫЗ. Шамадан тыс толтыру салқындату сұйықтығының жоғары тұтынылуымен, ықтимал компрессордың зақымдануымен және қуаттың жоғары тұтынылуымен жоғары шығару қысымына әкеледі.
ЕСКЕРТПЕ
30HXC жүйесіндегі салқындатқыш агентінің төмен зарядын тексеру үшін бірнеше факторларды ескеру қажет. Сұйық желісіндегі жылтыраған көру әйнегі міндетті түрде жеткіліксіз зарядтың белгісі емес. Қалыпты жұмыс кезінде жылтыраған көру әйнегі пайда болатын көптеген жүйе жағдайлары бар. 30HXC өлшеу құрылғысы осы жағдайларда дұрыс жұмыс істеуге арналған.
ЕСКЕРТПЕ
Жоғарыда аталғандардан басқа жұмыс жағдайларында сұйық желісінің көру әйнегінің жылтырауы міндетті түрде салқындатқыш агентінің төмен зарядының белгісі емес.
Бұл температуралар сәйкесінше Сыртқы ауа немесе Бөлме температурасын қалпына келтіру опцияларына негізделген қалпына келтіруді басқару үшін бөлменің немесе сыртқы ауа температурасын өлшеу үшін пайдаланылады.
Шығару қысымы (A және B тізбектері)
Бұл кіріс құрылғының әрбір тізбегінің жоғары жағындағы қысымды өлшеу үшін пайдаланылады.
Ол шығару қысымының манометрін ауыстыру және басты қысымды басқару үшін қысымды қамтамасыз ету үшін пайдаланылады.
Сорғыш қысымы (A және B тізбектері)
Бұл кіріс құрылғының төменгі жағындағы қысымды өлшеу үшін пайдаланылады. Ол сорғыш қысымының манометрін ауыстыру үшін қысымды қамтамасыз ету үшін пайдаланылады.
Май қысымы (әрбір компрессор)
Бұл кіріс құрылғының әрбір компрессорының май қысымын өлшеу үшін пайдаланылады. Ол әрбір компрессордың май қысымы портында орналасқан.
Экономизатор қысымы (A және B тізбектері)
Бұл кіріс компрессорға берілетін май қысымының дифференциалын бақылау үшін пайдаланылады.
Майды басқа жерге ҚОСПАҢЫЗ, себебі құрылғының дұрыс жұмыс істемеуіне әкелуі мүмкін.
Салқындатқыш агентінің зарядын сақтау блогына ауыстырған кезде, құрылғы жұмыс істемеген кезде май бірге тасымалдануы мүмкін. Бірінші кезекте ауыстырылған салқындатқыш агентінің мөлшерін қайта пайдаланыңыз. Майды төгіп тастағаннан кейін, тек төгілген мөлшерді ғана қайта құйыңыз (артық май заряды құрылғының дұрыс жұмыс істеуіне кедергі келтіруі мүмкін).
06N бұрандалы компрессорындағы интегралды май сүзгісі ұзақ мойынтірек қызмет ету мерзімі үшін қажетті жоғары деңгейлі сүзуді (3 µ) қамтамасыз ету үшін көрсетілген. Жүйенің тазалығы сенімді жүйе жұмысы үшін маңызды болғандықтан, май сепараторының шығысындағы май желісінде алдын ала сүзгі (7 µ) де бар.
Ауыстырылатын интегралды май сүзгісінің элементінің бөлшек нөмірі:
Carrier бөлшек нөмірі (сүзгі мен O-сақинаны қоса): 06NA 660016S
Сүзгіні жұмыстың алғашқы 500 сағатынан кейін және әрбір келесі 2000 сағат сайын тексеру керек. Сүзгідегі қысымның дифференциалы 2,1 бардан асқан кез келген уақытта сүзгіні ауыстыру керек.
Сүзгідегі қысымның төмендеуін сүзгіге қызмет көрсету портындағы және май қысымы портындағы қысымды өлшеу арқылы анықтауға болады. Осы екі қысымның айырмашылығы сүзгі, тексеру клапаны және соленоидты клапан арқылы қысымның төмендеуі болады. Тексеру клапаны мен соленоидты клапан арқылы қысымның төмендеуі шамамен 0,4 барды құрайды, оны май сүзгісінің қысымының төмендеуін беру үшін екі май қысымының өлшемдерінен алып тастау керек. Компрессор май қысымының төмендігінен өшірілгеннен кейін май сүзгісінің қысымының төмендеуін тексеру керек.
Компрессордың дұрыс айналуы ең маңызды қолданбалы мәселелердің бірі болып табылады. Кері айналу, тіпті өте қысқа уақытқа созылса да, компрессорды зақымдайды.
Кері айналудан қорғау схемасы айналу бағытын анықтап, компрессорды 300 миллисекунд ішінде тоқтатуға қабілетті болуы керек. Кері айналу компрессор терминалдарына сымдар бұзылған кезде пайда болуы мүмкін.
Кері айналу мүмкіндігін азайту үшін келесі процедураны қолдану керек. Қуат кабелдерін компрессор терминалының түйреуішіне бастапқыда сыммен жалғанғандай етіп қайта жалғаңыз.
Компрессорды ауыстыру үшін компрессормен бірге төмен қысым қосқышы кіреді. Бұл төмен қысым қосқышын компрессордың жоғары қысымды бөлігінде уақытша қатты қауіпсіздік ретінде орнату керек. Бұл қосқыштың мақсаты - компрессор терминалының түйреуішіндегі кез келген сым қателерінен компрессорды қорғау. Қосқыштың электрлік жанасуы жоғары қысым қосқышымен тізбектей жалғанады. Қосқыш компрессор іске қосылып, айналу бағыты тексерілгенше орнында қалады; осы сәтте қосқыш алынып тасталады.
Кері айналуды анықтау үшін таңдалған қосқыш - Carrier бөлшек нөмірі HK01CB001. Ол "Компрессорды орнату пакетінің" (бөлшек нөмірі 06NA 660 013) бөлігі ретінде қол жетімді. Бұл қосқыш қысым вакуумның 50 мм-інен төмен түскенде контактілерді ашады. Қосқыш - қысым қайтадан 70 кПа-дан жоғары көтерілгеннен кейін қалпына келтіруге болатын қолмен қалпына келтіру түрі. Компрессордың кері бағытта қысқа циклдік жұмыс істеуін болдырмау үшін қосқыштың қолмен қалпына келтіру түрі болуы маңызды.
EXD/Экономизатор мәселелерін диагностикалау және түзету үшін төмендегі қадамдарды орындаңыз.
Экономизаторлары бар 30HXC/GX құрылғыларында көпіршік түтігіне (Экономизатордың төменгі жағы) арналған клапанның ашық екенін тексеріңіз. Алдымен EXD қозғалтқышының жұмысын тексеріңіз (Controls IOM ішіндегі процедураны қараңыз). Қолыңызды EXD немесе экономизатор корпусына қою арқылы жетекшектің қозғалып жатқанын сезуге болады (жетекшек экономизатор қабығының төменгі жағынан жартылайдан үштен екіге дейін орналасқан). Жетекшек өзінің жүрісінің жоғарғы жағына жеткенде қатты соққыны сезу керек (егер айнала салыстырмалы түрде тыныш болса, естуге болады). Жетекшек өзінің жүрісінің төменгі жағына жеткенде соғуы керек. Егер клапан дұрыс жұмыс істемейді деп есептелсе, қосымша тексерулер үшін Carrier қызмет көрсету бөліміне хабарласыңыз:


Қоршаған ортаны басқару жүйесін мақұлдау
Тапсырыс нөмірі: 13173-76, 03 1999 - № 13173-76, 1998 жылғы наурызды алмастырады
Өндіруші кез келген өнімнің сипаттамаларын ескертусіз өзгерту құқығын өзіне қалдырады.
Өндіруші: Carrier s.a., Montluel, France.
Нидерландыда хлорсыз қағазға басылған.
