
Før oppstart av 30HXC og 30GX enheten, bør de som er involvert i oppstart, drift og vedlikehold være grundig kjent med disse instruksjonene og annen nødvendig jobbinformasjon. Denne boken gir en oversikt slik at du kan bli kjent med kontrollsystemet før du utfører oppstartsprosedyrer. Prosedyrene i denne håndboken er ordnet i den rekkefølgen som kreves for korrekt oppstart og drift av maskinen.
30HXC og 30GX væskekjølere er designet for å gi sikker og pålitelig service når de brukes innenfor designspesifikasjonene. Når du bruker dette utstyret, bruk godt skjønn og sikkerhetsforanstaltninger for å unngå skade på utstyr og eiendom eller personskade.
Sørg for at du forstår og følger prosedyrene og sikkerhetsforanstaltningene som finnes i maskininstruksjonene, samt de som er oppført i denne veiledningen.
IKKE LUFT utløpsventiler for kjølemiddel i en bygning. Utløpet fra sikkerhetsventilen må luftes utendørs. Akkumulering av kjølemiddel i et lukket rom kan fortrenge oksygen og forårsake kvelning eller eksplosjoner.
SØRG FOR tilstrekkelig ventilasjon, spesielt for lukkede rom og rom med lav takhøyde. Innånding av høye konsentrasjoner av damp er skadelig og kan forårsake hjerteuregelmessigheter, bevisstløshet eller død. Damp er tyngre enn luft og reduserer mengden oksygen som er tilgjengelig for å puste. Produktet forårsaker irritasjon i øyne og hud. Nedbrytningsprodukter er farlige.
IKKE BRUK OKSYGEN til å rense rør eller sette trykk på en maskin for noe formål. Oksygengass reagerer voldsomt med olje, fett og andre vanlige stoffer.
OVERSKRID ALDRI spesifiserte testtrykk, BEKREFT det tillatte testtrykket ved å sjekke instruksjonslitteraturen og designtrykkene på utstyrets typeskilt.
IKKE BRUK luft til lekkasjetesting. Bruk kun kjølemiddel eller tørr nitrogen.
IKKE STENG AV noen sikkerhetsanordning.
VÆR SIKKER på at alle trykkavlastningsanordninger er riktig installert før du bruker en maskin.
IKKE SVEIS ELLER FLAMMESKJÆR noen kjølemiddelledning eller beholder før alt kjølemiddel (væske og damp) er fjernet fra kjøleren. Spor av damp bør fortrenges med tørr luftnitrogen, og arbeidsområdet bør være godt ventilert. Kjølemiddel i kontakt med åpen flamme produserer giftige gasser.
IKKE arbeid på spenningssatt utstyr med mindre du er en dyktig elektriker.
IKKE ARBEID PÅ elektriske komponenter, inkludert kontrollpaneler, brytere, reléer osv., før du er sikker på at ALL STRØM ER SLÅTT AV og restspenning kan lekke fra kondensatorer eller solid state-komponenter.
LÅS ÅPNE OG MERK elektriske kretser under service. HVIS ARBEIDET AVBRYTES, kontroller at alle kretser er spenningsløse før du gjenopptar arbeidet.
IKKE HEVERT kjølemiddel.
UNNGÅ Å SØLE flytende kjølemiddel på huden eller få det i øynene. BRUK VERNEBRILLER. Vask bort søl fra huden med såpe og vann. Hvis flytende kjølemiddel kommer i øynene,
SKYL ØYEBLIKKELIG ØYNENE med vann og kontakt lege.
BRUK ALDRI åpen flamme eller levende damp på kjølemiddelbeholderen. Farlig overtrykk kan oppstå. Hvis det er nødvendig å varme opp kjølemiddel, bruk kun varmt vann.
IKKE BRUK om igjen engangs (ikke-returnerbare) sylindere eller forsøk å fylle dem på nytt. Det er FARLIG OG ULOVLIG. Når sylindere er tømt, evakuer gjenværende gasstrykk, løsne kragen og skru av og kast ventilstammen. IKKE BRENN.
SJEKK KJØLEMIDDELTYPEN før du tilsetter kjølemiddel til maskinen. Innføring av feil kjølemiddel kan forårsake skade eller funksjonsfeil på denne maskinen.
IKKE FORSØK Å FJERNE koblinger, komponenter osv. mens maskinen er under trykk eller mens maskinen går. Sørg for at trykket er på 0 kPa før du bryter kjølemiddeltilkoblingen.
INSPISER ALLE sikkerhetsanordninger NØYE, MINST EN GANG I ÅRET. Hvis maskinen opererer i en korrosiv atmosfære, inspiser enhetene oftere.
IKKE FORSØK Å REPARERE ELLER REKONDISJONERE noen sikkerhetsanordning når korrosjon eller oppbygging av fremmedlegemer (rust, smuss, avleiringer osv.) finnes i ventilhuset eller mekanismen. Bytt ut enheten.
IKKE installer sikkerhetsanordninger i serie eller bakover.
IKKE TRÅKK på kjølemiddelledninger. Ødelagte ledninger kan slå rundt og frigjøre kjølemiddel, og forårsake personskade.
IKKE klatre over en maskin. Bruk plattform eller stillas.
BRUK MEKANISK UTSTYR (kran, heise osv.) for å løfte eller flytte tunge komponenter. Selv om komponentene er lette, bruk mekanisk utstyr når det er fare for å skli eller miste balansen.
VÆR OPPMERKSOM på at visse automatiske startarrangementer KAN AKTIVERE TÅRNVIFTE ELLER PUMPER. Åpne frakoblingen foran tårnviftene eller pumpene.
BRUK kun reparasjons- eller reservedeler som oppfyller kodekravene til det originale utstyret.
IKKE LUFT UT ELLER TØM vannkasser som inneholder industrielle saltløsninger uten tillatelse fra et kompetent organ.
IKKE LØSNE vannkassebolter før vannkassen er fullstendig tømt.
IKKE LØSNE en pakkboks mutter før du sjekker at mutteren har et positivt gjengeinngrep.
INSPISER PERIODISK alle ventiler, koblinger og rør for korrosjon, rust, lekkasjer eller skader.
SØRG FOR EN DRENERINGSTILKOBLING i utluftingsledningen nær hver trykkavlastningsanordning for å forhindre oppbygging av kondensat eller regnvann.
30HXC080
30HXC090
30HXC100
30HXC110

Vanninntak
Vannutløp
Strømforsyning
kg: total driftsvekt
| A mm | B mm | C mm | D mm | E mm | kg | |
| 30HXC080 30HXC090 30HXC100 |
2705 | 950 | 1850 | 2360 | 1000 | 2447 2462 2504 |
| 30HXC110 | 2705 | 950 | 1900 | 2360 | 1000 | 2650 |
| 30HXC120 30HXC130 30HXC140 30HXC155 |
3535 | 950 | 1875 | 3220 | 1000 | 2846 2861 2956 2971 |
| 30HXC175 30HXC190 |
3550 | 950 | 2000 | 3220 | 1000 | 3283 3438 |
MERK: Se de sertifiserte dimensjonstegningene som følger med enheten, når du designer en installasjon.

Vanninntak
Vannutløp
Strømforsyning
kg: total driftsvekt
| A mm | B mm | C mm | D mm | E mm | kg | |
| 30HXC200 | 3975 | 980 | 2035 | 3620 | 1000 | 4090 |
| 30HXC230 30HXC260 30HXC285 |
3995 | 980 | 2116 | 3620 | 1000 | 4705 4815 4985 |
| 30HXC310 30HXC345 30HXC375 |
4490 | 980 | 2163 | 4120 | 1000 | 5760 5870 6105 |
MERK: Se de sertifiserte dimensjonstegningene som følger med enheten, når du designer en installasjon.
30GX-082
30GX-092
30GX-102
30GX-112
30GX-122
30GX-132
30GX-152
30GX-162
30GX-182


Vanninntak
Vannutløp
Strømforsyning
Luftutløp - ikke hindre
kg: total driftsvekt
| A mm | B mm | kg | |
| 30GX082 30GX092 30GX102 |
2970 | 2215 | 3116 3157 3172 |
| 30GX112 30GX122 30GX132 |
3427 | 2045 | 3515 3531 3633 |
| 30GX152 30GX162 |
4342 | 2835 | 3920 3936 |
| 30GX182 | 5996 | 1820 | 4853 |


Merknader:
MERK: Se de sertifiserte dimensjonstegningene som følger med enheten, når du designer en installasjon.
30GX-207
30GX-227
30GX-247
30GX-267
30GX-298
30GX-328
30GX-358

Vanninntak
Vannutløp
Strømforsyning
Luftutløp - ikke hindre
kg: total driftsvekt
| A mm | B mm | kg | |
| 30GX207 30GX227 |
5996 | 2895 | 5540 5570 |
| 30GX247 30GX267 |
6911 | 2470 | 6134 6365 |
| 30GX298 | 7826 | 2220 | 7354 |
| 30GX328 30GX358 |
8741 | 1250 | 7918 8124 |


Merknader:
MERK: Se de sertifiserte dimensjonstegningene som følger med enheten, når du designer en installasjon.
| 30HXC | 080 | 090 | 100 | 110 | 120 | 130 | 140 | 155 | 175 | 190 | 200 | 230 | 260 | 285 | 310 | 345 | 375 | |
| Netto kjølekapasitet | kW | 292 | 321 | 352 | 389 | 426 | 464 | 514 | 550 | 607 | 663 | 716 | 822 | 918 | 996 | 1119 | 1222 | 1326 |
| Driftsvekt | kg | 2447 | 2462 | 2504 | 2650 | 2846 | 2861 | 2956 | 2971 | 3283 | 3438 | 4090 | 4705 | 4815 | 4985 | 5760 | 5870 | 6105 |
| Kjølemiddel Krets A/B |
HFC-134a | |||||||||||||||||
| kg | 39/36 | 39/36 | 37/32 | 38/38 | 57/55 | 59/50 | 56/50 | 59/52 | 58/61 | 60/70 | 110/58 | 118/63 | 120/75 | 120/75 | 108/110 | 110/110 | 110/120 | |
| Olje Krets A/B |
Polyolester oil CARRIER SPEC: PP 47-32 | |||||||||||||||||
| l | 15/15 | 15/15 | 15/15 | 15/15 | 15/15 | 15/15 | 15/15 | 15/15 | 15/15 | 15/15 | 30/15 | 30/15 | 30/15 | 30/15 | 30/30 | 30/30 | 30/30 | |
| Kompressorer | Hermetisk twin-screw Power3 | |||||||||||||||||
| Circ. A, nom. størrelse per kompressor** | 39 | 46 | 46 | 56 | 56 | 66 | 80 | 80 | 80 | 80+ | 66/56 | 80/56 | 80/80 | 80+/80+ | 80/66 | 80/80 | 80+/80+ | |
| Circ. B, nom. størrelse per kompressor** | 39 | 39 | 46 | 46 | 56 | 56 | 56 | 66 | 80 | 80+ | 66 | 80 | 80 | 80+ | 80/66 | 80/80 | 80+/80+ | |
| Kontrolltype | PRO-DIALOG Plus control | |||||||||||||||||
| Antall kapasitetstrinn | 6 | 6 | 6 | 6 | 6 | 6 | 6 | 6 | 6 | 6 | 8 | 8 | 8 | 8 | 10 | 10 | 10 | |
| Minimum kapasitet | % | 19 | 19 | 21 | 19 | 21 | 19 | 17 | 19 | 21 | 21 | 14 | 14 | 14 | 14 | 10 | 10 | 10 |
| Fordamper | Shell and tube type, with internally finned copper tubes (Skall- og rørtype, med innvendig finnede kobberrør) | |||||||||||||||||
| Netto vannvolum | l | 65 | 65 | 73 | 87 | 81 | 81 | 91 | 91 | 109 | 109 | 140 | 165 | 181 | 181 | 203 | 229 | 229 |
| Vanntilkoblinger | Factory-supplied flat flange, to be welded on site (Fabrikklevert flat flens, som skal sveises på stedet) | |||||||||||||||||
| Innløp og utløp | in. | 4 | 4 | 4 | 5 | 5 | 5 | 5 | 5 | 5 | 5 | 6 | 6 | 6 | 6 | 8 | 8 | 8 |
| Dren og ventil (NPT) | in. | 3/8 | 3/8 | 3/8 | 3/8 | 3/8 | 3/8 | 3/8 | 3/8 | 3/8 | 3/8 | 3/8 | 3/8 | 3/8 | 3/8 | 3/8 | 3/8 | 3/8 |
| Maks. driftstrykk på vannsiden | kPa | 1000 | 1000 | 1000 | 1000 | 1000 | 1000 | 1000 | 1000 | 1000 | 1000 | 1000 | 1000 | 1000 | 1000 | 1000 | 1000 | 1000 |
| Kondensatorer | Shell and tube type, with internally finned copper tubes (Skall- og rørtype, med innvendig finnede kobberrør) | |||||||||||||||||
| Netto vannvolum | l | 58 | 58 | 58 | 58 | 92 | 92 | 110 | 110 | 132 | 132 | 162 | 208 | 208 | 208 | 251 | 251 | 251 |
| Vanntilkoblinger | Factory-supplied flat flange, to be welded on site (Fabrikklevert flat flens, som skal sveises på stedet) | |||||||||||||||||
| Innløp og utløp | in. | 5 | 5 | 5 | 5 | 5 | 5 | 5 | 5 | 6 | 6 | 6 | 6 | 6 | 6 | 8 | 8 | 8 |
| Dren og ventil (NPT) | in. | 3/8 | 3/8 | 3/8 | 3/8 | 3/8 | 3/8 | 3/8 | 3/8 | 3/8 | 3/8 | 3/8 | 3/8 | 3/8 | 3/8 | 3/8 | 3/8 | 3/8 |
| Maks. driftstrykk på vannsiden | kPa | 1000 | 1000 | 1000 | 1000 | 1000 | 1000 | 1000 | 1000 | 1000 | 1000 | 1000 | 1000 | 1000 | 1000 | 1000 | 1000 | 1000 |
* Standardiserte Eurovent-forhold: fordamper innløps-/utløpsvanntemperaturer = 12°C/7°C, kondensatorvann innløps-/utløpsvanntemperaturer = 30°C/35°C Netto kjølekapasitet: Brutto kjølekapasitet minus vannpumpevarmen mot det interne trykkfallet i fordamperen. ** Kompressorstørrelsen tilsvarer nominell kapasitet i tonn (1 tonn = 3,517 kW).
| 30HXC | 080 | 090 | 100 | 110 | 120 | 130 | 140 | 155 | 175 | 190 | 200 | 230 | 260 | 285 | 310 | 345 | 375 | |
| Strømkrets | ||||||||||||||||||
| Nominell strømforsyning* | V-ph-Hz | 400-3-50 | ||||||||||||||||
| Spenningområde | V | 360-440 | ||||||||||||||||
| Styrekretsforsyning | Styrekretsen forsynes via den fabrikkmonterte transformatoren | |||||||||||||||||
| Nominell effektinngang* | kW | 59 | 67 | 74 | 83 | 88 | 99 | 112 | 123 | 135 | 146 | 156 | 179 | 201 | 219 | 245 | 274 | 298 |
| Nominell strømtrekk* | A | 98 | 111 | 124 | 139 | 148 | 166 | 186 | 204 | 226 | 242 | 259 | 291 | 335 | 367 | 408 | 456 | 498 |
| Maks. effektinngang** | kW | 76 | 83 | 91 | 101 | 111 | 121 | 135 | 145 | 158 | 181 | 187 | 214 | 237 | 272 | 290 | 316 | 362 |
| Krets A | kW | - | - | - | - | - | - | - | - | - | - | 121 | 135 | 158 | 181 | 145 | 158 | 181 |
| Krets B | kW | - | - | - | - | - | - | - | - | - | - | 66 | 79 | 79 | 91 | 145 | 158 | 181 |
| Cosinus phi, enhet ved full belastning | 0.87 | 0.87 | 0.87 | 0.87 | 0.87 | 0.87 | 0.87 | 0.87 | 0.87 | 0.87 | 0.87 | 0.87 | 0.87 | 0.87 | 0.87 | 0.87 | 0.87 | |
| Maks. strømtrekk (Un - 10%)*** | A | 138 | 152 | 166 | 184 | 202 | 221 | 245 | 264 | 288 | 330 | 341 | 389 | 432 | 495 | 528 | 576 | 660 |
| Krets A | A | - | - | - | - | - | - | - | - | - | - | 221 | 245 | 288 | 330 | 264 | 288 | 330 |
| Krets B | A | - | - | - | - | - | - | - | - | - | - | 120 | 144 | 144 | 165 | 264 | 288 | 330 |
| Maksimalt strømtrekk (Un)*** | A | 125 | 138 | 151 | 167 | 184 | 201 | 223 | 240 | 262 | 300 | 310 | 354 | 393 | 450 | 480 | 524 | 600 |
| Krets A | A | - | - | - | - | - | - | - | - | - | - | 201 | 223 | 262 | 300 | 240 | 262 | 300 |
| Krets B | A | - | - | - | - | - | - | - | - | - | - | 109 | 131 | 131 | 150 | 240 | 262 | 300 |
| Maks. startstrøm, std. enhet (Un)**** | A | 172 | 197 | 209 | 235 | 252 | 283 | 318 | 335 | 357 | 420 | 806 | 938 | 977 | 1156 | 1064 | 1108 | 1306 |
| Krets A | A | - | - | - | - | - | - | - | - | - | - | 697 | 807 | 846 | 1006 | 824 | 846 | 1006 |
| Krets B | A | - | - | - | - | - | - | - | - | - | - | 605 | 715 | 715 | 856 | 824 | 846 | 1006 |
| Maks. startstrøm/maks. strømtrekkforhold, enhet | 1.37 | 1.42 | 1.39 | 1.41 | 1.37 | 1.41 | 1.43 | 1.40 | 1.36 | 1.40 | 2.60 | 2.65 | 2.49 | 2.57 | 2.22 | 2.12 | 2.18 | |
| Maks. startstrøm/maks. strømtrekkforhold, krets A | - | - | - | - | - | - | - | - | - | - | 3.47 | 3.62 | 3.23 | 3.35 | 3.43 | 3.23 | 3.35 | |
| Maks. startstrøm/maks. strømtrekkforhold, krets B | - | - | - | - | - | - | - | - | - | - | 5.55 | 5.46 | 5.46 | 5.71 | 3.43 | 3.23 | 3.35 | |
| Maks. startstrøm - redusert strømstart (Un) **** | A | std. | std. | std. | std. | std. | std. | std. | std. | std. | std. | 601 | 643 | 682 | 760 | 769 | 813 | 910 |
| Krets A | A | std. | std. | std. | std. | std. | std. | std. | std. | std. | std. | 492 | 512 | 551 | 610 | 529 | 551 | 610 |
| Krets B | A | std. | std. | std. | std. | std. | std. | std. | std. | std. | std. | 330 | 370 | 370 | 385 | 529 | 551 | 610 |
| Maks. startstrøm - red. strømstart/ maks. strømtrekkforhold, enhet | std. | std. | std. | std. | std. | std. | std. | std. | std. | std. | 1.94 | 1.82 | 1.74 | 1.69 | 1.60 | 1.55 | 1.52 | |
| Krets A | std. | std. | std. | std. | std. | std. | std. | std. | std. | std. | 2.45 | 2.30 | 2.10 | 2.03 | 2.20 | 2.10 | 2.03 | |
| Krets B | std. | std. | std. | std. | std. | std. | std. | std. | std. | std. | 3.03 | 2.83 | 2.83 | 2.57 | 2.20 | 2.10 | 2.03 | |
| Trefaset kortslutningsholde strøm | kA | 25 | 25 | 25 | 25 | 25 | 25 | 25 | 25 | 25 | 25 | N/A | N/A | N/A | N/A | N/A | N/A | N/A |
| Krets A | kA | - | - | - | - | - | - | - | - | - | - | 25 | 25 | 25 | 25 | 25 | 25 | 25 |
| Krets B | kA | - | - | - | - | - | - | - | - | - | - | 15 | 15 | 15 | 15 | 25 | 25 | 25 |
| Kundens standby-kapasitet, enhet eller krets A, for tilkoblinger av fordampervannpumpe† | kW | 8 | 8 | 8 | 11 | 11 | 11 | 15 | 15 | 15 | 15 | 15 | 18 | 18 | 30 | 30 | 30 | 30 |
* Standard Eurovent-forhold: Fordamper inngående/utgående vanntemperatur 12°C og 7°C. Kondensator inngående/utgående vanntemperatur 30°C/35°C.
** Effektinngang, kompressor, ved enhetens driftsgrenser (fordampervann inngående/utgående temperatur = 15°C/10°C, kondensator inngående/utgående vanntemperatur = 40°C/45°C) og en nominell spenning på 400 V (data gitt på enhetens typeskilt).
*** Maksimal driftsstrøm for enheten ved maksimal effektinngang for enheten.
**** Maksimal momentan startstrøm (maksimal driftsstrøm for den/de minste kompressoren(e) + låst rotorstrøm eller redusert startstrøm for den største kompressoren)
† Strøm- og effektinnganger er ikke inkludert i verdiene ovenfor.
N/A Ikke tilgjengelig
| Referanse | Størrelse | I nom. | MHA | LRA | LRA (Y) | LRA (S) 1 cp. | LRA (S) 2 cp. |
| 06NW2146S7N | 39 | 48 | 69 | 344 | 109 | 125 | - |
| 06NW2174S7N | 46 | 58 | 83 | 423 | 134 | 154 | - |
| 06NW2209S7N | 56 | 71 | 101 | 506 | 160 | 260 | 350 |
| 06NW2250S7N | 66 | 87 | 120 | 605 | 191 | 330 | 400 |
| 06NW2300S5N | 80 | 104 | 144 | 715 | 226 | 370 | 420 |
| 06NW2300S5E | 80+ | 111 | 165 | 856 | 270 | 385 | 460 |
Forklaring:
| 06NW | Kompressor for vannkjølte enheter |
| N | Ikke-økonomisert kompressor |
| E | Økonomisert kompressor |
| INOM | Gjennomsnittlig strømtrekk for kompressoren ved Eurovent-forhold |
| MHA | Må holde ampere (maksimal driftsstrøm) ved 360 V |
| LRA | Låst rotorstrøm med direkte start |
| LRA (Y) | Låst rotorstrøm ved redusert strøm (stjerne/delta-oppstartsmodus) |
| LRA (S) 1 cp. | Oppstart med redusert strøm med elektronisk starter (oppstartsvarighet maks. 3 sekunder) for én kompressor per krets |
| LRA (S) 2 cp. | Oppstart med redusert strøm med elektronisk starter (oppstartsvarighet maks. 3 sekunder) for to kompressorer per krets |
30HXC 150 og 150A Alternativer
| 30HXC | 080 | 090 | 100 | 110 | 120 | 130 | 140 | 155 | 175 | 190 | 200 | 230 | 260 | 285 | 310 | 345 | 375 | |
| Strømkrets | ||||||||||||||||||
| Nominell strømforsyning* | V-ph-Hz | 400-3-50 | ||||||||||||||||
| Spenningområde | V | 360-440 | ||||||||||||||||
| Styrestrømforsyning | Styrestrømkretsen forsynes via den fabrikkmonterte transformatoren | |||||||||||||||||
| Maks. effektforbruk** | kW | 104 | 117 | 131 | 145 | 159 | 174 | 194 | 211 | 230 | 263 | 271 | 310 | 345 | 395 | 422 | 460 | 526 |
| Krets A | kW | - | - | - | - | - | - | - | - | - | - | 175 | 195 | 230 | 263 | 211 | 230 | 263 |
| Krets B | kW | - | - | - | - | - | - | - | - | - | - | 96 | 115 | 115 | 132 | 211 | 230 | 263 |
| Maks. strømtrekk (Un - 10%)*** | A | 190 | 215 | 240 | 265 | 290 | 320 | 355 | 385 | 420 | 480 | 495 | 564 | 630 | 720 | 770 | 840 | 960 |
| Krets A | A | - | - | - | - | - | - | - | - | - | - | 320 | 355 | 420 | 480 | 385 | 420 | 480 |
| Krets B | A | - | - | - | - | - | - | - | - | - | - | 175 | 210 | 210 | 240 | 385 | 420 | 480 |
| Maksimalt strømtrekk (Un)*** | A | 173 | 195 | 218 | 241 | 264 | 291 | 323 | 350 | 382 | 436 | 450 | 514 | 573 | 655 | 700 | 764 | 873 |
| Krets A | A | - | - | - | - | - | - | - | - | - | - | 291 | 323 | 382 | 436 | 350 | 382 | 436 |
| Krets B | A | - | - | - | - | - | - | - | - | - | - | 159 | 191 | 191 | 218 | 350 | 382 | 436 |
| Maks. startstrøm, std. enhet (Un)**** | A | 277 | 312 | 335 | 379 | 402 | 435 | 519 | 546 | 578 | 618 | 1251 | 1549 | 1608 | 1701 | 1735 | 1799 | 1920 |
| Krets A | A | - | - | - | - | - | - | - | - | - | - | 1092 | 1358 | 1417 | 1483 | 1385 | 1417 | 1483 |
| Krets B | A | - | - | - | - | - | - | - | - | - | - | 960 | 1226 | 1226 | 1265 | 1385 | 1417 | 1483 |
| Maks. startstrøm/maks. strømtrekk forhold, enhet | 1.61 | 1.60 | 1.54 | 1.57 | 1.52 | 1.49 | 1.61 | 1.56 | 1.51 | 1.42 | 2.78 | 3.02 | 2.81 | 2.60 | 2.48 | 2.36 | 2.20 | |
| Maks. startstrøm/maks. strømtrekk forhold, krets A | - | - | - | - | - | - | - | - | - | - | 3.75 | 4.21 | 3.71 | 3.40 | 3.96 | 3.71 | 3.40 | |
| Maks. startstrøm/maks. strømtrekk forhold, krets B | - | - | - | - | - | - | - | - | - | - | 6.03 | 6.42 | 6.42 | 5.80 | 3.96 | 3.71 | 3.40 | |
| Maks. startstrøm - redusert strømstart (Un) **** | A | std. | std. | std. | std. | std. | std. | std. | std. | std. | std. | N/A | N/A | N/A | N/A | N/A | N/A | N/A |
| Trefaset kortslutningsholde strøm | kA | 25 | 25 | 25 | 25 | 25 | 25 | 25 | 25 | 25 | 25 | N/A | N/A | N/A | N/A | N/A | N/A | N/A |
| Krets A | kA | - | - | - | - | - | - | - | - | - | - | 25 | 25 | 25 | 25 | 25 | 25 | 25 |
| Krets B | kA | - | - | - | - | - | - | - | - | - | - | 15 | 15 | 15 | 15 | 25 | 25 | 25 |
| Kundens standby-kapasitet, enhet eller krets A, for tilkoblinger av fordampervannpumpe† | kW | 8 | 8 | 8 | 11 | 11 | 11 | 15 | 15 | 15 | 15 | 15 | 18 | 18 | 30 | 30 | 30 | 30 |
** Effektforbruk, kompressor, ved enhetens driftsgrenser (fordampervann inn/ut temperatur = 15°C/10°C, kondensator inn/ut vanntemperatur = 40°C/45°C) og en nominell spenning på 400 V (data gitt på enhetens typeskilt).
*** Maksimal enhetsdriftsstrøm ved maksimalt enhetseffektforbruk.
**** Maksimal momentan startstrøm (maksimal driftsstrøm for den/de minste kompressoren(e) + låst rotorstrøm eller redusert startstrøm for den største kompressoren)
† Strøm- og effektinnganger er ikke inkludert i verdiene ovenfor.
N/A Ikke tilgjengelig
30HXC 080-375-enhetene for høye kondenseringstemperaturer er direkte avledet fra standardmodellene. Deres bruksområde er det samme som for standardenhetene, men tillater drift ved kondensatoravgående vanntemperaturer opp til 63°C. PRO-DIALOG-kontrollen tilbyr alle fordelene med standardenhetene, pluss kontroll av kondensatorens avgående vanntemperatur.
De viktigste modifikasjonene er:
Disse enhetene er designet for tradisjonelle bruksområder for vannkjølte enheter, men for høyere kondensatoravgående vanntemperaturer enn 45°C.
Som standardenhetene er de utstyrt med kondensatorinngående og -utgående vannsensorer, installert på rørene.
Det er mulig å styre maskinen ved kondensatorvannutløpet, noe som krever en fabrikkkonfigurasjonsendring og bruk av en reverseringsenhet for oppvarming/kjøling.
Disse enhetene er designet for vann-til-vann-varmepumper.
De er fabrikkkonfigurert som varmepumper (oppvarming/kjøling kontroll som en funksjon av den eksterne reverseringsenheten). Kondensatoren har termisk isolasjon som er identisk med den til fordamperen.
All informasjon er identisk med den for standard 30HXC-enheter, bortsett fra følgende avsnitt.
Det er ingen nominelle forhold for denne enhetstypen. Valget gjøres ved hjelp av den gjeldende elektroniske katalogen.
Disse er identiske med dimensjonene til standard 30HXC-enheter. Den eneste forskjellen er i diameteren på den innkommende feltledningsforbindelsen, beskrevet i kapittelet "Anbefalt valg". Se dimensjonstegningene for disse enhetene før du fortsetter med ledningsføringen.
Se 30GX-kompressortabell.
Alle alternativer som er tilgjengelige for standard 30HXC-enheter er kompatible, bortsett fra:
| Alternativ 5, saltvannsenhet | Spesialenhet |
| Alternativ 25, myk start, 30HXC 200-375 enheter | Ikke tilgjengelig |
Oppmerksomhet:
Hvis enheter har to forskjellige driftsmoduser - en med høy kondenseringstemperatur og den andre med lav kondenseringstemperatur - og overgangen gjøres med enheten i drift, må temperaturen ikke variere med mer enn 3 K per minutt. I tilfeller der dette ikke er mulig, anbefales det å gå gjennom en enhets start/stopp-bryter (fjernstart/stopp tilgjengelig for standardenheter).
| 30GX | 082 | 092 | 102 | 112 | 122 | 132 | 152 | 162 | 182 | 207 | 227 | 247 | 267 | 298 | 328 | 358 | ||
| Netto kjølekapasitet | kW | 285 | 309 | 332 | 388 | 417 | 450 | 505 | 536 | 602 | 687 | 744 | 810 | 910 | 1003 | 1103 | 1207 | |
| Driftsvekt | kg | 3116 | 3157 | 3172 | 3515 | 3531 | 3633 | 3920 | 3936 | 4853 | 5540 | 5570 | 6134 | 6365 | 7354 | 7918 | 8124 | |
| Kjølemiddelfylling | HFC-134a | |||||||||||||||||
| Krets A/B | kg | 55/55 | 58/50 | 54/53 | 55/53 | 60/57 | 63/60 | 75/69 | 75/75 | 80/80 | 130/85 | 130/85 | 155/98 | 170/104 | 162/150 | 162/165 | 175/175 | |
| Olje | Polyolesterolje CARRIER SPEC: PP 47-32 | |||||||||||||||||
| Krets A/B | l | 20/20 | 20/20 | 20/20 | 20/20 | 20/20 | 20/20 | 20/20 | 20/20 | 20/20 | 40/20 | 40/20 | 40/20 | 40/20 | 40/40 | 40/40 | 40/40 | |
| Kompressorer | Hermetisk dobbeltskrue Power3 | |||||||||||||||||
| Sirk. A, nom. størrelse per kompressor** | 46 | 46 | 56 | 56 | 66 | 66 | 80 | 80 | 80+ | 66/56 | 80/66 | 80/80 | 80+/80+ | 80/80 | 80/80 | 80+/80+ | ||
| Sirk. B, nom. størrelse per kompressor** | 39 | 46 | 46 | 56 | 56 | 66 | 66 | 80 | 80+ | 80 | 80 | 80 | 80+ | 66/66 | 80/802 | 80+/80+ | ||
| Kontrolltype | PRO-DIALOG Plus-kontroll | |||||||||||||||||
| Antall kapasitetstrinn | 6 | 6 | 6 | 6 | 6 | 6 | 6 | 6 | 6 | 8 | 8 | 8 | 8 | 10 | 10 | 10 | ||
| Minimum kapasitet | % | 19 | 21 | 19 | 21 | 19 | 21 | 19 | 21 | 21 | 16 | 14 | 14 | 14 | 9 | 10 | 10 | |
| Fordamper | Skall- og rørtype, med innvendig finnede kobberrør | |||||||||||||||||
| Netto vannvolum | l | 65 | 73 | 73 | 87 | 87 | 101 | 91 | 91 | 109 | 140 | 140 | 165 | 181 | 203 | 229 | 229 | |
| Vanntilkoblinger | Fabrikklevert flat flens, som skal sveises på stedet | |||||||||||||||||
| Innløp og utløp | in. | 4 | 4 | 4 | 5 | 5 | 5 | 5 | 5 | 5 | 6 | 6 | 6 | 6 | 8 | 8 | 8 | |
| Drenering og ventilasjon (NPT) | in. | 3/8 | 3/8 | 3/8 | 3/8 | 3/8 | 3/8 | 3/8 | 3/8 | 3/8 | 3/8 | 3/8 | 3/8 | 3/8 | 3/8 | 3/8 | 3/8 | |
| Maks. vannside driftstrykk | kPa | 1000 | 1000 | 1000 | 1000 | 1000 | 1000 | 1000 | 1000 | 1000 | 1000 | 1000 | 1000 | 1000 | 1000 | 1000 | 1000 | |
| Kondensatorer | Kobberrør og aluminiumsfinner | |||||||||||||||||
| Vifter | Aksial FLYING BIRD 2-vifte med roterende kappe | |||||||||||||||||
| Antall | 4 | 4 | 4 | 6 | 6 | 6 | 8 | 8 | 8 | 10 | 10 | 12 | 12 | 14 | 16 | 16 | ||
| Hastighet | r/s | 15.8 | 15.8 | 15.8 | 15.8 | 15.8 | 15.8 | 15.8 | 15.8 | 15.8 | 15.8 | 15.8 | 15.8 | 15.8 | 15.8 | 15.8 | 15.8 | |
| Total luftstrøm | l/s | 21110 | 21110 | 21110 | 31660 | 31660 | 31660 | 42220 | 42220 | 42220 | 52770 | 52770 | 63330 | 63330 | 73880 | 84440 | 84440 | |
* Standardiserte Eurovent-forhold: fordamper inn/ut vanntemperaturer = 12°C/7°C, utetemperatur = 35°C Netto kjølekapasitet: Brutto kjølekapasitet minus vannpumpens varme mot det interne fordampertrykkfallet.
** Kompressorstørrelsen tilsvarer den nominelle kapasiteten i tonn (1 tonn = 3,517 kW).
| 30HXC | 082 | 092 | 102 | 112 | 122 | 132 | 152 | 162 | 182 | 207 | 227 | 247 | 267 | 298 | 328 | 358 | ||
| Strømkrets | ||||||||||||||||||
| Nominell strømforsyning* | V-ph-Hz | 400-3-50 | ||||||||||||||||
| Spenningområde | V | 360-440 | ||||||||||||||||
| Styrekretsforsyning | Styrekretsen forsynes via den fabrikkmonterte transformatoren | |||||||||||||||||
| Nominelt effektforbruk* | kW | 98 | 109 | 123 | 133 | 150 | 166 | 179 | 196 | 214 | 246 | 281 | 292 | 332 | 364 | 394 | 449 | |
| Nominell strømtrekk* | A | 180 | 200 | 223 | 256 | 273 | 290 | 326 | 352 | 388 | 449 | 492 | 528 | 582 | 642 | 704 | 776 | |
| Maks. effektforbruk** | kW | 127 | 141 | 154 | 175 | 191 | 207 | 234 | 253 | 286 | 319 | 355 | 380 | 429 | 462 | 506 | 572 | |
| Krets A | kW | - | - | - | - | - | - | - | - | - | 193 | 228 | 253 | 286 | 253 | 253 | 286 | |
| Krets B | kW | - | - | - | - | - | - | - | - | - | 127 | 127 | 127 | 143 | 209 | 253 | 286 | |
| Cosinus phi, enhet ved full belastning | 0.85 | 0.85 | 0.85 | 0.85 | 0.85 | 0.85 | 0.86 | 0.86 | 0.86 | 0.86 | 0.86 | 0.86 | 0.86 | 0.86 | 0.86 | 0.86 | ||
| Maks. strømtrekk (Un - 10%)*** | A | 237 | 262 | 287 | 323 | 353 | 383 | 429 | 464 | 524 | 585 | 650 | 696 | 786 | 847 | 928 | 1048 | |
| Krets A | A | - | - | - | - | - | - | - | - | - | 353 | 418 | 464 | 524 | 464 | 464 | 524 | |
| Krets B | A | - | - | - | - | - | - | - | - | - | 232 | 232 | 232 | 262 | 383 | 464 | 524 | |
| Maksimalt strømtrekk (Un)*** | A | 217 | 240 | 263 | 297 | 324 | 351 | 394 | 426 | 480 | 537 | 596 | 639 | 721 | 777 | 852 | 961 | |
| Krets A | A | - | - | - | - | - | - | - | - | - | 324 | 383 | 426 | 480 | 426 | 426 | 480 | |
| Krets B | A | - | - | - | - | - | - | - | - | - | 213 | 213 | 213 | 240 | 351 | 426 | 480 | |
| Maks. startstrøm, std. enhet**** (Un) | A | 334 | 357 | 401 | 435 | 468 | 495 | 590 | 622 | 662 | 1338 | 1631 | 1674 | 1767 | 1812 | 1887 | 2008 | |
| Krets A*** | A | - | - | - | - | - | - | - | - | - | 1125 | 1418 | 1461 | 1527 | 1461 | 1461 | 1527 | |
| Krets B*** | A | - | - | - | - | - | - | - | - | - | 1248 | 1248 | 1248 | 1287 | 1152 | 1461 | 1527 | |
| Maks. startstrøm/maks. strømtrekk forhold, enhet | 1.54 | 1.49 | 1.53 | 1.47 | 1.44 | 1.41 | 1.50 | 1.46 | 1.38 | 2.49 | 2.74 | 2.62 | 2.45 | 2.33 | 2.22 | 2.09 | ||
| Maks. startstrøm/maks. strømtrekk forhold, krets A | - | - | - | - | - | - | - | - | - | 3.47 | 3.70 | 3.43 | 3.18 | 3.43 | 3.43 | 3.18 | ||
| Maks. startstrøm/maks. strømtrekk forhold, krets B | - | - | - | - | - | - | - | - | - | 5.86 | 5.86 | 5.86 | 5.36 | 3.28 | 3.43 | 3.18 | ||
| Maks. startstrøm - redusert strømstart (Un) **** | A | std. | std. | std. | std. | std. | std. | std. | std. | std. | 878 | 955 | 998 | 1102 | 1136 | 1211 | 1343 | |
| Krets A | A | std. | std. | std. | std. | std. | std. | std. | std. | std. | 665 | 742 | 785 | 862 | 785 | 785 | 862 | |
| Krets B | A | std. | std. | std. | std. | std. | std. | std. | std. | std. | 572 | 572 | 572 | 622 | 692 | 785 | 862 | |
| Maks. startstrøm - red. strømstart/ maks. strømtrekk forhold, enhet | std. | std. | std. | std. | std. | std. | std. | std. | std. | 1.64 | 1.60 | 1.56 | 1.53 | 1.46 | 1.42 | 1.40 | ||
| Krets A | std. | std. | std. | std. | std. | std. | std. | std. | std. | 2.05 | 1.94 | 1.84 | 1.79 | 1.84 | 1.84 | 1.79 | ||
| Krets B | std. | std. | std. | std. | std. | std. | std. | std. | std. | 2.69 | 2.69 | 2.69 | 2.39 | 1.97 | 1.84 | 1.79 | ||
| Trefaset kortslutningsholde strøm | kA | 25 | 25 | 25 | 25 | 25 | 25 | 25 | 25 | 25 | N/A | N/A | N/A | N/A | N/A | N/A | N/A | |
| Krets A | kA | - | - | - | - | - | - | - | - | - | 25 | 25 | 25 | 25 | 25 | 25 | 25 | |
| Krets B | kA | - | - | - | - | - | - | - | - | - | 25 | 25 | 25 | 25 | 25 | 25 | 25 | |
| Kundens standby-kapasitet, enhet eller krets A, for tilkoblinger av fordampervannpumpe† | kW | 4 | 4 | 4 | 5.5 | 5.5 | 5.5 | 7.5 | 7.5 | 7.5 | 7.5 | 9 | 9 | 9 | 15 | 15 | 15 | |
* Standard Eurovent-forhold: Fordamper inngående/utgående vanntemperatur 12°C og 7°C. Utendørs lufttemperatur 35°C.
** Effektforbruk, kompressor og vifte, ved enhetens driftsgrenser (fordampervann inngående/utgående temperatur = 15°C/10°C, utendørs lufttemperatur = 46°C) og en nominell spenning på 400 V (data gitt på enhetens typeskilt).
*** Maksimal enhets driftsstrøm ved maksimalt enhets effektforbruk.
**** Maksimal momentan startstrøm (maksimal driftsstrøm for den/de minste kompressoren(e) + viftestrøm + låst rotorstrøm eller redusert startstrøm for den største kompressoren).
† Strøm- og effektforbruk er ikke inkludert i verdiene ovenfor
N/A Ikke tilgjengelig
| Referanse | Størrelse | I nom. | MHA | LRA | LRA (Y) | LRA (S) 1 cp. | LRA (S) 2 cp. |
| 06NA2146S7N | 39 | 70 | 95 | 605 | 191 | 220 | - |
| 06NA2174S7N | 46 | 90 | 120 | 715 | 226 | 260 | - |
| 06NA2209S7N | 56 | 113 | 145 | 856 | 270 | 330 | 420 |
| 06NA2250S7N | 66 | 130 | 175 | 960 | 303 | 380 | 500 |
| 06NA2300S5N | 80 | 156 | 210 | 1226 | 387 | 445 | 550 |
| 06NA2300S5E | 80+ | 174 | 240 | 1265 | 400 | 460 | 600 |
Forklaring:
| 06NA | Kompressor for luftkjølte enheter |
| N | Ikke-økonomisert kompressor |
| E | Økonomisert kompressor |
| INOM | Gjennomsnittlig strømtrekk for kompressoren ved Eurovent-forhold |
| MHA | Må holde ampere (maksimal driftsstrøm) ved 360 V |
| LRA | Låst rotorstrøm med direkte start |
| LRA (Y) | Låst rotorstrøm ved redusert strøm (stjerne/delta-startmodus) |
| LRA (S) 1 cp. | Oppstart med redusert strøm med elektronisk starter (oppstartvarighet maks. 3 sekunder) for én kompressor per krets |
| LRA (S) 2 cp. | Oppstart med redusert strøm med elektronisk starter (oppstartvarighet maks. 3 sekunder) for to kompressorer per krets |
| Evaporator (Fordamper) | Minimum (Minimum) | Maximum (Maksimum) | |
| Evaporator entering water temperature (Innløpstemperatur for vann i fordamper) | °C | 6.8* | 21 |
| Evaporator leaving water temperature (Utløpstemperatur for vann i fordamper) | °C | 4** | 15 |
| Condenser (water-cooled) (Kondensator (vannkjølt)) | Minimum (Minimum) | Maximum (Maksimum) | |
| Condenser entering water temperature (Innløpstemperatur for vann i kondensator) | °C | 20*** | 42 |
| Condenser leaving water temperature (Utløpstemperatur for vann i kondensator) | °C | 25 | 45 |
| Outside ambient operating temperature 30HXC (Omgivelsestemperatur utendørs i drift 30HXC) | °C | 6 | 40 |
| Condenser (air-cooled) (Kondensator (luftkjølt)) | Minimum (Minimum) | Maximum (Maksimum) | |
| Outdoor ambient operating temperature (Omgivelsestemperatur utendørs i drift) | °C | 0 | 46 |
| Available static pressure (Tilgjengelig statisk trykk) | kPa | 0 |
Notes: (Merknader:)
* For application requiring operation at less than 6.8°C, contact Carrier s.a. for unit selection using the Carrier electronic catalog. (For bruksområder som krever drift under 6,8 °C, kontakt Carrier s.a. for valg av enhet ved hjelp av den elektroniske katalogen til Carrier.)
** For application requiring operation at less than 4°C, the units require the use of antifreeze. (For bruksområder som krever drift under 4 °C, krever enhetene bruk av frostvæske.)
*** Water-cooled units (30HXC) operating at full load and below 20°C condenser entering water temperature require the use of a head pressure control with analogue water control valves (see paragraph on head pressure control). (Vannkjølte enheter (30HXC) som opererer med full belastning og under 20 °C innløpstemperatur for vann i kondensatoren, krever bruk av en trykkstyring med analoge vannstyringsventiler (se avsnitt om trykkstyring).)
In temporary operating modes (start-up and at part load) the unit can operate with a condenser entering air temperature of 13°C. (I midlertidige driftsmoduser (oppstart og ved dellast) kan enheten operere med en innløpstemperatur for luft i kondensatoren på 13 °C.)
The minimum chilled water flow is shown in the table on the next page. (Minimum kjølevannsstrøm vises i tabellen på neste side.) If the flow is less than this, the evaporator flow can be recirculated, as shown in the diagram. (Hvis strømmen er mindre enn dette, kan fordamperstrømmen resirkuleres, som vist i diagrammet.) The temperature of the mixture leaving the evaporator must never be less than 2.8 K lower than the chilled water entering temperature. (Temperaturen på blandingen som forlater fordamperen må aldri være mindre enn 2,8 K lavere enn innløpstemperaturen for kjølevannet.)

FOR MINIMUM CHILLED WATER FLOW RATE (FOR MINIMAL KJØLEVANNSTRØMNING)
The maximum chilled water flow is limited by the maximum permitted pressure drop in the evaporator. (Maksimal kjølevannsstrøm er begrenset av det maksimalt tillatte trykkfallet i fordamperen.) It is provided in the table on the next page. (Det er angitt i tabellen på neste side.) If the flow exceeds the maximum value, two solutions are possible: (Hvis strømmen overskrider maksimumsverdien, er to løsninger mulige:)

FOR MAXIMUM CHILLED WATER FLOW RATE (FOR MAKSIMAL KJØLEVANNSTRØMNING)
Variable evaporator flow can be used in standard 30HXC and 30GX chillers. (Variabel fordamperstrømning kan brukes i standard 30HXC- og 30GX-kjølere.) The chillers maintain a constant leaving water temperature under all flow conditions. (Kjølerne opprettholder en konstant utløpstemperatur for vann under alle strømningsforhold.) For this to happen, the minimum flow rate must be higher than the minimum flow given in the table of permissible flow rates and must not vary by more than 10% per minute. (For at dette skal skje, må minimumsstrømningshastigheten være høyere enn minimumsstrømmen som er angitt i tabellen over tillatte strømningshastigheter, og må ikke variere med mer enn 10 % per minutt.) If the flow rate changes more rapidly, the system should contain a minimum of 6.5 liters of water per kW instead of 3.25 l/kW. (Hvis strømningshastigheten endres raskere, bør systemet inneholde minimum 6,5 liter vann per kW i stedet for 3,25 l/kW.)
Whichever the system, the water loop minimum capacity is given by the formula: (Uansett system, er minimumskapasiteten for vannsløyfen gitt av formelen:)
Capacity = Cap (kW) x N Liters (Kapasitet = Cap (kW) x N liter)
| Application (Bruksområde) | N |
| Normal air conditioning (Normal klimaanlegg) | 3.25 |
| Process type cooling (Prosesstype kjøling) | 6.5 |
Where Cap is the nominal system cooling capacity (kW) at the nominal operating conditions of the installation. (Der Cap er den nominelle systemkjølekapasiteten (kW) ved de nominelle driftsforholdene for installasjonen.)
This volume is necessary for stable operation and accurate temperature control. (Dette volumet er nødvendig for stabil drift og nøyaktig temperaturkontroll.)
It is often necessary to add a buffer water tank to the circuit in order to achieve the required volume. (Det er ofte nødvendig å legge til en buffervanntank i kretsen for å oppnå det nødvendige volumet.) The tank must itself be internally baffled in order to ensure proper mixing of the liquid (water or brine). (Selve tanken må være internt baffel for å sikre riktig blanding av væsken (vann eller saltvann).) Refer to the examples below. (Se eksemplene nedenfor.)
NOTE: The compressor must not restart more than 6 times in an hour. (MERK: Kompressoren må ikke starte på nytt mer enn 6 ganger i timen.)


| 30HXC | Min.* | Max.** | ||
| 080-090 | 5.7 | 22.7 | ||
| 100 | 6.0 | 24.1 | ||
| 110 | 6.9 | 27.5 | ||
| 120-130 | 8.3 | 33.0 | ||
| 140-155 | 10.0 | 39.5 | ||
| 175-190 | 10.7 | 42.7 | ||
| 200 | 13.4 | 53.7 | ||
| 230 | 13.4 | 60.6 | ||
| 260-285 | 17.0 | 68.1 | ||
| 310 | 19.4 | 77.8 | ||
| 345-375 | 21.3 | 85.3 | ||
| 30GX | Min.* | Max.** | ||
| 082 | 5.7 | 22.7 | ||
| 092-102 | 6.0 | 24.1 | ||
| 112-122 | 6.9 | 27.5 | ||
| 132 | 8.4 | 33.7 | ||
| 152-162 | 10.0 | 39.9 | ||
| 182 | 10.7 | 42.7 | ||
| 207-227 | 13.4 | 53.7 | ||
| 247 | 15.1 | 60.6 | ||
| 267 | 17.0 | 68.1 | ||
| 298 | 19.4 | 77.8 | ||
| 328-358 | 21.3 | 85.3 | ||
* Basert på en vannhastighet på 0,9 m/s.
** Basert på en vannhastighet på 3,6 m/s.
| 30HXC | Min.* Lukket sløyfe | Åpen sløyfe | Max.** |
| 080-110 | 2.5 | 7.5 | 29.9 |
| 120-130 | 3.1 | 9.3 | 37.3 |
| 140-155 | 3.8 | 11.4 | 45.5 |
| 175-190 | 4.6 | 13.8 | 55.2 |
| 200 | 5.0 | 14.9 | 59.6 |
| 230-285 | 6.7 | 20.1 | 80.3 |
| 310-375 | 7.3 | 22.0 | 88.0 |
* Basert på en vannhastighet på 0,3 m/s i en lukket sløyfe og 0,9 m/s i en åpen sløyfe.
** Basert på en vannhastighet på 3,6 m/s


Det er obligatorisk å installere kjølerstrømningsbryter og også koble til sammenkobling av kjølevannspumpe på 30HXC og 30GX. Unnlatelse av å følge denne instruksjonen vil ugyldiggjøre Carrier-garantien.
Kjølerstrømningsbryterkontrolleren leveres og kobles fabrikkmontert på 30HXC- og 30GX-enheter.
Følg produsentens instruksjoner for installasjon.
Strømningsbryteren kan monteres i et horisontalt rør eller et vertikalt rør med oppadgående væskestrøm. Den skal ikke brukes når væskestrømmen er nedadgående.
Monter i en rørseksjon der det er en rett strekning på minst fem rørdiametre på hver side av strømningsbryteren. Ikke plasser den ved siden av ventiler, albuer eller åpninger. Padlen må aldri berøre røret eller noen begrensning i røret. Skru strømningsbryteren på plass slik at den flate delen av padlen er i rett vinkel mot strømmen. Pilene på dekselet og i bunnen, inne i huset, må peke i strømningsretningen. Bryteren skal monteres slik at terminalene er tilgjengelige for enkel kabling.
Terminaler 34 og 35 er tilgjengelige for feltinstallasjon av en sammenkobling av kjølevannspumpe (hjelpekontakt for kjølevannspumpekontaktor).
(Rørtilkobling: 1" NPT)

Kondensatorstrømningsbryteren er en feltinstallert enhet.
Ikke fjern underlag, paller eller beskyttende emballasje før enheten er i sin endelige posisjon. Flytt kjøleren ved hjelp av rør eller ruller, eller løft den ved hjelp av slynger med riktig kapasitet.
(30HXC)
Bruk kun slynger på de angitte løftepunktene som er merket på enheten, på toppen av kjølerens varmeveksler. Rigging fra bunnen av varmeveksleren vil føre til at enheten løftes på en usikker måte. Personskade eller skade på enheten kan forekomme. Følg rigging-instruksjonene som er gitt på den sertifiserte dimensjonstegningen som følger med enheten.
Se alltid kapittelet "Dimensions and clearances" (Dimensjoner og klaringer) for å bekrefte at det er tilstrekkelig plass for alle tilkoblinger og serviceoperasjoner. For tyngdepunktkoordinatene, plasseringen av enhetens monteringshull og vektfordelingspunktene, se den sertifiserte dimensjonstegningen som følger med enheten.
Vi anbefaler at disse kjølerne installeres enten i en kjeller eller i bakkenivå. Hvis en skal installeres over bakkenivå, må du først kontrollere at den tillatte gulvbelastningen er tilstrekkelig og at gulvet er sterkt nok og i vater. Om nødvendig, forsterk og rett gulvet.
Når kjøleren er på sin endelige plassering, fjern underlagene og andre enheter som brukes til å hjelpe til med å flytte den. Rett enheten ved hjelp av et vater, og bolt enheten til gulvet eller sokkelen. Driften av disse enhetene kan bli svekket hvis de ikke er i vater og ikke er sikkert festet til festene. Om nødvendig, bruk isolasjonsmatter under enheten for å hjelpe til med vibrasjonsisolering.
Dette diagrammet vises kun for informasjon. Se "sertifiserte tegninger".

| X mm | Y mm | Z mm | |
| 30HXC080 30HXC090 30HXC100 |
1345 | 402 | 903 |
| 30HXC110 | 1368 | 397 | 935 |
| 30HXC120 30HXC130 30HXC140 30HXC155 |
1731 | 392 | 879 |
| 30HXC175 | 1703 | 386 | 947 |
| 30HXC190 | 1705 | 398 | 955 |


NOTE (MERK)
When all lifting and positioning operations are finished, it is recommended to touch up all surfaces where paint has been removed on lifting lugs. (Når alle løfte- og posisjoneringsoperasjoner er fullført, anbefales det å retusjere alle overflater der maling er fjernet på løfteører.)
Dette diagrammet vises kun for informasjon. Se "sertifiserte tegninger".




| X mm | Y mm | Z mm | |
| 30HXC310 | 2195 | 425 | 1085 |
| 30HXC345 | 2195 | 425 | 1085 |
| 30HXC375 | 2205 | 435 | 1025 |
NOTE (MERK)
When all lifting and positioning operations are finished, it is recommended to touch up all surfaces where paint has been removed on lifting lugs. (Når alle løfte- og posisjoneringsoperasjoner er fullført, anbefales det å retusjere alle overflater der maling er fjernet på løfteører.)
Dette diagrammet vises kun for informasjon. Se "sertifiserte tegninger".



| X mm | Y mm | Z mm | PTkg | |
| 30GX082 | 1440 | 1460 | 900 | 3115 |
| 30GX092 | 1440 | 1460 | 900 | 3156 |
| 30GX102 | 1440 | 1460 | 900 | 3170 |
| 30GX112 | 1650 | 1460 | 900 | 3574 |
| 30GX122 | 1650 | 1460 | 900 | 3527 |
| 30GX132 | 1650 | 1460 | 900 | 3634 |
| 30GX152 | 2155 | 1430 | 900 | 3938 |
| 30GX162 | 2155 | 1430 | 900 | 3954 |



| X mm | Y mm | Z mm | PTkg | |
| 30GX182 | 3030 | 1370 | 875 | 4853 |
NOTE (MERK)
When all lifting and positioning operations are finished, it is recommended to touch up all surfaces where paint has been removed on lifting lug (Når alle løfte- og posisjoneringsoperasjoner er fullført, anbefales det å retusjere alle overflater der maling er fjernet på løfteøret)
Dette diagrammet vises kun for informasjon. Se "sertifiserte tegninger".



| X mm | Y mm | Z mm | PTkg | |
| 30GX207 | 2870 | 1440 | 890 | 5536 |
| 30GX227 | 2870 | 1440 | 890 | 5572 |
| 30GX247 | 3320 | 1430 | 927 | 6131 |
| 30GX267 | 3300 | 1420 | 886 | 6363 |



| X mm | Y mm | Z mm | PTkg | |
| 30GX298 | 3630 | 1420 | 890 | 7353 |
| 30GX328 | 4360 | 1455 | 920 | 7840 |
| 30GX358 | 4360 | 1445 | 930 | 8045 |
NOTE (MERK)
When all lifting and positioning operations are finished, it is recommended to touch up all surfaces where paint has been removed on lifting lugs. (Når alle løfte- og posisjoneringsoperasjoner er fullført, anbefales det å retusjere alle overflater der maling er fjernet på løfteører.)
Se de sertifiserte dimensjonstegningene for størrelser og posisjoner for alle vanninntaks- og utløpstilkoblinger. Vannrørene må ikke overføre noen radiell eller aksiell kraft til varmevekslerne eller vibrasjoner til rørledningen eller bygningen.
Vannforsyningen må analyseres og passende filtrering, behandling, kontrolldevice, isolasjons- og lufteventiler og kretser bygges inn etter behov. Rådfør deg enten med en vannbehandlingsspesialist eller passende litteratur om emnet.
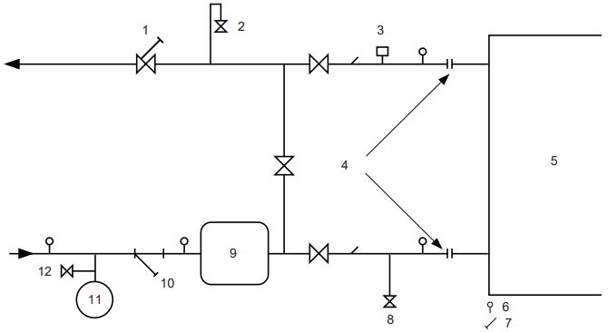
Vannkretsen bør være utformet for å ha færrest mulig albuer og horisontale rørstrekk i forskjellige nivåer. Følgende grunnleggende kontroller bør utføres (se også illustrasjonen av en typisk hydraulisk krets nedenfor).
Fordamperen og kondensatoren er av multi-rør skall- og rørtypen med avtakbare vannbokser for å lette rengjøringen av rørene.
Før du foretar vanntilkoblinger, stram boltene i begge hodene til det nedre dreiemomentet som vises, og følg metoden som er beskrevet. Stram i parene og sekvensen som er angitt i henhold til størrelsen på bolten (se tabell) ved hjelp av en dreiemomentverdi i den lave enden av det gitte området.
Remove the factory supplied flat flange from the water box before welding piping to the flange. Failure to remove the flange may damage the sensors and insulation. (Fjern den fabrikkleverte flate flensen fra vannboksen før du sveiser rør til flensen. Unnlatelse av å fjerne flensen kan skade sensorene og isolasjonen.)
NOTE (MERK)
We recommend draining the system and disconnecting the pipework to ensure that the bolts of the heads to which the pipework is connected are correctly and uniformly tightened. (Vi anbefaler å tømme systemet og koble fra rørledningen for å sikre at boltene på hodene som rørledningen er koblet til, er riktig og jevnt strammet.)
Evaporator and water-cooled condenser protection (Beskyttelse av fordamper og vannkjølt kondensator)
If the chiller or the water piping is in an area where the ambient temperature can fall below 0°C it is recommended to add an antifreeze solution to protect the unit and the water piping to a temperature of 8 K below the lowest temperature. Use only antifreeze solutions, approved for heat exchanger duty. If the system is not protected by an antifreeze solution and will not be used during the freezing weather conditions, draining of the cooler and outdoor piping is mandatory. Damage due to freezing is not covered by the warranty. (Hvis kjøleren eller vannrørene er i et område der omgivelsestemperaturen kan falle under 0 °C, anbefales det å tilsette en frostvæskeløsning for å beskytte enheten og vannrørene til en temperatur på 8 K under den laveste temperaturen. Bruk kun frostvæskeløsninger som er godkjent for varmevekslerdrift. Hvis systemet ikke er beskyttet av en frostvæskeløsning og ikke vil bli brukt under fryseforhold, er drenering av kjøleren og utendørs rør obligatorisk. Skader på grunn av frost dekkes ikke av garantien.)

Legend (Forklaring)

Legend (Forklaring)
Standard EN 60204-1 er et godt middel for å svare på kravene i Maskindirektivet § 1.5.1. Den normative anbefalingen IEC 364 er generelt anerkjent som å oppfylle kravene i installasjonsforskriften.
Vedlegg B til standard EN 60204-1 kan brukes til å beskrive de elektriske egenskapene som maskinene opererer under.
(1) Beskyttelsesstandarden som kreves med hensyn til denne klassifiseringen er IP21B (i samsvar med referansedokumentet IEC 529). Alle 30HXC har en beskyttelsesstandard på IP23C og oppfyller derfor dette beskyttelseskravet.
Kompetanse til personell: klassifisering BA4(2) (personell kvalifisert i samsvar med IEC 364).
(2) Beskyttelsesstandarden som kreves med hensyn til denne klassifiseringen er IP43BW (i samsvar med referansedokumentet IEC 529). Alle 30GX har en beskyttelsesstandard på IP45CW og oppfyller derfor dette beskyttelseskravet.
MERK: Hvis spesielle aspekter ved en installasjon krever andre egenskaper enn de som er oppført ovenfor (eller egenskaper som ikke er nevnt her), kontakt din Carrier-representant.
Strømforsyningen må være i samsvar med spesifikasjonen på kjølerens typeskilt. Forsyningsspenningen må være innenfor området som er spesifisert i den elektriske datatabellen.
For tilkoblinger, se koblingsskjemaene.
Drift av kjøleren med feil forsyningsspenning eller overdreven faseubalanse utgjør misbruk som vil ugyldiggjøre Carrier-garantien. Hvis faseubalansen overstiger 2 % for spenning eller 10 % for strøm, kontakt ditt lokale elektrisitetsforsyningsselskap umiddelbart og sørg for at kjøleren ikke slås på før korrigerende tiltak er iverksatt.
100 x maks. avvik fra gjennomsnittlig spenning
Gjennomsnittlig spenning
Eksempel:
På en 400 V - 3 ph - 50 Hz forsyning ble de individuelle fasespenningene målt til å være:
AB = 406 V; BC = 399; AC = 394 V
| Gjennomsnittlig spenning | = (406 + 399 + 394)/3 = 1199/3 |
| = 399,7 si 400 V |
Beregn maksimalt avvik fra gjennomsnittet på 400 V:
(AB) = 406 - 400 = 6
(BC) = 400 - 399 = 1
(CA) = 400 - 394 = 6

Maksimalt avvik fra gjennomsnittet er 6 V. Det største prosentvise avviket er:
100 x 6/400 = 1,5 %
Dette er mindre enn de tillatte 2 % og er derfor akseptabelt.
Kabeldimensjonering er installatørens ansvar og avhenger av egenskapene og forskriftene som gjelder for hvert installasjonssted. Følgende skal kun brukes som en veiledning, og gjør ikke Carrier ansvarlig på noen måte. Etter at kabeldimensjoneringen er fullført, ved hjelp av den sertifiserte dimensjonstegningen, må installatøren sikre enkel tilkobling og definere eventuelle nødvendige modifikasjoner på stedet.
Tilkoblingene som standard leveres for de feltleverte strømtilførsel kablene til den generelle frakoblings-/isolatorbryteren, er beregnet for antall og type ledninger som er oppført i tabellen nedenfor.
Beregningene er basert på maskinens maksimale strøm (se elektriske datatabeller).
For designet brukes følgende standardiserte installasjonsmetoder, i samsvar med IEC 364, tabell 52C:
Beregningen er basert på PVC- eller XLPE-isolerte kabler med kobber- eller aluminiumkjerne. Maksimal temperatur er 40 °C for 30HX-enheter og 46 °C for 30GX-enheter.
Den gitte ledningslengden begrenser spenningsfallet til < 5 %.
| Unit | Min. (mm2) by phase (per fase) | Wire type (ledningstype) | L (m) | Max. (mm2) by phase (per fase) | Wire type (ledningstype) | L (m) |
| 30HX 080 | 1 x 35 | XLPE Cu | 140 | 1 x 120 | PVC Al | 260 |
| 30HX 090 | 1 x 50 | XLPE Cu | 160 | 1 x 120 | PVC Al | 260 |
| 30HX 100 | 1 x 50 | XLPE Cu | 160 | 1 x 95 | XLPE Al | 195 |
| 30HX 110 | 1 x 70 | XLPE Cu | 170 | 1 x 120 | XLPE Al | 205 |
| 30HX 120/130 | 1 x 70 | XLPE Cu | 170 | 1 x 150 | XLPE Al | 210 |
| 30HX 140 | 1 x 95 | XLPE Cu | 180 | 1 x 185 | XLPE Al | 220 |
| 30HX 155 | 1 x 95 | XLPE Cu | 180 | 1 x 240 | XLPE Al | 225 |
| 30HX 175 | 1 x 120 | XLPE Cu | 185 | 1 x 240 | XLPE Al | 225 |
| 30HX 190 | 1 x150 | XLPE Cu | 190 | 2 x 95 | XLPE Al | 195 |
| 30HX 200 ckt A | 1 x 70 | XLPE Cu | 170 | 2 x120 | PVC Al | 325 |
| 30HX 230 ckt A | 1 x 95 | XLPE Cu | 180 | 2 x 120 | PVC Al | 325 |
| 30HX 260 ckt A | 1 x 120 | XLPE Cu | 185 | 1 x 240 | XLPE Al | 225 |
| 30HX 285 ckt A | 1 x 150 | XLPE Cu | 190 | 2 x 150 | XLPE Al | 265 |
| 30HX 200 ckt B | 1 x 35 | XLPE Cu | 140 | 1 x 95 | PVC Al | 250 |
| 30HX 230 ckt B | 1 x 35 | XLPE Cu | 140 | 1 x 120 | PVC Al | 260 |
| 30HX 260 ckt B | 1 x 35 | XLPE Cu | 140 | 1 x 120 | PVC Al | 260 |
| 30HX 285 ckt B | 1 x 50 | XLPE Cu | 160 | 2 x 70 | PVC Al | 285 |
| 30HX 310 ckt A & B | 1 x 95 | XLPE Cu | 180 | 1 x 240 | XLPE Al | 225 |
| 30HX 345 ckt A & B | 1 x 120 | XLPE Cu | 185 | 1 x 240 | XLPE Al | 225 |
| 30HX 375 ckt A & B | 1 x 150 | XLPE Cu | 190 | 2 x 150 | XLPE Al | 265 |
| 30GX 082 | 1 x 95 | XLPE Cu | 190 | 2 x 185 | PVC Al | 420 |
| 30GX 092 | 1 x 120 | XLPE Cu | 195 | 2 x 185 | PVC Al | 420 |
| 30GX 102 | 1 x 120 | XLPE Cu | 195 | 2 x 240 | PVC Al | 450 |
| 30GX 112 | 1 x 150 | XLPE Cu | 200 | 2 x 150 | XLPE Al | 300 |
| 30GX 122 | 1 x 185 | XLPE Cu | 205 | 2 x 185 | XLPE Al | 315 |
| 30GX 132 | 1 x 185 | XLPE Cu | 205 | 2 x 240 | XLPE Al | 330 |
| 30GX 152 | 1 x 240 | XLPE Cu | 205 | 3x 185 | XLPE CU | 430 |
| 30GX 162 | 2 x 95 | XLPE Cu | 190 | 3x 240 | XLPE CU | 440 |
| 30GX 182 | 2 x 120 | XLPE Cu | 200 | 3x 240 | XLPE CU | 440 |
| 30GX 207 ckt A | 1 x 185 | XLPE Cu | 205 | 3x 185 | XLPE Al | 445 |
| 30GX 227 ckt A | 1 x 240 | XLPE Cu | 205 | 3x 240 | XLPE Al | 470 |
| 30GX 247/298/328 ckt A | 2 x 120 | XLPE Cu | 225 | 3x 185 | XLPE CU | 490 |
| 30HX 267/358 ckt A | 2 x 150 | XLPE Cu | 230 | 3x 240 | XLPE CU | 505 |
| 30GX 207/227/247 ckt B | 1 x 95 | XLPE Cu | 190 | 2 x 240 | PVC Al | 560 |
| 30HX 267 ckt B | 1 x 120 | XLPE Cu | 200 | 2 x 185 | XLPE AL | 395 |
| 30GX 298 ckt B | 1 x 185 | XLPE Cu | 205 | 3x 240 | XLPE AL | 470 |
| 30GX 328 ckt B | 2 x 120 | XLPE Cu | 225 | 3x 185 | XLPE CU | 490 |
| 30GX 358 ckt B | 2 x 150 | XLPE Cu | 230 | 3x 240 | XLPE CU | 505 |
Før du kobler til hovedstrømkablene (L1 - L2 - L3) på koblingsblokken, er det viktig å kontrollere riktig rekkefølge på de 3 fasene før du fortsetter med tilkoblingen på koblingsblokken eller hovedbryteren/isolatoren.
Se Controls IOM og det sertifiserte koblingsskjemaet som følger med enheten for feltkontrollkabling av følgende funksjoner:
Anbefalte ledningsseksjoner for enheter med høye kondenseringstemperaturer (400 V - 3 ph - 50 Hz)
| Enhet, alternativer 150 + 150A 400 V - 3 ph - 50 Hz | Min. (mm2) per fase | Ledningstype | L (m) | Maks. (mm2) per fase | Ledningstype | L (m) |
| 30HXC 080 OPT. 150 | 1 x 50 | XLPE Cu | 150 | 2 x 70 | PVC Al | 230 |
| 30HXC 090 OPT. 150 | 1 x 70 | XLPE Cu | 160 | 2 x 95 | PVC Al | 260 |
| 30HXC 100 OPT. 150 | 1 x 70 | XLPE Cu | 160 | 2 x 95 | PVC Al | 250 |
| 30HXC 110 OPT. 150 | 1 x 95 | XLPE Cu | 170 | 2 x 120 | PVC Al | 265 |
| 30HXC 120 OPT. 150 | 1 x 120 | XLPE Cu | 180 | 2 x 120 | XLPE Al | 205 |
| 30HXC 130 OPT. 150 | 1 x 120 | XLPE Cu | 160 | 2 x 120 | XLPE Al | 210 |
| 30HXC 140 OPT. 150 | 1 x 150 | XLPE Cu | 175 | 2 x 120 | XLPE Al | 205 |
| 30HXC 155 OPT. 150 | 1 x 185 | XLPE Cu | 185 | 2 x 150 | XLPE Al | 215 |
| 30HXC 175 OPT. 150 | 1 x 240 | XLPE Cu | 185 | 2 x 150 | XLPE Al | 210 |
| 30HXC 190 OPT. 150 | 2 x 95 | XLPE Cu | 175 | 2 x 240 | XLPE Al | 220 |
| 30HXC 200 OPT. 150 circ. A | 1 x 120 | XLPE Cu | 170 | 2 x 150 | XLPE Al | 270 |
| 30HXC 230 OPT. 150 circ. A | 1 x 150 | XLPE Cu | 180 | 2 x 185 | XLPE Al | 270 |
| 30HXC 260 OPT. 150 circ. A | 1 x 185 | XLPE Cu | 180 | 2 x 240 | XLPE Al | 295 |
| 30HXC 285 OPT. 150 circ. A | 1 x 240 | XLPE Cu | 170 | 2 x 185 | XLPE Cu | 265 |
| 30HXC 310 OPT. 150 circ. A | 1 x 185 | XLPE Cu | 180 | 2 x 240 | XLPE Al | 300 |
| 30HXC 345 OPT. 150 circ. A | 1 x 185 | XLPE Cu | 170 | 2 x 240 | XLPE Al | 280 |
| 30HXC 375 OPT. 150 circ. A | 1 x 240 | XLPE Cu | 170 | 2 x 185 | XLPE Cu | 265 |
| 30HXC 200 OPT. 150 circ. B | 1 x 35 | XLPE Cu | 125 | 2 x 95 | PVC Al | 320 |
| 30HXC 230 OPT. 150 circ. B | 1 x 50 | XLPE Cu | 140 | 2 x 95 | PVC Al | 310 |
| 30HXC 260 OPT. 150 circ. B | 1 x 50 | XLPE Cu | 140 | 2 x 95 | PVC Al | 310 |
| 30HXC 285 OPT. 150 circ. B | 1 x 70 | XLPE Cu | 160 | 2 x 120 | PVC Al | 325 |
| 30HXC 310 OPT. 150 circ. B | 1 x 150 | XLPE Cu | 180 | 2 x 185 | XLPE Al | 275 |
| 30HXC 345 OPT. 150 circ. B | 1 x 185 | XLPE Cu | 185 | 2 x 240 | XLPE Al | 305 |
| 30HXC 375 OPT. 150 circ. B | 1 x 185 | XLPE Cu | 160 | 2 x 240 | XLPE Al | 280 |
Olje Filter
06N skruekompressoren har et oljefilter integrert i kompressorhuset. Dette filteret kan byttes ut i felt.
Kjølemiddel
06N skruekompressoren er spesielt designet for å brukes i kun R134 a system.
Smøremiddel
06N skruekompressoren er godkjent for bruk med følgende smøremiddel.
CARRIER MATERIAL SPEC PP 47-32
Oljetilførselsmagnetventil
En oljetilførselsmagnetventil er standard på kompressoren for å isolere kompressoren fra oljestrøm når kompressoren ikke er i drift.
Olje-magnetventilen kan byttes ut i felt.
Suge- og økonomiseringsskjermer
For å øke påliteligheten til kompressoren, er en skjerm innlemmet som en standardfunksjon i suge- og økonomiseringsinnløpene til kompressoren.
Avlastningssystem
06N skruekompressoren har et avlastningssystem som er standard på alle kompressorer. Dette avlastningssystemet består av to trinn med avlastning som reduserer kompressorkapasiteten ved å omdirigere delvis komprimert gass tilbake til suging.
30HXC og 30GX kjølere bruker en oversvømmet fordamper. Vannet sirkulerer i rørene og kjølemediet er på utsiden i skallet. Ett kar brukes til å betjene begge kjølemediekretsene. Det er en senterrørplate som skiller de to kjølemediekretsene. Rørene er 3/4" diameter kobber med en forbedret overflate innvendig og utvendig. Det er bare én vannkrets, og avhengig av størrelsen på kjøleren, kan det være to eller tre vannpasseringer. En kjøligere væskenivåsensor gir optimalisert strømningskontroll.
På toppen av kjøleren er de to sugerørene, ett i hver krets. Hver har en flens sveiset til den, og kompressoren monteres på flensen.
30HXC kjøler bruker et kar som er en kombinasjon av kondensator og oljeutskiller. Den er montert under kjøleren. Utløpsgass forlater kompressoren og strømmer gjennom en ekstern lyddemper til oljeutskilleren, som er den øvre delen av karet. Den kommer inn på toppen av separatoren hvor olje fjernes, og strømmer deretter til den nedre delen av karet, hvor gass kondenseres og underkjøles. Ett kar brukes til å betjene begge kjølemediekretsene. Det er en senterrørplate som skiller de to kjølemediekretsene. Rørene er 3/4" eller 1" diameter kobber med forbedret overflate innvendig og utvendig. Det er bare én vannkrets med to vannpasseringer.
I de luftkjølte enhetene er oljeutskilleren et trykkbeholder som er montert under de ytre vertikale kondensatorspolene. Utløpsgass kommer inn på toppen av separatoren hvor mye av oljen skilles og dreneres til bunnen. Gassen strømmer deretter gjennom en trådnettskjerm hvor den gjenværende oljen skilles og dreneres til bunnen.
Mikroprosessoren styrer EXD gjennom EXV-kontrollmodulen. EXD vil enten være en EXV eller en Economizer. Inne i begge disse enhetene er det en lineær aktuator-trinnmotor. Høytrykks flytende kjølemiddel kommer inn i ventilen gjennom bunnen. En serie kalibrerte spor er plassert inne i åpningsenheten. Når kjølemediet passerer gjennom åpningen, faller trykket og kjølemediet endres til en 2-fase tilstand (væske og damp). For å kontrollere kjølemiddelstrømmen for forskjellige driftsforhold, beveger hylsen seg opp og ned over åpningen, og endrer dermed det effektive strømningsarealet til ekspansjonsanordningen. Hylsen beveges av en lineær trinnmotor. Trinnmotoren beveger seg i trinn og styres direkte av prosessormodulen. Når trinnmotoren roterer, overføres bevegelsen til lineær bevegelse av ledeskruen. Gjennom trinnmotoren og ledeskruene oppnås 1500 diskrete trinn med bevegelse. Det store antallet trinn og lange slaglengden resulterer i svært nøyaktig kontroll av kjølemiddelstrømmen. Hver krets har en væskenivåsensor montert vertikalt inn i toppen av kjølerskallet. Nivåsensoren består av en liten elektrisk motstandsvarmer og tre termistorer koblet i serie plassert i forskjellige høyder inne i brønnens kropp. Varmeren er designet slik at termistorene vil lese omtrent 93,3 °C i tørr luft. Når kjølemiddelnivået stiger i kjøleren, vil motstanden til den nærmeste termistoren(e) endres kraftig. Denne store motstandsforskjellen gjør at kontrollen nøyaktig kan opprettholde et spesifisert nivå. Nivåsensoren overvåker kjølemiddelvæskenivået i kjøleren og sender denne informasjonen til PSIO-1. Ved første oppstart er EXV-posisjonen null. Etter det holder mikroprosessoren nøyaktig oversikt over ventilposisjonen for å bruke denne informasjonen som inngang for de andre kontrollfunksjonene. Den gjør dette ved å initialisere EXV-ene ved oppstart. Prosessoren sender ut nok lukkepulser til ventilen for å flytte den fra helt åpen til helt lukket, og tilbakestiller deretter posisjonstelleren til null. Fra dette punktet og fremover, frem til initialiseringen, teller prosessoren det totale antallet åpne og lukkede trinn den har sendt til hver ventil.
Economizere er installert på 30HXC 190, 285 og 375 og 30GX 182, 267 og 358.
Economizeren forbedrer både kjølerkapasiteten og effektiviteten, samt gir kjøling av kompressormotoren. Inne i economizeren er både en lineær EXV-trinnmotor og en flottørventil. EXV styres av PIC for å opprettholde ønsket væskenivå i kjøleren (som gjøres for NonEconomized kjølere). Flottørventilen opprettholder et væskenivå i bunnen av economizeren. Flytende kjølemiddel tilføres fra kondensatoren til bunnen av economizeren. Når kjølemediet passerer gjennom EXV, reduseres trykket til et mellomnivå på omtrent 500 kPa. Dette trykket opprettholdes inne i economizerskallet. Deretter strømmer kjølemediet gjennom flottørventilen, trykket reduseres ytterligere til litt over trykket i kjøleren. Økningen i ytelse realiseres når noe av kjølemediet som passerer gjennom EXV blinker til damp, og underkjøler ytterligere væsken som holdes i bunnen av economizeren. Denne økningen i underkjøling gir ekstra kapasitet. Siden det ikke kreves ekstra strøm for å oppnå dette, forbedres også maskinens effektivitet. Dampen som blinker vil stige til economizeren hvor den passerer til kompressoren og brukes etter behov for å gi motorkjøling. Etter å ha passert over motorviklingene, går kjølemediet tilbake i syklusen ved en mellomport i kompresjonssyklusen.
30GX/HXC skruekjølere bruker en eksternt montert forsmørende oljepumpe per krets. Denne pumpen drives som en del av oppstartssekvensen.
MERK:
Driftstemperaturen til spolen kan nå 80 °C. Under visse midlertidige forhold (spesielt under oppstart ved lav utetemperatur eller lav kondensatorsløyfetemperatur) kan oljepumpen reaktiveres.
På 30GX-enheter er pumpene montert på basesskinnene på oljeutskillersiden av enheten. Pumpene er montert på en brakett på kondensatorene til 30HXC-enheter. Når en krets kreves å starte, vil kontrollene aktivere oljepumpen først slik at kompressoren starter med riktig smøring. Hvis pumpen har bygget opp tilstrekkelig oljetrykk, vil kompressoren få lov til å starte. Når kompressoren har startet, vil oljepumpen slås av. Hvis pumpen ikke var i stand til å bygge opp nok oljetrykk, vil kontrollen generere en alarm.
Kompressormotorviklingstemperaturer styres til det optimale settpunktet. Kontrollen oppnår dette ved å sykle motorkjøle-magnetventilen for å tillate at flytende kjølemiddel strømmer over motorviklingene etter behov. På enheter utstyrt med economizere, forlater flashgass toppen av economizeren og strømmer kontinuerlig til motorviklingene. Alt kjølemiddel som brukes til motorkjøling går tilbake til rotorene gjennom en port som ligger midtveis langs kompresjonssyklusen og komprimeres til utløpstrykk.
Enhetene bruker termistorer (inkludert to motortemperaturtermistorer) og to nivåtermistorer og trykktransdusere for å overvåke og kontrollere systemdriften.
Fordamper som forlater væske
Denne temperaturen brukes til å måle temperaturen på væsken som forlater fordamperen (vann eller saltlake). Temperaturen brukes til å kontrollere temperaturen på væsken som forlater og for å beskytte mot frysing av kjøleren. Den er plassert i fordampervæskedysen.
Fordamper som kommer inn i væske
Denne sensoren brukes til å måle temperaturen på væsken som kommer inn i fordamperen. Den er plassert i den inngående fordamperdysen. Den brukes til å gi automatisk temperaturkompensasjon for temperaturkontrollen for væsken som forlater med inngående væskekompensasjon.
Utløpsgasstemperatur (kretser A & B)
Denne sensoren brukes til å måle utløpsgasstemperaturen og kontrollere utløpstemperaturens overoppheting. Den er plassert på utløpsrøret til hver krets (30HXC) eller på toppen av oljeutskilleren (30GX).
MERK: Det er ingen termostathylse.
Motortemperatur
Kompressorbeskyttelsesmodulen (Compressor Protection Module (CPM)) overvåker motortemperaturen. Termistorklemmer er plassert i kompressorkoblingsboksen.
Fordamper væskenivå (kretser A & B)
Fordamper væskenivåtermistor brukes til å gi optimalisert strømningskontroll i fordamperen. Den er installert i toppen av fordamperen.
Kondensator som kommer inn i væske (30HXC)
Denne sensoren brukes til å måle temperaturen på væsken som kommer inn i de vannkjølte kondensatorene. Den er plassert i den felles væskeledningen som kommer inn i kondensatorene (feltinstallert). På varmemaskiner brukes den av kapasitetskontrollrutinen. På vannkjølte kondensatorer brukes den bare til overvåking av kondensatorvæsketemperaturen.
Kondensator som forlater væske (valgfritt på 30HXC)
Denne sensoren brukes til å måle temperaturen på væsken som forlater de vannkjølte kondensatorene. Den er plassert i den felles væskeledningen som forlater kondensatorene (feltinstallert). På varmemaskiner brukes den av kapasitetskontrollrutinen. På vannkjølte kondensatorer brukes den bare til overvåking av kondensatorvæsketemperaturen.

GX082/102

GX112/132

GX152/162

GX182

GX207/227

GX247/267

GX298

GX328/358
Disse enhetene er kun designet for bruk med R-134a.
IKKE BRUK NOE ANNET kjølemiddel i disse enhetene.
Når du tilfører eller fjerner fylling, sirkuler vann gjennom kondensatoren (HX) og kjøleren til enhver tid for å forhindre frysing. Fryseskader anses som misbruk og kan ugyldiggjøre Carrier-garantien.
IKKE OVERFYLL systemet. Overfylling resulterer i høyere utløpstrykk med høyere kjølevæskeforbruk, mulig kompressorskade og høyere strømforbruk.
MERK
For å sjekke for lav kjølemiddelfylling på en 30HXC, må flere faktorer vurderes. Et blinkende sikteglass for væskeledning er ikke nødvendigvis en indikasjon på utilstrekkelig fylling. Det er mange systemforhold der et blinkende sikteglass oppstår under normal drift. 30HXC-måleenheten er designet for å fungere korrekt under disse forholdene.
MERK
Et blinkende sikteglass for væskeledningen ved andre driftsforhold enn de som er nevnt ovenfor, er ikke nødvendigvis en indikasjon på lav kjølemiddelfylling.
Disse temperaturene brukes til å måle temperaturen i rommet eller utendørs lufttemperatur henholdsvis for tilbakestillingskontroll basert på tilbakestillingsalternativer for utendørs luft eller romtemperatur.
Utløpstrykk (kretser A og B)
Denne inngangen brukes til å måle høytrykksiden av hver krets i enheten.
Den brukes til å gi trykket for å erstatte utløpstrykkmåleren og for å kontrollere hodetrykket.
Sugetrykk (kretser A og B)
Denne inngangen brukes til å måle trykket på lavtrykksiden av enheten. Den brukes til å gi trykket for å erstatte sugetrykkmåleren.
Oljetrykk (hver kompressor)
Denne inngangen brukes til å måle oljetrykket til hver kompressor i enheten. Den er plassert på oljetrykksporten til hver kompressor.
Økonomisertrykk (kretser A og B)
Denne inngangen brukes til å overvåke oljetrykkdifferensialen som tilføres kompressoren.
IKKE tilfør olje på noe annet sted, da feil enhetsdrift kan oppstå.
Når du overfører kjølemiddelfyllingen til en lagringsenhet, kan olje bli ført med når enheten ikke er i drift. Gjenbruk først av alt mengden kjølemiddel som er overført. Etter å ha tappet oljen, fyll bare på mengden som er tappet (en overdreven oljefylling kan svekke korrekt enhetsdrift).
Et integrert oljefilter i 06N-skruekompressoren er spesifisert for å gi et høyt filtreringsnivå (3 µ) som kreves for lang levetid for lagrene. Siden systemrenslighet er kritisk for pålitelig systemdrift, er det også et forfilter (7 µ) i oljeledningen ved utløpet av oljeutskilleren.
Reservedelsnummeret for det integrerte oljefilterelementet er:
Carrier-delenummer (inkludert filter og O-ring): 06NA 660016S
Filteret bør kontrolleres etter de første 500 driftstimene, og deretter hver 2000. time. Filteret bør skiftes ut når trykkdifferansen over filteret overstiger 2,1 bar.
Trykkfallet over filteret kan bestemmes ved å måle trykket ved filterserviceporten og oljetrykksporten. Forskjellen i disse to trykkene vil være trykkfallet over filteret, tilbakeslagsventilen og magnetventilen. Trykkfallet over tilbakeslagsventilen og magnetventilen er omtrent 0,4 bar, som bør trekkes fra de to oljetrykksmålingene for å gi oljefilterets trykkfall. Oljefilterets trykkfall bør kontrolleres etter enhver anledning der kompressoren er slått av på grunn av en sikkerhet for lavt oljetrykk.
Korrekt kompressorrotasjon er en av de viktigste applikasjonshensynene. Omvendt rotasjon, selv for en svært kort periode, skader kompressoren.
Beskyttelsessystemet for omvendt rotasjon må være i stand til å bestemme rotasjonsretningen og stoppe kompressoren innen 300 millisekunder. Omvendt rotasjon er mest sannsynlig å oppstå når ledningene til kompressorklemmene forstyrres.
For å minimere muligheten for omvendt rotasjon, må følgende prosedyre brukes. Koble strømkablene til kompressorklemmepinnen slik de opprinnelig var koblet.
For utskifting av kompressoren er en lavtrykksbryter inkludert i kompressoren. Denne lavtrykksbryteren bør midlertidig installeres som en hard sikkerhet på høytrykksdelen av kompressoren. Hensikten med denne bryteren er å beskytte kompressoren mot eventuelle ledningsfeil ved kompressorklemmepinnen. Den elektriske kontakten til bryteren vil bli koblet i serie med høytrykksbryteren. Bryteren vil forbli på plass til kompressoren er startet og rotasjonsretningen er bekreftet; på dette tidspunktet vil bryteren bli fjernet.
Bryteren som er valgt for å oppdage omvendt rotasjon er Carrier-delenummer HK01CB001. Den er tilgjengelig som en del av "Kompressorinstallasjonspakken" (delenummer 06NA 660 013). Denne bryteren åpner kontaktene når trykket faller under 50 mm vakuum. Bryteren er en manuell tilbakestillingstype som kan tilbakestilles etter at trykket igjen har steget over 70 kPa. Det er kritisk at bryteren er en manuell tilbakestillingstype for å forhindre at kompressoren kortslutter i omvendt retning.
Følg trinnene nedenfor for å diagnostisere og korrigere EXD/økonomiseringsproblemer.
På 30HXC/GX-enheter med økonomiseringsenheter, kontroller at ventilen for boblerøret (bunnen av økonomiseringsenheten) er åpen. Sjekk EXD-motordriften først (se prosedyren i Controls IOM). Du skal kunne kjenne at aktuatoren beveger seg ved å plassere hånden på EXD- eller økonomiseringsenhetens kropp (aktuatoren er plassert omtrent halvveis til to tredjedeler opp fra bunnen av økonomiseringsenhetens skall). Du skal kjenne et hardt bankelyd fra aktuatoren når den når toppen av slaget (kan høres hvis omgivelsene er relativt stille). Aktuatoren skal banke når den når bunnen av slaget. Hvis det antas at ventilen ikke fungerer som den skal, kontakt din Carrier-serviceavdeling for ytterligere kontroller av:


Godkjenning av miljøstyringssystem
Ordrenr.: 13173-76, 03 1999 - Erstatter nr.: 13173-76, mars 1998
Produsenten forbeholder seg retten til å endre produktspesifikasjoner uten varsel.
Produsent: Carrier s.a., Montluel, Frankrike.
Trykt i Nederland på klorfritt papir.
