Manual do Compressor de Parafuso Carrier 30HXC/30GX
- 1 INTRODUÇÃO
- 2 CONSIDERAÇÕES DE SEGURANÇA
- 3 DIMENSÕES, FOLGAS, DISTRIBUIÇÃO DE PESO
- 4 DADOS FÍSICOS 30HXC
- 5 DADOS ELÉTRICOS 30HXC
- 6 DADOS ELÉTRICOS PARA UNIDADES COM TEMPERATURAS DE CONDENSAÇÃO ELEVADAS
- 7 DADOS FÍSICOS 30GX
- 8 DADOS ELÉTRICOS 30GX
-
9
DADOS DA APLICAÇÃO
- 9.1 Gama de funcionamento da unidade
- 9.2 Caudal mínimo de água gelada
- 9.3 Caudal máximo de água gelada
- 9.4 Evaporador de caudal variável
- 9.5 Volume mínimo de água do sistema
- 9.6 Caudal do refrigerador (l/s)
- 9.7 Caudal do condensador (l/s)
- 9.8 Curva de queda de pressão do evaporador
- 9.9 Curva de queda de pressão do condensador
- 9.10 Controladores de caudal
- 10 INSTALAÇÃO
- 11 INSTRUÇÕES DE ELEVAÇÃO
- 12 CARACTERÍSTICAS ELÉTRICAS
- 13 SEÇÕES DE CABOS RECOMENDADAS
-
14
COMPONENTES PRINCIPAIS DO SISTEMA E DADOS DE OPERAÇÃO
- 14.1 Compressor de parafuso duplo com engrenagens
- 14.2 Evaporador
- 14.3 Condensador e separador de óleo (30HXC)
- 14.4 Separador de óleo (30GX)
- 14.5 Dispositivo de Expansão Eletrónico (Electronic Expansion Device, EXD)
- 14.6 Economizador
- 14.7 Bombas de óleo
- 14.8 Válvulas de arrefecimento do motor
- 14.9 Sensores
- 14.10 Termistores
- 14.11 Disposição da ventoinha 30GX
- 15 MANUTENÇÃO
- 16 Resolução de problemas
- 17 Descarregar manual
- 18 Em Outros Idiomas

INTRODUÇÃO
Antes do arranque inicial da unidade 30HXC e 30GX, os envolvidos no arranque, operação e manutenção devem estar completamente familiarizados com estas instruções e outros dados de trabalho necessários. Este livro fornece uma visão geral para que se possa familiarizar com o sistema de controlo antes de realizar os procedimentos de arranque. Os procedimentos neste manual estão organizados na sequência necessária para o arranque e operação adequados da máquina.
CONSIDERAÇÕES DE SEGURANÇA
Os chillers de líquido 30HXC e 30GX são projetados para fornecer um serviço seguro e confiável quando operados dentro das especificações de projeto. Ao operar este equipamento, use bom senso e precauções de segurança para evitar danos ao equipamento e propriedade ou ferimentos ao pessoal.
Certifique-se de que compreende e segue os procedimentos e precauções de segurança contidos nas instruções da máquina, bem como os listados neste guia.
NÃO VENTILE as válvulas de alívio de refrigerante dentro de um edifício. A saída da válvula de alívio deve ser ventilada para o exterior. A acumulação de refrigerante num espaço fechado pode deslocar o oxigénio e causar asfixia ou explosões.
FORNEÇA ventilação adequada, especialmente para espaços fechados e com pouca altura livre. A inalação de altas concentrações de vapor é prejudicial e pode causar irregularidades cardíacas, perda de consciência ou morte. O vapor é mais pesado que o ar e reduz a quantidade de oxigénio disponível para respirar. O produto causa irritação nos olhos e na pele. Os produtos de decomposição são perigosos.
NÃO USE OXIGÉNIO para purgar linhas ou para pressurizar uma máquina para qualquer finalidade. O gás oxigénio reage violentamente com óleo, massa lubrificante e outras substâncias comuns.
NUNCA EXCEDA as pressões de teste especificadas, VERIFIQUE a pressão de teste permitida verificando a literatura de instruções e as pressões de projeto na placa de identificação do equipamento.
NÃO USE ar para testes de vazamento. Use apenas refrigerante ou nitrogénio seco.
NÃO FECHE COM VÁLVULA nenhum dispositivo de segurança.
CERTIFIQUE-SE de que todos os dispositivos de alívio de pressão estão instalados corretamente antes de operar qualquer máquina.
NÃO SOLDE OU CORTE COM MAÇARICO qualquer linha ou vaso de refrigerante até que todo o refrigerante (líquido e vapor) tenha sido removido do chiller. Vestígios de vapor devem ser deslocados com nitrogénio de ar seco e a área de trabalho deve ser bem ventilada. O refrigerante em contacto com uma chama aberta produz gases tóxicos.
NÃO trabalhe em equipamentos energizados, a menos que seja um eletricista qualificado.
NÃO TRABALHE EM componentes elétricos, incluindo painéis de controlo, interruptores, relés, etc., até ter certeza de que TODA A ENERGIA ESTÁ DESLIGADA e a tensão residual pode vazar de capacitores ou componentes de estado sólido.
BLOQUEIE ABERTO E ETIQUETE os circuitos elétricos durante a manutenção. SE O TRABALHO FOR INTERROMPIDO, verifique se todos os circuitos estão desenergizados antes de retomar o trabalho.
NÃO sifone o refrigerante.
EVITE DERRAMAR refrigerante líquido na pele ou colocá-lo nos olhos. USE ÓCULOS DE PROTEÇÃO. Lave qualquer derrame da pele com água e sabão. Se o refrigerante líquido entrar nos olhos,
LAVE IMEDIATAMENTE OS OLHOS com água e consulte um médico.
NUNCA APLIQUE uma chama aberta ou vapor vivo no recipiente de refrigerante. Pode resultar uma sobrepressão perigosa. Se for necessário aquecer o refrigerante, use apenas água morna.
NÃO REUTILIZE cilindros descartáveis (não retornáveis) ou tente enchê-los novamente. É PERIGOSO E ILEGAL. Quando os cilindros forem esvaziados, evacue a pressão de gás restante, solte o colar e desaperte e descarte a haste da válvula. NÃO INCINERE.
VERIFIQUE O TIPO DE REFRIGERANTE antes de adicionar refrigerante à máquina. A introdução do refrigerante errado pode causar danos ou mau funcionamento a esta máquina.
NÃO TENTE REMOVER conexões, componentes, etc., enquanto a máquina estiver sob pressão ou enquanto a máquina estiver em funcionamento. Certifique-se de que a pressão está em 0 kPa antes de interromper a conexão do refrigerante.
INSPECIONE CUIDADOSAMENTE todos os dispositivos de alívio, PELO MENOS UMA VEZ POR ANO. Se a máquina operar num ambiente corrosivo, inspecione os dispositivos em intervalos mais frequentes.
NÃO TENTE REPARAR OU RECONDICIONAR qualquer dispositivo de alívio quando for encontrada corrosão ou acumulação de material estranho (ferrugem, sujidade, incrustações, etc.) dentro do corpo ou mecanismo da válvula. Substitua o dispositivo.
NÃO instale dispositivos de alívio em série ou ao contrário.
NÃO PISA nas linhas de refrigerante. Linhas partidas podem chicotear e libertar refrigerante, causando ferimentos pessoais.
NÃO suba numa máquina. Use plataforma ou palco.
USE EQUIPAMENTO MECÂNICO (guincho, elevador, etc.) para levantar ou mover componentes pesados. Mesmo que os componentes sejam leves, use equipamento mecânico quando houver risco de escorregar ou perder o equilíbrio.
ESTEJA CIENTE de que certos arranjos de arranque automático PODEM ACIONAR A VENTOINHA DA TORRE OU AS BOMBAS. Abra o desconector antes das ventoinhas da torre ou das bombas.
USE apenas peças de reparo ou substituição que atendam aos requisitos de código do equipamento original.
NÃO VENTILE OU DRENE caixas de água contendo salmouras industriais, sem a permissão de um órgão competente.
NÃO SOLTE os parafusos da caixa de água até que a caixa de água tenha sido completamente drenada.
NÃO SOLTE uma porca de bucim antes de verificar se a porca tem um engate de rosca positivo.
INSPECIONE PERIODICAMENTE todas as válvulas, conexões e tubagens quanto a corrosão, ferrugem, vazamentos ou danos.
FORNEÇA UMA conexão de DRENO na linha de ventilação perto de cada dispositivo de alívio de pressão para evitar a acumulação de condensado ou água da chuva.
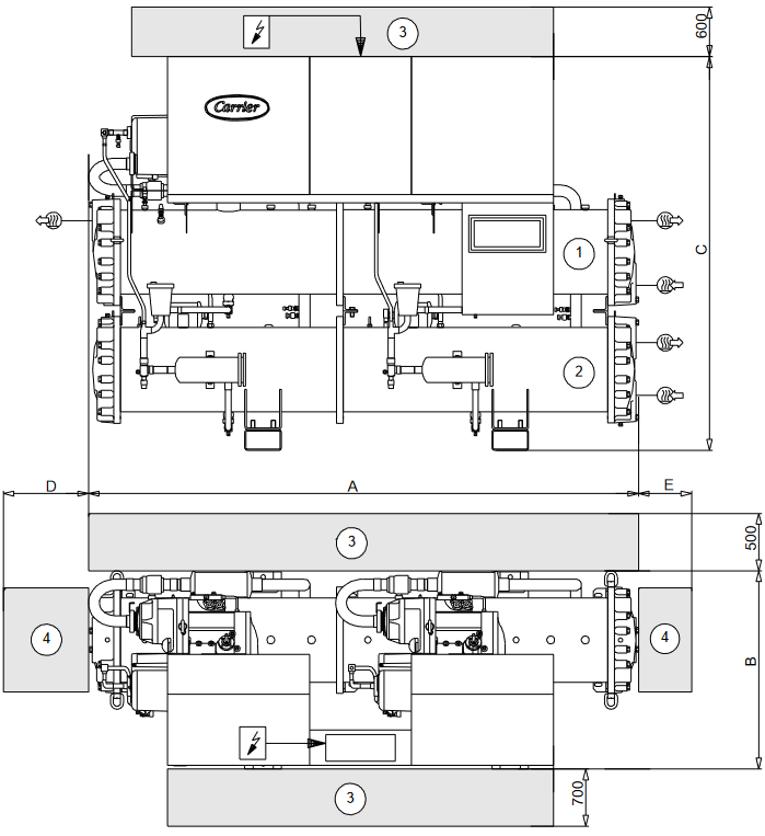
DIMENSÕES, FOLGAS, DISTRIBUIÇÃO DE PESO
30HXC 080-190
30HXC080
30HXC090
30HXC100
30HXC110

- Evaporador
- Condensador
- Folgas necessárias para operação e manutenção
- Folgas necessárias para a remoção do tubo do permutador de calor. As folgas D e E podem estar no lado esquerdo ou no lado direito.
Entrada de água
Saída de água
Fonte de alimentação
kg: peso operacional total
| A mm | B mm | C mm | D mm | E mm | kg | |
| 30HXC080 30HXC090 30HXC100 |
2705 | 950 | 1850 | 2360 | 1000 | 2447 2462 2504 |
| 30HXC110 | 2705 | 950 | 1900 | 2360 | 1000 | 2650 |
| 30HXC120 30HXC130 30HXC140 30HXC155 |
3535 | 950 | 1875 | 3220 | 1000 | 2846 2861 2956 2971 |
| 30HXC175 30HXC190 |
3550 | 950 | 2000 | 3220 | 1000 | 3283 3438 |
NOTA: Consulte os desenhos dimensionais certificados fornecidos com a unidade, ao projetar uma instalação.
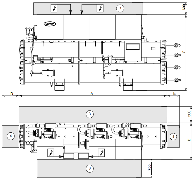
30HXC 200-375

- Evaporador
- Condensador
- Folgas necessárias para operação e manutenção
- Folgas necessárias para a remoção do tubo do permutador de calor. As folgas D e E podem estar no lado esquerdo ou no lado direito.
Entrada de água
Saída de água
Fonte de alimentação
kg: peso operacional total
| A mm | B mm | C mm | D mm | E mm | kg | |
| 30HXC200 | 3975 | 980 | 2035 | 3620 | 1000 | 4090 |
| 30HXC230 30HXC260 30HXC285 |
3995 | 980 | 2116 | 3620 | 1000 | 4705 4815 4985 |
| 30HXC310 30HXC345 30HXC375 |
4490 | 980 | 2163 | 4120 | 1000 | 5760 5870 6105 |
NOTA: Consulte os desenhos dimensionais certificados fornecidos com a unidade, ao projetar uma instalação.
30GX 082-182
30GX-082
30GX-092
30GX-102
30GX-112
30GX-122
30GX-132
30GX-152
30GX-162
30GX-182


- Folgas necessárias para operação e manutenção
- Folgas necessárias para a remoção do tubo do permutador de calor. As folgas podem estar no lado esquerdo ou no lado direito.
Entrada de água
Saída de água
Fonte de alimentação
Saída de ar - não obstrua
kg: peso operacional total
| A mm | B mm | kg | |
| 30GX082 30GX092 30GX102 |
2970 | 2215 | 3116 3157 3172 |
| 30GX112 30GX122 30GX132 |
3427 | 2045 | 3515 3531 3633 |
| 30GX152 30GX162 |
4342 | 2835 | 3920 3936 |
| 30GX182 | 5996 | 1820 | 4853 |
Instalação de vários chillers


Notas:
- A unidade deve ter folgas para o fluxo de ar da seguinte forma:
Superior: não restrinja de forma alguma - No caso de vários chillers (até quatro unidades), a folga respetiva entre eles deve ser aumentada de 1830 para 2000 mm para o requisito de espaço lateral.
- São necessárias folgas para a remoção do tubo do refrigerador.
NOTA: Consulte os desenhos dimensionais certificados fornecidos com a unidade, ao projetar uma instalação.
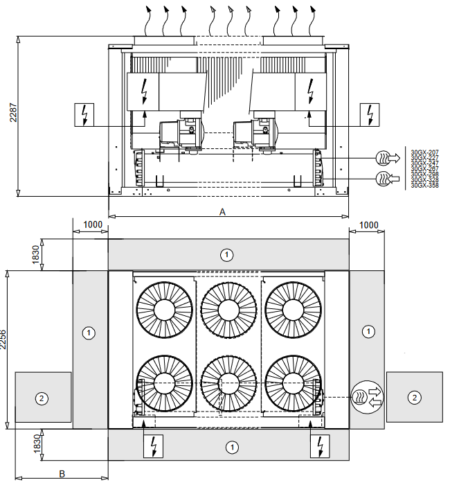
30GX 207-358
30GX-207
30GX-227
30GX-247
30GX-267
30GX-298
30GX-328
30GX-358

- Folgas necessárias para operação e manutenção
- Folgas necessárias para a remoção do tubo do permutador de calor. As folgas podem estar no lado esquerdo ou no lado direito.
Entrada de água
Saída de água
Fonte de alimentação
Saída de ar - não obstrua
kg: peso operacional total
| A mm | B mm | kg | |
| 30GX207 30GX227 |
5996 | 2895 | 5540 5570 |
| 30GX247 30GX267 |
6911 | 2470 | 6134 6365 |
| 30GX298 | 7826 | 2220 | 7354 |
| 30GX328 30GX358 |
8741 | 1250 | 7918 8124 |
Instalação de vários chillers


Notas:
- A unidade deve ter folgas para o fluxo de ar da seguinte forma:
Superior: não restrinja de forma alguma - No caso de vários chillers (até quatro unidades), a folga respetiva entre eles deve ser aumentada de 1830 para 2000 mm para o requisito de espaço lateral.
- São necessárias folgas para a remoção do tubo do refrigerador.
NOTA: Consulte os desenhos dimensionais certificados fornecidos com a unidade, ao projetar uma instalação.
DADOS FÍSICOS 30HXC
| 30HXC | 080 | 090 | 100 | 110 | 120 | 130 | 140 | 155 | 175 | 190 | 200 | 230 | 260 | 285 | 310 | 345 | 375 | |
| Capacidade de refrigeração líquida | kW | 292 | 321 | 352 | 389 | 426 | 464 | 514 | 550 | 607 | 663 | 716 | 822 | 918 | 996 | 1119 | 1222 | 1326 |
| Peso operacional | kg | 2447 | 2462 | 2504 | 2650 | 2846 | 2861 | 2956 | 2971 | 3283 | 3438 | 4090 | 4705 | 4815 | 4985 | 5760 | 5870 | 6105 |
| Refrigerante Circuito A/B |
HFC-134a | |||||||||||||||||
| kg | 39/36 | 39/36 | 37/32 | 38/38 | 57/55 | 59/50 | 56/50 | 59/52 | 58/61 | 60/70 | 110/58 | 118/63 | 120/75 | 120/75 | 108/110 | 110/110 | 110/120 | |
| Óleo Circuito A/B |
Óleo de polioléster CARRIER SPEC: PP 47-32 | |||||||||||||||||
| l | 15/15 | 15/15 | 15/15 | 15/15 | 15/15 | 15/15 | 15/15 | 15/15 | 15/15 | 15/15 | 30/15 | 30/15 | 30/15 | 30/15 | 30/30 | 30/30 | 30/30 | |
| Compressores | Parafuso duplo hermético Power3 | |||||||||||||||||
| Circ. A, tamanho nominal por compressor** | 39 | 46 | 46 | 56 | 56 | 66 | 80 | 80 | 80 | 80+ | 66/56 | 80/56 | 80/80 | 80+/80+ | 80/66 | 80/80 | 80+/80+ | |
| Circ. B, tamanho nominal por compressor** | 39 | 39 | 46 | 46 | 56 | 56 | 56 | 66 | 80 | 80+ | 66 | 80 | 80 | 80+ | 80/66 | 80/80 | 80+/80+ | |
| Tipo de controlo | Controlo PRO-DIALOG Plus | |||||||||||||||||
| Número de passos de capacidade | 6 | 6 | 6 | 6 | 6 | 6 | 6 | 6 | 6 | 6 | 8 | 8 | 8 | 8 | 10 | 10 | 10 | |
| Capacidade mínima | % | 19 | 19 | 21 | 19 | 21 | 19 | 17 | 19 | 21 | 21 | 14 | 14 | 14 | 14 | 10 | 10 | 10 |
| Evaporador | Tipo casco e tubo, com tubos de cobre com aletas internas | |||||||||||||||||
| Volume líquido de água | l | 65 | 65 | 73 | 87 | 81 | 81 | 91 | 91 | 109 | 109 | 140 | 165 | 181 | 181 | 203 | 229 | 229 |
| Ligações de água | Flange plana fornecida de fábrica, a ser soldada no local | |||||||||||||||||
| Entrada e saída | in. | 4 | 4 | 4 | 5 | 5 | 5 | 5 | 5 | 5 | 5 | 6 | 6 | 6 | 6 | 8 | 8 | 8 |
| Dreno e ventilação (NPT) | in. | 3/8 | 3/8 | 3/8 | 3/8 | 3/8 | 3/8 | 3/8 | 3/8 | 3/8 | 3/8 | 3/8 | 3/8 | 3/8 | 3/8 | 3/8 | 3/8 | 3/8 |
| Máx. pressão operacional do lado da água | kPa | 1000 | 1000 | 1000 | 1000 | 1000 | 1000 | 1000 | 1000 | 1000 | 1000 | 1000 | 1000 | 1000 | 1000 | 1000 | 1000 | 1000 |
| Condensadores | Tipo casco e tubo, com tubos de cobre com aletas internas | |||||||||||||||||
| Volume líquido de água | l | 58 | 58 | 58 | 58 | 92 | 92 | 110 | 110 | 132 | 132 | 162 | 208 | 208 | 208 | 251 | 251 | 251 |
| Ligações de água | Flange plana fornecida de fábrica, a ser soldada no local | |||||||||||||||||
| Entrada e saída | in. | 5 | 5 | 5 | 5 | 5 | 5 | 5 | 5 | 6 | 6 | 6 | 6 | 6 | 6 | 8 | 8 | 8 |
| Dreno e ventilação (NPT) | in. | 3/8 | 3/8 | 3/8 | 3/8 | 3/8 | 3/8 | 3/8 | 3/8 | 3/8 | 3/8 | 3/8 | 3/8 | 3/8 | 3/8 | 3/8 | 3/8 | 3/8 |
| Máx. pressão operacional do lado da água | kPa | 1000 | 1000 | 1000 | 1000 | 1000 | 1000 | 1000 | 1000 | 1000 | 1000 | 1000 | 1000 | 1000 | 1000 | 1000 | 1000 | 1000 |
* Condições Eurovent padronizadas: temperaturas da água de entrada/saída do evaporador = 12°C/7°C, temperaturas da água de entrada/saída do condensador = 30°C/35°C Capacidade de refrigeração líquida: Capacidade de refrigeração bruta menos o calor da bomba de água contra a queda de pressão interna do evaporador. ** O tamanho do compressor corresponde à capacidade nominal em toneladas (1 tonelada = 3,517 kW).
DADOS ELÉTRICOS 30HXC
| 30HXC | 080 | 090 | 100 | 110 | 120 | 130 | 140 | 155 | 175 | 190 | 200 | 230 | 260 | 285 | 310 | 345 | 375 | |
| Circuito de alimentação | ||||||||||||||||||
| Alimentação nominal* | V-ph-Hz | 400-3-50 | ||||||||||||||||
| Gama de tensão | V | 360-440 | ||||||||||||||||
| Alimentação do circuito de controlo | O circuito de controlo é alimentado através do transformador instalado de fábrica | |||||||||||||||||
| Potência nominal de entrada* | kW | 59 | 67 | 74 | 83 | 88 | 99 | 112 | 123 | 135 | 146 | 156 | 179 | 201 | 219 | 245 | 274 | 298 |
| Corrente nominal consumida* | A | 98 | 111 | 124 | 139 | 148 | 166 | 186 | 204 | 226 | 242 | 259 | 291 | 335 | 367 | 408 | 456 | 498 |
| Potência máxima de entrada** | kW | 76 | 83 | 91 | 101 | 111 | 121 | 135 | 145 | 158 | 181 | 187 | 214 | 237 | 272 | 290 | 316 | 362 |
| Circuito A | kW | - | - | - | - | - | - | - | - | - | - | 121 | 135 | 158 | 181 | 145 | 158 | 181 |
| Circuito B | kW | - | - | - | - | - | - | - | - | - | - | 66 | 79 | 79 | 91 | 145 | 158 | 181 |
| Cosseno phi, unidade à carga máxima | 0.87 | 0.87 | 0.87 | 0.87 | 0.87 | 0.87 | 0.87 | 0.87 | 0.87 | 0.87 | 0.87 | 0.87 | 0.87 | 0.87 | 0.87 | 0.87 | 0.87 | |
| Corrente máxima consumida (Un - 10%)*** | A | 138 | 152 | 166 | 184 | 202 | 221 | 245 | 264 | 288 | 330 | 341 | 389 | 432 | 495 | 528 | 576 | 660 |
| Circuito A | A | - | - | - | - | - | - | - | - | - | - | 221 | 245 | 288 | 330 | 264 | 288 | 330 |
| Circuito B | A | - | - | - | - | - | - | - | - | - | - | 120 | 144 | 144 | 165 | 264 | 288 | 330 |
| Corrente máxima consumida (Un)*** | A | 125 | 138 | 151 | 167 | 184 | 201 | 223 | 240 | 262 | 300 | 310 | 354 | 393 | 450 | 480 | 524 | 600 |
| Circuito A | A | - | - | - | - | - | - | - | - | - | - | 201 | 223 | 262 | 300 | 240 | 262 | 300 |
| Circuito B | A | - | - | - | - | - | - | - | - | - | - | 109 | 131 | 131 | 150 | 240 | 262 | 300 |
| Corrente máxima de arranque, unidade padrão (Un)**** | A | 172 | 197 | 209 | 235 | 252 | 283 | 318 | 335 | 357 | 420 | 806 | 938 | 977 | 1156 | 1064 | 1108 | 1306 |
| Circuito A | A | - | - | - | - | - | - | - | - | - | - | 697 | 807 | 846 | 1006 | 824 | 846 | 1006 |
| Circuito B | A | - | - | - | - | - | - | - | - | - | - | 605 | 715 | 715 | 856 | 824 | 846 | 1006 |
| Corrente máxima de arranque/relação de corrente máxima consumida, unidade | 1.37 | 1.42 | 1.39 | 1.41 | 1.37 | 1.41 | 1.43 | 1.40 | 1.36 | 1.40 | 2.60 | 2.65 | 2.49 | 2.57 | 2.22 | 2.12 | 2.18 | |
| Corrente máxima de arranque/relação de corrente máxima consumida, circuito A | - | - | - | - | - | - | - | - | - | - | 3.47 | 3.62 | 3.23 | 3.35 | 3.43 | 3.23 | 3.35 | |
| Corrente máxima de arranque/relação de corrente máxima consumida, circuito B | - | - | - | - | - | - | - | - | - | - | 5.55 | 5.46 | 5.46 | 5.71 | 3.43 | 3.23 | 3.35 | |
| Corrente máxima de arranque - arranque de corrente reduzida (Un) **** | A | std. | std. | std. | std. | std. | std. | std. | std. | std. | std. | 601 | 643 | 682 | 760 | 769 | 813 | 910 |
| Circuito A | A | std. | std. | std. | std. | std. | std. | std. | std. | std. | std. | 492 | 512 | 551 | 610 | 529 | 551 | 610 |
| Circuito B | A | std. | std. | std. | std. | std. | std. | std. | std. | std. | std. | 330 | 370 | 370 | 385 | 529 | 551 | 610 |
| Corrente máxima de arranque - início de corr. red./ relação de corrente máxima consumida, unidade | std. | std. | std. | std. | std. | std. | std. | std. | std. | std. | 1.94 | 1.82 | 1.74 | 1.69 | 1.60 | 1.55 | 1.52 | |
| Circuito A | std. | std. | std. | std. | std. | std. | std. | std. | std. | std. | 2.45 | 2.30 | 2.10 | 2.03 | 2.20 | 2.10 | 2.03 | |
| Circuito B | std. | std. | std. | std. | std. | std. | std. | std. | std. | std. | 3.03 | 2.83 | 2.83 | 2.57 | 2.20 | 2.10 | 2.03 | |
| Corrente de suporte de curto-circuito trifásica | kA | 25 | 25 | 25 | 25 | 25 | 25 | 25 | 25 | 25 | 25 | N/A | N/A | N/A | N/A | N/A | N/A | N/A |
| Circuito A | kA | - | - | - | - | - | - | - | - | - | - | 25 | 25 | 25 | 25 | 25 | 25 | 25 |
| Circuito B | kA | - | - | - | - | - | - | - | - | - | - | 15 | 15 | 15 | 15 | 25 | 25 | 25 |
| Capacidade de espera do cliente, unidade ou circ. A, para ligações da bomba de água do evaporador† | kW | 8 | 8 | 8 | 11 | 11 | 11 | 15 | 15 | 15 | 15 | 15 | 18 | 18 | 30 | 30 | 30 | 30 |
* Condições Eurovent padrão: Temperatura da água de entrada/saída do evaporador 12 °C e 7 °C. Temperatura da água de entrada/saída do condensador 30 °C/35 °C.
** Potência de entrada, compressor, nos limites de funcionamento da unidade (temperatura da água de entrada/saída do evaporador = 15 °C/10 °C, temperatura da água de entrada/saída do condensador = 40 °C/45 °C) e uma tensão nominal de 400 V (dados fornecidos na placa de identificação da unidade).
*** Corrente máxima de funcionamento da unidade na potência máxima de entrada da unidade.
**** Corrente de arranque instantânea máxima (corrente máxima de funcionamento do(s) compressor(es) mais pequeno(s) + corrente de rotor bloqueado ou corrente de arranque reduzida do compressor maior)
† Entradas de corrente e potência não incluídas nos valores acima.
N/A Não disponível
Compressores
| Referência | Tamanho | I nom. | MHA | LRA | LRA (Y) | LRA (S) 1 cp. | LRA (S) 2 cp. |
| 06NW2146S7N | 39 | 48 | 69 | 344 | 109 | 125 | - |
| 06NW2174S7N | 46 | 58 | 83 | 423 | 134 | 154 | - |
| 06NW2209S7N | 56 | 71 | 101 | 506 | 160 | 260 | 350 |
| 06NW2250S7N | 66 | 87 | 120 | 605 | 191 | 330 | 400 |
| 06NW2300S5N | 80 | 104 | 144 | 715 | 226 | 370 | 420 |
| 06NW2300S5E | 80+ | 111 | 165 | 856 | 270 | 385 | 460 |
Legenda:
| 06NW | Compressor para unidades arrefecidas a água |
| N | Compressor não economizado |
| E | Compressor economizado |
| INOM | Consumo médio de corrente do compressor nas condições Eurovent |
| MHA | Amperes de retenção obrigatória (corrente máxima de funcionamento) a 360 V |
| LRA | Corrente de rotor bloqueado com arranque direto |
| LRA (Y) | Corrente de rotor bloqueado com corrente reduzida (modo de arranque estrela/triângulo) |
| LRA (S) 1 cp. | Arranque com corrente reduzida com arrancador eletrónico (duração do arranque 3 segundos máx.) para um compressor por circuito |
| LRA (S) 2 cp. | Arranque com corrente reduzida com arrancador eletrónico (duração do arranque 3 segundos máx.) para dois compressores por circuito |
DADOS ELÉTRICOS PARA UNIDADES COM TEMPERATURAS DE CONDENSAÇÃO ELEVADAS
Opções 30HXC 150 e 150A
| 30HXC | 080 | 090 | 100 | 110 | 120 | 130 | 140 | 155 | 175 | 190 | 200 | 230 | 260 | 285 | 310 | 345 | 375 | |
| Circuito de alimentação | ||||||||||||||||||
| Alimentação nominal* | V-ph-Hz | 400-3-50 | ||||||||||||||||
| Intervalo de tensão | V | 360-440 | ||||||||||||||||
| Alimentação do circuito de controlo | O circuito de controlo é alimentado através do transformador instalado de fábrica | |||||||||||||||||
| Entrada de potência máx.** | kW | 104 | 117 | 131 | 145 | 159 | 174 | 194 | 211 | 230 | 263 | 271 | 310 | 345 | 395 | 422 | 460 | 526 |
| Circuito A | kW | - | - | - | - | - | - | - | - | - | - | 175 | 195 | 230 | 263 | 211 | 230 | 263 |
| Circuito B | kW | - | - | - | - | - | - | - | - | - | - | 96 | 115 | 115 | 132 | 211 | 230 | 263 |
| Corrente máxima consumida (Un - 10%)*** | A | 190 | 215 | 240 | 265 | 290 | 320 | 355 | 385 | 420 | 480 | 495 | 564 | 630 | 720 | 770 | 840 | 960 |
| Circuito A | A | - | - | - | - | - | - | - | - | - | - | 320 | 355 | 420 | 480 | 385 | 420 | 480 |
| Circuito B | A | - | - | - | - | - | - | - | - | - | - | 175 | 210 | 210 | 240 | 385 | 420 | 480 |
| Corrente máxima consumida (Un)*** | A | 173 | 195 | 218 | 241 | 264 | 291 | 323 | 350 | 382 | 436 | 450 | 514 | 573 | 655 | 700 | 764 | 873 |
| Circuito A | A | - | - | - | - | - | - | - | - | - | - | 291 | 323 | 382 | 436 | 350 | 382 | 436 |
| Circuito B | A | - | - | - | - | - | - | - | - | - | - | 159 | 191 | 191 | 218 | 350 | 382 | 436 |
| Corrente de arranque máx., unidade padrão (Un)**** | A | 277 | 312 | 335 | 379 | 402 | 435 | 519 | 546 | 578 | 618 | 1251 | 1549 | 1608 | 1701 | 1735 | 1799 | 1920 |
| Circuito A | A | - | - | - | - | - | - | - | - | - | - | 1092 | 1358 | 1417 | 1483 | 1385 | 1417 | 1483 |
| Circuito B | A | - | - | - | - | - | - | - | - | - | - | 960 | 1226 | 1226 | 1265 | 1385 | 1417 | 1483 |
| Corrente de arranque máx./relação de corrente máxima consumida, unidade | 1.61 | 1.60 | 1.54 | 1.57 | 1.52 | 1.49 | 1.61 | 1.56 | 1.51 | 1.42 | 2.78 | 3.02 | 2.81 | 2.60 | 2.48 | 2.36 | 2.20 | |
| Corrente de arranque máx./relação de corrente máxima consumida, circuito A | - | - | - | - | - | - | - | - | - | - | 3.75 | 4.21 | 3.71 | 3.40 | 3.96 | 3.71 | 3.40 | |
| Corrente de arranque máx./relação de corrente máxima consumida, circuito B | - | - | - | - | - | - | - | - | - | - | 6.03 | 6.42 | 6.42 | 5.80 | 3.96 | 3.71 | 3.40 | |
| Corrente de arranque máx. - arranque de corrente reduzida (Un) **** | A | std. | std. | std. | std. | std. | std. | std. | std. | std. | std. | N/A | N/A | N/A | N/A | N/A | N/A | N/A |
| Corrente de retenção de curto-circuito trifásica | kA | 25 | 25 | 25 | 25 | 25 | 25 | 25 | 25 | 25 | 25 | N/A | N/A | N/A | N/A | N/A | N/A | N/A |
| Circuito A | kA | - | - | - | - | - | - | - | - | - | - | 25 | 25 | 25 | 25 | 25 | 25 | 25 |
| Circuito B | kA | - | - | - | - | - | - | - | - | - | - | 15 | 15 | 15 | 15 | 25 | 25 | 25 |
| Capacidade de standby do cliente, unidade ou circ. A, para ligações da bomba de água do evaporador† | kW | 8 | 8 | 8 | 11 | 11 | 11 | 15 | 15 | 15 | 15 | 15 | 18 | 18 | 30 | 30 | 30 | 30 |
** Entrada de potência, compressor, nos limites de funcionamento da unidade (temperatura de entrada/saída da água do evaporador = 15 °C/10 °C, temperatura de entrada/saída da água do condensador = 40 °C/45 °C) e uma tensão nominal de 400 V (dados fornecidos na placa de identificação da unidade).
*** Corrente de funcionamento máxima da unidade na entrada de potência máxima da unidade.
**** Corrente de arranque instantânea máxima (corrente de funcionamento máxima do(s) compressor(es) mais pequeno(s) + corrente de rotor bloqueado ou corrente de arranque reduzida do compressor maior)
† Entradas de corrente e potência não incluídas nos valores acima.
N/A Não disponível
As unidades 30HXC 080-375 para temperaturas de condensação elevadas são derivadas diretamente dos modelos padrão. A sua gama de aplicações é a mesma das unidades padrão, mas permite o funcionamento a temperaturas de saída da água do condensador até 63 °C. O controlo PRO-DIALOG oferece todas as vantagens das unidades padrão, além do controlo da temperatura de saída da água do condensador.
As principais modificações são:
- Utilização de compressores 30GX
- Modificação dos componentes elétricos para funcionar com compressores para temperaturas de condensação elevadas.
- Modificação dos permutadores de calor para cumprir os requisitos do código de pressão (se necessário).
Opção 150
Estas unidades são concebidas para aplicações tradicionais para unidades arrefecidas a água, mas para temperaturas de saída da água do condensador superiores a 45 °C.
Tal como as unidades padrão, estão equipadas com sensores de entrada e saída de água do condensador, instalados na tubagem.
É possível controlar a máquina na saída de água do condensador, o que requer uma alteração da configuração de fábrica e a utilização de um dispositivo de inversão de entrada de aquecimento/arrefecimento.
Opção 150A
Estas unidades são concebidas para bombas de calor água-água.
São configuradas de fábrica como bombas de calor (controlo de aquecimento/arrefecimento em função do dispositivo de inversão remoto). O condensador incorpora isolamento térmico idêntico ao do evaporador.
Informação técnica
Todas as informações são idênticas às das unidades 30HXC padrão, exceto para os seguintes parágrafos.
Seleção
Não existem condições nominais para este tipo de unidade. A seleção é feita utilizando o catálogo eletrónico atual.
Dimensões
Estas são idênticas às das unidades 30HXC padrão. A única diferença reside no diâmetro da ligação da cablagem de campo de entrada, descrita no capítulo "Seleção recomendada". Consulte os desenhos dimensionais destas unidades antes de proceder à cablagem.
Compressor
Ver tabela de compressores 30GX.
Opções e acessórios
Todas as opções disponíveis para as unidades 30HXC padrão são compatíveis, exceto:
| Opção 5, unidade de salmoura | Unidade especial |
| Opção 25, arranque suave, unidades 30HXC 200-375 | Não disponível |
Atenção:
Se as unidades tiverem dois modos de funcionamento diferentes - um com temperatura de condensação elevada e outro com temperatura de condensação baixa - e a transição for feita com a unidade em funcionamento, a temperatura não deve variar mais de 3 K por minuto. Nos casos em que tal não seja possível, recomenda-se passar por um interruptor de arranque/paragem da unidade (arranque/paragem remoto disponível para unidades padrão).
DADOS FÍSICOS 30GX
| 30GX | 082 | 092 | 102 | 112 | 122 | 132 | 152 | 162 | 182 | 207 | 227 | 247 | 267 | 298 | 328 | 358 | ||
| Capacidade de arrefecimento líquida | kW | 285 | 309 | 332 | 388 | 417 | 450 | 505 | 536 | 602 | 687 | 744 | 810 | 910 | 1003 | 1103 | 1207 | |
| Peso em funcionamento | kg | 3116 | 3157 | 3172 | 3515 | 3531 | 3633 | 3920 | 3936 | 4853 | 5540 | 5570 | 6134 | 6365 | 7354 | 7918 | 8124 | |
| Carga de refrigerante | HFC-134a | |||||||||||||||||
| Circuito A/B | kg | 55/55 | 58/50 | 54/53 | 55/53 | 60/57 | 63/60 | 75/69 | 75/75 | 80/80 | 130/85 | 130/85 | 155/98 | 170/104 | 162/150 | 162/165 | 175/175 | |
| Óleo | Óleo de polioléster CARRIER SPEC: PP 47-32 | |||||||||||||||||
| Circuito A/B | l | 20/20 | 20/20 | 20/20 | 20/20 | 20/20 | 20/20 | 20/20 | 20/20 | 20/20 | 40/20 | 40/20 | 40/20 | 40/20 | 40/40 | 40/40 | 40/40 | |
| Compressores | Parafuso duplo hermético Power3 | |||||||||||||||||
| Circ. A, tamanho nominal por compressor** | 46 | 46 | 56 | 56 | 66 | 66 | 80 | 80 | 80+ | 66/56 | 80/66 | 80/80 | 80+/80+ | 80/80 | 80/80 | 80+/80+ | ||
| Circ. B, tamanho nominal por compressor** | 39 | 46 | 46 | 56 | 56 | 66 | 66 | 80 | 80+ | 80 | 80 | 80 | 80+ | 66/66 | 80/802 | 80+/80+ | ||
| Tipo de controlo | Controlo PRO-DIALOG Plus | |||||||||||||||||
| Número de passos de capacidade | 6 | 6 | 6 | 6 | 6 | 6 | 6 | 6 | 6 | 8 | 8 | 8 | 8 | 10 | 10 | 10 | ||
| Capacidade mínima | % | 19 | 21 | 19 | 21 | 19 | 21 | 19 | 21 | 21 | 16 | 14 | 14 | 14 | 9 | 10 | 10 | |
| Evaporador | Tipo casco e tubo, com tubos de cobre com aletas internas | |||||||||||||||||
| Volume de água líquido | l | 65 | 73 | 73 | 87 | 87 | 101 | 91 | 91 | 109 | 140 | 140 | 165 | 181 | 203 | 229 | 229 | |
| Ligações de água | Flange plana fornecida de fábrica, a ser soldada no local | |||||||||||||||||
| Entrada e saída | in. | 4 | 4 | 4 | 5 | 5 | 5 | 5 | 5 | 5 | 6 | 6 | 6 | 6 | 8 | 8 | 8 | |
| Dreno e ventilação (NPT) | in. | 3/8 | 3/8 | 3/8 | 3/8 | 3/8 | 3/8 | 3/8 | 3/8 | 3/8 | 3/8 | 3/8 | 3/8 | 3/8 | 3/8 | 3/8 | 3/8 | |
| Pressão de funcionamento máxima do lado da água | kPa | 1000 | 1000 | 1000 | 1000 | 1000 | 1000 | 1000 | 1000 | 1000 | 1000 | 1000 | 1000 | 1000 | 1000 | 1000 | 1000 | |
| Condensadores | Tubos de cobre e aletas de alumínio | |||||||||||||||||
| Ventoinhas | Ventoinha axial FLYING BIRD 2 com proteção rotativa | |||||||||||||||||
| Quantidade | 4 | 4 | 4 | 6 | 6 | 6 | 8 | 8 | 8 | 10 | 10 | 12 | 12 | 14 | 16 | 16 | ||
| Velocidade | r/s | 15.8 | 15.8 | 15.8 | 15.8 | 15.8 | 15.8 | 15.8 | 15.8 | 15.8 | 15.8 | 15.8 | 15.8 | 15.8 | 15.8 | 15.8 | 15.8 | |
| Caudal de ar total | l/s | 21110 | 21110 | 21110 | 31660 | 31660 | 31660 | 42220 | 42220 | 42220 | 52770 | 52770 | 63330 | 63330 | 73880 | 84440 | 84440 | |
* Condições Eurovent padronizadas: temperaturas de entrada/saída da água do evaporador = 12 °C/7 °C, temperatura do ar exterior = 35 °C Capacidade de arrefecimento líquida: Capacidade de arrefecimento bruta menos o calor da bomba de água contra a queda de pressão interna do evaporador.
** O tamanho do compressor corresponde à capacidade nominal em toneladas (1 tonelada = 3,517 kW).
DADOS ELÉTRICOS 30GX
| 30HXC | 082 | 092 | 102 | 112 | 122 | 132 | 152 | 162 | 182 | 207 | 227 | 247 | 267 | 298 | 328 | 358 | ||
| Circuito de alimentação | ||||||||||||||||||
| Alimentação nominal* | V-ph-Hz | 400-3-50 | ||||||||||||||||
| Gama de tensão | V | 360-440 | ||||||||||||||||
| Alimentação do circuito de controlo | O circuito de controlo é alimentado através do transformador instalado de fábrica | |||||||||||||||||
| Potência nominal de entrada* | kW | 98 | 109 | 123 | 133 | 150 | 166 | 179 | 196 | 214 | 246 | 281 | 292 | 332 | 364 | 394 | 449 | |
| Corrente nominal consumida* | A | 180 | 200 | 223 | 256 | 273 | 290 | 326 | 352 | 388 | 449 | 492 | 528 | 582 | 642 | 704 | 776 | |
| Máx. potência de entrada** | kW | 127 | 141 | 154 | 175 | 191 | 207 | 234 | 253 | 286 | 319 | 355 | 380 | 429 | 462 | 506 | 572 | |
| Circuito A | kW | - | - | - | - | - | - | - | - | - | 193 | 228 | 253 | 286 | 253 | 253 | 286 | |
| Circuito B | kW | - | - | - | - | - | - | - | - | - | 127 | 127 | 127 | 143 | 209 | 253 | 286 | |
| Cosseno phi, unidade à carga máxima | 0.85 | 0.85 | 0.85 | 0.85 | 0.85 | 0.85 | 0.86 | 0.86 | 0.86 | 0.86 | 0.86 | 0.86 | 0.86 | 0.86 | 0.86 | 0.86 | ||
| Máx. corrente consumida (Un - 10%)*** | A | 237 | 262 | 287 | 323 | 353 | 383 | 429 | 464 | 524 | 585 | 650 | 696 | 786 | 847 | 928 | 1048 | |
| Circuito A | A | - | - | - | - | - | - | - | - | - | 353 | 418 | 464 | 524 | 464 | 464 | 524 | |
| Circuito B | A | - | - | - | - | - | - | - | - | - | 232 | 232 | 232 | 262 | 383 | 464 | 524 | |
| Corrente máxima consumida (Un)*** | A | 217 | 240 | 263 | 297 | 324 | 351 | 394 | 426 | 480 | 537 | 596 | 639 | 721 | 777 | 852 | 961 | |
| Circuito A | A | - | - | - | - | - | - | - | - | - | 324 | 383 | 426 | 480 | 426 | 426 | 480 | |
| Circuito B | A | - | - | - | - | - | - | - | - | - | 213 | 213 | 213 | 240 | 351 | 426 | 480 | |
| Máx. corrente de arranque, unidade padrão**** (Un) | A | 334 | 357 | 401 | 435 | 468 | 495 | 590 | 622 | 662 | 1338 | 1631 | 1674 | 1767 | 1812 | 1887 | 2008 | |
| Circuito A*** | A | - | - | - | - | - | - | - | - | - | 1125 | 1418 | 1461 | 1527 | 1461 | 1461 | 1527 | |
| Circuito B*** | A | - | - | - | - | - | - | - | - | - | 1248 | 1248 | 1248 | 1287 | 1152 | 1461 | 1527 | |
| Máx. corrente de arranque/relação de corrente máxima consumida, unidade | 1.54 | 1.49 | 1.53 | 1.47 | 1.44 | 1.41 | 1.50 | 1.46 | 1.38 | 2.49 | 2.74 | 2.62 | 2.45 | 2.33 | 2.22 | 2.09 | ||
| Máx. corrente de arranque/relação de corrente máxima consumida, circuito A | - | - | - | - | - | - | - | - | - | 3.47 | 3.70 | 3.43 | 3.18 | 3.43 | 3.43 | 3.18 | ||
| Máx. corrente de arranque/relação de corrente máxima consumida, circuito B | - | - | - | - | - | - | - | - | - | 5.86 | 5.86 | 5.86 | 5.36 | 3.28 | 3.43 | 3.18 | ||
| Máx. corrente de arranque - arranque de corrente reduzida (Un) **** | A | std. | std. | std. | std. | std. | std. | std. | std. | std. | 878 | 955 | 998 | 1102 | 1136 | 1211 | 1343 | |
| Circuito A | A | std. | std. | std. | std. | std. | std. | std. | std. | std. | 665 | 742 | 785 | 862 | 785 | 785 | 862 | |
| Circuito B | A | std. | std. | std. | std. | std. | std. | std. | std. | std. | 572 | 572 | 572 | 622 | 692 | 785 | 862 | |
| Máx.corrente de arranque - início de corrente red./ relação de corrente máxima consumida, unidade | std. | std. | std. | std. | std. | std. | std. | std. | std. | 1.64 | 1.60 | 1.56 | 1.53 | 1.46 | 1.42 | 1.40 | ||
| Circuito A | std. | std. | std. | std. | std. | std. | std. | std. | std. | 2.05 | 1.94 | 1.84 | 1.79 | 1.84 | 1.84 | 1.79 | ||
| Circuito B | std. | std. | std. | std. | std. | std. | std. | std. | std. | 2.69 | 2.69 | 2.69 | 2.39 | 1.97 | 1.84 | 1.79 | ||
| Corrente de retenção de curto-circuito trifásica | kA | 25 | 25 | 25 | 25 | 25 | 25 | 25 | 25 | 25 | N/A | N/A | N/A | N/A | N/A | N/A | N/A | |
| Circuito A | kA | - | - | - | - | - | - | - | - | - | 25 | 25 | 25 | 25 | 25 | 25 | 25 | |
| Circuito B | kA | - | - | - | - | - | - | - | - | - | 25 | 25 | 25 | 25 | 25 | 25 | 25 | |
| Capacidade de espera do cliente, unidade ou circ. A, para ligações da bomba de água do evaporador† | kW | 4 | 4 | 4 | 5.5 | 5.5 | 5.5 | 7.5 | 7.5 | 7.5 | 7.5 | 9 | 9 | 9 | 15 | 15 | 15 | |
* Condições Eurovent padrão: Temperatura da água de entrada/saída do evaporador 12 °C e 7 °C. Temperatura do ar exterior 35 °C.
** Potência de entrada, compressor e ventilador, nos limites de funcionamento da unidade (temperatura da água de entrada/saída do evaporador = 15 °C/10 °C, temperatura do ar exterior = 46 °C) e uma tensão nominal de 400 V (dados fornecidos na placa de identificação da unidade).
*** Corrente de funcionamento máxima da unidade na potência de entrada máxima da unidade.
**** Corrente de arranque instantânea máxima (corrente de funcionamento máxima do(s) compressor(es) mais pequeno(s) + corrente do ventilador + corrente de rotor bloqueado ou corrente de arranque reduzida do compressor maior).
† Entradas de corrente e potência não incluídas nos valores acima
N/A Não disponível
Compressores
| Referência | Tamanho | I nom. | MHA | LRA | LRA (Y) | LRA (S) 1 cp. | LRA (S) 2 cp. |
| 06NA2146S7N | 39 | 70 | 95 | 605 | 191 | 220 | - |
| 06NA2174S7N | 46 | 90 | 120 | 715 | 226 | 260 | - |
| 06NA2209S7N | 56 | 113 | 145 | 856 | 270 | 330 | 420 |
| 06NA2250S7N | 66 | 130 | 175 | 960 | 303 | 380 | 500 |
| 06NA2300S5N | 80 | 156 | 210 | 1226 | 387 | 445 | 550 |
| 06NA2300S5E | 80+ | 174 | 240 | 1265 | 400 | 460 | 600 |
Legenda:
| 06NA | Compressor para unidades arrefecidas a ar |
| N | Compressor não economizado |
| E | Compressor economizado |
| INOM | Consumo médio de corrente do compressor nas condições Eurovent |
| MHA | Deve suportar amperes (corrente máxima de funcionamento) a 360 V |
| LRA | Corrente de rotor bloqueado com arranque direto |
| LRA (Y) | Corrente de rotor bloqueado com corrente reduzida (modo de arranque estrela/triângulo) |
| LRA (S) 1 cp. | Arranque com corrente reduzida com arrancador eletrónico (duração do arranque 3 segundos máx.) para um compressor por circuito |
| LRA (S) 2 cp. | Arranque com corrente reduzida com arrancador eletrónico (duração do arranque 3 segundos máx.) para dois compressores por circuito |
DADOS DA APLICAÇÃO
Gama de funcionamento da unidade
| Evaporador | Mínimo | Máximo | |
| Temperatura da água à entrada do evaporador | °C | 6.8* | 21 |
| Temperatura da água à saída do evaporador | °C | 4** | 15 |
| Condensador (arrefecido a água) | Mínimo | Máximo | |
| Temperatura da água à entrada do condensador | °C | 20*** | 42 |
| Temperatura da água à saída do condensador | °C | 25 | 45 |
| Temperatura ambiente exterior de funcionamento 30HXC | °C | 6 | 40 |
| Condensador (arrefecido a ar) | Mínimo | Máximo | |
| Temperatura ambiente exterior de funcionamento | °C | 0 | 46 |
| Pressão estática disponível | kPa | 0 |
Notas:
* Para aplicações que exigem funcionamento a menos de 6,8 °C, contacte a Carrier s.a. para seleção da unidade utilizando o catálogo eletrónico da Carrier.
** Para aplicações que exigem funcionamento a menos de 4 °C, as unidades requerem a utilização de anticongelante.
*** As unidades arrefecidas a água (30HXC) que funcionam a plena carga e abaixo de 20 °C de temperatura da água à entrada do condensador requerem a utilização de um controlo da pressão de descarga com válvulas de controlo de água analógicas (ver parágrafo sobre o controlo da pressão de descarga).
Em modos de funcionamento temporários (arranque e com carga parcial), a unidade pode funcionar com uma temperatura do ar à entrada do condensador de 13 °C.
Caudal mínimo de água gelada
O caudal mínimo de água gelada é apresentado na tabela na página seguinte. Se o caudal for inferior a este, o caudal do evaporador pode ser recirculado, conforme mostrado no diagrama. A temperatura da mistura que sai do evaporador nunca deve ser inferior a 2,8 K inferior à temperatura da água gelada à entrada.

PARA O CAUDAL MÍNIMO DE ÁGUA GELADA
Caudal máximo de água gelada
O caudal máximo de água gelada é limitado pela queda de pressão máxima permitida no evaporador. É fornecido na tabela na página seguinte. Se o caudal exceder o valor máximo, duas soluções são possíveis:
- Selecione um evaporador não normalizado com uma passagem de água a menos, o que permitirá um caudal máximo de água mais elevado.
- Desvie o evaporador, conforme mostrado no diagrama, para obter uma diferença de temperatura mais elevada com um caudal do evaporador mais baixo.

PARA O CAUDAL MÁXIMO DE ÁGUA GELADA
Evaporador de caudal variável
O caudal variável do evaporador pode ser utilizado nos chillers standard 30HXC e 30GX. Os chillers mantêm uma temperatura constante da água à saída em todas as condições de caudal. Para que isto aconteça, o caudal mínimo deve ser superior ao caudal mínimo indicado na tabela de caudais permitidos e não deve variar mais de 10% por minuto. Se o caudal mudar mais rapidamente, o sistema deve conter um mínimo de 6,5 litros de água por kW em vez de 3,25 l/kW.
Volume mínimo de água do sistema
Qualquer que seja o sistema, a capacidade mínima do circuito de água é dada pela fórmula:
Capacidade = Cap (kW) x N Litros
| Aplicação | N |
| Ar condicionado normal | 3,25 |
| Arrefecimento tipo processo | 6,5 |
Onde Cap é a capacidade de arrefecimento nominal do sistema (kW) nas condições de funcionamento nominais da instalação.
Este volume é necessário para um funcionamento estável e um controlo preciso da temperatura.
É frequentemente necessário adicionar um depósito de água tampão ao circuito para atingir o volume necessário. O próprio depósito deve ser internamente defletido para garantir uma mistura adequada do líquido (água ou salmoura). Consulte os exemplos abaixo.
NOTA: O compressor não deve reiniciar mais de 6 vezes por hora.


Caudal do refrigerador (l/s)
| 30HXC | Mín.* | Máx.** | ||
| 080-090 | 5.7 | 22.7 | ||
| 100 | 6.0 | 24.1 | ||
| 110 | 6.9 | 27.5 | ||
| 120-130 | 8.3 | 33.0 | ||
| 140-155 | 10.0 | 39.5 | ||
| 175-190 | 10.7 | 42.7 | ||
| 200 | 13.4 | 53.7 | ||
| 230 | 13.4 | 60.6 | ||
| 260-285 | 17.0 | 68.1 | ||
| 310 | 19.4 | 77.8 | ||
| 345-375 | 21.3 | 85.3 | ||
| 30GX | Mín.* | Máx.** | ||
| 082 | 5.7 | 22.7 | ||
| 092-102 | 6.0 | 24.1 | ||
| 112-122 | 6.9 | 27.5 | ||
| 132 | 8.4 | 33.7 | ||
| 152-162 | 10.0 | 39.9 | ||
| 182 | 10.7 | 42.7 | ||
| 207-227 | 13.4 | 53.7 | ||
| 247 | 15.1 | 60.6 | ||
| 267 | 17.0 | 68.1 | ||
| 298 | 19.4 | 77.8 | ||
| 328-358 | 21.3 | 85.3 | ||
* Com base numa velocidade da água de 0,9 m/s.
** Com base numa velocidade da água de 3,6 m/s.
Caudal do condensador (l/s)
| 30HXC | Mín.* Circuito fechado | Circuito aberto | Máx.** |
| 080-110 | 2.5 | 7.5 | 29.9 |
| 120-130 | 3.1 | 9.3 | 37.3 |
| 140-155 | 3.8 | 11.4 | 45.5 |
| 175-190 | 4.6 | 13.8 | 55.2 |
| 200 | 5.0 | 14.9 | 59.6 |
| 230-285 | 6.7 | 20.1 | 80.3 |
| 310-375 | 7.3 | 22.0 | 88.0 |
* Com base numa velocidade da água de 0,3 m/s num circuito fechado e 0,9 m/s num circuito aberto.
** Com base numa velocidade da água de 3,6 m/s
Curva de queda de pressão do evaporador

- 30HXC 080-090/30GX 082
- 30HXC 100/30GX 092-102
- 30HXC 110/30GX 112-122
- 30GX 132
- 30HXC 120-130
- 30HXC 140-155/30GX 152-162
- 30HXC 175-190/30GX 182
- 30HXC 200/30GX 207-227
- 30HXC 230/30GX 247
- 30HXC 260-285/30GX 267
- 30HXC 310/30GX 298
- 30HXC 345-375/30GX 328-358
Curva de queda de pressão do condensador

- 30HXC 080-090-100-110
- 30HXC 120-130
- 30HXC 140-155
- 30HXC 175-190
- 30HXC 200
- 30HXC 230-260-285
- 30HXC 310-345-375
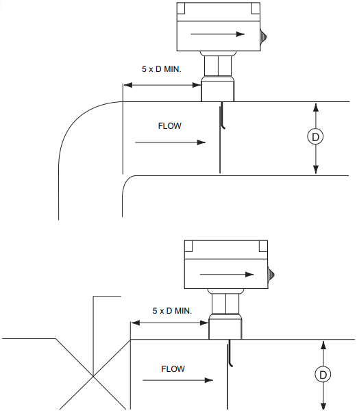
Controladores de caudal
Interruptor de caudal do refrigerador e interbloqueio da bomba de água gelada
É obrigatório instalar o interruptor de caudal do refrigerador e também ligar o interbloqueio da bomba de água gelada nas unidades 30HXC e 30GX. O incumprimento desta instrução anulará a garantia da Carrier.
O controlador do interruptor de caudal do refrigerador é fornecido e cablado de fábrica nas unidades 30HXC e 30GX.
Siga as instruções do fabricante para a instalação.
O interruptor de caudal pode ser montado num tubo horizontal ou num tubo vertical com fluxo de líquido ascendente. Não deve ser utilizado quando o fluxo de líquido é descendente.
Monte numa secção de tubo onde haja um troço reto de pelo menos cinco diâmetros de tubo em cada lado do interruptor de caudal. Não coloque adjacente a válvulas, cotovelos ou orifícios. A palheta nunca deve tocar no tubo ou em qualquer restrição no tubo. Aparafuse o interruptor de caudal na posição de modo que a parte plana da palheta fique em ângulos retos com o fluxo. As setas na tampa e na parte inferior, dentro da caixa, devem apontar na direção do fluxo. O interruptor deve ser montado de modo que os terminais sejam acessíveis para facilitar a cablagem.
Os terminais 34 e 35 são fornecidos para a instalação no local de um interbloqueio da bomba de água gelada (contacto auxiliar do contactor da bomba de água gelada).
(Ligação do tubo: 1" NPT)

Interruptor de caudal do condensador (30HXC)
O interruptor de caudal do condensador é um dispositivo instalado no local.
INSTALAÇÃO
Verificar o equipamento recebido
- Inspecione a unidade para verificar se há danos ou peças em falta. Se forem detetados danos ou se a remessa estiver incompleta, apresente imediatamente uma reclamação à empresa de transporte.
- Confirme se a unidade recebida é a que foi encomendada. Compare os dados da placa de identificação com a encomenda.
- Confirme se todos os acessórios encomendados para instalação no local foram entregues e estão completos e intactos.
- Não armazene as unidades numa área exposta às intempéries devido ao mecanismo de controlo sensível e aos dispositivos eletrónicos.
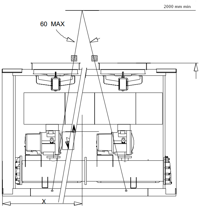
Mover e posicionar a unidade
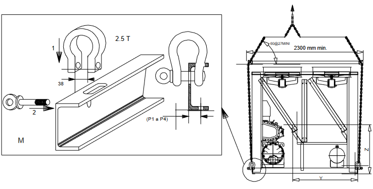
Movimentação
Não remova os patins, paletes ou embalagens de proteção até que a unidade esteja na sua posição final. Mova o chiller utilizando tubos ou rolos, ou levante-o, utilizando eslingas com a capacidade correta.
(30HXC)
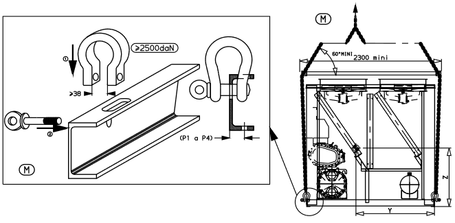
Utilize apenas eslingas nos pontos de elevação designados, que estão marcados na unidade, na parte superior do permutador de calor do refrigerador. A fixação a partir da parte inferior do permutador de calor fará com que a unidade seja levantada de forma insegura. Podem ocorrer ferimentos pessoais ou danos na unidade. Siga as instruções de fixação fornecidas no desenho dimensional certificado fornecido com a unidade.
Posicionamento
Consulte sempre o capítulo "Dimensões e folgas" para confirmar se existe espaço adequado para todas as ligações e operações de manutenção. Para as coordenadas do centro de gravidade, a posição dos orifícios de montagem da unidade e os pontos de distribuição de peso, consulte o desenho dimensional certificado fornecido com a unidade.
Recomendamos que estes chillers sejam instalados numa cave ou ao nível do solo. Se for instalado acima do nível do solo, verifique primeiro se a carga admissível do piso é adequada e se o piso é suficientemente forte e nivelado. Se necessário, reforce e nivele o piso.
Com o chiller na sua localização final, remova os patins e outros dispositivos utilizados para ajudar na sua movimentação. Nivele a unidade utilizando um nível de bolha e aparafuse a unidade ao chão ou plinto. O funcionamento destas unidades pode ser prejudicado se não estiverem niveladas e fixadas de forma segura nas suas montagens. Se necessário, utilize almofadas de isolamento sob a unidade para ajudar no isolamento de vibrações.
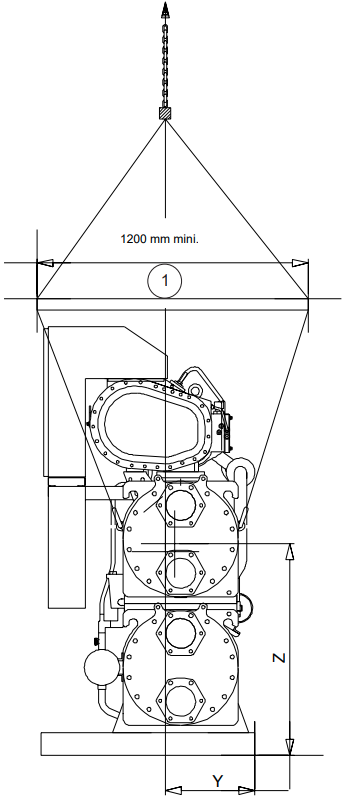
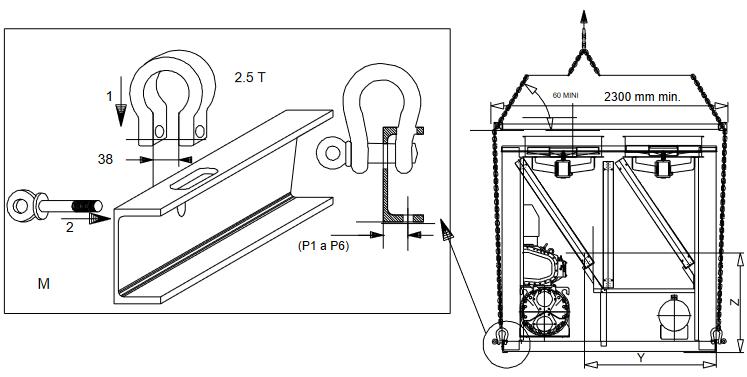
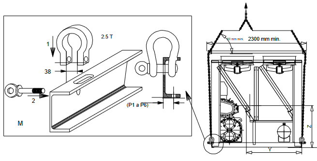
INSTRUÇÕES DE ELEVAÇÃO
30HXC 080-190
Este diagrama é apresentado apenas para informação. Consulte os "desenhos certificados".

- EXCETO 30HXC 190
X mm Y mm Z mm 30HXC080
30HXC090
30HXC1001345 402 903 30HXC110 1368 397 935 30HXC120
30HXC130
30HXC140
30HXC1551731 392 879 30HXC175 1703 386 947 30HXC190 1705 398 955


NOTA
Quando todas as operações de elevação e posicionamento estiverem concluídas, recomenda-se retocar todas as superfícies onde a tinta foi removida nas olhais de elevação.
30HXC 200-285
Este diagrama é apresentado apenas para informação. Consulte os "desenhos certificados".


30HXC 310-375


| X mm | Y mm | Z mm | |
| 30HXC310 | 2195 | 425 | 1085 |
| 30HXC345 | 2195 | 425 | 1085 |
| 30HXC375 | 2205 | 435 | 1025 |
NOTA
Quando todas as operações de elevação e posicionamento estiverem concluídas, recomenda-se retocar todas as superfícies onde a tinta foi removida nas olhais de elevação.
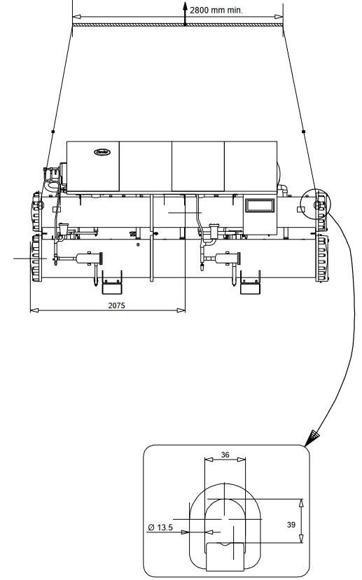
30GX 082-162
Este diagrama é apresentado apenas para informação. Consulte os "desenhos certificados".



| X mm | Y mm | Z mm | PTkg | |
| 30GX082 | 1440 | 1460 | 900 | 3115 |
| 30GX092 | 1440 | 1460 | 900 | 3156 |
| 30GX102 | 1440 | 1460 | 900 | 3170 |
| 30GX112 | 1650 | 1460 | 900 | 3574 |
| 30GX122 | 1650 | 1460 | 900 | 3527 |
| 30GX132 | 1650 | 1460 | 900 | 3634 |
| 30GX152 | 2155 | 1430 | 900 | 3938 |
| 30GX162 | 2155 | 1430 | 900 | 3954 |
30GX 182



| X mm | Y mm | Z mm | PTkg | |
| 30GX182 | 3030 | 1370 | 875 | 4853 |
NOTA
Quando todas as operações de elevação e posicionamento estiverem concluídas, recomenda-se retocar todas as superfícies onde a tinta foi removida na olhal de elevação.
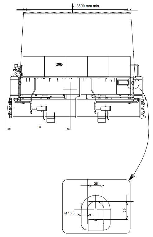
30GX 207-267
Este diagrama é apresentado apenas para informação. Consulte os "desenhos certificados".



| X mm | Y mm | Z mm | PTkg | |
| 30GX207 | 2870 | 1440 | 890 | 5536 |
| 30GX227 | 2870 | 1440 | 890 | 5572 |
| 30GX247 | 3320 | 1430 | 927 | 6131 |
| 30GX267 | 3300 | 1420 | 886 | 6363 |
30GX 298-358



| X mm | Y mm | Z mm | PTkg | |
| 30GX298 | 3630 | 1420 | 890 | 7353 |
| 30GX328 | 4360 | 1455 | 920 | 7840 |
| 30GX358 | 4360 | 1445 | 930 | 8045 |
NOTA
Quando todas as operações de elevação e posicionamento estiverem concluídas, recomenda-se retocar todas as superfícies onde a tinta foi removida nas olhais de elevação.
Ligações de tubagem
Consulte os desenhos dimensionais certificados para os tamanhos e posições de todas as ligações de entrada e saída de água. Os tubos de água não devem transmitir qualquer força radial ou axial aos permutadores de calor ou qualquer vibração à tubagem ou ao edifício.
O abastecimento de água deve ser analisado e devem ser incorporados dispositivos de filtragem, tratamento e controlo adequados, válvulas e circuitos de isolamento e purga, conforme necessário. Consulte um especialista em tratamento de água ou literatura apropriada sobre o assunto.
Precauções de funcionamento
O circuito de água deve ser concebido para ter o menor número de cotovelos e troços de tubos horizontais em diferentes níveis. As seguintes verificações básicas devem ser efetuadas (ver também a ilustração de um circuito hidráulico típico abaixo).
- Tenha em atenção as entradas e saídas de água dos permutadores de calor.
- Instale válvulas de purga de ar manuais ou automáticas em todos os pontos altos do circuito de água.
- Utilize uma câmara de expansão ou uma válvula de expansão/alívio para manter a pressão no sistema.
- Instale termómetros de água e manómetros nas ligações de água de entrada e saída perto do evaporador.
- Instale válvulas de drenagem em todos os pontos baixos para permitir que todo o circuito seja drenado. Ligue uma válvula de corte na linha de drenagem antes de operar o chiller.
- Instale válvulas de corte e manómetros, perto do evaporador, nas linhas de água de entrada e saída.
- Instale um interruptor de caudal do refrigerador.
- Utilize ligações flexíveis para reduzir a transmissão de vibrações para a tubagem.
- Isole toda a tubagem, após testar a existência de fugas, tanto para reduzir as fugas térmicas como para evitar a condensação.
- Cubra o isolamento com uma barreira de vapor.
Ligações do evaporador e do condensador
O evaporador e o condensador são do tipo multitubular de casco e tubo com caixas de água amovíveis para facilitar a limpeza dos tubos.
Antes de efetuar as ligações de água, aperte os parafusos em ambas as cabeças com o binário inferior indicado, seguindo o método descrito. Aperte aos pares e na sequência indicada de acordo com o tamanho do parafuso (ver tabela) utilizando um valor de binário no limite inferior do intervalo indicado.
Remova o flange plano fornecido de fábrica da caixa de água antes de soldar a tubagem ao flange. A não remoção do flange pode danificar os sensores e o isolamento.
NOTA
Recomendamos a drenagem do sistema e a desconexão da tubagem para garantir que os parafusos das cabeças às quais a tubagem está ligada estão devidamente e uniformemente apertados.
Proteção contra congelamento
Proteção do evaporador e do condensador arrefecido a água
Se o chiller ou a tubagem de água estiverem numa área onde a temperatura ambiente possa descer abaixo de 0 °C, recomenda-se adicionar uma solução anticongelante para proteger a unidade e a tubagem de água até uma temperatura de 8 K abaixo da temperatura mais baixa. Utilize apenas soluções anticongelantes aprovadas para serviço de permutador de calor. Se o sistema não estiver protegido por uma solução anticongelante e não for utilizado durante as condições climatéricas de congelamento, é obrigatória a drenagem do refrigerador e da tubagem exterior. Os danos causados pelo congelamento não são cobertos pela garantia.
Sequência de aperto da caixa de água

Legenda
- Sequência 1: 1 2 3 4
Sequência 2: 5 6 7 8
Sequência 3: 9 10 11 12 - Binário de aperto
Tamanho do parafuso M16 - 171 - 210 Nm
Diagrama de circuito hidráulico típico

Legenda
- Válvula de controlo
- Respiradouro de ar
- Interruptor de caudal
- Ligação flexível
- Permutador de calor
- Tomada de pressão
- Manga do termóstato
- Dreno
- Tanque de compensação
- Filtro
- Tanque de expansão
- Válvula de enchimento
CARACTERÍSTICAS ELÉTRICAS
- Os modelos 30HXC 080-190 e 30GX 082-182 têm apenas um interruptor de corte/isolamento de energia.
- Os modelos 30HXC 200-375 e 30GX 207-358 têm dois interruptores de corte/isolamento de energia.
- A caixa de controlo incorpora o seguinte como padrão:
- Arranques e dispositivos de proteção do motor para cada compressor e as ventoinhas
- Componentes de controlo
- Ligações no local:
Todas as ligações à rede elétrica e a instalação elétrica devem ser realizadas de acordo com as diretivas aplicáveis ao local. - Os modelos 30HXC e 30GX são projetados para facilitar a conformidade com estas diretivas. O projeto do equipamento elétrico para os modelos 30HXC e 30GX tem em conta a norma europeia EN 60204-1 (segurança de máquinas - equipamento elétrico de máquinas - Parte 1: regras gerais).
A norma EN 60204-1 é um bom meio de responder aos requisitos da Diretiva de Máquinas § 1.5.1. A recomendação normativa IEC 364, é geralmente reconhecida como cumprindo os requisitos do regulamento de instalação.
O Anexo B da norma EN 60204-1 pode ser usado para descrever as características elétricas sob as quais as máquinas operam.
30HXC
- As condições de operação para um 30HXC padrão são descritas abaixo:
- Condições ambientais(1). A classificação ambiental é descrita na norma IEC 364 § 3:
- Intervalo de temperatura ambiente: + 6°C a + 40°C, classificação AA4
- Intervalo de humidade (sem condensação)
50% de humidade relativa a 40°C
90% de humidade relativa a 20°C - Altitude - 2000 m(1)
- Para instalação interior
- Presença de água: classificação AD2(1) (possibilidade de gotas de água)
- Presença de sólidos: classificação AE2(1) (presença de partículas insignificantes)
- Presença de corrosivos e contaminantes, classificação AF1 (desprezível)
- Vibração, choque: classificação AG2, AH2 Competência do pessoal: classificação BA4(1) (pessoal qualificado de acordo com a IEC 364).
- Condições ambientais(1). A classificação ambiental é descrita na norma IEC 364 § 3:
(1) A norma de proteção exigida em relação a esta classificação é IP21B (de acordo com o documento de referência IEC 529). Todos os 30HXC têm uma norma de proteção de IP23C e, portanto, cumprem este requisito de proteção.
30GX
- As condições de operação para 30GX são descritas abaixo:
- Condições ambientais(2). A classificação ambiental é descrita na norma EN 60721:
- Para instalação exterior(2)
- Intervalo de temperatura ambiente: - 18°C a + 46°C, classificação 4K3(2)
- Altitude 2000 m(2)
- Presença de sólidos: classificação 4S2 (presença de partículas insignificantes)
- Presença de corrosivos e contaminantes, classificação 4C2 (desprezível)
- Vibração, choque: classificação 4M2
- Condições ambientais(2). A classificação ambiental é descrita na norma EN 60721:
Competência do pessoal: classificação BA4(2) (pessoal qualificado de acordo com a IEC 364).
(2) A norma de proteção exigida em relação a esta classificação é IP43BW (de acordo com o documento de referência IEC 529). Todos os 30GX têm uma norma de proteção de IP45CW e, portanto, cumprem este requisito de proteção.
30HXC/GX
- Flutuação na frequência da fonte de alimentação: ± 2 Hz
- A proteção contra sobrecorrente para os condutores da fonte de alimentação não é fornecida com o dispositivo.
- O interruptor de corte/isolamento instalado de fábrica é um isolador do tipo "a". (EN60204-1 § 5.3.2).
NOTA: Se aspetos particulares de uma instalação exigirem características diferentes das listadas acima (ou características não referidas aqui), contacte o seu representante Carrier.
Fonte de alimentação
A fonte de alimentação deve estar em conformidade com a especificação na placa de identificação do chiller. A tensão de alimentação deve estar dentro do intervalo especificado na tabela de dados elétricos.
Para as ligações, consulte os diagramas de cablagem.
A operação do chiller com uma tensão de alimentação inadequada ou desequilíbrio de fase excessivo constitui abuso que invalidará a garantia da Carrier. Se o desequilíbrio de fase exceder 2% para a tensão ou 10% para a corrente, contacte imediatamente o seu fornecedor de eletricidade local e certifique-se de que o chiller não é ligado até que medidas corretivas tenham sido tomadas.
Desequilíbrio de fase de tensão (%):
100 x desvio máximo da tensão média
Tensão média
Exemplo:
Numa fonte de alimentação de 400 V - 3 ph - 50 Hz, as tensões de fase individuais foram medidas como:
AB = 406 V; BC = 399; AC = 394 V
| Tensão média | = (406 + 399 + 394)/3 = 1199/3 |
| = 399,7 digamos 400 V |
Calcule o desvio máximo da média de 400 V:
(AB) = 406 - 400 = 6
(BC) = 400 - 399 = 1
(CA) = 400 - 394 = 6

O desvio máximo da média é de 6 V. O maior desvio percentual é:
100 x 6/400 = 1,5 %
Isto é inferior aos 2% permitidos e, portanto, é aceitável.
SEÇÕES DE CABOS RECOMENDADAS
O dimensionamento dos cabos é da responsabilidade do instalador e depende das características e regulamentos aplicáveis a cada local de instalação. O seguinte deve ser usado apenas como uma diretriz e não torna a Carrier de forma alguma responsável. Após a conclusão do dimensionamento dos cabos, usando o desenho dimensional certificado, o instalador deve garantir uma conexão fácil e definir quaisquer modificações necessárias no local.
As conexões fornecidas como padrão para os cabos de entrada de energia fornecidos em campo para o interruptor geral de desconexão/isolador são projetadas para o número e tipo de cabos, listados na tabela abaixo.
Os cálculos são baseados na corrente máxima da máquina (ver tabelas de dados elétricos).
Para o projeto, os seguintes métodos de instalação padronizados são usados, de acordo com a IEC 364, tabela 52C:
- Para unidades 30HX instaladas dentro do edifício: Nº 13: eletroduto de cabos horizontal perfurado e Nº 41: eletroduto fechado.
- Para unidades 30GX instaladas fora do edifício: Nº 17: linhas aéreas suspensas e Nº 61: eletroduto enterrado com um coeficiente de redução de 20.
O cálculo é baseado em cabos isolados em PVC ou XLPE com núcleo de cobre ou alumínio. A temperatura máxima é de 40 °C para unidades 30HX e 46 °C para unidades 30GX.
O comprimento do fio fornecido limita a queda de tensão a < 5%.
| Unit (Unidade) | Min. (mm2) por fase | Wire type (Tipo de fio) | L (m) | Max. (mm2) por fase | Wire type (Tipo de fio) | L (m) |
| 30HX 080 | 1 x 35 | XLPE Cu | 140 | 1 x 120 | PVC Al | 260 |
| 30HX 090 | 1 x 50 | XLPE Cu | 160 | 1 x 120 | PVC Al | 260 |
| 30HX 100 | 1 x 50 | XLPE Cu | 160 | 1 x 95 | XLPE Al | 195 |
| 30HX 110 | 1 x 70 | XLPE Cu | 170 | 1 x 120 | XLPE Al | 205 |
| 30HX 120/130 | 1 x 70 | XLPE Cu | 170 | 1 x 150 | XLPE Al | 210 |
| 30HX 140 | 1 x 95 | XLPE Cu | 180 | 1 x 185 | XLPE Al | 220 |
| 30HX 155 | 1 x 95 | XLPE Cu | 180 | 1 x 240 | XLPE Al | 225 |
| 30HX 175 | 1 x 120 | XLPE Cu | 185 | 1 x 240 | XLPE Al | 225 |
| 30HX 190 | 1 x150 | XLPE Cu | 190 | 2 x 95 | XLPE Al | 195 |
| 30HX 200 ckt A | 1 x 70 | XLPE Cu | 170 | 2 x120 | PVC Al | 325 |
| 30HX 230 ckt A | 1 x 95 | XLPE Cu | 180 | 2 x 120 | PVC Al | 325 |
| 30HX 260 ckt A | 1 x 120 | XLPE Cu | 185 | 1 x 240 | XLPE Al | 225 |
| 30HX 285 ckt A | 1 x 150 | XLPE Cu | 190 | 2 x 150 | XLPE Al | 265 |
| 30HX 200 ckt B | 1 x 35 | XLPE Cu | 140 | 1 x 95 | PVC Al | 250 |
| 30HX 230 ckt B | 1 x 35 | XLPE Cu | 140 | 1 x 120 | PVC Al | 260 |
| 30HX 260 ckt B | 1 x 35 | XLPE Cu | 140 | 1 x 120 | PVC Al | 260 |
| 30HX 285 ckt B | 1 x 50 | XLPE Cu | 160 | 2 x 70 | PVC Al | 285 |
| 30HX 310 ckt A & B | 1 x 95 | XLPE Cu | 180 | 1 x 240 | XLPE Al | 225 |
| 30HX 345 ckt A & B | 1 x 120 | XLPE Cu | 185 | 1 x 240 | XLPE Al | 225 |
| 30HX 375 ckt A & B | 1 x 150 | XLPE Cu | 190 | 2 x 150 | XLPE Al | 265 |
| 30GX 082 | 1 x 95 | XLPE Cu | 190 | 2 x 185 | PVC Al | 420 |
| 30GX 092 | 1 x 120 | XLPE Cu | 195 | 2 x 185 | PVC Al | 420 |
| 30GX 102 | 1 x 120 | XLPE Cu | 195 | 2 x 240 | PVC Al | 450 |
| 30GX 112 | 1 x 150 | XLPE Cu | 200 | 2 x 150 | XLPE Al | 300 |
| 30GX 122 | 1 x 185 | XLPE Cu | 205 | 2 x 185 | XLPE Al | 315 |
| 30GX 132 | 1 x 185 | XLPE Cu | 205 | 2 x 240 | XLPE Al | 330 |
| 30GX 152 | 1 x 240 | XLPE Cu | 205 | 3x 185 | XLPE CU | 430 |
| 30GX 162 | 2 x 95 | XLPE Cu | 190 | 3x 240 | XLPE CU | 440 |
| 30GX 182 | 2 x 120 | XLPE Cu | 200 | 3x 240 | XLPE CU | 440 |
| 30GX 207 ckt A | 1 x 185 | XLPE Cu | 205 | 3x 185 | XLPE Al | 445 |
| 30GX 227 ckt A | 1 x 240 | XLPE Cu | 205 | 3x 240 | XLPE Al | 470 |
| 30GX 247/298/328 ckt A | 2 x 120 | XLPE Cu | 225 | 3x 185 | XLPE CU | 490 |
| 30HX 267/358 ckt A | 2 x 150 | XLPE Cu | 230 | 3x 240 | XLPE CU | 505 |
| 30GX 207/227/247 ckt B | 1 x 95 | XLPE Cu | 190 | 2 x 240 | PVC Al | 560 |
| 30HX 267 ckt B | 1 x 120 | XLPE Cu | 200 | 2 x 185 | XLPE AL | 395 |
| 30GX 298 ckt B | 1 x 185 | XLPE Cu | 205 | 3x 240 | XLPE AL | 470 |
| 30GX 328 ckt B | 2 x 120 | XLPE Cu | 225 | 3x 185 | XLPE CU | 490 |
| 30GX 358 ckt B | 2 x 150 | XLPE Cu | 230 | 3x 240 | XLPE CU | 505 |
Antes de ligar os cabos de alimentação principais (L1 - L2 - L3) no bloco de terminais, é imperativo verificar a ordem correta das 3 fases antes de proceder à ligação no bloco de terminais ou no interruptor principal de desconexão/isolador.
Cablagem de controlo de campo
Consulte o Controls IOM e o diagrama de cablagem certificado fornecido com a unidade para a cablagem de controlo de campo das seguintes funcionalidades:
- Interbloqueio da bomba do evaporador (obrigatório)
- Interruptor remoto de ligar/desligar
- Interruptor de fluxo do condensador (fornecido no local, apenas 30HXC)
- Interruptor remoto de aquecimento/arrefecimento
- Interruptor externo 1 de limite de procura
- Ponto de ajuste duplo remoto
- Relatório de alarme por circuito
- Controlo da bomba do evaporador
- Controlo da bomba do condensador (apenas 30HXC)
- Reposição remota do ponto de ajuste ou reposição do sensor de temperatura do ar exterior (0-10 V)
Secções de cabos recomendadas para unidades com temperaturas de condensação elevadas (400 V - 3 ph - 50 Hz)
| Unidade, opções 150 + 150A 400 V - 3 ph - 50 Hz | Mín. (mm2) por fase | Tipo de cabo | L (m) | Máx. (mm2) por fase | Tipo de cabo | L (m) |
| 30HXC 080 OPT. 150 | 1 x 50 | XLPE Cu | 150 | 2 x 70 | PVC Al | 230 |
| 30HXC 090 OPT. 150 | 1 x 70 | XLPE Cu | 160 | 2 x 95 | PVC Al | 260 |
| 30HXC 100 OPT. 150 | 1 x 70 | XLPE Cu | 160 | 2 x 95 | PVC Al | 250 |
| 30HXC 110 OPT. 150 | 1 x 95 | XLPE Cu | 170 | 2 x 120 | PVC Al | 265 |
| 30HXC 120 OPT. 150 | 1 x 120 | XLPE Cu | 180 | 2 x 120 | XLPE Al | 205 |
| 30HXC 130 OPT. 150 | 1 x 120 | XLPE Cu | 160 | 2 x 120 | XLPE Al | 210 |
| 30HXC 140 OPT. 150 | 1 x 150 | XLPE Cu | 175 | 2 x 120 | XLPE Al | 205 |
| 30HXC 155 OPT. 150 | 1 x 185 | XLPE Cu | 185 | 2 x 150 | XLPE Al | 215 |
| 30HXC 175 OPT. 150 | 1 x 240 | XLPE Cu | 185 | 2 x 150 | XLPE Al | 210 |
| 30HXC 190 OPT. 150 | 2 x 95 | XLPE Cu | 175 | 2 x 240 | XLPE Al | 220 |
| 30HXC 200 OPT. 150 circ. A | 1 x 120 | XLPE Cu | 170 | 2 x 150 | XLPE Al | 270 |
| 30HXC 230 OPT. 150 circ. A | 1 x 150 | XLPE Cu | 180 | 2 x 185 | XLPE Al | 270 |
| 30HXC 260 OPT. 150 circ. A | 1 x 185 | XLPE Cu | 180 | 2 x 240 | XLPE Al | 295 |
| 30HXC 285 OPT. 150 circ. A | 1 x 240 | XLPE Cu | 170 | 2 x 185 | XLPE Cu | 265 |
| 30HXC 310 OPT. 150 circ. A | 1 x 185 | XLPE Cu | 180 | 2 x 240 | XLPE Al | 300 |
| 30HXC 345 OPT. 150 circ. A | 1 x 185 | XLPE Cu | 170 | 2 x 240 | XLPE Al | 280 |
| 30HXC 375 OPT. 150 circ. A | 1 x 240 | XLPE Cu | 170 | 2 x 185 | XLPE Cu | 265 |
| 30HXC 200 OPT. 150 circ. B | 1 x 35 | XLPE Cu | 125 | 2 x 95 | PVC Al | 320 |
| 30HXC 230 OPT. 150 circ. B | 1 x 50 | XLPE Cu | 140 | 2 x 95 | PVC Al | 310 |
| 30HXC 260 OPT. 150 circ. B | 1 x 50 | XLPE Cu | 140 | 2 x 95 | PVC Al | 310 |
| 30HXC 285 OPT. 150 circ. B | 1 x 70 | XLPE Cu | 160 | 2 x 120 | PVC Al | 325 |
| 30HXC 310 OPT. 150 circ. B | 1 x 150 | XLPE Cu | 180 | 2 x 185 | XLPE Al | 275 |
| 30HXC 345 OPT. 150 circ. B | 1 x 185 | XLPE Cu | 185 | 2 x 240 | XLPE Al | 305 |
| 30HXC 375 OPT. 150 circ. B | 1 x 185 | XLPE Cu | 160 | 2 x 240 | XLPE Al | 280 |
COMPONENTES PRINCIPAIS DO SISTEMA E DADOS DE OPERAÇÃO
Compressor de parafuso duplo com engrenagens
- As unidades 30HXC e 30GX usam compressores de parafuso duplo com engrenagens 06N
- Os 06NA são usados em 30GX (aplicação de condensação arrefecida a ar)
- Os 06NW são usados em 30HXC (aplicação de condensação arrefecida a água)
- As capacidades nominais variam de 39 a 80 toneladas. Modelos economizados ou não economizados são usados dependendo do tamanho da unidade 30HXC e 30GX.
Filtro de óleo
O compressor de parafuso 06N tem um filtro de óleo integrado na carcaça do compressor. Este filtro é substituível em campo.
Refrigerante
O compressor de parafuso 06N foi especialmente projetado para ser usado apenas em sistemas R134 a.
Lubrificante
O compressor de parafuso 06N é aprovado para uso com o seguinte lubrificante.
CARRIER MATERIAL SPEC PP 47-32
Válvula solenoide de alimentação de óleo
Uma válvula solenoide de alimentação de óleo é padrão no compressor para isolar o compressor do fluxo de óleo quando o compressor não está em operação.
A solenoide de óleo é substituível em campo.
Filtros de sucção e economizador
Para aumentar a confiabilidade do compressor, um filtro foi incorporado como um recurso padrão nas entradas de sucção e economizador do compressor.
Sistema de descarga
O compressor de parafuso 06N tem um sistema de descarga que é padrão em todos os compressores. Este sistema de descarga consiste em duas etapas de descarga que diminuem a capacidade do compressor, redirecionando o gás parcialmente comprimido de volta para a sucção.
Evaporador
Os chillers 30HXC e 30GX usam um evaporador inundado. A água circula nos tubos e o refrigerante está do lado de fora, no casco. Um vaso é usado para servir ambos os circuitos de refrigerante. Há uma placa de tubo central que separa os dois circuitos de refrigerante. Os tubos são de cobre de 3/4" de diâmetro com uma superfície aprimorada por dentro e por fora. Há apenas um circuito de água e, dependendo do tamanho do chiller, pode haver duas ou três passagens de água. Um sensor de nível de líquido mais frio fornece controle de fluxo otimizado.
No topo do refrigerador estão os dois tubos de sucção, um em cada circuito. Cada um tem um flange soldado a ele, e o compressor é montado no flange.
Condensador e separador de óleo (30HXC)
O chiller 30HXC usa um vaso que é uma combinação de condensador e separador de óleo. Ele é montado abaixo do refrigerador. O gás de descarga sai do compressor e flui através de um silenciador externo para o separador de óleo, que é a parte superior do vaso. Ele entra no topo do separador, onde o óleo é removido, e então flui para a parte inferior do vaso, onde o gás é condensado e sub-arrefecido. Um vaso é usado para servir ambos os circuitos de refrigerante. Há uma placa de tubo central que separa os dois circuitos de refrigerante. Os tubos são de cobre de 3/4" ou 1" de diâmetro com superfície aprimorada por dentro e por fora. Há apenas um circuito de água com duas passagens de água.
Separador de óleo (30GX)
Nas unidades arrefecidas a ar, o separador de óleo é um vaso de pressão que é montado sob as serpentinas do condensador vertical externo. O gás de descarga entra no topo do separador, onde grande parte do óleo se separa e drena para o fundo. O gás então flui através de uma tela de malha de arame onde o óleo restante é separado e drena para o fundo.
Dispositivo de Expansão Eletrónico (Electronic Expansion Device, EXD)
O microprocessador controla o EXD através do módulo de controlo EXV. O EXD será um EXV ou um Economizador. Dentro de ambos os dispositivos está um motor de passo atuador linear. O refrigerante líquido de alta pressão entra na válvula através da parte inferior. Uma série de ranhuras calibradas estão localizadas dentro do conjunto do orifício. À medida que o refrigerante passa pelo orifício, a pressão cai e o refrigerante muda para uma condição de 2 fases (líquido e vapor). Para controlar o fluxo de refrigerante para diferentes condições de operação, a manga move-se para cima e para baixo sobre o orifício, alterando assim a área de fluxo efetiva do dispositivo de expansão. A manga é movida por um motor de passo linear. O motor de passo move-se em incrementos e é controlado diretamente pelo módulo do processador. À medida que o motor de passo gira, o movimento é transferido para o movimento linear pelo parafuso de avanço. Através do motor de passo e dos parafusos de avanço, são obtidos 1500 passos discretos de movimento. O grande número de passos e o longo curso resultam num controlo muito preciso do fluxo de refrigerante. Cada circuito tem um sensor de nível de líquido montado verticalmente no topo do casco do refrigerador. O sensor de nível consiste num pequeno aquecedor de resistência elétrica e três termistores conectados em série posicionados em diferentes alturas dentro do corpo do poço. O aquecedor é projetado para que os termistores leiam aproximadamente 93,3 °C em ar seco. À medida que o nível de refrigerante sobe no refrigerador, a resistência do(s) termistor(es) mais próximo(s) mudará muito. Esta grande diferença de resistência permite que o controlo mantenha com precisão um nível especificado. O sensor de nível monitoriza o nível de líquido refrigerante no refrigerador e envia esta informação para o PSIO-1. No arranque inicial, a posição do EXV é zero. Depois disso, o microprocessador mantém um registo preciso da posição da válvula para usar esta informação como entrada para as outras funções de controlo. Ele faz isto inicializando os EXV's no arranque. O processador envia pulsos de fecho suficientes para a válvula para movê-la de totalmente aberta para totalmente fechada, depois redefine o contador de posição para zero. A partir deste ponto, até à inicialização, o processador conta o número total de passos abertos e fechados que enviou para cada válvula.
Economizador
Os economizadores são instalados em 30HXC 190, 285 e 375 e 30GX 182, 267 e 358.
O economizador melhora a capacidade e a eficiência do chiller, além de fornecer arrefecimento do motor do compressor. Dentro do economizador estão um motor de passo EXV linear e uma válvula de bóia. O EXV é controlado pelo PIC para manter o nível de líquido desejado no refrigerador (como é feito para chillers não economizados). A válvula de bóia mantém um nível de líquido no fundo do economizador. O refrigerante líquido é fornecido do condensador para o fundo do economizador. À medida que o refrigerante passa pelo EXV, a sua pressão é reduzida para um nível intermediário de cerca de 500 kPa. Esta pressão é mantida dentro do casco do economizador. Em seguida, o refrigerante flui através da válvula de bóia, a sua pressão é ainda mais reduzida para ligeiramente acima da pressão no refrigerador. O aumento no desempenho é percebido quando parte do refrigerante que passa pelo EXV evapora para vapor, sub-arrefecendo ainda mais o líquido que é mantido no fundo do economizador. Este aumento no sub-arrefecimento fornece capacidade adicional. Como não é necessária energia adicional para realizar isto, a eficiência da máquina também melhora. O vapor que evapora subirá para o economizador, onde passa para o compressor e é usado conforme necessário para fornecer arrefecimento do motor. Depois de passar sobre os enrolamentos do motor, o refrigerante volta a entrar no ciclo numa porta intermediária no ciclo de compressão.
Bombas de óleo
Os chillers de parafuso 30GX/HXC usam uma bomba de óleo de pré-lubrificação montada externamente por circuito. Esta bomba é operada como parte da sequência de arranque.
ATENÇÃO:
A temperatura de operação da serpentina pode atingir 80 °C. Em certas condições temporárias (especialmente durante o arranque com baixa temperatura externa ou baixa temperatura do circuito do condensador), a bomba de óleo pode ser reativada.
Nas unidades 30GX, as bombas são montadas nos trilhos da base no lado do separador de óleo da unidade. As bombas são montadas num suporte nos condensadores das unidades 30HXC. Quando um circuito precisa de ser iniciado, os controlos energizarão primeiro a bomba de óleo para que o compressor inicie com a lubrificação correta. Se a bomba tiver acumulado pressão de óleo suficiente, o compressor poderá iniciar. Assim que o compressor iniciar, a bomba de óleo será desligada. Se a bomba não conseguir acumular pressão de óleo suficiente, o controlo gerará um alarme.
Válvulas de arrefecimento do motor
As temperaturas dos enrolamentos do motor do compressor são controladas para o ponto de ajuste ideal. O controlo realiza isto ciclando a válvula solenoide de arrefecimento do motor para permitir que o refrigerante líquido flua através dos enrolamentos do motor conforme necessário. Nas unidades equipadas com economizadores, o gás flash sai do topo do economizador e flui continuamente para os enrolamentos do motor. Todo o refrigerante usado para o arrefecimento do motor volta a entrar nos rotores através de uma porta localizada a meio do ciclo de compressão e é comprimido até à pressão de descarga.
Sensores
As unidades usam termistores (incluindo dois termistores de temperatura do motor) e dois termistores de nível e transdutores de pressão para monitorizar e controlar a operação do sistema.
Termistores
Fluido de saída do evaporador
Esta temperatura é usada para medir a temperatura do fluido de saída do evaporador (água ou salmoura). A temperatura é usada para o controlo da temperatura do fluido de saída e para proteger contra o congelamento do refrigerador. Está localizada no bocal do fluido do evaporador.
Fluido de entrada do evaporador
Este sensor é usado para medir a temperatura do fluido de entrada do evaporador. Está localizado no bocal de entrada do evaporador. É usado para fornecer compensação automática de temperatura para o controlo da temperatura do fluido de saída com compensação do fluido de entrada.
Temperatura do gás de descarga (circuitos A e B)
Este sensor é usado para medir a temperatura do gás de descarga e controlar o sobreaquecimento da temperatura de descarga. Está localizado no tubo de descarga de cada circuito (30HXC) ou no topo do separador de óleo (30GX).
ATENÇÃO: Não há manga de termostato.
Temperatura do motor
O Módulo de Proteção do Compressor (Compressor Protection Module, CPM) monitoriza a temperatura do motor. Os terminais do termistor estão localizados na caixa de junção do compressor.
Nível de líquido do evaporador (circuitos A e B)
O termistor de nível de líquido do evaporador é usado para fornecer controlo de fluxo otimizado no evaporador. Está instalado no topo do evaporador.
Fluido de entrada do condensador (30HXC)
Este sensor é usado para medir a temperatura do fluido que entra nos condensadores arrefecidos a água. Está localizado na linha de fluido comum que entra nos condensadores (instalado em campo). Nas Máquinas de Aquecimento, é usado pela rotina de controlo de capacidade. Nos condensadores arrefecidos a água, é usado apenas para monitorizar a temperatura do fluido do condensador.
Fluido de saída do condensador (opcional no 30HXC)
Este sensor é usado para medir a temperatura do fluido que sai dos condensadores arrefecidos a água. Está localizado na linha de fluido comum que sai dos condensadores (instalado em campo). Nas Máquinas de Aquecimento, é usado pela rotina de controlo de capacidade. Nos condensadores arrefecidos a água, é usado apenas para monitorizar a temperatura do fluido do condensador.
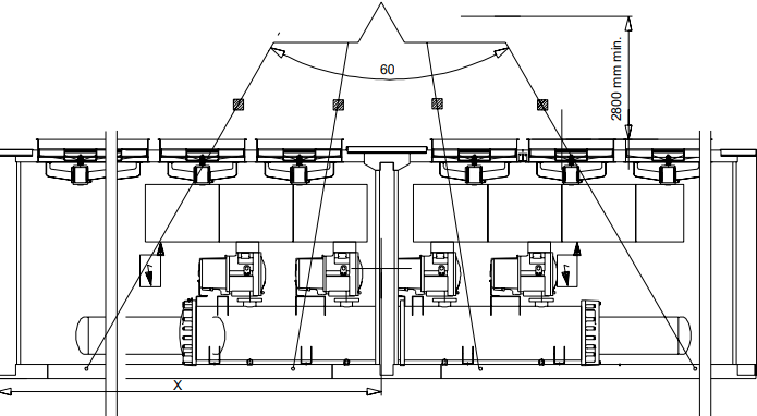
Disposição da ventoinha 30GX

GX082/102

GX112/132

GX152/162

GX182

GX207/227

GX247/267

GX298

GX328/358
MANUTENÇÃO
Carregamento de refrigerante - adição de carga
Estas unidades foram concebidas para utilização apenas com R-134a.
NÃO UTILIZE QUALQUER OUTRO refrigerante nestas unidades.
Ao adicionar ou remover carga, faça circular água através do condensador (HX) e do refrigerador em todos os momentos para evitar o congelamento. Os danos causados pelo congelamento são considerados abuso e podem anular a garantia da Carrier.
NÃO SOBRECARREGUE o sistema. A sobrecarga resulta numa maior pressão de descarga com maior consumo de fluido de arrefecimento, possível dano do compressor e maior consumo de energia.
Indicação de carga baixa num sistema 30HXC
NOTA
Para verificar se existe carga de refrigerante baixa num 30HXC, devem ser considerados vários fatores. Um visor de linha de líquido intermitente não é necessariamente uma indicação de carga inadequada. Existem muitas condições do sistema em que um visor intermitente ocorre em funcionamento normal. O dispositivo de medição 30HXC foi concebido para funcionar corretamente nestas condições.
- Certifique-se de que o circuito está a funcionar em condição de carga total. Para verificar se o circuito A está totalmente carregado, siga o procedimento descrito no manual de Controlos.
- Pode ser necessário utilizar a função "Manual Control" (Controlo Manual) para forçar o circuito a uma condição de carga total. Se for este o caso, consulte as instruções para utilizar a função "Manual Control" (Controlo Manual) no manual de Controlos.
- Com o circuito a funcionar com carga total, verifique se a temperatura do fluido de saída do refrigerador está no intervalo de 6 °C ± 1,5.
- Nesta condição, observe o refrigerante no visor da linha de líquido. Se houver um visor transparente e sem sinais de intermitência, o circuito está adequadamente carregado. Ignore os restantes passos.
- Se o refrigerante parecer estar intermitente, o circuito está provavelmente com carga baixa. Verifique isto verificando a posição da EXV (consulte o IOM de Controlos).
- Se a posição de abertura da EXD for superior a 60% e se o visor da linha de líquido estiver intermitente, o circuito está com carga baixa. Siga o procedimento para adicionar carga.
Para adicionar carga aos sistemas 30HXC
- Certifique-se de que a unidade está a funcionar com carga total e que a temperatura do fluido de saída do refrigerador está no intervalo de 5,6 7,8 °C.
- Nestas condições de funcionamento, verifique o visor da linha de líquido. Se houver um visor transparente, a unidade tem carga suficiente. Se o visor estiver intermitente, verifique a "EXD Percent Open" (Percentagem de Abertura da EXD). Se for superior a 60%, comece a adicionar carga.
NOTA
Um visor de linha de líquido intermitente em condições de funcionamento diferentes das mencionadas acima não é necessariamente uma indicação de carga de refrigerante baixa.
- Adicione 2,5 kg de carga de líquido no evaporador utilizando a válvula de carregamento localizada na parte superior do evaporador.
- Observe o valor da "EXD Percent Open" (Percentagem de Abertura da EXD). A EXD deve começar a fechar à medida que a carga é adicionada. Deixe a unidade estabilizar. Se a "EXD Percent Open" (Percentagem de Abertura da EXD) permanecer acima de 60% e ainda houver bolhas no visor, adicione mais 2,5 kg de carga de líquido.
- Deixe a unidade estabilizar e verifique novamente a "EXDPercent Open" (Percentagem de Abertura da EXD). Continue a adicionar 2,5 kg de carga de refrigerante líquido de cada vez e deixe a unidade estabilizar antes de verificar a posição da EXD.
- Quando a "EXD Percent Open" (Percentagem de Abertura da EXD) estiver no intervalo de 40 - 60%, verifique o visor da linha de líquido. Adicione lentamente carga de líquido adicional suficiente para garantir um visor transparente. Isto deve ser feito lentamente para evitar sobrecarregar a unidade.
- Verifique a carga adequada continuando a funcionar com carga total com temperatura do fluido de saída do evaporador de 6 °C ± 1,5. Verifique se o refrigerante não está intermitente no visor da linha de líquido. A "EXD Percent Open" (Percentagem de Abertura da EXD) deve estar entre 40 e 60%. O indicador de nível do refrigerador deve estar no intervalo de 1,5 - 2,5.
Indicação de carga baixa nos sistemas 30GX
- Certifique-se de que o circuito está a funcionar em condição de carga total e que a temperatura de condensação é de 50 °C ± 1,5. Para verificar se o circuito A está totalmente carregado, siga o procedimento no IOM de Controlos.
- Pode ser necessário utilizar a função "Manual Control" (Controlo Manual) para forçar o circuito a uma condição de carga total. Se for este o caso, consulte as instruções para utilizar a função "Manual Control" (Controlo Manual) (procedimento no IOM de Controlos).
- Com o circuito a funcionar com carga total, verifique se a temperatura do fluido de saída do refrigerador está no intervalo de 6 °C ± 1,5.
- Meça a temperatura do ar que entra nas serpentinas do condensador. Meça a temperatura do líquido após a junção em T onde as duas linhas de líquido da serpentina se juntam. A temperatura do líquido deve ser 8,3 °C acima da temperatura do ar que entra nas serpentinas. Se a diferença for superior a esta e o visor estiver intermitente, o circuito está descarregado. Avance para o passo 5.
- Adicione 2,5 kg de carga de líquido no refrigerador utilizando a válvula de carregamento localizada na parte superior do refrigerador.
- Deixe o sistema estabilizar e, em seguida, verifique novamente a temperatura do líquido. Repita o passo 5 conforme necessário, permitindo que o sistema estabilize entre cada adição de carga. Adicione lentamente a carga à medida que o visor começa a ficar transparente para evitar a sobrecarga.
Temperatura ambiente, temperatura do ar exterior (opcional)
Estas temperaturas são utilizadas para medir a temperatura do espaço ou a temperatura do ar exterior, respetivamente, para controlo de reposição com base nas opções de reposição de Temperatura do Ar Exterior ou Temperatura Ambiente.
Transdutores de pressão
Pressão de descarga (circuitos A e B)
Esta entrada é utilizada para medir a pressão do lado alto de cada circuito da unidade.
É utilizada para fornecer a pressão para substituir o manómetro de pressão de descarga e para controlar a pressão da cabeça.
Pressão de sucção (circuitos A e B)
Esta entrada é utilizada para medir a pressão do lado baixo da unidade. É utilizada para fornecer a pressão para substituir o manómetro de pressão de sucção.
Pressão do óleo (cada compressor)
Esta entrada é utilizada para medir a pressão do óleo de cada compressor da unidade. Está localizada na porta de pressão do óleo de cada compressor.
Pressão do economizador (circuitos A e B)
Esta entrada é utilizada para monitorizar o diferencial de pressão do óleo fornecido ao compressor.
Carregamento de óleo - recarregamento de óleo baixo
Adição de carga de óleo aos sistemas 30HX/GX
- Se a unidade 30HXC/GX desligar repetidamente devido a "Low oil Level" (Nível de óleo baixo), isto pode ser uma indicação de carga de óleo inadequada. Também pode significar simplesmente que o óleo está em processo de ser recuperado do lado baixo do sistema.
- Comece por colocar a unidade a funcionar com carga total durante uma hora e meia.
- Após funcionar durante 1 hora e 30 minutos, deixe a unidade reiniciar e funcionar normalmente. Se os alarmes de "Low Oil Level" (Nível de óleo baixo) persistirem, a unidade tem uma carga de óleo baixa. Adicione óleo ao separador de óleo, utilizando a válvula de carregamento de óleo na parte inferior do condensador (30HXC) ou na parte inferior do separador de óleo (30GX).
NÃO adicione óleo em qualquer outro local, pois pode resultar num funcionamento inadequado da unidade.
- Certifique-se de que a unidade não está a funcionar ao adicionar óleo, pois isto facilitará o processo de carregamento de óleo. Como o sistema está sob pressão, mesmo quando a unidade não está a funcionar, será necessário utilizar uma bomba adequada (bomba manual ou elétrica) para adicionar óleo ao sistema.
- Utilizando uma bomba adequada, adicione 2 litros de óleo de Poliolester ao sistema (ESPECIFICAÇÃO DA CARRIER: PP47-32). Certifique-se de que o interruptor de segurança do nível de óleo NÃO está ligado por jumper e deixe a unidade reiniciar e funcionar normalmente.
- Se os problemas de nível de óleo baixo persistirem, adicione mais 1 ou 2 litros de óleo. Se for necessário adicionar mais de 4 litros de óleo ao sistema, contacte o departamento de assistência do seu distribuidor Carrier.
Ao transferir a carga de refrigerante para uma unidade de armazenamento, o óleo pode ser transportado juntamente quando a unidade não está a funcionar. Reutilize primeiro toda a quantidade de refrigerante transferida. Após drenar o óleo, recarregue apenas a quantidade drenada (uma carga excessiva de óleo pode prejudicar o funcionamento correto da unidade).
Substituição do filtro de óleo integral
Um filtro de óleo integral no compressor de parafuso 06N é especificado para fornecer um alto nível de filtração (3 µ) necessário para uma longa vida útil do rolamento. Como a limpeza do sistema é fundamental para um funcionamento fiável do sistema, existe também um pré-filtro (7 µ) na linha de óleo na saída do separador de óleo.
O número da peça do elemento do filtro de óleo integral de substituição é:
Número da peça da Carrier (incluindo filtro e O-ring): 06NA 660016S
Programa de substituição do filtro
O filtro deve ser verificado após as primeiras 500 horas de funcionamento e a cada 2000 horas subsequentes. O filtro deve ser substituído sempre que a diferença de pressão através do filtro exceder 2,1 bar.
A queda de pressão através do filtro pode ser determinada medindo a pressão na porta de serviço do filtro e na porta de pressão do óleo. A diferença nestas duas pressões será a queda de pressão através do filtro, válvula de retenção e válvula solenoide. A queda de pressão através da válvula de retenção e da válvula solenoide é de aproximadamente 0,4 bar, que deve ser subtraída das duas medições de pressão do óleo para dar a queda de pressão do filtro de óleo. A queda de pressão do filtro de óleo deve ser verificada após qualquer ocasião em que o compressor seja desligado devido a uma segurança de baixa pressão do óleo.
Procedimento de substituição do filtro
- Os passos seguintes descrevem o método adequado para substituir o filtro de óleo integral.
- Desligue e bloqueie o compressor.
- Force manualmente o funcionamento da válvula solenoide de óleo, para pressionar o obturador da válvula interna no seu assento.
- Feche a válvula de serviço do filtro de óleo. Alivie a pressão da cavidade do filtro através da porta de serviço do filtro.
- Remova a ficha do filtro de óleo. Remova o filtro de óleo antigo.
- Antes de instalar o novo filtro de óleo, "engraxar" o o-ring com óleo. Instale o filtro e substitua a ficha.
Antes de fechar o sistema de óleo lubrificante, aproveite a oportunidade para substituir também o pré-filtro. - Quando estiver concluído, evacue a cavidade do filtro através da porta de serviço do filtro. Abra a válvula de serviço do filtro. Remova quaisquer dispositivos de bloqueio do compressor, o compressor está pronto para voltar a funcionar.
Substituição do compressor
Controlo da rotação do compressor
A rotação correta do compressor é uma das considerações de aplicação mais críticas. A rotação inversa, mesmo por um período muito curto, danifica o compressor.
O esquema de proteção contra rotação inversa deve ser capaz de determinar a direção da rotação e parar o compressor em 300 milissegundos. A rotação inversa é mais provável de ocorrer sempre que a cablagem para os terminais do compressor é perturbada.
Para minimizar a oportunidade de rotação inversa, o seguinte procedimento deve ser aplicado. Recable os cabos de alimentação para o pino do terminal do compressor como originalmente cablado.
Para a substituição do compressor, um interruptor de baixa pressão está incluído com o compressor. Este interruptor de baixa pressão deve ser temporariamente instalado como uma segurança rígida na parte de alta pressão do compressor. O objetivo deste interruptor é proteger o compressor contra quaisquer erros de cablagem no pino do terminal do compressor. O contacto elétrico do interruptor seria cablado em série com o interruptor de alta pressão. O interruptor permanecerá no lugar até que o compressor tenha sido iniciado e a direção da rotação tenha sido verificada; neste ponto, o interruptor será removido.
O interruptor que foi selecionado para detetar a rotação inversa é o número da peça da Carrier HK01CB001. Está disponível como parte do "Compressor installation package" (Pacote de instalação do compressor) (n.º da peça 06NA 660 013). Este interruptor abre os contactos quando a pressão cai abaixo de 50 mm de vácuo. O interruptor é um tipo de reinicialização manual que pode ser reiniciado depois que a pressão tenha subido novamente acima de 70 kPa. É fundamental que o interruptor seja um tipo de reinicialização manual para impedir que o compressor faça ciclos curtos na direção inversa.
Resolução de problemas
Siga os passos abaixo para diagnosticar e corrigir problemas de EXD/Economizador.
Nas unidades 30HXC/GX com economizadores, verifique se a válvula para o tubo de borbulhador (parte inferior do Economizador) está aberta. Verifique primeiro o funcionamento do motor EXD (consulte o procedimento no IOM de Controlos). Deve ser capaz de sentir o atuador a mover-se colocando a mão no corpo da EXD ou do economizador (o atuador está localizado cerca de metade a dois terços do caminho a partir da parte inferior da carcaça do economizador). Deve sentir uma batida forte vinda do atuador quando atinge o topo do seu curso (pode ser ouvida se o ambiente for relativamente silencioso). O atuador deve bater quando atinge a parte inferior do seu curso. Se acreditar que a válvula não está a funcionar corretamente, contacte o seu departamento de assistência da Carrier para mais verificações em:
- sinais de saída no módulo EXD
- conexões de fios (continuidade e conexão firme em todos os terminais de pinos)
- resistência dos enrolamentos do motor EXD.


Aprovação do Sistema de Gestão Ambiental
N.º de encomenda: 13173-76, 03 1999 - Substitui o n.º: 13173-76, março de 1998
O fabricante reserva-se o direito de alterar quaisquer especificações do produto sem aviso prévio.
Fabricante: Carrier s.a., Montluel, França.
Impresso na Holanda em papel sem cloro.

Descarregar manual
Aqui pode descarregar a versão completa em PDF do manual, ela pode conter instruções de segurança adicionais, informações de garantia, regras da FCC, etc.
Descarregar Manual do Compressor de Parafuso Carrier 30HXC/30GX