
Перед первоначальным запуском установок 30HXC и 30GX лица, участвующие в запуске, эксплуатации и техническом обслуживании, должны быть тщательно ознакомлены с данными инструкциями и другими необходимыми рабочими данными. Эта книга содержит обзор, чтобы вы могли ознакомиться с системой управления перед выполнением процедур запуска. Процедуры в этом руководстве расположены в последовательности, необходимой для правильного запуска и эксплуатации машины.
Чиллеры 30HXC и 30GX разработаны для обеспечения безопасной и надежной работы при эксплуатации в пределах проектных спецификаций. При эксплуатации этого оборудования соблюдайте здравый смысл и меры предосторожности, чтобы избежать повреждения оборудования и имущества или травм персонала.
Убедитесь, что вы понимаете и соблюдаете процедуры и меры предосторожности, содержащиеся в инструкциях к машине, а также перечисленные в этом руководстве.
НЕЛЬЗЯ ВЫПУСКАТЬ хладагент из предохранительных клапанов внутри здания. Выходное отверстие предохранительного клапана должно быть выведено на улицу. Скопление хладагента в замкнутом пространстве может вытеснить кислород и вызвать удушье или взрыв.
ОБЕСПЕЧЬТЕ надлежащую вентиляцию, особенно для закрытых помещений и помещений с низкой высотой потолка. Вдыхание высоких концентраций паров вредно и может вызвать нарушения сердечного ритма, потерю сознания или смерть. Пар тяжелее воздуха и уменьшает количество кислорода, доступного для дыхания. Продукт вызывает раздражение глаз и кожи. Продукты разложения опасны.
НЕ ИСПОЛЬЗУЙТЕ КИСЛОРОД для продувки трубопроводов или для повышения давления в машине для каких-либо целей. Газообразный кислород бурно реагирует с маслом, смазкой и другими распространенными веществами.
НИКОГДА НЕ ПРЕВЫШАЙТЕ указанное испытательное давление, ПРОВЕРЬТЕ допустимое испытательное давление, проверив инструкцию и проектное давление на паспортной табличке оборудования.
НЕ ИСПОЛЬЗУЙТЕ воздух для проверки на герметичность. Используйте только хладагент или сухой азот.
НЕ ПЕРЕКРЫВАЙТЕ КЛАПАНОМ какое-либо предохранительное устройство.
УБЕДИТЕСЬ, что все устройства сброса давления правильно установлены перед эксплуатацией какой-либо машины.
НЕ ВЫПОЛНЯЙТЕ СВАРКУ ИЛИ ГАЗОВУЮ РЕЗКУ каких-либо трубопроводов или сосудов с хладагентом, пока весь хладагент (жидкий и газообразный) не будет удален из чиллера. Следы пара следует вытеснить сухим воздухом или азотом, а рабочая зона должна хорошо проветриваться. Хладагент при контакте с открытым пламенем выделяет токсичные газы.
НЕ работайте с оборудованием, находящимся под напряжением, если вы не являетесь квалифицированным электриком.
НЕ РАБОТАЙТЕ С электрическими компонентами, включая панели управления, переключатели, реле и т. д., пока не убедитесь, что ВСЕ ПИТАНИЕ ОТКЛЮЧЕНО, и остаточное напряжение не может утечь из конденсаторов или твердотельных компонентов.
БЛОКИРУЙТЕ В ОТКРЫТОМ ПОЛОЖЕНИИ И МАРКИРУЙТЕ электрические цепи во время обслуживания. ЕСЛИ РАБОТА ПРЕРВАНА, убедитесь, что все цепи обесточены, прежде чем возобновлять работу.
НЕ сливайте хладагент сифоном.
ИЗБЕГАЙТЕ ПОПАДАНИЯ жидкого хладагента на кожу или в глаза. ИСПОЛЬЗУЙТЕ ЗАЩИТНЫЕ ОЧКИ. Смойте любые брызги с кожи водой с мылом. Если жидкий хладагент попал в глаза,
НЕМЕДЛЕННО ПРОМОЙТЕ ГЛАЗА водой и обратитесь к врачу.
НИКОГДА НЕ ПРИМЕНЯЙТЕ открытое пламя или пар под давлением к контейнеру с хладагентом. Это может привести к опасному избыточному давлению. Если необходимо нагреть хладагент, используйте только теплую воду.
НЕ ИСПОЛЬЗУЙТЕ ПОВТОРНО одноразовые (невозвратные) баллоны и не пытайтесь их заправлять. Это ОПАСНО И НЕЗАКОННО. Когда баллоны опорожнятся, выпустите оставшееся давление газа, ослабьте хомут, выкрутите и выбросьте шток клапана. НЕ СЖИГАЙТЕ.
ПРОВЕРЬТЕ ТИП ХЛАДАГЕНТА перед добавлением хладагента в машину. Введение неподходящего хладагента может привести к повреждению или неисправности этой машины.
НЕ ПЫТАЙТЕСЬ СНИМАТЬ фитинги, компоненты и т. д., пока машина находится под давлением или работает. Убедитесь, что давление составляет 0 кПа, прежде чем разъединять соединение хладагента.
ВНИМАТЕЛЬНО ОСМАТРИВАЙТЕ все предохранительные устройства, ПО КРАЙНЕЙ МЕРЕ ОДИН РАЗ В ГОД. Если машина работает в агрессивной среде, проверяйте устройства через более короткие промежутки времени.
НЕ ПЫТАЙТЕСЬ РЕМОНТИРОВАТЬ ИЛИ ВОССТАНАВЛИВАТЬ какое-либо предохранительное устройство при обнаружении коррозии или скопления инородных материалов (ржавчины, грязи, окалины и т. д.) внутри корпуса клапана или механизма. Замените устройство.
НЕ устанавливайте предохранительные устройства последовательно или в обратном направлении.
НЕ НАСТУПАЙТЕ на трубопроводы хладагента. Сломанные трубопроводы могут хлестать и выпускать хладагент, что может привести к травмам.
НЕ перелезайте через машину. Используйте платформу или подмости.
ИСПОЛЬЗУЙТЕ МЕХАНИЧЕСКОЕ ОБОРУДОВАНИЕ (кран, подъемник и т. д.) для подъема или перемещения тяжелых компонентов. Даже если компоненты легкие, используйте механическое оборудование, если есть риск поскользнуться или потерять равновесие.
ИМЕЙТЕ В ВИДУ, что некоторые автоматические схемы запуска МОГУТ ВКЛЮЧИТЬ ВЕНТИЛЯТОР ГРАДИРНИ ИЛИ НАСОСЫ. Откройте разъединитель перед вентиляторами градирни или насосами.
ИСПОЛЬЗУЙТЕ только ремонтные или запасные части, соответствующие требованиям нормативных документов оригинального оборудования.
НЕ ВЫПУСКАЙТЕ И НЕ СЛИВАЙТЕ водяные камеры, содержащие промышленные рассолы, без разрешения компетентного органа.
НЕ ОСЛАБЛЯЙТЕ болты водяной камеры, пока водяная камера не будет полностью слита.
НЕ ОСЛАБЛЯЙТЕ гайку сальника, пока не убедитесь, что гайка имеет надежное резьбовое соединение.
ПЕРИОДИЧЕСКИ ПРОВЕРЯЙТЕ все клапаны, фитинги и трубопроводы на предмет коррозии, ржавчины, утечек или повреждений.
ОБЕСПЕЧЬТЕ ДРЕНАЖНОЕ соединение в вентиляционной линии рядом с каждым устройством сброса давления, чтобы предотвратить скопление конденсата или дождевой воды.
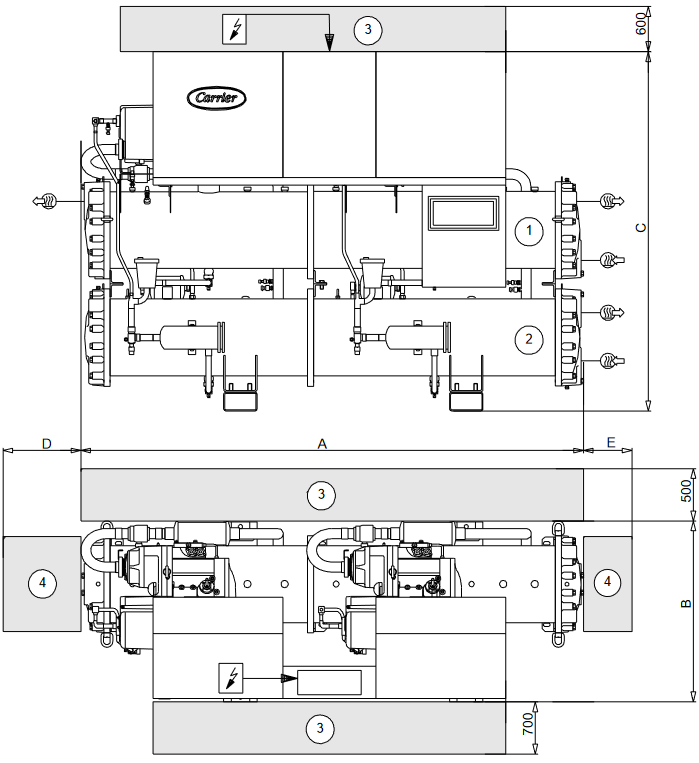
30HXC080
30HXC090
30HXC100
30HXC110

Вход воды
Выход воды
Электропитание
кг: общий рабочий вес
| A мм | B мм | C мм | D мм | E мм | кг | |
| 30HXC080 30HXC090 30HXC100 |
2705 | 950 | 1850 | 2360 | 1000 | 2447 2462 2504 |
| 30HXC110 | 2705 | 950 | 1900 | 2360 | 1000 | 2650 |
| 30HXC120 30HXC130 30HXC140 30HXC155 |
3535 | 950 | 1875 | 3220 | 1000 | 2846 2861 2956 2971 |
| 30HXC175 30HXC190 |
3550 | 950 | 2000 | 3220 | 1000 | 3283 3438 |
ПРИМЕЧАНИЕ: При проектировании установки обращайтесь к сертифицированным чертежам с размерами, поставляемым с установкой.

Вход воды
Выход воды
Электропитание
кг: общий рабочий вес
| A мм | B мм | C мм | D мм | E мм | кг | |
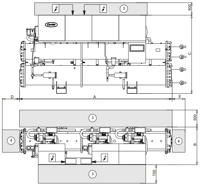
| 30HXC200 | 3975 | 980 | 2035 | 3620 | 1000 | 4090 |
| 30HXC230 30HXC260 30HXC285 |
3995 | 980 | 2116 | 3620 | 1000 | 4705 4815 4985 |
| 30HXC310 30HXC345 30HXC375 |
4490 | 980 | 2163 | 4120 | 1000 | 5760 5870 6105 |
ПРИМЕЧАНИЕ: При проектировании установки обращайтесь к сертифицированным чертежам с размерами, поставляемым с установкой.
30GX-082
30GX-092
30GX-102
30GX-112
30GX-122
30GX-132
30GX-152
30GX-162
30GX-182


Вход воды
Выход воды
Электропитание
Выход воздуха - не загораживать
кг: общий рабочий вес
| A мм | B мм | кг | |
| 30GX082 30GX092 30GX102 |
2970 | 2215 | 3116 3157 3172 |
| 30GX112 30GX122 30GX132 |
3427 | 2045 | 3515 3531 3633 |
| 30GX152 30GX162 |
4342 | 2835 | 3920 3936 |
| 30GX182 | 5996 | 1820 | 4853 |


Примечания:
ПРИМЕЧАНИЕ: При проектировании установки обращайтесь к сертифицированным чертежам с размерами, поставляемым с установкой.
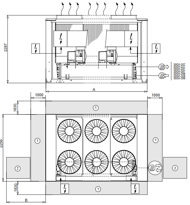
30GX-207
30GX-227
30GX-247
30GX-267
30GX-298
30GX-328
30GX-358

Вход воды
Выход воды
Электропитание
Выход воздуха - не загораживать
кг: общий рабочий вес
| A мм | B мм | кг | |
| 30GX207 30GX227 |
5996 | 2895 | 5540 5570 |
| 30GX247 30GX267 |
6911 | 2470 | 6134 6365 |
| 30GX298 | 7826 | 2220 | 7354 |
| 30GX328 30GX358 |
8741 | 1250 | 7918 8124 |


Примечания:
ПРИМЕЧАНИЕ: При проектировании установки обращайтесь к сертифицированным чертежам с размерами, поставляемым с установкой.
| 30HXC | 080 | 090 | 100 | 110 | 120 | 130 | 140 | 155 | 175 | 190 | 200 | 230 | 260 | 285 | 310 | 345 | 375 | |
| Чистая холодопроизводительность | kW | 292 | 321 | 352 | 389 | 426 | 464 | 514 | 550 | 607 | 663 | 716 | 822 | 918 | 996 | 1119 | 1222 | 1326 |
| Рабочий вес | kg | 2447 | 2462 | 2504 | 2650 | 2846 | 2861 | 2956 | 2971 | 3283 | 3438 | 4090 | 4705 | 4815 | 4985 | 5760 | 5870 | 6105 |
| Хладагент Контур A/B |
HFC-134a | |||||||||||||||||
| kg | 39/36 | 39/36 | 37/32 | 38/38 | 57/55 | 59/50 | 56/50 | 59/52 | 58/61 | 60/70 | 110/58 | 118/63 | 120/75 | 120/75 | 108/110 | 110/110 | 110/120 | |
| Масло Контур A/B |
Polyolester oil CARRIER SPEC: PP 47-32 | |||||||||||||||||
| l | 15/15 | 15/15 | 15/15 | 15/15 | 15/15 | 15/15 | 15/15 | 15/15 | 15/15 | 15/15 | 30/15 | 30/15 | 30/15 | 30/15 | 30/30 | 30/30 | 30/30 | |
| Компрессоры | Hermetic twin-screw Power3 | |||||||||||||||||
| Контур A, ном. размер на компрессор** | 39 | 46 | 46 | 56 | 56 | 66 | 80 | 80 | 80 | 80+ | 66/56 | 80/56 | 80/80 | 80+/80+ | 80/66 | 80/80 | 80+/80+ | |
| Контур B, ном. размер на компрессор** | 39 | 39 | 46 | 46 | 56 | 56 | 56 | 66 | 80 | 80+ | 66 | 80 | 80 | 80+ | 80/66 | 80/80 | 80+/80+ | |
| Тип управления | PRO-DIALOG Plus control | |||||||||||||||||
| Количество ступеней производительности | 6 | 6 | 6 | 6 | 6 | 6 | 6 | 6 | 6 | 6 | 8 | 8 | 8 | 8 | 10 | 10 | 10 | |
| Минимальная производительность | % | 19 | 19 | 21 | 19 | 21 | 19 | 17 | 19 | 21 | 21 | 14 | 14 | 14 | 14 | 10 | 10 | 10 |
| Испаритель | Кожухотрубный тип, с медными трубами с внутренним оребрением | |||||||||||||||||
| Объем воды нетто | l | 65 | 65 | 73 | 87 | 81 | 81 | 91 | 91 | 109 | 109 | 140 | 165 | 181 | 181 | 203 | 229 | 229 |
| Водяные соединения | Плоский фланец заводской поставки, привариваемый на месте | |||||||||||||||||
| Вход и выход | in. | 4 | 4 | 4 | 5 | 5 | 5 | 5 | 5 | 5 | 5 | 6 | 6 | 6 | 6 | 8 | 8 | 8 |
| Слив и вентиляция (NPT) | in. | 3/8 | 3/8 | 3/8 | 3/8 | 3/8 | 3/8 | 3/8 | 3/8 | 3/8 | 3/8 | 3/8 | 3/8 | 3/8 | 3/8 | 3/8 | 3/8 | 3/8 |
| Макс. рабочее давление на стороне воды | kPa | 1000 | 1000 | 1000 | 1000 | 1000 | 1000 | 1000 | 1000 | 1000 | 1000 | 1000 | 1000 | 1000 | 1000 | 1000 | 1000 | 1000 |
| Конденсаторы | Кожухотрубный тип, с медными трубами с внутренним оребрением | |||||||||||||||||
| Объем воды нетто | l | 58 | 58 | 58 | 58 | 92 | 92 | 110 | 110 | 132 | 132 | 162 | 208 | 208 | 208 | 251 | 251 | 251 |
| Водяные соединения | Плоский фланец заводской поставки, привариваемый на месте | |||||||||||||||||
| Вход и выход | in. | 5 | 5 | 5 | 5 | 5 | 5 | 5 | 5 | 6 | 6 | 6 | 6 | 6 | 8 | 8 | 8 | |
| Слив и вентиляция (NPT) | in. | 3/8 | 3/8 | 3/8 | 3/8 | 3/8 | 3/8 | 3/8 | 3/8 | 3/8 | 3/8 | 3/8 | 3/8 | 3/8 | 3/8 | 3/8 | 3/8 | 3/8 |
| Макс. рабочее давление на стороне воды | kPa | 1000 | 1000 | 1000 | 1000 | 1000 | 1000 | 1000 | 1000 | 1000 | 1000 | 1000 | 1000 | 1000 | 1000 | 1000 | 1000 | |
* Стандартизированные условия Eurovent: температуры воды на входе/выходе из испарителя = 12°C/7°C, температуры воды на входе/выходе из конденсатора = 30°C/35°C. Чистая холодопроизводительность: Полная холодопроизводительность за вычетом тепла водяного насоса против внутреннего перепада давления в испарителе. ** Размер компрессора соответствует номинальной производительности в тоннах (1 тонна = 3,517 кВт).
| 30HXC | 080 | 090 | 100 | 110 | 120 | 130 | 140 | 155 | 175 | 190 | 200 | 230 | 260 | 285 | 310 | 345 | 375 | |
| Силовая цепь | ||||||||||||||||||
| Номинальное электропитание* | V-ph-Hz | 400-3-50 | ||||||||||||||||
| Диапазон напряжения | V | 360-440 | ||||||||||||||||
| Питание цепи управления | Цепь управления питается через установленный на заводе трансформатор | |||||||||||||||||
| Номинальная потребляемая мощность* | kW | 59 | 67 | 74 | 83 | 88 | 99 | 112 | 123 | 135 | 146 | 156 | 179 | 201 | 219 | 245 | 274 | 298 |
| Номинальный потребляемый ток* | A | 98 | 111 | 124 | 139 | 148 | 166 | 186 | 204 | 226 | 242 | 259 | 291 | 335 | 367 | 408 | 456 | 498 |
| Макс. потребляемая мощность** | kW | 76 | 83 | 91 | 101 | 111 | 121 | 135 | 145 | 158 | 181 | 187 | 214 | 237 | 272 | 290 | 316 | 362 |
| Цепь A | kW | - | - | - | - | - | - | - | - | - | - | 121 | 135 | 158 | 181 | 145 | 158 | 181 |
| Цепь B | kW | - | - | - | - | - | - | - | - | - | - | 66 | 79 | 79 | 91 | 145 | 158 | 181 |
| Cos phi, единица при полной нагрузке | 0.87 | 0.87 | 0.87 | 0.87 | 0.87 | 0.87 | 0.87 | 0.87 | 0.87 | 0.87 | 0.87 | 0.87 | 0.87 | 0.87 | 0.87 | 0.87 | 0.87 | |
| Макс. потребляемый ток (Un - 10%)*** | A | 138 | 152 | 166 | 184 | 202 | 221 | 245 | 264 | 288 | 330 | 341 | 389 | 432 | 495 | 528 | 576 | 660 |
| Цепь A | A | - | - | - | - | - | - | - | - | - | - | 221 | 245 | 288 | 330 | 264 | 288 | 330 |
| Цепь B | A | - | - | - | - | - | - | - | - | - | - | 120 | 144 | 144 | 165 | 264 | 288 | 330 |
| Максимальный потребляемый ток (Un)*** | A | 125 | 138 | 151 | 167 | 184 | 201 | 223 | 240 | 262 | 300 | 310 | 354 | 393 | 450 | 480 | 524 | 600 |
| Цепь A | A | - | - | - | - | - | - | - | - | - | - | 201 | 223 | 262 | 300 | 240 | 262 | 300 |
| Цепь B | A | - | - | - | - | - | - | - | - | - | - | 109 | 131 | 131 | 150 | 240 | 262 | 300 |
| Макс. пусковой ток, стандартный блок (Un)**** | A | 172 | 197 | 209 | 235 | 252 | 283 | 318 | 335 | 357 | 420 | 806 | 938 | 977 | 1156 | 1064 | 1108 | 1306 |
| Цепь A | A | - | - | - | - | - | - | - | - | - | - | 697 | 807 | 846 | 1006 | 824 | 846 | 1006 |
| Цепь B | A | - | - | - | - | - | - | - | - | - | - | 605 | 715 | 715 | 856 | 824 | 846 | 1006 |
| Макс. пусковой ток/макс. коэффициент потребления тока, блок | 1.37 | 1.42 | 1.39 | 1.41 | 1.37 | 1.41 | 1.43 | 1.40 | 1.36 | 1.40 | 2.60 | 2.65 | 2.49 | 2.57 | 2.22 | 2.12 | 2.18 | |
| Макс. пусковой ток/макс. коэффициент потребления тока, цепь A | - | - | - | - | - | - | - | - | - | - | 3.47 | 3.62 | 3.23 | 3.35 | 3.43 | 3.23 | 3.35 | |
| Макс. пусковой ток/макс. коэффициент потребления тока, цепь B | - | - | - | - | - | - | - | - | - | - | 5.55 | 5.46 | 5.46 | 5.71 | 3.43 | 3.23 | 3.35 | |
| Макс. пусковой ток - пуск с пониженным током (Un) **** | A | std. | std. | std. | std. | std. | std. | std. | std. | std. | std. | 601 | 643 | 682 | 760 | 769 | 813 | 910 |
| Цепь A | A | std. | std. | std. | std. | std. | std. | std. | std. | std. | std. | 492 | 512 | 551 | 610 | 529 | 551 | 610 |
| Цепь B | A | std. | std. | std. | std. | std. | std. | std. | std. | std. | std. | 330 | 370 | 370 | 385 | 529 | 551 | 610 |
| Макс. пусковой ток - пуск с пониженным током/ макс. коэффициент потребления тока, блок | std. | std. | std. | std. | std. | std. | std. | std. | std. | std. | 1.94 | 1.82 | 1.74 | 1.69 | 1.60 | 1.55 | 1.52 | |
| Цепь A | std. | std. | std. | std. | std. | std. | std. | std. | std. | std. | 2.45 | 2.30 | 2.10 | 2.03 | 2.20 | 2.10 | 2.03 | |
| Цепь B | std. | std. | std. | std. | std. | std. | std. | std. | std. | std. | 3.03 | 2.83 | 2.83 | 2.57 | 2.20 | 2.10 | 2.03 | |
| Трехфазный ток короткого замыкания | kA | 25 | 25 | 25 | 25 | 25 | 25 | 25 | 25 | 25 | 25 | N/A | N/A | N/A | N/A | N/A | N/A | N/A |
| Цепь A | kA | - | - | - | - | - | - | - | - | - | - | 25 | 25 | 25 | 25 | 25 | 25 | 25 |
| Цепь B | kA | - | - | - | - | - | - | - | - | - | - | 15 | 15 | 15 | 15 | 25 | 25 | 25 |
| Потребляемая мощность в режиме ожидания, блок или цепь A, для подключения насоса испарителя† | kW | 8 | 8 | 8 | 11 | 11 | 11 | 15 | 15 | 15 | 15 | 15 | 18 | 18 | 30 | 30 | 30 | 30 |
* Стандартные условия Eurovent: температура воды на входе/выходе из испарителя 12°C и 7°C. Температура воды на входе/выходе из конденсатора 30°C/35°C.
** Потребляемая мощность, компрессор, при рабочих пределах блока (температура воды на входе/выходе из испарителя = 15°C/10°C, температура воды на входе/выходе из конденсатора = 40°C/45°C) и номинальном напряжении 400 В (данные указаны на паспортной табличке блока).
*** Максимальный рабочий ток блока при максимальной потребляемой мощности блока.
**** Максимальный мгновенный пусковой ток (максимальный рабочий ток самого маленького(их) компрессора(ов) + ток заклинившего ротора или пониженный пусковой ток самого большого компрессора)
† Ток и потребляемая мощность не включены в значения, указанные выше.
N/A Недоступно
| Ссылка | Размер | I ном. | MHA | LRA | LRA (Y) | LRA (S) 1 cp. | LRA (S) 2 cp. |
| 06NW2146S7N | 39 | 48 | 69 | 344 | 109 | 125 | - |
| 06NW2174S7N | 46 | 58 | 83 | 423 | 134 | 154 | - |
| 06NW2209S7N | 56 | 71 | 101 | 506 | 160 | 260 | 350 |
| 06NW2250S7N | 66 | 87 | 120 | 605 | 191 | 330 | 400 |
| 06NW2300S5N | 80 | 104 | 144 | 715 | 226 | 370 | 420 |
| 06NW2300S5E | 80+ | 111 | 165 | 856 | 270 | 385 | 460 |
Обозначения:
| 06NW | Компрессор для водоохлаждаемых блоков |
| N | Компрессор без экономайзера |
| E | Компрессор с экономайзером |
| INOM | Средний потребляемый ток компрессора в условиях Eurovent |
| MHA | Must hold amperes (максимальный рабочий ток) при 360 В |
| LRA | Ток заклинившего ротора при прямом пуске |
| LRA (Y) | Ток заклинившего ротора при пониженном токе (режим пуска звезда/треугольник) |
| LRA (S) 1 cp. | Пуск с пониженным током с электронным стартером (максимальная продолжительность пуска 3 секунды) для одного компрессора на цепь |
| LRA (S) 2 cp. | Пуск с пониженным током с электронным стартером (максимальная продолжительность пуска 3 секунды) для двух компрессоров на цепь |
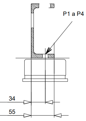
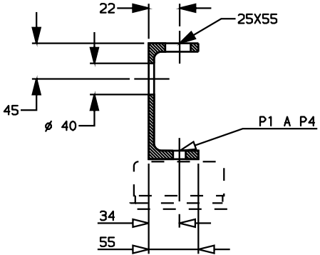
30HXC 150 и; 150A Options (Опции)
| 30HXC | 080 | 090 | 100 | 110 | 120 | 130 | 140 | 155 | 175 | 190 | 200 | 230 | 260 | 285 | 310 | 345 | 375 | |
| Power circuit (Силовая цепь) | ||||||||||||||||||
| Nominal power supply* (Номинальное электропитание*) | V-ph-Hz | 400-3-50 | ||||||||||||||||
| Voltage range (Диапазон напряжения) | V | 360-440 | ||||||||||||||||
| Control circuit supply (Питание цепи управления) | The control circuit is supplied via the factory-installed transformer (Цепь управления питается через установленный на заводе трансформатор) | |||||||||||||||||
| Max. power input** (Макс. потребляемая мощность**) | kW | 104 | 117 | 131 | 145 | 159 | 174 | 194 | 211 | 230 | 263 | 271 | 310 | 345 | 395 | 422 | 460 | 526 |
| Circuit A (Цепь A) | kW | - | - | - | - | - | - | - | - | - | - | 175 | 195 | 230 | 263 | 211 | 230 | 263 |
| Circuit B (Цепь B) | kW | - | - | - | - | - | - | - | - | - | - | 96 | 115 | 115 | 132 | 211 | 230 | 263 |
| Max. current drawn (Un - 10%)*** (Макс. потребляемый ток (Un - 10%)***) | A | 190 | 215 | 240 | 265 | 290 | 320 | 355 | 385 | 420 | 480 | 495 | 564 | 630 | 720 | 770 | 840 | 960 |
| Circuit A (Цепь A) | A | - | - | - | - | - | - | - | - | - | - | 320 | 355 | 420 | 480 | 385 | 420 | 480 |
| Circuit B (Цепь B) | A | - | - | - | - | - | - | - | - | - | - | 175 | 210 | 210 | 240 | 385 | 420 | 480 |
| Maximum current drawn (Un)*** (Максимальный потребляемый ток (Un)***) | A | 173 | 195 | 218 | 241 | 264 | 291 | 323 | 350 | 382 | 436 | 450 | 514 | 573 | 655 | 700 | 764 | 873 |
| Circuit A (Цепь A) | A | - | - | - | - | - | - | - | - | - | - | 291 | 323 | 382 | 436 | 350 | 382 | 436 |
| Circuit B (Цепь B) | A | - | - | - | - | - | - | - | - | - | - | 159 | 191 | 191 | 218 | 350 | 382 | 436 |
| Max. starting current, std. unit (Un)**** (Макс. пусковой ток, стандартный блок (Un)****) | A | 277 | 312 | 335 | 379 | 402 | 435 | 519 | 546 | 578 | 618 | 1251 | 1549 | 1608 | 1701 | 1735 | 1799 | 1920 |
| Circuit A (Цепь A) | A | - | - | - | - | - | - | - | - | - | - | 1092 | 1358 | 1417 | 1483 | 1385 | 1417 | 1483 |
| Circuit B (Цепь B) | A | - | - | - | - | - | - | - | - | - | - | 960 | 1226 | 1226 | 1265 | 1385 | 1417 | 1483 |
| Max. starting current/max. current draw ratio, unit (Макс. пусковой ток/макс. коэффициент потребления тока, блок) | 1.61 | 1.60 | 1.54 | 1.57 | 1.52 | 1.49 | 1.61 | 1.56 | 1.51 | 1.42 | 2.78 | 3.02 | 2.81 | 2.60 | 2.48 | 2.36 | 2.20 | |
| Max. starting current/max. current draw ratio, circuit A (Макс. пусковой ток/макс. коэффициент потребления тока, цепь A) | - | - | - | - | - | - | - | - | - | - | 3.75 | 4.21 | 3.71 | 3.40 | 3.96 | 3.71 | 3.40 | |
| Max. starting current/max. current draw ratio, circuit B (Макс. пусковой ток/макс. коэффициент потребления тока, цепь B) | - | - | - | - | - | - | - | - | - | - | 6.03 | 6.42 | 6.42 | 5.80 | 3.96 | 3.71 | 3.40 | |
| Max. starting current - reduced current start (Un) **** (Макс. пусковой ток - пуск с пониженным током (Un) ****) | A | std. | std. | std. | std. | std. | std. | std. | std. | std. | std. | N/A | N/A | N/A | N/A | N/A | N/A | N/A |
| Three-phase short circuit holding current (Ток короткого замыкания трехфазной цепи) | kA | 25 | 25 | 25 | 25 | 25 | 25 | 25 | 25 | 25 | 25 | N/A | N/A | N/A | N/A | N/A | N/A | N/A |
| Circuit A (Цепь A) | kA | - | - | - | - | - | - | - | - | - | - | 25 | 25 | 25 | 25 | 25 | 25 | 25 |
| Circuit B (Цепь B) | kA | - | - | - | - | - | - | - | - | - | - | 15 | 15 | 15 | 15 | 25 | 25 | 25 |
| Customer standby capacity, unit or circ. A, for evaporatorwater pump connections† (Резервная мощность заказчика, блок или цепь A, для подключения насоса испарителя)† | kW | 8 | 8 | 8 | 11 | 11 | 11 | 15 | 15 | 15 | 15 | 15 | 18 | 18 | 30 | 30 | 30 | 30 |
** Power input, compressor, at unit operating limits (evaporator water entering/leaving temperature = 15°C/10°C, condenser entering/leaving water temperature = 40°C/45°C) and a nominal voltage of 400 V (data given on the unit name plate). (Потребляемая мощность, компрессор, при рабочих пределах установки (температура воды на входе/выходе из испарителя = 15°C/10°C, температура воды на входе/выходе из конденсатора = 40°C/45°C) и номинальном напряжении 400 В (данные указаны на заводской табличке установки).
*** Maximum unit operating current at maximum unit power input. (Максимальный рабочий ток установки при максимальной потребляемой мощности установки.)
**** Maximum instantaneous starting current (maximum operating current of the smallest compressor(s) + locked rotor current or reduced starting current of the largest compressor) (Максимальный мгновенный пусковой ток (максимальный рабочий ток наименьшего(их) компрессора(ов) + ток заклинившего ротора или пониженный пусковой ток самого большого компрессора))
† Current and power inputs not included in the values above. (Ток и потребляемая мощность не включены в значения, указанные выше.)
N/A Not available (Недоступно)
The 30HXC 080-375 units for high condensing temperatures are directly derived from the standard models. Their application range is the same as that of the standard units, but permits operation at condenser leaving water temperatures up to 63°C. The PRO-DIALOG control offers all the advantages of the standard units, plus control of the condenser leaving water temperature. (Установки 30HXC 080-375 для высоких температур конденсации напрямую получены из стандартных моделей. Область их применения такая же, как и у стандартных установок, но допускает работу при температурах воды на выходе из конденсатора до 63°C. Система управления PRO-DIALOG предлагает все преимущества стандартных установок, а также контроль температуры воды на выходе из конденсатора.)
The main modifications are: (Основные изменения:)
These units are designed for traditional applications for watercooled units, but for higher condender leaving water temperatures than 45°C. (Эти установки предназначены для традиционных применений для установок с водяным охлаждением, но для более высоких температур воды на выходе из конденсатора, чем 45°C.)
Like the standard units they are equipped with condenser entering and leaving water sensors, installed on the piping. (Как и стандартные установки, они оснащены датчиками температуры воды на входе и выходе из конденсатора, установленными на трубопроводе.)
It is possible to control the machine at the condenser water outlet, requiring a factory configuration change and the use of a heating/cooling inlet reversing device. (Возможно управление машиной на выходе воды из конденсатора, что требует изменения заводской конфигурации и использования реверсивного устройства входа нагрева/охлаждения.)
These units are designed for water-to-water heat pumps. (Эти установки предназначены для тепловых насосов типа "вода-вода".)
They are factory configured as heat pumps (heating/cooling control as a function of the remote reversing device). The condenser incorporates thermal insulation that is identical to that of the evaporator. (Они сконфигурированы на заводе как тепловые насосы (управление нагревом/охлаждением в зависимости от удаленного реверсивного устройства). Конденсатор имеет теплоизоляцию, идентичную теплоизоляции испарителя.)
All information is identical to that of the standard 30HXC units, except for the following paragraphs. (Вся информация идентична информации для стандартных установок 30HXC, за исключением следующих параграфов.)
There are no nominal conditions for this unit type. The selection is made using the current electronic catalogue. (Для этого типа установок нет номинальных условий. Выбор осуществляется с использованием текущего электронного каталога.)
These are identical to those of the standard 30HXC units. The only difference is in the diameter of the incoming field wiring connection, described in the chapter "Recommended selection". Refer to the dimensional drawings for these units, before proceeding with the wiring. (Они идентичны размерам стандартных установок 30HXC. Единственное отличие заключается в диаметре входящего полевого проводного соединения, описанного в главе "Рекомендуемый выбор". Обратитесь к габаритным чертежам этих установок, прежде чем приступать к электромонтажу.)
See 30GX compressor table. (См. таблицу компрессоров 30GX.)
All options available for the standard 30HXC units are compatible, except: (Все опции, доступные для стандартных установок 30HXC, совместимы, за исключением:)
| Option 5, brine unit (Опция 5, установка для рассола) | Special unit (Специальная установка) |
| Option 25, soft start, 30HXC 200-375 units (Опция 25, плавный пуск, установки 30HXC 200-375) | Not available (Недоступно) |
Attention: (Внимание:)
If units have two different operating modes - one with high condensing temperature and the other with low condensing temperature - and the transition is made with the unit in operation, the temperature must not vary by more than 3 K per minute. In cases where this is not possible, it is recommended to go through a unit start/stop switch (remote start/ stop available for standard units). (Если установки имеют два различных режима работы - один с высокой температурой конденсации, а другой с низкой температурой конденсации - и переход осуществляется при работающей установке, температура не должна изменяться более чем на 3 K в минуту. В случаях, когда это невозможно, рекомендуется использовать переключатель пуска/останова установки (дистанционный пуск/останов доступен для стандартных установок).)
| 30GX | 082 | 092 | 102 | 112 | 122 | 132 | 152 | 162 | 182 | 207 | 227 | 247 | 267 | 298 | 328 | 358 | ||
| Net cooling capacity (Чистая холодопроизводительность) | kW | 285 | 309 | 332 | 388 | 417 | 450 | 505 | 536 | 602 | 687 | 744 | 810 | 910 | 1003 | 1103 | 1207 | |
| Operating weight (Рабочий вес) | kg | 3116 | 3157 | 3172 | 3515 | 3531 | 3633 | 3920 | 3936 | 4853 | 5540 | 5570 | 6134 | 6365 | 7354 | 7918 | 8124 | |
| Refrigerant charge (Заправка хладагентом) | HFC-134a | |||||||||||||||||
| Circuit A/B (Цепь A/B) | kg | 55/55 | 58/50 | 54/53 | 55/53 | 60/57 | 63/60 | 75/69 | 75/75 | 80/80 | 130/85 | 130/85 | 155/98 | 170/104 | 162/150 | 162/165 | 175/175 | |
| Oil (Масло) | Polyolester oil CARRIER SPEC (Полиэфирное масло CARRIER SPEC): PP 47-32 | |||||||||||||||||
| Circuit A/B (Цепь A/B) | l | 20/20 | 20/20 | 20/20 | 20/20 | 20/20 | 20/20 | 20/20 | 20/20 | 20/20 | 40/20 | 40/20 | 40/20 | 40/20 | 40/40 | 40/40 | 40/40 | |
| Compressors (Компрессоры) | Hermetic twin-screw Power3 (Герметичный двухвинтовой Power3) | |||||||||||||||||
| Circ. A, nom. size per compressor** (Цепь A, ном. размер на компрессор**) | 46 | 46 | 56 | 56 | 66 | 66 | 80 | 80 | 80+ | 66/56 | 80/66 | 80/80 | 80+/80+ | 80/80 | 80/80 | 80+/80+ | ||
| Circ. B, nom. size per compressor** (Цепь B, ном. размер на компрессор**) | 39 | 46 | 46 | 56 | 56 | 66 | 66 | 80 | 80+ | 80 | 80 | 80 | 80+ | 66/66 | 80/802 | 80+/80+ | ||
| Control type (Тип управления) | PRO-DIALOG Plus control (Система управления PRO-DIALOG Plus) | |||||||||||||||||
| Number of capacity steps (Количество ступеней производительности) | 6 | 6 | 6 | 6 | 6 | 6 | 6 | 6 | 6 | 8 | 8 | 8 | 8 | 10 | 10 | 10 | ||
| Minimum capacity (Минимальная производительность) | % | 19 | 21 | 19 | 21 | 19 | 21 | 19 | 21 | 21 | 16 | 14 | 14 | 14 | 9 | 10 | 10 | |
| Evaporator (Испаритель) | Shell and tube type, with internally finned copper tubes (Кожухотрубный тип, с медными трубами с внутренним оребрением) | |||||||||||||||||
| Net water volume (Объем воды нетто) | l | 65 | 73 | 73 | 87 | 87 | 101 | 91 | 91 | 109 | 140 | 140 | 165 | 181 | 203 | 229 | 229 | |
| Water connections (Подключения воды) | Factory-supplied flat flange, to be welded on site (Плоский фланец, поставляемый с завода, для приварки на месте) | |||||||||||||||||
| Inlet and outlet (Вход и выход) | in. | 4 | 4 | 4 | 5 | 5 | 5 | 5 | 5 | 5 | 6 | 6 | 6 | 6 | 8 | 8 | 8 | |
| Drain and vent (NPT) (Слив и вентиляция (NPT)) | in. | 3/8 | 3/8 | 3/8 | 3/8 | 3/8 | 3/8 | 3/8 | 3/8 | 3/8 | 3/8 | 3/8 | 3/8 | 3/8 | 3/8 | 3/8 | 3/8 | |
| Max. water-side operating pressure (Макс. рабочее давление со стороны воды) | kPa | 1000 | 1000 | 1000 | 1000 | 1000 | 1000 | 1000 | 1000 | 1000 | 1000 | 1000 | 1000 | 1000 | 1000 | 1000 | 1000 | |
| Condensers (Конденсаторы) | Copper tubes and aluminium fins (Медные трубы и алюминиевые ребра) | |||||||||||||||||
| Fans (Вентиляторы) | Axial FLYING BIRD 2 fan with rotating shroud (Осевой вентилятор FLYING BIRD 2 с вращающимся кожухом) | |||||||||||||||||
| Quantity (Количество) | 4 | 4 | 4 | 6 | 6 | 6 | 8 | 8 | 8 | 10 | 10 | 12 | 12 | 14 | 16 | 16 | ||
| Speed (Скорость) | r/s | 15.8 | 15.8 | 15.8 | 15.8 | 15.8 | 15.8 | 15.8 | 15.8 | 15.8 | 15.8 | 15.8 | 15.8 | 15.8 | 15.8 | 15.8 | 15.8 | |
| Total air flow (Общий расход воздуха) | l/s | 21110 | 21110 | 21110 | 31660 | 31660 | 31660 | 42220 | 42220 | 42220 | 52770 | 52770 | 63330 | 63330 | 73880 | 84440 | 84440 | |
* Standardised Eurovent conditions: evaporator entering/leaving water temperatures = 12°C/7°C, outside air temperature = 35°C Net cooling capacity: Gross cooling capacity minus the water pump heat against the internal evaporator pressure drop. (Стандартизированные условия Eurovent: температура воды на входе/выходе из испарителя = 12°C/7°C, температура наружного воздуха = 35°C. Чистая холодопроизводительность: Полная холодопроизводительность за вычетом тепла водяного насоса против внутреннего перепада давления в испарителе.)
** The compressor size corresponds to the nominal capacity in tons (1 ton = 3.517 kW). (Размер компрессора соответствует номинальной производительности в тоннах (1 тонна = 3,517 кВт).)
| 30HXC | 082 | 092 | 102 | 112 | 122 | 132 | 152 | 162 | 182 | 207 | 227 | 247 | 267 | 298 | 328 | 358 | ||
| Силовая цепь | ||||||||||||||||||
| Номинальное электропитание* | V-ph-Hz | 400-3-50 | ||||||||||||||||
| Диапазон напряжения | V | 360-440 | ||||||||||||||||
| Питание цепи управления | Цепь управления питается через установленный на заводе трансформатор | |||||||||||||||||
| Номинальная потребляемая мощность* | kW | 98 | 109 | 123 | 133 | 150 | 166 | 179 | 196 | 214 | 246 | 281 | 292 | 332 | 364 | 394 | 449 | |
| Номинальный потребляемый ток* | A | 180 | 200 | 223 | 256 | 273 | 290 | 326 | 352 | 388 | 449 | 492 | 528 | 582 | 642 | 704 | 776 | |
| Макс. потребляемая мощность** | kW | 127 | 141 | 154 | 175 | 191 | 207 | 234 | 253 | 286 | 319 | 355 | 380 | 429 | 462 | 506 | 572 | |
| Цепь A | kW | - | - | - | - | - | - | - | - | - | 193 | 228 | 253 | 286 | 253 | 253 | 286 | |
| Цепь B | kW | - | - | - | - | - | - | - | - | - | 127 | 127 | 127 | 143 | 209 | 253 | 286 | |
| Косинус фи, единица при полной нагрузке | 0.85 | 0.85 | 0.85 | 0.85 | 0.85 | 0.85 | 0.86 | 0.86 | 0.86 | 0.86 | 0.86 | 0.86 | 0.86 | 0.86 | 0.86 | 0.86 | ||
| Макс. потребляемый ток (Un - 10%)*** | A | 237 | 262 | 287 | 323 | 353 | 383 | 429 | 464 | 524 | 585 | 650 | 696 | 786 | 847 | 928 | 1048 | |
| Цепь A | A | - | - | - | - | - | - | - | - | - | 353 | 418 | 464 | 524 | 464 | 464 | 524 | |
| Цепь B | A | - | - | - | - | - | - | - | - | - | 232 | 232 | 232 | 262 | 383 | 464 | 524 | |
| Максимальный потребляемый ток (Un)*** | A | 217 | 240 | 263 | 297 | 324 | 351 | 394 | 426 | 480 | 537 | 596 | 639 | 721 | 777 | 852 | 961 | |
| Цепь A | A | - | - | - | - | - | - | - | - | - | 324 | 383 | 426 | 480 | 426 | 426 | 480 | |
| Цепь B | A | - | - | - | - | - | - | - | - | - | 213 | 213 | 213 | 240 | 351 | 426 | 480 | |
| Макс. пусковой ток, стандартный блок**** (Un) | A | 334 | 357 | 401 | 435 | 468 | 495 | 590 | 622 | 662 | 1338 | 1631 | 1674 | 1767 | 1812 | 1887 | 2008 | |
| Цепь A*** | A | - | - | - | - | - | - | - | - | - | 1125 | 1418 | 1461 | 1527 | 1461 | 1461 | 1527 | |
| Цепь B*** | A | - | - | - | - | - | - | - | - | - | 1248 | 1248 | 1248 | 1287 | 1152 | 1461 | 1527 | |
| Макс. пусковой ток/макс. коэффициент потребляемого тока, блок | 1.54 | 1.49 | 1.53 | 1.47 | 1.44 | 1.41 | 1.50 | 1.46 | 1.38 | 2.49 | 2.74 | 2.62 | 2.45 | 2.33 | 2.22 | 2.09 | ||
| Макс. пусковой ток/макс. коэффициент потребляемого тока, цепь A | - | - | - | - | - | - | - | - | - | 3.47 | 3.70 | 3.43 | 3.18 | 3.43 | 3.43 | 3.18 | ||
| Макс. пусковой ток/макс. коэффициент потребляемого тока, цепь B | - | - | - | - | - | - | - | - | - | 5.86 | 5.86 | 5.86 | 5.36 | 3.28 | 3.43 | 3.18 | ||
| Макс. пусковой ток - пуск с пониженным током (Un) **** | A | std. | std. | std. | std. | std. | std. | std. | std. | std. | 878 | 955 | 998 | 1102 | 1136 | 1211 | 1343 | |
| Цепь A | A | std. | std. | std. | std. | std. | std. | std. | std. | std. | 665 | 742 | 785 | 862 | 785 | 785 | 862 | |
| Цепь B | A | std. | std. | std. | std. | std. | std. | std. | std. | std. | 572 | 572 | 572 | 622 | 692 | 785 | 862 | |
| Макс. пусковой ток - пуск с пониженным током/ макс. коэффициент потребляемого тока, блок | std. | std. | std. | std. | std. | std. | std. | std. | std. | 1.64 | 1.60 | 1.56 | 1.53 | 1.46 | 1.42 | 1.40 | ||
| Цепь A | std. | std. | std. | std. | std. | std. | std. | std. | std. | 2.05 | 1.94 | 1.84 | 1.79 | 1.84 | 1.84 | 1.79 | ||
| Цепь B | std. | std. | std. | std. | std. | std. | std. | std. | std. | 2.69 | 2.69 | 2.69 | 2.39 | 1.97 | 1.84 | 1.79 | ||
| Трехфазный ток короткого замыкания | kA | 25 | 25 | 25 | 25 | 25 | 25 | 25 | 25 | 25 | N/A | N/A | N/A | N/A | N/A | N/A | N/A | |
| Цепь A | kA | - | - | - | - | - | - | - | - | - | 25 | 25 | 25 | 25 | 25 | 25 | 25 | |
| Цепь B | kA | - | - | - | - | - | - | - | - | - | 25 | 25 | 25 | 25 | 25 | 25 | 25 | |
| Потребляемая мощность в режиме ожидания, блок или цепь A, для подключения насосов испарителя† | kW | 4 | 4 | 4 | 5.5 | 5.5 | 5.5 | 7.5 | 7.5 | 7.5 | 7.5 | 9 | 9 | 9 | 15 | 15 | 15 | |
* Стандартные условия Eurovent: температура воды на входе/выходе испарителя 12°C и 7°C. Температура наружного воздуха 35°C.
** Потребляемая мощность, компрессор и вентилятор, при рабочих пределах блока (температура воды на входе/выходе испарителя = 15°C/10°C, температура наружного воздуха = 46°C) и номинальном напряжении 400 В (данные указаны на заводской табличке блока).
*** Максимальный рабочий ток блока при максимальной потребляемой мощности блока.
**** Максимальный мгновенный пусковой ток (максимальный рабочий ток самого маленького компрессора(ов) + ток вентилятора + ток заблокированного ротора или пониженный пусковой ток самого большого компрессора).
† Ток и потребляемая мощность не включены в значения выше
N/A Недоступно
| Артикул | Размер | I ном. | MHA | LRA | LRA (Y) | LRA (S) 1 cp. | LRA (S) 2 cp. |
| 06NA2146S7N | 39 | 70 | 95 | 605 | 191 | 220 | - |
| 06NA2174S7N | 46 | 90 | 120 | 715 | 226 | 260 | - |
| 06NA2209S7N | 56 | 113 | 145 | 856 | 270 | 330 | 420 |
| 06NA2250S7N | 66 | 130 | 175 | 960 | 303 | 380 | 500 |
| 06NA2300S5N | 80 | 156 | 210 | 1226 | 387 | 445 | 550 |
| 06NA2300S5E | 80+ | 174 | 240 | 1265 | 400 | 460 | 600 |
Условные обозначения:
| 06NA | Компрессор для блоков с воздушным охлаждением |
| N | Компрессор без экономайзера |
| E | Компрессор с экономайзером |
| INOM | Средний потребляемый ток компрессора в условиях Eurovent |
| MHA | Must hold amperes (максимальный рабочий ток) при 360 В |
| LRA | Ток заблокированного ротора при прямом пуске |
| LRA (Y) | Ток заблокированного ротора при пониженном токе (режим пуска звезда/треугольник) |
| LRA (S) 1 cp. | Пуск с пониженным током с электронным стартером (максимальная продолжительность пуска 3 секунды) для одного компрессора на цепь |
| LRA (S) 2 cp. | Пуск с пониженным током с электронным стартером (максимальная продолжительность пуска 3 секунды) для двух компрессоров на цепь |
| Испаритель | Минимум | Максимум | |
| Температура воды на входе в испаритель | °C | 6.8* | 21 |
| Температура воды на выходе из испарителя | °C | 4** | 15 |
| Конденсатор (с водяным охлаждением) | Минимум | Максимум | |
| Температура воды на входе в конденсатор | °C | 20*** | 42 |
| Температура воды на выходе из конденсатора | °C | 25 | 45 |
| Температура наружного воздуха при работе 30HXC | °C | 6 | 40 |
| Конденсатор (с воздушным охлаждением) | Минимум | Максимум | |
| Температура наружного воздуха при работе | °C | 0 | 46 |
| Доступное статическое давление | kPa | 0 |
Примечания:
* Для применений, требующих работы при температуре ниже 6,8°C, обратитесь в Carrier s.a. для подбора агрегата с помощью электронного каталога Carrier.
** Для применений, требующих работы при температуре ниже 4°C, в агрегатах необходимо использовать антифриз.
*** Агрегаты с водяным охлаждением (30HXC), работающие на полной нагрузке и при температуре воды на входе в конденсатор ниже 20°C, требуют использования регулятора давления нагнетания с аналоговыми водяными регулирующими клапанами (см. параграф о регулировании давления нагнетания).
Во временных режимах работы (запуск и частичная нагрузка) агрегат может работать при температуре воздуха на входе в конденсатор 13°C.
Минимальный расход охлажденной воды указан в таблице на следующей странице. Если расход меньше этого значения, поток испарителя можно рециркулировать, как показано на схеме. Температура смеси, выходящей из испарителя, никогда не должна быть менее чем на 2,8 K ниже температуры входящей охлажденной воды.

ДЛЯ МИНИМАЛЬНОГО РАСХОДА ОХЛАЖДЕННОЙ ВОДЫ
Максимальный расход охлажденной воды ограничивается максимально допустимым перепадом давления в испарителе. Он указан в таблице на следующей странице. Если расход превышает максимальное значение, возможны два решения:

ДЛЯ МАКСИМАЛЬНОГО РАСХОДА ОХЛАЖДЕННОЙ ВОДЫ
Переменный расход испарителя можно использовать в стандартных чиллерах 30HXC и 30GX. Чиллеры поддерживают постоянную температуру воды на выходе при любых условиях расхода. Для этого минимальный расход должен быть выше минимального расхода, указанного в таблице допустимых расходов, и не должен изменяться более чем на 10% в минуту. Если расход изменяется быстрее, система должна содержать не менее 6,5 литров воды на кВт вместо 3,25 л/кВт.
Независимо от системы, минимальная емкость водяного контура определяется по формуле:
Емкость = Мощность (кВт) x N Литров
| Применение | N |
| Обычное кондиционирование воздуха | 3.25 |
| Охлаждение технологического типа | 6.5 |
Где Мощность - номинальная холодопроизводительность системы (кВт) при номинальных условиях эксплуатации установки.
Этот объем необходим для стабильной работы и точного контроля температуры.
Часто необходимо добавить буферный резервуар для воды в контур, чтобы достичь требуемого объема. Сам резервуар должен быть оснащен внутренними перегородками для обеспечения надлежащего смешивания жидкости (воды или рассола). См. примеры ниже.
ПРИМЕЧАНИЕ: Компрессор не должен перезапускаться более 6 раз в час.


| 30HXC | Min.* | Max.** | ||
| 080-090 | 5.7 | 22.7 | ||
| 100 | 6.0 | 24.1 | ||
| 110 | 6.9 | 27.5 | ||
| 120-130 | 8.3 | 33.0 | ||
| 140-155 | 10.0 | 39.5 | ||
| 175-190 | 10.7 | 42.7 | ||
| 200 | 13.4 | 53.7 | ||
| 230 | 13.4 | 60.6 | ||
| 260-285 | 17.0 | 68.1 | ||
| 310 | 19.4 | 77.8 | ||
| 345-375 | 21.3 | 85.3 | ||
| 30GX | Min.* | Max.** | ||
| 082 | 5.7 | 22.7 | ||
| 092-102 | 6.0 | 24.1 | ||
| 112-122 | 6.9 | 27.5 | ||
| 132 | 8.4 | 33.7 | ||
| 152-162 | 10.0 | 39.9 | ||
| 182 | 10.7 | 42.7 | ||
| 207-227 | 13.4 | 53.7 | ||
| 247 | 15.1 | 60.6 | ||
| 267 | 17.0 | 68.1 | ||
| 298 | 19.4 | 77.8 | ||
| 328-358 | 21.3 | 85.3 | ||
* На основе скорости воды 0,9 м/с.
** На основе скорости воды 3,6 м/с.
| 30HXC | Min.* Closed loop (Минимум.* Закрытый контур) | Open loop (Открытый контур) | Max.** |
| 080-110 | 2.5 | 7.5 | 29.9 |
| 120-130 | 3.1 | 9.3 | 37.3 |
| 140-155 | 3.8 | 11.4 | 45.5 |
| 175-190 | 4.6 | 13.8 | 55.2 |
| 200 | 5.0 | 14.9 | 59.6 |
| 230-285 | 6.7 | 20.1 | 80.3 |
| 310-375 | 7.3 | 22.0 | 88.0 |
* На основе скорости воды 0,3 м/с в закрытом контуре и 0,9 м/с в открытом контуре.
** На основе скорости воды 3,6 м/с


Обязательно установите реле протока охладителя, а также подключите блокировку насоса охлажденной воды на 30HXC и 30GX. Несоблюдение этой инструкции аннулирует гарантию Carrier.
Контроллер реле протока охладителя поставляется и подключается на заводе на установках 30HXC и 30GX.
Следуйте инструкциям производителя по установке.
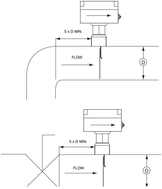
Реле протока может быть установлено в горизонтальной или вертикальной трубе с восходящим потоком жидкости. Его не следует использовать, когда поток жидкости направлен вниз.
Установите в секции трубы, где имеется прямой участок не менее пяти диаметров трубы с каждой стороны реле протока. Не располагайте вблизи клапанов, колен или отверстий. Лопасть никогда не должна касаться трубы или каких-либо сужений в трубе. Вкрутите реле протока в положение, чтобы плоская часть лопасти находилась под прямым углом к потоку. Стрелки на крышке и внизу, внутри корпуса, должны указывать направление потока. Выключатель должен быть установлен таким образом, чтобы клеммы были доступны для удобства подключения.
Клеммы 34 и 35 предусмотрены для установки на месте блокировки насоса охлажденной воды (вспомогательный контакт контактора насоса охлажденной воды).
(Подключение к трубе: 1" NPT)

Реле протока конденсатора является устройством, устанавливаемым на месте.
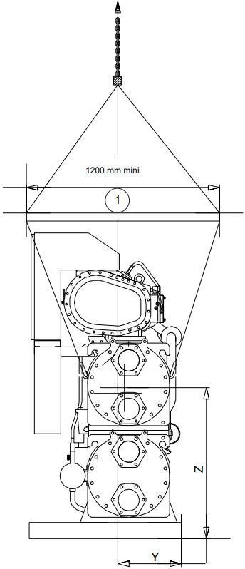
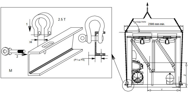
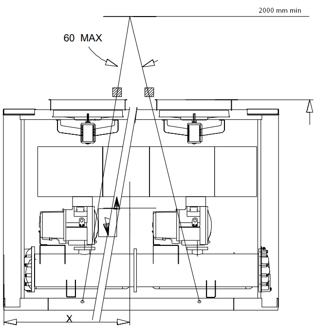
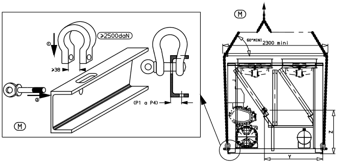
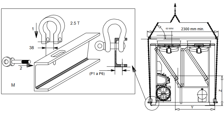
Не снимайте салазки, поддоны или защитную упаковку до тех пор, пока устройство не будет находиться в конечном положении. Перемещайте чиллер с помощью труб или роликов, или поднимайте его, используя стропы соответствующей грузоподъемности.
(30HXC)
Используйте стропы только в обозначенных точках подъема, которые отмечены на устройстве, на верхней части теплообменника охладителя. Подъем за нижнюю часть теплообменника приведет к небезопасному подъему устройства. Это может привести к травмам или повреждению устройства. Следуйте инструкциям по такелажу, приведенным на сертифицированном габаритном чертеже, поставляемом с устройством.
Всегда обращайтесь к главе "Размеры и зазоры", чтобы убедиться в наличии достаточного пространства для всех подключений и сервисных операций. Координаты центра тяжести, положение монтажных отверстий устройства и точки распределения веса указаны на сертифицированном габаритном чертеже, поставляемом с устройством.
Мы рекомендуем устанавливать эти чиллеры в подвале или на уровне земли. Если планируется установка над уровнем земли, сначала убедитесь, что допустимая нагрузка на пол достаточна и что пол достаточно прочный и ровный. При необходимости укрепите и выровняйте пол.
Установив чиллер в конечном месте, снимите салазки и другие приспособления, использовавшиеся для его перемещения. Выровняйте устройство с помощью спиртового уровня и прикрепите его болтами к полу или цоколю. Работа этих устройств может быть нарушена, если они не выровнены и не закреплены надежно на опорах. При необходимости используйте изоляционные прокладки под устройством для виброизоляции.
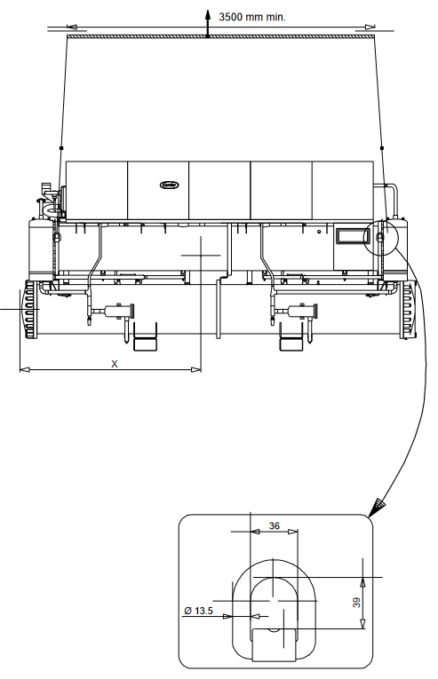
Эта схема приведена только для информации. См. "сертифицированные чертежи".

| X мм | Y мм | Z мм | |
| 30HXC080 30HXC090 30HXC100 |
1345 | 402 | 903 |
| 30HXC110 | 1368 | 397 | 935 |
| 30HXC120 30HXC130 30HXC140 30HXC155 |
1731 | 392 | 879 |
| 30HXC175 | 1703 | 386 | 947 |
| 30HXC190 | 1705 | 398 | 955 |


ПРИМЕЧАНИЕ
После завершения всех операций по подъему и позиционированию рекомендуется подкрасить все поверхности, где была удалена краска на подъемных проушинах.
Эта схема приведена только для информации. См. "сертифицированные чертежи".




| X мм | Y мм | Z мм | |
| 30HXC310 | 2195 | 425 | 1085 |
| 30HXC345 | 2195 | 425 | 1085 |
| 30HXC375 | 2205 | 435 | 1025 |
ПРИМЕЧАНИЕ
После завершения всех операций по подъему и позиционированию рекомендуется подкрасить все поверхности, где была удалена краска на подъемных проушинах.
Эта схема приведена только для информации. См. "сертифицированные чертежи".



| X мм | Y мм | Z мм | PTkg | |
| 30GX082 | 1440 | 1460 | 900 | 3115 |
| 30GX092 | 1440 | 1460 | 900 | 3156 |
| 30GX102 | 1440 | 1460 | 900 | 3170 |
| 30GX112 | 1650 | 1460 | 900 | 3574 |
| 30GX122 | 1650 | 1460 | 900 | 3527 |
| 30GX132 | 1650 | 1460 | 900 | 3634 |
| 30GX152 | 2155 | 1430 | 900 | 3938 |
| 30GX162 | 2155 | 1430 | 900 | 3954 |



| X мм | Y мм | Z мм | PTkg | |
| 30GX182 | 3030 | 1370 | 875 | 4853 |
ПРИМЕЧАНИЕ
После завершения всех операций по подъему и позиционированию рекомендуется подкрасить все поверхности, где была удалена краска на подъемной проушине.
Эта схема приведена только для информации. См. "сертифицированные чертежи".



| X мм | Y мм | Z мм | PTkg | |
| 30GX207 | 2870 | 1440 | 890 | 5536 |
| 30GX227 | 2870 | 1440 | 890 | 5572 |
| 30GX247 | 3320 | 1430 | 927 | 6131 |
| 30GX267 | 3300 | 1420 | 886 | 6363 |



| X мм | Y мм | Z мм | PTkg | |
| 30GX298 | 3630 | 1420 | 890 | 7353 |
| 30GX328 | 4360 | 1455 | 920 | 7840 |
| 30GX358 | 4360 | 1445 | 930 | 8045 |
ПРИМЕЧАНИЕ
После завершения всех операций по подъему и позиционированию рекомендуется подкрасить все поверхности, где была удалена краска на подъемных проушинах.
Размеры и расположение всех соединений для входа и выхода воды указаны на сертифицированных габаритных чертежах. Водяные трубы не должны передавать радиальную или осевую силу на теплообменники или какую-либо вибрацию на трубопровод или здание.
Необходимо проанализировать водоснабжение и при необходимости встроить соответствующие фильтры, устройства для обработки и управления, запорные и сливные клапаны и контуры. Проконсультируйтесь со специалистом по водоподготовке или с соответствующей литературой по этому вопросу.
Водяной контур должен быть спроектирован с наименьшим количеством отводов и горизонтальных участков труб на разных уровнях. Следует выполнить следующие основные проверки (см. также иллюстрацию типовой гидравлической схемы ниже).
Испаритель и конденсатор представляют собой многотрубные кожухотрубные теплообменники со съемными водяными камерами для облегчения очистки труб.
Перед выполнением водяных соединений затяните болты в обеих головках с меньшим моментом, указанным ниже, следуя описанному методу. Затягивайте парами и в последовательности, указанной в соответствии с размером болта (см. таблицу), используя значение крутящего момента в нижнем диапазоне.
Снимите плоский фланец, поставляемый с завода, с водяной камеры перед приваркой трубопровода к фланцу. Несоблюдение этого требования может привести к повреждению датчиков и изоляции.
ПРИМЕЧАНИЕ
Мы рекомендуем слить систему и отсоединить трубопровод, чтобы убедиться, что болты головок, к которым подсоединен трубопровод, затянуты правильно и равномерно.
Защита испарителя и конденсатора с водяным охлаждением
Если чиллер или водопровод находится в зоне, где температура окружающей среды может опуститься ниже 0°C, рекомендуется добавить антифриз, чтобы защитить устройство и водопровод до температуры на 8 K ниже самой низкой температуры. Используйте только антифризы, одобренные для работы в теплообменниках. Если система не защищена антифризом и не будет использоваться в морозных погодных условиях, слив охладителя и наружного трубопровода является обязательным. Повреждения, вызванные замерзанием, не покрываются гарантией.

Условные обозначения

Условные обозначения
Стандарт EN 60204-1 является хорошим способом реагирования на требования Директивы по машинному оборудованию § 1.5.1. Нормативная рекомендация IEC 364, как правило, признается отвечающей требованиям правил установки.
Приложение B стандарта EN 60204-1 может использоваться для описания электрических характеристик, при которых работают машины.
(1) Стандарт защиты, требуемый в отношении этой классификации, - IP21B (в соответствии со справочным документом IEC 529). Все 30HXC имеют стандарт защиты IP23C и, следовательно, соответствуют этому требованию защиты.
Компетентность персонала: классификация BA4(2) (персонал, квалифицированный в соответствии с IEC 364).
(2) Стандарт защиты, требуемый в отношении этой классификации, - IP43BW (в соответствии со справочным документом IEC 529). Все 30GX имеют стандарт защиты IP45CW и, следовательно, соответствуют этому требованию защиты.
ПРИМЕЧАНИЕ: Если конкретные аспекты установки требуют характеристик, отличных от перечисленных выше (или характеристик, не указанных здесь), обратитесь к своему представителю Carrier.
Электропитание должно соответствовать спецификации на заводской табличке чиллера. Напряжение питания должно находиться в пределах диапазона, указанного в таблице электрических данных.
Информацию о подключениях см. в электрических схемах.
Эксплуатация чиллера с неправильным напряжением питания или чрезмерным дисбалансом фаз является злоупотреблением, которое приведет к аннулированию гарантии Carrier. Если дисбаланс фаз превышает 2% по напряжению или 10% по току, немедленно обратитесь в местную электроснабжающую организацию и убедитесь, что чиллер не включается до принятия корректирующих мер.
100 x макс. отклонение от среднего напряжения
Среднее напряжение
Пример:
При напряжении 400 В - 3 фазы - 50 Гц отдельные фазные напряжения были измерены как:
AB = 406 В; BC = 399; AC = 394 В
| Среднее напряжение | = (406 + 399 + 394)/3 = 1199/3 |
| = 399,7, скажем, 400 В |
Рассчитайте максимальное отклонение от среднего значения 400 В:
(AB) = 406 - 400 = 6
(BC) = 400 - 399 = 1
(CA) = 400 - 394 = 6

Максимальное отклонение от среднего значения составляет 6 В. Наибольшее процентное отклонение составляет:
100 x 6/400 = 1,5 %
Это меньше допустимых 2% и поэтому приемлемо.
Определение размера проводов является обязанностью установщика и зависит от характеристик и правил, применимых к каждому месту установки. Следующее следует использовать только в качестве руководства, и это никоим образом не делает Carrier ответственным. После завершения определения размера проводов, используя сертифицированный размерный чертеж, установщик должен обеспечить простоту подключения и определить любые модификации, необходимые на месте.
Соединения, предоставляемые в стандартной комплектации для поставляемых на объект кабелей ввода питания к общему разъединителю/изолятору, предназначены для количества и типа проводов, указанных в таблице ниже.
Расчеты основаны на максимальном токе машины (см. таблицы электрических данных).
Для проектирования используются следующие стандартизированные методы установки в соответствии с IEC 364, таблица 52C:
Расчет основан на кабелях с изоляцией из ПВХ или сшитого полиэтилена с медной или алюминиевой жилой. Максимальная температура составляет 40°C для блоков 30HX и 46°C для блоков 30GX.
Данная длина провода ограничивает падение напряжения до < 5%.
| Unit (Блок) | Min. (mm2) по фазе | Wire type (Тип провода) | L (m) | Max. (mm2) по фазе | Wire type (Тип провода) | L (m) |
| 30HX 080 | 1 x 35 | XLPE Cu | 140 | 1 x 120 | PVC Al | 260 |
| 30HX 090 | 1 x 50 | XLPE Cu | 160 | 1 x 120 | PVC Al | 260 |
| 30HX 100 | 1 x 50 | XLPE Cu | 160 | 1 x 95 | XLPE Al | 195 |
| 30HX 110 | 1 x 70 | XLPE Cu | 170 | 1 x 120 | XLPE Al | 205 |
| 30HX 120/130 | 1 x 70 | XLPE Cu | 170 | 1 x 150 | XLPE Al | 210 |
| 30HX 140 | 1 x 95 | XLPE Cu | 180 | 1 x 185 | XLPE Al | 220 |
| 30HX 155 | 1 x 95 | XLPE Cu | 180 | 1 x 240 | XLPE Al | 225 |
| 30HX 175 | 1 x 120 | XLPE Cu | 185 | 1 x 240 | XLPE Al | 225 |
| 30HX 190 | 1 x150 | XLPE Cu | 190 | 2 x 95 | XLPE Al | 195 |
| 30HX 200 ckt A | 1 x 70 | XLPE Cu | 170 | 2 x120 | PVC Al | 325 |
| 30HX 230 ckt A | 1 x 95 | XLPE Cu | 180 | 2 x 120 | PVC Al | 325 |
| 30HX 260 ckt A | 1 x 120 | XLPE Cu | 185 | 1 x 240 | XLPE Al | 225 |
| 30HX 285 ckt A | 1 x 150 | XLPE Cu | 190 | 2 x 150 | XLPE Al | 265 |
| 30HX 200 ckt B | 1 x 35 | XLPE Cu | 140 | 1 x 95 | PVC Al | 250 |
| 30HX 230 ckt B | 1 x 35 | XLPE Cu | 140 | 1 x 120 | PVC Al | 260 |
| 30HX 260 ckt B | 1 x 35 | XLPE Cu | 140 | 1 x 120 | PVC Al | 260 |
| 30HX 285 ckt B | 1 x 50 | XLPE Cu | 160 | 2 x 70 | PVC Al | 285 |
| 30HX 310 ckt A & B | 1 x 95 | XLPE Cu | 180 | 1 x 240 | XLPE Al | 225 |
| 30HX 345 ckt A & B | 1 x 120 | XLPE Cu | 185 | 1 x 240 | XLPE Al | 225 |
| 30HX 375 ckt A & B | 1 x 150 | XLPE Cu | 190 | 2 x 150 | XLPE Al | 265 |
| 30GX 082 | 1 x 95 | XLPE Cu | 190 | 2 x 185 | PVC Al | 420 |
| 30GX 092 | 1 x 120 | XLPE Cu | 195 | 2 x 185 | PVC Al | 420 |
| 30GX 102 | 1 x 120 | XLPE Cu | 195 | 2 x 240 | PVC Al | 450 |
| 30GX 112 | 1 x 150 | XLPE Cu | 200 | 2 x 150 | XLPE Al | 300 |
| 30GX 122 | 1 x 185 | XLPE Cu | 205 | 2 x 185 | XLPE Al | 315 |
| 30GX 132 | 1 x 185 | XLPE Cu | 205 | 2 x 240 | XLPE Al | 330 |
| 30GX 152 | 1 x 240 | XLPE Cu | 205 | 3x 185 | XLPE CU | 430 |
| 30GX 162 | 2 x 95 | XLPE Cu | 190 | 3x 240 | XLPE CU | 440 |
| 30GX 182 | 2 x 120 | XLPE Cu | 200 | 3x 240 | XLPE CU | 440 |
| 30GX 207 ckt A | 1 x 185 | XLPE Cu | 205 | 3x 185 | XLPE Al | 445 |
| 30GX 227 ckt A | 1 x 240 | XLPE Cu | 205 | 3x 240 | XLPE Al | 470 |
| 30GX 247/298/328 ckt A | 2 x 120 | XLPE Cu | 225 | 3x 185 | XLPE CU | 490 |
| 30HX 267/358 ckt A | 2 x 150 | XLPE Cu | 230 | 3x 240 | XLPE CU | 505 |
| 30GX 207/227/247 ckt B | 1 x 95 | XLPE Cu | 190 | 2 x 240 | PVC Al | 560 |
| 30HX 267 ckt B | 1 x 120 | XLPE Cu | 200 | 2 x 185 | XLPE AL | 395 |
| 30GX 298 ckt B | 1 x 185 | XLPE Cu | 205 | 3x 240 | XLPE AL | 470 |
| 30GX 328 ckt B | 2 x 120 | XLPE Cu | 225 | 3x 185 | XLPE CU | 490 |
| 30GX 358 ckt B | 2 x 150 | XLPE Cu | 230 | 3x 240 | XLPE CU | 505 |
Перед подключением основных силовых кабелей (L1 - L2 - L3) к клеммной колодке необходимо проверить правильность порядка 3 фаз, прежде чем приступать к подключению к клеммной колодке или главному разъединителю/изолятору.
Обратитесь к Controls IOM и сертифицированной схеме проводки, поставляемой с устройством, для полевой проводки управления следующих функций:
Рекомендуемые сечения проводов для установок с высокой температурой конденсации (400 В - 3 фазы - 50 Гц)
| Установка, опции 150 + 150A 400 В - 3 фазы - 50 Гц | Мин. (мм2) на фазу | Тип провода | L (м) | Макс. (мм2) на фазу | Тип провода | L (м) |
| 30HXC 080 OPT. 150 | 1 x 50 | XLPE Cu | 150 | 2 x 70 | PVC Al | 230 |
| 30HXC 090 OPT. 150 | 1 x 70 | XLPE Cu | 160 | 2 x 95 | PVC Al | 260 |
| 30HXC 100 OPT. 150 | 1 x 70 | XLPE Cu | 160 | 2 x 95 | PVC Al | 250 |
| 30HXC 110 OPT. 150 | 1 x 95 | XLPE Cu | 170 | 2 x 120 | PVC Al | 265 |
| 30HXC 120 OPT. 150 | 1 x 120 | XLPE Cu | 180 | 2 x 120 | XLPE Al | 205 |
| 30HXC 130 OPT. 150 | 1 x 120 | XLPE Cu | 160 | 2 x 120 | XLPE Al | 210 |
| 30HXC 140 OPT. 150 | 1 x 150 | XLPE Cu | 175 | 2 x 120 | XLPE Al | 205 |
| 30HXC 155 OPT. 150 | 1 x 185 | XLPE Cu | 185 | 2 x 150 | XLPE Al | 215 |
| 30HXC 175 OPT. 150 | 1 x 240 | XLPE Cu | 185 | 2 x 150 | XLPE Al | 210 |
| 30HXC 190 OPT. 150 | 2 x 95 | XLPE Cu | 175 | 2 x 240 | XLPE Al | 220 |
| 30HXC 200 OPT. 150 circ. A | 1 x 120 | XLPE Cu | 170 | 2 x 150 | XLPE Al | 270 |
| 30HXC 230 OPT. 150 circ. A | 1 x 150 | XLPE Cu | 180 | 2 x 185 | XLPE Al | 270 |
| 30HXC 260 OPT. 150 circ. A | 1 x 185 | XLPE Cu | 180 | 2 x 240 | XLPE Al | 295 |
| 30HXC 285 OPT. 150 circ. A | 1 x 240 | XLPE Cu | 170 | 2 x 185 | XLPE Cu | 265 |
| 30HXC 310 OPT. 150 circ. A | 1 x 185 | XLPE Cu | 180 | 2 x 240 | XLPE Al | 300 |
| 30HXC 345 OPT. 150 circ. A | 1 x 185 | XLPE Cu | 170 | 2 x 240 | XLPE Al | 280 |
| 30HXC 375 OPT. 150 circ. A | 1 x 240 | XLPE Cu | 170 | 2 x 185 | XLPE Cu | 265 |
| 30HXC 200 OPT. 150 circ. B | 1 x 35 | XLPE Cu | 125 | 2 x 95 | PVC Al | 320 |
| 30HXC 230 OPT. 150 circ. B | 1 x 50 | XLPE Cu | 140 | 2 x 95 | PVC Al | 310 |
| 30HXC 260 OPT. 150 circ. B | 1 x 50 | XLPE Cu | 140 | 2 x 95 | PVC Al | 310 |
| 30HXC 285 OPT. 150 circ. B | 1 x 70 | XLPE Cu | 160 | 2 x 120 | PVC Al | 325 |
| 30HXC 310 OPT. 150 circ. B | 1 x 150 | XLPE Cu | 180 | 2 x 185 | XLPE Al | 275 |
| 30HXC 345 OPT. 150 circ. B | 1 x 185 | XLPE Cu | 185 | 2 x 240 | XLPE Al | 305 |
| 30HXC 375 OPT. 150 circ. B | 1 x 185 | XLPE Cu | 160 | 2 x 240 | XLPE Al | 280 |
Масляный фильтр
В винтовом компрессоре 06N масляный фильтр встроен в корпус компрессора. Этот фильтр можно заменить в полевых условиях.
Хладагент
Винтовой компрессор 06N специально разработан для использования только в системе R134a.
Смазка
Винтовой компрессор 06N одобрен для использования со следующей смазкой.
CARRIER MATERIAL SPEC PP 47-32
Электромагнитный клапан подачи масла
Электромагнитный клапан подачи масла является стандартным для компрессора, чтобы изолировать компрессор от потока масла, когда компрессор не работает.
Масляный электромагнитный клапан можно заменить в полевых условиях.
Сетки на всасывании и экономайзере
Для повышения надежности компрессора в качестве стандартной функции встроена сетка во впускные отверстия всасывания и экономайзера компрессора.
Система разгрузки
Винтовой компрессор 06N имеет систему разгрузки, которая является стандартной для всех компрессоров. Эта система разгрузки состоит из двух ступеней разгрузки, которые уменьшают производительность компрессора путем перенаправления частично сжатого газа обратно на всасывание.
В чиллерах 30HXC и 30GX используется затопленный испаритель. Вода циркулирует в трубах, а хладагент находится снаружи в корпусе. Один сосуд используется для обслуживания обоих контуров хладагента. Имеется центральная трубная решетка, которая разделяет два контура хладагента. Трубы имеют диаметр 3/4 дюйма, медные, с улучшенной поверхностью внутри и снаружи. Имеется только один водяной контур, и в зависимости от размера чиллера может быть два или три прохода воды. Датчик уровня жидкости охладителя обеспечивает оптимизированное управление потоком.
В верхней части охладителя находятся две всасывающие трубы, по одной в каждом контуре. Каждая из них имеет приваренный к ней фланец, и компрессор крепится к фланцу.
В чиллере 30HXC используется сосуд, который представляет собой комбинацию конденсатора и маслоотделителя. Он установлен под охладителем. Нагнетаемый газ выходит из компрессора и проходит через внешний глушитель в маслоотделитель, который является верхней частью сосуда. Он входит в верхнюю часть сепаратора, где удаляется масло, а затем поступает в нижнюю часть сосуда, где газ конденсируется и переохлаждается. Один сосуд используется для обслуживания обоих контуров хладагента. Имеется центральная трубная решетка, которая разделяет два контура хладагента. Трубы имеют диаметр 3/4" или 1", медные, с улучшенной поверхностью внутри и снаружи. Имеется только один водяной контур с двумя проходами воды.
В блоках с воздушным охлаждением маслоотделитель представляет собой сосуд под давлением, который установлен под наружными вертикальными змеевиками конденсатора. Нагнетаемый газ поступает в верхнюю часть сепаратора, где большая часть масла отделяется и стекает вниз. Затем газ проходит через сетчатый экран, где оставшееся масло отделяется и стекает вниз.
Микропроцессор управляет EXD через модуль управления EXV. EXD может быть либо EXV, либо экономайзером. Внутри обоих этих устройств находится линейный шаговый двигатель привода. Жидкий хладагент под высоким давлением поступает в клапан через нижнюю часть. Внутри узла отверстия расположены ряды калиброванных прорезей. Когда хладагент проходит через отверстие, давление падает, и хладагент переходит в двухфазное состояние (жидкость и пар). Для управления потоком хладагента в различных рабочих условиях гильза перемещается вверх и вниз по отверстию, тем самым изменяя эффективную площадь потока расширительного устройства. Гильза перемещается линейным шаговым двигателем. Шаговый двигатель перемещается с шагом и управляется непосредственно модулем процессора. Когда шаговый двигатель вращается, движение передается в линейное движение с помощью ходового винта. С помощью шагового двигателя и ходовых винтов получается 1500 дискретных шагов движения. Большое количество шагов и длинный ход обеспечивают очень точное управление потоком хладагента. Каждый контур имеет датчик уровня жидкости, установленный вертикально в верхней части корпуса охладителя. Датчик уровня состоит из небольшого электрического нагревателя сопротивления и трех термисторов, соединенных последовательно и расположенных на разной высоте внутри корпуса скважины. Нагреватель сконструирован таким образом, что термисторы показывают примерно 93,3°C в сухом воздухе. Когда уровень хладагента поднимается в охладителе, сопротивление ближайшего термистора(ов) сильно изменяется. Эта большая разница в сопротивлении позволяет системе управления точно поддерживать заданный уровень. Датчик уровня контролирует уровень жидкого хладагента в охладителе и отправляет эту информацию в PSIO-1. При первоначальном запуске положение EXV равно нулю. После этого микропроцессор точно отслеживает положение клапана, чтобы использовать эту информацию в качестве входных данных для других функций управления. Он делает это, инициализируя EXV при запуске. Процессор посылает достаточное количество закрывающих импульсов на клапан, чтобы переместить его из полностью открытого в полностью закрытое состояние, а затем сбрасывает счетчик положения на ноль. С этого момента и до инициализации процессор подсчитывает общее количество открытых и закрытых шагов, которые он отправил на каждый клапан.
Экономайзеры устанавливаются на 30HXC 190, 285 и 375 и 30GX 182, 267 и 358.
Экономайзер улучшает как производительность, так и эффективность чиллера, а также обеспечивает охлаждение двигателя компрессора. Внутри экономайзера находятся как линейный шаговый двигатель EXV, так и поплавковый клапан. EXV управляется PIC для поддержания желаемого уровня жидкости в охладителе (как это делается для чиллеров без экономайзера). Поплавковый клапан поддерживает уровень жидкости в нижней части экономайзера. Жидкий хладагент подается из конденсатора в нижнюю часть экономайзера. Когда хладагент проходит через EXV, его давление снижается до промежуточного уровня около 500 кПа. Это давление поддерживается внутри корпуса экономайзера. Затем хладагент проходит через поплавковый клапан, его давление еще больше снижается до значения, немного превышающего давление в охладителе. Повышение производительности достигается, когда часть хладагента, проходящего через EXV, испаряется, дополнительно переохлаждая жидкость, которая поддерживается в нижней части экономайзера. Это увеличение переохлаждения обеспечивает дополнительную производительность. Поскольку для этого не требуется дополнительная мощность, эффективность машины также повышается. Пар, который испаряется, поднимается в экономайзер, откуда он поступает в компрессор и используется по мере необходимости для обеспечения охлаждения двигателя. После прохождения над обмотками двигателя хладагент повторно входит в цикл через промежуточный порт в цикле сжатия.
В винтовых чиллерах 30GX/HXC используется один внешний масляный насос предварительной смазки на контур. Этот насос работает как часть последовательности запуска.
ВНИМАНИЕ:
Рабочая температура змеевика может достигать 80°C. В определенных временных условиях (особенно во время запуска при низкой внешней температуре или низкой температуре контура конденсатора) масляный насос может быть повторно активирован.
На установках 30GX насосы крепятся к базовым направляющим со стороны маслоотделителя установки. На установках 30HXC насосы крепятся к кронштейну на конденсаторах. Когда требуется запустить контур, элементы управления сначала включают масляный насос, чтобы компрессор запускался с правильной смазкой. Если насос создал достаточное давление масла, компрессору будет разрешено запуститься. После запуска компрессора масляный насос будет выключен. Если насос не смог создать достаточное давление масла, система управления сгенерирует сигнал тревоги.
Температура обмоток двигателя компрессора контролируется до оптимальной заданной точки. Система управления выполняет это, циклически переключая электромагнитный клапан охлаждения двигателя, чтобы при необходимости жидкий хладагент протекал через обмотки двигателя. На установках, оснащенных экономайзерами, газ мгновенного испарения выходит из верхней части экономайзера и постоянно поступает к обмоткам двигателя. Весь хладагент, используемый для охлаждения двигателя, повторно поступает в роторы через порт, расположенный посередине цикла сжатия, и сжимается до давления нагнетания.
В установках используются термисторы (включая два термистора температуры двигателя) и два термистора уровня, а также датчики давления для контроля и управления работой системы.
Выходящая жидкость из испарителя
Эта температура используется для измерения температуры выходящей жидкости из испарителя (вода или рассол). Температура используется для контроля температуры выходящей жидкости и для защиты от замерзания охладителя. Он расположен в сопле жидкости испарителя.
Входящая жидкость в испаритель
Этот датчик используется для измерения температуры входящей жидкости в испаритель. Он расположен во входящем сопле испарителя. Он используется для обеспечения автоматической температурной компенсации для контроля температуры выходящей жидкости с компенсацией входящей жидкости.
Температура нагнетаемого газа (контуры A и B)
Этот датчик используется для измерения температуры нагнетаемого газа и контроля перегрева температуры нагнетания. Он расположен на нагнетательной трубе каждого контура (30HXC) или на верхней части маслоотделителя (30GX).
ВНИМАНИЕ: Нет термостатической гильзы.
Температура двигателя
Модуль защиты компрессора (CPM) контролирует температуру двигателя. Клеммы термистора расположены в распределительной коробке компрессора.
Уровень жидкости в испарителе (контуры A и B)
Термистор уровня жидкости в испарителе используется для обеспечения оптимизированного управления потоком в испарителе. Он установлен в верхней части испарителя.
Входящая жидкость в конденсатор (30HXC)
Этот датчик используется для измерения температуры жидкости, входящей в конденсаторы с водяным охлаждением. Он расположен в общей линии жидкости, входящей в конденсаторы (устанавливается на месте). На тепловых машинах он используется подпрограммой управления производительностью. На конденсаторах с водяным охлаждением он используется только для контроля температуры жидкости конденсатора.
Выходящая жидкость из конденсатора (опционально на 30HXC)
Этот датчик используется для измерения температуры жидкости, выходящей из конденсаторов с водяным охлаждением. Он расположен в общей линии жидкости, выходящей из конденсаторов (устанавливается на месте). На тепловых машинах он используется подпрограммой управления производительностью. На конденсаторах с водяным охлаждением он используется только для контроля температуры жидкости конденсатора.

GX082/102

GX112/132

GX152/162

GX182

GX207/227

GX247/267

GX298

GX328/358
Эти установки предназначены для использования только с R-134a.
НЕ ИСПОЛЬЗУЙТЕ НИКАКОЙ ДРУГОЙ хладагент в этих установках.
При добавлении или удалении хладагента постоянно прокачивайте воду через конденсатор (HX) и охладитель, чтобы предотвратить замерзание. Повреждение от замерзания считается неправильным использованием и может привести к аннулированию гарантии Carrier.
НЕ ПЕРЕЗАПРАВЛЯЙТЕ систему. Перезаправка приводит к повышению давления нагнетания с увеличением расхода охлаждающей жидкости, возможному повреждению компрессора и увеличению потребления энергии.
ПРИМЕЧАНИЕ
Чтобы проверить низкий уровень хладагента в 30HXC, необходимо учитывать несколько факторов. Мигающее смотровое стекло жидкостной линии не обязательно является признаком недостаточного уровня хладагента. Существует множество условий работы системы, при которых мигающее смотровое стекло возникает при нормальной работе. Дозирующее устройство 30HXC предназначено для правильной работы в этих условиях.
ПРИМЕЧАНИЕ
Мигающее смотровое стекло жидкостной линии при условиях работы, отличных от указанных выше, не обязательно является признаком низкого уровня хладагента.
Эти температуры используются для измерения температуры в помещении или температуры наружного воздуха соответственно для управления сбросом на основе параметров сброса по температуре наружного воздуха или температуре в помещении.
Давление нагнетания (контуры A и B)
Этот вход используется для измерения давления на высокой стороне каждого контура установки.
Он используется для предоставления давления для замены манометра давления нагнетания и для управления давлением в головке.
Давление всасывания (контуры A и B)
Этот вход используется для измерения давления на низкой стороне установки. Он используется для предоставления давления для замены манометра давления всасывания.
Давление масла (каждый компрессор)
Этот вход используется для измерения давления масла каждого компрессора установки. Он расположен на порту давления масла каждого компрессора.
Давление экономайзера (контуры A и B)
Этот вход используется для контроля перепада давления масла, подаваемого на компрессор.
Не добавляйте масло в каком-либо другом месте, так как это может привести к неправильной работе установки.
При перекачке хладагента в накопитель, масло может быть перенесено вместе с ним, когда установка не работает. Повторно используйте в первую очередь перекаченное количество хладагента. После слива масла, дозаправьте только слитое количество (избыточное количество масла может ухудшить правильную работу установки).
Встроенный масляный фильтр в винтовом компрессоре 06N предназначен для обеспечения высокого уровня фильтрации (3 µ), необходимого для длительного срока службы подшипников. Поскольку чистота системы имеет решающее значение для надежной работы системы, в масляной линии на выходе маслоотделителя также имеется предварительный фильтр (7 µ).
Номер детали сменного встроенного масляного фильтра:
Номер детали Carrier (включая фильтр и уплотнительное кольцо): 06NA 660016S
Фильтр следует проверять после первых 500 часов работы и каждые последующие 2000 часов. Фильтр следует заменять в любое время, когда перепад давления на фильтре превышает 2,1 бар.
Падение давления на фильтре можно определить, измерив давление на сервисном порту фильтра и порту давления масла. Разница между этими двумя давлениями будет падением давления на фильтре, обратном клапане и электромагнитном клапане. Падение давления на обратном клапане и электромагнитном клапане составляет примерно 0,4 бар, которое следует вычесть из двух измерений давления масла, чтобы получить падение давления на масляном фильтре. Падение давления на масляном фильтре следует проверять после каждого случая отключения компрессора из-за срабатывания защиты по низкому давлению масла.
Правильное вращение компрессора является одним из наиболее важных факторов применения. Обратное вращение, даже в течение очень короткого времени, повреждает компрессор.
Схема защиты от обратного вращения должна быть способна определять направление вращения и останавливать компрессор в течение 300 миллисекунд. Обратное вращение наиболее вероятно происходит всякий раз, когда нарушается проводка к клеммам компрессора.
Чтобы свести к минимуму возможность обратного вращения, необходимо выполнить следующую процедуру. Переподключите силовые кабели к клеммной колодке компрессора так, как они были подключены изначально.
Для замены компрессора в комплект поставки компрессора входит реле низкого давления. Это реле низкого давления следует временно установить в качестве жесткой защиты на части компрессора с высоким давлением. Целью этого реле является защита компрессора от любых ошибок проводки на клеммной колодке компрессора. Электрический контакт реле должен быть подключен последовательно с реле высокого давления. Реле останется на месте до тех пор, пока компрессор не будет запущен и не будет проверено направление вращения; в этот момент реле будет удалено.
Реле, которое было выбрано для обнаружения обратного вращения, имеет номер детали Carrier HK01CB001. Оно доступно как часть "Комплекта для установки компрессора" (номер детали 06NA 660 013). Это реле размыкает контакты, когда давление падает ниже 50 мм вакуума. Реле имеет ручной тип сброса, который можно сбросить после того, как давление снова поднимется выше 70 кПа. Крайне важно, чтобы реле было ручного типа сброса, чтобы предотвратить короткие циклы компрессора в обратном направлении.
Выполните следующие действия для диагностики и устранения проблем с EXD/экономайзером.
На установках 30HXC/GX с экономайзерами убедитесь, что клапан для трубки барботера (нижняя часть экономайзера) открыт. Сначала проверьте работу двигателя EXD (см. процедуру в Controls IOM). Вы должны почувствовать движение привода, положив руку на корпус EXD или экономайзера (привод расположен примерно на одной второй - двух третях пути вверх от нижней части корпуса экономайзера). Вы должны почувствовать сильный стук от привода, когда он достигнет верхней точки своего хода (его можно услышать, если вокруг относительно тихо). Привод должен стучать, когда он достигнет нижней точки своего хода. Если есть основания полагать, что клапан работает неправильно, обратитесь в сервисный отдел Carrier для дальнейших проверок:


Утверждение системы экологического менеджмента
Номер заказа: 13173-76, 03 1999 - Заменяет номер: 13173-76, март 1998 г.
Производитель оставляет за собой право изменять любые характеристики продукта без предварительного уведомления.
Производитель: Carrier s.a., Montluel, France.
Напечатано в Нидерландах на бумаге, не содержащей хлора.
