
Përpara fillimit fillestar të njësisë 30HXC dhe 30GX, ata që janë të përfshirë në fillimin, funksionimin dhe mirëmbajtjen duhet të jenë plotësisht të njohur me këto udhëzime dhe të dhëna të tjera të nevojshme të punës. Ky libër ofron një përmbledhje në mënyrë që ju të njiheni me sistemin e kontrollit përpara se të kryeni procedurat e fillimit. Procedurat në këtë manual janë rregulluar në sekuencën e kërkuar për fillimin dhe funksionimin e duhur të makinës.
Ftohësit e lëngshëm 30HXC dhe 30GX janë projektuar për të ofruar shërbim të sigurt dhe të besueshëm kur funksionojnë brenda specifikimeve të projektimit. Kur përdorni këtë pajisje, përdorni gjykim të mirë dhe masa paraprake sigurie për të shmangur dëmtimin e pajisjeve dhe pronës ose lëndimin e personelit.
Sigurohuni që të kuptoni dhe të ndiqni procedurat dhe masat paraprake të sigurisë që përmbahen në udhëzimet e makinës, si dhe ato të listuara në këtë udhëzues.
MOS I SHKARKONI valvulat e sigurisë së ftohësit brenda një ndërtese. Dalja nga valvula e sigurisë duhet të shkarkohet jashtë. Grumbullimi i ftohësit në një hapësirë të mbyllur mund të zhvendosë oksigjenin dhe të shkaktojë asfiksi ose shpërthime.
SIGURONI ventilim të mjaftueshëm, veçanërisht për hapësirat e mbyllura dhe me hapësirë të ulët sipër. Thithja e përqendrimeve të larta të avullit është e dëmshme dhe mund të shkaktojë parregullsi të zemrës, humbje të vetëdijes ose vdekje. Avulli është më i rëndë se ajri dhe zvogëlon sasinë e oksigjenit të disponueshëm për frymëmarrje. Produkti shkakton acarim të syve dhe lëkurës. Produktet e dekompozimit janë të rrezikshme.
MOS PËRDORNI OKSIGJEN për të pastruar linjat ose për të ushtruar presion në një makinë për çfarëdo qëllimi. Gazi i oksigjenit reagon dhunshëm me vajin, yndyrën dhe substancat e tjera të zakonshme.
ASNJËHERË MOS E KALONI presionin e specifikuar të provës, VERIFIKONI presionin e lejuar të provës duke kontrolluar literaturën e udhëzimeve dhe presionet e projektimit në pllakën e emrit të pajisjes.
MOS PËRDORNI ajër për testimin e rrjedhjeve. Përdorni vetëm ftohës ose azot të thatë.
MOS MBYLLNI ME VALVUL asnjë pajisje sigurie.
SIGUROHUNI që të gjitha pajisjet e shkarkimit të presionit të jenë instaluar siç duhet përpara se të përdorni ndonjë makinë.
MOS LASHONI APO PRISNI ME FLAKË ndonjë linjë ose enë ftohësi derisa të gjithë ftohësi (lëng dhe avull) të jetë hequr nga ftohësi. Gjurmët e avullit duhet të zhvendosen me azot të thatë ajri dhe zona e punës duhet të jetë e ajrosur mirë. Ftohësi në kontakt me një flakë të hapur prodhon gazra toksike.
MOS punoni në pajisje të energjizuara nëse nuk jeni një elektricist i aftë.
MOS PUNONI në komponentët elektrikë, duke përfshirë panelet e kontrollit, çelësat, rele etj., derisa të jeni të sigurt se E GJITHË FUQIA ËSHTË E FIKUR dhe tensioni i mbetur mund të rrjedhë nga kondensatorët ose komponentët e gjendjes së ngurtë.
MBYLLNI HAPUR DHE VENDOSNI ETIKETË në qarqet elektrike gjatë servisimit. NËSE PUNA NDËRPRITET, kontrolloni që të gjitha qarqet të jenë të çaktivizuara përpara se të rifilloni punën.
MOS e sifononi ftohësin.
SHMANGNI DERDHJEN e ftohësit të lëngshëm në lëkurë ose futjen e tij në sy. PËRDORNI SYZE SIGURIE. Lani çdo derdhje nga lëkura me ujë dhe sapun. Nëse ftohësi i lëngshëm hyn në sy,
SHPËRLAJINI MENJËHERË SYTË me ujë dhe konsultohuni me një mjek.
ASNJËHERË MOS APLIKONI një flakë të hapur ose avull të gjallë në enën e ftohësit. Mund të rezultojë mbipresion i rrezikshëm. Nëse është e nevojshme të ngrohni ftohësin, përdorni vetëm ujë të ngrohtë.
MOS I RIPËRDORNI cilindrat e disponueshëm (që nuk kthehen) ose mos u përpiqni t'i rimbushni ato. ËSHTË E RREZIKSHME DHE E PALIGJSHME. Kur cilindrat zbrazen, evakuoni presionin e mbetur të gazit, lironi jakën dhe zhvidhosni dhe hidhni bishtin e valvulës. MOS I DIGJNI.
KONTROLLONI LLOJIN E FTOHËSIT përpara se të shtoni ftohës në makinë. Futja e ftohësit të gabuar mund të shkaktojë dëmtim ose mosfunksionim të kësaj makine.
MOS U PËRPJEKNI TË HIQNI pajisje, komponentë, etj., ndërsa makina është nën presion ose ndërsa makina po punon. Sigurohuni që presioni të jetë në 0 kPa përpara se të prisni lidhjen e ftohësit.
INSPEKTONI ME KUJDES të gjitha pajisjet e sigurisë, TË PAKTËN NJË HERË NË VIT. Nëse makina funksionon në një atmosferë gërryese, inspektoni pajisjet në intervale më të shpeshta.
MOS U PËRPJEKNI TË RIPARONI APO RIKONDICIONONI ndonjë pajisje sigurie kur gjendet gërryerje ose grumbullim i materialit të huaj (ndryshk, papastërti, skorje, etj.) brenda trupit ose mekanizmit të valvulës. Zëvendësoni pajisjen.
MOS I INSTALONI pajisjet e sigurisë në seri ose prapa.
MOS SHKELNI mbi linjat e ftohësit. Linjat e thyera mund të lëvizin dhe të lëshojnë ftohës, duke shkaktuar lëndime personale.
MOS u ngjitni mbi një makinë. Përdorni platformë ose skenë.
PËRDORNI PAJISJE MEKANIKE (vinç, ashensor, etj.) për të ngritur ose lëvizur komponentët e rëndë. Edhe nëse komponentët janë të lehtë, përdorni pajisje mekanike kur ka rrezik rrëshqitjeje ose humbjeje të ekuilibrit.
JIENI TË VËMENDSHËM se disa rregullime automatike të fillimit MUND TË ANGAZHOHEN VENTILATORIN E KULLËS, APO POMPAT. Hapni shkëputësin përpara ventilatorëve të kullës, ose pompave.
PËRDORNI vetëm pjesë riparimi ose zëvendësimi që plotësojnë kërkesat e kodit të pajisjes origjinale.
MOS I SHKARKONI APO ZBRAZNI kutitë e ujit që përmbajnë kripëra industriale, pa lejen e një organi kompetent.
MOS I LIRONI bulonat e kutisë së ujit derisa kutia e ujit të jetë zbrazur plotësisht.
MOS E LIRONI një dado të gjëndrës së paketimit përpara se të kontrolloni që dadoja të ketë një angazhim pozitiv të filetos.
INSPEKTONI PERIODIKISHT të gjitha valvulat, pajisjet dhe tubacionet për gërryerje, ndryshk, rrjedhje ose dëmtim.
SIGURONI NJË lidhje KULLUESE në linjën e ventilimit pranë çdo pajisjeje sigurie për të parandaluar grumbullimin e kondensatës ose ujit të shiut.
30HXC080
30HXC090
30HXC100
30HXC110

Hyrja e ujit
Dalja e ujit
Furnizimi me energji
kg: pesha totale e funksionimit
| A mm | B mm | C mm | D mm | E mm | kg | |
| 30HXC080 30HXC090 30HXC100 |
2705 | 950 | 1850 | 2360 | 1000 | 2447 2462 2504 |
| 30HXC110 | 2705 | 950 | 1900 | 2360 | 1000 | 2650 |
| 30HXC120 30HXC130 30HXC140 30HXC155 |
3535 | 950 | 1875 | 3220 | 1000 | 2846 2861 2956 2971 |
| 30HXC175 30HXC190 |
3550 | 950 | 2000 | 3220 | 1000 | 3283 3438 |
SHËNIM: Referojuni vizatimeve të certifikuara dimensionale të furnizuara me njësinë, kur projektoni një instalim.

Hyrja e ujit
Dalja e ujit
Furnizimi me energji
kg: pesha totale e funksionimit
| A mm | B mm | C mm | D mm | E mm | kg | |
| 30HXC200 | 3975 | 980 | 2035 | 3620 | 1000 | 4090 |
| 30HXC230 30HXC260 30HXC285 |
3995 | 980 | 2116 | 3620 | 1000 | 4705 4815 4985 |
| 30HXC310 30HXC345 30HXC375 |
4490 | 980 | 2163 | 4120 | 1000 | 5760 5870 6105 |
SHËNIM: Referojuni vizatimeve të certifikuara dimensionale të furnizuara me njësinë, kur projektoni një instalim.
30GX-082
30GX-092
30GX-102
30GX-112
30GX-122
30GX-132
30GX-152
30GX-162
30GX-182


Hyrja e ujit
Dalja e ujit
Furnizimi me energji
Dalja e ajrit - mos pengoni
kg: pesha totale e funksionimit
| A mm | B mm | kg | |
| 30GX082 30GX092 30GX102 |
2970 | 2215 | 3116 3157 3172 |
| 30GX112 30GX122 30GX132 |
3427 | 2045 | 3515 3531 3633 |
| 30GX152 30GX162 |
4342 | 2835 | 3920 3936 |
| 30GX182 | 5996 | 1820 | 4853 |


Shënime:
SHËNIM: Referojuni vizatimeve të certifikuara dimensionale të furnizuara me njësinë, kur projektoni një instalim.
30GX-207
30GX-227
30GX-247
30GX-267
30GX-298
30GX-328
30GX-358

Hyrja e ujit
Dalja e ujit
Furnizimi me energji
Dalja e ajrit - mos pengoni
kg: pesha totale e funksionimit
| A mm | B mm | kg | |
| 30GX207 30GX227 |
5996 | 2895 | 5540 5570 |
| 30GX247 30GX267 |
6911 | 2470 | 6134 6365 |
| 30GX298 | 7826 | 2220 | 7354 |
| 30GX328 30GX358 |
8741 | 1250 | 7918 8124 |


Shënime:
SHËNIM: Referojuni vizatimeve të certifikuara dimensionale të furnizuara me njësinë, kur projektoni një instalim.
| 30HXC | 080 | 090 | 100 | 110 | 120 | 130 | 140 | 155 | 175 | 190 | 200 | 230 | 260 | 285 | 310 | 345 | 375 | |
| Kapaciteti neto i ftohjes | kW | 292 | 321 | 352 | 389 | 426 | 464 | 514 | 550 | 607 | 663 | 716 | 822 | 918 | 996 | 1119 | 1222 | 1326 |
| Pesha operative | kg | 2447 | 2462 | 2504 | 2650 | 2846 | 2861 | 2956 | 2971 | 3283 | 3438 | 4090 | 4705 | 4815 | 4985 | 5760 | 5870 | 6105 |
| Ftohësi Qarku A/B |
HFC-134a | |||||||||||||||||
| kg | 39/36 | 39/36 | 37/32 | 38/38 | 57/55 | 59/50 | 56/50 | 59/52 | 58/61 | 60/70 | 110/58 | 118/63 | 120/75 | 120/75 | 108/110 | 110/110 | 110/120 | |
| Vaj Qarku A/B |
Vaj poliolester CARRIER SPEC: PP 47-32 | |||||||||||||||||
| l | 15/15 | 15/15 | 15/15 | 15/15 | 15/15 | 15/15 | 15/15 | 15/15 | 15/15 | 15/15 | 30/15 | 30/15 | 30/15 | 30/15 | 30/30 | 30/30 | 30/30 | |
| Kompresorët | Hermetik me dy vidha Power3 | |||||||||||||||||
| Qarku A, madhësia nominale për kompresor** | 39 | 46 | 46 | 56 | 56 | 66 | 80 | 80 | 80 | 80+ | 66/56 | 80/56 | 80/80 | 80+/80+ | 80/66 | 80/80 | 80+/80+ | |
| Qarku B, madhësia nominale për kompresor** | 39 | 39 | 46 | 46 | 56 | 56 | 56 | 66 | 80 | 80+ | 66 | 80 | 80 | 80+ | 80/66 | 80/80 | 80+/80+ | |
| Lloji i kontrollit | Kontroll PRO-DIALOG Plus | |||||||||||||||||
| Numri i hapave të kapacitetit | 6 | 6 | 6 | 6 | 6 | 6 | 6 | 6 | 6 | 6 | 8 | 8 | 8 | 8 | 10 | 10 | 10 | |
| Kapaciteti minimal | % | 19 | 19 | 21 | 19 | 21 | 19 | 17 | 19 | 21 | 21 | 14 | 14 | 14 | 14 | 10 | 10 | 10 |
| Avulluesi | Lloji guaskë dhe tub, me tuba bakri me fileto të brendshme | |||||||||||||||||
| Vëllimi neto i ujit | l | 65 | 65 | 73 | 87 | 81 | 81 | 91 | 91 | 109 | 109 | 140 | 165 | 181 | 181 | 203 | 229 | 229 |
| Lidhjet e ujit | Flanxhë e sheshtë e furnizuar nga fabrika, për t'u salduar në vend | |||||||||||||||||
| Hyrja dhe dalja | in. | 4 | 4 | 4 | 5 | 5 | 5 | 5 | 5 | 5 | 5 | 6 | 6 | 6 | 6 | 8 | 8 | 8 |
| Drenazhi dhe ajrimi (NPT) | in. | 3/8 | 3/8 | 3/8 | 3/8 | 3/8 | 3/8 | 3/8 | 3/8 | 3/8 | 3/8 | 3/8 | 3/8 | 3/8 | 3/8 | 3/8 | 3/8 | 3/8 |
| Presioni maksimal operativ nga ana e ujit | kPa | 1000 | 1000 | 1000 | 1000 | 1000 | 1000 | 1000 | 1000 | 1000 | 1000 | 1000 | 1000 | 1000 | 1000 | 1000 | 1000 | 1000 |
| Kondensatorët | Lloji guaskë dhe tub, me tuba bakri me fileto të brendshme | |||||||||||||||||
| Vëllimi neto i ujit | l | 58 | 58 | 58 | 58 | 92 | 92 | 110 | 110 | 132 | 132 | 162 | 208 | 208 | 208 | 251 | 251 | 251 |
| Lidhjet e ujit | Flanxhë e sheshtë e furnizuar nga fabrika, për t'u salduar në vend | |||||||||||||||||
| Hyrja dhe dalja | in. | 5 | 5 | 5 | 5 | 5 | 5 | 5 | 5 | 6 | 6 | 6 | 6 | 6 | 6 | 8 | 8 | 8 |
| Drenazhi dhe ajrimi (NPT) | in. | 3/8 | 3/8 | 3/8 | 3/8 | 3/8 | 3/8 | 3/8 | 3/8 | 3/8 | 3/8 | 3/8 | 3/8 | 3/8 | 3/8 | 3/8 | 3/8 | 3/8 |
| Presioni maksimal operativ nga ana e ujit | kPa | 1000 | 1000 | 1000 | 1000 | 1000 | 1000 | 1000 | 1000 | 1000 | 1000 | 1000 | 1000 | 1000 | 1000 | 1000 | 1000 | 1000 |
* Kushtet e standardizuara Eurovent: temperaturat e ujit në hyrje/dalje të avulluesit = 12°C/7°C, temperaturat e ujit në hyrje/dalje të kondensatorit = 30°C/35°C Kapaciteti neto i ftohjes: Kapaciteti bruto i ftohjes minus nxehtësinë e pompës së ujit kundër rënies së presionit të brendshëm të avulluesit. ** Madhësia e kompresorit korrespondon me kapacitetin nominal në ton (1 ton = 3.517 kW).
| 30HXC | 080 | 090 | 100 | 110 | 120 | 130 | 140 | 155 | 175 | 190 | 200 | 230 | 260 | 285 | 310 | 345 | 375 | |
| Qarku i energjisë (Power circuit) | ||||||||||||||||||
| Furnizimi nominal me energji* (Nominal power supply*) | V-ph-Hz | 400-3-50 | ||||||||||||||||
| Gama e tensionit (Voltage range) | V | 360-440 | ||||||||||||||||
| Furnizimi i qarkut të kontrollit (Control circuit supply) | Qarku i kontrollit furnizohet nëpërmjet transformatorit të instaluar në fabrikë (The control circuit is supplied via the factory-installed transformer) | |||||||||||||||||
| Hyrja nominale e energjisë* (Nominal power input*) | kW | 59 | 67 | 74 | 83 | 88 | 99 | 112 | 123 | 135 | 146 | 156 | 179 | 201 | 219 | 245 | 274 | 298 |
| Rryma nominale e tërhequr* (Nominal current drawn*) | A | 98 | 111 | 124 | 139 | 148 | 166 | 186 | 204 | 226 | 242 | 259 | 291 | 335 | 367 | 408 | 456 | 498 |
| Hyrja maksimale e energjisë** (Max. power input**) | kW | 76 | 83 | 91 | 101 | 111 | 121 | 135 | 145 | 158 | 181 | 187 | 214 | 237 | 272 | 290 | 316 | 362 |
| Qarku A (Circuit A) | kW | - | - | - | - | - | - | - | - | - | - | 121 | 135 | 158 | 181 | 145 | 158 | 181 |
| Qarku B (Circuit B) | kW | - | - | - | - | - | - | - | - | - | - | 66 | 79 | 79 | 91 | 145 | 158 | 181 |
| Kosinusi phi, njësi në ngarkesë të plotë (Cosine phi, unit at full load) | 0.87 | 0.87 | 0.87 | 0.87 | 0.87 | 0.87 | 0.87 | 0.87 | 0.87 | 0.87 | 0.87 | 0.87 | 0.87 | 0.87 | 0.87 | 0.87 | 0.87 | |
| Rryma maksimale e tërhequr (Un - 10%)*** (Max. current drawn (Un - 10%)***) | A | 138 | 152 | 166 | 184 | 202 | 221 | 245 | 264 | 288 | 330 | 341 | 389 | 432 | 495 | 528 | 576 | 660 |
| Qarku A (Circuit A) | A | - | - | - | - | - | - | - | - | - | - | 221 | 245 | 288 | 330 | 264 | 288 | 330 |
| Qarku B (Circuit B) | A | - | - | - | - | - | - | - | - | - | - | 120 | 144 | 144 | 165 | 264 | 288 | 330 |
| Rryma maksimale e tërhequr (Un)*** (Maximum current drawn (Un)***) | A | 125 | 138 | 151 | 167 | 184 | 201 | 223 | 240 | 262 | 300 | 310 | 354 | 393 | 450 | 480 | 524 | 600 |
| Qarku A (Circuit A) | A | - | - | - | - | - | - | - | - | - | - | 201 | 223 | 262 | 300 | 240 | 262 | 300 |
| Qarku B (Circuit B) | A | - | - | - | - | - | - | - | - | - | - | 109 | 131 | 131 | 150 | 240 | 262 | 300 |
| Rryma maksimale e startimit, njësi standarde (Un)**** (Max. starting current, std. unit (Un)****) | A | 172 | 197 | 209 | 235 | 252 | 283 | 318 | 335 | 357 | 420 | 806 | 938 | 977 | 1156 | 1064 | 1108 | 1306 |
| Qarku A (Circuit A) | A | - | - | - | - | - | - | - | - | - | - | 697 | 807 | 846 | 1006 | 824 | 846 | 1006 |
| Qarku B (Circuit B) | A | - | - | - | - | - | - | - | - | - | - | 605 | 715 | 715 | 856 | 824 | 846 | 1006 |
| Raporti maksimal i rrymës së startimit/rrymës maksimale të tërheqjes, njësi (Max. starting current/max. current draw ratio, unit) | 1.37 | 1.42 | 1.39 | 1.41 | 1.37 | 1.41 | 1.43 | 1.40 | 1.36 | 1.40 | 2.60 | 2.65 | 2.49 | 2.57 | 2.22 | 2.12 | 2.18 | |
| Raporti maksimal i rrymës së startimit/rrymës maksimale të tërheqjes, qarku A (Max. starting current/max. current draw ratio, circuit A) | - | - | - | - | - | - | - | - | - | - | 3.47 | 3.62 | 3.23 | 3.35 | 3.43 | 3.23 | 3.35 | |
| Raporti maksimal i rrymës së startimit/rrymës maksimale të tërheqjes, qarku B (Max. starting current/max. current draw ratio, circuit B) | - | - | - | - | - | - | - | - | - | - | 5.55 | 5.46 | 5.46 | 5.71 | 3.43 | 3.23 | 3.35 | |
| Rryma maksimale e startimit - startim me rrymë të reduktuar (Un) **** (Max. starting current - reduced current start (Un) ****) | A | std. | std. | std. | std. | std. | std. | std. | std. | std. | std. | 601 | 643 | 682 | 760 | 769 | 813 | 910 |
| Qarku A (Circuit A) | A | std. | std. | std. | std. | std. | std. | std. | std. | std. | std. | 492 | 512 | 551 | 610 | 529 | 551 | 610 |
| Qarku B (Circuit B) | A | std. | std. | std. | std. | std. | std. | std. | std. | std. | std. | 330 | 370 | 370 | 385 | 529 | 551 | 610 |
| Rryma maksimale e startimit - startim me rrymë të reduktuar/raporti maksimal i rrymës së tërheqjes, njësi (Max.starting current - red. current start/ max. current draw ratio, unit) | std. | std. | std. | std. | std. | std. | std. | std. | std. | std. | 1.94 | 1.82 | 1.74 | 1.69 | 1.60 | 1.55 | 1.52 | |
| Qarku A (Circuit A) | std. | std. | std. | std. | std. | std. | std. | std. | std. | std. | 2.45 | 2.30 | 2.10 | 2.03 | 2.20 | 2.10 | 2.03 | |
| Qarku B (Circuit B) | std. | std. | std. | std. | std. | std. | std. | std. | std. | std. | 3.03 | 2.83 | 2.83 | 2.57 | 2.20 | 2.10 | 2.03 | |
| Rryma trefazore e mbajtjes së qarkut të shkurtër (Three-phase short circuit holding current) | kA | 25 | 25 | 25 | 25 | 25 | 25 | 25 | 25 | 25 | 25 | N/A | N/A | N/A | N/A | N/A | N/A | N/A |
| Qarku A (Circuit A) | kA | - | - | - | - | - | - | - | - | - | - | 25 | 25 | 25 | 25 | 25 | 25 | 25 |
| Qarku B (Circuit B) | kA | - | - | - | - | - | - | - | - | - | - | 15 | 15 | 15 | 15 | 25 | 25 | 25 |
| Kapaciteti gatishmërisë i klientit, njësi ose qarku A, për lidhjet e pompës së ujit të avulluesit† (Customer standby capacity, unit or circ. A, for evaporatorwater pump connections†) | kW | 8 | 8 | 8 | 11 | 11 | 11 | 15 | 15 | 15 | 15 | 15 | 18 | 18 | 30 | 30 | 30 | 30 |
* Kushtet standarde Eurovent: Temperatura e ujit që hyn/del nga avulluesi 12°C dhe 7°C. Temperatura e ujit që hyn/del nga kondensatori 30°C/35°C.
** Hyrja e energjisë, kompresori, në kufijtë e funksionimit të njësisë (temperatura e ujit që hyn/del nga avulluesi = 15°C/10°C, temperatura e ujit që hyn/del nga kondensatori = 40°C/45°C) dhe një tension nominal prej 400 V (të dhënat e dhëna në pllakën e emrit të njësisë).
*** Rryma maksimale e funksionimit të njësisë në hyrjen maksimale të energjisë së njësisë.
**** Rryma maksimale e menjëhershme e startimit (rryma maksimale e funksionimit të kompresorit(ëve) më të vogël + rryma e bllokuar e rotorit ose rryma e reduktuar e startimit të kompresorit më të madh)
† Hyrjet aktuale dhe të energjisë nuk përfshihen në vlerat e mësipërme.
N/A Nuk disponohet (Not available)
| Referenca (Reference) | Madhësia (Size) | I nom. | MHA | LRA | LRA (Y) | LRA (S) 1 cp. | LRA (S) 2 cp. |
| 06NW2146S7N | 39 | 48 | 69 | 344 | 109 | 125 | - |
| 06NW2174S7N | 46 | 58 | 83 | 423 | 134 | 154 | - |
| 06NW2209S7N | 56 | 71 | 101 | 506 | 160 | 260 | 350 |
| 06NW2250S7N | 66 | 87 | 120 | 605 | 191 | 330 | 400 |
| 06NW2300S5N | 80 | 104 | 144 | 715 | 226 | 370 | 420 |
| 06NW2300S5E | 80+ | 111 | 165 | 856 | 270 | 385 | 460 |
Legjenda: (Legend:)
| 06NW | Kompresor për njësi të ftohura me ujë (Compressor for water-cooled units) |
| N | Kompresor jo i ekonomizuar (Non-economized compressor) |
| E | Kompresor i ekonomizuar (Economized compressor) |
| INOM | Tërheqja mesatare e rrymës së kompresorit në kushtet Eurovent (Average current draw of the compressor at Eurovent conditions) |
| MHA | Duhet të mbajë amper (rryma maksimale e funksionimit) në 360 V (Must hold amperes (maximum operating current) at 360 V) |
| LRA | Rryma e bllokuar e rotorit me startim nëpër linjë (Locked rotor current with across-the-line start) |
| LRA (Y) | Rryma e bllokuar e rotorit me rrymë të reduktuar (modaliteti i startimit yll/trekëndësh) (Locked rotor current at reduced current (star/delta start-up mode)) |
| LRA (S) 1 cp. | Startimi me rrymë të reduktuar me starter elektronik (kohëzgjatja e startimit 3 sekonda maks.) për një kompresor për qark (Start-up with reduced current with electronic starter (start-up duration 3 seconds max.) for one compressor per circuit) |
| LRA (S) 2 cp. | Startimi me rrymë të reduktuar me starter elektronik (kohëzgjatja e startimit 3 sekonda maks.) për dy kompresorë për qark (Start-up with reduced current with electronic starter (start-up duration 3 seconds max.) for two compressors per circuit) |
Opsionet 30HXC 150 dhe 150A
| 30HXC | 080 | 090 | 100 | 110 | 120 | 130 | 140 | 155 | 175 | 190 | 200 | 230 | 260 | 285 | 310 | 345 | 375 | |
| Qarku i energjisë | ||||||||||||||||||
| Furnizimi nominal me energji* | V-ph-Hz | 400-3-50 | ||||||||||||||||
| Gama e tensionit | V | 360-440 | ||||||||||||||||
| Furnizimi i qarkut të kontrollit | Qarku i kontrollit furnizohet nëpërmjet transformatorit të instaluar në fabrikë | |||||||||||||||||
| Fuqia maksimale hyrëse** | kW | 104 | 117 | 131 | 145 | 159 | 174 | 194 | 211 | 230 | 263 | 271 | 310 | 345 | 395 | 422 | 460 | 526 |
| Qarku A | kW | - | - | - | - | - | - | - | - | - | - | 175 | 195 | 230 | 263 | 211 | 230 | 263 |
| Qarku B | kW | - | - | - | - | - | - | - | - | - | - | 96 | 115 | 115 | 132 | 211 | 230 | 263 |
| Rryma maksimale e tërhequr (Un - 10%)*** | A | 190 | 215 | 240 | 265 | 290 | 320 | 355 | 385 | 420 | 480 | 495 | 564 | 630 | 720 | 770 | 840 | 960 |
| Qarku A | A | - | - | - | - | - | - | - | - | - | - | 320 | 355 | 420 | 480 | 385 | 420 | 480 |
| Qarku B | A | - | - | - | - | - | - | - | - | - | - | 175 | 210 | 210 | 240 | 385 | 420 | 480 |
| Rryma maksimale e tërhequr (Un)*** | A | 173 | 195 | 218 | 241 | 264 | 291 | 323 | 350 | 382 | 436 | 450 | 514 | 573 | 655 | 700 | 764 | 873 |
| Qarku A | A | - | - | - | - | - | - | - | - | - | - | 291 | 323 | 382 | 436 | 350 | 382 | 436 |
| Qarku B | A | - | - | - | - | - | - | - | - | - | - | 159 | 191 | 191 | 218 | 350 | 382 | 436 |
| Rryma maksimale e ndezjes, njësia standarde (Un)**** | A | 277 | 312 | 335 | 379 | 402 | 435 | 519 | 546 | 578 | 618 | 1251 | 1549 | 1608 | 1701 | 1735 | 1799 | 1920 |
| Qarku A | A | - | - | - | - | - | - | - | - | - | - | 1092 | 1358 | 1417 | 1483 | 1385 | 1417 | 1483 |
| Qarku B | A | - | - | - | - | - | - | - | - | - | - | 960 | 1226 | 1226 | 1265 | 1385 | 1417 | 1483 |
| Rryma maksimale e ndezjes/raporti i tërheqjes së rrymës maksimale, njësia | 1.61 | 1.60 | 1.54 | 1.57 | 1.52 | 1.49 | 1.61 | 1.56 | 1.51 | 1.42 | 2.78 | 3.02 | 2.81 | 2.60 | 2.48 | 2.36 | 2.20 | |
| Rryma maksimale e ndezjes/raporti i tërheqjes së rrymës maksimale, qarku A | - | - | - | - | - | - | - | - | - | - | 3.75 | 4.21 | 3.71 | 3.40 | 3.96 | 3.71 | 3.40 | |
| Rryma maksimale e ndezjes/raporti i tërheqjes së rrymës maksimale, qarku B | - | - | - | - | - | - | - | - | - | - | 6.03 | 6.42 | 6.42 | 5.80 | 3.96 | 3.71 | 3.40 | |
| Rryma maksimale e ndezjes - fillimi i rrymës së reduktuar (Un) **** | A | std. | std. | std. | std. | std. | std. | std. | std. | std. | std. | N/A | N/A | N/A | N/A | N/A | N/A | N/A |
| Rryma mbajtëse trefazore e qarkut të shkurtër | kA | 25 | 25 | 25 | 25 | 25 | 25 | 25 | 25 | 25 | 25 | N/A | N/A | N/A | N/A | N/A | N/A | N/A |
| Qarku A | kA | - | - | - | - | - | - | - | - | - | - | 25 | 25 | 25 | 25 | 25 | 25 | 25 |
| Qarku B | kA | - | - | - | - | - | - | - | - | - | - | 15 | 15 | 15 | 15 | 25 | 25 | 25 |
| Kapaciteti i gatishmërisë së klientit, njësia ose qarku A, për lidhjet e pompës së ujit të avulluesit† | kW | 8 | 8 | 8 | 11 | 11 | 11 | 15 | 15 | 15 | 15 | 15 | 18 | 18 | 30 | 30 | 30 | 30 |
** Fuqia hyrëse, kompresori, në kufijtë e funksionimit të njësisë (temperatura e ujit që hyn/del nga avulluesi = 15°C/10°C, temperatura e ujit që hyn/del nga kondensatori = 40°C/45°C) dhe një tension nominal prej 400 V (të dhënat jepen në pllakën e emrit të njësisë).
*** Rryma maksimale e funksionimit të njësisë në fuqinë maksimale hyrëse të njësisë.
**** Rryma maksimale e menjëhershme e ndezjes (rryma maksimale e funksionimit të kompresorit(ëve) më të vogël(t) + rryma e bllokuar e rotorit ose rryma e reduktuar e ndezjes së kompresorit më të madh)
† Hyrjet aktuale dhe të energjisë nuk përfshihen në vlerat e mësipërme.
N/A Nuk disponohet
Njësitë 30HXC 080-375 për temperatura të larta kondensimi rrjedhin drejtpërdrejt nga modelet standarde. Gama e tyre e aplikimit është e njëjtë me atë të njësive standarde, por lejon funksionimin në temperatura të ujit që del nga kondensatori deri në 63°C. Kontrolli PRO-DIALOG ofron të gjitha avantazhet e njësive standarde, plus kontrollin e temperaturës së ujit që del nga kondensatori.
Modifikimet kryesore janë:
Këto njësi janë projektuar për aplikime tradicionale për njësi të ftohura me ujë, por për temperatura më të larta të ujit që del nga kondensatori se 45°C.
Ashtu si njësitë standarde, ato janë të pajisura me sensorë të ujit që hyn dhe del nga kondensatori, të instaluar në tubacion.
Është e mundur të kontrollohet makina në daljen e ujit të kondensatorit, duke kërkuar një ndryshim të konfigurimit të fabrikës dhe përdorimin e një pajisjeje kthimi të hyrjes së ngrohjes/ftohjes.
Këto njësi janë projektuar për pompa nxehtësie ujë-ujë.
Ato janë të konfiguruara në fabrikë si pompa nxehtësie (kontrolli i ngrohjes/ftohjes si funksion i pajisjes së kthimit të largët). Kondensatori përfshin izolim termik që është identik me atë të avulluesit.
I gjithë informacioni është identik me atë të njësive standarde 30HXC, përveç paragrafëve të mëposhtëm.
Nuk ka kushte nominale për këtë lloj njësie. Përzgjedhja bëhet duke përdorur katalogun elektronik aktual.
Këto janë identike me ato të njësive standarde 30HXC. Dallimi i vetëm është në diametrin e lidhjes së instalimeve elektrike hyrëse, të përshkruara në kapitullin "Përzgjedhja e rekomanduar". Referojuni vizatimeve dimensionale për këto njësi, përpara se të vazhdoni me instalimet elektrike.
Shih tabelën e kompresorit 30GX.
Të gjitha opsionet e disponueshme për njësitë standarde 30HXC janë të pajtueshme, përveç:
| Opsioni 5, njësia e kripës | Njësi speciale |
| Opsioni 25, fillimi i butë, njësitë 30HXC 200-375 | Nuk disponohet |
Kujdes:
Nëse njësitë kanë dy mënyra të ndryshme funksionimi - njëra me temperaturë të lartë kondensimi dhe tjetra me temperaturë të ulët kondensimi - dhe kalimi bëhet me njësinë në funksionim, temperatura nuk duhet të ndryshojë më shumë se 3 K për minutë. Në rastet kur kjo nuk është e mundur, rekomandohet të kalohet nëpërmjet një çelësi ndezje/fikje të njësisë (ndezja/fikja e largët e disponueshme për njësitë standarde).
| 30GX | 082 | 092 | 102 | 112 | 122 | 132 | 152 | 162 | 182 | 207 | 227 | 247 | 267 | 298 | 328 | 358 | ||
| Kapaciteti neto i ftohjes | kW | 285 | 309 | 332 | 388 | 417 | 450 | 505 | 536 | 602 | 687 | 744 | 810 | 910 | 1003 | 1103 | 1207 | |
| Pesha e funksionimit | kg | 3116 | 3157 | 3172 | 3515 | 3531 | 3633 | 3920 | 3936 | 4853 | 5540 | 5570 | 6134 | 6365 | 7354 | 7918 | 8124 | |
| Ngarkesa e ftohësit | HFC-134a | |||||||||||||||||
| Qarku A/B | kg | 55/55 | 58/50 | 54/53 | 55/53 | 60/57 | 63/60 | 75/69 | 75/75 | 80/80 | 130/85 | 130/85 | 155/98 | 170/104 | 162/150 | 162/165 | 175/175 | |
| Vaj | Vaj poliolester SPECIFIKIMI I CARRIER: PP 47-32 | |||||||||||||||||
| Qarku A/B | l | 20/20 | 20/20 | 20/20 | 20/20 | 20/20 | 20/20 | 20/20 | 20/20 | 20/20 | 40/20 | 40/20 | 40/20 | 40/20 | 40/40 | 40/40 | 40/40 | |
| Kompresorët | Power3 me vidë të dyfishtë hermetike | |||||||||||||||||
| Qarku A, madhësia nominale për kompresor** | 46 | 46 | 56 | 56 | 66 | 66 | 80 | 80 | 80+ | 66/56 | 80/66 | 80/80 | 80+/80+ | 80/80 | 80/80 | 80+/80+ | ||
| Qarku B, madhësia nominale për kompresor** | 39 | 46 | 46 | 56 | 56 | 66 | 66 | 80 | 80+ | 80 | 80 | 80 | 80+ | 66/66 | 80/802 | 80+/80+ | ||
| Lloji i kontrollit | Kontrolli PRO-DIALOG Plus | |||||||||||||||||
| Numri i hapave të kapacitetit | 6 | 6 | 6 | 6 | 6 | 6 | 6 | 6 | 6 | 8 | 8 | 8 | 8 | 10 | 10 | 10 | ||
| Kapaciteti minimal | % | 19 | 21 | 19 | 21 | 19 | 21 | 19 | 21 | 21 | 16 | 14 | 14 | 14 | 9 | 10 | 10 | |
| Avulluesi | Lloji guaskë dhe tub, me tuba bakri të brendshëm me brinjë | |||||||||||||||||
| Vëllimi neto i ujit | l | 65 | 73 | 73 | 87 | 87 | 101 | 91 | 91 | 109 | 140 | 140 | 165 | 181 | 203 | 229 | 229 | |
| Lidhjet e ujit | Flanxha e sheshtë e furnizuar nga fabrika, për t'u salduar në vend | |||||||||||||||||
| Hyrja dhe dalja | in. | 4 | 4 | 4 | 5 | 5 | 5 | 5 | 5 | 5 | 6 | 6 | 6 | 6 | 8 | 8 | 8 | |
| Drenimi dhe ajrimi (NPT) | in. | 3/8 | 3/8 | 3/8 | 3/8 | 3/8 | 3/8 | 3/8 | 3/8 | 3/8 | 3/8 | 3/8 | 3/8 | 3/8 | 3/8 | 3/8 | 3/8 | |
| Presioni maksimal i funksionimit në anën e ujit | kPa | 1000 | 1000 | 1000 | 1000 | 1000 | 1000 | 1000 | 1000 | 1000 | 1000 | 1000 | 1000 | 1000 | 1000 | 1000 | 1000 | |
| Kondensatorët | Tuba bakri dhe brinjë alumini | |||||||||||||||||
| Ventilatorët | Ventilator aksial FLYING BIRD 2 me mbështjellës rrotullues | |||||||||||||||||
| Sasia | 4 | 4 | 4 | 6 | 6 | 6 | 8 | 8 | 8 | 10 | 10 | 12 | 12 | 14 | 16 | 16 | ||
| Shpejtësia | r/s | 15.8 | 15.8 | 15.8 | 15.8 | 15.8 | 15.8 | 15.8 | 15.8 | 15.8 | 15.8 | 15.8 | 15.8 | 15.8 | 15.8 | 15.8 | 15.8 | |
| Rrjedha totale e ajrit | l/s | 21110 | 21110 | 21110 | 31660 | 31660 | 31660 | 42220 | 42220 | 42220 | 52770 | 52770 | 63330 | 63330 | 73880 | 84440 | 84440 | |
* Kushtet e standardizuara Eurovent: temperaturat e ujit që hyn/del nga avulluesi = 12°C/7°C, temperatura e ajrit të jashtëm = 35°C Kapaciteti neto i ftohjes: Kapaciteti bruto i ftohjes minus nxehtësinë e pompës së ujit kundër rënies së presionit të brendshëm të avulluesit.
** Madhësia e kompresorit korrespondon me kapacitetin nominal në tonë (1 ton = 3.517 kW).
| 30HXC | 082 | 092 | 102 | 112 | 122 | 132 | 152 | 162 | 182 | 207 | 227 | 247 | 267 | 298 | 328 | 358 | ||
| Qarku i energjisë (Power circuit) | ||||||||||||||||||
| Furnizimi nominal me energji* (Nominal power supply*) | V-ph-Hz | 400-3-50 | ||||||||||||||||
| Gama e tensionit (Voltage range) | V | 360-440 | ||||||||||||||||
| Furnizimi i qarkut të kontrollit (Control circuit supply) | Qarku i kontrollit furnizohet nëpërmjet transformatorit të instaluar në fabrikë (The control circuit is supplied via the factory-installed transformer) | |||||||||||||||||
| Hyrja nominale e energjisë* (Nominal power input*) | kW | 98 | 109 | 123 | 133 | 150 | 166 | 179 | 196 | 214 | 246 | 281 | 292 | 332 | 364 | 394 | 449 | |
| Rryma nominale e tërhequr* (Nominal current drawn*) | A | 180 | 200 | 223 | 256 | 273 | 290 | 326 | 352 | 388 | 449 | 492 | 528 | 582 | 642 | 704 | 776 | |
| Hyrja maksimale e energjisë** (Max. power input**) | kW | 127 | 141 | 154 | 175 | 191 | 207 | 234 | 253 | 286 | 319 | 355 | 380 | 429 | 462 | 506 | 572 | |
| Qarku A (Circuit A) | kW | - | - | - | - | - | - | - | - | - | 193 | 228 | 253 | 286 | 253 | 253 | 286 | |
| Qarku B (Circuit B) | kW | - | - | - | - | - | - | - | - | - | 127 | 127 | 127 | 143 | 209 | 253 | 286 | |
| Kosinusi phi, njësi në ngarkesë të plotë (Cosine phi, unit at full load) | 0.85 | 0.85 | 0.85 | 0.85 | 0.85 | 0.85 | 0.86 | 0.86 | 0.86 | 0.86 | 0.86 | 0.86 | 0.86 | 0.86 | 0.86 | 0.86 | ||
| Rryma maksimale e tërhequr (Un - 10%)*** (Max. current drawn (Un - 10%)***) | A | 237 | 262 | 287 | 323 | 353 | 383 | 429 | 464 | 524 | 585 | 650 | 696 | 786 | 847 | 928 | 1048 | |
| Qarku A (Circuit A) | A | - | - | - | - | - | - | - | - | - | 353 | 418 | 464 | 524 | 464 | 464 | 524 | |
| Qarku B (Circuit B) | A | - | - | - | - | - | - | - | - | - | 232 | 232 | 232 | 262 | 383 | 464 | 524 | |
| Rryma maksimale e tërhequr (Un)*** (Maximum current drawn (Un)***) | A | 217 | 240 | 263 | 297 | 324 | 351 | 394 | 426 | 480 | 537 | 596 | 639 | 721 | 777 | 852 | 961 | |
| Qarku A (Circuit A) | A | - | - | - | - | - | - | - | - | - | 324 | 383 | 426 | 480 | 426 | 426 | 480 | |
| Qarku B (Circuit B) | A | - | - | - | - | - | - | - | - | - | 213 | 213 | 213 | 240 | 351 | 426 | 480 | |
| Rryma maksimale e ndezjes, njësi standarde**** (Un) (Max. starting current, std. unit**** (Un)) | A | 334 | 357 | 401 | 435 | 468 | 495 | 590 | 622 | 662 | 1338 | 1631 | 1674 | 1767 | 1812 | 1887 | 2008 | |
| Qarku A*** (Circuit A***) | A | - | - | - | - | - | - | - | - | - | 1125 | 1418 | 1461 | 1527 | 1461 | 1461 | 1527 | |
| Qarku B*** (Circuit B***) | A | - | - | - | - | - | - | - | - | - | 1248 | 1248 | 1248 | 1287 | 1152 | 1461 | 1527 | |
| Raporti maksimal i rrymës së ndezjes/tërheqjes maksimale të rrymës, njësi (Max. starting current/max. current draw ratio, unit) | 1.54 | 1.49 | 1.53 | 1.47 | 1.44 | 1.41 | 1.50 | 1.46 | 1.38 | 2.49 | 2.74 | 2.62 | 2.45 | 2.33 | 2.22 | 2.09 | ||
| Raporti maksimal i rrymës së ndezjes/tërheqjes maksimale të rrymës, qarku A (Max. starting current/max. current draw ratio, circuit A) | - | - | - | - | - | - | - | - | - | 3.47 | 3.70 | 3.43 | 3.18 | 3.43 | 3.43 | 3.18 | ||
| Raporti maksimal i rrymës së ndezjes/tërheqjes maksimale të rrymës, qarku B (Max. starting current/max. current draw ratio, circuit B) | - | - | - | - | - | - | - | - | - | 5.86 | 5.86 | 5.86 | 5.36 | 3.28 | 3.43 | 3.18 | ||
| Rryma maksimale e ndezjes - fillimi me rrymë të reduktuar (Un) **** (Max. starting current - reduced current start (Un) ****) | A | std. | std. | std. | std. | std. | std. | std. | std. | std. | 878 | 955 | 998 | 1102 | 1136 | 1211 | 1343 | |
| Qarku A (Circuit A) | A | std. | std. | std. | std. | std. | std. | std. | std. | std. | 665 | 742 | 785 | 862 | 785 | 785 | 862 | |
| Qarku B (Circuit B) | A | std. | std. | std. | std. | std. | std. | std. | std. | std. | 572 | 572 | 572 | 622 | 692 | 785 | 862 | |
| Rryma maksimale e ndezjes - fillimi me rrymë të reduktuar/ raporti maksimal i tërheqjes së rrymës, njësi (Max.starting current - red. current start/ max. current draw ratio, unit) | std. | std. | std. | std. | std. | std. | std. | std. | std. | 1.64 | 1.60 | 1.56 | 1.53 | 1.46 | 1.42 | 1.40 | ||
| Qarku A (Circuit A) | std. | std. | std. | std. | std. | std. | std. | std. | std. | 2.05 | 1.94 | 1.84 | 1.79 | 1.84 | 1.84 | 1.79 | ||
| Qarku B (Circuit B) | std. | std. | std. | std. | std. | std. | std. | std. | std. | 2.69 | 2.69 | 2.69 | 2.39 | 1.97 | 1.84 | 1.79 | ||
| Rryma trefazore e mbajtjes së qarkut të shkurtër (Three-phase short circuit holding current) | kA | 25 | 25 | 25 | 25 | 25 | 25 | 25 | 25 | 25 | N/A | N/A | N/A | N/A | N/A | N/A | N/A | |
| Qarku A (Circuit A) | kA | - | - | - | - | - | - | - | - | - | 25 | 25 | 25 | 25 | 25 | 25 | 25 | |
| Qarku B (Circuit B) | kA | - | - | - | - | - | - | - | - | - | 25 | 25 | 25 | 25 | 25 | 25 | 25 | |
| Kapaciteti gatishmërisë së klientit, njësi ose qarku A, për lidhjet e pompës së ujit të avulluesit† (Customer standby capacity, unit or circ. A, for evaporatorwater pump connections†) | kW | 4 | 4 | 4 | 5.5 | 5.5 | 5.5 | 7.5 | 7.5 | 7.5 | 7.5 | 9 | 9 | 9 | 15 | 15 | 15 | |
* Kushtet standarde Eurovent: Temperatura e ujit që hyn/del nga avulluesi 12°C dhe 7°C. Temperatura e ajrit të jashtëm 35°C. (Standard Eurovent conditions: Evaporator entering/leaving water temperature 12°C and 7°C. Outdoor air temperature 35°C.)
** Hyrja e energjisë, kompresori dhe ventilatori, në kufijtë e funksionimit të njësisë (temperatura e ujit që hyn/del nga avulluesi = 15°C/10°C, temperatura e ajrit të jashtëm = 46°C) dhe një tension nominal prej 400 V (të dhënat e dhëna në pllakën e emrit të njësisë). (Power input, compressor and fan, at unit operating limits (evaporator water entering/leaving temperature = 15°C/10°C, outdoor air temperature = 46°C) and a nominal voltage of 400 V (data given on the unit name plate).)
*** Rryma maksimale e funksionimit të njësisë në hyrjen maksimale të energjisë së njësisë. (Maximum unit operating current at maximum unit power input.)
**** Rryma maksimale e menjëhershme e ndezjes (rryma maksimale e funksionimit të kompresorit(ëve) më të vogël + rryma e ventilatorit + rryma e bllokuar e rotorit ose rryma e reduktuar e ndezjes së kompresorit më të madh). (Maximum instantaneous starting current (maximum operating current of the smallest compressor(s) + fan current + locked rotor current or reduced starting current of the largest compressor).)
† Hyrjet aktuale dhe të energjisë nuk përfshihen në vlerat e mësipërme (Current and power inputs not included in the values above)
N/A Nuk disponohet (Not available)
| Referenca (Reference) | Madhësia (Size) | I nom. | MHA | LRA | LRA (Y) | LRA (S) 1 cp. | LRA (S) 2 cp. |
| 06NA2146S7N | 39 | 70 | 95 | 605 | 191 | 220 | - |
| 06NA2174S7N | 46 | 90 | 120 | 715 | 226 | 260 | - |
| 06NA2209S7N | 56 | 113 | 145 | 856 | 270 | 330 | 420 |
| 06NA2250S7N | 66 | 130 | 175 | 960 | 303 | 380 | 500 |
| 06NA2300S5N | 80 | 156 | 210 | 1226 | 387 | 445 | 550 |
| 06NA2300S5E | 80+ | 174 | 240 | 1265 | 400 | 460 | 600 |
Legjenda: (Legend:)
| 06NA | Kompresor për njësi të ftohura me ajër (Compressor for air-cooled units) |
| N | Kompresor jo i ekonomizuar (Non-economized compressor) |
| E | Kompresor i ekonomizuar (Economized compressor) |
| INOM | Tërheqja mesatare e rrymës së kompresorit në kushtet Eurovent (Average current draw of the compressor at Eurovent conditions) |
| MHA | Duhet të mbajë amper (rryma maksimale e funksionimit) në 360 V (Must hold amperes (maximum operating current) at 360 V) |
| LRA | Rryma e bllokuar e rotorit me fillimin nëpër linjë (Locked rotor current with across-the-line start) |
| LRA (Y) | Rryma e bllokuar e rotorit me rrymë të reduktuar (modaliteti i ndezjes yll/delta) (Locked rotor current at reduced current (star/delta start-up mode)) |
| LRA (S) 1 cp. | Ndezja me rrymë të reduktuar me ndezës elektronik (kohëzgjatja e ndezjes 3 sekonda maks.) për një kompresor për qark (Start-up with reduced current with electronic starter (start-up duration 3 seconds max.) for one compressor per circuit) |
| LRA (S) 2 cp. | Ndezja me rrymë të reduktuar me ndezës elektronik (kohëzgjatja e ndezjes 3 sekonda maks.) për dy kompresorë për qark (Start-up with reduced current with electronic starter (start-up duration 3 seconds max.) for two compressors per circuit) |
| Avulluesi | Minimumi | Maksimumi | |
| Temperatura e ujit që hyn në avullues | °C | 6.8* | 21 |
| Temperatura e ujit që del nga avulluesi | °C | 4** | 15 |
| Kondensatori (i ftohur me ujë) | Minimumi | Maksimumi | |
| Temperatura e ujit që hyn në kondensator | °C | 20*** | 42 |
| Temperatura e ujit që del nga kondensatori | °C | 25 | 45 |
| Temperatura e funksionimit të ambientit të jashtëm 30HXC | °C | 6 | 40 |
| Kondensatori (i ftohur me ajër) | Minimumi | Maksimumi | |
| Temperatura e funksionimit të ambientit të jashtëm | °C | 0 | 46 |
| Presioni statik i disponueshëm | kPa | 0 |
Shënime:
* Për aplikime që kërkojnë funksionim nën 6.8°C, kontaktoni Carrier s.a. për përzgjedhjen e njësisë duke përdorur katalogun elektronik Carrier.
** Për aplikime që kërkojnë funksionim nën 4°C, njësitë kërkojnë përdorimin e antifrizit.
*** Njësitë e ftohura me ujë (30HXC) që funksionojnë me ngarkesë të plotë dhe nën 20°C temperatura e ujit që hyn në kondensator kërkojnë përdorimin e një kontrolli të presionit të kokës me valvula analoge të kontrollit të ujit (shih paragrafin mbi kontrollin e presionit të kokës).
Në mënyrat e funksionimit të përkohshëm (fillimi dhe në ngarkesë të pjesshme) njësia mund të funksionojë me një temperaturë të ajrit që hyn në kondensator prej 13°C.
Rrjedha minimale e ujit të ftohur tregohet në tabelën në faqen tjetër. Nëse rrjedha është më e vogël se kjo, rrjedha e avulluesit mund të ricirkulohet, siç tregohet në diagram. Temperatura e përzierjes që del nga avulluesi nuk duhet të jetë kurrë më pak se 2.8 K më e ulët se temperatura e ujit të ftohur që hyn.

PËR SHPEJTËSINË MINIMALE TË RRJEDHËS SË UJIT TË FTOHUR
Rrjedha maksimale e ujit të ftohur kufizohet nga rënia maksimale e lejuar e presionit në avullues. Ajo ofrohet në tabelën në faqen tjetër. Nëse rrjedha tejkalon vlerën maksimale, dy zgjidhje janë të mundshme:

PËR SHPEJTËSINË MAKSIMALE TË RRJEDHËS SË UJIT TË FTOHUR
Rrjedha e ndryshueshme e avulluesit mund të përdoret në ftohësit standardë 30HXC dhe 30GX. Ftohësit mbajnë një temperaturë konstante të ujit që del në të gjitha kushtet e rrjedhës. Që kjo të ndodhë, shpejtësia minimale e rrjedhës duhet të jetë më e lartë se rrjedha minimale e dhënë në tabelën e shpejtësive të lejuara të rrjedhës dhe nuk duhet të ndryshojë më shumë se 10% në minutë. Nëse shpejtësia e rrjedhës ndryshon më shpejt, sistemi duhet të përmbajë një minimum prej 6.5 litrash ujë për kW në vend të 3.25 l/kW.
Cilido qoftë sistemi, kapaciteti minimal i qarkut të ujit jepet nga formula:
Kapaciteti = Kap (kW) x N Litra
| Aplikimi | N |
| Kondicionim normal ajri | 3.25 |
| Ftohje e tipit të procesit | 6.5 |
Ku Kap është kapaciteti nominal i ftohjes së sistemit (kW) në kushtet nominale të funksionimit të instalimit.
Ky vëllim është i nevojshëm për funksionim të qëndrueshëm dhe kontroll të saktë të temperaturës.
Shpesh është e nevojshme të shtohet një rezervuar uji tampon në qark në mënyrë që të arrihet vëllimi i kërkuar. Vetë rezervuari duhet të jetë i ndarë brenda për të siguruar përzierjen e duhur të lëngut (ujë ose shëllirë). Referojuni shembujve më poshtë.
SHËNIM: Kompresori nuk duhet të rinisë më shumë se 6 herë në një orë.


| 30HXC | Min.* | Max.** | ||
| 080-090 | 5.7 | 22.7 | ||
| 100 | 6.0 | 24.1 | ||
| 110 | 6.9 | 27.5 | ||
| 120-130 | 8.3 | 33.0 | ||
| 140-155 | 10.0 | 39.5 | ||
| 175-190 | 10.7 | 42.7 | ||
| 200 | 13.4 | 53.7 | ||
| 230 | 13.4 | 60.6 | ||
| 260-285 | 17.0 | 68.1 | ||
| 310 | 19.4 | 77.8 | ||
| 345-375 | 21.3 | 85.3 | ||
| 30GX | Min.* | Max.** | ||
| 082 | 5.7 | 22.7 | ||
| 092-102 | 6.0 | 24.1 | ||
| 112-122 | 6.9 | 27.5 | ||
| 132 | 8.4 | 33.7 | ||
| 152-162 | 10.0 | 39.9 | ||
| 182 | 10.7 | 42.7 | ||
| 207-227 | 13.4 | 53.7 | ||
| 247 | 15.1 | 60.6 | ||
| 267 | 17.0 | 68.1 | ||
| 298 | 19.4 | 77.8 | ||
| 328-358 | 21.3 | 85.3 | ||
* Bazuar në një shpejtësi uji prej 0.9 m/s.
** Bazuar në një shpejtësi uji prej 3.6 m/s.
| 30HXC | Min.* Qark i mbyllur (Closed loop) | Qark i hapur (Open loop) | Max.** |
| 080-110 | 2.5 | 7.5 | 29.9 |
| 120-130 | 3.1 | 9.3 | 37.3 |
| 140-155 | 3.8 | 11.4 | 45.5 |
| 175-190 | 4.6 | 13.8 | 55.2 |
| 200 | 5.0 | 14.9 | 59.6 |
| 230-285 | 6.7 | 20.1 | 80.3 |
| 310-375 | 7.3 | 22.0 | 88.0 |
* Bazuar në një shpejtësi uji prej 0.3 m/s në një qark të mbyllur dhe 0.9 m/s në një qark të hapur.
** Bazuar në një shpejtësi uji prej 3.6 m/s


Është e detyrueshme të instalohet çelësi i rrjedhës së ftohësit dhe gjithashtu të lidhet ndërlidhja e pompës së ujit të ftohur në 30HXC dhe 30GX. Mosrespektimi i këtij udhëzimi do të anulojë garancinë e Carrier.
Kontrolluesi i çelësit të rrjedhës së ftohësit furnizohet dhe lidhet në fabrikë në njësitë 30HXC dhe 30GX.
Ndiqni udhëzimet e prodhuesit për instalim.
Çelësi i rrjedhës mund të montohet në një tub horizontal ose një tub vertikal me rrjedhje lëngu lart. Nuk duhet të përdoret kur rrjedhja e lëngut është poshtë.
Montoni në një seksion të tubit ku ka një drejtim të drejtë prej të paktën pesë diametra tub në secilën anë të çelësit të rrjedhës. Mos e vendosni pranë valvulave, bërrylave ose orificave. Lopata nuk duhet të prekë kurrë tubin ose ndonjë kufizim në tub. Vidhosni çelësin e rrjedhës në pozicion në mënyrë që pjesa e sheshtë e lopatës të jetë në kënde të drejta me rrjedhën. Shigjetat në kapak dhe në fund, brenda kasës, duhet të tregojnë drejtimin e rrjedhës. Çelësi duhet të montohet në mënyrë që terminalet të jenë të aksesueshme për instalim të lehtë të telave.
Terminalet 34 dhe 35 janë siguruar për instalimin në terren të një ndërlidhjeje të pompës së ujit të ftohur (kontakt ndihmës i kontaktorit të pompës së ujit të ftohur).
(Lidhja e tubit: 1" NPT)

Çelësi i rrjedhës së kondensatorit është një pajisje e instaluar në terren.
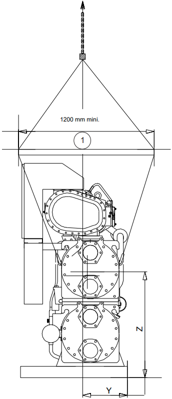
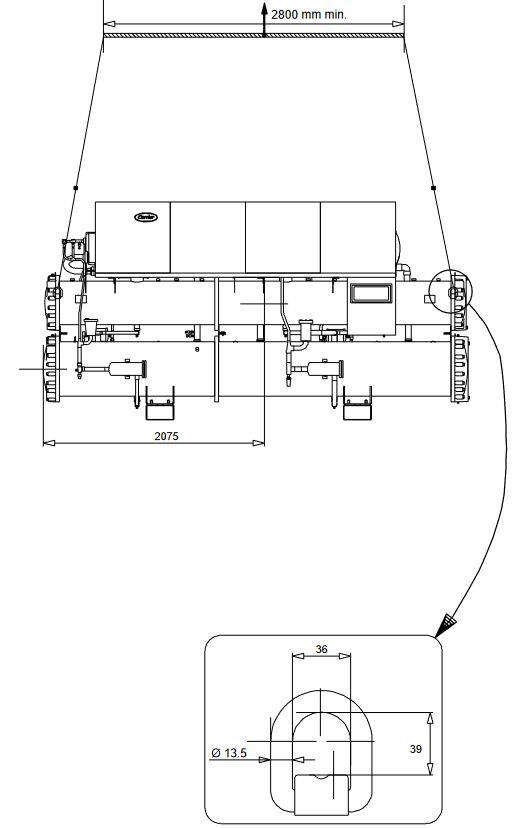
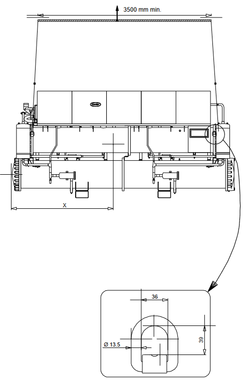
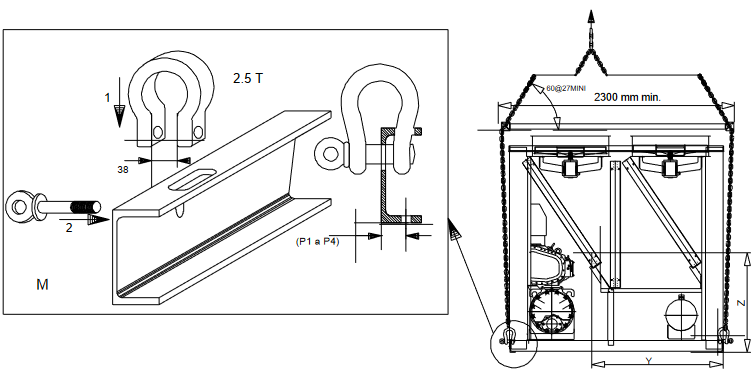
Mos i hiqni shpatullat, paletat ose paketimin mbrojtës derisa njësia të jetë në pozicionin e saj përfundimtar. Lëvizni ftohësin duke përdorur tuba ose rula, ose ngrini atë, duke përdorur litarë me kapacitetin e duhur.
(30HXC)
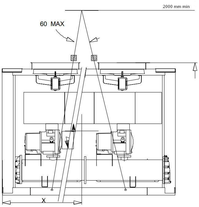
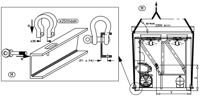
Përdorni vetëm litarë në pikat e caktuara të ngritjes të cilat janë të shënuara në njësi, në majë të shkëmbyesit të nxehtësisë së ftohësit. Montimi nga fundi i shkëmbyesit të nxehtësisë do të bëjë që njësia të ngrihet në mënyrë të pasigurt. Mund të ndodhë lëndim personal ose dëmtim i njësisë. Ndiqni udhëzimet e montimit të dhëna në vizatimin e certifikuar dimensional të furnizuar me njësinë.
Gjithmonë referojuni kapitullit "Përmasat dhe hapësirat" për të konfirmuar që ka hapësirë të mjaftueshme për të gjitha lidhjet dhe operacionet e shërbimit. Për koordinatat e qendrës së gravitetit, pozicionin e vrimave të montimit të njësisë dhe pikat e shpërndarjes së peshës, referojuni vizatimit të certifikuar dimensional të furnizuar me njësinë.
Ne rekomandojmë që këto ftohës të instalohen ose në një bodrum ose në nivelin e tokës. Nëse njëri do të instalohet mbi nivelin e tokës, kontrolloni së pari që ngarkesa e lejuar e dyshemesë është e mjaftueshme dhe që dyshemeja është mjaft e fortë dhe e niveluar. Nëse është e nevojshme, forconi dhe niveloni dyshemenë.
Me ftohësin në vendndodhjen e tij përfundimtare hiqni shpatullat dhe pajisjet e tjera të përdorura për të ndihmuar në lëvizjen e tij. Niveloni njësinë duke përdorur një nivel shpirti dhe fiksoni njësinë në dysheme ose plintë. Funksionimi i këtyre njësive mund të dëmtohet nëse ato nuk janë të niveluara dhe nuk janë të fiksuara në mënyrë të sigurt në montimet e tyre. Nëse kërkohet, përdorni jastëkë izolues nën njësi për të ndihmuar në izolimin e dridhjeve.
Ky diagram tregohet vetëm për informacion. Referojuni "vizatimeve të certifikuara".

| X mm | Y mm | Z mm | |
| 30HXC080 30HXC090 30HXC100 |
1345 | 402 | 903 |
| 30HXC110 | 1368 | 397 | 935 |
| 30HXC120 30HXC130 30HXC140 30HXC155 |
1731 | 392 | 879 |
| 30HXC175 | 1703 | 386 | 947 |
| 30HXC190 | 1705 | 398 | 955 |


SHËNIM
Kur të gjitha operacionet e ngritjes dhe pozicionimit të kenë përfunduar, rekomandohet të prekni të gjitha sipërfaqet ku boja është hequr në lugët e ngritjes.
Ky diagram tregohet vetëm për informacion. Referojuni "vizatimeve të certifikuara".




| X mm | Y mm | Z mm | |
| 30HXC310 | 2195 | 425 | 1085 |
| 30HXC345 | 2195 | 425 | 1085 |
| 30HXC375 | 2205 | 435 | 1025 |
SHËNIM
Kur të gjitha operacionet e ngritjes dhe pozicionimit të kenë përfunduar, rekomandohet të prekni të gjitha sipërfaqet ku boja është hequr në lugët e ngritjes.
Ky diagram tregohet vetëm për informacion. Referojuni "vizatimeve të certifikuara".



| X mm | Y mm | Z mm | PTkg | |
| 30GX082 | 1440 | 1460 | 900 | 3115 |
| 30GX092 | 1440 | 1460 | 900 | 3156 |
| 30GX102 | 1440 | 1460 | 900 | 3170 |
| 30GX112 | 1650 | 1460 | 900 | 3574 |
| 30GX122 | 1650 | 1460 | 900 | 3527 |
| 30GX132 | 1650 | 1460 | 900 | 3634 |
| 30GX152 | 2155 | 1430 | 900 | 3938 |
| 30GX162 | 2155 | 1430 | 900 | 3954 |



| X mm | Y mm | Z mm | PTkg | |
| 30GX182 | 3030 | 1370 | 875 | 4853 |
SHËNIM
Kur të gjitha operacionet e ngritjes dhe pozicionimit të kenë përfunduar, rekomandohet të prekni të gjitha sipërfaqet ku boja është hequr në lugët e ngritjes.
Ky diagram tregohet vetëm për informacion. Referojuni "vizatimeve të certifikuara".



| X mm | Y mm | Z mm | PTkg | |
| 30GX207 | 2870 | 1440 | 890 | 5536 |
| 30GX227 | 2870 | 1440 | 890 | 5572 |
| 30GX247 | 3320 | 1430 | 927 | 6131 |
| 30GX267 | 3300 | 1420 | 886 | 6363 |



| X mm | Y mm | Z mm | PTkg | |
| 30GX298 | 3630 | 1420 | 890 | 7353 |
| 30GX328 | 4360 | 1455 | 920 | 7840 |
| 30GX358 | 4360 | 1445 | 930 | 8045 |
SHËNIM
Kur të gjitha operacionet e ngritjes dhe pozicionimit të kenë përfunduar, rekomandohet të prekni të gjitha sipërfaqet ku boja është hequr në lugët e ngritjes.
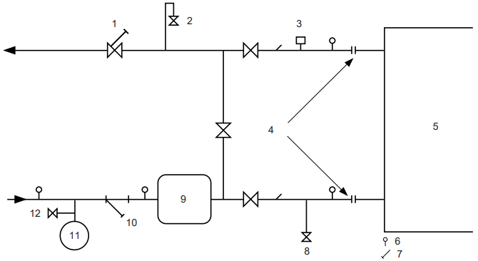
Referojuni vizatimeve të certifikuara dimensionale për madhësitë dhe pozicionet e të gjitha lidhjeve të hyrjes dhe daljes së ujit. Tubat e ujit nuk duhet të transmetojnë asnjë forcë radiale ose aksiale në shkëmbyesit e nxehtësisë ose ndonjë dridhje në tubacion ose ndërtesë.
Furnizimi me ujë duhet të analizohet dhe të ndërtohen filtrime, trajtime, pajisje kontrolli, valvula izoluese dhe shkarkuese dhe qarqe të përshtatshme, sipas nevojës. Konsultohuni ose me një specialist të trajtimit të ujit ose me literaturë të përshtatshme mbi këtë temë.
Qarku i ujit duhet të jetë i projektuar për të pasur numrin më të vogël të bërrylave dhe tubave horizontalë në nivele të ndryshme. Kontrollet bazë të mëposhtme duhet të bëhen (shihni gjithashtu ilustrimin e një qarku tipik hidraulik më poshtë).
Avulluesi dhe kondensatori janë të tipit me shumë tuba dhe guaskë me kuti uji të lëvizshme për të lehtësuar pastrimin e tubave.
Përpara se të bëni lidhjet e ujit, shtrëngoni bulonat në të dy kokat në çift rrotullues më të ulët të treguar, duke ndjekur metodën e përshkruar. Shtrëngoni në çifte dhe sekuencë të treguar sipas madhësisë së bulonit (shih tabelën) duke përdorur një vlerë çift rrotullues në fund të ulët të intervalit të dhënë.
Hiqeni flanxhon e sheshtë të furnizuar nga fabrika nga kutia e ujit përpara se të saldoni tubacionin në flanxhë. Mosheqja e flanxhës mund të dëmtojë sensorët dhe izolimin.
SHËNIM
Ne rekomandojmë kullimin e sistemit dhe shkëputjen e tubacionit për të siguruar që bulonat e kokave me të cilat është lidhur tubacioni të jenë shtrënguar saktë dhe në mënyrë uniforme.
Mbrojtja e avulluesit dhe kondensatorit të ftohur me ujë
Nëse ftohësi ose tubacioni i ujit është në një zonë ku temperatura e ambientit mund të bjerë nën 0°C, rekomandohet të shtoni një tretësirë antifriz për të mbrojtur njësinë dhe tubacionin e ujit në një temperaturë prej 8 K nën temperaturën më të ulët. Përdorni vetëm tretësira antifriz, të miratuara për detyrën e shkëmbyesit të nxehtësisë. Nëse sistemi nuk është i mbrojtur nga një tretësirë antifriz dhe nuk do të përdoret gjatë kushteve të motit të ngrirë, kullimi i ftohësit dhe tubacionit të jashtëm është i detyrueshëm. Dëmtimi për shkak të ngrirjes nuk mbulohet nga garancia.

Legjenda

Legjenda
Standardi EN 60204-1 është një mjet i mirë për t'iu përgjigjur kërkesave të Direktivës së Makinerive § 1.5.1. Rekomandimi normativ IEC 364, njihet përgjithësisht si përmbushës i kërkesave të rregullores së instalimit.
Shtojca B e standardit EN 60204-1 mund të përdoret për të përshkruar karakteristikat elektrike nën të cilat funksionojnë makinat.
(1) Standardi i mbrojtjes i kërkuar në lidhje me këtë klasifikim është IP21B (në përputhje me dokumentin e referencës IEC 529). Të gjitha 30HXC kanë një standard mbrojtjeje IP23C dhe për rrjedhojë përmbushin këtë kërkesë mbrojtjeje.
Kompetenca e personelit: klasifikimi BA4(2) (personel i kualifikuar në përputhje me IEC 364).
(2) Standardi i mbrojtjes i kërkuar në lidhje me këtë klasifikim është IP43BW (në përputhje me dokumentin e referencës IEC 529). Të gjitha 30GX kanë një standard mbrojtjeje IP45CW dhe për rrjedhojë përmbushin këtë kërkesë mbrojtjeje.
SHËNIM: Nëse aspekte të veçanta të një instalimi kërkojnë karakteristika të tjera nga ato të listuara më sipër (ose karakteristika që nuk përmenden këtu) kontaktoni përfaqësuesin tuaj të Carrier.
Furnizimi me energji duhet të jetë në përputhje me specifikimin në pllakën e emrit të ftohësit. Tensioni i furnizimit duhet të jetë brenda intervalit të specifikuar në tabelën e të dhënave elektrike.
Për lidhjet referojuni skemave elektrike.
Funksionimi i ftohësit me një tension furnizimi të papërshtatshëm ose çekuilibër të tepërt të fazës përbën abuzim i cili do të zhvleftësojë garancinë e Carrier. Nëse çekuilibri i fazës tejkalon 2% për tensionin, ose 10% për rrymën, kontaktoni menjëherë furnizuesin tuaj lokal të energjisë elektrike dhe sigurohuni që ftohësi të mos ndizet derisa të jenë marrë masa korrektuese.
100 x devijimi maksimal nga tensioni mesatar
Tensioni mesatar
Shembull:
Në një furnizim 400 V - 3 ph - 50 Hz, tensionet individuale të fazës u matën të jenë:
AB = 406 V; BC = 399; AC = 394 V
| Tensioni mesatar | = (406 + 399 + 394)/3 = 1199/3 |
| = 399.7 thuaj 400 V |
Llogaritni devijimin maksimal nga mesatarja 400 V:
(AB) = 406 - 400 = 6
(BC) = 400 - 399 = 1
(CA) = 400 - 394 = 6

Devijimi maksimal nga mesatarja është 6 V. Përqindja më e madhe e devijimit është:
100 x 6/400 = 1.5 %
Kjo është më pak se 2% e lejuar dhe për rrjedhojë është e pranueshme.
Madhësia e telave është përgjegjësi e instaluesit dhe varet nga karakteristikat dhe rregulloret që zbatohen për secilin vend instalimi. Sa vijon duhet të përdoret vetëm si udhëzues dhe nuk e bën Carrier-in në asnjë mënyrë përgjegjës. Pasi të jetë përfunduar madhësia e telave, duke përdorur vizatimin e certifikuar dimensional, instaluesi duhet të sigurojë lidhje të lehtë dhe të përcaktojë çdo modifikim të nevojshëm në vend.
Lidhjet e ofruara si standard për kabllot e hyrjes së energjisë të furnizuara në terren në çelësin e përgjithshëm të shkyçjes/izolimit janë projektuar për numrin dhe llojin e telave, të listuara në tabelën e mëposhtme.
Llogaritjet bazohen në rrymën maksimale të makinës (shih tabelat e të dhënave elektrike).
Për projektimin përdoren metodat e mëposhtme të standardizuara të instalimit, në përputhje me IEC 364, tabela 52C:
Llogaritja bazohet në kabllot e izoluar me PVC ose XLPE me bërthamë bakri ose alumini. Temperatura maksimale është 40°C për njësitë 30HX dhe 46°C për njësitë 30GX.
Gjatësia e dhënë e telit kufizon rënien e tensionit në < 5%.
| Unit (Njësia) | Min. (mm2) nga faza | Wire type (Lloji i telit) | L (m) | Max. (mm2) nga faza | Wire type (Lloji i telit) | L (m) |
| 30HX 080 | 1 x 35 | XLPE Cu | 140 | 1 x 120 | PVC Al | 260 |
| 30HX 090 | 1 x 50 | XLPE Cu | 160 | 1 x 120 | PVC Al | 260 |
| 30HX 100 | 1 x 50 | XLPE Cu | 160 | 1 x 95 | XLPE Al | 195 |
| 30HX 110 | 1 x 70 | XLPE Cu | 170 | 1 x 120 | XLPE Al | 205 |
| 30HX 120/130 | 1 x 70 | XLPE Cu | 170 | 1 x 150 | XLPE Al | 210 |
| 30HX 140 | 1 x 95 | XLPE Cu | 180 | 1 x 185 | XLPE Al | 220 |
| 30HX 155 | 1 x 95 | XLPE Cu | 180 | 1 x 240 | XLPE Al | 225 |
| 30HX 175 | 1 x 120 | XLPE Cu | 185 | 1 x 240 | XLPE Al | 225 |
| 30HX 190 | 1 x150 | XLPE Cu | 190 | 2 x 95 | XLPE Al | 195 |
| 30HX 200 ckt A | 1 x 70 | XLPE Cu | 170 | 2 x120 | PVC Al | 325 |
| 30HX 230 ckt A | 1 x 95 | XLPE Cu | 180 | 2 x 120 | PVC Al | 325 |
| 30HX 260 ckt A | 1 x 120 | XLPE Cu | 185 | 1 x 240 | XLPE Al | 225 |
| 30HX 285 ckt A | 1 x 150 | XLPE Cu | 190 | 2 x 150 | XLPE Al | 265 |
| 30HX 200 ckt B | 1 x 35 | XLPE Cu | 140 | 1 x 95 | PVC Al | 250 |
| 30HX 230 ckt B | 1 x 35 | XLPE Cu | 140 | 1 x 120 | PVC Al | 260 |
| 30HX 260 ckt B | 1 x 35 | XLPE Cu | 140 | 1 x 120 | PVC Al | 260 |
| 30HX 285 ckt B | 1 x 50 | XLPE Cu | 160 | 2 x 70 | PVC Al | 285 |
| 30HX 310 ckt A & B | 1 x 95 | XLPE Cu | 180 | 1 x 240 | XLPE Al | 225 |
| 30HX 345 ckt A & B | 1 x 120 | 185 | 1 x 240 | XLPE Al | 225 | |
| 30HX 375 ckt A & B | 1 x 150 | XLPE Cu | 190 | 2 x 150 | XLPE Al | 265 |
| 30GX 082 | 1 x 95 | XLPE Cu | 190 | 2 x 185 | PVC Al | 420 |
| 30GX 092 | 1 x 120 | XLPE Cu | 195 | 2 x 185 | PVC Al | 420 |
| 30GX 102 | 1 x 120 | XLPE Cu | 195 | 2 x 240 | PVC Al | 450 |
| 30GX 112 | 1 x 150 | XLPE Cu | 200 | 2 x 150 | XLPE Al | 300 |
| 30GX 122 | 1 x 185 | XLPE Cu | 205 | 2 x 185 | XLPE Al | 315 |
| 30GX 132 | 1 x 185 | XLPE Cu | 205 | 2 x 240 | XLPE Al | 330 |
| 30GX 152 | 1 x 240 | XLPE Cu | 205 | 3x 185 | XLPE CU | 430 |
| 30GX 162 | 2 x 95 | XLPE Cu | 190 | 3x 240 | XLPE CU | 440 |
| 30GX 182 | 2 x 120 | XLPE Cu | 200 | 3x 240 | XLPE CU | 440 |
| 30GX 207 ckt A | 1 x 185 | XLPE Cu | 205 | 3x 185 | XLPE Al | 445 |
| 30GX 227 ckt A | 1 x 240 | XLPE Cu | 205 | 3x 240 | XLPE Al | 470 |
| 30GX 247/298/328 ckt A | 2 x 120 | XLPE Cu | 225 | 3x 185 | XLPE CU | 490 |
| 30HX 267/358 ckt A | 2 x 150 | XLPE Cu | 230 | 3x 240 | XLPE CU | 505 |
| 30GX 207/227/247 ckt B | 1 x 95 | XLPE Cu | 190 | 2 x 240 | PVC Al | 560 |
| 30HX 267 ckt B | 1 x 120 | XLPE Cu | 200 | 2 x 185 | XLPE AL | 395 |
| 30GX 298 ckt B | 1 x 185 | XLPE Cu | 205 | 3x 240 | XLPE AL | 470 |
| 30GX 328 ckt B | 2 x 120 | XLPE Cu | 225 | 3x 185 | XLPE CU | 490 |
| 30GX 358 ckt B | 2 x 150 | XLPE Cu | 230 | 3x 240 | XLPE CU | 505 |
Para lidhjes së kabllove kryesore të energjisë (L1 - L2 - L3) në bllokun e terminalit, është e domosdoshme të kontrolloni rendin e saktë të 3 fazave përpara se të vazhdoni me lidhjen në bllokun e terminalit ose çelësin kryesor të shkyçjes/izolimit.
Referojuni Kontrollit IOM dhe diagramit të telave të certifikuar të furnizuar me njësinë për telat e kontrollit të fushës të veçorive të mëposhtme:
Seksionet e rekomanduara të telave për njësitë me temperatura të larta kondensimi (400 V - 3 ph - 50 Hz)
| Njësia, opsionet 150 + 150A 400 V - 3 ph - 50 Hz | Min. (mm2) për fazë | Lloji i telit | L (m) | Maks. (mm2) për fazë | Lloji i telit | L (m) |
| 30HXC 080 OPT. 150 | 1 x 50 | XLPE Cu | 150 | 2 x 70 | PVC Al | 230 |
| 30HXC 090 OPT. 150 | 1 x 70 | XLPE Cu | 160 | 2 x 95 | PVC Al | 260 |
| 30HXC 100 OPT. 150 | 1 x 70 | XLPE Cu | 160 | 2 x 95 | PVC Al | 250 |
| 30HXC 110 OPT. 150 | 1 x 95 | XLPE Cu | 170 | 2 x 120 | PVC Al | 265 |
| 30HXC 120 OPT. 150 | 1 x 120 | XLPE Cu | 180 | 2 x 120 | XLPE Al | 205 |
| 30HXC 130 OPT. 150 | 1 x 120 | XLPE Cu | 160 | 2 x 120 | XLPE Al | 210 |
| 30HXC 140 OPT. 150 | 1 x 150 | XLPE Cu | 175 | 2 x 120 | XLPE Al | 205 |
| 30HXC 155 OPT. 150 | 1 x 185 | XLPE Cu | 185 | 2 x 150 | XLPE Al | 215 |
| 30HXC 175 OPT. 150 | 1 x 240 | XLPE Cu | 185 | 2 x 150 | XLPE Al | 210 |
| 30HXC 190 OPT. 150 | 2 x 95 | XLPE Cu | 175 | 2 x 240 | XLPE Al | 220 |
| 30HXC 200 OPT. 150 circ. A | 1 x 120 | XLPE Cu | 170 | 2 x 150 | XLPE Al | 270 |
| 30HXC 230 OPT. 150 circ. A | 1 x 150 | XLPE Cu | 180 | 2 x 185 | XLPE Al | 270 |
| 30HXC 260 OPT. 150 circ. A | 1 x 185 | XLPE Cu | 180 | 2 x 240 | XLPE Al | 295 |
| 30HXC 285 OPT. 150 circ. A | 1 x 240 | XLPE Cu | 170 | 2 x 185 | XLPE Cu | 265 |
| 30HXC 310 OPT. 150 circ. A | 1 x 185 | XLPE Cu | 180 | 2 x 240 | XLPE Al | 300 |
| 30HXC 345 OPT. 150 circ. A | 1 x 185 | XLPE Cu | 170 | 2 x 240 | XLPE Al | 280 |
| 30HXC 375 OPT. 150 circ. A | 1 x 240 | XLPE Cu | 170 | 2 x 185 | XLPE Cu | 265 |
| 30HXC 200 OPT. 150 circ. B | 1 x 35 | XLPE Cu | 125 | 2 x 95 | PVC Al | 320 |
| 30HXC 230 OPT. 150 circ. B | 1 x 50 | XLPE Cu | 140 | 2 x 95 | PVC Al | 310 |
| 30HXC 260 OPT. 150 circ. B | 1 x 50 | XLPE Cu | 140 | 2 x 95 | PVC Al | 310 |
| 30HXC 285 OPT. 150 circ. B | 1 x 70 | XLPE Cu | 160 | 2 x 120 | PVC Al | 325 |
| 30HXC 310 OPT. 150 circ. B | 1 x 150 | XLPE Cu | 180 | 2 x 185 | XLPE Al | 275 |
| 30HXC 345 OPT. 150 circ. B | 1 x 185 | XLPE Cu | 185 | 2 x 240 | XLPE Al | 305 |
| 30HXC 375 OPT. 150 circ. B | 1 x 185 | XLPE Cu | 160 | 2 x 240 | XLPE Al | 280 |
Filtri i vajit
Kompresori me vidha 06N ka një filtër vaji integral në kutinë e kompresorit. Ky filtër është i zëvendësueshëm në terren.
Ftohës
Kompresori me vidha 06N është projektuar posaçërisht për t'u përdorur vetëm në sistemin R134 a.
Lubrifikant
Kompresori me vidha 06N është i miratuar për përdorim me lubrifikantin e mëposhtëm.
SPECIFIKIMI I MATERIALIT TË TRANSPORTUESIT PP 47-32
Valvula Solenoide e Furnizimit me Vaj
Një valvul solenoide e furnizimit me vaj është standarde në kompresor për të izoluar kompresorin nga rrjedha e vajit kur kompresori nuk është duke punuar.
Solenoidi i vajit është i zëvendësueshëm në terren.
Ekrane Thithëse dhe Ekonomizuese
Për të rritur besueshmërinë e kompresorit, një ekran është përfshirë si veçori standarde në hyrjet thithëse dhe ekonomizuese të kompresorit.
Sistemi i Shkarkimit
Kompresori me vidha 06N ka një sistem shkarkimi që është standard në të gjithë kompresorët. Ky sistem shkarkimi përbëhet nga dy hapa shkarkimi që zvogëlojnë kapacitetin e kompresorit duke ridrejtuar gazin pjesërisht të kompresuar përsëri në thithje.
Ftohësit 30HXC dhe 30GX përdorin një avullues të përmbytur. Uji qarkullon në tuba dhe ftohësi është jashtë në guaskë. Një enë përdoret për të shërbyer të dy qarqet e ftohësit. Ka një fletë tubi qendrore që ndan dy qarqet e ftohësit. Tubat janë bakri me diametër 3/4" me një sipërfaqe të përmirësuar brenda dhe jashtë. Ka vetëm një qark uji, dhe në varësi të madhësisë së ftohësit, mund të ketë dy ose tre kalime uji. Një sensor i nivelit të lëngut më të ftohtë siguron kontroll të optimizuar të rrjedhës.
Në krye të ftohësit janë dy tubat thithës, një në secilin qark. Secili ka një fllanxhë të salduar në të, dhe kompresori montohet në fllanxhë.
Ftohësi 30HXC përdor një enë që është një kombinim i kondensatorit dhe ndarësit të vajit. Është montuar nën ftohësin. Gazi i shkarkimit largohet nga kompresori dhe rrjedh nëpër një shurdhues të jashtëm në ndarësin e vajit, i cili është pjesa e sipërme e enës. Ai hyn në krye të ndarësit ku vaji hiqet, dhe më pas rrjedh në pjesën e poshtme të enës, ku gazi kondensohet dhe nënfrohet. Një enë përdoret për të shërbyer të dy qarqet e ftohësit. Ka një fletë tubi qendrore që ndan dy qarqet e ftohësit. Tubat janë bakri me diametër 3/4" ose 1" me sipërfaqe të përmirësuar brenda dhe jashtë. Ka vetëm një qark uji me dy kalime uji.
Në njësitë e ftohura me ajër, ndarësi i vajit është një enë presioni që është montuar nën spirale kondensuese vertikale të jashtme. Gazi i shkarkimit hyn në krye të ndarësit ku pjesa më e madhe e vajit ndahet dhe kullohet në fund. Më pas, gazi rrjedh nëpër një ekran rrjetë teli ku vaji i mbetur ndahet dhe kullohet në fund.
Mikroprocesori kontrollon EXD nëpërmjet modulit të kontrollit EXV. EXD do të jetë ose një EXV ose një Ekonomizues. Brenda të dyja këtyre pajisjeve është një motor hapësor linear. Ftohësi i lëngshëm me presion të lartë hyn në valvul nëpërmjet fundit. Një seri fole të kalibruara ndodhen brenda montimit të orificës. Ndërsa ftohësi kalon nëpër orificë, presioni bie dhe ftohësi ndryshon në një gjendje 2-fazore (lëng dhe avull). Për të kontrolluar rrjedhën e ftohësit për kushte të ndryshme funksionimi, mëngë lëviz lart e poshtë mbi orificë, duke ndryshuar kështu zonën efektive të rrjedhës së pajisjes së zgjerimit. Mëngë lëvizet nga një motor hapësor linear. Motori hapësor lëviz në shtesa dhe kontrollohet drejtpërdrejt nga moduli i procesorit. Ndërsa motori hapësor rrotullohet, lëvizja transferohet në lëvizje lineare nga vidha kryesore. Nëpërmjet motorit hapësor dhe vidhave kryesore, merren 1500 hapa të veçantë lëvizjeje. Numri i madh i hapave dhe goditja e gjatë rezultojnë në kontroll shumë të saktë të rrjedhës së ftohësit. Çdo qark ka një sensor niveli lëngu të montuar vertikalisht në krye të guaskës më të ftohtë. Sensori i nivelit përbëhet nga një ngrohës i vogël elektrik rezistence dhe tre termistorë të lidhur në seri të pozicionuar në lartësi të ndryshme brenda trupit të pusit. Ngrohësi është projektuar në mënyrë që termistorët të lexojnë afërsisht 93.3°C në ajër të thatë. Ndërsa niveli i ftohësit rritet në ftohës, rezistenca e termistorit(ëve) më të afërt do të ndryshojë shumë. Kjo diferencë e madhe rezistence lejon që kontrolli të mbajë me saktësi një nivel të specifikuar. Sensori i nivelit monitoron nivelin e lëngut të ftohësit në ftohës dhe e dërgon këtë informacion në PSIO-1. Në fillimin fillestar, pozicioni EXV është në zero. Pas kësaj, mikroprocesori mban gjurmët e sakta të pozicionit të valvulës në mënyrë që ta përdorë këtë informacion si hyrje për funksionet e tjera të kontrollit. Ai e bën këtë duke inicializuar EXV-të në fillim. Procesori dërgon mjaftueshëm impulse mbyllëse në valvul për ta lëvizur atë nga plotësisht e hapur në plotësisht të mbyllur, pastaj rivendos numëruesin e pozicionit në zero. Nga ky moment e tutje, deri në inicializimin, procesori numëron numrin e përgjithshëm të hapave të hapur dhe të mbyllur që i ka dërguar secilës valvul.
Ekonomizuesit janë instaluar në 30HXC 190, 285 dhe 375 dhe 30GX 182, 267 dhe 358.
Ekonomizuesi përmirëson si kapacitetin ashtu edhe efikasitetin e ftohësit, si dhe siguron ftohje të motorit të kompresorit. Brenda ekonomizuesit janë si një motor hapësor linear EXV ashtu edhe një valvul notuese. EXV kontrollohet nga PIC për të mbajtur nivelin e dëshiruar të lëngut në ftohës (siç bëhet për ftohësit jo të ekonomizuar). Valvula notuese mban një nivel lëngu në fund të ekonomizuesit. Ftohësi i lëngshëm furnizohet nga kondensatori në fund të ekonomizuesit. Ndërsa ftohësi kalon nëpër EXV, presioni i tij reduktohet në një nivel të ndërmjetëm prej rreth 500 kPa. Ky presion mbahet brenda guaskës së ekonomizuesit. Më pas, ftohësi rrjedh nëpër valvulën notuese, presioni i tij reduktohet më tej në pak më lart presionit në ftohës. Rritja e performancës realizohet kur një pjesë e ftohësit që kalon nëpër EXV ndizet në avull, duke nënfrohur më tej lëngun që mbahet në fund të ekonomizuesit. Kjo rritje në nënfrohje siguron kapacitet shtesë. Meqenëse nuk kërkohet energji shtesë për ta arritur këtë, efikasiteti i makinës gjithashtu përmirësohet. Avulli që ndizet do të ngrihet në ekonomizues ku kalon në kompresor dhe përdoret sipas nevojës për të siguruar ftohje të motorit. Pasi kalon mbi mbështjelljet e motorit, ftohësi rihyn në cikël në një portë të ndërmjetme në ciklin e kompresimit.
Ftohësit me vidha 30GX/HXC përdorin një pompë vaji para-lubrifikuese të montuar nga jashtë për qark. Kjo pompë funksionon si pjesë e sekuencës së fillimit.
KUJDES:
Temperatura e funksionimit të spirales mund të arrijë në 80°C. Në kushte të caktuara të përkohshme (veçanërisht gjatë fillimit në temperaturë të ulët të jashtme ose temperaturë të ulët të spirales së kondensatorit) pompa e vajit mund të riaktivizohet.
Në njësitë 30GX, pompat janë montuar në shinat bazë në anën e ndarësit të vajit të njësisë. Pompat janë montuar në një kllapë në kondensatorët e njësive 30HXC. Kur një qark kërkohet të fillojë, kontrollet do të energjizojnë pompën e vajit së pari në mënyrë që kompresori të fillojë me lubrifikim të saktë. Nëse pompa ka krijuar presion të mjaftueshëm vaji, kompresorit do t'i lejohet të fillojë. Pasi kompresori të ketë filluar, pompa e vajit do të fiket. Nëse pompa nuk ishte në gjendje të krijonte presion të mjaftueshëm vaji, kontrolli do të gjenerojë një alarm.
Temperaturat e mbështjelljes së motorit të kompresorit kontrollohen në pikën e caktuar optimale. Kontrolli e realizon këtë duke cikluar valvulën solenoide të ftohjes së motorit për të lejuar që ftohësi i lëngshëm të rrjedhë nëpër mbështjelljet e motorit sipas nevojës. Në njësitë e pajisura me ekonomizues, gazi i ndezjes largohet nga krye e ekonomizuesit dhe rrjedh vazhdimisht në mbështjelljet e motorit. I gjithë ftohësi i përdorur për ftohjen e motorit rihyn në rotorë nëpërmjet një porte të vendosur në mes të ciklit të kompresimit dhe kompresohet në presionin e shkarkimit.
Njësitë përdorin termistorë (përfshirë dy termistorë të temperaturës së motorit) dhe dy termistorë niveli dhe transduktorë presioni për të monitoruar dhe kontrolluar funksionimin e sistemit.
Lëngu dalës i avulluesit
Kjo temperaturë përdoret për të matur temperaturën e lëngut dalës të avulluesit (ujë ose shëllirë). Temperatura përdoret për kontrollin e temperaturës së lëngut dalës dhe për të mbrojtur nga ngrirja e ftohësit. Ai ndodhet në grykën e lëngut të avulluesit.
Lëngu hyrës i avulluesit
Ky sensor përdoret për të matur temperaturën e lëngut hyrës të avulluesit. Ai ndodhet në grykën hyrëse të avulluesit. Ai përdoret për të siguruar kompensim automatik të temperaturës për kontrollin e temperaturës së lëngut dalës me kompensim të lëngut hyrës.
Temperatura e gazit të shkarkimit (qarqet A & B)
Ky sensor përdoret për të matur temperaturën e gazit të shkarkimit dhe për të kontrolluar mbinxehjen e temperaturës së shkarkimit. Ai ndodhet në tubin e shkarkimit të secilit qark (30HXC) ose në krye të ndarësit të vajit (30GX).
KUJDES: Nuk ka mëngë termostati.
Temperatura e motorit
Moduli i Mbrojtjes së Kompresorit (CPM) monitoron temperaturën e motorit. Terminalet e termistorit ndodhen në kutinë e bashkimit të kompresorit.
Niveli i lëngut të avulluesit (qarqet A & B)
Termistori i nivelit të lëngut të avulluesit përdoret për të siguruar kontroll të optimizuar të rrjedhës në avullues. Ai është instaluar në krye të avulluesit.
Lëngu hyrës i kondensatorit (30HXC)
Ky sensor përdoret për të matur temperaturën e lëngut që hyn në kondensatorët e ftohur me ujë. Ai ndodhet në linjën e zakonshme të lëngut që hyn në kondensatorët (i instaluar në terren). Në Makinat e Nxehtësisë përdoret nga rutina e kontrollit të kapacitetit. Në kondensatorët e ftohur me ujë përdoret vetëm për monitorimin e temperaturës së lëngut të kondensatorit.
Lëngu dalës i kondensatorit (opsional në 30HXC)
Ky sensor përdoret për të matur temperaturën e lëngut që del nga kondensatorët e ftohur me ujë. Ai ndodhet në linjën e zakonshme të lëngut që del nga kondensatorët (i instaluar në terren). Në Makinat e Nxehtësisë përdoret nga rutina e kontrollit të kapacitetit. Në kondensatorët e ftohur me ujë përdoret vetëm për monitorimin e temperaturës së lëngut të kondensatorit.

GX082/102

GX112/132

GX152/162

GX182

GX207/227

GX247/267

GX298

GX328/358
Këto njësi janë projektuar për përdorim vetëm me R-134a.
MOS PËRDORNI ASNJË ftohës TJETËR në këto njësi.
Kur shtoni ose hiqni ngarkesën, qarkulloni ujin nëpër kondensatorin (HX) dhe ftohësin gjatë gjithë kohës për të parandaluar ngrirjen. Dëmtimi nga ngrirja konsiderohet abuzim dhe mund të anulojë garancinë Carrier.
MOS E MBINGARKONI sistemin. Mbingarkesa rezulton në presion më të lartë shkarkimi me konsum më të lartë të lëngut ftohës, dëmtim të mundshëm të kompresorit dhe konsum më të lartë të energjisë.
SHËNIM
Për të kontrolluar ngarkesën e ulët të ftohësit në një 30HXC, duhet të merren parasysh disa faktorë. Një xham shikimi i linjës së lëngshme që pulson nuk është domosdoshmërisht një tregues i ngarkesës së pamjaftueshme. Ka shumë kushte të sistemit ku një xham shikimi që pulson ndodh gjatë funksionimit normal. Pajisja matëse 30HXC është projektuar të funksionojë siç duhet në këto kushte.
SHËNIM
Një xham shikimi i linjës së lëngshme që pulson në kushte funksionimi të ndryshme nga ato të përmendura më sipër nuk është domosdoshmërisht një tregues i ngarkesës së ulët të ftohësit.
Këto temperatura përdoren për të matur temperaturën e hapësirës ose temperaturën e ajrit të jashtëm respektivisht për kontrollin e rivendosjes bazuar në opsionet e rivendosjes së Ajrit të Jashtëm ose Temperaturës së Hapësirës.
Presioni i shkarkimit (qarqet A & B)
Ky input përdoret për të matur presionin e anës së lartë të secilit qark të njësisë.
Përdoret për të siguruar presionin për të zëvendësuar matësin e presionit të shkarkimit dhe për të kontrolluar presionin e kokës.
Presioni i thithjes (qarqet A & B)
Ky input përdoret për të matur presionin e anës së ulët të njësisë. Përdoret për të siguruar presionin për të zëvendësuar matësin e presionit të thithjes.
Presioni i vajit (secili kompresor)
Ky input përdoret për të matur presionin e vajit të secilit kompresor të njësisë. Ndodhet në portën e presionit të vajit të secilit kompresor.
Presioni i ekonomizuesit (qarqet A & B)
Ky input përdoret për të monitoruar diferencën e presionit të vajit të furnizuar në kompresor.
MOS shtoni vaj në asnjë vend tjetër pasi mund të rezultojë funksionim i pahijshëm i njësisë.
Kur transferoni ngarkesën e ftohësit në një njësi magazinimi, vaji mund të transportohet së bashku kur njësia nuk funksionon. Ripërdorni fillimisht të gjithë sasinë e ftohësit të transferuar. Pasi të keni kulluar vajin, rimbushni vetëm sasinë e kulluar (një ngarkesë e tepërt vaji mund të dëmtojë funksionimin e saktë të njësisë).
Një filtër integral vaji në kompresorin me vidë 06N është specifikuar për të siguruar një nivel të lartë filtrimi (3 µ) të kërkuar për jetëgjatësinë e kushinetave. Pasi pastërtia e sistemit është kritike për funksionimin e besueshëm të sistemit, ka gjithashtu një paracaktim (7 µ) në linjën e vajit në daljen e ndarësit të vajit.
Numri i pjesës së elementit zëvendësues të filtrit integral të vajit është:
Numri i pjesës Carrier (përfshirë filtrin dhe unazën O): 06NA 660016S
Filtri duhet të kontrollohet pas 500 orëve të para të funksionimit dhe çdo 2000 orë pasuese. Filtri duhet të zëvendësohet në çdo kohë kur diferenca e presionit nëpër filtër tejkalon 2.1 bar.
Rënia e presionit nëpër filtër mund të përcaktohet duke matur presionin në portën e shërbimit të filtrit dhe portën e presionit të vajit. Ndryshimi në këto dy presione do të jetë rënia e presionit nëpër filtër, valvulën e kontrollit dhe valvulën solenoid. Rënia e presionit nëpër valvulën e kontrollit dhe valvulën solenoid është afërsisht 0.4 bar, e cila duhet të zbritet nga dy matjet e presionit të vajit për të dhënë rënien e presionit të filtrit të vajit. Rënia e presionit të filtrit të vajit duhet të kontrollohet pas çdo rasti që kompresori fiket në një siguri të ulët të presionit të vajit.
Rrotullimi i saktë i kompresorit është një nga konsideratat më kritike të aplikimit. Rrotullimi i kundërt, madje edhe për një kohë shumë të shkurtër, dëmton kompresorin.
Skema e mbrojtjes nga rrotullimi i kundërt duhet të jetë në gjendje të përcaktojë drejtimin e rrotullimit dhe të ndalojë kompresorin brenda 300 milisekondave. Rrotullimi i kundërt ka më shumë gjasa të ndodhë sa herë që prishet instalimi elektrik në terminalet e kompresorit.
Për të minimizuar mundësinë e rrotullimit të kundërt, duhet të zbatohet procedura e mëposhtme. Rielidhni kabllot e energjisë në kunjën e terminalit të kompresorit siç ishin lidhur fillimisht.
Për zëvendësimin e kompresorit, një çelës i presionit të ulët përfshihet me kompresorin. Ky çelës i presionit të ulët duhet të instalohet përkohësisht si një siguri e fortë në pjesën e presionit të lartë të kompresorit. Qëllimi i këtij çelësi është të mbrojë kompresorin nga çdo gabim instalimi elektrik në kunjën e terminalit të kompresorit. Kontakti elektrik i çelësit do të lidhet në seri me çelësin e presionit të lartë. Çelësi do të qëndrojë në vend derisa kompresori të jetë ndezur dhe drejtimi i rrotullimit të jetë verifikuar; në këtë pikë, çelësi do të hiqet.
Çelësi që është zgjedhur për zbulimin e rrotullimit të kundërt është numri i pjesës Carrier HK01CB001. Është i disponueshëm si pjesë e "Paketës së instalimit të kompresorit" (pjesa nr. 06NA 660 013). Ky çelës hap kontaktet kur presioni bie nën 50 mm vakum. Çelësi është një lloj rivendosjeje manuale që mund të rivendoset pasi presioni të jetë rritur edhe një herë mbi 70 kPa. Është kritike që çelësi të jetë një lloj rivendosjeje manuale për të penguar kompresorin të qarkullojë shkurtimisht në drejtim të kundërt.
Ndiqni hapat e mëposhtëm për të diagnostikuar dhe korrigjuar problemet EXD/Economizer.
Në njësitë 30HXC/GX me ekonomizues, verifikoni që valvula për tubin e flluskave (fundi i Economizer) të jetë e hapur. Kontrolloni së pari funksionimin e motorit EXD (shihni procedurën në Kontrollin IOM). Duhet të jeni në gjendje të ndjeni lëvizjen e aktivizuesit duke vendosur dorën tuaj në trupin EXD ose ekonomizues (aktivizuesi ndodhet afërsisht një e gjysmë deri në dy të tretat e rrugës lart nga fundi i guaskës së ekonomizuesit). Duhet të ndjeni një trokitje të fortë që vjen nga aktivizuesi kur arrin në majë të goditjes së tij (mund të dëgjohet nëse rrethinat janë relativisht të qeta). Aktivizuesi duhet të trokasë kur arrin në fund të goditjes së tij. Nëse besohet se valvula nuk po funksionon siç duhet, kontaktoni departamentin tuaj të shërbimit Carrier për kontrolle të mëtejshme në:


Miratimi i Sistemit të Menaxhimit Mjedisor
Numri i porosisë: 13173-76, 03 1999 - Zëvendëson nr: 13173-76, Mars 1998
Prodhuesi rezervon të drejtën të ndryshojë çdo specifikim të produktit pa njoftim.
Prodhuesi: Carrier s.a., Montluel, France.
E shtypur në Holandë në letër pa klor.
