Manuali i Kompresorit me vidhë Carrier 30HXC/30GX
- 1 HYRJE
- 2 KONSIDERATAT E SIGURISË
- 3 PËRMASAT, PASTËRTIA, SHPËRNDARJA E PESHËS
- 4 TË DHËNAT FIZIKE 30HXC
- 5 TË DHËNAT ELEKTRIKE 30HXC
- 6 TË DHËNAT ELEKTRIKE PËR NJËSITË ME TEMPERATURA TË LARTA KONDENSIMI
- 7 TË DHËNAT FIZIKE 30GX
- 8 TË DHËNAT ELEKTRIKE 30GX
-
9
TË DHËNAT E APLIKIMIT
- 9.1 Gama e funksionimit të njësisë
- 9.2 Rrjedha minimale e ujit të ftohur
- 9.3 Rrjedha maksimale e ujit të ftohur
- 9.4 Avullues me rrjedhje të ndryshueshme
- 9.5 Vëllimi minimal i ujit të sistemit
- 9.6 Shkalla e rrjedhjes së ftohësit (l/s)
- 9.7 Shkalla e rrjedhjes së kondensatorit (l/s)
- 9.8 Grafiku i rënies së presionit të avulluesit
- 9.9 Grafiku i rënies së presionit të kondensatorit
- 9.10 Kontrolluesit e rrjedhës
- 10 INSTALIMI
- 11 UDHËZIMET E NGRITJES
- 12 KARAKTERISTIKAT ELEKTRIKE
- 13 SEKSIONET E REKOMANDUARA TË TELIT
-
14
KOMPONENTËT KRYESORE TË SISTEMIT DHE TË DHËNAT E OPERACIONIT
- 14.1 Kompresor me dy vidhos të çiftuar me ingranazhe
- 14.2 Avulluesi
- 14.3 Kondensator dhe ndarës vaji (30HXC)
- 14.4 Ndarës vaji (30GX)
- 14.5 Pajisja Elektronike e Zgjerimit (EXD)
- 14.6 Ekonomizuesi
- 14.7 Pompat e vajit
- 14.8 Valvulat e ftohjes së motorit
- 14.9 Sensorët
- 14.10 Termistorët
- 14.11 Rregullimi i ventilatorit 30GX
- 15 MIRËMBAJTJA
- 16 Zgjidhja e problemeve
- 17 Shkarko manual
- 18 Në Gjuhë të Tjera

HYRJE
Përpara fillimit fillestar të njësisë 30HXC dhe 30GX, ata që janë të përfshirë në fillimin, funksionimin dhe mirëmbajtjen duhet të jenë plotësisht të njohur me këto udhëzime dhe të dhëna të tjera të nevojshme të punës. Ky libër ofron një përmbledhje në mënyrë që të njiheni me sistemin e kontrollit përpara se të kryeni procedurat e fillimit. Procedurat në këtë manual janë rregulluar në rendin e kërkuar për fillimin dhe funksionimin e duhur të makinës.
KONSIDERATAT E SIGURISË
Ftohësit e lëngshëm 30HXC dhe 30GX janë projektuar për të ofruar shërbim të sigurt dhe të besueshëm kur përdoren brenda specifikimeve të projektimit. Kur përdorni këtë pajisje, përdorni gjykimin e duhur dhe masat paraprake të sigurisë për të shmangur dëmtimin e pajisjeve dhe pronës ose lëndimin e personelit.
Sigurohuni që t'i kuptoni dhe të ndiqni procedurat dhe masat paraprake të sigurisë që gjenden në udhëzimet e makinës, si dhe ato të listuara në këtë udhëzues.
MOS I SJELLNI VALVULAT E SIGURISË së ftohësit brenda një ndërtese. Dalja nga valvula e sigurisë duhet të dalë jashtë. Grumbullimi i ftohësit në një hapësirë të mbyllur mund të zhvendosë oksigjenin dhe të shkaktojë asfiksi ose shpërthime.
SIGUROJNI ajrim të mjaftueshëm, veçanërisht për hapësirat e mbyllura dhe të ulëta. Thithja e përqendrimeve të larta të avullit është e dëmshme dhe mund të shkaktojë parregullsi të zemrës, humbje të vetëdijes ose vdekje. Avulli është më i rëndë se ajri dhe zvogëlon sasinë e oksigjenit të disponueshëm për frymëmarrje. Produkti shkakton acarim të syve dhe lëkurës. Produktet e dekompozimit janë të rrezikshme.
MOS PËRDORNI OKSIGJEN për të pastruar linjat ose për të ushtruar presion në një makinë për çfarëdo qëllimi. Gazi i oksigjenit reagon me forcë me vajin, yndyrën dhe substancat e tjera të zakonshme.
MOS I KALONI ASNJËHERË presionet e specifikuara të provës, VERIFIKONI presionin e lejueshëm të provës duke kontrolluar literaturën e udhëzimeve dhe presionet e projektimit në pllakën e emrit të pajisjes.
MOS PËRDORNI ajër për testimin e rrjedhjeve. Përdorni vetëm ftohës ose azot të thatë.
MOS E MBYLLNI ASNJË PAJISJE SIGURIE.
SIGUROHUNI që të gjitha pajisjet e shkarkimit të presionit të jenë instaluar siç duhet përpara se të përdorni ndonjë makinë.
MOS LASDONI APO PRITNI ME FLAKË ndonjë linjë ose enë ftohëse derisa i gjithë ftohësi (lëng dhe avull) të jetë hequr nga ftohësi. Gjurmët e avullit duhet të zhvendosen me azot të thatë ajri dhe zona e punës duhet të jetë e ajrosur mirë. Ftohësi në kontakt me një flakë të hapur prodhon gazra toksike.
MOS punoni në pajisje të energjizuara nëse nuk jeni një elektricist i aftë.
MOS PUNONI në komponentë elektrikë, duke përfshirë panelet e kontrollit, çelësat, rele etj., derisa të jeni të sigurt se i GJITHË FUQIA ËSHTË FIKUR dhe tensioni i mbetur mund të rrjedhë nga kondensatorët ose komponentët e gjendjes së ngurtë.
MBYLLNI HAPUR DHE ETIKETONI qarqet elektrike gjatë servisimit. NËSE PUNA NDËRPRITET, kontrolloni që të gjitha qarqet të jenë çaktivizuar përpara se të rifilloni punën.
MOS e sifononi ftohësin.
SHMANGNI DERDHJEN e ftohësit të lëngshëm në lëkurë ose futjen e tij në sy. PËRDORNI SYZE SIGURIE. Lani çdo derdhje nga lëkura me ujë dhe sapun. Nëse ftohësi i lëngshëm hyn në sy,
SHPËLAJENI MENJËHERË SYTË me ujë dhe konsultohuni me një mjek.
MOS APLIKONI ASNJËHERË një flakë të hapur ose avull të gjallë në enën e ftohësit. Mund të rezultojë mbipresion i rrezikshëm. Nëse është e nevojshme të nxehet ftohësi, përdorni vetëm ujë të ngrohtë.
MOS I RIPËRDORNI cilindrat e disponueshëm (që nuk kthehen) ose mos u përpiqni t'i rimbushni ato. ËSHTË E RREZIKSHME DHE E PALIGJSHME. Kur cilindrat të jenë zbrazur, evakuoni presionin e mbetur të gazit, lironi jakën dhe zhvidhosni dhe hidhni bishtin e valvulës. MOS I INCINERONI.
KONTROLLONI LLOJIN E FTOHËSIT përpara se të shtoni ftohës në makinë. Futja e ftohësit të gabuar mund të shkaktojë dëme ose mosfunksionim në këtë makinë.
MOS TENTONI TË HIQNI montime, komponentë etj., ndërsa makina është nën presion ose ndërsa makina po funksionon. Sigurohuni që presioni të jetë në 0 kPa përpara se të prishni lidhjen e ftohësit.
INSPEKTONI ME KUJDES të gjitha pajisjet e sigurisë, TË PAKTËN NJË HERË NË VIT. Nëse makina funksionon në një atmosferë gërryese, inspektoni pajisjet në intervale më të shpeshta.
MOS TENTONI TË RIPARONI APO RIKONDICIONONI ndonjë pajisje sigurie kur zbulohet korrozioni ose grumbullimi i materialeve të huaja (ndryshk, papastërti, skorje, etj.) brenda trupit ose mekanizmit të valvulës. Zëvendësoni pajisjen.
MOS I instaloni pajisjet e sigurisë në seri ose prapa.
MOS SHKELNI në linjat e ftohësit. Linjat e thyera mund të rrihen dhe të lëshojnë ftohës, duke shkaktuar lëndime personale.
MOS U NGJITNI mbi një makinë. Përdorni platformë ose skenë.
PËRDORNI PAJISJE MEKANIKË (vinç, ngritës, etj.) për të ngritur ose lëvizur komponentë të rëndë. Edhe nëse komponentët janë të lehtë, përdorni pajisje mekanike kur ekziston rreziku i rrëshqitjes ose humbjes së ekuilibrit.
JI GJITHMONË I VËMENDSHËM se disa rregullime automatike të fillimit MUND TË ANGAZHOHEN VENTILATORËT E KULLËS, APO POMPAT. Hapni shkëputësin përpara ventilatorëve ose pompave të kullës.
PËRDORNI vetëm pjesë riparimi ose zëvendësimi që plotësojnë kërkesat e kodit të pajisjeve origjinale.
MOS I SJELLNI APO ZBRAZNI kutitë e ujit që përmbajnë kripëra industriale, pa lejen e një organi kompetent.
MOS I LIRONI bulonat e kutisë së ujit derisa kutia e ujit të jetë zbrazur plotësisht.
MOS E LIRONI një dado të gjëndrës së paketimit përpara se të kontrolloni që dadoja të ketë një angazhim pozitiv të filetos.
INSPEKTONI PERIODIKISHT të gjitha valvulat, montimet dhe tubacionet për korrozion, ndryshk, rrjedhje ose dëmtim.
SIGURONI NJË LIDHJE SHKARIMI në linjën e ajrimit pranë secilës pajisje për lehtësimin e presionit për të parandaluar grumbullimin e kondensatës ose ujit të shiut.
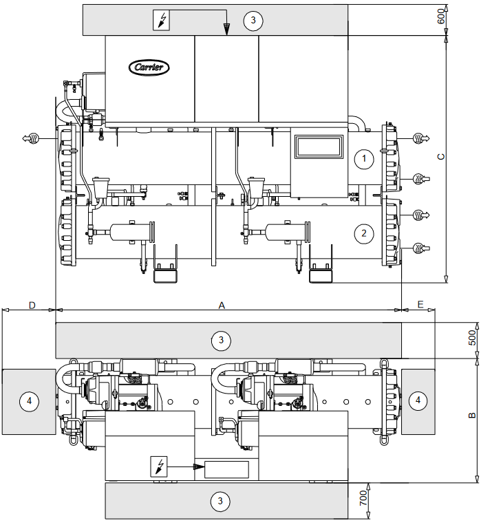
PËRMASAT, PASTËRTIA, SHPËRNDARJA E PESHËS
30HXC 080-190
30HXC080
30HXC090
30HXC100
30HXC110

- Avullues
- Kondensator
- Pastrimet e nevojshme për funksionim dhe mirëmbajtje
- Pastrimet e nevojshme për heqjen e tubit të shkëmbyesit të nxehtësisë. Pastrimet D dhe E mund të jenë ose në anën e majtë ose në anën e djathtë.
Hyrja e ujit
Dalja e ujit
Furnizimi me energji
kg: pesha totale e funksionimit
| A mm | B mm | C mm | D mm | E mm | kg | |
| 30HXC080 30HXC090 30HXC100 |
2705 | 950 | 1850 | 2360 | 1000 | 2447 2462 2504 |
| 30HXC110 | 2705 | 950 | 1900 | 2360 | 1000 | 2650 |
| 30HXC120 30HXC130 30HXC140 30HXC155 |
3535 | 950 | 1875 | 3220 | 1000 | 2846 2861 2956 2971 |
| 30HXC175 30HXC190 |
3550 | 950 | 2000 | 3220 | 1000 | 3283 3438 |
SHËNIM: Referojuni vizatimeve të certifikuara dimensionale të furnizuara me njësinë, kur projektoni një instalim.
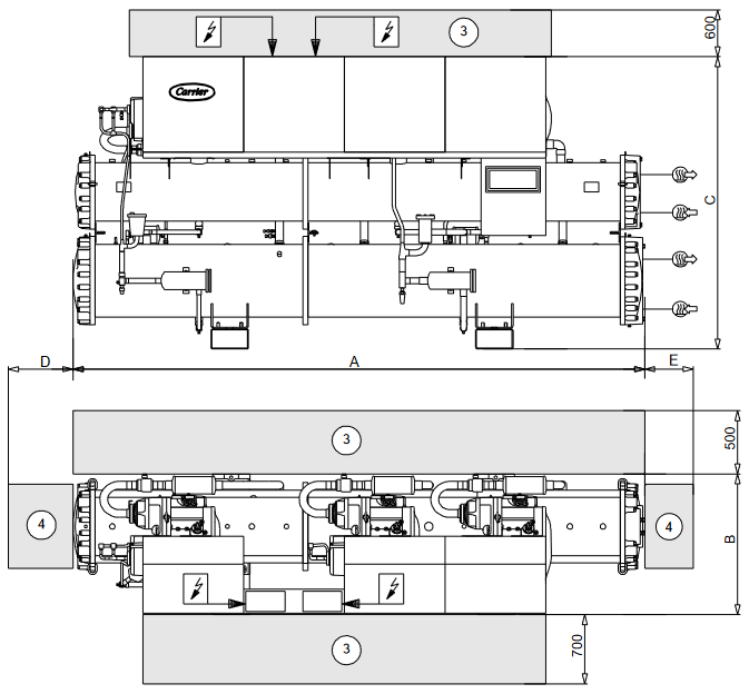
30HXC 200-375

- Avullues
- Kondensator
- Pastrimet e nevojshme për funksionim dhe mirëmbajtje
- Pastrimet e nevojshme për heqjen e tubit të shkëmbyesit të nxehtësisë. Pastrimet D dhe E mund të jenë ose në anën e majtë ose në anën e djathtë.
Hyrja e ujit
Dalja e ujit
Furnizimi me energji
kg: pesha totale e funksionimit
| A mm | B mm | C mm | D mm | E mm | kg | |
| 30HXC200 | 3975 | 980 | 2035 | 3620 | 1000 | 4090 |
| 30HXC230 30HXC260 30HXC285 |
3995 | 980 | 2116 | 3620 | 1000 | 4705 4815 4985 |
| 30HXC310 30HXC345 30HXC375 |
4490 | 980 | 2163 | 4120 | 1000 | 5760 5870 6105 |
SHËNIM: Referojuni vizatimeve të certifikuara dimensionale të furnizuara me njësinë, kur projektoni një instalim.
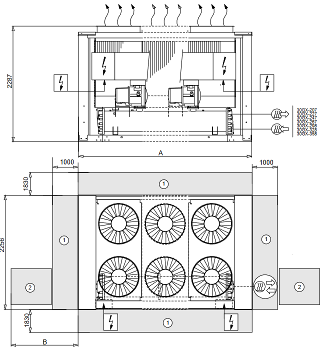
30GX 082-182
30GX-082
30GX-092
30GX-102
30GX-112
30GX-122
30GX-132
30GX-152
30GX-162
30GX-182


- Pastrimet e nevojshme për funksionim dhe mirëmbajtje
- Pastrimet e nevojshme për heqjen e tubit të shkëmbyesit të nxehtësisë. Pastrimet mund të jenë ose në anën e majtë ose në anën e djathtë.
Hyrja e ujit
Dalja e ujit
Furnizimi me energji
Dalja e ajrit - mos e pengoni
kg: pesha totale e funksionimit
| A mm | B mm | kg | |
| 30GX082 30GX092 30GX102 |
2970 | 2215 | 3116 3157 3172 |
| 30GX112 30GX122 30GX132 |
3427 | 2045 | 3515 3531 3633 |
| 30GX152 30GX162 |
4342 | 2835 | 3920 3936 |
| 30GX182 | 5996 | 1820 | 4853 |
Instalimi i shumë ftohësve


Shënime:
- Njësia duhet të ketë pastrime për rrjedhjen e ajrit si më poshtë:
Sipër: mos e kufizoni në asnjë mënyrë - Në rastin e shumë ftohësve (deri në katër njësi), pastrimi përkatës midis tyre duhet të rritet nga 1830 në 2000 mm për kërkesën e hapësirës anësore.
- Kërkohen pastrime për heqjen e tubit ftohës.
SHËNIM: Referojuni vizatimeve të certifikuara dimensionale të furnizuara me njësinë, kur projektoni një instalim.
30GX 207-358
30GX-207
30GX-227
30GX-247
30GX-267
30GX-298
30GX-328
30GX-358

- Pastrimet e nevojshme për funksionim dhe mirëmbajtje
- Pastrimet e nevojshme për heqjen e tubit të shkëmbyesit të nxehtësisë. Pastrimet mund të jenë ose në anën e majtë ose në anën e djathtë.
Hyrja e ujit
Dalja e ujit
Furnizimi me energji
Dalja e ajrit - mos e pengoni
kg: pesha totale e funksionimit
| A mm | B mm | kg | |
| 30GX207 30GX227 |
5996 | 2895 | 5540 5570 |
| 30GX247 30GX267 |
6911 | 2470 | 6134 6365 |
| 30GX298 | 7826 | 2220 | 7354 |
| 30GX328 30GX358 |
8741 | 1250 | 7918 8124 |
Instalimi i shumë ftohësve


Shënime:
- Njësia duhet të ketë pastrime për rrjedhjen e ajrit si më poshtë:
Sipër: mos e kufizoni në asnjë mënyrë - Në rastin e shumë ftohësve (deri në katër njësi), pastrimi përkatës midis tyre duhet të rritet nga 1830 në 2000 mm për kërkesën e hapësirës anësore.
- Kërkohen pastrime për heqjen e tubit ftohës.
SHËNIM: Referojuni vizatimeve të certifikuara dimensionale të furnizuara me njësinë, kur projektoni një instalim.
TË DHËNAT FIZIKE 30HXC
| 30HXC | 080 | 090 | 100 | 110 | 120 | 130 | 140 | 155 | 175 | 190 | 200 | 230 | 260 | 285 | 310 | 345 | 375 | |
| Kapaciteti neto i ftohjes | kW | 292 | 321 | 352 | 389 | 426 | 464 | 514 | 550 | 607 | 663 | 716 | 822 | 918 | 996 | 1119 | 1222 | 1326 |
| Pesha operative | kg | 2447 | 2462 | 2504 | 2650 | 2846 | 2861 | 2956 | 2971 | 3283 | 3438 | 4090 | 4705 | 4815 | 4985 | 5760 | 5870 | 6105 |
| Ftohësi Qarku A/B |
HFC-134a | |||||||||||||||||
| kg | 39/36 | 39/36 | 37/32 | 38/38 | 57/55 | 59/50 | 56/50 | 59/52 | 58/61 | 60/70 | 110/58 | 118/63 | 120/75 | 120/75 | 108/110 | 110/110 | 110/120 | |
| Vaj Qarku A/B |
Vaj poliolester CARRIER SPEC: PP 47-32 | |||||||||||||||||
| l | 15/15 | 15/15 | 15/15 | 15/15 | 15/15 | 15/15 | 15/15 | 15/15 | 15/15 | 15/15 | 30/15 | 30/15 | 30/15 | 30/15 | 30/30 | 30/30 | 30/30 | |
| Kompresorët | Hermetik me dy vidha Power3 | |||||||||||||||||
| Qarku A, madhësia nominale për kompresor** | 39 | 46 | 46 | 56 | 56 | 66 | 80 | 80 | 80 | 80+ | 66/56 | 80/56 | 80/80 | 80+/80+ | 80/66 | 80/80 | 80+/80+ | |
| Qarku B, madhësia nominale për kompresor** | 39 | 39 | 46 | 46 | 56 | 56 | 56 | 66 | 80 | 80+ | 66 | 80 | 80 | 80+ | 80/66 | 80/80 | 80+/80+ | |
| Lloji i kontrollit | Kontrolli PRO-DIALOG Plus | |||||||||||||||||
| Numri i hapave të kapacitetit | 6 | 6 | 6 | 6 | 6 | 6 | 6 | 6 | 6 | 6 | 8 | 8 | 8 | 8 | 10 | 10 | 10 | |
| Kapaciteti minimal | % | 19 | 19 | 21 | 19 | 21 | 19 | 17 | 19 | 21 | 21 | 14 | 14 | 14 | 14 | 10 | 10 | 10 |
| Avulluesi | Lloji guaskë dhe tub, me tuba bakri me brinjë të brendshme | |||||||||||||||||
| Vëllimi neto i ujit | l | 65 | 65 | 73 | 87 | 81 | 81 | 91 | 91 | 109 | 109 | 140 | 165 | 181 | 181 | 203 | 229 | 229 |
| Lidhjet e ujit | Fllanxha e sheshtë e furnizuar nga fabrika, për t'u salduar në vend | |||||||||||||||||
| Hyrja dhe dalja | in. | 4 | 4 | 4 | 5 | 5 | 5 | 5 | 5 | 5 | 5 | 6 | 6 | 6 | 6 | 8 | 8 | 8 |
| Drena dhe ajrimi (NPT) | in. | 3/8 | 3/8 | 3/8 | 3/8 | 3/8 | 3/8 | 3/8 | 3/8 | 3/8 | 3/8 | 3/8 | 3/8 | 3/8 | 3/8 | 3/8 | 3/8 | 3/8 |
| Presioni maksimal operativ në anën e ujit | kPa | 1000 | 1000 | 1000 | 1000 | 1000 | 1000 | 1000 | 1000 | 1000 | 1000 | 1000 | 1000 | 1000 | 1000 | 1000 | 1000 | 1000 |
| Kondensatorët | Lloji guaskë dhe tub, me tuba bakri me brinjë të brendshme | |||||||||||||||||
| Vëllimi neto i ujit | l | 58 | 58 | 58 | 58 | 92 | 92 | 110 | 110 | 132 | 132 | 162 | 208 | 208 | 208 | 251 | 251 | 251 |
| Lidhjet e ujit | Fllanxha e sheshtë e furnizuar nga fabrika, për t'u salduar në vend | |||||||||||||||||
| Hyrja dhe dalja | in. | 5 | 5 | 5 | 5 | 5 | 5 | 5 | 5 | 6 | 6 | 6 | 6 | 6 | 6 | 8 | 8 | 8 |
| Drena dhe ajrimi (NPT) | in. | 3/8 | 3/8 | 3/8 | 3/8 | 3/8 | 3/8 | 3/8 | 3/8 | 3/8 | 3/8 | 3/8 | 3/8 | 3/8 | 3/8 | 3/8 | 3/8 | 3/8 |
| Presioni maksimal operativ në anën e ujit | kPa | 1000 | 1000 | 1000 | 1000 | 1000 | 1000 | 1000 | 1000 | 1000 | 1000 | 1000 | 1000 | 1000 | 1000 | 1000 | 1000 | 1000 |
* Kushtet e standardizuara Eurovent: temperaturat e ujit hyrës/dalës të avulluesit = 12°C/7°C, temperaturat e ujit hyrës/dalës të kondensatorit = 30°C/35°C Kapaciteti neto i ftohjes: Kapaciteti bruto i ftohjes minus nxehtësinë e pompës së ujit kundër rënies së presionit të brendshëm të avulluesit. ** Madhësia e kompresorit korrespondon me kapacitetin nominal në ton (1 ton = 3,517 kW).
TË DHËNAT ELEKTRIKE 30HXC
| 30HXC | 080 | 090 | 100 | 110 | 120 | 130 | 140 | 155 | 175 | 190 | 200 | 230 | 260 | 285 | 310 | 345 | 375 | |
| Qarku i energjisë | ||||||||||||||||||
| Furnizimi nominal me energji* | V-ph-Hz | 400-3-50 | ||||||||||||||||
| Gama e tensionit | V | 360-440 | ||||||||||||||||
| Furnizimi i qarkut të kontrollit | Qarku i kontrollit furnizohet nëpërmjet transformatorit të instaluar në fabrikë | |||||||||||||||||
| Hyrja nominale e energjisë* | kW | 59 | 67 | 74 | 83 | 88 | 99 | 112 | 123 | 135 | 146 | 156 | 179 | 201 | 219 | 245 | 274 | 298 |
| Rryma nominale e tërhequr* | A | 98 | 111 | 124 | 139 | 148 | 166 | 186 | 204 | 226 | 242 | 259 | 291 | 335 | 367 | 408 | 456 | 498 |
| Hyrja maksimale e energjisë** | kW | 76 | 83 | 91 | 101 | 111 | 121 | 135 | 145 | 158 | 181 | 187 | 214 | 237 | 272 | 290 | 316 | 362 |
| Qarku A | kW | - | - | - | - | - | - | - | - | - | - | 121 | 135 | 158 | 181 | 145 | 158 | 181 |
| Qarku B | kW | - | - | - | - | - | - | - | - | - | - | 66 | 79 | 79 | 91 | 145 | 158 | 181 |
| Kosinus phi, njësi në ngarkesë të plotë | 0.87 | 0.87 | 0.87 | 0.87 | 0.87 | 0.87 | 0.87 | 0.87 | 0.87 | 0.87 | 0.87 | 0.87 | 0.87 | 0.87 | 0.87 | 0.87 | 0.87 | |
| Rryma maksimale e tërhequr (Un - 10%)*** | A | 138 | 152 | 166 | 184 | 202 | 221 | 245 | 264 | 288 | 330 | 341 | 389 | 432 | 495 | 528 | 576 | 660 |
| Qarku A | A | - | - | - | - | - | - | - | - | - | - | 221 | 245 | 288 | 330 | 264 | 288 | 330 |
| Qarku B | A | - | - | - | - | - | - | - | - | - | - | 120 | 144 | 144 | 165 | 264 | 288 | 330 |
| Rryma maksimale e tërhequr (Un)*** | A | 125 | 138 | 151 | 167 | 184 | 201 | 223 | 240 | 262 | 300 | 310 | 354 | 393 | 450 | 480 | 524 | 600 |
| Qarku A | A | - | - | - | - | - | - | - | - | - | - | 201 | 223 | 262 | 300 | 240 | 262 | 300 |
| Qarku B | A | - | - | - | - | - | - | - | - | - | - | 109 | 131 | 131 | 150 | 240 | 262 | 300 |
| Rryma maksimale e ndezjes, njësi standarde (Un)**** | A | 172 | 197 | 209 | 235 | 252 | 283 | 318 | 335 | 357 | 420 | 806 | 938 | 977 | 1156 | 1064 | 1108 | 1306 |
| Qarku A | A | - | - | - | - | - | - | - | - | - | - | 697 | 807 | 846 | 1006 | 824 | 846 | 1006 |
| Qarku B | A | - | - | - | - | - | - | - | - | - | - | 605 | 715 | 715 | 856 | 824 | 846 | 1006 |
| Raporti maksimal i rrymës së ndezjes/rrymës maksimale të tërheqjes, njësi | 1.37 | 1.42 | 1.39 | 1.41 | 1.37 | 1.41 | 1.43 | 1.40 | 1.36 | 1.40 | 2.60 | 2.65 | 2.49 | 2.57 | 2.22 | 2.12 | 2.18 | |
| Raporti maksimal i rrymës së ndezjes/rrymës maksimale të tërheqjes, qarku A | - | - | - | - | - | - | - | - | - | - | 3.47 | 3.62 | 3.23 | 3.35 | 3.43 | 3.23 | 3.35 | |
| Raporti maksimal i rrymës së ndezjes/rrymës maksimale të tërheqjes, qarku B | - | - | - | - | - | - | - | - | - | - | 5.55 | 5.46 | 5.46 | 5.71 | 3.43 | 3.23 | 3.35 | |
| Rryma maksimale e ndezjes - fillimi i rrymës së reduktuar (Un) **** | A | std. | std. | std. | std. | std. | std. | std. | std. | std. | std. | 601 | 643 | 682 | 760 | 769 | 813 | 910 |
| Qarku A | A | std. | std. | std. | std. | std. | std. | std. | std. | std. | std. | 492 | 512 | 551 | 610 | 529 | 551 | 610 |
| Qarku B | A | std. | std. | std. | std. | std. | std. | std. | std. | std. | std. | 330 | 370 | 370 | 385 | 529 | 551 | 610 |
| Rryma maksimale e ndezjes - raporti i fillimit të rrymës së kuqe/tërheqjes maksimale të rrymës, njësi | std. | std. | std. | std. | std. | std. | std. | std. | std. | std. | 1.94 | 1.82 | 1.74 | 1.69 | 1.60 | 1.55 | 1.52 | |
| Qarku A | std. | std. | std. | std. | std. | std. | std. | std. | std. | std. | 2.45 | 2.30 | 2.10 | 2.03 | 2.20 | 2.10 | 2.03 | |
| Qarku B | std. | std. | std. | std. | std. | std. | std. | std. | std. | std. | 3.03 | 2.83 | 2.83 | 2.57 | 2.20 | 2.10 | 2.03 | |
| Rryma trefazore e mbajtjes së qarkut të shkurtër | kA | 25 | 25 | 25 | 25 | 25 | 25 | 25 | 25 | 25 | 25 | N/A | N/A | N/A | N/A | N/A | N/A | N/A |
| Qarku A | kA | - | - | - | - | - | - | - | - | - | - | 25 | 25 | 25 | 25 | 25 | 25 | 25 |
| Qarku B | kA | - | - | - | - | - | - | - | - | - | - | 15 | 15 | 15 | 15 | 25 | 25 | 25 |
| Kapaciteti gatishmërie i klientit, njësi ose circ. A, për lidhjet e pompës së ujit të avulluesit† | kW | 8 | 8 | 8 | 11 | 11 | 11 | 15 | 15 | 15 | 15 | 15 | 18 | 18 | 30 | 30 | 30 | 30 |
* Kushtet standarde të Eurovent: Temperatura e ujit në hyrje/dalje të avulluesit 12°C dhe 7°C. Temperatura e ujit në hyrje/dalje të kondensatorit 30°C/35°C.
** Hyrja e energjisë, kompresori, në kufijtë e funksionimit të njësisë (temperatura e ujit në hyrje/dalje të avulluesit = 15°C/10°C, temperatura e ujit në hyrje/dalje të kondensatorit = 40°C/45°C) dhe një tension nominal prej 400 V (të dhënat e dhëna në pllakën e emrit të njësisë).
*** Rryma maksimale e funksionimit të njësisë me hyrjen maksimale të energjisë së njësisë.
**** Rryma maksimale e menjëhershme e ndezjes (rryma maksimale e funksionimit të kompresorit(ëve) më të vogël + rryma e bllokuar e rotorit ose rryma e reduktuar e ndezjes së kompresorit më të madh)
† Hyrjet aktuale dhe të energjisë nuk përfshihen në vlerat e mësipërme.
N/A Nuk disponohet
Kompresorët
| Referenca | Madhësia | I nom. | MHA | LRA | LRA (Y) | LRA (S) 1 cp. | LRA (S) 2 cp. |
| 06NW2146S7N | 39 | 48 | 69 | 344 | 109 | 125 | - |
| 06NW2174S7N | 46 | 58 | 83 | 423 | 134 | 154 | - |
| 06NW2209S7N | 56 | 71 | 101 | 506 | 160 | 260 | 350 |
| 06NW2250S7N | 66 | 87 | 120 | 605 | 191 | 330 | 400 |
| 06NW2300S5N | 80 | 104 | 144 | 715 | 226 | 370 | 420 |
| 06NW2300S5E | 80+ | 111 | 165 | 856 | 270 | 385 | 460 |
Legjenda:
| 06NW | Kompresor për njësi të ftohura me ujë |
| N | Kompresor jo i ekonomizuar |
| E | Kompresor i ekonomizuar |
| INOM | Tërheqja mesatare e rrymës së kompresorit në kushtet e Eurovent |
| MHA | Duhet të mbajë amper (rryma maksimale e funksionimit) në 360 V |
| LRA | Rryma e bllokuar e rotorit me ndezje në të gjithë linjën |
| LRA (Y) | Rryma e bllokuar e rotorit në rrymë të reduktuar (modaliteti i ndezjes yll/delta) |
| LRA (S) 1 cp. | Ndezja me rrymë të reduktuar me ndezës elektronik (kohëzgjatja e ndezjes 3 sekonda max.) për një kompresor për qark |
| LRA (S) 2 cp. | Ndezja me rrymë të reduktuar me ndezës elektronik (kohëzgjatja e ndezjes 3 sekonda max.) për dy kompresorë për qark |
TË DHËNAT ELEKTRIKE PËR NJËSITË ME TEMPERATURA TË LARTA KONDENSIMI
Opsionet 30HXC 150 dhe 150A
| 30HXC | 080 | 090 | 100 | 110 | 120 | 130 | 140 | 155 | 175 | 190 | 200 | 230 | 260 | 285 | 310 | 345 | 375 | |
| Qarku elektrik | ||||||||||||||||||
| Furnizimi nominal me energji* | V-ph-Hz | 400-3-50 | ||||||||||||||||
| Gama e tensionit | V | 360-440 | ||||||||||||||||
| Furnizimi i qarkut të kontrollit | Qarku i kontrollit furnizohet nëpërmjet transformatorit të instaluar në fabrikë | |||||||||||||||||
| Fuqia maksimale hyrëse** | kW | 104 | 117 | 131 | 145 | 159 | 174 | 194 | 211 | 230 | 263 | 271 | 310 | 345 | 395 | 422 | 460 | 526 |
| Qarku A | kW | - | - | - | - | - | - | - | - | - | - | 175 | 195 | 230 | 263 | 211 | 230 | 263 |
| Qarku B | kW | - | - | - | - | - | - | - | - | - | - | 96 | 115 | 115 | 132 | 211 | 230 | 263 |
| Rryma maksimale e tërhequr (Un - 10%)*** | A | 190 | 215 | 240 | 265 | 290 | 320 | 355 | 385 | 420 | 480 | 495 | 564 | 630 | 720 | 770 | 840 | 960 |
| Qarku A | A | - | - | - | - | - | - | - | - | - | - | 320 | 355 | 420 | 480 | 385 | 420 | 480 |
| Qarku B | A | - | - | - | - | - | - | - | - | - | - | 175 | 210 | 210 | 240 | 385 | 420 | 480 |
| Rryma maksimale e tërhequr (Un)*** | A | 173 | 195 | 218 | 241 | 264 | 291 | 323 | 350 | 382 | 436 | 450 | 514 | 573 | 655 | 700 | 764 | 873 |
| Qarku A | A | - | - | - | - | - | - | - | - | - | - | 291 | 323 | 382 | 436 | 350 | 382 | 436 |
| Qarku B | A | - | - | - | - | - | - | - | - | - | - | 159 | 191 | 191 | 218 | 350 | 382 | 436 |
| Rryma maksimale e ndezjes, njësia standarde (Un)**** | A | 277 | 312 | 335 | 379 | 402 | 435 | 519 | 546 | 578 | 618 | 1251 | 1549 | 1608 | 1701 | 1735 | 1799 | 1920 |
| Qarku A | A | - | - | - | - | - | - | - | - | - | - | 1092 | 1358 | 1417 | 1483 | 1385 | 1417 | 1483 |
| Qarku B | A | - | - | - | - | - | - | - | - | - | - | 960 | 1226 | 1226 | 1265 | 1385 | 1417 | 1483 |
| Raporti maksimal i rrymës së ndezjes/tërheqjes maksimale të rrymës, njësia | 1.61 | 1.60 | 1.54 | 1.57 | 1.52 | 1.49 | 1.61 | 1.56 | 1.51 | 1.42 | 2.78 | 3.02 | 2.81 | 2.60 | 2.48 | 2.36 | 2.20 | |
| Raporti maksimal i rrymës së ndezjes/tërheqjes maksimale të rrymës, qarku A | - | - | - | - | - | - | - | - | - | - | 3.75 | 4.21 | 3.71 | 3.40 | 3.96 | 3.71 | 3.40 | |
| Raporti maksimal i rrymës së ndezjes/tërheqjes maksimale të rrymës, qarku B | - | - | - | - | - | - | - | - | - | - | 6.03 | 6.42 | 6.42 | 5.80 | 3.96 | 3.71 | 3.40 | |
| Rryma maksimale e ndezjes - fillimi i rrymës së reduktuar (Un) **** | A | std. | std. | std. | std. | std. | std. | std. | std. | std. | std. | N/A | N/A | N/A | N/A | N/A | N/A | N/A |
| Rryma mbajtëse e qarkut të shkurtër trefazor | kA | 25 | 25 | 25 | 25 | 25 | 25 | 25 | 25 | 25 | 25 | N/A | N/A | N/A | N/A | N/A | N/A | N/A |
| Qarku A | kA | - | - | - | - | - | - | - | - | - | - | 25 | 25 | 25 | 25 | 25 | 25 | 25 |
| Qarku B | kA | - | - | - | - | - | - | - | - | - | - | 15 | 15 | 15 | 15 | 25 | 25 | 25 |
| Kapaciteti gatishmërisë së klientit, njësia ose qarku A, për lidhjet e pompës së ujit avullues† | kW | 8 | 8 | 8 | 11 | 11 | 11 | 15 | 15 | 15 | 15 | 15 | 18 | 18 | 30 | 30 | 30 | 30 |
** Fuqia hyrëse, kompresori, në kufijtë e funksionimit të njësisë (temperatura e ujit që hyn/del nga avulluesi = 15°C/10°C, temperatura e ujit që hyn/del nga kondensatori = 40°C/45°C) dhe një tension nominal prej 400 V (të dhënat e dhëna në pllakën e emrit të njësisë).
*** Rryma maksimale e funksionimit të njësisë në fuqinë maksimale hyrëse të njësisë.
**** Rryma maksimale e menjëhershme e ndezjes (rryma maksimale e funksionimit të kompresorit(ëve) më të vogël(t) + rryma e kyçur e rotorit ose rryma e reduktuar e ndezjes së kompresorit më të madh)
† Rrymat dhe fuqitë hyrëse nuk përfshihen në vlerat e mësipërme.
N/A Nuk disponohet
Njësitë 30HXC 080-375 për temperatura të larta kondensimi rrjedhin drejtpërdrejt nga modelet standarde. Gama e tyre e aplikimit është e njëjtë me atë të njësive standarde, por lejon funksionimin në temperatura të ujit që del nga kondensatori deri në 63°C. Kontrolli PRO-DIALOG ofron të gjitha avantazhet e njësive standarde, plus kontrollin e temperaturës së ujit që del nga kondensatori.
Modifikimet kryesore janë:
- Përdorimi i kompresorëve 30GX
- Modifikimi i përbërësve elektrikë për të funksionuar me kompresorë për temperatura të larta kondensimi.
- Modifikimi i shkëmbyesve të nxehtësisë për të përmbushur kërkesat e kodit të presionit (nëse është e nevojshme).
Opsioni 150
Këto njësi janë projektuar për aplikime tradicionale për njësitë e ftohura me ujë, por për temperatura më të larta të ujit që del nga kondensatori sesa 45°C.
Ashtu si njësitë standarde, ato janë të pajisura me sensorë të ujit që hyn dhe del nga kondensatori, të instaluar në tubacion.
Është e mundur të kontrollohet makina në daljen e ujit të kondensatorit, duke kërkuar një ndryshim konfigurimi në fabrikë dhe përdorimin e një pajisjeje kthimi hyrëse për ngrohje/ftohje.
Opsioni 150A
Këto njësi janë projektuar për pompa nxehtësie ujë-në-ujë.
Ato janë të konfiguruara në fabrikë si pompa nxehtësie (kontrolli i ngrohjes/ftohjes si funksion i pajisjes së kthimit të largët). Kondensatori përfshin izolim termik që është identik me atë të avulluesit.
Informacioni teknik
I gjithë informacioni është identik me atë të njësive standarde 30HXC, përveç paragrafëve të mëposhtëm.
Përzgjedhja
Nuk ka kushte nominale për këtë lloj njësie. Përzgjedhja bëhet duke përdorur katalogun elektronik aktual.
Përmasat
Këto janë identike me ato të njësive standarde 30HXC. Dallimi i vetëm është në diametrin e lidhjes hyrëse të telave të fushës, të përshkruara në kapitullin "Përzgjedhja e rekomanduar". Referojuni vizatimeve dimensionale për këto njësi, përpara se të vazhdoni me instalimin e telave.
Kompresori
Shih tabelën e kompresorit 30GX.
Opsionet dhe aksesorët
Të gjitha opsionet e disponueshme për njësitë standarde 30HXC janë të pajtueshme, përveç:
| Opsioni 5, njësia e kripës | Njësi speciale |
| Opsioni 25, fillim i butë, njësitë 30HXC 200-375 | Nuk disponohet |
Kujdes:
Nëse njësitë kanë dy mënyra të ndryshme funksionimi - njëra me temperaturë të lartë kondensimi dhe tjetra me temperaturë të ulët kondensimi - dhe kalimi bëhet me njësinë në funksionim, temperatura nuk duhet të ndryshojë me më shumë se 3 K për minutë. Në rastet kur kjo nuk është e mundur, rekomandohet të kalohet nëpërmjet një çelësi ndezje/fikje të njësisë (ndezja/fikja e largët e disponueshme për njësitë standarde).
TË DHËNAT FIZIKE 30GX
| 30GX | 082 | 092 | 102 | 112 | 122 | 132 | 152 | 162 | 182 | 207 | 227 | 247 | 267 | 298 | 328 | 358 | ||
| Kapaciteti neto ftohës | kW | 285 | 309 | 332 | 388 | 417 | 450 | 505 | 536 | 602 | 687 | 744 | 810 | 910 | 1003 | 1103 | 1207 | |
| Pesha e funksionimit | kg | 3116 | 3157 | 3172 | 3515 | 3531 | 3633 | 3920 | 3936 | 4853 | 5540 | 5570 | 6134 | 6365 | 7354 | 7918 | 8124 | |
| Ngarkesa e ftohësit | HFC-134a | |||||||||||||||||
| Qarku A/B | kg | 55/55 | 58/50 | 54/53 | 55/53 | 60/57 | 63/60 | 75/69 | 75/75 | 80/80 | 130/85 | 130/85 | 155/98 | 170/104 | 162/150 | 162/165 | 175/175 | |
| Vaj | Vaj poliolester SPECIFIKIMI I CARRIER: PP 47-32 | |||||||||||||||||
| Qarku A/B | l | 20/20 | 20/20 | 20/20 | 20/20 | 20/20 | 20/20 | 20/20 | 20/20 | 20/20 | 40/20 | 40/20 | 40/20 | 40/20 | 40/40 | 40/40 | 40/40 | |
| Kompresorët | Power me dy vidha hermetikë3 | |||||||||||||||||
| Qarku A, madhësia nominale për kompresor** | 46 | 46 | 56 | 56 | 66 | 66 | 80 | 80 | 80+ | 66/56 | 80/66 | 80/80 | 80+/80+ | 80/80 | 80/80 | 80+/80+ | ||
| Qarku B, madhësia nominale për kompresor** | 39 | 46 | 46 | 56 | 56 | 66 | 66 | 80 | 80+ | 80 | 80 | 80 | 80+ | 66/66 | 80/802 | 80+/80+ | ||
| Lloji i kontrollit | Kontrolli PRO-DIALOG Plus | |||||||||||||||||
| Numri i hapave të kapacitetit | 6 | 6 | 6 | 6 | 6 | 6 | 6 | 6 | 6 | 8 | 8 | 8 | 8 | 10 | 10 | 10 | ||
| Kapaciteti minimal | % | 19 | 21 | 19 | 21 | 19 | 21 | 19 | 21 | 21 | 16 | 14 | 14 | 14 | 9 | 10 | 10 | |
| Avulluesi | Lloji me guaskë dhe tub, me tuba bakri me brinjë të brendshme | |||||||||||||||||
| Vëllimi neto i ujit | l | 65 | 73 | 73 | 87 | 87 | 101 | 91 | 91 | 109 | 140 | 140 | 165 | 181 | 203 | 229 | 229 | |
| Lidhjet e ujit | Flanxha e sheshtë e furnizuar nga fabrika, për t'u salduar në vend | |||||||||||||||||
| Hyrja dhe dalja | in. | 4 | 4 | 4 | 5 | 5 | 5 | 5 | 5 | 5 | 6 | 6 | 6 | 6 | 8 | 8 | 8 | |
| Dreni dhe ajrimi (NPT) | in. | 3/8 | 3/8 | 3/8 | 3/8 | 3/8 | 3/8 | 3/8 | 3/8 | 3/8 | 3/8 | 3/8 | 3/8 | 3/8 | 3/8 | 3/8 | 3/8 | |
| Presioni maksimal i funksionimit nga ana e ujit | kPa | 1000 | 1000 | 1000 | 1000 | 1000 | 1000 | 1000 | 1000 | 1000 | 1000 | 1000 | 1000 | 1000 | 1000 | 1000 | 1000 | |
| Kondensatorët | Tuba bakri dhe fletë alumini | |||||||||||||||||
| Ventilatorët | Ventilator aksial FLYING BIRD 2 me mbështjellës rrotullues | |||||||||||||||||
| Sasia | 4 | 4 | 4 | 6 | 6 | 6 | 8 | 8 | 8 | 10 | 10 | 12 | 12 | 14 | 16 | 16 | ||
| Shpejtësia | r/s | 15.8 | 15.8 | 15.8 | 15.8 | 15.8 | 15.8 | 15.8 | 15.8 | 15.8 | 15.8 | 15.8 | 15.8 | 15.8 | 15.8 | 15.8 | 15.8 | |
| Rrjedhja totale e ajrit | l/s | 21110 | 21110 | 21110 | 31660 | 31660 | 31660 | 42220 | 42220 | 42220 | 52770 | 52770 | 63330 | 63330 | 73880 | 84440 | 84440 | |
* Kushtet e standardizuara Eurovent: temperaturat e ujit që hyn/del nga avulluesi = 12°C/7°C, temperatura e ajrit të jashtëm = 35°C Kapaciteti neto ftohës: Kapaciteti bruto ftohës minus nxehtësinë e pompës së ujit kundër rënies së presionit të brendshëm të avulluesit.
** Madhësia e kompresorit korrespondon me kapacitetin nominal në tonë (1 ton = 3.517 kW).
TË DHËNAT ELEKTRIKE 30GX
| 30HXC | 082 | 092 | 102 | 112 | 122 | 132 | 152 | 162 | 182 | 207 | 227 | 247 | 267 | 298 | 328 | 358 | ||
| Qarku i energjisë | ||||||||||||||||||
| Furnizimi nominal me energji* | V-ph-Hz | 400-3-50 | ||||||||||||||||
| Gama e tensionit | V | 360-440 | ||||||||||||||||
| Furnizimi i qarkut të kontrollit | Qarku i kontrollit furnizohet nëpërmjet transformatorit të instaluar në fabrikë | |||||||||||||||||
| Hyrja nominale e energjisë* | kW | 98 | 109 | 123 | 133 | 150 | 166 | 179 | 196 | 214 | 246 | 281 | 292 | 332 | 364 | 394 | 449 | |
| Rryma nominale e tërhequr* | A | 180 | 200 | 223 | 256 | 273 | 290 | 326 | 352 | 388 | 449 | 492 | 528 | 582 | 642 | 704 | 776 | |
| Hyrja maksimale e energjisë** | kW | 127 | 141 | 154 | 175 | 191 | 207 | 234 | 253 | 286 | 319 | 355 | 380 | 429 | 462 | 506 | 572 | |
| Qarku A | kW | - | - | - | - | - | - | - | - | - | 193 | 228 | 253 | 286 | 253 | 253 | 286 | |
| Qarku B | kW | - | - | - | - | - | - | - | - | - | 127 | 127 | 127 | 143 | 209 | 253 | 286 | |
| Kosinus phi, njësi në ngarkesë të plotë | 0.85 | 0.85 | 0.85 | 0.85 | 0.85 | 0.85 | 0.86 | 0.86 | 0.86 | 0.86 | 0.86 | 0.86 | 0.86 | 0.86 | 0.86 | 0.86 | ||
| Rryma maksimale e tërhequr (Un - 10%)*** | A | 237 | 262 | 287 | 323 | 353 | 383 | 429 | 464 | 524 | 585 | 650 | 696 | 786 | 847 | 928 | 1048 | |
| Qarku A | A | - | - | - | - | - | - | - | - | - | 353 | 418 | 464 | 524 | 464 | 464 | 524 | |
| Qarku B | A | - | - | - | - | - | - | - | - | - | 232 | 232 | 232 | 262 | 383 | 464 | 524 | |
| Rryma maksimale e tërhequr (Un)*** | A | 217 | 240 | 263 | 297 | 324 | 351 | 394 | 426 | 480 | 537 | 596 | 639 | 721 | 777 | 852 | 961 | |
| Qarku A | A | - | - | - | - | - | - | - | - | - | 324 | 383 | 426 | 480 | 426 | 426 | 480 | |
| Qarku B | A | - | - | - | - | - | - | - | - | - | 213 | 213 | 213 | 240 | 351 | 426 | 480 | |
| Rryma maksimale e startimit, njësi standarde**** (Un) | A | 334 | 357 | 401 | 435 | 468 | 495 | 590 | 622 | 662 | 1338 | 1631 | 1674 | 1767 | 1812 | 1887 | 2008 | |
| Qarku A*** | A | - | - | - | - | - | - | - | - | - | 1125 | 1418 | 1461 | 1527 | 1461 | 1461 | 1527 | |
| Qarku B*** | A | - | - | - | - | - | - | - | - | - | 1248 | 1248 | 1248 | 1287 | 1152 | 1461 | 1527 | |
| Raporti maksimal i rrymës së startimit/rrymës maksimale të tërheqjes, njësi | 1.54 | 1.49 | 1.53 | 1.47 | 1.44 | 1.41 | 1.50 | 1.46 | 1.38 | 2.49 | 2.74 | 2.62 | 2.45 | 2.33 | 2.22 | 2.09 | ||
| Raporti maksimal i rrymës së startimit/rrymës maksimale të tërheqjes, qarku A | - | - | - | - | - | - | - | - | - | 3.47 | 3.70 | 3.43 | 3.18 | 3.43 | 3.43 | 3.18 | ||
| Raporti maksimal i rrymës së startimit/rrymës maksimale të tërheqjes, qarku B | - | - | - | - | - | - | - | - | - | 5.86 | 5.86 | 5.86 | 5.36 | 3.28 | 3.43 | 3.18 | ||
| Rryma maksimale e startimit - fillimi me rrymë të reduktuar (Un) **** | A | std. | std. | std. | std. | std. | std. | std. | std. | std. | 878 | 955 | 998 | 1102 | 1136 | 1211 | 1343 | |
| Qarku A | A | std. | std. | std. | std. | std. | std. | std. | std. | std. | 665 | 742 | 785 | 862 | 785 | 785 | 862 | |
| Qarku B | A | std. | std. | std. | std. | std. | std. | std. | std. | std. | 572 | 572 | 572 | 622 | 692 | 785 | 862 | |
| Rryma maksimale e startimit - fillimi me rrymë të reduktuar/raporti maksimal i rrymës së tërheqjes, njësi | std. | std. | std. | std. | std. | std. | std. | std. | std. | 1.64 | 1.60 | 1.56 | 1.53 | 1.46 | 1.42 | 1.40 | ||
| Qarku A | std. | std. | std. | std. | std. | std. | std. | std. | std. | 2.05 | 1.94 | 1.84 | 1.79 | 1.84 | 1.84 | 1.79 | ||
| Qarku B | std. | std. | std. | std. | std. | std. | std. | std. | std. | 2.69 | 2.69 | 2.69 | 2.39 | 1.97 | 1.84 | 1.79 | ||
| Rryma mbajtëse trefazore e qarkut të shkurtër | kA | 25 | 25 | 25 | 25 | 25 | 25 | 25 | 25 | 25 | N/A | N/A | N/A | N/A | N/A | N/A | N/A | |
| Qarku A | kA | - | - | - | - | - | - | - | - | - | 25 | 25 | 25 | 25 | 25 | 25 | 25 | |
| Qarku B | kA | - | - | - | - | - | - | - | - | - | 25 | 25 | 25 | 25 | 25 | 25 | 25 | |
| Kapaciteti në gatishmëri i klientit, njësi ose qarku A, për lidhjet e pompës së ujit të avulluesit† | kW | 4 | 4 | 4 | 5.5 | 5.5 | 5.5 | 7.5 | 7.5 | 7.5 | 7.5 | 9 | 9 | 9 | 15 | 15 | 15 | |
* Kushtet standarde Eurovent: Temperatura e ujit që hyn/del nga avulluesi 12°C dhe 7°C. Temperatura e ajrit të jashtëm 35°C.
** Hyrja e energjisë, kompresori dhe ventilatori, në kufijtë e funksionimit të njësisë (temperatura e ujit që hyn/del nga avulluesi = 15°C/10°C, temperatura e ajrit të jashtëm = 46°C) dhe një tension nominal prej 400 V (të dhënat e dhëna në pllakën e emrit të njësisë).
*** Rryma maksimale e funksionimit të njësisë në hyrjen maksimale të energjisë së njësisë.
**** Rryma maksimale e menjëhershme e startimit (rryma maksimale e funksionimit të kompresorit(ëve) më të vogël(ël) + rryma e ventilatorit + rryma e bllokuar e rotorit ose rryma e reduktuar e startimit të kompresorit më të madh).
† Rrymat dhe hyrjet e energjisë nuk përfshihen në vlerat e mësipërme
N/A Nuk disponohet
Kompresorët
| Referenca | Madhësia | I nom. | MHA | LRA | LRA (Y) | LRA (S) 1 cp. | LRA (S) 2 cp. |
| 06NA2146S7N | 39 | 70 | 95 | 605 | 191 | 220 | - |
| 06NA2174S7N | 46 | 90 | 120 | 715 | 226 | 260 | - |
| 06NA2209S7N | 56 | 113 | 145 | 856 | 270 | 330 | 420 |
| 06NA2250S7N | 66 | 130 | 175 | 960 | 303 | 380 | 500 |
| 06NA2300S5N | 80 | 156 | 210 | 1226 | 387 | 445 | 550 |
| 06NA2300S5E | 80+ | 174 | 240 | 1265 | 400 | 460 | 600 |
Legjenda:
| 06NA | Kompresor për njësi të ftohura me ajër |
| N | Kompresor jo i ekonomizuar |
| E | Kompresor i ekonomizuar |
| INOM | Tërheqja mesatare e rrymës e kompresorit në kushte Eurovent |
| MHA | Duhet të mbajë amperë (rryma maksimale e funksionimit) në 360 V |
| LRA | Rryma e rotorit të bllokuar me startim në të gjithë linjën |
| LRA (Y) | Rryma e rotorit të bllokuar në rrymë të reduktuar (modaliteti i nisjes yll/delta) |
| LRA (S) 1 cp. | Nisja me rrymë të reduktuar me një startues elektronik (kohëzgjatja e nisjes 3 sekonda maks.) për një kompresor për qark |
| LRA (S) 2 cp. | Nisja me rrymë të reduktuar me një startues elektronik (kohëzgjatja e nisjes 3 sekonda maks.) për dy kompresorë për qark |
TË DHËNAT E APLIKIMIT
Gama e funksionimit të njësisë
| Avulluesi | Minimumi | Maksimumi | |
| Temperatura e ujit që hyn në avullues | °C | 6.8* | 21 |
| Temperatura e ujit që del nga avulluesi | °C | 4** | 15 |
| Kondensatori (me ftohje uji) | Minimumi | Maksimumi | |
| Temperatura e ujit që hyn në kondensator | °C | 20*** | 42 |
| Temperatura e ujit që del nga kondensatori | °C | 25 | 45 |
| Temperatura e funksionimit të ambientit të jashtëm 30HXC | °C | 6 | 40 |
| Kondensatori (me ftohje ajri) | Minimumi | Maksimumi | |
| Temperatura e funksionimit të ambientit të jashtëm | °C | 0 | 46 |
| Presioni statik i disponueshëm | kPa | 0 |
Shënime:
* Për aplikime që kërkojnë funksionim nën 6.8°C, kontaktoni Carrier s.a. për përzgjedhjen e njësisë duke përdorur katalogun elektronik Carrier.
** Për aplikime që kërkojnë funksionim nën 4°C, njësitë kërkojnë përdorimin e antifrizit.
*** Njësitë me ftohje uji (30HXC) që funksionojnë me ngarkesë të plotë dhe nën 20°C temperatura e ujit që hyn në kondensator kërkojnë përdorimin e një kontrolli të presionit të kokës me valvula analoge të kontrollit të ujit (shih paragrafin mbi kontrollin e presionit të kokës).
Në modalitetet e përkohshme të funksionimit (fillimi dhe me ngarkesë të pjesshme) njësia mund të funksionojë me një temperaturë të ajrit që hyn në kondensator prej 13°C.
Rrjedha minimale e ujit të ftohur
Rrjedha minimale e ujit të ftohur tregohet në tabelën në faqen tjetër. Nëse rrjedha është më e vogël se kjo, rrjedha e avulluesit mund të ricirkulohet, siç tregohet në diagram. Temperatura e përzierjes që del nga avulluesi nuk duhet të jetë kurrë më pak se 2.8 K më e ulët se temperatura e ujit të ftohur që hyn.

PËR SHKALLËN MINIMALE TË RRJEDHËS SË UJIT TË FTOHUR
Rrjedha maksimale e ujit të ftohur
Rrjedha maksimale e ujit të ftohur kufizohet nga rënia maksimale e lejuar e presionit në avullues. Ai ofrohet në tabelën në faqen tjetër. Nëse rrjedha e kalon vlerën maksimale, janë të mundshme dy zgjidhje:
- Zgjidhni një avullues jo standard me një kalim uji më pak, që do të lejojë një shkallë më të lartë maksimale të rrjedhës së ujit.
- Anashkaloni avulluesin siç tregohet në diagram për të marrë një ndryshim më të lartë të temperaturës me një shkallë më të ulët të rrjedhës së avulluesit.

PËR SHKALLËN MAKSIMALE TË RRJEDHËS SË UJIT TË FTOHUR
Avullues me rrjedhje të ndryshueshme
Rrjedha e ndryshueshme e avulluesit mund të përdoret në ftohësit standardë 30HXC dhe 30GX. Ftohësit mbajnë një temperaturë konstante të ujit që del në të gjitha kushtet e rrjedhës. Që kjo të ndodhë, shkalla minimale e rrjedhës duhet të jetë më e lartë se rrjedha minimale e dhënë në tabelën e shkallëve të lejuara të rrjedhës dhe nuk duhet të ndryshojë më shumë se 10% në minutë. Nëse shkalla e rrjedhës ndryshon më shpejt, sistemi duhet të përmbajë një minimum prej 6.5 litrash ujë për kW në vend të 3.25 l/kW.
Vëllimi minimal i ujit të sistemit
Cilido qoftë sistemi, kapaciteti minimal i qarkut të ujit jepet nga formula:
Kapaciteti = Kap (kW) x N Litra
| Aplikimi | N |
| Kondicionim normal ajri | 3.25 |
| Ftohje e tipit të procesit | 6.5 |
Ku Kap është kapaciteti nominal i ftohjes së sistemit (kW) në kushtet nominale të funksionimit të instalimit.
Ky vëllim është i nevojshëm për funksionim të qëndrueshëm dhe kontroll të saktë të temperaturës.
Shpesh është e nevojshme të shtohet një rezervuar uji tampon në qark në mënyrë që të arrihet vëllimi i kërkuar. Vetë rezervuari duhet të jetë i ndarë brenda për të siguruar përzierjen e duhur të lëngut (ujë ose shëllirë). Referojuni shembujve më poshtë.
SHËNIM: Kompresori nuk duhet të rinisë më shumë se 6 herë në një orë.


Shkalla e rrjedhjes së ftohësit (l/s)
| 30HXC | Min.* | Maks.** | ||
| 080-090 | 5.7 | 22.7 | ||
| 100 | 6.0 | 24.1 | ||
| 110 | 6.9 | 27.5 | ||
| 120-130 | 8.3 | 33.0 | ||
| 140-155 | 10.0 | 39.5 | ||
| 175-190 | 10.7 | 42.7 | ||
| 200 | 13.4 | 53.7 | ||
| 230 | 13.4 | 60.6 | ||
| 260-285 | 17.0 | 68.1 | ||
| 310 | 19.4 | 77.8 | ||
| 345-375 | 21.3 | 85.3 | ||
| 30GX | Min.* | Maks.** | ||
| 082 | 5.7 | 22.7 | ||
| 092-102 | 6.0 | 24.1 | ||
| 112-122 | 6.9 | 27.5 | ||
| 132 | 8.4 | 33.7 | ||
| 152-162 | 10.0 | 39.9 | ||
| 182 | 10.7 | 42.7 | ||
| 207-227 | 13.4 | 53.7 | ||
| 247 | 15.1 | 60.6 | ||
| 267 | 17.0 | 68.1 | ||
| 298 | 19.4 | 77.8 | ||
| 328-358 | 21.3 | 85.3 | ||
* Bazohet në një shpejtësi uji prej 0.9 m/s.
** Bazohet në një shpejtësi uji prej 3.6 m/s.
Shkalla e rrjedhjes së kondensatorit (l/s)
| 30HXC | Min.* Qark i mbyllur | Qark i hapur | Maks.** |
| 080-110 | 2.5 | 7.5 | 29.9 |
| 120-130 | 3.1 | 9.3 | 37.3 |
| 140-155 | 3.8 | 11.4 | 45.5 |
| 175-190 | 4.6 | 13.8 | 55.2 |
| 200 | 5.0 | 14.9 | 59.6 |
| 230-285 | 6.7 | 20.1 | 80.3 |
| 310-375 | 7.3 | 22.0 | 88.0 |
* Bazohet në një shpejtësi uji prej 0.3 m/s në një qark të mbyllur dhe 0.9 m/s në një qark të hapur.
** Bazohet në një shpejtësi uji prej 3.6 m/s
Grafiku i rënies së presionit të avulluesit

- 30HXC 080-090/30GX 082
- 30HXC 100/30GX 092-102
- 30HXC 110/30GX 112-122
- 30GX 132
- 30HXC 120-130
- 30HXC 140-155/30GX 152-162
- 30HXC 175-190/30GX 182
- 30HXC 200/30GX 207-227
- 30HXC 230/30GX 247
- 30HXC 260-285/30GX 267
- 30HXC 310/30GX 298
- 30HXC 345-375/30GX 328-358
Grafiku i rënies së presionit të kondensatorit

- 30HXC 080-090-100-110
- 30HXC 120-130
- 30HXC 140-155
- 30HXC 175-190
- 30HXC 200
- 30HXC 230-260-285
- 30HXC 310-345-375
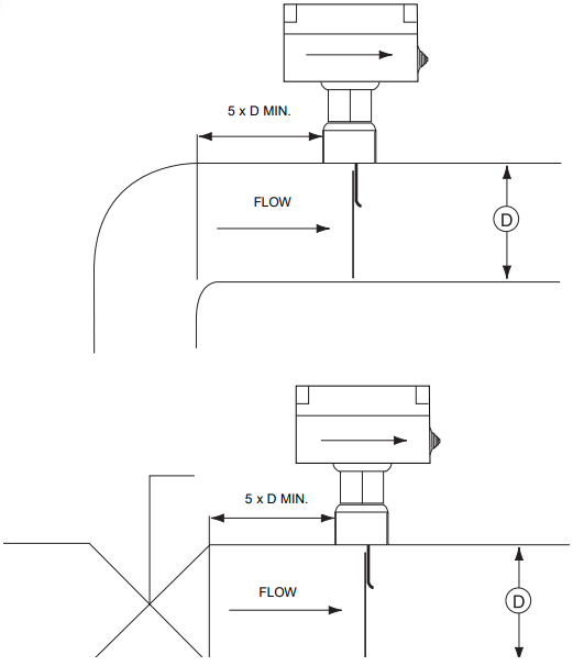
Kontrolluesit e rrjedhës
Çelësi i rrjedhës së ftohësit dhe ndërlidhja e pompës së ujit të ftohtë
Është e detyrueshme të instalohet çelësi i rrjedhës së ftohësit dhe gjithashtu të lidhet ndërlidhja e pompës së ujit të ftohtë në 30HXC dhe 30GX. Mosrespektimi i këtij udhëzimi do të anulojë garancinë Carrier.
Kontrolluesi i çelësit të rrjedhës së ftohësit furnizohet dhe lidhet në fabrikë në njësitë 30HXC dhe 30GX.
Ndiqni udhëzimin e prodhuesit për instalim.
Çelësi i rrjedhës mund të montohet në një tub horizontal ose një tub vertikal me rrjedhje lëngu lart. Nuk duhet të përdoret kur rrjedhja e lëngut është poshtë.
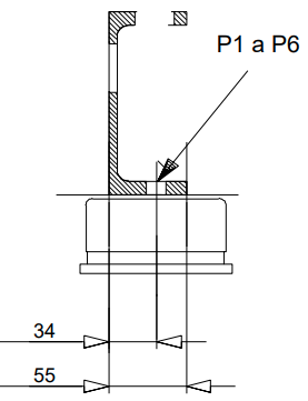
Montojeni në një seksion të tubit ku ka një seksion të drejtë prej të paktën pesë diametra tubash në secilën anë të çelësit të rrjedhës. Mos e vendosni pranë valvulave, nyjeve ose orificëve. Lopata nuk duhet të prekë kurrë tubin ose ndonjë kufizim në tub. Vidhosni çelësin e rrjedhës në pozicion në mënyrë që pjesa e sheshtë e lopatës të jetë në kënde të drejta me rrjedhën. Shigjetat në kapak dhe në fund, brenda kasës, duhet të tregojnë drejtimin e rrjedhës. Çelësi duhet të montohet në mënyrë që terminalet të jenë të arritshme për telëzime të lehta.
Terminalet 34 dhe 35 janë të ofruara për instalimin në terren të një ndërlidhjeje të pompës së ujit të ftohtë (kontakti ndihmës i kontaktorit të pompës së ujit të ftohtë).
(Lidhja e tubit: 1" NPT)

Çelësi i rrjedhës së kondensatorit (30HXC)
Çelësi i rrjedhës së kondensatorit është një pajisje e instaluar në terren.
INSTALIMI
Kontrolloni pajisjet e marra
- Inspektoni njësinë për dëmtime ose pjesë që mungojnë. Nëse zbulohet dëmtim, ose nëse dërgesa është e paplotë, paraqisni menjëherë një kërkesë me kompaninë e transportit.
- Konfirmoni që njësia e marrë është ajo e porositur. Krahasoni të dhënat e pllakës së emrit me porosinë.
- Konfirmoni që të gjitha aksesorët e porositur për instalim në vend janë dorëzuar dhe janë të plotë dhe të padëmtuar.
- Mos i ruani njësitë në një zonë të ekspozuar ndaj motit për shkak të mekanizmit të ndjeshëm të kontrollit dhe pajisjeve elektronike.
Lëvizja dhe vendosja e njësisë
Lëvizja
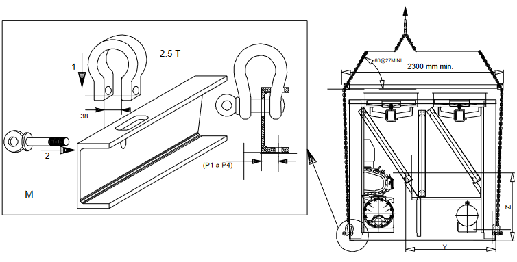
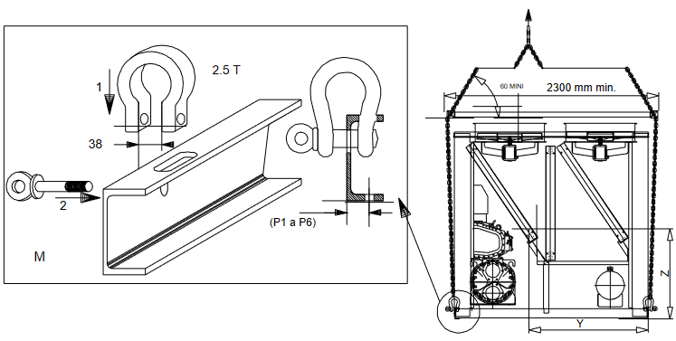
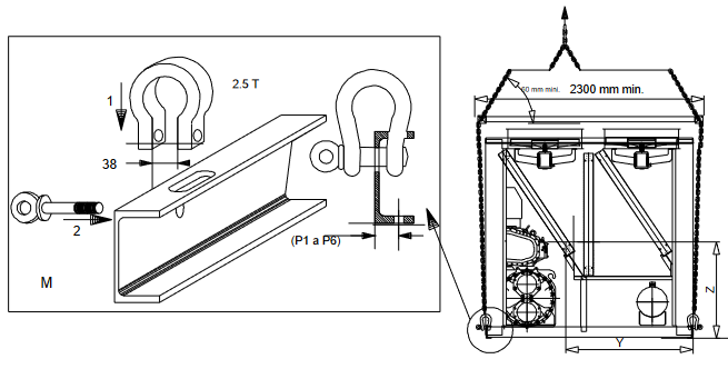
Mos i hiqni shpatullat, paletat ose paketimin mbrojtës derisa njësia të jetë në pozicionin e saj përfundimtar. Lëvizni ftohësin duke përdorur tuba ose rula, ose ngrini atë, duke përdorur litarë me kapacitetin e duhur.
(30HXC)
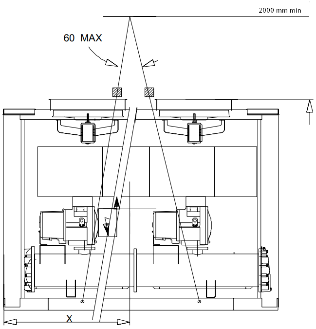
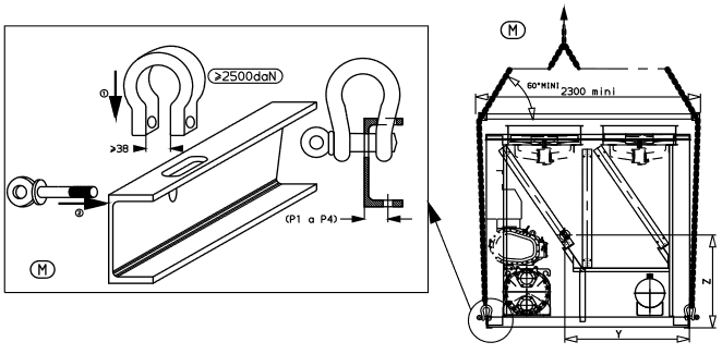
Përdorni vetëm litarë në pikat e caktuara të ngritjes, të cilat janë të shënuara në njësi, në pjesën e sipërme të shkëmbyesit të nxehtësisë së ftohësit. Montimi nga fundi i shkëmbyesit të nxehtësisë do të bëjë që njësia të ngrihet në mënyrë të pasigurt. Mund të ndodhë lëndim personal ose dëmtim i njësisë. Ndiqni udhëzimet e montimit të dhëna në vizatimin e dimensionit të certifikuar të furnizuar me njësinë.
Vendosja
Referojuni gjithmonë kapitullit "Përmasat dhe hapësirat" për të konfirmuar se ka hapësirë të mjaftueshme për të gjitha lidhjet dhe operacionin e servisit. Për koordinatat e qendrës së gravitetit, pozicionin e vrimave të montimit të njësisë dhe pikat e shpërndarjes së peshës, referojuni vizatimit të dimensionit të certifikuar të furnizuar me njësinë.
Ne rekomandojmë që këto ftohës të instalohen ose në një bodrum ose në nivelin e tokës. Nëse do të instalohet njëra mbi nivelin e tokës, kontrolloni fillimisht nëse ngarkesa e lejuar e dyshemesë është e mjaftueshme dhe nëse dyshemeja është mjaft e fortë dhe e niveluar. Nëse është e nevojshme, forconi dhe nivelizoni dyshemenë.
Me ftohësin në vendndodhjen e tij përfundimtare, hiqni shpatullat dhe pajisjet e tjera të përdorura për të ndihmuar në lëvizjen e tij. Nivelizoni njësinë duke përdorur një nivel shpirti dhe fiksoni njësinë në dysheme ose plintë. Funksionimi i këtyre njësive mund të dëmtohet nëse ato nuk janë të niveluara dhe nuk janë të fiksuara në mënyrë të sigurt në montimet e tyre. Nëse kërkohet, përdorni jastëkë izolues nën njësi për të ndihmuar në izolimin e dridhjeve.
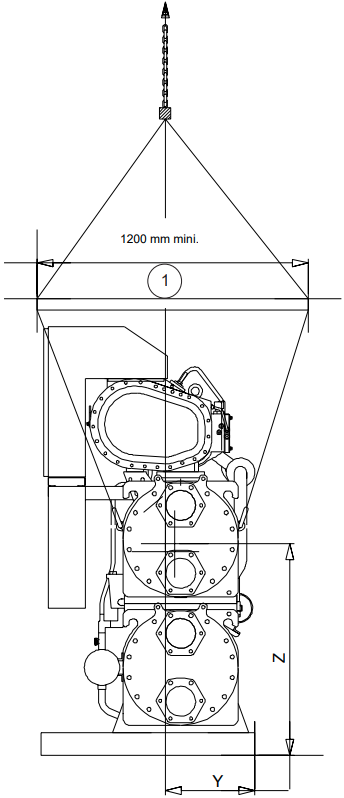
UDHËZIMET E NGRITJES
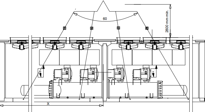
30HXC 080-190
Ky diagram tregohet vetëm për informim. Referojuni "vizatimeve të certifikuara".

- PËRJASHTUAR 30HXC 190
X mm Y mm Z mm 30HXC080
30HXC090
30HXC1001345 402 903 30HXC110 1368 397 935 30HXC120
30HXC130
30HXC140
30HXC1551731 392 879 30HXC175 1703 386 947 30HXC190 1705 398 955


SHËNIM
Kur të gjitha operacionet e ngritjes dhe pozicionimit të kenë përfunduar, rekomandohet të rregulloni të gjitha sipërfaqet ku boja është hequr në lugët e ngritjes.
30HXC 200-285
Ky diagram tregohet vetëm për informim. Referojuni "vizatimeve të certifikuara".


30HXC 310-375


| X mm | Y mm | Z mm | |
| 30HXC310 | 2195 | 425 | 1085 |
| 30HXC345 | 2195 | 425 | 1085 |
| 30HXC375 | 2205 | 435 | 1025 |
SHËNIM
Kur të gjitha operacionet e ngritjes dhe pozicionimit të kenë përfunduar, rekomandohet të rregulloni të gjitha sipërfaqet ku boja është hequr në lugët e ngritjes.
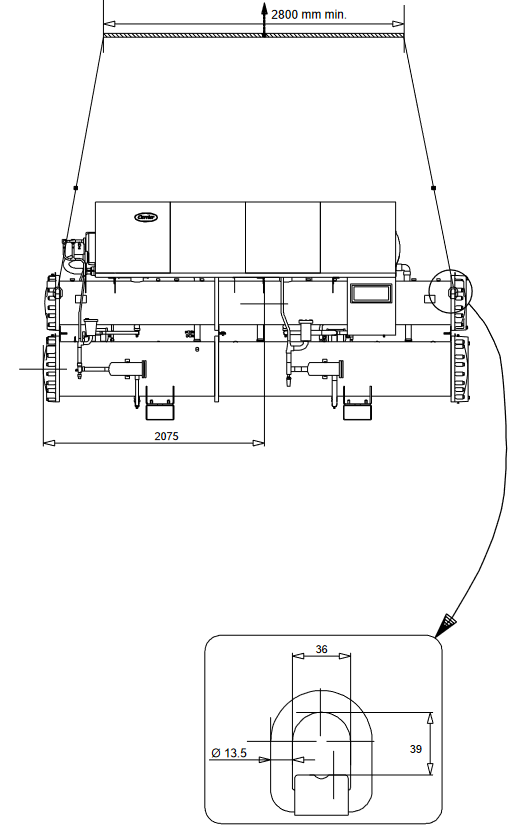
30GX 082-162
Ky diagram tregohet vetëm për informim. Referojuni "vizatimeve të certifikuara".



| X mm | Y mm | Z mm | PTkg | |
| 30GX082 | 1440 | 1460 | 900 | 3115 |
| 30GX092 | 1440 | 1460 | 900 | 3156 |
| 30GX102 | 1440 | 1460 | 900 | 3170 |
| 30GX112 | 1650 | 1460 | 900 | 3574 |
| 30GX122 | 1650 | 1460 | 900 | 3527 |
| 30GX132 | 1650 | 1460 | 900 | 3634 |
| 30GX152 | 2155 | 1430 | 900 | 3938 |
| 30GX162 | 2155 | 1430 | 900 | 3954 |
30GX 182



| X mm | Y mm | Z mm | PTkg | |
| 30GX182 | 3030 | 1370 | 875 | 4853 |
SHËNIM
Kur të gjitha operacionet e ngritjes dhe pozicionimit të kenë përfunduar, rekomandohet të rregulloni të gjitha sipërfaqet ku boja është hequr në lugën e ngritjes
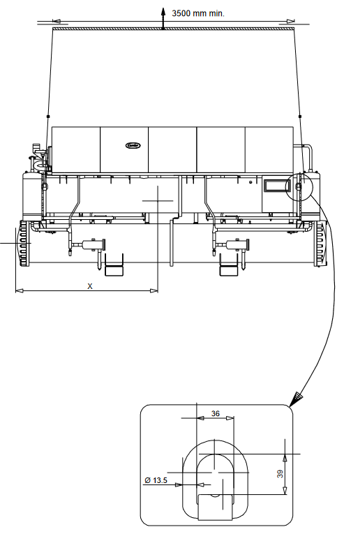
30GX 207-267
Ky diagram tregohet vetëm për informim. Referojuni "vizatimeve të certifikuara".



| X mm | Y mm | Z mm | PTkg | |
| 30GX207 | 2870 | 1440 | 890 | 5536 |
| 30GX227 | 2870 | 1440 | 890 | 5572 |
| 30GX247 | 3320 | 1430 | 927 | 6131 |
| 30GX267 | 3300 | 1420 | 886 | 6363 |
30GX 298-358



| X mm | Y mm | Z mm | PTkg | |
| 30GX298 | 3630 | 1420 | 890 | 7353 |
| 30GX328 | 4360 | 1455 | 920 | 7840 |
| 30GX358 | 4360 | 1445 | 930 | 8045 |
SHËNIM
Kur të gjitha operacionet e ngritjes dhe pozicionimit të kenë përfunduar, rekomandohet të rregulloni të gjitha sipërfaqet ku boja është hequr në lugët e ngritjes.
Lidhjet e tubave
Referojuni vizatimeve të dimensionit të certifikuar për madhësitë dhe pozicionet e të gjitha lidhjeve të hyrjes dhe daljes së ujit. Tubat e ujit nuk duhet të transmetojnë asnjë forcë radiale ose aksiale në shkëmbyesit e nxehtësisë ose ndonjë dridhje në tubacion ose ndërtesë.
Furnizimi me ujë duhet të analizohet dhe të ndërtohen filtrimet, trajtimet, pajisjet e kontrollit, valvulat dhe qarqet e izolimit dhe gjakderdhjes, siç është e nevojshme. Konsultohuni ose me një specialist të trajtimit të ujit ose me literaturën e duhur mbi këtë temë.
Masa paraprake operimi
Qarku i ujit duhet të jetë i projektuar që të ketë numrin më të vogël të bërrylave dhe tubave horizontalë në nivele të ndryshme. Kontrollet bazë të mëposhtme duhet të bëhen (shihni gjithashtu ilustrimin e një qarku tipik hidraulik më poshtë).
- Vini re hyrjet dhe daljet e ujit të shkëmbyesve të nxehtësisë.
- Instaloni valvula manuale ose automatike të pastrimit të ajrit në të gjitha pikat e larta në qarkun e ujit.
- Përdorni një dhomë zgjerimi ose një valvul zgjerimi/lehtësimi për të mbajtur presionin në sistem.
- Instaloni termometra uji dhe manometra në lidhjet e ujit që hyjnë dhe dalin afër avulluesit.
- Instaloni valvula kulluese në të gjitha pikat e ulëta për të lejuar që i gjithë qarku të kullohet. Lidhni një valvul ndalimi në linjën e kullimit përpara se të përdorni ftohësin.
- Instaloni valvula ndalimi dhe manometra, afër avulluesit, në linjat e ujit që hyjnë dhe dalin.
- Instaloni çelësin e rrjedhës së ftohësit.
- Përdorni lidhje fleksibile për të zvogëluar transmetimin e dridhjeve në tubacion.
- Izoloni të gjitha tubacionet, pasi të keni testuar për rrjedhje, si për të reduktuar rrjedhjet termike ashtu edhe për të parandaluar kondensimin.
- Mbuloni izolimin me një barrierë avulli.
Lidhjet e avulluesit dhe kondensatorit
Avulluesi dhe kondensatori janë të tipit me shumë tuba dhe guaska me kuti uji të lëvizshme për të lehtësuar pastrimin e tubave.
Përpara se të bëni lidhjet e ujit, shtrëngoni bulonat në të dy kokat në çift rrotullues më të ulët të treguar, duke ndjekur metodën e përshkruar. Shtrëngoni në çiftet dhe sekuencën e treguar sipas madhësisë së bulonit (shihni tabelën) duke përdorur një vlerë të çift rrotullues në fundin e ulët të intervalit të dhënë.
Hiqni flanxhën e sheshtë të furnizuar nga fabrika nga kutia e ujit përpara se të saldoni tubacionet në flanxhë. Mosheqja e flanxhës mund të dëmtojë sensorët dhe izolimin.
SHËNIM
Ne rekomandojmë kullimin e sistemit dhe shkëputjen e tubacioneve për të siguruar që bulonat e kokave me të cilat lidhen tubacionet të jenë shtrënguar saktë dhe në mënyrë uniforme.
Mbrojtja nga ngrirja
Mbrojtja e avulluesit dhe kondensatorit të ftohur me ujë
Nëse ftohësi ose tubacionet e ujit ndodhen në një zonë ku temperatura e ambientit mund të bjerë nën 0°C, rekomandohet të shtoni një tretësirë antifriz për të mbrojtur njësinë dhe tubacionet e ujit në një temperaturë prej 8 K nën temperaturën më të ulët. Përdorni vetëm tretësira antifriz, të miratuara për detyrën e shkëmbyesit të nxehtësisë. Nëse sistemi nuk është i mbrojtur nga një tretësirë antifriz dhe nuk do të përdoret gjatë kushteve të motit të ftohtë, kullimi i ftohësit dhe tubacioneve të jashtme është i detyrueshëm. Dëmtimi për shkak të ngrirjes nuk mbulohet nga garancia.
Sekuenca e shtrëngimit të kutisë së ujit

Legjenda
- Sekuenca 1: 1 2 3 4
Sekuenca 2: 5 6 7 8
Sekuenca 3: 9 10 11 12 - Çift rrotullues shtrëngimi
Madhësia e bulonit M16 - 171 - 210 Nm
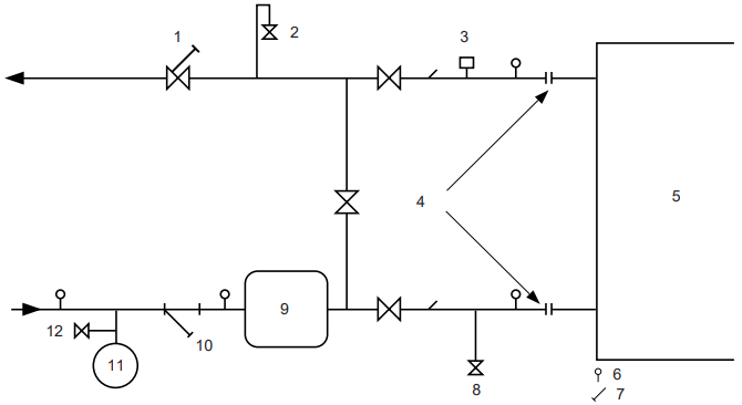
Diagrami tipik i qarkut hidraulik

Legjenda
- Valvula e kontrollit
- Ajrimi
- Çelësi i rrjedhës
- Lidhja fleksibile
- Shkëmbyesi i nxehtësisë
- Rubineti i presionit
- Mëngë termostati
- Kullimi
- Rezervuari tampon
- Filtri
- Rezervuari i zgjerimit
- Valvula e mbushjes
KARAKTERISTIKAT ELEKTRIKE
- 30HXC 080-190 dhe 30GX 082-182 kanë vetëm një çelës shkëputës/izolues të energjisë.
- 30HXC 200-375 dhe 30GX 207-358 kanë dy çelësa shkëputës/izolues të energjisë.
- Kutia e kontrollit përfshin si standard sa vijon:
- Starterët dhe pajisjet mbrojtëse të motorit për çdo kompresor dhe ventilatorët
- Komponentët e kontrollit
- Lidhjet në vend:
Të gjitha lidhjet e rrjetit dhe instalimi elektrik duhet të kryhen në përputhje me direktivat e zbatueshme për vendin. - 30HXC dhe 30GX janë projektuar për të lehtësuar pajtueshmërinë me këto direktiva. Inxhinieria e pajisjeve elektrike për 30HXC dhe 30GX merr parasysh standardin evropian EN 60204-1 (siguria e makinerive - pajisjet elektrike të makinave - Pjesa 1: rregulla të përgjithshme).
Standardi EN 60204-1 është një mjet i mirë për t'iu përgjigjur kërkesave të Direktivës së Makinerisë § 1.5.1. Rekomandimi normativ IEC 364, njihet përgjithësisht si përmbushje e kërkesave të rregullores së instalimit.
Aneksi B i standardit EN 60204-1 mund të përdoret për të përshkruar karakteristikat elektrike në të cilat funksionojnë makinat.
30HXC
- Kushtet e funksionimit për një 30HXC standard përshkruhen më poshtë:
- Kushtet mjedisore(1). Klasifikimi mjedisor përshkruhet në standardin IEC 364 § 3:
- Gama e temperaturës së ambientit: + 6°C deri + 40°C, klasifikimi AA4
- Gama e lagështisë (jo kondensuese)
50% rh në 40°C
90% rh në 20°C - Lartësia - 2000 m(1)
- Për instalim të brendshëm
- Prania e ujit: klasifikimi AD2(1) (mundësia e pikave të ujit)
- Prania e lëndëve të ngurta: klasifikimi AE2(1) (prania e grimcave të parëndësishme)
- Prania e korrozivëve dhe ndotësve, klasifikimi AF1 (i papërfillshëm)
- Vibrimi, goditja: klasifikimi AG2, AH2 Kompetenca e personelit: klasifikimi BA4(1) (personeli i kualifikuar në përputhje me IEC 364).
- Kushtet mjedisore(1). Klasifikimi mjedisor përshkruhet në standardin IEC 364 § 3:
(1) Standardi i mbrojtjes i kërkuar në lidhje me këtë klasifikim është IP21B (në përputhje me dokumentin referencë IEC 529). Të gjitha 30HXC kanë një standard mbrojtjeje IP23C dhe për këtë arsye përmbushin këtë kërkesë mbrojtjeje.
30GX
- Kushtet e funksionimit për 30GX përshkruhen më poshtë:
- Kushtet mjedisore(2). Klasifikimi mjedisor përshkruhet në standardin EN 60721:
- Për instalim të jashtëm(2)
- Gama e temperaturës së ambientit: - 18°C deri + 46°C, klasifikimi 4K3(2)
- Lartësia 2000 m(2)
- Prania e lëndëve të ngurta: klasifikimi 4S2 (prania e grimcave të parëndësishme)
- Prania e korrozivëve dhe ndotësve, klasifikimi 4C2 (i papërfillshëm)
- Vibrimi, goditja: klasifikimi 4M2
- Kushtet mjedisore(2). Klasifikimi mjedisor përshkruhet në standardin EN 60721:
Kompetenca e personelit: klasifikimi BA4(2) (personeli i kualifikuar në përputhje me IEC 364).
(2) Standardi i mbrojtjes i kërkuar në lidhje me këtë klasifikim është IP43BW (në përputhje me dokumentin referencë IEC 529). Të gjitha 30GX kanë një standard mbrojtjeje IP45CW dhe për këtë arsye përmbushin këtë kërkesë mbrojtjeje.
30HXC/GX
- Luhatja në frekuencën e furnizimit me energji: ± 2 Hz
- Mbrojtja nga mbingarkesa për përcjellësit e furnizimit me energji nuk furnizohet me pajisjen.
- Çelësi shkëputës/izolues i montuar në fabrikë është një izolues i tipit "a". (EN60204-1 § 5.3.2).
SHËNIM: Nëse aspekte të veçanta të një instalimi kërkojnë karakteristika të ndryshme nga ato të listuara më sipër (ose karakteristika që nuk përmenden këtu) kontaktoni përfaqësuesin tuaj të Carrier.
Furnizimi me energji
Furnizimi me energji duhet të jetë në përputhje me specifikimet në pllakën e emrit të ftohësit. Tensioni i furnizimit duhet të jetë brenda intervalit të specifikuar në tabelën e të dhënave elektrike.
Për lidhjet, referojuni diagrameve të instalimeve elektrike.
Funksionimi i ftohësit me një tension të papërshtatshëm furnizimi ose çekuilibër të tepërt të fazës përbën abuzim i cili do të zhvleftësojë garancinë e Carrier. Nëse çekuilibri i fazës tejkalon 2% për tensionin, ose 10% për rrymën, kontaktoni menjëherë furnizuesin tuaj lokal të energjisë elektrike dhe siguroni që ftohësi të mos ndizet derisa të jenë marrë masa korrigjuese.
Çekuilibri i fazës së tensionit (%):
100 x devijimi maksimal nga tensioni mesatar
Tensioni mesatar
Shembull:
Në një furnizim 400 V - 3 ph - 50 Hz, tensionet individuale të fazës u matën të jenë:
AB = 406 V; BC = 399; AC = 394 V
| Tensioni mesatar | = (406 + 399 + 394)/3 = 1199/3 |
| = 399.7 thuaj 400 V |
Llogaritni devijimin maksimal nga mesatarja 400 V:
(AB) = 406 - 400 = 6
(BC) = 400 - 399 = 1
(CA) = 400 - 394 = 6

Devijimi maksimal nga mesatarja është 6 V. Devijimi më i madh përqindjes është:
100 x 6/400 = 1.5 %
Kjo është më pak se 2% e lejuar dhe për këtë arsye është e pranueshme.
SEKSIONET E REKOMANDUARA TË TELIT
Madhësia e telit është përgjegjësi e instaluesit dhe varet nga karakteristikat dhe rregulloret që zbatohen për çdo vend instalimi. Sa vijon duhet të përdoret vetëm si udhëzues dhe nuk e bën Carrier-in në asnjë mënyrë përgjegjës. Pasi të jetë plotësuar madhësia e telit, duke përdorur vizatimin e certifikuar dimensional, instaluesi duhet të sigurojë lidhje të lehtë dhe të përcaktojë çdo modifikim të nevojshëm në vend.
Lidhjet e ofruara si standarde për kabllot e hyrjes së energjisë të furnizuara nga fusha në ndërprerësin/izolatorin e përgjithshëm të shkëputjes janë krijuar për numrin dhe llojin e telave, të renditura në tabelën e mëposhtme.
Llogaritjet bazohen në rrymën maksimale të makinës (shih tabelat e të dhënave elektrike).
Për dizajnin përdoren metodat e mëposhtme të standardizuara të instalimit, në përputhje me IEC 364, tabela 52C:
- Për njësitë 30HX të instaluara brenda ndërtesës: Nr.13: kanal kabllor horizontal i shpuar dhe Nr. 41: kanal i mbyllur.
- Për njësitë 30GX të instaluara jashtë ndërtesës: Nr.17: linjat ajrore të pezulluara dhe Nr. 61: kanal i groposur me koeficient zbritjeje prej 20.
Llogaritja bazohet në kabllot e izoluara PVC ose XLPE me bërthamë bakri ose alumini. Temperatura maksimale është 40°C për njësitë 30HX dhe 46°C për njësitë 30GX.
Gjatësia e dhënë e telit kufizon rënien e tensionit në < 5%.
| Njësia | Min. (mm2) nga faza | Lloji i telit | L (m) | Max. (mm2) nga faza | Lloji i telit | L (m) |
| 30HX 080 | 1 x 35 | XLPE Cu | 140 | 1 x 120 | PVC Al | 260 |
| 30HX 090 | 1 x 50 | XLPE Cu | 160 | 1 x 120 | PVC Al | 260 |
| 30HX 100 | 1 x 50 | XLPE Cu | 160 | 1 x 95 | XLPE Al | 195 |
| 30HX 110 | 1 x 70 | XLPE Cu | 170 | 1 x 120 | XLPE Al | 205 |
| 30HX 120/130 | 1 x 70 | XLPE Cu | 170 | 1 x 150 | XLPE Al | 210 |
| 30HX 140 | 1 x 95 | XLPE Cu | 180 | 1 x 185 | XLPE Al | 220 |
| 30HX 155 | 1 x 95 | XLPE Cu | 180 | 1 x 240 | XLPE Al | 225 |
| 30HX 175 | 1 x 120 | XLPE Cu | 185 | 1 x 240 | XLPE Al | 225 |
| 30HX 190 | 1 x150 | XLPE Cu | 190 | 2 x 95 | XLPE Al | 195 |
| 30HX 200 ckt A | 1 x 70 | XLPE Cu | 170 | 2 x120 | PVC Al | 325 |
| 30HX 230 ckt A | 1 x 95 | XLPE Cu | 180 | 2 x 120 | PVC Al | 325 |
| 30HX 260 ckt A | 1 x 120 | XLPE Cu | 185 | 1 x 240 | XLPE Al | 225 |
| 30HX 285 ckt A | 1 x 150 | XLPE Cu | 190 | 2 x 150 | XLPE Al | 265 |
| 30HX 200 ckt B | 1 x 35 | XLPE Cu | 140 | 1 x 95 | PVC Al | 250 |
| 30HX 230 ckt B | 1 x 35 | XLPE Cu | 140 | 1 x 120 | PVC Al | 260 |
| 30HX 260 ckt B | 1 x 35 | XLPE Cu | 140 | 1 x 120 | PVC Al | 260 |
| 30HX 285 ckt B | 1 x 50 | XLPE Cu | 160 | 2 x 70 | PVC Al | 285 |
| 30HX 310 ckt A & B | 1 x 95 | XLPE Cu | 180 | 1 x 240 | XLPE Al | 225 |
| 30HX 345 ckt A & B | 1 x 120 | XLPE Cu |
107%">185
|
1 x 240 | XLPE Al | 225 |
| 30HX 375 ckt A & B | 1 x 150 | XLPE Cu | 190 | 2 x 150 | XLPE Al | 265 |
| 30GX 082 | 1 x 95 | XLPE Cu | 190 | 2 x 185 | PVC Al | 420 |
| 30GX 092 | 1 x 120 | XLPE Cu | 195 | 2 x 185 | PVC Al | 420 |
| 30GX 102 | 1 x 120 | XLPE Cu | 195 | 2 x 240 | PVC Al | 450 |
| 30GX 112 | 1 x 150 | XLPE Cu | 200 | 2 x 150 | XLPE Al | 300 |
| 30GX 122 | 1 x 185 | XLPE Cu | 205 | 2 x 185 | XLPE Al | 315 |
| 30GX 132 | 1 x 185 | XLPE Cu | 205 | 2 x 240 | XLPE Al | 330 |
| 30GX 152 | 1 x 240 | XLPE Cu | 205 | 3x 185 | XLPE CU | 430 |
| 30GX 162 | 2 x 95 | XLPE Cu | 190 | 3x 240 | XLPE CU | 440 |
| 30GX 182 | 2 x 120 | XLPE Cu | 200 | 3x 240 | XLPE CU | 440 |
| 30GX 207 ckt A | 1 x 185 | XLPE Cu | 205 | 3x 185 | XLPE Al | 445 |
| 30GX 227 ckt A | 1 x 240 | XLPE Cu | 205 | 3x 240 | XLPE Al | 470 |
| 30GX 247/298/328 ckt A | 2 x 120 | XLPE Cu | 225 | 3x 185 | XLPE CU | 490 |
| 30HX 267/358 ckt A | 2 x 150 | XLPE Cu | 230 | 3x 240 | XLPE CU | 505 |
| 30GX 207/227/247 ckt B | 1 x 95 | XLPE Cu | 190 | 2 x 240 | PVC Al | 560 |
| 30HX 267 ckt B | 1 x 120 | XLPE Cu | 200 | 2 x 185 | XLPE AL | 395 |
| 30GX 298 ckt B | 1 x 185 | XLPE Cu | 205 | 3x 240 | XLPE AL | 470 |
| 30GX 328 ckt B | 2 x 120 | XLPE Cu | 225 | 3x 185 | XLPE CU | 490 |
| 30GX 358 ckt B | 2 x 150 | XLPE Cu | 230 | 3x 240 | XLPE CU | 505 |
Përpara lidhjes së kabllove kryesorë të energjisë (L1 - L2 - L3) në bllokun e terminalit, është e domosdoshme të kontrolloni rendin e saktë të 3 fazave përpara se të vazhdoni me lidhjen në bllokun e terminalit ose çelësin kryesor të shkëputjes/izolimit.
Instalimi i telave të kontrollit në terren
Referojuni Controls IOM dhe diagramit të certifikuar të instalimit të telave të dhënë me njësinë për instalimin e telave të kontrollit në terren të veçorive të mëposhtme:
- Ndërlidhës i pompës së avulluesit (i detyrueshëm)
- Çelësi i ndezjes/fikjes nga distanca
- Çelësi i rrjedhjes së kondensatorit (i furnizuar në terren, vetëm 30HXC)
- Çelësi i nxehtësisë/ftohjes nga distanca
- Çelësi i jashtëm i kufirit të kërkesës 1
- Pika e dyfishtë e vendosur nga distanca
- Raporti i alarmit sipas qarkut
- Kontrolli i pompës së avulluesit
- Kontrolli i pompës së kondensatorit (vetëm 30HXC)
- Rivendosja e pikës së vendosur nga distanca ose rivendosja e sensorit të temperaturës së ajrit të jashtëm (0-10 V)
Seksionet e rekomanduara të telave për njësitë me temperatura të larta kondensimi (400 V - 3 ph - 50 Hz)
| Njësia, opsionet 150 + 150A 400 V - 3 ph - 50 Hz | Min. (mm2) për fazë | Lloji i telit | L (m) | Maks. (mm2) për fazë | Lloji i telit | L (m) |
| 30HXC 080 OPT. 150 | 1 x 50 | XLPE Cu | 150 | 2 x 70 | PVC Al | 230 |
| 30HXC 090 OPT. 150 | 1 x 70 | XLPE Cu | 160 | 2 x 95 | PVC Al | 260 |
| 30HXC 100 OPT. 150 | 1 x 70 | XLPE Cu | 160 | 2 x 95 | PVC Al | 250 |
| 30HXC 110 OPT. 150 | 1 x 95 | XLPE Cu | 170 | 2 x 120 | PVC Al | 265 |
| 30HXC 120 OPT. 150 | 1 x 120 | XLPE Cu | 180 | 2 x 120 | XLPE Al | 205 |
| 30HXC 130 OPT. 150 | 1 x 120 | XLPE Cu | 160 | 2 x 120 | XLPE Al | 210 |
| 30HXC 140 OPT. 150 | 1 x 150 | XLPE Cu | 175 | 2 x 120 | XLPE Al | 205 |
| 30HXC 155 OPT. 150 | 1 x 185 | XLPE Cu | 185 | 2 x 150 | XLPE Al | 215 |
| 30HXC 175 OPT. 150 | 1 x 240 | XLPE Cu | 185 | 2 x 150 | XLPE Al | 210 |
| 30HXC 190 OPT. 150 | 2 x 95 | XLPE Cu | 175 | 2 x 240 | XLPE Al | 220 |
| 30HXC 200 OPT. 150 circ. A | 1 x 120 | XLPE Cu | 170 | 2 x 150 | XLPE Al | 270 |
| 30HXC 230 OPT. 150 circ. A | 1 x 150 | XLPE Cu | 180 | 2 x 185 | XLPE Al | 270 |
| 30HXC 260 OPT. 150 circ. A | 1 x 185 | XLPE Cu | 180 | 2 x 240 | XLPE Al | 295 |
| 30HXC 285 OPT. 150 circ. A | 1 x 240 | XLPE Cu | 170 | 2 x 185 | XLPE Cu | 265 |
| 30HXC 310 OPT. 150 circ. A | 1 x 185 | XLPE Cu | 180 | 2 x 240 | XLPE Al | 300 |
| 30HXC 345 OPT. 150 circ. A | 1 x 185 | XLPE Cu | 170 | 2 x 240 | XLPE Al | 280 |
| 30HXC 375 OPT. 150 circ. A | 1 x 240 | XLPE Cu | 170 | 2 x 185 | XLPE Cu | 265 |
| 30HXC 200 OPT. 150 circ. B | 1 x 35 | XLPE Cu | 125 | 2 x 95 | PVC Al | 320 |
| 30HXC 230 OPT. 150 circ. B | 1 x 50 | XLPE Cu | 140 | 2 x 95 | PVC Al | 310 |
| 30HXC 260 OPT. 150 circ. B | 1 x 50 | XLPE Cu | 140 | 2 x 95 | PVC Al | 310 |
| 30HXC 285 OPT. 150 circ. B | 1 x 70 | XLPE Cu | 160 | 2 x 120 | PVC Al | 325 |
| 30HXC 310 OPT. 150 circ. B | 1 x 150 | XLPE Cu | 180 | 2 x 185 | XLPE Al | 275 |
| 30HXC 345 OPT. 150 circ. B | 1 x 185 | XLPE Cu | 185 | 2 x 240 | XLPE Al | 305 |
| 30HXC 375 OPT. 150 circ. B | 1 x 185 | XLPE Cu | 160 | 2 x 240 | XLPE Al | 280 |
KOMPONENTËT KRYESORE TË SISTEMIT DHE TË DHËNAT E OPERACIONIT
Kompresor me dy vidhos të çiftuar me ingranazhe
- Njësitë 30HXC dhe 30GX përdorin kompresorë 06N me dy vidhos të çiftuar me ingranazhe
- 06NA përdoren në 30GX (aplikim kondensimi me ajër)
- 06NW përdoren në 30HXC (aplikim kondensimi me ujë)
- Kapacitetet nominale variojnë nga 39 në 80 tonë. Modelet e ekonomizuara ose jo ekonomizuara përdoren në varësi të madhësisë së njësisë 30HXC dhe 30GX.
Filtri i vajit
Kompresori me vidhos 06N ka një filtër vaji integral në kutinë e kompresorit. Ky filtër mund të zëvendësohet në terren.
Ftohës
Kompresori me vidhos 06N është i projektuar posaçërisht për t'u përdorur vetëm në sistemin R134 a.
Lubrifikant
Kompresori me vidhos 06N është i aprovuar për përdorim me lubrifikantin e mëposhtëm.
SPECIFIKIMI I MATERIALIT TË TRANSPORTUESIT PP 47-32
Valvula Solenoid e Furnizimit me Vaj
Një valvul solenoid e furnizimit me vaj është standarde në kompresor për të izoluar kompresorin nga rrjedha e vajit kur kompresori nuk është duke punuar.
Solenoidi i vajit mund të zëvendësohet në terren.
Ekrane thithëse dhe ekonomizuese
Për të rritur besueshmërinë e kompresorit, një ekran është përfshirë si veçori standarde në hyrjet thithëse dhe ekonomizuese të kompresorit.
Sistemi i shkarkimit
Kompresori me vidhos 06N ka një sistem shkarkimi që është standard në të gjithë kompresorët. Ky sistem shkarkimi përbëhet nga dy hapa të shkarkimit që zvogëlojnë kapacitetin e kompresorit duke ridrejtuar gazin pjesërisht të kompresuar përsëri në thithje.
Avulluesi
Ftohësit 30HXC dhe 30GX përdorin një avullues të përmbytur. Uji qarkullon në tuba dhe ftohësi është nga jashtë në guaskë. Një enë përdoret për të shërbyer të dy qarqet e ftohësit. Ka një fletë tubi qendrore që ndan dy qarqet e ftohësit. Tubat janë bakri me diametër 3/4" me një sipërfaqe të përmirësuar brenda dhe jashtë. Ka vetëm një qark uji dhe, në varësi të madhësisë së ftohësit, mund të ketë dy ose tre kalime uji. Një sensor i nivelit të lëngut më të ftohtë siguron kontroll të optimizuar të rrjedhës.
Në krye të ftohësit janë dy tubat e thithjes, një në secilin qark. Secili ka një buzë të salduar në të dhe kompresori montohet në buzë.
Kondensator dhe ndarës vaji (30HXC)
Ftohësi 30HXC përdor një enë që është një kombinim i kondensatorit dhe ndarësit të vajit. Është montuar poshtë ftohësit. Gazi i shkarkimit largohet nga kompresori dhe rrjedh nëpër një zhurmues të jashtëm në ndarësin e vajit, i cili është pjesa e sipërme e enës. Ai hyn në krye të ndarësit ku vaji hiqet dhe më pas rrjedh në pjesën e poshtme të enës, ku gazi kondensohet dhe nënfrohet. Një enë përdoret për të shërbyer të dy qarqet e ftohësit. Ka një fletë tubi qendrore që ndan dy qarqet e ftohësit. Tubat janë bakri me diametër 3/4" ose 1" me sipërfaqe të përmirësuar brenda dhe jashtë. Ka vetëm një qark uji me dy kalime uji.
Ndarës vaji (30GX)
Në njësitë e ftohura me ajër, ndarësi i vajit është një enë presioni që montohet nën spirale vertikale të jashtme të kondensatorit. Gazi i shkarkimit hyn në krye të ndarësit ku pjesa më e madhe e vajit ndahet dhe kullohet në fund. Më pas gazi rrjedh nëpër një ekran rrjetë teli ku vaji i mbetur ndahet dhe kullohet në fund.
Pajisja Elektronike e Zgjerimit (EXD)
Mikroprocesori kontrollon EXD nëpërmjet modulit të kontrollit EXV. EXD do të jetë ose një EXV ose një Ekonomizues. Brenda të dyja këtyre pajisjeve është një motor linear hapësor aktivator. Ftohësi i lëngshëm me presion të lartë hyn në valvul përmes fundit. Një sërë hapësirash të kalibruara ndodhen brenda montimit të orificës. Ndërsa ftohësi kalon nëpër orificë, presioni bie dhe ftohësi ndryshon në një gjendje me 2 faza (lëng dhe avull). Për të kontrolluar rrjedhën e ftohësit për kushte të ndryshme funksionimi, mënga lëviz lart e poshtë mbi orificë, duke ndryshuar kështu sipërfaqen efektive të rrjedhës së pajisjes së zgjerimit. Mënga lëvizet nga një motor hapësor linear. Motori hapësor lëviz në shtesa dhe kontrollohet drejtpërdrejt nga moduli i procesorit. Ndërsa motori hapësor rrotullohet, lëvizja transferohet në lëvizje lineare nga vidhos kryesore. Nëpërmjet motorit hapësor dhe vidhave kryesore, arrihen 1500 hapa diskrete lëvizjeje. Numri i madh i hapave dhe goditja e gjatë rezultojnë në kontroll shumë të saktë të rrjedhës së ftohësit. Çdo qark ka një sensor të nivelit të lëngut të montuar vertikalisht në krye të guaskës së ftohësit. Sensori i nivelit përbëhet nga një ngrohës i vogël elektrik i rezistencës dhe tre termistorë të lidhur me tela në seri të pozicionuar në lartësi të ndryshme brenda trupit të pusit. Ngrohësi është projektuar në mënyrë që termistorët të lexojnë afërsisht 93,3°C në ajër të thatë. Ndërsa niveli i ftohësit rritet në ftohës, rezistenca e termistorit(ëve) më të afërt do të ndryshojë shumë. Ky ndryshim i madh i rezistencës lejon që kontrolli të mbajë me saktësi një nivel të specifikuar. Sensori i nivelit monitoron nivelin e lëngut të ftohësit në ftohës dhe e dërgon këtë informacion në PSIO-1. Në fillimin fillestar, pozicioni EXV është në zero. Pas kësaj, mikroprocesori mban gjurmë të sakta të pozicionit të valvulës në mënyrë që ta përdorë këtë informacion si hyrje për funksionet e tjera të kontrollit. Ai e bën këtë duke inicializuar EXV-të në fillim. Procesori dërgon mjaft impulse mbyllëse në valvul për ta lëvizur atë nga plotësisht e hapur në plotësisht të mbyllur, më pas rivendos numëruesin e pozicionit në zero. Që nga ky moment e tutje, deri në inicializimin, procesori numëron numrin total të hapave të hapur dhe të mbyllur që i ka dërguar secilës valvul.
Ekonomizuesi
Ekonomizuesit janë instaluar në 30HXC 190, 285 dhe 375 dhe 30GX 182, 267 dhe 358.
Ekonomizuesi përmirëson si kapacitetin e ftohësit ashtu edhe efikasitetin, si dhe siguron ftohjen e motorit të kompresorit. Brenda ekonomizuesit janë një motor hapësor linear EXV dhe një valvul notuese. EXV kontrollohet nga PIC për të mbajtur nivelin e dëshiruar të lëngut në ftohës (siç bëhet për ftohësit jo ekonomizues). Valvula notuese mban një nivel lëngu në fund të ekonomizuesit. Ftohësi i lëngshëm furnizohet nga kondensatori në fund të ekonomizuesit. Ndërsa ftohësi kalon nëpër EXV, presioni i tij reduktohet në një nivel të ndërmjetëm prej rreth 500 kPa. Ky presion mbahet brenda guaskës së ekonomizuesit. Më pas, ftohësi rrjedh nëpër valvulën notuese, presioni i tij reduktohet më tej në pak më lart presionit në ftohës. Rritja e performancës realizohet kur një pjesë e ftohësit që kalon nëpër EXV ndizet në avull, duke nënfrohur më tej lëngun që mbahet në fund të ekonomizuesit. Ky rritje në nënfrohje siguron kapacitet shtesë. Meqenëse nuk kërkohet energji shtesë për ta arritur këtë, efikasiteti i makinës gjithashtu përmirësohet. Avulli që ndizet do të ngrihet në ekonomizues ku kalon në kompresor dhe përdoret sipas nevojës për të siguruar ftohjen e motorit. Pasi kalon mbi mbështjelljet e motorit, ftohësi rihyn në cikël në një portë të ndërmjetme në ciklin e kompresimit.
Pompat e vajit
Ftohësit me vidhos 30GX/HXC përdorin një pompë vaji parambushëse të montuar nga jashtë për qark. Kjo pompë funksionon si pjesë e sekuencës së nisjes.
KUJDES:
Temperatura e funksionimit të spirales mund të arrijë në 80°C. Në kushte të caktuara të përkohshme (sidomos gjatë nisjes në temperaturë të ulët të jashtme ose temperaturë të ulët të spirales së kondensatorit) pompa e vajit mund të riaktivizohet.
Në njësitë 30GX, pompat janë montuar në shinat bazë në anën e ndarësit të vajit të njësisë. Pompat janë montuar në një mbajtëse në kondensatorët e njësive 30HXC. Kur një qark kërkohet të fillojë, kontrollet do të aktivizojnë fillimisht pompën e vajit në mënyrë që kompresori të fillojë me lubrifikimin e duhur. Nëse pompa ka ndërtuar presion të mjaftueshëm vaji, kompresorit do t'i lejohet të fillojë. Pasi kompresori të ketë filluar, pompa e vajit do të fiket. Nëse pompa nuk ishte në gjendje të ndërtonte presion të mjaftueshëm vaji, kontrolli do të gjenerojë një alarm.
Valvulat e ftohjes së motorit
Temperaturat e mbështjelljes së motorit të kompresorit kontrollohen në pikën e vendosur optimale. Kontrolli e realizon këtë duke çikluar valvulën solenoid të ftohjes së motorit për të lejuar ftohësin e lëngshëm të rrjedhë nëpër mbështjelljet e motorit sipas nevojës. Në njësitë e pajisura me ekonomizues, gazi i ndezur largohet nga maja e ekonomizuesit dhe rrjedh vazhdimisht në mbështjelljet e motorit. I gjithë ftohësi i përdorur për ftohjen e motorit rihyn në rotorë nëpërmjet një porte të vendosur në mes të ciklit të kompresimit dhe kompresohet në presion shkarkimi.
Sensorët
Njësitë përdorin termistorë (duke përfshirë dy termistorë të temperaturës së motorit) dhe dy termistorë të nivelit dhe transduktorë presioni për të monitoruar dhe kontrolluar funksionimin e sistemit.
Termistorët
Lëngu dalës nga avulluesi
Kjo temperaturë përdoret për të matur temperaturën e lëngut dalës nga avulluesi (ujë ose kripë). Temperatura përdoret për kontrollin e temperaturës së lëngut dalës dhe për të mbrojtur nga ngrirja e ftohësit. Ndodhet në grykën e lëngut të avulluesit.
Lëngu hyrës në avullues
Ky sensor përdoret për të matur temperaturën e lëngut hyrës në avullues. Ndodhet në grykën hyrëse të avulluesit. Përdoret për të siguruar kompensim automatik të temperaturës për kontrollin e temperaturës së lëngut dalës me kompensim të lëngut hyrës.
Temperatura e gazit të shkarkimit (qarqet A & B)
Ky sensor përdoret për të matur temperaturën e gazit të shkarkimit dhe për të kontrolluar mbinxehjen e temperaturës së shkarkimit. Ndodhet në tubin e shkarkimit të secilit qark (30HXC) ose në krye të ndarësit të vajit (30GX).
KUJDES: Nuk ka mëngë termostati.
Temperatura e motorit
Moduli i Mbrojtjes së Kompresorit (CPM) monitoron temperaturën e motorit. Terminalet e termistorit ndodhen në kutinë e lidhjes së kompresorit.
Niveli i lëngut të avulluesit (qarqet A & B)
Termistori i nivelit të lëngut të avulluesit përdoret për të siguruar kontroll të optimizuar të rrjedhës në avullues. Është instaluar në krye të avulluesit.
Lëngu hyrës në kondensator (30HXC)
Ky sensor përdoret për të matur temperaturën e lëngut që hyn në kondensatorët e ftohur me ujë. Ndodhet në linjën e zakonshme të lëngut që hyn në kondensatorë (i instaluar në terren). Në Makinat e Nxehtësisë përdoret nga rutina e kontrollit të kapacitetit. Në kondensatorët e ftohur me ujë përdoret vetëm për monitorimin e temperaturës së lëngut të kondensatorit.
Lëngu dalës nga kondensatori (opsional në 30HXC)
Ky sensor përdoret për të matur temperaturën e lëngut që del nga kondensatorët e ftohur me ujë. Ndodhet në linjën e zakonshme të lëngut që del nga kondensatorët (i instaluar në terren). Në Makinat e Nxehtësisë përdoret nga rutina e kontrollit të kapacitetit. Në kondensatorët e ftohur me ujë përdoret vetëm për monitorimin e temperaturës së lëngut të kondensatorit.
Rregullimi i ventilatorit 30GX

GX082/102

GX112/132

GX152/162

GX182

GX207/227

GX247/267

GX298

GX328/358
MIRËMBAJTJA
Mbushja e ftohësit - shtimi i karikimit
Këto njësi janë të dizajnuara për t'u përdorur vetëm me R-134a.
MOS PËRDORNI ASNJE FTOHËS TJETËR në këto njësi.
Kur shtoni ose hiqni karikimin, qarkulloni ujë përmes kondensatorit (HX) dhe ftohësit në çdo kohë për të parandaluar ngrirjen. Dëmtimi nga ngrirja konsiderohet abuzim dhe mund të anulojë garancinë e Carrier.
MOS E MBUSHNI tepër sistemin. Mbushja e tepërt rezulton në presion më të lartë shkarkimi me konsum më të lartë të lëngut ftohës, dëmtim të mundshëm të kompresorit dhe konsum më të lartë të energjisë.
Tregues i karikimit të ulët në një sistem 30HXC
SHËNIM
Për të kontrolluar karikimin e ulët të ftohësit në një 30HXC, duhet të merren parasysh disa faktorë. Një xham shikimi me linjë të lëngshme që pulson nuk është domosdoshmërisht një tregues i karikimit të pamjaftueshëm. Ka shumë kushte të sistemit ku një xham shikimi që pulson ndodh nën funksionimin normal. Pajisja matëse 30HXC është dizajnuar të funksionojë siç duhet nën këto kushte.
- Sigurohuni që qarku të funksionojë në kushte me ngarkesë të plotë. Për të kontrolluar nëse qarku A është i ngarkuar plotësisht, ndiqni procedurën e përshkruar në manualin e Kontrollit.
- Mund të jetë e nevojshme të përdorni veçorinë e Kontrollit Manual për ta detyruar qarkun në një gjendje me ngarkesë të plotë. Nëse ky është rasti, shihni udhëzimet për përdorimin e veçorisë së Kontrollit Manual në manualin e Kontrollit.
- Me qarkun që funksionon me ngarkesë të plotë, verifikoni që temperatura e lëngut që del nga ftohësi të jetë në intervalin 6°C ± 1.5.
- Në këtë gjendje, vëzhgoni ftohësin në xhamin e shikimit të linjës së lëngshme. Nëse ka një xham shikimi të qartë dhe pa shenja pulsimi, atëherë qarku është i karikuar në mënyrë adekuate. Anashkaloni hapat e mbetur.
- Nëse ftohësi duket se pulson, qarku ndoshta ka karikim të ulët. Verifikojeni këtë duke kontrolluar pozicionin e EXV (shih IOM të Kontrollit).
- Nëse pozicioni i hapjes së EXD është më i madh se 60%, dhe nëse xhami i shikimit të linjës së lëngshme pulson, atëherë qarku ka karikim të ulët. Ndiqni procedurën për shtimin e karikimit.
Për të shtuar karikim në sistemet 30HXC
- Sigurohuni që njësia të funksionojë me ngarkesë të plotë dhe që temperatura e lëngut që del nga ftohësi të jetë në intervalin 5.6 7.8°C.
- Në këto kushte funksionimi, kontrolloni xhamin e shikimit të linjave të lëngshme. Nëse ka një xham shikimi të qartë, atëherë njësia ka karikim të mjaftueshëm. Nëse xhami i shikimit pulson, atëherë kontrolloni Përqindjen e Hapur të EXD. Nëse kjo është më e madhe se 60%, atëherë filloni të shtoni karikim.
SHËNIM
Një xham shikimi me linjë të lëngshme që pulson në kushte funksionimi të ndryshme nga ato të përmendura më sipër, nuk është domosdoshmërisht një tregues i karikimit të ulët të ftohësit.
- Shtoni 2.5 kg karikim të lëngshëm në avullues duke përdorur valvulën e karikimit që ndodhet në majë të avulluesit.
- Vëzhgoni vlerën e Përqindjes së Hapur të EXD. EXD duhet të fillojë të mbyllet ndërsa shtohet karikimi. Lëreni njësinë të stabilizohet. Nëse Përqindja e Hapur e EXD mbetet mbi 60%, dhe nëse ka ende flluska në xhamin e shikimit, shtoni një karikim shtesë prej 2.5 kg të lëngshëm.
- Lëreni njësinë të stabilizohet dhe kontrolloni përsëri Përqindjen e Hapur të EXD. Vazhdoni të shtoni 2.5 kg karikim të lëngshëm të ftohësit në të njëjtën kohë dhe lëreni njësinë të stabilizohet përpara se të kontrolloni pozicionin e EXD.
- Kur Përqindja e Hapur e EXD është në intervalin 40 - 60%, kontrolloni xhamin e shikimit të linjës së lëngshme. Shtoni ngadalë karikim të lëngshëm shtesë të mjaftueshëm për të siguruar një xham shikimi të qartë. Kjo duhet të bëhet ngadalë për të shmangur mbushjen e tepërt të njësisë.
- Verifikoni karikimin adekuat duke vazhduar të funksiononi me ngarkesë të plotë me 6°C ± 1.5 temperatura e lëngut që del nga avulluesi. Kontrolloni që ftohësi të mos pulsojë në xhamin e shikimit të linjës së lëngshme. Përqindja e Hapur e EXD duhet të jetë midis 40 dhe 60%. Treguesi i nivelit të ftohësit duhet të jetë në intervalin 1.5 - 2.5.
Tregues i karikimit të ulët në sistemet 30GX
- Sigurohuni që qarku të funksionojë në kushte me ngarkesë të plotë dhe që temperatura e kondensimit të jetë 50°C ± 1.5. Për të kontrolluar nëse qarku A është i ngarkuar plotësisht, ndiqni procedurën në IOM të Kontrollit.
- Mund të jetë e nevojshme të përdorni veçorinë e Kontrollit Manual për ta detyruar qarkun në një gjendje me ngarkesë të plotë. Nëse ky është rasti, shihni udhëzimet për përdorimin e funksionit të Kontrollit Manual (procedura në IOM të Kontrollit).
- Me qarkun që funksionon me ngarkesë të plotë, verifikoni që temperatura e lëngut që del nga ftohësi të jetë në intervalin 6°C ± 1.5.
- Matni temperaturën e ajrit që hyn në spiralet e kondensatorit. Matni temperaturën e lëngshme pas lidhjes T ku bashkohen dy linjat e lëngshme të spiralit. Temperatura e lëngshme duhet të jetë 8.3°C mbi temperaturën e ajrit që hyn në spirale. Nëse ndryshimi është më shumë se kaq dhe xhami i shikimit pulson, qarku nuk është i karikuar. Vazhdoni me hapin 5.
- Shtoni 2.5 kg karikim të lëngshëm në ftohës duke përdorur valvulën e karikimit që ndodhet në majë të ftohësit.
- Lëreni sistemin të stabilizohet dhe më pas rikontrolloni temperaturën e lëngshme. Përsëriteni hapin 5 sipas nevojës duke lejuar që sistemi të stabilizohet midis çdo shtimi të karikimit. Shtoni ngadalë karikim ndërsa xhami i shikimit fillon të pastrohet për të shmangur mbushjen e tepërt.
Temperatura e hapësirës, temperatura e ajrit të jashtëm (opsionale)
Këto temperatura përdoren për të matur temperaturën e hapësirës ose temperaturën e ajrit të jashtëm përkatësisht për kontrollin e rivendosjes bazuar në opsionet e rivendosjes së Temperaturës së Ajrit të Jashtëm ose Hapësirës.
Transduktorët e presionit
Presioni i shkarkimit (qarqet A dhe B)
Kjo hyrje përdoret për të matur presionin e anës së lartë të secilit qark të njësisë.
Përdoret për të siguruar presionin për të zëvendësuar matësin e presionit të shkarkimit dhe për të kontrolluar presionin e kokës.
Presioni i thithjes (qarqet A dhe B)
Kjo hyrje përdoret për të matur presionin e anës së ulët të njësisë. Përdoret për të siguruar presionin për të zëvendësuar matësin e presionit të thithjes.
Presioni i vajit (secili kompresor)
Kjo hyrje përdoret për të matur presionin e vajit të secilit kompresor të njësisë. Ndodhet në portën e presionit të vajit të secilit kompresor.
Presioni i ekonomizatorit (qarqet A dhe B)
Kjo hyrje përdoret për të monitoruar ndryshimin e presionit të vajit të furnizuar në kompresor.
Mbushja e vajit - rimbushja e vajit të ulët
Shtimi i karikimit të vajit në sistemet 30HX/GX
- Nëse njësia 30HXC/GX fiket vazhdimisht në Nivel të ulët të vajit, kjo mund të jetë një tregues i karikimit të pamjaftueshëm të vajit. Mund të nënkuptojë gjithashtu thjesht se vaji është në procesin e rikuperimit nga ana e ulët e sistemit.
- Filloni duke e lënë njësinë të funksionojë me ngarkesë të plotë për një orë e gjysmë.
- Pasi të keni funksionuar për 1-1/2 orë, lëreni njësinë të rifillojë dhe të funksionojë normalisht. Nëse alarmet e Nivelit të ulët të vajit vazhdojnë, njësia ka një karikim të ulët të vajit. Shtoni vaj në ndarësin e vajit, duke përdorur valvulën e karikimit të vajit në fund të kondensatorit (30HXC) ose në fund të ndarësit të vajit (30GX).
MOS shtoni vaj në asnjë vend tjetër pasi mund të rezultojë funksionimi i papërshtatshëm i njësisë.
- Sigurohuni që njësia të mos funksionojë kur shtoni vaj, pasi kjo do ta bëjë më të lehtë procesin e karikimit të vajit. Për shkak se sistemi është nën presion edhe kur njësia nuk funksionon, do të jetë e nevojshme të përdorni një pompë të përshtatshme (pompë dore ose elektrike) për të shtuar vaj në sistem.
- Duke përdorur një pompë të përshtatshme, shtoni 2 litra vaj Polyolester në sistem (SPECIFIKIMI I CARRIER: PP47-32). Sigurohuni që çelësi i sigurisë së nivelit të vajit të mos jetë i lidhur me tel dhe lëreni njësinë të rifillojë dhe të funksionojë normalisht.
- Nëse problemet me nivelin e ulët të vajit vazhdojnë, shtoni 1 ose 2 litra të tjerë vaj. Nëse është e nevojshme të shtoni më shumë se 4 litra vaj në sistem, atëherë kontaktoni departamentin tuaj të shërbimit të shpërndarësit të Carrier.
Kur transferoni karikimin e ftohësit në një njësi magazinimi, vaji mund të transportohet së bashku kur njësia nuk funksionon. Ripërdorni fillimisht të gjithë sasinë e ftohësit të transferuar. Pas kullimit të vajit, rimbushni vetëm sasinë e kulluar (një karikim i tepërt i vajit mund të dëmtojë funksionimin e saktë të njësisë).
Ndryshimi integral i filtrit të vajit
Një filtër integral vaji në kompresorin me vidhë 06N është specifikuar për të siguruar një nivel të lartë filtrimi (3 µ) të nevojshëm për jetëgjatësinë e kushinetave. Pasi pastërtia e sistemit është kritike për funksionimin e besueshëm të sistemit, ka gjithashtu një parandrydhës (7 µ) në linjën e vajit në daljen e ndarësit të vajit.
Numri i pjesës së elementit zëvendësues të filtrit integral të vajit është:
Numri i pjesës së Carrier (duke përfshirë filtrin dhe unazën O): 06NA 660016S
Programi i ndryshimit të filtrit
Filtri duhet të kontrollohet pas 500 orëve të para të funksionimit dhe çdo 2000 orë të mëvonshme. Filtri duhet të zëvendësohet në çdo kohë kur diferenca e presionit nëpër filtër tejkalon 2.1 bar.
Rënia e presionit nëpër filtër mund të përcaktohet duke matur presionin në portën e shërbimit të filtrit dhe portën e presionit të vajit. Ndryshimi në këto dy presione do të jetë rënia e presionit nëpër filtër, valvulën e kontrollit dhe valvulën solenoid. Rënia e presionit nëpër valvulën e kontrollit dhe valvulën solenoid është afërsisht 0.4 bar, e cila duhet të zbritet nga dy matjet e presionit të vajit për të dhënë rënien e presionit të filtrit të vajit. Rënia e presionit të filtrit të vajit duhet të kontrollohet pas çdo rasti që kompresori fiket në një siguri të ulët të presionit të vajit.
Procedura e ndryshimit të filtrit
- Hapat e mëposhtëm përshkruajnë metodën e duhur për ndryshimin e filtrit integral të vajit.
- Fikni dhe kyçni kompresorin.
- Detyroni manualisht funksionimin e valvulës solenoid të vajit, në mënyrë që të shtypni grilën e brendshme të valvulës në sediljen e saj.
- Mbyllni valvulën e shërbimit të filtrit të vajit. Lironi presionin nga zgavrat e filtrit përmes portës së shërbimit të filtrit.
- Hiqeni spinën e filtrit të vajit. Hiqeni filtrin e vjetër të vajit.
- Përpara se të instaloni filtrin e ri të vajit, "lyeni" unazën o me vaj. Instaloni filtrin dhe zëvendësoni spinën.
Përpara se të mbyllni sistemin e vajit lubrifikues, shfrytëzoni rastin për të zëvendësuar edhe parandrydhësin. - Kur të keni përfunduar, evakuoni zgavrën e filtrit përmes portës së shërbimit të filtrave. Hapni valvulën e shërbimit të filtrit. Hiqni çdo pajisje kyçëse të kompresorit, kompresori është gati të kthehet në funksionim.
Zëvendësimi i kompresorit
Kontrolli i rrotullimit të kompresorit
Rrotullimi i saktë i kompresorit është një nga konsideratat më kritike të aplikimit. Rrotullimi i kundërt, madje edhe për një kohëzgjatje shumë të shkurtër, dëmton kompresorin.
Skema e mbrojtjes nga rrotullimi i kundërt duhet të jetë e aftë të përcaktojë drejtimin e rrotullimit dhe të ndalojë kompresorin brenda 300 milisekondash. Rrotullimi i kundërt ka më shumë gjasa të ndodhë sa herë që prishen telat në terminalet e kompresorit.
Për të minimizuar mundësinë e rrotullimit të kundërt, duhet të zbatohet procedura e mëposhtme. Riteloni kabllot e energjisë në kunjën e terminalit të kompresorit siç ishin telat fillimisht.
Për zëvendësimin e kompresorit, një çelës i presionit të ulët përfshihet me kompresorin. Ky çelës i presionit të ulët duhet të instalohet përkohësisht si një siguri e fortë në pjesën e presionit të lartë të kompresorit. Qëllimi i këtij çelësi është të mbrojë kompresorin nga çdo gabim i telave në kunjën e terminalit të kompresorit. Kontakti elektrik i çelësit do të lidhej me tel në seri me çelësin e presionit të lartë. Çelësi do të qëndrojë në vend derisa kompresori të jetë ndezur dhe drejtimi i rrotullimit të jetë verifikuar; në këtë pikë, çelësi do të hiqet.
Çelësi që është zgjedhur për zbulimin e rrotullimit të kundërt është numri i pjesës së Carrier HK01CB001. Ai është i disponueshëm si pjesë e "Paketës së instalimit të kompresorit" (pjesa nr. 06NA 660 013). Ky çelës hap kontaktet kur presioni bie nën 50 mm vakum. Çelësi është një lloj rivendosjeje manuale që mund të rivendoset pasi presioni të jetë rritur edhe një herë mbi 70 kPa. Është thelbësore që çelësi të jetë një lloj rivendosjeje manuale për të mos lejuar që kompresori të ciklohet shkurtimisht në drejtim të kundërt.
Zgjidhja e problemeve
Ndiqni hapat e mëposhtëm për të diagnostikuar dhe korrigjuar problemet e EXD/Ekonomizatorit.
Në njësitë 30HXC/GX me ekonomizatorë, verifikoni që valvula për tubin e flluskave (fundi i Ekonomizatorit) të jetë e hapur. Kontrolloni së pari funksionimin e motorit EXD (shihni procedurën në IOM të Kontrollit). Duhet të jeni në gjendje të ndjeni lëvizjen e aktivizuesit duke vendosur dorën në trupin e EXD ose ekonomizatorit (aktivizuesi ndodhet rreth gjysmës në dy të tretat e rrugës lart nga fundi i guaskës së ekonomizatorit). Duhet të ndjeni një goditje të fortë që vjen nga aktivizuesi kur arrin në majë të goditjes së tij (mund të dëgjohet nëse rrethinat janë relativisht të qeta). Aktivizuesi duhet të trokasë kur arrin në fund të goditjes së tij. Nëse besohet se valvula nuk po funksionon siç duhet, kontaktoni departamentin tuaj të shërbimit të Carrier për kontrolle të mëtejshme në:
- sinjalet dalëse në modulin EXD
- lidhjet e telave (vazhdimësia dhe lidhja e ngushtë në të gjithë terminalet e kunjit)
- rezistenca e dredhave të motorit EXD.


Miratimi i Sistemit të Menaxhimit Mjedisor
Nr. porosi: 13173-76, 03 1999 - Zëvendëson Nr: 13173-76, mars 1998
Prodhuesi rezervon të drejtën të ndryshojë çdo specifikim të produktit pa njoftim.
Prodhuesi: Carrier s.a., Montluel, France.
Shtypur në Holandë në letër pa klor.

Shkarko manual
Këtu mund të shkarkoni versionin e plotë pdf të manualit, ai mund të përmbajë udhëzime shtesë sigurie, informacione garancioni, rregulla FCC, etj.
Shkarko Manuali i Kompresorit me vidhë Carrier 30HXC/30GX