Zanussi ZIAN644K - Manual de utilizare pentru plită cu inducție
- 1 INSTALARE
- 2 DESCRIEREA PRODUSULUI
- 3 UTILIZAREA ZILNICĂ
- 4 SFATURI ȘI SUGESTII
- 5 ÎNGRIJIREA ȘI CURĂȚAREA
- 6 DEPANARE
- 7 DATE TEHNICE
- 8 EFICIENȚA ENERGETICĂ
- 9 INFORMAȚII PRIVIND SIGURANȚA
- 10 INSTRUCȚIUNI DE SIGURANȚĂ
- 11 Referințe
- 12 Descărcați manualul
- 13 În alte limbi

INSTALARE
Consultați capitolele privind siguranța.
Plite încorporabile
Utilizați plitele încorporabile numai după ce asamblați plita în unități încorporabile și suprafețe de lucru corecte, care se aliniază la standarde.
Cablu de conectare
- Pentru o conexiune monofazată sau bifazată, utilizați tipul de cablu: H03V2V2-F sau H05BB-F care rezistă la o temperatură de 90°C sau mai mare.
- Pentru a înlocui cablul de alimentare deteriorat, utilizați cablul: H03V2V2-F sau H05BB-F care rezistă la o temperatură de 90°C sau mai mare. Contactați un centru de service autorizat. Cablul de conectare poate fi înlocuit numai de un electrician calificat.
Asamblare
Dacă instalați plita sub o hotă, consultați instrucțiunile de instalare ale hotei pentru distanța minimă dintre aparate.

Dacă aparatul este instalat deasupra unui sertar, ventilația plitei poate încălzi obiectele depozitate în sertar în timpul procesului de gătit.
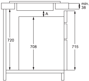
Combinație cu cuptor standard

Combinație cu cuptor dublu

A = min. 6 mm, pentru cuptoare duble de la AEG, Electrolux și Zanussi.
A = min. 12 mm, pentru cuptoare duble de la alte mărci.
DESCRIEREA PRODUSULUI
Configurația suprafeței de gătit

- Zonă de gătit cu inducție
- Panou de control
Pentru informații detaliate despre dimensiunile zonelor de gătit, consultați "Date tehnice".
Configurația panoului de control

Utilizați câmpurile senzor pentru a opera aparatul. Afișajele, indicatorii și sunetele vă spun ce funcții funcționează.
| Câmpul senzorului | Funcție | Comentariu | |
| 1 | ![]() | ON / OFF | Pentru a activa și dezactiva plita. |
| 2 | ![]() | Blocare / Dispozitiv de siguranță pentru copii | Pentru a bloca / debloca panoul de control. |
| 3 | ![]() | BoilAssist | Pentru a activa și dezactiva funcția. Indicatorii de deasupra simbolului arată progresul funcției. |
| 4 | ![]() | Pauză | Pentru a activa și dezactiva funcția. |
| 5 | - | Afișaj setare căldură | Pentru a afișa setarea căldurii. |
| 6 | - | Indicatori temporizator ai zonelor de gătit | Pentru a arăta pentru ce zonă setați timpul. |
| 7 | - | Afișaj temporizator | Pentru a afișa timpul în minute. |
| 8 | ![]() | Hob²Hood | Pentru a activa și dezactiva modul manual al funcției. |
| 9 | ![]() | - | Pentru a selecta zona de gătit. |
| 10 | ![]() | - | Pentru a crește sau micșora timpul. |
| 11 | ![]() | PowerBoost | Pentru a activa funcția. |
| 12 | - | Bară de control | Pentru a seta o setare de căldură. |
Afișaje setare căldură
| Afișaj | Descriere |
![]() | Zona de gătit este dezactivată. |
![]() | Zona de gătit funcționează. |
![]() | Pauză funcționează. |
![]() | BoilAssist funcționează. |
![]() | Încălzire automată funcționează. |
![]() | PowerBoost funcționează. |
+ cifră | Există o defecțiune. |
![]() | Control OptiHeat (indicator de căldură reziduală în 3 trepte): continuați să gătiți / mențineți cald / căldură reziduală. |
![]() | Blocare / Dispozitiv de siguranță pentru copii funcționează. |
![]() | Veselă incorectă sau prea mică sau fără veselă pe zona de gătit. |
![]() | Oprirea automată funcționează. |
Control OptiHeat (indicator de căldură reziduală în 3 trepte)
Atâta timp cât indicatorul este aprins, există riscul de arsuri din cauza căldurii reziduale.
Zonele de gătit cu inducție produc căldura necesară pentru procesul de gătit direct în partea de jos a vasului de gătit. Sticla ceramică este încălzită de căldura vasului de gătit. Indicatorii
apar când o zonă de gătit este fierbinte. Acestea arată nivelul căldurii reziduale pentru zonele de gătit pe care le utilizați în prezent.
Indicatorul poate apărea, de asemenea:
- pentru zonele de gătit învecinate, chiar dacă nu le utilizați,
- când un vas de gătit fierbinte este așezat pe o zonă de gătit rece,
- când plita este dezactivată, dar zona de gătit este încă fierbinte.
Indicatorul dispare când zona de gătit s-a răcit.
UTILIZAREA ZILNICĂ
Consultați capitolele privind siguranța.
Activare și dezactivare
Atingeți
timp de 1 secundă pentru a activa sau dezactiva plita.
Oprire automată
Funcția dezactivează automat plita dacă:
- toate zonele de gătit sunt dezactivate,
- nu setați nivelul de căldură după ce activați plita,
- vărsați ceva sau puneți ceva pe panoul de control mai mult de 10 secunde (o tigaie, o cârpă etc.). Se aude un semnal acustic și plita se dezactivează. Îndepărtați obiectul sau curățați panoul de control.
- plita se înfierbântă prea tare (de exemplu, când o cratiță se usucă). Lăsați zona de gătit să se răcească înainte de a utiliza din nou plita.
- utilizați vase de gătit incorecte. Simbolul
se aprinde, iar zona de gătit se dezactivează automat după 2 minute. - nu dezactivați o zonă de gătit sau schimbați nivelul de căldură. După un timp,
se aprinde, iar plita se dezactivează.
Relația dintre nivelul de căldură și timpul după care plita se dezactivează:
| Nivel de căldură | Plita se dezactivează după |
, 1 - 2 | 6 ore |
| 3 - 4 | 5 ore |
| 5 | 4 ore |
| 6 - 9 | 1,5 ore |
Nivelul de căldură
Pentru a seta sau a schimba nivelul de căldură:
Atingeți bara de control la nivelul de căldură corect sau deplasați degetul de-a lungul barei de control până când ajungeți la nivelul de căldură corect.

BoilAssist
Funcția reglează automat temperatura apei, astfel încât aceasta să nu dea în foc odată ce atinge punctul de fierbere.
Dacă există căldură reziduală (
/
/
) pe zona de gătit pe care doriți să o utilizați, se emite un semnal acustic, iar funcția nu pornește.
- Atingeți
pentru a activa plita. - Atingeți
pentru a activa funcția.
Un simbol
clipește pentru zonele de gătit pe care puteți utiliza funcția în prezent. - Atingeți bara de control a oricărei zone de gătit disponibile pentru care doriți să porniți funcția (între nivelul de căldură 1-9).
Funcția pornește.
Dacă nu alegeți nicio zonă de gătit în decurs de 5 secunde, funcția nu se activează.
Odată ce funcția pornește, indicatorii de deasupra simbolului
se aprind unul după altul până când apa atinge punctul de fierbere.
Când funcția detectează punctul de fierbere, plita emite un semnal acustic, iar nivelul de căldură se modifică automat la 5.
Dacă toate zonele de gătit sunt deja utilizate sau există căldură reziduală pe toate, plita emite un semnal sonor, indicatorii de deasupra simbolului
clipesc, iar funcția nu pornește.
Pentru a dezactiva funcția, atingeți
(funcția se dezactivează, iar nivelul de căldură scade la 0) sau atingeți bara de control și reglați manual nivelul de căldură.
Funcția Pauză și ridicarea vasului dezactivează BoilAssist.
Încălzire automată
Activați această funcție pentru a obține nivelul de căldură dorit într-un timp mai scurt. Când este activată, zona funcționează la cel mai înalt nivel la început și apoi continuă să gătească la nivelul de încălzire dorit.
Pentru a activa funcția, zona de gătit trebuie să fie rece.
Pentru a activa funcția pentru o zonă de gătit: atingeți
(
se aprinde). Atingeți imediat nivelul de căldură dorit. După 3 secunde,
se aprinde.
Pentru a dezactiva funcția: schimbați nivelul de căldură.
PowerBoost
Această funcție oferă mai multă putere zonelor de gătit cu inducție. Funcția poate fi activată pentru zona de gătit cu inducție doar pentru o perioadă limitată de timp. După acest timp, zona de gătit cu inducție revine automat la cel mai înalt nivel de căldură.
Consultați capitolul „Date tehnice”.
Pentru a activa funcția pentru o zonă de gătit: atingeți
.
se aprinde.
Pentru a dezactiva funcția: schimbați nivelul de căldură.
Temporizator
Temporizator cu numărătoare inversă
Puteți utiliza această funcție pentru a seta durata unei singure sesiuni de gătit.
Mai întâi, setați nivelul de căldură pentru zona de gătit, apoi setați funcția.
Pentru a seta zona de gătit: atingeți
în mod repetat până când apare indicatorul unei zone de gătit.
Pentru a activa funcția sau a schimba ora: atingeți
sau
al temporizatorului pentru a seta ora (00 - 99 minute). Când indicatorul zonei de gătit începe să clipească, timpul se scurge.
Pentru a vedea timpul rămas: atingeți
pentru a seta zona de gătit. Indicatorul zonei de gătit începe să clipească. Afișajul arată timpul rămas.
Pentru a dezactiva funcția: atingeți
pentru a seta zona de gătit și apoi atingeți
. Timpul rămas scade până la 00. Indicatorul zonei de gătit dispare.
Când se termină numărătoarea inversă, se aude un semnal acustic, iar 00 clipește. Zona de gătit se dezactivează.
Pentru a opri sunetul: atingeți
.
Minutier
Puteți utiliza această funcție atunci când plita este activată, iar zonele de gătit nu funcționează. Afișajul nivelului de căldură arată
.
Pentru a activa funcția: atingeți
și apoi atingeți
sau
al temporizatorului pentru a seta ora. Când timpul se termină, se aude un semnal acustic, iar 00 clipește.
Pentru a opri sunetul: atingeți
.
Funcția nu are niciun efect asupra funcționării zonelor de gătit.
Pauză
Această funcție setează toate zonele de gătit care funcționează la cea mai mică setare de căldură.
Când funcția funcționează, toate celelalte simboluri de pe panourile de control sunt blocate.
Funcția nu oprește funcțiile temporizatorului.
Atingeți
pentru a activa funcția.
se aprinde. Setarea de căldură este redusă la 1.
Pentru a dezactiva funcția, atingeți
. Setarea de căldură anterioară se aprinde.
Blocare
Puteți bloca panoul de control în timp ce zonele de gătit funcționează. Previne o modificare accidentală a setării de căldură.
Setați mai întâi setarea de căldură.
Pentru a activa funcția: atingeți
.
se aprinde timp de 4 secunde. Cronometrul rămâne pornit.
Pentru a dezactiva funcția: atingeți
. Setarea de căldură anterioară se aprinde.
Când dezactivați plita, dezactivați și această funcție.
Dispozitiv de siguranță pentru copii
Această funcție previne funcționarea accidentală a plitei.
Pentru a activa funcția: activați plita cu
. Nu setați nicio setare de căldură. Atingeți
timp de 4 secunde.
se aprinde. Dezactivați plita cu
.
Pentru a dezactiva funcția: activați plita cu
. Nu setați nicio setare de căldură. Atingeți
timp de 4 secunde.
se aprinde. Dezactivați plita cu
.
Pentru a anula funcția doar pentru un timp de gătit: activați plita cu
.
se aprinde. Atingeți
timp de 4 secunde. Setați setarea de căldură în 10 secunde. Puteți opera plita. Când dezactivați plita cu
funcția funcționează din nou.
Gestionarea energiei
Dacă sunt active mai multe zone și puterea consumată depășește limita sursei de alimentare, această funcție împarte puterea disponibilă între toate zonele de gătit. Plita controlează setările de căldură pentru a proteja siguranțele instalației casei.
- Zonele de gătit sunt grupate în funcție de locație și numărul de faze din plită. Fiecare fază are o încărcare maximă de energie electrică (3700 W). Dacă plita atinge limita de putere maximă disponibilă într-o fază, puterea zonelor de gătit va fi redusă automat.
- Setarea de căldură a zonei de gătit selectată ultima este întotdeauna prioritară. Puterea rămasă va fi împărțită între zonele de gătit activate anterior în ordine inversă de selecție.
- Afișajul setării de căldură a zonelor reduse comută între setarea de căldură selectată inițial și setarea de căldură redusă.
- Așteptați până când afișajul nu mai clipește sau reduceți setarea de căldură a zonei de gătit selectată ultima. Zonele de gătit vor continua să funcționeze cu setarea de căldură redusă. Modificați manual setările de căldură ale zonelor de gătit, dacă este necesar.
Consultați ilustrația pentru posibilele combinații în care puterea poate fi distribuită între zonele de gătit.

Hob²Hood
Este o funcție automată avansată care conectează plita la o hotă specială. Atât plita, cât și hota au un comunicator de semnal în infraroșu. Viteza ventilatorului este definită automat pe baza setării modului și a temperaturii celui mai fierbinte vas de gătit de pe plită. Puteți, de asemenea, să acționați ventilatorul de pe plită manual.
Pentru majoritatea hotelor, sistemul de la distanță este dezactivat inițial. Activați-l înainte de a utiliza funcția. Pentru mai multe informații, consultați manualul de utilizare al hotei.
Operarea automată a funcției
Pentru a opera funcția automat, setați modul automat la H1 – H6. Plita este setată inițial la H5. Hota reacționează ori de câte ori acționați plita. Plita recunoaște automat temperatura vasului de gătit și reglează viteza ventilatorului.
Moduri automate
| Lumină automată | Fierbere1) | Prăjire2) | |
| Mod H0 | Oprit | Oprit | Oprit |
| Mod H1 | Pornit | Oprit | Oprit |
| Mod H23) | Pornit | Viteza ventilatorului 1 | Viteza ventilatorului 1 |
| Mod H3 | Pornit | Oprit | Viteza ventilatorului 1 |
| Mod H4 | Pornit | Viteza ventilatorului 1 | Viteza ventilatorului 1 |
| Mod H5 | Pornit | Viteza ventilatorului 1 | Viteza ventilatorului 2 |
| Mod H6 | Pornit | Viteza ventilatorului 2 | Viteza ventilatorului 3 |
- Plita detectează procesul de fierbere și activează viteza ventilatorului în conformitate cu modul automat.
- Plita detectează procesul de prăjire și activează viteza ventilatorului în conformitate cu modul automat.
- Acest mod activează ventilatorul și lumina și nu se bazează pe temperatură.
Schimbarea modului automat
- Dezactivați aparatul.
- Atingeți
timp de 3 secunde. Afișajul se aprinde și se stinge. - Atingeți
timp de 3 secunde. - Atingeți
de câteva ori până când
se aprinde. - Atingeți
a Timerului pentru a selecta un mod automat.
Pentru a opera hota direct pe panoul hotei, dezactivați modul automat al funcției.
Când terminați de gătit și dezactivați plita, ventilatorul hotei poate funcționa încă pentru o anumită perioadă de timp. După acel timp, sistemul dezactivează automat ventilatorul și vă împiedică activarea accidentală a ventilatorului pentru următoarele 30 de secunde.
Operarea manuală a vitezei ventilatorului
Puteți, de asemenea, să operați funcția manual.
Pentru a face acest lucru, atingeți
când plita este activă. Acest lucru dezactivează operarea automată a funcției și vă permite să schimbați manual viteza ventilatorului. Când apăsați
, creșteți viteza ventilatorului cu una. Când atingeți un nivel intensiv și apăsați din nou
, veți seta viteza ventilatorului la 0, ceea ce dezactivează ventilatorul hotei. Pentru a porni din nou ventilatorul cu viteza ventilatorului 1, atingeți
.
Pentru a activa operarea automată a funcției, dezactivați plita și activați-o din nou.
Activarea luminii
Puteți seta plita să activeze automat lumina ori de câte ori activați plita. Pentru a face acest lucru, setați modul automat la H1 – H6.
Lumina de pe hotă se dezactivează la 2 minute după dezactivarea plitei.
SFATURI ȘI SUGESTII
Consultați capitolele referitoare la siguranță.
Vase de gătit
Pentru zonele de gătit cu inducție, un câmp electromagnetic puternic creează căldură foarte rapid în vasele de gătit.
Utilizați zonele de gătit cu inducție cu vase de gătit adecvate.
- Partea inferioară a vasului de gătit trebuie să fie cât mai groasă și plată posibil.
- Asigurați-vă că bazele tigăilor sunt curate și uscate înainte de a le așeza pe suprafața plitei.
- Pentru a evita zgârieturile, nu glisați sau frecați oala pe sticla ceramică.
Materialul vasului de gătit
- corect: fontă, oțel, oțel emailat, oțel inoxidabil, fund multistrat (cu marcaj corect de la producător).
- incorect: aluminiu, cupru, alamă, sticlă, ceramică, porțelan.
Un vas de gătit este potrivit pentru o plită cu inducție dacă:
- apa fierbe foarte repede pe o zonă setată la cea mai mare setare de căldură.
- un magnet trage de partea inferioară a vasului de gătit.
Dimensiunile vasului de gătit
- Zonele de gătit cu inducție se adaptează la dimensiunea fundului vasului de gătit în mod automat.
- Eficiența zonei de gătit este legată de diametrul vasului de gătit. Vasul de gătit cu un diametru mai mic decât minimul primește doar o parte din puterea generată de zona de gătit.
- Din motive de siguranță și pentru rezultate optime de gătit, nu utilizați vase de gătit mai mari decât cele indicate în "Specificațiile zonelor de gătit". Evitați să țineți vase de gătit aproape de panoul de control în timpul sesiunii de gătit. Acest lucru ar putea afecta funcționarea panoului de control sau ar putea activa accidental funcțiile plitei.
Consultați "Date tehnice".
Zgomotele din timpul funcționării
Dacă auziți:
- zgomot de crac: vasul de gătit este fabricat din diferite materiale (o construcție de tip sandwich).
- sunet de fluierat: utilizați o zonă de gătit cu un nivel de putere ridicat, iar vasul de gătit este fabricat din diferite materiale (o construcție de tip sandwich).
- zumzet: utilizați un nivel de putere ridicat.
- clic: are loc o comutare electrică.
- șuierat, bâzâit: ventilatorul funcționează.
Zgomotele sunt normale și nu indică nicio defecțiune.
Sfaturi și sugestii pentru BoilAssist
Funcția funcționează cel mai bine pentru fierberea apei și prepararea cartofilor.
Nu funcționează cu vase de gătit din fontă și antiaderente, de ex. cu un strat ceramic. Vasele din oțel emailat sunt recomandate pentru obținerea celor mai bune rezultate la fierberea cartofilor.
Verificați dacă oala pe care ați ales-o este potrivită pentru BoilAssist monitorizând prima sesiune de gătit.
Pentru a utiliza BoilAssist în mod eficient, urmați sfaturile de mai jos:
- Umpleți între jumătate și trei sferturi din oală cu apă rece de la robinet, lăsând 4 cm de la marginea oalei liberi. Nu utilizați mai puțin de 1 sau mai mult de 5 litri de apă.
Asigurați-vă că greutatea totală a apei (sau a apei și a cartofilor) variază între 1-5 kg. - Dacă doriți să gătiți cartofi, asigurați-vă că sunt complet acoperiți cu apă, dar nu uitați să lăsați cel puțin un sfert din oală liber.
- Pentru a obține cele mai bune rezultate, gătiți doar cartofi întregi, necurățați, de dimensiuni medii.
- Asigurați-vă că nu împachetați cartofii prea strâns.
- Evitați producerea de vibrații externe (de ex. de la utilizarea unui blender sau de la plasarea unui telefon mobil lângă aparat) atunci când funcția este în funcțiune.
- Dacă doriți să utilizați sare, adăugați-o după ce apa atinge punctul de fierbere.
- Funcția ar putea să nu funcționeze corect pentru fierbătoarele de apă și vasele de espresso.
Exemple de aplicații de gătit
Corelația dintre setarea de căldură a unei zone și consumul de energie nu este liniară. Când creșteți setarea de căldură, nu este proporțională cu creșterea consumului de energie. Înseamnă că o zonă de gătit cu setarea medie de căldură utilizează mai puțin de jumătate din puterea sa.
Datele din tabel sunt doar orientative.
| Setare căldură | Utilizați pentru: | Timp (min) | Sfaturi |
- 1 | Mențineți mâncarea gătită caldă. | după necesități | Puneți un capac pe vasul de gătit. |
| 1 - 2 | Sos olandez, topiți: unt, ciocolată, gelatină. | 5 - 25 | Amestecați din când în când. |
| 1 - 2 | Solidificați: omlete pufoase, ouă coapte. | 10 - 40 | Gătiți cu un capac. |
| 2 - 3 | Fierbeți la foc mic orez și preparate pe bază de lapte, încălziți mâncăruri gata preparate. | 25 - 50 | Adăugați de cel puțin două ori mai mult lichid decât orez, amestecați preparatele cu lapte la jumătatea procedurii. |
| 3 - 4 | Gătiți legume, pește, carne la abur. | 20 - 45 | Adăugați câteva linguri de lichid. |
| 4 - 5 | Gătiți cartofi la abur. | 20 - 60 | Utilizați max. ¼ l de apă pentru 750 g de cartofi. |
| 4 - 5 | Gătiți cantități mai mari de mâncare, tocănițe și supe. | 60 - 150 | Până la 3 l de lichid plus ingrediente. |
| 6 - 7 | Prăjiți ușor: șnițel, cordon bleu de vițel, cotlete, chiftele, cârnați, ficat, rântaș, ouă, clătite, gogoși. | după necesități | Întoarceți la jumătatea timpului. |
| 7 - 8 | Prăjiți intens, cartofi rași, fripturi de mușchi, fripturi. | 5 - 15 | Întoarceți la jumătatea timpului. |
| 9 | Fierbeți apă, gătiți paste, rumeniți carne (gulaș, friptură în oală), prăjiți cartofi prăjiți. | ||
![]() | Fierbeți cantități mari de apă. PowerBoost este activat. | ||
Sfaturi și sugestii pentru Hob²Hood
Când utilizați plita cu funcția:
- Protejați panoul hotei de lumina directă a soarelui.
- Nu îndreptați lumina halogenă spre panoul hotei.
- Nu acoperiți panoul de control al plitei.
- Nu întrerupeți semnalul dintre plită și hotă (de ex. cu mâna, cu mânerul unui vas de gătit sau cu o oală înaltă). Consultați imaginea.
Hota din imagine este doar exemplificativă.

Alte aparate controlate de la distanță pot bloca semnalul. Nu utilizați astfel de aparate în apropierea plitei în timp ce Hob²Hood este pornit.
Hote cu funcția Hob²Hood
Pentru a găsi gama completă de hote care funcționează cu această funcție, consultați site-ul nostru web pentru consumatori.
ÎNGRIJIREA ȘI CURĂȚAREA
Consultați capitolele referitoare la siguranță.
Informații generale
- Curățați plita după fiecare utilizare.
- Utilizați întotdeauna vase de gătit cu o bază curată.
- Zgârieturile sau petele întunecate de pe suprafață nu afectează modul în care funcționează plita.
- Utilizați un agent de curățare special, adecvat pentru suprafața plitei.
- Utilizați o racletă specială pentru sticlă.
Curățarea plitei
- Îndepărtați imediat: plasticul topit, folia de plastic, zahărul și alimentele cu zahăr, altfel, murdăria poate provoca daune plitei. Aveți grijă să evitați arsurile. Utilizați o racletă specială pentru plită pe suprafața de sticlă într-un unghi ascuțit și deplasați lama pe suprafață.
- Îndepărtați când plita este suficient de rece: inele de calcar, inele de apă, pete de grăsime, decolorare metalică lucioasă. Curățați plita cu o cârpă umedă și un detergent neabraziv. După curățare, ștergeți plita cu o cârpă moale.
- Îndepărtați decolorarea metalică lucioasă: utilizați o soluție de apă cu oțet și curățați suprafața de sticlă cu o cârpă.
DEPANARE
Consultați capitolele privind siguranța.
Ce trebuie să faceți dacă
| Problemă | Cauză posibilă | Remediu |
| Nu puteți activa sau opera plita. | Plita nu este conectată la o sursă de alimentare electrică sau este conectată incorect. | Verificați dacă plita este conectată corect la sursa de alimentare electrică. |
| Siguranța este arsă. | Asigurați-vă că siguranța este cauza defecțiunii. Dacă siguranța se arde din nou și din nou, contactați un electrician calificat. | |
| Nu setați setarea de căldură timp de 10 secunde. | Activați din nou plita și setați setarea de căldură în mai puțin de 10 secunde. | |
| Ați atins 2 sau mai multe câmpuri ale senzorului în același timp. | Atingeți doar un câmp al senzorului. | |
| Funcționează pauza. | Consultați „Utilizarea zilnică”. | |
| Există pete de apă sau de grăsime pe panoul de control. | Curățați panoul de control. | |
| Se aude un semnal acustic și plita se dezactivează. Se aude un semnal acustic când plita este dezactivată. | Ați pus ceva pe unul sau mai multe câmpuri ale senzorului. | Îndepărtați obiectul de pe câmpurile senzorului. |
| Plita se dezactivează. | Ați pus ceva pe câmpul senzorului . | Îndepărtați obiectul de pe câmpul senzorului. |
| Indicatorul de căldură reziduală nu se aprinde. | Zona nu este fierbinte, deoarece a funcționat doar pentru o perioadă scurtă de timp sau senzorul este deteriorat. | Dacă zona a funcționat suficient de mult timp pentru a fi fierbinte, contactați un centru de service autorizat. |
| Hob²Hood nu funcționează. | Ați acoperit panoul de control. | Îndepărtați obiectul de pe panoul de control. |
| Utilizați o oală foarte înaltă care blochează semnalul. | Utilizați o oală mai mică, schimbați zona de gătit sau operați hota manual. | |
| Funcția Automatic Heat Up (Încălzire automată) nu funcționează. | Zona este fierbinte. | Lăsați zona să se răcească suficient. |
| Este setată cea mai mare setare de căldură. | Cea mai mare setare de căldură are aceeași putere ca și funcția. | |
| Setarea de căldură se modifică între două niveluri. | Funcționează gestionarea energiei. | Consultați „Utilizarea zilnică”. |
| Câmpurile senzorului devin fierbinți. | Vasele de gătit sunt prea mari sau le-ați pus prea aproape de comenzi. | Puneți vasele de gătit mari pe zonele din spate, dacă este posibil. |
se aprinde. | Child Safety Device (Dispozitivul de siguranță pentru copii) sau Lock (Blocare) funcționează. Nu există vase de gătit pe zonă. | Consultați „Utilizarea zilnică”. Puneți vase de gătit pe zonă. |
se aprinde. | Nu există vase de gătit pe zonă. | Puneți vase de gătit pe zonă. |
| Vasele de gătit nu acoperă crucea / pătratul. | Acoperiți complet crucea / pătratul. | |
| Vasele de gătit sunt nepotrivite. | Utilizați vase de gătit adecvate. Consultați „Sfaturi și recomandări”. | |
| Diametrul fundului vaselor de gătit este prea mic pentru zonă. | Utilizați vase de gătit cu dimensiuni corecte. Consultați „Date tehnice”. | |
și apar alternativ. | Puterea este prea mică din cauza vaselor de gătit nepotrivite sau a unei oale goale. | Utilizați tipul adecvat de vase de gătit. Consultați „Sfaturi și recomandări” și „Date tehnice”. Nu activați nicio zonă cu o oală goală pe ea. |
și apar alternativ. | Oala este goală sau conține un lichid altul decât apa, de ex. ulei. | Evitați utilizarea funcției cu lichide altele decât apa. |
și apar alternativ. | Există prea multă sau prea puțină apă în oală. Ați fiert alimente altele decât apă și cartofi. Punctul de fierbere a fost mutat în timp și BoilAssist nu a putut funcționa corect. | Fierbeți doar apă și cartofi cu ajutorul BoilAssist. Consultați „Sfaturi și recomandări”. |
Auziți un semnal sonor, indicatorii de deasupra clipesc și BoilAssist nu pornește. | Niciuna dintre zonele de gătit nu este gata de utilizare cu BoilAssist. Există căldură reziduală pe zonele de gătit pe care doriți să le alegeți sau sunt încă în uz. | Terminați activitățile de gătit anterioare și alegeți o zonă de gătit liberă, fără căldură reziduală. |
și un număr se aprind. | Există o eroare în plită. | Dezactivați plita și activați-o din nou după 30 de secunde. Dacă se aprinde din nou, deconectați plita de la sursa de alimentare electrică. După 30 de secunde, conectați din nou plita. Dacă problema persistă, contactați un centru de service autorizat. |
| Auziți un zgomot constant de bip. | Conexiunea electrică este incorectă. | Deconectați plita de la sursa de alimentare electrică. Solicitați unui electrician calificat să verifice instalația. |
Dacă nu puteți găsi o soluție
Dacă nu puteți găsi singur o soluție la problemă, contactați distribuitorul sau un centru de service autorizat. Furnizați datele de pe plăcuța cu caracteristici tehnice. Furnizați, de asemenea, codul format din trei cifre pentru sticla ceramică (se află în colțul suprafeței de sticlă) și un mesaj de eroare care apare. Asigurați-vă că ați utilizat corect plita. În caz contrar, intervenția unui tehnician de service sau a unui distribuitor nu va fi gratuită, nici măcar în perioada de garanție. Informațiile despre perioada de garanție și centrele de service autorizate se află în broșura de garanție.
DATE TEHNICE
Plăcuța cu caracteristici tehnice
Model ZIAN644K
Typ 61 B4A 00 AA
Induction 7.35 kW
PNC 949 595 698 01
220 - 240 V / 400 V 2N 50 - 60 Hz
Made in: Germany
7.35 kW
Specificațiile zonelor de gătit
| Zonă de gătit | Putere nominală (setare maximă de căldură) [W] | PowerBoost [W] | Durata maximă PowerBoost [min] | Diametrul vaselor de gătit [mm] |
| Față stânga | 2300 | 3700 | 10 | 125 - 210 |
| Spate stânga | 1800 | 2800 | 10 | 145 - 180 |
| Față dreapta | 1400 | 2500 | 4 | 125 - 145 |
| Spate dreapta | 1800 | 2800 | 10 | 145 - 180 |
Puterea zonelor de gătit poate fi ușor diferită de datele din tabel. Se modifică în funcție de materialul și dimensiunile vaselor de gătit.
Pentru rezultate optime de gătit, utilizați vase de gătit care nu sunt mai mari decât diametrul din tabel.
EFICIENȚA ENERGETICĂ
| Identificarea modelului | ZIAN644K | |
| Tipul de plită | Plită încorporată | |
| Numărul de zone de gătit | 4 | |
| Tehnologia de încălzire | Inducție | |
| Diametrul zonelor de gătit circulare (Ø) | Față stânga Spate stânga Față dreapta Spate dreapta | 21.0 cm 18.0 cm 14.5 cm 18.0 cm |
| Consumul de energie per zonă de gătit (EC electric cooking) | Față stânga Spate stânga Față dreapta Spate dreapta | 188.9 Wh / kg 176.9 Wh / kg 183.4 Wh / kg 178.8 Wh / kg |
| Consumul de energie al plitei (EC electric hob) | 182.0 Wh / kg |
Economisirea energiei
Puteți economisi energie în timpul gătitului de zi cu zi dacă urmați sfaturile de mai jos.
- Când încălziți apă, utilizați doar cantitatea de care aveți nevoie.
- Dacă este posibil, puneți întotdeauna capacele pe vasele de gătit.
- Înainte de a activa zona de gătit, puneți vasele de gătit pe ea.
- Puneți vasele de gătit mai mici pe zonele de gătit mai mici.
- Puneți vasele de gătit direct în centrul zonei de gătit.
- Utilizați căldura reziduală pentru a menține alimentele calde sau pentru a le topi.
INFORMAȚII PRIVIND SIGURANȚA
Înainte de instalarea și utilizarea aparatului, citiți cu atenție instrucțiunile furnizate. Producătorul nu este responsabil pentru nicio vătămare sau daune rezultate în urma instalării sau utilizării incorecte. Păstrați întotdeauna instrucțiunile într-un loc sigur și accesibil pentru consultare ulterioară.
Siguranța copiilor și a persoanelor vulnerabile
- Acest aparat poate fi utilizat de copii cu vârsta de peste 8 ani și de persoane cu capacități fizice, senzoriale sau mentale reduse sau cu lipsă de experiență și cunoștințe, dacă li s-a acordat supraveghere sau instrucțiuni privind utilizarea aparatului într-un mod sigur și înțeleg pericolele implicate. Copiii cu vârsta mai mică de 8 ani și persoanele cu dizabilități foarte extinse și complexe trebuie ținuți departe de aparat, cu excepția cazului în care sunt supravegheați continuu.
- Copiii trebuie supravegheați pentru a se asigura că nu se joacă cu aparatul.
- Păstrați toate materialele de ambalare departe de copii și aruncați-le în mod corespunzător.
Aparatul și părțile sale accesibile devin fierbinți în timpul utilizării. Țineți copiii și animalele de companie departe de aparat în timpul utilizării și în timpul răcirii.- Dacă aparatul are un dispozitiv de siguranță pentru copii, acesta trebuie activat.
- Copiii nu trebuie să efectueze curățarea și întreținerea de către utilizator a aparatului fără supraveghere.
Siguranță generală
- Acest aparat este destinat exclusiv scopurilor de gătit.
- Acest aparat este proiectat pentru uz casnic unifamilial într-un mediu interior.
- Acest aparat poate fi utilizat în birouri, camere de oaspeți de hotel, camere de oaspeți tip pensiune, case de oaspeți agricole și alte spații de cazare similare, unde o astfel de utilizare nu depășește nivelurile de utilizare domestică (medie).
Aparatul și părțile sale accesibile devin fierbinți în timpul utilizării. Trebuie avut grijă pentru a evita atingerea elementelor de încălzire.
Gătitul nesupravegheat pe o plită cu grăsime sau ulei poate fi periculos și poate duce la incendiu.- Nu utilizați niciodată apă pentru a stinge incendiul de gătit. Opriți aparatul și acoperiți flăcările cu, de exemplu, o pătură de incendiu sau un capac.
Aparatul nu trebuie alimentat printr-un dispozitiv de comutare extern, cum ar fi un temporizator, sau conectat la un circuit care este pornit și oprit în mod regulat de către o utilitate.
Procesul de gătit trebuie supravegheat. Un proces de gătit pe termen scurt trebuie supravegheat continuu.
Pericol de incendiu: Nu depozitați articole pe suprafețele de gătit.- Obiectele metalice, cum ar fi cuțitele, furculițele, lingurile și capacele nu trebuie așezate pe suprafața plitei, deoarece se pot înfierbânta.
- Nu utilizați aparatul înainte de a-l instala în structura încorporată.
- Nu utilizați un aparat de curățat cu abur pentru a curăța aparatul.
- După utilizare, opriți elementul plitei prin comanda sa și nu vă bazați pe detectorul de tigaie.
- Dacă suprafața din sticlă ceramică / suprafața din sticlă este crăpată, opriți aparatul și scoateți-l din priză. În cazul în care aparatul este conectat direct la rețea folosind o cutie de joncțiune, scoateți siguranța pentru a deconecta aparatul de la sursa de alimentare. În ambele cazuri, contactați centrul de service autorizat.
- Dacă cablul de alimentare este deteriorat, acesta trebuie înlocuit de producător, un service autorizat sau persoane calificate în mod similar, pentru a evita un pericol.
Utilizați numai protecții pentru plită proiectate de producătorul aparatului de gătit sau indicate de producătorul aparatului în instrucțiunile de utilizare ca fiind adecvate sau protecții pentru plită încorporate în aparat. Utilizarea protecțiilor necorespunzătoare poate provoca accidente.
INSTRUCȚIUNI DE SIGURANȚĂ
Instalare
Această electrocasnică trebuie să fie instalată doar de o persoană calificată.
Risc de rănire sau deteriorare a electrocasnicei.
- Îndepărtați tot ambalajul.
- Nu instalați sau utilizați o electrocasnică deteriorată.
- Urmați instrucțiunile de instalare furnizate împreună cu electrocasnica.
- Păstrați distanța minimă față de alte electrocasnice și unități.
- Fiți întotdeauna atenți când mutați electrocasnica, deoarece este grea. Utilizați întotdeauna mănuși de protecție și încălțăminte închisă.
- Sigilați suprafețele tăiate ale dulapului cu un etanșant pentru a preveni umflarea cauzată de umiditate.
- Protejați partea inferioară a electrocasnicei de abur și umiditate.
- Nu instalați electrocasnica lângă o ușă sau sub o fereastră. Acest lucru împiedică căderea vaselor fierbinți de pe electrocasnică atunci când ușa sau fereastra este deschisă.
- Fiecare electrocasnică are ventilatoare de răcire pe partea inferioară.
- Dacă electrocasnica este instalată deasupra unui sertar:
- Nu depozitați bucăți mici sau foi de hârtie care ar putea fi trase, deoarece pot deteriora ventilatoarele de răcire sau pot afecta sistemul de răcire.
- Păstrați o distanță de minimum 2 cm între partea inferioară a electrocasnicei și părțile depozitate în sertar.
- Îndepărtați orice panouri separatoare instalate în dulapul de sub electrocasnică.
Conexiune electrică
Risc de incendiu și electrocutare.
- Toate conexiunile electrice trebuie să fie efectuate de un electrician calificat.
- Electrocasnica trebuie să fie împământată.
- Înainte de a efectua orice operațiune, asigurați-vă că electrocasnica este deconectată de la sursa de alimentare.
- Asigurați-vă că parametrii de pe plăcuța de identificare sunt compatibili cu valorile electrice ale sursei de alimentare principale.
- Asigurați-vă că electrocasnica este instalată corect. Cablul sau ștecherul de alimentare principală slăbit și incorect (dacă este cazul) poate face ca terminalul să devină prea fierbinte.
- Utilizați cablul de alimentare principală corect.
- Nu lăsați cablul de alimentare principală să se încurce.
- Asigurați-vă că este instalată o protecție împotriva șocurilor.
- Utilizați clema de fixare a cablului.
- Asigurați-vă că cablul de alimentare principală sau ștecherul (dacă este cazul) nu atinge electrocasnica fierbinte sau vasele de gătit fierbinți, când conectați electrocasnica la o priză.
- Nu utilizați adaptoare multi-ștecher și cabluri prelungitoare.
- Asigurați-vă că nu provocați deteriorarea ștecherului de alimentare principală (dacă este cazul) sau a cablului de alimentare principală. Contactați Centrul nostru de service autorizat sau un electrician pentru a schimba un cablu de alimentare principală deteriorat.
- Protecția împotriva șocurilor a pieselor sub tensiune și izolate trebuie fixată astfel încât să nu poată fi îndepărtată fără unelte.
- Conectați ștecherul de alimentare principală la priza de alimentare principală numai la sfârșitul instalării. Asigurați-vă că există acces la ștecherul de alimentare principală după instalare.
- Dacă priza de alimentare principală este slăbită, nu conectați ștecherul de alimentare principală.
- Nu trageți de cablul de alimentare principală pentru a deconecta electrocasnica. Trageți întotdeauna de ștecherul de alimentare principală.
- Utilizați numai dispozitive de izolare corecte: întrerupătoare de protecție a liniei, siguranțe (siguranțe cu filet scoase din suport), declanșatoare de scurgeri la pământ și contactoare.
- Instalația electrică trebuie să aibă un dispozitiv de izolare care să vă permită să deconectați electrocasnica de la rețea la toți polii. Dispozitivul de izolare trebuie să aibă o lățime de deschidere a contactului de minimum 3 mm.
Utilizare
Risc de rănire, arsuri și electrocutare.
- Nu modificați specificațiile acestei electrocasnice.
- Îndepărtați tot ambalajul, etichetarea și folia de protecție (dacă este cazul) înainte de prima utilizare.
- Asigurați-vă că orificiile de ventilație nu sunt blocate.
- Nu lăsați electrocasnica nesupravegheată în timpul funcționării.
- Setați zona de gătit pe „oprit” după fiecare utilizare.
- Nu puneți tacâmuri sau capace de cratiță pe zonele de gătit. Acestea se pot înfierbânta.
- Nu utilizați electrocasnica cu mâinile umede sau când are contact cu apa.
- Nu utilizați electrocasnica ca suprafață de lucru sau ca suprafață de depozitare.
- Dacă suprafața electrocasnicei este crăpată, deconectați imediat electrocasnica de la sursa de alimentare. Acest lucru pentru a preveni un șoc electric.
- Utilizatorii cu un stimulator cardiac trebuie să păstreze o distanță de minimum 30 cm față de zonele de gătit cu inducție atunci când electrocasnica este în funcțiune.
- Când puneți alimente în ulei fierbinte, acesta poate stropi.
Risc de incendiu și explozie
- Grăsimile și uleiul, atunci când sunt încălzite, pot elibera vapori inflamabili. Țineți flăcările sau obiectele încălzite departe de grăsimi și uleiuri atunci când gătiți cu ele.
- Vaporii pe care îi eliberează uleiul foarte fierbinte pot provoca combustie spontană.
- Uleiul uzat, care poate conține resturi de alimente, poate provoca incendiu la o temperatură mai scăzută decât uleiul folosit pentru prima dată.
- Nu puneți produse inflamabile sau articole care sunt umede cu produse inflamabile în, lângă sau pe electrocasnică.
Risc de deteriorare a electrocasnicei.
- Nu țineți vase fierbinți pe panoul de comandă.
- Nu puneți un capac fierbinte de tigaie pe suprafața de sticlă a plitei.
- Nu lăsați vasele să fiarbă până se usucă.
- Aveți grijă să nu lăsați obiecte sau vase să cadă pe electrocasnică. Suprafața se poate deteriora.
- Nu activați zonele de gătit cu vase goale sau fără vase.
- Nu puneți folie de aluminiu pe electrocasnică.
- Vasele de gătit din fontă sau cu o parte inferioară deteriorată pot provoca zgârieturi pe sticlă/vitroceramica. Ridicați întotdeauna aceste obiecte când trebuie să le mutați pe suprafața de gătit.
Îngrijire și curățare
- Curățați electrocasnica în mod regulat pentru a preveni deteriorarea materialului suprafeței.
- Opriți electrocasnica și lăsați-o să se răcească înainte de curățare.
- Nu utilizați spray de apă și abur pentru a curăța electrocasnica.
- Curățați electrocasnica cu o cârpă moale umedă. Utilizați numai detergenți neutri. Nu utilizați produse abrazive, tampoane de curățare abrazive, solvenți sau obiecte metalice.
Service
- Pentru a repara electrocasnica, contactați Centrul de service autorizat. Utilizați numai piese de schimb originale.
- În ceea ce privește lampa (lămpile) din interiorul acestui produs și lămpile de schimb vândute separat: Aceste lămpi sunt destinate să reziste la condiții fizice extreme în electrocasnice, cum ar fi temperatura, vibrațiile, umiditatea sau sunt destinate să semnaleze informații despre starea operațională a electrocasnicei. Nu sunt destinate utilizării în alte aplicații și nu sunt potrivite pentru iluminarea încăperilor din locuințe.
VIZITAȚI SITE-UL NOSTRU PENTRU A:
Obțineți sfaturi de utilizare, broșuri, soluționare a problemelor, informații despre service și reparații: www.zanussi.com/support

Referințe
Descărcați manualul
Aici puteți descărca versiunea completă pdf a manualului, aceasta poate conține instrucțiuni suplimentare de siguranță, informații despre garanție, reguli FCC etc.
Descărcați Zanussi ZIAN644K - Manual de utilizare pentru plită cu inducție














+ cifră


, 1 - 2
pentru a activa plita.
clipește pentru zonele de gătit pe care puteți utiliza funcția în prezent.
timp de 3 secunde. Afișajul se aprinde și se stinge.
timp de 3 secunde.
de câteva ori până când
se aprinde.
a Timerului pentru a selecta un mod automat.
- 1 
.
se aprinde.
se aprinde.
apar alternativ.
apar alternativ.
apar alternativ.
clipesc și BoilAssist nu pornește.
și un număr se aprind.