Texecom Premier 360 DT - Príručka detektora narušenia

Inštalačný list
Popis
Premier 360 DT je stropný PIR detektor, ktorý je navrhnutý na detekciu pohybu narušiteľa a na aktiváciu alarmu na ovládacom paneli.
Produkt musí byť pripojený k uvedenému systému proti vlámaniu kompatibilnému s riadiacou jednotkou alebo napájacou jednotkou, ktorá poskytuje napájacie napätie medzi 9 a 15 V DC, ako aj minimálne 4 hodiny pohotovostného napájania.
Premier 360 DT nie je vhodný na vonkajšie použitie.
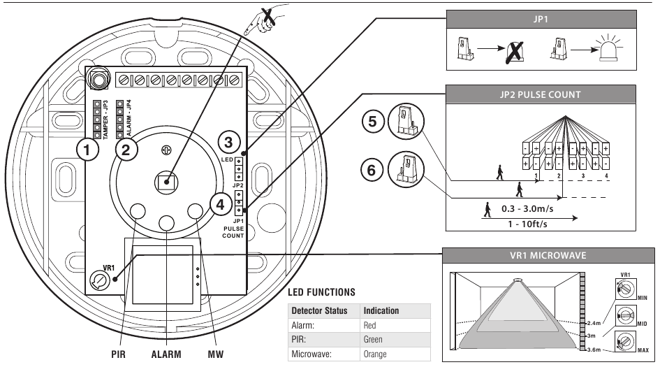
Obrázok 1

Obrázok 2

Obrázok 3

Obrázok 4

Obrázok 5
Obrázok 6

Obrázok 7

| Legendy k obrázkom | |||
| Položka | Popis | Položka | Popis |
| Obr. 2 | Obr. 5 | ||
| | Vstup kábla | | Relé sabotáže |
| | Skrutka | | Alarmové relé |
| | Napájací konektor pre 0 V a 12 V | ||
| | Prvý na alarm/Západkový vstup | ||
| | Vzdialená LED | ||
| Obr. 3 | Obr. 6 | ||
| | Jumper sabotáže | | Voliteľná konfigurácia EOL |
| | Alarmový jumper | | Dvojitý pól (prepojky sa nepoužívajú) |
| | LED jumper | | Duálny End-of-Line (DEOL) |
| | Jumper počítania impulzov | ||
| | Počet impulzov 1 | ||
| | Počet impulzov 2 | ||
| Podpora panelu | Texecom | Cooper Menvier | Honeywell | DSC |
| Alarm EOL | 4K7 | 4K7 | 1K | 5K6 |
| Tamper EOL | 2K2 | 2K2 | 1K | 5K6 |
Pokyny na inštaláciu
Technológia použitá v týchto detektoroch odoláva rizikám falošných poplachov. Vyhnite sa však potenciálnym príčinám nestability, ako sú:
- Priame slnečné svetlo na detektor.
- Zdroje tepla v zornom poli detektora.
- Silný prievan na detektor.
- Veľké zvieratá v zornom poli detektora.
- Zakrytie zorného poľa detektora veľkými predmetmi, ako je nábytok.
Na inštaláciu detektora
- Uvoľnite skrutku na boku detektora; skrutka zostane v produkte (pozri obrázok 1, položka 1).
- Vyberte kryt detektora zo základne a z výstupkov na opačnom konci od skrutky (pozri obrázok 1, položka 2).
- Pripevnite základňu na strop vo výške 2,4 m až 3,6 m (8 až 12 stôp) od podlahy. Na plochú montáž použite minimálne 2 skrutky (DIN 7998) v ktorejkoľvek z dostupných polôh (pozri obrázok 2).
- Zapojte detektor (pozri obrázky 3, 5 a 6).
- Vyberte požadované nastavenia prepojky (pozri obrázok 3). Ďalšie informácie nájdete v časti „Nastavenie detektora“ nižšie.
- Nasaďte kryt a utiahnite skrutku v základni.
Nastavenie detektora
Nastavenia prepojky: Umiestnenie prepojok v detektore nájdete na obrázku 3.
Alarmový jumper
Vypnuté (Off): Alarm v otvorenom obvode.
Zapnuté (On): Koncový odpor.
Jumper sabotáže
Vypnuté (Off): Sabotáž v otvorenom obvode.
Zapnuté (On): Koncový odpor.
Jumper invertovania vstupu
Napájanie (Supply): Vstup normálny.
0 V: Vstup invertovaný.
Jumper testu chôdzou
Zapnuté (On): Test chôdzou povolený.
Vypnuté (Off): Test chôdzou pod kontrolou vstupu.
Jumper počítania impulzov
PC1: Počet impulzov 1, vysoká citlivosť podľa požiadaviek EN 50131-2-2.
PC2: Počet impulzov 2, normálna citlivosť. Vyžaduje sa pre inštalácie CUL.
LED indikácia
| Stav | Červená LED | Alarmové relé | Na resetovanie |
| Spustenie | Normálne blikanie (1 Hz) | Zatvorené | Automaticky po 60 s |
| PIR alarm narušiteľa | Nepretržite svieti | Otvorené (Alarm) | Automaticky po 25 s |
Test chôdzou
Skontrolujte činnosť detektora zapnutím detektora a uistite sa, že je do detektora dodávané napätie medzi 9 VDC a 16 VDC.
Nasaďte predný kryt tak, že ho zaháknete hore a potom ho zacvaknete dole. Pred testom chôdzou nechajte detektor tri minúty zahriať a stabilizovať sa. Keď je povolená LED dióda testu chôdzou, vykonajte test chôdzou v oblasti. Detekcia PIR je indikovaná zelenou LED, MW oranžovou LED a úplný alarm červenou LED. Počas testu chôdzou by sa mal nastaviť rozsah MW (pozri obrázok 3).
- Vždy poučte používateľa, aby neprekážal zornému poľu
- Veľké predmety v blízkosti detektora znížia pokrytie
Existuje niekoľko spôsobov, ako je možné deaktivovať LED diódu testu chôdzou, aby sa zabránilo neoprávneným osobám vystopovať vzor pokrytia.
Západkový vstup / Prvý na alarm
- Terminál FTA môže vykonávať niekoľko rôznych funkcií v závislosti od spôsobu pripojenia:
- Západka pripojená k Set Positive (SW+, Set+): LED diódy budú deaktivované, keď je systém nastavený. Akékoľvek detektory aktivované počas nastavenia systému to indikujú trvalým rozsvietením alarmovej LED diódy (po zrušení nastavenia systému).
Detektory je možné resetovať prepnutím západkovej linky do vysokého stavu a potom opäť do nízkeho stavu.
- Západka pripojená k Alarm Positive (AL+, A+ve): Prvý detektor aktivovaný počas nastavenia systému to indikuje pomaly blikajúcou alarmovou LED diódou (po zrušení nastavenia systému). Detektory aktivované následne to indikujú trvalým rozsvietením alarmovej LED diódy. Detektory je možné resetovať prepnutím západkovej linky do vysokého stavu a potom opäť do nízkeho stavu.
Špecifikácie
| Detektor | PIR | ||||||
| Spracovanie signálu | DSP | ||||||
| Rozsah | Priemer pokrytia 9,3 m pri montážnej výške 3,6 m | ||||||
| Optika | Fresnelova šošovka | ||||||
| Napájanie | 9 až 15 VDC (nominálne 15 VDC pri 10,6 mA) Príkon: 0,16 W | ||||||
| Špičkové zvlnenie | 2 V (pri 12 VDC) | ||||||
| Napájacia jednotka | Menovitý 94HB | ||||||
| Čas spustenia | 60 s | ||||||
| Maximálny prúd | |||||||
| Normálny | 8,7 mA | ||||||
| Alarm | 7,5 mA | ||||||
| Maximálny | 28 mA | ||||||
| Montážna výška | 2,4 až 3,6 m | ||||||
| Rozsah cieľovej rýchlosti | 30 cm/s až 3 m/s (1 ft./s až 10 ft./s) | ||||||
| Alarmové relé | <24 VDC, 50 mA, NC, odporová záťaž 34 Ω max. | ||||||
| Relé sabotáže | <24 VDC, 50 mA, NC | ||||||
| Čas alarmu | >2 s | ||||||
| Rozmery (Š × V × H) | 116 x 33 × 116 mm | ||||||
| Hmotnosť | 125 g | ||||||
| Prevádzkové prostredie | |||||||
| Teplota | −35 až +55°C (-31 až 130°F) | ||||||
| Relatívna vlhkosť | 0 až 95 % nekondenzujúca | ||||||
| Frekvencia | 24 GHz | ||||||
| Údržba | Ročný test inštalatérom | ||||||
Regulačné informácie
Dodávateľ:Texecom Ltd, St. Crispin Way, Haslingden, Lancashire, BB4 4PW, UK. Stupeň zabezpečenia: EN Grade 2
Environmentálna trieda: Class II
Štandardy: EN 50131-2-2
Európske smernice
2004/108/EC (smernica CE): Texecom týmto vyhlasuje, že toto zariadenie je v súlade so základnými požiadavkami a ďalšími príslušnými ustanoveniami smernice 2004/108/EC.

Smernica R&TTE: 1999/5/EC
2002/95/EC (smernica RoHS): Texecom týmto vyhlasuje, že toto zariadenie neobsahuje olovo, ortuť, kadmium, šesťmocný chróm, polybrómované bifenyly (PBB) alebo polybrómované difenylétery (PBDE) vo viac ako percentuálnom podiele špecifikovanom v smernici EÚ 2002/95/EC, s výnimkou výnimiek uvedených v prílohe smernice EÚ 2002/95/EC.

2002/96/EC (smernica WEEE): Produkty označené týmto symbolom sa nesmú likvidovať ako netriedený komunálny odpad v Európskej únii. Na správnu recykláciu vráťte tento produkt svojmu miestnemu dodávateľovi pri zakúpení ekvivalentného nového zariadenia alebo ho zlikvidujte na určených zberných miestach. Viac informácií nájdete na: www. recyclethis.info.
Údržba: Ročne testovať inštalatérom
Záruka: 5-ročná záruka na výmenu
Premier 360 DT nie je kompletný poplašný systém, ale iba jeho súčasť. Preto spoločnosť Texecom nepreberá žiadnu zodpovednosť za akékoľvek škody, ktoré sú údajne výsledkom nesprávneho fungovania detektora Premier 360 DT PIR. Spoločnosť Texecom si vyhradzuje právo zmeniť špecifikáciu bez predchádzajúceho upozornenia.
Detektory Premier Elite sú chránené registrovanými dizajny Spojeného kráľovstva a medzinárodnými registrovanými dizajny. Premier Elite je ochranná známka spoločnosti Texecom Ltd. © 2011 Texecom Ltd.
Kontaktné informácie: www.texe.com


Referencie
Stiahnuť návod
Tu si môžete stiahnuť úplnú verziu návodu vo formáte pdf, môže obsahovať ďalšie bezpečnostné pokyny, informácie o záruke, pravidlá FCC atď.
Stiahnuť Texecom Premier 360 DT - Príručka detektora narušenia