Zanussi ZITN643K - Induksion Plita Qo'llanmasi
- 1 O'RNATISH
- 2 MAHSULOT TA'RIFI
- 3 KUNDALIK FOYDALANISH
- 4 MASLAHATLAR VA TAVSIYALAR
- 5 PARVARISH VA TOZALASH
- 6 MUAMMOLARNI BARTARAF ETISH
- 7 TEXNIK MA'LUMOTLAR
- 8 ENERGIYA SAMARADORLIGI
- 9 XAVFSIZLIK MA'LUMOTI
- 10 XAVFSIZLIK QOIDALARI
- 11 Manbalar
- 12 Qo'llanmani yuklab olish
- 13 Boshqa tillarda

O'RNATISH
Xavfsizlik bo'limlariga murojaat qiling.
O'rnatishdan oldin
Plitani o'rnatishdan oldin, reyting plastinkasidan seriya raqamini yozib oling. Reyting plastinkasi plitaning pastki qismida joylashgan.
O'rnatilgan qurilmalar
O'rnatilgan plitalardan faqat plitani standartlarga mos keladigan to'g'ri o'rnatilgan qurilmalar va ishchi yuzalarga yig'gandan keyin foydalaning.
Ulanish kabeli
- Bir fazali yoki ikki fazali ulanish uchun quyidagi turdagi kabeldan foydalaning: 90°C yoki undan yuqori haroratga bardosh bera oladigan H03V2V2-F yoki H05BB-F.
- Shikastlangan elektr kabelini almashtirish uchun quyidagi kabeldan foydalaning: 90°C yoki undan yuqori haroratga bardosh bera oladigan H03V2V2-F yoki H05BB-F. Vakolatli servis markaziga murojaat qiling. Ulanish kabeli faqat malakali elektrchi tomonidan almashtirilishi mumkin.
Yig'ish
Agar siz plitani kaput ostiga o'rnatsangiz, iltimos, moslamalar orasidagi minimal masofa uchun kaputning o'rnatish ko'rsatmalariga qarang.

Agar moslama tortma ustiga o'rnatilgan bo'lsa, plitaning shamollatilishi pishirish jarayonida tortmada saqlangan narsalarni isitishi mumkin.

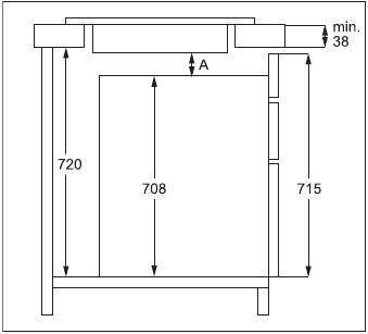
Standart pech bilan kombinatsiya

Ikki tomonlama pech bilan kombinatsiya
A = min. 6 mm, AEG, Electrolux va Zanussi kompaniyalarining ikki tomonlama pechlari uchun.
A = min. 12 mm, boshqa brendlarning ikki tomonlama pechlari uchun.
MAHSULOT TA'RIFI
Pishirish yuzasining joylashuvi

- Induksion pishirish zonasi
- Boshqaruv paneli
Boshqaruv panelining joylashuvi

Moslamani ishlatish uchun sensor maydonlaridan foydalaning. Displeylar, indikatorlar va tovushlar qaysi funksiyalar ishlayotganini bildiradi.
| Sensor maydoni | Funksiya | Izoh | |
![]() | ![]() | YOQISH / O'CHIRISH | Plitani faollashtirish va o'chirish uchun. |
![]() | ![]() | Hob²Hood | Funksiyaning qo'lda rejimini faollashtirish va o'chirish uchun. |
![]() | ![]() | Qulflash / Bolalar xavfsizligi moslamasi | Boshqaruv panelini qulflash / qulfdan chiqarish uchun. |
![]() | - | Issiqlik sozlamalari displeyi | Issiqlik sozlamalarini ko'rsatish uchun. |
![]() | - | Pishirish zonalarining taymer indikatorlari | Qaysi zona uchun vaqtni belgilaganingizni ko'rsatish uchun. |
![]() | - | Taymer displeyi | Vaqtni daqiqalarda ko'rsatish uchun. |
![]() | ![]() | - | Pishirish zonasini tanlash uchun. |
![]() | ![]() | - | Vaqtni oshirish yoki kamaytirish uchun. |
![]() | ![]() | - | Issiqlik sozlamalarini o'rnatish uchun. |
![]() | ![]() | PowerBoost | Funksiyani faollashtirish uchun. |
Issiqlik sozlamalari displeylari
| Displey | Tavsif |
![]() | Pishirish zonasi o'chirilgan. |
![]() | Pishirish zonasi ishlaydi. |
![]() | Avtomatik isitish ishlaydi. |
![]() | PowerBoost ishlaydi. |
+ raqam | Nosozlik mavjud. |
![]() | OptiHeat Control (3 bosqichli qoldiq issiqlik indikatori): pishirishni davom ettirish / iliq saqlash / qoldiq issiqlik. |
![]() | Qulflash / Bolalar xavfsizligi moslamasi ishlaydi. |
![]() | Noto'g'ri yoki juda kichik idish yoki pishirish zonasida idish yo'q. |
![]() | Avtomatik o'chirish ishlaydi. |
OptiHeat Control (3 bosqichli qoldiq issiqlik indikatori)
Indikator yonib turganda, qoldiq issiqlikdan kuyish xavfi mavjud.
Induksion pishirish zonalari pishirish jarayoni uchun zarur bo'lgan issiqlikni to'g'ridan-to'g'ri idishning pastki qismida hosil qiladi. Shisha keramika idishning issiqligi bilan isitiladi.
Indikatorlar
pishirish zonasi issiq bo'lganda paydo bo'ladi. Ular siz hozirda foydalanayotgan pishirish zonalari uchun qoldiq issiqlik darajasini ko'rsatadi.
Indikator quyidagilarda ham paydo bo'lishi mumkin:
- qo'shni pishirish zonalari uchun, hatto ulardan foydalanmasangiz ham,
- issiq idish sovuq pishirish zonasiga qo'yilganda,
- plita o'chirilgan bo'lsa ham, lekin pishirish zonasi hali ham issiq bo'lsa.
Pishirish zonasi sovigandan so'ng indikator yo'qoladi.
KUNDALIK FOYDALANISH
Safety boblariga murojaat qiling.
Yoqish va o'chirish
Plitani yoqish yoki o'chirish uchun
tugmasini 1 soniya bosib turing.
Avtomatik o'chirish
Quyidagi hollarda funksiya plitani avtomatik ravishda o'chiradi:
- barcha pishirish zonalari o'chirilgan bo'lsa,
- plitani yoqqaningizdan so'ng issiqlik darajasini o'rnatmasangiz,
- biror narsa to'kib yuborsangiz yoki boshqaruv paneliga 10 soniyadan ortiq vaqt davomida biror narsa qo'ysangiz (qozon, mato va h.k.). Akustik signal eshitiladi va plita o'chadi. Ob'ektni olib tashlang yoki boshqaruv panelini tozalang.
- plita juda qizib ketsa (masalan, qozon quruq qolganda). Plitani qayta ishlatishdan oldin pishirish zonasini sovushiga qo'ying.
- noto'g'ri idishlardan foydalansangiz.
belgisi yonadi va pishirish zonasi 2 daqiqadan so'ng avtomatik ravishda o'chadi. - pishirish zonasini o'chirmasangiz yoki issiqlik darajasini o'zgartirmasangiz. Bir muncha vaqt o'tgach
yonadi va plita o'chadi.
Issiqlik darajasi va plita o'chiriladigan vaqt o'rtasidagi bog'liqlik:
| Issiqlik darajasi | Plita shundan so'ng o'chadi |
, 1 - 2 | 6 soat |
| 3 - 4 | 5 soat |
| 5 | 4 soat |
| 6 - 9 | 1.5 soat |
Issiqlik darajasi
Issiqlik darajasini oshirish uchun
tugmasini bosing. Issiqlik darajasini kamaytirish uchun
tugmasini bosing. Pishirish zonasini o'chirish uchun bir vaqtning o'zida
va
tugmalarini bosing.
Pishirish zonalaridan foydalanish
Idishni pishirayotgan yuzadagi xoch / kvadrat ustiga qo'ying. Xoch / kvadratni to'liq qoplang. Induksion pishirish zonalari avtomatik ravishda idishning pastki qismining o'lchamiga moslashadi. Katta idish bilan bir vaqtning o'zida ikkita pishirish zonasida pishirishingiz mumkin.
Avtomatik isitish
Agar siz ushbu funksiyani yoqsangiz, kerakli issiqlik darajasini qisqa vaqt ichida olishingiz mumkin. Funksiya bir muncha vaqt eng yuqori issiqlik darajasini o'rnatadi va keyin to'g'ri issiqlik darajasiga tushadi.
Funksiyani yoqish uchun pishirish zonasi sovuq bo'lishi kerak.
Pishirish zonasi uchun funksiyani yoqish uchun:
tugmasini bosing (
yonadi). Darhol
tugmasini bosing (
yonadi). Darhol to'g'ri issiqlik darajasi paydo bo'lguncha
tugmasini bosing.
3 soniyadan so'ng
yonadi.
Funksiyani o'chirish uchun:
tugmasini bosing.
PowerBoost
Ushbu funksiya induksion pishirish zonalari uchun ko'proq quvvatni ta'minlaydi. Funksiyani induksion pishirish zonasi uchun faqat cheklangan vaqt davomida yoqish mumkin. Ushbu vaqtdan so'ng induksion pishirish zonasi avtomatik ravishda eng yuqori issiqlik darajasiga qaytadi.
"Texnik ma'lumotlar" bobiga murojaat qiling.
Pishirish zonasi uchun funksiyani yoqish uchun:
tugmasini bosing.
yonadi.
Funksiyani o'chirish uchun:
yoki
tugmasini bosing.
Taymer
- Qaytish taymeri (Count Down Timer)
Ushbu funksiyadan bitta pishirish seansining uzunligini o'rnatish uchun foydalanishingiz mumkin.
Avval pishirish zonasi uchun issiqlik darajasini o'rnating, so'ngra funksiyani o'rnating.
Pishirish zonasini o'rnatish uchun: pishirish zonasining indikatori paydo bo'lguncha
tugmasini qayta-qayta bosing.
Funksiyani yoqish yoki vaqtni o'zgartirish uchun: vaqtni o'rnatish uchun taymerning
yoki
tugmasini bosing (00 - 99 daqiqa). Pishirish zonasining indikatori miltillay boshlaganda, vaqt sanaladi.
Qolgan vaqtni ko'rish uchun: pishirish zonasini o'rnatish uchun
tugmasini bosing. Pishirish zonasining indikatori miltillay boshlaydi. Displeyda qolgan vaqt ko'rsatiladi.
Funksiyani o'chirish uchun: pishirish zonasini o'rnatish uchun
tugmasini bosing va keyin
tugmasini bosing. Qolgan vaqt 00 gacha sanaladi. Pishirish zonasining indikatori yo'qoladi.
Vaqt tugagach, akustik signal eshitiladi va 00 miltillaydi. Pishirish zonasi o'chadi.
Ovozni to'xtatish uchun:
tugmasini bosing. - Daqiqa eslatmasi (Minute Minder)
Ushbu funksiyadan plita yoqilganda va pishirish zonalari ishlamayotganda foydalanishingiz mumkin. Issiqlik darajasi displeyida
ko'rsatiladi.
Funksiyani yoqish uchun:
tugmasini bosing va keyin vaqtni o'rnatish uchun taymerning
yoki
tugmasini bosing. Vaqt tugagach, akustik signal eshitiladi va 00 miltillaydi.
Ovozni to'xtatish uchun:
tugmasini bosing.
Funksiyani o'chirish uchun:
tugmasini bosing va keyin
tugmasini bosing. Qolgan vaqt 00 gacha sanaladi.
Funksiya pishirish zonalarining ishlashiga ta'sir qilmaydi.
Bloklash
Pishirish zonalari ishlayotgan paytda boshqaruv panelini bloklashingiz mumkin. Bu issiqlik darajasining tasodifiy o'zgarishini oldini oladi.
Avval issiqlik darajasini o'rnating.
Funksiyani yoqish uchun:
tugmasini bosing.
4 soniya davomida yonadi. Taymer (Timer) yonib turadi.
Funksiyani o'chirish uchun:
tugmasini bosing. Oldingi issiqlik darajasi yonadi.
Plitani o'chirganingizda, ushbu funksiyani ham o'chirasiz.
Bolalar xavfsizligi moslamasi
Ushbu funksiya plitaning tasodifiy ishlashini oldini oladi.
Funksiyani yoqish uchun:
bilan plitani yoqing. Hech qanday issiqlik darajasini o'rnatmang.
tugmasini 4 soniya bosib turing.
yonadi.
bilan plitani o'chiring.
Funksiyani o'chirish uchun:
bilan plitani yoqing. Hech qanday issiqlik darajasini o'rnatmang.
tugmasini 4 soniya bosib turing.
yonadi.
bilan plitani o'chiring.
Funksiyani faqat bitta pishirish vaqti uchun bekor qilish uchun:
bilan plitani yoqing.
yonadi.
tugmasini 4 soniya bosib turing. 10 soniya ichida issiqlik darajasini o'rnating. Plitani ishlatishingiz mumkin.
bilan plitani o'chirganingizda, funksiya yana ishlaydi.
Quvvatni boshqarish
Agar bir nechta zonalar faol bo'lsa va iste'mol qilinadigan quvvat quvvat manbai cheklovidan oshsa, ushbu funksiya mavjud quvvatni barcha pishirish zonalari o'rtasida taqsimlaydi. Plita uy o'rnatmalarining sug'urtalarini himoya qilish uchun issiqlik darajasini nazorat qiladi.
- Pishirish zonalari plitadagi fazalarning joylashuvi va soniga qarab guruhlanadi. Har bir faza maksimal elektr yukiga ega (3700 Vt). Agar plita bir faza ichida maksimal mavjud quvvat chegarasiga yetsa, pishirish zonalarining quvvati avtomatik ravishda kamayadi.
- Oxirgi tanlangan pishirish zonasining issiqlik darajasi har doim ustuvor hisoblanadi. Qolgan quvvat oldin faollashtirilgan pishirish zonalari o'rtasida tanlash tartibiga teskari tartibda taqsimlanadi.
- Kamaytirilgan zonalarning issiqlik darajasi displeyi dastlab tanlangan issiqlik darajasi va kamaytirilgan issiqlik darajasi o'rtasida o'zgaradi.
- Displey miltillashni to'xtatguncha kuting yoki oxirgi tanlangan pishirish zonasining issiqlik darajasini kamaytiring. Pishirish zonalari kamaytirilgan issiqlik darajasi bilan ishlashni davom ettiradi. Agar kerak bo'lsa, pishirish zonalarining issiqlik darajasini qo'lda o'zgartiring.
Pishirish zonalari o'rtasida quvvatni taqsimlash mumkin bo'lgan kombinatsiyalar uchun rasmga qarang.

Hob2Hood
Bu plitani maxsus tutqichga ulash imkonini beruvchi ilg'or avtomatik funksiya. Plita ham, tutqich ham infraqizil signal kommunikatoriga ega. Vantilatorning tezligi plitadagi eng issiq idishning rejim sozlamalari va haroratiga qarab avtomatik ravishda belgilanadi. Vantilatorni plitadan qo'lda ham boshqarishingiz mumkin.
Aksariyat tutqichlar uchun masofaviy tizim dastlab o'chirilgan. Funksiyadan foydalanishdan oldin uni yoqing. Qo'shimcha ma'lumot olish uchun tutqich foydalanuvchi qo'llanmasiga murojaat qiling.
Funksiyani avtomatik ravishda ishlatish
Funksiyani avtomatik ravishda ishlatish uchun avtomatik rejimni H1 – H6 ga o'rnating. Plita dastlab H5 ga o'rnatilgan. Plitani ishlatganingizda tutqich javob beradi. Plita idishning haroratini avtomatik ravishda aniqlaydi va vantilatorning tezligini sozlaydi.
Avtomatik rejimlar
| Avtomatik yorug'lik | Qaynatish1) | Qovurish2) | |
| H0 rejimi | O'chirilgan | O'chirilgan | O'chirilgan |
| H1 rejimi | Yoqilgan | O'chirilgan | O'chirilgan |
| H2 rejimi 3) | Yoqilgan | Vantilator tezligi 1 | Vantilator tezligi 1 |
| H3 rejimi | Yoqilgan | O'chirilgan | Vantilator tezligi 1 |
| H4 rejimi | Yoqilgan | Vantilator tezligi 1 | Vantilator tezligi 1 |
| H5 rejimi | Yoqilgan | Vantilator tezligi 1 | Vantilator tezligi 2 |
| H6 rejimi | Yoqilgan | Vantilator tezligi 2 | Vantilator tezligi 3 |
1) Plita qaynatish jarayonini aniqlaydi va avtomatik rejimga muvofiq vantilator tezligini faollashtiradi.
2) Plita qovurish jarayonini aniqlaydi va avtomatik rejimga muvofiq vantilator tezligini faollashtiradi.
3) Ushbu rejim vantilator va yorug'likni faollashtiradi va haroratga bog'liq emas.
Avtomatik rejimni o'zgartirish
- Qurilmani o'chiring.
tugmasini 3 soniya bosib turing. Displey yonadi va o'chadi.
tugmasini 3 soniya bosib turing.
tugmasini
paydo bo'lguncha bir necha marta bosing.- Avtomatik rejimni tanlash uchun taymerning
tugmasini bosing.
Tutqichni to'g'ridan-to'g'ri tutqich panelida ishlatish uchun funksiyaning avtomatik rejimini o'chiring.
Pishirishni tugatgandan so'ng va plitani o'chirgandan so'ng, tutqich vantilatori ma'lum vaqt davomida ishlashi mumkin. Ushbu vaqtdan so'ng tizim vantilatorni avtomatik ravishda o'chiradi va keyingi 30 soniya davomida vantilatorni tasodifiy ravishda faollashtirishdan saqlaydi.
Vantilator tezligini qo'lda ishlatish
Funksiyani qo'lda ham ishlatishingiz mumkin.
Buning uchun plita faol bo'lganda
tugmasini bosing. Bu funksiyaning avtomatik ishlashini o'chiradi va vantilator tezligini qo'lda o'zgartirishga imkon beradi.
tugmasini bosganingizda, vantilator tezligini bittaga oshirasiz. Agar siz intensiv darajaga yetsangiz va yana
tugmasini bossangiz, vantilator tezligini 0 ga o'rnatasiz, bu esa tutqich vantilatorini o'chiradi. Vantilatorni yana 1-vantilator tezligi bilan ishga tushirish uchun
tugmasini bosing.
Funksiyaning avtomatik ishlashini faollashtirish uchun plitani o'chiring va uni qayta yoqing.
Yorug'likni faollashtirish
Plitani yoqqaningizda yorug'likni avtomatik ravishda faollashtirish uchun plitani sozlashingiz mumkin. Buning uchun avtomatik rejimni H1 – H6 ga o'rnating.
Tutqichdagi yorug'lik plitani o'chirgandan 2 daqiqa o'tgach o'chadi.
MASLAHATLAR VA TAVSIYALAR
Xavfsizlik boblariga murojaat qiling.
Idish-tovoqlar
Induksion pishirish zonalarida kuchli elektromagnit maydon idish-tovoqdagi issiqlikni juda tez yaratadi.
Induksion pishirish zonalaridan mos idish-tovoqlar bilan foydalaning.
- Idish-tovoqning tagi imkon qadar qalin va tekis bo'lishi kerak.
- Tovalar tagining pechka yuzasiga qo'yishdan oldin toza va quruq ekanligiga ishonch hosil qiling.
- Chizishlarning oldini olish uchun qozonni keramika shishasi ustida surmang yoki ishqalamang.
Idish-tovoq materiali
- to'g'ri: quyma temir, po'lat, emallangan po'lat, zanglamaydigan po'lat, ko'p qatlamli taglik (ishlab chiqaruvchining to'g'ri belgilanishi bilan).
- noto'g'ri: alyuminiy, mis, guruch, shisha, keramika, chinni.
Agar idish-tovoq induksion pechka uchun mos bo'lsa:
- eng yuqori issiqlik sozlamasiga o'rnatilgan zonada suv juda tez qaynaydi.
- magnit idish-tovoqning pastki qismiga tortiladi.
Idish-tovoq o'lchamlari
- Induksion pishirish zonalari avtomatik ravishda idish-tovoqning pastki qismining o'lchamiga moslashadi.
- Pishirish zonasining samaradorligi idish-tovoqning diametriga bog'liq. Diametri minimaldan kichik bo'lgan idish-tovoq pishirish zonasi tomonidan ishlab chiqarilgan quvvatning faqat bir qismini oladi.
- Xavfsizlik nuqtai nazaridan ham, optimal pishirish natijalariga erishish uchun ham "Pishirish zonalarining spetsifikatsiyasi"da ko'rsatilganidan kattaroq idish-tovoqlardan foydalanmang. Pishirish vaqtida idish-tovoqlarni boshqaruv paneliga yaqin tutmang. Bu boshqaruv panelining ishlashiga ta'sir qilishi yoki pechka funksiyalarini tasodifan faollashtirishi mumkin.
"Texnik ma'lumotlar"ga murojaat qiling.
Ish paytida shovqinlar
Agar siz eshitsangiz:
- yorilish ovozi: idish-tovoq turli materiallardan (sendvich konstruktsiyasi) qilingan.
- hushtak ovozi: siz yuqori quvvat darajasiga ega pishirish zonasidan foydalanasiz va idish-tovoq turli materiallardan (sendvich konstruktsiyasi) qilingan.
- g'uvillash: siz yuqori quvvat darajasidan foydalanasiz.
- bosish: elektr o'chirish sodir bo'ladi.
- shovqin, vizzillash: fan ishlaydi.
Shovqinlar normal holat va har qanday nosozlikni bildirmaydi.
Pishirish dasturlarining misollari
Zonaning issiqlik sozlamasi va uning quvvat sarfi o'rtasidagi bog'liqlik chiziqli emas. Issiqlik sozlamasini oshirganda, u quvvat sarfining oshishiga mutanosib emas. Bu o'rta issiqlik sozlamasiga ega pishirish zonasi o'z quvvatining yarmidan kamrog'ini ishlatishini anglatadi.
Jadvaldagi ma'lumotlar faqat qo'llanma uchun.
| Issiqlik sozlamasi | Quyidagilar uchun foydalaning: | Vaqt (daq) | Maslahatlar |
- 1 | Pishirilgan ovqatni issiq saqlang. | zarur bo'lganda | Idish-tovoqqa qopqoq qo'ying. |
| 1 - 2 | Hollandaise sousi, eritish: sariyog', shokolad, jelatin. | 5 - 25 | Vaqti-vaqti bilan aralashtiring. |
| 1 - 2 | Qotiring: mayin omletlar, pishirilgan tuxumlar. | 10 - 40 | Qopqoq bilan pishiring. |
| 2 - 3 | Guruch va sutli taomlarni qaynatib oling, tayyor ovqatlarni isiting. | 25 - 50 | Guruchdan kamida ikki baravar ko'p suyuqlik qo'shing, sutli taomlarni jarayonning yarmida aralashtiring. |
| 3 - 4 | Sabzavotlar, baliq, go'shtni bug'lang. | 20 - 45 | Bir necha qoshiq suyuqlik qo'shing. |
| 4 - 5 | Kartoshkani bug'lang. | 20 - 60 | 750 g kartoshka uchun maksimal ¼ l suvdan foydalaning. |
| 4 - 5 | Ko'p miqdorda ovqat, dimlangan taomlar va sho'rvalarni pishiring. | 60 - 150 | 3 l gacha suyuqlik va ingredientlar. |
| 6 - 7 | Sekin qovuring: eskalop, dana kordon blyu, kotletlar, rissollar, kolbasalar, jigar, ru, tuxumlar, blinchiklar, ponchiklar. | zarur bo'lganda | Yarim yo'lda aylantiring. |
| 7 - 8 | Og'ir qovuring, xash jigarrang, bel go'shti, bifteklar. | 5 - 15 | Yarim yo'lda aylantiring. |
| 9 | Suvni qaynatib oling, makaron pishiring, go'shtni qovuring (gulyash, qozonda qovurilgan), chipslarni chuqur qovuring. | ||
![]() | Ko'p miqdorda suvni qaynatib oling. PowerBoost faollashtirilgan. | ||
Hob2Hood uchun maslahatlar va tavsiyalar
Pechkani quyidagi funksiya bilan ishlatsangiz:
- Kaput panelini to'g'ridan-to'g'ri quyosh nuridan himoya qiling.
- Kaput paneliga galogen chiroqni yoqmang.
- Pechkaning boshqaruv panelini yopmang.
- Pechka va kaput o'rtasidagi signalni uzmang (masalan, qo'l, idish-tovoq dastasi yoki baland qozon bilan). Rasmni ko'ring.
![Zanussi - ZITN643K - Pechka va kaput o'rtasida aniq signalni ta'minlash Pechka va kaput o'rtasida aniq signalni ta'minlash]()
Rasmdagi kaput faqat namuna uchun.
Boshqa masofadan boshqariladigan qurilmalar signalni bloklashi mumkin. Hob²Hood yoqilgan paytda pechkaga yaqin joyda bunday qurilmalardan foydalanmang.
Hob²Hood funksiyasiga ega pishirish kaputlari
Ushbu funksiya bilan ishlaydigan pishirish kaputlarining to'liq assortimentini topish uchun bizning iste'molchi veb-saytimizga murojaat qiling.
PARVARISH VA TOZALASH
Xavfsizlik boblariga murojaat qiling.
Umumiy ma'lumot
- Pechkani har foydalanishdan keyin tozalang.
- Har doim toza taglikli idish-tovoqlardan foydalaning.
- Yuzadagi chizishlar yoki qora dog'lar pechkaning ishlashiga ta'sir qilmaydi.
- Pechka yuzasi uchun mos bo'lgan maxsus tozalagichdan foydalaning.
- Shisha uchun maxsus qirg'ichdan foydalaning.
Qurilmani tozalash
Darhol olib tashlang: erigan plastmassa, plastik folga, shakar va shakarli ovqatlar, aks holda, kir pechkaga zarar etkazishi mumkin. Kuyishdan saqlaning. Shisha yuzasida o'tkir burchak ostida maxsus pechka qirg'ichidan foydalaning va pichoqni yuzada harakatlantiring.- Pechka etarlicha soviganida olib tashlang: ohak halqalari, suv halqalari, yog' dog'lari, yorqin metall rangsizlanishi. Pechkani nam mato va abraziv bo'lmagan detarjan bilan tozalang. Tozalashdan so'ng, pechkani yumshoq mato bilan quriting.
- Yorqin metall rangsizlanishni olib tashlang: sirka bilan suv eritmasidan foydalaning va shisha yuzasini mato bilan tozalang.
MUAMMOLARNI BARTARAF ETISH
Xavfsizlik bo'limlariga murojaat qiling.
Agar shunday bo'lsa, nima qilish kerak...
| Muammo | Mumkin bo'lgan sabab | Yechim |
| Siz pishirish panelini yoqa olmaysiz yoki undan foydalana olmaysiz. | Pishirish paneli elektr ta'minotiga ulanmagan yoki noto'g'ri ulangan. | Pishirish panelining elektr ta'minotiga to'g'ri ulanganligini tekshiring. |
| Sigortalar yonib ketgan. | Sigortaning nosozlik sababi ekanligiga ishonch hosil qiling. Agar sigortalar qayta-qayta yonib ketsa, malakali elektrchiga murojaat qiling. | |
| Siz 10 soniya davomida issiqlik sozlamasini o'rnatmadingiz. | Pishirish panelini qayta yoqing va 10 soniyadan kamroq vaqt ichida issiqlik sozlamasini o'rnating. | |
| Siz bir vaqtning o'zida 2 yoki undan ortiq sensor maydonlariga tegdingiz. | Faqat bitta sensor maydoniga teging. | |
| Boshqaruv panelida suv yoki yog' dog'lari bor. | Boshqaruv panelini tozalang. | |
| Acoustic signal (akustik signal) eshitiladi va pishirish paneli o'chadi. Pishirish paneli o'chirilganda Acoustic signal (akustik signal) eshitiladi. | Siz bir yoki bir nechta sensor maydonlariga biror narsa qo'ydingiz. | Ob'ektni sensor maydonlaridan olib tashlang. |
| Pishirish paneli o'chadi. | Siz sensor maydoniga biror narsa qo'ydingiz . | Ob'ektni sensor maydonidan olib tashlang. |
| Qoldiq issiqlik indikatori yonmaydi. | Zona qisqa vaqt davomida ishlagani uchun issiq emas yoki sensor shikastlangan. | Agar zona issiq bo'lishi uchun etarlicha uzoq vaqt ishlagan bo'lsa, vakolatli xizmat ko'rsatish markaziga murojaat qiling. |
| Hob²Hood ishlamaydi. | Siz boshqaruv panelini yopdingiz. | Ob'ektni boshqaruv panelidan olib tashlang. |
| Siz signalni to'sib qo'yadigan juda baland idishdan foydalanasiz. | Kichikroq idishdan foydalaning, pishirish zonasini o'zgartiring yoki qopqoqni qo'lda boshqaring. | |
| Automatic Heat Up (avtomatik isitish) ishlamaydi. | Zona issiq. | Zona etarlicha sovushiga ruxsat bering. |
| Eng yuqori issiqlik sozlamasi o'rnatilgan. | Eng yuqori issiqlik sozlamasi funktsiya bilan bir xil quvvatga ega. | |
| Issiqlik sozlamasi ikki daraja o'rtasida o'zgaradi. | Quvvatni boshqarish ishlaydi. | "Kundalik foydalanish" ga murojaat qiling. |
| Sensor maydonlari issiq bo'ladi. | Pishirish idishi juda katta yoki siz uni boshqaruv elementlariga juda yaqin qo'ydingiz. | Iloji bo'lsa, katta pishirish idishlarini orqa zonalarga qo'ying. |
yonadi. | Child Safety Device (bolalar xavfsizligi moslamasi) yoki Lock (qulf) ishlaydi. | "Kundalik foydalanish" ga murojaat qiling. |
yonadi. | Zonada pishirish idishi yo'q. | Zonaga pishirish idishini qo'ying. |
| Pishirish idishi xoch / kvadratni qoplamaydi. | Xoch / kvadratni to'liq qoplang. | |
| Pishirish idishi mos emas. | Mos pishirish idishidan foydalaning. "Maslahatlar va tavsiyalar" ga murojaat qiling. | |
| Pishirish idishi pastki qismining diametri zona uchun juda kichik. | To'g'ri o'lchamdagi pishirish idishidan foydalaning. "Texnik ma'lumotlar" ga murojaat qiling. | |
va raqam yonadi. | Pishirish panelida xatolik bor. | Pishirish panelini o'chiring va 30 soniyadan so'ng uni qayta yoqing. Agar yana yonsa, pishirish panelini elektr ta'minotidan uzing. 30 soniyadan so'ng pishirish panelini qayta ulang. Agar muammo davom etsa, vakolatli xizmat ko'rsatish markaziga murojaat qiling. |
| Siz doimiy signal tovushini eshitasiz. | Elektr ulanishi noto'g'ri. | Pishirish panelini elektr ta'minotidan uzing. Malakali elektrchidan o'rnatishni tekshirishni so'rang. |
Agar siz yechim topa olmasangiz
Agar siz muammoning yechimini o'zingiz topa olmasangiz, sotuvchingizga yoki vakolatli xizmat ko'rsatish markaziga murojaat qiling. Reyting plastinkasidan ma'lumotlarni bering. Shuningdek, shisha keramika uchun uch xonali harf kodini (shisha yuzasining burchagida joylashgan) va paydo bo'ladigan xato xabarini bering. Pishirish panelini to'g'ri ishlatganingizga ishonch hosil qiling. Aks holda, xizmat ko'rsatish texnik xodimi yoki sotuvchi tomonidan xizmat ko'rsatish bepul bo'lmaydi, hatto kafolat muddati davomida ham. Kafolat muddati va vakolatli xizmat ko'rsatish markazlari haqidagi ma'lumotlar kafolat kitobchasida keltirilgan.
TEXNIK MA'LUMOTLAR
Reyting plastinkasi
Model ZITN643K
Typ 61 B4A 00 AA
Induction 7.35 kW
PNC 949 492 381 01
220 - 240 V / 400 V 2N, 50 - 60 Hz
Made in: Romania
7.35 kW
Pishirish zonalari spetsifikatsiyasi
| Pishirish zonasi | Nominal quvvat (maksimal issiqlik sozlamasi) [W] | PowerBoost [W] | PowerBoost maksimal davomiyligi [min] | Pishirish idishi diametri [mm] |
| Chap old | 2300 | 3700 | 10 | 180 - 210 |
| Chap orqa | 1800 | - | - | 145 - 180 |
| O'ng old | 1400 | 2500 | 4 | 125 - 145 |
| O'ng orqa | 1800 | - | - | 145 - 180 |
Pishirish zonalarining quvvati jadvaldagi ma'lumotlardan biroz farq qilishi mumkin. U pishirish idishining materiali va o'lchamlari bilan o'zgaradi.
Optimal pishirish natijalariga erishish uchun jadvaldagi diametrdan katta bo'lmagan pishirish idishidan foydalaning.
ENERGIYA SAMARADORLIGI
Mahsulot haqida ma'lumot Yevropa Ittifoqi va Buyuk Britaniyaning Ekodizayn qoidalariga muvofiq
| Model identifikatori | ZITN643K | |
| Pishirish paneli turi | O'rnatilgan pishirish paneli | |
| Pishirish zonalari soni | 4 | |
| Isitish texnologiyasi | Induksion | |
| Dumaloq pishirish zonalari diametri (Ø) | Chap old | 21.0 cm |
| Chap orqa | 18.0 cm | |
| O'ng old | 14.5 cm | |
| O'ng orqa | 18.0 cm | |
| Pishirish zonasi uchun energiya sarfi (EC electric cooking) | Chap old | 188.9 Wh/kg |
| Chap orqa | 176.9 Wh/kg | |
| O'ng old | 183.4 Wh/kg | |
| O'ng orqa | 178.8 Wh/kg | |
| Pishirish panelining energiya sarfi (EC electric hob) | 182.0 Wh/kg | |
IEC / EN 60350-2, BS EN 60350-2 - Maishiy elektr pishirish asboblari - 2-qism: Pishirish panellari - Ishlashni o'lchash usullari.
Energiyani tejash
Quyidagi maslahatlarga amal qilsangiz, kundalik pishirish paytida energiyani tejashingiz mumkin.
- Suvni isitganda faqat kerakli miqdordan foydalaning.
- Iloji bo'lsa, har doim pishirish idishlarining qopqoqlarini yoping.
- Pishirish zonasini yoqishdan oldin pishirish idishini unga qo'ying.
- Kichikroq pishirish idishini kichikroq pishirish zonasiga qo'ying.
- Pishirish idishini to'g'ridan-to'g'ri pishirish zonasining markaziga qo'ying.
- Ovqatni issiq saqlash yoki eritish uchun qoldiq issiqlikdan foydalaning.
XAVFSIZLIK MA'LUMOTI
Jihozni o'rnatish va ishlatishdan oldin, taqdim etilgan ko'rsatmalarni diqqat bilan o'qing. Ishlab chiqaruvchi noto'g'ri o'rnatish yoki ishlatish natijasida kelib chiqqan har qanday jarohatlar yoki zarar uchun javobgar emas. Ko'rsatmalarni kelajakda foydalanish uchun har doim xavfsiz va qulay joyda saqlang.
Bolalar va zaif odamlarning xavfsizligi
- Ushbu jihozdan 8 yoshdan oshgan bolalar va jismoniy, sezgi yoki aqliy qobiliyatlari cheklangan yoki tajribasi va bilimi yo'q bo'lgan shaxslar, agar ularga jihozdan xavfsiz tarzda foydalanish bo'yicha nazorat yoki ko'rsatma berilgan bo'lsa va xavflarni tushunsa, foydalanishi mumkin. 8 yoshdan kichik bolalar va juda keng va murakkab nogironligi bo'lgan shaxslar doimiy nazorat qilinmasa, jihozdan uzoqda saqlanishi kerak.
- Bolalar jihoz bilan o'ynamasliklarini ta'minlash uchun nazorat qilinishi kerak.
- Barcha qadoqlash materiallarini bolalardan uzoqroq tuting va ularni tegishli tarzda utilizatsiya qiling.
Jihoz va uning qulay qismlari ishlatish paytida issiq bo'ladi. Ishlatish paytida va sovish paytida bolalar va uy hayvonlarini jihozdan uzoqda tuting.- Agar jihozda bolalar xavfsizligi moslamasi bo'lsa, uni faollashtirish kerak.
- Bolalar jihozni tozalash va foydalanuvchi tomonidan texnik xizmat ko'rsatishni nazoratsiz amalga oshirmasligi kerak.
Umumiy xavfsizlik
- Ushbu jihoz faqat pishirish maqsadlarida mo'ljallangan.
- Ushbu jihoz yopiq muhitda bitta uy xo'jaligida foydalanish uchun mo'ljallangan.
- Ushbu jihoz ofislar, mehmonxona xonalari, nonushta va yotoq xonalari, fermer xo'jaliklari va shunga o'xshash turar joylarda ishlatilishi mumkin, bunda bunday foydalanish (o'rtacha) uy sharoitida foydalanish darajasidan oshmaydi.
Jihoz va uning qulay qismlari ishlatish paytida issiq bo'ladi. Isitish elementlariga tegmaslik uchun ehtiyot bo'lish kerak.
Pishirish panelida yog' yoki moy bilan qarovsiz qoldirilgan pishirish xavfli bo'lishi mumkin va yong'inga olib kelishi mumkin.- Tutun haddan tashqari qizib ketishning belgisidir. Pishirish yong'inini o'chirish uchun hech qachon suvdan foydalanmang. Jihozni o'chiring va olovni, masalan, yong'inga qarshi adyol yoki qopqoq bilan yoping.
Jihoz tashqi kommutatsiya moslamasi, masalan, taymer orqali ta'minlanmasligi yoki kommunal xizmat tomonidan muntazam ravishda yoqiladigan va o'chiriladigan zanjirga ulanmasligi kerak.
Pishirish jarayonini nazorat qilish kerak. Qisqa muddatli pishirish jarayonini doimiy ravishda nazorat qilish kerak.
Pishirish yuzalarida narsalarni saqlamang.- Pichoqlar, vilkalar, qoshiqlar va qopqoqlar kabi metall buyumlar pishirish panelining yuzasiga qo'yilmasligi kerak, chunki ular issiq bo'lishi mumkin.
- Jihozni o'rnatilgan konstruktsiyaga o'rnatmasdan oldin ishlatmang.
- Jihozni tozalash uchun bug 'tozalagichdan foydalanmang.
- Foydalanishdan so'ng, pishirish panelining elementini boshqaruv elementi orqali o'chiring va qozonni aniqlash moslamasiga tayanmang.
- Agar shisha keramika yuzasi / shisha yuzasi yorilgan bo'lsa, jihozni o'chiring va uni elektr tarmog'idan uzing. Agar jihoz to'g'ridan-to'g'ri ulanish qutisi yordamida elektr tarmog'iga ulangan bo'lsa, jihozni elektr ta'minotidan uzish uchun sigortani olib tashlang. Ikkala holda ham vakolatli xizmat ko'rsatish markaziga murojaat qiling.
- Agar ta'minot shnuri shikastlangan bo'lsa, xavfni oldini olish uchun uni ishlab chiqaruvchi, vakolatli xizmat ko'rsatish markazi yoki shunga o'xshash malakali shaxslar almashtirishi kerak.
Faqat pishirish jihozining ishlab chiqaruvchisi tomonidan ishlab chiqilgan yoki jihozning ishlab chiqaruvchisi tomonidan foydalanish bo'yicha ko'rsatmalarda mos yoki jihozga o'rnatilgan pishirish paneli himoyasi sifatida ko'rsatilgan pishirish paneli himoyasidan foydalaning. Noto'g'ri himoyadan foydalanish baxtsiz hodisalarga olib kelishi mumkin.
XAVFSIZLIK QOIDALARI
Ushbu qurilmani faqat malakali shaxs o'rnatishi kerak.
Jarohat olish yoki qurilmaga zarar yetkazish xavfi.
O'rnatish
- Barcha qadoqlarni olib tashlang.
- Zararlangan qurilmani o'rnatmang yoki ishlatmang.
- Qurilma bilan birga kelgan o'rnatish ko'rsatmalariga amal qiling.
- Boshqa qurilmalar va bloklardan minimal masofani saqlang.
- Qurilma og'ir bo'lgani uchun uni ko'chirishda har doim ehtiyot bo'ling. Har doim xavfsizlik qo'lqoplaridan va yopiq oyoq kiyimlaridan foydalaning.
- Shish paydo bo'lishining oldini olish uchun shkafning kesilgan yuzalarini герметик bilan yoping.
- Qurilmaning pastki qismini bug 'va namlikdan saqlang.
- Qurilmani eshik yoniga yoki deraza ostiga o'rnatmang. Bu eshik yoki deraza ochilganda issiq pishirish idishlarining qurilmadan tushib ketishining oldini oladi.
- Har bir qurilmaning pastki qismida sovutish fanatlari mavjud.
- Agar qurilma tortma ustiga o'rnatilgan bo'lsa:
- Sovutish fanatlariga zarar yetkazishi yoki sovutish tizimiga zarar yetkazishi mumkin bo'lgan kichik qismlar yoki qog'oz varaqlarini saqlamang.
- Qurilmaning pastki qismi va tortmada saqlanadigan qismlar orasida kamida 2 sm masofa saqlang.
- Qurilma ostidagi shkafga o'rnatilgan har qanday ajratuvchi panellarni olib tashlang.
Elektr ulanishi
Yong'in va elektr toki urishi xavfi.
- Barcha elektr ulanishlari malakali elektrchi tomonidan amalga oshirilishi kerak.
- Qurilma yerga ulangan bo'lishi kerak.
- Har qanday operatsiyani bajarishdan oldin qurilmaning elektr ta'minotidan uzilganligiga ishonch hosil qiling.
- Nomi yozilgan plastinkadagi parametrlar elektr ta'minotining elektr ko'rsatkichlariga mos kelishiga ishonch hosil qiling.
- Qurilma to'g'ri o'rnatilganligiga ishonch hosil qiling. Bo'shashgan va noto'g'ri elektr kabeli yoki vilka (agar mavjud bo'lsa) terminalning juda issiq bo'lishiga olib kelishi mumkin.
- To'g'ri elektr kabelidan foydalaning.
- Elektr kabelining chigallashishiga yo'l qo'ymang.
- Tok urishidan himoya o'rnatilganligiga ishonch hosil qiling.
- Kabeldagi kuchlanishni kamaytirish uchun qisqichdan foydalaning.
- Qurilmani rozetkaga ulaganingizda, elektr kabeli yoki vilka (agar mavjud bo'lsa) issiq qurilmaga yoki issiq pishirish idishlariga tegmasligiga ishonch hosil qiling.
- Ko'p vilkali adapterlar va uzaytirgichlardan foydalanmang.
- Elektr vilkasiga (agar mavjud bo'lsa) yoki elektr kabeliga zarar yetkazmaslikka ishonch hosil qiling. Zararlangan elektr kabelini almashtirish uchun bizning vakolatli xizmat ko'rsatish markazimizga yoki elektrchiga murojaat qiling.
- Tok o'tkazuvchi va izolyatsiya qilingan qismlarning zarba himoyasi shunday mahkamlangan bo'lishi kerakki, uni asboblarsiz olib tashlab bo'lmaydi.
- Elektr vilkasini elektr rozetkasiga faqat o'rnatish oxirida ulang. O'rnatishdan so'ng elektr vilkasiga kirish imkoniyati mavjudligiga ishonch hosil qiling.
- Agar elektr rozetkasi bo'shashgan bo'lsa, elektr vilkasini ulamang.
- Qurilmani uzish uchun elektr kabelini tortmang. Har doim elektr vilkasini torting.
- Faqat to'g'ri izolyatsiya moslamalaridan foydalaning: liniyani himoya qiluvchi o'chirgichlar, sug'urta qutilari (ushlagichdan chiqarilgan vintli turdagi sug'urta qutilari), yerga oqish o'chirgichlari va kontaktorlar.
- Elektr o'rnatishida sizga qurilmani barcha qutblarda elektr tarmog'idan uzish imkonini beradigan izolyatsiya moslamasi bo'lishi kerak. Izolyatsiya moslamasi minimal 3 mm kontakt ochilish kengligiga ega bo'lishi kerak.
Foydalanish
Jarohat olish, kuyish va elektr toki urishi xavfi.
- Ushbu qurilmaning spetsifikatsiyasini o'zgartirmang.
- Birinchi marta ishlatishdan oldin barcha qadoqlarni, yorliqlarni va himoya plyonkasini (agar mavjud bo'lsa) olib tashlang.
- Ventilyatsiya teshiklari to'sib qo'yilmaganligiga ishonch hosil qiling.
- Qurilmaning ishlashi vaqtida uni qarovsiz qoldirmang.
- Har foydalanishdan so'ng pishirish zonasini "o'chirilgan" (off) holatga o'tkazing.
- Pichoq yoki qozon qopqog'ini pishirish zonalariga qo'ymang. Ular issiq bo'lishi mumkin.
- Qurilmani ho'l qo'llar bilan yoki suv bilan aloqa qilganda ishlatmang.
- Qurilmani ish yuzasi yoki saqlash yuzasi sifatida ishlatmang.
Agar qurilmaning yuzasi yorilgan bo'lsa, elektr toki urishining oldini olish uchun qurilmani darhol elektr ta'minotidan uzing.
- Kardiostimulyatori bo'lgan foydalanuvchilar qurilma ishlayotgan vaqtda induksion pishirish zonalaridan kamida 30 sm masofani saqlashlari kerak.
- Issiq yog'ga ovqat solganingizda, u chayqalishi mumkin.
- Ushbu qurilma ishlab chiqaruvchisi tomonidan boshqacha ko'rsatilmagan bo'lsa, pishirish yuzasi va pishirish idishlari orasiga alyumin folga yoki boshqa materiallarni qo'ymang.
- Ushbu qurilma uchun faqat ishlab chiqaruvchi tomonidan tavsiya etilgan aksessuarlardan foydalaning.
Yong'in va portlash xavfi.
- Qizdirilganda yog'lar va moylar yonuvchi bug'larni chiqarishi mumkin. Ulardan foydalanganda olovni yoki qizdirilgan narsalarni yog'lar va moylardan uzoqroq tuting.
- Juda issiq yog' chiqaradigan bug'lar o'z-o'zidan yonishga olib kelishi mumkin.
Oziq-ovqat qoldiqlarini o'z ichiga olishi mumkin bo'lgan ishlatilgan yog' birinchi marta ishlatilgan yog'ga qaraganda pastroq haroratda yong'inga olib kelishi mumkin.
- Yonuvchi mahsulotlarni yoki yonuvchi mahsulotlar bilan ho'llangan narsalarni qurilmaga, uning yoniga yoki ustiga qo'ymang.
Qurilmaga zarar yetkazish xavfi.
- Issiq pishirish idishlarini boshqaruv panelida saqlamang.
- Issiq qozon qopqog'ini pechning shisha yuzasiga qo'ymang.
- Pishirish idishlarining quruq qaynashiga yo'l qo'ymang.
- Narsalar yoki pishirish idishlarining qurilmaga tushib ketishiga yo'l qo'ymaslikka harakat qiling. Yuzasi shikastlanishi mumkin.
- Pishirish zonalarini bo'sh pishirish idishlari bilan yoki pishirish idishlarisiz faollashtirmang.
- Cho'yandan yasalgan yoki shikastlangan pastki qismga ega bo'lgan pishirish idishlari shisha / shisha keramika ustida tirnalishga olib kelishi mumkin. Pishirish yuzasida ularni ko'chirishingiz kerak bo'lganda, har doim bu narsalarni ko'taring.
Parvarish va tozalash
- Yuzaki materialning yomonlashuvining oldini olish uchun qurilmani muntazam tozalang.
- Tozalashdan oldin qurilmani o'chiring va sovushiga qo'ying.
- Qurilmani tozalash uchun suv purkagichidan va bug'dan foydalanmang.
- Qurilmani nam yumshoq mato bilan tozalang. Faqat neytral detarjanlardan foydalaning. Boshqacha ko'rsatilmagan bo'lsa, abraziv mahsulotlar, abraziv tozalash yostiqchalari, erituvchilar yoki metall buyumlardan foydalanmang.
Xizmat ko'rsatish
- Qurilmani ta'mirlash uchun vakolatli xizmat ko'rsatish markaziga murojaat qiling. Faqat original ehtiyot qismlardan foydalaning.
- Ushbu mahsulot ichidagi lampalar va alohida sotiladigan ehtiyot qismlar lampalariga kelsak: Ushbu lampalar maishiy texnikada harorat, tebranish, namlik kabi ekstremal jismoniy sharoitlarga bardosh berishga mo'ljallangan yoki qurilmaning ishlash holati haqida ma'lumot berishga mo'ljallangan. Ular boshqa ilovalarda foydalanish uchun mo'ljallanmagan va uy xonasini yoritish uchun mos emas.
BIZNING VEB-SAYTIMIZGA TASHRIF BUYURING:
Foydalanish bo'yicha maslahatlar, broshyuralar, muammolarni bartaraf etish, xizmat ko'rsatish va ta'mirlash ma'lumotlarini oling: www.zanussi.com/support
zanussi.com/register
Ogohlantirishsiz o'zgartirilishi mumkin.

Manbalar
Qo'llanmani yuklab olish
Bu yerda siz qo'llanmaning to'liq pdf versiyasini yuklab olishingiz mumkin, u qo'shimcha xavfsizlik ko'rsatmalari, kafolat ma'lumotlari, FCC qoidalari va hokazolarni o'z ichiga olishi mumkin.
Zanussi ZITN643K - Induksion Plita Qo'llanmasi ni yuklab olish
























belgisi yonadi va pishirish zonasi 2 daqiqadan so'ng avtomatik ravishda o'chadi.
ko'rsatiladi.
tugmasini 3 soniya bosib turing. Displey yonadi va o'chadi.
tugmasini 3 soniya bosib turing.
tugmasini
paydo bo'lguncha bir necha marta bosing.
tugmasini bosing.
- 
