Acoustic Research AW851 - Handleiding voor Buitenlantaarn en Draadloze Luidspreker
- 1 Inleiding
- 2 Belangrijke informatie
- 3 Belangrijke veiligheidsinstructies
- 4 Onderhoud en verzorging
- 5 Productinformatie
- 6 Aanbevolen installatielocatie
- 7 Installatie
- 8 Rondleiding door het luidsprekersysteem
- 9 Het luidsprekersysteem koppelen
- 10 De luidspreker uitschakelen
- 11 De lamp in- en uitschakelen
- 12 Meer nuttige informatie
- 13 Probleemoplossing
- 14 Specificaties
- 15 Referenties
- 16 Download handleiding
- 17 In andere talen

Inleiding
Het buitensysteem met lantaarn en draadloze luidspreker van AR geeft een nieuwe draai aan uw buitenverlichting: geluid! De AW851 elimineert het moeilijkste onderdeel van het toevoegen van luidsprekers aan uw huis: het aanleggen en verbergen van honderden meters luidsprekerkabel. Het RF-signaal van het draadloze luidsprekersysteem van AR gaat gemakkelijk door muren, vloeren, plafonds en andere obstakels, en levert geluid van hoge kwaliteit en een stijlvol decor. Met drift- en statische ontvangst, samen met een uitstekend bereik — tot 150 voet* — zijn de mogelijkheden om van uw draadloze luidsprekersysteem van AR te genieten bijna onbeperkt. Het draadloze luidsprekersysteem van AR is compatibel met de meeste audiobronnen, zoals tv's, dvd-spelers, videorecorders, A/V-receivers/versterkers, stereo's, computers en draagbare apparaten (cd-spelers, cassettespelers, MP3's enz.).
Deze handleiding behandelt verschillende verbindingsopties en gedetailleerde bedieningsinstructies om het draadloze luidsprekersysteem van AR tot een waardevol onderdeel van uw levensstijl te maken. Als u na het doornemen van de instructies nog vragen heeft, kunt u gratis bellen naar 1-800-732-6866 of ga naar www.araccessories.com.
*Het bereik kan variëren afhankelijk van de omgeving.
Belangrijke informatie
RISICO OP ELEKTRISCHE SCHOKKEN
NIET OPENEN
Om het risico op elektrische schokken te verminderen, mag u de behuizing (of achterkant) niet verwijderen. Er bevinden zich geen onderdelen in het apparaat die door de gebruiker kunnen worden onderhouden. Laat onderhoud over aan gekwalificeerd onderhoudspersoneel.
De bliksemflits met pijlpuntsymbool in een gelijkzijdige driehoek is bedoeld om de gebruiker te waarschuwen voor de aanwezigheid van niet-geïsoleerde gevaarlijke spanning in de behuizing van het product die voldoende sterk is om een risico op elektrische schokken voor personen te vormen.
Het uitroepteken in een gelijkzijdige driehoek is bedoeld om de gebruiker te waarschuwen voor de aanwezigheid van belangrijke bedienings- en onderhoudsinstructies (service) in de documentatie die bij het apparaat wordt geleverd.
Zie de onderkant en de zijkant van de zender en ontvanger/luidspreker voor het opgenomen vermogen en alle toepasselijke waarschuwingslabels.
Belangrijke veiligheidsinstructies
- Lees deze instructies.
- Bewaar deze instructies.
- Neem alle waarschuwingen in acht.
- Volg alle instructies op.
- Maak alleen schoon met een droge doek.
- Blokkeer geen ventilatieopeningen. Installeer in overeenstemming met de instructies van de fabrikant.
- Niet installeren in de buurt van warmtebronnen zoals radiatoren, warmteroosters, fornuizen of andere apparaten (inclusief versterkers) die warmte produceren.
- Bescherm het netsnoer zodat er niet op kan worden gelopen of dat het bekneld kan raken, vooral bij stekkers, stopcontacten en het punt waar ze uit het apparaat komen.
- Haal de stekker van dit apparaat uit het stopcontact tijdens onweer of wanneer het gedurende lange tijd niet wordt gebruikt.
- Laat al het onderhoud over aan gekwalificeerd onderhoudspersoneel. Onderhoud is vereist als het apparaat op enigerlei wijze is beschadigd, zoals een beschadigd netsnoer of stekker, als er vloeistof is gemorst of er voorwerpen in het apparaat zijn gevallen, als het apparaat is blootgesteld aan regen of vocht, niet normaal werkt of is gevallen.
- Gebruik alleen hulpstukken/accessoires die zijn gespecificeerd door de fabrikant.
Onderhoud en verzorging
- Gebruik altijd een zachte doek om de luidspreker en zender schoon te maken. Gebruik nooit een product dat alcohol of andere oplosmiddelen bevat, omdat deze het oppervlak kunnen beschadigen.
- Wees voorzichtig bij het aansluiten van de transformator in een stopcontact om het risico op elektrische schokken te vermijden.
- Om de lantaarn/luidspreker schoon te maken: Schakel de hoofdstroomtoevoer uit. Veeg schoon met een vochtige doek of gebruik ruitenreiniger. Gebruik geen schurende reinigingsmiddelen.
- Lamp vervangen: Vervang met MAX 40W type B of Listed 13W Self-Ballasted Compact Fluorescent Lamp (lamp met kandelaarvoet).
Gebruik geen lampvoetadapters bij dit product. Dit product mag alleen worden gebruikt met lampen met een kandelaarvoet.
Productinformatie
| Bewaar uw aankoopbewijs om garantieonderdelen en service te verkrijgen en als aankoopbewijs. Bevestig het hier en noteer de serienummers en modelnummers voor het geval u ze nodig heeft. Deze nummers bevinden zich op het product. Modelnr.: Aankoopdatum: Dealer/Adres/Telefoon: |
RISICO OP LETSEL
- Sommige metalen onderdelen in de armatuur kunnen scherpe randen hebben. Om snijwonden en schrammen te voorkomen, draagt u handschoenen bij het hanteren van de onderdelen.
- Houd rekening met kleine onderdelen en vernietig verpakkingsmateriaal, omdat deze gevaarlijk kunnen zijn voor kinderen.
- Gebruik een zaklamp of een andere lichtbron om de werkplek te verlichten tijdens de installatie.
- Er kan hulp nodig zijn om de armatuur tijdens de installatie te ondersteunen.
- Dit apparaat moet worden geïnstalleerd in overeenstemming met alle toepasselijke installatieregels.
- Dit apparaat moet worden aangesloten op een stopcontact of contactdoos met een geaarde en beschermde aansluiting.
- Om letsel te voorkomen, moet dit apparaat stevig aan de muur worden bevestigd in overeenstemming met de installatie-instructies.
BEDRADING EN BEDIENING VAN DE ARMATUUR
- Sluit de armatuur aan op voedingsdraden die geschikt zijn voor ten minste 90°C (194°F).
- Gebruik de armatuur niet op dimcircuits.
- De unit moet hoger dan 60" worden gemonteerd.
Om letsel te voorkomen, moet dit apparaat stevig aan de muur worden bevestigd in overeenstemming met de installatie-instructies.
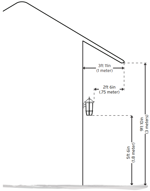
Aanbevolen installatielocatie

Installeer uw buitenlantaarn en draadloze luidspreker onder dakranden die minstens 1 meter (3ft 11in) van uw huis uitsteken en minstens 3 meter (9ft 10in) boven de grond zijn. Zorg er vervolgens voor dat de onderkant van de buitenlantaarn en draadloze luidspreker minstens 1,8 meter (5ft 6in) boven de grond is.
De buitenlantaarn en draadloze luidspreker moeten worden gemonteerd op een muur van hout of beton.
Installatie
Uitpakken
Voordat u de buitenlantaarn en draadloze luidspreker installeert, controleert u of de volgende onderdelen in uw pakket zitten:

De lantaarn/draadloze luidspreker monteren
Voordat u de buitenlantaarn en draadloze luidspreker kunt gebruiken, moet u deze op een stopcontactdoos monteren.
Raadpleeg een gekwalificeerde elektricien als de bedrading van de hoofdvoeding moet worden gecontroleerd of als u niet zeker weet hoe u de bedrading moet installeren. Installeer bedradingsaansluitingen altijd in overeenstemming met de lokale voorschriften, verordeningen en de National Electrical Code.
- Zorg ervoor dat de stroom is uitgeschakeld voor de stopcontactdoos bij de hoofdzekering.
- Verwijder de oude armatuur uit de stopcontactdoos. Koppel de bedrading voorzichtig los.
![]()
- Monteer de dwarsbalk op de stopcontactdoos met behulp van de montageschroeven die in dit pakket zijn meegeleverd.
- Draai de middelste schroef op de dwarsbalk los en lijn de twee zijschroeven uit zodat ze waterpas zijn. Draai vervolgens de middelste schroef vast.
![]()
- Zoek de koperen aardingsdraad die uit de draadloze luidspreker komt. Draai deze samen met de aardingsdraad die uit de stopcontactdoos komt.
Als de stopcontactdoos geen aardingsdraad heeft, bevestigt u de aardingsdraad aan de montagekruisbalk zoals hier wordt weergegeven.
![]()
- Strip 3/4" isolatie van de draadeinden die uit de luidspreker komen. Gebruik een tang om de gestripte uiteinden van de luidspreker samen te draaien met de draden die uit de stopcontactdoos komen — zorg ervoor dat u zwarte draad op zwart en witte draad op wit aansluit. Knip vervolgens de uiteinden af.
- Bevestig de draadconnectoren aan de samengevoegde uiteinden. U kunt de connectoren en uiteinden eventueel aan elkaar binden met elektriciteitstape.
![]()
- Plaats de draadloze luidspreker op de twee zijschroeven op de dwarsbalk. Zet de luidspreker aan de muur vast met de twee doppen die in dit pakket zijn meegeleverd.
![]()
- Gebruik siliconenkit om de boven- en zijkanten tussen de luidspreker en de muur af te dichten. Laat de onderkant open zodat er vocht kan weglopen.
De zender aansluiten op een audiobron
- Sluit de stereostekkers van de meegeleverde Y-adapter audiokabel aan op de AUDIO IN-aansluitingen op de achterkant van de zender (zorg ervoor dat u de kleuren op de stekkers en aansluitingen overeenkomen).
- Steek het ministekkeruiteinde van de meegeleverde Y-adapter in de hoofdtelefoonuitgang van uw MP3-speler of cd-speler (of audio-uitgang op uw computer).
![]()
Dit product is ontworpen om alleen te werken met lijnniveau-uitgangen of hoofdtelefoonuitgangen. NIET rechtstreeks op luidsprekeruitgangen aansluiten, omdat dit de zender permanent beschadigt.
- Sluit de kleine, ronde stekker van de AC-voedingsadapter van de zender aan op de DC IN-aansluiting van de zender. Steek het andere uiteinde van de AC-voedingsadapter van de zender in een standaard 120V AC-wandcontactdoos.
![]()
Opmerking: Deze voedingseenheid is bedoeld om correct te worden georiënteerd in een verticale of horizontale positie.
Opmerking: Er is geen AAN/UIT-schakelaar voor de zender. De zender is ontworpen om aangesloten te blijven en te allen tijde van stroom te worden voorzien. Als u de AW851 langere tijd niet zult gebruiken, koppelt u de AC-voedingsadapter van de zender los.
| Aansluiten op een A/V-ontvanger U kunt de zender ook aansluiten op een A/V-ontvanger met behulp van de mini-jack naar RCA-adapter die is meegeleverd.
|
De lamp van de lantaarn installeren/vervangen
De buitenlantaarn en draadloze luidspreker heeft een lamp met kandelaaraansluiting nodig (40 W max; lamp niet meegeleverd). De onderkant van deze buitenlantaarn en draadloze luidspreker is open voor gemakkelijke toegang tot de fitting. Gebruik voor de beste resultaten een heldere (niet-matte) lamp van 40 W. Om de lamp van de lantaarn te installeren of te vervangen:
- Zoek de lampfitting aan de onderkant van de lantaarn.
- Plaats de lamp en schroef deze in de fitting.
![Acoustic Research - AW851 - De lamp van de lantaarn installeren/vervangen De lamp van de lantaarn installeren/vervangen]()
Behandel en verwijder fluorescerende lampen volgens de aanwijzingen van de fabrikant.
Rondleiding door het luidsprekersysteem
Lantaarn/luidspreker
Bedieningselementen van de rechterpaneelluidspreker

Rechterkant, achterkant
De Speaker On/Off (Luidspreker aan/uit (vertaling)) knop zet de luidspreker aan en uit
De Auto Scan (Automatisch scannen (vertaling)) knop scant opnieuw naar het signaal van de zender
De Volume Up and Down (Volume omhoog en omlaag (vertaling)) knoppen passen het volumeniveau aan
De L/Mono/R (L/Mono/R (vertaling)) schakelaar bepaalt of de luidspreker geluid in mono afspeelt als een zelfstandige luidspreker, of de linker- of rechtertrack afspeelt in een stereopaar met een extra AW851
De Light On/Off switch (Licht aan/uit schakelaar (vertaling)) zet de lantaarn aan en uit
Voorpaneel
De Power/Linked (Stroom/verbonden (vertaling)) indicator (niet afgebeeld) knippert wanneer de luidspreker voor het eerst wordt ingeschakeld; deze wordt blauw wanneer de luidspreker is afgestemd op de zender
Zender

De SIGNAL (SIGNAAL (vertaling)) indicator licht groen op wanneer de audio aanwezig is en de zender uitzendt. De POWER (STROOM (vertaling)) indicator licht op wanneer de zender is ingeschakeld
Met CHANNEL 1 2 3 (KANAAL 1 2 3 (vertaling)) kunt u de beste verzendfrequentie voor uw omgeving vinden
De DC IN (DC IN (vertaling)) aansluiting ontvangt het kleine ronde uiteinde van de meegeleverde 12V 200mA AC-voedingsadapter
De AUDIO IN (R / L) (AUDIO IN (R / L) (vertaling)) maakt verbinding met uw geluidsbron met behulp van een van de verbindingsopties die op de volgende pagina's worden weergegeven
Het luidsprekersysteem koppelen
De zender aanpassen
- Zet uw audiobron aan (bijvoorbeeld A/V-ontvanger, MP3-speler, stereo, enz.) en speel muziek af op een normaal luistervolume.
- Zet de kanaalselectieschakelaar op de achterkant van de zender op een van de drie uitzendfrequenties van de zender: 1, 2 of 3. Als u een slechte ontvangst of storing ervaart, probeert u een andere frequentie te kiezen door de kanaalselectieschakelaar naar een andere positie te verplaatsen.
![]()
Wanneer de zender een audiosignaal ontvangt en klaar is, wordt de SIGNAL-indicator groen.
Opmerking
Als de SIGNAL-indicator op de zender niet oplicht, controleer dan het volgende:
- Controleer of de AC-voedingsadapter van de zender goed is aangesloten.
- Controleer of de kabel van de zender goed is aangesloten op de audiobronuitgang (MP3-speler, A/V-ontvanger, enz.).
- Controleer of de audiobron audio afspeelt en is ingeschakeld.
De luidspreker afstemmen

- Druk op de Speaker On/Off (Luidspreker aan/uit (vertaling)) knop aan de rechterkant van de luidspreker om deze aan te zetten. Het indicatielampje aan de voorkant van de luidspreker knippert terwijl de luidspreker op de zender wordt afgestemd. Het indicatielampje wordt blauw wanneer de luidspreker is afgestemd op de zender — u zou nu geluid uit de luidspreker moeten horen komen.
Opmerking: Als de luidspreker op een geschakeld stopcontact is aangesloten, controleer dan of het stopcontact is ingeschakeld.
Opmerking: Als de luidspreker niet is afgestemd of als de zender niet goed is aangesloten, blijft het indicatielampje knipperen. Raadpleeg in dit geval het gedeelte over probleemoplossing in deze handleiding.
- Pas het volume op de luidspreker naar wens aan.
- Stel de luidspreker in voor mono- of stereowerking met behulp van de schakelaar aan de rechterkant van de AW851-luidspreker.
- Monaural werking: De monaurale modus (mono) wordt aanbevolen bij gebruik van een enkele AW851 op zichzelf. Voor monaurale werking zet u de L/M/R-schakelaar op "M" op de luidspreker.
- Stereo werking: U hebt een extra AW851-luidspreker nodig voor de stereo-optie. Zet de L/Mono/R-schakelaar op "L" op de luidspreker die zich links van de luisteraar bevindt en zet de andere luidspreker op de "R"-positie.
Opmerkingen:
Eén AW851-zender kan zijn signaal naar meer dan twee luidsprekers sturen. Het enige wat u hoeft te doen, is de luidsprekers afstemmen op de enkele zender.
De luidspreker stemt automatisch opnieuw af als hij het signaal van de zender verliest. U kunt ook op de Auto Scan (Automatisch scannen (vertaling)) knop aan de onderkant van de luidspreker drukken om de luidspreker op elk moment opnieuw af te stemmen.
De zender wordt automatisch uitgeschakeld als er gedurende langere tijd geen audiosignaal aanwezig is.
Er kan soms storing in de vorm van statische elektriciteit en/of vervorming te horen zijn. Controleer in dat geval de aanpassingen en indicatoren van de zender/luidspreker. Als het probleem aanhoudt, raadpleegt u het gedeelte over probleemoplossing in deze handleiding.
De luidspreker uitschakelen
- Druk op de Speaker On/Off (Luidspreker aan/uit (vertaling)) knop aan de onderkant van de luidspreker om de luidspreker uit te schakelen.
- Controleer of de luidspreker is uitgeschakeld door te controleren of het indicatielampje op het voorpaneel van de luidspreker niet meer brandt.
De lamp in- en uitschakelen
Om de lamp aan te zetten: Zet de Light On/Off switch (Licht aan/uit schakelaar (vertaling)) aan de onderkant van de luidspreker in de aan-stand. Als de lamp op een geschakeld stopcontact is aangesloten, controleer dan of het stopcontact is ingeschakeld.
Om de lamp uit te zetten: Zet de Light On/Off switch (Licht aan/uit schakelaar (vertaling)) aan de onderkant van de luidspreker in de uit-stand.
Meer nuttige informatie
Over audio-uitgangen met vast niveau
Een audio-uitgang met een vast niveau, of lijnniveau, wordt als ideaal beschouwd omdat deze een audiosignaal levert dat niet is gewijzigd door aanpassingen aan de volumeregeling van de audiobron.
Hint: Audio-uitgangen met vast niveau van stereoreceivers/versterkers worden meestal aangeduid als Tape (of Record)-uitgangen of DVR/DVD-R-audio-uitgangsaansluitingen.
Uitgangen met vast niveau van tv's worden meestal gemarkeerd als 'Constant', 'Fixed' of 'Select'. Als ze niet als zodanig zijn gemarkeerd, zijn het waarschijnlijk variabele uitgangen (zie "Over audio-uitgangen met variabel niveau" hieronder). Uitgangen van dvd-spelers zijn bijna altijd vast.
Hint: Houd er bij het aansluiten op de audio-uitgangen van een dvd-speler rekening mee dat de dvd-speler een tv-kanaal moet weergeven om geluid te produceren.
Over audio-uitgangen met variabel niveau
Een uitgang met variabel niveau, zoals een hoofdtelefoonaansluiting of bepaalde RCA-type uitgangen, levert een audiosignaal dat verandert met het volumeniveau dat is ingesteld op de audiobron. Naarmate het volume van de audiobron omhoog en omlaag wordt aangepast, zo ook de audiosignaalsterkte die naar de zender wordt verzonden. Dit kan de kwaliteit van het geluid dat door de luidspreker wordt gegenereerd beïnvloeden en kan een aanpassing van het volumeniveau van de audiobron vereisen om een signaal te produceren dat sterk genoeg is voor de zender.
Hint: Op de meeste boekenplankachtige of compacte stereosystemen zorgt het plaatsen van een hoofdtelefoonstekker in de hoofdtelefoonaansluiting voor automatische uitschakeling van de reguliere, of vaste luidsprekers.
Hint: De meeste tv's, ongeacht leeftijd of prijs, hebben variabele uitgangen. Raadpleeg de handleiding van de tv als u niet zeker weet welke van uw tv-audio-uitgangen vast is. Sommige tv's hebben uitgangen die kunnen schakelen tussen variabel en vast. Wanneer u een keuze krijgt, wordt altijd vast aanbevolen.
Probleemoplossing
De volgende handleiding voor probleemoplossing leidt u door enkele van de meest voorkomende problemen die verband houden met de installatie en/of bediening van een draadloos systeem. Als het probleem aanhoudt, bel dan gratis op 1-800-732-6866 of ga naar www.araccessories.com.
| Probleem: | Oorzaak en oplossing: |
| Geen geluid |
|
| Geen geluid/ vervorming/ statisch |
|
| Lamp gaat niet branden |
|
| Stroomonderbreker schakelt uit wanneer u de lantaarn inschakelt |
|
Specificaties
Zender
- Omnidirectionele 900MHz-uitzending
- Effectief zendbereik: tot 150 ft. (45m)*
- Phase-locked loop circuitry (PLL)
- Automatic level control (ALC)
- 3 selecteerbare uitzendfrequenties
- Stereo audio-ingang
*Maximaal bereik; resultaten kunnen variëren afhankelijk van de omgeving.
Luidspreker
- Drukknop, auto-lock afstemming
- 2-weg akoestisch ontwerp:
2" tweeter, 3" woofer - 5 Watt RMS interne versterker
- Omnidirectioneel geluid
- Frequentiebereik: 40Hz - 15kHz
- Left/Mono/Right switch (schakelaar)
- Werkt via AC-stopcontact (vereist installatie)

Referenties
Download handleiding
Hier kunt u de volledige pdf-versie van de handleiding downloaden. Deze kan aanvullende veiligheidsinstructies, garantie-informatie, FCC-regels, enz. bevatten.
Download Acoustic Research AW851 - Handleiding voor Buitenlantaarn en Draadloze Luidspreker









