Ръководство за винтов компресор Carrier 30HXC/30GX
- 1 ВЪВЕДЕНИЕ
- 2 СЪОБРАЖЕНИЯ ЗА БЕЗОПАСНОСТ
- 3 РАЗМЕРИ, ХЛАБИНИ, РАЗПРЕДЕЛЕНИЕ НА ТЕГЛОТО
- 4 ФИЗИЧЕСКИ ДАННИ 30HXC
- 5 ЕЛЕКТРИЧЕСКИ ДАННИ 30HXC
- 6 ЕЛЕКТРИЧЕСКИ ДАННИ ЗА УСТРОЙСТВА С ВИСОКИ ТЕМПЕРАТУРИ НА КОНДЕНЗАЦИЯ
- 7 ФИЗИЧЕСКИ ДАННИ 30GX
- 8 ЕЛЕКТРИЧЕСКИ ДАННИ 30GX
-
9
ДАННИ ЗА ПРИЛОЖЕНИЕТО
- 9.1 Работен обхват на агрегата
- 9.2 Минимален дебит на охладена вода
- 9.3 Максимален дебит на охладена вода
- 9.4 Изпарител с променлив дебит
- 9.5 Минимален обем вода в системата
- 9.6 Дебит на охладителя (l/s)
- 9.7 Дебит на кондензатора (l/s)
- 9.8 Крива на спада на налягането на изпарителя
- 9.9 Крива на спада на налягането на кондензатора
- 9.10 Контролери на потока
- 10 ИНСТАЛАЦИЯ
- 11 ИНСТРУКЦИИ ЗА ПОВДИГАНЕ
- 12 ЕЛЕКТРИЧЕСКИ ХАРАКТЕРИСТИКИ
- 13 ПРЕПОРЪЧИТЕЛНИ СЕЧЕНИЯ НА ПРОВОДНИЦИТЕ
-
14
ОСНОВНИ СИСТЕМНИ КОМПОНЕНТИ И ДАННИ ЗА РАБОТА
- 14.1 Предавателен двувинтов компресор
- 14.2 Изпарител
- 14.3 Кондензатор и маслоотделител (30HXC)
- 14.4 Маслоотделител (30GX)
- 14.5 Електронно разширително устройство (EXD)
- 14.6 Икономизатор
- 14.7 Маслени помпи
- 14.8 Вентили за охлаждане на двигателя
- 14.9 Сензори
- 14.10 Термистори
- 14.11 Разположение на вентилаторите 30GX
- 15 ПОДДРЪЖКА
- 16 Отстраняване на неизправности
- 17 Изтегли ръководство
- 18 На други езици

ВЪВЕДЕНИЕ
Преди първоначалното пускане в експлоатация на агрегатите 30HXC и 30GX, лицата, участващи в пускането в експлоатация, експлоатацията и поддръжката, трябва да бъдат напълно запознати с тези инструкции и други необходими работни данни. Тази книга предоставя общ преглед, за да можете да се запознаете със системата за управление, преди да извършите процедурите за пускане в експлоатация. Процедурите в това ръководство са подредени в последователността, необходима за правилното пускане в експлоатация и работа на машината.
СЪОБРАЖЕНИЯ ЗА БЕЗОПАСНОСТ
Охладителите за течности 30HXC и 30GX са проектирани да осигуряват безопасна и надеждна работа, когато се експлоатират в рамките на проектните спецификации. Когато работите с това оборудване, използвайте добра преценка и предпазни мерки, за да избегнете повреда на оборудването и имуществото или нараняване на персонала.
Уверете се, че разбирате и следвате процедурите и предпазните мерки, съдържащи се в инструкциите на машината, както и тези, изброени в това ръководство.
НЕ ИЗПУСКАЙТЕ предпазните клапани за хладилен агент в сграда. Изходът от предпазния клапан трябва да бъде изведен навън. Натрупването на хладилен агент в затворено пространство може да измести кислорода и да причини задушаване или експлозии.
ОСИГУРЕТЕ адекватна вентилация, особено за затворени пространства и пространства с нисък таван. Вдишването на високи концентрации на пари е вредно и може да причини сърдечни аритмии, загуба на съзнание или смърт. Парите са по-тежки от въздуха и намаляват количеството кислород, наличен за дишане. Продуктът причинява дразнене на очите и кожата. Продуктите на разлагане са опасни.
НЕ ИЗПОЛЗВАЙТЕ КИСЛОРОД за продухване на тръбопроводи или за оказване на налягане върху машина за каквато и да е цел. Газообразният кислород реагира бурно с масло, грес и други често срещани вещества.
НИКОГА НЕ ПРЕВИШАВАЙТЕ посочените тестови налягания, ПРОВЕРЕТЕ допустимото тестово налягане, като проверите инструктажната литература и проектните налягания на табелката с данни на оборудването.
НЕ ИЗПОЛЗВАЙТЕ въздух за тестване за течове. Използвайте само хладилен агент или сух азот.
НЕ ЗАТВАРЯЙТЕ с кран каквото и да е предпазно устройство.
УВЕРЕТЕ СЕ, че всички устройства за освобождаване на налягането са правилно инсталирани, преди да пуснете в експлоатация която и да е машина.
НЕ ЗАВАРЯВАЙТЕ ИЛИ ИЗРЯЗВАЙТЕ с пламък какъвто и да е тръбопровод или съд за хладилен агент, докато целият хладилен агент (течен и парен) не бъде отстранен от охладителя. Следите от пари трябва да бъдат изместени със сух въздух или азот и работната зона трябва да бъде добре вентилирана. Хладилният агент в контакт с открит пламък произвежда токсични газове.
НЕ работете върху оборудване под напрежение, освен ако не сте квалифициран електротехник.
НЕ РАБОТЕТЕ ВЪРХУ електрически компоненти, включително контролни панели, превключватели, релета и т.н., докато не сте сигурни, че ЦЯЛОТО ЗАХРАНВАНЕ Е ИЗКЛЮЧЕНО и остатъчното напрежение може да изтече от кондензатори или полупроводникови компоненти.
ЗАКЛЮЧВАЙТЕ ОТВОРЕНИ И ОКАЧВАЙТЕ етикети на електрическите вериги по време на обслужване. АКО РАБОТАТА Е ПРЕКЪСНАТА, проверете дали всички вериги са изключени от напрежение, преди да възобновите работата.
НЕ източвайте хладилен агент със сифон.
ИЗБЯГВАЙТЕ РАЗЛИВАНЕТО на течен хладилен агент върху кожата или попадането му в очите. ИЗПОЛЗВАЙТЕ ЗАЩИТНИ ОЧИЛА. Измийте всички разливи от кожата със сапун и вода. Ако течен хладилен агент попадне в очите,
НЕЗАБАВНО ИЗПЛАКНЕТЕ ОЧИТЕ с вода и се консултирайте с лекар.
НИКОГА НЕ ПРИЛАГАЙТЕ открит пламък или жива пара към контейнер за хладилен агент. Може да се получи опасно свръхналягане. Ако е необходимо да се нагрее хладилен агент, използвайте само топла вода.
НЕ ИЗПОЛЗВАЙТЕ ПОВТОРНО цилиндри за еднократна употреба (невъзвръщаеми) и не се опитвайте да ги пълните отново. Това е ОПАСНО И НЕЗАКОННО. Когато цилиндрите се изпразнят, евакуирайте оставащото налягане на газа, разхлабете скобата и развийте и изхвърлете стеблото на вентила. НЕ ИЗГАРЯЙТЕ.
ПРОВЕРЕТЕ ТИПА ХЛАДИЛЕН АГЕНТ, преди да добавите хладилен агент към машината. Въвеждането на грешен хладилен агент може да причини повреда или неизправност на тази машина.
НЕ СЕ ОПИТВАЙТЕ ДА ОТСТРАНЯВАТЕ фитинги, компоненти и т.н., докато машината е под налягане или докато машината работи. Уверете се, че налягането е 0 kPa, преди да прекъснете връзката на хладилния агент.
ВНИМАТЕЛНО ПРОВЕРЯВАЙТЕ всички устройства за освобождаване на налягането, ПОНЕ ВЕДНЪЖ ГОДИШНО. Ако машината работи в корозивна атмосфера, проверявайте устройствата на по-чести интервали.
НЕ СЕ ОПИТВАЙТЕ ДА РЕМОНТИРАТЕ ИЛИ РЕМОНТИРАТЕ каквото и да е устройство за освобождаване на налягането, когато в тялото или механизма на вентила е открита корозия или натрупване на чужд материал (ръжда, мръсотия, котлен камък и т.н.). Сменете устройството.
НЕ инсталирайте устройства за освобождаване на налягането последователно или наобратно.
НЕ СТЪПВАЙТЕ върху тръбопроводи за хладилен агент. Счупените тръбопроводи могат да се разхлабят и да освободят хладилен агент, причинявайки лични наранявания.
НЕ се катерете над машина. Използвайте платформа или скеле.
ИЗПОЛЗВАЙТЕ МЕХАНИЧНО ОБОРУДВАНЕ (кран, подемник и т.н.) за повдигане или преместване на тежки компоненти. Дори ако компонентите са леки, използвайте механично оборудване, когато има риск от подхлъзване или загуба на равновесие.
ИМАЙТЕ ПРЕДВИД, че някои автоматични схеми за стартиране МОГАТ ДА ЗАДЕЙСТВАТ ВЕНТИЛАТОРА НА ОХЛАДИТЕЛНАТА КУЛА ИЛИ ПОМПИТЕ. Отворете прекъсвача пред вентилаторите на охладителната кула или помпите.
ИЗПОЛЗВАЙТЕ само резервни или резервни части, които отговарят на изискванията на кодекса на оригиналното оборудване.
НЕ ИЗПУСКАЙТЕ ИЛИ ИЗТОЧВАЙТЕ водни кутии, съдържащи промишлени разтвори, без разрешението на компетентен орган.
НЕ РАЗХЛАБВАЙТЕ болтовете на водната кутия, докато водната кутия не бъде напълно източена.
НЕ РАЗХЛАБВАЙТЕ гайката на уплътнителната кутия, преди да проверите дали гайката има положително зацепване на резбата.
ПЕРИОДИЧНО ПРОВЕРЯВАЙТЕ всички вентили, фитинги и тръбопроводи за корозия, ръжда, течове или повреди.
ОСИГУРЕТЕ ДРЕНАЖНА връзка в вентилационната линия близо до всяко устройство за освобождаване на налягането, за да предотвратите натрупване на кондензат или дъждовна вода.
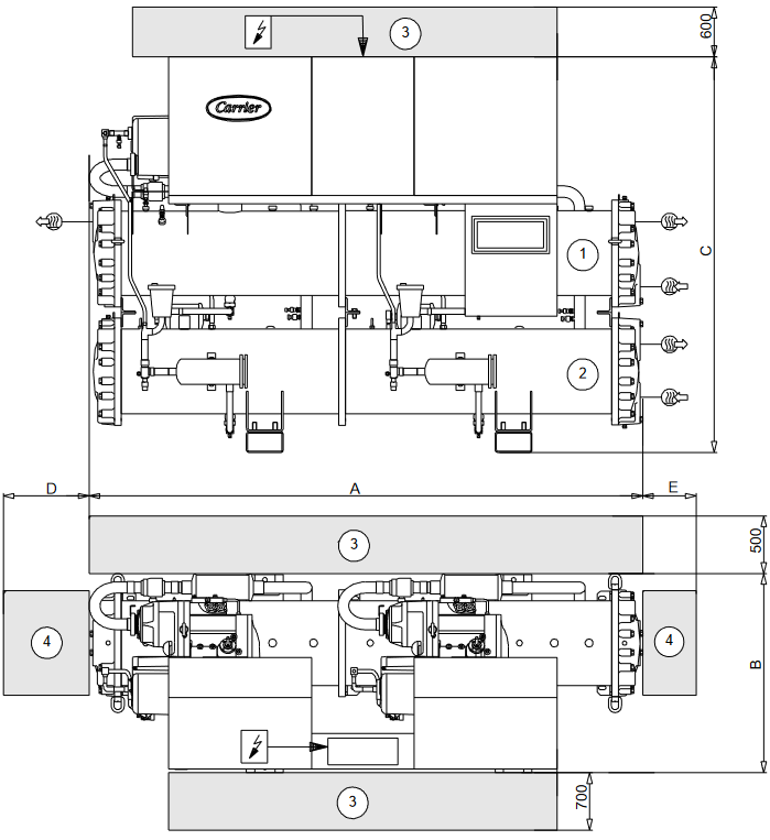
РАЗМЕРИ, ХЛАБИНИ, РАЗПРЕДЕЛЕНИЕ НА ТЕГЛОТО
30HXC 080-190
30HXC080
30HXC090
30HXC100
30HXC110

- Изпарител
- Кондензатор
- Необходими хлабини за експлоатация и поддръжка
- Необходими хлабини за отстраняване на тръбите на топлообменника. Хлабините D и E могат да бъдат или от лявата, или от дясната страна.
Вход за вода
Изход за вода
Захранване
kg: общо работно тегло
| A mm | B mm | C mm | D mm | E mm | kg | |
| 30HXC080 30HXC090 30HXC100 |
2705 | 950 | 1850 | 2360 | 1000 | 2447 2462 2504 |
| 30HXC110 | 2705 | 950 | 1900 | 2360 | 1000 | 2650 |
| 30HXC120 30HXC130 30HXC140 30HXC155 |
3535 | 950 | 1875 | 3220 | 1000 | 2846 2861 2956 2971 |
| 30HXC175 30HXC190 |
3550 | 950 | 2000 | 3220 | 1000 | 3283 3438 |
ЗАБЕЛЕЖКА: Обърнете се към заверените чертежи с размери, доставени с агрегата, когато проектирате инсталация.
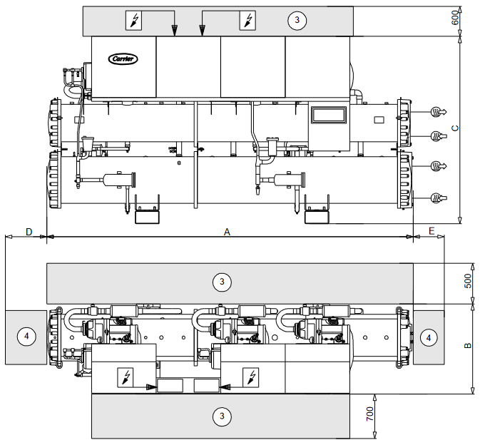
30HXC 200-375

- Изпарител
- Кондензатор
- Необходими хлабини за експлоатация и поддръжка
- Необходими хлабини за отстраняване на тръбите на топлообменника. Хлабините D и E могат да бъдат или от лявата, или от дясната страна.
Вход за вода
Изход за вода
Захранване
kg: общо работно тегло
| A mm | B mm | C mm | D mm | E mm | kg | |
| 30HXC200 | 3975 | 980 | 2035 | 3620 | 1000 | 4090 |
| 30HXC230 30HXC260 30HXC285 |
3995 | 980 | 2116 | 3620 | 1000 | 4705 4815 4985 |
| 30HXC310 30HXC345 30HXC375 |
4490 | 980 | 2163 | 4120 | 1000 | 5760 5870 6105 |
ЗАБЕЛЕЖКА: Обърнете се към заверените чертежи с размери, доставени с агрегата, когато проектирате инсталация.
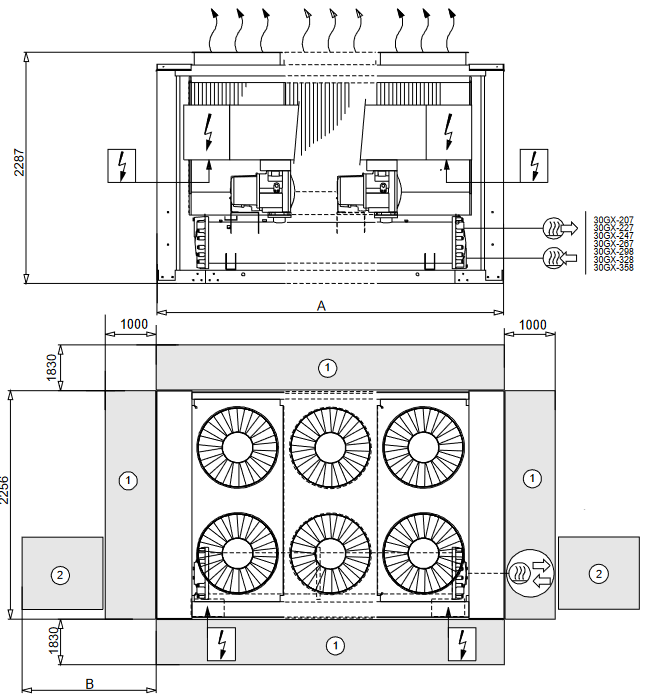
30GX 082-182
30GX-082
30GX-092
30GX-102
30GX-112
30GX-122
30GX-132
30GX-152
30GX-162
30GX-182


- Необходими хлабини за експлоатация и поддръжка
- Необходими хлабини за отстраняване на тръбите на топлообменника. Хлабините могат да бъдат или от лявата, или от дясната страна.
Вход за вода
Изход за вода
Захранване
Изход за въздух - не възпрепятствайте
kg: общо работно тегло
| A mm | B mm | kg | |
| 30GX082 30GX092 30GX102 |
2970 | 2215 | 3116 3157 3172 |
| 30GX112 30GX122 30GX132 |
3427 | 2045 | 3515 3531 3633 |
| 30GX152 30GX162 |
4342 | 2835 | 3920 3936 |
| 30GX182 | 5996 | 1820 | 4853 |
Инсталиране на няколко охладителя


Бележки:
- Агрегатът трябва да има хлабини за въздушен поток, както следва:
Горен: не ограничавайте по никакъв начин - В случай на няколко охладителя (до четири агрегата), съответната хлабина между тях трябва да бъде увеличена от 1830 на 2000 mm за изискването за странично пространство.
- Необходими са хлабини за отстраняване на тръбите на охладителя.
ЗАБЕЛЕЖКА: Обърнете се към заверените чертежи с размери, доставени с агрегата, когато проектирате инсталация.
30GX 207-358
30GX-207
30GX-227
30GX-247
30GX-267
30GX-298
30GX-328
30GX-358

- Необходими хлабини за експлоатация и поддръжка
- Необходими хлабини за отстраняване на тръбите на топлообменника. Хлабините могат да бъдат или от лявата, или от дясната страна.
Вход за вода
Изход за вода
Захранване
Изход за въздух - не възпрепятствайте
kg: общо работно тегло
| A mm | B mm | kg | |
| 30GX207 30GX227 |
5996 | 2895 | 5540 5570 |
| 30GX247 30GX267 |
6911 | 2470 | 6134 6365 |
| 30GX298 | 7826 | 2220 | 7354 |
| 30GX328 30GX358 |
8741 | 1250 | 7918 8124 |
Инсталиране на няколко охладителя


Бележки:
- Агрегатът трябва да има хлабини за въздушен поток, както следва:
Горен: не ограничавайте по никакъв начин - В случай на няколко охладителя (до четири агрегата), съответната хлабина между тях трябва да бъде увеличена от 1830 на 2000 mm за изискването за странично пространство.
- Необходими са хлабини за отстраняване на тръбите на охладителя.
ЗАБЕЛЕЖКА: Обърнете се към заверените чертежи с размери, доставени с агрегата, когато проектирате инсталация.
ФИЗИЧЕСКИ ДАННИ 30HXC
| 30HXC | 080 | 090 | 100 | 110 | 120 | 130 | 140 | 155 | 175 | 190 | 200 | 230 | 260 | 285 | 310 | 345 | 375 | |
| Нетен охладителен капацитет | kW | 292 | 321 | 352 | 389 | 426 | 464 | 514 | 550 | 607 | 663 | 716 | 822 | 918 | 996 | 1119 | 1222 | 1326 |
| Работно тегло | kg | 2447 | 2462 | 2504 | 2650 | 2846 | 2861 | 2956 | 2971 | 3283 | 3438 | 4090 | 4705 | 4815 | 4985 | 5760 | 5870 | 6105 |
| Хладилен агент Кръг A/B |
HFC-134a | |||||||||||||||||
| kg | 39/36 | 39/36 | 37/32 | 38/38 | 57/55 | 59/50 | 56/50 | 59/52 | 58/61 | 60/70 | 110/58 | 118/63 | 120/75 | 120/75 | 108/110 | 110/110 | 110/120 | |
| Масло Кръг A/B |
Polyolester oil CARRIER SPEC: PP 47-32 | |||||||||||||||||
| l | 15/15 | 15/15 | 15/15 | 15/15 | 15/15 | 15/15 | 15/15 | 15/15 | 15/15 | 15/15 | 30/15 | 30/15 | 30/15 | 30/15 | 30/30 | 30/30 | 30/30 | |
| Компресори | Hermetic twin-screw Power3 | |||||||||||||||||
| Circ. A, nom. size per compressor** | 39 | 46 | 46 | 56 | 56 | 66 | 80 | 80 | 80 | 80+ | 66/56 | 80/56 | 80/80 | 80+/80+ | 80/66 | 80/80 | 80+/80+ | |
| Circ. B, nom. size per compressor** | 39 | 39 | 46 | 46 | 56 | 56 | 56 | 66 | 80 | 80+ | 66 | 80 | 80 | 80+ | 80/66 | 80/80 | 80+/80+ | |
| Тип управление | PRO-DIALOG Plus control | |||||||||||||||||
| Брой на стъпките на капацитет | 6 | 6 | 6 | 6 | 6 | 6 | 6 | 6 | 6 | 6 | 8 | 8 | 8 | 8 | 10 | 10 | 10 | |
| Минимален капацитет | % | 19 | 19 | 21 | 19 | 21 | 19 | 17 | 19 | 21 | 21 | 14 | 14 | 14 | 14 | 10 | 10 | 10 |
| Изпарител | Shell and tube type, with internally finned copper tubes (Тръбен тип, с вътрешно оребрени медни тръби) | |||||||||||||||||
| Нетен воден обем | l | 65 | 65 | 73 | 87 | 81 | 81 | 91 | 91 | 109 | 109 | 140 | 165 | 181 | 181 | 203 | 229 | 229 |
| Водни връзки | Factory-supplied flat flange, to be welded on site (Фабрично доставени плоски фланци, за заваряване на място) | |||||||||||||||||
| Вход и изход | in. | 4 | 4 | 4 | 5 | 5 | 5 | 5 | 5 | 5 | 5 | 6 | 6 | 6 | 6 | 8 | 8 | 8 |
| Дренаж и вентилация (NPT) | in. | 3/8 | 3/8 | 3/8 | 3/8 | 3/8 | 3/8 | 3/8 | 3/8 | 3/8 | 3/8 | 3/8 | 3/8 | 3/8 | 3/8 | 3/8 | 3/8 | 3/8 |
| Макс. работно налягане от страна на водата | kPa | 1000 | 1000 | 1000 | 1000 | 1000 | 1000 | 1000 | 1000 | 1000 | 1000 | 1000 | 1000 | 1000 | 1000 | 1000 | 1000 | 1000 |
| Кондензатори | Shell and tube type, with internally finned copper tubes (Тръбен тип, с вътрешно оребрени медни тръби) | |||||||||||||||||
| Нетен воден обем | l | 58 | 58 | 58 | 58 | 92 | 92 | 110 | 110 | 132 | 132 | 162 | 208 | 208 | 208 | 251 | 251 | 251 |
| Водни връзки | Factory-supplied flat flange, to be welded on site (Фабрично доставени плоски фланци, за заваряване на място) | |||||||||||||||||
| Вход и изход | in. | 5 | 5 | 5 | 5 | 5 | 5 | 5 | 5 | 6 | 6 | 6 | 6 | 6 | 6 | 8 | 8 | 8 |
| Дренаж и вентилация (NPT) | in. | 3/8 | 3/8 | 3/8 | 3/8 | 3/8 | 3/8 | 3/8 | 3/8 | 3/8 | 3/8 | 3/8 | 3/8 | 3/8 | 3/8 | 3/8 | 3/8 | 3/8 |
| Макс. работно налягане от страна на водата | kPa | 1000 | 1000 | 1000 | 1000 | 1000 | 1000 | 1000 | 1000 | 1000 | 1000 | 1000 | 1000 | 1000 | 1000 | 1000 | 1000 | 1000 |
* Стандартизирани условия на Eurovent: температури на входящата/изходящата вода на изпарителя = 12°C/7°C, температури на входящата/изходящата вода на кондензатора = 30°C/35°C Нетен охладителен капацитет: Брутен охладителен капацитет минус топлината на водната помпа срещу вътрешния спад на налягането в изпарителя. ** Размерът на компресора съответства на номиналния капацитет в тонове (1 тон = 3,517 kW).
ЕЛЕКТРИЧЕСКИ ДАННИ 30HXC
| 30HXC | 080 | 090 | 100 | 110 | 120 | 130 | 140 | 155 | 175 | 190 | 200 | 230 | 260 | 285 | 310 | 345 | 375 | |
| Захранваща верига | ||||||||||||||||||
| Номинално захранване* | V-ph-Hz | 400-3-50 | ||||||||||||||||
| Диапазон на напрежението | V | 360-440 | ||||||||||||||||
| Захранване на управляващата верига | Управляващата верига се захранва чрез фабрично инсталиран трансформатор | |||||||||||||||||
| Номинална входяща мощност* | kW | 59 | 67 | 74 | 83 | 88 | 99 | 112 | 123 | 135 | 146 | 156 | 179 | 201 | 219 | 245 | 274 | 298 |
| Номинален консумиран ток* | A | 98 | 111 | 124 | 139 | 148 | 166 | 186 | 204 | 226 | 242 | 259 | 291 | 335 | 367 | 408 | 456 | 498 |
| Макс. входяща мощност** | kW | 76 | 83 | 91 | 101 | 111 | 121 | 135 | 145 | 158 | 181 | 187 | 214 | 237 | 272 | 290 | 316 | 362 |
| Верига A | kW | - | - | - | - | - | - | - | - | - | - | 121 | 135 | 158 | 181 | 145 | 158 | 181 |
| Верига B | kW | - | - | - | - | - | - | - | - | - | - | 66 | 79 | 79 | 91 | 145 | 158 | 181 |
| Косинус фи, единица при пълно натоварване | 0.87 | 0.87 | 0.87 | 0.87 | 0.87 | 0.87 | 0.87 | 0.87 | 0.87 | 0.87 | 0.87 | 0.87 | 0.87 | 0.87 | 0.87 | 0.87 | 0.87 | |
| Макс. консумиран ток (Un - 10%)*** | A | 138 | 152 | 166 | 184 | 202 | 221 | 245 | 264 | 288 | 330 | 341 | 389 | 432 | 495 | 528 | 576 | 660 |
| Верига A | A | - | - | - | - | - | - | - | - | - | - | 221 | 245 | 288 | 330 | 264 | 288 | 330 |
| Верига B | A | - | - | - | - | - | - | - | - | - | - | 120 | 144 | 144 | 165 | 264 | 288 | 330 |
| Максимален консумиран ток (Un)*** | A | 125 | 138 | 151 | 167 | 184 | 201 | 223 | 240 | 262 | 300 | 310 | 354 | 393 | 450 | 480 | 524 | 600 |
| Верига A | A | - | - | - | - | - | - | - | - | - | - | 201 | 223 | 262 | 300 | 240 | 262 | 300 |
| Верига B | A | - | - | - | - | - | - | - | - | - | - | 109 | 131 | 131 | 150 | 240 | 262 | 300 |
| Макс. пусков ток, стандартна единица (Un)**** | A | 172 | 197 | 209 | 235 | 252 | 283 | 318 | 335 | 357 | 420 | 806 | 938 | 977 | 1156 | 1064 | 1108 | 1306 |
| Верига A | A | - | - | - | - | - | - | - | - | - | - | 697 | 807 | 846 | 1006 | 824 | 846 | 1006 |
| Верига B | A | - | - | - | - | - | - | - | - | - | - | 605 | 715 | 715 | 856 | 824 | 846 | 1006 |
| Макс. пусков ток/макс. коефициент на консумиран ток, единица | 1.37 | 1.42 | 1.39 | 1.41 | 1.37 | 1.41 | 1.43 | 1.40 | 1.36 | 1.40 | 2.60 | 2.65 | 2.49 | 2.57 | 2.22 | 2.12 | 2.18 | |
| Макс. пусков ток/макс. коефициент на консумиран ток, верига A | - | - | - | - | - | - | - | - | - | - | 3.47 | 3.62 | 3.23 | 3.35 | 3.43 | 3.23 | 3.35 | |
| Макс. пусков ток/макс. коефициент на консумиран ток, верига B | - | - | - | - | - | - | - | - | - | - | 5.55 | 5.46 | 5.46 | 5.71 | 3.43 | 3.23 | 3.35 | |
| Макс. пусков ток - старт с намален ток (Un) **** | A | std. | std. | std. | std. | std. | std. | std. | std. | std. | std. | 601 | 643 | 682 | 760 | 769 | 813 | 910 |
| Верига A | A | std. | std. | std. | std. | std. | std. | std. | std. | std. | std. | 492 | 512 | 551 | 610 | 529 | 551 | 610 |
| Верига B | A | std. | std. | std. | std. | std. | std. | std. | std. | std. | std. | 330 | 370 | 370 | 385 | 529 | 551 | 610 |
| Макс. пусков ток - червен. старт на ток/ макс. коефициент на консумиран ток, единица | std. | std. | std. | std. | std. | std. | std. | std. | std. | std. | 1.94 | 1.82 | 1.74 | 1.69 | 1.60 | 1.55 | 1.52 | |
| Верига A | std. | std. | std. | std. | std. | std. | std. | std. | std. | std. | 2.45 | 2.30 | 2.10 | 2.03 | 2.20 | 2.10 | 2.03 | |
| Верига B | std. | std. | std. | std. | std. | std. | std. | std. | std. | std. | 3.03 | 2.83 | 2.83 | 2.57 | 2.20 | 2.10 | 2.03 | |
| Трифазен ток на късо съединение | kA | 25 | 25 | 25 | 25 | 25 | 25 | 25 | 25 | 25 | 25 | N/A | N/A | N/A | N/A | N/A | N/A | N/A |
| Верига A | kA | - | - | - | - | - | - | - | - | - | - | 25 | 25 | 25 | 25 | 25 | 25 | 25 |
| Верига B | kA | - | - | - | - | - | - | - | - | - | - | 15 | 15 | 15 | 15 | 25 | 25 | 25 |
| Капацитет на готовност на клиента, единица или верига A, за връзки на изпарителна водна помпа† | kW | 8 | 8 | 8 | 11 | 11 | 11 | 15 | 15 | 15 | 15 | 15 | 18 | 18 | 30 | 30 | 30 | 30 |
* Стандартни условия на Eurovent: Температура на водата на входа/изхода на изпарителя 12°C и 7°C. Температура на водата на входа/изхода на кондензатора 30°C/35°C.
** Входяща мощност, компресор, при работни граници на агрегата (температура на водата на входа/изхода на изпарителя = 15°C/10°C, температура на водата на входа/изхода на кондензатора = 40°C/45°C) и номинално напрежение 400 V (данни, посочени на табелката на агрегата).
*** Максимален работен ток на агрегата при максимална входяща мощност на агрегата.
**** Максимален моментен пусков ток (максимален работен ток на най-малкия(те) компресор(и) + ток на блокиран ротор или намален пусков ток на най-големия компресор)
† Ток и входяща мощност, които не са включени в горните стойности.
N/A Не е налично
Компресори
| Референтен номер | Размер | I ном. | MHA | LRA | LRA (Y) | LRA (S) 1 cp. | LRA (S) 2 cp. |
| 06NW2146S7N | 39 | 48 | 69 | 344 | 109 | 125 | - |
| 06NW2174S7N | 46 | 58 | 83 | 423 | 134 | 154 | - |
| 06NW2209S7N | 56 | 71 | 101 | 506 | 160 | 260 | 350 |
| 06NW2250S7N | 66 | 87 | 120 | 605 | 191 | 330 | 400 |
| 06NW2300S5N | 80 | 104 | 144 | 715 | 226 | 370 | 420 |
| 06NW2300S5E | 80+ | 111 | 165 | 856 | 270 | 385 | 460 |
Легенда:
| 06NW | Компресор за агрегати с водно охлаждане |
| N | Неикономичен компресор |
| E | Икономичен компресор |
| INOM | Среден консумиран ток на компресора при условия на Eurovent |
| MHA | Трябва да задържи ампери (максимален работен ток) при 360 V |
| LRA | Ток на блокиран ротор при директен старт |
| LRA (Y) | Ток на блокиран ротор при намален ток (режим на стартиране звезда/триъгълник) |
| LRA (S) 1 cp. | Стартиране с намален ток с електронен стартер (продължителност на стартиране 3 секунди макс.) за един компресор на верига |
| LRA (S) 2 cp. | Стартиране с намален ток с електронен стартер (продължителност на стартиране 3 секунди макс.) за два компресора на верига |
ЕЛЕКТРИЧЕСКИ ДАННИ ЗА УСТРОЙСТВА С ВИСОКИ ТЕМПЕРАТУРИ НА КОНДЕНЗАЦИЯ
30HXC 150 и; 150A Опции
| 30HXC | 080 | 090 | 100 | 110 | 120 | 130 | 140 | 155 | 175 | 190 | 200 | 230 | 260 | 285 | 310 | 345 | 375 | |
| Захранваща верига | ||||||||||||||||||
| Номинално захранване* | V-ph-Hz | 400-3-50 | ||||||||||||||||
| Диапазон на напрежението | V | 360-440 | ||||||||||||||||
| Захранване на управляващата верига | Управляващата верига се захранва чрез фабрично инсталиран трансформатор | |||||||||||||||||
| Макс. консумирана мощност** | kW | 104 | 117 | 131 | 145 | 159 | 174 | 194 | 211 | 230 | 263 | 271 | 310 | 345 | 395 | 422 | 460 | 526 |
| Верига A | kW | - | - | - | - | - | - | - | - | - | - | 175 | 195 | 230 | 263 | 211 | 230 | 263 |
| Верига B | kW | - | - | - | - | - | - | - | - | - | - | 96 | 115 | 115 | 132 | 211 | 230 | 263 |
| Макс. консумиран ток (Un - 10%)*** | A | 190 | 215 | 240 | 265 | 290 | 320 | 355 | 385 | 420 | 480 | 495 | 564 | 630 | 720 | 770 | 840 | 960 |
| Верига A | A | - | - | - | - | - | - | - | - | - | - | 320 | 355 | 420 | 480 | 385 | 420 | 480 |
| Верига B | A | - | - | - | - | - | - | - | - | - | - | 175 | 210 | 210 | 240 | 385 | 420 | 480 |
| Максимален консумиран ток (Un)*** | A | 173 | 195 | 218 | 241 | 264 | 291 | 323 | 350 | 382 | 436 | 450 | 514 | 573 | 655 | 700 | 764 | 873 |
| Верига A | A | - | - | - | - | - | - | - | - | - | - | 291 | 323 | 382 | 436 | 350 | 382 | 436 |
| Верига B | A | - | - | - | - | - | - | - | - | - | - | 159 | 191 | 191 | 218 | 350 | 382 | 436 |
| Макс. пусков ток, стандартно устройство (Un)**** | A | 277 | 312 | 335 | 379 | 402 | 435 | 519 | 546 | 578 | 618 | 1251 | 1549 | 1608 | 1701 | 1735 | 1799 | 1920 |
| Верига A | A | - | - | - | - | - | - | - | - | - | - | 1092 | 1358 | 1417 | 1483 | 1385 | 1417 | 1483 |
| Верига B | A | - | - | - | - | - | - | - | - | - | - | 960 | 1226 | 1226 | 1265 | 1385 | 1417 | 1483 |
| Макс. пусков ток/макс. съотношение на консумиран ток, устройство | 1.61 | 1.60 | 1.54 | 1.57 | 1.52 | 1.49 | 1.61 | 1.56 | 1.51 | 1.42 | 2.78 | 3.02 | 2.81 | 2.60 | 2.48 | 2.36 | 2.20 | |
| Макс. пусков ток/макс. съотношение на консумиран ток, верига A | - | - | - | - | - | - | - | - | - | - | 3.75 | 4.21 | 3.71 | 3.40 | 3.96 | 3.71 | 3.40 | |
| Макс. пусков ток/макс. съотношение на консумиран ток, верига B | - | - | - | - | - | - | - | - | - | - | 6.03 | 6.42 | 6.42 | 5.80 | 3.96 | 3.71 | 3.40 | |
| Макс. пусков ток - стартиране с намален ток (Un) **** | A | std. | std. | std. | std. | std. | std. | std. | std. | std. | std. | N/A | N/A | N/A | N/A | N/A | N/A | N/A |
| Трифазен ток на късо съединение | kA | 25 | 25 | 25 | 25 | 25 | 25 | 25 | 25 | 25 | 25 | N/A | N/A | N/A | N/A | N/A | N/A | N/A |
| Верига A | kA | - | - | - | - | - | - | - | - | - | - | 25 | 25 | 25 | 25 | 25 | 25 | 25 |
| Верига B | kA | - | - | - | - | - | - | - | - | - | - | 15 | 15 | 15 | 15 | 25 | 25 | 25 |
| Капацитет на готовност на клиента, устройство или верига A, за връзки на водна помпа на изпарителя† | kW | 8 | 8 | 8 | 11 | 11 | 11 | 15 | 15 | 15 | 15 | 15 | 18 | 18 | 30 | 30 | 30 | 30 |
** Консумирана мощност, компресор, при работни граници на устройството (температура на входяща/изходяща вода на изпарителя = 15°C/10°C, температура на входяща/изходяща вода на кондензатора = 40°C/45°C) и номинално напрежение 400 V (данни, посочени на табелката на устройството).
*** Максимален работен ток на устройството при максимална консумирана мощност на устройството.
**** Максимален моментен пусков ток (максимален работен ток на най-малкия(те) компресор(и) + ток на блокиран ротор или намален пусков ток на най-големия компресор)
† Ток и консумирана мощност не са включени в горните стойности.
N/A Не е налично
Устройствата 30HXC 080-375 за високи температури на кондензация са директно получени от стандартните модели. Диапазонът им на приложение е същият като този на стандартните устройства, но позволява работа при температури на изходящата вода на кондензатора до 63°C. Управлението PRO-DIALOG предлага всички предимства на стандартните устройства, плюс контрол на температурата на изходящата вода на кондензатора.
Основните модификации са:
- Използване на компресори 30GX
- Модификация на електрическите компоненти за работа с компресори за високи температури на кондензация.
- Модификация на топлообменниците, за да отговарят на изискванията на кодекса за налягане (ако е необходимо).
Опция 150
Тези устройства са проектирани за традиционни приложения за водоохлаждани устройства, но за по-високи температури на изходящата вода на кондензатора от 45°C.
Подобно на стандартните устройства, те са оборудвани със сензори за входяща и изходяща вода на кондензатора, инсталирани на тръбопровода.
Възможно е да се управлява машината на изхода на водата на кондензатора, което изисква промяна на фабричната конфигурация и използването на устройство за обръщане на входа за отопление/охлаждане.
Опция 150A
Тези устройства са проектирани за термопомпи вода-вода.
Те са фабрично конфигурирани като термопомпи (управление на отопление/охлаждане като функция на дистанционното устройство за обръщане). Кондензаторът включва топлоизолация, която е идентична с тази на изпарителя.
Техническа информация
Цялата информация е идентична с тази на стандартните устройства 30HXC, с изключение на следните параграфи.
Избор
Няма номинални условия за този тип устройство. Изборът се прави с помощта на текущия електронен каталог.
Размери
Те са идентични с тези на стандартните устройства 30HXC. Единствената разлика е в диаметъра на входящата връзка за полево окабеляване, описана в главата "Препоръчителен избор". Обърнете се към чертежите на размерите за тези устройства, преди да продължите с окабеляването.
Компресор
Вижте таблицата на компресора 30GX.
Опции и аксесоари
Всички опции, налични за стандартните устройства 30HXC, са съвместими, с изключение на:
| Опция 5, устройство за саламура | Специално устройство |
| Опция 25, плавен старт, устройства 30HXC 200-375 | Не е налично |
Внимание:
Ако устройствата имат два различни режима на работа - един с висока температура на кондензация и другият с ниска температура на кондензация - и преходът се извършва с работещо устройство, температурата не трябва да се променя с повече от 3 K на минута. В случаите, когато това не е възможно, се препоръчва да се премине през превключвател за стартиране/спиране на устройството (дистанционно стартиране/спиране, налично за стандартни устройства).
ФИЗИЧЕСКИ ДАННИ 30GX
| 30GX | 082 | 092 | 102 | 112 | 122 | 132 | 152 | 162 | 182 | 207 | 227 | 247 | 267 | 298 | 328 | 358 | ||
| Нетен охладителен капацитет | kW | 285 | 309 | 332 | 388 | 417 | 450 | 505 | 536 | 602 | 687 | 744 | 810 | 910 | 1003 | 1103 | 1207 | |
| Работно тегло | kg | 3116 | 3157 | 3172 | 3515 | 3531 | 3633 | 3920 | 3936 | 4853 | 5540 | 5570 | 6134 | 6365 | 7354 | 7918 | 8124 | |
| Количество хладилен агент | HFC-134a | |||||||||||||||||
| Верига A/B | kg | 55/55 | 58/50 | 54/53 | 55/53 | 60/57 | 63/60 | 75/69 | 75/75 | 80/80 | 130/85 | 130/85 | 155/98 | 170/104 | 162/150 | 162/165 | 175/175 | |
| Масло | Полиолестерно масло CARRIER SPEC: PP 47-32 | |||||||||||||||||
| Верига A/B | l | 20/20 | 20/20 | 20/20 | 20/20 | 20/20 | 20/20 | 20/20 | 20/20 | 20/20 | 40/20 | 40/20 | 40/20 | 40/20 | 40/40 | 40/40 | 40/40 | |
| Компресори | Херметичен двувинтов Power3 | |||||||||||||||||
| Верига A, ном. размер на компресор** | 46 | 46 | 56 | 56 | 66 | 66 | 80 | 80 | 80+ | 66/56 | 80/66 | 80/80 | 80+/80+ | 80/80 | 80/80 | 80+/80+ | ||
| Верига B, ном. размер на компресор** | 39 | 46 | 46 | 56 | 56 | 66 | 66 | 80 | 80+ | 80 | 80 | 80 | 80+ | 66/66 | 80/802 | 80+/80+ | ||
| Тип управление | PRO-DIALOG Plus управление | |||||||||||||||||
| Брой стъпки на капацитет | 6 | 6 | 6 | 6 | 6 | 6 | 6 | 6 | 6 | 8 | 8 | 8 | 8 | 10 | 10 | 10 | ||
| Минимален капацитет | % | 19 | 21 | 19 | 21 | 19 | 21 | 19 | 21 | 21 | 16 | 14 | 14 | 14 | 9 | 10 | 10 | |
| Изпарител | Тип кожух и тръба, с вътрешно оребрени медни тръби | |||||||||||||||||
| Нетен обем на водата | l | 65 | 73 | 73 | 87 | 87 | 101 | 91 | 91 | 109 | 140 | 140 | 165 | 181 | 203 | 229 | 229 | |
| Водни връзки | Фабрично доставени плоски фланци, които трябва да бъдат заварени на място | |||||||||||||||||
| Вход и изход | in. | 4 | 4 | 4 | 5 | 5 | 5 | 5 | 5 | 5 | 6 | 6 | 6 | 6 | 8 | 8 | 8 | |
| Дренаж и вентилация (NPT) | in. | 3/8 | 3/8 | 3/8 | 3/8 | 3/8 | 3/8 | 3/8 | 3/8 | 3/8 | 3/8 | 3/8 | 3/8 | 3/8 | 3/8 | 3/8 | 3/8 | |
| Макс. работно налягане от страна на водата | kPa | 1000 | 1000 | 1000 | 1000 | 1000 | 1000 | 1000 | 1000 | 1000 | 1000 | 1000 | 1000 | 1000 | 1000 | 1000 | 1000 | |
| Кондензатори | Медни тръби и алуминиеви ребра | |||||||||||||||||
| Вентилатори | Аксиален вентилатор FLYING BIRD 2 с въртящ се кожух | |||||||||||||||||
| Количество | 4 | 4 | 4 | 6 | 6 | 6 | 8 | 8 | 8 | 10 | 10 | 12 | 12 | 14 | 16 | 16 | ||
| Скорост | r/s | 15.8 | 15.8 | 15.8 | 15.8 | 15.8 | 15.8 | 15.8 | 15.8 | 15.8 | 15.8 | 15.8 | 15.8 | 15.8 | 15.8 | 15.8 | 15.8 | |
| Общ въздушен поток | l/s | 21110 | 21110 | 21110 | 31660 | 31660 | 31660 | 42220 | 42220 | 42220 | 52770 | 52770 | 63330 | 63330 | 73880 | 84440 | 84440 | |
* Стандартизирани условия на Eurovent: температури на входяща/изходяща вода на изпарителя = 12°C/7°C, температура на външния въздух = 35°C Нетен охладителен капацитет: Брутен охладителен капацитет минус топлината на водната помпа срещу вътрешната загуба на налягане на изпарителя.
** Размерът на компресора съответства на номиналния капацитет в тонове (1 тон = 3,517 kW).
ЕЛЕКТРИЧЕСКИ ДАННИ 30GX
| 30HXC | 082 | 092 | 102 | 112 | 122 | 132 | 152 | 162 | 182 | 207 | 227 | 247 | 267 | 298 | 328 | 358 | ||
| Захранваща верига | ||||||||||||||||||
| Номинално захранване* | V-ph-Hz | 400-3-50 | ||||||||||||||||
| Диапазон на напрежението | V | 360-440 | ||||||||||||||||
| Захранване на управляващата верига | Управляващата верига се захранва чрез фабрично инсталиран трансформатор | |||||||||||||||||
| Номинална консумирана мощност* | kW | 98 | 109 | 123 | 133 | 150 | 166 | 179 | 196 | 214 | 246 | 281 | 292 | 332 | 364 | 394 | 449 | |
| Номинален консумиран ток* | A | 180 | 200 | 223 | 256 | 273 | 290 | 326 | 352 | 388 | 449 | 492 | 528 | 582 | 642 | 704 | 776 | |
| Макс. консумирана мощност** | kW | 127 | 141 | 154 | 175 | 191 | 207 | 234 | 253 | 286 | 319 | 355 | 380 | 429 | 462 | 506 | 572 | |
| Верига A | kW | - | - | - | - | - | - | - | - | - | 193 | 228 | 253 | 286 | 253 | 253 | 286 | |
| Верига B | kW | - | - | - | - | - | - | - | - | - | 127 | 127 | 127 | 143 | 209 | 253 | 286 | |
| Косинус фи, единица при пълно натоварване | 0.85 | 0.85 | 0.85 | 0.85 | 0.85 | 0.85 | 0.86 | 0.86 | 0.86 | 0.86 | 0.86 | 0.86 | 0.86 | 0.86 | 0.86 | 0.86 | ||
| Макс. консумиран ток (Un - 10%)*** | A | 237 | 262 | 287 | 323 | 353 | 383 | 429 | 464 | 524 | 585 | 650 | 696 | 786 | 847 | 928 | 1048 | |
| Верига A | A | - | - | - | - | - | - | - | - | - | 353 | 418 | 464 | 524 | 464 | 464 | 524 | |
| Верига B | A | - | - | - | - | - | - | - | - | - | 232 | 232 | 232 | 262 | 383 | 464 | 524 | |
| Максимален консумиран ток (Un)*** | A | 217 | 240 | 263 | 297 | 324 | 351 | 394 | 426 | 480 | 537 | 596 | 639 | 721 | 777 | 852 | 961 | |
| Верига A | A | - | - | - | - | - | - | - | - | - | 324 | 383 | 426 | 480 | 426 | 426 | 480 | |
| Верига B | A | - | - | - | - | - | - | - | - | - | 213 | 213 | 213 | 240 | 351 | 426 | 480 | |
| Макс. пусков ток, стандартна единица**** (Un) | A | 334 | 357 | 401 | 435 | 468 | 495 | 590 | 622 | 662 | 1338 | 1631 | 1674 | 1767 | 1812 | 1887 | 2008 | |
| Верига A*** | A | - | - | - | - | - | - | - | - | - | 1125 | 1418 | 1461 | 1527 | 1461 | 1461 | 1527 | |
| Верига B*** | A | - | - | - | - | - | - | - | - | - | 1248 | 1248 | 1248 | 1287 | 1152 | 1461 | 1527 | |
| Макс. пусков ток/макс. консумиран ток, единица | 1.54 | 1.49 | 1.53 | 1.47 | 1.44 | 1.41 | 1.50 | 1.46 | 1.38 | 2.49 | 2.74 | 2.62 | 2.45 | 2.33 | 2.22 | 2.09 | ||
| Макс. пусков ток/макс. консумиран ток, верига A | - | - | - | - | - | - | - | - | - | 3.47 | 3.70 | 3.43 | 3.18 | 3.43 | 3.43 | 3.18 | ||
| Макс. пусков ток/макс. консумиран ток, верига B | - | - | - | - | - | - | - | - | - | 5.86 | 5.86 | 5.86 | 5.36 | 3.28 | 3.43 | 3.18 | ||
| Макс. пусков ток - старт с намален ток (Un) **** | A | std. | std. | std. | std. | std. | std. | std. | std. | std. | 878 | 955 | 998 | 1102 | 1136 | 1211 | 1343 | |
| Верига A | A | std. | std. | std. | std. | std. | std. | std. | std. | std. | 665 | 742 | 785 | 862 | 785 | 785 | 862 | |
| Верига B | A | std. | std. | std. | std. | std. | std. | std. | std. | std. | 572 | 572 | 572 | 622 | 692 | 785 | 862 | |
| Макс. пусков ток - старт с намален ток/ макс. консумиран ток, единица | std. | std. | std. | std. | std. | std. | std. | std. | std. | 1.64 | 1.60 | 1.56 | 1.53 | 1.46 | 1.42 | 1.40 | ||
| Верига A | std. | std. | std. | std. | std. | std. | std. | std. | std. | 2.05 | 1.94 | 1.84 | 1.79 | 1.84 | 1.84 | 1.79 | ||
| Верига B | std. | std. | std. | std. | std. | std. | std. | std. | std. | 2.69 | 2.69 | 2.69 | 2.39 | 1.97 | 1.84 | 1.79 | ||
| Трифазен ток на късо съединение | kA | 25 | 25 | 25 | 25 | 25 | 25 | 25 | 25 | 25 | N/A | N/A | N/A | N/A | N/A | N/A | N/A | |
| Верига A | kA | - | - | - | - | - | - | - | - | - | 25 | 25 | 25 | 25 | 25 | 25 | 25 | |
| Верига B | kA | - | - | - | - | - | - | - | - | - | 25 | 25 | 25 | 25 | 25 | 25 | 25 | |
| Капацитет на готовност на клиента, единица или верига A, за връзки на изпарителна водна помпа† | kW | 4 | 4 | 4 | 5.5 | 5.5 | 5.5 | 7.5 | 7.5 | 7.5 | 7.5 | 9 | 9 | 9 | 15 | 15 | 15 | |
* Стандартни условия на Eurovent: Температура на водата на входа/изхода на изпарителя 12°C и 7°C. Температура на външния въздух 35°C.
** Консумирана мощност, компресор и вентилатор, при работни граници на агрегата (температура на водата на входа/изхода на изпарителя = 15°C/10°C, температура на външния въздух = 46°C) и номинално напрежение 400 V (данни, посочени на табелката на агрегата).
*** Максимален работен ток на агрегата при максимална консумирана мощност на агрегата.
**** Максимален моментен пусков ток (максимален работен ток на най-малкия(те) компресор(и) + ток на вентилатора + ток на блокиран ротор или намален пусков ток на най-големия компресор).
† Ток и консумирана мощност не са включени в горните стойности
N/A Не е налично
Компресори
| Референтен номер | Размер | I ном. | MHA | LRA | LRA (Y) | LRA (S) 1 cp. | LRA (S) 2 cp. |
| 06NA2146S7N | 39 | 70 | 95 | 605 | 191 | 220 | - |
| 06NA2174S7N | 46 | 90 | 120 | 715 | 226 | 260 | - |
| 06NA2209S7N | 56 | 113 | 145 | 856 | 270 | 330 | 420 |
| 06NA2250S7N | 66 | 130 | 175 | 960 | 303 | 380 | 500 |
| 06NA2300S5N | 80 | 156 | 210 | 1226 | 387 | 445 | 550 |
| 06NA2300S5E | 80+ | 174 | 240 | 1265 | 400 | 460 | 600 |
Легенда:
| 06NA | Компресор за агрегати с въздушно охлаждане |
| N | Неикономичен компресор |
| E | Икономичен компресор |
| INOM | Среден консумиран ток на компресора при условия на Eurovent |
| MHA | Ток на задържане (максимален работен ток) при 360 V |
| LRA | Ток на блокиран ротор при директен старт |
| LRA (Y) | Ток на блокиран ротор при намален ток (режим на стартиране звезда/триъгълник) |
| LRA (S) 1 cp. | Стартиране с намален ток с електронен стартер (максимална продължителност на стартиране 3 секунди) за един компресор на верига |
| LRA (S) 2 cp. | Стартиране с намален ток с електронен стартер (максимална продължителност на стартиране 3 секунди) за два компресора на верига |
ДАННИ ЗА ПРИЛОЖЕНИЕТО
Работен обхват на агрегата
| Изпарител (Evaporator) | Минимум (Minimum) | Максимум (Maximum) | |
| Температура на входящата вода в изпарителя | °C | 6.8* | 21 |
| Температура на изходящата вода от изпарителя | °C | 4** | 15 |
| Кондензатор (с водно охлаждане) (Condenser (water-cooled)) | Минимум (Minimum) | Максимум (Maximum) | |
| Температура на входящата вода в кондензатора | °C | 20*** | 42 |
| Температура на изходящата вода от кондензатора | °C | 25 | 45 |
| Външна температура на околната среда при работа 30HXC | °C | 6 | 40 |
| Кондензатор (с въздушно охлаждане) (Condenser (air-cooled)) | Минимум (Minimum) | Максимум (Maximum) | |
| Външна температура на околната среда при работа | °C | 0 | 46 |
| Налично статично налягане | kPa | 0 |
Бележки: (Notes:)
* За приложения, изискващи работа при температура под 6.8°C, се свържете с Carrier s.a. за избор на агрегат, използвайки електронния каталог на Carrier.
** За приложения, изискващи работа при температура под 4°C, агрегатите изискват използването на антифриз.
*** Агрегатите с водно охлаждане (30HXC), работещи при пълно натоварване и под 20°C температура на входящата вода в кондензатора, изискват използването на контрол на налягането на главата с аналогови водни контролни клапани (вижте параграфа за контрол на налягането на главата).
В временни режими на работа (стартиране и при частично натоварване) агрегатът може да работи с температура на входящия въздух в кондензатора от 13°C.
Минимален дебит на охладена вода
Минималният дебит на охладена вода е показан в таблицата на следващата страница. Ако дебитът е по-малък от този, дебитът на изпарителя може да бъде рециркулиран, както е показано на диаграмата. Температурата на сместа, напускаща изпарителя, никога не трябва да бъде с по-малко от 2.8 K по-ниска от температурата на входящата охладена вода.

ЗА МИНИМАЛЕН ДЕБИТ НА ОХЛАДЕНА ВОДА
Максимален дебит на охладена вода
Максималният дебит на охладена вода е ограничен от максимално допустимата загуба на налягане в изпарителя. Той е посочен в таблицата на следващата страница. Ако дебитът надвишава максималната стойност, са възможни две решения:
- Изберете нестандартен изпарител с един воден проход по-малко, което ще позволи по-висок максимален дебит на водата.
- Заобиколете изпарителя, както е показано на диаграмата, за да получите по-голяма температурна разлика с по-нисък дебит на изпарителя.

ЗА МАКСИМАЛЕН ДЕБИТ НА ОХЛАДЕНА ВОДА
Изпарител с променлив дебит
Изпарител с променлив дебит може да се използва в стандартни охладители 30HXC и 30GX. Охладителите поддържат постоянна температура на изходящата вода при всички условия на дебит. За да се случи това, минималният дебит трябва да бъде по-висок от минималния дебит, посочен в таблицата с допустими дебити, и не трябва да се променя с повече от 10% на минута. Ако дебитът се променя по-бързо, системата трябва да съдържа минимум 6.5 литра вода на kW вместо 3.25 l/kW.
Минимален обем вода в системата
Независимо от системата, минималният капацитет на водния контур се дава от формулата:
Капацитет (Capacity) = Cap (kW) x N Литра (Liters)
| Приложение (Application) | N |
| Нормална климатизация (Normal air conditioning) | 3.25 |
| Охлаждане от процесен тип (Process type cooling) | 6.5 |
Където Cap е номиналният охладителен капацитет на системата (kW) при номиналните работни условия на инсталацията.
Този обем е необходим за стабилна работа и прецизен контрол на температурата.
Често е необходимо да се добави буферен воден резервоар към веригата, за да се постигне необходимия обем. Самият резервоар трябва да бъде вътрешно преграден, за да се осигури правилно смесване на течността (вода или саламура). Вижте примерите по-долу.
ЗАБЕЛЕЖКА (NOTE): Компресорът не трябва да се рестартира повече от 6 пъти за един час.


Дебит на охладителя (l/s)
| 30HXC | Min.* | Max.** | ||
| 080-090 | 5.7 | 22.7 | ||
| 100 | 6.0 | 24.1 | ||
| 110 | 6.9 | 27.5 | ||
| 120-130 | 8.3 | 33.0 | ||
| 140-155 | 10.0 | 39.5 | ||
| 175-190 | 10.7 | 42.7 | ||
| 200 | 13.4 | 53.7 | ||
| 230 | 13.4 | 60.6 | ||
| 260-285 | 17.0 | 68.1 | ||
| 310 | 19.4 | 77.8 | ||
| 345-375 | 21.3 | 85.3 | ||
| 30GX | Min.* | Max.** | ||
| 082 | 5.7 | 22.7 | ||
| 092-102 | 6.0 | 24.1 | ||
| 112-122 | 6.9 | 27.5 | ||
| 132 | 8.4 | 33.7 | ||
| 152-162 | 10.0 | 39.9 | ||
| 182 | 10.7 | 42.7 | ||
| 207-227 | 13.4 | 53.7 | ||
| 247 | 15.1 | 60.6 | ||
| 267 | 17.0 | 68.1 | ||
| 298 | 19.4 | 77.8 | ||
| 328-358 | 21.3 | 85.3 | ||
* Въз основа на скорост на водата от 0.9 m/s.
** Въз основа на скорост на водата от 3.6 m/s.
Дебит на кондензатора (l/s)
| 30HXC | Min.* Closed loop | Open loop | Max.** |
| 080-110 | 2.5 | 7.5 | 29.9 |
| 120-130 | 3.1 | 9.3 | 37.3 |
| 140-155 | 3.8 | 11.4 | 45.5 |
| 175-190 | 4.6 | 13.8 | 55.2 |
| 200 | 5.0 | 14.9 | 59.6 |
| 230-285 | 6.7 | 20.1 | 80.3 |
| 310-375 | 7.3 | 22.0 | 88.0 |
* Въз основа на скорост на водата от 0.3 m/s в затворен цикъл и 0.9 m/s в отворен цикъл.
** Въз основа на скорост на водата от 3.6 m/s
Крива на спада на налягането на изпарителя

- 30HXC 080-090/30GX 082
- 30HXC 100/30GX 092-102
- 30HXC 110/30GX 112-122
- 30GX 132
- 30HXC 120-130
- 30HXC 140-155/30GX 152-162
- 30HXC 175-190/30GX 182
- 30HXC 200/30GX 207-227
- 30HXC 230/30GX 247
- 30HXC 260-285/30GX 267
- 30HXC 310/30GX 298
- 30HXC 345-375/30GX 328-358
Крива на спада на налягането на кондензатора

- 30HXC 080-090-100-110
- 30HXC 120-130
- 30HXC 140-155
- 30HXC 175-190
- 30HXC 200
- 30HXC 230-260-285
- 30HXC 310-345-375
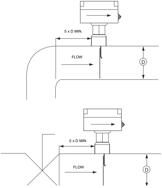
Контролери на потока
Превключвател на потока на охладителя и блокировка на помпата за охладена вода
Задължително е да се инсталира превключвател на потока на охладителя и да се свърже блокировка на помпата за охладена вода на 30HXC и 30GX. Неспазването на тази инструкция ще анулира гаранцията на Carrier.
Контролерът на превключвателя на потока на охладителя е фабрично доставен и свързан на агрегатите 30HXC и 30GX.
Следвайте инструкциите на производителя за инсталиране.
Превключвателят на потока може да бъде монтиран в хоризонтална тръба или във вертикална тръба с възходящ поток на течност. Не трябва да се използва, когато потокът на течност е надолу.
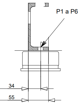
Монтирайте в участък от тръбата, където има прав участък от поне пет диаметъра на тръбата от всяка страна на превключвателя на потока. Не поставяйте в близост до вентили, колена или отвори. Лопатката никога не трябва да докосва тръбата или каквото и да е ограничение в тръбата. Завийте превключвателя на потока в положение, така че плоската част на лопатката да е под прав ъгъл спрямо потока. Стрелките на капака и в долната част, вътре в корпуса, трябва да сочат в посоката на потока. Превключвателят трябва да бъде монтиран така, че клемите да са достъпни за лесно окабеляване.
Клеми 34 и 35 са предвидени за полева инсталация на блокировка на помпата за охладена вода (спомагателен контакт на контактора на помпата за охладена вода).
(Тръбна връзка: 1" NPT)

Превключвател на потока на кондензатора (30HXC)
Превключвателят на потока на кондензатора е устройство, което се инсталира на място.
ИНСТАЛАЦИЯ
Проверка на полученото оборудване
- Проверете уреда за повреди или липсващи части. Ако бъде открита повреда или ако доставката е непълна, незабавно подайте рекламация в транспортната компания.
- Уверете се, че полученият уред е поръчаният. Сравнете данните на табелката с поръчката.
- Уверете се, че всички аксесоари, поръчани за инсталиране на място, са доставени, пълни и неповредени.
- Не съхранявайте уредите на място, изложено на атмосферни влияния, поради чувствителния контролен механизъм и електронните устройства.
Преместване и позициониране на уреда
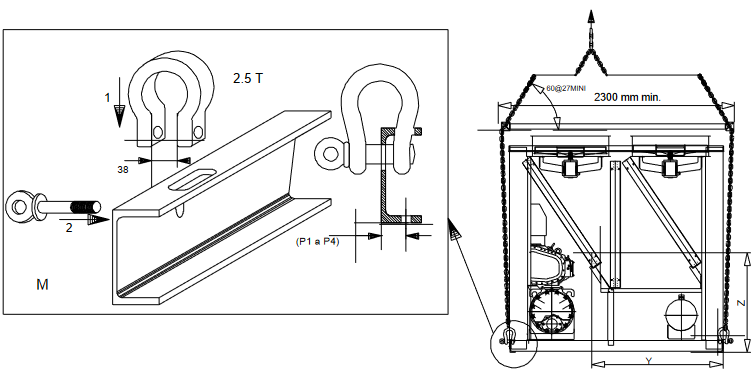
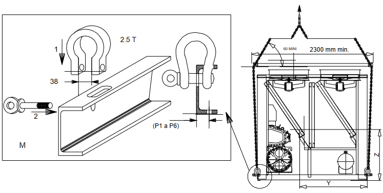
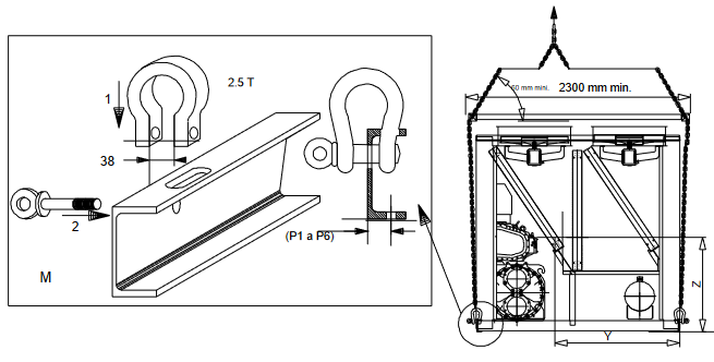
Преместване
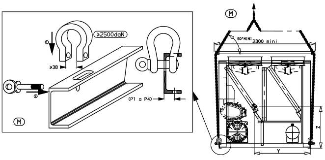
Не отстранявайте плъзгачите, палетите или защитната опаковка, докато уредът не е в крайното си положение. Преместете охладителя с помощта на тръби или ролки или го повдигнете, като използвате сапани с правилния капацитет.
(30HXC)
Използвайте сапани само в определените точки за повдигане, които са маркирани на уреда, на върха на топлообменника на охладителя. Закрепването от дъното на топлообменника ще доведе до небезопасно повдигане на уреда. Може да възникне нараняване или повреда на уреда. Следвайте инструкциите за такелаж, дадени на сертифицирания чертеж на размерите, доставен с уреда.
Позициониране
Винаги се обръщайте към главата "Размери и разстояния", за да се уверите, че има достатъчно място за всички връзки и сервизни операции. За координатите на центъра на тежестта, положението на монтажните отвори на уреда и точките на разпределение на теглото вижте сертифицирания чертеж на размерите, доставен с уреда.
Препоръчваме тези охладители да бъдат инсталирани или в мазе, или на нивото на земята. Ако трябва да бъде инсталиран над нивото на земята, първо проверете дали допустимото натоварване на пода е достатъчно и дали подът е достатъчно здрав и равен. Ако е необходимо, подсилете и нивелирайте пода.
След като охладителят е на крайното си място, отстранете плъзгачите и другите устройства, използвани за подпомагане на преместването му. Нивелирайте уреда с помощта на нивелир и закрепете уреда към пода или цокъла. Работата на тези уреди може да бъде нарушена, ако не са нивелирани и не са здраво закрепени към монтажите си. Ако е необходимо, използвайте изолационни подложки под уреда, за да подпомогнете изолацията на вибрациите.
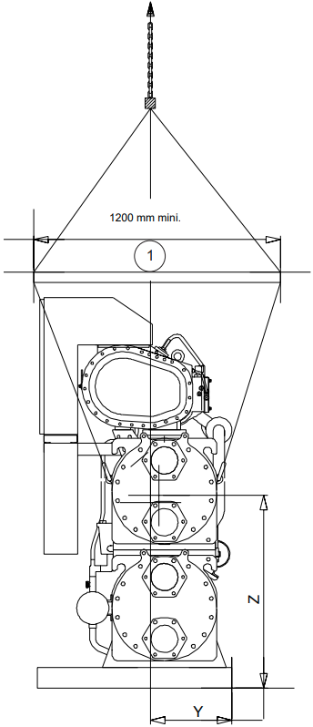
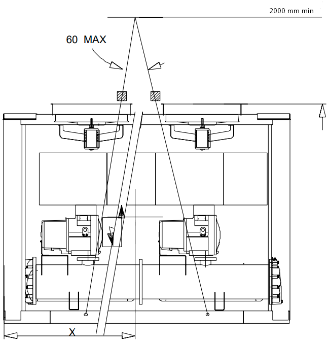
ИНСТРУКЦИИ ЗА ПОВДИГАНЕ
30HXC 080-190
Тази диаграма е показана само за информация. Вижте "сертифицирани чертежи".

- С ИЗКЛЮЧЕНИЕ НА 30HXC 190
X mm Y mm Z mm 30HXC080
30HXC090
30HXC1001345 402 903 30HXC110 1368 397 935 30HXC120
30HXC130
30HXC140
30HXC1551731 392 879 30HXC175 1703 386 947 30HXC190 1705 398 955


ЗАБЕЛЕЖКА
Когато всички операции по повдигане и позициониране приключат, се препоръчва да се коригират всички повърхности, където боята е отстранена на ушите за повдигане.
30HXC 200-285
Тази диаграма е показана само за информация. Вижте "сертифицирани чертежи".


30HXC 310-375


| X mm | Y mm | Z mm | |
| 30HXC310 | 2195 | 425 | 1085 |
| 30HXC345 | 2195 | 425 | 1085 |
| 30HXC375 | 2205 | 435 | 1025 |
ЗАБЕЛЕЖКА
Когато всички операции по повдигане и позициониране приключат, се препоръчва да се коригират всички повърхности, където боята е отстранена на ушите за повдигане.
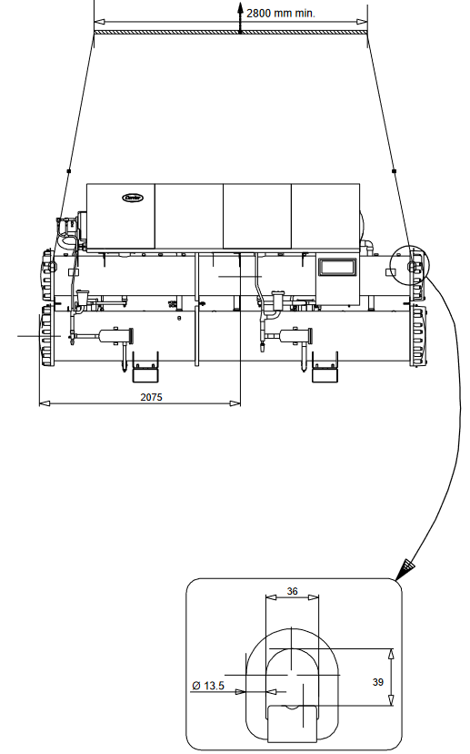
30GX 082-162
Тази диаграма е показана само за информация. Вижте "сертифицирани чертежи".



| X mm | Y mm | Z mm | PTkg | |
| 30GX082 | 1440 | 1460 | 900 | 3115 |
| 30GX092 | 1440 | 1460 | 900 | 3156 |
| 30GX102 | 1440 | 1460 | 900 | 3170 |
| 30GX112 | 1650 | 1460 | 900 | 3574 |
| 30GX122 | 1650 | 1460 | 900 | 3527 |
| 30GX132 | 1650 | 1460 | 900 | 3634 |
| 30GX152 | 2155 | 1430 | 900 | 3938 |
| 30GX162 | 2155 | 1430 | 900 | 3954 |
30GX 182



| X mm | Y mm | Z mm | PTkg | |
| 30GX182 | 3030 | 1370 | 875 | 4853 |
ЗАБЕЛЕЖКА
Когато всички операции по повдигане и позициониране приключат, се препоръчва да се коригират всички повърхности, където боята е отстранена на ухото за повдигане
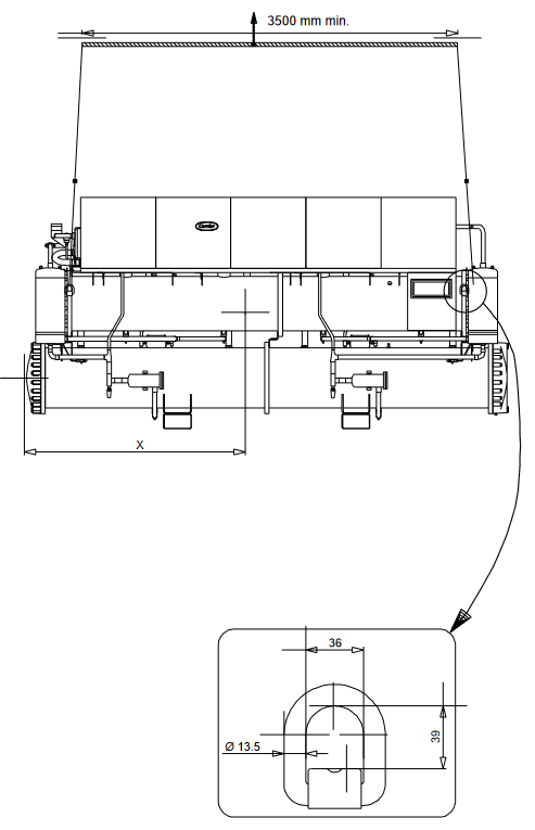
30GX 207-267
Тази диаграма е показана само за информация. Вижте "сертифицирани чертежи".



| X mm | Y mm | Z mm | PTkg | |
| 30GX207 | 2870 | 1440 | 890 | 5536 |
| 30GX227 | 2870 | 1440 | 890 | 5572 |
| 30GX247 | 3320 | 1430 | 927 | 6131 |
| 30GX267 | 3300 | 1420 | 886 | 6363 |
30GX 298-358



| X mm | Y mm | Z mm | PTkg | |
| 30GX298 | 3630 | 1420 | 890 | 7353 |
| 30GX328 | 4360 | 1455 | 920 | 7840 |
| 30GX358 | 4360 | 1445 | 930 | 8045 |
ЗАБЕЛЕЖКА
Когато всички операции по повдигане и позициониране приключат, се препоръчва да се коригират всички повърхности, където боята е отстранена на ушите за повдигане.
Тръбни връзки
Вижте сертифицираните чертежи на размерите за размерите и позициите на всички връзки за вход и изход на вода. Водните тръби не трябва да предават никаква радиална или аксиална сила на топлообменниците или каквато и да е вибрация на тръбопровода или сградата.
Водоснабдяването трябва да бъде анализирано и да бъдат вградени подходящи филтриращи, обработващи, контролни устройства, изолационни и обезвъздушаващи клапани и вериги, ако е необходимо. Консултирайте се със специалист по обработка на вода или с подходяща литература по темата.
Предпазни мерки при работа
Водната верига трябва да бъде проектирана така, че да има най-малък брой колена и хоризонтални тръбни трасета на различни нива. Трябва да се направят следните основни проверки (вижте също илюстрацията на типична хидравлична верига по-долу).
- Обърнете внимание на входовете и изходите за вода на топлообменниците.
- Инсталирайте ръчни или автоматични клапани за обезвъздушаване във всички високи точки на водната верига.
- Използвайте разширителен съд или разширителен/предпазен клапан, за да поддържате налягането в системата.
- Инсталирайте водни термометри и манометри както във входящите, така и в изходящите водни връзки близо до изпарителя.
- Инсталирайте дренажни клапани във всички ниски точки, за да позволите източването на цялата верига. Свържете спирателен кран в дренажната линия, преди да пуснете охладителя в експлоатация.
- Инсталирайте спирателни кранове и манометри, близо до изпарителя, във входящите и изходящите водни линии.
- Инсталирайте превключвател за потока на охладителя.
- Използвайте гъвкави връзки, за да намалите предаването на вибрации към тръбопровода.
- Изолирайте всички тръбопроводи, след като ги тествате за течове, както за да намалите топлинните течове, така и за да предотвратите кондензация.
- Покрийте изолацията с пароизолация.
Връзки на изпарителя и кондензатора
Изпарителят и кондензаторът са от многотръбен тип "тръба в кожух" със свалящи се водни кутии, за да се улесни почистването на тръбите.
Преди да направите водните връзки, затегнете болтовете в двете глави до по-ниския въртящ момент, показан, следвайки описания метод. Затегнете по двойки и в последователността, посочена в зависимост от размера на болта (вижте таблицата), като използвате стойност на въртящия момент в долния край на дадения диапазон.
Отстранете фабрично доставения плосък фланец от водната кутия, преди да заварите тръбите към фланеца. Ако не отстраните фланеца, може да повредите сензорите и изолацията.
ЗАБЕЛЕЖКА
Препоръчваме да източите системата и да разкачите тръбопровода, за да се уверите, че болтовете на главите, към които е свързан тръбопроводът, са затегнати правилно и равномерно.
Защита от замръзване
Защита на изпарителя и кондензатора с водно охлаждане
Ако охладителят или водопроводът се намират в зона, където температурата на околната среда може да падне под 0°C, се препоръчва да се добави антифриз, за да се защити уредът и водопроводът до температура 8 K под най-ниската температура. Използвайте само антифризни разтвори, одобрени за работа с топлообменници. Ако системата не е защитена с антифризен разтвор и няма да се използва по време на условия на замръзване, източването на охладителя и външния тръбопровод е задължително. Повредите, причинени от замръзване, не се покриват от гаранцията.
Последователност на затягане на водната кутия

Легенда
- Последователност 1: 1 2 3 4
Последователност 2: 5 6 7 8
Последователност 3: 9 10 11 12 - Въртящ момент на затягане
Размер на болта M16 - 171 - 210 Nm
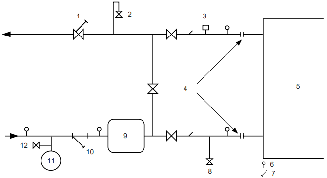
Типична схема на хидравлична верига

Легенда
- Контролен клапан
- Обезвъздушител
- Превключвател на потока
- Гъвкава връзка
- Топлообменник
- Отвор за налягане
- Втулка на термостата
- Дренаж
- Буферен резервоар
- Филтър
- Разширителен съд
- Клапан за пълнене
ЕЛЕКТРИЧЕСКИ ХАРАКТЕРИСТИКИ
- 30HXC 080-190 и 30GX 082-182 имат само един прекъсвач/изолиращ превключвател за захранване.
- 30HXC 200-375 и 30GX 207-358 имат два прекъсвача/изолиращи превключвателя за захранване.
- Контролната кутия включва следното като стандарт:
- Стартери и устройства за защита на мотора за всеки компресор и вентилаторите
- Контролни компоненти
- Връзки на място:
Всички връзки към електрическата мрежа и електрическата инсталация трябва да бъдат извършени в съответствие с директивите, приложими за обекта. - 30HXC и 30GX са проектирани да улеснят спазването на тези директиви. Инженерството на електрическото оборудване за 30HXC и 30GX отчита европейския стандарт EN 60204-1 (безопасност на машините - електрическо оборудване на машини - Част 1: общи правила).
Стандартът EN 60204-1 е добро средство за отговор на изискванията на Директивата за машините § 1.5.1. Нормативната препоръка IEC 364, е общопризната като отговаряща на изискванията на правилника за инсталиране.
Приложение B на стандарт EN 60204-1 може да се използва за описание на електрическите характеристики, при които работят машините.
30HXC
- Условията на работа за стандартен 30HXC са описани по-долу:
- Условия на околната среда(1). Класификацията на околната среда е описана в стандарт IEC 364 § 3:
- Диапазон на температурата на околната среда: + 6°C до + 40°C, класификация AA4
- Диапазон на влажност (без кондензация)
50% rh при 40°C
90% rh при 20°C - Надморска височина - 2000 m(1)
- За вътрешна инсталация
- Наличие на вода: класификация AD2(1) (възможност за водни капки)
- Наличие на твърди частици: класификация AE2(1) (наличие на незначителни частици)
- Наличие на корозиви и замърсители, класификация AF1 (пренебрежимо)
- Вибрации, удар: класификация AG2, AH2 Компетентност на персонала: класификация BA4(1) (персонал, квалифициран в съответствие с IEC 364).
- Условия на околната среда(1). Класификацията на околната среда е описана в стандарт IEC 364 § 3:
(1) Стандартът за защита, изискван по отношение на тази класификация, е IP21B (в съответствие с референтния документ IEC 529). Всички 30HXC имат стандарт за защита IP23C и следователно изпълняват това изискване за защита.
30GX
- Условията на работа за 30GX са описани по-долу:
- Условия на околната среда(2). Класификацията на околната среда е описана в стандарт EN 60721:
- За външна инсталация(2)
- Диапазон на температурата на околната среда: - 18°C до + 46°C, класификация 4K3(2)
- Надморска височина 2000 m(2)
- Наличие на твърди частици: класификация 4S2 (наличие на незначителни частици)
- Наличие на корозиви и замърсители, класификация 4C2 (пренебрежимо)
- Вибрации, удар: класификация 4M2
- Условия на околната среда(2). Класификацията на околната среда е описана в стандарт EN 60721:
Компетентност на персонала: класификация BA4(2) (персонал, квалифициран в съответствие с IEC 364).
(2) Стандартът за защита, изискван по отношение на тази класификация, е IP43BW (в съответствие с референтния документ IEC 529). Всички 30GX имат стандарт за защита IP45CW и следователно изпълняват това изискване за защита.
30HXC/GX
- Колебание в честотата на захранването: ± 2 Hz
- Защитата от свръхток за проводниците на захранването не се доставя с устройството.
- Фабрично монтираният прекъсвач/изолиращ превключвател е изолатор тип "a". (EN60204-1 § 5.3.2).
ЗАБЕЛЕЖКА: Ако конкретни аспекти на инсталацията изискват характеристики, различни от изброените по-горе (или характеристики, които не са посочени тук), свържете се с вашия представител на Carrier.
Захранване
Захранването трябва да съответства на спецификацията на табелката на охладителя. Захранващото напрежение трябва да бъде в рамките на диапазона, посочен в таблицата с електрически данни.
За връзки вижте електрическите схеми.
Работата на охладителя с неправилно захранващо напрежение или прекомерен фазов дисбаланс представлява злоупотреба, която ще анулира гаранцията на Carrier. Ако фазовият дисбаланс надвишава 2% за напрежение или 10% за ток, незабавно се свържете с местния доставчик на електроенергия и се уверете, че охладителят не е включен, докато не бъдат предприети коригиращи мерки.
Дисбаланс на фазите на напрежението (%):
100 x макс. отклонение от средното напрежение
Средно напрежение
Пример:
При захранване 400 V - 3 ph - 50 Hz, отделните фазови напрежения са измерени да бъдат:
AB = 406 V; BC = 399; AC = 394 V
| Средно напрежение | = (406 + 399 + 394)/3 = 1199/3 |
| = 399.7 да кажем 400 V |
Изчислете максималното отклонение от средната стойност 400 V:
(AB) = 406 - 400 = 6
(BC) = 400 - 399 = 1
(CA) = 400 - 394 = 6

Максималното отклонение от средната стойност е 6 V. Най-голямото процентно отклонение е:
100 x 6/400 = 1.5 %
Това е по-малко от допустимите 2% и следователно е приемливо.
ПРЕПОРЪЧИТЕЛНИ СЕЧЕНИЯ НА ПРОВОДНИЦИТЕ
Определянето на размера на проводниците е отговорност на инсталатора и зависи от характеристиките и разпоредбите, приложими за всяко място на инсталиране. Следващото трябва да се използва само като насока и по никакъв начин не прави Carrier отговорен. След като оразмеряването на проводниците е завършено, като се използва сертифицираният чертеж с размери, инсталаторът трябва да осигури лесно свързване и да определи всички необходими модификации на място.
Връзките, предоставени като стандарт за полевите захранващи кабели към общия прекъсвач/изолатор, са проектирани за броя и вида на проводниците, изброени в таблицата по-долу.
Изчисленията се основават на максималния ток на машината (вижте таблиците с електрически данни).
За проектирането се използват следните стандартизирани методи за инсталиране, в съответствие с IEC 364, таблица 52C:
- За 30HX агрегати, инсталирани вътре в сградата: No.13: перфориран хоризонтален кабелен канал и No. 41: затворен канал.
- За 30GX агрегати, инсталирани извън сградата: No.17: окачени въздушни линии и No. 61: заровен канал с коефициент на намаляване на мощността 20.
Изчислението се основава на PVC или XLPE изолирани кабели с медна или алуминиева сърцевина. Максималната температура е 40°C за 30HX агрегати и 46°C за 30GX агрегати.
Определената дължина на проводника ограничава спада на напрежението до < 5%.
| Unit | Min. (mm2) by phase (Мин. (mm2) по фаза) | Wire type (Тип проводник) | L (m) | Max. (mm2) by phase (Макс. (mm2) по фаза) | Wire type (Тип проводник) | L (m) |
| 30HX 080 | 1 x 35 | XLPE Cu | 140 | 1 x 120 | PVC Al | 260 |
| 30HX 090 | 1 x 50 | XLPE Cu | 160 | 1 x 120 | PVC Al | 260 |
| 30HX 100 | 1 x 50 | XLPE Cu | 160 | 1 x 95 | XLPE Al | 195 |
| 30HX 110 | 1 x 70 | XLPE Cu | 170 | 1 x 120 | XLPE Al | 205 |
| 30HX 120/130 | 1 x 70 | XLPE Cu | 170 | 1 x 150 | XLPE Al | 210 |
| 30HX 140 | 1 x 95 | XLPE Cu | 180 | 1 x 185 | XLPE Al | 220 |
| 30HX 155 | 1 x 95 | XLPE Cu | 180 | 1 x 240 | XLPE Al | 225 |
| 30HX 175 | 1 x 120 | XLPE Cu | 185 | 1 x 240 | XLPE Al | 225 |
| 30HX 190 | 1 x150 | XLPE Cu | 190 | 2 x 95 | XLPE Al | 195 |
| 30HX 200 ckt A | 1 x 70 | XLPE Cu | 170 | 2 x120 | PVC Al | 325 |
| 30HX 230 ckt A | 1 x 95 | XLPE Cu | 180 | 2 x 120 | PVC Al | 325 |
| 30HX 260 ckt A | 1 x 120 | XLPE Cu | 185 | 1 x 240 | XLPE Al | 225 |
| 30HX 285 ckt A | 1 x 150 | XLPE Cu | 190 | 2 x 150 | XLPE Al | 265 |
| 30HX 200 ckt B | 1 x 35 | XLPE Cu | 140 | 1 x 95 | PVC Al | 250 |
| 30HX 230 ckt B | 1 x 35 | XLPE Cu | 140 | 1 x 120 | PVC Al | 260 |
| 30HX 260 ckt B | 1 x 35 | XLPE Cu | 140 | 1 x 120 | PVC Al | 260 |
| 30HX 285 ckt B | 1 x 50 | XLPE Cu | 160 | 2 x 70 | PVC Al | 285 |
| 30HX 310 ckt A & B | 1 x 95 | XLPE Cu | 180 | 1 x 240 | XLPE Al | 225 |
| 30HX 345 ckt A & B | 1 x 120 | XLPE Cu | 185 | 1 x 240 | XLPE Al | 225 |
| 30HX 375 ckt A & B | 1 x 150 | XLPE Cu | 190 | 2 x 150 | XLPE Al | 265 |
| 30GX 082 | 1 x 95 | XLPE Cu | 190 | 2 x 185 | PVC Al | 420 |
| 30GX 092 | 1 x 120 | XLPE Cu | 195 | 2 x 185 | PVC Al | 420 |
| 30GX 102 | 1 x 120 | XLPE Cu | 195 | 2 x 240 | PVC Al | 450 |
| 30GX 112 | 1 x 150 | XLPE Cu | 200 | 2 x 150 | XLPE Al | 300 |
| 30GX 122 | 1 x 185 | XLPE Cu | 205 | 2 x 185 | XLPE Al | 315 |
| 30GX 132 | 1 x 185 | XLPE Cu | 205 | 2 x 240 | XLPE Al | 330 |
| 30GX 152 | 1 x 240 | XLPE Cu | 205 | 3x 185 | XLPE CU | 430 |
| 30GX 162 | 2 x 95 | XLPE Cu | 190 | 3x 240 | XLPE CU | 440 |
| 30GX 182 | 2 x 120 | XLPE Cu | 200 | 3x 240 | XLPE CU | 440 |
| 30GX 207 ckt A | 1 x 185 | XLPE Cu | 205 | 3x 185 | XLPE Al | 445 |
| 30GX 227 ckt A | 1 x 240 | XLPE Cu | 205 | 3x 240 | XLPE Al | 470 |
| 30GX 247/298/328 ckt A | 2 x 120 | XLPE Cu | 225 | 3x 185 | XLPE CU | 490 |
| 30HX 267/358 ckt A | 2 x 150 | XLPE Cu | 230 | 3x 240 | XLPE CU | 505 |
| 30GX 207/227/247 ckt B | 1 x 95 | XLPE Cu | 190 | 2 x 240 | PVC Al | 560 |
| 30HX 267 ckt B | 1 x 120 | XLPE Cu | 200 | 2 x 185 | XLPE AL | 395 |
| 30GX 298 ckt B | 1 x 185 | XLPE Cu | 205 | 3x 240 | XLPE AL | 470 |
| 30GX 328 ckt B | 2 x 120 | XLPE Cu | 225 | 3x 185 | XLPE CU | 490 |
| 30GX 358 ckt B | 2 x 150 | XLPE Cu | 230 | 3x 240 | XLPE CU | 505 |
Преди свързването на главните захранващи кабели (L1 - L2 - L3) към клемореда, е наложително да се провери правилният ред на 3-те фази, преди да се пристъпи към свързването към клемореда или главния прекъсвач/изолатор.
Окабеляване на полевото управление
Обърнете се към Controls IOM и сертифицираната схема на окабеляване, предоставена с устройството, за окабеляване на полевото управление на следните функции:
- Блокировка на изпарителната помпа (задължително)
- Дистанционен превключвател за включване/изключване
- Превключвател за поток на кондензатора (доставя се на място, само 30HXC)
- Дистанционен превключвател за отопление/охлаждане
- Външен превключвател 1 за ограничаване на търсенето
- Дистанционна двойна зададена точка
- Отчитане на аларми по верига
- Управление на изпарителната помпа
- Управление на кондензаторната помпа (само 30HXC)
- Дистанционно нулиране на зададената точка или нулиране на сензора за температура на външния въздух (0-10 V)
Препоръчителни сечения на проводниците за устройства с високи температури на кондензация (400 V - 3 ph - 50 Hz)
| Устройство, опции 150 + 150A 400 V - 3 ph - 50 Hz | Мин. (mm2) на фаза | Тип проводник | L (m) | Макс. (mm2) на фаза | Тип проводник | L (m) |
| 30HXC 080 OPT. 150 | 1 x 50 | XLPE Cu | 150 | 2 x 70 | PVC Al | 230 |
| 30HXC 090 OPT. 150 | 1 x 70 | XLPE Cu | 160 | 2 x 95 | PVC Al | 260 |
| 30HXC 100 OPT. 150 | 1 x 70 | XLPE Cu | 160 | 2 x 95 | PVC Al | 250 |
| 30HXC 110 OPT. 150 | 1 x 95 | XLPE Cu | 170 | 2 x 120 | PVC Al | 265 |
| 30HXC 120 OPT. 150 | 1 x 120 | XLPE Cu | 180 | 2 x 120 | XLPE Al | 205 |
| 30HXC 130 OPT. 150 | 1 x 120 | XLPE Cu | 160 | 2 x 120 | XLPE Al | 210 |
| 30HXC 140 OPT. 150 | 1 x 150 | XLPE Cu | 175 | 2 x 120 | XLPE Al | 205 |
| 30HXC 155 OPT. 150 | 1 x 185 | XLPE Cu | 185 | 2 x 150 | XLPE Al | 215 |
| 30HXC 175 OPT. 150 | 1 x 240 | XLPE Cu | 185 | 2 x 150 | XLPE Al | 210 |
| 30HXC 190 OPT. 150 | 2 x 95 | XLPE Cu | 175 | 2 x 240 | XLPE Al | 220 |
| 30HXC 200 OPT. 150 circ. A | 1 x 120 | XLPE Cu | 170 | 2 x 150 | XLPE Al | 270 |
| 30HXC 230 OPT. 150 circ. A | 1 x 150 | XLPE Cu | 180 | 2 x 185 | XLPE Al | 270 |
| 30HXC 260 OPT. 150 circ. A | 1 x 185 | XLPE Cu | 180 | 2 x 240 | XLPE Al | 295 |
| 30HXC 285 OPT. 150 circ. A | 1 x 240 | XLPE Cu | 170 | 2 x 185 | XLPE Cu | 265 |
| 30HXC 310 OPT. 150 circ. A | 1 x 185 | XLPE Cu | 180 | 2 x 240 | XLPE Al | 300 |
| 30HXC 345 OPT. 150 circ. A | 1 x 185 | XLPE Cu | 170 | 2 x 240 | XLPE Al | 280 |
| 30HXC 375 OPT. 150 circ. A | 1 x 240 | XLPE Cu | 170 | 2 x 185 | XLPE Cu | 265 |
| 30HXC 200 OPT. 150 circ. B | 1 x 35 | XLPE Cu | 125 | 2 x 95 | PVC Al | 320 |
| 30HXC 230 OPT. 150 circ. B | 1 x 50 | XLPE Cu | 140 | 2 x 95 | PVC Al | 310 |
| 30HXC 260 OPT. 150 circ. B | 1 x 50 | XLPE Cu | 140 | 2 x 95 | PVC Al | 310 |
| 30HXC 285 OPT. 150 circ. B | 1 x 70 | XLPE Cu | 160 | 2 x 120 | PVC Al | 325 |
| 30HXC 310 OPT. 150 circ. B | 1 x 150 | XLPE Cu | 180 | 2 x 185 | XLPE Al | 275 |
| 30HXC 345 OPT. 150 circ. B | 1 x 185 | XLPE Cu | 185 | 2 x 240 | XLPE Al | 305 |
| 30HXC 375 OPT. 150 circ. B | 1 x 185 | XLPE Cu | 160 | 2 x 240 | XLPE Al | 280 |
ОСНОВНИ СИСТЕМНИ КОМПОНЕНТИ И ДАННИ ЗА РАБОТА
Предавателен двувинтов компресор
- 30HXC и 30GX агрегатите използват 06N предавателни двувинтови компресори
- 06NA се използват на 30GX (приложение за кондензация с въздушно охлаждане)
- 06NW се използват на 30HXC (приложение за кондензация с водно охлаждане)
- Номиналните капацитети варират от 39 до 80 тона. Използват се модели с и без икономия в зависимост от размера на агрегата 30HXC и 30GX.
Маслен филтър
Винтовият компресор 06N има маслен филтър, вграден в корпуса на компресора. Този филтър може да се сменя на място.
Хладилен агент
Винтовият компресор 06N е специално проектиран да се използва само в система R134 a.
Смазка
Винтовият компресор 06N е одобрен за употреба със следния лубрикант.
CARRIER MATERIAL SPEC PP 47-32
Соленоиден вентил за подаване на масло
Соленоидният вентил за подаване на масло е стандартен за компресора, за да изолира компресора от потока на масло, когато компресорът не работи.
Масленият соленоид може да се сменя на място.
Входящи и икономични екрани
За да се повиши надеждността на компресора, в смукателните и икономичните входове на компресора е вграден екран като стандартна функция.
Система за разтоварване
Винтовият компресор 06N има система за разтоварване, която е стандартна за всички компресори. Тази система за разтоварване се състои от две стъпки на разтоварване, които намаляват капацитета на компресора чрез пренасочване на частично компресиран газ обратно към смукателната страна.
Изпарител
Охладителите 30HXC и 30GX използват наводнен изпарител. Водата циркулира в тръбите, а хладилният агент е отвън в корпуса. Един съд се използва за обслужване и на двата хладилни кръга. Има централна тръбна решетка, която разделя двата хладилни кръга. Тръбите са медни с диаметър 3/4" с подобрена повърхност отвътре и отвън. Има само един воден кръг и в зависимост от размера на охладителя може да има два или три водни прохода. Сензор за нивото на по-студената течност осигурява оптимизиран контрол на потока.
В горната част на охладителя са разположени двете смукателни тръби, по една във всеки кръг. Всяка от тях има приварен фланец, а компресорът се монтира на фланеца.
Кондензатор и маслоотделител (30HXC)
Охладителят 30HXC използва съд, който е комбинация от кондензатор и маслоотделител. Той е монтиран под охладителя. Изходящият газ напуска компресора и преминава през външен шумозаглушител към маслоотделителя, който е горната част на съда. Той влиза в горната част на сепаратора, където маслото се отстранява, и след това се влива в долната част на съда, където газът се кондензира и преохлажда. Един съд се използва за обслужване и на двата хладилни кръга. Има централна тръбна решетка, която разделя двата хладилни кръга. Тръбите са медни с диаметър 3/4" или 1" с подобрена повърхност отвътре и отвън. Има само един воден кръг с два водни прохода.
Маслоотделител (30GX)
В агрегатите с въздушно охлаждане маслоотделителят е съд под налягане, който е монтиран под външните вертикални кондензаторни серпентини. Изходящият газ влиза в горната част на сепаратора, където голяма част от маслото се отделя и се оттича към дъното. След това газът преминава през телена мрежа, където останалото масло се отделя и се оттича към дъното.
Електронно разширително устройство (EXD)
Микропроцесорът управлява EXD чрез контролния модул EXV. EXD ще бъде или EXV, или Economizer (Икономизатор). Вътре в двете устройства има линеен задвижващ стъпков двигател. Течният хладилен агент под високо налягане влиза във вентила през дъното. Вътре в отвора има серия от калибрирани слотове. Когато хладилният агент преминава през отвора, налягането пада и хладилният агент преминава в двуфазно състояние (течност и пара). За да се контролира потокът на хладилния агент при различни работни условия, втулката се движи нагоре и надолу над отвора, като по този начин се променя ефективната площ на потока на разширителното устройство. Втулката се движи от линеен стъпков двигател. Стъпковият двигател се движи на стъпки и се управлява директно от процесорния модул. Когато стъпковият двигател се върти, движението се предава в линейно движение от водещия винт. Чрез стъпковия двигател и водещите винтове се получават 1500 дискретни стъпки на движение. Големият брой стъпки и дългият ход водят до много точен контрол на потока на хладилния агент. Всеки кръг има сензор за нивото на течността, монтиран вертикално в горната част на корпуса на охладителя. Сензорът за нивото се състои от малък електрически нагревател и три термистора, свързани последователно, разположени на различна височина вътре в тялото на кладенеца. Нагревателят е проектиран така, че термисторите да отчитат приблизително 93,3°C в сух въздух. Когато нивото на хладилния агент се повиши в охладителя, съпротивлението на най-близкия(те) термистор(и) ще се промени значително. Тази голяма разлика в съпротивлението позволява на управлението да поддържа точно определено ниво. Сензорът за нивото следи нивото на течния хладилен агент в охладителя и изпраща тази информация към PSIO-1. При първоначално стартиране позицията на EXV е нулева. След това микропроцесорът следи точно позицията на вентила, за да използва тази информация като вход за другите функции за управление. Той прави това, като инициализира EXV при стартиране. Процесорът изпраща достатъчно затварящи импулси към вентила, за да го премести от напълно отворено в напълно затворено положение, след което нулира брояча на позицията. От този момент нататък, до инициализацията, процесорът брои общия брой отворени и затворени стъпки, които е изпратил към всеки вентил.
Икономизатор
Икономизатори са инсталирани на 30HXC 190, 285 и 375 и 30GX 182, 267 и 358.
Икономизаторът подобрява както капацитета, така и ефективността на охладителя, както и осигурява охлаждане на двигателя на компресора. Вътре в икономизатора има както линеен EXV стъпков двигател, така и поплавък. EXV се управлява от PIC, за да поддържа желаното ниво на течността в охладителя (както се прави за охладители NonEconomized). Поплавъкът поддържа ниво на течността в дъното на икономизатора. Течният хладилен агент се подава от кондензатора към дъното на икономизатора. Когато хладилният агент преминава през EXV, налягането му се намалява до междинно ниво от около 500 kPa. Това налягане се поддържа вътре в корпуса на икономизатора. След това хладилният агент преминава през поплавъка, налягането му се намалява допълнително до малко над налягането в охладителя. Увеличението на производителността се реализира, когато част от хладилния агент, преминаващ през EXV, се изпарява, като допълнително преохлажда течността, която се поддържа в дъното на икономизатора. Това увеличение на преохлаждането осигурява допълнителен капацитет. Тъй като не е необходима допълнителна мощност за постигане на това, ефективността на машината също се подобрява. Парата, която се изпарява, ще се издигне до икономизатора, където преминава към компресора и се използва, когато е необходимо, за осигуряване на охлаждане на двигателя. След като премине над намотките на двигателя, хладилният агент отново влиза в цикъла в междинен порт в цикъла на компресиране.
Маслени помпи
Винтовите охладители 30GX/HXC използват по една външно монтирана маслена помпа за предварително смазване на всеки кръг. Тази помпа се задейства като част от последователността на стартиране.
ВНИМАНИЕ:
Работна температура на серпентината може да достигне 80°C. При определени временни условия (особено по време на стартиране при ниска външна температура или ниска температура на кондензаторния контур) маслената помпа може да бъде активирана отново.
При агрегатите 30GX помпите са монтирани към основните релси от страната на маслоотделителя на агрегата. Помпите са монтирани към скоба на кондензаторите на агрегатите 30HXC. Когато е необходимо да се стартира кръг, управлението първо ще задейства маслената помпа, така че компресорът да стартира с правилно смазване. Ако помпата е създала достатъчно налягане на маслото, компресорът ще бъде позволено да стартира. След като компресорът стартира, маслената помпа ще бъде изключена. Ако помпата не е успяла да създаде достатъчно налягане на маслото, управлението ще генерира аларма.
Вентили за охлаждане на двигателя
Температурите на намотките на двигателя на компресора се контролират до оптималната зададена точка. Управлението постига това чрез циклично превключване на соленоидния вентил за охлаждане на двигателя, за да позволи на течния хладилен агент да тече през намотките на двигателя, когато е необходимо. При агрегатите, оборудвани с икономизатори, газът от изпарението напуска горната част на икономизатора и непрекъснато тече към намотките на двигателя. Целият хладилен агент, използван за охлаждане на двигателя, отново влиза в роторите през порт, разположен по средата на цикъла на компресиране, и се компресира до налягането на изпускане.
Сензори
Агрегатите използват термистори (включително два термистора за температурата на двигателя) и два термистора за нивото и преобразуватели на налягане за наблюдение и управление на работата на системата.
Термистори
Изходяща течност от изпарителя
Тази температура се използва за измерване на температурата на изходящата течност от изпарителя (вода или саламура). Температурата се използва за управление на температурата на изходящата течност и за защита от замръзване на охладителя. Тя е разположена в дюзата за течност на изпарителя.
Входяща течност в изпарителя
Този сензор се използва за измерване на температурата на входящата течност в изпарителя. Той е разположен във входящата дюза на изпарителя. Използва се за осигуряване на автоматична температурна компенсация за управлението на температурата на изходящата течност с компенсация на входящата течност.
Температура на изходящия газ (кръгове A и B)
Този сензор се използва за измерване на температурата на изходящия газ и за управление на прегряването на изходящата температура. Той е разположен на изходящата тръба на всеки кръг (30HXC) или на върха на маслоотделителя (30GX).
ВНИМАНИЕ: Няма термостатна втулка.
Температура на двигателя
Модулът за защита на компресора (CPM) следи температурата на двигателя. Термисторните клеми са разположени в съединителната кутия на компресора.
Ниво на течността в изпарителя (кръгове A и B)
Термисторът за нивото на течността в изпарителя се използва за осигуряване на оптимизиран контрол на потока в изпарителя. Той е инсталиран в горната част на изпарителя.
Входяща течност в кондензатора (30HXC)
Този сензор се използва за измерване на температурата на течността, влизаща във водните кондензатори. Той е разположен в общата линия за течност, влизаща в кондензаторите (инсталиран на място). На Heat Machines (Топлинни машини) се използва от рутинната програма за управление на капацитета. На водните кондензатори се използва само за наблюдение на температурата на течността в кондензатора.
Изходяща течност от кондензатора (опция на 30HXC)
Този сензор се използва за измерване на температурата на течността, излизаща от водните кондензатори. Той е разположен в общата линия за течност, излизаща от кондензаторите (инсталиран на място). На Heat Machines (Топлинни машини) се използва от рутинната програма за управление на капацитета. На водните кондензатори се използва само за наблюдение на температурата на течността в кондензатора.
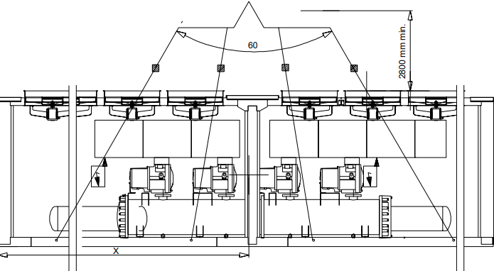
Разположение на вентилаторите 30GX

GX082/102

GX112/132

GX152/162

GX182

GX207/227

GX247/267

GX298

GX328/358
ПОДДРЪЖКА
Зареждане с хладилен агент - добавяне на заряд
Тези уреди са проектирани за употреба само с R-134a.
НЕ ИЗПОЛЗВАЙТЕ ДРУГ хладилен агент в тези уреди.
Когато добавяте или премахвате заряд, циркулирайте вода през кондензатора (HX) и охладителя по всяко време, за да предотвратите замръзване. Повредите от замръзване се считат за злоупотреба и могат да анулират гаранцията на Carrier.
НЕ ПРЕТОВАРВАЙТЕ системата. Претоварването води до по-високо налягане на изпускане с по-висока консумация на охлаждаща течност, възможна повреда на компресора и по-висока консумация на енергия.
Индикация за нисък заряд на система 30HXC
ЗАБЕЛЕЖКА
За да проверите за нисък заряд на хладилен агент на 30HXC, трябва да се вземат предвид няколко фактора. Мигащо контролно стъкло на течната линия не е непременно индикация за недостатъчен заряд. Има много системни условия, при които мигащо контролно стъкло се появява при нормална работа. Измервателното устройство 30HXC е проектирано да работи правилно при тези условия.
- Уверете се, че веригата работи при пълно натоварване. За да проверите дали верига A е напълно натоварена, следвайте процедурата, описана в ръководството за управление.
- Може да е необходимо да използвате функцията Manual Control (ръчен контрол), за да принудите веригата в състояние на пълно натоварване. Ако случаят е такъв, вижте инструкциите за използване на функцията Manual Control (ръчен контрол) в ръководството за управление.
- Когато веригата работи при пълно натоварване, проверете дали температурата на течността, излизаща от охладителя, е в диапазона 6°C ± 1.5.
- При това условие наблюдавайте хладилния агент в контролното стъкло на течната линия. Ако има ясно контролно стъкло и няма признаци на мигане, тогава веригата е адекватно заредена. Пропуснете останалите стъпки.
- Ако хладилният агент изглежда мига, веригата вероятно е с нисък заряд. Проверете това, като проверите позицията на EXV (вижте Controls IOM).
- Ако позицията на отваряне на EXD е по-голяма от 60% и ако контролното стъкло на течната линия мига, тогава веригата е с нисък заряд. Следвайте процедурата за добавяне на заряд.
За да добавите заряд към системите 30HXC
- Уверете се, че уредът работи при пълно натоварване и че температурата на течността, излизаща от охладителя, е в диапазона 5.6 7.8°C.
- При тези работни условия проверете контролното стъкло на течната линия. Ако има ясно контролно стъкло, тогава уредът има достатъчен заряд. Ако контролното стъкло мига, тогава проверете EXD Percent Open (процент на отваряне на EXD). Ако това е по-голямо от 60%, тогава започнете да добавяте заряд.
ЗАБЕЛЕЖКА
Мигащо контролно стъкло на течната линия при работни условия, различни от споменатите по-горе, не е непременно индикация за нисък заряд на хладилен агент.
- Добавете 2.5 kg течен заряд в изпарителя, като използвате вентила за зареждане, разположен в горната част на изпарителя.
- Наблюдавайте стойността на EXD Percent Open (процент на отваряне на EXD). EXD трябва да започне да се затваря, докато се добавя заряд. Оставете уреда да се стабилизира. Ако EXD Percent Open (процент на отваряне на EXD) остане над 60% и все още има мехурчета в контролното стъкло, добавете допълнителни 2.5 kg течен заряд.
- Оставете уреда да се стабилизира и отново проверете EXDPercent Open (процент на отваряне на EXD). Продължете да добавяте 2.5 kg течен хладилен агент наведнъж и оставете уреда да се стабилизира, преди да проверите позицията на EXD.
- Когато EXD Percent Open (процент на отваряне на EXD) е в диапазона 40 - 60%, проверете контролното стъкло на течната линия. Бавно добавете достатъчно допълнителен течен заряд, за да осигурите ясно контролно стъкло. Това трябва да се направи бавно, за да се избегне претоварване на уреда.
- Проверете адекватния заряд, като продължите да работите при пълно натоварване с температура на течността, излизаща от изпарителя, 6°C ± 1.5. Проверете дали хладилният агент не мига в контролното стъкло на течната линия. EXD Percent Open (процент на отваряне на EXD) трябва да бъде между 40 и 60%. Индикаторът за нивото на охладителя трябва да бъде в диапазона 1.5 - 2.5.
Индикация за нисък заряд на системи 30GX
- Уверете се, че веригата работи при пълно натоварване и че температурата на кондензация е 50°C ± 1.5. За да проверите дали верига A е напълно натоварена, следвайте процедурата в Controls IOM.
- Може да е необходимо да използвате функцията Manual Control (ръчен контрол), за да принудите веригата в състояние на пълно натоварване. Ако случаят е такъв, вижте инструкциите за използване на функцията Manual Control (ръчен контрол) (процедура в Controls IOM).
- Когато веригата работи при пълно натоварване, проверете дали температурата на течността, излизаща от охладителя, е в диапазона 6°C ± 1.5.
- Измерете температурата на въздуха, влизащ в кондензаторните серпентини. Измерете температурата на течността след тройника, където се съединяват двете течни линии на серпентината. Температурата на течността трябва да бъде с 8.3°C над температурата на въздуха, влизащ в серпентините. Ако разликата е по-голяма от това и контролното стъкло мига, веригата е незаредена. Продължете към стъпка 5.
- Добавете 2.5 kg течен заряд в охладителя, като използвате вентила за зареждане, разположен в горната част на охладителя.
- Оставете системата да се стабилизира и след това проверете отново температурата на течността. Повторете стъпка 5, ако е необходимо, като оставите системата да се стабилизира между всяко добавяне на заряд. Бавно добавяйте заряд, когато контролното стъкло започне да се избистря, за да избегнете претоварване.
Температура на помещението, температура на външния въздух (по избор)
Тези температури се използват за измерване на температурата на помещението или температурата на външния въздух съответно за контрол на нулиране въз основа на опциите за нулиране на външния въздух или температурата на помещението.
Датчици за налягане
Налягане на изпускане (вериги A & B)
Този вход се използва за измерване на налягането от високата страна на всяка верига на уреда.
Използва се за осигуряване на налягането за замяна на манометъра за налягане на изпускане и за контрол на налягането на главата.
Налягане на засмукване (вериги A & B)
Този вход се използва за измерване на налягането от ниската страна на уреда. Използва се за осигуряване на налягането за замяна на манометъра за налягане на засмукване.
Налягане на маслото (всеки компресор)
Този вход се използва за измерване на налягането на маслото на всеки компресор на уреда. Той е разположен на порта за налягане на маслото на всеки компресор.
Налягане на икономизатора (вериги A & B)
Този вход се използва за наблюдение на диференциалното налягане на маслото, подавано към компресора.
Зареждане с масло - презареждане с ниско ниво на маслото
Добавяне на маслен заряд към системи 30HX/GX
- Ако уредът 30HXC/GX се изключва многократно поради Low oilLevel (ниско ниво на маслото), това може да е индикация за недостатъчен маслен заряд. Това може също да означава просто, че маслото е в процес на възстановяване от ниската страна на системата.
- Започнете, като пуснете уреда при пълно натоварване за час и половина.
- След като работи 1-1/2 часа, оставете уреда да се рестартира и да работи нормално. Ако алармите за Low Oil Level (ниско ниво на маслото) продължават, уредът има нисък маслен заряд. Добавете масло към масления сепаратор, като използвате вентила за зареждане с масло в долната част на кондензатора (30HXC) или в долната част на масления сепаратор (30GX).
НЕ добавяйте масло на друго място, тъй като може да се получи неправилна работа на уреда.
- Уверете се, че уредът не работи, когато добавяте масло, тъй като това ще улесни процеса на зареждане с масло. Тъй като системата е под налягане, дори когато уредът не работи, ще е необходимо да използвате подходяща помпа (ръчна или електрическа помпа), за да добавите масло към системата.
- Използвайки подходяща помпа, добавете 2 литра Polyolester oil (полиолестерно масло) към системата (CARRIER SPEC: PP47-32). Уверете се, че предпазният превключвател за нивото на маслото НЕ е свързан с мост и оставете уреда да се рестартира и да работи нормално.
- Ако проблемите с ниското ниво на маслото продължават, добавете още 1 или 2 литра масло. Ако е необходимо да добавите повече от 4 литра масло към системата, тогава се свържете с вашия сервизен отдел на дистрибутора на Carrier.
Когато прехвърляте заряда на хладилния агент в резервоар, маслото може да бъде пренесено, когато уредът не работи. Използвайте първо цялото количество прехвърлен хладилен агент. След източване на маслото, заредете само източеното количество (прекомерният маслен заряд може да наруши правилната работа на уреда).
Смяна на вграден маслен филтър
Вграденият маслен филтър в винтовия компресор 06N е посочен да осигурява високо ниво на филтрация (3 µ), необходимо за дълъг живот на лагерите. Тъй като чистотата на системата е от решаващо значение за надеждната работа на системата, има и предфилтър (7 µ) в маслената линия на изхода на масления сепаратор.
Номерът на резервната част за вградения маслен филтър е:
Номер на частта на Carrier (включително филтър и O-пръстен): 06NA 660016S
График за смяна на филтъра
Филтърът трябва да се проверява след първите 500 часа работа и на всеки следващи 2000 часа. Филтърът трябва да се смени по всяко време, когато диференциалното налягане през филтъра надвиши 2.1 bar.
Спадът на налягането през филтъра може да се определи чрез измерване на налягането на сервизния порт на филтъра и порта за налягане на маслото. Разликата в тези две налягания ще бъде спадът на налягането през филтъра, възвратния клапан и електромагнитния клапан. Спадът на налягането през възвратния клапан и електромагнитния клапан е приблизително 0.4 bar, което трябва да се извади от двете измервания на налягането на маслото, за да се получи спадът на налягането на масления филтър. Спадът на налягането на масления филтър трябва да се проверява след всеки случай, когато компресорът е изключен поради предпазен превключвател за ниско налягане на маслото.
Процедура за смяна на филтъра
- Следващите стъпки очертават правилния метод за смяна на вградения маслен филтър.
- Изключете и блокирайте компресора.
- Ръчно принудете работата на електромагнитния клапан за масло, за да притиснете вътрешния клапан към неговото гнездо.
- Затворете сервизния клапан на масления филтър. Обезвъздушете налягането от кухината на филтъра през сервизния порт на филтъра.
- Извадете щепсела на масления филтър. Извадете стария маслен филтър.
- Преди да инсталирате новия маслен филтър, "смажете" O-пръстена с масло. Инсталирайте филтъра и сменете щепсела.
Преди да затворите системата за смазочно масло, използвайте възможността да смените и предфилтъра. - Когато приключите, евакуирайте кухината на филтъра през сервизния порт на филтъра. Отворете сервизния клапан на филтъра. Отстранете всички устройства за блокиране на компресора, компресорът е готов да се върне към работа.
Смяна на компресор
Контрол на въртенето на компресора
Правилното въртене на компресора е едно от най-важните съображения при приложението. Обратното въртене, дори за много кратко време, уврежда компресора.
Схемата за защита от обратно въртене трябва да може да определи посоката на въртене и да спре компресора в рамките на 300 милисекунди. Обратното въртене е най-вероятно да се случи, когато окабеляването към клемите на компресора е нарушено.
За да се сведе до минимум възможността за обратно въртене, трябва да се приложи следната процедура. Прекабелете захранващите кабели към клемите на компресора, както са били първоначално окабелени.
За смяна на компресора е включен превключвател за ниско налягане. Този превключвател за ниско налягане трябва да бъде временно инсталиран като твърда защита на частта с високо налягане на компресора. Целта на този превключвател е да предпази компресора от всякакви грешки в окабеляването на клемите на компресора. Електрическият контакт на превключвателя ще бъде свързан последователно с превключвателя за високо налягане. Превключвателят ще остане на място, докато компресорът не бъде стартиран и посоката на въртене не бъде проверена; в този момент превключвателят ще бъде премахнат.
Превключвателят, който е избран за откриване на обратно въртене, е номер на частта на Carrier HK01CB001. Предлага се като част от "Compressor installation package" (пакет за инсталиране на компресор) (номер на частта 06NA 660 013). Този превключвател отваря контактите, когато налягането падне под 50 mm вакуум. Превключвателят е тип с ръчно нулиране, който може да бъде нулиран, след като налягането отново се повиши над 70 kPa. От решаващо значение е превключвателят да бъде тип с ръчно нулиране, за да се предотврати краткотрайно циклиране на компресора в обратна посока.
Отстраняване на неизправности
Следвайте стъпките по-долу, за да диагностицирате и коригирате проблемите с EXD/Economizer.
На уреди 30HXC/GX с икономизатори проверете дали клапанът за тръбата на барботьора (дъното на Economizer) е отворен. Първо проверете работата на мотора на EXD (вижте процедурата в Controls IOM). Трябва да можете да усетите движението на задвижващия механизъм, като поставите ръката си върху тялото на EXD или икономизатора (задвижващият механизъм е разположен на около една втора до две трети от пътя нагоре от дъното на корпуса на икономизатора). Трябва да усетите силно почукване от задвижващия механизъм, когато достигне върха на хода си (може да се чуе, ако околностите са относително тихи). Задвижващият механизъм трябва да почука, когато достигне дъното на хода си. Ако се смята, че клапанът не работи правилно, свържете се с вашия сервизен отдел на Carrier за допълнителни проверки на:
- изходни сигнали на EXD модула
- кабелни връзки (непрекъснатост и стегната връзка на всички пинови клеми)
- съпротивление на намотките на мотора на EXD.


Одобрение на системата за управление на околната среда
Номер на поръчката: 13173-76, 03 1999 - Заменя номер: 13173-76, март 1998 г.
Производителят си запазва правото да променя спецификациите на продукта без предизвестие.
Производител: Carrier s.a., Montluel, Франция.
Отпечатано в Холандия върху хартия без хлор.

Изтегли ръководство
Тук можете да изтеглите пълната версия на ръководството в pdf формат, което може да съдържа допълнителни инструкции за безопасност, информация за гаранцията, правила на FCC и др.
Изтегли Ръководство за винтов компресор Carrier 30HXC/30GX