Carrier 30HXC/30GX vintli kompressor qo'llanmasi
- 1 Kirish
- 2 XAVFSIZLIKNI TA'MINLASH
- 3 O'LCHAMLAR, TOZALIKLAR, VAZN TAQSIMOTI
- 4 30HXC UCHUN FIZIK MA'LUMOTLAR
- 5 30HXC ELEKTR TA'RIFLARI
- 6 YUQORI KONDENSATSIYA HARORATIGA EGA BO'LGAN QURILMALAR UCHUN ELEKTR MA'LUMOTLARI
- 7 30GX FIZIK MA'LUMOTLARI
- 8 ELEKTR TA'MINOTI MA'LUMOTLARI 30GX
-
9
QO'LLANISH MA'LUMOTLARI
- 9.1 Blokning ishlash diapazoni
- 9.2 Sovutilgan suvning minimal oqimi
- 9.3 Sovutilgan suvning maksimal oqimi
- 9.4 O'zgaruvchan oqimli evaporator
- 9.5 Tizimning minimal suv hajmi
- 9.6 Sovutgichning oqim tezligi (l/s)
- 9.7 Kondensatorning oqim tezligi (l/s)
- 9.8 Evaporatorning bosim pasayishi egri chizig'i
- 9.9 Kondensatorning bosim pasayishi egri chizig'i
- 9.10 Oqim nazoratchilari
- 10 O'RNATISH
- 11 KO'TARISH BO'YICHA YO'RIQNOMA
- 12 ELEKTR XUSUSIYATLARI
- 13 TAVSIYA ETILADIGAN SIM kesimlari
-
14
ASOSIY TIZIM KOMPONENTLARI VA ISHLASH MA'LUMOTLARI
- 14.1 Tishli qo'shaloq vintli kompressor
- 14.2 Evaporator
- 14.3 Kondensator va yog 'separator (30HXC)
- 14.4 Yog 'separator (30GX)
- 14.5 Elektron kengaytirish moslamasi (EXD)
- 14.6 Ekonomayzer
- 14.7 Yog 'nasoslari
- 14.8 Motor sovutish klapanlari
- 14.9 Sensorlar
- 14.10 Termistorlar
- 14.11 30GX fanining joylashuvi
- 15 XIZMAT KO'RSATISH
- 16 Nosozliklarni bartaraf etish
- 17 Qo'llanmani yuklab olish
- 18 Boshqa tillarda

Kirish
30HXC va 30GX qurilmasini birinchi marta ishga tushirishdan oldin, ishga tushirish, ishlatish va texnik xizmat ko'rsatishda ishtirok etuvchilar ushbu ko'rsatmalar va boshqa zarur ish ma'lumotlari bilan yaxshilab tanishib chiqishlari kerak. Ushbu kitob sizga ishga tushirish tartibini bajarishdan oldin boshqaruv tizimi bilan tanishishingiz uchun umumiy ma'lumot beradi. Ushbu qo'llanmadagi protseduralar mashinani to'g'ri ishga tushirish va ishlatish uchun zarur bo'lgan ketma-ketlikda joylashtirilgan.
XAVFSIZLIKNI TA'MINLASH
30HXC va 30GX suyuqlikli sovutgichlar dizayn xususiyatlari doirasida ishlaganda xavfsiz va ishonchli xizmat ko'rsatish uchun mo'ljallangan. Ushbu uskunani ishlatishda uskunaga va mulkka zarar yetkazmaslik yoki xodimlarning jarohatlanishiga yo'l qo'ymaslik uchun yaxshi fikrlash va xavfsizlik choralarini ko'ring.
Mashina yo'riqnomasida va ushbu qo'llanmada keltirilgan protseduralar va xavfsizlik choralarini tushunganingizga va ularga rioya qilganingizga ishonch hosil qiling.
Sovutgichning xavfsizlik klapanlarini bino ichida VENT qilmang. Xavfsizlik klapanidan chiqadigan joy tashqariga chiqarilishi kerak. Yopiq joyda sovutgichning to'planishi kislorodni siqib chiqarishi va bo'g'ilish yoki portlashga olib kelishi mumkin.
AYNIQSA, yopiq va past shiftli joylar uchun yetarli shamollatishni TA'MINLANG. Yuqori konsentratsiyali bug'ni nafas olish zararli va yurak urishining buzilishi, hushdan ketish yoki o'limga olib kelishi mumkin. Bug' havodan og'irroq va nafas olish uchun mavjud bo'lgan kislorod miqdorini kamaytiradi. Mahsulot ko'z va terining tirnash xususiyati keltirib chiqaradi. Parchalanish mahsulotlari xavflidir.
Quvurlarni tozalash yoki mashinaga bosim o'tkazish uchun HECH QACHON KISLORODDAN FOYDALANMANG. Kislorod gazi moy, surma va boshqa umumiy moddalar bilan kuchli reaksiyaga kirishadi.
Belgilangan sinov bosimidan HECH QACHON OSHMANG, yo'riqnoma adabiyotini va uskunaning nom plastinkasidagi dizayn bosimini tekshirish orqali ruxsat etilgan sinov bosimini TASDIQLANG.
Oqishni tekshirish uchun havodan FOYDALANMANG. Faqat sovutgich yoki quruq azotdan foydalaning.
HECH QANDAY xavfsizlik moslamasini O'CHIRMANG.
Har qanday mashinani ishlatishdan oldin barcha bosimni pasaytirish moslamalari to'g'ri o'rnatilganligiga ISHONCH HOSIL QILING.
Sovutgich liniyasi yoki idishini payvandlamang yoki olov bilan kesmang, toki barcha sovutgich (suyuqlik va bug') sovutgichdan chiqarilmaguncha. Bug' izlari quruq havo azoti bilan almashtirilishi va ish joyi yaxshi shamollatilishi kerak. Ochiq olov bilan aloqa qiladigan sovutgich zaharli gazlarni hosil qiladi.
Agar siz malakali elektrik bo'lmasangiz, kuchlanishli uskunada ISHLAMANG.
Barcha quvvat O'CHIRILGANLIGIGA va qoldiq kuchlanish kondensatorlar yoki qattiq holatdagi komponentlardan oqishi mumkinligiga ishonch hosil qilmaguningizcha, boshqaruv panellari, kalitlar, o'rni va hokazolarni o'z ichiga olgan elektr komponentlarida ISHLAMANG.
Xizmat ko'rsatish vaqtida elektr zanjirlarini OCHIQ HOLATDA QULFLANG VA BELGILANG. AGAR ISH TO'XTATILSA, ishni davom ettirishdan oldin barcha zanjirlar kuchsizlanganligini tekshiring.
Sovutgichni sifon qilmang.
Teriga suyuq sovutgichning to'kilishidan yoki ko'zlarga tushishidan SAQLANING. XAVFSIZLIK KO'ZOYNAKLARIDAN FOYDALANING. Teridan har qanday to'kilgan narsalarni sovun va suv bilan yuving. Agar suyuq sovutgich ko'zlarga kirsa,
DARHOL KO'ZLARNI suv bilan yuving va shifokorga murojaat qiling.
Sovutgich idishiga HECH QACHON ochiq olov yoki tirik bug'ni qo'llamang. Xavfli ortiqcha bosim paydo bo'lishi mumkin. Agar sovutgichni isitish zarur bo'lsa, faqat iliq suvdan foydalaning.
Bir martalik (qaytarmaydigan) ballonlarni QAYTA FOYDALANMANG yoki ularni to'ldirishga urinmang. Bu XAVFLI VA NOQONUNIYDIR. Ballonlar bo'shatilganda, qolgan gaz bosimini evakuatsiya qiling, yoqani bo'shating va valf poyasini burab, tashlang. YOQMANG.
Mashinaga sovutgich qo'shishdan oldin SOVUTGICH TURINI TEKSHIRING. Noto'g'ri sovutgichni kiritish ushbu mashinaga zarar etkazishi yoki noto'g'ri ishlashiga olib kelishi mumkin.
Mashina bosim ostida bo'lganida yoki mashina ishlayotganida HECH QACHON armatura, komponentlar va hokazolarni OLIB TASHLASHGA URINMANG. Sovutgich ulanishini uzishdan oldin bosim 0 kPa da ekanligiga ishonch hosil qiling.
Barcha xavfsizlik moslamalarini KAMIDA YILIGA BIR MARTA DIQQAT BILAN TEKSHIRING. Agar mashina korroziv muhitda ishlayotgan bo'lsa, moslamalarni tez-tez tekshirib turing.
Valf korpusi yoki mexanizmi ichida korroziya yoki begona moddalarning (zang, axloqsizlik, qobiq va h.k.) to'planishi aniqlanganda, HECH QANDAY xavfsizlik moslamasini TA'MIRLASHGA YOKI QAYTA TIKLASHGA URINMANG. Moslamani almashtiring.
Xavfsizlik moslamalarini ketma-ket yoki teskari o'rnatmang.
Sovutgich liniyalariga QADAM BOSMANG. Singan liniyalar aylanib, sovutgichni chiqarib yuborishi va shaxsiy jarohatlarga olib kelishi mumkin.
Mashinadan O'TIB CHIQMANG. Platformadan yoki sahnadan foydalaning.
Og'ir komponentlarni ko'tarish yoki ko'chirish uchun MEXANIK USKUNADAN (kran, yuk ko'taruvchi va h.k.) FOYDALANING. Komponentlar yengil bo'lsa ham, sirpanish yoki muvozanatni yo'qotish xavfi bo'lganda mexanik uskunadan foydalaning.
Ayrim avtomatik ishga tushirish tartiblari MINOR FAN YOKI NASOSLARNI ISHGA TUSHIRISHI MUMKINLIGIDAN XABARDOR BO'LING. Minor fanlari yoki nasoslar oldidagi uzgichni oching.
Faqat original uskunaning kod talablariga javob beradigan ta'mirlash yoki almashtirish qismlaridan FOYDALANING.
Vakolatli organning ruxsatisiz sanoat tuzlari bo'lgan suv qutilarini VENT QILMANG YOKI TO'KMANG.
Suv qutisi to'liq to'kilmaguncha suv qutisi murvatlarini BO'SHATMANG.
Gayka ijobiy tishli birikmaga ega ekanligini tekshirmasdan oldin HECH QACHON zichlagich gaykasini BO'SHATMANG.
Barcha valflar, armaturalar va quvurlarni vaqti-vaqti bilan korroziya, zang, oqish yoki shikastlanish uchun TEKSHIRIB TURING.
Kondensat yoki yomg'ir suvining to'planishiga yo'l qo'ymaslik uchun har bir bosimni pasaytirish moslamasi yaqinidagi shamollatish liniyasida DRENJ ulanishini TA'MINLANG.
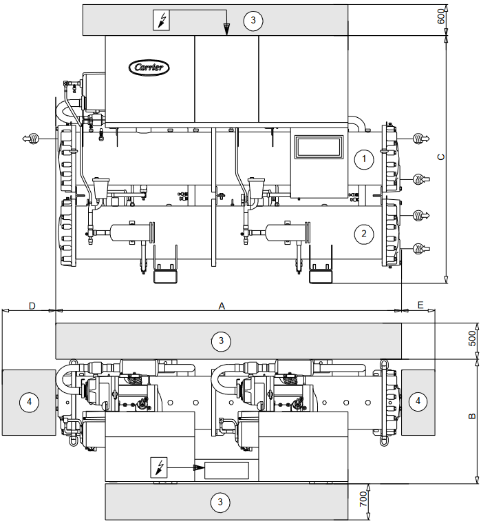
O'LCHAMLAR, TOZALIKLAR, VAZN TAQSIMOTI
30HXC 080-190
30HXC080
30HXC090
30HXC100
30HXC110

- Bug'latgich
- Kondensator
- Ishlash va texnik xizmat ko'rsatish uchun zarur bo'lgan tozaliklar
- Issiqlik almashinuvchi trubkani olib tashlash uchun zarur bo'lgan tozaliklar. D va E tozaliklari chapda ham, o'ng tomonda ham bo'lishi mumkin.
Suv kirish joyi
Suv chiqish joyi
Elektr ta'minoti
kg: umumiy ish vazni
| A mm | B mm | C mm | D mm | E mm | kg | |
| 30HXC080 30HXC090 30HXC100 |
2705 | 950 | 1850 | 2360 | 1000 | 2447 2462 2504 |
| 30HXC110 | 2705 | 950 | 1900 | 2360 | 1000 | 2650 |
| 30HXC120 30HXC130 30HXC140 30HXC155 |
3535 | 950 | 1875 | 3220 | 1000 | 2846 2861 2956 2971 |
| 30HXC175 30HXC190 |
3550 | 950 | 2000 | 3220 | 1000 | 3283 3438 |
ESLATMA: O'rnatishni loyihalashda qurilma bilan birga taqdim etilgan sertifikatlangan o'lcham chizmalariga murojaat qiling.
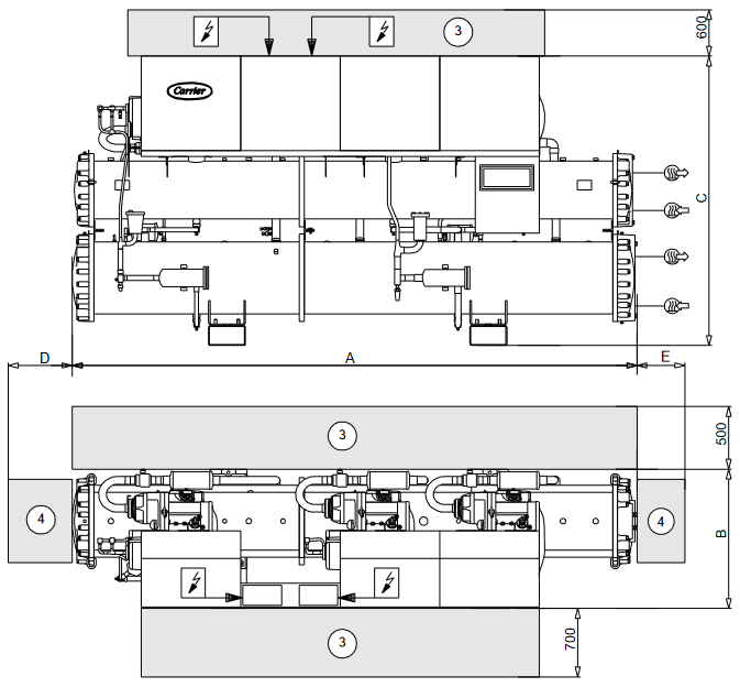
30HXC 200-375

- Bug'latgich
- Kondensator
- Ishlash va texnik xizmat ko'rsatish uchun zarur bo'lgan tozaliklar
- Issiqlik almashinuvchi trubkani olib tashlash uchun zarur bo'lgan tozaliklar. D va E tozaliklari chapda ham, o'ng tomonda ham bo'lishi mumkin.
Suv kirish joyi
Suv chiqish joyi
Elektr ta'minoti
kg: umumiy ish vazni
| A mm | B mm | C mm | D mm | E mm | kg | |
| 30HXC200 | 3975 | 980 | 2035 | 3620 | 1000 | 4090 |
| 30HXC230 30HXC260 30HXC285 |
3995 | 980 | 2116 | 3620 | 1000 | 4705 4815 4985 |
| 30HXC310 30HXC345 30HXC375 |
4490 | 980 | 2163 | 4120 | 1000 | 5760 5870 6105 |
ESLATMA: O'rnatishni loyihalashda qurilma bilan birga taqdim etilgan sertifikatlangan o'lcham chizmalariga murojaat qiling.
30GX 082-182
30GX-082
30GX-092
30GX-102
30GX-112
30GX-122
30GX-132
30GX-152
30GX-162
30GX-182


- Ishlash va texnik xizmat ko'rsatish uchun zarur bo'lgan tozaliklar
- Issiqlik almashinuvchi trubkani olib tashlash uchun zarur bo'lgan tozaliklar. Tozaliklar chapda ham, o'ng tomonda ham bo'lishi mumkin.
Suv kirish joyi
Suv chiqish joyi
Elektr ta'minoti
Havo chiqish joyi - to'sqinlik qilmang
kg: umumiy ish vazni
| A mm | B mm | kg | |
| 30GX082 30GX092 30GX102 |
2970 | 2215 | 3116 3157 3172 |
| 30GX112 30GX122 30GX132 |
3427 | 2045 | 3515 3531 3633 |
| 30GX152 30GX162 |
4342 | 2835 | 3920 3936 |
| 30GX182 | 5996 | 1820 | 4853 |
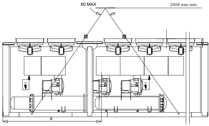
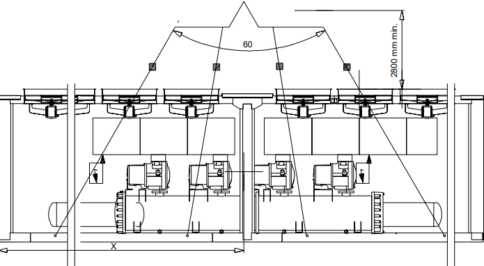
Bir nechta sovutgich o'rnatish


Eslatmalar:
- Qurilma quyidagi havo oqimi uchun tozalikka ega bo'lishi kerak:
Yuqori: hech qanday tarzda cheklamang - Bir nechta sovutgichlar (to'rttagacha qurilma) bo'lsa, ular orasidagi tegishli tozalik yon bo'shliq talabi uchun 1830 dan 2000 mm gacha oshirilishi kerak.
- Sovutgich trubasini olib tashlash uchun tozaliklar talab qilinadi.
ESLATMA: O'rnatishni loyihalashda qurilma bilan birga taqdim etilgan sertifikatlangan o'lcham chizmalariga murojaat qiling.
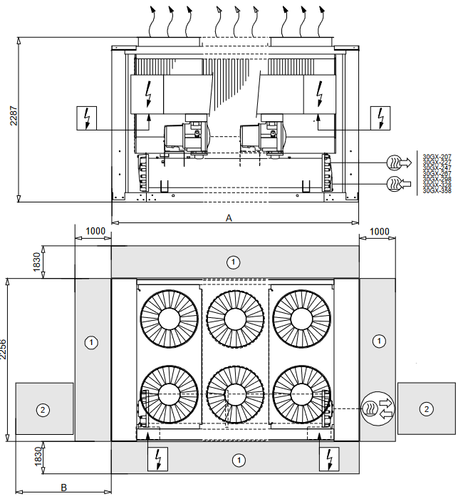
30GX 207-358
30GX-207
30GX-227
30GX-247
30GX-267
30GX-298
30GX-328
30GX-358

- Ishlash va texnik xizmat ko'rsatish uchun zarur bo'lgan tozaliklar
- Issiqlik almashinuvchi trubkani olib tashlash uchun zarur bo'lgan tozaliklar. Tozaliklar chapda ham, o'ng tomonda ham bo'lishi mumkin.
Suv kirish joyi
Suv chiqish joyi
Elektr ta'minoti
Havo chiqish joyi - to'sqinlik qilmang
kg: umumiy ish vazni
| A mm | B mm | kg | |
| 30GX207 30GX227 |
5996 | 2895 | 5540 5570 |
| 30GX247 30GX267 |
6911 | 2470 | 6134 6365 |
| 30GX298 | 7826 | 2220 | 7354 |
| 30GX328 30GX358 |
8741 | 1250 | 7918 8124 |
Bir nechta sovutgich o'rnatish


Eslatmalar:
- Qurilma quyidagi havo oqimi uchun tozalikka ega bo'lishi kerak:
Yuqori: hech qanday tarzda cheklamang - Bir nechta sovutgichlar (to'rttagacha qurilma) bo'lsa, ular orasidagi tegishli tozalik yon bo'shliq talabi uchun 1830 dan 2000 mm gacha oshirilishi kerak.
- Sovutgich trubasini olib tashlash uchun tozaliklar talab qilinadi.
ESLATMA: O'rnatishni loyihalashda qurilma bilan birga taqdim etilgan sertifikatlangan o'lcham chizmalariga murojaat qiling.
30HXC UCHUN FIZIK MA'LUMOTLAR
| 30HXC | 080 | 090 | 100 | 110 | 120 | 130 | 140 | 155 | 175 | 190 | 200 | 230 | 260 | 285 | 310 | 345 | 375 | |
| Net cooling capacity (Sof sovutish quvvati) | kW | 292 | 321 | 352 | 389 | 426 | 464 | 514 | 550 | 607 | 663 | 716 | 822 | 918 | 996 | 1119 | 1222 | 1326 |
| Operating weight (Ishlash og'irligi) | kg | 2447 | 2462 | 2504 | 2650 | 2846 | 2861 | 2956 | 2971 | 3283 | 3438 | 4090 | 4705 | 4815 | 4985 | 5760 | 5870 | 6105 |
| Refrigerant (Sovutgich) Circuit A/B (A/B konturi) |
HFC-134a | |||||||||||||||||
| kg | 39/36 | 39/36 | 37/32 | 38/38 | 57/55 | 59/50 | 56/50 | 59/52 | 58/61 | 60/70 | 110/58 | 118/63 | 120/75 | 120/75 | 108/110 | 110/110 | 110/120 | |
| Oil (Moy) Circuit A/B (A/B konturi) |
Polyolester oil CARRIER SPEC: PP 47-32 | |||||||||||||||||
| l | 15/15 | 15/15 | 15/15 | 15/15 | 15/15 | 15/15 | 15/15 | 15/15 | 15/15 | 15/15 | 30/15 | 30/15 | 30/15 | 30/15 | 30/30 | 30/30 | 30/30 | |
| Compressors (Kompressorlar) | Hermetic twin-screw Power3 | |||||||||||||||||
| Circ. A, nom. size per compressor** (Kompressor uchun A konturi, nominal o'lcham**) | 39 | 46 | 46 | 56 | 56 | 66 | 80 | 80 | 80 | 80+ | 66/56 | 80/56 | 80/80 | 80+/80+ | 80/66 | 80/80 | 80+/80+ | |
| Circ. B, nom. size per compressor** (Kompressor uchun B konturi, nominal o'lcham**) | 39 | 39 | 46 | 46 | 56 | 56 | 56 | 66 | 80 | 80+ | 66 | 80 | 80 | 80+ | 80/66 | 80/80 | 80+/80+ | |
| Control type (Boshqaruv turi) | PRO-DIALOG Plus control | |||||||||||||||||
| Number of capacity steps (Quvvat qadamlari soni) | 6 | 6 | 6 | 6 | 6 | 6 | 6 | 6 | 6 | 6 | 8 | 8 | 8 | 8 | 10 | 10 | 10 | |
| Minimum capacity (Minimal quvvat) | % | 19 | 19 | 21 | 19 | 21 | 19 | 17 | 19 | 21 | 21 | 14 | 14 | 14 | 14 | 10 | 10 | 10 |
| Evaporator (Bug'latgich) | Shell and tube type, with internally finned copper tubes (Ichki qanotli mis trubkali, qobiq va truba turi) | |||||||||||||||||
| Net water volume (Sof suv hajmi) | l | 65 | 65 | 73 | 87 | 81 | 81 | 91 | 91 | 109 | 109 | 140 | 165 | 181 | 181 | 203 | 229 | 229 |
| Water connections (Suv ulanishlari) | Factory-supplied flat flange, to be welded on site (Zavodda taqdim etilgan tekis gardish, joyida payvandlanadi) | |||||||||||||||||
| Inlet and outlet (Kirish va chiqish) | in. | 4 | 4 | 4 | 5 | 5 | 5 | 5 | 5 | 5 | 5 | 6 | 6 | 6 | 6 | 8 | 8 | 8 |
| Drain and vent (NPT) (Drenaj va shamollatish (NPT)) | in. | 3/8 | 3/8 | 3/8 | 3/8 | 3/8 | 3/8 | 3/8 | 3/8 | 3/8 | 3/8 | 3/8 | 3/8 | 3/8 | 3/8 | 3/8 | 3/8 | 3/8 |
| Max. water-side operating pressure (Suv tomonidagi maksimal ish bosimi) | kPa | 1000 | 1000 | 1000 | 1000 | 1000 | 1000 | 1000 | 1000 | 1000 | 1000 | 1000 | 1000 | 1000 | 1000 | 1000 | 1000 | 1000 |
| Condensers (Kondensatorlar) | Shell and tube type, with internally finned copper tubes (Ichki qanotli mis trubkali, qobiq va truba turi) | |||||||||||||||||
| Net water volume (Sof suv hajmi) | l | 58 | 58 | 58 | 58 | 92 | 92 | 110 | 110 | 132 | 132 | 162 | 208 | 208 | 208 | 251 | 251 | 251 |
| Water connections (Suv ulanishlari) | Factory-supplied flat flange, to be welded on site (Zavodda taqdim etilgan tekis gardish, joyida payvandlanadi) | |||||||||||||||||
| Inlet and outlet (Kirish va chiqish) | in. | 5 | 5 | 5 | 5 | 5 | 5 | 5 | 5 | 6 | 6 | 6 | 6 | 6 | 6 | 8 | 8 | 8 |
| Drain and vent (NPT) (Drenaj va shamollatish (NPT)) | in. | 3/8 | 3/8 | 3/8 | 3/8 | 3/8 | 3/8 | 3/8 | 3/8 | 3/8 | 3/8 | 3/8 | 3/8 | 3/8 | 3/8 | 3/8 | 3/8 | 3/8 |
| Max. water-side operating pressure (Suv tomonidagi maksimal ish bosimi) | kPa | 1000 | 1000 | 1000 | 1000 | 1000 | 1000 | 1000 | 1000 | 1000 | 1000 | 1000 | 1000 | 1000 | 1000 | 1000 | 1000 | 1000 |
* Standardised Eurovent conditions: evaporator entering/leaving water temperatures = 12°C/7°C, condenser water entering/leaving water temperatures = 30°C/35°C Net cooling capacity: Gross cooling capacity minus the water pump heat against the internal evaporator pressure drop. ** The compressor size corresponds to the nominal capacity in tons (1 ton = 3.517 kW). * Standartlashtirilgan Eurovent sharoitlari: bug'latgichga kiradigan/chiqadigan suv harorati = 12°C/7°C, kondensatorga kiradigan/chiqadigan suv harorati = 30°C/35°C Sof sovutish quvvati: ichki bug'latgich bosimining pasayishiga qarshi suv nasosining issiqligini ayirib tashlaganda yalpi sovutish quvvati. ** Kompressorning o'lchami tonnalardagi nominal quvvatga mos keladi (1 tonna = 3,517 kW).
30HXC ELEKTR TA'RIFLARI
| 30HXC | 080 | 090 | 100 | 110 | 120 | 130 | 140 | 155 | 175 | 190 | 200 | 230 | 260 | 285 | 310 | 345 | 375 | |
| Quvvat zanjiri | ||||||||||||||||||
| Nominal quvvat manbai* | V-ph-Hz | 400-3-50 | ||||||||||||||||
| Voltaj diapazoni | V | 360-440 | ||||||||||||||||
| Boshqaruv zanjiri ta'minoti | Boshqaruv zanjiri zavodda o'rnatilgan transformator orqali ta'minlanadi | |||||||||||||||||
| Nominal quvvat sarfi* | kW | 59 | 67 | 74 | 83 | 88 | 99 | 112 | 123 | 135 | 146 | 156 | 179 | 201 | 219 | 245 | 274 | 298 |
| Nominal tok kuchi* | A | 98 | 111 | 124 | 139 | 148 | 166 | 186 | 204 | 226 | 242 | 259 | 291 | 335 | 367 | 408 | 456 | 498 |
| Maks. quvvat sarfi** | kW | 76 | 83 | 91 | 101 | 111 | 121 | 135 | 145 | 158 | 181 | 187 | 214 | 237 | 272 | 290 | 316 | 362 |
| A zanjiri | kW | - | - | - | - | - | - | - | - | - | - | 121 | 135 | 158 | 181 | 145 | 158 | 181 |
| B zanjiri | kW | - | - | - | - | - | - | - | - | - | - | 66 | 79 | 79 | 91 | 145 | 158 | 181 |
| Cosine phi, to'liq yuk ostida | 0.87 | 0.87 | 0.87 | 0.87 | 0.87 | 0.87 | 0.87 | 0.87 | 0.87 | 0.87 | 0.87 | 0.87 | 0.87 | 0.87 | 0.87 | 0.87 | 0.87 | |
| Maks. tok kuchi (Un - 10%)*** | A | 138 | 152 | 166 | 184 | 202 | 221 | 245 | 264 | 288 | 330 | 341 | 389 | 432 | 495 | 528 | 576 | 660 |
| A zanjiri | A | - | - | - | - | - | - | - | - | - | - | 221 | 245 | 288 | 330 | 264 | 288 | 330 |
| B zanjiri | A | - | - | - | - | - | - | - | - | - | - | 120 | 144 | 144 | 165 | 264 | 288 | 330 |
| Maksimal tok kuchi (Un)*** | A | 125 | 138 | 151 | 167 | 184 | 201 | 223 | 240 | 262 | 300 | 310 | 354 | 393 | 450 | 480 | 524 | 600 |
| A zanjiri | A | - | - | - | - | - | - | - | - | - | - | 201 | 223 | 262 | 300 | 240 | 262 | 300 |
| B zanjiri | A | - | - | - | - | - | - | - | - | - | - | 109 | 131 | 131 | 150 | 240 | 262 | 300 |
| Maks. ishga tushish toki, stand. qurilma (Un)**** | A | 172 | 197 | 209 | 235 | 252 | 283 | 318 | 335 | 357 | 420 | 806 | 938 | 977 | 1156 | 1064 | 1108 | 1306 |
| A zanjiri | A | - | - | - | - | - | - | - | - | - | - | 697 | 807 | 846 | 1006 | 824 | 846 | 1006 |
| B zanjiri | A | - | - | - | - | - | - | - | - | - | - | 605 | 715 | 715 | 856 | 824 | 846 | 1006 |
| Maks. ishga tushish toki/maks. tok kuchi nisbati, qurilma | 1.37 | 1.42 | 1.39 | 1.41 | 1.37 | 1.41 | 1.43 | 1.40 | 1.36 | 1.40 | 2.60 | 2.65 | 2.49 | 2.57 | 2.22 | 2.12 | 2.18 | |
| Maks. ishga tushish toki/maks. tok kuchi nisbati, A zanjiri | - | - | - | - | - | - | - | - | - | - | 3.47 | 3.62 | 3.23 | 3.35 | 3.43 | 3.23 | 3.35 | |
| Maks. ishga tushish toki/maks. tok kuchi nisbati, B zanjiri | - | - | - | - | - | - | - | - | - | - | 5.55 | 5.46 | 5.46 | 5.71 | 3.43 | 3.23 | 3.35 | |
| Maks. ishga tushish toki - kamaytirilgan tok bilan ishga tushirish (Un) **** | A | stand. | stand. | stand. | stand. | stand. | stand. | stand. | stand. | stand. | stand. | 601 | 643 | 682 | 760 | 769 | 813 | 910 |
| A zanjiri | A | stand. | stand. | stand. | stand. | stand. | stand. | stand. | stand. | stand. | stand. | 492 | 512 | 551 | 610 | 529 | 551 | 610 |
| B zanjiri | A | stand. | stand. | stand. | stand. | stand. | stand. | stand. | stand. | stand. | stand. | 330 | 370 | 370 | 385 | 529 | 551 | 610 |
| Maks. ishga tushirish toki - kamaytirilgan tok bilan ishga tushirish/ maks. tok kuchi nisbati, qurilma | stand. | stand. | stand. | stand. | stand. | stand. | stand. | stand. | stand. | stand. | 1.94 | 1.82 | 1.74 | 1.69 | 1.60 | 1.55 | 1.52 | |
| A zanjiri | stand. | stand. | stand. | stand. | stand. | stand. | stand. | stand. | stand. | stand. | 2.45 | 2.30 | 2.10 | 2.03 | 2.20 | 2.10 | 2.03 | |
| B zanjiri | stand. | stand. | stand. | stand. | stand. | stand. | stand. | stand. | stand. | stand. | 3.03 | 2.83 | 2.83 | 2.57 | 2.20 | 2.10 | 2.03 | |
| Uch fazali qisqa tutashuvni ushlab turish toki | kA | 25 | 25 | 25 | 25 | 25 | 25 | 25 | 25 | 25 | 25 | N/A | N/A | N/A | N/A | N/A | N/A | N/A |
| A zanjiri | kA | - | - | - | - | - | - | - | - | - | - | 25 | 25 | 25 | 25 | 25 | 25 | 25 |
| B zanjiri | kA | - | - | - | - | - | - | - | - | - | - | 15 | 15 | 15 | 15 | 25 | 25 | 25 |
| Mijozning kutish quvvati, qurilma yoki A zanjiri, bug'latgich suv nasosi ulanishlari uchun† | kW | 8 | 8 | 8 | 11 | 11 | 11 | 15 | 15 | 15 | 15 | 15 | 18 | 18 | 30 | 30 | 30 | 30 |
* Standart Eurovent sharoitlari: Bug'latgichga kiruvchi/chiquvchi suv harorati 12°C va 7°C. Kondensatorga kiruvchi/chiquvchi suv harorati 30°C/35°C.
** Quvvat sarfi, kompressor, qurilmaning ishlash chegaralarida (bug'latgichga kiruvchi/chiquvchi suv harorati = 15°C/10°C, kondensatorga kiruvchi/chiquvchi suv harorati = 40°C/45°C) va 400 V nominal kuchlanishda (qurilma nomidagi ma'lumotlar).
*** Maksimal qurilma quvvat sarfida maksimal qurilma ish oqimi.
**** Maksimal bir zumlik ishga tushirish toki (eng kichik kompressor(lar)ning maksimal ish oqimi + eng katta kompressorning bloklangan rotor oqimi yoki kamaytirilgan ishga tushirish oqimi)
† Yuqoridagi qiymatlarga kiritilmagan tok va quvvat sarfi.
N/A Mavjud emas
Kompressorlar
| Ma'lumot | Hajmi | I nom. | MHA | LRA | LRA (Y) | LRA (S) 1 cp. | LRA (S) 2 cp. |
| 06NW2146S7N | 39 | 48 | 69 | 344 | 109 | 125 | - |
| 06NW2174S7N | 46 | 58 | 83 | 423 | 134 | 154 | - |
| 06NW2209S7N | 56 | 71 | 101 | 506 | 160 | 260 | 350 |
| 06NW2250S7N | 66 | 87 | 120 | 605 | 191 | 330 | 400 |
| 06NW2300S5N | 80 | 104 | 144 | 715 | 226 | 370 | 420 |
| 06NW2300S5E | 80+ | 111 | 165 | 856 | 270 | 385 | 460 |
Izoh:
| 06NW | Suv bilan sovutiladigan qurilmalar uchun kompressor |
| N | Ekonomayzer bo'lmagan kompressor |
| E | Ekonomayzerli kompressor |
| INOM | Eurovent sharoitlarida kompressorning o'rtacha tok sarfi |
| MHA | 360 V da ushlab turishi kerak bo'lgan amperlar (maksimal ish oqimi) |
| LRA | To'g'ridan-to'g'ri ishga tushirish bilan bloklangan rotor oqimi |
| LRA (Y) | Kamaytirilgan tokda bloklangan rotor oqimi (yulduz/delta ishga tushirish rejimi) |
| LRA (S) 1 cp. | Elektron starter bilan kamaytirilgan tok bilan ishga tushirish (ishga tushirish davomiyligi maksimal 3 soniya) har bir zanjir uchun bitta kompressor uchun |
| LRA (S) 2 cp. | Elektron starter bilan kamaytirilgan tok bilan ishga tushirish (ishga tushirish davomiyligi maksimal 3 soniya) har bir zanjir uchun ikkita kompressor uchun |
YUQORI KONDENSATSIYA HARORATIGA EGA BO'LGAN QURILMALAR UCHUN ELEKTR MA'LUMOTLARI
30HXC 150 va 150A Opsiyalari
| 30HXC | 080 | 090 | 100 | 110 | 120 | 130 | 140 | 155 | 175 | 190 | 200 | 230 | 260 | 285 | 310 | 345 | 375 | |
| Quvvat zanjiri | ||||||||||||||||||
| Nominal quvvat manbai* | V-ph-Hz | 400-3-50 | ||||||||||||||||
| Voltaj diapazoni | V | 360-440 | ||||||||||||||||
| Boshqaruv zanjiri ta'minoti | Boshqaruv zanjiri zavodda o'rnatilgan transformator orqali ta'minlanadi | |||||||||||||||||
| Maks. quvvat sarfi** | kVt | 104 | 117 | 131 | 145 | 159 | 174 | 194 | 211 | 230 | 263 | 271 | 310 | 345 | 395 | 422 | 460 | 526 |
| A zanjiri | kVt | - | - | - | - | - | - | - | - | - | - | 175 | 195 | 230 | 263 | 211 | 230 | 263 |
| B zanjiri | kVt | - | - | - | - | - | - | - | - | - | - | 96 | 115 | 115 | 132 | 211 | 230 | 263 |
| Maks. tortilgan tok (Un - 10%)*** | A | 190 | 215 | 240 | 265 | 290 | 320 | 355 | 385 | 420 | 480 | 495 | 564 | 630 | 720 | 770 | 840 | 960 |
| A zanjiri | A | - | - | - | - | - | - | - | - | - | - | 320 | 355 | 420 | 480 | 385 | 420 | 480 |
| B zanjiri | A | - | - | - | - | - | - | - | - | - | - | 175 | 210 | 210 | 240 | 385 | 420 | 480 |
| Maksimal tortilgan tok (Un)*** | A | 173 | 195 | 218 | 241 | 264 | 291 | 323 | 350 | 382 | 436 | 450 | 514 | 573 | 655 | 700 | 764 | 873 |
| A zanjiri | A | - | - | - | - | - | - | - | - | - | - | 291 | 323 | 382 | 436 | 350 | 382 | 436 |
| B zanjiri | A | - | - | - | - | - | - | - | - | - | - | 159 | 191 | 191 | 218 | 350 | 382 | 436 |
| Maks. ishga tushirish toki, stand. qurilma (Un)**** | A | 277 | 312 | 335 | 379 | 402 | 435 | 519 | 546 | 578 | 618 | 1251 | 1549 | 1608 | 1701 | 1735 | 1799 | 1920 |
| A zanjiri | A | - | - | - | - | - | - | - | - | - | - | 1092 | 1358 | 1417 | 1483 | 1385 | 1417 | 1483 |
| B zanjiri | A | - | - | - | - | - | - | - | - | - | - | 960 | 1226 | 1226 | 1265 | 1385 | 1417 | 1483 |
| Maks. ishga tushirish toki/maks. tok tortish nisbati, qurilma | 1.61 | 1.60 | 1.54 | 1.57 | 1.52 | 1.49 | 1.61 | 1.56 | 1.51 | 1.42 | 2.78 | 3.02 | 2.81 | 2.60 | 2.48 | 2.36 | 2.20 | |
| Maks. ishga tushirish toki/maks. tok tortish nisbati, A zanjiri | - | - | - | - | - | - | - | - | - | - | 3.75 | 4.21 | 3.71 | 3.40 | 3.96 | 3.71 | 3.40 | |
| Maks. ishga tushirish toki/maks. tok tortish nisbati, B zanjiri | - | - | - | - | - | - | - | - | - | - | 6.03 | 6.42 | 6.42 | 5.80 | 3.96 | 3.71 | 3.40 | |
| Maks. ishga tushirish toki - kamaytirilgan tok bilan ishga tushirish (Un) **** | A | stand. | stand. | stand. | stand. | stand. | stand. | stand. | stand. | stand. | stand. | N/A | N/A | N/A | N/A | N/A | N/A | N/A |
| Uch fazali qisqa tutashuvni ushlab turish toki | kA | 25 | 25 | 25 | 25 | 25 | 25 | 25 | 25 | 25 | 25 | N/A | N/A | N/A | N/A | N/A | N/A | N/A |
| A zanjiri | kA | - | - | - | - | - | - | - | - | - | - | 25 | 25 | 25 | 25 | 25 | 25 | 25 |
| B zanjiri | kA | - | - | - | - | - | - | - | - | - | - | 15 | 15 | 15 | 15 | 25 | 25 | 25 |
| Iste'molchining kutish quvvati, qurilma yoki A aylanasi, evaporatator suv nasosi ulanishlari uchun† | kVt | 8 | 8 | 8 | 11 | 11 | 11 | 15 | 15 | 15 | 15 | 15 | 18 | 18 | 30 | 30 | 30 | 30 |
** Quvvat sarfi, kompressor, qurilmaning ish chegaralarida (evaporatatorga kiradigan/chiqadigan suv harorati = 15°C/10°C, kondensatorga kiradigan/chiqadigan suv harorati = 40°C/45°C) va 400 V nominal kuchlanishda (qurilma nom plastinkasida berilgan ma'lumotlar).
*** Qurilmaning maksimal quvvat sarfida maksimal ish oqimi.
**** Maksimal lahzali ishga tushirish toki (eng kichik kompressor(lar)ning maksimal ish oqimi + eng katta kompressorning bloklangan rotor toki yoki kamaytirilgan ishga tushirish toki)
† Tok va quvvat sarfi yuqoridagi qiymatlarga kiritilmagan.
N/A Mavjud emas
Yuqori kondensatsiya haroratiga mo'ljallangan 30HXC 080-375 qurilmalari to'g'ridan-to'g'ri standart modellardan olingan. Ularning qo'llanilish diapazoni standart qurilmalarning diapazoni bilan bir xil, ammo kondensatordan chiqadigan suv haroratida 63°C gacha ishlashga imkon beradi. PRO-DIALOG boshqaruvi standart qurilmalarning barcha afzalliklarini, shuningdek, kondensatordan chiqadigan suv haroratini boshqarishni taklif etadi.
Asosiy o'zgartirishlar:
- 30GX kompressorlaridan foydalanish
- Yuqori kondensatsiya haroratiga mo'ljallangan kompressorlar bilan ishlash uchun elektr komponentlarini o'zgartirish.
- Bosim kodining talablariga javob berish uchun issiqlik almashinuvchilarni o'zgartirish (agar kerak bo'lsa).
150-variant
Ushbu qurilmalar suv bilan sovutiladigan qurilmalar uchun an'anaviy ilovalar uchun mo'ljallangan, ammo 45°C dan yuqori kondensatordan chiqadigan suv harorati uchun.
Standart qurilmalar singari, ular quvurlarga o'rnatilgan kondensatorga kiradigan va chiqadigan suv sensorlari bilan jihozlangan.
Mashinani kondensator suvining chiqish joyida boshqarish mumkin, bu zavod konfiguratsiyasini o'zgartirishni va isitish/sovutish kirish joyini teskari o'zgartirish moslamasidan foydalanishni talab qiladi.
150A-variant
Ushbu qurilmalar suvdan suvga issiqlik nasoslari uchun mo'ljallangan.
Ular zavodda issiqlik nasoslari sifatida konfiguratsiya qilingan (masofadan teskari o'zgartirish moslamasining funktsiyasi sifatida isitish/sovutishni boshqarish). Kondensator evaporatatorning issiqlik izolyatsiyasiga o'xshash issiqlik izolyatsiyasini o'z ichiga oladi.
Texnik ma'lumotlar
Barcha ma'lumotlar standart 30HXC qurilmalarining ma'lumotlari bilan bir xil, quyidagi paragraflardan tashqari.
Tanlash
Ushbu turdagi qurilma uchun nominal shartlar mavjud emas. Tanlash joriy elektron katalog yordamida amalga oshiriladi.
O'lchamlar
Ular standart 30HXC qurilmalarining o'lchamlari bilan bir xil. Yagona farq "Tavsiya etilgan tanlov" bobida tavsiflangan kiruvchi maydon simlarini ulash diametrida. Simlarni ulashdan oldin ushbu qurilmalar uchun o'lchamli chizmalarga murojaat qiling.
Kompressor
30GX kompressor jadvaliga qarang.
Opsiyalar va aksessuarlar
Standart 30HXC qurilmalari uchun mavjud bo'lgan barcha opsiyalar mos keladi, bundan tashqari:
| 5-variant, sho'r suvli qurilma | Maxsus qurilma |
| 25-variant, yumshoq ishga tushirish, 30HXC 200-375 qurilmalari | Mavjud emas |
Diqqat:
Agar qurilmalar ikki xil ish rejimiga ega bo'lsa - biri yuqori kondensatsiya harorati bilan, ikkinchisi past kondensatsiya harorati bilan - va o'tish qurilma ishlayotgan paytda amalga oshirilsa, harorat daqiqasiga 3 K dan ko'p bo'lmagan miqdorda o'zgarishi kerak. Agar bu mumkin bo'lmasa, qurilmani ishga tushirish/to'xtatish kalitidan o'tish tavsiya etiladi (standart qurilmalar uchun masofadan ishga tushirish/to'xtatish mavjud).
30GX FIZIK MA'LUMOTLARI
| 30GX | 082 | 092 | 102 | 112 | 122 | 132 | 152 | 162 | 182 | 207 | 227 | 247 | 267 | 298 | 328 | 358 | ||
| Sof sovutish quvvati | kVt | 285 | 309 | 332 | 388 | 417 | 450 | 505 | 536 | 602 | 687 | 744 | 810 | 910 | 1003 | 1103 | 1207 | |
| Ishlash og'irligi | kg | 3116 | 3157 | 3172 | 3515 | 3531 | 3633 | 3920 | 3936 | 4853 | 5540 | 5570 | 6134 | 6365 | 7354 | 7918 | 8124 | |
| Sovutgich zaryadi | HFC-134a | |||||||||||||||||
| A/B zanjiri | kg | 55/55 | 58/50 | 54/53 | 55/53 | 60/57 | 63/60 | 75/69 | 75/75 | 80/80 | 130/85 | 130/85 | 155/98 | 170/104 | 162/150 | 162/165 | 175/175 | |
| Moy | Poliester moyi CARRIER SPEC: PP 47-32 | |||||||||||||||||
| A/B zanjiri | l | 20/20 | 20/20 | 20/20 | 20/20 | 20/20 | 20/20 | 20/20 | 20/20 | 20/20 | 40/20 | 40/20 | 40/20 | 40/20 | 40/40 | 40/40 | 40/40 | |
| Kompressorlar | Germetik egizak vintli Power3 | |||||||||||||||||
| A aylanasi, har bir kompressor uchun nom. o'lcham** | 46 | 46 | 56 | 56 | 66 | 66 | 80 | 80 | 80+ | 66/56 | 80/66 | 80/80 | 80+/80+ | 80/80 | 80/80 | 80+/80+ | ||
| B aylanasi, har bir kompressor uchun nom. o'lcham** | 39 | 46 | 46 | 56 | 56 | 66 | 66 | 80 | 80+ | 80 | 80 | 80 | 80+ | 66/66 | 80/802 | 80+/80+ | ||
| Boshqaruv turi | PRO-DIALOG Plus boshqaruvi | |||||||||||||||||
| Quvvat qadamlari soni | 6 | 6 | 6 | 6 | 6 | 6 | 6 | 6 | 6 | 8 | 8 | 8 | 8 | 10 | 10 | 10 | ||
| Minimal quvvat | % | 19 | 21 | 19 | 21 | 19 | 21 | 19 | 21 | 21 | 16 | 14 | 14 | 14 | 9 | 10 | 10 | |
| Evaporatator | Ichki qanotli mis quvurlari bilan qoplangan va quvurli tur | |||||||||||||||||
| Sof suv hajmi | l | 65 | 73 | 73 | 87 | 87 | 101 | 91 | 91 | 109 | 140 | 140 | 165 | 181 | 203 | 229 | 229 | |
| Suv ulanishlari | Zavodda yetkazib berilgan tekis flanes, joyida payvandlanadi | |||||||||||||||||
| Kirish va chiqish | dyuym | 4 | 4 | 4 | 5 | 5 | 5 | 5 | 5 | 5 | 6 | 6 | 6 | 6 | 8 | 8 | 8 | |
| Drenaj va ventilyatsiya (NPT) | dyuym | 3/8 | 3/8 | 3/8 | 3/8 | 3/8 | 3/8 | 3/8 | 3/8 | 3/8 | 3/8 | 3/8 | 3/8 | 3/8 | 3/8 | 3/8 | 3/8 | |
| Maks. suv tomonidagi ish bosimi | kPa | 1000 | 1000 | 1000 | 1000 | 1000 | 1000 | 1000 | 1000 | 1000 | 1000 | 1000 | 1000 | 1000 | 1000 | 1000 | 1000 | |
| Kondensatorlar | Mis quvurlari va alyuminiy qanotlar | |||||||||||||||||
| Fanatlar | Aylanadigan qopqoqli eksenel FLYING BIRD 2 fanati | |||||||||||||||||
| Miqdori | 4 | 4 | 4 | 6 | 6 | 6 | 8 | 8 | 8 | 10 | 10 | 12 | 12 | 14 | 16 | 16 | ||
| Tezlik | ayl/s | 15.8 | 15.8 | 15.8 | 15.8 | 15.8 | 15.8 | 15.8 | 15.8 | 15.8 | 15.8 | 15.8 | 15.8 | 15.8 | 15.8 | 15.8 | 15.8 | |
| Umumiy havo oqimi | l/s | 21110 | 21110 | 21110 | 31660 | 31660 | 31660 | 42220 | 42220 | 42220 | 52770 | 52770 | 63330 | 63330 | 73880 | 84440 | 84440 | |
* Standartlashtirilgan Eurovent shartlari: evaporatatorga kiradigan/chiqadigan suv harorati = 12°C/7°C, tashqi havo harorati = 35°C Sof sovutish quvvati: Umumiy sovutish quvvati ichki evaporatator bosimining pasayishiga qarshi suv nasosining issiqligidan ayriladi.
** Kompressorning o'lchami tonnalarda nominal quvvatga mos keladi (1 tonna = 3,517 kVt).
ELEKTR TA'MINOTI MA'LUMOTLARI 30GX
| 30HXC | 082 | 092 | 102 | 112 | 122 | 132 | 152 | 162 | 182 | 207 | 227 | 247 | 267 | 298 | 328 | 358 | ||
| Quvvat zanjiri | ||||||||||||||||||
| Nominal quvvat manbai* | V-ph-Hz | 400-3-50 | ||||||||||||||||
| Voltaj diapazoni | V | 360-440 | ||||||||||||||||
| Boshqaruv zanjiri ta'minoti | Boshqaruv zanjiri zavodda o'rnatilgan transformator orqali ta'minlanadi | |||||||||||||||||
| Nominal quvvat sarfi* | kW | 98 | 109 | 123 | 133 | 150 | 166 | 179 | 196 | 214 | 246 | 281 | 292 | 332 | 364 | 394 | 449 | |
| Nominal tok kuchi* | A | 180 | 200 | 223 | 256 | 273 | 290 | 326 | 352 | 388 | 449 | 492 | 528 | 582 | 642 | 704 | 776 | |
| Maks. quvvat sarfi** | kW | 127 | 141 | 154 | 175 | 191 | 207 | 234 | 253 | 286 | 319 | 355 | 380 | 429 | 462 | 506 | 572 | |
| A zanjiri | kW | - | - | - | - | - | - | - | - | - | 193 | 228 | 253 | 286 | 253 | 253 | 286 | |
| B zanjiri | kW | - | - | - | - | - | - | - | - | - | 127 | 127 | 127 | 143 | 209 | 253 | 286 | |
| Cosine phi, to'liq yuk ostida birlik | 0.85 | 0.85 | 0.85 | 0.85 | 0.85 | 0.85 | 0.86 | 0.86 | 0.86 | 0.86 | 0.86 | 0.86 | 0.86 | 0.86 | 0.86 | 0.86 | ||
| Maks. tok kuchi (Un - 10%)*** | A | 237 | 262 | 287 | 323 | 353 | 383 | 429 | 464 | 524 | 585 | 650 | 696 | 786 | 847 | 928 | 1048 | |
| A zanjiri | A | - | - | - | - | - | - | - | - | - | 353 | 418 | 464 | 524 | 464 | 464 | 524 | |
| B zanjiri | A | - | - | - | - | - | - | - | - | - | 232 | 232 | 232 | 262 | 383 | 464 | 524 | |
| Maksimal tok kuchi (Un)*** | A | 217 | 240 | 263 | 297 | 324 | 351 | 394 | 426 | 480 | 537 | 596 | 639 | 721 | 777 | 852 | 961 | |
| A zanjiri | A | - | - | - | - | - | - | - | - | - | 324 | 383 | 426 | 480 | 426 | 426 | 480 | |
| B zanjiri | A | - | - | - | - | - | - | - | - | - | 213 | 213 | 213 | 240 | 351 | 426 | 480 | |
| Maks. ishga tushish toki, stand. qurilma**** (Un) | A | 334 | 357 | 401 | 435 | 468 | 495 | 590 | 622 | 662 | 1338 | 1631 | 1674 | 1767 | 1812 | 1887 | 2008 | |
| A zanjiri*** | A | - | - | - | - | - | - | - | - | - | 1125 | 1418 | 1461 | 1527 | 1461 | 1461 | 1527 | |
| B zanjiri*** | A | - | - | - | - | - | - | - | - | - | 1248 | 1248 | 1248 | 1287 | 1152 | 1461 | 1527 | |
| Maks. ishga tushish toki/maks. tok kuchi nisbati, qurilma | 1.54 | 1.49 | 1.53 | 1.47 | 1.44 | 1.41 | 1.50 | 1.46 | 1.38 | 2.49 | 2.74 | 2.62 | 2.45 | 2.33 | 2.22 | 2.09 | ||
| Maks. ishga tushish toki/maks. tok kuchi nisbati, A zanjiri | - | - | - | - | - | - | - | - | - | 3.47 | 3.70 | 3.43 | 3.18 | 3.43 | 3.43 | 3.18 | ||
| Maks. ishga tushish toki/maks. tok kuchi nisbati, B zanjiri | - | - | - | - | - | - | - | - | - | 5.86 | 5.86 | 5.86 | 5.36 | 3.28 | 3.43 | 3.18 | ||
| Maks. ishga tushish toki - kamaytirilgan tok bilan ishga tushirish (Un) **** | A | stand. | stand. | stand. | stand. | stand. | stand. | stand. | stand. | stand. | 878 | 955 | 998 | 1102 | 1136 | 1211 | 1343 | |
| A zanjiri | A | stand. | stand. | stand. | stand. | stand. | stand. | stand. | stand. | stand. | 665 | 742 | 785 | 862 | 785 | 785 | 862 | |
| B zanjiri | A | stand. | stand. | stand. | stand. | stand. | stand. | stand. | stand. | stand. | 572 | 572 | 572 | 622 | 692 | 785 | 862 | |
| Maks. ishga tushirish toki - kamaytirilgan tok bilan ishga tushirish/ maks. tok kuchi nisbati, qurilma | stand. | stand. | stand. | stand. | stand. | stand. | stand. | stand. | stand. | 1.64 | 1.60 | 1.56 | 1.53 | 1.46 | 1.42 | 1.40 | ||
| A zanjiri | stand. | stand. | stand. | stand. | stand. | stand. | stand. | stand. | stand. | 2.05 | 1.94 | 1.84 | 1.79 | 1.84 | 1.84 | 1.79 | ||
| B zanjiri | stand. | stand. | stand. | stand. | stand. | stand. | stand. | stand. | stand. | 2.69 | 2.69 | 2.69 | 2.39 | 1.97 | 1.84 | 1.79 | ||
| Uch fazali qisqa tutashuvni ushlab turish toki | kA | 25 | 25 | 25 | 25 | 25 | 25 | 25 | 25 | 25 | N/A | N/A | N/A | N/A | N/A | N/A | N/A | |
| A zanjiri | kA | - | - | - | - | - | - | - | - | - | 25 | 25 | 25 | 25 | 25 | 25 | 25 | |
| B zanjiri | kA | - | - | - | - | - | - | - | - | - | 25 | 25 | 25 | 25 | 25 | 25 | 25 | |
| Mijozning kutish quvvati, qurilma yoki A zanjiri, evaporatator suv nasosining ulanishlari uchun† | kW | 4 | 4 | 4 | 5.5 | 5.5 | 5.5 | 7.5 | 7.5 | 7.5 | 7.5 | 9 | 9 | 9 | 15 | 15 | 15 | |
* Standart Eurovent sharoitlari: Evaporatatorga kiradigan/chiqadigan suv harorati 12°C va 7°C. Tashqi havo harorati 35°C.
** Quvvat sarfi, kompressor va fan, qurilmaning ishlash chegaralarida (evaporatatorga kiradigan/chiqadigan suv harorati = 15°C/10°C, tashqi havo harorati = 46°C) va 400 V nominal kuchlanishda (qurilma nomidagi ma'lumotlar).
*** Maksimal qurilma quvvat sarfida maksimal qurilma ish oqimi.
**** Maksimal bir zumlik ishga tushirish toki (eng kichik kompressor(lar)ning maksimal ish oqimi + fan toki + bloklangan rotor toki yoki eng katta kompressorning kamaytirilgan ishga tushirish toki).
† Tok va quvvat sarfi yuqoridagi qiymatlarga kiritilmagan
N/A Mavjud emas
Kompressorlar
| Ma'lumotnoma | Hajmi | I nom. | MHA | LRA | LRA (Y) | LRA (S) 1 cp. | LRA (S) 2 cp. |
| 06NA2146S7N | 39 | 70 | 95 | 605 | 191 | 220 | - |
| 06NA2174S7N | 46 | 90 | 120 | 715 | 226 | 260 | - |
| 06NA2209S7N | 56 | 113 | 145 | 856 | 270 | 330 | 420 |
| 06NA2250S7N | 66 | 130 | 175 | 960 | 303 | 380 | 500 |
| 06NA2300S5N | 80 | 156 | 210 | 1226 | 387 | 445 | 550 |
| 06NA2300S5E | 80+ | 174 | 240 | 1265 | 400 | 460 | 600 |
Afsona:
| 06NA | Havo bilan sovutiladigan qurilmalar uchun kompressor |
| N | Iqtisod qilinmagan kompressor |
| E | Iqtisod qilingan kompressor |
| INOM | Eurovent sharoitlarida kompressorning o'rtacha tok sarfi |
| MHA | 360 V da amperlarni ushlab turishi kerak (maksimal ish oqimi) |
| LRA | To'g'ridan-to'g'ri ishga tushirish bilan bloklangan rotor toki |
| LRA (Y) | Kamaytirilgan tokda bloklangan rotor toki (yulduz/delta ishga tushirish rejimi) |
| LRA (S) 1 cp. | Elektron starter bilan kamaytirilgan tok bilan ishga tushirish (ishga tushirish davomiyligi maksimal 3 soniya) har bir zanjir uchun bitta kompressor uchun |
| LRA (S) 2 cp. | Elektron starter bilan kamaytirilgan tok bilan ishga tushirish (ishga tushirish davomiyligi maksimal 3 soniya) har bir zanjir uchun ikkita kompressor uchun |
QO'LLANISH MA'LUMOTLARI
Blokning ishlash diapazoni
| Evaporator | Minimum (Minimal) | Maximum (Maksimal) | |
| Evaporatorga kiradigan suv harorati | °C | 6.8* | 21 |
| Evaporatordan chiquvchi suv harorati | °C | 4** | 15 |
| Kondensator (suv bilan sovutiladigan) | Minimum (Minimal) | Maximum (Maksimal) | |
| Kondensatorga kiradigan suv harorati | °C | 20*** | 42 |
| Kondensatordan chiquvchi suv harorati | °C | 25 | 45 |
| Tashqi muhitning ishlash harorati 30HXC | °C | 6 | 40 |
| Kondensator (havo bilan sovutiladigan) | Minimum (Minimal) | Maximum (Maksimal) | |
| Tashqi muhitning ishlash harorati | °C | 0 | 46 |
| Mavjud statik bosim | kPa | 0 |
Eslatmalar:
* Agar 6,8°C dan past haroratda ishlashni talab qiladigan dastur uchun Carrier elektron katalogidan foydalangan holda blokni tanlash uchun Carrier s.a. bilan bog'laning.
** Agar 4°C dan past haroratda ishlashni talab qiladigan dastur uchun, bloklar antifrizdan foydalanishni talab qiladi.
*** Suv bilan sovutiladigan bloklar (30HXC) to'liq yukda va 20°C dan past kondensatorga kiradigan suv haroratida ishlaganda, analog suvni boshqarish klapanlari bilan bosimni boshqarish moslamasidan foydalanishni talab qiladi (bosimni boshqarish bo'limiga qarang).
Vaqtinchalik ishlash rejimlarida (ishga tushirish va qisman yukda) blok kondensatorga kiradigan havo harorati 13°C bo'lganda ishlashi mumkin.
Sovutilgan suvning minimal oqimi
Sovutilgan suvning minimal oqimi keyingi sahifadagi jadvalda ko'rsatilgan. Agar oqim bundan kam bo'lsa, evaporatordagi oqimni diagrammada ko'rsatilgandek qayta aylantirish mumkin. Evaporatordan chiquvchi aralashmaning harorati hech qachon sovutilgan suvning kirish haroratidan 2,8 K dan kam bo'lmasligi kerak.

SOVUTILGAN SUVNING MINIMAL OQIM tezLIGI UCHUN
Sovutilgan suvning maksimal oqimi
Sovutilgan suvning maksimal oqimi evaporatordagi maksimal ruxsat etilgan bosimning pasayishi bilan cheklangan. U keyingi sahifadagi jadvalda keltirilgan. Agar oqim maksimal qiymatdan oshsa, ikkita yechim mavjud:
- Yuqori maksimal suv oqimi tezligini ta'minlaydigan bitta suv o'tishi kam bo'lgan nostandart evaporatorni tanlang.
- Evaporatorning oqim tezligi pastroq bo'lgan yuqori harorat farqiga erishish uchun diagrammada ko'rsatilgandek, evaporatordan o'tib keting.

SOVUTILGAN SUVNING MAKSIMAL OQIM tezLIGI UCHUN
O'zgaruvchan oqimli evaporator
O'zgaruvchan evaporator oqimi standart 30HXC va 30GX chillerlarida ishlatilishi mumkin. Chillerlar barcha oqim sharoitlarida suvning doimiy chiqish haroratini saqlaydi. Buning sodir bo'lishi uchun minimal oqim tezligi ruxsat etilgan oqim tezliklari jadvalidagi minimal oqimdan yuqori bo'lishi va daqiqada 10% dan ko'pga o'zgarmasligi kerak. Agar oqim tezligi tezroq o'zgarsa, tizimda 3,25 l/kVt o'rniga har bir kVt uchun kamida 6,5 litr suv bo'lishi kerak.
Tizimning minimal suv hajmi
Tizim qanday bo'lishidan qat'i nazar, suv aylanishining minimal hajmi quyidagi formula bilan beriladi:
Hajmi = Cap (kVt) x N Litr
| Qo'llanilishi | N |
| Oddiy havo sovutish | 3.25 |
| Jarayon turidagi sovutish | 6.5 |
Bu yerda Cap - bu o'rnatishning nominal ish sharoitlarida tizimning nominal sovutish quvvati (kVt).
Ushbu hajm barqaror ishlash va haroratni aniq nazorat qilish uchun zarur.
Kerakli hajmga erishish uchun ko'pincha bufer suv idishini zanjirga qo'shish kerak. Idishning o'zi suyuqlikni (suv yoki tuz eritmasi) to'g'ri aralashtirishni ta'minlash uchun ichki to'siqlarga ega bo'lishi kerak. Quyidagi misollarga qarang.
ESLATMA: Kompressor bir soat ichida 6 martadan ko'p qayta ishga tushmasligi kerak.


Sovutgichning oqim tezligi (l/s)
| 30HXC | Min.* | Max.** | ||
| 080-090 | 5.7 | 22.7 | ||
| 100 | 6.0 | 24.1 | ||
| 110 | 6.9 | 27.5 | ||
| 120-130 | 8.3 | 33.0 | ||
| 140-155 | 10.0 | 39.5 | ||
| 175-190 | 10.7 | 42.7 | ||
| 200 | 13.4 | 53.7 | ||
| 230 | 13.4 | 60.6 | ||
| 260-285 | 17.0 | 68.1 | ||
| 310 | 19.4 | 77.8 | ||
| 345-375 | 21.3 | 85.3 | ||
| 30GX | Min.* | Max.** | ||
| 082 | 5.7 | 22.7 | ||
| 092-102 | 6.0 | 24.1 | ||
| 112-122 | 6.9 | 27.5 | ||
| 132 | 8.4 | 33.7 | ||
| 152-162 | 10.0 | 39.9 | ||
| 182 | 10.7 | 42.7 | ||
| 207-227 | 13.4 | 53.7 | ||
| 247 | 15.1 | 60.6 | ||
| 267 | 17.0 | 68.1 | ||
| 298 | 19.4 | 77.8 | ||
| 328-358 | 21.3 | 85.3 | ||
* Suvning tezligi 0.9 m/s ga asoslangan.
** Suvning tezligi 3.6 m/s ga asoslangan.
Kondensatorning oqim tezligi (l/s)
| 30HXC | Min.* Yopiq halqa | Ochiq halqa | Max.** |
| 080-110 | 2.5 | 7.5 | 29.9 |
| 120-130 | 3.1 | 9.3 | 37.3 |
| 140-155 | 3.8 | 11.4 | 45.5 |
| 175-190 | 4.6 | 13.8 | 55.2 |
| 200 | 5.0 | 14.9 | 59.6 |
| 230-285 | 6.7 | 20.1 | 80.3 |
| 310-375 | 7.3 | 22.0 | 88.0 |
* Yopiq halqada suvning tezligi 0.3 m/s ga va ochiq halqada 0.9 m/s ga asoslangan.
** Suvning tezligi 3.6 m/s ga asoslangan
Evaporatorning bosim pasayishi egri chizig'i

- 30HXC 080-090/30GX 082
- 30HXC 100/30GX 092-102
- 30HXC 110/30GX 112-122
- 30GX 132
- 30HXC 120-130
- 30HXC 140-155/30GX 152-162
- 30HXC 175-190/30GX 182
- 30HXC 200/30GX 207-227
- 30HXC 230/30GX 247
- 30HXC 260-285/30GX 267
- 30HXC 310/30GX 298
- 30HXC 345-375/30GX 328-358
Kondensatorning bosim pasayishi egri chizig'i

- 30HXC 080-090-100-110
- 30HXC 120-130
- 30HXC 140-155
- 30HXC 175-190
- 30HXC 200
- 30HXC 230-260-285
- 30HXC 310-345-375
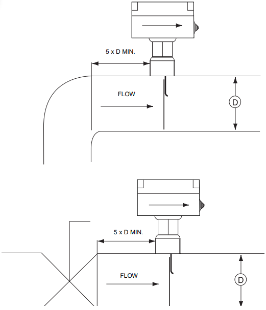
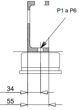
Oqim nazoratchilari
Sovutgich oqimi kaliti va sovitilgan suv nasosining blokirovkasi
30HXC va 30GX qurilmalarida sovutgich oqimi kalitini o'rnatish va sovitilgan suv nasosining blokirovkasini ulash majburiy hisoblanadi. Ushbu ko'rsatmaga rioya qilmaslik Carrier kafolatini bekor qiladi.
Sovutgich oqimi kaliti nazoratchisi zavodda 30HXC va 30GX qurilmalariga o'rnatilgan va sim bilan ulangan.
O'rnatish uchun ishlab chiqaruvchining ko'rsatmalariga amal qiling.
Oqim kaliti gorizontal trubaga yoki yuqoriga suyuqlik oqimi bo'lgan vertikal trubaga o'rnatilishi mumkin. Suyuqlik oqimi pastga yo'naltirilganda foydalanilmasligi kerak.
Oqim kalitining har bir tomonida kamida beshta truba diametri bo'lgan to'g'ri truba qismiga o'rnating. Klapanlar, tirsaklar yoki teshiklar yaqiniga joylashtirmang. Kurak hech qachon trubaga yoki trubadagi hech qanday cheklovga tegmasligi kerak. Oqim kalitini kurakning tekis qismi oqimga to'g'ri burchak ostida bo'ladigan qilib joylashtiring. Qopqoqdagi va pastki qismidagi, korpus ichidagi o'qlar oqim yo'nalishini ko'rsatishi kerak. Kalit shunday o'rnatilishi kerakki, terminallarga oson sim ulash uchun qulay bo'lsin.
34 va 35 terminallari sovitilgan suv nasosining blokirovkasini (sovitilgan suv nasosi kontaktorining yordamchi kontakti) joyida o'rnatish uchun ta'minlangan.
(Truba ulanishi: 1" NPT)

Kondensator oqimi kaliti (30HXC)
Kondensator oqimi kaliti - bu joyida o'rnatiladigan qurilma.
O'RNATISH
Qabul qilingan uskunani tekshiring
- Blokni shikastlangan yoki yetishmayotgan qismlar uchun tekshiring. Agar shikastlanish aniqlansa yoki jo'natma to'liq bo'lmasa, darhol yuk tashish kompaniyasiga da'vo arizasi bering.
- Olingan blok buyurtma qilingan blok ekanligini tasdiqlang. Nomi yozilgan ma'lumotlarni buyurtma bilan solishtiring.
- Saytda o'rnatish uchun buyurtma qilingan barcha aksessuarlar yetkazib berilganligini va ular to'liq va shikastlanmaganligini tasdiqlang.
- Nozik boshqaruv mexanizmi va elektron qurilmalar tufayli bloklarni ob-havoga ta'sir qiladigan joyda saqlamang.
Blokni ko'chirish va joylashtirish
Ko'chirish
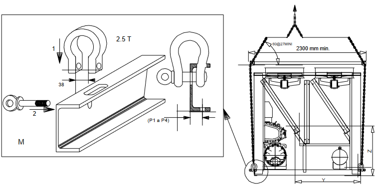
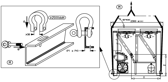
Blok oxirgi holatiga kelmaguncha, tagliklarni, palletlarni yoki himoya qadoqlarini olib tashlamang. Sovutgichni trubalar yoki roliklar yordamida ko'chiring yoki to'g'ri sig'imli slinglardan foydalanib, uni ko'taring.
(30HXC)
Faqat sovutgichning yuqori qismida, blokda belgilangan ko'tarish nuqtalarida slinglardan foydalaning. Issiqlik almashinuvchining pastki qismidan jihozlash blokni xavfli tarzda ko'tarilishiga olib keladi. Shaxsiy jarohatlar yoki blokning shikastlanishi mumkin. Blok bilan birga taqdim etilgan sertifikatlangan o'lchamli chizmada berilgan jihozlash ko'rsatmalariga amal qiling.
Joylashtirish
Barcha ulanishlar va xizmat ko'rsatish uchun yetarli joy borligini tasdiqlash uchun har doim "O'lchamlar va oraliqlar" bobiga murojaat qiling. Og'irlik markazi koordinatalari, blokni o'rnatish teshiklarining joylashuvi va og'irlik taqsimoti nuqtalari uchun blok bilan birga taqdim etilgan sertifikatlangan o'lchamli chizmaga murojaat qiling.
Ushbu sovutgichlarni podvalda yoki yer darajasida o'rnatishni tavsiya etamiz. Agar uni yer sathidan yuqoriroq o'rnatish kerak bo'lsa, avval ruxsat etilgan pol yukining yetarli ekanligini va polning yetarlicha mustahkam va tekis ekanligini tekshiring. Agar kerak bo'lsa, polni mustahkamlang va tekislang.
Sovutgichni oxirgi joylashuviga keltirgandan so'ng, tagliklarni va uni ko'chirishga yordam beradigan boshqa qurilmalarni olib tashlang. Blokni shpiritli o'lchagich yordamida tekislang va blokni polga yoki poydevorga murvat bilan mahkamlang. Agar ushbu bloklar tekis bo'lmasa va o'z o'rindiqlariga mahkam o'rnatilmagan bo'lsa, ularning ishlashi buzilishi mumkin. Agar kerak bo'lsa, tebranishni izolyatsiya qilishga yordam berish uchun blok ostiga izolyatsiya yostiqchalaridan foydalaning.
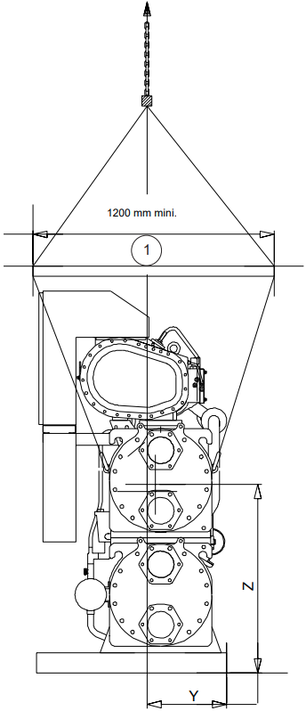
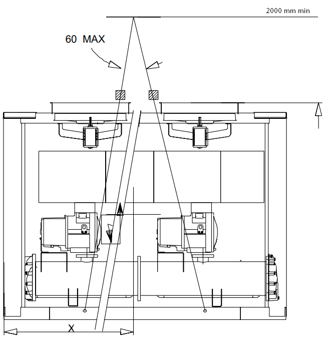
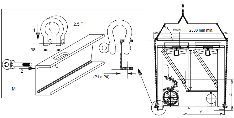
KO'TARISH BO'YICHA YO'RIQNOMA
30HXC 080-190
Ushbu diagramma faqat ma'lumot uchun ko'rsatilgan. "Sertifikatlangan chizmalar" ga murojaat qiling.

- 30HXC 190 DAN TASHQARI
X mm Y mm Z mm 30HXC080
30HXC090
30HXC1001345 402 903 30HXC110 1368 397 935 30HXC120
30HXC130
30HXC140
30HXC1551731 392 879 30HXC175 1703 386 947 30HXC190 1705 398 955


ESLATMA
Barcha ko'tarish va joylashtirish operatsiyalari tugagandan so'ng, ko'tarish quloqlarida bo'yoq olib tashlangan barcha yuzalarni tozalash tavsiya etiladi.
30HXC 200-285
Ushbu diagramma faqat ma'lumot uchun ko'rsatilgan. "Sertifikatlangan chizmalar" ga murojaat qiling.


30HXC 310-375


| X mm | Y mm | Z mm | |
| 30HXC310 | 2195 | 425 | 1085 |
| 30HXC345 | 2195 | 425 | 1085 |
| 30HXC375 | 2205 | 435 | 1025 |
ESLATMA
Barcha ko'tarish va joylashtirish operatsiyalari tugagandan so'ng, ko'tarish quloqlarida bo'yoq olib tashlangan barcha yuzalarni tozalash tavsiya etiladi.
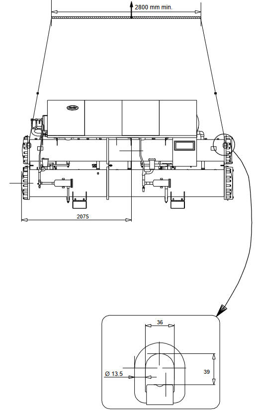
30GX 082-162
Ushbu diagramma faqat ma'lumot uchun ko'rsatilgan. "Sertifikatlangan chizmalar" ga murojaat qiling.



| X mm | Y mm | Z mm | PTkg | |
| 30GX082 | 1440 | 1460 | 900 | 3115 |
| 30GX092 | 1440 | 1460 | 900 | 3156 |
| 30GX102 | 1440 | 1460 | 900 | 3170 |
| 30GX112 | 1650 | 1460 | 900 | 3574 |
| 30GX122 | 1650 | 1460 | 900 | 3527 |
| 30GX132 | 1650 | 1460 | 900 | 3634 |
| 30GX152 | 2155 | 1430 | 900 | 3938 |
| 30GX162 | 2155 | 1430 | 900 | 3954 |
30GX 182



| X mm | Y mm | Z mm | PTkg | |
| 30GX182 | 3030 | 1370 | 875 | 4853 |
ESLATMA
Barcha ko'tarish va joylashtirish operatsiyalari tugagandan so'ng, ko'tarish qulog'ida bo'yoq olib tashlangan barcha yuzalarni tozalash tavsiya etiladi.
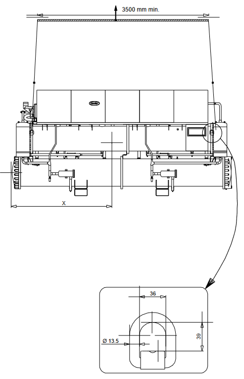
30GX 207-267
Ushbu diagramma faqat ma'lumot uchun ko'rsatilgan. "Sertifikatlangan chizmalar" ga murojaat qiling.



| X mm | Y mm | Z mm | PTkg | |
| 30GX207 | 2870 | 1440 | 890 | 5536 |
| 30GX227 | 2870 | 1440 | 890 | 5572 |
| 30GX247 | 3320 | 1430 | 927 | 6131 |
| 30GX267 | 3300 | 1420 | 886 | 6363 |
30GX 298-358



| X mm | Y mm | Z mm | PTkg | |
| 30GX298 | 3630 | 1420 | 890 | 7353 |
| 30GX328 | 4360 | 1455 | 920 | 7840 |
| 30GX358 | 4360 | 1445 | 930 | 8045 |
ESLATMA
Barcha ko'tarish va joylashtirish operatsiyalari tugagandan so'ng, ko'tarish quloqlarida bo'yoq olib tashlangan barcha yuzalarni tozalash tavsiya etiladi.
Quvur ulanishlari
Barcha suv kirish va chiqish ulanishlarining o'lchamlari va joylashuvi uchun sertifikatlangan o'lchamli chizmalarga murojaat qiling. Suv quvurlari issiqlik almashinuvchilarga radial yoki eksenel kuchni yoki quvurlarga yoki binoga tebranishni uzatmasligi kerak.
Suv ta'minoti tahlil qilinishi va zarur bo'lganda tegishli filtrlash, tozalash, boshqarish moslamalari, izolyatsiya va havo chiqarish klapanlari va zanjirlari o'rnatilishi kerak. Suvni tozalash bo'yicha mutaxassis yoki bu mavzu bo'yicha tegishli adabiyotlar bilan maslahatlashing.
Ishlashda ehtiyot choralari
Suv zanjiri eng kam sonli tirsaklar va turli darajalarda gorizontal quvur yo'llariga ega bo'lishi uchun mo'ljallangan bo'lishi kerak. Quyidagi asosiy tekshiruvlar amalga oshirilishi kerak (shuningdek, quyida tipik gidravlik zanjirning rasmini ko'ring).
- Issiqlik almashinuvchilarining suv kirish va chiqish joylariga e'tibor bering.
- Suv zanjiridagi barcha yuqori nuqtalarga qo'lda yoki avtomatik havo chiqarish klapanlarini o'rnating.
- Tizimdagi bosimni ushlab turish uchun kengaytirish kamerasi yoki kengaytirish/bo'shatish klapanidan foydalaning.
- Bug'latgichga yaqin joyda kiruvchi va chiquvchi suv ulanishlariga suv termometrlari va bosim o'lchagichlarini o'rnating.
- Butun zanjirni to'kishga imkon berish uchun barcha past nuqtalarga to'kish klapanlarini o'rnating. Sovutgichni ishlatishdan oldin to'kish liniyasiga to'xtatish klapanini ulang.
- Kiruvchi va chiquvchi suv liniyalarida bug'latgichga yaqin joyda to'xtatish klapanlari va bosim o'lchagichlarini o'rnating.
- Sovutgich oqimining o'tkazgichini o'rnating.
- Quvurlarga tebranishni kamaytirish uchun moslashuvchan ulanishlardan foydalaning.
- Issiqlik yo'qotilishini kamaytirish va kondensatsiyani oldini olish uchun barcha quvurlarni qochqinlarni tekshirgandan so'ng izolyatsiya qiling.
- Izolyatsiyani bug 'to'sig'i bilan yoping.
Bug'latgich va kondensator ulanishlari
Bug'latgich va kondensator ko'p trubkali qobiq va trubka turiga ega bo'lib, trubkalarni tozalashni osonlashtirish uchun olinadigan suv qutilari mavjud.
Suv ulanishlarini amalga oshirishdan oldin, ko'rsatilgan usulga rioya qilib, ikkala boshdagi murvatlarni ko'rsatilgan pastki momentga torting. Murvatning o'lchamiga qarab (jadvalga qarang) ko'rsatilgan diapazonning pastki uchida moment qiymatidan foydalanib, juftlarda va ko'rsatilgan tartibda torting.
Quvurlarni gardishga payvandlashdan oldin suv qutisidan zavodda yetkazib berilgan tekis gardishni olib tashlang. Gardishni olib tashlamaslik sensorlar va izolyatsiyaga zarar yetkazishi mumkin.
ESLATMA
Quvurlar ulangan boshlarning murvatlari to'g'ri va bir xilda tortilganligiga ishonch hosil qilish uchun tizimni to'kish va quvurlarni uzishni tavsiya etamiz.
Muzlashdan himoya qilish
Bug'latgich va suv bilan sovutiladigan kondensatorni himoya qilish
Agar sovutgich yoki suv quvurlari atrof-muhit harorati 0°C dan pastga tushishi mumkin bo'lgan joyda bo'lsa, blokni va suv quvurlarini eng past haroratdan 8 K pastroq haroratgacha himoya qilish uchun antifriz eritmasini qo'shish tavsiya etiladi. Faqat issiqlik almashinuvchi uchun tasdiqlangan antifriz eritmasidan foydalaning. Agar tizim antifriz eritmasi bilan himoyalanmagan bo'lsa va muzlash ob-havo sharoitida ishlatilmasa, sovutgich va tashqi quvurlarni to'kish majburiydir. Muzlash tufayli kelib chiqqan zarar kafolat bilan qoplanmaydi.
Suv qutisini tortish tartibi

Afsona
- 1-ketma-ketlik: 1 2 3 4
2-ketma-ketlik: 5 6 7 8
3-ketma-ketlik: 9 10 11 12 - Tortish momenti
Murvat o'lchami M16 - 171 - 210 Nm
Tipik gidravlik zanjir diagrammasi

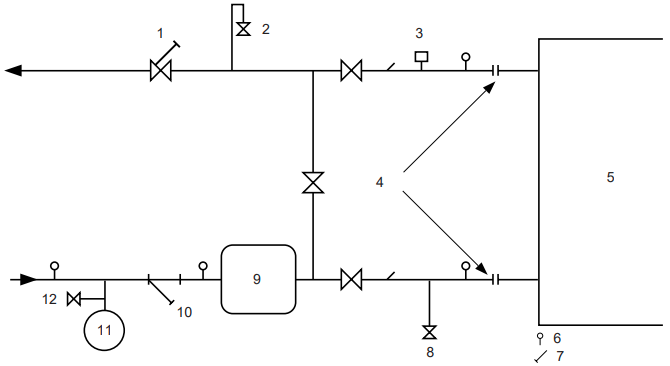
Afsona
- Boshqaruv klapani
- Havo chiqarish
- Oqim o'tkazgichi
- Moslashuvchan ulanish
- Issiqlik almashinuvchi
- Bosim o'lchash nuqtasi
- Termostat gilzi
- To'kish
- Bufer tanki
- Filtr
- Kengaytirish tanki
- To'ldirish klapani
ELEKTR XUSUSIYATLARI
- 30HXC 080-190 va 30GX 082-182 faqat bitta quvvatni uzish/izolyatsiya qilish kalitiga ega.
- 30HXC 200-375 va 30GX 207-358 ikkita quvvatni uzish/izolyatsiya qilish kalitiga ega.
- Boshqaruv qutisi quyidagilarni standart sifatida o'z ichiga oladi:
- Har bir kompressor va fan uchun starterlar va motor himoya qurilmalari
- Boshqaruv komponentlari
- Saytda ulanishlar:
Barcha asosiy ulanishlar va elektr o'rnatish saytga tegishli direktivalarga muvofiq amalga oshirilishi kerak. - 30HXC va 30GX ushbu direktivalarga muvofiqlikni osonlashtirish uchun mo'ljallangan. 30HXC va 30GX uchun elektr jihozlarining muhandisligi Yevropa standarti EN 60204-1 (mashinalar xavfsizligi - mashinalarning elektr jihozlari - 1-qism: umumiy qoidalar) ni hisobga oladi.
Standart EN 60204-1 Mashinalar direktivasi § 1.5.1 talablariga javob berishning yaxshi usuli hisoblanadi. Normativ tavsiya IEC 364, odatda, o'rnatish qoidalarining talablariga javob beradi deb tan olinadi.
Standart EN 60204-1 ning B ilovasi mashinalar ishlaydigan elektr xususiyatlarini tavsiflash uchun ishlatilishi mumkin.
30HXC
- Standart 30HXC uchun ish sharoitlari quyida tavsiflangan:
- Atrof-muhit sharoitlari(1). Atrof-muhit klassifikatsiyasi IEC 364 § 3 standartida tavsiflangan:
- Atrof-muhit harorati diapazoni: + 6°C dan + 40°C gacha, AA4 klassifikatsiyasi
- Namlik diapazoni (kondensatsiyalanmaydigan)
40°C da 50% rh
20°C da 90% rh - Balandlik - 2000 m(1)
- Ichki o'rnatish uchun
- Suvning mavjudligi: AD2 klassifikatsiyasi(1) (suv tomchilarining ehtimoli)
- Qattiq moddalarning mavjudligi: AE2 klassifikatsiyasi(1) (ahamiyatsiz zarrachalarning mavjudligi)
- Korroziv moddalar va ifloslantiruvchi moddalarning mavjudligi, AF1 klassifikatsiyasi (e'tiborga olinmaydigan)
- Vibratsiya, zarba: AG2, AH2 klassifikatsiyasi. Xodimlarning malakasi: BA4 klassifikatsiyasi(1) (IEC 364 ga muvofiq malakali xodimlar).
- Atrof-muhit sharoitlari(1). Atrof-muhit klassifikatsiyasi IEC 364 § 3 standartida tavsiflangan:
(1) Ushbu klassifikatsiya bo'yicha talab qilinadigan himoya standarti IP21B (IEC 529 ma'lumotnoma hujjatiga muvofiq). Barcha 30HXC IP23C himoya standartiga ega va shuning uchun ushbu himoya talabini bajaradi.
30GX
- 30GX uchun ish sharoitlari quyida tavsiflangan:
- Atrof-muhit sharoitlari(2). Atrof-muhit klassifikatsiyasi EN 60721 standartida tavsiflangan:
- Tashqi o'rnatish uchun(2)
- Atrof-muhit harorati diapazoni: - 18°C dan + 46°C gacha, 4K3 klassifikatsiyasi(2)
- Balandlik 2000 m(2)
- Qattiq moddalarning mavjudligi: 4S2 klassifikatsiyasi (ahamiyatsiz zarrachalarning mavjudligi)
- Korroziv moddalar va ifloslantiruvchi moddalarning mavjudligi: 4C2 klassifikatsiyasi (e'tiborga olinmaydigan)
- Vibratsiya, zarba: 4M2 klassifikatsiyasi
- Atrof-muhit sharoitlari(2). Atrof-muhit klassifikatsiyasi EN 60721 standartida tavsiflangan:
Xodimlarning malakasi: BA4 klassifikatsiyasi(2) (IEC 364 ga muvofiq malakali xodimlar).
(2) Ushbu klassifikatsiya bo'yicha talab qilinadigan himoya standarti IP43BW (IEC 529 ma'lumotnoma hujjatiga muvofiq). Barcha 30GX IP45CW himoya standartiga ega va shuning uchun ushbu himoya talabini bajaradi.
30HXC/GX
- Elektr ta'minoti chastotasining o'zgarishi: ± 2 Hz
- Elektr ta'minoti o'tkazgichlari uchun haddan tashqari oqimdan himoya qurilma bilan birga ta'minlanmaydi.
- Zavodda o'rnatilgan uzish/izolyatsiya qilish kaliti "a" turidagi izolyator hisoblanadi. (EN60204-1 § 5.3.2).
DIQQAT: Agar o'rnatishning muayyan jihatlari yuqorida sanab o'tilganlardan (yoki bu erda ko'rsatilmagan xususiyatlardan) farqli xususiyatlarni talab qilsa, Carrier vakilingizga murojaat qiling.
Elektr ta'minoti
Elektr ta'minoti chillerning nom plastinkasidagi spetsifikatsiyaga mos kelishi kerak. Ta'minot kuchlanishi elektr ma'lumotlari jadvalida ko'rsatilgan diapazonda bo'lishi kerak.
Ulanishlar uchun simlar diagrammalariga qarang.
Chillerning noto'g'ri ta'minot kuchlanishi yoki haddan tashqari faza nomutanosibligi bilan ishlashi Carrier kafolatini bekor qiladigan suiiste'mol hisoblanadi. Agar faza nomutanosibligi kuchlanish uchun 2% dan yoki oqim uchun 10% dan oshsa, darhol mahalliy elektr ta'minoti bilan bog'laning va tuzatish choralari ko'rilmaguncha chiller yoqilmasligiga ishonch hosil qiling.
Kuchlanish fazasining nomutanosibligi (%):
100 x o'rtacha kuchlanishdan maksimal og'ish
O'rtacha kuchlanish
Misol:
400 V - 3 ph - 50 Hz ta'minotida individual faza kuchlanishlari quyidagicha o'lchandi:
AB = 406 V; BC = 399; AC = 394 V
| O'rtacha kuchlanish | = (406 + 399 + 394)/3 = 1199/3 |
| = 399.7 taxminan 400 V |
400 V o'rtachadan maksimal og'ishni hisoblang:
(AB) = 406 - 400 = 6
(BC) = 400 - 399 = 1
(CA) = 400 - 394 = 6

O'rtachadan maksimal og'ish 6 V. Eng katta foiz og'ishi:
100 x 6/400 = 1.5 %
Bu ruxsat etilgan 2% dan kam va shuning uchun qabul qilinadi.
TAVSIYA ETILADIGAN SIM kesimlari
Sim o'lchamini aniqlash o'rnatuvchining zimmasida va har bir o'rnatish joyiga tegishli bo'lgan xususiyatlar va qoidalarga bog'liq. Quyidagi ma'lumotlar faqat qo'llanma sifatida ishlatilishi kerak va Carrier kompaniyasini hech qanday tarzda javobgar qilmaydi. Sim o'lchamini aniqlash tugallangandan so'ng, sertifikatlangan o'lchov chizmasidan foydalanib, o'rnatuvchi oson ulanishni ta'minlashi va saytda zarur bo'lgan har qanday o'zgartirishlarni aniqlashi kerak.
Umumiy uzish/izolyator kalitiga dala orqali ta'minlangan quvvat kirish kabellari uchun standart sifatida taqdim etilgan ulanishlar quyidagi jadvalda keltirilgan simlarning soni va turi uchun mo'ljallangan.
Hisoblar mashinaning maksimal tokiga asoslangan (elektr ma'lumotlari jadvallariga qarang).
Loyihalashtirish uchun IEC 364, 52C jadvaliga muvofiq quyidagi standartlashtirilgan o'rnatish usullari qo'llaniladi:
- Bino ichida o'rnatilgan 30HX qurilmalari uchun: №13: teshilgan gorizontal kabel trubkasi va № 41: yopiq trubka.
- Bino tashqarisida o'rnatilgan 30GX qurilmalari uchun: №17: osilgan havo liniyalari va № 61: 20% kamaytirish koeffitsienti bilan ko'milgan trubka.
Hisoblash mis yoki alyuminiy o'zakli PVX yoki XLPE izolyatsiyalangan kabellarga asoslangan. Maksimal harorat 30HX qurilmalari uchun 40°C va 30GX qurilmalari uchun 46°C.
Berilgan sim uzunligi kuchlanishning < 5% gacha pasayishini cheklaydi.
| Unit (Qurilma) | Min. (mm2) by phase (faza bo'yicha) | Wire type (Sim turi) | L (m) | Max. (mm2) by phase (faza bo'yicha) | Wire type (Sim turi) | L (m) |
| 30HX 080 | 1 x 35 | XLPE Cu | 140 | 1 x 120 | PVC Al | 260 |
| 30HX 090 | 1 x 50 | XLPE Cu | 160 | 1 x 120 | PVC Al | 260 |
| 30HX 100 | 1 x 50 | XLPE Cu | 160 | 1 x 95 | XLPE Al | 195 |
| 30HX 110 | 1 x 70 | XLPE Cu | 170 | 1 x 120 | XLPE Al | 205 |
| 30HX 120/130 | 1 x 70 | XLPE Cu | 170 | 1 x 150 | XLPE Al | 210 |
| 30HX 140 | 1 x 95 | XLPE Cu | 180 | 1 x 185 | XLPE Al | 220 |
| 30HX 155 | 1 x 95 | XLPE Cu | 180 | 1 x 240 | XLPE Al | 225 |
| 30HX 175 | 1 x 120 | XLPE Cu | 185 | 1 x 240 | XLPE Al | 225 |
| 30HX 190 | 1 x150 | XLPE Cu | 190 | 2 x 95 | XLPE Al | 195 |
| 30HX 200 ckt A | 1 x 70 | XLPE Cu | 170 | 2 x120 | PVC Al | 325 |
| 30HX 230 ckt A | 1 x 95 | XLPE Cu | 180 | 2 x 120 | PVC Al | 325 |
| 30HX 260 ckt A | 1 x 120 | XLPE Cu | 185 | 1 x 240 | XLPE Al | 225 |
| 30HX 285 ckt A | 1 x 150 | XLPE Cu | 190 | 2 x 150 | XLPE Al | 265 |
| 30HX 200 ckt B | 1 x 35 | XLPE Cu | 140 | 1 x 95 | PVC Al | 250 |
| 30HX 230 ckt B | 1 x 35 | XLPE Cu | 140 | 1 x 120 | PVC Al | 260 |
| 30HX 260 ckt B | 1 x 35 | XLPE Cu | 140 | 1 x 120 | PVC Al | 260 |
| 30HX 285 ckt B | 1 x 50 | XLPE Cu | 160 | 2 x 70 | PVC Al | 285 |
| 30HX 310 ckt A & B | 1 x 95 | XLPE Cu | 180 | 1 x 240 | XLPE Al | 225 |
| 30HX 345 ckt A & B | 1 x 120 | 185 | 1 x 240 | XLPE Al | 225 | |
| 30HX 375 ckt A & B | 1 x 150 | XLPE Cu | 190 | 2 x 150 | XLPE Al | 265 |
| 30GX 082 | 1 x 95 | XLPE Cu | 190 | 2 x 185 | PVC Al | 420 |
| 30GX 092 | 1 x 120 | XLPE Cu | 195 | 2 x 185 | PVC Al | 420 |
| 30GX 102 | 1 x 120 | XLPE Cu | 195 | 2 x 240 | PVC Al | 450 |
| 30GX 112 | 1 x 150 | XLPE Cu | 200 | 2 x 150 | XLPE Al | 300 |
| 30GX 122 | 1 x 185 | XLPE Cu | 205 | 2 x 185 | XLPE Al | 315 |
| 30GX 132 | 1 x 185 | XLPE Cu | 205 | 2 x 240 | XLPE Al | 330 |
| 30GX 152 | 1 x 240 | XLPE Cu | 205 | 3x 185 | XLPE CU | 430 |
| 30GX 162 | 2 x 95 | XLPE Cu | 190 | 3x 240 | XLPE CU | 440 |
| 30GX 182 | 2 x 120 | XLPE Cu | 200 | 3x 240 | XLPE CU | 440 |
| 30GX 207 ckt A | 1 x 185 | XLPE Cu | 205 | 3x 185 | XLPE Al | 445 |
| 30GX 227 ckt A | 1 x 240 | XLPE Cu | 205 | 3x 240 | XLPE Al | 470 |
| 30GX 247/298/328 ckt A | 2 x 120 | XLPE Cu | 225 | 3x 185 | XLPE CU | 490 |
| 30HX 267/358 ckt A | 2 x 150 | XLPE Cu | 230 | 3x 240 | XLPE CU | 505 |
| 30GX 207/227/247 ckt B | 1 x 95 | XLPE Cu | 190 | 2 x 240 | PVC Al | 560 |
| 30HX 267 ckt B | 1 x 120 | XLPE Cu | 200 | 2 x 185 | XLPE AL | 395 |
| 30GX 298 ckt B | 1 x 185 | XLPE Cu | 205 | 3x 240 | XLPE AL | 470 |
| 30GX 328 ckt B | 2 x 120 | XLPE Cu | 225 | 3x 185 | XLPE CU | 490 |
| 30GX 358 ckt B | 2 x 150 | XLPE Cu | 230 | 3x 240 | XLPE CU | 505 |
Asosiy quvvat kabellarini (L1 - L2 - L3) terminal blokiga ulashdan oldin, terminal blokiga yoki asosiy uzish/izolyator kalitiga ulanishdan oldin 3 fazaning to'g'ri tartibini tekshirish shart.
Daladagi boshqaruv simlari
Quyidagi funksiyalarning daladagi boshqaruv simlari uchun Controls IOM ga va qurilma bilan birga taqdim etilgan sertifikatlangan simlar diagrammasiga murojaat qiling:
- Bug'latgich nasosining blokirovkasi (majburiy)
- Masofadan turib yoqish/o'chirish tugmasi
- Kondensator oqimi tugmasi (dala tomonidan ta'minlangan, faqat 30HXC uchun)
- Masofadan turib isitish/sovitish tugmasi
- Talab cheklovining tashqi tugmasi 1
- Masofadan turib ikkilamchi belgilash nuqtasi
- Zanjir bo'yicha signal hisoboti
- Bug'latgich nasosini boshqarish
- Kondensator nasosini boshqarish (faqat 30HXC uchun)
- Masofadan turib belgilash nuqtasini qayta o'rnatish yoki tashqi havo harorati sensori orqali qayta o'rnatish (0-10 V)
Yuqori kondensatsiya haroratiga ega qurilmalar uchun tavsiya etilgan sim kesimlari (400 V - 3 ph - 50 Hz)
| Qurilma, 150 + 150A 400 V - 3 ph - 50 Hz opsiyalari | Min. (mm2) faza bo'yicha | Sim turi | L (m) | Maks. (mm2) faza bo'yicha | Sim turi | L (m) |
| 30HXC 080 OPT. 150 | 1 x 50 | XLPE Cu | 150 | 2 x 70 | PVC Al | 230 |
| 30HXC 090 OPT. 150 | 1 x 70 | XLPE Cu | 160 | 2 x 95 | PVC Al | 260 |
| 30HXC 100 OPT. 150 | 1 x 70 | XLPE Cu | 160 | 2 x 95 | PVC Al | 250 |
| 30HXC 110 OPT. 150 | 1 x 95 | XLPE Cu | 170 | 2 x 120 | PVC Al | 265 |
| 30HXC 120 OPT. 150 | 1 x 120 | XLPE Cu | 180 | 2 x 120 | XLPE Al | 205 |
| 30HXC 130 OPT. 150 | 1 x 120 | XLPE Cu | 160 | 2 x 120 | XLPE Al | 210 |
| 30HXC 140 OPT. 150 | 1 x 150 | XLPE Cu | 175 | 2 x 120 | XLPE Al | 205 |
| 30HXC 155 OPT. 150 | 1 x 185 | XLPE Cu | 185 | 2 x 150 | XLPE Al | 215 |
| 30HXC 175 OPT. 150 | 1 x 240 | XLPE Cu | 185 | 2 x 150 | XLPE Al | 210 |
| 30HXC 190 OPT. 150 | 2 x 95 | XLPE Cu | 175 | 2 x 240 | XLPE Al | 220 |
| 30HXC 200 OPT. 150 circ. A | 1 x 120 | XLPE Cu | 170 | 2 x 150 | XLPE Al | 270 |
| 30HXC 230 OPT. 150 circ. A | 1 x 150 | XLPE Cu | 180 | 2 x 185 | XLPE Al | 270 |
| 30HXC 260 OPT. 150 circ. A | 1 x 185 | XLPE Cu | 180 | 2 x 240 | XLPE Al | 295 |
| 30HXC 285 OPT. 150 circ. A | 1 x 240 | XLPE Cu | 170 | 2 x 185 | XLPE Cu | 265 |
| 30HXC 310 OPT. 150 circ. A | 1 x 185 | XLPE Cu | 180 | 2 x 240 | XLPE Al | 300 |
| 30HXC 345 OPT. 150 circ. A | 1 x 185 | XLPE Cu | 170 | 2 x 240 | XLPE Al | 280 |
| 30HXC 375 OPT. 150 circ. A | 1 x 240 | XLPE Cu | 170 | 2 x 185 | XLPE Cu | 265 |
| 30HXC 200 OPT. 150 circ. B | 1 x 35 | XLPE Cu | 125 | 2 x 95 | PVC Al | 320 |
| 30HXC 230 OPT. 150 circ. B | 1 x 50 | XLPE Cu | 140 | 2 x 95 | PVC Al | 310 |
| 30HXC 260 OPT. 150 circ. B | 1 x 50 | XLPE Cu | 140 | 2 x 95 | PVC Al | 310 |
| 30HXC 285 OPT. 150 circ. B | 1 x 70 | XLPE Cu | 160 | 2 x 120 | PVC Al | 325 |
| 30HXC 310 OPT. 150 circ. B | 1 x 150 | XLPE Cu | 180 | 2 x 185 | XLPE Al | 275 |
| 30HXC 345 OPT. 150 circ. B | 1 x 185 | XLPE Cu | 185 | 2 x 240 | XLPE Al | 305 |
| 30HXC 375 OPT. 150 circ. B | 1 x 185 | XLPE Cu | 160 | 2 x 240 | XLPE Al | 280 |
ASOSIY TIZIM KOMPONENTLARI VA ISHLASH MA'LUMOTLARI
Tishli qo'shaloq vintli kompressor
- 30HXC va 30GX qurilmalari 06N tishli qo'shaloq vintli kompressorlardan foydalanadi
- 06NA 30GX (havo bilan sovutiladigan kondensatsiya ilovasi) da ishlatiladi
- 06NW 30HXC (suv bilan sovutiladigan kondensatsiya ilovasi) da ishlatiladi
- Nominal quvvatlar 39 dan 80 tonnagacha. 30HXC va 30GX qurilmasi o'lchamiga qarab tejamkor yoki tejamkor bo'lmagan modellardan foydalaniladi.
Yog 'filtri
06N vintli kompressor kompressor korpusida integral yog 'filtriga ega. Ushbu filtrni maydonda almashtirish mumkin.
Sovutgich
06N vintli kompressor faqat R134 a tizimida ishlatilishi uchun maxsus ishlab chiqilgan.
Moylash materiallari
06N vintli kompressor quyidagi moylash materiallari bilan ishlatish uchun tasdiqlangan.
CARRIER MATERIAL SPEC PP 47-32
Yog 'ta'minoti solenoid klapani
Kompressor ishlamayotgan paytda kompressorni yog 'oqimidan ajratish uchun kompressorda yog 'ta'minoti solenoid klapani standart hisoblanadi.
Yog 'solenoidini maydonda almashtirish mumkin.
So'rish va Ekonomayzer ekranlari
Kompressorning ishonchliligini oshirish uchun kompressorning so'rish va ekonomayzer kirishlariga standart xususiyat sifatida ekran kiritilgan.
Tushirish tizimi
06N vintli kompressor barcha kompressorlarda standart bo'lgan tushirish tizimiga ega. Ushbu tushirish tizimi qisman siqilgan gazni qayta so'rishga yo'naltirish orqali kompressor quvvatini kamaytiradigan ikki bosqichli tushirishdan iborat.
Evaporator
30HXC va 30GX sovutgichlar suv bosgan evaporatordan foydalanadi. Suv quvurlarda aylanadi va sovutgich tashqi tomonda qobiqda bo'ladi. Ikkala sovutgich zanjiriga xizmat ko'rsatish uchun bitta idish ishlatiladi. Ikkita sovutgich zanjirini ajratib turadigan markaziy quvur varag'i mavjud. Quvurlar 3/4 dyuymli diametrli mis bo'lib, ichki va tashqi tomoni yaxshilangan sirtga ega. Faqat bitta suv zanjiri mavjud va sovutgichning o'lchamiga qarab, ikki yoki uchta suv o'tishi mumkin. Sovutgich suyuqlik darajasi sensori optimallashtirilgan oqimni nazorat qilishni ta'minlaydi.
Sovutgichning yuqori qismida ikkita so'rish trubkasi mavjud, ularning har biri zanjirda. Ularning har biriga gardish payvandlangan va kompressor gardishga o'rnatiladi.
Kondensator va yog 'separator (30HXC)
30HXC sovutgich kondensator va yog 'separatorining kombinatsiyasi bo'lgan idishdan foydalanadi. U sovutgich ostiga o'rnatiladi. Chiqarish gazi kompressordan chiqib, tashqi shovqin o'chirgich orqali yog 'separatoriga o'tadi, bu idishning yuqori qismidir. U separatorning yuqori qismiga kiradi, u erda yog 'olib tashlanadi va keyin idishning pastki qismiga o'tadi, u erda gaz kondensatlanadi va sovutiladi. Ikkala sovutgich zanjiriga xizmat ko'rsatish uchun bitta idish ishlatiladi. Ikkita sovutgich zanjirini ajratib turadigan markaziy quvur varag'i mavjud. Quvurlar 3/4 dyuymli yoki 1 dyuymli diametrli mis bo'lib, ichki va tashqi tomoni yaxshilangan sirtga ega. Ikkita suv o'tishi bilan faqat bitta suv zanjiri mavjud.
Yog 'separator (30GX)
Havo bilan sovutiladigan qurilmalarda yog 'separator tashqi vertikal kondensator batareyalarining ostiga o'rnatilgan bosimli idishdir. Chiqarish gazi separatorning yuqori qismiga kiradi, u erda yog'ning ko'p qismi ajralib, pastga tushadi. Keyin gaz simli to'r ekranidan o'tadi, u erda qolgan yog 'ajratiladi va pastga tushadi.
Elektron kengaytirish moslamasi (EXD)
Mikroprotsessor EXDni EXV boshqaruv moduli orqali boshqaradi. EXD yoki EXV yoki Ekonomayzer bo'ladi. Ushbu qurilmalarning ikkalasining ichida chiziqli aktuatorli qadamli motor mavjud. Yuqori bosimli suyuq sovutgich valfga pastki qismdan kiradi. Teshik yig'ilishining ichida bir qator kalibrlangan tirqishlar joylashgan. Sovutgich teshikdan o'tganda, bosim pasayadi va sovutgich 2 fazali holatga (suyuqlik va bug ') o'zgaradi. Turli xil ish sharoitlari uchun sovutgich oqimini nazorat qilish uchun gilza teshik ustida yuqoriga va pastga harakatlanadi va shu bilan kengaytirish moslamasining samarali oqim maydonini o'zgartiradi. Gilza chiziqli qadamli motor tomonidan harakatga keltiriladi. Qadamli motor o'sishlarda harakatlanadi va to'g'ridan-to'g'ri protsessor moduli tomonidan boshqariladi. Qadamli motor aylanganda, harakat qo'rg'oshin vint bilan chiziqli harakatga o'tkaziladi. Qadamli motor va qo'rg'oshin vintlar orqali harakatning 1500 ta diskret qadami olinadi. Ko'p sonli qadamlar va uzun zarba sovutgich oqimini juda aniq nazorat qilishga olib keladi. Har bir zanjir sovutgich qobig'ining yuqori qismiga vertikal ravishda o'rnatilgan suyuqlik darajasi sensoriga ega. Daraja sensori kichik elektr qarshilik isitgichidan va quduq tanasi ichida turli balandliklarda joylashgan ketma-ket ulangan uchta termistordan iborat. Isitgich termistorlar quruq havoda taxminan 93,3 ° C ni ko'rsatishi uchun mo'ljallangan. Sovutgich darajasi sovutgichda ko'tarilganda, eng yaqin termistor (lar) ning qarshiligi sezilarli darajada o'zgaradi. Ushbu katta qarshilik farqi boshqaruvga belgilangan darajani aniq ushlab turishga imkon beradi. Daraja sensori sovutgichdagi sovutgich suyuqlik darajasini kuzatib boradi va ushbu ma'lumotni PSIO-1 ga yuboradi. Dastlabki ishga tushirishda EXV pozitsiyasi nolga teng. Shundan so'ng, mikroprotsessor boshqa boshqaruv funktsiyalari uchun ushbu ma'lumotdan kirish sifatida foydalanish uchun valf pozitsiyasini aniq kuzatib boradi. U buni EXV-larni ishga tushirishda amalga oshiradi. Protsessor valfga to'liq ochiqdan to'liq yopilgunga qadar harakatlantirish uchun etarli yopilish impulslarini yuboradi, so'ngra pozitsiya hisoblagichini nolga qaytaradi. Shu nuqtadan boshlab, ishga tushirishgacha protsessor har bir valfga yuborgan ochiq va yopiq qadamlarning umumiy sonini hisoblaydi.
Ekonomayzer
Ekonomayzerlar 30HXC 190, 285 va 375 va 30GX 182, 267 va 358 ga o'rnatiladi.
Ekonomayzer sovutgichning quvvati va samaradorligini oshiradi, shuningdek, kompressor motorini sovutishni ta'minlaydi. Ekonomayzer ichida chiziqli EXV qadamli motor va suzuvchi valf mavjud. EXV PIC tomonidan sovutgichda kerakli suyuqlik darajasini ushlab turish uchun boshqariladi (tejamkor bo'lmagan sovutgichlar uchun ham xuddi shunday). Suzuvchi valf ekonomayzerning pastki qismida suyuqlik darajasini ushlab turadi. Suyuq sovutgich kondensatordan ekonomayzerning pastki qismiga etkazib beriladi. Sovutgich EXV dan o'tganda, uning bosimi taxminan 500 kPa oraliq darajaga tushiriladi. Ushbu bosim ekonomayzer qobig'i ichida saqlanadi. Keyin sovutgich suzuvchi valf orqali o'tadi, uning bosimi sovutgichdagi bosimdan biroz yuqoriroq darajaga tushiriladi. Ishlashning oshishi shundan iboratki, EXV dan o'tadigan sovutgichning bir qismi bug'ga aylanadi va ekonomayzerning pastki qismida saqlanadigan suyuqlikni yanada sovutadi. Sovutishning bu ortishi qo'shimcha quvvatni ta'minlaydi. Bunga erishish uchun qo'shimcha quvvat talab qilinmaganligi sababli, mashinaning samaradorligi ham yaxshilanadi. Bug'ga aylanadigan bug 'ekonomayzerga ko'tariladi, u erda u kompressorga o'tadi va motorni sovutishni ta'minlash uchun zarur bo'lganda ishlatiladi. Motor o'rashlaridan o'tgandan so'ng, sovutgich siqish tsiklining oraliq portida tsiklga qayta kiradi.
Yog 'nasoslari
30GX/HXC vintli sovutgichlar har bir zanjir uchun bittadan tashqi o'rnatilgan oldindan moylash yog 'nasosidan foydalanadi. Ushbu nasos ishga tushirish ketma-ketligining bir qismi sifatida ishlaydi.
DIQQAT:
Batareyaning ish harorati 80 ° C ga yetishi mumkin. Muayyan vaqtinchalik sharoitlarda (ayniqsa, past tashqi haroratda yoki past kondensator halqasi haroratida ishga tushirish paytida) yog 'nasosi qayta faollashtirilishi mumkin.
30GX qurilmalarida nasoslar qurilmaning yog 'separator tomonidagi tayanch relslariga o'rnatiladi. Nasoslar 30HXC qurilmalarining kondensatorlaridagi braketga o'rnatiladi. Zanjirni ishga tushirish kerak bo'lganda, boshqaruv elementlari avval yog 'nasosini quvvatlantiradi, shunda kompressor to'g'ri moylash bilan ishga tushadi. Agar nasos etarli yog 'bosimini hosil qilgan bo'lsa, kompressorga ishga tushishga ruxsat beriladi. Kompressor ishga tushgandan so'ng, yog 'nasosi o'chiriladi. Agar nasos etarli yog 'bosimini hosil qila olmasa, boshqaruv signal beradi.
Motor sovutish klapanlari
Kompressor motorining o'rash harorati optimal sozlash nuqtasiga qadar nazorat qilinadi. Boshqaruv motor sovutish solenoid klapanini aylantirish orqali suyuq sovutgichning kerak bo'lganda motor o'rashlari bo'ylab oqishiga imkon beradi. Ekonomayzerlar bilan jihozlangan qurilmalarda bug 'gazi ekonomayzerning yuqori qismidan chiqib, doimiy ravishda motor o'rashlariga oqadi. Motor sovutish uchun ishlatiladigan barcha sovutgichlar siqish tsiklining o'rtasida joylashgan port orqali rotorlarga qayta kiradi va chiqarish bosimiga siqiladi.
Sensorlar
Qurilmalar tizimning ishlashini kuzatish va nazorat qilish uchun termistorlardan (ikkita motor harorati termistorini o'z ichiga olgan holda) va ikkita daraja termistoridan va bosim o'tkazgichlaridan foydalanadi.
Termistorlar
Evaporatordan chiquvchi suyuqlik
Ushbu harorat chiquvchi evaporator suyuqligi (suv yoki tuz eritmasi) haroratini o'lchash uchun ishlatiladi. Harorat chiquvchi suyuqlik haroratini nazorat qilish va sovutgichning muzlashidan himoya qilish uchun ishlatiladi. U evaporator suyuqlik trubkasida joylashgan.
Evaporatorga kiruvchi suyuqlik
Ushbu sensor evaporatorga kiruvchi suyuqlik haroratini o'lchash uchun ishlatiladi. U kiruvchi evaporator trubkasida joylashgan. U kiruvchi suyuqlik kompensatsiyasi bilan chiquvchi suyuqlik haroratini nazorat qilish uchun avtomatik harorat kompensatsiyasini ta'minlash uchun ishlatiladi.
Chiqarish gazi harorati (A va B zanjirlari)
Ushbu sensor chiqarish gazi haroratini o'lchash va chiqarish haroratining qizishini nazorat qilish uchun ishlatiladi. U har bir zanjirning chiqarish trubkasida (30HXC) yoki yog 'separatorining yuqori qismida (30GX) joylashgan.
DIQQAT: Termostat gilzi yo'q.
Motor harorati
Kompressorni himoya qilish moduli (CPM) motor haroratini kuzatib boradi. Termistor terminallari kompressor ulanish qutisida joylashgan.
Evaporator suyuqlik darajasi (A va B zanjirlari)
Evaporator suyuqlik darajasi termistori evaporatorda optimallashtirilgan oqimni nazorat qilishni ta'minlash uchun ishlatiladi. U evaporatorning yuqori qismiga o'rnatiladi.
Kondensatorga kiruvchi suyuqlik (30HXC)
Ushbu sensor suv bilan sovutiladigan kondensatorlarga kiradigan suyuqlik haroratini o'lchash uchun ishlatiladi. U kondensatorlarga kiradigan umumiy suyuqlik liniyasida joylashgan (maydonda o'rnatilgan). Issiqlik mashinalarida u quvvatni nazorat qilish tartibi tomonidan ishlatiladi. Suv bilan sovutiladigan kondensatorlarda u faqat kondensator suyuqlik haroratini kuzatish uchun ishlatiladi.
Kondensatordan chiquvchi suyuqlik (30HXC da ixtiyoriy)
Ushbu sensor suv bilan sovutiladigan kondensatorlardan chiquvchi suyuqlik haroratini o'lchash uchun ishlatiladi. U kondensatorlardan chiquvchi umumiy suyuqlik liniyasida joylashgan (maydonda o'rnatilgan). Issiqlik mashinalarida u quvvatni nazorat qilish tartibi tomonidan ishlatiladi. Suv bilan sovutiladigan kondensatorlarda u faqat kondensator suyuqlik haroratini kuzatish uchun ishlatiladi.
30GX fanining joylashuvi

GX082/102

GX112/132

GX152/162

GX182

GX207/227

GX247/267

GX298

GX328/358
XIZMAT KO'RSATISH
Sovutgich bilan to'ldirish - zaryad qo'shish
Ushbu qurilmalar faqat R-134a bilan foydalanish uchun mo'ljallangan.
Ushbu qurilmalarda boshqa sovutgichlardan FOYDALANMANG.
Zaryad qo'shish yoki olib tashlashda muzlashning oldini olish uchun doimo kondensator (HX) va sovutgich orqali suv aylantiring. Muzlash natijasida kelib chiqqan shikastlanish suiiste'mol hisoblanadi va Carrier kafolatini bekor qilishi mumkin.
Tizimni ortiqcha zaryad qilmang. Ortiqcha zaryadlash yuqori bosimga, yuqori sovutish suyuqligi sarfiga, kompressorning shikastlanishiga va yuqori quvvat sarfiga olib keladi.
30HXC tizimida past zaryad ko'rsatkichi
DIQQAT
30HXC da sovutgichning past zaryadini tekshirish uchun bir nechta omillarni hisobga olish kerak. Miltillovchi suyuqlik liniyasi ko'rish oynasi har doim ham yetarli bo'lmagan zaryad ko'rsatkichi emas. Normal ishlash sharoitida miltillovchi ko'rish oynasi paydo bo'ladigan ko'plab tizim sharoitlari mavjud. 30HXC o'lchash moslamasi ushbu sharoitlarda to'g'ri ishlash uchun mo'ljallangan.
- Aylananing to'liq yuk holatida ishlayotganiga ishonch hosil qiling. A aylanasi to'liq yuklanganligini tekshirish uchun Boshqaruv qo'llanmasida tavsiflangan tartibga amal qiling.
- Aylanani to'liq yuk holatiga o'tkazish uchun Qo'lda boshqarish funksiyasidan foydalanish kerak bo'lishi mumkin. Agar shunday bo'lsa, Boshqaruv qo'llanmasida Qo'lda boshqarish funksiyasidan foydalanish bo'yicha ko'rsatmalarga qarang.
- Aylana to'liq yukda ishlayotgan holda, sovutgichdan chiqadigan suyuqlik harorati 6°C ± 1,5 oralig'ida ekanligini tekshiring.
- Ushbu sharoitda suyuqlik liniyasining ko'rish oynasidagi sovutgichni kuzating. Agar ko'rish oynasi tiniq bo'lsa va miltillash belgilari bo'lmasa, aylana yetarli darajada zaryadlangan. Qolgan qadamlarni o'tkazib yuboring.
- Agar sovutgich miltillayotganga o'xshasa, aylana zaryadga ega emas. EXV holatini tekshirish orqali buni tasdiqlang (Boshqaruv IOM ga qarang).
- Agar EXD ning ochilish holati 60% dan katta bo'lsa va suyuqlik liniyasining ko'rish oynasi miltillayotgan bo'lsa, aylana zaryadga ega emas. Zaryad qo'shish tartibiga amal qiling.
30HXC tizimlariga zaryad qo'shish uchun
- Qurilma to'liq yukda ishlayotganiga va sovutgichdan chiqadigan suyuqlik harorati 5,6 7,8°C oralig'ida ekanligiga ishonch hosil qiling.
- Ushbu ish sharoitida suyuqlik liniyasining ko'rish oynasini tekshiring. Agar ko'rish oynasi tiniq bo'lsa, qurilmada yetarli zaryad bor. Agar ko'rish oynasi miltillayotgan bo'lsa, EXD foizini tekshiring. Agar bu 60% dan katta bo'lsa, zaryad qo'shishni boshlang.
DIQQAT
Yuqorida aytib o'tilganlardan boshqa ish sharoitlarida miltillovchi suyuqlik liniyasining ko'rish oynasi har doim ham sovutgichning past zaryadini ko'rsatmaydi.
- Evaporatorning yuqori qismida joylashgan zaryadlash valfi yordamida evaporatatorga 2,5 kg suyuq zaryad qo'shing.
- EXD foiz ochiq qiymatini kuzating. Zaryad qo'shilganda EXD yopila boshlashi kerak. Qurilmaga barqarorlashishiga ruxsat bering. Agar EXD foiz ochiq 60% dan yuqori bo'lib qolsa va ko'rish oynasida hali ham pufakchalar bo'lsa, qo'shimcha 2,5 kg suyuq zaryad qo'shing.
- Qurilmaga barqarorlashishiga ruxsat bering va EXD foizini yana tekshiring. Bir vaqtning o'zida 2,5 kg suyuq sovutgich zaryadini qo'shishni davom eting va EXD holatini tekshirishdan oldin qurilmaga barqarorlashishiga ruxsat bering.
- EXD foiz ochiq 40 - 60% oralig'ida bo'lganda, suyuqlik liniyasining ko'rish oynasini tekshiring. Tiniq ko'rish oynasini ta'minlash uchun sekin-asta yetarli miqdorda qo'shimcha suyuq zaryad qo'shing. Qurilmani ortiqcha zaryadlashdan saqlanish uchun buni sekin bajarish kerak.
- 6°C ± 1,5 evaporatorning chiqish suyuqligi haroratida to'liq yukda ishlashni davom ettirish orqali yetarli zaryadni tekshiring. Suyuqlik liniyasining ko'rish oynasida sovutgich miltillayotganini tekshiring. EXD foiz ochiq 40 va 60% oralig'ida bo'lishi kerak. Sovutgich darajasi ko'rsatkichi 1,5 - 2,5 oralig'ida bo'lishi kerak.
30GX tizimlarida past zaryad ko'rsatkichi
- Aylana to'liq yuk holatida ishlayotganiga va kondensatsiya harorati 50°C ± 1,5 ekanligiga ishonch hosil qiling. A aylanasi to'liq yuklanganligini tekshirish uchun Boshqaruv IOM dagi tartibga amal qiling.
- Aylanani to'liq yuk holatiga o'tkazish uchun Qo'lda boshqarish funksiyasidan foydalanish kerak bo'lishi mumkin. Agar shunday bo'lsa, Qo'lda boshqarish funksiyasidan foydalanish bo'yicha ko'rsatmalarga qarang (Boshqaruv IOM dagi tartib).
- Aylana to'liq yukda ishlayotgan holda, sovutgichdan chiqadigan suyuqlik harorati 6°C ± 1,5 oralig'ida ekanligini tekshiring.
- Kondensator g'altaklariga kiradigan havo haroratini o'lchang. Ikki g'altak suyuqlik liniyasi qo'shiladigan joydan keyin suyuqlik haroratini o'lchang. Suyuqlik harorati g'altaklarga kiradigan havo haroratidan 8,3°C yuqori bo'lishi kerak. Agar farq bundan ko'p bo'lsa va ko'rish oynasi miltillayotgan bo'lsa, aylana zaryadlanmagan. 5-bosqichga o'ting.
- Sovutgichning yuqori qismida joylashgan zaryadlash valfi yordamida sovutgichga 2,5 kg suyuq zaryad qo'shing.
- Tizimga barqarorlashishiga ruxsat bering va keyin suyuqlik haroratini qayta tekshiring. Har bir zaryad qo'shilishi orasida tizimga barqarorlashishiga ruxsat berib, 5-bosqichni kerak bo'lganda takrorlang. Ko'rish oynasi tozalana boshlaganda, ortiqcha zaryadlashdan saqlanish uchun sekin-asta zaryad qo'shing.
Xona harorati, tashqi havo harorati (ixtiyoriy)
Ushbu haroratlar mos ravishda tashqi havo yoki xona haroratiga asoslangan qayta o'rnatish variantlari uchun xona haroratini yoki tashqi havo haroratini o'lchash uchun ishlatiladi.
Bosim o'tkazgichlari
Chiqarish bosimi (A va B aylanalar)
Ushbu kirish qurilmaning har bir aylananing yuqori tomonidagi bosimni o'lchash uchun ishlatiladi.
U chiqarish bosimi o'lchagichini almashtirish va bosh bosimni nazorat qilish uchun bosimni ta'minlash uchun ishlatiladi.
So'rish bosimi (A va B aylanalar)
Ushbu kirish qurilmaning past tomonidagi bosimni o'lchash uchun ishlatiladi. U so'rish bosimi o'lchagichini almashtirish uchun bosimni ta'minlash uchun ishlatiladi.
Yog' bosimi (har bir kompressor)
Ushbu kirish qurilmaning har bir kompressorining moy bosimini o'lchash uchun ishlatiladi. U har bir kompressorning moy bosimi portida joylashgan.
Ekonomayzer bosimi (A va B aylanalar)
Ushbu kirish kompressorga etkazib beriladigan moy bosimi farqini kuzatish uchun ishlatiladi.
Yog 'bilan to'ldirish - past moyni qayta to'ldirish
30HX/GX tizimlariga moy zaryadini qo'shish
- Agar 30HXC/GX qurilmasi past moy darajasi tufayli qayta-qayta o'chib qolsa, bu yetarli bo'lmagan moy zaryadini ko'rsatishi mumkin. Bu shunchaki moy tizimning past tomonidan qaytarib olinayotganini ham anglatishi mumkin.
- Qurilmani bir yarim soat davomida to'liq yukda ishlatishdan boshlang.
- 1-1/2 soat ishlagandan so'ng, qurilmaga qayta ishga tushishiga va normal ishlashiga ruxsat bering. Agar past moy darajasi signallari saqlanib qolsa, qurilmada past moy zaryadi bor. Kondensatorning pastki qismida (30HXC) yoki moy ajratgichning pastki qismida (30GX) joylashgan moy zaryadlash valfi yordamida moy ajratgichga moy qo'shing.
Boshqa joyda moy qo'shMANG, chunki noto'g'ri qurilma ishlashi natijasida yuzaga kelishi mumkin.
- Moy qo'shishda qurilma ishlamayotganiga ishonch hosil qiling, chunki bu moy zaryadlash jarayonini osonlashtiradi. Tizim qurilma ishlamayotgan paytda ham bosim ostida bo'lganligi sababli, tizimga moy qo'shish uchun mos nasosdan (qo'l yoki elektr nasos) foydalanish kerak bo'ladi.
- Mos nasos yordamida tizimga 2 litr Polyolester moyini qo'shing (CARRIER SPEC: PP47-32). Moy darajasi xavfsizlik kaliti ulanmaganligiga ishonch hosil qiling va qurilmaga qayta ishga tushishiga va normal ishlashiga ruxsat bering.
- Agar past moy darajasi muammolari davom etsa, yana 1 yoki 2 litr moy qo'shing. Agar tizimga 4 litrdan ortiq moy qo'shish kerak bo'lsa, Carrier distribyutorlik xizmati bo'limiga murojaat qiling.
Sovutgich zaryadini saqlash moslamasiga o'tkazishda, qurilma ishlamayotgan paytda moy ham olib ketilishi mumkin. Avvalo, o'tkazilgan sovutgich miqdoridan foydalaning. Moyni to'kib tashlagandan so'ng, faqat to'kilgan miqdorni qayta zaryadlang (ortiqcha moy zaryadi qurilmaning to'g'ri ishlashiga to'sqinlik qilishi mumkin).
Integral moy filtrini almashtirish
06N vintli kompressoridagi integral moy filtri uzoq muddatli podshipnik ishlashi uchun zarur bo'lgan yuqori darajadagi filtrlashni (3 µ) ta'minlash uchun belgilangan. Tizimning tozaligi ishonchli tizim ishlashi uchun juda muhim bo'lganligi sababli, moy ajratgich chiqishidagi moy liniyasida ham oldindan filtr (7 µ) mavjud.
Almashtiriladigan integral moy filtri elementi qismining raqami:
Carrier qismining raqami (filtr va O-ringni o'z ichiga oladi): 06NA 660016S
Filtrlarni almashtirish jadvali
Filtr ishning birinchi 500 soatidan keyin va har keyingi 2000 soatda tekshirilishi kerak. Filtr filtrdagi bosim farqi 2,1 bardan oshganda har qanday vaqtda almashtirilishi kerak.
Filtrdagi bosimning pasayishini filtr xizmat ko'rsatish portidagi bosimni va moy bosimi portini o'lchash orqali aniqlash mumkin. Ushbu ikki bosimdagi farq filtr, tekshirish valfi va solenoid valfdagi bosimning pasayishi bo'ladi. Tekshirish valfi va solenoid valfdagi bosimning pasayishi taxminan 0,4 barni tashkil qiladi, bu moy filtri bosimining pasayishini berish uchun ikkita moy bosimi o'lchovidan chiqarilishi kerak. Kompressor past moy bosimi xavfsizligida o'chirilgan har qanday holatdan keyin moy filtri bosimining pasayishi tekshirilishi kerak.
Filtrlarni almashtirish tartibi
- Quyidagi qadamlar integral moy filtrini almashtirishning to'g'ri usulini ko'rsatadi.
- Kompressorni o'chiring va bloklang.
- Ichki valf qopqog'ini o'z o'rniga bosish uchun moy solenoid valfining ishlashini qo'lda majburlang.
- Moy filtri xizmat ko'rsatish valfini yoping. Filtr bo'shlig'idan bosimni filtr xizmat ko'rsatish porti orqali chiqarib tashlang.
- Moy filtri vilkasini olib tashlang. Eski moy filtrini olib tashlang.
- Yangi moy filtrini o'rnatishdan oldin, o-ringni moy bilan "yog'lang". Filtrni o'rnating va vilkani almashtiring.
Moylash moyi tizimini yopishdan oldin, oldindan filtrni ham almashtirish imkoniyatidan foydalaning. - Tugatgandan so'ng, filtr bo'shlig'ini filtr xizmat ko'rsatish porti orqali evakuatsiya qiling. Filtr xizmat ko'rsatish valfini oching. Kompressorning bloklash moslamalarini olib tashlang, kompressor ishlashga qaytishga tayyor.
Kompressorni almashtirish
Kompressorning aylanishini nazorat qilish
Kompressorning to'g'ri aylanishi eng muhim qo'llash masalalaridan biridir. Teskari aylanish, hatto juda qisqa muddatga ham kompressorga zarar yetkazadi.
Teskari aylanishni himoya qilish sxemasi aylanish yo'nalishini aniqlash va kompressorni 300 millisekund ichida to'xtatishga qodir bo'lishi kerak. Teskari aylanish, ayniqsa, kompressor terminallariga simlar ulangan paytda sodir bo'lishi mumkin.
Teskari aylanish imkoniyatini kamaytirish uchun quyidagi tartib qo'llanilishi kerak. Quvvat kabellarini kompressor terminal piniga dastlabki simlar bilan ulang.
Kompressorni almashtirish uchun kompressor bilan birga past bosim kaliti ham beriladi. Ushbu past bosim kaliti vaqtincha kompressorning yuqori bosimli qismida qattiq xavfsizlik sifatida o'rnatilishi kerak. Ushbu kalitning maqsadi kompressor terminal pinidagi har qanday simlar xatolaridan kompressorni himoya qilishdir. Kalitning elektr kontakti yuqori bosim kaliti bilan ketma-ket ulanadi. Kalit kompressor ishga tushirilgunga qadar va aylanish yo'nalishi tasdiqlanmaguncha o'rnida qoladi; shu nuqtada kalit olib tashlanadi.
Teskari aylanishni aniqlash uchun tanlangan kalit Carrier qismining raqami HK01CB001. U "Kompressorni o'rnatish to'plami" (qism raqami 06NA 660 013) tarkibiga kiradi. Ushbu kalit bosim vakuumning 50 mm dan pastga tushganda kontaktlarni ochadi. Kalit bosim yana 70 kPa dan yuqori ko'tarilgandan so'ng qayta o'rnatilishi mumkin bo'lgan qo'lda qayta o'rnatish turidir. Kompressorning teskari yo'nalishda qisqa aylanishini oldini olish uchun kalit qo'lda qayta o'rnatish turi bo'lishi juda muhim.
Nosozliklarni bartaraf etish
EXD/Ekonomayzer muammolarini aniqlash va tuzatish uchun quyidagi qadamlarga amal qiling.
Ekonomayzerli 30HXC/GX qurilmalarida pufakcha trubkasi (Ekonomayzerning pastki qismi) uchun valf ochiq ekanligini tekshiring. Avval EXD motorining ishlashini tekshiring (Boshqaruv IOM dagi tartibga qarang). EXD yoki ekonomayzer korpusiga qo'lingizni qo'yib aktuatorning harakatlanayotganini his qilishingiz kerak (aktuator ekonomayzer qobig'ining pastki qismidan taxminan yarimdan uchdan ikki qismigacha joylashgan). Uning zarbasi tepasiga yetganda aktuatordan qattiq taqillatishni his qilishingiz kerak (atrof nisbatan tinch bo'lsa eshitish mumkin). Aktuator zarbasi pastki qismiga yetganda taqillatishi kerak. Agar valf to'g'ri ishlamayapti deb hisoblansa, quyidagi tekshiruvlar uchun Carrier xizmat ko'rsatish bo'limiga murojaat qiling:
- EXD modulidagi chiqish signallari
- sim ulanishlari (barcha pin terminallarida uzluksizlik va mahkam ulanish)
- EXD motorining o'rash qarshiligi.


Atrof-muhitni boshqarish tizimini tasdiqlash
Buyurtma raqami: 13173-76, 03 1999 - 1998 yil mart oyidagi 13173-76 raqamini o'rnini bosadi
Ishlab chiqaruvchi har qanday mahsulot spetsifikatsiyasini ogohlantirmasdan o'zgartirish huquqini o'zida saqlab qoladi.
Ishlab chiqaruvchi: Carrier s.a., Montluel, Fransiya.
Niderlandiyada xlorsiz qog'ozga bosilgan.

Qo'llanmani yuklab olish
Bu yerda siz qo'llanmaning to'liq pdf versiyasini yuklab olishingiz mumkin, u qo'shimcha xavfsizlik ko'rsatmalari, kafolat ma'lumotlari, FCC qoidalari va hokazolarni o'z ichiga olishi mumkin.
Carrier 30HXC/30GX vintli kompressor qo'llanmasi ni yuklab olish