Priročnik za vijakasti kompresor Carrier 30HXC/30GX
- 1 UVOD
- 2 VARNOSTNI PREVIDNOSTNI UKREPI
- 3 DIMENZIJE, PROSTORI, PORAZDELITEV TEŽE
- 4 FIZIČNI PODATKI 30HXC
- 5 ELEKTRIČNI PODATKI 30HXC
- 6 ELEKTRIČNI PODATKI ZA ENOTE Z VISOKIMI TEMPERATURAMI KONDENZACIJE
- 7 FIZIČNI PODATKI 30GX
- 8 ELEKTRIČNI PODATKI 30GX
-
9
PODATKI O UPORABI
- 9.1 Območje delovanja enote
- 9.2 Minimalni pretok ohlajene vode
- 9.3 Maksimalni pretok ohlajene vode
- 9.4 Izparilnik s spremenljivim pretokom
- 9.5 Minimalna prostornina vode v sistemu
- 9.6 Pretok hladilnika (l/s)
- 9.7 Pretok kondenzatorja (l/s)
- 9.8 Krivulja padca tlaka uparjalnika
- 9.9 Krivulja padca tlaka kondenzatorja
- 9.10 Krmilniki pretoka
- 10 NAMESTITEV
- 11 NAVODILA ZA DVIGOVANJE
- 12 ELEKTRIČNE KARAKTERISTIKE
- 13 PRIPOROČENI PRESEKI ŽIC
-
14
GLAVNE SISTEMSKE KOMPONENTE IN PODATKI O DELOVANJU
- 14.1 Gonilni dvovijačni kompresor
- 14.2 Uparjalnik
- 14.3 Kondenzator in separator olja (30HXC)
- 14.4 Separator olja (30GX)
- 14.5 Elektronska ekspanzijska naprava (EXD)
- 14.6 Ekonomizator
- 14.7 Oljne črpalke
- 14.8 Ventili za hlajenje motorja
- 14.9 Senzorji
- 14.10 Termistorji
- 14.11 Razporeditev ventilatorjev 30GX
- 15 VZDRŽEVANJE
- 16 Odpravljanje težav
- 17 Prenesi navodilo
- 18 V drugih jezikih

UVOD
Pred prvim zagonom enot 30HXC in 30GX morajo biti tisti, ki so vključeni v zagon, delovanje in vzdrževanje, temeljito seznanjeni s temi navodili in drugimi potrebnimi podatki o delu. Ta knjiga ponuja pregled, da se lahko seznanite s krmilnim sistemom, preden izvedete postopke zagona. Postopki v tem priročniku so razporejeni v zaporedju, ki je potrebno za pravilen zagon in delovanje stroja.
VARNOSTNI PREVIDNOSTNI UKREPI
Hladilniki tekočine 30HXC in 30GX so zasnovani za varno in zanesljivo delovanje, kadar delujejo v okviru konstrukcijskih specifikacij. Pri delovanju s to opremo uporabljajte dobro presojo in varnostne ukrepe, da preprečite škodo na opremi in lastnini ali poškodbe osebja.
Prepričajte se, da razumete in upoštevate postopke in varnostne ukrepe, ki so navedeni v navodilih za stroj, kot tudi tiste, ki so navedeni v tem priročniku.
NE IZPUŠČAJTE ventilov za razbremenitev hladilnega sredstva znotraj stavbe. Izhod iz razbremenilnega ventila mora biti speljan na prostem. Kopičenje hladilnega sredstva v zaprtem prostoru lahko izpodrine kisik in povzroči zadušitev ali eksplozije.
ZAGOTOVITE ustrezno prezračevanje, zlasti za zaprte prostore in prostore z nizko višino. Vdihavanje visokih koncentracij hlapov je škodljivo in lahko povzroči nepravilnosti srčnega ritma, nezavest ali smrt. Hlapi so težji od zraka in zmanjšujejo količino kisika, ki je na voljo za dihanje. Izdelek povzroča draženje oči in kože. Razgradni produkti so nevarni.
NE UPORABLJAJTE KISIKA za izpihovanje vodov ali za tlačno polnjenje stroja za kakršen koli namen. Kisik plin burno reagira z oljem, mastjo in drugimi pogostimi snovmi.
NIKOLI NE PRESEGAJTE določenih preskusnih tlakov, PREVERITE dovoljeni preskusni tlak s preverjanjem navodil in konstrukcijskih tlakov na tipski ploščici opreme.
NE UPORABLJAJTE zraka za testiranje puščanja. Uporabljajte samo hladilno sredstvo ali suh dušik.
NE ZAPIRAJTE nobenega varnostnega elementa.
PREPRIČAJTE SE, da so vse naprave za razbremenitev tlaka pravilno nameščene, preden zaženete kateri koli stroj.
NE VARITE ALI REŽITE S PLAMENOM nobenega voda ali posode za hladilno sredstvo, dokler ni vse hladilno sredstvo (tekoče in plinasto) odstranjeno iz hladilnika. Sledi hlapov je treba izpodriniti s suhim zrakom dušikom in delovno območje mora biti dobro prezračevano. Hladilno sredstvo v stiku z odprtim plamenom proizvaja strupene pline.
NE delajte na opremi pod napetostjo, razen če ste usposobljen električar.
NE DELAJTE NA električnih komponentah, vključno s krmilnimi ploščami, stikali, releji itd., dokler niste prepričani, da je VSA MOČ IZKLOPLJENA in da lahko preostala napetost uhaja iz kondenzatorjev ali polprevodniških komponent.
MED SERVISIRANJEM ZAKLENITE IN OZNAČITE električna vezja. ČE JE DELO PREKINJENO, preverite, ali so vsa vezja izklopljena, preden nadaljujete z delom.
NE izsesavajte hladilnega sredstva.
IZOGIBAJTE SE RAZLIVANJU tekočega hladilnega sredstva po koži ali v oči. UPORABLJAJTE VARNOSTNA OČALA. Izperite morebitne razlitja s kože z milom in vodo. Če tekoče hladilno sredstvo pride v oči,
TAKOJ IZPIRAJTE OČI z vodo in se posvetujte z zdravnikom.
NIKOLI NE NANAŠAJTE odprtega plamena ali žive pare na posodo s hladilnim sredstvom. Lahko pride do nevarnega nadtlaka. Če je treba hladilno sredstvo segreti, uporabljajte samo toplo vodo.
NE UPORABLJAJTE PONOVNO cilindrov za enkratno uporabo (ki jih ni mogoče vrniti) ali jih poskušajte ponovno napolniti. To je NEVARNO IN NEZAKONITO. Ko so cilindri izpraznjeni, izpraznite preostali plinski tlak, popustite ovratnik in odvijte ter zavrzite steblo ventila. NE SEŽIGAJTE.
PREVERITE VRSTO HLADILNEGA SREDSTVA, preden dodate hladilno sredstvo v stroj. Vnos napačnega hladilnega sredstva lahko povzroči škodo ali okvaro tega stroja.
NE POSKUŠAJTE ODSTRANITI priključkov, komponent itd., medtem ko je stroj pod tlakom ali medtem ko stroj deluje. Prepričajte se, da je tlak na 0 kPa, preden prekinete priključek hladilnega sredstva.
PREVIDNO PREGLEDAJTE vse naprave za razbremenitev tlaka, VSAJ ENKRAT LETNO. Če stroj deluje v korozivnem ozračju, preglejte naprave v pogostejših intervalih.
NE POSKUŠAJTE POPRAVLJATI ALI OBNOVITI nobene naprave za razbremenitev tlaka, ko se v telesu ventila ali mehanizmu najde korozija ali nabiranje tujih snovi (rja, umazanija, vodni kamen itd.). Zamenjajte napravo.
NE NAMEŠČAJTE naprav za razbremenitev tlaka zaporedno ali vzvratno.
NE STOPAJTE na vode za hladilno sredstvo. Zlomljene cevi se lahko zavihtijo in sprostijo hladilno sredstvo, kar povzroči telesne poškodbe.
NE plezajte čez stroj. Uporabite platformo ali oder.
UPORABLJAJTE MEHANSKO OPREMO (žerjav, dvigalo itd.) za dvigovanje ali premikanje težkih komponent. Tudi če so komponente lahke, uporabljajte mehansko opremo, kadar obstaja nevarnost zdrsa ali izgube ravnotežja.
ZAVEDAJTE SE, da lahko nekatere samodejne zagonske naprave VKLJUČIJO VENTILATOR HLADILNEGA TORNJA ALI ČRPALKE. Odprite odklopnik pred ventilatorji hladilnega stolpa ali črpalkami.
UPORABLJAJTE samo nadomestne ali rezervne dele, ki izpolnjujejo zahteve kode originalne opreme.
NE IZPUŠČAJTE ALI IZPUŠČAJTE vodnih komor, ki vsebujejo industrijske slanice, brez dovoljenja pristojnega organa.
NE OHLAPITE vijakov vodne komore, dokler vodna komora ni popolnoma izpraznjena.
NE OHLAPITE matice tesnilne puše, preden preverite, ali ima matica pozitiven navoj.
PERIODIČNO PREGLEDUJTE vse ventile, priključke in cevovode glede korozije, rje, puščanja ali poškodb.
ZAGOTOVITE ODVODNI priključek v odzračevalni cevi v bližini vsake naprave za razbremenitev tlaka, da preprečite nabiranje kondenzata ali deževnice.
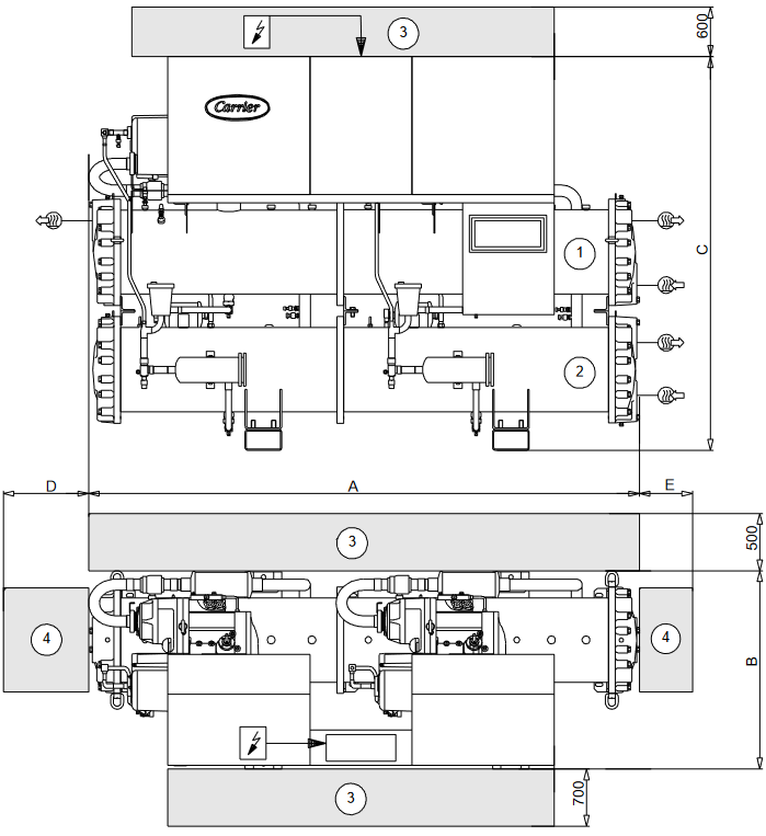
DIMENZIJE, PROSTORI, PORAZDELITEV TEŽE
30HXC 080-190
30HXC080
30HXC090
30HXC100
30HXC110

- Uparjalnik
- Kondenzator
- Prostori, potrebni za delovanje in vzdrževanje
- Prostori, potrebni za odstranitev cevi toplotnega izmenjevalnika. Prostora D in E sta lahko na levi ali desni strani.
Vstop vode
Izhod vode
Napajanje
kg: skupna delovna teža
| A mm | B mm | C mm | D mm | E mm | kg | |
| 30HXC080 30HXC090 30HXC100 |
2705 | 950 | 1850 | 2360 | 1000 | 2447 2462 2504 |
| 30HXC110 | 2705 | 950 | 1900 | 2360 | 1000 | 2650 |
| 30HXC120 30HXC130 30HXC140 30HXC155 |
3535 | 950 | 1875 | 3220 | 1000 | 2846 2861 2956 2971 |
| 30HXC175 30HXC190 |
3550 | 950 | 2000 | 3220 | 1000 | 3283 3438 |
OPOMBA: Pri načrtovanju namestitve si oglejte overjene dimenzijske risbe, ki so priložene enoti.
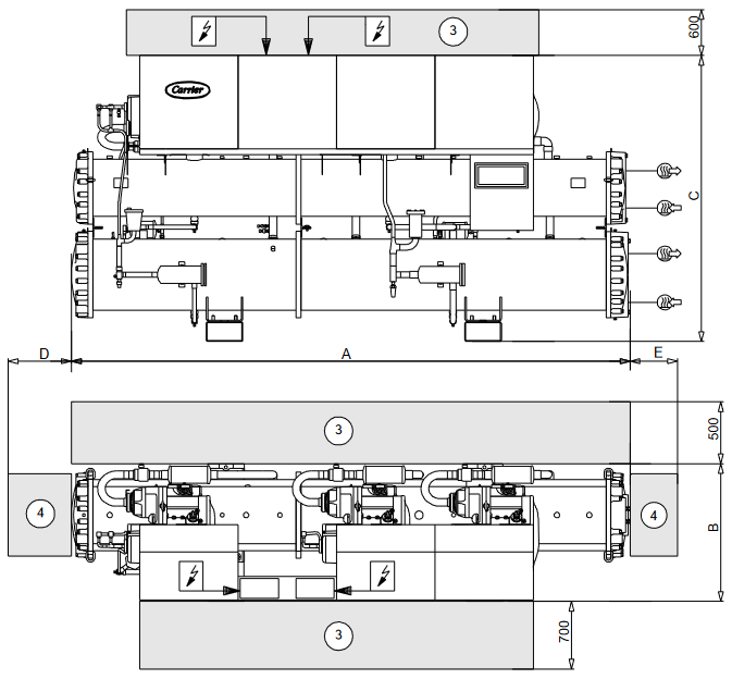
30HXC 200-375

- Uparjalnik
- Kondenzator
- Prostori, potrebni za delovanje in vzdrževanje
- Prostori, potrebni za odstranitev cevi toplotnega izmenjevalnika. Prostora D in E sta lahko na levi ali desni strani.
Vstop vode
Izhod vode
Napajanje
kg: skupna delovna teža
| A mm | B mm | C mm | D mm | E mm | kg | |
| 30HXC200 | 3975 | 980 | 2035 | 3620 | 1000 | 4090 |
| 30HXC230 30HXC260 30HXC285 |
3995 | 980 | 2116 | 3620 | 1000 | 4705 4815 4985 |
| 30HXC310 30HXC345 30HXC375 |
4490 | 980 | 2163 | 4120 | 1000 | 5760 5870 6105 |
OPOMBA: Pri načrtovanju namestitve si oglejte overjene dimenzijske risbe, ki so priložene enoti.
30GX 082-182
30GX-082
30GX-092
30GX-102
30GX-112
30GX-122
30GX-132
30GX-152
30GX-162
30GX-182


- Prostori, potrebni za delovanje in vzdrževanje
- Prostori, potrebni za odstranitev cevi toplotnega izmenjevalnika. Prostori so lahko na levi ali desni strani.
Vstop vode
Izhod vode
Napajanje
Izhod zraka - ne ovirajte
kg: skupna delovna teža
| A mm | B mm | kg | |
| 30GX082 30GX092 30GX102 |
2970 | 2215 | 3116 3157 3172 |
| 30GX112 30GX122 30GX132 |
3427 | 2045 | 3515 3531 3633 |
| 30GX152 30GX162 |
4342 | 2835 | 3920 3936 |
| 30GX182 | 5996 | 1820 | 4853 |
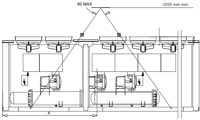
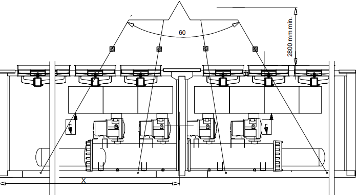
Namestitev več hladilnikov


Opombe:
- Enota mora imeti prostore za pretok zraka, kot sledi:
Zgoraj: nikakor ne omejujte - V primeru več hladilnikov (do štiri enote) je treba ustrezni prostor med njimi povečati z 1830 na 2000 mm za zahtevo po stranskem prostoru.
- Potrebni so prostori za odstranitev cevi hladilnika.
OPOMBA: Pri načrtovanju namestitve si oglejte overjene dimenzijske risbe, ki so priložene enoti.
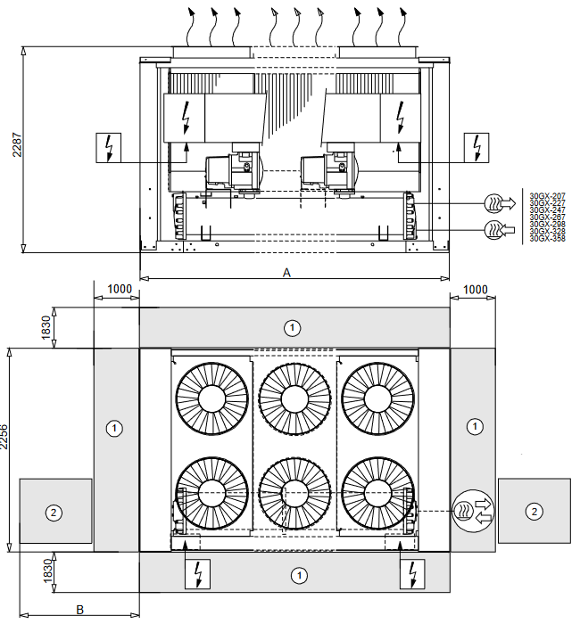
30GX 207-358
30GX-207
30GX-227
30GX-247
30GX-267
30GX-298
30GX-328
30GX-358

- Prostori, potrebni za delovanje in vzdrževanje
- Prostori, potrebni za odstranitev cevi toplotnega izmenjevalnika. Prostori so lahko na levi ali desni strani.
Vstop vode
Izhod vode
Napajanje
Izhod zraka - ne ovirajte
kg: skupna delovna teža
| A mm | B mm | kg | |
| 30GX207 30GX227 |
5996 | 2895 | 5540 5570 |
| 30GX247 30GX267 |
6911 | 2470 | 6134 6365 |
| 30GX298 | 7826 | 2220 | 7354 |
| 30GX328 30GX358 |
8741 | 1250 | 7918 8124 |
Namestitev več hladilnikov


Opombe:
- Enota mora imeti prostore za pretok zraka, kot sledi:
Zgoraj: nikakor ne omejujte - V primeru več hladilnikov (do štiri enote) je treba ustrezni prostor med njimi povečati z 1830 na 2000 mm za zahtevo po stranskem prostoru.
- Potrebni so prostori za odstranitev cevi hladilnika.
OPOMBA: Pri načrtovanju namestitve si oglejte overjene dimenzijske risbe, ki so priložene enoti.
FIZIČNI PODATKI 30HXC
| 30HXC | 080 | 090 | 100 | 110 | 120 | 130 | 140 | 155 | 175 | 190 | 200 | 230 | 260 | 285 | 310 | 345 | 375 | |
| Neto hladilna moč | kW | 292 | 321 | 352 | 389 | 426 | 464 | 514 | 550 | 607 | 663 | 716 | 822 | 918 | 996 | 1119 | 1222 | 1326 |
| Obratovalna teža | kg | 2447 | 2462 | 2504 | 2650 | 2846 | 2861 | 2956 | 2971 | 3283 | 3438 | 4090 | 4705 | 4815 | 4985 | 5760 | 5870 | 6105 |
| Hladilno sredstvo Krog A/B |
HFC-134a | |||||||||||||||||
| kg | 39/36 | 39/36 | 37/32 | 38/38 | 57/55 | 59/50 | 56/50 | 59/52 | 58/61 | 60/70 | 110/58 | 118/63 | 120/75 | 120/75 | 108/110 | 110/110 | 110/120 | |
| Oljno Krog A/B |
Poliolestrsko olje CARRIER SPEC: PP 47-32 | |||||||||||||||||
| l | 15/15 | 15/15 | 15/15 | 15/15 | 15/15 | 15/15 | 15/15 | 15/15 | 15/15 | 15/15 | 30/15 | 30/15 | 30/15 | 30/15 | 30/30 | 30/30 | 30/30 | |
| Kompresorji | Hermetični dvojni vijačni Power3 | |||||||||||||||||
| Krog A, nom. velikost na kompresor** | 39 | 46 | 46 | 56 | 56 | 66 | 80 | 80 | 80 | 80+ | 66/56 | 80/56 | 80/80 | 80+/80+ | 80/66 | 80/80 | 80+/80+ | |
| Krog B, nom. velikost na kompresor** | 39 | 39 | 46 | 46 | 56 | 56 | 56 | 66 | 80 | 80+ | 66 | 80 | 80 | 80+ | 80/66 | 80/80 | 80+/80+ | |
| Vrsta krmiljenja | PRO-DIALOG Plus control (PRO-DIALOG Plus nadzor) | |||||||||||||||||
| Število stopenj zmogljivosti | 6 | 6 | 6 | 6 | 6 | 6 | 6 | 6 | 6 | 6 | 8 | 8 | 8 | 8 | 10 | 10 | 10 | |
| Minimalna zmogljivost | % | 19 | 19 | 21 | 19 | 21 | 19 | 17 | 19 | 21 | 21 | 14 | 14 | 14 | 14 | 10 | 10 | 10 |
| Uparjalnik | Tip plašča in cevi, z notranje rebrastimi bakrenimi cevmi | |||||||||||||||||
| Neto prostornina vode | l | 65 | 65 | 73 | 87 | 81 | 81 | 91 | 91 | 109 | 109 | 140 | 165 | 181 | 181 | 203 | 229 | 229 |
| Priključki za vodo | Tovarniško dobavljena ploska prirobnica, ki jo je treba variti na mestu | |||||||||||||||||
| Vhod in izhod | in. | 4 | 4 | 4 | 5 | 5 | 5 | 5 | 5 | 5 | 5 | 6 | 6 | 6 | 6 | 8 | 8 | 8 |
| Odtok in zračnik (NPT) | in. | 3/8 | 3/8 | 3/8 | 3/8 | 3/8 | 3/8 | 3/8 | 3/8 | 3/8 | 3/8 | 3/8 | 3/8 | 3/8 | 3/8 | 3/8 | 3/8 | 3/8 |
| Maks. obratovalni tlak na vodni strani | kPa | 1000 | 1000 | 1000 | 1000 | 1000 | 1000 | 1000 | 1000 | 1000 | 1000 | 1000 | 1000 | 1000 | 1000 | 1000 | 1000 | 1000 |
| Kondenzatorji | Tip plašča in cevi, z notranje rebrastimi bakrenimi cevmi | |||||||||||||||||
| Neto prostornina vode | l | 58 | 58 | 58 | 58 | 92 | 92 | 110 | 110 | 132 | 132 | 162 | 208 | 208 | 208 | 251 | 251 | 251 |
| Priključki za vodo | Tovarniško dobavljena ploska prirobnica, ki jo je treba variti na mestu | |||||||||||||||||
| Vhod in izhod | in. | 5 | 5 | 5 | 5 | 5 | 5 | 5 | 5 | 6 | 6 | 6 | 6 | 6 | 6 | 8 | 8 | 8 |
| Odtok in zračnik (NPT) | in. | 3/8 | 3/8 | 3/8 | 3/8 | 3/8 | 3/8 | 3/8 | 3/8 | 3/8 | 3/8 | 3/8 | 3/8 | 3/8 | 3/8 | 3/8 | 3/8 | 3/8 |
| Maks. obratovalni tlak na vodni strani | kPa | 1000 | 1000 | 1000 | 1000 | 1000 | 1000 | 1000 | 1000 | 1000 | 1000 | 1000 | 1000 | 1000 | 1000 | 1000 | 1000 | 1000 |
* Standardizirani pogoji Eurovent: temperatura vode na vstopu/izstopu iz uparjalnika = 12°C/7°C, temperatura vode na vstopu/izstopu iz kondenzatorja = 30°C/35°C Neto hladilna moč: Bruto hladilna moč minus toplota vodne črpalke proti notranjemu padcu tlaka v uparjalniku. ** Velikost kompresorja ustreza nominalni zmogljivosti v tonah (1 tona = 3,517 kW).
ELEKTRIČNI PODATKI 30HXC
| 30HXC | 080 | 090 | 100 | 110 | 120 | 130 | 140 | 155 | 175 | 190 | 200 | 230 | 260 | 285 | 310 | 345 | 375 | |
| Napajalni tokokrog | ||||||||||||||||||
| Nominalna napetost napajanja* | V-ph-Hz | 400-3-50 | ||||||||||||||||
| Razpon napetosti | V | 360-440 | ||||||||||||||||
| Napajanje krmilnega tokokroga | Krmilni tokokrog se napaja preko tovarniško nameščenega transformatorja | |||||||||||||||||
| Nominalna vhodna moč* | kW | 59 | 67 | 74 | 83 | 88 | 99 | 112 | 123 | 135 | 146 | 156 | 179 | 201 | 219 | 245 | 274 | 298 |
| Nominalni tok* | A | 98 | 111 | 124 | 139 | 148 | 166 | 186 | 204 | 226 | 242 | 259 | 291 | 335 | 367 | 408 | 456 | 498 |
| Maks. vhodna moč** | kW | 76 | 83 | 91 | 101 | 111 | 121 | 135 | 145 | 158 | 181 | 187 | 214 | 237 | 272 | 290 | 316 | 362 |
| Tokokrog A | kW | - | - | - | - | - | - | - | - | - | - | 121 | 135 | 158 | 181 | 145 | 158 | 181 |
| Tokokrog B | kW | - | - | - | - | - | - | - | - | - | - | 66 | 79 | 79 | 91 | 145 | 158 | 181 |
| Cosinus phi, enota pri polni obremenitvi | 0.87 | 0.87 | 0.87 | 0.87 | 0.87 | 0.87 | 0.87 | 0.87 | 0.87 | 0.87 | 0.87 | 0.87 | 0.87 | 0.87 | 0.87 | 0.87 | 0.87 | |
| Maks. tok (Un - 10%)*** | A | 138 | 152 | 166 | 184 | 202 | 221 | 245 | 264 | 288 | 330 | 341 | 389 | 432 | 495 | 528 | 576 | 660 |
| Tokokrog A | A | - | - | - | - | - | - | - | - | - | - | 221 | 245 | 288 | 330 | 264 | 288 | 330 |
| Tokokrog B | A | - | - | - | - | - | - | - | - | - | - | 120 | 144 | 144 | 165 | 264 | 288 | 330 |
| Maksimalni tok (Un)*** | A | 125 | 138 | 151 | 167 | 184 | 201 | 223 | 240 | 262 | 300 | 310 | 354 | 393 | 450 | 480 | 524 | 600 |
| Tokokrog A | A | - | - | - | - | - | - | - | - | - | - | 201 | 223 | 262 | 300 | 240 | 262 | 300 |
| Tokokrog B | A | - | - | - | - | - | - | - | - | - | - | 109 | 131 | 131 | 150 | 240 | 262 | 300 |
| Maks. zagonski tok, std. enota (Un)**** | A | 172 | 197 | 209 | 235 | 252 | 283 | 318 | 335 | 357 | 420 | 806 | 938 | 977 | 1156 | 1064 | 1108 | 1306 |
| Tokokrog A | A | - | - | - | - | - | - | - | - | - | - | 697 | 807 | 846 | 1006 | 824 | 846 | 1006 |
| Tokokrog B | A | - | - | - | - | - | - | - | - | - | - | 605 | 715 | 715 | 856 | 824 | 846 | 1006 |
| Maks. razmerje zagonskega toka/maks. toka, enota | 1.37 | 1.42 | 1.39 | 1.41 | 1.37 | 1.41 | 1.43 | 1.40 | 1.36 | 1.40 | 2.60 | 2.65 | 2.49 | 2.57 | 2.22 | 2.12 | 2.18 | |
| Maks. razmerje zagonskega toka/maks. toka, tokokrog A | - | - | - | - | - | - | - | - | - | - | 3.47 | 3.62 | 3.23 | 3.35 | 3.43 | 3.23 | 3.35 | |
| Maks. razmerje zagonskega toka/maks. toka, tokokrog B | - | - | - | - | - | - | - | - | - | - | 5.55 | 5.46 | 5.46 | 5.71 | 3.43 | 3.23 | 3.35 | |
| Maks. zagonski tok - zmanjšan zagonski tok (Un) **** | A | std. | std. | std. | std. | std. | std. | std. | std. | std. | std. | 601 | 643 | 682 | 760 | 769 | 813 | 910 |
| Tokokrog A | A | std. | std. | std. | std. | std. | std. | std. | std. | std. | std. | 492 | 512 | 551 | 610 | 529 | 551 | 610 |
| Tokokrog B | A | std. | std. | std. | std. | std. | std. | std. | std. | std. | std. | 330 | 370 | 370 | 385 | 529 | 551 | 610 |
| Maks.zagonski tok - red. zagonski tok/ maks. razmerje toka, enota | std. | std. | std. | std. | std. | std. | std. | std. | std. | std. | 1.94 | 1.82 | 1.74 | 1.69 | 1.60 | 1.55 | 1.52 | |
| Tokokrog A | std. | std. | std. | std. | std. | std. | std. | std. | std. | std. | 2.45 | 2.30 | 2.10 | 2.03 | 2.20 | 2.10 | 2.03 | |
| Tokokrog B | std. | std. | std. | std. | std. | std. | std. | std. | std. | std. | 3.03 | 2.83 | 2.83 | 2.57 | 2.20 | 2.10 | 2.03 | |
| Trifazni kratkostični tok | kA | 25 | 25 | 25 | 25 | 25 | 25 | 25 | 25 | 25 | 25 | N/A | N/A | N/A | N/A | N/A | N/A | N/A |
| Tokokrog A | kA | - | - | - | - | - | - | - | - | - | - | 25 | 25 | 25 | 25 | 25 | 25 | 25 |
| Tokokrog B | kA | - | - | - | - | - | - | - | - | - | - | 15 | 15 | 15 | 15 | 25 | 25 | 25 |
| Kapaciteta stanja pripravljenosti stranke, enota ali tokokrog A, za priključke črpalke za vodo uparjalnika† | kW | 8 | 8 | 8 | 11 | 11 | 11 | 15 | 15 | 15 | 15 | 15 | 18 | 18 | 30 | 30 | 30 | 30 |
* Standardni pogoji Eurovent: Temperatura vode na vstopu/izstopu iz uparjalnika 12°C in 7°C. Temperatura vode na vstopu/izstopu iz kondenzatorja 30°C/35°C.
** Vhodna moč, kompresor, pri mejah delovanja enote (temperatura vode na vstopu/izstopu iz uparjalnika = 15°C/10°C, temperatura vode na vstopu/izstopu iz kondenzatorja = 40°C/45°C) in nominalna napetost 400 V (podatki so navedeni na tablici z imenom enote).
*** Največji obratovalni tok enote pri največji vhodni moči enote.
**** Največji trenutni zagonski tok (največji obratovalni tok najmanjšega kompresorja(ev) + tok blokiranega rotorja ali zmanjšan zagonski tok največjega kompresorja)
† Tok in vhodna moč nista vključena v zgornje vrednosti.
N/A Ni na voljo
Kompresorji
| Referenca | Velikost | I nom. | MHA | LRA | LRA (Y) | LRA (S) 1 cp. | LRA (S) 2 cp. |
| 06NW2146S7N | 39 | 48 | 69 | 344 | 109 | 125 | - |
| 06NW2174S7N | 46 | 58 | 83 | 423 | 134 | 154 | - |
| 06NW2209S7N | 56 | 71 | 101 | 506 | 160 | 260 | 350 |
| 06NW2250S7N | 66 | 87 | 120 | 605 | 191 | 330 | 400 |
| 06NW2300S5N | 80 | 104 | 144 | 715 | 226 | 370 | 420 |
| 06NW2300S5E | 80+ | 111 | 165 | 856 | 270 | 385 | 460 |
Legenda:
| 06NW | Kompresor za vodno hlajene enote |
| N | Neeconomized compressor (Neeconomized kompresor) |
| E | Economized compressor (Economized kompresor) |
| INOM | Povprečni tok kompresorja pri pogojih Eurovent |
| MHA | Must hold amperes (največji obratovalni tok) pri 360 V |
| LRA | Tok blokiranega rotorja z zagonom preko linije |
| LRA (Y) | Tok blokiranega rotorja pri zmanjšanem toku (način zagona z zvezdo/trikot) |
| LRA (S) 1 cp. | Zagon z zmanjšanim tokom z elektronskim zaganjalnikom (trajanje zagona največ 3 sekunde) za en kompresor na tokokrog |
| LRA (S) 2 cp. | Zagon z zmanjšanim tokom z elektronskim zaganjalnikom (trajanje zagona največ 3 sekunde) za dva kompresorja na tokokrog |
ELEKTRIČNI PODATKI ZA ENOTE Z VISOKIMI TEMPERATURAMI KONDENZACIJE
30HXC 150 in 150A mož;nosti
| 30HXC | 080 | 090 | 100 | 110 | 120 | 130 | 140 | 155 | 175 | 190 | 200 | 230 | 260 | 285 | 310 | 345 | 375 | |
| Napajalni krog | ||||||||||||||||||
| Nominalni napajalnik* | V-ph-Hz | 400-3-50 | ||||||||||||||||
| Razpon napetosti | V | 360-440 | ||||||||||||||||
| Napajanje krmilnega tokokroga | Krmilni tokokrog se napaja preko tovarniško nameščenega transformatorja | |||||||||||||||||
| Maks. vhodna moč** | kW | 104 | 117 | 131 | 145 | 159 | 174 | 194 | 211 | 230 | 263 | 271 | 310 | 345 | 395 | 422 | 460 | 526 |
| Tokokrog A | kW | - | - | - | - | - | - | - | - | - | - | 175 | 195 | 230 | 263 | 211 | 230 | 263 |
| Tokokrog B | kW | - | - | - | - | - | - | - | - | - | - | 96 | 115 | 115 | 132 | 211 | 230 | 263 |
| Maks. poraba toka (Un - 10%)*** | A | 190 | 215 | 240 | 265 | 290 | 320 | 355 | 385 | 420 | 480 | 495 | 564 | 630 | 720 | 770 | 840 | 960 |
| Tokokrog A | A | - | - | - | - | - | - | - | - | - | - | 320 | 355 | 420 | 480 | 385 | 420 | 480 |
| Tokokrog B | A | - | - | - | - | - | - | - | - | - | - | 175 | 210 | 210 | 240 | 385 | 420 | 480 |
| Maksimalna poraba toka (Un)*** | A | 173 | 195 | 218 | 241 | 264 | 291 | 323 | 350 | 382 | 436 | 450 | 514 | 573 | 655 | 700 | 764 | 873 |
| Tokokrog A | A | - | - | - | - | - | - | - | - | - | - | 291 | 323 | 382 | 436 | 350 | 382 | 436 |
| Tokokrog B | A | - | - | - | - | - | - | - | - | - | - | 159 | 191 | 191 | 218 | 350 | 382 | 436 |
| Maks. zagonski tok, std. enota (Un)**** | A | 277 | 312 | 335 | 379 | 402 | 435 | 519 | 546 | 578 | 618 | 1251 | 1549 | 1608 | 1701 | 1735 | 1799 | 1920 |
| Tokokrog A | A | - | - | - | - | - | - | - | - | - | - | 1092 | 1358 | 1417 | 1483 | 1385 | 1417 | 1483 |
| Tokokrog B | A | - | - | - | - | - | - | - | - | - | - | 960 | 1226 | 1226 | 1265 | 1385 | 1417 | 1483 |
| Maks. razmerje zagonskega toka/maks. porabe toka, enota | 1.61 | 1.60 | 1.54 | 1.57 | 1.52 | 1.49 | 1.61 | 1.56 | 1.51 | 1.42 | 2.78 | 3.02 | 2.81 | 2.60 | 2.48 | 2.36 | 2.20 | |
| Maks. razmerje zagonskega toka/maks. porabe toka, tokokrog A | - | - | - | - | - | - | - | - | - | - | 3.75 | 4.21 | 3.71 | 3.40 | 3.96 | 3.71 | 3.40 | |
| Maks. razmerje zagonskega toka/maks. porabe toka, tokokrog B | - | - | - | - | - | - | - | - | - | - | 6.03 | 6.42 | 6.42 | 5.80 | 3.96 | 3.71 | 3.40 | |
| Maks. zagonski tok - zmanjšan zagonski tok (Un) **** | A | std. | std. | std. | std. | std. | std. | std. | std. | std. | std. | N/A | N/A | N/A | N/A | N/A | N/A | N/A |
| Trifazni kratkostični tok | kA | 25 | 25 | 25 | 25 | 25 | 25 | 25 | 25 | 25 | 25 | N/A | N/A | N/A | N/A | N/A | N/A | N/A |
| Tokokrog A | kA | - | - | - | - | - | - | - | - | - | - | 25 | 25 | 25 | 25 | 25 | 25 | 25 |
| Tokokrog B | kA | - | - | - | - | - | - | - | - | - | - | 15 | 15 | 15 | 15 | 25 | 25 | 25 |
| Kapaciteta pripravljenosti stranke, enota ali tokokrog A, za priključke črpalke za vodo uparjalnika† | kW | 8 | 8 | 8 | 11 | 11 | 11 | 15 | 15 | 15 | 15 | 15 | 18 | 18 | 30 | 30 | 30 | 30 |
** Vhodna moč, kompresor, pri obratovalnih mejah enote (vstopna/izstopna temperatura vode uparjalnika = 15°C/10°C, vstopna/izstopna temperatura vode kondenzatorja = 40°C/45°C) in nominalna napetost 400 V (podatki so navedeni na ploščici z imenom enote).
*** Največji obratovalni tok enote pri največji vhodni moči enote.
**** Največji trenutni zagonski tok (največji obratovalni tok najmanjšega kompresorja(ev) + tok blokiranega rotorja ali zmanjšan zagonski tok največjega kompresorja)
† Vrednosti toka in vhodne moči niso vključene v zgornje vrednosti.
N/A Ni na voljo
Enote 30HXC 080-375 za visoke temperature kondenzacije so neposredno izpeljane iz standardnih modelov. Njihov obseg uporabe je enak kot pri standardnih enotah, vendar omogoča delovanje pri temperaturah izstopne vode kondenzatorja do 63°C. Krmilnik PRO-DIALOG ponuja vse prednosti standardnih enot, plus nadzor temperature izstopne vode kondenzatorja.
Glavne spremembe so:
- Uporaba kompresorjev 30GX
- Sprememba električnih komponent za delovanje s kompresorji za visoke temperature kondenzacije.
- Sprememba toplotnih izmenjevalnikov za izpolnjevanje zahtev glede kode tlaka (če je potrebno).
Možnost 150
Te enote so zasnovane za tradicionalne aplikacije za vodno hlajene enote, vendar za višje temperature izstopne vode kondenzatorja od 45°C.
Tako kot standardne enote so opremljene s senzorji vstopne in izstopne vode kondenzatorja, nameščenimi na cevovodu.
Stroj je mogoče krmiliti na izhodu vode kondenzatorja, kar zahteva spremembo tovarniške konfiguracije in uporabo naprave za obračanje vstopa ogrevanja/hlajenja.
Možnost 150A
Te enote so zasnovane za toplotne črpalke voda-voda.
Tovarniško so konfigurirane kot toplotne črpalke (krmiljenje ogrevanja/hlajenja kot funkcija oddaljene naprave za obračanje). Kondenzator vključuje toplotno izolacijo, ki je enaka kot pri uparjalniku.
Tehnične informacije
Vse informacije so enake kot pri standardnih enotah 30HXC, razen naslednjih odstavkov.
Izbira
Za to vrsto enote ni nominalnih pogojev. Izbira se izvede s pomočjo trenutnega elektronskega kataloga.
Dimenzije
Te so enake kot pri standardnih enotah 30HXC. Edina razlika je v premeru priključitve dovodne terenske napeljave, ki je opisana v poglavju "Priporočena izbira". Pred nadaljevanjem z ožičenjem si oglejte dimenzijske risbe za te enote.
Kompresor
Glejte tabelo kompresorjev 30GX.
Možnosti in dodatna oprema
Vse možnosti, ki so na voljo za standardne enote 30HXC, so združljive, razen:
| Možnost 5, enota za slanico | Posebna enota |
| Možnost 25, mehki zagon, enote 30HXC 200-375 | Ni na voljo |
Pozor:
Če imajo enote dva različna načina delovanja - enega z visoko temperaturo kondenzacije in drugega z nizko temperaturo kondenzacije - in se prehod izvede z enoto v delovanju, se temperatura ne sme spreminjati za več kot 3 K na minuto. V primerih, ko to ni mogoče, je priporočljivo preklopiti preko stikala za vklop/izklop enote (daljinski vklop/izklop je na voljo za standardne enote).
FIZIČNI PODATKI 30GX
| 30GX | 082 | 092 | 102 | 112 | 122 | 132 | 152 | 162 | 182 | 207 | 227 | 247 | 267 | 298 | 328 | 358 | ||
| Neto hladilna moč | kW | 285 | 309 | 332 | 388 | 417 | 450 | 505 | 536 | 602 | 687 | 744 | 810 | 910 | 1003 | 1103 | 1207 | |
| Obratovalna teža | kg | 3116 | 3157 | 3172 | 3515 | 3531 | 3633 | 3920 | 3936 | 4853 | 5540 | 5570 | 6134 | 6365 | 7354 | 7918 | 8124 | |
| Polnjenje s hladilnim sredstvom | HFC-134a | |||||||||||||||||
| Tokokrog A/B | kg | 55/55 | 58/50 | 54/53 | 55/53 | 60/57 | 63/60 | 75/69 | 75/75 | 80/80 | 130/85 | 130/85 | 155/98 | 170/104 | 162/150 | 162/165 | 175/175 | |
| Oljno | Poliolestrsko olje CARRIER SPEC: PP 47-32 | |||||||||||||||||
| Tokokrog A/B | l | 20/20 | 20/20 | 20/20 | 20/20 | 20/20 | 20/20 | 20/20 | 20/20 | 20/20 | 40/20 | 40/20 | 40/20 | 40/20 | 40/40 | 40/40 | 40/40 | |
| Kompresorji | Hermetični dvojni vijačni Power3 | |||||||||||||||||
| Tokokrog A, nom. velikost na kompresor** | 46 | 46 | 56 | 56 | 66 | 66 | 80 | 80 | 80+ | 66/56 | 80/66 | 80/80 | 80+/80+ | 80/80 | 80/80 | 80+/80+ | ||
| Tokokrog B, nom. velikost na kompresor** | 39 | 46 | 46 | 56 | 56 | 66 | 66 | 80 | 80+ | 80 | 80 | 80 | 80+ | 66/66 | 80/802 | 80+/80+ | ||
| Vrsta krmiljenja | Krmiljenje PRO-DIALOG Plus | |||||||||||||||||
| Število stopenj zmogljivosti | 6 | 6 | 6 | 6 | 6 | 6 | 6 | 6 | 6 | 8 | 8 | 8 | 8 | 10 | 10 | 10 | ||
| Minimalna zmogljivost | % | 19 | 21 | 19 | 21 | 19 | 21 | 19 | 21 | 21 | 16 | 14 | 14 | 14 | 9 | 10 | 10 | |
| Uparjalnik | Tip lupine in cevi, z notranje rebrastimi bakrenimi cevmi | |||||||||||||||||
| Neto prostornina vode | l | 65 | 73 | 73 | 87 | 87 | 101 | 91 | 91 | 109 | 140 | 140 | 165 | 181 | 203 | 229 | 229 | |
| Priključki za vodo | Tovarniško dobavljena ploska prirobnica, ki jo je treba variti na mestu samem | |||||||||||||||||
| Vhod in izhod | in. | 4 | 4 | 4 | 5 | 5 | 5 | 5 | 5 | 5 | 6 | 6 | 6 | 6 | 8 | 8 | 8 | |
| Odtok in zračnik (NPT) | in. | 3/8 | 3/8 | 3/8 | 3/8 | 3/8 | 3/8 | 3/8 | 3/8 | 3/8 | 3/8 | 3/8 | 3/8 | 3/8 | 3/8 | 3/8 | 3/8 | |
| Maks. obratovalni tlak na strani vode | kPa | 1000 | 1000 | 1000 | 1000 | 1000 | 1000 | 1000 | 1000 | 1000 | 1000 | 1000 | 1000 | 1000 | 1000 | 1000 | 1000 | |
| Kondenzatorji | Bakrene cevi in aluminijasta rebra | |||||||||||||||||
| Ventilatorji | Aksialni ventilator FLYING BIRD 2 z vrtljivim pokrovom | |||||||||||||||||
| Količina | 4 | 4 | 4 | 6 | 6 | 6 | 8 | 8 | 8 | 10 | 10 | 12 | 12 | 14 | 16 | 16 | ||
| Hitrost | r/s | 15.8 | 15.8 | 15.8 | 15.8 | 15.8 | 15.8 | 15.8 | 15.8 | 15.8 | 15.8 | 15.8 | 15.8 | 15.8 | 15.8 | 15.8 | 15.8 | |
| Skupni pretok zraka | l/s | 21110 | 21110 | 21110 | 31660 | 31660 | 31660 | 42220 | 42220 | 42220 | 52770 | 52770 | 63330 | 63330 | 73880 | 84440 | 84440 | |
* Standardizirani pogoji Eurovent: vstopne/izstopne temperature vode uparjalnika = 12°C/7°C, temperatura zunanjega zraka = 35°C Neto hladilna moč: Bruto hladilna moč minus toplota vodne črpalke proti padcu notranjega tlaka uparjalnika.
** Velikost kompresorja ustreza nominalni zmogljivosti v tonah (1 tona = 3,517 kW).
ELEKTRIČNI PODATKI 30GX
| 30HXC | 082 | 092 | 102 | 112 | 122 | 132 | 152 | 162 | 182 | 207 | 227 | 247 | 267 | 298 | 328 | 358 | ||
| Napajalni krog | ||||||||||||||||||
| Nominalna napetost* | V-ph-Hz | 400-3-50 | ||||||||||||||||
| Razpon napetosti | V | 360-440 | ||||||||||||||||
| Napajanje krmilnega tokokroga | Krmilni tokokrog se napaja preko tovarniško nameščenega transformatorja | |||||||||||||||||
| Nominalna vhodna moč* | kW | 98 | 109 | 123 | 133 | 150 | 166 | 179 | 196 | 214 | 246 | 281 | 292 | 332 | 364 | 394 | 449 | |
| Nominalni tok* | A | 180 | 200 | 223 | 256 | 273 | 290 | 326 | 352 | 388 | 449 | 492 | 528 | 582 | 642 | 704 | 776 | |
| Maks. vhodna moč** | kW | 127 | 141 | 154 | 175 | 191 | 207 | 234 | 253 | 286 | 319 | 355 | 380 | 429 | 462 | 506 | 572 | |
| Tokokrog A | kW | - | - | - | - | - | - | - | - | - | 193 | 228 | 253 | 286 | 253 | 253 | 286 | |
| Tokokrog B | kW | - | - | - | - | - | - | - | - | - | 127 | 127 | 127 | 143 | 209 | 253 | 286 | |
| Cosinus phi, enota pri polni obremenitvi | 0.85 | 0.85 | 0.85 | 0.85 | 0.85 | 0.85 | 0.86 | 0.86 | 0.86 | 0.86 | 0.86 | 0.86 | 0.86 | 0.86 | 0.86 | 0.86 | ||
| Maks. tok (Un - 10%)*** | A | 237 | 262 | 287 | 323 | 353 | 383 | 429 | 464 | 524 | 585 | 650 | 696 | 786 | 847 | 928 | 1048 | |
| Tokokrog A | A | - | - | - | - | - | - | - | - | - | 353 | 418 | 464 | 524 | 464 | 464 | 524 | |
| Tokokrog B | A | - | - | - | - | - | - | - | - | - | 232 | 232 | 232 | 262 | 383 | 464 | 524 | |
| Maksimalni tok (Un)*** | A | 217 | 240 | 263 | 297 | 324 | 351 | 394 | 426 | 480 | 537 | 596 | 639 | 721 | 777 | 852 | 961 | |
| Tokokrog A | A | - | - | - | - | - | - | - | - | - | 324 | 383 | 426 | 480 | 426 | 426 | 480 | |
| Tokokrog B | A | - | - | - | - | - | - | - | - | - | 213 | 213 | 213 | 240 | 351 | 426 | 480 | |
| Maks. zagonski tok, std. enota**** (Un) | A | 334 | 357 | 401 | 435 | 468 | 495 | 590 | 622 | 662 | 1338 | 1631 | 1674 | 1767 | 1812 | 1887 | 2008 | |
| Tokokrog A*** | A | - | - | - | - | - | - | - | - | - | 1125 | 1418 | 1461 | 1527 | 1461 | 1461 | 1527 | |
| Tokokrog B*** | A | - | - | - | - | - | - | - | - | - | 1248 | 1248 | 1248 | 1287 | 1152 | 1461 | 1527 | |
| Maks. zagonski tok/maks. razmerje toka, enota | 1.54 | 1.49 | 1.53 | 1.47 | 1.44 | 1.41 | 1.50 | 1.46 | 1.38 | 2.49 | 2.74 | 2.62 | 2.45 | 2.33 | 2.22 | 2.09 | ||
| Maks. zagonski tok/maks. razmerje toka, tokokrog A | - | - | - | - | - | - | - | - | - | 3.47 | 3.70 | 3.43 | 3.18 | 3.43 | 3.43 | 3.18 | ||
| Maks. zagonski tok/maks. razmerje toka, tokokrog B | - | - | - | - | - | - | - | - | - | 5.86 | 5.86 | 5.86 | 5.36 | 3.28 | 3.43 | 3.18 | ||
| Maks. zagonski tok - zmanjšan zagonski tok (Un) **** | A | std. | std. | std. | std. | std. | std. | std. | std. | std. | 878 | 955 | 998 | 1102 | 1136 | 1211 | 1343 | |
| Tokokrog A | A | std. | std. | std. | std. | std. | std. | std. | std. | std. | 665 | 742 | 785 | 862 | 785 | 785 | 862 | |
| Tokokrog B | A | std. | std. | std. | std. | std. | std. | std. | std. | std. | 572 | 572 | 572 | 622 | 692 | 785 | 862 | |
| Maks. zagonski tok - red. zagonski tok/ maks. razmerje toka, enota | std. | std. | std. | std. | std. | std. | std. | std. | std. | 1.64 | 1.60 | 1.56 | 1.53 | 1.46 | 1.42 | 1.40 | ||
| Tokokrog A | std. | std. | std. | std. | std. | std. | std. | std. | std. | 2.05 | 1.94 | 1.84 | 1.79 | 1.84 | 1.84 | 1.79 | ||
| Tokokrog B | std. | std. | std. | std. | std. | std. | std. | std. | std. | 2.69 | 2.69 | 2.69 | 2.39 | 1.97 | 1.84 | 1.79 | ||
| Trifazni kratkostični tok | kA | 25 | 25 | 25 | 25 | 25 | 25 | 25 | 25 | 25 | N/A | N/A | N/A | N/A | N/A | N/A | N/A | |
| Tokokrog A | kA | - | - | - | - | - | - | - | - | - | 25 | 25 | 25 | 25 | 25 | 25 | 25 | |
| Tokokrog B | kA | - | - | - | - | - | - | - | - | - | 25 | 25 | 25 | 25 | 25 | 25 | 25 | |
| Kapaciteta stanja pripravljenosti stranke, enota ali tokokrog A, za priključke črpalke za vodo uparjalnika† | kW | 4 | 4 | 4 | 5.5 | 5.5 | 5.5 | 7.5 | 7.5 | 7.5 | 7.5 | 9 | 9 | 9 | 15 | 15 | 15 | |
* Standardni pogoji Eurovent: Vstopna/izstopna temperatura vode uparjalnika 12°C in 7°C. Temperatura zunanjega zraka 35°C.
** Vhodna moč, kompresor in ventilator, pri mejah delovanja enote (vstopna/izstopna temperatura vode uparjalnika = 15°C/10°C, temperatura zunanjega zraka = 46°C) in nominalna napetost 400 V (podatki na tipski ploščici enote).
*** Največji obratovalni tok enote pri največji vhodni moči enote.
**** Največji trenutni zagonski tok (največji obratovalni tok najmanjšega kompresorja(ev) + tok ventilatorja + tok blokiranega rotorja ali zmanjšan zagonski tok največjega kompresorja).
† Tok in vhodna moč nista vključena v zgornje vrednosti
N/A Ni na voljo
Kompresorji
| Referenca | Velikost | I nom. | MHA | LRA | LRA (Y) | LRA (S) 1 cp. | LRA (S) 2 cp. |
| 06NA2146S7N | 39 | 70 | 95 | 605 | 191 | 220 | - |
| 06NA2174S7N | 46 | 90 | 120 | 715 | 226 | 260 | - |
| 06NA2209S7N | 56 | 113 | 145 | 856 | 270 | 330 | 420 |
| 06NA2250S7N | 66 | 130 | 175 | 960 | 303 | 380 | 500 |
| 06NA2300S5N | 80 | 156 | 210 | 1226 | 387 | 445 | 550 |
| 06NA2300S5E | 80+ | 174 | 240 | 1265 | 400 | 460 | 600 |
Legenda:
| 06NA | Kompresor za zračno hlajene enote |
| N | Neeconomized compressor (Neeconomized kompresor) |
| E | Economized compressor (Economized kompresor) |
| INOM | Povprečni tok kompresorja pri pogojih Eurovent |
| MHA | Must hold amperes (največji obratovalni tok) pri 360 V |
| LRA | Tok blokiranega rotorja z zagonom preko linije |
| LRA (Y) | Tok blokiranega rotorja pri zmanjšanem toku (način zagona z zvezdo/trikot) |
| LRA (S) 1 cp. | Zagon z zmanjšanim tokom z elektronskim zaganjalnikom (trajanje zagona največ 3 sekunde) za en kompresor na tokokrog |
| LRA (S) 2 cp. | Zagon z zmanjšanim tokom z elektronskim zaganjalnikom (trajanje zagona največ 3 sekunde) za dva kompresorja na tokokrog |
PODATKI O UPORABI
Območje delovanja enote
| Evaporator (izparilnik) | Minimum (najmanj) | Maximum (največ) | |
| Evaporator entering water temperature (temperatura vode, ki vstopa v izparilnik) | °C | 6.8* | 21 |
| Evaporator leaving water temperature (temperatura vode, ki izstopa iz izparilnika) | °C | 4** | 15 |
| Condenser (water-cooled) (kondenzator, hlajen z vodo) | Minimum (najmanj) | Maximum (največ) | |
| Condenser entering water temperature (temperatura vode, ki vstopa v kondenzator) | °C | 20*** | 42 |
| Condenser leaving water temperature (temperatura vode, ki izstopa iz kondenzatorja) | °C | 25 | 45 |
| Outside ambient operating temperature 30HXC (zunanja temperatura okolice delovanja 30HXC) | °C | 6 | 40 |
| Condenser (air-cooled) (kondenzator, hlajen z zrakom) | Minimum (najmanj) | Maximum (največ) | |
| Outdoor ambient operating temperature (zunanja temperatura okolice delovanja) | °C | 0 | 46 |
| Available static pressure (razpoložljiv statični tlak) | kPa | 0 |
Notes: (opombe:)
* For application requiring operation at less than 6.8°C, contact Carrier s.a. for unit selection using the Carrier electronic catalog. (Za uporabo, ki zahteva delovanje pri temperaturi pod 6,8 °C, se za izbiro enote obrnite na Carrier s.a. z uporabo Carrierjevega elektronskega kataloga.)
** For application requiring operation at less than 4°C, the units require the use of antifreeze. (Za uporabo, ki zahteva delovanje pri temperaturi pod 4 °C, morajo enote uporabljati antifriz.)
*** Water-cooled units (30HXC) operating at full load and below 20°C condenser entering water temperature require the use of a head pressure control with analogue water control valves (see paragraph on head pressure control). (Vodno hlajene enote (30HXC), ki delujejo pri polni obremenitvi in pod 20 °C vstopne temperature vode v kondenzator, zahtevajo uporabo regulacije tlaka s krmilnimi ventili za analogno vodo (glejte odstavek o regulaciji tlaka).)
In temporary operating modes (start-up and at part load) the unit can operate with a condenser entering air temperature of 13°C. (V začasnih načinih delovanja (zagon in pri delni obremenitvi) lahko enota deluje z vstopno temperaturo zraka v kondenzator 13 °C.)
Minimalni pretok ohlajene vode
The minimum chilled water flow is shown in the table on the next page. (Minimalni pretok ohlajene vode je prikazan v tabeli na naslednji strani.) If the flow is less than this, the evaporator flow can be recirculated, as shown in the diagram. (Če je pretok manjši od tega, se lahko pretok izparilnika recirkulira, kot je prikazano na diagramu.) The temperature of the mixture leaving the evaporator must never be less than 2.8 K lower than the chilled water entering temperature. (Temperatura mešanice, ki zapušča izparilnik, nikoli ne sme biti za manj kot 2,8 K nižja od temperature vstopne ohlajene vode.)

FOR MINIMUM CHILLED WATER FLOW RATE (ZA MINIMALNI PRETOK OHLADNE VODE)
Maksimalni pretok ohlajene vode
The maximum chilled water flow is limited by the maximum permitted pressure drop in the evaporator. (Največji pretok ohlajene vode je omejen z največjim dovoljenim padcem tlaka v izparilniku.) It is provided in the table on the next page. (Naveden je v tabeli na naslednji strani.) If the flow exceeds the maximum value, two solutions are possible: (Če pretok presega največjo vrednost, sta možni dve rešitvi:)
- Select a non-standard evaporator with one water pass lesswhich will allow a higher maximum water flow rate. (Izberite nestandardni izparilnik z enim manj vodnim prehodom, ki bo omogočil večji največji pretok vode.)
- Bypass the evaporator as shown in the diagram to obtain ahighter temperature difference with a lower evaporator flow rate. (Obidite izparilnik, kot je prikazano na diagramu, da dosežete večjo temperaturno razliko z nižjim pretokom izparilnika.)

FOR MAXIMUM CHILLED WATER FLOW RATE (ZA MAKSIMALNI PRETOK OHLADNE VODE)
Izparilnik s spremenljivim pretokom
Variable evaporator flow can be used in standard 30HXC and 30GX chillers. (Spremenljiv pretok izparilnika se lahko uporablja v standardnih hladilnikih 30HXC in 30GX.) The chillers maintain a constant leaving water temperature under all flow conditions. (Hladilniki vzdržujejo konstantno temperaturo izstopne vode v vseh pogojih pretoka.) For this to happen, the minimum flow rate must be higher than the minimum flow given in the table of permissible flow rates and must not vary by more than 10% per minute. (Da se to zgodi, mora biti minimalni pretok višji od minimalnega pretoka, navedenega v tabeli dovoljenih pretokov, in ne sme odstopati za več kot 10 % na minuto.) If the flow rate changes more rapidly, the system should contain a minimum of 6.5 liters of water per kW instead of 3.25 l/kW. (Če se pretok spreminja hitreje, mora sistem vsebovati najmanj 6,5 litra vode na kW namesto 3,25 l/kW.)
Minimalna prostornina vode v sistemu
Whichever the system, the water loop minimum capacity is given by the formula: (Ne glede na sistem, je minimalna zmogljivost vodnega kroga podana s formulo:)
Capacity = Cap (kW) x N Liters (Zmogljivost = Cap (kW) x N Litrov)
| Application (uporaba) | N |
| Normal air conditioning (običajna klimatska naprava) | 3.25 |
| Process type cooling (procesno hlajenje) | 6.5 |
Where Cap is the nominal system cooling capacity (kW) at the nominal operating conditions of the installation. (Kjer je Cap nominalna hladilna moč sistema (kW) pri nominalnih pogojih delovanja naprave.)
This volume is necessary for stable operation and accurate temperature control. (Ta prostornina je potrebna za stabilno delovanje in natančno regulacijo temperature.)
It is often necessary to add a buffer water tank to the circuit in order to achieve the required volume. (Pogosto je treba v tokokrog dodati zalogovnik vode, da se doseže zahtevana prostornina.) The tank must itself be internally baffled in order to ensure proper mixing of the liquid (water or brine). (Sama posoda mora biti notranje pregrajena, da se zagotovi pravilno mešanje tekočine (vode ali slanice).) Refer to the examples below. (Glejte spodnje primere.)
NOTE: The compressor must not restart more than 6 times in an hour. (OPOMBA: Kompresor se ne sme ponovno zagnati več kot 6-krat v eni uri.)


Pretok hladilnika (l/s)
| 30HXC | Min.* | Max.** | ||
| 080-090 | 5.7 | 22.7 | ||
| 100 | 6.0 | 24.1 | ||
| 110 | 6.9 | 27.5 | ||
| 120-130 | 8.3 | 33.0 | ||
| 140-155 | 10.0 | 39.5 | ||
| 175-190 | 10.7 | 42.7 | ||
| 200 | 13.4 | 53.7 | ||
| 230 | 13.4 | 60.6 | ||
| 260-285 | 17.0 | 68.1 | ||
| 310 | 19.4 | 77.8 | ||
| 345-375 | 21.3 | 85.3 | ||
| 30GX | Min.* | Max.** | ||
| 082 | 5.7 | 22.7 | ||
| 092-102 | 6.0 | 24.1 | ||
| 112-122 | 6.9 | 27.5 | ||
| 132 | 8.4 | 33.7 | ||
| 152-162 | 10.0 | 39.9 | ||
| 182 | 10.7 | 42.7 | ||
| 207-227 | 13.4 | 53.7 | ||
| 247 | 15.1 | 60.6 | ||
| 267 | 17.0 | 68.1 | ||
| 298 | 19.4 | 77.8 | ||
| 328-358 | 21.3 | 85.3 | ||
* Temelji na hitrosti vode 0,9 m/s.
** Temelji na hitrosti vode 3,6 m/s.
Pretok kondenzatorja (l/s)
| 30HXC | Min.* Zaprti krog | Odprti krog | Max.** |
| 080-110 | 2.5 | 7.5 | 29.9 |
| 120-130 | 3.1 | 9.3 | 37.3 |
| 140-155 | 3.8 | 11.4 | 45.5 |
| 175-190 | 4.6 | 13.8 | 55.2 |
| 200 | 5.0 | 14.9 | 59.6 |
| 230-285 | 6.7 | 20.1 | 80.3 |
| 310-375 | 7.3 | 22.0 | 88.0 |
* Temelji na hitrosti vode 0,3 m/s v zaprtem krogu in 0,9 m/s v odprtem krogu.
** Temelji na hitrosti vode 3,6 m/s
Krivulja padca tlaka uparjalnika

- 30HXC 080-090/30GX 082
- 30HXC 100/30GX 092-102
- 30HXC 110/30GX 112-122
- 30GX 132
- 30HXC 120-130
- 30HXC 140-155/30GX 152-162
- 30HXC 175-190/30GX 182
- 30HXC 200/30GX 207-227
- 30HXC 230/30GX 247
- 30HXC 260-285/30GX 267
- 30HXC 310/30GX 298
- 30HXC 345-375/30GX 328-358
Krivulja padca tlaka kondenzatorja

- 30HXC 080-090-100-110
- 30HXC 120-130
- 30HXC 140-155
- 30HXC 175-190
- 30HXC 200
- 30HXC 230-260-285
- 30HXC 310-345-375
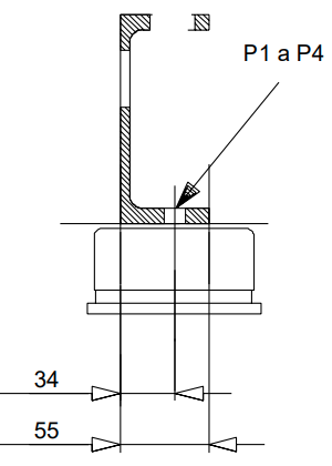
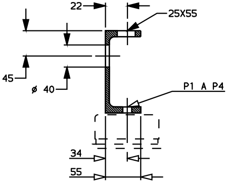
Krmilniki pretoka
Stikalo pretoka hladilnika in blokada črpalke ohlajene vode
Obvezna je namestitev stikala pretoka hladilnika in priključitev blokade črpalke ohlajene vode na enotah 30HXC in 30GX. Neupoštevanje teh navodil bo razveljavilo garancijo Carrier.
Krmilnik stikala pretoka hladilnika je tovarniško dobavljen in ožičen na enotah 30HXC in 30GX.
Za namestitev upoštevajte navodila proizvajalca.
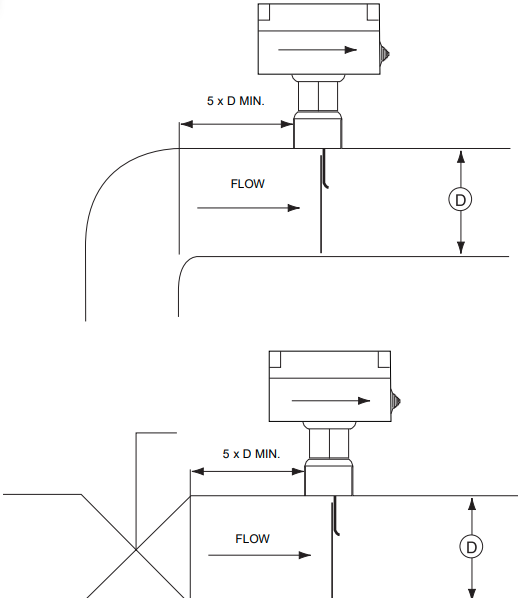
Stikalo pretoka se lahko namesti v vodoravno ali navpično cev z navzgornjim tokom tekočine. Ne sme se uporabljati, kadar tekočina teče navzdol.
Namestite ga v odsek cevi, kjer je ravna dolžina vsaj pet premerov cevi na vsaki strani stikala pretoka. Ne nameščajte ga v bližini ventilov, kolen ali odprtin. Lopatica se nikoli ne sme dotikati cevi ali kakršne koli omejitve v cevi. Privijte stikalo pretoka v položaj, tako da je raven del lopatice pod pravim kotom glede na tok. Puščice na pokrovu in na dnu, znotraj ohišja, morajo kazati v smeri toka. Stikalo mora biti nameščeno tako, da so sponke dostopne za enostavno ožičenje.
Sponke 34 in 35 so namenjene terenski namestitvi blokade črpalke ohlajene vode (pomožni kontakt kontaktorja črpalke ohlajene vode).
(Cevni priključek: 1" NPT)

Stikalo pretoka kondenzatorja (30HXC)
Stikalo pretoka kondenzatorja je naprava, ki se namesti na terenu.
NAMESTITEV
Preverite prejeto opremo
- Preglejte enoto glede poškodb ali manjkajočih delov. Če opazite poškodbe ali je pošiljka nepopolna, takoj vložite zahtevek pri transportnem podjetju.
- Prepričajte se, da je prejeta enota tista, ki ste jo naročili. Primerjajte podatke na tablici z naročilom.
- Prepričajte se, da je bila vsa dodatna oprema, naročena za namestitev na kraju samem, dostavljena ter je popolna in nepoškodovana.
- Ne shranjujte enot na območju, ki je izpostavljeno vremenskim vplivom, zaradi občutljivega nadzornega mehanizma in elektronskih naprav.
Premikanje in namestitev enote
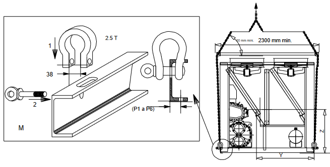
Premikanje
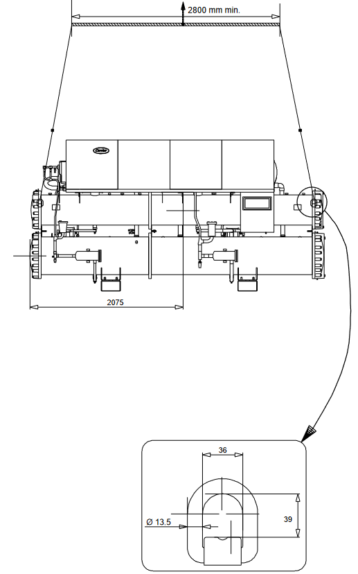
Ne odstranjujte drsnikov, palet ali zaščitne embalaže, dokler enota ni na končnem položaju. Hladilnik premikajte s pomočjo cevi ali valjev ali pa ga dvignite z uporabo vrvi ustrezne nosilnosti.
(30HXC)
Uporabljajte samo vrvi na označenih točkah za dvigovanje, ki so označene na enoti, na vrhu toplotnega izmenjevalnika hladilnika. Oprema, pritrjena na dnu toplotnega izmenjevalnika, bo povzročila nevarno dviganje enote. Lahko pride do telesnih poškodb ali poškodb enote. Upoštevajte navodila za opremljanje, ki so navedena na certificirani dimenzijski risbi, ki je priložena enoti.
Namestitev
Vedno si oglejte poglavje »Dimenzije in prostori«, da se prepričate, da je na voljo dovolj prostora za vse priključke in servisne operacije. Za koordinate težišča, položaj montažnih lukenj enote in točke porazdelitve teže si oglejte certificirano dimenzijsko risbo, ki je priložena enoti.
Priporočamo, da te hladilnike namestite v kleti ali v pritličju. Če ga želite namestiti nad nivojem tal, najprej preverite, ali je dovoljena obremenitev tal zadostna in ali so tla dovolj močna in ravna. Po potrebi tla ojačajte in izravnajte.
Ko je hladilnik na končnem mestu, odstranite drsnike in druge naprave, ki ste jih uporabili za lažje premikanje. Izravnajte enoto z vodno tehtnico in jo privijte na tla ali podstavek. Delovanje teh enot je lahko moteno, če niso izravnane in varno pritrjene na svoje nosilce. Po potrebi uporabite izolacijske blazinice pod enoto za pomoč pri izolaciji vibracij.
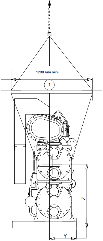
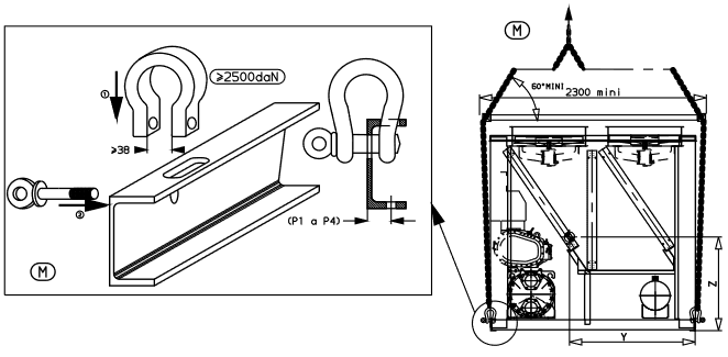
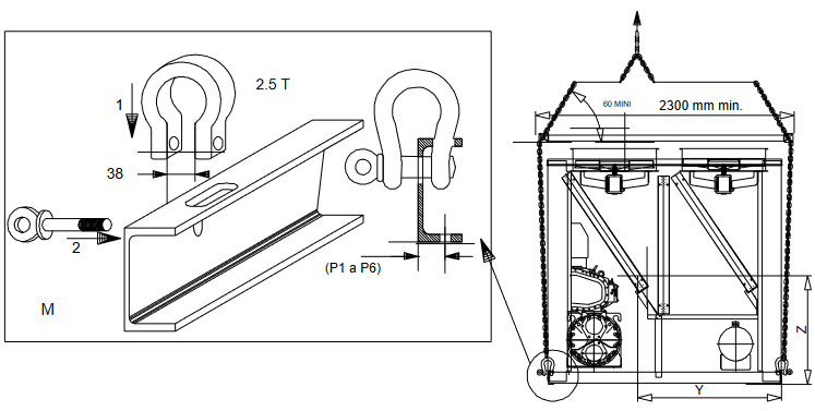
NAVODILA ZA DVIGOVANJE
30HXC 080-190
Ta diagram je prikazan samo za informacije. Oglejte si »certificirane risbe«.

- RAZEN 30HXC 190
X mm Y mm Z mm 30HXC080
30HXC090
30HXC1001345 402 903 30HXC110 1368 397 935 30HXC120
30HXC130
30HXC140
30HXC1551731 392 879 30HXC175 1703 386 947 30HXC190 1705 398 955


OPOMBA
Ko so vsa dvigovanja in pozicioniranja končana, je priporočljivo popraviti vse površine, kjer je bila odstranjena barva na ušesih za dvigovanje.
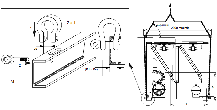
30HXC 200-285
Ta diagram je prikazan samo za informacije. Oglejte si »certificirane risbe«.


30HXC 310-375


| X mm | Y mm | Z mm | |
| 30HXC310 | 2195 | 425 | 1085 |
| 30HXC345 | 2195 | 425 | 1085 |
| 30HXC375 | 2205 | 435 | 1025 |
OPOMBA
Ko so vsa dvigovanja in pozicioniranja končana, je priporočljivo popraviti vse površine, kjer je bila odstranjena barva na ušesih za dvigovanje.
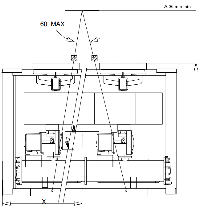
30GX 082-162
Ta diagram je prikazan samo za informacije. Oglejte si »certificirane risbe«.



| X mm | Y mm | Z mm | PTkg | |
| 30GX082 | 1440 | 1460 | 900 | 3115 |
| 30GX092 | 1440 | 1460 | 900 | 3156 |
| 30GX102 | 1440 | 1460 | 900 | 3170 |
| 30GX112 | 1650 | 1460 | 900 | 3574 |
| 30GX122 | 1650 | 1460 | 900 | 3527 |
| 30GX132 | 1650 | 1460 | 900 | 3634 |
| 30GX152 | 2155 | 1430 | 900 | 3938 |
| 30GX162 | 2155 | 1430 | 900 | 3954 |
30GX 182



| X mm | Y mm | Z mm | PTkg | |
| 30GX182 | 3030 | 1370 | 875 | 4853 |
OPOMBA
Ko so vsa dvigovanja in pozicioniranja končana, je priporočljivo popraviti vse površine, kjer je bila odstranjena barva na ušesu za dvigovanje
30GX 207-267
Ta diagram je prikazan samo za informacije. Oglejte si »certificirane risbe«.



| X mm | Y mm | Z mm | PTkg | |
| 30GX207 | 2870 | 1440 | 890 | 5536 |
| 30GX227 | 2870 | 1440 | 890 | 5572 |
| 30GX247 | 3320 | 1430 | 927 | 6131 |
| 30GX267 | 3300 | 1420 | 886 | 6363 |
30GX 298-358



| X mm | Y mm | Z mm | PTkg | |
| 30GX298 | 3630 | 1420 | 890 | 7353 |
| 30GX328 | 4360 | 1455 | 920 | 7840 |
| 30GX358 | 4360 | 1445 | 930 | 8045 |
OPOMBA
Ko so vsa dvigovanja in pozicioniranja končana, je priporočljivo popraviti vse površine, kjer je bila odstranjena barva na ušesih za dvigovanje.
Cevni priključki
Za velikosti in položaje vseh priključkov za vodo na vstopu in izstopu si oglejte certificirane dimenzijske risbe. Vodovodne cevi ne smejo prenašati nobene radialne ali aksialne sile na toplotne izmenjevalnike ali vibracij na cevovod ali zgradbo.
Dovod vode je treba analizirati in vgraditi ustrezno filtriranje, obdelavo, nadzorne naprave, izolacijske in odzračevalne ventile ter vezja, kot je potrebno. Posvetujte se s strokovnjakom za pripravo vode ali z ustrezno literaturo o tej temi.
Previdnostni ukrepi pri delovanju
Vodovodno vezje mora biti zasnovano tako, da ima najmanjše število kolen in vodoravnih cevi na različnih nivojih. Opraviti je treba naslednje osnovne preglede (glejte tudi ilustracijo tipičnega hidravličnega vezja spodaj).
- Upoštevajte vstopne in izstopne odprtine za vodo toplotnih izmenjevalnikov.
- Namestite ročne ali samodejne ventile za odzračevanje na vseh visokih točkah v vodovodnem vezju.
- Uporabite ekspanzijsko posodo ali ekspanzijski/varnostni ventil za vzdrževanje tlaka v sistemu.
- Namestite vodne termometre in manometre v vstopne in izstopne priključke za vodo blizu uparjalnika.
- Namestite odtočne ventile na vseh nizkih točkah, da omogočite odvajanje celotnega vezja. Pred zagonom hladilnika priključite zaporni ventil v odtočni cevi.
- Namestite zaporne ventile in manometre blizu uparjalnika v vstopne in izstopne vodovodne cevi.
- Namestite stikalo pretoka hladilnika.
- Uporabite fleksibilne priključke za zmanjšanje prenosa vibracij na cevovod.
- Izolirajte celoten cevovod po preverjanju puščanja, da zmanjšate toplotne izgube in preprečite kondenzacijo.
- Izolacijo prekrijte s parno zaporo.
Priključki uparjalnika in kondenzatorja
Uparjalnik in kondenzator sta večcevna tipa s plaščem in cevmi z odstranljivimi vodnimi komorami za lažje čiščenje cevi.
Preden izvedete priključke za vodo, privijte vijake v obeh glavah na nižji prikazani navor, pri čemer upoštevajte opisani način. Privijte v parih in zaporedju, ki je navedeno glede na velikost vijaka (glejte tabelo) z uporabo vrednosti navora na spodnjem koncu danega območja.
Pred varjenjem cevi na prirobnico odstranite tovarniško dobavljeno plosko prirobnico iz vodne komore. Če prirobnice ne odstranite, lahko poškodujete senzorje in izolacijo.
OPOMBA
Priporočamo, da izpraznite sistem in odklopite cevovod, da zagotovite, da so vijaki glav, na katere je priključen cevovod, pravilno in enakomerno priviti.
Zaščita pred zmrzaljo
Zaščita uparjalnika in vodno hlajenega kondenzatorja
Če je hladilnik ali vodovodno omrežje na območju, kjer lahko temperatura okolice pade pod 0 °C, je priporočljivo dodati antifrizno raztopino za zaščito enote in vodovodnega omrežja do temperature 8 K pod najnižjo temperaturo. Uporabljajte samo antifrizne raztopine, ki so odobrene za toplotni izmenjevalnik. Če sistem ni zaščiten z antifrizno raztopino in se ne bo uporabljal v zmrzljivih vremenskih razmerah, je obvezno izprazniti hladilnik in zunanje cevovode. Garancija ne krije škode zaradi zmrzovanja.
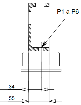
Zaporedje privijanja vodne komore

Legenda
- Zaporedje 1: 1 2 3 4
Zaporedje 2: 5 6 7 8
Zaporedje 3: 9 10 11 12 - Navor privijanja
Velikost vijaka M16 - 171 - 210 Nm
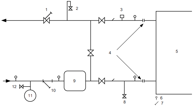
Tipični diagram hidravličnega vezja

Legenda
- Regulacijski ventil
- Odzračevalni ventil
- Stikalo pretoka
- Fleksibilni priključek
- Toplotni izmenjevalnik
- Tlačna pipa
- Puša termostata
- Odvod
- Vmesni rezervoar
- Filter
- Ekspanzijska posoda
- Polnilni ventil
ELEKTRIČNE KARAKTERISTIKE
- 30HXC 080-190 in 30GX 082-182 imata samo eno stikalo za odklop/izolacijo napajanja.
- 30HXC 200-375 in 30GX 207-358 imata dve stikali za odklop/izolacijo napajanja.
- Krmilna omarica standardno vključuje naslednje:
- Zaganjalniki in naprave za zaščito motorja za vsak kompresor in ventilatorje
- Krmilne komponente
- Priključki na mestu samem:
Vsi priključki na električno omrežje in električna napeljava morajo biti izvedeni v skladu z direktivami, ki veljajo za lokacijo. - 30HXC in 30GX sta zasnovana tako, da olajšata skladnost s temi direktivami. Pri načrtovanju električne opreme za 30HXC in 30GX je upoštevan evropski standard EN 60204-1 (varnost strojev - električna oprema strojev - 1. del: splošna pravila).
Standard EN 60204-1 je dobro sredstvo za odzivanje na zahteve Direktive o strojih § 1.5.1. Normativno priporočilo IEC 364 je splošno priznano kot izpolnjevanje zahtev predpisov o namestitvi.
Priloga B standarda EN 60204-1 se lahko uporablja za opis električnih lastnosti, pod katerimi stroji delujejo.
30HXC
- Delovni pogoji za standardni 30HXC so opisani spodaj:
- Okoljski pogoji(1). Okoljska klasifikacija je opisana v standardu IEC 364 § 3:
- Razpon temperature okolice: + 6°C do + 40°C, klasifikacija AA4
- Razpon vlažnosti (brez kondenzacije)
50% rh pri 40°C
90% rh pri 20°C - Nadmorska višina - 2000 m(1)
- Za notranjo namestitev
- Prisotnost vode: klasifikacija AD2(1) (možnost vodnih kapljic)
- Prisotnost trdnih snovi: klasifikacija AE2(1) (prisotnost neznatnih delcev)
- Prisotnost korozivnih snovi in onesnaževal, klasifikacija AF1 (zanemarljivo)
- Vibracije, udarci: klasifikacija AG2, AH2 Usposobljenost osebja: klasifikacija BA4(1) (osebje, usposobljeno v skladu z IEC 364).
- Okoljski pogoji(1). Okoljska klasifikacija je opisana v standardu IEC 364 § 3:
(1) Standard zaščite, ki se zahteva v zvezi s to klasifikacijo, je IP21B (v skladu z referenčnim dokumentom IEC 529). Vsi 30HXC imajo standard zaščite IP23C in zato izpolnjujejo to zahtevo za zaščito.
30GX
- Delovni pogoji za 30GX so opisani spodaj:
- Okoljski pogoji(2). Okoljska klasifikacija je opisana v standardu EN 60721:
- Za zunanjo namestitev(2)
- Razpon temperature okolice: - 18°C do + 46°C, klasifikacija 4K3(2)
- Nadmorska višina 2000 m(2)
- Prisotnost trdnih snovi: klasifikacija 4S2 (prisotnost neznatnih delcev)
- Prisotnost korozivnih snovi in onesnaževal, klasifikacija 4C2 (zanemarljivo)
- Vibracije, udarci: klasifikacija 4M2
- Okoljski pogoji(2). Okoljska klasifikacija je opisana v standardu EN 60721:
Usposobljenost osebja: klasifikacija BA4(2) (osebje, usposobljeno v skladu z IEC 364).
(2) Standard zaščite, ki se zahteva v zvezi s to klasifikacijo, je IP43BW (v skladu z referenčnim dokumentom IEC 529). Vsi 30GX imajo standard zaščite IP45CW in zato izpolnjujejo to zahtevo za zaščito.
30HXC/GX
- Nihanje frekvence napajanja: ± 2 Hz
- Prenapetostna zaščita za vodnike napajalnika ni priložena napravi.
- Tovarniško vgrajeno stikalo za odklop/izolacijo je izolator tipa "a". (EN60204-1 § 5.3.2).
OPOMBA: Če posebni vidiki namestitve zahtevajo lastnosti, ki niso navedene zgoraj (ali lastnosti, ki tukaj niso omenjene), se obrnite na svojega predstavnika Carrier.
Napajanje
Napajanje mora biti skladno s specifikacijami na napisni tablici hladilnika. Napajalna napetost mora biti znotraj območja, navedenega v tabeli z električnimi podatki.
Za priključke glejte sheme ožičenja.
Delovanje hladilnika z neustrezno napajalno napetostjo ali prekomernim neravnovesjem faz predstavlja zlorabo, ki bo razveljavila garancijo Carrier. Če neravnovesje faz presega 2 % za napetost ali 10 % za tok, se nemudoma obrnite na lokalnega dobavitelja električne energije in zagotovite, da hladilnik ne bo vklopljen, dokler ne bodo sprejeti korektivni ukrepi.
Neravnovesje faz napetosti (%):
100 x maks. odklon od povprečne napetosti
Povprečna napetost
Primer:
Pri napajanju 400 V - 3 ph - 50 Hz so bile izmerjene naslednje posamezne fazne napetosti:
AB = 406 V; BC = 399; AC = 394 V
| Povprečna napetost | = (406 + 399 + 394)/3 = 1199/3 |
| = 399,7 recimo 400 V |
Izračunajte največji odklon od povprečja 400 V:
(AB) = 406 - 400 = 6
(BC) = 400 - 399 = 1
(CA) = 400 - 394 = 6

Največji odklon od povprečja je 6 V. Največji odstotek odklona je:
100 x 6/400 = 1,5 %
To je manj od dovoljenih 2 % in je zato sprejemljivo.
PRIPOROČENI PRESEKI ŽIC
Določanje velikosti žic je odgovornost monterja in je odvisno od značilnosti in predpisov, ki veljajo za vsako mesto namestitve. Naslednje se uporablja samo kot smernica in družba Carrier v nobenem primeru ni odgovorna. Ko je določanje velikosti žic končano, mora monter z uporabo certificirane dimenzijske risbe zagotoviti enostavno povezavo in določiti morebitne potrebne spremembe na mestu samem.
Priključki, ki so standardno na voljo za napajalne kable, ki jih dobavi uporabnik, do splošnega odklopnika/izolatorja, so zasnovani za število in vrsto žic, navedenih v spodnji tabeli.
Izračuni temeljijo na največjem toku stroja (glejte tabele z električnimi podatki).
Za zasnovo se uporabljajo naslednje standardizirane metode namestitve v skladu z IEC 364, tabela 52C:
- Za enote 30HX, nameščene v zgradbi: št. 13: perforiran horizontalni kabelski kanal in št. 41: zaprt kanal.
- Za enote 30GX, nameščene zunaj zgradbe: št. 17: viseče zračne linije in št. 61: zakopan kanal z zmanjševalnim koeficientom 20.
Izračun temelji na kablih s PVC ali XLPE izolacijo z bakrenim ali aluminijastim jedrom. Najvišja temperatura je 40 °C za enote 30HX in 46 °C za enote 30GX.
Dana dolžina žice omejuje padec napetosti na < 5 %.
| Enota (Unit) | Min. (mm2) po fazi | Tip žice | L (m) | Max. (mm2) po fazi | Tip žice | L (m) |
| 30HX 080 | 1 x 35 | XLPE Cu | 140 | 1 x 120 | PVC Al | 260 |
| 30HX 090 | 1 x 50 | XLPE Cu | 160 | 1 x 120 | PVC Al | 260 |
| 30HX 100 | 1 x 50 | XLPE Cu | 160 | 1 x 95 | XLPE Al | 195 |
| 30HX 110 | 1 x 70 | XLPE Cu | 170 | 1 x 120 | XLPE Al | 205 |
| 30HX 120/130 | 1 x 70 | XLPE Cu | 170 | 1 x 150 | XLPE Al | 210 |
| 30HX 140 | 1 x 95 | XLPE Cu | 180 | 1 x 185 | XLPE Al | 220 |
| 30HX 155 | 1 x 95 | XLPE Cu | 180 | 1 x 240 | XLPE Al | 225 |
| 30HX 175 | 1 x 120 | XLPE Cu | 185 | 1 x 240 | XLPE Al | 225 |
| 30HX 190 | 1 x150 | XLPE Cu | 190 | 2 x 95 | XLPE Al | 195 |
| 30HX 200 ckt A | 1 x 70 | XLPE Cu | 170 | 2 x120 | PVC Al | 325 |
| 30HX 230 ckt A | 1 x 95 | XLPE Cu | 180 | 2 x 120 | PVC Al | 325 |
| 30HX 260 ckt A | 1 x 120 | XLPE Cu | 185 | 1 x 240 | XLPE Al | 225 |
| 30HX 285 ckt A | 1 x 150 | XLPE Cu | 190 | 2 x 150 | XLPE Al | 265 |
| 30HX 200 ckt B | 1 x 35 | XLPE Cu | 140 | 1 x 95 | PVC Al | 250 |
| 30HX 230 ckt B | 1 x 35 | XLPE Cu | 140 | 1 x 120 | PVC Al | 260 |
| 30HX 260 ckt B | 1 x 35 | XLPE Cu | 140 | 1 x 120 | PVC Al | 260 |
| 30HX 285 ckt B | 1 x 50 | XLPE Cu | 160 | 2 x 70 | PVC Al | 285 |
| 30HX 310 ckt A & B | 1 x 95 | XLPE Cu | 180 | 1 x 240 | XLPE Al | 225 |
| 30HX 345 ckt A & B | 1 x 120 | XLPE Cu | 185 | 1 x 240 | XLPE Al | 225 |
| 30HX 375 ckt A & B | 1 x 150 | XLPE Cu | 190 | 2 x 150 | XLPE Al | 265 |
| 30GX 082 | 1 x 95 | XLPE Cu | 190 | 2 x 185 | PVC Al | 420 |
| 30GX 092 | 1 x 120 | XLPE Cu | 195 | 2 x 185 | PVC Al | 420 |
| 30GX 102 | 1 x 120 | XLPE Cu | 195 | 2 x 240 | PVC Al | 450 |
| 30GX 112 | 1 x 150 | XLPE Cu | 200 | 2 x 150 | XLPE Al | 300 |
| 30GX 122 | 1 x 185 | XLPE Cu | 205 | 2 x 185 | XLPE Al | 315 |
| 30GX 132 | 1 x 185 | XLPE Cu | 205 | 2 x 240 | XLPE Al | 330 |
| 30GX 152 | 1 x 240 | XLPE Cu | 205 | 3x 185 | XLPE CU | 430 |
| 30GX 162 | 2 x 95 | XLPE Cu | 190 | 3x 240 | XLPE CU | 440 |
| 30GX 182 | 2 x 120 | XLPE Cu | 200 | 3x 240 | XLPE CU | 440 |
| 30GX 207 ckt A | 1 x 185 | XLPE Cu | 205 | 3x 185 | XLPE Al | 445 |
| 30GX 227 ckt A | 1 x 240 | XLPE Cu | 205 | 3x 240 | XLPE Al | 470 |
| 30GX 247/298/328 ckt A | 2 x 120 | XLPE Cu | 225 | 3x 185 | XLPE CU | 490 |
| 30HX 267/358 ckt A | 2 x 150 | XLPE Cu | 230 | 3x 240 | XLPE CU | 505 |
| 30GX 207/227/247 ckt B | 1 x 95 | XLPE Cu | 190 | 2 x 240 | PVC Al | 560 |
| 30HX 267 ckt B | 1 x 120 | XLPE Cu | 200 | 2 x 185 | XLPE AL | 395 |
| 30GX 298 ckt B | 1 x 185 | XLPE Cu | 205 | 3x 240 | XLPE AL | 470 |
| 30GX 328 ckt B | 2 x 120 | XLPE Cu | 225 | 3x 185 | XLPE CU | 490 |
| 30GX 358 ckt B | 2 x 150 | XLPE Cu | 230 | 3x 240 | XLPE CU | 505 |
Pred priključitvijo glavnih napajalnih kablov (L1 - L2 - L3) na priključni blok je nujno preveriti pravilen vrstni red 3 faz, preden nadaljujete s priključitvijo na priključni blok ali glavno odklopno/izolacijsko stikalo.
Ožičenje krmiljenja na terenu
Za ožičenje krmiljenja na terenu za naslednje funkcije glejte Controls IOM in certificirano shemo ožičenja, ki je priložena enoti:
- Medsebojna blokada črpalke uparjalnika (obvezno)
- Daljinsko stikalo za vklop/izklop
- Pretočno stikalo kondenzatorja (dobavljeno na terenu, samo 30HXC)
- Daljinsko stikalo za ogrevanje/hlajenje
- Zunanji preklopnik za omejitev porabe 1
- Daljinska dvojna nastavljena točka
- Poročilo o alarmu po tokokrogu
- Krmiljenje črpalke uparjalnika
- Krmiljenje črpalke kondenzatorja (samo 30HXC)
- Daljinska ponastavitev nastavljene točke ali ponastavitev senzorja temperature zunanjega zraka (0-10 V)
Priporočeni preseki žic za enote z visokimi temperaturami kondenzacije (400 V - 3 ph - 50 Hz)
| Enota, možnosti 150 + 150A 400 V - 3 ph - 50 Hz | Min. (mm2) na fazo | Vrsta žice | L (m) | Maks. (mm2) na fazo | Vrsta žice | L (m) |
| 30HXC 080 OPT. 150 | 1 x 50 | XLPE Cu | 150 | 2 x 70 | PVC Al | 230 |
| 30HXC 090 OPT. 150 | 1 x 70 | XLPE Cu | 160 | 2 x 95 | PVC Al | 260 |
| 30HXC 100 OPT. 150 | 1 x 70 | XLPE Cu | 160 | 2 x 95 | PVC Al | 250 |
| 30HXC 110 OPT. 150 | 1 x 95 | XLPE Cu | 170 | 2 x 120 | PVC Al | 265 |
| 30HXC 120 OPT. 150 | 1 x 120 | XLPE Cu | 180 | 2 x 120 | XLPE Al | 205 |
| 30HXC 130 OPT. 150 | 1 x 120 | XLPE Cu | 160 | 2 x 120 | XLPE Al | 210 |
| 30HXC 140 OPT. 150 | 1 x 150 | XLPE Cu | 175 | 2 x 120 | XLPE Al | 205 |
| 30HXC 155 OPT. 150 | 1 x 185 | XLPE Cu | 185 | 2 x 150 | XLPE Al | 215 |
| 30HXC 175 OPT. 150 | 1 x 240 | XLPE Cu | 185 | 2 x 150 | XLPE Al | 210 |
| 30HXC 190 OPT. 150 | 2 x 95 | XLPE Cu | 175 | 2 x 240 | XLPE Al | 220 |
| 30HXC 200 OPT. 150 circ. A | 1 x 120 | XLPE Cu | 170 | 2 x 150 | XLPE Al | 270 |
| 30HXC 230 OPT. 150 circ. A | 1 x 150 | XLPE Cu | 180 | 2 x 185 | XLPE Al | 270 |
| 30HXC 260 OPT. 150 circ. A | 1 x 185 | XLPE Cu | 180 | 2 x 240 | XLPE Al | 295 |
| 30HXC 285 OPT. 150 circ. A | 1 x 240 | XLPE Cu | 170 | 2 x 185 | XLPE Cu | 265 |
| 30HXC 310 OPT. 150 circ. A | 1 x 185 | XLPE Cu | 180 | 2 x 240 | XLPE Al | 300 |
| 30HXC 345 OPT. 150 circ. A | 1 x 185 | XLPE Cu | 170 | 2 x 240 | XLPE Al | 280 |
| 30HXC 375 OPT. 150 circ. A | 1 x 240 | XLPE Cu | 170 | 2 x 185 | XLPE Cu | 265 |
| 30HXC 200 OPT. 150 circ. B | 1 x 35 | XLPE Cu | 125 | 2 x 95 | PVC Al | 320 |
| 30HXC 230 OPT. 150 circ. B | 1 x 50 | XLPE Cu | 140 | 2 x 95 | PVC Al | 310 |
| 30HXC 260 OPT. 150 circ. B | 1 x 50 | XLPE Cu | 140 | 2 x 95 | PVC Al | 310 |
| 30HXC 285 OPT. 150 circ. B | 1 x 70 | XLPE Cu | 160 | 2 x 120 | PVC Al | 325 |
| 30HXC 310 OPT. 150 circ. B | 1 x 150 | XLPE Cu | 180 | 2 x 185 | XLPE Al | 275 |
| 30HXC 345 OPT. 150 circ. B | 1 x 185 | XLPE Cu | 185 | 2 x 240 | XLPE Al | 305 |
| 30HXC 375 OPT. 150 circ. B | 1 x 185 | XLPE Cu | 160 | 2 x 240 | XLPE Al | 280 |
GLAVNE SISTEMSKE KOMPONENTE IN PODATKI O DELOVANJU
Gonilni dvovijačni kompresor
- Enote 30HXC in 30GX uporabljajo 06N gonilne dvovijačne kompresorje
- 06NA se uporabljajo na 30GX (aplikacija zračno hlajenega kondenziranja)
- 06NW se uporabljajo na 30HXC (aplikacija vodno hlajenega kondenziranja)
- Nominalne zmogljivosti se gibljejo od 39 do 80 ton. Ekonomizirani ali neekonomizirani modeli se uporabljajo glede na velikost enote 30HXC in 30GX.
Oljni filter
Vijačni kompresor 06N ima oljni filter, ki je vgrajen v ohišje kompresorja. Ta filter je zamenljiv na terenu.
Hladilno sredstvo
Vijačni kompresor 06N je posebej zasnovan za uporabo samo v sistemu R134 a.
Mazivo
Vijačni kompresor 06N je odobren za uporabo z naslednjim mazivom.
CARRIER MATERIAL SPEC PP 47-32
Elektromagnetni ventil za dovod olja
Elektromagnetni ventil za dovod olja je standardna oprema na kompresorju za izolacijo kompresorja od pretoka olja, ko kompresor ne deluje.
Oljni elektromagnet je zamenljiv na terenu.
Sesalni in ekonomizacijski zasloni
Za povečanje zanesljivosti kompresorja je bil zaslon vgrajen kot standardna funkcija v sesalne in ekonomizacijske vhode kompresorja.
Sistem za razbremenitev
Vijačni kompresor 06N ima sistem za razbremenitev, ki je standardna oprema na vseh kompresorjih. Ta sistem za razbremenitev je sestavljen iz dveh stopenj razbremenitve, ki zmanjšata zmogljivost kompresorja s preusmeritvijo delno stisnjenega plina nazaj v sesanje.
Uparjalnik
Hladilniki 30HXC in 30GX uporabljajo poplavljen uparjalnik. Voda kroži v ceveh, hladilno sredstvo pa je na zunanji strani v ohišju. Ena posoda se uporablja za oba hladilna kroga. Obstaja sredinska cevna plošča, ki ločuje oba hladilna kroga. Cevi so bakrene s premerom 3/4" z izboljšano površino znotraj in zunaj. Obstaja samo en vodni krog, in glede na velikost hladilnika, lahko obstajata dva ali trije vodni prehodi. Senzor nivoja hladnejše tekočine zagotavlja optimizirano regulacijo pretoka.
Na vrhu hladilnika sta dve sesalni cevi, ena v vsakem krogu. Vsaka ima prirobnico, privarjeno nanjo, in kompresor se pritrdi na prirobnico.
Kondenzator in separator olja (30HXC)
Hladilnik 30HXC uporablja posodo, ki je kombinacija kondenzatorja in separatorja olja. Nameščena je pod hladilnikom. Izpušni plin zapusti kompresor in teče skozi zunanji dušilec zvoka do separatorja olja, ki je zgornji del posode. Vstopi na vrh separatorja, kjer se odstrani olje, nato pa teče v spodnji del posode, kjer se plin kondenzira in podhladi. Ena posoda se uporablja za oba hladilna kroga. Obstaja sredinska cevna plošča, ki ločuje oba hladilna kroga. Cevi so bakrene s premerom 3/4" ali 1" z izboljšano površino znotraj in zunaj. Obstaja samo en vodni krog z dvema vodnima prehodoma.
Separator olja (30GX)
V zračno hlajenih enotah je separator olja tlačna posoda, ki je nameščena pod zunanjimi navpičnimi kondenzatorskimi tuljavami. Izpušni plin vstopi na vrh separatorja, kjer se večina olja loči in odteče na dno. Plin nato teče skozi žično mrežo, kjer se preostalo olje loči in odteče na dno.
Elektronska ekspanzijska naprava (EXD)
Mikroprocesor nadzoruje EXD prek krmilnega modula EXV. EXD bo bodisi EXV bodisi ekonomizator. Znotraj obeh teh naprav je linearni aktuator koračni motor. Visokotlačno tekoče hladilno sredstvo vstopa v ventil skozi dno. V sklopu odprtine je vrsta kalibriranih rež. Ko hladilno sredstvo prehaja skozi odprtino, se tlak zmanjša in hladilno sredstvo preide v dvofazno stanje (tekoče in plinasto). Za nadzor pretoka hladilnega sredstva za različne pogoje delovanja se tulka premika gor in dol po odprtini, s čimer se spreminja efektivna površina pretoka ekspanzijske naprave. Tulko premika linearni koračni motor. Koračni motor se premika v korakih in ga neposredno nadzoruje procesorski modul. Ko se koračni motor vrti, se gibanje prenese v linearno gibanje s pomočjo vodilnega vijaka. Prek koračnega motorja in vodilnih vijakov se pridobi 1500 diskretnih korakov gibanja. Veliko število korakov in dolg hod povzročita zelo natančen nadzor pretoka hladilnega sredstva. Vsak krog ima senzor nivoja tekočine, nameščen navpično v vrh ohišja hladilnika. Senzor nivoja je sestavljen iz majhnega električnega grelnika upora in treh termistorjev, vezanih zaporedno, nameščenih na različnih višinah znotraj ohišja. Grelnik je zasnovan tako, da termistorji odčitajo približno 93,3 °C v suhem zraku. Ko se nivo hladilnega sredstva dvigne v hladilniku, se bo upornost najbližjega termistorja (termistorjev) močno spremenila. Ta velika razlika v upornosti omogoča krmilniku, da natančno vzdržuje določeno raven. Senzor nivoja spremlja nivo tekočega hladilnega sredstva v hladilniku in pošilja te informacije v PSIO-1. Ob začetni zagonu je položaj EXV na ničli. Po tem mikroprocesor natančno sledi položaju ventila, da te informacije uporabi kot vhod za druge krmilne funkcije. To stori tako, da ob zagonu inicializira EXV. Procesor pošlje dovolj impulzov zapiranja ventilu, da ga premakne iz popolnoma odprtega v popolnoma zaprtega, nato pa ponastavi števec položaja na nič. Od te točke naprej, do inicializacije, procesor šteje skupno število odprtih in zaprtih korakov, ki jih je poslal vsakemu ventilu.
Ekonomizator
Ekonomizatorji so nameščeni na 30HXC 190, 285 in 375 ter 30GX 182, 267 in 358.
Ekonomizator izboljša zmogljivost in učinkovitost hladilnika ter zagotavlja hlajenje motorja kompresorja. Znotraj ekonomizatorja sta linearni koračni motor EXV in plovni ventil. EXV nadzoruje PIC za vzdrževanje želene ravni tekočine v hladilniku (kot je to storjeno za neekonomizirane hladilnike). Plovni ventil vzdržuje nivo tekočine na dnu ekonomizatorja. Tekoče hladilno sredstvo se dovaja iz kondenzatorja na dno ekonomizatorja. Ko hladilno sredstvo prehaja skozi EXV, se njegov tlak zmanjša na vmesno raven približno 500 kPa. Ta tlak se vzdržuje znotraj ohišja ekonomizatorja. Nato hladilno sredstvo teče skozi plovni ventil, njegov tlak se dodatno zmanjša na nekoliko nad tlakom v hladilniku. Povečanje zmogljivosti se uresniči, ko del hladilnega sredstva, ki prehaja skozi EXV, izhlapi v paro, kar dodatno podhladi tekočino, ki se vzdržuje na dnu ekonomizatorja. To povečanje podhladitve zagotavlja dodatno zmogljivost. Ker za to ni potrebna dodatna moč, se izboljša tudi učinkovitost stroja. Para, ki izhlapi, se bo dvignila v ekonomizator, kjer prehaja v kompresor in se uporablja po potrebi za hlajenje motorja. Po prehodu čez navitja motorja hladilno sredstvo ponovno vstopi v cikel na vmesnem priključku v ciklu kompresije.
Oljne črpalke
Vijačni hladilniki 30GX/HXC uporabljajo eno zunanjo nameščeno predmazalno oljno črpalko na krog. Ta črpalka deluje kot del zaporedja zagona.
POZOR:
Delovna temperatura tuljave lahko doseže 80 °C. V določenih začasnih pogojih (zlasti med zagonom pri nizki zunanji temperaturi ali nizki temperaturi kondenzatorske zanke) se lahko oljna črpalka ponovno aktivira.
Na enotah 30GX so črpalke nameščene na osnovne tirnice na strani separatorja olja enote. Črpalke so nameščene na nosilec na kondenzatorjih enot 30HXC. Ko je treba zagnati krog, bodo krmilniki najprej vklopili oljno črpalko, tako da se kompresor zažene s pravilnim mazanjem. Če je črpalka ustvarila zadosten tlak olja, bo kompresorju dovoljeno zagnati. Ko se kompresor zažene, se bo oljna črpalka izklopila. Če črpalka ni mogla ustvariti dovolj tlaka olja, bo krmilnik ustvaril alarm.
Ventili za hlajenje motorja
Temperature navitij motorja kompresorja se nadzorujejo na optimalno nastavljeno točko. Krmilnik to doseže s cikličnim delovanjem elektromagnetnega ventila za hlajenje motorja, da omogoči pretok tekočega hladilnega sredstva čez navitja motorja po potrebi. Na enotah, opremljenih z ekonomizatorji, izhlapni plin zapusti vrh ekonomizatorja in neprekinjeno teče do navitij motorja. Vse hladilno sredstvo, ki se uporablja za hlajenje motorja, ponovno vstopi v rotorje skozi priključek, ki se nahaja na sredini cikla kompresije, in se stisne na izpustni tlak.
Senzorji
Enote uporabljajo termistorje (vključno z dvema termistorjema temperature motorja) in dva termistorja nivoja ter tlačne pretvornike za spremljanje in nadzor delovanja sistema.
Termistorji
Tekočina, ki zapušča uparjalnik
Ta temperatura se uporablja za merjenje temperature tekočine, ki zapušča uparjalnik (voda ali sol). Temperatura se uporablja za nadzor temperature tekočine, ki zapušča, in za zaščito pred zamrznitvijo hladilnika. Nahaja se v šobi za tekočino uparjalnika.
Tekočina, ki vstopa v uparjalnik
Ta senzor se uporablja za merjenje temperature tekočine, ki vstopa v uparjalnik. Nahaja se v vstopni šobi uparjalnika. Uporablja se za zagotavljanje samodejne kompenzacije temperature za nadzor temperature tekočine, ki zapušča, s kompenzacijo tekočine, ki vstopa.
Temperatura izpušnega plina (kroga A in B)
Ta senzor se uporablja za merjenje temperature izpušnega plina in nadzor pregrevanja temperature izpušnega plina. Nahaja se na izpušni cevi vsakega kroga (30HXC) ali na vrhu separatorja olja (30GX).
POZOR: Ni termostatske tulke.
Temperatura motorja
Modul za zaščito kompresorja (CPM) spremlja temperaturo motorja. Priključki termistorja se nahajajo v priključni omarici kompresorja.
Nivo tekočine v uparjalniku (kroga A in B)
Termistor nivoja tekočine v uparjalniku se uporablja za zagotavljanje optimiziranega nadzora pretoka v uparjalniku. Nameščen je na vrhu uparjalnika.
Tekočina, ki vstopa v kondenzator (30HXC)
Ta senzor se uporablja za merjenje temperature tekočine, ki vstopa v vodno hlajene kondenzatorje. Nahaja se v skupni cevi za tekočino, ki vstopa v kondenzatorje (nameščeno na terenu). Na toplotnih strojih ga uporablja rutina za nadzor zmogljivosti. Na vodno hlajenih kondenzatorjih se uporablja samo za spremljanje temperature tekočine kondenzatorja.
Tekočina, ki zapušča kondenzator (izbirno na 30HXC)
Ta senzor se uporablja za merjenje temperature tekočine, ki zapušča vodno hlajene kondenzatorje. Nahaja se v skupni cevi za tekočino, ki zapušča kondenzatorje (nameščeno na terenu). Na toplotnih strojih ga uporablja rutina za nadzor zmogljivosti. Na vodno hlajenih kondenzatorjih se uporablja samo za spremljanje temperature tekočine kondenzatorja.
Razporeditev ventilatorjev 30GX

GX082/102

GX112/132

GX152/162

GX182

GX207/227

GX247/267

GX298

GX328/358
VZDRŽEVANJE
Polnjenje hladilnega sredstva - dodajanje polnjenja
Te enote so zasnovane za uporabo samo z R-134a.
V teh enotah NE UPORABLJAJTE NOBENEGA DRUGEGA hladilnega sredstva.
Pri dodajanju ali odstranjevanju polnjenja ves čas krožite vodo skozi kondenzator (HX) in hladilnik, da preprečite zamrzovanje. Škoda zaradi zamrznitve se šteje za zlorabo in lahko razveljavi garancijo Carrier.
NE PRENAPOLNITE sistema. Prekomerno polnjenje povzroči višji izpustni tlak z večjo porabo hladilne tekočine, možno poškodbo kompresorja in večjo porabo energije.
Indikacija nizkega polnjenja na sistemu 30HXC
OPOMBA
Za preverjanje nizkega polnjenja hladilnega sredstva na 30HXC je treba upoštevati več dejavnikov. Utripajoče merilno steklo na tekočinski liniji ni nujno znak nezadostnega polnjenja. Obstaja veliko sistemskih pogojev, kjer se utripajoče merilno steklo pojavi pri normalnem delovanju. Merilna naprava 30HXC je zasnovana za pravilno delovanje v teh pogojih.
- Prepričajte se, da vezje deluje pri polni obremenitvi. Če želite preveriti, ali je vezje A popolnoma obremenjeno, sledite postopku, opisanem v priročniku za krmiljenje.
- Morda bo treba uporabiti funkcijo ročnega upravljanja (Manual Control), da prisilite vezje v stanje polne obremenitve. V tem primeru si oglejte navodila za uporabo funkcije ročnega upravljanja (Manual Control) v priročniku za krmiljenje.
- Ko vezje deluje pri polni obremenitvi, preverite, ali je temperatura tekočine, ki izstopa iz hladilnika, v območju 6 °C ± 1,5.
- V tem stanju opazujte hladilno sredstvo v merilnem steklu na tekočinski liniji. Če je merilno steklo čisto in ni znakov utripanja, je vezje ustrezno napolnjeno. Preskočite preostale korake.
- Če se zdi, da hladilno sredstvo utripa, je vezje verjetno premalo napolnjeno. To preverite s preverjanjem položaja EXV (glejte Controls IOM).
- Če je odprti položaj EXD večji od 60 % in če merilno steklo na tekočinski liniji utripa, je vezje premalo napolnjeno. Sledite postopku za dodajanje polnjenja.
Za dodajanje polnjenja sistemom 30HXC
- Prepričajte se, da enota deluje pri polni obremenitvi in da je temperatura tekočine, ki izstopa iz hladilnika, v območju 5,6–7,8 °C.
- Pri teh pogojih delovanja preverite merilno steklo na tekočinski liniji. Če je merilno steklo čisto, ima enota dovolj polnjenja. Če merilno steklo utripa, preverite EXD Percent Open (odstotek odprtosti EXD). Če je to več kot 60 %, začnite dodajati polnjenje.
OPOMBA
Utripajoče merilno steklo na tekočinski liniji pri pogojih delovanja, ki niso omenjeni zgoraj, ni nujno znak nizkega polnjenja hladilnega sredstva.
- Dodajte 2,5 kg tekočega polnjenja v uparjalnik z uporabo polnilnega ventila, ki se nahaja na vrhu uparjalnika.
- Opazujte vrednost EXD Percent Open (odstotek odprtosti EXD). EXD bi se moral začeti zapirati, ko se dodaja polnjenje. Pustite, da se enota stabilizira. Če EXD Percent Open (odstotek odprtosti EXD) ostane nad 60 % in so v merilnem steklu še vedno mehurčki, dodajte dodatnih 2,5 kg tekočega polnjenja.
- Pustite, da se enota stabilizira, in ponovno preverite EXD Percent Open (odstotek odprtosti EXD). Nadaljujte z dodajanjem 2,5 kg tekočega hladilnega sredstva naenkrat in pustite, da se enota stabilizira, preden preverite položaj EXD.
- Ko je EXD Percent Open (odstotek odprtosti EXD) v območju od 40 do 60 %, preverite merilno steklo na tekočinski liniji. Počasi dodajte dovolj dodatnega tekočega polnjenja, da zagotovite čisto merilno steklo. To je treba storiti počasi, da se izognete prenapolnitvi enote.
- Preverite ustrezno polnjenje z nadaljevanjem delovanja pri polni obremenitvi s temperaturo tekočine, ki izstopa iz uparjalnika, 6 °C ± 1,5. Preverite, ali hladilno sredstvo ne utripa v merilnem steklu na tekočinski liniji. EXD Percent Open (odstotek odprtosti EXD) mora biti med 40 in 60 %. Indikator nivoja hladilnika mora biti v območju od 1,5 do 2,5.
Indikacija nizkega polnjenja na sistemih 30GX
- Prepričajte se, da vezje deluje pri polni obremenitvi in da je temperatura kondenzacije 50 °C ± 1,5. Če želite preveriti, ali je vezje A popolnoma obremenjeno, sledite postopku v Controls IOM.
- Morda bo treba uporabiti funkcijo ročnega upravljanja (Manual Control), da prisilite vezje v stanje polne obremenitve. V tem primeru si oglejte navodila za uporabo funkcije ročnega upravljanja (Manual Control) (postopek v Controls IOM).
- Ko vezje deluje pri polni obremenitvi, preverite, ali je temperatura tekočine, ki izstopa iz hladilnika, v območju 6 °C ± 1,5.
- Izmerite temperaturo zraka, ki vstopa v kondenzatorske tuljave. Izmerite temperaturo tekočine za T-kosom, kjer se združita dve tekočinski liniji tuljave. Temperatura tekočine mora biti 8,3 °C nad temperaturo zraka, ki vstopa v tuljave. Če je razlika večja od tega in merilno steklo utripa, je vezje nenapolnjeno. Nadaljujte s korakom 5.
- Dodajte 2,5 kg tekočega polnjenja v hladilnik z uporabo polnilnega ventila, ki se nahaja na vrhu hladilnika.
- Pustite, da se sistem stabilizira, in nato ponovno preverite temperaturo tekočine. Po potrebi ponovite korak 5 in pustite, da se sistem stabilizira med vsakim dodajanjem polnjenja. Počasi dodajajte polnjenje, ko se merilno steklo začne čistiti, da se izognete prenapolnitvi.
Temperatura prostora, temperatura zunanjega zraka (izbirno)
Te temperature se uporabljajo za merjenje temperature prostora ali temperature zunanjega zraka za ponastavitev krmiljenja na podlagi možnosti ponastavitve temperature zunanjega zraka ali temperature prostora.
Pretvorniki tlaka
Izpustni tlak (vezja A in B)
Ta vhod se uporablja za merjenje visokotlačne strani vsakega vezja enote.
Uporablja se za zagotavljanje tlaka za zamenjavo manometra izpustnega tlaka in za nadzor tlaka glave.
Sesalni tlak (vezja A in B)
Ta vhod se uporablja za merjenje tlaka nizkotlačne strani enote. Uporablja se za zagotavljanje tlaka za zamenjavo manometra sesalnega tlaka.
Tlak olja (vsak kompresor)
Ta vhod se uporablja za merjenje tlaka olja vsakega kompresorja enote. Nahaja se na priključku za tlak olja vsakega kompresorja.
Tlak ekonomajzerja (vezja A in B)
Ta vhod se uporablja za spremljanje razlike v tlaku olja, ki se dovaja v kompresor.
Polnjenje olja - ponovno polnjenje nizkega nivoja olja
Dodajanje oljnega polnjenja sistemom 30HX/GX
- Če se enota 30HXC/GX večkrat izklopi zaradi nizkega nivoja olja (Low oil Level), je to lahko znak nezadostnega oljnega polnjenja. Lahko pa to pomeni tudi, da se olje pridobiva z nizkotlačne strani sistema.
- Začnite z delovanjem enote pri polni obremenitvi eno uro in pol.
- Po 1-1/2 uri delovanja pustite, da se enota ponovno zažene in deluje normalno. Če alarmi za nizki nivo olja (Low Oil Level) še vedno trajajo, ima enota nizko oljno polnjenje. Dodajte olje v separator olja z uporabo ventila za polnjenje olja na dnu kondenzatorja (30HXC) ali na dnu separatorja olja (30GX).
NE dodajajte olja na nobenem drugem mestu, saj lahko pride do nepravilnega delovanja enote.
- Prepričajte se, da enota ne deluje, ko dodajate olje, saj bo to olajšalo postopek polnjenja olja. Ker je sistem pod tlakom, tudi ko enota ne deluje, bo za dodajanje olja v sistem potrebna ustrezna črpalka (ročno ali električno črpalko).
- Z ustrezno črpalko dodajte 2 litra olja Polyolester v sistem (CARRIER SPEC: PP47-32). Prepričajte se, da varnostno stikalo za nivo olja NI premoščeno, in pustite, da se enota ponovno zažene in deluje normalno.
- Če težave z nizkim nivojem olja (low oil level) še vedno trajajo, dodajte še 1 ali 2 litra olja. Če je treba v sistem dodati več kot 4 litre olja, se obrnite na servisni oddelek distributerja Carrier.
Pri prenosu polnjenja hladilnega sredstva v skladiščno enoto se lahko olje prenaša, ko enota ne deluje. Najprej ponovno uporabite količino prenesenega hladilnega sredstva. Po izpustu olja napolnite samo količino, ki je bila izpuščena (prekomerno oljno polnjenje lahko poslabša pravilno delovanje enote).
Zamenjava integriranega oljnega filtra
Integrirani oljni filter v vijačnem kompresorju 06N je specificiran za zagotavljanje visoke stopnje filtracije (3 µ), ki je potrebna za dolgo življenjsko dobo ležajev. Ker je čistoča sistema ključnega pomena za zanesljivo delovanje sistema, je v oljni liniji na izhodu separatorja olja tudi predfilter (7 µ).
Številka dela nadomestnega integriranega elementa oljnega filtra je:
Številka dela Carrier (vključno s filtrom in O-obročem): 06NA 660016S
Načrt zamenjave filtra
Filter je treba preveriti po prvih 500 urah delovanja in nato vsakih 2000 ur. Filter je treba zamenjati kadar koli, ko tlačna razlika čez filter preseže 2,1 bara.
Padec tlaka čez filter je mogoče določiti z merjenjem tlaka na servisnem priključku filtra in priključku za tlak olja. Razlika v teh dveh tlakih bo padec tlaka čez filter, povratni ventil in elektromagnetni ventil. Padec tlaka čez povratni ventil in elektromagnetni ventil je približno 0,4 bara, kar je treba odšteti od dveh meritev tlaka olja, da dobimo padec tlaka oljnega filtra. Padec tlaka oljnega filtra je treba preveriti po vsakem primeru, ko se kompresor izklopi zaradi varnosti nizkega tlaka olja.
Postopek zamenjave filtra
- Naslednji koraki opisujejo pravilen način zamenjave integriranega oljnega filtra.
- Izklopite in zaklenite kompresor.
- Ročno prisilite delovanje elektromagnetnega ventila za olje, da pritisnete notranje zapiralo ventila na njegovo ležišče.
- Zaprite servisni ventil oljnega filtra. Izpustite tlak iz votline filtra skozi servisni priključek filtra.
- Odstranite čep oljnega filtra. Odstranite stari oljni filter.
- Pred namestitvijo novega oljnega filtra "namažite" O-obroč z oljem. Namestite filter in zamenjajte čep.
Preden zaprete sistem mazalnega olja, izkoristite priložnost in zamenjajte tudi predfilter. - Ko končate, izpraznite votlino filtra skozi servisni priključek filtra. Odprite servisni ventil filtra. Odstranite vse naprave za zaklepanje kompresorja, kompresor je pripravljen za ponovno delovanje.
Zamenjava kompresorja
Nadzor vrtenja kompresorja
Pravilno vrtenje kompresorja je eden najpomembnejših dejavnikov pri uporabi. Obratno vrtenje, tudi za zelo kratek čas, poškoduje kompresor.
Shema zaščite pred obratnim vrtenjem mora biti sposobna določiti smer vrtenja in ustaviti kompresor v 300 milisekundah. Obratno vrtenje se najverjetneje pojavi, kadar koli se moti ožičenje na priključkih kompresorja.
Da bi zmanjšali možnost obratnega vrtenja, je treba uporabiti naslednji postopek. Ponovno povežite napajalne kable na priključni zatič kompresorja, kot je bilo prvotno ožičeno.
Za zamenjavo kompresorja je kompresorju priloženo nizkotlačno stikalo. To nizkotlačno stikalo je treba začasno namestiti kot trdo varnost na visokotlačnem delu kompresorja. Namen tega stikala je zaščititi kompresor pred morebitnimi napakami pri ožičenju na priključnem zatiču kompresorja. Električni kontakt stikala bi bil ožičen zaporedno z visokotlačnim stikalom. Stikalo bo ostalo na mestu, dokler se kompresor ne zažene in se ne preveri smer vrtenja; na tej točki se stikalo odstrani.
Stikalo, ki je bilo izbrano za zaznavanje obratnega vrtenja, je številka dela Carrier HK01CB001. Na voljo je kot del "Paketa za namestitev kompresorja" (številka dela 06NA 660 013). To stikalo odpre kontakte, ko tlak pade pod 50 mm vakuuma. Stikalo je ročnega tipa ponastavitve, ki ga je mogoče ponastaviti, ko se tlak ponovno dvigne nad 70 kPa. Ključnega pomena je, da je stikalo ročnega tipa ponastavitve, da se prepreči kratko ciklično delovanje kompresorja v obratni smeri.
Odpravljanje težav
Sledite spodnjim korakom za diagnosticiranje in odpravljanje težav z EXD/ekonomajzerjem.
Na enotah 30HXC/GX z ekonomajzerji preverite, ali je ventil za cev za mehurčke (dno ekonomajzerja) odprt. Najprej preverite delovanje motorja EXD (glejte postopek v Controls IOM). Gibanje aktuatorja bi morali čutiti tako, da položite roko na telo EXD ali ekonomajzerja (aktuator se nahaja približno na polovici do dveh tretjin od dna ohišja ekonomajzerja). Trdo trkanje bi morali čutiti od aktuatorja, ko doseže vrh svojega hoda (slišno je, če je okolica relativno tiha). Aktuator bi moral trkati, ko doseže dno svojega hoda. Če menite, da ventil ne deluje pravilno, se obrnite na servisni oddelek Carrier za nadaljnje preglede:
- izhodni signali na modulu EXD
- žične povezave (neprekinjenost in tesna povezava na vseh priključnih sponkah)
- upornost navitij motorja EXD.


Odobritev sistema ravnanja z okoljem
Številka naročila: 13173-76, 03 1999 - Nadomešča številko: 13173-76, marec 1998
Proizvajalec si pridržuje pravico do spremembe specifikacij izdelkov brez predhodnega obvestila.
Proizvajalec: Carrier s.a., Montluel, Francija.
Tiskano na Nizozemskem na papirju brez klora.

Prenesi navodilo
Tukaj lahko prenesete polno pdf različico navodila, ki lahko vsebuje dodatna varnostna navodila, informacije o garanciji, FCC pravila itd.
Prenesi Priročnik za vijakasti kompresor Carrier 30HXC/30GX