Manual de utilizare pentru compresoarele cu șurub Carrier 30HXC/30GX
- 1 INTRODUCERE
- 2 CONSIDERAȚII DE SIGURANȚĂ
- 3 DIMENSIUNI, DISTANȚE, DISTRIBUȚIA GREUTĂȚII
- 4 DATE FIZICE 30HXC
- 5 DATE ELECTRICE 30HXC
- 6 DATE ELECTRICE PENTRU UNITĂȚILE CU TEMPERATURI DE CONDENSARE RIDICATE
- 7 DATE FIZICE 30GX
- 8 DATE ELECTRICE 30GX
-
9
DATE DESPRE APLICAȚIE
- 9.1 Intervalul de funcționare al unității
- 9.2 Debit minim de apă răcită
- 9.3 Debit maxim de apă răcită
- 9.4 Evaporator cu debit variabil
- 9.5 Volumul minim de apă al sistemului
- 9.6 Debitul agentului de răcire (l/s)
- 9.7 Debit condensator (l/s)
- 9.8 Curba de cădere a presiunii evaporatorului
- 9.9 Curba de cădere a presiunii condensatorului
- 9.10 Controlere de debit
- 10 INSTALARE
- 11 INSTRUCȚIUNI DE RIDICARE
- 12 CARACTERISTICI ELECTRICE
- 13 SECȚIUNI DE CABLURI RECOMANDATE
-
14
COMPONENTELE PRINCIPALE ALE SISTEMULUI ȘI DATE DE FUNCȚIONARE
- 14.1 Compresor cu șurub dublu angrenat
- 14.2 Evaporator
- 14.3 Condensator și separator de ulei (30HXC)
- 14.4 Separator de ulei (30GX)
- 14.5 Dispozitiv electronic de expansiune (EXD)
- 14.6 Economizor
- 14.7 Pompe de ulei
- 14.8 Supape de răcire a motorului
- 14.9 Senzori
- 14.10 Termistori
- 14.11 Aranjamentul ventilatorului 30GX
- 15 ÎNTREȚINERE
- 16 Depanare
- 17 Descărcați manualul
- 18 În alte limbi

INTRODUCERE
Înainte de pornirea inițială a unităților 30HXC și 30GX, persoanele implicate în pornire, operare și întreținere trebuie să fie pe deplin familiarizate cu aceste instrucțiuni și cu alte date de lucru necesare. Această carte oferă o prezentare generală, astfel încât să vă puteți familiariza cu sistemul de control înainte de a efectua procedurile de pornire. Procedurile din acest manual sunt aranjate în ordinea necesară pentru pornirea și funcționarea corectă a mașinii.
CONSIDERAȚII DE SIGURANȚĂ
Răcitoarele de lichid 30HXC și 30GX sunt proiectate pentru a oferi un serviciu sigur și fiabil atunci când sunt operate în limitele specificațiilor de proiectare. Când utilizați acest echipament, folosiți o judecată bună și măsuri de precauție pentru a evita deteriorarea echipamentului și a proprietății sau vătămarea personalului.
Asigurați-vă că înțelegeți și urmați procedurile și măsurile de precauție de siguranță cuprinse în instrucțiunile mașinii, precum și cele enumerate în acest ghid.
NU EVACUAȚI supapele de siguranță pentru agent frigorific în interiorul unei clădiri. Ieșirea de la supapa de siguranță trebuie să fie evacuată în exterior. Acumularea de agent frigorific într-un spațiu închis poate deplasa oxigenul și poate provoca asfixiere sau explozii.
ASIGURAȚI o ventilație adecvată, în special pentru spațiile închise și joase. Inhalarea de concentrații mari de vapori este dăunătoare și poate provoca tulburări cardiace, pierderea cunoștinței sau deces. Vaporii sunt mai grei decât aerul și reduc cantitatea de oxigen disponibilă pentru respirație. Produsul provoacă iritații ale ochilor și ale pielii. Produsele de descompunere sunt periculoase.
NU UTILIZAȚI OXIGEN pentru a purja conductele sau pentru a presuriza o mașină în niciun scop. Gazul de oxigen reacționează violent cu uleiul, grăsimea și alte substanțe comune.
NU DEPĂȘIȚI NICIODATĂ presiunile de testare specificate, VERIFICAȚI presiunea de testare admisibilă verificând documentația de instrucțiuni și presiunile de proiectare de pe plăcuța de identificare a echipamentului.
NU UTILIZAȚI aer pentru testarea scurgerilor. Utilizați numai agent frigorific sau azot uscat.
NU ÎNCHIDEȚI CU VALVĂ niciun dispozitiv de siguranță.
ASIGURAȚI-VĂ că toate dispozitivele de reducere a presiunii sunt instalate corect înainte de a utiliza orice mașină.
NU SUDATI SAU TĂIAȚI CU FLACĂRĂ nicio conductă sau recipient de agent frigorific până când tot agentul frigorific (lichid și vapori) nu a fost îndepărtat din răcitor. Urmele de vapori trebuie deplasate cu azot uscat și zona de lucru trebuie să fie bine ventilată. Agentul frigorific în contact cu o flacără deschisă produce gaze toxice.
NU lucrați pe echipamente sub tensiune decât dacă sunteți electrician calificat.
NU LUCRAȚI LA componente electrice, inclusiv panouri de control, întrerupătoare, relee etc., până când nu sunteți sigur că TOATĂ ALIMENTAREA ESTE OPRITĂ și tensiunea reziduală se poate scurge din condensatori sau componente în stare solidă.
BLOCAȚI DESCHISE ȘI ETICHETAȚI circuitele electrice în timpul service-ului. DACĂ LUCRUL ESTE ÎNTRERUPT, verificați dacă toate circuitele sunt scoase de sub tensiune înainte de a relua lucrul.
NU sifonați agentul frigorific.
EVITAȚI VĂRSAREA agentului frigorific lichid pe piele sau pătrunderea acestuia în ochi. UTILIZAȚI OCHELARI DE PROTECȚIE. Spălați orice scurgeri de pe piele cu apă și săpun. Dacă agentul frigorific lichid intră în ochi,
SPĂLAȚI IMEDIAT OCHII cu apă și consultați un medic.
NU APLICAȚI NICIODATĂ o flacără deschisă sau abur sub presiune pe recipientul cu agent frigorific. Poate rezulta o suprapresiune periculoasă. Dacă este necesar să încălziți agentul frigorific, utilizați numai apă caldă.
NU REUTILIZAȚI buteliile de unică folosință (nereutilizabile) și nu încercați să le reumpleți. Este PERICULOS ȘI ILEGAL. Când buteliile sunt golite, evacuați presiunea gazului rămas, slăbiți gulerul și deșurubați și aruncați tija supapei. NU INCINERAȚI.
VERIFICAȚI TIPUL DE AGENT FRIGORIFIC înainte de a adăuga agent frigorific în mașină. Introducerea agentului frigorific greșit poate cauza daune sau funcționarea defectuoasă a acestei mașini.
NU ÎNCERCAȚI SĂ ÎNDEPĂRTAȚI fitinguri, componente etc., în timp ce mașina este sub presiune sau în timp ce mașina funcționează. Asigurați-vă că presiunea este la 0 kPa înainte de a întrerupe conexiunea agentului frigorific.
INSPECTATI CU ATENȚIE toate dispozitivele de siguranță, CEL PUȚIN O DATĂ PE AN. Dacă mașina funcționează într-o atmosferă corozivă, inspectați dispozitivele la intervale mai frecvente.
NU ÎNCERCAȚI SĂ REPARAȚI SAU SĂ RECONDIȚIONAȚI niciun dispozitiv de siguranță atunci când se constată coroziune sau acumulare de material străin (rugină, murdărie, depuneri etc.) în interiorul corpului sau mecanismului supapei. Înlocuiți dispozitivul.
NU instalați dispozitive de siguranță în serie sau invers.
NU CĂLCAȚI pe conductele de agent frigorific. Conductele rupte se pot mișca brusc și pot elibera agent frigorific, provocând vătămări corporale.
NU VĂ CĂȚĂRAȚI peste o mașină. Utilizați platformă sau schelă.
UTILIZAȚI ECHIPAMENTE MECANICE (macara, troliu etc.) pentru a ridica sau muta componente grele. Chiar dacă componentele sunt ușoare, utilizați echipamente mecanice atunci când există riscul de a aluneca sau de a vă pierde echilibrul.
FIȚI CONȘTIENT că anumite aranjamente de pornire automată POT ANCLANȘA VENTILATORUL TURNULUI SAU POMPELE. Deschideți deconectarea înaintea ventilatoarelor turnului sau a pompelor.
UTILIZAȚI numai piese de reparație sau de înlocuire care îndeplinesc cerințele codului echipamentului original.
NU EVACUAȚI SAU SCURGEȚI cutiile de apă care conțin saramuri industriale, fără permisiunea unui organism competent.
NU SLĂBIȚI șuruburile cutiei de apă până când cutia de apă nu a fost complet golită.
NU SLĂBIȚI o piuliță de etanșare înainte de a verifica dacă piulița are o angrenare pozitivă a filetului.
INSPECTATI PERIODIC toate supapele, fitingurile și conductele pentru coroziune, rugină, scurgeri sau deteriorări.
ASIGURAȚI O CONEXIUNE DE DRENAJ în conducta de aerisire lângă fiecare dispozitiv de reducere a presiunii pentru a preveni acumularea de condens sau apă de ploaie.
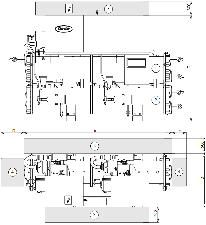
DIMENSIUNI, DISTANȚE, DISTRIBUȚIA GREUTĂȚII
30HXC 080-190
30HXC080
30HXC090
30HXC100
30HXC110

- Evaporator
- Condensator
- Distanțe necesare pentru operare și întreținere
- Distanțe necesare pentru îndepărtarea tubului schimbătorului de căldură. Distanțele D și E pot fi fie pe partea stângă, fie pe partea dreaptă.
Intrare apă
Ieșire apă
Alimentare cu energie
kg: greutate totală de funcționare
| A mm | B mm | C mm | D mm | E mm | kg | |
| 30HXC080 30HXC090 30HXC100 |
2705 | 950 | 1850 | 2360 | 1000 | 2447 2462 2504 |
| 30HXC110 | 2705 | 950 | 1900 | 2360 | 1000 | 2650 |
| 30HXC120 30HXC130 30HXC140 30HXC155 |
3535 | 950 | 1875 | 3220 | 1000 | 2846 2861 2956 2971 |
| 30HXC175 30HXC190 |
3550 | 950 | 2000 | 3220 | 1000 | 3283 3438 |
NOTĂ: Consultați desenele dimensionale certificate furnizate împreună cu unitatea, atunci când proiectați o instalație.
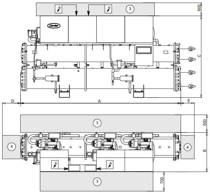
30HXC 200-375

- Evaporator
- Condensator
- Distanțe necesare pentru operare și întreținere
- Distanțe necesare pentru îndepărtarea tubului schimbătorului de căldură. Distanțele D și E pot fi fie pe partea stângă, fie pe partea dreaptă.
Intrare apă
Ieșire apă
Alimentare cu energie
kg: greutate totală de funcționare
| A mm | B mm | C mm | D mm | E mm | kg | |
| 30HXC200 | 3975 | 980 | 2035 | 3620 | 1000 | 4090 |
| 30HXC230 30HXC260 30HXC285 |
3995 | 980 | 2116 | 3620 | 1000 | 4705 4815 4985 |
| 30HXC310 30HXC345 30HXC375 |
4490 | 980 | 2163 | 4120 | 1000 | 5760 5870 6105 |
NOTĂ: Consultați desenele dimensionale certificate furnizate împreună cu unitatea, atunci când proiectați o instalație.
30GX 082-182
30GX-082
30GX-092
30GX-102
30GX-112
30GX-122
30GX-132
30GX-152
30GX-162
30GX-182


- Distanțe necesare pentru operare și întreținere
- Distanțe necesare pentru îndepărtarea tubului schimbătorului de căldură. Distanțele pot fi fie pe partea stângă, fie pe partea dreaptă.
Intrare apă
Ieșire apă
Alimentare cu energie
Ieșire aer - nu obstrucționați
kg: greutate totală de funcționare
| A mm | B mm | kg | |
| 30GX082 30GX092 30GX102 |
2970 | 2215 | 3116 3157 3172 |
| 30GX112 30GX122 30GX132 |
3427 | 2045 | 3515 3531 3633 |
| 30GX152 30GX162 |
4342 | 2835 | 3920 3936 |
| 30GX182 | 5996 | 1820 | 4853 |
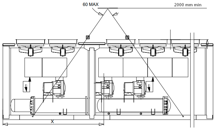
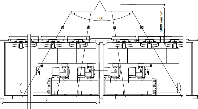
Instalare cu mai multe răcitoare


Note:
- Unitatea trebuie să aibă distanțe pentru fluxul de aer după cum urmează:
Partea superioară: nu restricționați în niciun fel - În cazul mai multor răcitoare (până la patru unități), distanța respectivă dintre ele ar trebui mărită de la 1830 la 2000 mm pentru cerința de spațiu lateral.
- Sunt necesare distanțe pentru îndepărtarea tubului răcitorului.
NOTĂ: Consultați desenele dimensionale certificate furnizate împreună cu unitatea, atunci când proiectați o instalație.
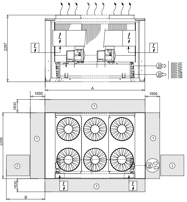
30GX 207-358
30GX-207
30GX-227
30GX-247
30GX-267
30GX-298
30GX-328
30GX-358

- Distanțe necesare pentru operare și întreținere
- Distanțe necesare pentru îndepărtarea tubului schimbătorului de căldură. Distanțele pot fi fie pe partea stângă, fie pe partea dreaptă.
Intrare apă
Ieșire apă
Alimentare cu energie
Ieșire aer - nu obstrucționați
kg: greutate totală de funcționare
| A mm | B mm | kg | |
| 30GX207 30GX227 |
5996 | 2895 | 5540 5570 |
| 30GX247 30GX267 |
6911 | 2470 | 6134 6365 |
| 30GX298 | 7826 | 2220 | 7354 |
| 30GX328 30GX358 |
8741 | 1250 | 7918 8124 |
Instalare cu mai multe răcitoare


Note:
- Unitatea trebuie să aibă distanțe pentru fluxul de aer după cum urmează:
Partea superioară: nu restricționați în niciun fel - În cazul mai multor răcitoare (până la patru unități), distanța respectivă dintre ele ar trebui mărită de la 1830 la 2000 mm pentru cerința de spațiu lateral.
- Sunt necesare distanțe pentru îndepărtarea tubului răcitorului.
NOTĂ: Consultați desenele dimensionale certificate furnizate împreună cu unitatea, atunci când proiectați o instalație.
DATE FIZICE 30HXC
| 30HXC | 080 | 090 | 100 | 110 | 120 | 130 | 140 | 155 | 175 | 190 | 200 | 230 | 260 | 285 | 310 | 345 | 375 | |
| Capacitate netă de răcire | kW | 292 | 321 | 352 | 389 | 426 | 464 | 514 | 550 | 607 | 663 | 716 | 822 | 918 | 996 | 1119 | 1222 | 1326 |
| Greutate de operare | kg | 2447 | 2462 | 2504 | 2650 | 2846 | 2861 | 2956 | 2971 | 3283 | 3438 | 4090 | 4705 | 4815 | 4985 | 5760 | 5870 | 6105 |
| Agent frigorific Circuit A/B |
HFC-134a | |||||||||||||||||
| kg | 39/36 | 39/36 | 37/32 | 38/38 | 57/55 | 59/50 | 56/50 | 59/52 | 58/61 | 60/70 | 110/58 | 118/63 | 120/75 | 120/75 | 108/110 | 110/110 | 110/120 | |
| Ulei Circuit A/B |
Ulei poliolester CARRIER SPEC: PP 47-32 | |||||||||||||||||
| l | 15/15 | 15/15 | 15/15 | 15/15 | 15/15 | 15/15 | 15/15 | 15/15 | 15/15 | 15/15 | 30/15 | 30/15 | 30/15 | 30/15 | 30/30 | 30/30 | 30/30 | |
| Compresoare | Hermetic twin-screw Power3 | |||||||||||||||||
| Circ. A, dimensiune nominală per compresor** | 39 | 46 | 46 | 56 | 56 | 66 | 80 | 80 | 80 | 80+ | 66/56 | 80/56 | 80/80 | 80+/80+ | 80/66 | 80/80 | 80+/80+ | |
| Circ. B, dimensiune nominală per compresor** | 39 | 39 | 46 | 46 | 56 | 56 | 56 | 66 | 80 | 80+ | 66 | 80 | 80 | 80+ | 80/66 | 80/80 | 80+/80+ | |
| Tip de control | Control PRO-DIALOG Plus | |||||||||||||||||
| Număr de trepte de capacitate | 6 | 6 | 6 | 6 | 6 | 6 | 6 | 6 | 6 | 6 | 8 | 8 | 8 | 8 | 10 | 10 | 10 | |
| Capacitate minimă | % | 19 | 19 | 21 | 19 | 21 | 19 | 17 | 19 | 21 | 21 | 14 | 14 | 14 | 14 | 10 | 10 | 10 |
| Evaporator | Tip carcasă și tub, cu tuburi de cupru cu aripioare interne | |||||||||||||||||
| Volum net de apă | l | 65 | 65 | 73 | 87 | 81 | 81 | 91 | 91 | 109 | 109 | 140 | 165 | 181 | 181 | 203 | 229 | 229 |
| Conexiuni de apă | Flanșă plată furnizată din fabrică, care trebuie sudată la fața locului | |||||||||||||||||
| Intrare și ieșire | in. | 4 | 4 | 4 | 5 | 5 | 5 | 5 | 5 | 5 | 5 | 6 | 6 | 6 | 6 | 8 | 8 | 8 |
| Drenaj și aerisire (NPT) | in. | 3/8 | 3/8 | 3/8 | 3/8 | 3/8 | 3/8 | 3/8 | 3/8 | 3/8 | 3/8 | 3/8 | 3/8 | 3/8 | 3/8 | 3/8 | 3/8 | 3/8 |
| Presiune maximă de operare pe partea de apă | kPa | 1000 | 1000 | 1000 | 1000 | 1000 | 1000 | 1000 | 1000 | 1000 | 1000 | 1000 | 1000 | 1000 | 1000 | 1000 | 1000 | 1000 |
| Condensatoare | Tip carcasă și tub, cu tuburi de cupru cu aripioare interne | |||||||||||||||||
| Volum net de apă | l | 58 | 58 | 58 | 58 | 92 | 92 | 110 | 110 | 132 | 132 | 162 | 208 | 208 | 208 | 251 | 251 | 251 |
| Conexiuni de apă | Flanșă plată furnizată din fabrică, care trebuie sudată la fața locului | |||||||||||||||||
| Intrare și ieșire | in. | 5 | 5 | 5 | 5 | 5 | 5 | 5 | 5 | 6 | 6 | 6 | 6 | 6 | 6 | 8 | 8 | 8 |
| Drenaj și aerisire (NPT) | in. | 3/8 | 3/8 | 3/8 | 3/8 | 3/8 | 3/8 | 3/8 | 3/8 | 3/8 | 3/8 | 3/8 | 3/8 | 3/8 | 3/8 | 3/8 | 3/8 | 3/8 |
| Presiune maximă de operare pe partea de apă | kPa | 1000 | 1000 | 1000 | 1000 | 1000 | 1000 | 1000 | 1000 | 1000 | 1000 | 1000 | 1000 | 1000 | 1000 | 1000 | 1000 | 1000 |
* Condiții Eurovent standardizate: temperaturi de intrare/ieșire a apei din evaporator = 12°C/7°C, temperaturi de intrare/ieșire a apei din condensator = 30°C/35°C. Capacitate netă de răcire: Capacitatea brută de răcire minus căldura pompei de apă împotriva căderii de presiune interne a evaporatorului. ** Dimensiunea compresorului corespunde capacității nominale în tone (1 tonă = 3,517 kW).
DATE ELECTRICE 30HXC
| 30HXC | 080 | 090 | 100 | 110 | 120 | 130 | 140 | 155 | 175 | 190 | 200 | 230 | 260 | 285 | 310 | 345 | 375 | |
| Circuit de alimentare | ||||||||||||||||||
| Alimentare nominală* | V-ph-Hz | 400-3-50 | ||||||||||||||||
| Interval de tensiune | V | 360-440 | ||||||||||||||||
| Alimentare circuit de control | Circuitul de control este alimentat prin intermediul transformatorului instalat din fabrică | |||||||||||||||||
| Putere nominală de intrare* | kW | 59 | 67 | 74 | 83 | 88 | 99 | 112 | 123 | 135 | 146 | 156 | 179 | 201 | 219 | 245 | 274 | 298 |
| Curent nominal absorbit* | A | 98 | 111 | 124 | 139 | 148 | 166 | 186 | 204 | 226 | 242 | 259 | 291 | 335 | 367 | 408 | 456 | 498 |
| Putere maximă de intrare** | kW | 76 | 83 | 91 | 101 | 111 | 121 | 135 | 145 | 158 | 181 | 187 | 214 | 237 | 272 | 290 | 316 | 362 |
| Circuit A | kW | - | - | - | - | - | - | - | - | - | - | 121 | 135 | 158 | 181 | 145 | 158 | 181 |
| Circuit B | kW | - | - | - | - | - | - | - | - | - | - | 66 | 79 | 79 | 91 | 145 | 158 | 181 |
| Cosinus phi, unitate la sarcină maximă | 0.87 | 0.87 | 0.87 | 0.87 | 0.87 | 0.87 | 0.87 | 0.87 | 0.87 | 0.87 | 0.87 | 0.87 | 0.87 | 0.87 | 0.87 | 0.87 | 0.87 | |
| Curent maxim absorbit (Un - 10%)*** | A | 138 | 152 | 166 | 184 | 202 | 221 | 245 | 264 | 288 | 330 | 341 | 389 | 432 | 495 | 528 | 576 | 660 |
| Circuit A | A | - | - | - | - | - | - | - | - | - | - | 221 | 245 | 288 | 330 | 264 | 288 | 330 |
| Circuit B | A | - | - | - | - | - | - | - | - | - | - | 120 | 144 | 144 | 165 | 264 | 288 | 330 |
| Curent maxim absorbit (Un)*** | A | 125 | 138 | 151 | 167 | 184 | 201 | 223 | 240 | 262 | 300 | 310 | 354 | 393 | 450 | 480 | 524 | 600 |
| Circuit A | A | - | - | - | - | - | - | - | - | - | - | 201 | 223 | 262 | 300 | 240 | 262 | 300 |
| Circuit B | A | - | - | - | - | - | - | - | - | - | - | 109 | 131 | 131 | 150 | 240 | 262 | 300 |
| Curent maxim de pornire, unitate standard (Un)**** | A | 172 | 197 | 209 | 235 | 252 | 283 | 318 | 335 | 357 | 420 | 806 | 938 | 977 | 1156 | 1064 | 1108 | 1306 |
| Circuit A | A | - | - | - | - | - | - | - | - | - | - | 697 | 807 | 846 | 1006 | 824 | 846 | 1006 |
| Circuit B | A | - | - | - | - | - | - | - | - | - | - | 605 | 715 | 715 | 856 | 824 | 846 | 1006 |
| Raportul curent maxim de pornire/curent maxim absorbit, unitate | 1.37 | 1.42 | 1.39 | 1.41 | 1.37 | 1.41 | 1.43 | 1.40 | 1.36 | 1.40 | 2.60 | 2.65 | 2.49 | 2.57 | 2.22 | 2.12 | 2.18 | |
| Raportul curent maxim de pornire/curent maxim absorbit, circuit A | - | - | - | - | - | - | - | - | - | - | 3.47 | 3.62 | 3.23 | 3.35 | 3.43 | 3.23 | 3.35 | |
| Raportul curent maxim de pornire/curent maxim absorbit, circuit B | - | - | - | - | - | - | - | - | - | - | 5.55 | 5.46 | 5.46 | 5.71 | 3.43 | 3.23 | 3.35 | |
| Curent maxim de pornire - pornire cu curent redus (Un) **** | A | std. | std. | std. | std. | std. | std. | std. | std. | std. | std. | 601 | 643 | 682 | 760 | 769 | 813 | 910 |
| Circuit A | A | std. | std. | std. | std. | std. | std. | std. | std. | std. | std. | 492 | 512 | 551 | 610 | 529 | 551 | 610 |
| Circuit B | A | std. | std. | std. | std. | std. | std. | std. | std. | std. | std. | 330 | 370 | 370 | 385 | 529 | 551 | 610 |
| Curent maxim de pornire - pornire cu curent redus/ raportul curent maxim absorbit, unitate | std. | std. | std. | std. | std. | std. | std. | std. | std. | std. | 1.94 | 1.82 | 1.74 | 1.69 | 1.60 | 1.55 | 1.52 | |
| Circuit A | std. | std. | std. | std. | std. | std. | std. | std. | std. | std. | 2.45 | 2.30 | 2.10 | 2.03 | 2.20 | 2.10 | 2.03 | |
| Circuit B | std. | std. | std. | std. | std. | std. | std. | std. | std. | std. | 3.03 | 2.83 | 2.83 | 2.57 | 2.20 | 2.10 | 2.03 | |
| Curent trifazat de scurtcircuit | kA | 25 | 25 | 25 | 25 | 25 | 25 | 25 | 25 | 25 | 25 | N/A | N/A | N/A | N/A | N/A | N/A | N/A |
| Circuit A | kA | - | - | - | - | - | - | - | - | - | - | 25 | 25 | 25 | 25 | 25 | 25 | 25 |
| Circuit B | kA | - | - | - | - | - | - | - | - | - | - | 15 | 15 | 15 | 15 | 25 | 25 | 25 |
| Capacitate de așteptare a clientului, unitate sau circ. A, pentru conexiuni pompa de apă a evaporatorului† | kW | 8 | 8 | 8 | 11 | 11 | 11 | 15 | 15 | 15 | 15 | 15 | 18 | 18 | 30 | 30 | 30 | 30 |
* Condiții standard Eurovent: Temperatura apei la intrarea/ieșirea din evaporator 12°C și 7°C. Temperatura apei la intrarea/ieșirea din condensator 30°C/35°C.
** Putere de intrare, compresor, la limitele de funcționare ale unității (temperatura apei la intrarea/ieșirea din evaporator = 15°C/10°C, temperatura apei la intrarea/ieșirea din condensator = 40°C/45°C) și o tensiune nominală de 400 V (date indicate pe plăcuța de identificare a unității).
*** Curent maxim de funcționare al unității la puterea maximă de intrare a unității.
**** Curent maxim instantaneu de pornire (curent maxim de funcționare al celui(or) mai mic(i) compresor(e) + curent rotor blocat sau curent de pornire redus al celui mai mare compresor)
† Intrările de curent și putere nu sunt incluse în valorile de mai sus.
N/A Nu este disponibil
Compresoare
| Referință | Dimensiune | I nom. | MHA | LRA | LRA (Y) | LRA (S) 1 cp. | LRA (S) 2 cp. |
| 06NW2146S7N | 39 | 48 | 69 | 344 | 109 | 125 | - |
| 06NW2174S7N | 46 | 58 | 83 | 423 | 134 | 154 | - |
| 06NW2209S7N | 56 | 71 | 101 | 506 | 160 | 260 | 350 |
| 06NW2250S7N | 66 | 87 | 120 | 605 | 191 | 330 | 400 |
| 06NW2300S5N | 80 | 104 | 144 | 715 | 226 | 370 | 420 |
| 06NW2300S5E | 80+ | 111 | 165 | 856 | 270 | 385 | 460 |
Legendă:
| 06NW | Compresor pentru unități răcite cu apă |
| N | Compresor non-economizat |
| E | Compresor economizat |
| INOM | Consum mediu de curent al compresorului în condiții Eurovent |
| MHA | Amperi de menținere (curent maxim de funcționare) la 360 V |
| LRA | Curent rotor blocat cu pornire directă |
| LRA (Y) | Curent rotor blocat la curent redus (mod de pornire stea/triunghi) |
| LRA (S) 1 cp. | Pornire cu curent redus cu demaror electronic (durata de pornire 3 secunde max.) pentru un compresor per circuit |
| LRA (S) 2 cp. | Pornire cu curent redus cu demaror electronic (durata de pornire 3 secunde max.) pentru două compresoare per circuit |
DATE ELECTRICE PENTRU UNITĂȚILE CU TEMPERATURI DE CONDENSARE RIDICATE
Opț;iuni 30HXC 150 și 150A
| 30HXC | 080 | 090 | 100 | 110 | 120 | 130 | 140 | 155 | 175 | 190 | 200 | 230 | 260 | 285 | 310 | 345 | 375 | |
| Circuit de alimentare | ||||||||||||||||||
| Alimentare nominală* | V-ph-Hz | 400-3-50 | ||||||||||||||||
| Interval de tensiune | V | 360-440 | ||||||||||||||||
| Alimentare circuit de control | Circuitul de control este alimentat prin intermediul transformatorului instalat din fabrică | |||||||||||||||||
| Putere maximă de intrare** | kW | 104 | 117 | 131 | 145 | 159 | 174 | 194 | 211 | 230 | 263 | 271 | 310 | 345 | 395 | 422 | 460 | 526 |
| Circuit A | kW | - | - | - | - | - | - | - | - | - | - | 175 | 195 | 230 | 263 | 211 | 230 | 263 |
| Circuit B | kW | - | - | - | - | - | - | - | - | - | - | 96 | 115 | 115 | 132 | 211 | 230 | 263 |
| Curent maxim absorbit (Un - 10%)*** | A | 190 | 215 | 240 | 265 | 290 | 320 | 355 | 385 | 420 | 480 | 495 | 564 | 630 | 720 | 770 | 840 | 960 |
| Circuit A | A | - | - | - | - | - | - | - | - | - | - | 320 | 355 | 420 | 480 | 385 | 420 | 480 |
| Circuit B | A | - | - | - | - | - | - | - | - | - | - | 175 | 210 | 210 | 240 | 385 | 420 | 480 |
| Curent maxim absorbit (Un)*** | A | 173 | 195 | 218 | 241 | 264 | 291 | 323 | 350 | 382 | 436 | 450 | 514 | 573 | 655 | 700 | 764 | 873 |
| Circuit A | A | - | - | - | - | - | - | - | - | - | - | 291 | 323 | 382 | 436 | 350 | 382 | 436 |
| Circuit B | A | - | - | - | - | - | - | - | - | - | - | 159 | 191 | 191 | 218 | 350 | 382 | 436 |
| Curent maxim de pornire, unitate standard (Un)**** | A | 277 | 312 | 335 | 379 | 402 | 435 | 519 | 546 | 578 | 618 | 1251 | 1549 | 1608 | 1701 | 1735 | 1799 | 1920 |
| Circuit A | A | - | - | - | - | - | - | - | - | - | - | 1092 | 1358 | 1417 | 1483 | 1385 | 1417 | 1483 |
| Circuit B | A | - | - | - | - | - | - | - | - | - | - | 960 | 1226 | 1226 | 1265 | 1385 | 1417 | 1483 |
| Raportul curent maxim de pornire/curent maxim absorbit, unitate | 1.61 | 1.60 | 1.54 | 1.57 | 1.52 | 1.49 | 1.61 | 1.56 | 1.51 | 1.42 | 2.78 | 3.02 | 2.81 | 2.60 | 2.48 | 2.36 | 2.20 | |
| Raportul curent maxim de pornire/curent maxim absorbit, circuit A | - | - | - | - | - | - | - | - | - | - | 3.75 | 4.21 | 3.71 | 3.40 | 3.96 | 3.71 | 3.40 | |
| Raportul curent maxim de pornire/curent maxim absorbit, circuit B | - | - | - | - | - | - | - | - | - | - | 6.03 | 6.42 | 6.42 | 5.80 | 3.96 | 3.71 | 3.40 | |
| Curent maxim de pornire - pornire cu curent redus (Un) **** | A | std. | std. | std. | std. | std. | std. | std. | std. | std. | std. | N/A | N/A | N/A | N/A | N/A | N/A | N/A |
| Curent trifazat de scurtcircuit | kA | 25 | 25 | 25 | 25 | 25 | 25 | 25 | 25 | 25 | 25 | N/A | N/A | N/A | N/A | N/A | N/A | N/A |
| Circuit A | kA | - | - | - | - | - | - | - | - | - | - | 25 | 25 | 25 | 25 | 25 | 25 | 25 |
| Circuit B | kA | - | - | - | - | - | - | - | - | - | - | 15 | 15 | 15 | 15 | 25 | 25 | 25 |
| Capacitate de așteptare a clientului, unitate sau circ. A, pentru conexiuni de pompă de apă a evaporatorului† | kW | 8 | 8 | 8 | 11 | 11 | 11 | 15 | 15 | 15 | 15 | 15 | 18 | 18 | 30 | 30 | 30 | 30 |
** Putere de intrare, compresor, la limitele de funcționare ale unității (temperatura apei la intrare/ieșire evaporator = 15°C/10°C, temperatura apei la intrare/ieșire condensator = 40°C/45°C) și o tensiune nominală de 400 V (date indicate pe plăcuța de identificare a unității).
*** Curent maxim de funcționare al unității la puterea maximă de intrare a unității.
**** Curent maxim instantaneu de pornire (curent maxim de funcționare al celui mai mic compresor(e) + curent de rotor blocat sau curent de pornire redus al celui mai mare compresor)
† Intrările de curent și putere nu sunt incluse în valorile de mai sus.
N/A Nu este disponibil
Unitățile 30HXC 080-375 pentru temperaturi ridicate de condensare sunt derivate direct din modelele standard. Intervalul lor de aplicare este același cu cel al unităților standard, dar permite funcționarea la temperaturi ale apei la ieșirea din condensator de până la 63°C. Controlul PRO-DIALOG oferă toate avantajele unităților standard, plus controlul temperaturii apei la ieșirea din condensator.
Principalele modificări sunt:
- Utilizarea compresoarelor 30GX
- Modificarea componentelor electrice pentru a funcționa cu compresoare pentru temperaturi ridicate de condensare.
- Modificarea schimbătoarelor de căldură pentru a îndeplini cerințele codului de presiune (dacă este necesar).
Opțiunea 150
Aceste unități sunt proiectate pentru aplicații tradiționale pentru unități răcite cu apă, dar pentru temperaturi mai ridicate ale apei la ieșirea din condensator decât 45°C.
La fel ca unitățile standard, acestea sunt echipate cu senzori de apă la intrare și ieșire din condensator, instalați pe conducte.
Este posibil să se controleze mașina la ieșirea apei din condensator, necesitând o modificare a configurației din fabrică și utilizarea unui dispozitiv de inversare a intrării de încălzire/răcire.
Opțiunea 150A
Aceste unități sunt proiectate pentru pompe de căldură apă-apă.
Acestea sunt configurate din fabrică ca pompe de căldură (controlul încălzirii/răcirii în funcție de dispozitivul de inversare de la distanță). Condensatorul încorporează izolație termică identică cu cea a evaporatorului.
Informații tehnice
Toate informațiile sunt identice cu cele ale unităților standard 30HXC, cu excepția următoarelor paragrafe.
Selecție
Nu există condiții nominale pentru acest tip de unitate. Selecția se face folosind catalogul electronic curent.
Dimensiuni
Acestea sunt identice cu cele ale unităților standard 30HXC. Singura diferență este diametrul conexiunii cablajului de câmp de intrare, descris în capitolul "Selecție recomandată". Consultați desenele dimensionale pentru aceste unități, înainte de a continua cu cablarea.
Compresor
Consultați tabelul compresoarelor 30GX.
Opțiuni și accesorii
Toate opțiunile disponibile pentru unitățile standard 30HXC sunt compatibile, cu excepția:
| Opțiunea 5, unitate de saramură | Unitate specială |
| Opțiunea 25, pornire ușoară, unități 30HXC 200-375 | Nu este disponibil |
Atenție:
Dacă unitățile au două moduri de funcționare diferite - unul cu temperatură ridicată de condensare și celălalt cu temperatură scăzută de condensare - și tranziția se face cu unitatea în funcțiune, temperatura nu trebuie să varieze cu mai mult de 3 K pe minut. În cazurile în care acest lucru nu este posibil, se recomandă trecerea printr-un comutator de pornire/oprire a unității (pornire/oprire de la distanță disponibilă pentru unitățile standard).
DATE FIZICE 30GX
| 30GX | 082 | 092 | 102 | 112 | 122 | 132 | 152 | 162 | 182 | 207 | 227 | 247 | 267 | 298 | 328 | 358 | ||
| Capacitate netă de răcire | kW | 285 | 309 | 332 | 388 | 417 | 450 | 505 | 536 | 602 | 687 | 744 | 810 | 910 | 1003 | 1103 | 1207 | |
| Greutate de funcționare | kg | 3116 | 3157 | 3172 | 3515 | 3531 | 3633 | 3920 | 3936 | 4853 | 5540 | 5570 | 6134 | 6365 | 7354 | 7918 | 8124 | |
| Încărcare cu agent frigorific | HFC-134a | |||||||||||||||||
| Circuit A/B | kg | 55/55 | 58/50 | 54/53 | 55/53 | 60/57 | 63/60 | 75/69 | 75/75 | 80/80 | 130/85 | 130/85 | 155/98 | 170/104 | 162/150 | 162/165 | 175/175 | |
| Ulei | Ulei poliolester CARRIER SPEC: PP 47-32 | |||||||||||||||||
| Circuit A/B | l | 20/20 | 20/20 | 20/20 | 20/20 | 20/20 | 20/20 | 20/20 | 20/20 | 20/20 | 40/20 | 40/20 | 40/20 | 40/20 | 40/40 | 40/40 | 40/40 | |
| Compresoare | Hermetic twin-screw Power3 | |||||||||||||||||
| Circ. A, dimensiune nominală per compresor** | 46 | 46 | 56 | 56 | 66 | 66 | 80 | 80 | 80+ | 66/56 | 80/66 | 80/80 | 80+/80+ | 80/80 | 80/80 | 80+/80+ | ||
| Circ. B, dimensiune nominală per compresor** | 39 | 46 | 46 | 56 | 56 | 66 | 66 | 80 | 80+ | 80 | 80 | 80 | 80+ | 66/66 | 80/802 | 80+/80+ | ||
| Tip de control | Control PRO-DIALOG Plus | |||||||||||||||||
| Număr de trepte de capacitate | 6 | 6 | 6 | 6 | 6 | 6 | 6 | 6 | 6 | 8 | 8 | 8 | 8 | 10 | 10 | 10 | ||
| Capacitate minimă | % | 19 | 21 | 19 | 21 | 19 | 21 | 19 | 21 | 21 | 16 | 14 | 14 | 14 | 9 | 10 | 10 | |
| Evaporator | Tip carcasă și tub, cu tuburi de cupru cu aripioare interne | |||||||||||||||||
| Volum net de apă | l | 65 | 73 | 73 | 87 | 87 | 101 | 91 | 91 | 109 | 140 | 140 | 165 | 181 | 203 | 229 | 229 | |
| Conexiuni de apă | Flanșă plată furnizată din fabrică, care trebuie sudată la fața locului | |||||||||||||||||
| Intrare și ieșire | in. | 4 | 4 | 4 | 5 | 5 | 5 | 5 | 5 | 5 | 6 | 6 | 6 | 6 | 8 | 8 | 8 | |
| Drenaj și aerisire (NPT) | in. | 3/8 | 3/8 | 3/8 | 3/8 | 3/8 | 3/8 | 3/8 | 3/8 | 3/8 | 3/8 | 3/8 | 3/8 | 3/8 | 3/8 | 3/8 | 3/8 | |
| Presiune maximă de funcționare pe partea de apă | kPa | 1000 | 1000 | 1000 | 1000 | 1000 | 1000 | 1000 | 1000 | 1000 | 1000 | 1000 | 1000 | 1000 | 1000 | 1000 | 1000 | |
| Condensatoare | Tuburi de cupru și aripioare de aluminiu | |||||||||||||||||
| Ventilatoare | Ventilator axial FLYING BIRD 2 cu înveliș rotativ | |||||||||||||||||
| Cantitate | 4 | 4 | 4 | 6 | 6 | 6 | 8 | 8 | 8 | 10 | 10 | 12 | 12 | 14 | 16 | 16 | ||
| Viteză | r/s | 15.8 | 15.8 | 15.8 | 15.8 | 15.8 | 15.8 | 15.8 | 15.8 | 15.8 | 15.8 | 15.8 | 15.8 | 15.8 | 15.8 | 15.8 | 15.8 | |
| Debit total de aer | l/s | 21110 | 21110 | 21110 | 31660 | 31660 | 31660 | 42220 | 42220 | 42220 | 52770 | 52770 | 63330 | 63330 | 73880 | 84440 | 84440 | |
* Condiții Eurovent standardizate: temperaturi ale apei la intrare/ieșire evaporator = 12°C/7°C, temperatura aerului exterior = 35°C Capacitate netă de răcire: Capacitatea brută de răcire minus căldura pompei de apă împotriva căderii interne de presiune a evaporatorului.
** Dimensiunea compresorului corespunde capacității nominale în tone (1 tonă = 3,517 kW).
DATE ELECTRICE 30GX
| 30HXC | 082 | 092 | 102 | 112 | 122 | 132 | 152 | 162 | 182 | 207 | 227 | 247 | 267 | 298 | 328 | 358 | ||
| Circuit de alimentare | ||||||||||||||||||
| Alimentare nominală* | V-ph-Hz | 400-3-50 | ||||||||||||||||
| Interval de tensiune | V | 360-440 | ||||||||||||||||
| Alimentare circuit de control | Circuitul de control este alimentat prin intermediul transformatorului instalat din fabrică | |||||||||||||||||
| Putere nominală de intrare* | kW | 98 | 109 | 123 | 133 | 150 | 166 | 179 | 196 | 214 | 246 | 281 | 292 | 332 | 364 | 394 | 449 | |
| Curent nominal absorbit* | A | 180 | 200 | 223 | 256 | 273 | 290 | 326 | 352 | 388 | 449 | 492 | 528 | 582 | 642 | 704 | 776 | |
| Putere maximă de intrare** | kW | 127 | 141 | 154 | 175 | 191 | 207 | 234 | 253 | 286 | 319 | 355 | 380 | 429 | 462 | 506 | 572 | |
| Circuit A | kW | - | - | - | - | - | - | - | - | - | 193 | 228 | 253 | 286 | 253 | 253 | 286 | |
| Circuit B | kW | - | - | - | - | - | - | - | - | - | 127 | 127 | 127 | 143 | 209 | 253 | 286 | |
| Cosinus phi, unitate la sarcină maximă | 0.85 | 0.85 | 0.85 | 0.85 | 0.85 | 0.85 | 0.86 | 0.86 | 0.86 | 0.86 | 0.86 | 0.86 | 0.86 | 0.86 | 0.86 | 0.86 | ||
| Curent maxim absorbit (Un - 10%)*** | A | 237 | 262 | 287 | 323 | 353 | 383 | 429 | 464 | 524 | 585 | 650 | 696 | 786 | 847 | 928 | 1048 | |
| Circuit A | A | - | - | - | - | - | - | - | - | - | 353 | 418 | 464 | 524 | 464 | 464 | 524 | |
| Circuit B | A | - | - | - | - | - | - | - | - | - | 232 | 232 | 232 | 262 | 383 | 464 | 524 | |
| Curent maxim absorbit (Un)*** | A | 217 | 240 | 263 | 297 | 324 | 351 | 394 | 426 | 480 | 537 | 596 | 639 | 721 | 777 | 852 | 961 | |
| Circuit A | A | - | - | - | - | - | - | - | - | - | 324 | 383 | 426 | 480 | 426 | 426 | 480 | |
| Circuit B | A | - | - | - | - | - | - | - | - | - | 213 | 213 | 213 | 240 | 351 | 426 | 480 | |
| Curent maxim de pornire, unitate std.**** (Un) | A | 334 | 357 | 401 | 435 | 468 | 495 | 590 | 622 | 662 | 1338 | 1631 | 1674 | 1767 | 1812 | 1887 | 2008 | |
| Circuit A*** | A | - | - | - | - | - | - | - | - | - | 1125 | 1418 | 1461 | 1527 | 1461 | 1461 | 1527 | |
| Circuit B*** | A | - | - | - | - | - | - | - | - | - | 1248 | 1248 | 1248 | 1287 | 1152 | 1461 | 1527 | |
| Curent maxim de pornire/raport curent maxim absorbit, unitate | 1.54 | 1.49 | 1.53 | 1.47 | 1.44 | 1.41 | 1.50 | 1.46 | 1.38 | 2.49 | 2.74 | 2.62 | 2.45 | 2.33 | 2.22 | 2.09 | ||
| Curent maxim de pornire/raport curent maxim absorbit, circuit A | - | - | - | - | - | - | - | - | - | 3.47 | 3.70 | 3.43 | 3.18 | 3.43 | 3.43 | 3.18 | ||
| Curent maxim de pornire/raport curent maxim absorbit, circuit B | - | - | - | - | - | - | - | - | - | 5.86 | 5.86 | 5.86 | 5.36 | 3.28 | 3.43 | 3.18 | ||
| Curent maxim de pornire - pornire cu curent redus (Un) **** | A | std. | std. | std. | std. | std. | std. | std. | std. | std. | 878 | 955 | 998 | 1102 | 1136 | 1211 | 1343 | |
| Circuit A | A | std. | std. | std. | std. | std. | std. | std. | std. | std. | 665 | 742 | 785 | 862 | 785 | 785 | 862 | |
| Circuit B | A | std. | std. | std. | std. | std. | std. | std. | std. | std. | 572 | 572 | 572 | 622 | 692 | 785 | 862 | |
| Curent maxim de pornire - pornire cu curent redus/ raport curent maxim absorbit, unitate | std. | std. | std. | std. | std. | std. | std. | std. | std. | 1.64 | 1.60 | 1.56 | 1.53 | 1.46 | 1.42 | 1.40 | ||
| Circuit A | std. | std. | std. | std. | std. | std. | std. | std. | std. | 2.05 | 1.94 | 1.84 | 1.79 | 1.84 | 1.84 | 1.79 | ||
| Circuit B | std. | std. | std. | std. | std. | std. | std. | std. | std. | 2.69 | 2.69 | 2.69 | 2.39 | 1.97 | 1.84 | 1.79 | ||
| Curent trifazat de scurtcircuit | kA | 25 | 25 | 25 | 25 | 25 | 25 | 25 | 25 | 25 | N/A | N/A | N/A | N/A | N/A | N/A | N/A | |
| Circuit A | kA | - | - | - | - | - | - | - | - | - | 25 | 25 | 25 | 25 | 25 | 25 | 25 | |
| Circuit B | kA | - | - | - | - | - | - | - | - | - | 25 | 25 | 25 | 25 | 25 | 25 | 25 | |
| Capacitate de standby a clientului, unitate sau circ. A, pentru conexiuni pompă de apă a evaporatorului† | kW | 4 | 4 | 4 | 5.5 | 5.5 | 5.5 | 7.5 | 7.5 | 7.5 | 7.5 | 9 | 9 | 9 | 15 | 15 | 15 | |
* Condiții standard Eurovent: Temperatura apei la intrare/ieșire evaporator 12°C și 7°C. Temperatura aerului exterior 35°C.
** Putere de intrare, compresor și ventilator, la limitele de funcționare ale unității (temperatura apei la intrare/ieșire evaporator = 15°C/10°C, temperatura aerului exterior = 46°C) și o tensiune nominală de 400 V (date indicate pe plăcuța de identificare a unității).
*** Curent maxim de funcționare al unității la puterea maximă de intrare a unității.
**** Curent maxim instantaneu de pornire (curent maxim de funcționare al celui mai mic compresor(e) + curent ventilator + curent rotor blocat sau curent redus de pornire al celui mai mare compresor).
† Intrările de curent și putere nu sunt incluse în valorile de mai sus
N/A Indisponibil
Compresoare
| Referință | Dimensiune | I nom. | MHA | LRA | LRA (Y) | LRA (S) 1 cp. | LRA (S) 2 cp. |
| 06NA2146S7N | 39 | 70 | 95 | 605 | 191 | 220 | - |
| 06NA2174S7N | 46 | 90 | 120 | 715 | 226 | 260 | - |
| 06NA2209S7N | 56 | 113 | 145 | 856 | 270 | 330 | 420 |
| 06NA2250S7N | 66 | 130 | 175 | 960 | 303 | 380 | 500 |
| 06NA2300S5N | 80 | 156 | 210 | 1226 | 387 | 445 | 550 |
| 06NA2300S5E | 80+ | 174 | 240 | 1265 | 400 | 460 | 600 |
Legendă:
| 06NA | Compresor pentru unități răcite cu aer |
| N | Compresor non-economizat |
| E | Compresor economizat |
| INOM | Consum mediu de curent al compresorului în condiții Eurovent |
| MHA | Amperi de menținere obligatorie (curent maxim de funcționare) la 360 V |
| LRA | Curent rotor blocat cu pornire directă |
| LRA (Y) | Curent rotor blocat la curent redus (mod de pornire stea/triunghi) |
| LRA (S) 1 cp. | Pornire cu curent redus cu demaror electronic (durata de pornire 3 secunde max.) pentru un compresor per circuit |
| LRA (S) 2 cp. | Pornire cu curent redus cu demaror electronic (durata de pornire 3 secunde max.) pentru două compresoare per circuit |
DATE DESPRE APLICAȚIE
Intervalul de funcționare al unității
| Evaporator | Minimum (Minim) | Maximum (Maxim) | |
| Evaporator entering water temperature (Temperatura apei la intrarea în evaporator) | °C | 6.8* | 21 |
| Evaporator leaving water temperature (Temperatura apei la ieșirea din evaporator) | °C | 4** | 15 |
| Condenser (water-cooled) (Condensator (răcit cu apă)) | Minimum (Minim) | Maximum (Maxim) | |
| Condenser entering water temperature (Temperatura apei la intrarea în condensator) | °C | 20*** | 42 |
| Condenser leaving water temperature (Temperatura apei la ieșirea din condensator) | °C | 25 | 45 |
| Outside ambient operating temperature 30HXC (Temperatura ambientală exterioară de funcționare 30HXC) | °C | 6 | 40 |
| Condenser (air-cooled) (Condensator (răcit cu aer)) | Minimum (Minim) | Maximum (Maxim) | |
| Outdoor ambient operating temperature (Temperatura ambientală exterioară de funcționare) | °C | 0 | 46 |
| Available static pressure (Presiune statică disponibilă) | kPa | 0 |
Notes: (Note:)
* For application requiring operation at less than 6.8°C, contact Carrier s.a. for unit selection using the Carrier electronic catalog. (Pentru aplicații care necesită funcționarea la mai puțin de 6,8°C, contactați Carrier s.a. pentru selectarea unității folosind catalogul electronic Carrier.)
** For application requiring operation at less than 4°C, the units require the use of antifreeze. (Pentru aplicații care necesită funcționarea la mai puțin de 4°C, unitățile necesită utilizarea de antigel.)
*** Water-cooled units (30HXC) operating at full load and below 20°C condenser entering water temperature require the use of a head pressure control with analogue water control valves (see paragraph on head pressure control). (Unitățile răcite cu apă (30HXC) care funcționează la sarcină maximă și sub 20°C temperatura apei la intrarea în condensator necesită utilizarea unui control al presiunii de refulare cu supape analogice de control al apei (vezi paragraful despre controlul presiunii de refulare).)
In temporary operating modes (start-up and at part load) the unit can operate with a condenser entering air temperature of 13°C. (În modurile de funcționare temporare (pornire și la sarcină parțială), unitatea poate funcționa cu o temperatură a aerului la intrarea în condensator de 13°C.)
Debit minim de apă răcită
The minimum chilled water flow is shown in the table on the next page. (Debitul minim de apă răcită este prezentat în tabelul de pe pagina următoare.) If the flow is less than this, the evaporator flow can be recirculated, as shown in the diagram. (Dacă debitul este mai mic decât acesta, debitul evaporatorului poate fi recirculat, așa cum se arată în diagramă.) The temperature of the mixture leaving the evaporator must never be less than 2.8 K lower than the chilled water entering temperature. (Temperatura amestecului care părăsește evaporatorul nu trebuie să fie niciodată cu mai puțin de 2,8 K mai mică decât temperatura apei răcite la intrare.)

FOR MINIMUM CHILLED WATER FLOW RATE (PENTRU DEBITUL MINIM DE APĂ RĂCITĂ)
Debit maxim de apă răcită
The maximum chilled water flow is limited by the maximum permitted pressure drop in the evaporator. (Debitul maxim de apă răcită este limitat de căderea maximă de presiune permisă în evaporator.) It is provided in the table on the next page. (Acesta este furnizat în tabelul de pe pagina următoare.) If the flow exceeds the maximum value, two solutions are possible: (Dacă debitul depășește valoarea maximă, sunt posibile două soluții:)
- Select a non-standard evaporator with one water pass lesswhich will allow a higher maximum water flow rate. (Selectați un evaporator non-standard cu o trecere de apă mai puțin, ceea ce va permite un debit maxim de apă mai mare.)
- Bypass the evaporator as shown in the diagram to obtain ahighter temperature difference with a lower evaporator flow rate. (Ocoliți evaporatorul așa cum se arată în diagramă pentru a obține o diferență de temperatură mai mare cu un debit mai mic al evaporatorului.)

FOR MAXIMUM CHILLED WATER FLOW RATE (PENTRU DEBITUL MAXIM DE APĂ RĂCITĂ)
Evaporator cu debit variabil
Variable evaporator flow can be used in standard 30HXC and 30GX chillers. (Debitul variabil al evaporatorului poate fi utilizat în chillerele standard 30HXC și 30GX.) The chillers maintain a constant leaving water temperature under all flow conditions. (Chilerele mențin o temperatură constantă a apei la ieșire în toate condițiile de debit.) For this to happen, the minimum flow rate must be higher than the minimum flow given in the table of permissible flow rates and must not vary by more than 10% per minute. (Pentru ca acest lucru să se întâmple, debitul minim trebuie să fie mai mare decât debitul minim indicat în tabelul cu debite admisibile și nu trebuie să varieze cu mai mult de 10% pe minut.) If the flow rate changes more rapidly, the system should contain a minimum of 6.5 liters of water per kW instead of 3.25 l/kW. (Dacă debitul se modifică mai rapid, sistemul ar trebui să conțină un minimum de 6,5 litri de apă per kW în loc de 3,25 l/kW.)
Volumul minim de apă al sistemului
Whichever the system, the water loop minimum capacity is given by the formula: (Indiferent de sistem, capacitatea minimă a buclei de apă este dată de formula:)
Capacity = Cap (kW) x N Liters (Capacitate = Cap (kW) x N Litri)
| Application (Aplicație) | N |
| Normal air conditioning (Aer condiționat normal) | 3.25 |
| Process type cooling (Răcire de tip proces) | 6.5 |
Where Cap is the nominal system cooling capacity (kW) at the nominal operating conditions of the installation. (Unde Cap este capacitatea nominală de răcire a sistemului (kW) în condițiile nominale de funcționare ale instalației.)
This volume is necessary for stable operation and accurate temperature control. (Acest volum este necesar pentru o funcționare stabilă și un control precis al temperaturii.)
It is often necessary to add a buffer water tank to the circuit in order to achieve the required volume. (Adesea este necesar să adăugați un rezervor tampon de apă în circuit pentru a atinge volumul necesar.) The tank must itself be internally baffled in order to ensure proper mixing of the liquid (water or brine). (Rezervorul trebuie să fie el însuși prevăzut cu deflectoare interne pentru a asigura amestecarea corectă a lichidului (apă sau saramură).) Refer to the examples below. (Consultați exemplele de mai jos.)
NOTE: The compressor must not restart more than 6 times in an hour. (NOTĂ: Compresorul nu trebuie să repornească de mai mult de 6 ori într-o oră.)


Debitul agentului de răcire (l/s)
| 30HXC | Min.* | Max.** | ||
| 080-090 | 5.7 | 22.7 | ||
| 100 | 6.0 | 24.1 | ||
| 110 | 6.9 | 27.5 | ||
| 120-130 | 8.3 | 33.0 | ||
| 140-155 | 10.0 | 39.5 | ||
| 175-190 | 10.7 | 42.7 | ||
| 200 | 13.4 | 53.7 | ||
| 230 | 13.4 | 60.6 | ||
| 260-285 | 17.0 | 68.1 | ||
| 310 | 19.4 | 77.8 | ||
| 345-375 | 21.3 | 85.3 | ||
| 30GX | Min.* | Max.** | ||
| 082 | 5.7 | 22.7 | ||
| 092-102 | 6.0 | 24.1 | ||
| 112-122 | 6.9 | 27.5 | ||
| 132 | 8.4 | 33.7 | ||
| 152-162 | 10.0 | 39.9 | ||
| 182 | 10.7 | 42.7 | ||
| 207-227 | 13.4 | 53.7 | ||
| 247 | 15.1 | 60.6 | ||
| 267 | 17.0 | 68.1 | ||
| 298 | 19.4 | 77.8 | ||
| 328-358 | 21.3 | 85.3 | ||
* Pe baza unei viteze a apei de 0,9 m/s.
** Pe baza unei viteze a apei de 3,6 m/s.
Debit condensator (l/s)
| 30HXC | Min.* Circuit închis (Closed loop) | Circuit deschis (Open loop) | Max.** |
| 080-110 | 2.5 | 7.5 | 29.9 |
| 120-130 | 3.1 | 9.3 | 37.3 |
| 140-155 | 3.8 | 11.4 | 45.5 |
| 175-190 | 4.6 | 13.8 | 55.2 |
| 200 | 5.0 | 14.9 | 59.6 |
| 230-285 | 6.7 | 20.1 | 80.3 |
| 310-375 | 7.3 | 22.0 | 88.0 |
* Pe baza unei viteze a apei de 0,3 m/s într-un circuit închis și 0,9 m/s într-un circuit deschis.
** Pe baza unei viteze a apei de 3,6 m/s
Curba de cădere a presiunii evaporatorului

- 30HXC 080-090/30GX 082
- 30HXC 100/30GX 092-102
- 30HXC 110/30GX 112-122
- 30GX 132
- 30HXC 120-130
- 30HXC 140-155/30GX 152-162
- 30HXC 175-190/30GX 182
- 30HXC 200/30GX 207-227
- 30HXC 230/30GX 247
- 30HXC 260-285/30GX 267
- 30HXC 310/30GX 298
- 30HXC 345-375/30GX 328-358
Curba de cădere a presiunii condensatorului

- 30HXC 080-090-100-110
- 30HXC 120-130
- 30HXC 140-155
- 30HXC 175-190
- 30HXC 200
- 30HXC 230-260-285
- 30HXC 310-345-375
Controlere de debit
Întrerupător de debit al răcitorului și interblocarea pompei de apă răcită
Este obligatoriu să instalați întrerupătorul de debit al răcitorului și, de asemenea, să conectați interblocarea pompei de apă răcită pe 30HXC și 30GX. Nerespectarea acestei instrucțiuni va anula garanția Carrier.
Controlerul întrerupătorului de debit al răcitorului este furnizat și cablat din fabrică pe unitățile 30HXC și 30GX.
Urmați instrucțiunile producătorului pentru instalare.
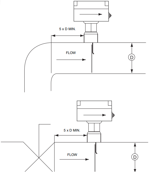
Întrerupătorul de debit poate fi montat într-o conductă orizontală sau într-o conductă verticală cu flux de lichid ascendent. Nu trebuie utilizat atunci când fluxul de lichid este descendent.
Montați într-o secțiune de conductă unde există o porțiune dreaptă de cel puțin cinci diametre de conductă pe fiecare parte a întrerupătorului de debit. Nu localizați adiacent supapelor, coturilor sau orificiilor. Paleta nu trebuie să atingă niciodată conducta sau orice restricție din conductă. Înșurubați întrerupătorul de debit în poziție, astfel încât partea plată a paletei să fie în unghi drept față de flux. Săgețile de pe capac și din partea de jos, în interiorul carcasei, trebuie să indice direcția fluxului. Întrerupătorul trebuie montat astfel încât bornele să fie accesibile pentru o cablare ușoară.
Bornele 34 și 35 sunt prevăzute pentru instalarea pe teren a unei interblocări a pompei de apă răcită (contact auxiliar al contactorului pompei de apă răcită).
(Conexiune conductă: 1" NPT)

Întrerupător de debit al condensatorului (30HXC)
Întrerupătorul de debit al condensatorului este un dispozitiv instalat pe teren.
INSTALARE
Verificați echipamentul primit
- Inspectați unitatea pentru a depista eventuale daune sau piese lipsă. Dacă se detectează daune sau dacă transportul este incomplet, depuneți imediat o reclamație la compania de transport.
- Confirmați că unitatea primită este cea comandată. Comparați datele de pe plăcuța indicatoare cu comanda.
- Confirmați că toate accesoriile comandate pentru instalarea la fața locului au fost livrate și sunt complete și nedeteriorate.
- Nu depozitați unitățile într-o zonă expusă la intemperii din cauza mecanismului sensibil de control și a dispozitivelor electronice.
Mutarea și amplasarea unității
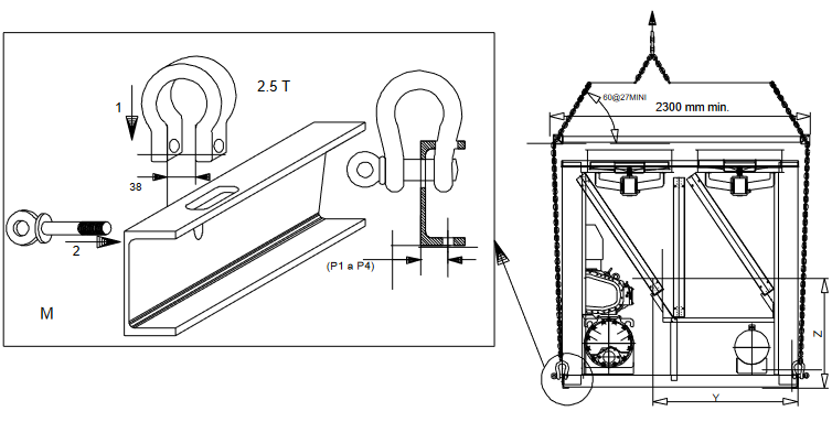
Mutarea
Nu îndepărtați patinele, paleții sau ambalajul de protecție până când unitatea nu se află în poziția finală. Mutați răcitorul folosind tuburi sau role sau ridicați-l, folosind chingi cu capacitatea corectă.
(30HXC)
Utilizați chingi doar în punctele de ridicare desemnate, care sunt marcate pe unitate, pe partea superioară a schimbătorului de căldură al răcitorului. Fixarea de partea inferioară a schimbătorului de căldură va face ca unitatea să fie ridicată în mod nesigur. Pot apărea vătămări corporale sau deteriorarea unității. Urmați instrucțiunile de fixare indicate pe desenul dimensional certificat furnizat împreună cu unitatea.
Amplasarea
Consultați întotdeauna capitolul "Dimensiuni și spații libere" pentru a confirma că există spațiu adecvat pentru toate conexiunile și operațiunile de service. Pentru coordonatele centrului de greutate, poziția găurilor de montare a unității și punctele de distribuție a greutății, consultați desenul dimensional certificat furnizat împreună cu unitatea.
Vă recomandăm ca aceste răcitoare să fie instalate fie într-un subsol, fie la nivelul solului. Dacă urmează să fie instalat unul deasupra nivelului solului, verificați mai întâi dacă încărcarea admisibilă a podelei este adecvată și dacă podeaua este suficient de rezistentă și plană. Dacă este necesar, consolidați și nivelați podeaua.
Cu răcitorul în locația sa finală, îndepărtați patinele și alte dispozitive utilizate pentru a ajuta la mutarea acestuia. Nivelați unitatea folosind un nivel cu bulă de aer și fixați unitatea cu șuruburi pe podea sau pe soclu. Funcționarea acestor unități poate fi afectată dacă nu sunt nivelate și nu sunt fixate în siguranță pe suporturile lor. Dacă este necesar, utilizați plăcuțe de izolare sub unitate pentru a ajuta la izolarea vibrațiilor.
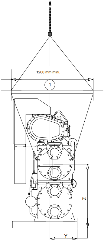
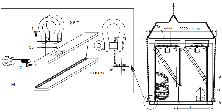
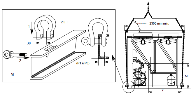
INSTRUCȚIUNI DE RIDICARE
30HXC 080-190
Această diagramă este prezentată doar cu titlu informativ. Consultați "desenele certificate".

- CU EXCEPȚIA 30HXC 190
X mm Y mm Z mm 30HXC080
30HXC090
30HXC1001345 402 903 30HXC110 1368 397 935 30HXC120
30HXC130
30HXC140
30HXC1551731 392 879 30HXC175 1703 386 947 30HXC190 1705 398 955


NOTĂ
Când toate operațiunile de ridicare și poziționare sunt terminate, se recomandă retușarea tuturor suprafețelor de pe urechile de ridicare de unde a fost îndepărtată vopseaua.
30HXC 200-285
Această diagramă este prezentată doar cu titlu informativ. Consultați "desenele certificate".


30HXC 310-375


| X mm | Y mm | Z mm | |
| 30HXC310 | 2195 | 425 | 1085 |
| 30HXC345 | 2195 | 425 | 1085 |
| 30HXC375 | 2205 | 435 | 1025 |
NOTĂ
Când toate operațiunile de ridicare și poziționare sunt terminate, se recomandă retușarea tuturor suprafețelor de pe urechile de ridicare de unde a fost îndepărtată vopseaua.
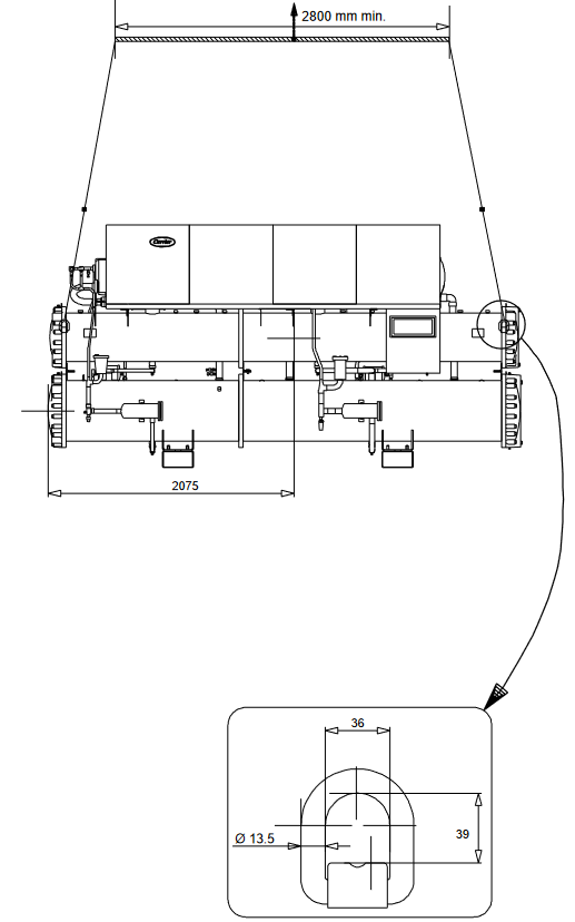
30GX 082-162
Această diagramă este prezentată doar cu titlu informativ. Consultați "desenele certificate".



| X mm | Y mm | Z mm | PTkg | |
| 30GX082 | 1440 | 1460 | 900 | 3115 |
| 30GX092 | 1440 | 1460 | 900 | 3156 |
| 30GX102 | 1440 | 1460 | 900 | 3170 |
| 30GX112 | 1650 | 1460 | 900 | 3574 |
| 30GX122 | 1650 | 1460 | 900 | 3527 |
| 30GX132 | 1650 | 1460 | 900 | 3634 |
| 30GX152 | 2155 | 1430 | 900 | 3938 |
| 30GX162 | 2155 | 1430 | 900 | 3954 |
30GX 182



| X mm | Y mm | Z mm | PTkg | |
| 30GX182 | 3030 | 1370 | 875 | 4853 |
NOTĂ
Când toate operațiunile de ridicare și poziționare sunt terminate, se recomandă retușarea tuturor suprafețelor de pe urechea de ridicare de unde a fost îndepărtată vopseaua
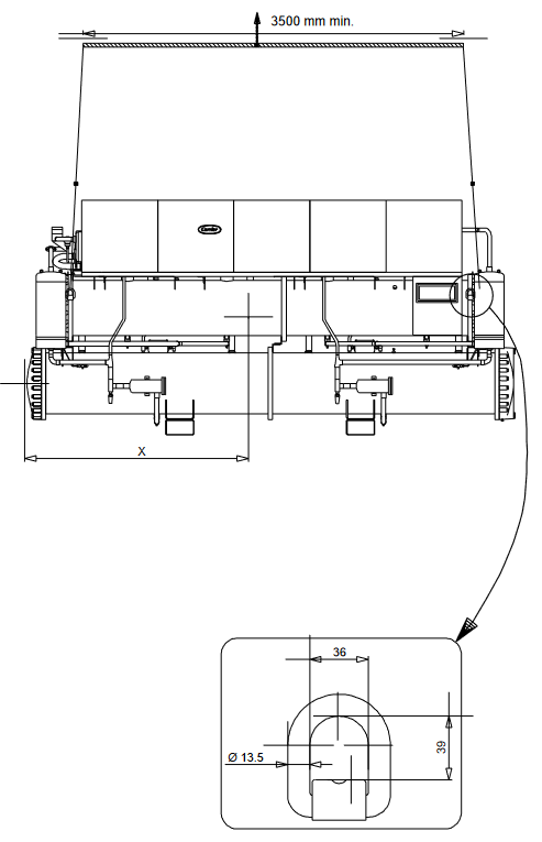
30GX 207-267
Această diagramă este prezentată doar cu titlu informativ. Consultați "desenele certificate".



| X mm | Y mm | Z mm | PTkg | |
| 30GX207 | 2870 | 1440 | 890 | 5536 |
| 30GX227 | 2870 | 1440 | 890 | 5572 |
| 30GX247 | 3320 | 1430 | 927 | 6131 |
| 30GX267 | 3300 | 1420 | 886 | 6363 |
30GX 298-358



| X mm | Y mm | Z mm | PTkg | |
| 30GX298 | 3630 | 1420 | 890 | 7353 |
| 30GX328 | 4360 | 1455 | 920 | 7840 |
| 30GX358 | 4360 | 1445 | 930 | 8045 |
NOTĂ
Când toate operațiunile de ridicare și poziționare sunt terminate, se recomandă retușarea tuturor suprafețelor de pe urechile de ridicare de unde a fost îndepărtată vopseaua.
Conexiuni de conducte
Consultați desenele dimensionale certificate pentru dimensiunile și pozițiile tuturor conexiunilor de intrare și ieșire a apei. Conductele de apă nu trebuie să transmită nicio forță radială sau axială către schimbătoarele de căldură sau vreo vibrație către conducte sau clădire.
Alimentarea cu apă trebuie analizată, iar dispozitivele adecvate de filtrare, tratare, control, supape și circuite de izolare și purjare trebuie construite, după cum este necesar. Consultați fie un specialist în tratarea apei, fie literatura de specialitate adecvată pe această temă.
Precauții de operare
Circuitul de apă trebuie proiectat astfel încât să aibă cel mai mic număr de coturi și conducte orizontale la diferite niveluri. Următoarele verificări de bază trebuie efectuate (consultați și ilustrația unui circuit hidraulic tipic de mai jos).
- Rețineți intrările și ieșirile de apă ale schimbătoarelor de căldură.
- Instalați supape manuale sau automate de purjare a aerului în toate punctele înalte din circuitul de apă.
- Utilizați o cameră de expansiune sau o supapă de expansiune/refulare pentru a menține presiunea în sistem.
- Instalați termometre de apă și manometre atât în conexiunile de intrare, cât și în cele de ieșire a apei, aproape de evaporator.
- Instalați supape de golire în toate punctele joase pentru a permite golirea întregului circuit. Conectați o supapă de oprire în linia de golire înainte de a pune în funcțiune răcitorul.
- Instalați supape de oprire și manometre, aproape de evaporator, în liniile de intrare și ieșire a apei.
- Instalați un presostat de debit al răcitorului.
- Utilizați conexiuni flexibile pentru a reduce transmiterea vibrațiilor către conducte.
- Izolați toate conductele, după testarea pentru scurgeri, atât pentru a reduce scurgerile termice, cât și pentru a preveni condensarea.
- Acoperiți izolația cu o barieră de vapori.
Conexiuni ale evaporatorului și condensatorului
Evaporatorul și condensatorul sunt de tipul multitubular cu manta și tuburi, cu cutii de apă detașabile pentru a facilita curățarea tuburilor.
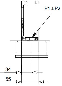
Înainte de a face conexiunile de apă, strângeți șuruburile din ambele capete la cuplul inferior indicat, urmând metoda descrisă. Strângeți în perechi și în secvența indicată în funcție de dimensiunea șurubului (consultați tabelul) folosind o valoare a cuplului la capătul inferior al intervalului dat.
Îndepărtați flanșa plată furnizată din fabrică din cutia de apă înainte de a suda conductele la flanșă. Nerespectarea îndepărtării flanșei poate deteriora senzorii și izolația.
NOTĂ
Vă recomandăm să goliți sistemul și să deconectați conductele pentru a vă asigura că șuruburile capetelor la care sunt conectate conductele sunt strânse corect și uniform.
Protecție la îngheț
Protecția evaporatorului și a condensatorului răcit cu apă
Dacă răcitorul sau conductele de apă se află într-o zonă în care temperatura ambiantă poate scădea sub 0°C, se recomandă adăugarea unei soluții antigel pentru a proteja unitatea și conductele de apă până la o temperatură de 8 K sub cea mai scăzută temperatură. Utilizați numai soluții antigel, aprobate pentru sarcina schimbătorului de căldură. Dacă sistemul nu este protejat de o soluție antigel și nu va fi utilizat în timpul condițiilor meteorologice de îngheț, golirea răcitorului și a conductelor exterioare este obligatorie. Deteriorările cauzate de îngheț nu sunt acoperite de garanție.
Secvența de strângere a cutiei de apă

Legendă
- Secvența 1: 1 2 3 4
Secvența 2: 5 6 7 8
Secvența 3: 9 10 11 12 - Cuplu de strângere
Dimensiunea șurubului M16 - 171 - 210 Nm
Diagrama tipică a circuitului hidraulic

Legendă
- Supapă de control
- Aerisitor
- Presostat de debit
- Conexiune flexibilă
- Schimbător de căldură
- Robinet de presiune
- Manșon termostat
- Scurgere
- Rezervor tampon
- Filtru
- Vas de expansiune
- Supapă de umplere
CARACTERISTICI ELECTRICE
- 30HXC 080-190 și 30GX 082-182 au doar un singur întrerupător de alimentare/izolare.
- 30HXC 200-375 și 30GX 207-358 au două întrerupătoare de alimentare/izolare.
- Cutia de control include în mod standard următoarele:
- Demaroare și dispozitive de protecție a motorului pentru fiecare compresor și ventilatoare
- Componente de control
- Conexiuni la fața locului:
Toate conexiunile la rețea și instalația electrică trebuie efectuate în conformitate cu directivele aplicabile la fața locului. - 30HXC și 30GX sunt proiectate pentru a facilita respectarea acestor directive. Proiectarea echipamentelor electrice pentru 30HXC și 30GX ține cont de standardul european EN 60204-1 (siguranța mașinilor - echipamente electrice ale mașinilor - Partea 1: reguli generale).
Standardul EN 60204-1 este un mijloc bun de a răspunde cerințelor Directivei Mașini § 1.5.1. Recomandarea normativă IEC 364 este în general recunoscută ca îndeplinind cerințele regulamentului de instalare.
Anexa B a standardului EN 60204-1 poate fi utilizată pentru a descrie caracteristicile electrice în care funcționează mașinile.
30HXC
- Condițiile de funcționare pentru un 30HXC standard sunt descrise mai jos:
- Condiții de mediu(1). Clasificarea mediului este descrisă în standardul IEC 364 § 3:
- Interval de temperatură ambientală: + 6°C până la + 40°C, clasificarea AA4
- Interval de umiditate (fără condensare)
50% rh la 40°C
90% rh la 20°C - Altitudine - 2000 m(1)
- Pentru instalare în interior
- Prezența apei: clasificarea AD2(1) (posibilitatea de picături de apă)
- Prezența solidelor: clasificarea AE2(1) (prezența de particule nesemnificative)
- Prezența substanțelor corozive și contaminanți, clasificarea AF1 (neglijabil)
- Vibrații, șocuri: clasificarea AG2, AH2 Competența personalului: clasificarea BA4(1) (personal calificat în conformitate cu IEC 364).
- Condiții de mediu(1). Clasificarea mediului este descrisă în standardul IEC 364 § 3:
(1) Standardul de protecție necesar în ceea ce privește această clasificare este IP21B (în conformitate cu documentul de referință IEC 529). Toate 30HXC au un standard de protecție de IP23C și, prin urmare, îndeplinesc această cerință de protecție.
30GX
- Condițiile de funcționare pentru 30GX sunt descrise mai jos:
- Condiții de mediu(2). Clasificarea mediului este descrisă în standardul EN 60721:
- Pentru instalare în exterior(2)
- Interval de temperatură ambientală: - 18°C până la + 46°C, clasificarea 4K3(2)
- Altitudine 2000 m(2)
- Prezența solidelor: clasificarea 4S2 (prezența de particule nesemnificative)
- Prezența substanțelor corozive și contaminanți, clasificarea 4C2 (neglijabil)
- Vibrații, șocuri: clasificarea 4M2
- Condiții de mediu(2). Clasificarea mediului este descrisă în standardul EN 60721:
Competența personalului: clasificarea BA4(2) (personal calificat în conformitate cu IEC 364).
(2) Standardul de protecție necesar în ceea ce privește această clasificare este IP43BW (în conformitate cu documentul de referință IEC 529). Toate 30GX au un standard de protecție de IP45CW și, prin urmare, îndeplinesc această cerință de protecție.
30HXC/GX
- Fluctuația frecvenței sursei de alimentare: ± 2 Hz
- Protecția la supracurent pentru conductorii sursei de alimentare nu este furnizată cu dispozitivul.
- Întrerupătorul de deconectare/izolare montat din fabrică este un izolator de tip "a". (EN60204-1 § 5.3.2).
NOTĂ: Dacă anumite aspecte ale unei instalații necesită caracteristici altele decât cele enumerate mai sus (sau caracteristici care nu sunt menționate aici), contactați reprezentantul dumneavoastră Carrier.
Sursa de alimentare
Sursa de alimentare trebuie să fie conformă cu specificațiile de pe plăcuța de identificare a chillerului. Tensiunea de alimentare trebuie să se încadreze în intervalul specificat în tabelul cu date electrice.
Pentru conexiuni, consultați schemele de cablare.
Funcționarea chillerului cu o tensiune de alimentare necorespunzătoare sau un dezechilibru excesiv de fază constituie un abuz care va anula garanția Carrier. Dacă dezechilibrul de fază depășește 2% pentru tensiune sau 10% pentru curent, contactați imediat furnizorul local de energie electrică și asigurați-vă că chillerul nu este pornit până când nu sunt luate măsuri corective.
Dezechilibrul de fază al tensiunii (%):
100 x abaterea maximă de la tensiunea medie
Tensiune medie
Exemplu:
Pe o alimentare de 400 V - 3 ph - 50 Hz, tensiunile individuale de fază au fost măsurate ca fiind:
AB = 406 V; BC = 399; AC = 394 V
| Tensiune medie | = (406 + 399 + 394)/3 = 1199/3 |
| = 399.7 să zicem 400 V |
Calculați abaterea maximă de la media de 400 V:
(AB) = 406 - 400 = 6
(BC) = 400 - 399 = 1
(CA) = 400 - 394 = 6

Abaterea maximă de la medie este de 6 V. Cea mai mare abatere procentuală este:
100 x 6/400 = 1.5 %
Aceasta este mai mică decât limita admisă de 2% și, prin urmare, este acceptabilă.
SECȚIUNI DE CABLURI RECOMANDATE
Dimensionarea cablurilor este responsabilitatea instalatorului și depinde de caracteristicile și reglementările aplicabile fiecărui loc de instalare. Următoarele trebuie utilizate doar ca ghid și nu fac Carrier răspunzător în niciun fel. După ce dimensionarea cablurilor a fost finalizată, folosind desenul dimensional certificat, instalatorul trebuie să asigure o conectare ușoară și să definească orice modificări necesare la fața locului.
Conexiunile furnizate standard pentru cablurile de alimentare furnizate pe teren la întrerupătorul/izolatorul general de deconectare sunt proiectate pentru numărul și tipul de cabluri, enumerate în tabelul de mai jos.
Calculele se bazează pe curentul maxim al mașinii (consultați tabelele cu date electrice).
Pentru proiectare, se utilizează următoarele metode de instalare standardizate, în conformitate cu IEC 364, tabelul 52C:
- Pentru unitățile 30HX instalate în interiorul clădirii: Nr. 13: conductă de cablu orizontală perforată și Nr. 41: conductă închisă.
- Pentru unitățile 30GX instalate în exteriorul clădirii: Nr. 17: linii aeriene suspendate și Nr. 61: conductă îngropată cu un coeficient de declasare de 20.
Calculul se bazează pe cabluri izolate cu PVC sau XLPE cu miez de cupru sau aluminiu. Temperatura maximă este de 40°C pentru unitățile 30HX și 46°C pentru unitățile 30GX.
Lungimea dată a firului limitează căderea de tensiune la < 5%.
| Unit (Unitate) | Min. (mm2) by phase (minim (mm2) pe fază) | Wire type (Tipul firului) | L (m) | Max. (mm2) by phase (maxim (mm2) pe fază) | Wire type (Tipul firului) | L (m) |
| 30HX 080 | 1 x 35 | XLPE Cu | 140 | 1 x 120 | PVC Al | 260 |
| 30HX 090 | 1 x 50 | XLPE Cu | 160 | 1 x 120 | PVC Al | 260 |
| 30HX 100 | 1 x 50 | XLPE Cu | 160 | 1 x 95 | XLPE Al | 195 |
| 30HX 110 | 1 x 70 | XLPE Cu | 170 | 1 x 120 | XLPE Al | 205 |
| 30HX 120/130 | 1 x 70 | XLPE Cu | 170 | 1 x 150 | XLPE Al | 210 |
| 30HX 140 | 1 x 95 | XLPE Cu | 180 | 1 x 185 | XLPE Al | 220 |
| 30HX 155 | 1 x 95 | XLPE Cu | 180 | 1 x 240 | XLPE Al | 225 |
| 30HX 175 | 1 x 120 | XLPE Cu | 185 | 1 x 240 | XLPE Al | 225 |
| 30HX 190 | 1 x150 | XLPE Cu | 190 | 2 x 95 | XLPE Al | 195 |
| 30HX 200 ckt A | 1 x 70 | XLPE Cu | 170 | 2 x120 | PVC Al | 325 |
| 30HX 230 ckt A | 1 x 95 | XLPE Cu | 180 | 2 x 120 | PVC Al | 325 |
| 30HX 260 ckt A | 1 x 120 | XLPE Cu | 185 | 1 x 240 | XLPE Al | 225 |
| 30HX 285 ckt A | 1 x 150 | XLPE Cu | 190 | 2 x 150 | XLPE Al | 265 |
| 30HX 200 ckt B | 1 x 35 | XLPE Cu | 140 | 1 x 95 | PVC Al | 250 |
| 30HX 230 ckt B | 1 x 35 | XLPE Cu | 140 | 1 x 120 | PVC Al | 260 |
| 30HX 260 ckt B | 1 x 35 | XLPE Cu | 140 | 1 x 120 | PVC Al | 260 |
| 30HX 285 ckt B | 1 x 50 | XLPE Cu | 160 | 2 x 70 | PVC Al | 285 |
| 30HX 310 ckt A & B | 1 x 95 | XLPE Cu | 180 | 1 x 240 | XLPE Al | 225 |
| 30HX 345 ckt A & B | 1 x 120 | XLPE Cu | 185 | 1 x 240 | XLPE Al | 225 |
| 30HX 375 ckt A & B | 1 x 150 | XLPE Cu | 190 | 2 x 150 | XLPE Al | 265 |
| 30GX 082 | 1 x 95 | XLPE Cu | 190 | 2 x 185 | PVC Al | 420 |
| 30GX 092 | 1 x 120 | XLPE Cu | 195 | 2 x 185 | PVC Al | 420 |
| 30GX 102 | 1 x 120 | XLPE Cu | 195 | 2 x 240 | PVC Al | 450 |
| 30GX 112 | 1 x 150 | XLPE Cu | 200 | 2 x 150 | XLPE Al | 300 |
| 30GX 122 | 1 x 185 | XLPE Cu | 205 | 2 x 185 | XLPE Al | 315 |
| 30GX 132 | 1 x 185 | XLPE Cu | 205 | 2 x 240 | XLPE Al | 330 |
| 30GX 152 | 1 x 240 | XLPE Cu | 205 | 3x 185 | XLPE CU | 430 |
| 30GX 162 | 2 x 95 | XLPE Cu | 190 | 3x 240 | XLPE CU | 440 |
| 30GX 182 | 2 x 120 | XLPE Cu | 200 | 3x 240 | XLPE CU | 440 |
| 30GX 207 ckt A | 1 x 185 | XLPE Cu | 205 | 3x 185 | XLPE Al | 445 |
| 30GX 227 ckt A | 1 x 240 | XLPE Cu | 205 | 3x 240 | XLPE Al | 470 |
| 30GX 247/298/328 ckt A | 2 x 120 | XLPE Cu | 225 | 3x 185 | XLPE CU | 490 |
| 30HX 267/358 ckt A | 2 x 150 | XLPE Cu | 230 | 3x 240 | XLPE CU | 505 |
| 30GX 207/227/247 ckt B | 1 x 95 | XLPE Cu | 190 | 2 x 240 | PVC Al | 560 |
| 30HX 267 ckt B | 1 x 120 | XLPE Cu | 200 | 2 x 185 | XLPE AL | 395 |
| 30GX 298 ckt B | 1 x 185 | XLPE Cu | 205 | 3x 240 | XLPE AL | 470 |
| 30GX 328 ckt B | 2 x 120 | XLPE Cu | 225 | 3x 185 | XLPE CU | 490 |
| 30GX 358 ckt B | 2 x 150 | XLPE Cu | 230 | 3x 240 | XLPE CU | 505 |
Înainte de conectarea cablurilor de alimentare principale (L1 - L2 - L3) la blocul terminal, este imperativ să verificați ordinea corectă a celor 3 faze înainte de a continua cu conectarea la blocul terminal sau la întrerupătorul/izolatorul principal.
Cablarea de control pe teren
Consultați Controls IOM și schema electrică certificată furnizată împreună cu unitatea pentru cablarea de control pe teren a următoarelor caracteristici:
- Interblocare pompă evaporator (obligatorie)
- Comutator de pornire/oprire de la distanță
- Comutator de flux al condensatorului (furnizat pe teren, numai 30HXC)
- Comutator de încălzire/răcire de la distanță
- Comutator extern de limită de cerere 1
- Punct de referință dual de la distanță
- Raport de alarmă pe circuit
- Controlul pompei evaporatorului
- Controlul pompei condensatorului (numai 30HXC)
- Resetare punct de referință de la distanță sau resetare senzor de temperatură a aerului exterior (0-10 V)
Secțiuni de cablu recomandate pentru unități cu temperaturi ridicate de condensare (400 V - 3 ph - 50 Hz)
| Unitate, opțiuni 150 + 150A 400 V - 3 ph - 50 Hz | Min. (mm2) pe fază | Tip cablu | L (m) | Max. (mm2) pe fază | Tip cablu | L (m) |
| 30HXC 080 OPT. 150 | 1 x 50 | XLPE Cu | 150 | 2 x 70 | PVC Al | 230 |
| 30HXC 090 OPT. 150 | 1 x 70 | XLPE Cu | 160 | 2 x 95 | PVC Al | 260 |
| 30HXC 100 OPT. 150 | 1 x 70 | XLPE Cu | 160 | 2 x 95 | PVC Al | 250 |
| 30HXC 110 OPT. 150 | 1 x 95 | XLPE Cu | 170 | 2 x 120 | PVC Al | 265 |
| 30HXC 120 OPT. 150 | 1 x 120 | XLPE Cu | 180 | 2 x 120 | XLPE Al | 205 |
| 30HXC 130 OPT. 150 | 1 x 120 | XLPE Cu | 160 | 2 x 120 | XLPE Al | 210 |
| 30HXC 140 OPT. 150 | 1 x 150 | XLPE Cu | 175 | 2 x 120 | XLPE Al | 205 |
| 30HXC 155 OPT. 150 | 1 x 185 | XLPE Cu | 185 | 2 x 150 | XLPE Al | 215 |
| 30HXC 175 OPT. 150 | 1 x 240 | XLPE Cu | 185 | 2 x 150 | XLPE Al | 210 |
| 30HXC 190 OPT. 150 | 2 x 95 | XLPE Cu | 175 | 2 x 240 | XLPE Al | 220 |
| 30HXC 200 OPT. 150 circ. A | 1 x 120 | XLPE Cu | 170 | 2 x 150 | XLPE Al | 270 |
| 30HXC 230 OPT. 150 circ. A | 1 x 150 | XLPE Cu | 180 | 2 x 185 | XLPE Al | 270 |
| 30HXC 260 OPT. 150 circ. A | 1 x 185 | XLPE Cu | 180 | 2 x 240 | XLPE Al | 295 |
| 30HXC 285 OPT. 150 circ. A | 1 x 240 | XLPE Cu | 170 | 2 x 185 | XLPE Cu | 265 |
| 30HXC 310 OPT. 150 circ. A | 1 x 185 | XLPE Cu | 180 | 2 x 240 | XLPE Al | 300 |
| 30HXC 345 OPT. 150 circ. A | 1 x 185 | XLPE Cu | 170 | 2 x 240 | XLPE Al | 280 |
| 30HXC 375 OPT. 150 circ. A | 1 x 240 | XLPE Cu | 170 | 2 x 185 | XLPE Cu | 265 |
| 30HXC 200 OPT. 150 circ. B | 1 x 35 | XLPE Cu | 125 | 2 x 95 | PVC Al | 320 |
| 30HXC 230 OPT. 150 circ. B | 1 x 50 | XLPE Cu | 140 | 2 x 95 | PVC Al | 310 |
| 30HXC 260 OPT. 150 circ. B | 1 x 50 | XLPE Cu | 140 | 2 x 95 | PVC Al | 310 |
| 30HXC 285 OPT. 150 circ. B | 1 x 70 | XLPE Cu | 160 | 2 x 120 | PVC Al | 325 |
| 30HXC 310 OPT. 150 circ. B | 1 x 150 | XLPE Cu | 180 | 2 x 185 | XLPE Al | 275 |
| 30HXC 345 OPT. 150 circ. B | 1 x 185 | XLPE Cu | 185 | 2 x 240 | XLPE Al | 305 |
| 30HXC 375 OPT. 150 circ. B | 1 x 185 | XLPE Cu | 160 | 2 x 240 | XLPE Al | 280 |
COMPONENTELE PRINCIPALE ALE SISTEMULUI ȘI DATE DE FUNCȚIONARE
Compresor cu șurub dublu angrenat
- Unitățile 30HXC și 30GX utilizează compresoare cu șurub dublu angrenate 06N
- 06NA sunt utilizate pe 30GX (aplicație de condensare răcită cu aer)
- 06NW sunt utilizate pe 30HXC (aplicație de condensare răcită cu apă)
- Capacitățile nominale variază de la 39 la 80 de tone. Modelele economice sau neeconomice sunt utilizate în funcție de dimensiunea unității 30HXC și 30GX.
Filtru de ulei
Compresorul cu șurub 06N are un filtru de ulei integrat în carcasa compresorului. Acest filtru poate fi înlocuit pe teren.
Agent frigorific
Compresorul cu șurub 06N este special conceput pentru a fi utilizat numai în sistemul R134 a.
Lubrifiant
Compresorul cu șurub 06N este aprobat pentru utilizare cu următorul lubrifiant.
CARRIER MATERIAL SPEC PP 47-32
Electrovalvă de alimentare cu ulei
O electrovalvă de alimentare cu ulei este standard pe compresor pentru a izola compresorul de fluxul de ulei atunci când compresorul nu funcționează.
Electrovalva de ulei poate fi înlocuită pe teren.
Filtre de aspirație și economizor
Pentru a crește fiabilitatea compresorului, un filtru a fost încorporat ca o caracteristică standard în orificiile de aspirație și economizor ale compresorului.
Sistem de descărcare
Compresorul cu șurub 06N are un sistem de descărcare care este standard pe toate compresoarele. Acest sistem de descărcare constă din doi pași de descărcare care scad capacitatea compresorului prin redirecționarea gazului parțial comprimat înapoi la aspirație.
Evaporator
Răcitoarele 30HXC și 30GX utilizează un evaporator inundat. Apa circulă în tuburi, iar agentul frigorific se află în exterior, în carcasă. Un singur vas este utilizat pentru a servi ambele circuite frigorifice. Există o placă tubulară centrală care separă cele două circuite frigorifice. Tuburile sunt din cupru de 3/4" diametru cu o suprafață îmbunătățită în interior și în exterior. Există un singur circuit de apă și, în funcție de dimensiunea răcitorului, pot exista două sau trei treceri de apă. Un senzor de nivel al lichidului mai rece asigură un control optimizat al debitului.
În partea de sus a răcitorului se află cele două conducte de aspirație, câte una în fiecare circuit. Fiecare are o flanșă sudată pe ea, iar compresorul se montează pe flanșă.
Condensator și separator de ulei (30HXC)
Răcitoarele 30HXC utilizează un vas care este o combinație de condensator și separator de ulei. Acesta este montat sub răcitor. Gazul de refulare părăsește compresorul și curge printr-un amortizor extern către separatorul de ulei, care este partea superioară a vasului. Intră în partea de sus a separatorului unde uleiul este îndepărtat, apoi curge către partea inferioară a vasului, unde gazul este condensat și subrăcit. Un singur vas este utilizat pentru a servi ambele circuite frigorifice. Există o placă tubulară centrală care separă cele două circuite frigorifice. Tuburile sunt din cupru de 3/4" sau 1" diametru cu suprafață îmbunătățită în interior și în exterior. Există un singur circuit de apă cu două treceri de apă.
Separator de ulei (30GX)
În unitățile răcite cu aer, separatorul de ulei este un vas sub presiune care este montat sub bobinele condensatorului vertical exterior. Gazul de refulare intră în partea de sus a separatorului unde o mare parte din ulei se separă și se scurge în partea de jos. Apoi, gazul curge printr-un filtru de plasă de sârmă unde uleiul rămas este separat și se scurge în partea de jos.
Dispozitiv electronic de expansiune (EXD)
Microprocesorul controlează EXD prin modulul de control EXV. EXD va fi fie un EXV, fie un Economizor. În interiorul ambelor dispozitive se află un motor pas cu pas cu actuator liniar. Agentul frigorific lichid de înaltă presiune intră în supapă prin partea de jos. O serie de fante calibrate sunt situate în interiorul ansamblului orificiului. Pe măsură ce agentul frigorific trece prin orificiu, presiunea scade și agentul frigorific se transformă într-o stare bifazică (lichid și vapori). Pentru a controla fluxul de agent frigorific pentru diferite condiții de funcționare, manșonul se mișcă în sus și în jos peste orificiu, modificând astfel aria efectivă de curgere a dispozitivului de expansiune. Manșonul este deplasat de un motor pas cu pas liniar. Motorul pas cu pas se mișcă în trepte și este controlat direct de modulul procesor. Pe măsură ce motorul pas cu pas se rotește, mișcarea este transferată în mișcare liniară de șurubul principal. Prin intermediul motorului pas cu pas și al șuruburilor principale, se obțin 1500 de trepte discrete de mișcare. Numărul mare de trepte și cursa lungă au ca rezultat un control foarte precis al fluxului de agent frigorific. Fiecare circuit are un senzor de nivel al lichidului montat vertical în partea de sus a carcasei răcitorului. Senzorul de nivel constă dintr-un mic încălzitor electric de rezistență și trei termistori conectați în serie, poziționați la diferite înălțimi în interiorul corpului puțului. Încălzitorul este proiectat astfel încât termistorii să citească aproximativ 93,3°C în aer uscat. Pe măsură ce nivelul agentului frigorific crește în răcitor, rezistența celui mai apropiat (apropiați) termistor(i) se va modifica foarte mult. Această diferență mare de rezistență permite controlului să mențină cu precizie un nivel specificat. Senzorul de nivel monitorizează nivelul lichidului agent frigorific din răcitor și trimite aceste informații către PSIO-1. La pornirea inițială, poziția EXV este la zero. După aceea, microprocesorul urmărește cu precizie poziția supapei pentru a utiliza aceste informații ca intrare pentru celelalte funcții de control. Face acest lucru prin inițializarea EXV-urilor la pornire. Procesorul trimite suficiente impulsuri de închidere către supapă pentru a o muta de la complet deschis la complet închis, apoi resetează contorul de poziție la zero. Din acest punct, până la inițializare, procesorul numără numărul total de pași deschiși și închiși pe care i-a trimis fiecărei supape.
Economizor
Economizoarele sunt instalate pe 30HXC 190, 285 și 375 și 30GX 182, 267 și 358.
Economizorul îmbunătățește atât capacitatea, cât și eficiența răcitorului, precum și asigură răcirea motorului compresorului. În interiorul economizorului se află atât un motor pas cu pas liniar EXV, cât și o supapă cu flotor. EXV este controlat de PIC pentru a menține nivelul dorit de lichid în răcitor (așa cum se face pentru răcitoarele NonEconomizate). Supapa cu flotor menține un nivel de lichid în partea de jos a economizorului. Agentul frigorific lichid este furnizat de la condensator la partea de jos a economizorului. Pe măsură ce agentul frigorific trece prin EXV, presiunea sa este redusă la un nivel intermediar de aproximativ 500 kPa. Această presiune este menținută în interiorul carcasei economizorului. Apoi, agentul frigorific curge prin supapa cu flotor, presiunea sa este redusă în continuare la puțin peste presiunea din răcitor. Creșterea performanței este realizată atunci când o parte din agentul frigorific care trece prin EXV se transformă în vapori, subrăcind și mai mult lichidul care este menținut în partea de jos a economizorului. Această creștere a subrăcirii oferă o capacitate suplimentară. Deoarece nu este necesară nicio putere suplimentară pentru a realiza acest lucru, eficiența mașinii se îmbunătățește, de asemenea. Vaporii care se transformă în vapori vor urca în economizor unde trec la compresor și sunt utilizați după cum este necesar pentru a asigura răcirea motorului. După ce trece peste înfășurările motorului, agentul frigorific reintră în ciclu printr-un port intermediar în ciclul de compresie.
Pompe de ulei
Răcitoarele cu șurub 30GX/HXC utilizează o pompă de ulei de pre-ungere montată extern per circuit. Această pompă este acționată ca parte a secvenței de pornire.
ATENȚIE:
Temperatura de funcționare a bobinei poate atinge 80°C. În anumite condiții temporare (în special în timpul pornirii la temperaturi exterioare scăzute sau la temperaturi scăzute ale buclei condensatorului), pompa de ulei poate fi reactivată.
Pe unitățile 30GX, pompele sunt montate pe șinele de bază pe partea separatorului de ulei a unității. Pompele sunt montate pe un suport pe condensatoarele unităților 30HXC. Când un circuit trebuie să pornească, comenzile vor energiza mai întâi pompa de ulei, astfel încât compresorul să pornească cu o lubrifiere corectă. Dacă pompa a acumulat o presiune suficientă a uleiului, compresorului i se va permite să pornească. Odată ce compresorul a pornit, pompa de ulei va fi oprită. Dacă pompa nu a putut acumula suficientă presiune a uleiului, controlul va genera o alarmă.
Supape de răcire a motorului
Temperaturile înfășurărilor motorului compresorului sunt controlate la punctul de referință optim. Controlul realizează acest lucru prin ciclarea electrovalvei de răcire a motorului pentru a permite agentului frigorific lichid să curgă peste înfășurările motorului, după cum este necesar. Pe unitățile echipate cu economizoare, gazul flash părăsește partea de sus a economizorului și curge continuu către înfășurările motorului. Tot agentul frigorific utilizat pentru răcirea motorului reintră în rotoare printr-un port situat la jumătatea ciclului de compresie și este comprimat la presiunea de refulare.
Senzori
Unitățile utilizează termistori (inclusiv doi termistori de temperatură a motorului) și doi termistori de nivel și traductoare de presiune pentru a monitoriza și controla funcționarea sistemului.
Termistori
Fluid de ieșire din evaporator
Această temperatură este utilizată pentru a măsura temperatura fluidului de ieșire din evaporator (apă sau saramură). Temperatura este utilizată pentru controlul temperaturii fluidului de ieșire și pentru a proteja împotriva înghețării răcitorului. Este situat în duza fluidului evaporatorului.
Fluid de intrare în evaporator
Acest senzor este utilizat pentru a măsura temperatura fluidului de intrare în evaporator. Este situat în duza de intrare a evaporatorului. Este utilizat pentru a oferi compensare automată a temperaturii pentru controlul temperaturii fluidului de ieșire cu compensare a fluidului de intrare.
Temperatura gazului de refulare (circuitele A și B)
Acest senzor este utilizat pentru a măsura temperatura gazului de refulare și pentru a controla supraîncălzirea temperaturii de refulare. Este situat pe conducta de refulare a fiecărui circuit (30HXC) sau pe partea de sus a separatorului de ulei (30GX).
ATENȚIE: Nu există manșon de termostat.
Temperatura motorului
Modulul de protecție a compresorului (CPM) monitorizează temperatura motorului. Terminalele termistorului sunt situate în cutia de joncțiune a compresorului.
Nivelul lichidului din evaporator (circuitele A și B)
Termistorul de nivel al lichidului din evaporator este utilizat pentru a asigura un control optimizat al debitului în evaporator. Este instalat în partea de sus a evaporatorului.
Fluid de intrare în condensator (30HXC)
Acest senzor este utilizat pentru a măsura temperatura fluidului care intră în condensatoarele răcite cu apă. Este situat în conducta comună de fluid care intră în condensatoare (instalată pe teren). Pe mașinile de căldură este utilizat de rutina de control al capacității. Pe condensatoarele răcite cu apă este utilizat doar pentru monitorizarea temperaturii fluidului condensatorului.
Fluid de ieșire din condensator (opțional pe 30HXC)
Acest senzor este utilizat pentru a măsura temperatura fluidului care iese din condensatoarele răcite cu apă. Este situat în conducta comună de fluid care iese din condensatoare (instalată pe teren). Pe mașinile de căldură este utilizat de rutina de control al capacității. Pe condensatoarele răcite cu apă este utilizat doar pentru monitorizarea temperaturii fluidului condensatorului.
Aranjamentul ventilatorului 30GX

GX082/102

GX112/132

GX152/162

GX182

GX207/227

GX247/267

GX298

GX328/358
ÎNTREȚINERE
Încărcare cu agent frigorific - adăugare de încărcătură
Aceste unități sunt proiectate pentru a fi utilizate numai cu R-134a.
NU UTILIZAȚI NICIUN ALT agent frigorific în aceste unități.
Când adăugați sau scoateți încărcătură, circulați apă prin condensator (HX) și răcitor în orice moment pentru a preveni înghețarea. Deteriorarea prin îngheț este considerată abuz și poate anula garanția Carrier.
NU SUPRAÎNCĂRCAȚI sistemul. Supraîncărcarea duce la o presiune de descărcare mai mare, cu un consum mai mare de lichid de răcire, posibile deteriorări ale compresorului și un consum mai mare de energie.
Indicație de încărcare scăzută pe un sistem 30HXC
NOTĂ
Pentru a verifica dacă există o încărcare scăzută cu agent frigorific pe un 30HXC, trebuie luați în considerare mai mulți factori. Un indicator de nivel al lichidului intermitent nu este neapărat o indicație a unei încărcături inadecvate. Există multe condiții de sistem în care un indicator de nivel intermitent apare în condiții normale de funcționare. Dispozitivul de măsurare 30HXC este proiectat să funcționeze corect în aceste condiții.
- Asigurați-vă că circuitul funcționează la o condiție de sarcină maximă. Pentru a verifica dacă circuitul A este complet încărcat, urmați procedura descrisă în manualul de comenzi.
- Poate fi necesar să utilizați funcția Manual Control (Control manual) pentru a forța circuitul într-o condiție de sarcină maximă. Dacă acesta este cazul, consultați instrucțiunile pentru utilizarea funcției Manual Control (Control manual) din manualul de comenzi.
- Cu circuitul funcționând la sarcină maximă, verificați dacă temperatura lichidului care părăsește răcitorul se află în intervalul de 6°C ± 1.5.
- În această condiție, observați agentul frigorific în indicatorul de nivel al lichidului. Dacă există un indicator de nivel clar și nu există semne de intermitență, atunci circuitul este încărcat corespunzător. Omiteți pașii rămași.
- Dacă agentul frigorific pare să fie intermitent, circuitul este probabil scăzut în încărcătură. Verificați acest lucru verificând poziția EXV (consultați Controls IOM).
- Dacă poziția de deschidere a EXD este mai mare de 60% și dacă indicatorul de nivel al lichidului este intermitent, atunci circuitul are o încărcătură scăzută. Urmați procedura pentru adăugarea de încărcătură.
Pentru a adăuga încărcătură la sistemele 30HXC
- Asigurați-vă că unitatea funcționează la sarcină maximă și că temperatura lichidului care părăsește răcitorul se află în intervalul de 5.6 7.8°C.
- În aceste condiții de funcționare, verificați indicatorul de nivel al lichidului. Dacă există un indicator de nivel clar, atunci unitatea are o încărcătură suficientă. Dacă indicatorul de nivel este intermitent, atunci verificați EXD Percent Open (Procentul de deschidere EXD). Dacă acesta este mai mare de 60%, atunci începeți să adăugați încărcătură.
NOTĂ
Un indicator de nivel al lichidului intermitent în condiții de funcționare altele decât cele menționate mai sus nu este neapărat o indicație a unei încărcături scăzute cu agent frigorific.
- Adăugați 2.5 kg de încărcătură lichidă în evaporator folosind supapa de încărcare situată în partea de sus a evaporatorului.
- Observați valoarea EXD Percent Open (Procentul de deschidere EXD). EXD ar trebui să înceapă să se închidă pe măsură ce se adaugă încărcătură. Permiteți unității să se stabilizeze. Dacă EXD Percent Open (Procentul de deschidere EXD) rămâne peste 60% și există încă bule în indicatorul de nivel, adăugați încă 2.5 kg de încărcătură lichidă.
- Permiteți unității să se stabilizeze și verificați din nou EXD Percent Open (Procentul de deschidere EXD). Continuați să adăugați 2.5 kg de încărcătură lichidă cu agent frigorific la un moment dat și permiteți unității să se stabilizeze înainte de a verifica poziția EXD.
- Când EXD Percent Open (Procentul de deschidere EXD) se află în intervalul de 40 - 60%, verificați indicatorul de nivel al liniei de lichid. Adăugați încet suficientă încărcătură lichidă suplimentară pentru a asigura un indicator de nivel clar. Acest lucru ar trebui făcut încet pentru a evita supraîncărcarea unității.
- Verificați încărcătura adecvată continuând să funcționați la sarcină maximă cu o temperatură a lichidului care părăsește evaporatorul de 6°C ± 1.5. Verificați dacă agentul frigorific nu este intermitent în indicatorul de nivel al liniei de lichid. EXD Percent Open (Procentul de deschidere EXD) ar trebui să fie între 40 și 60%. Indicatorul de nivel al răcitorului ar trebui să fie în intervalul de 1.5 - 2.5.
Indicație de încărcare scăzută pe sistemele 30GX
- Asigurați-vă că circuitul funcționează la o condiție de sarcină maximă și că temperatura de condensare este de 50°C ± 1.5. Pentru a verifica dacă circuitul A este complet încărcat, urmați procedura din Controls IOM.
- Poate fi necesar să utilizați funcția Manual Control (Control manual) pentru a forța circuitul într-o condiție de sarcină maximă. Dacă acesta este cazul, consultați instrucțiunile pentru utilizarea funcției Manual Control (Control manual) (procedura din Controls IOM).
- Cu circuitul funcționând la sarcină maximă, verificați dacă temperatura lichidului care părăsește răcitorul se află în intervalul de 6°C ± 1.5.
- Măsurați temperatura aerului care intră în bobinele condensatorului. Măsurați temperatura lichidului după racordul în T unde se unesc cele două linii de lichid ale bobinei. Temperatura lichidului ar trebui să fie cu 8.3°C peste temperatura aerului care intră în bobine. Dacă diferența este mai mare decât aceasta și indicatorul de nivel este intermitent, circuitul este descărcat. Treceți la pasul 5.
- Adăugați 2.5 kg de încărcătură lichidă în răcitor folosind supapa de încărcare situată în partea de sus a răcitorului.
- Permiteți sistemului să se stabilizeze și apoi verificați din nou temperatura lichidului. Repetați pasul 5 după cum este necesar, permițând sistemului să se stabilizeze între fiecare adăugare de încărcătură. Adăugați încet încărcătură pe măsură ce indicatorul de nivel începe să se limpezească pentru a evita supraîncărcarea.
Temperatura spațiului, temperatura aerului exterior (opțional)
Aceste temperaturi sunt utilizate pentru a măsura temperatura spațiului sau temperatura aerului exterior, respectiv, pentru controlul resetării pe baza opțiunilor de resetare a temperaturii aerului exterior sau a spațiului.
Transductoare de presiune
Presiunea de descărcare (circuitele A și B)
Această intrare este utilizată pentru a măsura presiunea pe partea de înaltă a fiecărui circuit al unității.
Este utilizată pentru a furniza presiunea pentru a înlocui manometrul de presiune de descărcare și pentru a controla presiunea de refulare.
Presiunea de aspirație (circuitele A și B)
Această intrare este utilizată pentru a măsura presiunea pe partea de joasă a unității. Este utilizată pentru a furniza presiunea pentru a înlocui manometrul de presiune de aspirație.
Presiunea uleiului (fiecare compresor)
Această intrare este utilizată pentru a măsura presiunea uleiului fiecărui compresor al unității. Este situată pe portul de presiune a uleiului al fiecărui compresor.
Presiunea economizorului (circuitele A și B)
Această intrare este utilizată pentru a monitoriza diferențialul de presiune a uleiului furnizat compresorului.
Încărcare cu ulei - reîncărcare cu ulei scăzut
Adăugarea de încărcătură cu ulei la sistemele 30HX/GX
- Dacă unitatea 30HXC/GX se oprește în mod repetat din cauza Low oil Level (Nivelului scăzut de ulei), aceasta poate fi o indicație a unei încărcături inadecvate cu ulei. Ar putea însemna, de asemenea, pur și simplu că uleiul este în curs de recuperare de pe partea de joasă a sistemului.
- Începeți prin a rula unitatea la sarcină maximă timp de o oră și jumătate.
- După ce ați rulat timp de 1-1/2 ore, permiteți unității să repornească și să funcționeze normal. Dacă alarmele Low Oil Level (Nivel scăzut de ulei) persistă, unitatea are o încărcătură scăzută cu ulei. Adăugați ulei în separatorul de ulei, folosind supapa de încărcare cu ulei din partea de jos a condensatorului (30HXC) sau din partea de jos a separatorului de ulei (30GX).
NU adăugați ulei în nicio altă locație, deoarece poate rezulta o funcționare necorespunzătoare a unității.
- Asigurați-vă că unitatea nu funcționează când adăugați ulei, deoarece acest lucru va face procesul de încărcare cu ulei mai ușor. Deoarece sistemul este sub presiune chiar și atunci când unitatea nu funcționează, va fi necesar să utilizați o pompă adecvată (pompă manuală sau electrică) pentru a adăuga ulei în sistem.
- Folosind o pompă adecvată, adăugați 2 litri de ulei Polyolester în sistem (CARRIER SPEC: PP47-32). Asigurați-vă că comutatorul de siguranță al nivelului de ulei NU este șuntat și permiteți unității să repornească și să funcționeze normal.
- Dacă problemele legate de nivelul scăzut de ulei persistă, adăugați încă 1 sau 2 litri de ulei. Dacă este necesar să adăugați mai mult de 4 litri de ulei în sistem, contactați departamentul de service al distribuitorului dvs. Carrier.
Când transferați încărcătura cu agent frigorific într-o unitate de stocare, uleiul poate fi transportat împreună atunci când unitatea nu funcționează. Refolosiți mai întâi cantitatea de agent frigorific transferată. După scurgerea uleiului, reîncărcați numai cantitatea scursă (o încărcătură excesivă cu ulei poate afecta funcționarea corectă a unității).
Schimbarea filtrului de ulei integral
Un filtru de ulei integral din compresorul cu șurub 06N este specificat pentru a oferi un nivel ridicat de filtrare (3 µ) necesar pentru o durată lungă de viață a rulmenților. Deoarece curățenia sistemului este esențială pentru o funcționare fiabilă a sistemului, există, de asemenea, un prefiltru (7 µ) în linia de ulei la ieșirea separatorului de ulei.
Numărul piesei elementului de filtru de ulei integral de înlocuire este:
Numărul piesei Carrier (inclusiv filtrul și inelul O): 06NA 660016S
Programul de schimbare a filtrului
Filtrul trebuie verificat după primele 500 de ore de funcționare și la fiecare 2000 de ore ulterioare. Filtrul trebuie înlocuit oricând diferențialul de presiune peste filtru depășește 2.1 bar.
Căderea de presiune peste filtru poate fi determinată prin măsurarea presiunii la portul de service al filtrului și la portul de presiune a uleiului. Diferența dintre aceste două presiuni va fi căderea de presiune peste filtru, supapa de reținere și electrovalva. Căderea de presiune peste supapa de reținere și electrovalva este de aproximativ 0.4 bar, care ar trebui scăzută din cele două măsurători ale presiunii uleiului pentru a da căderea de presiune a filtrului de ulei. Căderea de presiune a filtrului de ulei trebuie verificată după orice ocazie în care compresorul este oprit din cauza unei siguranțe de presiune scăzută a uleiului.
Procedura de schimbare a filtrului
- Următorii pași prezintă metoda corectă de schimbare a filtrului de ulei integral.
- Opriți și blocați compresorul.
- Forțați manual funcționarea electrovalvei de ulei, pentru a apăsa obturatorul intern al supapei pe scaunul său.
- Închideți supapa de service a filtrului de ulei. Eliminați presiunea din cavitatea filtrului prin portul de service al filtrului.
- Scoateți dopul filtrului de ulei. Scoateți filtrul de ulei vechi.
- Înainte de a instala noul filtru de ulei, "ungeți" inelul O cu ulei. Instalați filtrul și înlocuiți dopul.
Înainte de a închide sistemul de ulei de lubrifiere, profitați de ocazie pentru a înlocui și prefiltrul. - Când ați terminat, evacuați cavitatea filtrului prin portul de service al filtrului. Deschideți supapa de service a filtrului. Scoateți orice dispozitive de blocare a compresorului, compresorul este gata să revină la funcționare.
Înlocuirea compresorului
Controlul rotației compresorului
Rotația corectă a compresorului este una dintre cele mai importante considerații de aplicare. Rotația inversă, chiar și pentru o durată foarte scurtă, deteriorează compresorul.
Schema de protecție împotriva rotației inverse trebuie să fie capabilă să determine direcția de rotație și să oprească compresorul în 300 de milisecunde. Rotația inversă este cel mai probabil să apară ori de câte ori cablajul la bornele compresorului este perturbat.
Pentru a minimiza posibilitatea rotației inverse, trebuie aplicată următoarea procedură. Refaceți cablurile de alimentare la pinul terminalului compresorului așa cum au fost cablate inițial.
Pentru înlocuirea compresorului, un presostat de joasă presiune este inclus cu compresorul. Acest presostat de joasă presiune trebuie instalat temporar ca o siguranță dură pe partea de înaltă presiune a compresorului. Scopul acestui comutator este de a proteja compresorul împotriva oricăror erori de cablare la pinul terminalului compresorului. Contactul electric al comutatorului ar fi cablat în serie cu presostatul de înaltă presiune. Comutatorul va rămâne în poziție până când compresorul a fost pornit și direcția de rotație a fost verificată; în acest moment, comutatorul va fi scos.
Comutatorul care a fost selectat pentru detectarea rotației inverse este numărul piesei Carrier HK01CB001. Este disponibil ca parte a "Pachetului de instalare a compresorului" (nr. piesei 06NA 660 013). Acest comutator deschide contactele atunci când presiunea scade sub 50 mm de vid. Comutatorul este un tip de resetare manuală care poate fi resetat după ce presiunea a crescut din nou peste 70 kPa. Este esențial ca comutatorul să fie un tip de resetare manuală pentru a împiedica compresorul să funcționeze în ciclu scurt în direcția inversă.
Depanare
Urmați pașii de mai jos pentru a diagnostica și corecta problemele EXD/Economizor.
Pe unitățile 30HXC/GX cu economizoare, verificați dacă supapa pentru tubul cu bule (partea de jos a economizorului) este deschisă. Verificați mai întâi funcționarea motorului EXD (consultați procedura din Controls IOM). Ar trebui să puteți simți actuatorul mișcându-se punând mâna pe corpul EXD sau al economizorului (actuatorul este situat la aproximativ o jumătate până la două treimi din drum în sus de la partea de jos a carcasei economizorului). Ar trebui să simțiți o lovitură puternică venind de la actuator atunci când atinge partea de sus a cursei sale (poate fi auzit dacă împrejurimile sunt relativ liniștite). Actuatorul ar trebui să bată când atinge partea de jos a cursei sale. Dacă se crede că supapa nu funcționează corect, contactați departamentul de service Carrier pentru verificări suplimentare privind:
- semnalele de ieșire de pe modulul EXD
- conexiunile firelor (continuitate și conexiune strânsă la toate bornele pinilor)
- rezistența înfășurărilor motorului EXD.


Aprobarea sistemului de management de mediu
Nr. comandă: 13173-76, 03 1999 - Înlocuiește nr.: 13173-76, martie 1998
Producătorul își rezervă dreptul de a modifica orice specificații ale produsului fără notificare.
Producător: Carrier s.a., Montluel, Franța.
Tipărit în Olanda pe hârtie fără clor.

Descărcați manualul
Aici puteți descărca versiunea completă pdf a manualului, aceasta poate conține instrucțiuni suplimentare de siguranță, informații despre garanție, reguli FCC etc.
Descărcați Manual de utilizare pentru compresoarele cu șurub Carrier 30HXC/30GX