Manuel du compresseur à vis Carrier 30HXC/30GX
- 1 INTRODUCTION
- 2 CONSIGNES DE SÉCURITÉ
- 3 DIMENSIONS, DÉGAGEMENTS, RÉPARTITION DU POIDS
- 4 DONNÉES PHYSIQUES 30HXC
- 5 DONNÉES ÉLECTRIQUES 30HXC
- 6 DONNÉES ÉLECTRIQUES DES UNITÉS À TEMPÉRATURES DE CONDENSATION ÉLEVÉES
- 7 DONNÉES PHYSIQUES 30GX
- 8 DONNÉES ÉLECTRIQUES 30GX
-
9
DONNÉES D'APPLICATION
- 9.1 Plage de fonctionnement de l'unité
- 9.2 Débit d'eau glacée minimum
- 9.3 Débit d'eau glacée maximum
- 9.4 Évaporateur à débit variable
- 9.5 Volume d'eau minimum du système
- 9.6 Débit du refroidisseur (l/s)
- 9.7 Débit du condenseur (l/s)
- 9.8 Courbe de perte de charge de l'évaporateur
- 9.9 Courbe de perte de charge du condenseur
- 9.10 Régulateurs de débit
- 10 INSTALLATION
- 11 INSTRUCTIONS DE LEVAGE
- 12 CARACTÉRISTIQUES ÉLECTRIQUES
- 13 SECTIONS DE CÂBLES RECOMMANDÉES
-
14
COMPOSANTS MAJEURS DU SYSTÈME ET DONNÉES DE FONCTIONNEMENT
- 14.1 Compresseur bivis à engrenages
- 14.2 Évaporateur
- 14.3 Condenseur et séparateur d'huile (30HXC)
- 14.4 Séparateur d'huile (30GX)
- 14.5 Détendeur électronique (EXD)
- 14.6 Économiseur
- 14.7 Pompes à huile
- 14.8 Vannes de refroidissement moteur
- 14.9 Capteurs
- 14.10 Thermistances
- 14.11 Disposition des ventilateurs 30GX
- 15 ENTRETIEN
- 16 DÉPANNAGE
- 17 Télécharger le manuel
- 18 Dans d'autres langues

INTRODUCTION
Avant le premier démarrage des unités 30HXC et 30GX, les personnes impliquées dans le démarrage, l'opération et la maintenance doivent être parfaitement familiarisées avec ces instructions et les autres données de travail nécessaires. Ce manuel fournit un aperçu pour vous permettre de vous familiariser avec le système de contrôle avant d'exécuter les procédures de démarrage. Les procédures de ce manuel sont organisées dans l'ordre requis pour un démarrage et une opération corrects de la machine.
CONSIGNES DE SÉCURITÉ
Les refroidisseurs de liquide 30HXC et 30GX sont conçus pour offrir un service sûr et fiable lorsqu'ils sont utilisés dans les spécifications de conception. Lors de l'utilisation de cet équipement, faites preuve de bon jugement et prenez des précautions de sécurité pour éviter d'endommager l'équipement et les biens ou de blesser le personnel.
Assurez-vous de comprendre et de suivre les procédures et les précautions de sécurité contenues dans les instructions de la machine ainsi que celles énumérées dans ce guide.
NE PAS ÉVACUER les soupapes de décharge de réfrigérant à l'intérieur d'un bâtiment. La sortie de la soupape de décharge doit être ventilée à l'extérieur. L'accumulation de réfrigérant dans un espace clos peut déplacer l'oxygène et provoquer une asphyxie ou des explosions.
ASSURER une ventilation adéquate, en particulier pour les espaces clos et à faible hauteur. L'inhalation de fortes concentrations de vapeur est nocive et peut provoquer des irrégularités cardiaques, une perte de conscience ou la mort. La vapeur est plus lourde que l'air et réduit la quantité d'oxygène disponible pour la respiration. Le produit provoque des irritations oculaires et cutanées. Les produits de décomposition sont dangereux.
NE PAS UTILISER D'OXYGÈNE pour purger les conduites ou pour mettre une machine sous pression à quelque fin que ce soit. Le gaz oxygène réagit violemment avec l'huile, la graisse et d'autres substances courantes.
NE JAMAIS DÉPASSER les pressions d'essai spécifiées, VÉRIFIER la pression d'essai admissible en consultant la documentation d'instructions et les pressions de conception sur la plaque signalétique de l'équipement.
NE PAS UTILISER d'air pour les tests d'étanchéité. Utiliser uniquement du réfrigérant ou de l'azote sec.
NE PAS FERMER avec une vanne tout dispositif de sécurité.
S'ASSURER que tous les dispositifs de décharge de pression sont correctement installés avant d'utiliser toute machine.
NE PAS SOUDER NI COUPER À LA FLAMME aucune conduite ou récipient de réfrigérant tant que tout le réfrigérant (liquide et vapeur) n'a pas été retiré du refroidisseur. Les traces de vapeur doivent être déplacées avec de l'azote d'air sec et la zone de travail doit être bien ventilée. Le réfrigérant en contact avec une flamme nue produit des gaz toxiques.
NE PAS travailler sur un équipement sous tension, à moins d'être un électricien qualifié.
NE PAS TRAVAILLER SUR les composants électriques, y compris les panneaux de contrôle, les interrupteurs, les relais, etc., tant que vous n'êtes pas sûr que TOUTE L'ALIMENTATION EST COUPÉE et que la tension résiduelle ne peut pas s'échapper des condensateurs ou des composants à semi-conducteurs.
VERROUILLER ET ÉTIQUETER les circuits électriques pendant l'entretien. SI LE TRAVAIL EST INTERROMPU, vérifiez que tous les circuits sont hors tension avant de reprendre le travail.
NE PAS siphonner le réfrigérant.
ÉVITER DE RENVERSER du réfrigérant liquide sur la peau ou dans les yeux. UTILISER DES LUNETTES DE SÉCURITÉ. Laver tout déversement sur la peau avec du savon et de l'eau. Si du réfrigérant liquide pénètre dans les yeux,
RINCER IMMÉDIATEMENT LES YEUX à l'eau et consulter un médecin.
NE JAMAIS APPLIQUER de flamme nue ou de vapeur vive sur un récipient de réfrigérant. Une surpression dangereuse peut en résulter. S'il est nécessaire de chauffer le réfrigérant, utiliser uniquement de l'eau chaude.
NE PAS RÉUTILISER les bouteilles jetables (non consignées) ni tenter de les remplir. C'est DANGEREUX ET ILLÉGAL. Lorsque les bouteilles sont vides, évacuer la pression de gaz restante, desserrer le collier et dévisser et jeter la tige de la valve. NE PAS INCINÉRER.
VÉRIFIER LE TYPE DE RÉFRIGÉRANT avant d'ajouter du réfrigérant à la machine. L'introduction d'un mauvais réfrigérant peut causer des dommages ou un dysfonctionnement à cette machine.
NE PAS TENTER DE RETIRER des raccords, des composants, etc., pendant que la machine est sous pression ou en fonctionnement. Assurez-vous que la pression est à 0 kPa avant de déconnecter le circuit de réfrigérant.
INSPECTER MINUTIEUSEMENT tous les dispositifs de décharge, AU MOINS UNE FOIS PAR AN. Si la machine fonctionne dans une atmosphère corrosive, inspecter les dispositifs à des intervalles plus fréquents.
NE PAS TENTER DE RÉPARER OU DE REMETTRE EN ÉTAT un dispositif de décharge si de la corrosion ou une accumulation de corps étrangers (rouille, saleté, tartre, etc.) est trouvée à l'intérieur du corps de la vanne ou du mécanisme. Remplacer le dispositif.
NE PAS installer les dispositifs de décharge en série ou à l'envers.
NE PAS MARCHER sur les conduites de réfrigérant. Les conduites cassées peuvent fouetter et libérer du réfrigérant, causant des blessures corporelles.
NE PAS grimper sur une machine. Utiliser une plateforme ou un échafaudage.
UTILISER UN ÉQUIPEMENT MÉCANIQUE (grue, palan, etc.) pour soulever ou déplacer des composants lourds. Même si les composants sont légers, utiliser un équipement mécanique lorsqu'il y a un risque de glissade ou de perte d'équilibre.
SOYEZ CONSCIENT que certains arrangements de démarrage automatique PEUVENT ENGAGER LE VENTILATEUR DE LA TOUR OU LES POMPES. Ouvrir le sectionneur avant les ventilateurs de la tour ou les pompes.
UTILISER uniquement des pièces de réparation ou de remplacement qui répondent aux exigences du code de l'équipement d'origine.
NE PAS VENTILER OU VIDANGER les caissons d'eau contenant des saumures industrielles, sans l'autorisation d'un organisme compétent.
NE PAS DESSERRER les boulons du caisson d'eau tant que le caisson d'eau n'a pas été complètement vidangé.
NE PAS DESSERRER un écrou de presse-étoupe avant de vérifier que l'écrou a un engagement de filetage positif.
INSPECTER PÉRIODIQUEMENT toutes les vannes, raccords et tuyauteries pour détecter la corrosion, la rouille, les fuites ou les dommages.
PRÉVOIR UN RACCORD DE VIDANGE dans la conduite de ventilation près de chaque dispositif de décharge de pression pour éviter l'accumulation de condensat ou d'eau de pluie.
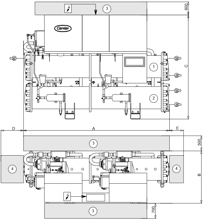
DIMENSIONS, DÉGAGEMENTS, RÉPARTITION DU POIDS
30HXC 080-190
30HXC080
30HXC090
30HXC100
30HXC110

- Évaporateur
- Condenseur
- Dégagements nécessaires pour l'opération et la maintenance
- Dégagements nécessaires pour le retrait des tubes d'échangeur de chaleur. Les dégagements D et E peuvent être à gauche ou à droite.
Entrée d'eau
Sortie d'eau
Alimentation électrique
kg : poids total en fonctionnement
| A mm | B mm | C mm | D mm | E mm | kg | |
| 30HXC080 30HXC090 30HXC100 |
2705 | 950 | 1850 | 2360 | 1000 | 2447 2462 2504 |
| 30HXC110 | 2705 | 950 | 1900 | 2360 | 1000 | 2650 |
| 30HXC120 30HXC130 30HXC140 30HXC155 |
3535 | 950 | 1875 | 3220 | 1000 | 2846 2861 2956 2971 |
| 30HXC175 30HXC190 |
3550 | 950 | 2000 | 3220 | 1000 | 3283 3438 |
REMARQUE : Se référer aux plans dimensionnels certifiés fournis avec l'unité lors de la conception d'une installation.
30HXC 200-375

- Évaporateur
- Condenseur
- Dégagements nécessaires pour l'opération et la maintenance
- Dégagements nécessaires pour le retrait des tubes d'échangeur de chaleur. Les dégagements D et E peuvent être à gauche ou à droite.
Entrée d'eau
Sortie d'eau
Alimentation électrique
kg : poids total en fonctionnement
| A mm | B mm | C mm | D mm | E mm | kg | |
| 30HXC200 | 3975 | 980 | 2035 | 3620 | 1000 | 4090 |
| 30HXC230 30HXC260 30HXC285 |
3995 | 980 | 2116 | 3620 | 1000 | 4705 4815 4985 |
| 30HXC310 30HXC345 30HXC375 |
4490 | 980 | 2163 | 4120 | 1000 | 5760 5870 6105 |
REMARQUE : Se référer aux plans dimensionnels certifiés fournis avec l'unité lors de la conception d'une installation.
30GX 082-182
30GX-082
30GX-092
30GX-102
30GX-112
30GX-122
30GX-132
30GX-152
30GX-162
30GX-182


- Dégagements nécessaires pour l'opération et la maintenance
- Dégagements nécessaires pour le retrait des tubes d'échangeur de chaleur. Les dégagements peuvent être à gauche ou à droite.
Entrée d'eau
Sortie d'eau
Alimentation électrique
Sortie d'air - ne pas obstruer
kg : poids total en fonctionnement
| A mm | B mm | kg | |
| 30GX082 30GX092 30GX102 |
2970 | 2215 | 3116 3157 3172 |
| 30GX112 30GX122 30GX132 |
3427 | 2045 | 3515 3531 3633 |
| 30GX152 30GX162 |
4342 | 2835 | 3920 3936 |
| 30GX182 | 5996 | 1820 | 4853 |
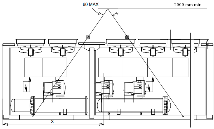
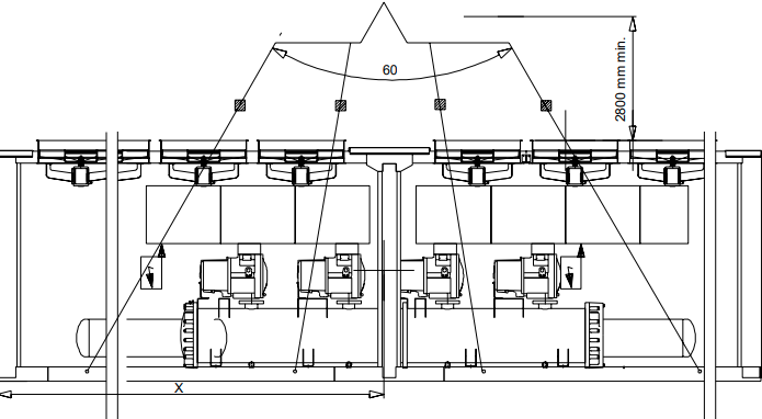
Installation de plusieurs groupes refroidisseurs


Remarques :
- L'unité doit avoir des dégagements pour le flux d'air comme suit :
Dessus : ne rien obstruer - En cas d'installation de plusieurs groupes refroidisseurs (jusqu'à quatre unités), l'espace latéral entre eux doit être augmenté de 1830 à 2000 mm.
- Des dégagements sont nécessaires pour le retrait des tubes du refroidisseur.
REMARQUE : Se référer aux plans dimensionnels certifiés fournis avec l'unité lors de la conception d'une installation.
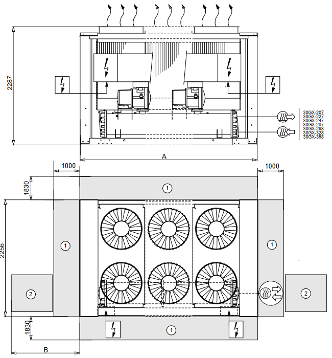
30GX 207-358
30GX-207
30GX-227
30GX-247
30GX-267
30GX-298
30GX-328
30GX-358

- Dégagements nécessaires pour l'opération et la maintenance
- Dégagements nécessaires pour le retrait des tubes d'échangeur de chaleur. Les dégagements peuvent être à gauche ou à droite.
Entrée d'eau
Sortie d'eau
Alimentation électrique
Sortie d'air - ne pas obstruer
kg : poids total en fonctionnement
| A mm | B mm | kg | |
| 30GX207 30GX227 |
5996 | 2895 | 5540 5570 |
| 30GX247 30GX267 |
6911 | 2470 | 6134 6365 |
| 30GX298 | 7826 | 2220 | 7354 |
| 30GX328 30GX358 |
8741 | 1250 | 7918 8124 |
Installation de plusieurs groupes refroidisseurs


Remarques :
- L'unité doit avoir des dégagements pour le flux d'air comme suit :
Dessus : ne rien obstruer - En cas d'installation de plusieurs groupes refroidisseurs (jusqu'à quatre unités), l'espace latéral entre eux doit être augmenté de 1830 à 2000 mm.
- Des dégagements sont nécessaires pour le retrait des tubes du refroidisseur.
REMARQUE : Se référer aux plans dimensionnels certifiés fournis avec l'unité lors de la conception d'une installation.
DONNÉES PHYSIQUES 30HXC
| 30HXC | 080 | 090 | 100 | 110 | 120 | 130 | 140 | 155 | 175 | 190 | 200 | 230 | 260 | 285 | 310 | 345 | 375 | |
| Puissance frigorifique nette | kW | 292 | 321 | 352 | 389 | 426 | 464 | 514 | 550 | 607 | 663 | 716 | 822 | 918 | 996 | 1119 | 1222 | 1326 |
| Poids en fonctionnement | kg | 2447 | 2462 | 2504 | 2650 | 2846 | 2861 | 2956 | 2971 | 3283 | 3438 | 4090 | 4705 | 4815 | 4985 | 5760 | 5870 | 6105 |
| Réfrigérant Circuit A/B |
HFC-134a | |||||||||||||||||
| kg | 39/36 | 39/36 | 37/32 | 38/38 | 57/55 | 59/50 | 56/50 | 59/52 | 58/61 | 60/70 | 110/58 | 118/63 | 120/75 | 120/75 | 108/110 | 110/110 | 110/120 | |
| Huile Circuit A/B |
Polyolester oil CARRIER SPEC: PP 47-32 | |||||||||||||||||
| l | 15/15 | 15/15 | 15/15 | 15/15 | 15/15 | 15/15 | 15/15 | 15/15 | 15/15 | 15/15 | 30/15 | 30/15 | 30/15 | 30/15 | 30/30 | 30/30 | 30/30 | |
| Compresseurs | Hermetic twin-screw Power3 | |||||||||||||||||
| Circ. A, taille nom. par compresseur** | 39 | 46 | 46 | 56 | 56 | 66 | 80 | 80 | 80 | 80+ | 66/56 | 80/56 | 80/80 | 80+/80+ | 80/66 | 80/80 | 80+/80+ | |
| Circ. B, taille nom. par compresseur** | 39 | 39 | 46 | 46 | 56 | 56 | 56 | 66 | 80 | 80+ | 66 | 80 | 80 | 80+ | 80/66 | 80/80 | 80+/80+ | |
| Type de régulation | PRO-DIALOG Plus control | |||||||||||||||||
| Nombre de paliers de capacité | 6 | 6 | 6 | 6 | 6 | 6 | 6 | 6 | 6 | 6 | 8 | 8 | 8 | 8 | 10 | 10 | 10 | |
| Capacité minimale | % | 19 | 19 | 21 | 19 | 21 | 19 | 17 | 19 | 21 | 21 | 14 | 14 | 14 | 14 | 10 | 10 | 10 |
| Évaporateur | Type à faisceau tubulaire, avec tubes en cuivre à ailettes internes | |||||||||||||||||
| Volume d'eau net | l | 65 | 65 | 73 | 87 | 81 | 81 | 91 | 91 | 109 | 109 | 140 | 165 | 181 | 181 | 203 | 229 | 229 |
| Raccordements d'eau | Bride plate fournie en usine, à souder sur site | |||||||||||||||||
| Entrée et sortie | in. | 4 | 4 | 4 | 5 | 5 | 5 | 5 | 5 | 5 | 5 | 6 | 6 | 6 | 6 | 8 | 8 | 8 |
| Vidange et purge (NPT) | in. | 3/8 | 3/8 | 3/8 | 3/8 | 3/8 | 3/8 | 3/8 | 3/8 | 3/8 | 3/8 | 3/8 | 3/8 | 3/8 | 3/8 | 3/8 | 3/8 | |
| Pression de service maximale côté eau | kPa | 1000 | 1000 | 1000 | 1000 | 1000 | 1000 | 1000 | 1000 | 1000 | 1000 | 1000 | 1000 | 1000 | 1000 | 1000 | 1000 | 1000 |
| Condenseurs | Type à faisceau tubulaire, avec tubes en cuivre à ailettes internes | |||||||||||||||||
| Volume d'eau net | l | 58 | 58 | 58 | 58 | 92 | 92 | 110 | 110 | 132 | 132 | 162 | 208 | 208 | 208 | 251 | 251 | 251 |
| Raccordements d'eau | Bride plate fournie en usine, à souder sur site | |||||||||||||||||
| Entrée et sortie | in. | 5 | 5 | 5 | 5 | 5 | 5 | 5 | 5 | 6 | 6 | 6 | 6 | 6 | 6 | 8 | 8 | 8 |
| Vidange et purge (NPT) | in. | 3/8 | 3/8 | 3/8 | 3/8 | 3/8 | 3/8 | 3/8 | 3/8 | 3/8 | 3/8 | 3/8 | 3/8 | 3/8 | 3/8 | 3/8 | 3/8 | |
| Pression de service maximale côté eau | kPa | 1000 | 1000 | 1000 | 1000 | 1000 | 1000 | 1000 | 1000 | 1000 | 1000 | 1000 | 1000 | 1000 | 1000 | 1000 | 1000 | 1000 |
* Conditions Eurovent standardisées : températures d'eau entrée/sortie évaporateur = 12°C/7°C, températures d'eau entrée/sortie condenseur = 30°C/35°C. Puissance frigorifique nette : Puissance frigorifique brute moins la chaleur de la pompe à eau contre la perte de charge interne de l'évaporateur. ** La taille du compresseur correspond à la capacité nominale en tonnes (1 tonne = 3,517 kW).
DONNÉES ÉLECTRIQUES 30HXC
| 30HXC | 080 | 090 | 100 | 110 | 120 | 130 | 140 | 155 | 175 | 190 | 200 | 230 | 260 | 285 | 310 | 345 | 375 | |
| Circuit de puissance | ||||||||||||||||||
| Alimentation nominale* | V-ph-Hz | 400-3-50 | ||||||||||||||||
| Plage de tension | V | 360-440 | ||||||||||||||||
| Alimentation circuit de commande | Le circuit de commande est alimenté via le transformateur installé en usine | |||||||||||||||||
| Puissance absorbée nominale* | kW | 59 | 67 | 74 | 83 | 88 | 99 | 112 | 123 | 135 | 146 | 156 | 179 | 201 | 219 | 245 | 274 | 298 |
| Courant absorbé nominal* | A | 98 | 111 | 124 | 139 | 148 | 166 | 186 | 204 | 226 | 242 | 259 | 291 | 335 | 367 | 408 | 456 | 498 |
| Puissance absorbée max.** | kW | 76 | 83 | 91 | 101 | 111 | 121 | 135 | 145 | 158 | 181 | 187 | 214 | 237 | 272 | 290 | 316 | 362 |
| Circuit A | kW | - | - | - | - | - | - | - | - | - | - | 121 | 135 | 158 | 181 | 145 | 158 | 181 |
| Circuit B | kW | - | - | - | - | - | - | - | - | - | - | 66 | 79 | 79 | 91 | 145 | 158 | 181 |
| Cos phi, unité à pleine charge | 0.87 | 0.87 | 0.87 | 0.87 | 0.87 | 0.87 | 0.87 | 0.87 | 0.87 | 0.87 | 0.87 | 0.87 | 0.87 | 0.87 | 0.87 | 0.87 | 0.87 | |
| Courant absorbé max. (Un - 10%)*** | A | 138 | 152 | 166 | 184 | 202 | 221 | 245 | 264 | 288 | 330 | 341 | 389 | 432 | 495 | 528 | 576 | 660 |
| Circuit A | A | - | - | - | - | - | - | - | - | - | - | 221 | 245 | 288 | 330 | 264 | 288 | 330 |
| Circuit B | A | - | - | - | - | - | - | - | - | - | - | 120 | 144 | 144 | 165 | 264 | 288 | 330 |
| Courant absorbé maximum (Un)*** | A | 125 | 138 | 151 | 167 | 184 | 201 | 223 | 240 | 262 | 300 | 310 | 354 | 393 | 450 | 480 | 524 | 600 |
| Circuit A | A | - | - | - | - | - | - | - | - | - | - | 201 | 223 | 262 | 300 | 240 | 262 | 300 |
| Circuit B | A | - | - | - | - | - | - | - | - | - | - | 109 | 131 | 131 | 150 | 240 | 262 | 300 |
| Courant de démarrage max., unité standard (Un)**** | A | 172 | 197 | 209 | 235 | 252 | 283 | 318 | 335 | 357 | 420 | 806 | 938 | 977 | 1156 | 1064 | 1108 | 1306 |
| Circuit A | A | - | - | - | - | - | - | - | - | - | - | 697 | 807 | 846 | 1006 | 824 | 846 | 1006 |
| Circuit B | A | - | - | - | - | - | - | - | - | - | - | 605 | 715 | 715 | 856 | 824 | 846 | 1006 |
| Rapport courant de démarrage max./courant absorbé max., unité | 1.37 | 1.42 | 1.39 | 1.41 | 1.37 | 1.41 | 1.43 | 1.40 | 1.36 | 1.40 | 2.60 | 2.65 | 2.49 | 2.57 | 2.22 | 2.12 | 2.18 | |
| Rapport courant de démarrage max./courant absorbé max., circuit A | - | - | - | - | - | - | - | - | - | - | 3.47 | 3.62 | 3.23 | 3.35 | 3.43 | 3.23 | 3.35 | |
| Rapport courant de démarrage max./courant absorbé max., circuit B | - | - | - | - | - | - | - | - | - | - | 5.55 | 5.46 | 5.46 | 5.71 | 3.43 | 3.23 | 3.35 | |
| Courant de démarrage max. - démarrage à courant réduit (Un) **** | A | std. | std. | std. | std. | std. | std. | std. | std. | std. | std. | 601 | 643 | 682 | 760 | 769 | 813 | 910 |
| Circuit A | A | std. | std. | std. | std. | std. | std. | std. | std. | std. | std. | 492 | 512 | 551 | 610 | 529 | 551 | 610 |
| Circuit B | A | std. | std. | std. | std. | std. | std. | std. | std. | std. | std. | 330 | 370 | 370 | 385 | 529 | 551 | 610 |
| Rapport courant de démarrage max. - démarrage à courant réduit/courant absorbé max., unité | std. | std. | std. | std. | std. | std. | std. | std. | std. | std. | 1.94 | 1.82 | 1.74 | 1.69 | 1.60 | 1.55 | 1.52 | |
| Circuit A | std. | std. | std. | std. | std. | std. | std. | std. | std. | std. | 2.45 | 2.30 | 2.10 | 2.03 | 2.20 | 2.10 | 2.03 | |
| Circuit B | std. | std. | std. | std. | std. | std. | std. | std. | std. | std. | 3.03 | 2.83 | 2.83 | 2.57 | 2.20 | 2.10 | 2.03 | |
| Courant de maintien de court-circuit triphasé | kA | 25 | 25 | 25 | 25 | 25 | 25 | 25 | 25 | 25 | 25 | N/A | N/A | N/A | N/A | N/A | N/A | N/A |
| Circuit A | kA | - | - | - | - | - | - | - | - | - | - | 25 | 25 | 25 | 25 | 25 | 25 | 25 |
| Circuit B | kA | - | - | - | - | - | - | - | - | - | - | 15 | 15 | 15 | 15 | 25 | 25 | 25 |
| Puissance de secours client, unité ou circ. A, pour les raccordements de pompe à eau d'évaporateur† | kW | 8 | 8 | 8 | 11 | 11 | 11 | 15 | 15 | 15 | 15 | 15 | 18 | 18 | 30 | 30 | 30 | 30 |
* Conditions Eurovent standard : Température d'eau d'entrée/sortie de l'évaporateur 12°C et 7°C. Température d'eau d'entrée/sortie du condenseur 30°C/35°C.
** Puissance absorbée, compresseur, aux limites de fonctionnement de l'unité (température d'eau d'entrée/sortie de l'évaporateur = 15°C/10°C, température d'eau d'entrée/sortie du condenseur = 40°C/45°C) et une tension nominale de 400 V (données figurant sur la plaque signalétique de l'unité).
*** Courant de fonctionnement maximal de l'unité à la puissance absorbée maximale de l'unité.
**** Courant de démarrage instantané maximal (courant de fonctionnement maximal du ou des plus petits compresseurs + courant rotor bloqué ou courant de démarrage réduit du plus grand compresseur)
† Les courants et puissances absorbées ne sont pas inclus dans les valeurs ci-dessus.
N/A Non disponible
Compresseurs
| Référence | Taille | I nom. | MHA | LRA | LRA (Y) | LRA (S) 1 cp. | LRA (S) 2 cp. |
| 06NW2146S7N | 39 | 48 | 69 | 344 | 109 | 125 | - |
| 06NW2174S7N | 46 | 58 | 83 | 423 | 134 | 154 | - |
| 06NW2209S7N | 56 | 71 | 101 | 506 | 160 | 260 | 350 |
| 06NW2250S7N | 66 | 87 | 120 | 605 | 191 | 330 | 400 |
| 06NW2300S5N | 80 | 104 | 144 | 715 | 226 | 370 | 420 |
| 06NW2300S5E | 80+ | 111 | 165 | 856 | 270 | 385 | 460 |
Légende :
| 06NW | Compresseur pour unités refroidies par eau |
| N | Compresseur non économisé |
| E | Compresseur économisé |
| INOM | Courant absorbé moyen du compresseur aux conditions Eurovent |
| MHA | Courant de maintien (courant de fonctionnement maximal) à 360 V |
| LRA | Courant rotor bloqué avec démarrage direct |
| LRA (Y) | Courant rotor bloqué à courant réduit (mode de démarrage étoile/triangle) |
| LRA (S) 1 cp. | Démarrage à courant réduit avec démarreur électronique (durée de démarrage 3 secondes max.) pour un compresseur par circuit |
| LRA (S) 2 cp. | Démarrage à courant réduit avec démarreur électronique (durée de démarrage 3 secondes max.) pour deux compresseurs par circuit |
DONNÉES ÉLECTRIQUES DES UNITÉS À TEMPÉRATURES DE CONDENSATION ÉLEVÉES
Options 30HXC 150 et 150A
| 30HXC | 080 | 090 | 100 | 110 | 120 | 130 | 140 | 155 | 175 | 190 | 200 | 230 | 260 | 285 | 310 | 345 | 375 | |
| Circuit de puissance | ||||||||||||||||||
| Alimentation nominale* | V-ph-Hz | 400-3-50 | ||||||||||||||||
| Plage de tension | V | 360-440 | ||||||||||||||||
| Alimentation circuit de commande | Le circuit de commande est alimenté via le transformateur installé en usine | |||||||||||||||||
| Puissance absorbée max.** | kW | 104 | 117 | 131 | 145 | 159 | 174 | 194 | 211 | 230 | 263 | 271 | 310 | 345 | 395 | 422 | 460 | 526 |
| Circuit A | kW | - | - | - | - | - | - | - | - | - | - | 175 | 195 | 230 | 263 | 211 | 230 | 263 |
| Circuit B | kW | - | - | - | - | - | - | - | - | - | - | 96 | 115 | 115 | 132 | 211 | 230 | 263 |
| Courant max. absorbé (Un - 10%)*** | A | 190 | 215 | 240 | 265 | 290 | 320 | 355 | 385 | 420 | 480 | 495 | 564 | 630 | 720 | 770 | 840 | 960 |
| Circuit A | A | - | - | - | - | - | - | - | - | - | - | 320 | 355 | 420 | 480 | 385 | 420 | 480 |
| Circuit B | A | - | - | - | - | - | - | - | - | - | - | 175 | 210 | 210 | 240 | 385 | 420 | 480 |
| Courant max. absorbé (Un)*** | A | 173 | 195 | 218 | 241 | 264 | 291 | 323 | 350 | 382 | 436 | 450 | 514 | 573 | 655 | 700 | 764 | 873 |
| Circuit A | A | - | - | - | - | - | - | - | - | - | - | 291 | 323 | 382 | 436 | 350 | 382 | 436 |
| Circuit B | A | - | - | - | - | - | - | - | - | - | - | 159 | 191 | 191 | 218 | 350 | 382 | 436 |
| Courant de démarrage max., unité std (Un)**** | A | 277 | 312 | 335 | 379 | 402 | 435 | 519 | 546 | 578 | 618 | 1251 | 1549 | 1608 | 1701 | 1735 | 1799 | 1920 |
| Circuit A | A | - | - | - | - | - | - | - | - | - | - | 1092 | 1358 | 1417 | 1483 | 1385 | 1417 | 1483 |
| Circuit B | A | - | - | - | - | - | - | - | - | - | - | 960 | 1226 | 1226 | 1265 | 1385 | 1417 | 1483 |
| Rapport courant de démarrage max./courant max. absorbé, unité | 1.61 | 1.60 | 1.54 | 1.57 | 1.52 | 1.49 | 1.61 | 1.56 | 1.51 | 1.42 | 2.78 | 3.02 | 2.81 | 2.60 | 2.48 | 2.36 | 2.20 | |
| Rapport courant de démarrage max./courant max. absorbé, circuit A | - | - | - | - | - | - | - | - | - | - | 3.75 | 4.21 | 3.71 | 3.40 | 3.96 | 3.71 | 3.40 | |
| Rapport courant de démarrage max./courant max. absorbé, circuit B | - | - | - | - | - | - | - | - | - | - | 6.03 | 6.42 | 6.42 | 5.80 | 3.96 | 3.71 | 3.40 | |
| Courant de démarrage max. - démarrage à courant réduit (Un) **** | A | std. | std. | std. | std. | std. | std. | std. | std. | std. | N/A | N/A | N/A | N/A | N/A | N/A | N/A | |
| Courant de maintien de court-circuit triphasé | kA | 25 | 25 | 25 | 25 | 25 | 25 | 25 | 25 | 25 | 25 | N/A | N/A | N/A | N/A | N/A | N/A | N/A |
| Circuit A | kA | - | - | - | - | - | - | - | - | - | - | 25 | 25 | 25 | 25 | 25 | 25 | 25 |
| Circuit B | kA | - | - | - | - | - | - | - | - | - | - | 15 | 15 | 15 | 15 | 25 | 25 | 25 |
| Capacité de secours client, unité ou circuit A, pour racc. pompe eau évaporateur† | kW | 8 | 8 | 8 | 11 | 11 | 11 | 15 | 15 | 15 | 15 | 18 | 18 | 30 | 30 | 30 | 30 | |
** Puissance absorbée, compresseur, aux limites de fonctionnement de l'unité (température d'eau d'entrée/sortie évaporateur = 15°C/10°C, température d'eau d'entrée/sortie condenseur = 40°C/45°C) et tension nominale de 400 V (données figurant sur la plaque signalétique de l'unité).
*** Courant de fonctionnement maximal de l'unité à la puissance absorbée maximale de l'unité.
**** Courant de démarrage instantané maximal (courant de fonctionnement maximal du/des plus petit(s) compresseur(s) + courant rotor bloqué ou courant de démarrage réduit du plus grand compresseur)
† Les courants et puissances absorbées ne sont pas inclus dans les valeurs ci-dessus.
N/A Non disponible
Les unités 30HXC 080-375 pour hautes températures de condensation sont directement dérivées des modèles standard. Leur plage d'application est la même que celle des unités standard, mais permet un fonctionnement à des températures d'eau de sortie condenseur allant jusqu'à 63°C. La commande PRO-DIALOG offre tous les avantages des unités standard, plus le contrôle de la température d'eau de sortie condenseur.
Les principales modifications sont les suivantes :
- Utilisation de compresseurs 30GX
- Modification des composants électriques pour fonctionner avec des compresseurs pour hautes températures de condensation.
- Modification des échangeurs de chaleur pour répondre aux exigences du code de pression (si nécessaire).
Option 150
Ces unités sont conçues pour les applications traditionnelles des unités refroidies par eau, mais pour des températures d'eau de sortie condenseur supérieures à 45°C.
Comme les unités standard, elles sont équipées de capteurs de température d'eau d'entrée et de sortie condenseur, installés sur la tuyauterie.
Il est possible de contrôler la machine à la sortie d'eau du condenseur, ce qui nécessite un changement de configuration en usine et l'utilisation d'un dispositif d'inversion d'entrée chauffage/refroidissement.
Option 150A
Ces unités sont conçues pour les pompes à chaleur eau-eau.
Elles sont configurées en usine comme pompes à chaleur (commande chauffage/refroidissement en fonction du dispositif d'inversion à distance). Le condenseur intègre une isolation thermique identique à celle de l'évaporateur.
Informations techniques
Toutes les informations sont identiques à celles des unités 30HXC standard, à l'exception des paragraphes suivants.
Sélection
Il n'y a pas de conditions nominales pour ce type d'unité. La sélection s'effectue à l'aide du catalogue électronique actuel.
Dimensions
Elles sont identiques à celles des unités 30HXC standard. La seule différence concerne le diamètre de la connexion de câblage sur site, décrite dans le chapitre "Sélection recommandée". Se référer aux plans dimensionnels de ces unités, avant de procéder au câblage.
Compresseur
Voir le tableau des compresseurs 30GX.
Options et accessoires
Toutes les options disponibles pour les unités 30HXC standard sont compatibles, sauf :
| Option 5, unité à saumure | Unité spéciale |
| Option 25, démarrage progressif, unités 30HXC 200-375 | Non disponible |
Attention :
Si les unités ont deux modes de fonctionnement différents - un avec une température de condensation élevée et l'autre avec une température de condensation basse - et que la transition est effectuée avec l'unité en fonctionnement, la température ne doit pas varier de plus de 3 K par minute. Dans les cas où cela n'est pas possible, il est recommandé de passer par un interrupteur de démarrage/arrêt de l'unité (démarrage/arrêt à distance disponible pour les unités standard).
DONNÉES PHYSIQUES 30GX
| 30GX | 082 | 092 | 102 | 112 | 122 | 132 | 152 | 162 | 182 | 207 | 227 | 247 | 267 | 298 | 328 | 358 | ||
| Puissance frigorifique nette | kW | 285 | 309 | 332 | 388 | 417 | 450 | 505 | 536 | 602 | 687 | 744 | 810 | 910 | 1003 | 1103 | 1207 | |
| Poids en fonctionnement | kg | 3116 | 3157 | 3172 | 3515 | 3531 | 3633 | 3920 | 3936 | 4853 | 5540 | 5570 | 6134 | 6365 | 7354 | 7918 | 8124 | |
| Charge de réfrigérant | HFC-134a | |||||||||||||||||
| Circuit A/B | kg | 55/55 | 58/50 | 54/53 | 55/53 | 60/57 | 63/60 | 75/69 | 75/75 | 80/80 | 130/85 | 130/85 | 155/98 | 170/104 | 162/150 | 162/165 | 175/175 | |
| Huile | Huile de polyolester CARRIER SPEC: PP 47-32 | |||||||||||||||||
| Circuit A/B | l | 20/20 | 20/20 | 20/20 | 20/20 | 20/20 | 20/20 | 20/20 | 20/20 | 20/20 | 40/20 | 40/20 | 40/20 | 40/20 | 40/40 | 40/40 | 40/40 | |
| Compresseurs | À double vis hermétique Power3 | |||||||||||||||||
| Circ. A, taille nom. par compresseur** | 46 | 46 | 56 | 56 | 66 | 66 | 80 | 80 | 80+ | 66/56 | 80/66 | 80/80 | 80+/80+ | 80/80 | 80/80 | 80+/80+ | ||
| Circ. B, taille nom. par compresseur** | 39 | 46 | 46 | 56 | 56 | 66 | 66 | 80 | 80+ | 80 | 80 | 80 | 80+ | 66/66 | 80/802 | 80+/80+ | ||
| Type de commande | Commande PRO-DIALOG Plus | |||||||||||||||||
| Nombre de niveaux de capacité | 6 | 6 | 6 | 6 | 6 | 6 | 6 | 6 | 6 | 8 | 8 | 8 | 8 | 10 | 10 | 10 | ||
| Capacité minimale | % | 19 | 21 | 19 | 21 | 19 | 21 | 19 | 21 | 21 | 16 | 14 | 14 | 14 | 9 | 10 | 10 | |
| Évaporateur | Type à faisceau tubulaire, avec tubes en cuivre à ailettes internes | |||||||||||||||||
| Volume net d'eau | l | 65 | 73 | 73 | 87 | 87 | 101 | 91 | 91 | 109 | 140 | 140 | 165 | 181 | 203 | 229 | 229 | |
| Raccordements eau | Bride plate fournie en usine, à souder sur site | |||||||||||||||||
| Entrée et sortie | in. | 4 | 4 | 4 | 5 | 5 | 5 | 5 | 5 | 5 | 6 | 6 | 6 | 6 | 8 | 8 | 8 | |
| Vidange et purge (NPT) | in. | 3/8 | 3/8 | 3/8 | 3/8 | 3/8 | 3/8 | 3/8 | 3/8 | 3/8 | 3/8 | 3/8 | 3/8 | 3/8 | 3/8 | 3/8 | 3/8 | |
| Pression de service max. côté eau | kPa | 1000 | 1000 | 1000 | 1000 | 1000 | 1000 | 1000 | 1000 | 1000 | 1000 | 1000 | 1000 | 1000 | 1000 | 1000 | 1000 | |
| Condenseurs | Tubes en cuivre et ailettes en aluminium | |||||||||||||||||
| Ventilateurs | Ventilateur axial FLYING BIRD 2 avec carénage rotatif | |||||||||||||||||
| Quantité | 4 | 4 | 4 | 6 | 6 | 6 | 8 | 8 | 8 | 10 | 10 | 12 | 12 | 14 | 16 | 16 | ||
| Vitesse | r/s | 15.8 | 15.8 | 15.8 | 15.8 | 15.8 | 15.8 | 15.8 | 15.8 | 15.8 | 15.8 | 15.8 | 15.8 | 15.8 | 15.8 | 15.8 | 15.8 | |
| Débit d'air total | l/s | 21110 | 21110 | 21110 | 31660 | 31660 | 31660 | 42220 | 42220 | 42220 | 52770 | 52770 | 63330 | 63330 | 73880 | 84440 | 84440 | |
* Conditions normalisées Eurovent : températures d'eau d'entrée/sortie évaporateur = 12°C/7°C, température d'air extérieur = 35°C. Puissance frigorifique nette : Puissance frigorifique brute moins la chaleur de la pompe à eau contre la perte de charge interne de l'évaporateur.
** La taille du compresseur correspond à la capacité nominale en tonnes (1 tonne = 3,517 kW).
DONNÉES ÉLECTRIQUES 30GX
| 30HXC | 082 | 092 | 102 | 112 | 122 | 132 | 152 | 162 | 182 | 207 | 227 | 247 | 267 | 298 | 328 | 358 | ||
| Circuit de puissance | ||||||||||||||||||
| Alimentation nominale* | V-ph-Hz | 400-3-50 | ||||||||||||||||
| Plage de tension | V | 360-440 | ||||||||||||||||
| Alimentation circuit de commande | Le circuit de commande est alimenté via le transformateur installé en usine | |||||||||||||||||
| Puissance absorbée nominale* | kW | 98 | 109 | 123 | 133 | 150 | 166 | 179 | 196 | 214 | 246 | 281 | 292 | 332 | 364 | 394 | 449 | |
| Courant absorbé nominal* | A | 180 | 200 | 223 | 256 | 273 | 290 | 326 | 352 | 388 | 449 | 492 | 528 | 582 | 642 | 704 | 776 | |
| Puissance absorbée max.** | kW | 127 | 141 | 154 | 175 | 191 | 207 | 234 | 253 | 286 | 319 | 355 | 380 | 429 | 462 | 506 | 572 | |
| Circuit A | kW | - | - | - | - | - | - | - | - | - | 193 | 228 | 253 | 286 | 253 | 253 | 286 | |
| Circuit B | kW | - | - | - | - | - | - | - | - | - | 127 | 127 | 127 | 143 | 209 | 253 | 286 | |
| Cos phi, unité à pleine charge | 0.85 | 0.85 | 0.85 | 0.85 | 0.85 | 0.85 | 0.86 | 0.86 | 0.86 | 0.86 | 0.86 | 0.86 | 0.86 | 0.86 | 0.86 | |||
| Courant absorbé max. (Un - 10%)*** | A | 237 | 262 | 287 | 323 | 353 | 383 | 429 | 464 | 524 | 585 | 650 | 696 | 786 | 847 | 928 | 1048 | |
| Circuit A | A | - | - | - | - | - | - | - | - | - | 353 | 418 | 464 | 524 | 464 | 464 | 524 | |
| Circuit B | A | - | - | - | - | - | - | - | - | - | 232 | 232 | 232 | 262 | 383 | 464 | 524 | |
| Courant absorbé maximum (Un)*** | A | 217 | 240 | 263 | 297 | 324 | 351 | 394 | 426 | 480 | 537 | 596 | 639 | 721 | 777 | 852 | 961 | |
| Circuit A | A | - | - | - | - | - | - | - | - | - | 324 | 383 | 426 | 480 | 426 | 426 | 480 | |
| Circuit B | A | - | - | - | - | - | - | - | - | - | 213 | 213 | 213 | 240 | 351 | 426 | 480 | |
| Courant de démarrage max., unité std.**** (Un) | A | 334 | 357 | 401 | 435 | 468 | 495 | 590 | 622 | 662 | 1338 | 1631 | 1674 | 1767 | 1812 | 1887 | 2008 | |
| Circuit A*** | A | - | - | - | - | - | - | - | - | - | 1125 | 1418 | 1461 | 1527 | 1461 | 1461 | 1527 | |
| Circuit B*** | A | - | - | - | - | - | - | - | - | - | 1248 | 1248 | 1248 | 1287 | 1152 | 1461 | 1527 | |
| Rapport courant de démarrage max./courant absorbé max., unité | 1.54 | 1.49 | 1.53 | 1.47 | 1.44 | 1.41 | 1.50 | 1.46 | 1.38 | 2.49 | 2.74 | 2.62 | 2.45 | 2.33 | 2.22 | 2.09 | ||
| Rapport courant de démarrage max./courant absorbé max., circuit A | - | - | - | - | - | - | - | - | - | 3.47 | 3.70 | 3.43 | 3.18 | 3.43 | 3.43 | 3.18 | ||
| Rapport courant de démarrage max./courant absorbé max., circuit B | - | - | - | - | - | - | - | - | - | 5.86 | 5.86 | 5.86 | 5.36 | 3.28 | 3.43 | 3.18 | ||
| Courant de démarrage max. - démarrage à courant réduit (Un) **** | A | std. | std. | std. | std. | std. | std. | std. | std. | std. | 878 | 955 | 998 | 1102 | 1136 | 1211 | 1343 | |
| Circuit A | A | std. | std. | std. | std. | std. | std. | std. | std. | std. | 665 | 742 | 785 | 862 | 785 | 785 | 862 | |
| Circuit B | A | std. | std. | std. | std. | std. | std. | std. | std. | std. | 572 | 572 | 572 | 622 | 692 | 785 | 862 | |
| Rapport courant de démarrage max. - démarrage à courant réduit / courant absorbé max., unité | std. | std. | std. | std. | std. | std. | std. | std. | std. | 1.64 | 1.60 | 1.56 | 1.53 | 1.46 | 1.42 | 1.40 | ||
| Circuit A | std. | std. | std. | std. | std. | std. | std. | std. | std. | 2.05 | 1.94 | 1.84 | 1.79 | 1.84 | 1.84 | 1.79 | ||
| Circuit B | std. | std. | std. | std. | std. | std. | std. | std. | std. | 2.69 | 2.69 | 2.69 | 2.39 | 1.97 | 1.84 | 1.79 | ||
| Courant de maintien de court-circuit triphasé | kA | 25 | 25 | 25 | 25 | 25 | 25 | 25 | 25 | 25 | N/A | N/A | N/A | N/A | N/A | N/A | N/A | |
| Circuit A | kA | - | - | - | - | - | - | - | - | - | 25 | 25 | 25 | 25 | 25 | 25 | 25 | |
| Circuit B | kA | - | - | - | - | - | - | - | - | - | 25 | 25 | 25 | 25 | 25 | 25 | 25 | |
| Capacité de secours client, unité ou circ. A, pour les connexions de pompe d'eau d'évaporateur† | kW | 4 | 4 | 4 | 5.5 | 5.5 | 5.5 | 7.5 | 7.5 | 7.5 | 7.5 | 9 | 9 | 9 | 15 | 15 | 15 | |
* Conditions Eurovent standard : Température d'entrée/sortie d'eau de l'évaporateur 12°C et 7°C. Température de l'air extérieur 35°C.
** Puissance absorbée, compresseur et ventilateur, aux limites de fonctionnement de l'unité (température d'entrée/sortie d'eau de l'évaporateur = 15°C/10°C, température de l'air extérieur = 46°C) et une tension nominale de 400 V (données figurant sur la plaque signalétique de l'unité).
*** Courant de fonctionnement maximal de l'unité à la puissance absorbée maximale de l'unité.
**** Courant de démarrage instantané maximal (courant de fonctionnement maximal du ou des plus petits compresseurs + courant du ventilateur + courant de rotor bloqué ou courant de démarrage réduit du plus grand compresseur).
† Courants et puissances absorbées non inclus dans les valeurs ci-dessus
N/A Non disponible
Compresseurs
| Référence | Taille | I nom. | MHA | LRA | LRA (Y) | LRA (S) 1 cp. | LRA (S) 2 cp. |
| 06NA2146S7N | 39 | 70 | 95 | 605 | 191 | 220 | - |
| 06NA2174S7N | 46 | 90 | 120 | 715 | 226 | 260 | - |
| 06NA2209S7N | 56 | 113 | 145 | 856 | 270 | 330 | 420 |
| 06NA2250S7N | 66 | 130 | 175 | 960 | 303 | 380 | 500 |
| 06NA2300S5N | 80 | 156 | 210 | 1226 | 387 | 445 | 550 |
| 06NA2300S5E | 80+ | 174 | 240 | 1265 | 400 | 460 | 600 |
Légende :
| 06NA | Compresseur pour unités à condensation par air |
| N | Compresseur non économisé |
| E | Compresseur économisé |
| INOM | Courant absorbé moyen du compresseur dans les conditions Eurovent |
| MHA | Courant de maintien maximal (courant de fonctionnement maximal) à 360 V |
| LRA | Courant de rotor bloqué avec démarrage direct |
| LRA (Y) | Courant de rotor bloqué à courant réduit (mode de démarrage étoile/triangle) |
| LRA (S) 1 cp. | Démarrage à courant réduit avec démarreur électronique (durée de démarrage 3 secondes max.) pour un compresseur par circuit |
| LRA (S) 2 cp. | Démarrage à courant réduit avec démarreur électronique (durée de démarrage 3 secondes max.) pour deux compresseurs par circuit |
DONNÉES D'APPLICATION
Plage de fonctionnement de l'unité
| Évaporateur | Minimum | Maximum | |
| Température d'entrée d'eau de l'évaporateur | °C | 6.8* | 21 |
| Température de sortie d'eau de l'évaporateur | °C | 4** | 15 |
| Condenseur (refroidi par eau) | Minimum | Maximum | |
| Température d'entrée d'eau du condenseur | °C | 20*** | 42 |
| Température de sortie d'eau du condenseur | °C | 25 | 45 |
| Température ambiante de fonctionnement extérieur 30HXC | °C | 6 | 40 |
| Condenseur (refroidi par air) | Minimum | Maximum | |
| Température ambiante de fonctionnement extérieur | °C | 0 | 46 |
| Pression statique disponible | kPa | 0 |
Remarques :
* Pour les applications nécessitant un fonctionnement à moins de 6,8°C, contactez Carrier s.a. pour la sélection de l'unité à l'aide du catalogue électronique Carrier.
** Pour les applications nécessitant un fonctionnement à moins de 4°C, les unités nécessitent l'utilisation d'antigel.
*** Les unités refroidies par eau (30HXC) fonctionnant à pleine charge et avec une température d'entrée d'eau du condenseur inférieure à 20°C nécessitent l'utilisation d'une régulation de pression de refoulement avec des vannes de régulation d'eau analogiques (voir le paragraphe sur la régulation de pression de refoulement).
En modes de fonctionnement temporaires (démarrage et à charge partielle), l'unité peut fonctionner avec une température d'entrée d'air du condenseur de 13°C.
Débit d'eau glacée minimum
Le débit d'eau glacée minimum est indiqué dans le tableau à la page suivante. Si le débit est inférieur à cette valeur, le débit de l'évaporateur peut être recirculé, comme le montre le diagramme. La température du mélange sortant de l'évaporateur ne doit jamais être inférieure de plus de 2,8 K à la température d'entrée d'eau glacée.

POUR LE DÉBIT D'EAU GLACÉE MINIMUM
Débit d'eau glacée maximum
Le débit d'eau glacée maximum est limité par la perte de charge maximale autorisée dans l'évaporateur. Il est indiqué dans le tableau à la page suivante. Si le débit dépasse la valeur maximale, deux solutions sont possibles :
- Sélectionner un évaporateur non standard avec un passage d'eau en moins, ce qui permettra un débit d'eau maximum plus élevé.
- Contourner l'évaporateur comme indiqué dans le diagramme pour obtenir une différence de température plus élevée avec un débit d'évaporateur plus faible.

POUR LE DÉBIT D'EAU GLACÉE MAXIMUM
Évaporateur à débit variable
Le débit variable de l'évaporateur peut être utilisé dans les refroidisseurs standard 30HXC et 30GX. Les refroidisseurs maintiennent une température de sortie d'eau constante quelles que soient les conditions de débit. Pour cela, le débit minimum doit être supérieur au débit minimum indiqué dans le tableau des débits admissibles et ne doit pas varier de plus de 10% par minute. Si le débit change plus rapidement, le système doit contenir un minimum de 6,5 litres d'eau par kW au lieu de 3,25 l/kW.
Volume d'eau minimum du système
Quel que soit le système, la capacité minimale de la boucle d'eau est donnée par la formule :
Capacité = Cap (kW) x N Litres
| Application | N |
| Climatisation normale | 3.25 |
| Refroidissement de type process | 6.5 |
Où Cap est la capacité de refroidissement nominale (kW) du système aux conditions de fonctionnement nominales de l'installation.
Ce volume est nécessaire pour un fonctionnement stable et un contrôle précis de la température.
Il est souvent nécessaire d'ajouter un réservoir tampon au circuit d'eau afin d'atteindre le volume requis. Le réservoir doit lui-même être équipé de chicanes internes pour assurer un mélange approprié du liquide (eau ou saumure). Se référer aux exemples ci-dessous.
REMARQUE : Le compresseur ne doit pas redémarrer plus de 6 fois par heure.


Débit du refroidisseur (l/s)
| 30HXC | Min.* | Max.** | ||
| 080-090 | 5.7 | 22.7 | ||
| 100 | 6.0 | 24.1 | ||
| 110 | 6.9 | 27.5 | ||
| 120-130 | 8.3 | 33.0 | ||
| 140-155 | 10.0 | 39.5 | ||
| 175-190 | 10.7 | 42.7 | ||
| 200 | 13.4 | 53.7 | ||
| 230 | 13.4 | 60.6 | ||
| 260-285 | 17.0 | 68.1 | ||
| 310 | 19.4 | 77.8 | ||
| 345-375 | 21.3 | 85.3 | ||
| 30GX | Min.* | Max.** | ||
| 082 | 5.7 | 22.7 | ||
| 092-102 | 6.0 | 24.1 | ||
| 112-122 | 6.9 | 27.5 | ||
| 132 | 8.4 | 33.7 | ||
| 152-162 | 10.0 | 39.9 | ||
| 182 | 10.7 | 42.7 | ||
| 207-227 | 13.4 | 53.7 | ||
| 247 | 15.1 | 60.6 | ||
| 267 | 17.0 | 68.1 | ||
| 298 | 19.4 | 77.8 | ||
| 328-358 | 21.3 | 85.3 | ||
* Basé sur une vitesse de l'eau de 0,9 m/s.
** Basé sur une vitesse de l'eau de 3,6 m/s.
Débit du condenseur (l/s)
| 30HXC | Min.* Boucle fermée | Boucle ouverte | Max.** |
| 080-110 | 2.5 | 7.5 | 29.9 |
| 120-130 | 3.1 | 9.3 | 37.3 |
| 140-155 | 3.8 | 11.4 | 45.5 |
| 175-190 | 4.6 | 13.8 | 55.2 |
| 200 | 5.0 | 14.9 | 59.6 |
| 230-285 | 6.7 | 20.1 | 80.3 |
| 310-375 | 7.3 | 22.0 | 88.0 |
* Basé sur une vitesse de l'eau de 0,3 m/s en boucle fermée et 0,9 m/s en boucle ouverte.
** Basé sur une vitesse de l'eau de 3,6 m/s
Courbe de perte de charge de l'évaporateur

- 30HXC 080-090/30GX 082
- 30HXC 100/30GX 092-102
- 30HXC 110/30GX 112-122
- 30GX 132
- 30HXC 120-130
- 30HXC 140-155/30GX 152-162
- 30HXC 175-190/30GX 182
- 30HXC 200/30GX 207-227
- 30HXC 230/30GX 247
- 30HXC 260-285/30GX 267
- 30HXC 310/30GX 298
- 30HXC 345-375/30GX 328-358
Courbe de perte de charge du condenseur

- 30HXC 080-090-100-110
- 30HXC 120-130
- 30HXC 140-155
- 30HXC 175-190
- 30HXC 200
- 30HXC 230-260-285
- 30HXC 310-345-375
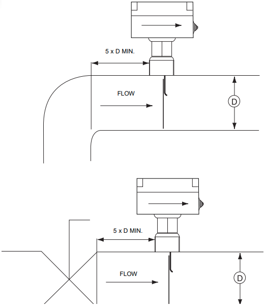
Régulateurs de débit
Débitstat du refroidisseur et interverrouillage de la pompe à eau glacée
Il est obligatoire d'installer le débitstat du refroidisseur et de connecter l'interverrouillage de la pompe à eau glacée sur les unités 30HXC et 30GX. Le non-respect de cette instruction annulera la garantie Carrier.
Le régulateur de débitstat du refroidisseur est fourni et câblé en usine sur les unités 30HXC et 30GX.
Suivez les instructions du fabricant pour l'installation.
Le débitstat peut être monté sur une tuyauterie horizontale ou verticale avec un écoulement de liquide ascendant. Il ne doit pas être utilisé lorsque l'écoulement de liquide est descendant.
Montez-le dans une section de tuyauterie où il y a une longueur droite d'au moins cinq diamètres de tuyau de chaque côté du débitstat. Ne le placez pas à proximité de vannes, de coudes ou d'orifices. La palette ne doit jamais toucher la tuyauterie ou toute restriction dans la tuyauterie. Vissez le débitstat en position de manière à ce que la partie plate de la palette soit à angle droit par rapport à l'écoulement. Les flèches sur le couvercle et en bas, à l'intérieur du boîtier, doivent indiquer la direction de l'écoulement. L'interrupteur doit être monté de manière à ce que les bornes soient accessibles pour un câblage facile.
Les bornes 34 et 35 sont prévues pour l'installation sur site d'un interverrouillage de la pompe à eau glacée (contact auxiliaire du contacteur de la pompe à eau glacée).
(Raccordement de la tuyauterie : 1" NPT)

Débitstat du condenseur (30HXC)
Le débitstat du condenseur est un dispositif installé sur site.
INSTALLATION
Vérifier l'équipement reçu
- Inspectez l'unité pour détecter d'éventuels dommages ou pièces manquantes. Si des dommages sont détectés ou si l'envoi est incomplet, déposez immédiatement une réclamation auprès de la compagnie de transport.
- Confirmez que l'unité reçue est bien celle commandée. Comparez les données de la plaque signalétique avec la commande.
- Confirmez que tous les accessoires commandés pour l'installation sur site ont été livrés, sont complets et non endommagés.
- Ne stockez pas les unités dans une zone exposée aux intempéries en raison du mécanisme de commande sensible et des dispositifs électroniques.
Déplacement et implantation de l'unité
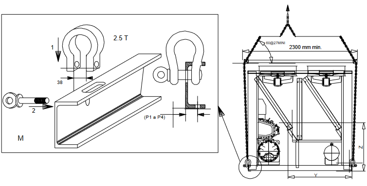
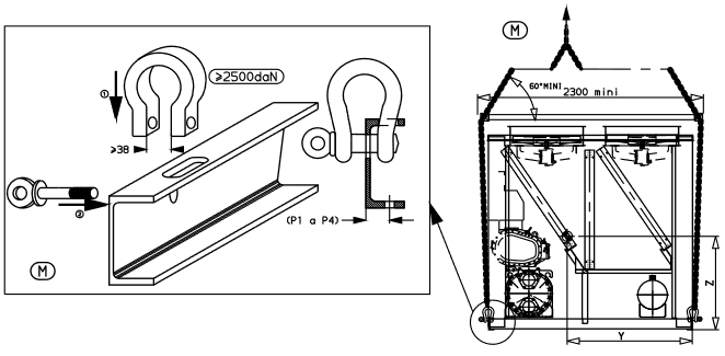
Déplacement
Ne retirez pas les patins, les palettes ou l'emballage de protection tant que l'unité n'est pas dans sa position finale. Déplacez le refroidisseur à l'aide de tubes ou de rouleaux, ou soulevez-le à l'aide d'élingues de capacité appropriée.
(30HXC)
Utilisez uniquement les élingues aux points de levage désignés qui sont marqués sur l'unité, sur le dessus de l'échangeur de chaleur du refroidisseur. Un gréement par le bas de l'échangeur de chaleur entraînerait un levage dangereux de l'unité. Des blessures corporelles ou des dommages à l'unité peuvent survenir. Suivez les instructions de gréement fournies sur le plan dimensionnel certifié livré avec l'unité.
Implantation
Reportez-vous toujours au chapitre "Dimensions et dégagements" pour confirmer qu'il y a suffisamment d'espace pour toutes les connexions et opérations de service. Pour les coordonnées du centre de gravité, la position des trous de montage de l'unité et les points de répartition du poids, reportez-vous au plan dimensionnel certifié fourni avec l'unité.
Nous recommandons d'installer ces refroidisseurs soit en sous-sol, soit au rez-de-chaussée. Si l'un doit être installé au-dessus du rez-de-chaussée, vérifiez d'abord que la charge admissible au sol est adéquate et que le sol est suffisamment solide et de niveau. Si nécessaire, renforcez et nivelez le sol.
Une fois le refroidisseur à son emplacement final, retirez les patins et autres dispositifs utilisés pour faciliter son déplacement. Nivelez l'unité à l'aide d'un niveau à bulle et boulonnez l'unité au sol ou au socle. Le fonctionnement de ces unités peut être altéré si elles ne sont pas de niveau et ne sont pas solidement fixées à leurs supports. Si nécessaire, utilisez des patins d'isolation sous l'unité pour aider à l'isolation des vibrations.
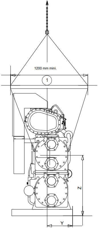
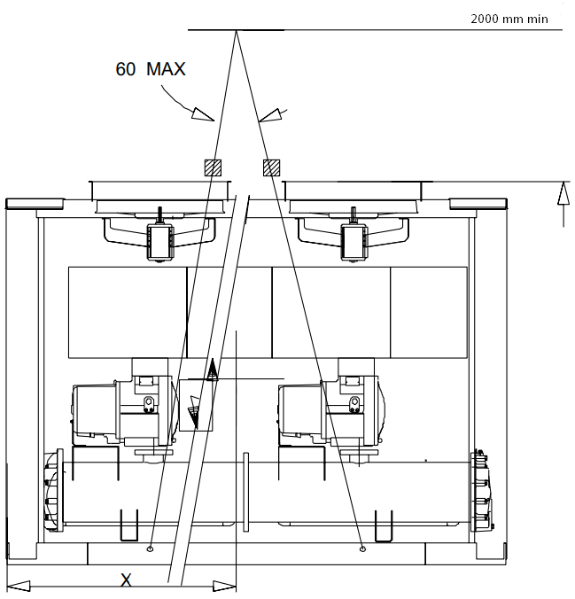
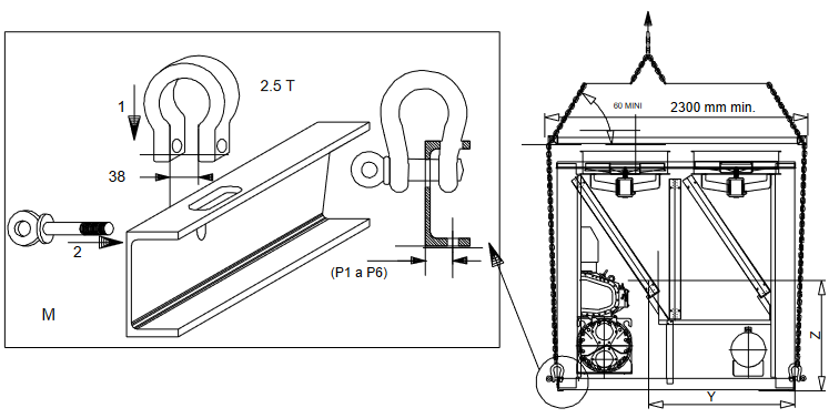
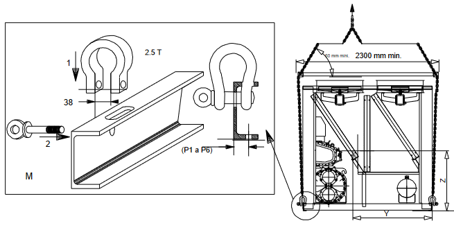
INSTRUCTIONS DE LEVAGE
30HXC 080-190
Ce diagramme est présenté à titre informatif uniquement. Reportez-vous aux "dessins certifiés".

- SAUF 30HXC 190
X mm Y mm Z mm 30HXC080
30HXC090
30HXC1001345 402 903 30HXC110 1368 397 935 30HXC120
30HXC130
30HXC140
30HXC1551731 392 879 30HXC175 1703 386 947 30HXC190 1705 398 955


NOTE
Une fois toutes les opérations de levage et de positionnement terminées, il est recommandé de retoucher toutes les surfaces où la peinture a été enlevée sur les pattes de levage.
30HXC 200-285
Ce diagramme est présenté à titre informatif uniquement. Reportez-vous aux "dessins certifiés".


30HXC 310-375


| X mm | Y mm | Z mm | |
| 30HXC310 | 2195 | 425 | 1085 |
| 30HXC345 | 2195 | 425 | 1085 |
| 30HXC375 | 2205 | 435 | 1025 |
NOTE
Une fois toutes les opérations de levage et de positionnement terminées, il est recommandé de retoucher toutes les surfaces où la peinture a été enlevée sur les pattes de levage.
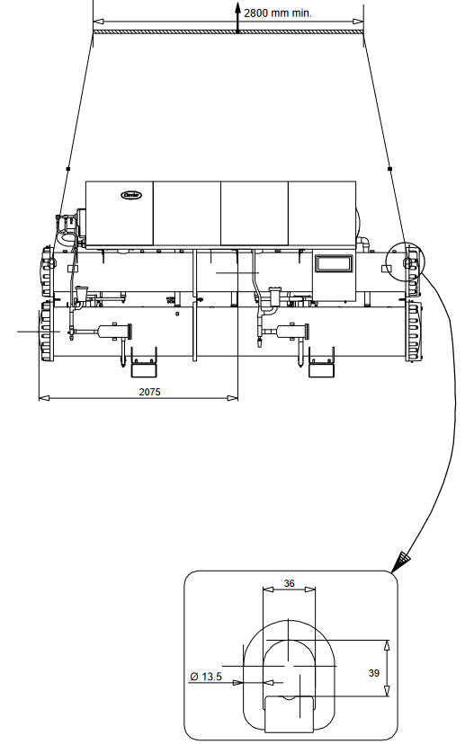
30GX 082-162
Ce diagramme est présenté à titre informatif uniquement. Reportez-vous aux "dessins certifiés".



| X mm | Y mm | Z mm | PTkg | |
| 30GX082 | 1440 | 1460 | 900 | 3115 |
| 30GX092 | 1440 | 1460 | 900 | 3156 |
| 30GX102 | 1440 | 1460 | 900 | 3170 |
| 30GX112 | 1650 | 1460 | 900 | 3574 |
| 30GX122 | 1650 | 1460 | 900 | 3527 |
| 30GX132 | 1650 | 1460 | 900 | 3634 |
| 30GX152 | 2155 | 1430 | 900 | 3938 |
| 30GX162 | 2155 | 1430 | 900 | 3954 |
30GX 182



| X mm | Y mm | Z mm | PTkg | |
| 30GX182 | 3030 | 1370 | 875 | 4853 |
NOTE
Une fois toutes les opérations de levage et de positionnement terminées, il est recommandé de retoucher toutes les surfaces où la peinture a été enlevée sur la patte de levage.
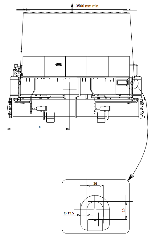
30GX 207-267
Ce diagramme est présenté à titre informatif uniquement. Reportez-vous aux "dessins certifiés".



| X mm | Y mm | Z mm | PTkg | |
| 30GX207 | 2870 | 1440 | 890 | 5536 |
| 30GX227 | 2870 | 1440 | 890 | 5572 |
| 30GX247 | 3320 | 1430 | 927 | 6131 |
| 30GX267 | 3300 | 1420 | 886 | 6363 |
30GX 298-358



| X mm | Y mm | Z mm | PTkg | |
| 30GX298 | 3630 | 1420 | 890 | 7353 |
| 30GX328 | 4360 | 1455 | 920 | 7840 |
| 30GX358 | 4360 | 1445 | 930 | 8045 |
NOTE
Une fois toutes les opérations de levage et de positionnement terminées, il est recommandé de retoucher toutes les surfaces où la peinture a été enlevée sur les pattes de levage.
Raccordements de tuyauterie
Reportez-vous aux plans dimensionnels certifiés pour les dimensions et les positions de tous les raccordements d'entrée et de sortie d'eau. Les tuyaux d'eau ne doivent transmettre aucune force radiale ou axiale aux échangeurs de chaleur ni aucune vibration à la tuyauterie ou au bâtiment.
L'approvisionnement en eau doit être analysé et des dispositifs de filtration, de traitement, de contrôle, des vannes d'isolement et de purge et des circuits appropriés doivent être mis en place, si nécessaire. Consultez un spécialiste du traitement de l'eau ou la littérature appropriée sur le sujet.
Précautions d'utilisation
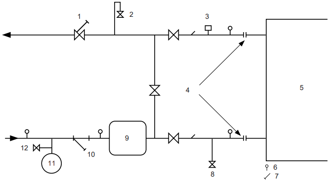
Le circuit d'eau doit être conçu pour avoir le moins de coudes et de tronçons de tuyaux horizontaux à différents niveaux. Les vérifications de base suivantes doivent être effectuées (voir également l'illustration d'un circuit hydraulique typique ci-dessous).
- Notez les entrées et sorties d'eau des échangeurs de chaleur.
- Installez des purges d'air manuelles ou automatiques à tous les points hauts du circuit d'eau.
- Utilisez un vase d'expansion ou une soupape d'expansion/de décharge pour maintenir la pression dans le système.
- Installez des thermomètres et des manomètres d'eau aux raccordements d'entrée et de sortie d'eau, près de l'évaporateur.
- Installez des vannes de vidange à tous les points bas pour permettre la vidange de l'ensemble du circuit. Connectez une vanne d'arrêt dans la conduite de vidange avant de faire fonctionner le refroidisseur.
- Installez des vannes d'arrêt et des manomètres, près de l'évaporateur, dans les conduites d'entrée et de sortie d'eau.
- Installez un interrupteur de débit pour le refroidisseur.
- Utilisez des raccords flexibles pour réduire la transmission des vibrations à la tuyauterie.
- Isolez toute la tuyauterie, après avoir vérifié l'absence de fuites, à la fois pour réduire les pertes thermiques et pour éviter la condensation.
- Couvrez l'isolation avec un pare-vapeur.
Raccordements de l'évaporateur et du condenseur
L'évaporateur et le condenseur sont de type multitubulaire à faisceau tubulaire avec des boîtes à eau amovibles pour faciliter le nettoyage des tubes.
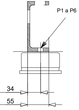
Avant de réaliser les raccordements d'eau, serrez les boulons des deux têtes au couple inférieur indiqué, en suivant la méthode décrite. Serrez par paires et dans la séquence indiquée en fonction de la taille du boulon (voir tableau) en utilisant une valeur de couple dans le bas de la plage donnée.
Retirez la bride plate fournie en usine de la boîte à eau avant de souder la tuyauterie à la bride. Ne pas retirer la bride peut endommager les capteurs et l'isolation.
NOTE
Nous recommandons de vidanger le système et de déconnecter la tuyauterie pour s'assurer que les boulons des têtes auxquelles la tuyauterie est connectée sont correctement et uniformément serrés.
Protection antigel
Protection de l'évaporateur et du condenseur à eau
Si le refroidisseur ou la tuyauterie d'eau se trouve dans une zone où la température ambiante peut descendre en dessous de 0°C, il est recommandé d'ajouter une solution antigel pour protéger l'unité et la tuyauterie d'eau jusqu'à une température de 8 K en dessous de la température la plus basse. N'utilisez que des solutions antigel approuvées pour les échangeurs de chaleur. Si le système n'est pas protégé par une solution antigel et ne sera pas utilisé pendant des conditions météorologiques de gel, la vidange du refroidisseur et de la tuyauterie extérieure est obligatoire. Les dommages dus au gel ne sont pas couverts par la garantie.
Séquence de serrage de la boîte à eau

Légende
- Séquence 1: 1 2 3 4
Séquence 2: 5 6 7 8
Séquence 3: 9 10 11 12 - Couple de serrage
Taille du boulon M16 - 171 - 210 Nm
Schéma de circuit hydraulique typique

Légende
- Vanne de régulation
- Purgeur d'air
- Débitmètre
- Raccord flexible
- Échangeur de chaleur
- Prise de pression
- Doigt de gant de thermostat
- Drain
- Ballon tampon
- Filtre
- Vase d d'expansion
- Vanne de remplissage
CARACTÉRISTIQUES ÉLECTRIQUES
- Les 30HXC 080-190 et 30GX 082-182 disposent d'un seul interrupteur de sectionnement/d'isolement.
- Les 30HXC 200-375 et 30GX 207-358 disposent de deux interrupteurs de sectionnement/d'isolement.
- Le boîtier de commande intègre en standard les éléments suivants :
- Les démarreurs et les dispositifs de protection moteur pour chaque compresseur et les ventilateurs
- Les composants de commande
- Raccordements sur site :
Tous les raccordements au réseau et l'installation électrique doivent être effectués conformément aux directives applicables sur le site. - Les 30HXC et 30GX sont conçues pour faciliter la conformité à ces directives. L'ingénierie de l'équipement électrique des 30HXC et 30GX tient compte de la norme européenne EN 60204-1 (sécurité des machines - équipement électrique des machines - Partie 1 : règles générales).
La norme EN 60204-1 est un bon moyen de répondre aux exigences de la Directive Machines § 1.5.1. La recommandation normative IEC 364 est généralement reconnue comme répondant aux exigences de la réglementation d'installation.
L'Annexe B de la norme EN 60204-1 peut être utilisée pour décrire les caractéristiques électriques dans lesquelles les machines fonctionnent.
30HXC
- Les conditions de fonctionnement d'un 30HXC standard sont décrites ci-dessous :
- Conditions environnementales(1). La classification environnementale est décrite dans la norme IEC 364 § 3 :
- Plage de température ambiante : + 6°C à + 40°C, classification AA4
- Plage d'humidité (sans condensation)
50% HR à 40°C
90% HR à 20°C - Altitude - 2000 m(1)
- Pour installation intérieure
- Présence d'eau : classification AD2(1) (possibilité de gouttelettes d'eau)
- Présence de solides : classification AE2(1) (présence de particules insignifiantes)
- Présence de corrosifs et de contaminants, classification AF1 (négligeable)
- Vibration, choc : classification AG2, AH2 Compétence du personnel : classification BA4(1) (personnel qualifié conformément à la norme IEC 364).
- Conditions environnementales(1). La classification environnementale est décrite dans la norme IEC 364 § 3 :
(1) La norme de protection requise pour cette classification est IP21B (conformément au document de référence IEC 529). Tous les 30HXC ont une norme de protection IP23C et remplissent donc cette exigence de protection.
30GX
- Les conditions de fonctionnement des 30GX sont décrites ci-dessous :
- Conditions environnementales(2). La classification environnementale est décrite dans la norme EN 60721 :
- Pour installation extérieure(2)
- Plage de température ambiante : - 18°C à + 46°C, classification 4K3(2)
- Altitude 2000 m(2)
- Présence de solides : classification 4S2 (présence de particules insignifiantes)
- Présence de corrosifs et de contaminants, classification 4C2 (négligeable)
- Vibration, choc : classification 4M2
- Conditions environnementales(2). La classification environnementale est décrite dans la norme EN 60721 :
Compétence du personnel : classification BA4(2) (personnel qualifié conformément à la norme IEC 364).
(2) La norme de protection requise pour cette classification est IP43BW (conformément au document de référence IEC 529). Tous les 30GX ont une norme de protection IP45CW et remplissent donc cette exigence de protection.
30HXC/GX
- Fluctuation de la fréquence d'alimentation électrique : ± 2 Hz
- La protection contre les surintensités pour les conducteurs d'alimentation n'est pas fournie avec l'appareil.
- L'interrupteur de sectionnement/d'isolement monté en usine est un sectionneur de type "a". (EN60204-1 § 5.3.2).
REMARQUE : Si des aspects particuliers d'une installation nécessitent des caractéristiques autres que celles listées ci-dessus (ou des caractéristiques non mentionnées ici), contactez votre représentant Carrier.
Alimentation électrique
L'alimentation électrique doit être conforme aux spécifications figurant sur la plaque signalétique du refroidisseur. La tension d'alimentation doit se situer dans la plage spécifiée dans le tableau des données électriques.
Pour les raccordements, se référer aux schémas de câblage.
Le fonctionnement du refroidisseur avec une tension d'alimentation incorrecte ou un déséquilibre de phase excessif constitue une utilisation abusive qui annulera la garantie Carrier. Si le déséquilibre de phase dépasse 2% pour la tension, ou 10% pour le courant, contactez immédiatement votre fournisseur d'électricité local et assurez-vous que le refroidisseur n'est pas mis sous tension avant que des mesures correctives n'aient été prises.
Déséquilibre de phase de tension (%) :
100 x écart max. par rapport à la tension moyenne
Tension moyenne
Exemple :
Sur une alimentation 400 V - 3 ph - 50 Hz, les tensions de phase individuelles mesurées étaient :
AB = 406 V; BC = 399; AC = 394 V
| Tension moyenne | = (406 + 399 + 394)/3 = 1199/3 |
| = 399.7 soit 400 V |
Calculer l'écart maximal par rapport à la tension moyenne de 400 V :
(AB) = 406 - 400 = 6
(BC) = 400 - 399 = 1
(CA) = 400 - 394 = 6

L'écart maximal par rapport à la moyenne est de 6 V. L'écart en pourcentage le plus élevé est :
100 x 6/400 = 1.5 %
Ceci est inférieur aux 2% admissibles et est donc acceptable.
SECTIONS DE CÂBLES RECOMMANDÉES
Le dimensionnement des câbles est la responsabilité de l'installateur et dépend des caractéristiques et des réglementations applicables à chaque site d'installation. Ce qui suit n'est qu'une ligne directrice et n'engage en aucune façon la responsabilité de Carrier. Une fois le dimensionnement des câbles terminé, à l'aide du plan dimensionnel certifié, l'installateur doit s'assurer d'une connexion facile et définir toute modification nécessaire sur site.
Les raccordements fournis en standard pour les câbles d'alimentation d'entrée fournis sur site au sectionneur/interrupteur général sont conçus pour le nombre et le type de fils, énumérés dans le tableau ci-dessous.
Les calculs sont basés sur le courant machine maximal (voir les tableaux de données électriques).
Pour la conception, les méthodes d'installation normalisées suivantes sont utilisées, conformément à la norme IEC 364, tableau 52C :
- Pour les unités 30HX installées à l'intérieur du bâtiment : N°13 : conduit de câbles horizontal perforé, et N°41 : conduit fermé.
- Pour les unités 30GX installées à l'extérieur du bâtiment : N°17 : lignes aériennes suspendues, et N°61 : conduit enterré avec un coefficient de réduction de 20.
Le calcul est basé sur des câbles isolés en PVC ou XLPE avec âme en cuivre ou en aluminium. La température maximale est de 40°C pour les unités 30HX et de 46°C pour les unités 30GX.
La longueur de fil donnée limite la chute de tension à < 5 %.
| Unité | Min. (mm2) par phase | Type de fil | L (m) | Max. (mm2) par phase | Type de fil | L (m) |
| 30HX 080 | 1 x 35 | XLPE Cu | 140 | 1 x 120 | PVC Al | 260 |
| 30HX 090 | 1 x 50 | XLPE Cu | 160 | 1 x 120 | PVC Al | 260 |
| 30HX 100 | 1 x 50 | XLPE Cu | 160 | 1 x 95 | XLPE Al | 195 |
| 30HX 110 | 1 x 70 | XLPE Cu | 170 | 1 x 120 | XLPE Al | 205 |
| 30HX 120/130 | 1 x 70 | XLPE Cu | 170 | 1 x 150 | XLPE Al | 210 |
| 30HX 140 | 1 x 95 | XLPE Cu | 180 | 1 x 185 | XLPE Al | 220 |
| 30HX 155 | 1 x 95 | XLPE Cu | 180 | 1 x 240 | XLPE Al | 225 |
| 30HX 175 | 1 x 120 | XLPE Cu | 185 | 1 x 240 | XLPE Al | 225 |
| 30HX 190 | 1 x150 | XLPE Cu | 190 | 2 x 95 | XLPE Al | 195 |
| 30HX 200 ckt A | 1 x 70 | XLPE Cu | 170 | 2 x120 | PVC Al | 325 |
| 30HX 230 ckt A | 1 x 95 | XLPE Cu | 180 | 2 x 120 | PVC Al | 325 |
| 30HX 260 ckt A | 1 x 120 | XLPE Cu | 185 | 1 x 240 | XLPE Al | 225 |
| 30HX 285 ckt A | 1 x 150 | XLPE Cu | 190 | 2 x 150 | XLPE Al | 265 |
| 30HX 200 ckt B | 1 x 35 | XLPE Cu | 140 | 1 x 95 | PVC Al | 250 |
| 30HX 230 ckt B | 1 x 35 | XLPE Cu | 140 | 1 x 120 | PVC Al | 260 |
| 30HX 260 ckt B | 1 x 35 | XLPE Cu | 140 | 1 x 120 | PVC Al | 260 |
| 30HX 285 ckt B | 1 x 50 | XLPE Cu | 160 | 2 x 70 | PVC Al | 285 |
| 30HX 310 ckt A & B | 1 x 95 | XLPE Cu | 180 | 1 x 240 | XLPE Al | 225 |
| 30HX 345 ckt A & B | 1 x 120 | XLPE Cu | 190 | 1851 x 240 | XLPE Al | 225 |
| 30HX 375 ckt A & B | 1 x 150 | XLPE Cu | 190 | 2 x 150 | XLPE Al | 265 |
| 30GX 082 | 1 x 95 | XLPE Cu | 190 | 2 x 185 | PVC Al | 420 |
| 30GX 092 | 1 x 120 | XLPE Cu | 195 | 2 x 185 | PVC Al | 420 |
| 30GX 102 | 1 x 120 | XLPE Cu | 195 | 2 x 240 | PVC Al | 450 |
| 30GX 112 | 1 x 150 | XLPE Cu | 200 | 2 x 150 | XLPE Al | 300 |
| 30GX 122 | 1 x 185 | XLPE Cu | 205 | 2 x 185 | XLPE Al | 315 |
| 30GX 132 | 1 x 185 | XLPE Cu | 205 | 2 x 240 | XLPE Al | 330 |
| 30GX 152 | 1 x 240 | XLPE Cu | 205 | 3x 185 | XLPE CU | 430 |
| 30GX 162 | 2 x 95 | XLPE Cu | 190 | 3x 240 | XLPE CU | 440 |
| 30GX 182 | 2 x 120 | XLPE Cu | 200 | 3x 240 | XLPE CU | 440 |
| 30GX 207 ckt A | 1 x 185 | XLPE Cu | 205 | 3x 185 | XLPE Al | 445 |
| 30GX 227 ckt A | 1 x 240 | XLPE Cu | 205 | 3x 240 | XLPE Al | 470 |
| 30GX 247/298/328 ckt A | 2 x 120 | XLPE Cu | 225 | 3x 185 | XLPE CU | 490 |
| 30HX 267/358 ckt A | 2 x 150 | XLPE Cu | 230 | 3x 240 | XLPE CU | 505 |
| 30GX 207/227/247 ckt B | 1 x 95 | XLPE Cu | 190 | 2 x 240 | PVC Al | 560 |
| 30HX 267 ckt B | 1 x 120 | XLPE Cu | 200 | 2 x 185 | XLPE AL | 395 |
| 30GX 298 ckt B | 1 x 185 | XLPE Cu | 205 | 3x 240 | XLPE AL | 470 |
| 30GX 328 ckt B | 2 x 120 | XLPE Cu | 225 | 3x 185 | XLPE CU | 490 |
| 30GX 358 ckt B | 2 x 150 | XLPE Cu | 230 | 3x 240 | XLPE CU | 505 |
Avant de connecter les câbles d'alimentation principaux (L1 - L2 - L3) sur le bornier, il est impératif de vérifier l'ordre correct des 3 phases avant de procéder à la connexion sur le bornier ou le sectionneur/interrupteur principal.
Câblage de commande sur site
Se référer au manuel d'installation et d'entretien (IOM) des commandes et au schéma de câblage certifié fourni avec l'unité pour le câblage de commande sur site des fonctionnalités suivantes :
- Verrouillage de la pompe d'évaporateur (obligatoire)
- Interrupteur marche/arrêt à distance
- Pressostat de débit de condenseur (fourni sur site, 30HXC uniquement)
- Commutateur chauffage/refroidissement à distance
- Interrupteur externe de limite de demande 1
- Double point de consigne à distance
- Rapport d'alarme par circuit
- Commande de pompe d'évaporateur
- Commande de pompe de condenseur (30HXC uniquement)
- Réinitialisation du point de consigne à distance ou réinitialisation du capteur de température de l'air extérieur (0-10 V)
Sections de câbles recommandées pour les unités avec températures de condensation élevées (400 V - 3 ph - 50 Hz)
| Unité, options 150 + 150A 400 V - 3 ph - 50 Hz | Min. (mm2) par phase | Type de câble | L (m) | Max. (mm2) par phase | Type de câble | L (m) |
| 30HXC 080 OPT. 150 | 1 x 50 | XLPE Cu | 150 | 2 x 70 | PVC Al | 230 |
| 30HXC 090 OPT. 150 | 1 x 70 | XLPE Cu | 160 | 2 x 95 | PVC Al | 260 |
| 30HXC 100 OPT. 150 | 1 x 70 | XLPE Cu | 160 | 2 x 95 | PVC Al | 250 |
| 30HXC 110 OPT. 150 | 1 x 95 | XLPE Cu | 170 | 2 x 120 | PVC Al | 265 |
| 30HXC 120 OPT. 150 | 1 x 120 | XLPE Cu | 180 | 2 x 120 | XLPE Al | 205 |
| 30HXC 130 OPT. 150 | 1 x 120 | XLPE Cu | 160 | 2 x 120 | XLPE Al | 210 |
| 30HXC 140 OPT. 150 | 1 x 150 | XLPE Cu | 175 | 2 x 120 | XLPE Al | 205 |
| 30HXC 155 OPT. 150 | 1 x 185 | XLPE Cu | 185 | 2 x 150 | XLPE Al | 215 |
| 30HXC 175 OPT. 150 | 1 x 240 | XLPE Cu | 185 | 2 x 150 | XLPE Al | 210 |
| 30HXC 190 OPT. 150 | 2 x 95 | XLPE Cu | 175 | 2 x 240 | XLPE Al | 220 |
| 30HXC 200 OPT. 150 circ. A | 1 x 120 | XLPE Cu | 170 | 2 x 150 | XLPE Al | 270 |
| 30HXC 230 OPT. 150 circ. A | 1 x 150 | XLPE Cu | 180 | 2 x 185 | XLPE Al | 270 |
| 30HXC 260 OPT. 150 circ. A | 1 x 185 | XLPE Cu | 180 | 2 x 240 | XLPE Al | 295 |
| 30HXC 285 OPT. 150 circ. A | 1 x 240 | XLPE Cu | 170 | 2 x 185 | XLPE Cu | 265 |
| 30HXC 310 OPT. 150 circ. A | 1 x 185 | XLPE Cu | 180 | 2 x 240 | XLPE Al | 300 |
| 30HXC 345 OPT. 150 circ. A | 1 x 185 | XLPE Cu | 170 | 2 x 240 | XLPE Al | 280 |
| 30HXC 375 OPT. 150 circ. A | 1 x 240 | XLPE Cu | 170 | 2 x 185 | XLPE Cu | 265 |
| 30HXC 200 OPT. 150 circ. B | 1 x 35 | XLPE Cu | 125 | 2 x 95 | PVC Al | 320 |
| 30HXC 230 OPT. 150 circ. B | 1 x 50 | XLPE Cu | 140 | 2 x 95 | PVC Al | 310 |
| 30HXC 260 OPT. 150 circ. B | 1 x 50 | XLPE Cu | 140 | 2 x 95 | PVC Al | 310 |
| 30HXC 285 OPT. 150 circ. B | 1 x 70 | XLPE Cu | 160 | 2 x 120 | PVC Al | 325 |
| 30HXC 310 OPT. 150 circ. B | 1 x 150 | XLPE Cu | 180 | 2 x 185 | XLPE Al | 275 |
| 30HXC 345 OPT. 150 circ. B | 1 x 185 | XLPE Cu | 185 | 2 x 240 | XLPE Al | 305 |
| 30HXC 375 OPT. 150 circ. B | 1 x 185 | XLPE Cu | 160 | 2 x 240 | XLPE Al | 280 |
COMPOSANTS MAJEURS DU SYSTÈME ET DONNÉES DE FONCTIONNEMENT
Compresseur bivis à engrenages
- Les unités 30HXC et 30GX utilisent des compresseurs bivis à engrenages 06N
- Les 06NA sont utilisés sur les 30GX (application de condensation refroidie par air)
- Les 06NW sont utilisés sur les 30HXC (application de condensation refroidie par eau)
- Les capacités nominales varient de 39 à 80 tonnes. Des modèles avec ou sans économiseur sont utilisés en fonction de la taille de l'unité 30HXC et 30GX.
Filtre à huile
Le compresseur bivis 06N intègre un filtre à huile dans son carter. Ce filtre est remplaçable sur site.
Fluide frigorigène
Le compresseur bivis 06N est spécialement conçu pour être utilisé uniquement dans un système R134a.
Lubrifiant
Le compresseur bivis 06N est approuvé pour une utilisation avec le lubrifiant suivant.
CARRIER MATERIAL SPEC PP 47-32
Vanne solénoïde d'alimentation en huile
Une vanne solénoïde d'alimentation en huile est de série sur le compresseur pour l'isoler du flux d'huile lorsque le compresseur ne fonctionne pas.
Le solénoïde d'huile est remplaçable sur site.
Crépines d'aspiration et d'économiseur
Pour augmenter la fiabilité du compresseur, une crépine a été intégrée en standard aux entrées d'aspiration et d'économiseur du compresseur.
Système de décharge
Le compresseur bivis 06N dispose d'un système de décharge qui est standard sur tous les compresseurs. Ce système de décharge se compose de deux étapes de décharge qui diminuent la capacité du compresseur en redirigeant le gaz partiellement comprimé vers l'aspiration.
Évaporateur
Les refroidisseurs 30HXC et 30GX utilisent un évaporateur noyé. L'eau circule dans les tubes et le fluide frigorigène se trouve à l'extérieur, dans la calandre. Un seul réservoir est utilisé pour desservir les deux circuits frigorifiques. Il y a une plaque tubulaire centrale qui sépare les deux circuits frigorifiques. Les tubes sont en cuivre de 3/4" de diamètre avec une surface améliorée à l'intérieur et à l'extérieur. Il n'y a qu'un seul circuit d'eau, et selon la taille du refroidisseur, il peut y avoir deux ou trois passes d'eau. Un capteur de niveau de liquide du refroidisseur assure un contrôle optimisé du débit.
En haut du refroidisseur se trouvent les deux tuyaux d'aspiration, un dans chaque circuit. Chacun est équipé d'une bride soudée, et le compresseur se monte sur cette bride.
Condenseur et séparateur d'huile (30HXC)
Les refroidisseurs 30HXC utilisent un réservoir qui est une combinaison de condenseur et de séparateur d'huile. Il est monté sous le refroidisseur. Le gaz de refoulement quitte le compresseur et s'écoule à travers un silencieux externe vers le séparateur d'huile, qui est la partie supérieure du réservoir. Il entre par le haut du séparateur où l'huile est retirée, puis s'écoule vers la partie inférieure du réservoir, où le gaz est condensé et sous-refroidi. Un seul réservoir est utilisé pour desservir les deux circuits frigorifiques. Il y a une plaque tubulaire centrale qui sépare les deux circuits frigorifiques. Les tubes sont en cuivre de 3/4" ou 1" de diamètre avec une surface améliorée à l'intérieur et à l'extérieur. Il n'y a qu'un seul circuit d'eau avec deux passes d'eau.
Séparateur d'huile (30GX)
Dans les unités refroidies par air, le séparateur d'huile est un réservoir sous pression monté sous les serpentins de condenseur verticaux extérieurs. Le gaz de refoulement entre par le haut du séparateur où une grande partie de l'huile se sépare et s'écoule vers le bas. Le gaz traverse ensuite une grille métallique où l'huile restante est séparée et s'écoule vers le bas.
Détendeur électronique (EXD)
Le microprocesseur contrôle le détendeur électronique (EXD) via le module de commande EXV. L'EXD sera soit une vanne d'expansion électronique (EXV), soit un économiseur. À l'intérieur de ces deux dispositifs se trouve un moteur pas à pas à actionneur linéaire. Le fluide frigorigène liquide haute pression entre dans la vanne par le bas. Une série de fentes calibrées est située à l'intérieur de l'ensemble de l'orifice. Lorsque le fluide frigorigène passe à travers l'orifice, la pression chute et le fluide frigorigène passe à un état diphasique (liquide et vapeur). Pour contrôler le débit de fluide frigorigène pour différentes conditions de fonctionnement, le manchon se déplace de haut en bas sur l'orifice, modifiant ainsi la zone de passage effective du détendeur. Le manchon est déplacé par un moteur pas à pas linéaire. Le moteur pas à pas se déplace par incréments et est contrôlé directement par le module de processeur. Lorsque le moteur pas à pas tourne, le mouvement est transféré en mouvement linéaire par la vis-mère. Grâce au moteur pas à pas et aux vis-mères, 1500 pas de mouvement discrets sont obtenus. Le grand nombre de pas et la longue course entraînent un contrôle très précis du débit de fluide frigorigène. Chaque circuit dispose d'un capteur de niveau de liquide monté verticalement en haut de la calandre du refroidisseur. Le capteur de niveau se compose d'un petit réchauffeur électrique à résistance et de trois thermistances câblées en série, positionnées à différentes hauteurs à l'intérieur du corps du puits. Le réchauffeur est conçu de manière à ce que les thermistances indiquent approximativement 93,3°C dans l'air sec. Lorsque le niveau de fluide frigorigène augmente dans le refroidisseur, la résistance de la ou des thermistances les plus proches change considérablement. Cette grande différence de résistance permet au contrôle de maintenir avec précision un niveau spécifié. Le capteur de niveau surveille le niveau de liquide frigorigène dans le refroidisseur et envoie cette information au PSIO-1. Au démarrage initial, la position de l'EXV est à zéro. Après cela, le microprocesseur suit avec précision la position de la vanne afin d'utiliser cette information comme entrée pour les autres fonctions de contrôle. Il le fait en initialisant les EXV au démarrage. Le processeur envoie suffisamment d'impulsions de fermeture à la vanne pour la faire passer de complètement ouverte à complètement fermée, puis réinitialise le compteur de position à zéro. À partir de ce point, jusqu'à l'initialisation, le processeur compte le nombre total de pas d'ouverture et de fermeture qu'il a envoyés à chaque vanne.
Économiseur
Des économiseurs sont installés sur les 30HXC 190, 285 et 375 et les 30GX 182, 267 et 358.
L'économiseur améliore à la fois la capacité et l'efficacité du refroidisseur tout en assurant le refroidissement du moteur du compresseur. À l'intérieur de l'économiseur se trouvent à la fois un moteur pas à pas EXV linéaire et un flotteur. La vanne d'expansion électronique (EXV) est contrôlée par le PIC pour maintenir le niveau de liquide désiré dans le refroidisseur (comme pour les refroidisseurs sans économiseur). Le flotteur maintient un niveau de liquide au fond de l'économiseur. Le fluide frigorigène liquide est fourni du condenseur vers le bas de l'économiseur. Lorsque le fluide frigorigène traverse l'EXV, sa pression est réduite à un niveau intermédiaire d'environ 500 kPa. Cette pression est maintenue à l'intérieur de la calandre de l'économiseur. Ensuite, le fluide frigorigène s'écoule à travers le flotteur, sa pression est encore réduite à un niveau légèrement supérieur à la pression dans le refroidisseur. L'augmentation des performances est réalisée lorsque une partie du fluide frigorigène passant par l'EXV s'évapore, sous-refroidissant davantage le liquide maintenu au fond de l'économiseur. Cette augmentation du sous-refroidissement fournit une capacité supplémentaire. Puisqu'aucune puissance supplémentaire n'est requise pour cela, l'efficacité de la machine s'améliore également. La vapeur qui s'évapore monte vers l'économiseur où elle passe au compresseur et est utilisée au besoin pour assurer le refroidissement du moteur. Après avoir traversé les enroulements du moteur, le fluide frigorigène rentre dans le cycle par un orifice intermédiaire du cycle de compression.
Pompes à huile
Les refroidisseurs à vis 30GX/HXC utilisent une pompe à huile de pré-lubrification montée à l'extérieur par circuit. Cette pompe est actionnée dans le cadre de la séquence de démarrage.
ATTENTION:
La température de fonctionnement de la bobine peut atteindre 80°C. Dans certaines conditions temporaires (surtout lors du démarrage à basse température extérieure ou à basse température de boucle de condenseur), la pompe à huile peut être réactivée.
Sur les unités 30GX, les pompes sont montées sur les rails de base du côté du séparateur d'huile de l'unité. Les pompes sont montées sur un support sur les condenseurs des unités 30HXC. Lorsqu'un circuit doit démarrer, les commandes alimentent d'abord la pompe à huile afin que le compresseur démarre avec une lubrification correcte. Si la pompe a accumulé une pression d'huile suffisante, le compresseur sera autorisé à démarrer. Une fois le compresseur démarré, la pompe à huile sera arrêtée. Si la pompe n'a pas pu accumuler une pression d'huile suffisante, la commande générera une alarme.
Vannes de refroidissement moteur
Les températures des enroulements du moteur du compresseur sont contrôlées pour atteindre le point de consigne optimal. La commande y parvient en cyclant la vanne solénoïde de refroidissement du moteur pour permettre au fluide frigorigène liquide de circuler à travers les enroulements du moteur selon les besoins. Sur les unités équipées d'économiseurs, le gaz de détente quitte le haut de l'économiseur et s'écoule continuellement vers les enroulements du moteur. Tout le fluide frigorigène utilisé pour le refroidissement du moteur réintègre les rotors par un orifice situé à mi-chemin du cycle de compression et est comprimé à la pression de refoulement.
Capteurs
Les unités utilisent des thermistances (y compris deux thermistances de température moteur) et deux thermistances de niveau ainsi que des transducteurs de pression pour surveiller et contrôler le fonctionnement du système.
Thermistances
Fluide sortant de l'évaporateur
Cette température est utilisée pour mesurer la température du fluide sortant de l'évaporateur (eau ou saumure). Elle est utilisée pour le contrôle de la température du fluide sortant et pour protéger contre le gel du refroidisseur. Elle est située dans la buse du fluide de l'évaporateur.
Fluide entrant dans l'évaporateur
Ce capteur est utilisé pour mesurer la température du fluide entrant dans l'évaporateur. Il est situé dans la buse d'entrée de l'évaporateur. Il est utilisé pour fournir une compensation automatique de la température pour le contrôle de la température du fluide sortant avec compensation du fluide entrant.
Température des gaz de refoulement (circuits A et B)
Ce capteur est utilisé pour mesurer la température des gaz de refoulement et contrôler la surchauffe de la température de refoulement. Il est situé sur la conduite de refoulement de chaque circuit (30HXC) ou sur le dessus du séparateur d'huile (30GX).
ATTENTION: Il n'y a pas de manchon de thermostat.
Température moteur
Le module de protection du compresseur (CPM) surveille la température du moteur. Les bornes des thermistances sont situées dans la boîte de jonction du compresseur.
Niveau de liquide de l'évaporateur (circuits A et B)
La thermistance de niveau de liquide de l'évaporateur est utilisée pour assurer un contrôle optimisé du débit dans l'évaporateur. Elle est installée en haut de l'évaporateur.
Fluide entrant dans le condenseur (30HXC)
Ce capteur est utilisé pour mesurer la température du fluide entrant dans les condenseurs refroidis par eau. Il est situé dans la conduite de fluide commune entrant dans les condenseurs (installé sur site). Sur les machines à chaleur, il est utilisé par la routine de contrôle de capacité. Sur les condenseurs refroidis par eau, il est uniquement utilisé pour la surveillance de la température du fluide du condenseur.
Fluide sortant du condenseur (optionnel sur 30HXC)
Ce capteur est utilisé pour mesurer la température du fluide sortant des condenseurs refroidis par eau. Il est situé dans la conduite de fluide commune sortant des condenseurs (installé sur site). Sur les machines à chaleur, il est utilisé par la routine de contrôle de capacité. Sur les condenseurs refroidis par eau, il est uniquement utilisé pour la surveillance de la température du fluide du condenseur.
Disposition des ventilateurs 30GX

GX082/102

GX112/132

GX152/162

GX182

GX207/227

GX247/267

GX298

GX328/358
ENTRETIEN
Charge de réfrigérant - ajout de charge
Ces unités sont conçues pour être utilisées UNIQUEMENT avec du R-134a.
N'UTILISEZ AUCUN AUTRE réfrigérant dans ces unités.
Lors de l'ajout ou du retrait de charge, faites circuler de l'eau dans le condenseur (HX) et le refroidisseur en permanence pour éviter le gel. Les dommages dus au gel sont considérés comme un abus et peuvent annuler la garantie Carrier.
NE PAS SURCHARGER le système. Une surcharge entraîne une pression de refoulement plus élevée avec une consommation de fluide de refroidissement accrue, des dommages possibles au compresseur et une consommation d'énergie plus élevée.
Indication d'une faible charge sur un système 30HXC
NOTE
Pour vérifier une faible charge de réfrigérant sur un 30HXC, plusieurs facteurs doivent être pris en compte. Un voyant de ligne liquide clignotant n'est pas nécessairement une indication d'une charge insuffisante. De nombreuses conditions du système peuvent entraîner un voyant clignotant en fonctionnement normal. Le dispositif de régulation du 30HXC est conçu pour fonctionner correctement dans ces conditions.
- Assurez-vous que le circuit fonctionne à pleine charge. Pour vérifier si le circuit A est à pleine charge, suivez la procédure décrite dans le manuel des commandes.
- Il peut être nécessaire d'utiliser la fonction de commande manuelle (Manual Control) pour forcer le circuit à fonctionner à pleine charge. Si tel est le cas, consultez les instructions d'utilisation de la fonction de commande manuelle dans le manuel des commandes.
- Lorsque le circuit fonctionne à pleine charge, vérifiez que la température du fluide sortant du refroidisseur est comprise entre 6°C ± 1,5.
- Dans cette condition, observez le réfrigérant dans le voyant de la ligne liquide. S'il y a un voyant clair et aucun signe de clignotement, alors le circuit est suffisamment chargé. Passez les étapes restantes.
- Si le réfrigérant semble clignoter, le circuit est probablement sous-chargé. Vérifiez cela en contrôlant la position de l'EXV (voir le Manuel d'Installation et d'Opération des Commandes).
- Si la position d'ouverture de l'EXD est supérieure à 60% et si le voyant de la ligne liquide clignote, le circuit est sous-chargé. Suivez la procédure d'ajout de charge.
Pour ajouter de la charge aux systèmes 30HXC
- Assurez-vous que l'unité fonctionne à pleine charge et que la température du fluide sortant du refroidisseur est comprise entre 5,6 et 7,8°C.
- Dans ces conditions de fonctionnement, vérifiez le voyant de la ligne liquide. S'il y a un voyant clair, l'unité a une charge suffisante. Si le voyant clignote, vérifiez le pourcentage d'ouverture de l'EXD. Si celui-ci est supérieur à 60%, commencez à ajouter de la charge.
NOTE
Un voyant de ligne liquide clignotant dans des conditions de fonctionnement autres que celles mentionnées ci-dessus n'est pas nécessairement une indication de faible charge de réfrigérant.
- Ajoutez 2,5 kg de charge liquide dans l'évaporateur en utilisant la vanne de charge située sur le dessus de l'évaporateur.
- Observez la valeur du pourcentage d'ouverture de l'EXD. L'EXD devrait commencer à se fermer à mesure que la charge est ajoutée. Laissez l'unité se stabiliser. Si le pourcentage d'ouverture de l'EXD reste supérieur à 60% et qu'il y a toujours des bulles dans le voyant, ajoutez 2,5 kg de charge liquide supplémentaires.
- Laissez l'unité se stabiliser et vérifiez à nouveau le pourcentage d'ouverture de l'EXD. Continuez à ajouter 2,5 kg de charge de réfrigérant liquide à la fois et laissez l'unité se stabiliser avant de vérifier la position de l'EXD.
- Lorsque le pourcentage d'ouverture de l'EXD est compris entre 40 et 60%, vérifiez le voyant de la ligne liquide. Ajoutez lentement une quantité supplémentaire de charge liquide suffisante pour assurer un voyant clair. Cela doit être fait lentement pour éviter de surcharger l'unité.
- Vérifiez une charge adéquate en continuant à fonctionner à pleine charge avec une température du fluide sortant de l'évaporateur de 6°C ± 1,5. Vérifiez que le réfrigérant ne clignote pas dans le voyant de la ligne liquide. Le pourcentage d'ouverture de l'EXD doit être compris entre 40 et 60%. L'indicateur de niveau du refroidisseur doit être compris entre 1,5 et 2,5.
Indication d'une faible charge sur les systèmes 30GX
- Assurez-vous que le circuit fonctionne à pleine charge et que la température de condensation est de 50°C ± 1,5. Pour vérifier si le circuit A est à pleine charge, suivez la procédure du Manuel d'Installation et d'Opération des Commandes.
- Il peut être nécessaire d'utiliser la fonction de commande manuelle pour forcer le circuit à fonctionner à pleine charge. Si tel est le cas, consultez les instructions d'utilisation de la fonction de commande manuelle (procédure dans le Manuel d'Installation et d'Opération des Commandes).
- Lorsque le circuit fonctionne à pleine charge, vérifiez que la température du fluide sortant du refroidisseur est comprise entre 6°C ± 1,5.
- Mesurez la température de l'air entrant dans les serpentins du condenseur. Mesurez la température du liquide après le raccord en T où les deux lignes liquides du serpentin se rejoignent. La température du liquide doit être supérieure de 8,3°C à la température de l'air entrant dans les serpentins. Si la différence est supérieure à cela et que le voyant clignote, le circuit est déchargé. Passez à l'étape 5.
- Ajoutez 2,5 kg de charge liquide dans le refroidisseur en utilisant la vanne de charge située sur le dessus du refroidisseur.
- Laissez le système se stabiliser, puis vérifiez à nouveau la température du liquide. Répétez l'étape 5 si nécessaire, en laissant le système se stabiliser entre chaque ajout de charge. Ajoutez lentement de la charge à mesure que le voyant commence à s'éclaircir pour éviter la surcharge.
Température ambiante, température de l'air extérieur (facultatif)
Ces températures sont utilisées pour mesurer respectivement la température de l'espace ou la température de l'air extérieur pour la commande de réinitialisation basée sur les options de réinitialisation de la température de l'air extérieur ou de la température ambiante.
Transducteurs de pression
Pression de refoulement (circuits A & B)
Cette entrée est utilisée pour mesurer la pression côté haute pression de chaque circuit de l'unité.
Elle est utilisée pour fournir la pression remplaçant le manomètre de pression de refoulement et pour contrôler la pression de condensation.
Pression d'aspiration (circuits A & B)
Cette entrée est utilisée pour mesurer la pression côté basse pression de l'unité. Elle est utilisée pour fournir la pression remplaçant le manomètre de pression d'aspiration.
Pression d'huile (chaque compresseur)
Cette entrée est utilisée pour mesurer la pression d'huile de chaque compresseur de l'unité. Elle est située sur l'orifice de pression d'huile de chaque compresseur.
Pression de l'économiseur (circuits A & B)
Cette entrée est utilisée pour surveiller le différentiel de pression d'huile fourni au compresseur.
Charge d'huile - recharge de faible niveau d'huile
Ajout de charge d'huile aux systèmes 30HX/GX
- Si l'unité 30HXC/GX s'arrête de manière répétée à cause d'un faible niveau d'huile (Low oil Level), cela peut indiquer une charge d'huile insuffisante. Cela pourrait aussi signifier simplement que l'huile est en train d'être récupérée du côté basse pression du système.
- Commencez par faire fonctionner l'unité à pleine charge pendant une heure et demie.
- Après avoir fonctionné pendant 1h30, laissez l'unité redémarrer et fonctionner normalement. Si les alarmes de faible niveau d'huile persistent, l'unité a une faible charge d'huile. Ajoutez de l'huile au séparateur d'huile, en utilisant la vanne de charge d'huile située au bas du condenseur (30HXC) ou au bas du séparateur d'huile (30GX).
N'ajoutez PAS d'huile à un autre endroit, car un fonctionnement incorrect de l'unité pourrait en résulter.
- Assurez-vous que l'unité ne fonctionne pas lors de l'ajout d'huile, car cela facilitera le processus de charge d'huile. Étant donné que le système est sous pression même lorsque l'unité ne fonctionne pas, il sera nécessaire d'utiliser une pompe appropriée (pompe manuelle ou électrique) pour ajouter de l'huile au système.
- À l'aide d'une pompe appropriée, ajoutez 2 litres d'huile Polyolester au système (SPÉC. CARRIER : PP47-32). Assurez-vous que l'interrupteur de sécurité de niveau d'huile n'est PAS ponté et laissez l'unité redémarrer et fonctionner normalement.
- Si les problèmes de faible niveau d'huile persistent, ajoutez 1 ou 2 litres d'huile supplémentaires. S'il est nécessaire d'ajouter plus de 4 litres d'huile au système, contactez le service après-vente de votre distributeur Carrier.
Lors du transfert de la charge de réfrigérant vers une unité de stockage, de l'huile peut être entraînée lorsque l'unité ne fonctionne pas. Réutilisez tout d'abord la quantité de réfrigérant transférée. Après avoir vidangé l'huile, ne rechargez que la quantité vidangée (un excès de charge d'huile peut nuire au bon fonctionnement de l'unité).
Changement du filtre à huile intégré
Un filtre à huile intégré dans le compresseur à vis 06N est spécifié pour fournir un niveau de filtration élevé (3 µ) requis pour une longue durée de vie des roulements. Comme la propreté du système est essentielle au bon fonctionnement du système, il y a également un préfiltre (7 µ) dans la ligne d'huile à la sortie du séparateur d'huile.
La référence de l'élément filtrant à huile intégré de remplacement est :
Numéro de pièce Carrier (comprenant le filtre et le joint torique) : 06NA 660016S
Programme de remplacement du filtre
Le filtre doit être vérifié après les 500 premières heures de fonctionnement et toutes les 2000 heures suivantes. Le filtre doit être remplacé à tout moment lorsque le différentiel de pression à travers le filtre dépasse 2,1 bars.
La perte de charge à travers le filtre peut être déterminée en mesurant la pression à l'orifice de service du filtre et à l'orifice de pression d'huile. La différence entre ces deux pressions sera la perte de charge à travers le filtre, le clapet anti-retour et la vanne solénoïde. La perte de charge à travers le clapet anti-retour et la vanne solénoïde est d'environ 0,4 bar, ce qui doit être soustrait des deux mesures de pression d'huile pour obtenir la perte de charge du filtre à huile. La perte de charge du filtre à huile doit être vérifiée après toute occasion où le compresseur est arrêté en raison d'une sécurité de basse pression d'huile.
Procédure de remplacement du filtre
- Les étapes suivantes décrivent la méthode appropriée pour changer le filtre à huile intégré.
- Arrêtez et verrouillez le compresseur.
- Forcez manuellement le fonctionnement de la vanne solénoïde d'huile, afin de presser le clapet interne de la vanne sur son siège.
- Fermez la vanne de service du filtre à huile. Purgez la pression de la cavité du filtre par l'orifice de service du filtre.
- Retirez le bouchon du filtre à huile. Retirez l'ancien filtre à huile.
- Avant d'installer le nouveau filtre à huile, "graissez" (graissez) le joint torique avec de l'huile. Installez le filtre et replacez le bouchon.
Avant de refermer le système d'huile de lubrification, profitez-en pour remplacer également le préfiltre. - Une fois terminé, évacuez la cavité du filtre par l'orifice de service du filtre. Ouvrez la vanne de service du filtre. Retirez tous les dispositifs de verrouillage du compresseur, le compresseur est prêt à reprendre le fonctionnement.
Remplacement du compresseur
Contrôle de la rotation du compresseur
La rotation correcte du compresseur est l'une des considérations d'application les plus critiques. Une rotation inverse, même pour une très courte durée, endommage le compresseur.
Le système de protection contre la rotation inverse doit être capable de déterminer le sens de rotation et d'arrêter le compresseur en 300 millisecondes. La rotation inverse est la plus susceptible de se produire chaque fois que le câblage des bornes du compresseur est perturbé.
Pour minimiser le risque de rotation inverse, la procédure suivante doit être appliquée. Recâblez les câbles d'alimentation vers la broche de borne du compresseur comme câblé à l'origine.
Pour le remplacement du compresseur, un pressostat basse pression est inclus avec le compresseur. Ce pressostat basse pression doit être installé temporairement comme sécurité dure sur la partie haute pression du compresseur. Le but de ce pressostat est de protéger le compresseur contre toute erreur de câblage au niveau de la broche de borne du compresseur. Le contact électrique du pressostat serait câblé en série avec le pressostat haute pression. Le pressostat restera en place jusqu'à ce que le compresseur ait été démarré et que le sens de rotation ait été vérifié ; à ce stade, le pressostat sera retiré.
L'interrupteur qui a été sélectionné pour détecter la rotation inverse est le numéro de pièce Carrier HK01CB001. Il est disponible dans le cadre du "Compressor installation package" (Ensemble d'installation du compresseur) (réf. 06NA 660 013). Cet interrupteur ouvre les contacts lorsque la pression tombe en dessous de 50 mm de vide. L'interrupteur est de type à réinitialisation manuelle et peut être réinitialisé une fois que la pression est à nouveau montée au-dessus de 70 kPa. Il est essentiel que l'interrupteur soit de type à réinitialisation manuelle pour empêcher le compresseur de faire des cycles courts en sens inverse.
DÉPANNAGE
Suivez les étapes ci-dessous pour diagnostiquer et corriger les problèmes d'EXD/économiseur.
Sur les unités 30HXC/GX avec économiseurs, vérifiez que la vanne du tube barboteur (bas de l'économiseur) est ouverte. Vérifiez d'abord le fonctionnement du moteur EXD (voir la procédure dans le Manuel d'Installation et d'Opération des Commandes). Vous devriez pouvoir sentir l'actionneur bouger en plaçant votre main sur le corps de l'EXD ou de l'économiseur (l'actionneur est situé à environ la moitié ou les deux tiers du chemin depuis le bas de l'enveloppe de l'économiseur). Vous devriez sentir un coup sec provenant de l'actionneur lorsqu'il atteint le haut de sa course (peut être entendu si l'environnement est relativement silencieux). L'actionneur devrait claquer lorsqu'il atteint le bas de sa course. S'il est estimé que la vanne ne fonctionne pas correctement, contactez le service après-vente de votre distributeur Carrier pour des vérifications supplémentaires sur :
- les signaux de sortie sur le module EXD
- les connexions de câblage (continuité et connexion serrée à toutes les broches des bornes)
- la résistance des enroulements du moteur EXD.


Approbation du système de gestion environnementale
N° de commande : 13173-76, 03 1999 - Remplace le N° : 13173-76, Mars 1998
Le fabricant se réserve le droit de modifier les spécifications du produit sans préavis.
Fabricant : Carrier s.a., Montluel, France.
Imprimé aux Pays-Bas sur papier sans chlore.

Télécharger le manuel
Ici, vous pouvez télécharger la version PDF complète du manuel. Elle peut contenir des instructions de sécurité supplémentaires, des informations de garantie, des règles de la FCC, etc.
Télécharger Manuel du compresseur à vis Carrier 30HXC/30GX