
Enne 30HXC ja 30GX seadme esmakordset käivitamist peaksid käivitamise, kasutamise ja hooldusega seotud isikud olema põhjalikult tuttavad nende juhiste ja muude vajalike tööandmetega. See raamat annab ülevaate, et saaksite enne käivitamisprotseduuride tegemist juhtimissüsteemiga tutvuda. Selles juhendis on protseduurid paigutatud õiges masina käivitamise ja kasutamise järjekorras.
30HXC ja 30GX vedelikjahutid on projekteeritud ohutuks ja usaldusväärseks teenindamiseks, kui neid kasutatakse projekteerimisspetsifikatsioonide piires. Selle seadme kasutamisel kasutage head otsustusvõimet ja ohutusabinõusid, et vältida seadmete ja vara kahjustamist või personali vigastamist.
Veenduge, et mõistate ja järgite masina juhistes ja selles juhendis loetletud protseduure ja ohutusabinõusid.
ÄRGE VENTILEERIGE külmutusagensi kaitseklappe hoones. Kaitseklapi väljalaskeava peab olema ventileeritud väljas. Külmutusagensi kogunemine suletud ruumi võib hapniku välja tõrjuda ja põhjustada lämbumist või plahvatusi.
TAGAGE piisav ventilatsioon, eriti suletud ja madala laega ruumide puhul. Suure kontsentratsiooniga auru sissehingamine on kahjulik ja võib põhjustada südame rütmihäireid, teadvusetust või surma. Aur on õhust raskem ja vähendab hingamiseks vajaliku hapniku hulka. Toode põhjustab silmade ja naha ärritust. Lagunemisproduktid on ohtlikud.
ÄRGE KASUTAGE HAPNIKKU torustike puhastamiseks või masina survestamiseks mingil eesmärgil. Hapnikugaas reageerib ägedalt õli, rasva ja muude tavaliste ainetega.
ÄRGE KUNAGI ÜLETAGE määratud katserõhku, KONTROLLIGE lubatud katserõhku, kontrollides juhendmaterjali ja seadme andmesildil olevaid projekteerimisrõhke.
ÄRGE KASUTAGE õhku lekketestimiseks. Kasutage ainult külmutusagensit või kuiva lämmastikku.
ÄRGE SULGEGE ühtegi kaitseseadet.
VEENDUGE, et kõik rõhualandus seadmed on enne masina kasutamist korralikult paigaldatud.
ÄRGE KEEVITAGE EGA LÕIGAKE leegiga ühtegi külmutusagensi toru või anumat enne, kui kogu külmutusagens (vedelik ja aur) on jahutist eemaldatud. Auru jäljed tuleb asendada kuiva õhu lämmastikuga ja tööala peab olema hästi ventileeritud. Külmutusagens kokkupuutel lahtise leegiga tekitab mürgiseid gaase.
ÄRGE töötage pinge all olevate seadmetega, kui te ei ole kvalifitseeritud elektrik.
ÄRGE TÖÖTAGE elektriliste komponentidega, sealhulgas juhtpaneelide, lülitite, releedega jne, enne kui olete kindel, et KOGU TOIDE ON VÄLJAS ja jääkpinge võib kondensaatoritest või tahkis-komponentidest lekkida.
LUKUSTAGE AVATUD ASENDIS JA MÄRGISTAGE elektriskeemid hoolduse ajal. KUI TÖÖ KATKESTATAKSE, kontrollige enne töö jätkamist, et kõik vooluringid on pingevabad.
ÄRGE sifoonige külmutusagensit.
VÄLTIGE vedela külmutusagensi sattumist nahale või silma. KASUTAGE KAITSEPRILLE. Peske kõik nahale sattunud ained seebi ja veega maha. Kui vedel külmutusagens satub silma,
LOPUTAGE SILMI VIIVITAMATULT veega ja konsulteerige arstiga.
ÄRGE KUNAGI RAKENDAGE lahtist leeki ega elavat auru külmutusagensi anumale. Selle tagajärjeks võib olla ohtlik ülerõhk. Kui on vaja külmutusagensit soojendada, kasutage ainult sooja vett.
ÄRGE KASUTAGE KORDUVALT ühekordselt kasutatavaid (mitte tagastatavaid) silindreid ega proovige neid uuesti täita. See on OHTLIK JA EBASEADUSLIK. Kui silindrid on tühjad, eemaldage ülejäänud gaasirõhk, vabastage krae ja keerake ventiili vars lahti ja visake ära. ÄRGE PÕLETAGE.
KONTROLLIGE KÜLMUTUSAINE TÜÜPI enne külmutusagensi lisamist masinasse. Vale külmutusagensi kasutamine võib seda masinat kahjustada või põhjustada selle rikke.
ÄRGE PROOVIGE eemaldada liitmikke, komponente jne, kui masin on rõhu all või töötab. Enne külmutusagensi ühenduse katkestamist veenduge, et rõhk on 0 kPa.
KONTROLLIGE HOOLIKALT kõiki kaitseklappe VÄHEMALT KORD AASTAS. Kui masin töötab söövitavas keskkonnas, kontrollige seadmeid sagedamini.
ÄRGE PROOVIGE PARANDADA EGA TAASTADA ühtegi kaitseklappi, kui klapi korpuses või mehhanismis on korrosiooni või võõrmaterjali (rooste, mustus, katlakivi jne) kogunemist. Vahetage seade välja.
ÄRGE paigaldage kaitseklappe järjestikku ega tagurpidi.
ÄRGE ASTUGE külmutusagensi torudele. Katkised torud võivad ringi lennata ja külmutusagensit välja lasta, põhjustades kehavigastusi.
ÄRGE ronige üle masina. Kasutage platvormi või tellinguid.
KASUTAGE raskete komponentide tõstmiseks või teisaldamiseks MEHAANILISI SEADMEID (kraana, tõstuk jne). Isegi kui komponendid on kerged, kasutage mehaanilisi seadmeid, kui on oht libiseda või tasakaalu kaotada.
OLGE TEADLIK, et teatud automaatsed käivitusseadmed VÕIVAD RAKENDADA JAHUTUSTORNI VENTILAATORIT VÕI PUMBASID. Avage torniventilaatorite või pumpade ees olev lahtiühenduslüliti.
KASUTAGE ainult remondi- või asendusosi, mis vastavad originaalseadmete koodinõuetele.
ÄRGE VENTILEERIGE EGA TÜHJENDAGE veekaste, mis sisaldavad tööstuslikke soolalahuseid, ilma pädeva organi loata.
ÄRGE VABASTAGE veekasti polte enne, kui veekast on täielikult tühjendatud.
ÄRGE VABASTAGE tihendusnääre mutrit enne, kui olete kontrollinud, kas mutril on positiivne keermestus.
KONTROLLIGE PERIODILISELT kõiki ventiile, liitmikke ja torustikke korrosiooni, rooste, lekete või kahjustuste suhtes.
TAGAGE DRENAAŽIÜHENDUS õhutusliinil iga rõhualandus seadme lähedal, et vältida kondensaadi või vihmavee kogunemist.
30HXC080
30HXC090
30HXC100
30HXC110

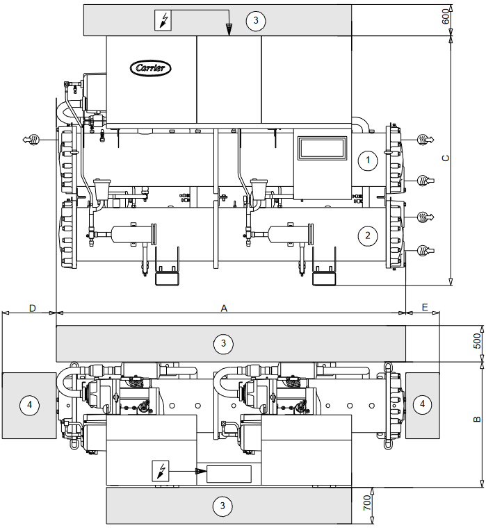
Vee sisselaskeava
Vee väljalaskeava
Toiteallikas
kg: kogukaal töökorras
| A mm | B mm | C mm | D mm | E mm | kg | |
| 30HXC080 30HXC090 30HXC100 |
2705 | 950 | 1850 | 2360 | 1000 | 2447 2462 2504 |
| 30HXC110 | 2705 | 950 | 1900 | 2360 | 1000 | 2650 |
| 30HXC120 30HXC130 30HXC140 30HXC155 |
3535 | 950 | 1875 | 3220 | 1000 | 2846 2861 2956 2971 |
| 30HXC175 30HXC190 |
3550 | 950 | 2000 | 3220 | 1000 | 3283 3438 |
MÄRKUS: Paigaldise projekteerimisel vaadake seadmega kaasasolevaid sertifitseeritud mõõtejooniseid.

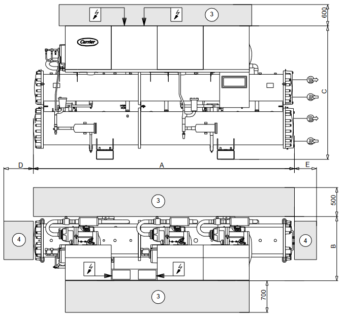
Vee sisselaskeava
Vee väljalaskeava
Toiteallikas
kg: kogukaal töökorras
| A mm | B mm | C mm | D mm | E mm | kg | |
| 30HXC200 | 3975 | 980 | 2035 | 3620 | 1000 | 4090 |
| 30HXC230 30HXC260 30HXC285 |
3995 | 980 | 2116 | 3620 | 1000 | 4705 4815 4985 |
| 30HXC310 30HXC345 30HXC375 |
4490 | 980 | 2163 | 4120 | 1000 | 5760 5870 6105 |
MÄRKUS: Paigaldise projekteerimisel vaadake seadmega kaasasolevaid sertifitseeritud mõõtejooniseid.
30GX-082
30GX-092
30GX-102
30GX-112
30GX-122
30GX-132
30GX-152
30GX-162
30GX-182


Vee sisselaskeava
Vee väljalaskeava
Toiteallikas
Õhu väljalaskeava - ärge takistage
kg: kogukaal töökorras
| A mm | B mm | kg | |
| 30GX082 30GX092 30GX102 |
2970 | 2215 | 3116 3157 3172 |
| 30GX112 30GX122 30GX132 |
3427 | 2045 | 3515 3531 3633 |
| 30GX152 30GX162 |
4342 | 2835 | 3920 3936 |
| 30GX182 | 5996 | 1820 | 4853 |


Märkused:
MÄRKUS: Paigaldise projekteerimisel vaadake seadmega kaasasolevaid sertifitseeritud mõõtejooniseid.
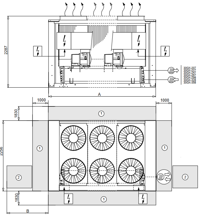
30GX-207
30GX-227
30GX-247
30GX-267
30GX-298
30GX-328
30GX-358

Vee sisselaskeava
Vee väljalaskeava
Toiteallikas
Õhu väljalaskeava - ärge takistage
kg: kogukaal töökorras
| A mm | B mm | kg | |
| 30GX207 30GX227 |
5996 | 2895 | 5540 5570 |
| 30GX247 30GX267 |
6911 | 2470 | 6134 6365 |
| 30GX298 | 7826 | 2220 | 7354 |
| 30GX328 30GX358 |
8741 | 1250 | 7918 8124 |


Märkused:
MÄRKUS: Paigaldise projekteerimisel vaadake seadmega kaasasolevaid sertifitseeritud mõõtejooniseid.
| 30HXC | 080 | 090 | 100 | 110 | 120 | 130 | 140 | 155 | 175 | 190 | 200 | 230 | 260 | 285 | 310 | 345 | 375 | |
| Net cooling capacity (Neto jahutusvõimsus) | kW | 292 | 321 | 352 | 389 | 426 | 464 | 514 | 550 | 607 | 663 | 716 | 822 | 918 | 996 | 1119 | 1222 | 1326 |
| Operating weight (Töökaal) | kg | 2447 | 2462 | 2504 | 2650 | 2846 | 2861 | 2956 | 2971 | 3283 | 3438 | 4090 | 4705 | 4815 | 4985 | 5760 | 5870 | 6105 |
| Refrigerant (Külmaaine) Circuit A/B (Kontuur A/B) |
HFC-134a | |||||||||||||||||
| kg | 39/36 | 39/36 | 37/32 | 38/38 | 57/55 | 59/50 | 56/50 | 59/52 | 58/61 | 60/70 | 110/58 | 118/63 | 120/75 | 120/75 | 108/110 | 110/110 | 110/120 | |
| Oil (Õli) Circuit A/B (Kontuur A/B) |
Polyolester oil CARRIER SPEC: PP 47-32 | |||||||||||||||||
| l | 15/15 | 15/15 | 15/15 | 15/15 | 15/15 | 15/15 | 15/15 | 15/15 | 15/15 | 15/15 | 30/15 | 30/15 | 30/15 | 30/15 | 30/30 | 30/30 | 30/30 | |
| Compressors (Kompressorid) | Hermetic twin-screw Power3 | |||||||||||||||||
| Circ. A, nom. size per compressor** (Kontuur A, nim. suurus kompressori kohta**) | 39 | 46 | 46 | 56 | 56 | 66 | 80 | 80 | 80 | 80+ | 66/56 | 80/56 | 80/80 | 80+/80+ | 80/66 | 80/80 | 80+/80+ | |
| Circ. B, nom. size per compressor** (Kontuur B, nim. suurus kompressori kohta**) | 39 | 39 | 46 | 46 | 56 | 56 | 56 | 66 | 80 | 80+ | 66 | 80 | 80 | 80+ | 80/66 | 80/80 | 80+/80+ | |
| Control type (Juhtimistüüp) | PRO-DIALOG Plus control | |||||||||||||||||
| Number of capacity steps (Võimsuse astmete arv) | 6 | 6 | 6 | 6 | 6 | 6 | 6 | 6 | 6 | 6 | 8 | 8 | 8 | 8 | 10 | 10 | 10 | |
| Minimum capacity (Miinimumvõimsus) | % | 19 | 19 | 21 | 19 | 21 | 19 | 17 | 19 | 21 | 21 | 14 | 14 | 14 | 14 | 10 | 10 | 10 |
| Evaporator (Aurusti) | Shell and tube type, with internally finned copper tubes (Korpuse ja toru tüüp, sisemiselt ribiliste vasktorudega) | |||||||||||||||||
| Net water volume (Neto veemaht) | l | 65 | 65 | 73 | 87 | 81 | 81 | 91 | 91 | 109 | 109 | 140 | 165 | 181 | 181 | 203 | 229 | 229 |
| Water connections (Veeühendused) | Factory-supplied flat flange, to be welded on site (Tehases tarnitud lameäärik, mis tuleb kohapeal keevitada) | |||||||||||||||||
| Inlet and outlet (Sisse- ja väljalaskeava) | in. | 4 | 4 | 4 | 5 | 5 | 5 | 5 | 5 | 5 | 5 | 6 | 6 | 6 | 6 | 8 | 8 | 8 |
| Drain and vent (NPT) (Äravool ja õhutus (NPT)) | in. | 3/8 | 3/8 | 3/8 | 3/8 | 3/8 | 3/8 | 3/8 | 3/8 | 3/8 | 3/8 | 3/8 | 3/8 | 3/8 | 3/8 | 3/8 | 3/8 | 3/8 |
| Max. water-side operating pressure (Max. veepoolne töörõhk) | kPa | 1000 | 1000 | 1000 | 1000 | 1000 | 1000 | 1000 | 1000 | 1000 | 1000 | 1000 | 1000 | 1000 | 1000 | 1000 | 1000 | 1000 |
| Condensers (Kondensaatorid) | Shell and tube type, with internally finned copper tubes (Korpuse ja toru tüüp, sisemiselt ribiliste vasktorudega) | |||||||||||||||||
| Net water volume (Neto veemaht) | l | 58 | 58 | 58 | 58 | 92 | 92 | 110 | 110 | 132 | 132 | 162 | 208 | 208 | 208 | 251 | 251 | 251 |
| Water connections (Veeühendused) | Factory-supplied flat flange, to be welded on site (Tehases tarnitud lameäärik, mis tuleb kohapeal keevitada) | |||||||||||||||||
| Inlet and outlet (Sisse- ja väljalaskeava) | in. | 5 | 5 | 5 | 5 | 5 | 5 | 5 | 5 | 6 | 6 | 6 | 6 | 6 | 6 | 8 | 8 | 8 |
| Drain and vent (NPT) (Äravool ja õhutus (NPT)) | in. | 3/8 | 3/8 | 3/8 | 3/8 | 3/8 | 3/8 | 3/8 | 3/8 | 3/8 | 3/8 | 3/8 | 3/8 | 3/8 | 3/8 | 3/8 | 3/8 | 3/8 |
| Max. water-side operating pressure (Max. veepoolne töörõhk) | kPa | 1000 | 1000 | 1000 | 1000 | 1000 | 1000 | 1000 | 1000 | 1000 | 1000 | 1000 | 1000 | 1000 | 1000 | 1000 | 1000 | 1000 |
* Standardised Eurovent conditions: evaporator entering/leaving water temperatures = 12°C/7°C, condenser water entering/leaving water temperatures = 30°C/35°C Net cooling capacity: Gross cooling capacity minus the water pump heat against the internal evaporator pressure drop. ** The compressor size corresponds to the nominal capacity in tons (1 ton = 3.517 kW). (Standardiseeritud Euroventi tingimused: aurusti siseneva/väljuva vee temperatuurid = 12°C/7°C, kondensaatori siseneva/väljuva vee temperatuurid = 30°C/35°C Neto jahutusvõimsus: brutojahutusvõimsus miinus veepumba soojus sisemise aurusti rõhulangu vastu. ** Kompressori suurus vastab nominaalvõimsusele tonnides (1 tonn = 3,517 kW).)
| 30HXC | 080 | 090 | 100 | 110 | 120 | 130 | 140 | 155 | 175 | 190 | 200 | 230 | 260 | 285 | 310 | 345 | 375 | |
| Toiteahel | ||||||||||||||||||
| Nominaalne toiteallikas* | V-ph-Hz | 400-3-50 | ||||||||||||||||
| Pinge vahemik | V | 360-440 | ||||||||||||||||
| Juhtimisahela toide | Juhtimisahel saab toite tehases paigaldatud trafo kaudu | |||||||||||||||||
| Nominaalne sisendvõimsus* | kW | 59 | 67 | 74 | 83 | 88 | 99 | 112 | 123 | 135 | 146 | 156 | 179 | 201 | 219 | 245 | 274 | 298 |
| Nominaalne voolutarve* | A | 98 | 111 | 124 | 139 | 148 | 166 | 186 | 204 | 226 | 242 | 259 | 291 | 335 | 367 | 408 | 456 | 498 |
| Max. sisendvõimsus** | kW | 76 | 83 | 91 | 101 | 111 | 121 | 135 | 145 | 158 | 181 | 187 | 214 | 237 | 272 | 290 | 316 | 362 |
| Ahel A | kW | - | - | - | - | - | - | - | - | - | - | 121 | 135 | 158 | 181 | 145 | 158 | 181 |
| Ahel B | kW | - | - | - | - | - | - | - | - | - | - | 66 | 79 | 79 | 91 | 145 | 158 | 181 |
| Cos fi, ühik täiskoormusel | 0.87 | 0.87 | 0.87 | 0.87 | 0.87 | 0.87 | 0.87 | 0.87 | 0.87 | 0.87 | 0.87 | 0.87 | 0.87 | 0.87 | 0.87 | 0.87 | 0.87 | |
| Max. voolutarve (Un - 10%)*** | A | 138 | 152 | 166 | 184 | 202 | 221 | 245 | 264 | 288 | 330 | 341 | 389 | 432 | 495 | 528 | 576 | 660 |
| Ahel A | A | - | - | - | - | - | - | - | - | - | - | 221 | 245 | 288 | 330 | 264 | 288 | 330 |
| Ahel B | A | - | - | - | - | - | - | - | - | - | - | 120 | 144 | 144 | 165 | 264 | 288 | 330 |
| Maksimaalne voolutarve (Un)*** | A | 125 | 138 | 151 | 167 | 184 | 201 | 223 | 240 | 262 | 300 | 310 | 354 | 393 | 450 | 480 | 524 | 600 |
| Ahel A | A | - | - | - | - | - | - | - | - | - | - | 201 | 223 | 262 | 300 | 240 | 262 | 300 |
| Ahel B | A | - | - | - | - | - | - | - | - | - | - | 109 | 131 | 131 | 150 | 240 | 262 | 300 |
| Max. käivitusvool, std. seade (Un)**** | A | 172 | 197 | 209 | 235 | 252 | 283 | 318 | 335 | 357 | 420 | 806 | 938 | 977 | 1156 | 1064 | 1108 | 1306 |
| Ahel A | A | - | - | - | - | - | - | - | - | - | - | 697 | 807 | 846 | 1006 | 824 | 846 | 1006 |
| Ahel B | A | - | - | - | - | - | - | - | - | - | - | 605 | 715 | 715 | 856 | 824 | 846 | 1006 |
| Max. käivitusvool/max. voolutarbe suhe, seade | 1.37 | 1.42 | 1.39 | 1.41 | 1.37 | 1.41 | 1.43 | 1.40 | 1.36 | 1.40 | 2.60 | 2.65 | 2.49 | 2.57 | 2.22 | 2.12 | 2.18 | |
| Max. käivitusvool/max. voolutarbe suhe, ahel A | - | - | - | - | - | - | - | - | - | - | 3.47 | 3.62 | 3.23 | 3.35 | 3.43 | 3.23 | 3.35 | |
| Max. käivitusvool/max. voolutarbe suhe, ahel B | - | - | - | - | - | - | - | - | - | - | 5.55 | 5.46 | 5.46 | 5.71 | 3.43 | 3.23 | 3.35 | |
| Max. käivitusvool - vähendatud voolu käivitus (Un) **** | A | std. | std. | std. | std. | std. | std. | std. | std. | std. | std. | 601 | 643 | 682 | 760 | 769 | 813 | 910 |
| Ahel A | A | std. | std. | std. | std. | std. | std. | std. | std. | std. | std. | 492 | 512 | 551 | 610 | 529 | 551 | 610 |
| Ahel B | A | std. | std. | std. | std. | std. | std. | std. | std. | std. | std. | 330 | 370 | 370 | 385 | 529 | 551 | 610 |
| Max. käivitusvool - vähendatud voolu käivitus/ max. voolutarbe suhe, seade | std. | std. | std. | std. | std. | std. | std. | std. | std. | std. | 1.94 | 1.82 | 1.74 | 1.69 | 1.60 | 1.55 | 1.52 | |
| Ahel A | std. | std. | std. | std. | std. | std. | std. | std. | std. | std. | 2.45 | 2.30 | 2.10 | 2.03 | 2.20 | 2.10 | 2.03 | |
| Ahel B | std. | std. | std. | std. | std. | std. | std. | std. | std. | std. | 3.03 | 2.83 | 2.83 | 2.57 | 2.20 | 2.10 | 2.03 | |
| Kolmefaasiline lühise hoidmisvool | kA | 25 | 25 | 25 | 25 | 25 | 25 | 25 | 25 | 25 | 25 | N/A | N/A | N/A | N/A | N/A | N/A | N/A |
| Ahel A | kA | - | - | - | - | - | - | - | - | - | - | 25 | 25 | 25 | 25 | 25 | 25 | 25 |
| Ahel B | kA | - | - | - | - | - | - | - | - | - | - | 15 | 15 | 15 | 15 | 25 | 25 | 25 |
| Kliendi ooterežiimi võimsus, seade või ahel A, aurusti veepumba ühenduste jaoks† | kW | 8 | 8 | 8 | 11 | 11 | 11 | 15 | 15 | 15 | 15 | 15 | 18 | 18 | 30 | 30 | 30 | 30 |
* Standardsed Eurovent tingimused: Aurusti siseneva/väljuva vee temperatuur 12°C ja 7°C. Kondensaatori siseneva/väljuva vee temperatuur 30°C/35°C.
** Sisendvõimsus, kompressor, seadme tööpiiridel (aurusti vee siseneva/väljuva temperatuur = 15°C/10°C, kondensaatori siseneva/väljuva vee temperatuur = 40°C/45°C) ja nominaalpinge 400 V (andmed on toodud seadme andmesildil).
*** Maksimaalne seadme töövool maksimaalse seadme sisendvõimsuse korral.
**** Maksimaalne hetkeline käivitusvool (väikseima(te) kompressori(te) maksimaalne töövool + suurima kompressori blokeeritud rootori vool või vähendatud käivitusvool)
† Voolu ja võimsuse sisendid ei ole ülaltoodud väärtustes arvesse võetud.
N/A Pole saadaval
| Viide | Suurus | I nom. | MHA | LRA | LRA (Y) | LRA (S) 1 cp. | LRA (S) 2 cp. |
| 06NW2146S7N | 39 | 48 | 69 | 344 | 109 | 125 | - |
| 06NW2174S7N | 46 | 58 | 83 | 423 | 134 | 154 | - |
| 06NW2209S7N | 56 | 71 | 101 | 506 | 160 | 260 | 350 |
| 06NW2250S7N | 66 | 87 | 120 | 605 | 191 | 330 | 400 |
| 06NW2300S5N | 80 | 104 | 144 | 715 | 226 | 370 | 420 |
| 06NW2300S5E | 80+ | 111 | 165 | 856 | 270 | 385 | 460 |
Legend: (Selgitus:)
| 06NW | Kompressor vesijahutusega seadmetele |
| N | Mitte-ökonoomne kompressor |
| E | Ökonoomne kompressor |
| INOM | Kompressori keskmine voolutarve Eurovent tingimustes |
| MHA | Voolutugevus, mida peab hoidma (maksimaalne töövool) 360 V juures |
| LRA | Blokeeritud rootori vool otsekäivitusega |
| LRA (Y) | Blokeeritud rootori vool vähendatud vooluga (täht/kolmnurk käivitusrežiim) |
| LRA (S) 1 cp. | Käivitus vähendatud vooluga elektroonilise starteriga (käivitus kestus max 3 sekundit) ühe kompressori kohta ahela kohta |
| LRA (S) 2 cp. | Käivitus vähendatud vooluga elektroonilise starteriga (käivitus kestus max 3 sekundit) kahe kompressori kohta ahela kohta |
30HXC 150 ja 150A valikud
| 30HXC | 080 | 090 | 100 | 110 | 120 | 130 | 140 | 155 | 175 | 190 | 200 | 230 | 260 | 285 | 310 | 345 | 375 | |
| Toiteahel | ||||||||||||||||||
| Nimitoide* | V-ph-Hz | 400-3-50 | ||||||||||||||||
| Pinge vahemik | V | 360-440 | ||||||||||||||||
| Juhtahela toide | Juhtahel saab toite tehases paigaldatud trafo kaudu | |||||||||||||||||
| Max. võimsustarve** | kW | 104 | 117 | 131 | 145 | 159 | 174 | 194 | 211 | 230 | 263 | 271 | 310 | 345 | 395 | 422 | 460 | 526 |
| A-ahel | kW | - | - | - | - | - | - | - | - | - | - | 175 | 195 | 230 | 263 | 211 | 230 | 263 |
| B-ahel | kW | - | - | - | - | - | - | - | - | - | - | 96 | 115 | 115 | 132 | 211 | 230 | 263 |
| Max. voolutarve (Un - 10%)*** | A | 190 | 215 | 240 | 265 | 290 | 320 | 355 | 385 | 420 | 480 | 495 | 564 | 630 | 720 | 770 | 840 | 960 |
| A-ahel | A | - | - | - | - | - | - | - | - | - | - | 320 | 355 | 420 | 480 | 385 | 420 | 480 |
| B-ahel | A | - | - | - | - | - | - | - | - | - | - | 175 | 210 | 210 | 240 | 385 | 420 | 480 |
| Maksimaalne voolutarve (Un)*** | A | 173 | 195 | 218 | 241 | 264 | 291 | 323 | 350 | 382 | 436 | 450 | 514 | 573 | 655 | 700 | 764 | 873 |
| A-ahel | A | - | - | - | - | - | - | - | - | - | - | 291 | 323 | 382 | 436 | 350 | 382 | 436 |
| B-ahel | A | - | - | - | - | - | - | - | - | - | - | 159 | 191 | 191 | 218 | 350 | 382 | 436 |
| Max. käivitusvool, std. seade (Un)**** | A | 277 | 312 | 335 | 379 | 402 | 435 | 519 | 546 | 578 | 618 | 1251 | 1549 | 1608 | 1701 | 1735 | 1799 | 1920 |
| A-ahel | A | - | - | - | - | - | - | - | - | - | - | 1092 | 1358 | 1417 | 1483 | 1385 | 1417 | 1483 |
| B-ahel | A | - | - | - | - | - | - | - | - | - | - | 960 | 1226 | 1226 | 1265 | 1385 | 1417 | 1483 |
| Max. käivitusvool/max. voolutarbe suhe, seade | 1.61 | 1.60 | 1.54 | 1.57 | 1.52 | 1.49 | 1.61 | 1.56 | 1.51 | 1.42 | 2.78 | 3.02 | 2.81 | 2.60 | 2.48 | 2.36 | 2.20 | |
| Max. käivitusvool/max. voolutarbe suhe, A-ahel | - | - | - | - | - | - | - | - | - | - | 3.75 | 4.21 | 3.71 | 3.40 | 3.96 | 3.71 | 3.40 | |
| Max. käivitusvool/max. voolutarbe suhe, B-ahel | - | - | - | - | - | - | - | - | - | - | 6.03 | 6.42 | 6.42 | 5.80 | 3.96 | 3.71 | 3.40 | |
| Max. käivitusvool - vähendatud voolu käivitus (Un) **** | A | std. | std. | std. | std. | std. | std. | std. | std. | std. | std. | N/A | N/A | N/A | N/A | N/A | N/A | N/A |
| Kolmefaasiline lühise hoidmisvool | kA | 25 | 25 | 25 | 25 | 25 | 25 | 25 | 25 | 25 | 25 | N/A | N/A | N/A | N/A | N/A | N/A | N/A |
| A-ahel | kA | - | - | - | - | - | - | - | - | - | - | 25 | 25 | 25 | 25 | 25 | 25 | 25 |
| B-ahel | kA | - | - | - | - | - | - | - | - | - | - | 15 | 15 | 15 | 15 | 25 | 25 | 25 |
| Kliendi ootevõimsus, seade või ahel A, aurusti veepumba ühenduste jaoks† | kW | 8 | 8 | 8 | 11 | 11 | 11 | 15 | 15 | 15 | 15 | 15 | 18 | 18 | 30 | 30 | 30 | 30 |
** Võimsustarve, kompressor, seadme tööpiiridel (aurusti vee sisenemis-/väljumistemperatuur = 15°C/10°C, kondensaatori sisenemis-/väljumistemperatuur = 40°C/45°C) ja nimipingel 400 V (andmed on toodud seadme andmesildil).
*** Maksimaalne seadme töövool maksimaalse seadme võimsustarbe korral.
**** Maksimaalne hetkeline käivitusvool (väikseima(te) kompressori(te) maksimaalne töövool + suurima kompressori blokeeritud rootori vool või vähendatud käivitusvool)
† Voolu- ja võimsustarve ei ole ülaltoodud väärtustes arvesse võetud.
N/A Pole saadaval
30HXC 080-375 seadmed kõrge kondenseerimistemperatuuri jaoks on otseselt tuletatud standardmudelitest. Nende kasutusala on sama, mis standardseadmetel, kuid võimaldab töötamist kondensaatori väljuva vee temperatuuril kuni 63°C. PRO-DIALOG juhtimine pakub kõiki standardseadmete eeliseid, lisaks kondensaatori väljuva vee temperatuuri juhtimist.
Peamised muudatused on:
Need seadmed on mõeldud traditsioonilisteks rakendusteks vesijahutusega seadmetele, kuid kõrgema kondensaatori väljuva vee temperatuuri jaoks kui 45°C.
Nagu standardseadmed, on need varustatud kondensaatori siseneva ja väljuva vee anduritega, mis on paigaldatud torustikule.
Masinat on võimalik juhtida kondensaatori vee väljalaskeava juures, mis nõuab tehase konfiguratsiooni muutmist ja kütte/jahutuse sisselaskeava ümberlülitusseadme kasutamist.
Need seadmed on mõeldud vesi-vesi soojuspumpade jaoks.
Need on tehases konfigureeritud soojuspumpadeks (kütte/jahutuse juhtimine sõltuvalt kaugjuhtimisega ümberlülitusseadmest). Kondensaator sisaldab soojusisolatsiooni, mis on identne aurusti omaga.
Kogu teave on identne standardsete 30HXC seadmete omaga, välja arvatud järgmised lõigud.
Selle seadme tüübi jaoks puuduvad nominaalsed tingimused. Valik tehakse praeguse elektroonilise kataloogi abil.
Need on identsed standardsete 30HXC seadmete omadega. Ainus erinevus on siseneva välise juhtmestiku ühenduse läbimõõdus, mida on kirjeldatud peatükis "Soovitatav valik". Enne juhtmestiku ühendamist vaadake nende seadmete mõõtmete jooniseid.
Vaata 30GX kompressorite tabelit.
Kõik standardsete 30HXC seadmete jaoks saadaval olevad valikud on ühilduvad, välja arvatud:
| Valik 5, soolalahuse seade | Eriline seade |
| Valik 25, pehme käivitus, 30HXC 200-375 seadmed | Pole saadaval |
Tähelepanu:
Kui seadmetel on kaks erinevat töörežiimi - üks kõrge kondenseerimistemperatuuriga ja teine madala kondenseerimistemperatuuriga - ning üleminek tehakse seadme töötamise ajal, ei tohi temperatuur muutuda rohkem kui 3 K minutis. Kui see pole võimalik, on soovitatav kasutada seadme käivitus/seiskamis lülitit (kaugkäivitus/seiskamine on saadaval standardseadmete jaoks).
| 30GX | 082 | 092 | 102 | 112 | 122 | 132 | 152 | 162 | 182 | 207 | 227 | 247 | 267 | 298 | 328 | 358 | ||
| Neto jahutusvõimsus | kW | 285 | 309 | 332 | 388 | 417 | 450 | 505 | 536 | 602 | 687 | 744 | 810 | 910 | 1003 | 1103 | 1207 | |
| Töökaal | kg | 3116 | 3157 | 3172 | 3515 | 3531 | 3633 | 3920 | 3936 | 4853 | 5540 | 5570 | 6134 | 6365 | 7354 | 7918 | 8124 | |
| Külmaaine kogus | HFC-134a | |||||||||||||||||
| Ahel A/B | kg | 55/55 | 58/50 | 54/53 | 55/53 | 60/57 | 63/60 | 75/69 | 75/75 | 80/80 | 130/85 | 130/85 | 155/98 | 170/104 | 162/150 | 162/165 | 175/175 | |
| Õli | Polüoolestri õli CARRIER SPEC: PP 47-32 | |||||||||||||||||
| Ahel A/B | l | 20/20 | 20/20 | 20/20 | 20/20 | 20/20 | 20/20 | 20/20 | 20/20 | 20/20 | 40/20 | 40/20 | 40/20 | 40/20 | 40/40 | 40/40 | 40/40 | |
| Kompressorid | Hermeetiline kahe kruviga Power3 | |||||||||||||||||
| Ahel A, nom. suurus kompressori kohta** | 46 | 46 | 56 | 56 | 66 | 66 | 80 | 80 | 80+ | 66/56 | 80/66 | 80/80 | 80+/80+ | 80/80 | 80/80 | 80+/80+ | ||
| Ahel B, nom. suurus kompressori kohta** | 39 | 46 | 46 | 56 | 56 | 66 | 66 | 80 | 80+ | 80 | 80 | 80 | 80+ | 66/66 | 80/802 | 80+/80+ | ||
| Juhtimistüüp | PRO-DIALOG Plus juhtimine | |||||||||||||||||
| Võimsuse astmete arv | 6 | 6 | 6 | 6 | 6 | 6 | 6 | 6 | 6 | 8 | 8 | 8 | 8 | 10 | 10 | 10 | ||
| Minimaalne võimsus | % | 19 | 21 | 19 | 21 | 19 | 21 | 19 | 21 | 21 | 16 | 14 | 14 | 14 | 9 | 10 | 10 | |
| Aurusti | Korpuse ja toruga tüüp, sisemiselt ribiliste vasktorudega | |||||||||||||||||
| Neto vee maht | l | 65 | 73 | 73 | 87 | 87 | 101 | 91 | 91 | 109 | 140 | 140 | 165 | 181 | 203 | 229 | 229 | |
| Veeühendused | Tehases tarnitud lameäärik, mis tuleb kohapeal keevitada | |||||||||||||||||
| Sisse- ja väljalaskeava | in. | 4 | 4 | 4 | 5 | 5 | 5 | 5 | 5 | 5 | 6 | 6 | 6 | 6 | 8 | 8 | 8 | |
| Drenaaž ja õhutus (NPT) | in. | 3/8 | 3/8 | 3/8 | 3/8 | 3/8 | 3/8 | 3/8 | 3/8 | 3/8 | 3/8 | 3/8 | 3/8 | 3/8 | 3/8 | 3/8 | 3/8 | |
| Max. veepoolne töörõhk | kPa | 1000 | 1000 | 1000 | 1000 | 1000 | 1000 | 1000 | 1000 | 1000 | 1000 | 1000 | 1000 | 1000 | 1000 | 1000 | 1000 | |
| Kondensaatorid | Vasktorud ja alumiiniumribid | |||||||||||||||||
| Ventilaatorid | Aksiaalne FLYING BIRD 2 ventilaator pöörleva kattega | |||||||||||||||||
| Kogus | 4 | 4 | 4 | 6 | 6 | 6 | 8 | 8 | 8 | 10 | 10 | 12 | 12 | 14 | 16 | 16 | ||
| Kiirus | r/s | 15.8 | 15.8 | 15.8 | 15.8 | 15.8 | 15.8 | 15.8 | 15.8 | 15.8 | 15.8 | 15.8 | 15.8 | 15.8 | 15.8 | 15.8 | 15.8 | |
| Õhu koguvool | l/s | 21110 | 21110 | 21110 | 31660 | 31660 | 31660 | 42220 | 42220 | 42220 | 52770 | 52770 | 63330 | 63330 | 73880 | 84440 | 84440 | |
* Standardiseeritud Euroventi tingimused: aurusti siseneva/väljuva vee temperatuurid = 12°C/7°C, välisõhu temperatuur = 35°C Neto jahutusvõimsus: bruto jahutusvõimsus miinus veepumba soojus sisemise aurusti rõhulanguse vastu.
** Kompressori suurus vastab nominaalsele võimsusele tonnides (1 tonn = 3,517 kW).
| 30HXC | 082 | 092 | 102 | 112 | 122 | 132 | 152 | 162 | 182 | 207 | 227 | 247 | 267 | 298 | 328 | 358 | ||
| Toiteahel | ||||||||||||||||||
| Nimitoide* | V-ph-Hz | 400-3-50 | ||||||||||||||||
| Pinge vahemik | V | 360-440 | ||||||||||||||||
| Juhtahela toide | Juhtahel saab toite tehases paigaldatud trafo kaudu | |||||||||||||||||
| Nimitootlusvõimsus* | kW | 98 | 109 | 123 | 133 | 150 | 166 | 179 | 196 | 214 | 246 | 281 | 292 | 332 | 364 | 394 | 449 | |
| Nimivoolutarve* | A | 180 | 200 | 223 | 256 | 273 | 290 | 326 | 352 | 388 | 449 | 492 | 528 | 582 | 642 | 704 | 776 | |
| Max. tootlusvõimsus** | kW | 127 | 141 | 154 | 175 | 191 | 207 | 234 | 253 | 286 | 319 | 355 | 380 | 429 | 462 | 506 | 572 | |
| A-ahel | kW | - | - | - | - | - | - | - | - | - | 193 | 228 | 253 | 286 | 253 | 253 | 286 | |
| B-ahel | kW | - | - | - | - | - | - | - | - | - | 127 | 127 | 127 | 143 | 209 | 253 | 286 | |
| Kosiinus fii, ühik täiskoormusel | 0.85 | 0.85 | 0.85 | 0.85 | 0.85 | 0.85 | 0.86 | 0.86 | 0.86 | 0.86 | 0.86 | 0.86 | 0.86 | 0.86 | 0.86 | 0.86 | ||
| Max. voolutarve (Un - 10%)*** | A | 237 | 262 | 287 | 323 | 353 | 383 | 429 | 464 | 524 | 585 | 650 | 696 | 786 | 847 | 928 | 1048 | |
| A-ahel | A | - | - | - | - | - | - | - | - | - | 353 | 418 | 464 | 524 | 464 | 464 | 524 | |
| B-ahel | A | - | - | - | - | - | - | - | - | - | 232 | 232 | 232 | 262 | 383 | 464 | 524 | |
| Maksimaalne voolutarve (Un)*** | A | 217 | 240 | 263 | 297 | 324 | 351 | 394 | 426 | 480 | 537 | 596 | 639 | 721 | 777 | 852 | 961 | |
| A-ahel | A | - | - | - | - | - | - | - | - | - | 324 | 383 | 426 | 480 | 426 | 426 | 480 | |
| B-ahel | A | - | - | - | - | - | - | - | - | - | 213 | 213 | 213 | 240 | 351 | 426 | 480 | |
| Max. käivitusvool, std. seade**** (Un) | A | 334 | 357 | 401 | 435 | 468 | 495 | 590 | 622 | 662 | 1338 | 1631 | 1674 | 1767 | 1812 | 1887 | 2008 | |
| A-ahel*** | A | - | - | - | - | - | - | - | - | - | 1125 | 1418 | 1461 | 1527 | 1461 | 1461 | 1527 | |
| B-ahel*** | A | - | - | - | - | - | - | - | - | - | 1248 | 1248 | 1248 | 1287 | 1152 | 1461 | 1527 | |
| Max. käivitusvool/max. voolutarbe suhe, seade | 1.54 | 1.49 | 1.53 | 1.47 | 1.44 | 1.41 | 1.50 | 1.46 | 1.38 | 2.49 | 2.74 | 2.62 | 2.45 | 2.33 | 2.22 | 2.09 | ||
| Max. käivitusvool/max. voolutarbe suhe, A-ahel | - | - | - | - | - | - | - | - | - | 3.47 | 3.70 | 3.43 | 3.18 | 3.43 | 3.43 | 3.18 | ||
| Max. käivitusvool/max. voolutarbe suhe, B-ahel | - | - | - | - | - | - | - | - | - | 5.86 | 5.86 | 5.86 | 5.36 | 3.28 | 3.43 | 3.18 | ||
| Max. käivitusvool - vähendatud vooluga käivitus (Un) **** | A | std. | std. | std. | std. | std. | std. | std. | std. | std. | 878 | 955 | 998 | 1102 | 1136 | 1211 | 1343 | |
| A-ahel | A | std. | std. | std. | std. | std. | std. | std. | std. | std. | 665 | 742 | 785 | 862 | 785 | 785 | 862 | |
| B-ahel | A | std. | std. | std. | std. | std. | std. | std. | std. | std. | 572 | 572 | 572 | 622 | 692 | 785 | 862 | |
| Max. käivitusvool - vähendatud vooluga käivitus/ max. voolutarbe suhe, seade | std. | std. | std. | std. | std. | std. | std. | std. | std. | 1.64 | 1.60 | 1.56 | 1.53 | 1.46 | 1.42 | 1.40 | ||
| A-ahel | std. | std. | std. | std. | std. | std. | std. | std. | std. | 2.05 | 1.94 | 1.84 | 1.79 | 1.84 | 1.84 | 1.79 | ||
| B-ahel | std. | std. | std. | std. | std. | std. | std. | std. | std. | 2.69 | 2.69 | 2.69 | 2.39 | 1.97 | 1.84 | 1.79 | ||
| Kolmefaasiline lühisvoolu hoidmisvool | kA | 25 | 25 | 25 | 25 | 25 | 25 | 25 | 25 | 25 | N/A | N/A | N/A | N/A | N/A | N/A | N/A | |
| A-ahel | kA | - | - | - | - | - | - | - | - | - | 25 | 25 | 25 | 25 | 25 | 25 | 25 | |
| B-ahel | kA | - | - | - | - | - | - | - | - | - | 25 | 25 | 25 | 25 | 25 | 25 | 25 | |
| Kliendi ootevõimsus, seade või ahel A, aurusti veepumba ühenduste jaoks† | kW | 4 | 4 | 4 | 5.5 | 5.5 | 5.5 | 7.5 | 7.5 | 7.5 | 7.5 | 9 | 9 | 9 | 15 | 15 | 15 | |
* Standard Euroventi tingimused: Aurusti siseneva/väljuva vee temperatuur 12°C ja 7°C. Välisõhu temperatuur 35°C.
** Sisendvõimsus, kompressor ja ventilaator, seadme tööpiiridel (aurusti siseneva/väljuva vee temperatuur = 15°C/10°C, välisõhu temperatuur = 46°C) ja nimipinge 400 V (andmed on toodud seadme andmesildil).
*** Seadme maksimaalne töövool seadme maksimaalse sisendvõimsuse korral.
**** Maksimaalne hetkeline käivitusvool (väikseima(te) kompressori(te) maksimaalne töövool + ventilaatori vool + suurima kompressori blokeeritud rootori vool või vähendatud käivitusvool).
† Voolu- ja võimsustarve ei ole ülaltoodud väärtustes arvesse võetud
N/A Pole saadaval
| Viide | Suurus | I nom. | MHA | LRA | LRA (Y) | LRA (S) 1 cp. | LRA (S) 2 cp. |
| 06NA2146S7N | 39 | 70 | 95 | 605 | 191 | 220 | - |
| 06NA2174S7N | 46 | 90 | 120 | 715 | 226 | 260 | - |
| 06NA2209S7N | 56 | 113 | 145 | 856 | 270 | 330 | 420 |
| 06NA2250S7N | 66 | 130 | 175 | 960 | 303 | 380 | 500 |
| 06NA2300S5N | 80 | 156 | 210 | 1226 | 387 | 445 | 550 |
| 06NA2300S5E | 80+ | 174 | 240 | 1265 | 400 | 460 | 600 |
Legend: (Selgitus:)
| 06NA | Õhkjahutusega seadmete kompressor |
| N | Mitte-ökonoomne kompressor |
| E | Ökonoomne kompressor |
| INOM | Kompressori keskmine voolutarve Euroventi tingimustes |
| MHA | Peab hoidma ampreid (maksimaalne töövool) 360 V juures |
| LRA | Blokeeritud rootori vool otsekäivitusega |
| LRA (Y) | Blokeeritud rootori vool vähendatud vooluga (täht/kolmnurk käivitusrežiim) |
| LRA (S) 1 cp. | Käivitus vähendatud vooluga elektroonilise starteriga (käivitus kestus max. 3 sekundit) ühe kompressori kohta ahela kohta |
| LRA (S) 2 cp. | Käivitus vähendatud vooluga elektroonilise starteriga (käivitus kestus max. 3 sekundit) kahe kompressori kohta ahela kohta |
| Aurusti (Evaporator) | Miinimum | Maksimum | |
| Aurustisse siseneva vee temperatuur (Evaporator entering water temperature) | °C | 6.8* | 21 |
| Aurustist väljuva vee temperatuur (Evaporator leaving water temperature) | °C | 4** | 15 |
| Kondensaator (vesijahutusega) (Condenser (water-cooled)) | Miinimum | Maksimum | |
| Kondensaatorisse siseneva vee temperatuur (Condenser entering water temperature) | °C | 20*** | 42 |
| Kondensaatorist väljuva vee temperatuur (Condenser leaving water temperature) | °C | 25 | 45 |
| Välistemperatuur töörežiimis 30HXC (Outside ambient operating temperature 30HXC) | °C | 6 | 40 |
| Kondensaator (õhkjahutusega) (Condenser (air-cooled)) | Miinimum | Maksimum | |
| Välistemperatuur töörežiimis (Outdoor ambient operating temperature) | °C | 0 | 46 |
| Saadaval staatiline rõhk (Available static pressure) | kPa | 0 |
Märkused: (Notes:)
* Rakenduste puhul, mis nõuavad töötamist temperatuuril alla 6,8°C, võtke seadme valimiseks ühendust ettevõttega Carrier s.a., kasutades Carrieri elektroonilist kataloogi. (For application requiring operation at less than 6.8°C, contact Carrier s.a. for unit selection using the Carrier electronic catalog.)
** Rakenduste puhul, mis nõuavad töötamist temperatuuril alla 4°C, vajavad seadmed antifriisi kasutamist. (For application requiring operation at less than 4°C, the units require the use of antifreeze.)
*** Vesijahutusega seadmed (30HXC), mis töötavad täiskoormusel ja kondensaatorisse siseneva vee temperatuuril alla 20°C, vajavad ülerõhu reguleerimist analoogsete vee reguleerventiilidega (vt lõiku ülerõhu reguleerimise kohta). (Water-cooled units (30HXC) operating at full load and below 20°C condenser entering water temperature require the use of a head pressure control with analogue water control valves (see paragraph on head pressure control).)
Ajutistes töörežiimides (käivitamisel ja osakoormusel) võib seade töötada kondensaatorisse siseneva õhu temperatuuril 13°C. (In temporary operating modes (start-up and at part load) the unit can operate with a condenser entering air temperature of 13°C.)
Minimaalne jahutatud vee vooluhulk on näidatud järgmise lehe tabelis. (The minimum chilled water flow is shown in the table on the next page.) Kui vooluhulk on sellest väiksem, saab aurusti vooluhulka retsirkuleerida, nagu on näidatud diagrammil. (If the flow is less than this, the evaporator flow can be recirculated, as shown in the diagram.) Aurustist väljuva segu temperatuur ei tohi kunagi olla vähem kui 2,8 K madalam kui jahutatud vette siseneva vee temperatuur. (The temperature of the mixture leaving the evaporator must never be less than 2.8 K lower than the chilled water entering temperature.)

MINIMAALSE JAHUTATUD VEE VOOLU HULGA JAOKS (FOR MINIMUM CHILLED WATER FLOW RATE)
Maksimaalset jahutatud vee vooluhulka piirab maksimaalne lubatud rõhulang aurustis. (The maximum chilled water flow is limited by the maximum permitted pressure drop in the evaporator.) See on esitatud järgmise lehe tabelis. (It is provided in the table on the next page.) Kui vooluhulk ületab maksimaalset väärtust, on võimalik kaks lahendust: (If the flow exceeds the maximum value, two solutions are possible:)

MAKSIMAALSE JAHUTATUD VEE VOOLU HULGA JAOKS (FOR MAXIMUM CHILLED WATER FLOW RATE)
Muutuva aurusti voolu saab kasutada standardsetes 30HXC ja 30GX jahutites. (Variable evaporator flow can be used in standard 30HXC and 30GX chillers.) Jahutid säilitavad konstantse väljuva vee temperatuuri kõigi voolutingimuste korral. (The chillers maintain a constant leaving water temperature under all flow conditions.) Selleks peab minimaalne vooluhulk olema suurem kui lubatud vooluhulkade tabelis toodud minimaalne vooluhulk ja ei tohi muutuda rohkem kui 10% minutis. (For this to happen, the minimum flow rate must be higher than the minimum flow given in the table of permissible flow rates and must not vary by more than 10% per minute.) Kui vooluhulk muutub kiiremini, peaks süsteem sisaldama minimaalselt 6,5 liitrit vett kW kohta, mitte 3,25 l/kW. (If the flow rate changes more rapidly, the system should contain a minimum of 6.5 liters of water per kW instead of 3.25 l/kW.)
Sõltumata süsteemist antakse veeringi minimaalne maht valemiga: (Whichever the system, the water loop minimum capacity is given by the formula:)
Maht = Cap (kW) x N liitrit (Capacity = Cap (kW) x N Liters)
| Rakendus (Application) | N |
| Tavaline õhukonditsioneer (Normal air conditioning) | 3.25 |
| Protsessi tüüpi jahutus (Process type cooling) | 6.5 |
Kus Cap on süsteemi nominaalne jahutusvõimsus (kW) paigaldise nominaalsetes töötingimustes. (Where Cap is the nominal system cooling capacity (kW) at the nominal operating conditions of the installation.)
See maht on vajalik stabiilseks tööks ja täpseks temperatuuri reguleerimiseks. (This volume is necessary for stable operation and accurate temperature control.)
Nõutava mahu saavutamiseks on sageli vaja vooluringi lisada puhverveepaak. (It is often necessary to add a buffer water tank to the circuit in order to achieve the required volume.) Paak peab ise olema sisemiselt deflektoritega, et tagada vedeliku (vee või soolvee) korralik segunemine. (The tank must itself be internally baffled in order to ensure proper mixing of the liquid (water or brine).) Vaadake allolevaid näiteid. (Refer to the examples below.)
MÄRKUS: Kompressor ei tohi tunnis rohkem kui 6 korda taaskäivituda. (NOTE: The compressor must not restart more than 6 times in an hour.)


| 30HXC | Min.* | Max.** | ||
| 080-090 | 5.7 | 22.7 | ||
| 100 | 6.0 | 24.1 | ||
| 110 | 6.9 | 27.5 | ||
| 120-130 | 8.3 | 33.0 | ||
| 140-155 | 10.0 | 39.5 | ||
| 175-190 | 10.7 | 42.7 | ||
| 200 | 13.4 | 53.7 | ||
| 230 | 13.4 | 60.6 | ||
| 260-285 | 17.0 | 68.1 | ||
| 310 | 19.4 | 77.8 | ||
| 345-375 | 21.3 | 85.3 | ||
| 30GX | Min.* | Max.** | ||
| 082 | 5.7 | 22.7 | ||
| 092-102 | 6.0 | 24.1 | ||
| 112-122 | 6.9 | 27.5 | ||
| 132 | 8.4 | 33.7 | ||
| 152-162 | 10.0 | 39.9 | ||
| 182 | 10.7 | 42.7 | ||
| 207-227 | 13.4 | 53.7 | ||
| 247 | 15.1 | 60.6 | ||
| 267 | 17.0 | 68.1 | ||
| 298 | 19.4 | 77.8 | ||
| 328-358 | 21.3 | 85.3 | ||
* Põhineb vee kiirusel 0,9 m/s.
** Põhineb vee kiirusel 3,6 m/s.
| 30HXC | Min.* Suletud kontuur (Closed loop) | Avatud kontuur (Open loop) | Max.** |
| 080-110 | 2.5 | 7.5 | 29.9 |
| 120-130 | 3.1 | 9.3 | 37.3 |
| 140-155 | 3.8 | 11.4 | 45.5 |
| 175-190 | 4.6 | 13.8 | 55.2 |
| 200 | 5.0 | 14.9 | 59.6 |
| 230-285 | 6.7 | 20.1 | 80.3 |
| 310-375 | 7.3 | 22.0 | 88.0 |
* Põhineb vee kiirusel 0,3 m/s suletud kontuuris ja 0,9 m/s avatud kontuuris.
** Põhineb vee kiirusel 3,6 m/s


Jahuti vooluhulga lüliti ja jahutatud veepumba blokeeringu paigaldamine on kohustuslik 30HXC ja 30GX seadmetele. Selle juhise eiramine tühistab Carrieri garantii.
Jahuti vooluhulga lüliti kontroller on tehases paigaldatud ja ühendatud 30HXC ja 30GX seadmetele.
Järgige paigaldamisel tootja juhiseid.
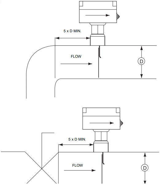
Vooluhulga lülitit võib paigaldada horisontaalsesse või vertikaalsesse torusse, kus vedelik voolab ülespoole. Seda ei tohiks kasutada, kui vedelik voolab allapoole.
Paigaldage torusse, kus on vähemalt viis toru läbimõõtu sirget toru vooluhulga lüliti mõlemal küljel. Ärge paigaldage ventiilide, põlvede või avade lähedusse. Labad ei tohi kunagi puudutada toru ega muid piiranguid torus. Keerake vooluhulga lüliti asendisse nii, et laba tasane osa oleks vooluga risti. Kaane ja korpuse sees oleva põhja nooled peavad osutama voolu suunas. Lüliti tuleks paigaldada nii, et klemmid oleksid hõlpsaks juhtmestikuks ligipääsetavad.
Klemmid 34 ja 35 on ette nähtud jahutatud veepumba blokeeringu (jahutatud veepumba kontaktori abikontakt) paigaldamiseks kohapeal.
(Toruühendus: 1" NPT)

Kondensaatori vooluhulga lüliti on kohapeal paigaldatav seade.
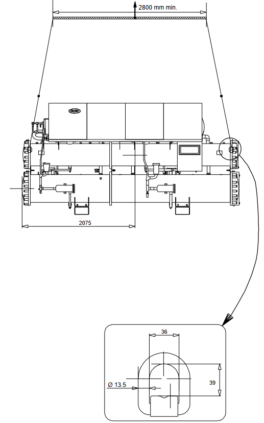
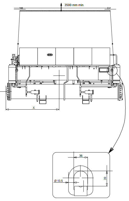
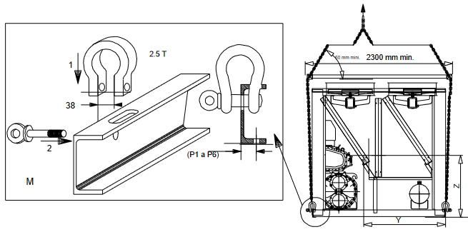
Ärge eemaldage aluseid, kaubaaluseid ega kaitsepakendeid enne, kui seade on oma lõplikus asukohas. Liigutage jahutit torude või rullide abil või tõstke seda, kasutades õige kandevõimega trosseid.
(30HXC)
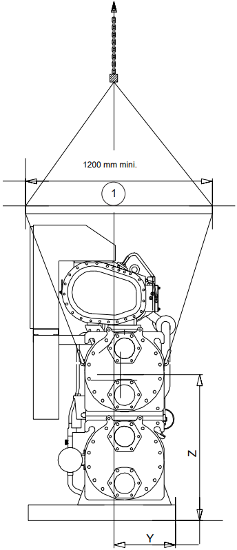
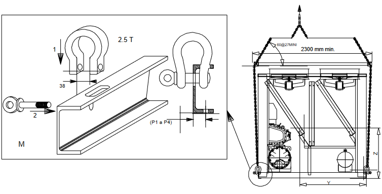
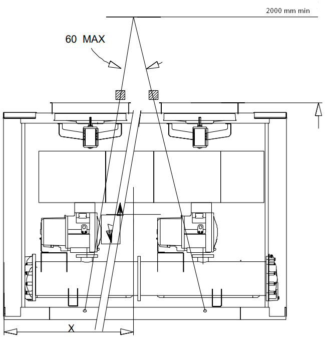
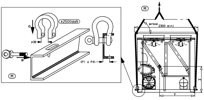
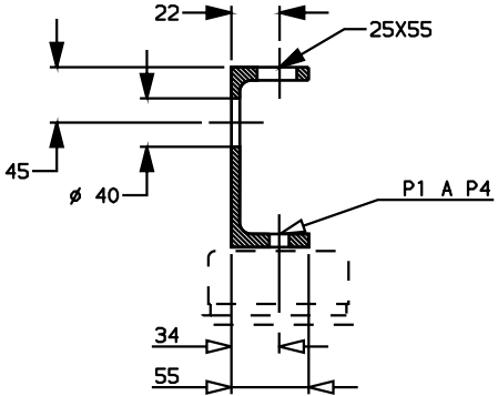
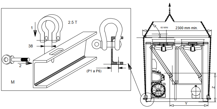
Kasutage trosseid ainult selleks ettenähtud tõstepunktides, mis on märgitud seadmele, jahuti soojusvaheti peal. Soojusvaheti põhjast kinnitamine põhjustab seadme ohtliku tõstmise. Võivad tekkida kehavigastused või seadme kahjustused. Järgige seadmega kaasasoleval sertifitseeritud mõõtejoonisel toodud kinnitusjuhiseid.
Alati vaadake peatükki "Mõõtmed ja vabad ruumid", et veenduda, kas kõigi ühenduste ja hooldustööde jaoks on piisavalt ruumi. Seadme raskuskeskme koordinaatide, seadme kinnitusavade asukoha ja kaalujaotuspunktide kohta vaadake seadmega kaasasolevat sertifitseeritud mõõtejoonist.
Soovitame need jahutid paigaldada kas keldrisse või maapinnale. Kui see paigaldatakse maapinnast kõrgemale, kontrollige esmalt, kas põranda lubatud koormus on piisav ja kas põrand on piisavalt tugev ja tasane. Vajadusel tugevdage ja tasandage põrandat.
Kui jahuti on oma lõplikus asukohas, eemaldage alused ja muud seadmed, mida kasutati selle liigutamiseks. Tasandage seade vesiloodi abil ja kinnitage seade poltidega põranda või aluse külge. Nende seadmete töö võib olla häiritud, kui need ei ole tasased ja kindlalt kinnitatud oma kinnituste külge. Vajadusel kasutage vibratsiooni isoleerimiseks seadme all isolatsioonipatju.
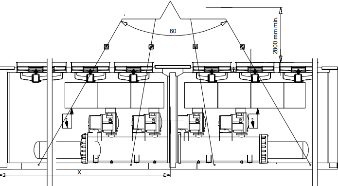
See diagramm on näidatud ainult informatiivsel eesmärgil. Vaadake "sertifitseeritud jooniseid".

| X mm | Y mm | Z mm | |
| 30HXC080 30HXC090 30HXC100 |
1345 | 402 | 903 |
| 30HXC110 | 1368 | 397 | 935 |
| 30HXC120 30HXC130 30HXC140 30HXC155 |
1731 | 392 | 879 |
| 30HXC175 | 1703 | 386 | 947 |
| 30HXC190 | 1705 | 398 | 955 |


MÄRKUS
Kui kõik tõstmis- ja positsioneerimistoimingud on lõpetatud, on soovitatav parandada kõik pinnad, kust tõstekonksudel on värv eemaldatud.
See diagramm on näidatud ainult informatiivsel eesmärgil. Vaadake "sertifitseeritud jooniseid".




| X mm | Y mm | Z mm | |
| 30HXC310 | 2195 | 425 | 1085 |
| 30HXC345 | 2195 | 425 | 1085 |
| 30HXC375 | 2205 | 435 | 1025 |
MÄRKUS
Kui kõik tõstmis- ja positsioneerimistoimingud on lõpetatud, on soovitatav parandada kõik pinnad, kust tõstekonksudel on värv eemaldatud.
See diagramm on näidatud ainult informatiivsel eesmärgil. Vaadake "sertifitseeritud jooniseid".



| X mm | Y mm | Z mm | PTkg | |
| 30GX082 | 1440 | 1460 | 900 | 3115 |
| 30GX092 | 1440 | 1460 | 900 | 3156 |
| 30GX102 | 1440 | 1460 | 900 | 3170 |
| 30GX112 | 1650 | 1460 | 900 | 3574 |
| 30GX122 | 1650 | 1460 | 900 | 3527 |
| 30GX132 | 1650 | 1460 | 900 | 3634 |
| 30GX152 | 2155 | 1430 | 900 | 3938 |
| 30GX162 | 2155 | 1430 | 900 | 3954 |



| X mm | Y mm | Z mm | PTkg | |
| 30GX182 | 3030 | 1370 | 875 | 4853 |
MÄRKUS
Kui kõik tõstmis- ja positsioneerimistoimingud on lõpetatud, on soovitatav parandada kõik pinnad, kust tõstekonksudel on värv eemaldatud
See diagramm on näidatud ainult informatiivsel eesmärgil. Vaadake "sertifitseeritud jooniseid".



| X mm | Y mm | Z mm | PTkg | |
| 30GX207 | 2870 | 1440 | 890 | 5536 |
| 30GX227 | 2870 | 1440 | 890 | 5572 |
| 30GX247 | 3320 | 1430 | 927 | 6131 |
| 30GX267 | 3300 | 1420 | 886 | 6363 |



| X mm | Y mm | Z mm | PTkg | |
| 30GX298 | 3630 | 1420 | 890 | 7353 |
| 30GX328 | 4360 | 1455 | 920 | 7840 |
| 30GX358 | 4360 | 1445 | 930 | 8045 |
MÄRKUS
Kui kõik tõstmis- ja positsioneerimistoimingud on lõpetatud, on soovitatav parandada kõik pinnad, kust tõstekonksudel on värv eemaldatud.
Kõigi vee sisse- ja väljalaskeühenduste suuruste ja asukohtade kohta vaadake sertifitseeritud mõõtejooniseid. Veetorud ei tohi soojusvahetitele edastada radiaalset ega aksiaalset jõudu ega torustikule või hoonele vibratsiooni.
Veevarustust tuleb analüüsida ning vajadusel tuleb sisse ehitada sobivad filtreerimis-, töötlemis-, juhtimisseadmed, isolatsiooni- ja õhutusventiilid ning vooluringid. Konsulteerige kas veetöötlusspetsialisti või vastava kirjandusega.
Veering peaks olema projekteeritud nii, et selles oleks võimalikult vähe põlvesid ja horisontaalseid torujookse erinevatel tasapindadel. Tuleks teha järgmised põhikontrollid (vt ka allpool tüüpilise hüdraulilise vooluringi illustratsiooni).
Aurusti ja kondensaator on mitmetorulised kest- ja torutüüpi eemaldatavate veekastidega, et hõlbustada torude puhastamist.
Enne veeühenduste tegemist pingutage mõlema pea poldid näidatud väiksema pöördemomendiga, järgides kirjeldatud meetodit. Pingutage paarikaupa ja näidatud järjekorras vastavalt poldi suurusele (vt tabel) kasutades pöördemomendi väärtust antud vahemiku madalamas otsas.
Eemaldage veekastist tehases tarnitud lameflants enne torude flantsi külge keevitamist. Flantsi eemaldamata jätmine võib kahjustada andureid ja isolatsiooni.
MÄRKUS
Soovitame süsteemi tühjendada ja torustiku lahti ühendada, et tagada torustikuga ühendatud peade poltide õige ja ühtlane pingutamine.
Aurusti ja vesijahutusega kondensaatori kaitse
Kui jahuti või veetorustik asub piirkonnas, kus ümbritseva õhu temperatuur võib langeda alla 0 °C, on soovitatav lisada antifriisilahus, et kaitsta seadet ja veetorustikku temperatuurini 8 K alla madalaima temperatuuri. Kasutage ainult soojusvaheti tööks heaks kiidetud antifriisilahuseid. Kui süsteemi ei kaitsta antifriisilahusega ja seda ei kasutata külmumisoludes, on jahuti ja välistorustiku tühjendamine kohustuslik. Külmumisest tingitud kahjustused ei kuulu garantii alla.

Legend

Legend
Standard EN 60204-1 on hea viis reageerida masinadirektiivi § 1.5.1 nõuetele. Normatiivset soovitust IEC 364 tunnustatakse üldiselt paigalduseeskirjade nõuetele vastavana.
Standardi EN 60204-1 lisa B võib kasutada masinate töö elektriliste omaduste kirjeldamiseks.
(1) Selle klassifikatsiooni puhul nõutav kaitse standard on IP21B (vastavalt viitedokumendile IEC 529). Kõigil 30HXC-del on kaitse standard IP23C ja seega vastavad nad sellele kaitse nõudele.
Personali pädevus: klassifikatsioon BA4(2) (personal, kes on kvalifitseeritud vastavalt IEC 364).
(2) Selle klassifikatsiooni puhul nõutav kaitse standard on IP43BW (vastavalt viitedokumendile IEC 529). Kõigil 30GX-del on kaitse standard IP45CW ja seega vastavad nad sellele kaitse nõudele.
MÄRKUS: Kui paigalduse teatud aspektid nõuavad muid kui eespool loetletud omadusi (või omadusi, millele siin ei ole viidatud), võtke ühendust oma Carrieri esindajaga.
Toiteallikas peab vastama jahuti andmesildil olevale spetsifikatsioonile. Toitepinge peab olema elektriliste andmete tabelis määratud vahemikus.
Ühenduste kohta vaadake elektriskeeme.
Jahuti käitamine vale toitepingega või liigse faaside tasakaalustamatusega on väärkasutus, mis muudab Carrieri garantii kehtetuks. Kui faaside tasakaalustamatus ületab 2% pinge puhul või 10% voolu puhul, võtke kohe ühendust oma kohaliku elektrivarustusega ja veenduge, et jahuti ei lülitataks sisse enne, kui on võetud parandusmeetmed.
100 x maks. kõrvalekalle keskmisest pingest
Keskmine pinge
Näide:
400 V - 3 faasi - 50 Hz toite korral mõõdeti üksikute faaside pingeteks:
AB = 406 V; BC = 399; AC = 394 V
| Keskmine pinge | = (406 + 399 + 394)/3 = 1199/3 |
| = 399.7 ütleme 400 V |
Arvutage maksimaalne kõrvalekalle 400 V keskmisest:
(AB) = 406 - 400 = 6
(BC) = 400 - 399 = 1
(CA) = 400 - 394 = 6

Maksimaalne kõrvalekalle keskmisest on 6 V. Suurim protsentuaalne kõrvalekalle on:
100 x 6/400 = 1.5 %
See on väiksem kui lubatud 2% ja on seega vastuvõetav.
Juhtme suuruse määramine on paigaldaja vastutusel ning see sõltub iga paigalduskoha omadustest ja eeskirjadest. Järgnevat tuleks kasutada ainult juhisena ja see ei tee Carrierit mingil viisil vastutavaks. Pärast juhtme suuruse määramist peab paigaldaja sertifitseeritud mõõtejoonise abil tagama lihtsa ühenduse ja määratlema kõik vajalikud kohapealsed muudatused.
Üldise lahtiühendus-/isolaatorlüliti väljale tarnitavate toitekaablite jaoks standardselt pakutavad ühendused on mõeldud allolevas tabelis loetletud juhtmete arvu ja tüübi jaoks.
Arvutused põhinevad masina maksimaalsel voolutugevusel (vt elektriliste andmete tabeleid).
Projekteerimisel kasutatakse järgmisi standardiseeritud paigaldusmeetodeid vastavalt standardile IEC 364, tabel 52C:
Arvutus põhineb PVC või XLPE isoleeritud kaablitele, millel on vask- või alumiiniumisüdamik. Maksimaalne temperatuur on 40°C 30HX seadmete puhul ja 46°C 30GX seadmete puhul.
The given wire length limits the voltage drop to < 5% (Antud traadi pikkus piirab pingelanguse < 5%-ni).
| Unit (Ühik) | Min. (mm2) by phase (faasi kohta min.) | Wire type (Juhtme tüüp) | L (m) | Max. (mm2) by phase (faasi kohta max.) | Wire type (Juhtme tüüp) | L (m) |
| 30HX 080 | 1 x 35 | XLPE Cu | 140 | 1 x 120 | PVC Al | 260 |
| 30HX 090 | 1 x 50 | XLPE Cu | 160 | 1 x 120 | PVC Al | 260 |
| 30HX 100 | 1 x 50 | XLPE Cu | 160 | 1 x 95 | XLPE Al | 195 |
| 30HX 110 | 1 x 70 | XLPE Cu | 170 | 1 x 120 | XLPE Al | 205 |
| 30HX 120/130 | 1 x 70 | XLPE Cu | 170 | 1 x 150 | XLPE Al | 210 |
| 30HX 140 | 1 x 95 | XLPE Cu | 180 | 1 x 185 | XLPE Al | 220 |
| 30HX 155 | 1 x 95 | XLPE Cu | 180 | 1 x 240 | XLPE Al | 225 |
| 30HX 175 | 1 x 120 | XLPE Cu | 185 | 1 x 240 | XLPE Al | 225 |
| 30HX 190 | 1 x150 | XLPE Cu | 190 | 2 x 95 | XLPE Al | 195 |
| 30HX 200 ckt A | 1 x 70 | XLPE Cu | 170 | 2 x120 | PVC Al | 325 |
| 30HX 230 ckt A | 1 x 95 | XLPE Cu | 180 | 2 x 120 | PVC Al | 325 |
| 30HX 260 ckt A | 1 x 120 | XLPE Cu | 185 | 1 x 240 | XLPE Al | 225 |
| 30HX 285 ckt A | 1 x 150 | XLPE Cu | 190 | 2 x 150 | XLPE Al | 265 |
| 30HX 200 ckt B | 1 x 35 | XLPE Cu | 140 | 1 x 95 | PVC Al | 250 |
| 30HX 230 ckt B | 1 x 35 | XLPE Cu | 140 | 1 x 120 | PVC Al | 260 |
| 30HX 260 ckt B | 1 x 35 | XLPE Cu | 140 | 1 x 120 | PVC Al | 260 |
| 30HX 285 ckt B | 1 x 50 | XLPE Cu | 160 | 2 x 70 | PVC Al | 285 |
| 30HX 310 ckt A & B | 1 x 95 | XLPE Cu | 180 | 1 x 240 | XLPE Al | 225 |
| 30HX 345 ckt A & B | 1 x 120 | XLPE Cu | 185 | 1 x 240 | XLPE Al | 225 |
| 30HX 375 ckt A & B | 1 x 150 | XLPE Cu | 190 | 2 x 150 | XLPE Al | 265 |
| 30GX 082 | 1 x 95 | XLPE Cu | 190 | 2 x 185 | PVC Al | 420 |
| 30GX 092 | 1 x 120 | XLPE Cu | 195 | 2 x 185 | PVC Al | 420 |
| 30GX 102 | 1 x 120 | XLPE Cu | 195 | 2 x 240 | PVC Al | 450 |
| 30GX 112 | 1 x 150 | XLPE Cu | 200 | 2 x 150 | XLPE Al | 300 |
| 30GX 122 | 1 x 185 | XLPE Cu | 205 | 2 x 185 | XLPE Al | 315 |
| 30GX 132 | 1 x 185 | XLPE Cu | 205 | 2 x 240 | XLPE Al | 330 |
| 30GX 152 | 1 x 240 | XLPE Cu | 205 | 3x 185 | XLPE CU | 430 |
| 30GX 162 | 2 x 95 | XLPE Cu | 190 | 3x 240 | XLPE CU | 440 |
| 30GX 182 | 2 x 120 | XLPE Cu | 200 | 3x 240 | XLPE CU | 440 |
| 30GX 207 ckt A | 1 x 185 | XLPE Cu | 205 | 3x 185 | XLPE Al | 445 |
| 30GX 227 ckt A | 1 x 240 | XLPE Cu | 205 | 3x 240 | XLPE Al | 470 |
| 30GX 247/298/328 ckt A | 2 x 120 | XLPE Cu | 225 | 3x 185 | XLPE CU | 490 |
| 30HX 267/358 ckt A | 2 x 150 | XLPE Cu | 230 | 3x 240 | XLPE CU | 505 |
| 30GX 207/227/247 ckt B | 1 x 95 | XLPE Cu | 190 | 2 x 240 | PVC Al | 560 |
| 30HX 267 ckt B | 1 x 120 | XLPE Cu | 200 | 2 x 185 | XLPE AL | 395 |
| 30GX 298 ckt B | 1 x 185 | XLPE Cu | 205 | 3x 240 | XLPE AL | 470 |
| 30GX 328 ckt B | 2 x 120 | XLPE Cu | 225 | 3x 185 | XLPE CU | 490 |
| 30GX 358 ckt B | 2 x 150 | XLPE Cu | 230 | 3x 240 | XLPE CU | 505 |
Enne peamiste toitekaablite (L1 - L2 - L3) ühendamist klemmplokiga on hädavajalik kontrollida 3 faasi õiget järjestust enne klemmplokiga või peamise lahtiühendus-/isolaatorlülitiga ühendamise jätkamist.
Välise juhtimise juhtmestiku kohta vaadake Controls IOM-i ja seadmega kaasas olevat sertifitseeritud juhtmestiku skeemi järgmiste funktsioonide jaoks:
Soovitatavad juhtme ristlõiked kõrge kondensatsioonitemperatuuriga seadmetele (400 V - 3 faasi - 50 Hz)
| Seade, valikud 150 + 150A 400 V - 3 faasi - 50 Hz | Min. (mm2) faasi kohta | Juhtme tüüp | L (m) | Max. (mm2) faasi kohta | Juhtme tüüp | L (m) |
| 30HXC 080 OPT. 150 | 1 x 50 | XLPE Cu | 150 | 2 x 70 | PVC Al | 230 |
| 30HXC 090 OPT. 150 | 1 x 70 | XLPE Cu | 160 | 2 x 95 | PVC Al | 260 |
| 30HXC 100 OPT. 150 | 1 x 70 | XLPE Cu | 160 | 2 x 95 | PVC Al | 250 |
| 30HXC 110 OPT. 150 | 1 x 95 | XLPE Cu | 170 | 2 x 120 | PVC Al | 265 |
| 30HXC 120 OPT. 150 | 1 x 120 | XLPE Cu | 180 | 2 x 120 | XLPE Al | 205 |
| 30HXC 130 OPT. 150 | 1 x 120 | XLPE Cu | 160 | 2 x 120 | XLPE Al | 210 |
| 30HXC 140 OPT. 150 | 1 x 150 | XLPE Cu | 175 | 2 x 120 | XLPE Al | 205 |
| 30HXC 155 OPT. 150 | 1 x 185 | XLPE Cu | 185 | 2 x 150 | XLPE Al | 215 |
| 30HXC 175 OPT. 150 | 1 x 240 | XLPE Cu | 185 | 2 x 150 | XLPE Al | 210 |
| 30HXC 190 OPT. 150 | 2 x 95 | XLPE Cu | 175 | 2 x 240 | XLPE Al | 220 |
| 30HXC 200 OPT. 150 circ. A | 1 x 120 | XLPE Cu | 170 | 2 x 150 | XLPE Al | 270 |
| 30HXC 230 OPT. 150 circ. A | 1 x 150 | XLPE Cu | 180 | 2 x 185 | XLPE Al | 270 |
| 30HXC 260 OPT. 150 circ. A | 1 x 185 | XLPE Cu | 180 | 2 x 240 | XLPE Al | 295 |
| 30HXC 285 OPT. 150 circ. A | 1 x 240 | XLPE Cu | 170 | 2 x 185 | XLPE Cu | 265 |
| 30HXC 310 OPT. 150 circ. A | 1 x 185 | XLPE Cu | 180 | 2 x 240 | XLPE Al | 300 |
| 30HXC 345 OPT. 150 circ. A | 1 x 185 | XLPE Cu | 170 | 2 x 240 | XLPE Al | 280 |
| 30HXC 375 OPT. 150 circ. A | 1 x 240 | XLPE Cu | 170 | 2 x 185 | XLPE Cu | 265 |
| 30HXC 200 OPT. 150 circ. B | 1 x 35 | XLPE Cu | 125 | 2 x 95 | PVC Al | 320 |
| 30HXC 230 OPT. 150 circ. B | 1 x 50 | XLPE Cu | 140 | 2 x 95 | PVC Al | 310 |
| 30HXC 260 OPT. 150 circ. B | 1 x 50 | XLPE Cu | 140 | 2 x 95 | PVC Al | 310 |
| 30HXC 285 OPT. 150 circ. B | 1 x 70 | XLPE Cu | 160 | 2 x 120 | PVC Al | 325 |
| 30HXC 310 OPT. 150 circ. B | 1 x 150 | XLPE Cu | 180 | 2 x 185 | XLPE Al | 275 |
| 30HXC 345 OPT. 150 circ. B | 1 x 185 | XLPE Cu | 185 | 2 x 240 | XLPE Al | 305 |
| 30HXC 375 OPT. 150 circ. B | 1 x 185 | XLPE Cu | 160 | 2 x 240 | XLPE Al | 280 |
Õlifilter
06N kruvikompressoril on õlifilter, mis on kompressori korpusesse integreeritud. Seda filtrit saab kohapeal vahetada.
Külmaaine
06N kruvikompressor on spetsiaalselt disainitud kasutamiseks ainult R134 a süsteemis.
Määrdeaine
06N kruvikompressor on heaks kiidetud kasutamiseks järgmise määrdeainega.
CARRIER MATERIAL SPEC PP 47-32
Õlitoite solenoidklapp
Õlitoite solenoidklapp on kompressoril standardvarustuses, et isoleerida kompressor õlivoolust, kui kompressor ei tööta.
Õli solenoidi saab kohapeal vahetada.
Imemis- ja ökonaiserivõrgud
Kompressori töökindluse suurendamiseks on kompressori imemis- ja ökonaiseri sisselaskeavadesse standardvarustusena paigaldatud võrk.
Mahalaadimissüsteem
06N kruvikompressoril on mahalaadimissüsteem, mis on kõigil kompressoritel standardvarustuses. See mahalaadimissüsteem koosneb kahest mahalaadimisetapist, mis vähendavad kompressori võimsust, suunates osaliselt kokkusurutud gaasi tagasi imemisse.
30HXC ja 30GX jahutid kasutavad üleujutatud aurustit. Vesi ringleb torudes ja külmaaine on väljaspool kestas. Mõlema külmaaineahela teenindamiseks kasutatakse ühte anumat. Seal on keskmine toruleht, mis eraldab kaks külmaaineahelat. Torud on 3/4" läbimõõduga vasktorud, millel on täiustatud pind seest ja väljast. On ainult üks veeringlus ja sõltuvalt jahuti suurusest võib olla kaks või kolm vee läbipääsu. Jahedam vedeliku taseme andur tagab optimeeritud vooluhulga juhtimise.
Jahuti ülaosas on kaks imitoru, üks igas ahelas. Igal neist on külge keevitatud äärik ja kompressor kinnitub ääriku külge.
30HXC jahuti kasutab anumat, mis on kombineeritud kondensaator ja õlieraldaja. See on paigaldatud jahuti alla. Väljuv gaas väljub kompressorist ja voolab läbi välise summuti õlieraldajasse, mis on anuma ülemine osa. See siseneb eraldaja ülaossa, kus õli eemaldatakse, ja seejärel voolab anuma alumisse ossa, kus gaas kondenseeritakse ja jahutatakse. Mõlema külmaaineahela teenindamiseks kasutatakse ühte anumat. Seal on keskmine toruleht, mis eraldab kaks külmaaineahelat. Torud on 3/4" või 1" läbimõõduga vasktorud, millel on täiustatud pind seest ja väljast. On ainult üks veeringlus kahe vee läbipääsuga.
Õhkjahutusega seadmetes on õlieraldaja surveanum, mis on paigaldatud väljaspool asuvate vertikaalsete kondensaatoripoolide alla. Väljuv gaas siseneb eraldaja ülaossa, kus suur osa õlist eraldub ja voolab põhja. Seejärel voolab gaas läbi traatvõrgust ekraani, kus ülejäänud õli eraldatakse ja voolab põhja.
Mikroprotsessor juhib EXD-d EXV juhtimismooduli kaudu. EXD on kas EXV või ökonaiser. Mõlema seadme sees on lineaarne ajami samm-mootor. Kõrgsurve vedel külmaaine siseneb klappi läbi põhja. Ava koostu sees on rida kalibreeritud pilusid. Kui külmaaine läbib ava, rõhk langeb ja külmaaine muutub kahefaasiliseks olekuks (vedelik ja aur). Külmaaine voolu juhtimiseks erinevates töötingimustes liigub hülss üles ja alla üle ava, muutes seeläbi paisumisseadme efektiivset voolupinda. Hülssi liigutab lineaarne samm-mootor. Samm-mootor liigub sammhaaval ja seda juhib otse protsessori moodul. Kui samm-mootor pöörleb, kantakse liikumine juhtkruvi abil lineaarseks liikumiseks. Samm-mootori ja juhtkruvide kaudu saadakse 1500 diskreetset liikumisetappi. Suur arv samme ja pikk käik tagavad külmaaine voolu väga täpse juhtimise. Igal ahelal on vedeliku taseme andur, mis on vertikaalselt paigaldatud jahuti kesta ülaossa. Tasemeandur koosneb väikesest elektritakistuse küttekehast ja kolmest järjestikku ühendatud termistorist, mis on paigutatud erinevatele kõrgustele kaevu korpuses. Küttekeha on projekteeritud nii, et termistorid näitaksid kuivas õhus ligikaudu 93,3 °C. Kui külmaaine tase jahutis tõuseb, muutub lähima termistori(de) takistus oluliselt. See suur takistuse erinevus võimaldab juhtimisel täpselt säilitada määratud taset. Tasemeandur jälgib külmaaine vedeliku taset jahutis ja saadab selle teabe PSIO-1-le. Esialgsel käivitamisel on EXV asend nullis. Pärast seda jälgib mikroprotsessor täpselt klapi asendit, et kasutada seda teavet sisendina teiste juhtimisfunktsioonide jaoks. Ta teeb seda, lähtestades EXV-d käivitamisel. Protsessor saadab klapile piisavalt sulgemisimpulsse, et liigutada see täielikult avatud asendist täielikult suletud asendisse, seejärel lähtestab asendiloenduri nulli. Sellest hetkest alates, kuni lähtestamiseni, loendab protsessor iga klapi saadetud avatud ja suletud sammude koguarvu.
Ökonaiserid on paigaldatud 30HXC 190, 285 ja 375 ning 30GX 182, 267 ja 358 seadmetele.
Ökonaiser parandab nii jahuti võimsust kui ka efektiivsust, pakkudes samal ajal kompressori mootori jahutust. Ökonaiseri sees on nii lineaarne EXV samm-mootor kui ka ujukklapp. PIC juhib EXV-d, et säilitada jahutis soovitud vedeliku tase (nagu tehakse mitteökonomeeritud jahutite puhul). Ujukklapp säilitab vedeliku taseme ökonaiseri põhjas. Vedel külmaaine tarnitakse kondensaatorist ökonaiseri põhja. Kui külmaaine läbib EXV-d, vähendatakse selle rõhku vaherõhuni umbes 500 kPa. Seda rõhku hoitakse ökonaiseri kestas. Järgmisena voolab külmaaine läbi ujukklapi, selle rõhku vähendatakse veelgi veidi üle jahuti rõhu. Jõudluse suurenemine realiseerub siis, kui osa EXV-d läbivast külmaainest aurustub, jahutades veelgi vedelikku, mida hoitakse ökonaiseri põhjas. See jahutuse suurenemine tagab täiendava võimsuse. Kuna selle saavutamiseks ei ole vaja täiendavat energiat, paraneb ka masina efektiivsus. Aur, mis aurustub, tõuseb ökonaiserisse, kus see läheb kompressorisse ja seda kasutatakse vastavalt vajadusele mootori jahutamiseks. Pärast mootori mähiste läbimist siseneb külmaaine uuesti tsüklisse kompressioonitsükli vahepealses pordis.
30GX/HXC kruvijahutid kasutavad ühe väliselt paigaldatud eelmäärdeõlipumba ahela kohta. Seda pumpa kasutatakse käivitusjärjestuse osana.
TÄHELEPANU:
Spiraali töötemperatuur võib ulatuda 80 °C-ni. Teatud ajutistel tingimustel (eriti käivitamisel madalal välistemperatuuril või madalal kondensaatori kontuuri temperatuuril) saab õlipumba uuesti aktiveerida.
30GX seadmetel on pumbad paigaldatud alusraamidele seadme õlieraldaja küljel. 30HXC seadmete pumbad on paigaldatud kronsteinile kondensaatoritel. Kui ahel peab käivituma, lülitavad juhtseadmed esmalt sisse õlipumba, et kompressor käivituks õige määrimisega. Kui pump on tekitanud piisava õlirõhu, lubatakse kompressoril käivituda. Kui kompressor on käivitunud, lülitatakse õlipump välja. Kui pump ei suutnud piisavalt õlirõhku tekitada, genereerib juhtseade häire.
Kompressori mootori mähiste temperatuure juhitakse optimaalse seadepunktini. Juhtseade saavutab selle, tsükliliselt lülitades mootori jahutuse solenoidklappi, et võimaldada vedelal külmaainel vastavalt vajadusele üle mootori mähiste voolata. Ökonaiseritega varustatud seadmetel väljub aurustusgaas ökonaiseri ülaosast ja voolab pidevalt mootori mähistele. Kogu mootori jahutamiseks kasutatav külmaaine siseneb rootoritesse uuesti läbi pordi, mis asub kompressioonitsükli keskel, ja surutakse kokku väljalaskerõhuni.
Seadmed kasutavad termistore (sealhulgas kahte mootori temperatuuri termistore) ja kahte taseme termistore ning rõhuandureid, et jälgida ja juhtida süsteemi tööd.
Aurusti väljuva vedeliku temperatuur
Seda temperatuuri kasutatakse aurusti väljuva vedeliku (vee või soolvee) temperatuuri mõõtmiseks. Temperatuuri kasutatakse väljuva vedeliku temperatuuri juhtimiseks ja jahuti külmumise eest kaitsmiseks. See asub aurusti vedeliku düüsis.
Aurusti siseneva vedeliku temperatuur
Seda andurit kasutatakse aurusti siseneva vedeliku temperatuuri mõõtmiseks. See asub siseneva aurusti düüsis. Seda kasutatakse automaatse temperatuuri kompenseerimise tagamiseks väljuva vedeliku temperatuuri juhtimisel siseneva vedeliku kompenseerimisega.
Väljuva gaasi temperatuur (ahelad A ja B)
Seda andurit kasutatakse väljuva gaasi temperatuuri mõõtmiseks ja väljalasketemperatuuri ülekuumenemise juhtimiseks. See asub iga ahela väljalasketorul (30HXC) või õlieraldaja ülaosas (30GX).
TÄHELEPANU: Termostaadi hülssi ei ole.
Mootori temperatuur
Kompressori kaitsemoodul (CPM) jälgib mootori temperatuuri. Termistori klemmid asuvad kompressori ühenduskarbis.
Aurusti vedeliku tase (ahelad A ja B)
Aurusti vedeliku taseme termistori kasutatakse optimeeritud vooluhulga juhtimise tagamiseks aurustis. See on paigaldatud aurusti ülaossa.
Kondensaatori siseneva vedeliku temperatuur (30HXC)
Seda andurit kasutatakse veega jahutatud kondensaatoritesse siseneva vedeliku temperatuuri mõõtmiseks. See asub ühises vedelikutorus, mis siseneb kondensaatoritesse (paigaldatakse kohapeal). Soojusmasinatel kasutatakse seda võimsuse juhtimise rutiinis. Veega jahutatud kondensaatoritel kasutatakse seda ainult kondensaatori vedeliku temperatuuri jälgimiseks.
Kondensaatori väljuva vedeliku temperatuur (valikuline 30HXC-l)
Seda andurit kasutatakse veega jahutatud kondensaatoritest väljuva vedeliku temperatuuri mõõtmiseks. See asub ühises vedelikutorus, mis väljub kondensaatoritest (paigaldatakse kohapeal). Soojusmasinatel kasutatakse seda võimsuse juhtimise rutiinis. Veega jahutatud kondensaatoritel kasutatakse seda ainult kondensaatori vedeliku temperatuuri jälgimiseks.

GX082/102

GX112/132

GX152/162

GX182

GX207/227

GX247/267

GX298

GX328/358
Need seadmed on mõeldud kasutamiseks ainult R-134a-ga.
ÄRGE KASUTAGE NEIS SEADMETES MUID KÜLMAAINEID.
Laadimisel või eemaldamisel laske pidevalt vett läbi kondensaatori (HX) ja jahuti, et vältida külmumist. Külmumiskahjustusi loetakse väärkasutuseks ja need võivad tühistada Carrieri garantii.
ÄRGE SÜSTEEMI ÜLE LAADIGE. Ülelaadimine põhjustab kõrgemat väljalaskerõhku, suuremat jahutusvedeliku tarbimist, võimalikke kompressori kahjustusi ja suuremat energiatarbimist.
MÄRKUS
30HXC madala külmaaine laengu kontrollimiseks tuleb arvesse võtta mitmeid tegureid. Vilkuv vedelikuliini vaateklaas ei pruugi alati olla ebapiisava laengu näitaja. On palju süsteemi tingimusi, kus vilkuv vaateklaas esineb normaalse töö korral. 30HXC mõõteseade on loodud nendes tingimustes korralikult töötama.
MÄRKUS
Vilkuv vedelikuliini vaateklaas muudel kui eespool nimetatud töötingimustel ei pruugi alati olla madala külmaaine laengu näitaja.
Neid temperatuure kasutatakse ruumi temperatuuri või välisõhu temperatuuri mõõtmiseks vastavalt välisõhu või ruumi temperatuuri lähtestamise valikutele.
Väljalaskerõhk (vooluringid A ja B)
Seda sisendit kasutatakse seadme iga vooluringi kõrgsurve poole rõhu mõõtmiseks.
Seda kasutatakse rõhu tagamiseks, et asendada väljalaskerõhu manomeetrit ja juhtida pea rõhku.
Imemisrõhk (vooluringid A ja B)
Seda sisendit kasutatakse seadme madalsurve poole rõhu mõõtmiseks. Seda kasutatakse rõhu tagamiseks, et asendada imemisrõhu manomeetrit.
Õlirõhk (iga kompressor)
Seda sisendit kasutatakse seadme iga kompressori õlirõhu mõõtmiseks. See asub iga kompressori õlirõhu pordis.
Ökonomaatori rõhk (vooluringid A ja B)
Seda sisendit kasutatakse kompressorile tarnitava õlirõhu erinevuse jälgimiseks.
ÄRGE lisage õli üheski muus kohas, kuna see võib põhjustada seadme ebaõige töö.
Külmaaine laengu ülekandmisel hoiuseadmesse võib õli kaasa kanduda, kui seade ei tööta. Kasutage kõigepealt ära kogu ülekantud külmaaine kogus. Pärast õli tühjendamist laadige uuesti ainult tühjendatud kogus (liigne õlilaeng võib kahjustada seadme korrektset tööd).
06N kruvikompressoris on ette nähtud integreeritud õlifilter, mis tagab kõrge filtreerimistaseme (3 µ), mis on vajalik pikaajalise laagri eluea tagamiseks. Kuna süsteemi puhtus on usaldusväärse süsteemi töö jaoks kriitilise tähtsusega, on õliliinis õlieraldaja väljalaskeava juures ka eelfilter (7 µ).
Asendusintegreeritud õlifiltri elemendi osanumber on:
Carrieri osanumber (kaasa arvatud filter ja O-rõngas): 06NA 660016S
Filtrit tuleks kontrollida pärast esimesi 500 töötundi ja seejärel iga 2000 tunni järel. Filtrit tuleks vahetada igal ajal, kui rõhu erinevus filtri kohal ületab 2,1 baari.
Rõhulangust filtri kohal saab määrata, mõõtes rõhku filtri teeninduspordis ja õlirõhu pordis. Nende kahe rõhu erinevus on rõhulangus filtri, tagasilöögiklapi ja solenoidklapi kohal. Rõhulangus tagasilöögiklapi ja solenoidklapi kohal on ligikaudu 0,4 baari, mis tuleks õlifiltri rõhulanguse saamiseks kahest õlirõhu mõõtmisest lahutada. Õlifiltri rõhulangust tuleks kontrollida pärast iga korda, kui kompressor lülitatakse madala õlirõhu tõttu välja.
Kompressori õige pöörlemissuund on üks olulisemaid rakenduse kaalutlusi. Vastupidine pöörlemine, isegi väga lühikese aja jooksul, kahjustab kompressorit.
Vastupidise pöörlemise kaitse skeem peab suutma määrata pöörlemissuuna ja peatada kompressori 300 millisekundi jooksul. Vastupidine pöörlemine on kõige tõenäolisem siis, kui kompressori klemmide juhtmestik on häiritud.
Vastupidise pöörlemise võimaluse minimeerimiseks tuleb rakendada järgmist protseduuri. Ühendage toitekaablid kompressori klemmide külge nii, nagu need algselt ühendatud olid.
Kompressori vahetamiseks on kompressoriga kaasas madalrõhulüliti. See madalrõhulüliti tuleks ajutiselt paigaldada kompressori kõrgsurve poolele kui kõva turvalüliti. Selle lüliti eesmärk on kaitsta kompressorit kompressori klemmide juures esinevate juhtmestiku vigade eest. Lüliti elektriline kontakt ühendatakse järjestikku kõrgsurvelülitiga. Lüliti jääb paigale, kuni kompressor on käivitatud ja pöörlemissuund on kontrollitud; sel hetkel eemaldatakse lüliti.
Vastupidise pöörlemise tuvastamiseks valitud lüliti on Carrieri osanumber HK01CB001. See on saadaval "Kompressori paigalduspaketi" (osanumber 06NA 660 013) osana. See lüliti avab kontaktid, kui rõhk langeb alla 50 mm vaakumi. Lüliti on käsitsi lähtestatav tüüp, mida saab lähtestada pärast seda, kui rõhk on taas tõusnud üle 70 kPa. On kriitilise tähtsusega, et lüliti oleks käsitsi lähtestatav tüüp, et vältida kompressori lühikest tsüklit vastupidises suunas.
EXD/ökonomaatori probleemide diagnoosimiseks ja parandamiseks järgige alltoodud samme.
Ökonomaatoritega 30HXC/GX seadmetel veenduge, et mullitustoru (ökonomaatori põhjas) ventiil on avatud. Kontrollige esmalt EXD mootori tööd (vt protseduuri Controls IOM-is). Te peaksite suutma tunda ajami liikumist, asetades käe EXD-le või ökonomaatori korpusele (ajam asub umbes poole kuni kahe kolmandiku kaugusel ökonomaatori korpuse põhjast). Te peaksite tundma tugevat koputust ajamilt, kui see jõuab oma käigu tippu (võib kuulda, kui ümbrus on suhteliselt vaikne). Ajam peaks koputama, kui see jõuab oma käigu põhja. Kui arvatakse, et ventiil ei tööta korralikult, võtke täiendavate kontrollide jaoks ühendust oma Carrieri teenindusosakonnaga:


Keskkonnajuhtimissüsteemi kinnitus
Tellimuse nr: 13173-76, 03 1999 - Asendab nr: 13173-76, märts 1998
Tootja jätab endale õiguse muuta toote spetsifikatsioone ilma ette teatamata.
Tootja: Carrier s.a., Montluel, Prantsusmaa.
Trükitud Hollandis kloorivabal paberil.
