Carrier 30HXC/30GX csavarkompresszor kézikönyv
- 1 BEVEZETÉS
- 2 BIZTONSÁGI SZEMPONTOK
- 3 MÉRETEK, SZABAD TEREK, SÚLYELOSZTÁS
- 4 FIZIKAI ADATOK 30HXC
- 5 ELEKTROMOS ADATOK 30HXC
- 6 ELEKTROMOS ADATOK MAGAS KONDENZÁCIÓS HŐMÉRSÉKLETŰ EGYSÉGEKHEZ
- 7 FIZIKAI ADATOK 30GX
- 8 ELEKTROMOS ADATOK 30GX
-
9
ALKALMAZÁSI ADATOK
- 9.1 Egység működési tartománya
- 9.2 Minimális hűtött víz áramlás
- 9.3 Maximális hűtött víz áramlás
- 9.4 Változó áramlású evaporátor
- 9.5 Rendszer minimális vízmennyisége
- 9.6 Hűtőfolyadék áramlási sebessége (l/s)
- 9.7 Kondenzátor áramlási sebessége (l/s)
- 9.8 Párologtató nyomásesés görbéje
- 9.9 Kondenzátor nyomásesés görbéje
- 9.10 Áramlásvezérlők
- 10 TELEPÍTÉS
- 11 EMELÉSI UTASÍTÁSOK
- 12 ELEKTROMOS JELLEMZŐK
- 13 AJÁNLOTT VEZETÉK-KERESZTMETSZETEK
- 14 FŐBB RENDSZERKOMPONENSEK ÉS MŰKÖDÉSI ADATOK
- 15 KARBANTARTÁS
- 16 Hibaelhárítás
- 17 Kézikönyv letöltése
- 18 Más nyelveken

BEVEZETÉS
A 30HXC és 30GX egység első indítása előtt az indításban, üzemeltetésben és karbantartásban résztvevőknek alaposan ismerniük kell ezeket az utasításokat és egyéb szükséges munkadokumentumokat. Ez a könyv áttekintést nyújt, hogy megismerkedhessen a vezérlőrendszerrel az indítási eljárások végrehajtása előtt. Az ebben a kézikönyvben található eljárások a gép megfelelő indításához és üzemeltetéséhez szükséges sorrendben vannak elrendezve.
BIZTONSÁGI SZEMPONTOK
A 30HXC és 30GX folyadékhűtők biztonságos és megbízható szolgáltatást nyújtanak, ha a tervezési specifikációkon belül üzemeltetik őket. A berendezés üzemeltetésekor alkalmazzon józan ítélőképességet és biztonsági óvintézkedéseket, hogy elkerülje a berendezés és a vagyon károsodását, vagy a személyi sérüléseket.
Győződjön meg arról, hogy megérti és betartja a gép használati utasításában, valamint az ebben az útmutatóban felsorolt eljárásokat és biztonsági óvintézkedéseket.
NE SZELLŐZTESSE a hűtőközeg nyomáscsökkentő szelepeit egy épületen belül. A nyomáscsökkentő szelep kimenetét a szabadba kell vezetni. A hűtőközeg felhalmozódása egy zárt térben kiszoríthatja az oxigént, és fulladást vagy robbanást okozhat.
BIZTOSÍTSON megfelelő szellőzést, különösen zárt és alacsony belmagasságú helyeken. A magas koncentrációjú gőz belélegzése káros, és szívritmuszavart, eszméletvesztést vagy halált okozhat. A gőz nehezebb, mint a levegő, és csökkenti a légzéshez rendelkezésre álló oxigén mennyiségét. A termék szem- és bőrirritációt okoz. A bomlástermékek veszélyesek.
NE HASZNÁLJON OXIGÉNT a vezetékek átöblítéséhez vagy a gép bármilyen célú nyomás alá helyezéséhez. Az oxigéngáz hevesen reagál az olajjal, zsírral és más gyakori anyagokkal.
SOHA NE LÉPJE TÚL a megadott vizsgálati nyomásokat, ELLENŐRIZZE a megengedett vizsgálati nyomást az útmutatóban és a berendezés adattábláján található tervezési nyomásokon.
NE HASZNÁLJON levegőt szivárgásvizsgálathoz. Csak hűtőközeget vagy száraz nitrogént használjon.
NE ZÁRJA EL semmilyen biztonsági eszközt.
BIZONYOSODJON MEG arról, hogy minden nyomáscsökkentő eszköz megfelelően van felszerelve, mielőtt bármilyen gépet üzemeltetne.
NE HEGESZTSE VAGY VÁGJA LÁNGGAL a hűtőközeg vezetékét vagy tartályát, amíg az összes hűtőközeget (folyadékot és gőzt) el nem távolította a hűtőből. A gőz nyomait száraz levegővel vagy nitrogénnel kell kiszorítani, és a munkaterületet jól szellőztetni kell. A nyílt lánggal érintkező hűtőközeg mérgező gázokat termel.
NE dolgozzon feszültség alatt álló berendezéseken, hacsak nem képzett villanyszerelő.
NE DOLGOZZON elektromos alkatrészeken, beleértve a vezérlőpaneleket, kapcsolókat, reléket stb., amíg meg nem győződött arról, hogy MINDEN ÁRAMELLÁTÁS KI VAN KAPCSOLVA, és a maradék feszültség nem szivároghat ki a kondenzátorokból vagy a szilárdtest alkatrészekből.
ZÁRJA NYITVA ÉS CÍMKÉZZE FEL az elektromos áramköröket a szervizelés során. HA A MUNKA MEGSZAKAD, ellenőrizze, hogy minden áramkör feszültségmentes-e a munka folytatása előtt.
NE szívja le a hűtőközeget.
KERÜLJE EL, hogy folyékony hűtőközeget öntsön a bőrre vagy a szembe. HASZNÁLJON VÉDŐSZEMÜVEGET. A bőrre került folyadékot szappannal és vízzel mossa le. Ha folyékony hűtőközeg kerül a szembe,
AZONNAL MOSSA KI A SZEMÉT vízzel, és forduljon orvoshoz.
SOHA NE ALKALMAZZON nyílt lángot vagy élő gőzt a hűtőközeg tartályára. Veszélyes túlnyomás alakulhat ki. Ha a hűtőközeget fel kell melegíteni, csak meleg vizet használjon.
NE HASZNÁLJA ÚJRA az eldobható (nem visszaváltható) palackokat, és ne kísérelje meg újratölteni azokat. EZ VESZÉLYES ÉS TÖRVÉNYTELEN. Amikor a palackok kiürültek, engedje ki a maradék gáznyomást, lazítsa meg a gallért, csavarja ki és dobja ki a szelepszárat. NE ÉGESSE EL.
ELLENŐRIZZE A HŰTŐKÖZEG TÍPUSÁT, mielőtt hűtőközeget adna a géphez. A helytelen hűtőközeg bevezetése károsíthatja vagy meghibásodást okozhat ebben a gépben.
NE KÍSÉRELJE MEG eltávolítani a szerelvényeket, alkatrészeket stb., amíg a gép nyomás alatt van vagy amíg a gép működik. Győződjön meg arról, hogy a nyomás 0 kPa-on van, mielőtt megbontja a hűtőközeg csatlakozását.
GONDOSAN VIZSGÁLJA MEG az összes nyomáscsökkentő eszközt, LEGALÁBB ÉVENTE EGYSZER. Ha a gép korrozív környezetben működik, gyakrabban ellenőrizze az eszközöket.
NE KÍSÉRELJE MEG MEGJAVÍTANI VAGY FELÚJÍTANI a nyomáscsökkentő eszközt, ha korróziót vagy idegen anyag (rozsda, szennyeződés, vízkő stb.) felhalmozódását találja a szelep testében vagy mechanizmusában. Cserélje ki az eszközt.
NE szereljen be nyomáscsökkentő eszközöket sorba vagy fordítva.
NE LÉPJEN a hűtőközeg vezetékekre. A törött vezetékek meglazulhatnak és hűtőközeget engedhetnek ki, ami személyi sérülést okozhat.
NE MÁSSZON át a gépen. Használjon platformot vagy állványt.
HASZNÁLJON MECHANIKAI BERENDEZÉSEKET (darut, emelőt stb.) a nehéz alkatrészek emeléséhez vagy mozgatásához. Még ha az alkatrészek könnyűek is, használjon mechanikai berendezéseket, ha fennáll a megcsúszás vagy az egyensúly elvesztésének veszélye.
LEGYEN TUDATÁBAN annak, hogy bizonyos automatikus indítási elrendezések BEKAPCSOLHATJÁK A HŰTŐTORONY VENTILÁTORÁT VAGY A SZIVATTYÚKAT. Nyissa ki a leválasztót a hűtőtorony ventilátorai vagy a szivattyúk előtt.
CSAK olyan javítási vagy cserealkatrészeket HASZNÁLJON, amelyek megfelelnek az eredeti berendezés kódkövetelményeinek.
NE SZELLŐZTESSE VAGY ERESZD LE az ipari sóoldatokat tartalmazó vízkamrákat, illetékes szerv engedélye nélkül.
NE LAZÍTSA MEG a vízkamra csavarjait, amíg a vízkamra teljesen le nem ürült.
NE LAZÍTSA MEG a tömszelence anyáját, mielőtt ellenőrizné, hogy az anya pozitív menetes kapcsolattal rendelkezik-e.
RENDSZERESEN ELLENŐRIZZE az összes szelepet, szerelvényt és csővezetéket korrózió, rozsda, szivárgás vagy sérülés szempontjából.
BIZTOSÍTSON LEFOLYÓ csatlakozást a szellőzővezetékben minden nyomáscsökkentő eszköz közelében, hogy megakadályozza a kondenzvíz vagy esővíz felhalmozódását.
MÉRETEK, SZABAD TEREK, SÚLYELOSZTÁS
30HXC 080-190
30HXC080
30HXC090
30HXC100
30HXC110

- Párologtató
- Kondenzátor
- Az üzemeltetéshez és karbantartáshoz szükséges szabad terek
- A hőcserélő csövek eltávolításához szükséges szabad terek. A D és E szabad terek lehetnek a bal vagy a jobb oldalon.
Víz bemenet
Víz kimenet
Áramellátás
kg: teljes üzemi súly
| A mm | B mm | C mm | D mm | E mm | kg | |
| 30HXC080 30HXC090 30HXC100 |
2705 | 950 | 1850 | 2360 | 1000 | 2447 2462 2504 |
| 30HXC110 | 2705 | 950 | 1900 | 2360 | 1000 | 2650 |
| 30HXC120 30HXC130 30HXC140 30HXC155 |
3535 | 950 | 1875 | 3220 | 1000 | 2846 2861 2956 2971 |
| 30HXC175 30HXC190 |
3550 | 950 | 2000 | 3220 | 1000 | 3283 3438 |
MEGJEGYZÉS: A telepítés megtervezésekor olvassa el az egységhez mellékelt hitelesített méretrajzokat.
30HXC 200-375

- Párologtató
- Kondenzátor
- Az üzemeltetéshez és karbantartáshoz szükséges szabad terek
- A hőcserélő csövek eltávolításához szükséges szabad terek. A D és E szabad terek lehetnek a bal vagy a jobb oldalon.
Víz bemenet
Víz kimenet
Áramellátás
kg: teljes üzemi súly
| A mm | B mm | C mm | D mm | E mm | kg | |
| 30HXC200 | 3975 | 980 | 2035 | 3620 | 1000 | 4090 |
| 30HXC230 30HXC260 30HXC285 |
3995 | 980 | 2116 | 3620 | 1000 | 4705 4815 4985 |
| 30HXC310 30HXC345 30HXC375 |
4490 | 980 | 2163 | 4120 | 1000 | 5760 5870 6105 |
MEGJEGYZÉS: A telepítés megtervezésekor olvassa el az egységhez mellékelt hitelesített méretrajzokat.
30GX 082-182
30GX-082
30GX-092
30GX-102
30GX-112
30GX-122
30GX-132
30GX-152
30GX-162
30GX-182


- Az üzemeltetéshez és karbantartáshoz szükséges szabad terek
- A hőcserélő csövek eltávolításához szükséges szabad terek. A szabad terek lehetnek a bal vagy a jobb oldalon.
Víz bemenet
Víz kimenet
Áramellátás
Levegő kimenet - ne akadályozza
kg: teljes üzemi súly
| A mm | B mm | kg | |
| 30GX082 30GX092 30GX102 |
2970 | 2215 | 3116 3157 3172 |
| 30GX112 30GX122 30GX132 |
3427 | 2045 | 3515 3531 3633 |
| 30GX152 30GX162 |
4342 | 2835 | 3920 3936 |
| 30GX182 | 5996 | 1820 | 4853 |
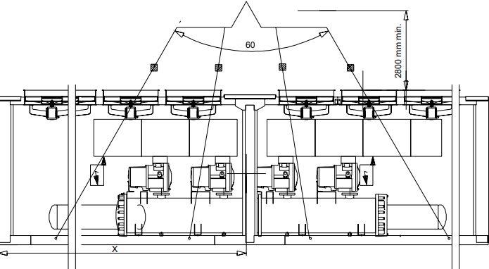
Több hűtőberendezés telepítése


Megjegyzések:
- Az egységnek a következő légáramlási hézagokkal kell rendelkeznie:
Felül: semmilyen módon ne korlátozza - Több hűtőberendezés (legfeljebb négy egység) esetén a köztük lévő hézagot 1830-ról 2000 mm-re kell növelni az oldalsó helyigényhez.
- A hűtőcső eltávolításához hézagok szükségesek.
MEGJEGYZÉS: A telepítés megtervezésekor olvassa el az egységhez mellékelt hitelesített méretrajzokat.
30GX 207-358
30GX-207
30GX-227
30GX-247
30GX-267
30GX-298
30GX-328
30GX-358

- Az üzemeltetéshez és karbantartáshoz szükséges szabad terek
- A hőcserélő csövek eltávolításához szükséges szabad terek. A szabad terek lehetnek a bal vagy a jobb oldalon.
Víz bemenet
Víz kimenet
Áramellátás
Levegő kimenet - ne akadályozza
kg: teljes üzemi súly
| A mm | B mm | kg | |
| 30GX207 30GX227 |
5996 | 2895 | 5540 5570 |
| 30GX247 30GX267 |
6911 | 2470 | 6134 6365 |
| 30GX298 | 7826 | 2220 | 7354 |
| 30GX328 30GX358 |
8741 | 1250 | 7918 8124 |
Több hűtőberendezés telepítése


Megjegyzések:
- Az egységnek a következő légáramlási hézagokkal kell rendelkeznie:
Felül: semmilyen módon ne korlátozza - Több hűtőberendezés (legfeljebb négy egység) esetén a köztük lévő hézagot 1830-ról 2000 mm-re kell növelni az oldalsó helyigényhez.
- A hűtőcső eltávolításához hézagok szükségesek.
MEGJEGYZÉS: A telepítés megtervezésekor olvassa el az egységhez mellékelt hitelesített méretrajzokat.
FIZIKAI ADATOK 30HXC
| 30HXC | 080 | 090 | 100 | 110 | 120 | 130 | 140 | 155 | 175 | 190 | 200 | 230 | 260 | 285 | 310 | 345 | 375 | |
| Nettó hűtőteljesítmény | kW | 292 | 321 | 352 | 389 | 426 | 464 | 514 | 550 | 607 | 663 | 716 | 822 | 918 | 996 | 1119 | 1222 | 1326 |
| Üzemi tömeg | kg | 2447 | 2462 | 2504 | 2650 | 2846 | 2861 | 2956 | 2971 | 3283 | 3438 | 4090 | 4705 | 4815 | 4985 | 5760 | 5870 | 6105 |
| Hűtőközeg A/B kör |
HFC-134a | |||||||||||||||||
| kg | 39/36 | 39/36 | 37/32 | 38/38 | 57/55 | 59/50 | 56/50 | 59/52 | 58/61 | 60/70 | 110/58 | 118/63 | 120/75 | 120/75 | 108/110 | 110/110 | 110/120 | |
| Olaj A/B kör |
Poliolészter olaj CARRIER SPEC: PP 47-32 | |||||||||||||||||
| l | 15/15 | 15/15 | 15/15 | 15/15 | 15/15 | 15/15 | 15/15 | 15/15 | 15/15 | 15/15 | 30/15 | 30/15 | 30/15 | 30/15 | 30/30 | 30/30 | 30/30 | |
| Kompresszorok | Hermetikus ikercsavaros Power3 | |||||||||||||||||
| A kör, névleges méret kompresszoronként** | 39 | 46 | 46 | 56 | 56 | 66 | 80 | 80 | 80 | 80+ | 66/56 | 80/56 | 80/80 | 80+/80+ | 80/66 | 80/80 | 80+/80+ | |
| B kör, névleges méret kompresszoronként** | 39 | 39 | 46 | 46 | 56 | 56 | 56 | 66 | 80 | 80+ | 66 | 80 | 80 | 80+ | 80/66 | 80/80 | 80+/80+ | |
| Vezérlés típusa | PRO-DIALOG Plus vezérlés | |||||||||||||||||
| A kapacitásfokozatok száma | 6 | 6 | 6 | 6 | 6 | 6 | 6 | 6 | 6 | 6 | 8 | 8 | 8 | 8 | 10 | 10 | 10 | |
| Minimális kapacitás | % | 19 | 19 | 21 | 19 | 21 | 19 | 17 | 19 | 21 | 21 | 14 | 14 | 14 | 14 | 10 | 10 | 10 |
| Párologtató | Héj és cső típusú, belsőleg bordázott rézcsövekkel | |||||||||||||||||
| Nettó vízmennyiség | l | 65 | 65 | 73 | 87 | 81 | 81 | 91 | 91 | 109 | 109 | 140 | 165 | 181 | 181 | 203 | 229 | 229 |
| Vízcsatlakozások | Gyárilag szállított lapos karima, amelyet a helyszínen kell hegeszteni | |||||||||||||||||
| Bemenet és kimenet | in. | 4 | 4 | 4 | 5 | 5 | 5 | 5 | 5 | 5 | 5 | 6 | 6 | 6 | 6 | 8 | 8 | 8 |
| Lefolyó és szellőző (NPT) | in. | 3/8 | 3/8 | 3/8 | 3/8 | 3/8 | 3/8 | 3/8 | 3/8 | 3/8 | 3/8 | 3/8 | 3/8 | 3/8 | 3/8 | 3/8 | 3/8 | 3/8 |
| Max. vízköri üzemi nyomás | kPa | 1000 | 1000 | 1000 | 1000 | 1000 | 1000 | 1000 | 1000 | 1000 | 1000 | 1000 | 1000 | 1000 | 1000 | 1000 | 1000 | 1000 |
| Kondenzátorok | Héj és cső típusú, belsőleg bordázott rézcsövekkel | |||||||||||||||||
| Nettó vízmennyiség | l | 58 | 58 | 58 | 58 | 92 | 92 | 110 | 110 | 132 | 132 | 162 | 208 | 208 | 208 | 251 | 251 | 251 |
| Vízcsatlakozások | Gyárilag szállított lapos karima, amelyet a helyszínen kell hegeszteni | |||||||||||||||||
| Bemenet és kimenet | in. | 5 | 5 | 5 | 5 | 5 | 5 | 5 | 5 | 6 | 6 | 6 | 6 | 6 | 6 | 8 | 8 | 8 |
| Lefolyó és szellőző (NPT) | in. | 3/8 | 3/8 | 3/8 | 3/8 | 3/8 | 3/8 | 3/8 | 3/8 | 3/8 | 3/8 | 3/8 | 3/8 | 3/8 | 3/8 | 3/8 | 3/8 | 3/8 |
| Max. vízköri üzemi nyomás | kPa | 1000 | 1000 | 1000 | 1000 | 1000 | 1000 | 1000 | 1000 | 1000 | 1000 | 1000 | 1000 | 1000 | 1000 | 1000 | 1000 | 1000 |
* Szabványosított Eurovent körülmények: párologtató belépő/kilépő vízhőmérséklet = 12°C/7°C, kondenzátor belépő/kilépő vízhőmérséklet = 30°C/35°C Nettó hűtőteljesítmény: Bruttó hűtőteljesítmény mínusz a vízszivattyú hője a belső párologtató nyomásesése ellen. ** A kompresszor mérete megfelel a névleges kapacitásnak tonnában (1 tonna = 3,517 kW).
ELEKTROMOS ADATOK 30HXC
| 30HXC | 080 | 090 | 100 | 110 | 120 | 130 | 140 | 155 | 175 | 190 | 200 | 230 | 260 | 285 | 310 | 345 | 375 | |
| Teljesítmény áramkör | ||||||||||||||||||
| Névleges tápfeszültség* | V-ph-Hz | 400-3-50 | ||||||||||||||||
| Feszültségtartomány | V | 360-440 | ||||||||||||||||
| Vezérlő áramkör tápellátása | A vezérlő áramkört a gyárilag beépített transzformátor táplálja | |||||||||||||||||
| Névleges teljesítményfelvétel* | kW | 59 | 67 | 74 | 83 | 88 | 99 | 112 | 123 | 135 | 146 | 156 | 179 | 201 | 219 | 245 | 274 | 298 |
| Névleges áramfelvétel* | A | 98 | 111 | 124 | 139 | 148 | 166 | 186 | 204 | 226 | 242 | 259 | 291 | 335 | 367 | 408 | 456 | 498 |
| Max. teljesítményfelvétel** | kW | 76 | 83 | 91 | 101 | 111 | 121 | 135 | 145 | 158 | 181 | 187 | 214 | 237 | 272 | 290 | 316 | 362 |
| A áramkör | kW | - | - | - | - | - | - | - | - | - | - | 121 | 135 | 158 | 181 | 145 | 158 | 181 |
| B áramkör | kW | - | - | - | - | - | - | - | - | - | - | 66 | 79 | 79 | 91 | 145 | 158 | 181 |
| Cos fi, egység teljes terhelésnél | 0.87 | 0.87 | 0.87 | 0.87 | 0.87 | 0.87 | 0.87 | 0.87 | 0.87 | 0.87 | 0.87 | 0.87 | 0.87 | 0.87 | 0.87 | 0.87 | 0.87 | |
| Max. áramfelvétel (Un - 10%)*** | A | 138 | 152 | 166 | 184 | 202 | 221 | 245 | 264 | 288 | 330 | 341 | 389 | 432 | 495 | 528 | 576 | 660 |
| A áramkör | A | - | - | - | - | - | - | - | - | - | - | 221 | 245 | 288 | 330 | 264 | 288 | 330 |
| B áramkör | A | - | - | - | - | - | - | - | - | - | - | 120 | 144 | 144 | 165 | 264 | 288 | 330 |
| Maximális áramfelvétel (Un)*** | A | 125 | 138 | 151 | 167 | 184 | 201 | 223 | 240 | 262 | 300 | 310 | 354 | 393 | 450 | 480 | 524 | 600 |
| A áramkör | A | - | - | - | - | - | - | - | - | - | - | 201 | 223 | 262 | 300 | 240 | 262 | 300 |
| B áramkör | A | - | - | - | - | - | - | - | - | - | - | 109 | 131 | 131 | 150 | 240 | 262 | 300 |
| Max. indítási áram, std. egység (Un)**** | A | 172 | 197 | 209 | 235 | 252 | 283 | 318 | 335 | 357 | 420 | 806 | 938 | 977 | 1156 | 1064 | 1108 | 1306 |
| A áramkör | A | - | - | - | - | - | - | - | - | - | - | 697 | 807 | 846 | 1006 | 824 | 846 | 1006 |
| B áramkör | A | - | - | - | - | - | - | - | - | - | - | 605 | 715 | 715 | 856 | 824 | 846 | 1006 |
| Max. indítási áram/max. áramfelvétel arány, egység | 1.37 | 1.42 | 1.39 | 1.41 | 1.37 | 1.41 | 1.43 | 1.40 | 1.36 | 1.40 | 2.60 | 2.65 | 2.49 | 2.57 | 2.22 | 2.12 | 2.18 | |
| Max. indítási áram/max. áramfelvétel arány, A áramkör | - | - | - | - | - | - | - | - | - | - | 3.47 | 3.62 | 3.23 | 3.35 | 3.43 | 3.23 | 3.35 | |
| Max. indítási áram/max. áramfelvétel arány, B áramkör | - | - | - | - | - | - | - | - | - | - | 5.55 | 5.46 | 5.46 | 5.71 | 3.43 | 3.23 | 3.35 | |
| Max. indítási áram - csökkentett áramú indítás (Un) **** | A | std. | std. | std. | std. | std. | std. | std. | std. | std. | std. | 601 | 643 | 682 | 760 | 769 | 813 | 910 |
| A áramkör | A | std. | std. | std. | std. | std. | std. | std. | std. | std. | std. | 492 | 512 | 551 | 610 | 529 | 551 | 610 |
| B áramkör | A | std. | std. | std. | std. | std. | std. | std. | std. | std. | std. | 330 | 370 | 370 | 385 | 529 | 551 | 610 |
| Max. indítási áram - csökkentett áramú indítás/ max. áramfelvétel arány, egység | std. | std. | std. | std. | std. | std. | std. | std. | std. | std. | 1.94 | 1.82 | 1.74 | 1.69 | 1.60 | 1.55 | 1.52 | |
| A áramkör | std. | std. | std. | std. | std. | std. | std. | std. | std. | std. | 2.45 | 2.30 | 2.10 | 2.03 | 2.20 | 2.10 | 2.03 | |
| B áramkör | std. | std. | std. | std. | std. | std. | std. | std. | std. | std. | 3.03 | 2.83 | 2.83 | 2.57 | 2.20 | 2.10 | 2.03 | |
| Háromfázisú rövidzárlati tartóáram | kA | 25 | 25 | 25 | 25 | 25 | 25 | 25 | 25 | 25 | 25 | N/A | N/A | N/A | N/A | N/A | N/A | N/A |
| A áramkör | kA | - | - | - | - | - | - | - | - | - | - | 25 | 25 | 25 | 25 | 25 | 25 | 25 |
| B áramkör | kA | - | - | - | - | - | - | - | - | - | - | 15 | 15 | 15 | 15 | 25 | 25 | 25 |
| Ügyfél készenléti kapacitása, egység vagy A áramkör, az elpárologtató vízszivattyú csatlakozásaihoz† | kW | 8 | 8 | 8 | 11 | 11 | 11 | 15 | 15 | 15 | 15 | 15 | 18 | 18 | 30 | 30 | 30 | 30 |
* Standard Eurovent feltételek: Elpárologtató belépő/kilépő vízhőmérséklete 12°C és 7°C. Kondenzátor belépő/kilépő vízhőmérséklete 30°C/35°C.
** Teljesítményfelvétel, kompresszor, az egység üzemi határértékeinél (elpárologtató belépő/kilépő vízhőmérséklete = 15°C/10°C, kondenzátor belépő/kilépő vízhőmérséklete = 40°C/45°C) és 400 V névleges feszültség mellett (az egység adattábláján feltüntetett adatok).
*** Maximális egység üzemi áram a maximális egység teljesítményfelvétel mellett.
**** Maximális pillanatnyi indítási áram (a legkisebb kompresszor(ok) maximális üzemi árama + a legnagyobb kompresszor lezárt rotorárama vagy csökkentett indítási árama)
† A fenti értékek nem tartalmazzák az áram- és teljesítményfelvételeket.
N/A Nem elérhető
Kompresszorok
| Referencia | Méret | I nom. | MHA | LRA | LRA (Y) | LRA (S) 1 cp. | LRA (S) 2 cp. |
| 06NW2146S7N | 39 | 48 | 69 | 344 | 109 | 125 | - |
| 06NW2174S7N | 46 | 58 | 83 | 423 | 134 | 154 | - |
| 06NW2209S7N | 56 | 71 | 101 | 506 | 160 | 260 | 350 |
| 06NW2250S7N | 66 | 87 | 120 | 605 | 191 | 330 | 400 |
| 06NW2300S5N | 80 | 104 | 144 | 715 | 226 | 370 | 420 |
| 06NW2300S5E | 80+ | 111 | 165 | 856 | 270 | 385 | 460 |
Jelmagyarázat:
| 06NW | Kompresszor vízhűtéses egységekhez |
| N | Nem ekonomizált kompresszor |
| E | Ekonomizált kompresszor |
| INOM | A kompresszor átlagos áramfelvétele Eurovent feltételek mellett |
| MHA | Tartania kell az amperokat (maximális üzemi áram) 360 V-on |
| LRA | Lezárt rotoráram direkt indítással |
| LRA (Y) | Lezárt rotoráram csökkentett áram mellett (csillag/delta indítási mód) |
| LRA (S) 1 cp. | Indítás csökkentett árammal elektronikus indítóval (indítási időtartam max. 3 másodperc) egy kompresszorhoz áramkörönként |
| LRA (S) 2 cp. | Indítás csökkentett árammal elektronikus indítóval (indítási időtartam max. 3 másodperc) két kompresszorhoz áramkörönként |
ELEKTROMOS ADATOK MAGAS KONDENZÁCIÓS HŐMÉRSÉKLETŰ EGYSÉGEKHEZ
30HXC 150 és 150A opciók
| 30HXC | 080 | 090 | 100 | 110 | 120 | 130 | 140 | 155 | 175 | 190 | 200 | 230 | 260 | 285 | 310 | 345 | 375 | |
| Teljesítmény áramkör | ||||||||||||||||||
| Névleges tápfeszültség* | V-ph-Hz | 400-3-50 | ||||||||||||||||
| Feszültség tartomány | V | 360-440 | ||||||||||||||||
| Vezérlő áramkör tápellátása | A vezérlő áramkört a gyárilag beépített transzformátor látja el | |||||||||||||||||
| Max. teljesítményfelvétel** | kW | 104 | 117 | 131 | 145 | 159 | 174 | 194 | 211 | 230 | 263 | 271 | 310 | 345 | 395 | 422 | 460 | 526 |
| A áramkör | kW | - | - | - | - | - | - | - | - | - | - | 175 | 195 | 230 | 263 | 211 | 230 | 263 |
| B áramkör | kW | - | - | - | - | - | - | - | - | - | - | 96 | 115 | 115 | 132 | 211 | 230 | 263 |
| Max. áramfelvétel (Un - 10%)*** | A | 190 | 215 | 240 | 265 | 290 | 320 | 355 | 385 | 420 | 480 | 495 | 564 | 630 | 720 | 770 | 840 | 960 |
| A áramkör | A | - | - | - | - | - | - | - | - | - | - | 320 | 355 | 420 | 480 | 385 | 420 | 480 |
| B áramkör | A | - | - | - | - | - | - | - | - | - | - | 175 | 210 | 210 | 240 | 385 | 420 | 480 |
| Maximális áramfelvétel (Un)*** | A | 173 | 195 | 218 | 241 | 264 | 291 | 323 | 350 | 382 | 436 | 450 | 514 | 573 | 655 | 700 | 764 | 873 |
| A áramkör | A | - | - | - | - | - | - | - | - | - | - | 291 | 323 | 382 | 436 | 350 | 382 | 436 |
| B áramkör | A | - | - | - | - | - | - | - | - | - | - | 159 | 191 | 191 | 218 | 350 | 382 | 436 |
| Max. indítóáram, std. egység (Un)**** | A | 277 | 312 | 335 | 379 | 402 | 435 | 519 | 546 | 578 | 618 | 1251 | 1549 | 1608 | 1701 | 1735 | 1799 | 1920 |
| A áramkör | A | - | - | - | - | - | - | - | - | - | - | 1092 | 1358 | 1417 | 1483 | 1385 | 1417 | 1483 |
| B áramkör | A | - | - | - | - | - | - | - | - | - | - | 960 | 1226 | 1226 | 1265 | 1385 | 1417 | 1483 |
| Max. indítóáram / max. áramfelvétel arány, egység | 1.61 | 1.60 | 1.54 | 1.57 | 1.52 | 1.49 | 1.61 | 1.56 | 1.51 | 1.42 | 2.78 | 3.02 | 2.81 | 2.60 | 2.48 | 2.36 | 2.20 | |
| Max. indítóáram / max. áramfelvétel arány, A áramkör | - | - | - | - | - | - | - | - | - | - | 3.75 | 4.21 | 3.71 | 3.40 | 3.96 | 3.71 | 3.40 | |
| Max. indítóáram / max. áramfelvétel arány, B áramkör | - | - | - | - | - | - | - | - | - | - | 6.03 | 6.42 | 6.42 | 5.80 | 3.96 | 3.71 | 3.40 | |
| Max. indítóáram - csökkentett áramú indítás (Un) **** | A | std. | std. | std. | std. | std. | std. | std. | std. | std. | std. | N/A | N/A | N/A | N/A | N/A | N/A | N/A |
| Háromfázisú rövidzárlati tartóáram | kA | 25 | 25 | 25 | 25 | 25 | 25 | 25 | 25 | 25 | 25 | N/A | N/A | N/A | N/A | N/A | N/A | N/A |
| A áramkör | kA | - | - | - | - | - | - | - | - | - | - | 25 | 25 | 25 | 25 | 25 | 25 | 25 |
| B áramkör | kA | - | - | - | - | - | - | - | - | - | - | 15 | 15 | 15 | 15 | 25 | 25 | 25 |
| Ügyfél készenléti kapacitása, egység vagy A kör, az elpárologtató vízszivattyú csatlakozásaihoz† | kW | 8 | 8 | 8 | 11 | 11 | 11 | 15 | 15 | 15 | 15 | 15 | 18 | 18 | 30 | 30 | 30 | 30 |
** Teljesítményfelvétel, kompresszor, az egység üzemi határértékeinél (elpárologtató víz belépő/kilépő hőmérséklete = 15°C/10°C, kondenzátor belépő/kilépő víz hőmérséklete = 40°C/45°C) és 400 V névleges feszültségnél (az egység adattábláján megadott adatok).
*** Maximális egység üzemi áram a maximális egység teljesítményfelvétel mellett.
**** Maximális pillanatnyi indítóáram (a legkisebb kompresszor(ok) maximális üzemi árama + a legnagyobb kompresszor(ok) lezárt rotorárama vagy csökkentett indítóárama)
† A fenti értékek nem tartalmazzák az áram- és teljesítményfelvételt.
N/A Nem elérhető
A 30HXC 080-375 egységek magas kondenzációs hőmérsékletre közvetlenül a standard modellekből származnak. Alkalmazási tartományuk megegyezik a standard egységekével, de lehetővé teszi a működést akár 63°C-os kondenzátor kilépő vízhőmérsékleten is. A PRO-DIALOG vezérlés a standard egységek minden előnyét kínálja, valamint a kondenzátor kilépő vízhőmérsékletének szabályozását is.
A főbb módosítások a következők:
- 30GX kompresszorok használata
- Az elektromos alkatrészek módosítása a magas kondenzációs hőmérsékletű kompresszorokkal való működéshez.
- A hőcserélők módosítása a nyomástechnikai követelményeknek való megfelelés érdekében (ha szükséges).
150-es opció
Ezeket az egységeket a vízhűtéses egységek hagyományos alkalmazásaihoz tervezték, de magasabb, 45°C-nál magasabb kondenzátor kilépő vízhőmérséklethez.
A standard egységekhez hasonlóan ezek is fel vannak szerelve a csővezetékre szerelt kondenzátor belépő és kilépő vízérzékelőkkel.
A gép a kondenzátor víz kimeneténél is vezérelhető, ami gyári konfigurációs változtatást és fűtő/hűtő bemeneti irányváltó eszköz használatát teszi szükségessé.
150A opció
Ezeket az egységeket víz-víz hőszivattyúkhoz tervezték.
Gyárilag hőszivattyúként vannak konfigurálva (fűtési/hűtési vezérlés a távoli irányváltó eszköz függvényében). A kondenzátor hővédő szigetelést tartalmaz, amely megegyezik az elpárologtatóéval.
Műszaki információk
Minden információ megegyezik a standard 30HXC egységekével, kivéve a következő bekezdéseket.
Kiválasztás
Ennél az egységtípusnál nincsenek névleges feltételek. A kiválasztás az aktuális elektronikus katalógus segítségével történik.
Méretek
Ezek megegyeznek a standard 30HXC egységek méreteivel. Az egyetlen különbség a bejövő terepi vezetékek csatlakozásának átmérőjében van, amelyet az "Ajánlott kiválasztás" fejezet ismertet. A vezetékezés megkezdése előtt tekintse meg az egységek méretrajzait.
Kompresszor
Lásd a 30GX kompresszor táblázatot.
Opciók és tartozékok
A standard 30HXC egységekhez elérhető összes opció kompatibilis, kivéve:
| 5. opció, sós víz egység | Speciális egység |
| 25. opció, lágyindítás, 30HXC 200-375 egységek | Nem elérhető |
Figyelem:
Ha az egységeknek két különböző üzemmódjuk van - az egyik magas kondenzációs hőmérséklettel, a másik alacsony kondenzációs hőmérséklettel -, és az átmenet az egység működése közben történik, akkor a hőmérséklet nem változhat percenként 3 K-nál többet. Azokban az esetekben, amikor ez nem lehetséges, ajánlott egy egység indító/leállító kapcsolón keresztülmenni (a standard egységekhez távoli indítás/leállítás áll rendelkezésre).
FIZIKAI ADATOK 30GX
| 30GX | 082 | 092 | 102 | 112 | 122 | 132 | 152 | 162 | 182 | 207 | 227 | 247 | 267 | 298 | 328 | 358 | ||
| Nettó hűtőteljesítmény | kW | 285 | 309 | 332 | 388 | 417 | 450 | 505 | 536 | 602 | 687 | 744 | 810 | 910 | 1003 | 1103 | 1207 | |
| Üzemi tömeg | kg | 3116 | 3157 | 3172 | 3515 | 3531 | 3633 | 3920 | 3936 | 4853 | 5540 | 5570 | 6134 | 6365 | 7354 | 7918 | 8124 | |
| Hűtőközeg töltet | HFC-134a | |||||||||||||||||
| A/B áramkör | kg | 55/55 | 58/50 | 54/53 | 55/53 | 60/57 | 63/60 | 75/69 | 75/75 | 80/80 | 130/85 | 130/85 | 155/98 | 170/104 | 162/150 | 162/165 | 175/175 | |
| Olaj | Poliolészter olaj CARRIER SPEC: PP 47-32 | |||||||||||||||||
| A/B áramkör | l | 20/20 | 20/20 | 20/20 | 20/20 | 20/20 | 20/20 | 20/20 | 20/20 | 20/20 | 40/20 | 40/20 | 40/20 | 40/20 | 40/40 | 40/40 | 40/40 | |
| Kompresszorok | Hermetikus ikercsavaros Power3 | |||||||||||||||||
| A kör, névleges méret kompresszoronként** | 46 | 46 | 56 | 56 | 66 | 66 | 80 | 80 | 80+ | 66/56 | 80/66 | 80/80 | 80+/80+ | 80/80 | 80/80 | 80+/80+ | ||
| B kör, névleges méret kompresszoronként** | 39 | 46 | 46 | 56 | 56 | 66 | 66 | 80 | 80+ | 80 | 80 | 80 | 80+ | 66/66 | 80/802 | 80+/80+ | ||
| Vezérlés típusa | PRO-DIALOG Plus vezérlés | |||||||||||||||||
| Teljesítményfokozatok száma | 6 | 6 | 6 | 6 | 6 | 6 | 6 | 6 | 6 | 8 | 8 | 8 | 8 | 10 | 10 | 10 | ||
| Minimális kapacitás | % | 19 | 21 | 19 | 21 | 19 | 21 | 19 | 21 | 21 | 16 | 14 | 14 | 14 | 9 | 10 | 10 | |
| Elpárologtató | Héj és cső típusú, belsőleg bordázott rézcsövekkel | |||||||||||||||||
| Nettó vízmennyiség | l | 65 | 73 | 73 | 87 | 87 | 101 | 91 | 91 | 109 | 140 | 140 | 165 | 181 | 203 | 229 | 229 | |
| Vízcsatlakozások | Gyárilag szállított lapos karima, amelyet a helyszínen kell hegeszteni | |||||||||||||||||
| Bemenet és kimenet | in. | 4 | 4 | 4 | 5 | 5 | 5 | 5 | 5 | 5 | 6 | 6 | 6 | 6 | 8 | 8 | 8 | |
| Lefolyó és szellőző (NPT) | in. | 3/8 | 3/8 | 3/8 | 3/8 | 3/8 | 3/8 | 3/8 | 3/8 | 3/8 | 3/8 | 3/8 | 3/8 | 3/8 | 3/8 | 3/8 | 3/8 | |
| Max. vízköri üzemi nyomás | kPa | 1000 | 1000 | 1000 | 1000 | 1000 | 1000 | 1000 | 1000 | 1000 | 1000 | 1000 | 1000 | 1000 | 1000 | 1000 | 1000 | |
| Kondenzátorok | Rézcsövek és alumínium bordák | |||||||||||||||||
| Ventilátorok | Axiális FLYING BIRD 2 ventilátor forgó burkolattal | |||||||||||||||||
| Mennyiség | 4 | 4 | 4 | 6 | 6 | 6 | 8 | 8 | 8 | 10 | 10 | 12 | 12 | 14 | 16 | 16 | ||
| Sebesség | r/s | 15.8 | 15.8 | 15.8 | 15.8 | 15.8 | 15.8 | 15.8 | 15.8 | 15.8 | 15.8 | 15.8 | 15.8 | 15.8 | 15.8 | 15.8 | 15.8 | |
| Teljes légáramlás | l/s | 21110 | 21110 | 21110 | 31660 | 31660 | 31660 | 42220 | 42220 | 42220 | 52770 | 52770 | 63330 | 63330 | 73880 | 84440 | 84440 | |
* Szabványosított Eurovent feltételek: elpárologtató belépő/kilépő vízhőmérséklete = 12°C/7°C, külső levegő hőmérséklete = 35°C Nettó hűtőteljesítmény: Bruttó hűtőteljesítmény mínusz a vízszivattyú hője a belső elpárologtató nyomásesése ellen.
** A kompresszor mérete megfelel a névleges kapacitásnak tonnában (1 tonna = 3,517 kW).
ELEKTROMOS ADATOK 30GX
| 30HXC | 082 | 092 | 102 | 112 | 122 | 132 | 152 | 162 | 182 | 207 | 227 | 247 | 267 | 298 | 328 | 358 | ||
| Teljesítmény áramkör | ||||||||||||||||||
| Névleges tápfeszültség* | V-ph-Hz | 400-3-50 | ||||||||||||||||
| Feszültségtartomány | V | 360-440 | ||||||||||||||||
| Vezérlő áramkör tápellátása | A vezérlő áramkört a gyárilag beépített transzformátor látja el | |||||||||||||||||
| Névleges teljesítményfelvétel* | kW | 98 | 109 | 123 | 133 | 150 | 166 | 179 | 196 | 214 | 246 | 281 | 292 | 332 | 364 | 394 | 449 | |
| Névleges áramfelvétel* | A | 180 | 200 | 223 | 256 | 273 | 290 | 326 | 352 | 388 | 449 | 492 | 528 | 582 | 642 | 704 | 776 | |
| Max. teljesítményfelvétel** | kW | 127 | 141 | 154 | 175 | 191 | 207 | 234 | 253 | 286 | 319 | 355 | 380 | 429 | 462 | 506 | 572 | |
| A áramkör | kW | - | - | - | - | - | - | - | - | - | 193 | 228 | 253 | 286 | 253 | 253 | 286 | |
| B áramkör | kW | - | - | - | - | - | - | - | - | - | 127 | 127 | 127 | 143 | 209 | 253 | 286 | |
| Koszinusz fi, egység teljes terhelésnél | 0.85 | 0.85 | 0.85 | 0.85 | 0.85 | 0.85 | 0.86 | 0.86 | 0.86 | 0.86 | 0.86 | 0.86 | 0.86 | 0.86 | 0.86 | 0.86 | ||
| Max. áramfelvétel (Un - 10%)*** | A | 237 | 262 | 287 | 323 | 353 | 383 | 429 | 464 | 524 | 585 | 650 | 696 | 786 | 847 | 928 | 1048 | |
| A áramkör | A | - | - | - | - | - | - | - | - | - | 353 | 418 | 464 | 524 | 464 | 464 | 524 | |
| B áramkör | A | - | - | - | - | - | - | - | - | - | 232 | 232 | 232 | 262 | 383 | 464 | 524 | |
| Maximális áramfelvétel (Un)*** | A | 217 | 240 | 263 | 297 | 324 | 351 | 394 | 426 | 480 | 537 | 596 | 639 | 721 | 777 | 852 | 961 | |
| A áramkör | A | - | - | - | - | - | - | - | - | - | 324 | 383 | 426 | 480 | 426 | 426 | 480 | |
| B áramkör | A | - | - | - | - | - | - | - | - | - | 213 | 213 | 213 | 240 | 351 | 426 | 480 | |
| Max. indítóáram, std. egység**** (Un) | A | 334 | 357 | 401 | 435 | 468 | 495 | 590 | 622 | 662 | 1338 | 1631 | 1674 | 1767 | 1812 | 1887 | 2008 | |
| A áramkör*** | A | - | - | - | - | - | - | - | - | - | 1125 | 1418 | 1461 | 1527 | 1461 | 1461 | 1527 | |
| B áramkör*** | A | - | - | - | - | - | - | - | - | - | 1248 | 1248 | 1248 | 1287 | 1152 | 1461 | 1527 | |
| Max. indítóáram/max. áramfelvétel arány, egység | 1.54 | 1.49 | 1.53 | 1.47 | 1.44 | 1.41 | 1.50 | 1.46 | 1.38 | 2.49 | 2.74 | 2.62 | 2.45 | 2.33 | 2.22 | 2.09 | ||
| Max. indítóáram/max. áramfelvétel arány, A áramkör | - | - | - | - | - | - | - | - | - | 3.47 | 3.70 | 3.43 | 3.18 | 3.43 | 3.43 | 3.18 | ||
| Max. indítóáram/max. áramfelvétel arány, B áramkör | - | - | - | - | - | - | - | - | - | 5.86 | 5.86 | 5.86 | 5.36 | 3.28 | 3.43 | 3.18 | ||
| Max. indítóáram - csökkentett áramú indítás (Un) **** | A | std. | std. | std. | std. | std. | std. | std. | std. | std. | 878 | 955 | 998 | 1102 | 1136 | 1211 | 1343 | |
| A áramkör | A | std. | std. | std. | std. | std. | std. | std. | std. | std. | 665 | 742 | 785 | 862 | 785 | 785 | 862 | |
| B áramkör | A | std. | std. | std. | std. | std. | std. | std. | std. | std. | 572 | 572 | 572 | 622 | 692 | 785 | 862 | |
| Max. indítóáram - csökkentett áramú indítás/ max. áramfelvétel arány, egység | std. | std. | std. | std. | std. | std. | std. | std. | std. | 1.64 | 1.60 | 1.56 | 1.53 | 1.46 | 1.42 | 1.40 | ||
| A áramkör | std. | std. | std. | std. | std. | std. | std. | std. | std. | 2.05 | 1.94 | 1.84 | 1.79 | 1.84 | 1.84 | 1.79 | ||
| B áramkör | std. | std. | std. | std. | std. | std. | std. | std. | std. | 2.69 | 2.69 | 2.69 | 2.39 | 1.97 | 1.84 | 1.79 | ||
| Háromfázisú rövidzárlati tartóáram | kA | 25 | 25 | 25 | 25 | 25 | 25 | 25 | 25 | 25 | N/A | N/A | N/A | N/A | N/A | N/A | N/A | |
| A áramkör | kA | - | - | - | - | - | - | - | - | - | 25 | 25 | 25 | 25 | 25 | 25 | 25 | |
| B áramkör | kA | - | - | - | - | - | - | - | - | - | 25 | 25 | 25 | 25 | 25 | 25 | 25 | |
| Ügyfél készenléti kapacitása, egység vagy A áramkör, az elpárologtató vízszivattyú csatlakozásaihoz† | kW | 4 | 4 | 4 | 5.5 | 5.5 | 5.5 | 7.5 | 7.5 | 7.5 | 7.5 | 9 | 9 | 9 | 15 | 15 | 15 | |
* Standard Eurovent feltételek: Elpárologtató belépő/kilépő víz hőmérséklete 12°C és 7°C. Külső levegő hőmérséklete 35°C.
** Teljesítményfelvétel, kompresszor és ventilátor, az egység működési határértékeinél (elpárologtató belépő/kilépő víz hőmérséklete = 15°C/10°C, külső levegő hőmérséklete = 46°C) és 400 V névleges feszültségnél (az egység adattábláján feltüntetett adatok).
*** Maximális egység üzemi áram a maximális egység teljesítményfelvételénél.
**** Maximális pillanatnyi indítóáram (a legkisebb kompresszor(ok) maximális üzemi árama + ventilátor árama + a legnagyobb kompresszor zárt rotor árama vagy csökkentett indítóárama).
† A fenti értékek nem tartalmazzák az áram- és teljesítményfelvételt
N/A Nem elérhető
Kompresszorok
| Referencia | Méret | I nom. | MHA | LRA | LRA (Y) | LRA (S) 1 cp. | LRA (S) 2 cp. |
| 06NA2146S7N | 39 | 70 | 95 | 605 | 191 | 220 | - |
| 06NA2174S7N | 46 | 90 | 120 | 715 | 226 | 260 | - |
| 06NA2209S7N | 56 | 113 | 145 | 856 | 270 | 330 | 420 |
| 06NA2250S7N | 66 | 130 | 175 | 960 | 303 | 380 | 500 |
| 06NA2300S5N | 80 | 156 | 210 | 1226 | 387 | 445 | 550 |
| 06NA2300S5E | 80+ | 174 | 240 | 1265 | 400 | 460 | 600 |
Jelmagyarázat:
| 06NA | Kompresszor léghűtéses egységekhez |
| N | Nem-ökonomizált kompresszor |
| E | Ökonomizált kompresszor |
| INOM | A kompresszor átlagos áramfelvétele Eurovent feltételek mellett |
| MHA | Tartania kell az amperértéket (maximális üzemi áram) 360 V-on |
| LRA | Zárt rotor áram direkt indítással |
| LRA (Y) | Zárt rotor áram csökkentett árammal (csillag/delta indítási mód) |
| LRA (S) 1 cp. | Indítás csökkentett árammal elektronikus indítóval (indítási időtartam max. 3 másodperc) egy kompresszorhoz áramkörönként |
| LRA (S) 2 cp. | Indítás csökkentett árammal elektronikus indítóval (indítási időtartam max. 3 másodperc) két kompresszorhoz áramkörönként |
ALKALMAZÁSI ADATOK
Egység működési tartománya
| Evaporátor | Minimum (minimum) | Maximum (maximum) | |
| Evaporátorba belépő víz hőmérséklete | °C | 6.8* | 21 |
| Evaporátorból kilépő víz hőmérséklete | °C | 4** | 15 |
| Kondenzátor (vízhűtéses) | Minimum (minimum) | Maximum (maximum) | |
| Kondenzátorba belépő víz hőmérséklete | °C | 20*** | 42 |
| Kondenzátorból kilépő víz hőmérséklete | °C | 25 | 45 |
| Külső környezeti működési hőmérséklet 30HXC | °C | 6 | 40 |
| Kondenzátor (léghűtéses) | Minimum (minimum) | Maximum (maximum) | |
| Kültéri környezeti működési hőmérséklet | °C | 0 | 46 |
| Elérhető statikus nyomás | kPa | 0 |
Megjegyzések:
* 6,8°C alatti működést igénylő alkalmazásokhoz vegye fel a kapcsolatot a Carrier s.a.-val az egység kiválasztásához a Carrier elektronikus katalógus segítségével.
** 4°C alatti működést igénylő alkalmazásokhoz az egységek fagyálló használatát igénylik.
*** A vízhűtéses egységek (30HXC) teljes terhelésen és 20°C alatti kondenzátorba belépő vízhőmérsékleten történő működtetéséhez fejnyomás-szabályozás szükséges analóg vízszabályozó szelepekkel (lásd a fejnyomás-szabályozásról szóló bekezdést).
Ideiglenes üzemmódokban (indításkor és részterhelésen) az egység 13°C-os kondenzátorba belépő léghőmérséklettel is működhet.
Minimális hűtött víz áramlás
A minimális hűtött víz áramlás a következő oldalon található táblázatban látható. Ha az áramlás ennél kisebb, az evaporátor áramlása recirkuláltatható, ahogy az a diagramon látható. Az evaporátorból kilépő keverék hőmérséklete soha nem lehet 2,8 K-nél alacsonyabb, mint a belépő hűtött víz hőmérséklete.

A MINIMÁLIS HŰTÖTT VÍZ ÁRAMLÁSI SEBESSÉGÉHEZ
Maximális hűtött víz áramlás
A maximális hűtött víz áramlást az evaporátorban megengedett maximális nyomásesés korlátozza. Ez a következő oldalon található táblázatban van megadva. Ha az áramlás meghaladja a maximális értéket, két megoldás lehetséges:
- Válasszon egy nem szabványos evaporátort, amelynek egy vízáteresztése kevesebb, ami lehetővé teszi a magasabb maximális víz áramlási sebességet.
- Kerülje el az evaporátort a diagramon látható módon, hogy magasabb hőmérsékletkülönbséget érjen el alacsonyabb evaporátor áramlási sebességgel.

A MAXIMÁLIS HŰTÖTT VÍZ ÁRAMLÁSI SEBESSÉGÉHEZ
Változó áramlású evaporátor
Változó evaporátor áramlás használható a standard 30HXC és 30GX hűtőkben. A hűtők minden áramlási körülmény között állandó kilépő víz hőmérsékletet tartanak fenn. Ehhez a minimális áramlási sebességnek magasabbnak kell lennie, mint a megengedett áramlási sebességek táblázatában megadott minimális áramlásnak, és nem változhat percenként 10%-nál többet. Ha az áramlási sebesség gyorsabban változik, a rendszernek legalább 6,5 liter vizet kell tartalmaznia kW-onként, a 3,25 l/kW helyett.
Rendszer minimális vízmennyisége
Bármelyik rendszerről is legyen szó, a víz kör minimális kapacitását a következő képlet adja meg:
Kapacitás = Cap (kW) x N Liter
| Alkalmazás | N |
| Normál légkondicionálás | 3.25 |
| Folyamat típusú hűtés | 6.5 |
Ahol a Cap a rendszer névleges hűtési kapacitása (kW) a telepítés névleges működési körülményei között.
Ez a mennyiség szükséges a stabil működéshez és a pontos hőmérséklet-szabályozáshoz.
Gyakran szükséges egy puffer víztartályt hozzáadni a körhöz a szükséges mennyiség eléréséhez. A tartálynak belsőleg terelőlemezekkel kell rendelkeznie a folyadék (víz vagy sóoldat) megfelelő keverésének biztosítása érdekében. Tekintse meg az alábbi példákat.
MEGJEGYZÉS: A kompresszor nem indulhat újra többször, mint 6 alkalommal egy órán belül.


Hűtőfolyadék áramlási sebessége (l/s)
| 30HXC | Min.* | Max.** | ||
| 080-090 | 5.7 | 22.7 | ||
| 100 | 6.0 | 24.1 | ||
| 110 | 6.9 | 27.5 | ||
| 120-130 | 8.3 | 33.0 | ||
| 140-155 | 10.0 | 39.5 | ||
| 175-190 | 10.7 | 42.7 | ||
| 200 | 13.4 | 53.7 | ||
| 230 | 13.4 | 60.6 | ||
| 260-285 | 17.0 | 68.1 | ||
| 310 | 19.4 | 77.8 | ||
| 345-375 | 21.3 | 85.3 | ||
| 30GX | Min.* | Max.** | ||
| 082 | 5.7 | 22.7 | ||
| 092-102 | 6.0 | 24.1 | ||
| 112-122 | 6.9 | 27.5 | ||
| 132 | 8.4 | 33.7 | ||
| 152-162 | 10.0 | 39.9 | ||
| 182 | 10.7 | 42.7 | ||
| 207-227 | 13.4 | 53.7 | ||
| 247 | 15.1 | 60.6 | ||
| 267 | 17.0 | 68.1 | ||
| 298 | 19.4 | 77.8 | ||
| 328-358 | 21.3 | 85.3 | ||
* 0,9 m/s vízsebességen alapul.
** 3,6 m/s vízsebességen alapul.
Kondenzátor áramlási sebessége (l/s)
| 30HXC | Min.* Zárt hurok | Nyitott hurok | Max.** |
| 080-110 | 2.5 | 7.5 | 29.9 |
| 120-130 | 3.1 | 9.3 | 37.3 |
| 140-155 | 3.8 | 11.4 | 45.5 |
| 175-190 | 4.6 | 13.8 | 55.2 |
| 200 | 5.0 | 14.9 | 59.6 |
| 230-285 | 6.7 | 20.1 | 80.3 |
| 310-375 | 7.3 | 22.0 | 88.0 |
* 0,3 m/s vízsebességen alapul zárt hurokban és 0,9 m/s vízsebességen nyitott hurokban.
** 3,6 m/s vízsebességen alapul
Párologtató nyomásesés görbéje

- 30HXC 080-090/30GX 082
- 30HXC 100/30GX 092-102
- 30HXC 110/30GX 112-122
- 30GX 132
- 30HXC 120-130
- 30HXC 140-155/30GX 152-162
- 30HXC 175-190/30GX 182
- 30HXC 200/30GX 207-227
- 30HXC 230/30GX 247
- 30HXC 260-285/30GX 267
- 30HXC 310/30GX 298
- 30HXC 345-375/30GX 328-358
Kondenzátor nyomásesés görbéje

- 30HXC 080-090-100-110
- 30HXC 120-130
- 30HXC 140-155
- 30HXC 175-190
- 30HXC 200
- 30HXC 230-260-285
- 30HXC 310-345-375
Áramlásvezérlők
Hűtő áramláskapcsoló és hűtöttvíz-szivattyú reteszelés
Kötelező hűtő áramláskapcsolót telepíteni, valamint a hűtöttvíz-szivattyú reteszelését a 30HXC és 30GX típusokon csatlakoztatni. Ezen utasítás be nem tartása a Carrier garancia érvénytelenségét vonja maga után.
A hűtő áramláskapcsoló vezérlő gyárilag a 30HXC és 30GX egységeken van szállítva és bekötve.
A telepítéshez kövesse a gyártó utasításait.
Az áramláskapcsoló vízszintes vagy függőleges csőbe szerelhető, felfelé irányuló folyadékáramlással. Nem használható, ha a folyadékáramlás lefelé irányul.
Szerelje be a cső azon szakaszába, ahol az áramláskapcsoló mindkét oldalán legalább öt csőátmérőnyi egyenes szakasz található. Ne helyezze szelepek, könyökök vagy szűkítések mellé. A lapát soha nem érhet a csőhöz vagy bármilyen szűkítéshez a csőben. Csavarja az áramláskapcsolót a helyére úgy, hogy a lapát lapos része derékszögben álljon az áramláshoz képest. A fedélen és az alsó részen, a ház belsejében lévő nyilaknak az áramlás irányába kell mutatniuk. A kapcsolót úgy kell felszerelni, hogy a csatlakozók könnyen hozzáférhetők legyenek a könnyű bekötés érdekében.
A 34-es és 35-ös csatlakozók a hűtöttvíz-szivattyú reteszelésének (a hűtöttvíz-szivattyú kontaktorának segédérintkezője) helyszíni telepítéséhez vannak biztosítva.
(Csőcsatlakozás: 1" NPT)

Kondenzátor áramláskapcsoló (30HXC)
A kondenzátor áramláskapcsoló egy helyszínen telepítendő eszköz.
TELEPÍTÉS
A beérkezett berendezés ellenőrzése
- Vizsgálja meg az egységet, hogy nincs-e rajta sérülés vagy hiányzó alkatrész. Ha sérülést észlel, vagy a szállítmány hiányos, azonnal nyújtson be igényt a szállítmányozó céghez.
- Győződjön meg arról, hogy a beérkezett egység az, amelyet megrendelt. Hasonlítsa össze a adattábla adatait a megrendeléssel.
- Győződjön meg arról, hogy a helyszíni telepítéshez megrendelt összes tartozékot leszállították, és azok hiánytalanok és sérülésmentesek.
- Ne tárolja a berendezéseket olyan helyen, amely ki van téve az időjárásnak, az érzékeny vezérlőmechanizmus és elektronikus eszközök miatt.
A berendezés mozgatása és elhelyezése
Mozgatás
Ne távolítsa el a csúszótalpakat, raklapokat vagy védőcsomagolást, amíg a berendezés a végleges helyzetében nincs. A hűtőt csövekkel vagy görgőkkel mozgassa, vagy emelje fel a megfelelő teherbírású kötelekkel.
(30HXC)
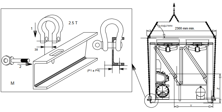
Csak a kijelölt emelési pontokon használjon köteleket, amelyek a berendezésen, a hűtő hőcserélő tetején vannak megjelölve. A hőcserélő aljáról történő rögzítés a berendezés nem biztonságos emelését okozza. Személyi sérülés vagy a berendezés károsodása következhet be. Kövesse a berendezéshez mellékelt hitelesített méretrajzon található rögzítési utasításokat.
Elhelyezés
Mindig olvassa el a "Méretek és hézagok" fejezetet, hogy megbizonyosodjon arról, hogy elegendő hely van minden csatlakozáshoz és szervizművelethez. A súlypont koordinátáihoz, a berendezés rögzítőfuratainak helyzetéhez és a súlyelosztási pontokhoz tekintse meg a berendezéshez mellékelt hitelesített méretrajzot.
Javasoljuk, hogy ezeket a hűtőket pincében vagy földszinten helyezzék el. Ha a földszint felett szeretné elhelyezni, először ellenőrizze, hogy a megengedett padlóterhelés megfelelő-e, és hogy a padló elég erős és vízszintes-e. Szükség esetén erősítse meg és szintezze ki a padlót.
Miután a hűtő a végleges helyére került, távolítsa el a csúszótalpakat és a mozgatást segítő egyéb eszközöket. Vízmérték segítségével szintezze ki a berendezést, és csavarozza a berendezést a padlóhoz vagy a talapzathoz. A berendezések működése károsodhat, ha nincsenek vízszintben és biztonságosan rögzítve a tartóikhoz. Szükség esetén használjon rezgéscsillapító párnákat a berendezés alatt a rezgés leválasztásának elősegítésére.
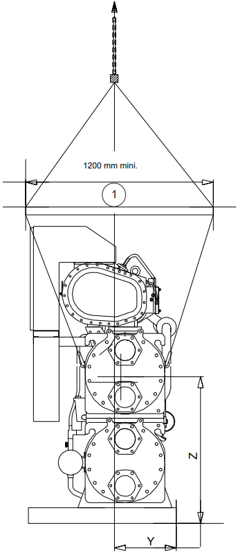
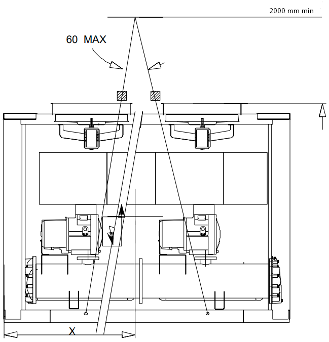
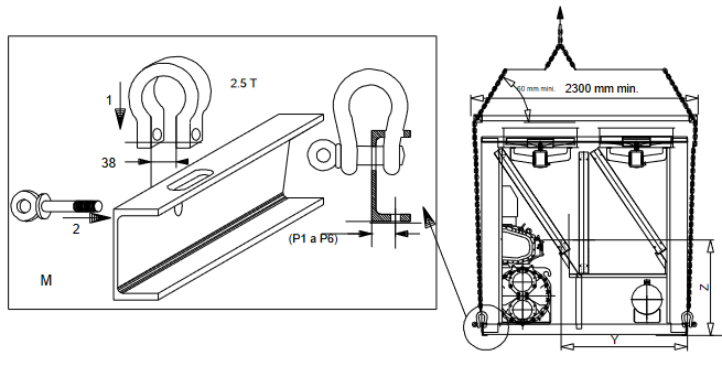
EMELÉSI UTASÍTÁSOK
30HXC 080-190
Ez az ábra csak tájékoztató jellegű. Tekintse meg a "hitelesített rajzokat".

- KIVÉVE 30HXC 190
X mm Y mm Z mm 30HXC080
30HXC090
30HXC1001345 402 903 30HXC110 1368 397 935 30HXC120
30HXC130
30HXC140
30HXC1551731 392 879 30HXC175 1703 386 947 30HXC190 1705 398 955


MEGJEGYZÉS
Az összes emelési és pozicionálási művelet befejezése után ajánlott kijavítani az összes olyan felületet, ahol az emelőszemekről eltávolították a festéket.
30HXC 200-285
Ez az ábra csak tájékoztató jellegű. Tekintse meg a "hitelesített rajzokat".


30HXC 310-375


| X mm | Y mm | Z mm | |
| 30HXC310 | 2195 | 425 | 1085 |
| 30HXC345 | 2195 | 425 | 1085 |
| 30HXC375 | 2205 | 435 | 1025 |
MEGJEGYZÉS
Az összes emelési és pozicionálási művelet befejezése után ajánlott kijavítani az összes olyan felületet, ahol az emelőszemekről eltávolították a festéket.
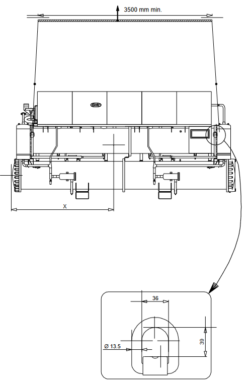
30GX 082-162
Ez az ábra csak tájékoztató jellegű. Tekintse meg a "hitelesített rajzokat".



| X mm | Y mm | Z mm | PTkg | |
| 30GX082 | 1440 | 1460 | 900 | 3115 |
| 30GX092 | 1440 | 1460 | 900 | 3156 |
| 30GX102 | 1440 | 1460 | 900 | 3170 |
| 30GX112 | 1650 | 1460 | 900 | 3574 |
| 30GX122 | 1650 | 1460 | 900 | 3527 |
| 30GX132 | 1650 | 1460 | 900 | 3634 |
| 30GX152 | 2155 | 1430 | 900 | 3938 |
| 30GX162 | 2155 | 1430 | 900 | 3954 |
30GX 182



| X mm | Y mm | Z mm | PTkg | |
| 30GX182 | 3030 | 1370 | 875 | 4853 |
MEGJEGYZÉS
Az összes emelési és pozicionálási művelet befejezése után ajánlott kijavítani az összes olyan felületet, ahol az emelőszemről eltávolították a festéket.
30GX 207-267
Ez az ábra csak tájékoztató jellegű. Tekintse meg a "hitelesített rajzokat".



| X mm | Y mm | Z mm | PTkg | |
| 30GX207 | 2870 | 1440 | 890 | 5536 |
| 30GX227 | 2870 | 1440 | 890 | 5572 |
| 30GX247 | 3320 | 1430 | 927 | 6131 |
| 30GX267 | 3300 | 1420 | 886 | 6363 |
30GX 298-358



| X mm | Y mm | Z mm | PTkg | |
| 30GX298 | 3630 | 1420 | 890 | 7353 |
| 30GX328 | 4360 | 1455 | 920 | 7840 |
| 30GX358 | 4360 | 1445 | 930 | 8045 |
MEGJEGYZÉS
Az összes emelési és pozicionálási művelet befejezése után ajánlott kijavítani az összes olyan felületet, ahol az emelőszemekről eltávolították a festéket.
Csőcsatlakozások
A vízbe- és kimeneti csatlakozások méreteit és helyzetét lásd a hitelesített méretrajzokon. A vízvezetékek nem adhatnak át radiális vagy axiális erőt a hőcserélőknek, és nem közvetíthetnek rezgést a csővezetékbe vagy az épületbe.
A vízellátást elemezni kell, és szükség szerint megfelelő szűrést, kezelést, vezérlőeszközöket, elzáró- és légtelenítő szelepeket és áramköröket kell beépíteni. Konzultáljon víztisztítási szakemberrel vagy a témával foglalkozó megfelelő szakirodalommal.
Üzemeltetési óvintézkedések
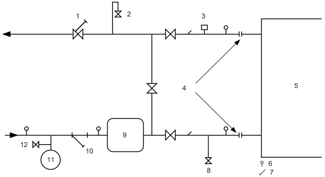
A vízkört úgy kell megtervezni, hogy a lehető legkevesebb könyök és vízszintes csőszakasz legyen különböző szinteken. A következő alapvető ellenőrzéseket kell elvégezni (lásd az alábbi tipikus hidraulikus áramkör illusztrációját is).
- Jegyezze fel a hőcserélők vízbe- és kimeneteit.
- Szereljen be kézi vagy automatikus légtelenítő szelepeket a vízkör minden magas pontjára.
- Használjon tágulási tartályt vagy tágulási/nyomáscsökkentő szelepet a rendszer nyomásának fenntartásához.
- Szereljen be vízhőmérőket és nyomásmérőket az elpárologtatóhoz közeli be- és kilépő vízcsatlakozásokba.
- Szereljen be leeresztő szelepeket minden alacsony pontra, hogy a teljes áramkör leereszthető legyen. A hűtő üzemeltetése előtt csatlakoztasson egy elzáró szelepet a leeresztő vezetékbe.
- Szereljen be elzáró szelepeket és nyomásmérőket az elpárologtatóhoz közel, a be- és kilépő vízvezetékekbe.
- Szereljen be hűtőfolyadék-áramláskapcsolót.
- Használjon rugalmas csatlakozásokat a rezgés csővezetékbe való átvitelének csökkentésére.
- Szigetelje le az összes csővezetéket a szivárgásvizsgálat után, mind a hőveszteség csökkentése, mind a páralecsapódás megakadályozása érdekében.
- Fedje le a szigetelést párazáró réteggel.
Elpárologtató és kondenzátor csatlakozások
Az elpárologtató és a kondenzátor többutas csőköteges típusú, eltávolítható vízkamrákkal a csövek tisztításának megkönnyítése érdekében.
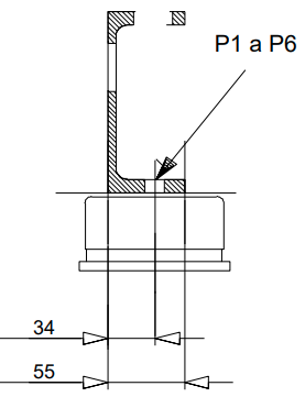
A vízcsatlakozások elkészítése előtt húzza meg a csavarokat mindkét fejen a bemutatott módszert követve az alacsonyabb nyomatékkal. Húzza meg a párokat és a sorrendet a csavar méretének megfelelően (lásd a táblázatot) a megadott tartomány alacsonyabb végén lévő nyomatékértékkel.
Távolítsa el a gyárilag szállított lapos karimát a vízkamrából, mielőtt a csöveket a karimához hegesztené. A karima eltávolításának elmulasztása károsíthatja az érzékelőket és a szigetelést.
MEGJEGYZÉS
Javasoljuk a rendszer leeresztését és a csővezeték leválasztását annak biztosítása érdekében, hogy a csővezetékhez csatlakoztatott fejek csavarjai megfelelően és egyenletesen legyenek meghúzva.
Fagyvédelem
Elpárologtató és vízhűtéses kondenzátor védelme
Ha a hűtő vagy a vízvezeték olyan területen van, ahol a környezeti hőmérséklet 0 °C alá eshet, ajánlott fagyálló oldatot adni a berendezés és a vízvezeték védelmére a legalacsonyabb hőmérsékletnél 8 K-val alacsonyabb hőmérsékletig. Csak hőcserélőkhöz jóváhagyott fagyálló oldatokat használjon. Ha a rendszer nincs fagyálló oldattal védve, és nem fogják használni a fagyos időjárási körülmények között, a hűtő és a kültéri csővezeték leeresztése kötelező. A fagyás okozta károkra a garancia nem vonatkozik.
Vízkamra meghúzási sorrend

Jelmagyarázat
- 1. sorrend: 1 2 3 4
2. sorrend: 5 6 7 8
3. sorrend: 9 10 11 12 - Meghúzási nyomaték
Csavar mérete M16 - 171 - 210 Nm
Tipikus hidraulikus áramkör vázlata

Jelmagyarázat
- Szabályozó szelep
- Légtelenítő
- Áramláskapcsoló
- Rugalmas csatlakozás
- Hőcserélő
- Nyomásmérő csap
- Termosztát hüvely
- Lefolyó
- Puffertartály
- Szűrő
- Tágulási tartály
- Töltőszelep
ELEKTROMOS JELLEMZŐK
- A 30HXC 080-190 és a 30GX 082-182 típusok csak egyetlen főkapcsolóval/leválasztó kapcsolóval rendelkeznek.
- A 30HXC 200-375 és a 30GX 207-358 típusok két főkapcsolóval/leválasztó kapcsolóval rendelkeznek.
- A vezérlődoboz az alábbiakat tartalmazza alapfelszereltségként:
- Indítók és motorvédő eszközök minden kompresszorhoz és ventilátorhoz
- Vezérlőelemek
- Helyszíni csatlakozások:
Minden hálózati csatlakozást és elektromos szerelést a helyszínre vonatkozó irányelveknek megfelelően kell elvégezni. - A 30HXC és 30GX típusokat úgy tervezték, hogy megkönnyítsék az ezen irányelveknek való megfelelést. A 30HXC és 30GX elektromos berendezéseinek tervezése figyelembe veszi az EN 60204-1 európai szabványt (gépek biztonsága - gépek elektromos berendezései - 1. rész: általános szabályok).
Az EN 60204-1 szabvány jó eszköz a gépekről szóló irányelv § 1.5.1 követelményeinek való megfeleléshez. Az IEC 364 normatív ajánlást általában a telepítési szabályzat követelményeinek megfelelőnek ismerik el.
Az EN 60204-1 szabvány B. melléklete használható a gépek működési elektromos jellemzőinek leírására.
30HXC
- A standard 30HXC üzemi körülményei az alábbiak szerint alakulnak:
- Környezeti feltételek(1). A környezeti besorolást az IEC 364 szabvány § 3 írja le:
- Környezeti hőmérséklet tartomány: + 6°C és + 40°C között, AA4 besorolás
- Páratartalom tartomány (nem kondenzálódó)
50% rh 40°C-on
90% rh 20°C-on - Tengerszint feletti magasság - 2000 m(1)
- Beltéri telepítéshez
- Víz jelenléte: AD2 besorolás(1) (vízcseppek lehetősége)
- Szilárd anyagok jelenléte: AE2 besorolás(1) (elhanyagolható mennyiségű részecskék jelenléte)
- Korrozív anyagok és szennyeződések jelenléte, AF1 besorolás (elhanyagolható)
- Rezgés, ütés: AG2, AH2 besorolás A személyzet hozzáértése: BA4 besorolás(1) (az IEC 364 szabványnak megfelelően képzett személyzet).
- Környezeti feltételek(1). A környezeti besorolást az IEC 364 szabvány § 3 írja le:
(1) Az ehhez a besoroláshoz szükséges védelmi szabvány IP21B (az IEC 529 referencia dokumentumnak megfelelően). Minden 30HXC IP23C védelmi szabvánnyal rendelkezik, ezért megfelel ennek a védelmi követelménynek.
30GX
- A 30GX üzemi körülményei az alábbiak szerint alakulnak:
- Környezeti feltételek(2). A környezeti besorolást az EN 60721 szabvány írja le:
- Kültéri telepítéshez(2)
- Környezeti hőmérséklet tartomány: - 18°C és + 46°C között, 4K3 besorolás(2)
- Tengerszint feletti magasság 2000 m(2)
- Szilárd anyagok jelenléte: 4S2 besorolás (elhanyagolható mennyiségű részecskék jelenléte)
- Korrozív anyagok és szennyeződések jelenléte, 4C2 besorolás (elhanyagolható)
- Rezgés, ütés: 4M2 besorolás
- Környezeti feltételek(2). A környezeti besorolást az EN 60721 szabvány írja le:
A személyzet hozzáértése: BA4 besorolás(2) (az IEC 364 szabványnak megfelelően képzett személyzet).
(2) Az ehhez a besoroláshoz szükséges védelmi szabvány IP43BW (az IEC 529 referencia dokumentumnak megfelelően). Minden 30GX IP45CW védelmi szabvánnyal rendelkezik, ezért megfelel ennek a védelmi követelménynek.
30HXC/GX
- A tápfeszültség frekvenciájának ingadozása: ± 2 Hz
- A tápvezetékek túláramvédelme nem tartozik a készülékhez.
- A gyárilag beépített főkapcsoló/leválasztó kapcsoló "a" típusú leválasztó. (EN60204-1 § 5.3.2).
MEGJEGYZÉS: Ha egy telepítés bizonyos szempontjai a fent felsoroltaktól eltérő jellemzőket igényelnek (vagy az itt nem említett jellemzőket), lépjen kapcsolatba a Carrier képviselőjével.
Tápellátás
A tápellátásnak meg kell felelnie a hűtőberendezés adattábláján szereplő specifikációknak. A tápfeszültségnek az elektromos adatok táblázatában megadott tartományon belül kell lennie.
A csatlakozásokhoz lásd a kapcsolási rajzokat.
A hűtőberendezés nem megfelelő tápfeszültséggel vagy túlzott fázisaszimmetriával történő üzemeltetése visszaélésnek minősül, amely érvényteleníti a Carrier garanciát. Ha a fázisaszimmetria meghaladja a feszültség esetében a 2%-ot, vagy az áramerősség esetében a 10%-ot, azonnal vegye fel a kapcsolatot a helyi áramszolgáltatóval, és gondoskodjon arról, hogy a hűtőberendezést ne kapcsolják be, amíg a korrekciós intézkedéseket meg nem tették.
Feszültség fázisaszimmetria (%):
100 x max. eltérés az átlagfeszültségtől
Átlagfeszültség
Példa:
Egy 400 V - 3 fázisú - 50 Hz-es tápellátáson a következő egyedi fázisfeszültségeket mérték:
AB = 406 V; BC = 399; AC = 394 V
| Átlagfeszültség | = (406 + 399 + 394)/3 = 1199/3 |
| = 399.7 mondjuk 400 V |
Számítsa ki a maximális eltérést a 400 V-os átlagtól:
(AB) = 406 - 400 = 6
(BC) = 400 - 399 = 1
(CA) = 400 - 394 = 6

A maximális eltérés az átlagtól 6 V. A legnagyobb százalékos eltérés:
100 x 6/400 = 1.5 %
Ez kisebb, mint a megengedett 2%, ezért elfogadható.
AJÁNLOTT VEZETÉK-KERESZTMETSZETEK
A vezetékek méretezése a szerelő felelőssége, és az adott telepítési hely jellemzőitől és előírásaitól függ. A következők csak iránymutatásként szolgálnak, és semmilyen módon nem teszik a Carriert felelőssé. A vezetékek méretezésének befejezése után a szerelőnek a hitelesített méretrajz segítségével biztosítania kell a könnyű csatlakoztatást, és meg kell határoznia a helyszínen szükséges módosításokat.
Az általános leválasztó/szigetelő kapcsolóhoz a helyszínen biztosított tápkábelekhez szabványként biztosított csatlakozások a lenti táblázatban felsorolt vezetékek számához és típusához vannak tervezve.
A számítások a gép maximális áramfelvételén alapulnak (lásd az elektromos adatokat tartalmazó táblázatokat).
A tervezéshez a következő szabványosított telepítési módszereket alkalmazzuk az IEC 364 52C táblázatának megfelelően:
- Épületen belül telepített 30HX egységekhez: 13. sz.: perforált vízszintes kábelcsatorna és 41. sz.: zárt csatorna.
- Épületen kívül telepített 30GX egységekhez: 17. sz.: függesztett légvezetékek és 61. sz.: földbe fektetett csatorna 20%-os teljesítménycsökkenési tényezővel.
A számítás PVC vagy XLPE szigetelésű, réz vagy alumínium magos kábeleken alapul. A maximális hőmérséklet 40 °C a 30HX egységekhez és 46 °C a 30GX egységekhez.
A megadott vezetékhossz korlátozza a feszültségesést < 5%-ra.
| Unit (Egység) | Min. (mm2) by phase (fázisonként) | Wire type (vezeték típusa) | L (m) | Max. (mm2) by phase (fázisonként) | Wire type (vezeték típusa) | L (m) |
| 30HX 080 | 1 x 35 | XLPE Cu | 140 | 1 x 120 | PVC Al | 260 |
| 30HX 090 | 1 x 50 | XLPE Cu | 160 | 1 x 120 | PVC Al | 260 |
| 30HX 100 | 1 x 50 | XLPE Cu | 160 | 1 x 95 | XLPE Al | 195 |
| 30HX 110 | 1 x 70 | XLPE Cu | 170 | 1 x 120 | XLPE Al | 205 |
| 30HX 120/130 | 1 x 70 | XLPE Cu | 170 | 1 x 150 | XLPE Al | 210 |
| 30HX 140 | 1 x 95 | XLPE Cu | 180 | 1 x 185 | XLPE Al | 220 |
| 30HX 155 | 1 x 95 | XLPE Cu | 180 | 1 x 240 | XLPE Al | 225 |
| 30HX 175 | 1 x 120 | XLPE Cu | 185 | 1 x 240 | XLPE Al | 225 |
| 30HX 190 | 1 x150 | XLPE Cu | 190 | 2 x 95 | XLPE Al | 195 |
| 30HX 200 ckt A | 1 x 70 | XLPE Cu | 170 | 2 x120 | PVC Al | 325 |
| 30HX 230 ckt A | 1 x 95 | XLPE Cu | 180 | 2 x 120 | PVC Al | 325 |
| 30HX 260 ckt A | 1 x 120 | XLPE Cu | 185 | 1 x 240 | XLPE Al | 225 |
| 30HX 285 ckt A | 1 x 150 | XLPE Cu | 190 | 2 x 150 | XLPE Al | 265 |
| 30HX 200 ckt B | 1 x 35 | XLPE Cu | 140 | 1 x 95 | PVC Al | 250 |
| 30HX 230 ckt B | 1 x 35 | XLPE Cu | 140 | 1 x 120 | PVC Al | 260 |
| 30HX 260 ckt B | 1 x 35 | XLPE Cu | 140 | 1 x 120 | PVC Al | 260 |
| 30HX 285 ckt B | 1 x 50 | XLPE Cu | 160 | 2 x 70 | PVC Al | 285 |
| 30HX 310 ckt A & B | 1 x 95 | XLPE Cu | 180 | 1 x 240 | XLPE Al | 225 |
| 30HX 345 ckt A & B | 1 x 120 | XLPE Cu | 185 | 1 x 240 | XLPE Al | 225 |
| 30HX 375 ckt A & B | 1 x 150 | XLPE Cu | 190 | 2 x 150 | XLPE Al | 265 |
| 30GX 082 | 1 x 95 | XLPE Cu | 190 | 2 x 185 | PVC Al | 420 |
| 30GX 092 | 1 x 120 | XLPE Cu | 195 | 2 x 185 | PVC Al | 420 |
| 30GX 102 | 1 x 120 | XLPE Cu | 195 | 2 x 240 | PVC Al | 450 |
| 30GX 112 | 1 x 150 | XLPE Cu | 200 | 2 x 150 | XLPE Al | 300 |
| 30GX 122 | 1 x 185 | XLPE Cu | 205 | 2 x 185 | XLPE Al | 315 |
| 30GX 132 | 1 x 185 | XLPE Cu | 205 | 2 x 240 | XLPE Al | 330 |
| 30GX 152 | 1 x 240 | XLPE Cu | 205 | 3x 185 | XLPE CU | 430 |
| 30GX 162 | 2 x 95 | XLPE Cu | 190 | 3x 240 | XLPE CU | 440 |
| 30GX 182 | 2 x 120 | XLPE Cu | 200 | 3x 240 | XLPE CU | 440 |
| 30GX 207 ckt A | 1 x 185 | XLPE Cu | 205 | 3x 185 | XLPE Al | 445 |
| 30GX 227 ckt A | 1 x 240 | XLPE Cu | 205 | 3x 240 | XLPE Al | 470 |
| 30GX 247/298/328 ckt A | 2 x 120 | XLPE Cu | 225 | 3x 185 | XLPE CU | 490 |
| 30HX 267/358 ckt A | 2 x 150 | XLPE Cu | 230 | 3x 240 | XLPE CU | 505 |
| 30GX 207/227/247 ckt B | 1 x 95 | XLPE Cu | 190 | 2 x 240 | PVC Al | 560 |
| 30HX 267 ckt B | 1 x 120 | XLPE Cu | 200 | 2 x 185 | XLPE AL | 395 |
| 30GX 298 ckt B | 1 x 185 | XLPE Cu | 205 | 3x 240 | XLPE AL | 470 |
| 30GX 328 ckt B | 2 x 120 | XLPE Cu | 225 | 3x 185 | XLPE CU | 490 |
| 30GX 358 ckt B | 2 x 150 | XLPE Cu | 230 | 3x 240 | XLPE CU | 505 |
A fő tápkábelek (L1 - L2 - L3) csatlakoztatása előtt a sorkapocsra, feltétlenül ellenőrizni kell a 3 fázis helyes sorrendjét, mielőtt továbblépne a sorkapocsra vagy a fő leválasztó/szigetelő kapcsolóra történő csatlakoztatással.
Terepi vezérlőpanel bekötése
A következő funkciók terepi vezérlőpanel bekötéséhez lásd a Controls IOM-et és az egységhez mellékelt tanúsított huzalozási rajzot:
- Párologtató szivattyú reteszelése (kötelező)
- Távoli be/ki kapcsoló
- Kondenzátor áramláskapcsoló (helyszíni ellátás, csak 30HXC)
- Távoli fűtés/hűtés kapcsoló
- Külső igénykorlátozó kapcsoló 1
- Távoli kettős beállítási pont
- Áramkör szerinti riasztásjelentés
- Párologtató szivattyú vezérlése
- Kondenzátor szivattyú vezérlése (csak 30HXC)
- Távoli beállítási pont visszaállítása vagy külső levegő hőmérséklet érzékelő visszaállítása (0-10 V)
Ajánlott vezetékszakaszok magas kondenzációs hőmérsékletű egységekhez (400 V - 3 fázis - 50 Hz)
| Egység, 150 + 150A opciók 400 V - 3 fázis - 50 Hz | Min. (mm2) fázisonként | Vezetéktípus | L (m) | Max. (mm2) fázisonként | Vezetéktípus | L (m) |
| 30HXC 080 OPT. 150 | 1 x 50 | XLPE Cu | 150 | 2 x 70 | PVC Al | 230 |
| 30HXC 090 OPT. 150 | 1 x 70 | XLPE Cu | 160 | 2 x 95 | PVC Al | 260 |
| 30HXC 100 OPT. 150 | 1 x 70 | XLPE Cu | 160 | 2 x 95 | PVC Al | 250 |
| 30HXC 110 OPT. 150 | 1 x 95 | XLPE Cu | 170 | 2 x 120 | PVC Al | 265 |
| 30HXC 120 OPT. 150 | 1 x 120 | XLPE Cu | 180 | 2 x 120 | XLPE Al | 205 |
| 30HXC 130 OPT. 150 | 1 x 120 | XLPE Cu | 160 | 2 x 120 | XLPE Al | 210 |
| 30HXC 140 OPT. 150 | 1 x 150 | XLPE Cu | 175 | 2 x 120 | XLPE Al | 205 |
| 30HXC 155 OPT. 150 | 1 x 185 | XLPE Cu | 185 | 2 x 150 | XLPE Al | 215 |
| 30HXC 175 OPT. 150 | 1 x 240 | XLPE Cu | 185 | 2 x 150 | XLPE Al | 210 |
| 30HXC 190 OPT. 150 | 2 x 95 | XLPE Cu | 175 | 2 x 240 | XLPE Al | 220 |
| 30HXC 200 OPT. 150 circ. A | 1 x 120 | XLPE Cu | 170 | 2 x 150 | XLPE Al | 270 |
| 30HXC 230 OPT. 150 circ. A | 1 x 150 | XLPE Cu | 180 | 2 x 185 | XLPE Al | 270 |
| 30HXC 260 OPT. 150 circ. A | 1 x 185 | XLPE Cu | 180 | 2 x 240 | XLPE Al | 295 |
| 30HXC 285 OPT. 150 circ. A | 1 x 240 | XLPE Cu | 170 | 2 x 185 | XLPE Cu | 265 |
| 30HXC 310 OPT. 150 circ. A | 1 x 185 | XLPE Cu | 180 | 2 x 240 | XLPE Al | 300 |
| 30HXC 345 OPT. 150 circ. A | 1 x 185 | XLPE Cu | 170 | 2 x 240 | XLPE Al | 280 |
| 30HXC 375 OPT. 150 circ. A | 1 x 240 | XLPE Cu | 170 | 2 x 185 | XLPE Cu | 265 |
| 30HXC 200 OPT. 150 circ. B | 1 x 35 | XLPE Cu | 125 | 2 x 95 | PVC Al | 320 |
| 30HXC 230 OPT. 150 circ. B | 1 x 50 | XLPE Cu | 140 | 2 x 95 | PVC Al | 310 |
| 30HXC 260 OPT. 150 circ. B | 1 x 50 | XLPE Cu | 140 | 2 x 95 | PVC Al | 310 |
| 30HXC 285 OPT. 150 circ. B | 1 x 70 | XLPE Cu | 160 | 2 x 120 | PVC Al | 325 |
| 30HXC 310 OPT. 150 circ. B | 1 x 150 | XLPE Cu | 180 | 2 x 185 | XLPE Al | 275 |
| 30HXC 345 OPT. 150 circ. B | 1 x 185 | XLPE Cu | 185 | 2 x 240 | XLPE Al | 305 |
| 30HXC 375 OPT. 150 circ. B | 1 x 185 | XLPE Cu | 160 | 2 x 240 | XLPE Al | 280 |
FŐBB RENDSZERKOMPONENSEK ÉS MŰKÖDÉSI ADATOK
Fogaskerekes ikercsavar kompresszor
- A 30HXC és 30GX egységek 06N fogaskerekes ikercsavar kompresszorokat használnak
- A 06NA típusúakat a 30GX (léghűtéses kondenzációs alkalmazás) használja
- A 06NW típusúakat a 30HXC (vízhűtéses kondenzációs alkalmazás) használja
- A névleges kapacitás 39 és 80 tonna között van. A 30HXC és 30GX egység méretétől függően gazdaságos vagy nem gazdaságos modelleket használnak.
Olajszűrő
A 06N csavarkompresszor olajszűrője a kompresszorházba van beépítve. Ez a szűrő a helyszínen cserélhető.
Hűtőközeg
A 06N csavarkompresszort kifejezetten csak R134 a rendszerben való használatra tervezték.
Kenőanyag
A 06N csavarkompresszor a következő kenőanyaggal való használatra engedélyezett.
CARRIER ANYAGSPECIFIKÁCIÓ PP 47-32
Olajellátó mágnesszelep
A kompresszoron alapfelszereltség az olajellátó mágnesszelep, amely leválasztja a kompresszort az olajáramlásról, amikor a kompresszor nem működik.
Az olajmágnesszelep a helyszínen cserélhető.
Szívó- és ekonomizátor szűrők
A kompresszor megbízhatóságának növelése érdekében a kompresszor szívó- és ekonomizátor bemeneteibe alapfelszereltségként szűrőt építettek be.
Tehermentesítő rendszer
A 06N csavarkompresszor tehermentesítő rendszerrel rendelkezik, amely minden kompresszoron alapfelszereltség. Ez a tehermentesítő rendszer két lépésből áll, amelyek csökkentik a kompresszor kapacitását azáltal, hogy a részlegesen összenyomott gázt visszairányítják a szívóoldalra.
Párologtató
A 30HXC és 30GX hűtőközeg-hűtők elárasztott párologtatót használnak. A víz a csövekben kering, a hűtőközeg pedig kívül, a köpenyben van. Egy edény szolgál mindkét hűtőközegkör számára. Van egy középső csőlemez, amely elválasztja a két hűtőközegkört. A csövek 3/4"-os átmérőjű rézből készültek, belül és kívül is megnövelt felülettel. Csak egy vízkör van, és a hűtő méretétől függően két vagy három vízjárat lehet. A hűtőfolyadék szintérzékelője optimalizált áramlásszabályozást biztosít.
A hűtő tetején található a két szívócső, egy-egy az egyes körökben. Mindegyikhez hegesztett karima tartozik, és a kompresszor a karimára van felszerelve.
Kondenzátor és olajleválasztó (30HXC)
A 30HXC hűtőközeg-hűtő egy olyan edényt használ, amely kombinált kondenzátor és olajleválasztó. A hűtő alatt van elhelyezve. A kilépő gáz elhagyja a kompresszort, és egy külső hangtompítón keresztül az olajleválasztóba áramlik, amely az edény felső része. Belép a leválasztó tetejébe, ahol az olaj eltávolításra kerül, majd az edény alsó részébe áramlik, ahol a gáz lecsapódik és lehűl. Egy edény szolgál mindkét hűtőközegkör számára. Van egy középső csőlemez, amely elválasztja a két hűtőközegkört. A csövek 3/4"-os vagy 1"-os átmérőjű rézből készültek, belül és kívül is megnövelt felülettel. Csak egy vízkör van, két vízjárattal.
Olajleválasztó (30GX)
A léghűtéses egységekben az olajleválasztó egy nyomástartó edény, amely a külső függőleges kondenzátor tekercsek alatt van elhelyezve. A kilépő gáz a leválasztó tetején lép be, ahol az olaj nagy része leválik és lefolyik az aljára. A gáz ezután egy dróthálós szűrőn áramlik keresztül, ahol a maradék olaj leválik és lefolyik az aljára.
Elektronikus expanziós eszköz (EXD)
A mikroprocesszor az EXD-t az EXV vezérlőmodulon keresztül vezérli. Az EXD vagy EXV, vagy Economizer lesz. Mindkét eszköz belsejében egy lineáris aktuátoros léptetőmotor található. A nagynyomású folyékony hűtőközeg az alján keresztül lép be a szelepbe. A nyílás szerelvény belsejében kalibrált nyílások találhatók. Ahogy a hűtőközeg áthalad a nyíláson, a nyomás leesik, és a hűtőközeg 2 fázisú állapotba (folyadék és gőz) kerül. A hűtőközeg áramlásának szabályozásához különböző üzemi körülmények között a hüvely fel és le mozog a nyíláson, ezáltal megváltoztatva a tágulási eszköz tényleges áramlási területét. A hüvelyt egy lineáris léptetőmotor mozgatja. A léptetőmotor lépésekben mozog, és közvetlenül a processzor modul vezérli. Ahogy a léptetőmotor forog, a mozgás a vezetőcsavarral lineáris mozgássá alakul át. A léptetőmotoron és a vezetőcsavarokon keresztül 1500 diszkrét mozgási lépés érhető el. A nagy számú lépés és a hosszú löket nagyon pontos hűtőközeg áramlás szabályozást eredményez. Minden áramkörhöz egy folyadékszint-érzékelő van függőlegesen a hűtő köpenyének tetejébe szerelve. A szintérzékelő egy kis elektromos ellenállású fűtőelemből és három sorba kötött termisztorból áll, amelyek a kút testén belül különböző magasságokban helyezkednek el. A fűtőelem úgy van kialakítva, hogy a termisztorok száraz levegőben körülbelül 93,3 °C-ot mutassanak. Ahogy a hűtőközeg szintje emelkedik a hűtőben, a legközelebbi termisztor(ok) ellenállása nagymértékben megváltozik. Ez a nagy ellenálláskülönbség lehetővé teszi a vezérlés számára, hogy pontosan fenntartsa a meghatározott szintet. A szintérzékelő figyeli a hűtőközeg folyadékszintjét a hűtőben, és elküldi ezt az információt a PSIO-1-nek. A kezdeti indításkor az EXV pozíciója nulla. Ezt követően a mikroprocesszor pontosan nyomon követi a szelep helyzetét, hogy ezt az információt felhasználhassa a többi vezérlési funkció bemeneteként. Ezt úgy teszi, hogy indításkor inicializálja az EXV-ket. A processzor elegendő záró impulzust küld a szelepnek ahhoz, hogy teljesen nyitottból teljesen zárt helyzetbe mozgassa, majd nullára állítja a pozíciószámlálót. Ettől a ponttól kezdve az inicializálásig a processzor megszámolja az egyes szelepekhez küldött nyitott és zárt lépések teljes számát.
Ekonomizátor
Az ekonomizátorok a 30HXC 190, 285 és 375, valamint a 30GX 182, 267 és 358 típusokra vannak felszerelve.
Az ekonomizátor javítja a hűtő kapacitását és hatékonyságát, valamint biztosítja a kompresszor motor hűtését. Az ekonomizátor belsejében egy lineáris EXV léptetőmotor és egy úszószelep is található. Az EXV-t a PIC vezérli, hogy fenntartsa a kívánt folyadékszintet a hűtőben (ahogy a nem ekonomizált hűtőknél is történik). Az úszószelep fenntartja a folyadékszintet az ekonomizátor alján. A folyékony hűtőközeget a kondenzátorból az ekonomizátor aljára szállítják. Ahogy a hűtőközeg áthalad az EXV-n, a nyomása egy köztes szintre, körülbelül 500 kPa-ra csökken. Ezt a nyomást tartják fenn az ekonomizátor köpenyében. Ezután a hűtőközeg áthalad az úszószelepen, a nyomása tovább csökken, valamivel a hűtőben lévő nyomás fölé. A teljesítmény növekedése akkor valósul meg, amikor az EXV-n áthaladó hűtőközeg egy része gőzzé alakul, tovább lehűtve az ekonomizátor alján tartott folyadékot. Ez a további lehűtés további kapacitást biztosít. Mivel ehhez nincs szükség további energiára, a gép hatékonysága is javul. A gőzzé alakuló gőz felszáll az ekonomizátorba, ahol a kompresszorhoz kerül, és szükség szerint a motor hűtésére használják. Miután áthaladt a motor tekercsein, a hűtőközeg a kompressziós ciklus egy köztes pontján lép be újra a ciklusba.
Olajszivattyúk
A 30GX/HXC csavarkompresszoros hűtőközeg-hűtők áramkörönként egy külsőleg felszerelt előkenő olajszivattyút használnak. Ez a szivattyú az indítási sorrend részeként működik.
FIGYELEM:
A tekercs üzemi hőmérséklete elérheti a 80 °C-ot. Bizonyos átmeneti körülmények között (különösen alacsony külső hőmérsékleten vagy alacsony kondenzátor kör hőmérsékleten történő indításkor) az olajszivattyú újra aktiválható.
A 30GX egységeken a szivattyúk az alapkeretekre vannak felszerelve, az egység olajleválasztó oldalán. A 30HXC egységek szivattyúi a kondenzátorok konzoljára vannak felszerelve. Amikor egy áramkört el kell indítani, a vezérlők először az olajszivattyút kapcsolják be, hogy a kompresszor megfelelő kenéssel induljon el. Ha a szivattyú elegendő olajnyomást épített fel, a kompresszor elindulhat. A kompresszor elindulása után az olajszivattyú kikapcsol. Ha a szivattyú nem tudott elegendő olajnyomást felépíteni, a vezérlés riasztást generál.
Motorhűtő szelepek
A kompresszor motor tekercs hőmérsékletét az optimális beállítási pontra szabályozzák. A vezérlés ezt úgy éri el, hogy a motorhűtő mágnesszelepet ciklikusan működteti, hogy szükség szerint folyékony hűtőközeg áramolhasson a motor tekercsein. Az ekonomizátorral felszerelt egységeken a gőz az ekonomizátor tetejéről távozik, és folyamatosan a motor tekercseihez áramlik. A motor hűtésére használt összes hűtőközeg a kompressziós ciklus közepén található porton keresztül lép be újra a rotorokba, és a kilépő nyomásra van összenyomva.
Érzékelők
Az egységek termisztorokat (beleértve a két motorhőmérséklet-termisztort is), két szinttermisztort és nyomástávadókat használnak a rendszer működésének figyelésére és vezérlésére.
Termisztorok
Párologtatóból kilépő folyadék
Ez a hőmérséklet a párologtatóból kilépő folyadék (víz vagy sóoldat) hőmérsékletének mérésére szolgál. A hőmérséklet a kilépő folyadék hőmérsékletének szabályozására és a hűtő fagyás elleni védelmére szolgál. A párologtató folyadék fúvókájában található.
Párologtatóba belépő folyadék
Ez az érzékelő a párologtatóba belépő folyadék hőmérsékletének mérésére szolgál. A belépő párologtató fúvókájában található. A kilépő folyadék hőmérsékletének automatikus kompenzálására szolgál a belépő folyadék kompenzációjával.
Kilépő gáz hőmérséklete (A és B áramkör)
Ez az érzékelő a kilépő gáz hőmérsékletének mérésére és a kilépő hőmérséklet túlhevítésének szabályozására szolgál. Az egyes áramkörök kilépő csövén (30HXC) vagy az olajleválasztó tetején (30GX) található.
FIGYELEM: Nincs termosztát hüvely.
Motor hőmérséklete
A kompresszorvédelmi modul (CPM) figyeli a motor hőmérsékletét. A termisztor csatlakozók a kompresszor csatlakozódobozában találhatók.
Párologtató folyadékszintje (A és B áramkör)
A párologtató folyadékszint termisztora a párologtató optimalizált áramlásszabályozását biztosítja. A párologtató tetejébe van beépítve.
Kondenzátorba belépő folyadék (30HXC)
Ez az érzékelő a vízhűtéses kondenzátorokba belépő folyadék hőmérsékletének mérésére szolgál. A kondenzátorokba belépő közös folyadékvezetékben található (helyszínen telepítve). A hőszivattyúkon a kapacitásszabályozó rutin használja. A vízhűtéses kondenzátorokon csak a kondenzátor folyadék hőmérsékletének figyelésére szolgál.
Kondenzátorból kilépő folyadék (opcionális a 30HXC-n)
Ez az érzékelő a vízhűtéses kondenzátorokból kilépő folyadék hőmérsékletének mérésére szolgál. A kondenzátorokból kilépő közös folyadékvezetékben található (helyszínen telepítve). A hőszivattyúkon a kapacitásszabályozó rutin használja. A vízhűtéses kondenzátorokon csak a kondenzátor folyadék hőmérsékletének figyelésére szolgál.
30GX ventilátor elrendezés

GX082/102

GX112/132

GX152/162

GX182

GX207/227

GX247/267

GX298

GX328/358
KARBANTARTÁS
Hűtőközeg töltés - töltés hozzáadása
Ezeket az egységeket kizárólag R-134a hűtőközeggel való használatra tervezték.
NE HASZNÁLJON MÁS hűtőközeget ezekben az egységekben.
Töltés hozzáadásakor vagy eltávolításakor mindig keringessen vizet a kondenzátoron (HX) és a hűtőn keresztül a fagyás elkerülése érdekében. A fagyás okozta károk helytelen használatnak minősülnek, és érvényteleníthetik a Carrier garanciát.
NE TÚLTÖLTSE a rendszert. A túltöltés magasabb nyomást eredményez nagyobb hűtőfolyadék-fogyasztással, lehetséges kompresszor károsodással és nagyobb energiafogyasztással.
Alacsony töltés jelzése egy 30HXC rendszeren
MEGJEGYZÉS
A 30HXC alacsony hűtőközeg töltöttségének ellenőrzéséhez több tényezőt is figyelembe kell venni. A villogó folyadékvezeték kémlelőüveg nem feltétlenül jelzi a nem megfelelő töltést. Számos olyan rendszerállapot létezik, ahol a kémlelőüveg normál működés közben villog. A 30HXC mérőeszközt úgy tervezték, hogy ezekben a körülmények között megfelelően működjön.
- Győződjön meg arról, hogy az áramkör teljes terhelés mellett fut. Annak ellenőrzéséhez, hogy az A áramkör teljesen terhelt-e, kövesse a Kezelési kézikönyvben leírt eljárást.
- Szükséges lehet a Kézi vezérlés funkció használata az áramkör teljes terhelési állapotba kényszerítéséhez. Ha ez a helyzet, olvassa el a Kézi vezérlés funkció használatára vonatkozó utasításokat a Kezelési kézikönyvben.
- Ha az áramkör teljes terhelés mellett fut, ellenőrizze, hogy a hűtőből kilépő folyadék hőmérséklete 6 °C ± 1,5 tartományban van-e.
- Ebben az állapotban figyelje meg a hűtőközeget a folyadékvezeték kémlelőüvegében. Ha a kémlelőüveg tiszta, és nincsenek villogás jelei, akkor az áramkör megfelelően fel van töltve. Hagyja ki a fennmaradó lépéseket.
- Ha a hűtőközeg villogni látszik, akkor az áramkör valószínűleg alacsony töltöttségű. Ellenőrizze ezt az EXV pozíciójának ellenőrzésével (lásd a Controls IOM-et).
- Ha az EXD nyitási pozíciója nagyobb, mint 60%, és ha a folyadékvezeték kémlelőüvege villog, akkor az áramkör alacsony töltöttségű. Kövesse a töltés hozzáadására vonatkozó eljárást.
Töltés hozzáadása a 30HXC rendszerekhez
- Győződjön meg arról, hogy az egység teljes terhelés mellett fut, és hogy a hűtőből kilépő folyadék hőmérséklete 5,6 7,8 °C tartományban van.
- Ezen üzemi körülmények között ellenőrizze a folyadékvezeték kémlelőüvegét. Ha a kémlelőüveg tiszta, akkor az egység elegendő töltéssel rendelkezik. Ha a kémlelőüveg villog, akkor ellenőrizze az EXD Percent Open értéket. Ha ez nagyobb, mint 60%, akkor kezdje el a töltés hozzáadását.
MEGJEGYZÉS
A fent említettől eltérő üzemi körülmények között villogó folyadékvezeték kémlelőüveg nem feltétlenül jelzi az alacsony hűtőközeg töltöttséget.
- Adjon hozzá 2,5 kg folyékony töltést az elpárologtatóba az elpárologtató tetején található töltőszelepen keresztül.
- Figyelje meg az EXD Percent Open értéket. Az EXD-nek a töltés hozzáadásával egyidejűleg el kell kezdenie záródni. Hagyja, hogy az egység stabilizálódjon. Ha az EXD Percent Open továbbra is 60% felett van, és még mindig vannak buborékok a kémlelőüvegben, adjon hozzá további 2,5 kg folyékony töltést.
- Hagyja, hogy az egység stabilizálódjon, és ellenőrizze újra az EXD Percent Open értéket. Folytassa a 2,5 kg folyékony hűtőközeg töltés hozzáadását egyszerre, és hagyja, hogy az egység stabilizálódjon, mielőtt ellenőrzi az EXD pozícióját.
- Ha az EXD Percent Open 40-60% tartományban van, ellenőrizze a folyadékvezeték kémlelőüvegét. Lassan adjon hozzá elegendő folyékony töltést a tiszta kémlelőüveg biztosításához. Ezt lassan kell elvégezni az egység túltöltésének elkerülése érdekében.
- Ellenőrizze a megfelelő töltést úgy, hogy továbbra is teljes terhelés mellett futtatja 6 °C ± 1,5 elpárologtatóból kilépő folyadék hőmérséklet mellett. Ellenőrizze, hogy a hűtőközeg nem villog-e a folyadékvezeték kémlelőüvegében. Az EXD Percent Open értéknek 40 és 60% között kell lennie. A hűtőszint jelzőjének 1,5 - 2,5 tartományban kell lennie.
Alacsony töltés jelzése 30GX rendszereken
- Győződjön meg arról, hogy az áramkör teljes terhelés mellett fut, és hogy a kondenzációs hőmérséklet 50 °C ± 1,5. Annak ellenőrzéséhez, hogy az A áramkör teljesen terhelt-e, kövesse a Controls IOM-ben található eljárást.
- Szükséges lehet a Kézi vezérlés funkció használata az áramkör teljes terhelési állapotba kényszerítéséhez. Ha ez a helyzet, olvassa el a Kézi vezérlés funkció használatára vonatkozó utasításokat (eljárás a Controls IOM-ben).
- Ha az áramkör teljes terhelés mellett fut, ellenőrizze, hogy a hűtőből kilépő folyadék hőmérséklete 6 °C ± 1,5 tartományban van-e.
- Mérje meg a kondenzátor tekercsekbe belépő levegő hőmérsékletét. Mérje meg a folyadék hőmérsékletét a T-idom után, ahol a két tekercs folyadékvezetéke találkozik. A folyadék hőmérsékletének 8,3 °C-kal magasabbnak kell lennie, mint a tekercsekbe belépő levegő hőmérséklete. Ha a különbség ennél nagyobb, és a kémlelőüveg villog, akkor az áramkör nincs feltöltve. Lépjen az 5. lépésre.
- Adjon hozzá 2,5 kg folyékony töltést a hűtőbe a hűtő tetején található töltőszelepen keresztül.
- Hagyja, hogy a rendszer stabilizálódjon, majd ellenőrizze újra a folyadék hőmérsékletét. Ismételje meg az 5. lépést szükség szerint, hagyva, hogy a rendszer stabilizálódjon minden egyes töltés hozzáadása között. Lassan adjon hozzá töltést, amikor a kémlelőüveg kezd kitisztulni a túltöltés elkerülése érdekében.
Helyiség hőmérséklete, kültéri levegő hőmérséklete (opcionális)
Ezeket a hőmérsékleteket a helyiség hőmérsékletének vagy a kültéri levegő hőmérsékletének mérésére használják a Kültéri levegő vagy a Helyiség hőmérséklete alapú visszaállítási vezérléshez.
Nyomástávadók
Nyomónyomás (A és B áramkör)
Ez a bemenet az egység minden áramkörének magas oldali nyomásának mérésére szolgál.
Arra szolgál, hogy a nyomást biztosítsa a nyomónyomásmérő helyettesítésére és a fejnyomás szabályozására.
Szívónyomás (A és B áramkör)
Ez a bemenet az egység alacsony oldali nyomásának mérésére szolgál. Arra szolgál, hogy a nyomást biztosítsa a szívónyomásmérő helyettesítésére.
Olajnyomás (minden kompresszor)
Ez a bemenet az egység minden kompresszorának olajnyomásának mérésére szolgál. Az egyes kompresszorok olajnyomás portján található.
Ekonómizáló nyomás (A és B áramkör)
Ez a bemenet a kompresszorhoz szállított olajnyomás különbségének figyelésére szolgál.
Olajfeltöltés - alacsony olajszint feltöltése
Olajfeltöltés hozzáadása 30HX/GX rendszerekhez
- Ha a 30HXC/GX egység ismételten leáll Alacsony olajszint miatt, ez jelezheti a nem megfelelő olajfeltöltést. Ez azt is jelentheti, hogy az olaj visszanyerése folyamatban van a rendszer alacsony oldaláról.
- Kezdje azzal, hogy az egységet teljes terhelés mellett futtatja egy és fél órán keresztül.
- 1-1/2 órás futás után hagyja, hogy az egység újrainduljon és normálisan fusson. Ha az Alacsony olajszint riasztások továbbra is fennállnak, az egység alacsony olajfeltöltéssel rendelkezik. Adjon hozzá olajat az olajleválasztóhoz a kondenzátor alján (30HXC) vagy az olajleválasztó alján (30GX) található olajfeltöltő szelepen keresztül.
NE adjon hozzá olajat más helyen, mert helytelen egységműködéshez vezethet.
- Győződjön meg arról, hogy az egység nem fut, amikor olajat ad hozzá, mert ez megkönnyíti az olajfeltöltési folyamatot. Mivel a rendszer nyomás alatt van még akkor is, ha az egység nem fut, megfelelő szivattyút (kézi vagy elektromos szivattyút) kell használni az olaj hozzáadásához a rendszerhez.
- Megfelelő szivattyú segítségével adjon hozzá 2 liter Polyolester olajat a rendszerhez (CARRIER SPEC: PP47-32). Győződjön meg arról, hogy az olajszint biztonsági kapcsolója NINCS áthidalva, és hagyja, hogy az egység újrainduljon és normálisan fusson.
- Ha az alacsony olajszint problémák továbbra is fennállnak, adjon hozzá még 1 vagy 2 liter olajat. Ha több mint 4 liter olajat kell hozzáadnia a rendszerhez, vegye fel a kapcsolatot a Carrier forgalmazó szerviz részlegével.
A hűtőközeg töltés tárolóegységbe történő áthelyezésekor olaj is kerülhet bele, ha az egység nem működik. Először használja fel az áthelyezett hűtőközeg mennyiségét. Az olaj leeresztése után csak a leeresztett mennyiséget töltse fel (a túlzott olajfeltöltés ronthatja a helyes egységműködést).
Integrált olajszűrő csere
A 06N csavarkompresszorban található integrált olajszűrő a hosszú csapágyélettartamhoz szükséges magas szintű szűrést (3 µ) biztosítja. Mivel a rendszer tisztasága kritikus a megbízható rendszer működéséhez, van egy előszűrő (7 µ) is az olajvezetékben az olajleválasztó kimeneténél.
A csere integrált olajszűrő elem cikkszáma:
Carrier cikkszám (beleértve a szűrőt és az O-gyűrűt): 06NA 660016S
Szűrőcsere ütemezése
A szűrőt az első 500 üzemóra után, majd ezt követően 2000 óránként ellenőrizni kell. A szűrőt bármikor ki kell cserélni, ha a szűrőn keresztüli nyomáskülönbség meghaladja a 2,1 bart.
A szűrőn keresztüli nyomásesés meghatározható a szűrő szervizportján és az olajnyomás portján mért nyomás mérésével. A két nyomás közötti különbség a szűrőn, a visszacsapó szelepen és a mágnesszelepen keresztüli nyomásesés lesz. A visszacsapó szelepen és a mágnesszelepen keresztüli nyomásesés körülbelül 0,4 bar, amelyet le kell vonni a két olajnyomás mérésből az olajszűrő nyomásesésének megadásához. Az olajszűrő nyomásesését minden olyan alkalom után ellenőrizni kell, amikor a kompresszor alacsony olajnyomás biztonsági okokból leáll.
Szűrőcsere eljárása
- A következő lépések ismertetik az integrált olajszűrő cseréjének helyes módját.
- Állítsa le és zárja le a kompresszort.
- Kézzel kényszerítse az olaj mágnesszelep működését, hogy a belső szeleptányért a helyére nyomja.
- Zárja el az olajszűrő szervizszelepét. Engedje le a nyomást a szűrőüregből a szűrő szervizportján keresztül.
- Távolítsa el az olajszűrő dugóját. Távolítsa el a régi olajszűrőt.
- Az új olajszűrő beszerelése előtt "zsírozza meg" az o-gyűrűt olajjal. Szerelje be a szűrőt és helyezze vissza a dugót.
A kenőolajrendszer lezárása előtt használja ki az alkalmat az előszűrő cseréjére is. - Ha elkészült, ürítse ki a szűrőüreget a szűrő szervizportján keresztül. Nyissa ki a szűrő szervizszelepét. Távolítsa el a kompresszor zároló eszközeit, a kompresszor készen áll a működésre való visszatérésre.
Kompresszor csere
Kompresszor forgásirányának ellenőrzése
A kompresszor helyes forgásiránya az egyik legkritikusabb alkalmazási szempont. A fordított forgás, még nagyon rövid ideig is, károsítja a kompresszort.
A fordított forgás elleni védelemnek képesnek kell lennie a forgásirány meghatározására és a kompresszor 300 milliszekundumon belüli leállítására. A fordított forgás legvalószínűbben akkor fordul elő, ha a kompresszor kapcsaira menő vezetékek megzavarodnak.
A fordított forgás lehetőségének minimalizálása érdekében a következő eljárást kell alkalmazni. Csatlakoztassa újra a tápkábeleket a kompresszor kapocslábához az eredeti bekötés szerint.
A kompresszor cseréjekor egy alacsony nyomású kapcsoló tartozik a kompresszorhoz. Ezt az alacsony nyomású kapcsolót ideiglenesen kemény biztonsági eszközként kell felszerelni a kompresszor magas nyomású részére. Ennek a kapcsolónak a célja, hogy megvédje a kompresszort a kompresszor kapocslábánál előforduló bármilyen bekötési hibától. A kapcsoló elektromos érintkezőjét sorba kell kötni a magas nyomású kapcsolóval. A kapcsoló a helyén marad, amíg a kompresszort el nem indították és a forgásirányt nem ellenőrizték; ezen a ponton a kapcsolót eltávolítják.
A fordított forgás érzékelésére kiválasztott kapcsoló a Carrier HK01CB001 cikkszáma. A "Kompresszor szerelőkészlet" (06NA 660 013 cikkszám) részeként kapható. Ez a kapcsoló megszakítja az érintkezőket, ha a nyomás 50 mm vákuum alá esik. A kapcsoló egy kézi visszaállítású típus, amely visszaállítható, ha a nyomás ismét 70 kPa fölé emelkedik. Kritikus fontosságú, hogy a kapcsoló kézi visszaállítású típus legyen, hogy megakadályozza a kompresszor rövid ciklusú működését fordított irányban.
Hibaelhárítás
Kövesse az alábbi lépéseket az EXD/Ekonómizáló problémák diagnosztizálásához és kijavításához.
A 30HXC/GX egységeken, amelyek ekonómizálóval rendelkeznek, ellenőrizze, hogy a buborékoltató cső (az Ekonómizáló alja) szelepe nyitva van-e. Először ellenőrizze az EXD motor működését (lásd az eljárást a Controls IOM-ben). Éreznie kell, hogy a működtetőelem mozog, ha a kezét az EXD-re vagy az ekonómizáló testére helyezi (a működtetőelem az ekonómizáló héj aljától körülbelül egyharmad-kétharmad távolságra található). Éreznie kell egy kemény kopogást a működtetőelemtől, amikor eléri a löketének a tetejét (hallható, ha a környezet viszonylag csendes). A működtetőelemnek kopognia kell, amikor eléri a löketének az alját. Ha úgy gondolja, hogy a szelep nem működik megfelelően, vegye fel a kapcsolatot a Carrier szerviz részlegével további ellenőrzésekhez a következőkre vonatkozóan:
- EXD modul kimeneti jelei
- vezetékcsatlakozások (folytonosság és szoros csatlakozás minden kapocslábnál)
- az EXD motor tekercseinek ellenállása.


Környezetvédelmi irányítási rendszer jóváhagyása
Rendelési szám: 13173-76, 03 1999 - Felülírja a következő számot: 13173-76, 1998. március
A gyártó fenntartja a jogot, hogy bármilyen termékspecifikációt előzetes értesítés nélkül megváltoztasson.
Gyártó: Carrier s.a., Montluel, Franciaország.
Hollandiában nyomtatva, klórmentes papírra.

Kézikönyv letöltése
Itt letöltheti a kézikönyv teljes pdf verzióját, amely további biztonsági utasításokat, garanciális információkat, FCC szabályokat stb. tartalmazhat.
Carrier 30HXC/30GX csavarkompresszor kézikönyv letöltése