Carrier 30HXC/30GX sraigtinio kompresoriaus vadovas
- 1 ĮVADAS
- 2 SAUGOS NUOSTATOS
- 3 MATMENYS, TARPAI, SVORIO PASKIRSTYMAS
- 4 FIZINIAI DUOMENYS 30HXC
- 5 ELEKTROS DUOMENYS 30HXC
- 6 ELEKTROS DUOMENYS ĮRENGINIAMS SU AUKŠTA KONDENSACIJOS TEMPERATŪRA
- 7 FIZINIAI DUOMENYS 30GX
- 8 ELEKTROS DUOMENYS 30GX
-
9
TAIKYMO DUOMENYS
- 9.1 Įrenginio veikimo diapazonas
- 9.2 Minimalus atšaldyto vandens srautas
- 9.3 Maksimalus atšaldyto vandens srautas
- 9.4 Kintamo srauto garintuvas
- 9.5 Sistemos minimalus vandens tūris
- 9.6 Aušintuvo srautas (l/s)
- 9.7 Kondensatoriaus srautas (l/s)
- 9.8 Garintuvo slėgio kritimo kreivė
- 9.9 Kondensatoriaus slėgio kritimo kreivė
- 9.10 Srauto valdikliai
- 10 ĮDIEGIMAS
- 11 KĖLIMO INSTRUKCIJOS
- 12 ELEKTROS CHARAKTERISTIKOS
- 13 REKOMENDUOJAMI LAIDŲ SKERSPJŪVIAI
-
14
PAGRINDINIAI SISTEMOS KOMPONENTAI IR VEIKIMO DUOMENYS
- 14.1 Pavarų dviejų sraigtų kompresorius
- 14.2 Garintuvas
- 14.3 Kondensatorius ir alyvos separatorius (30HXC)
- 14.4 Alyvos separatorius (30GX)
- 14.5 Elektroninis išsiplėtimo įrenginys (EXD)
- 14.6 Ekonomizatorius
- 14.7 Alyvos siurbliai
- 14.8 Variklio aušinimo vožtuvai
- 14.9 Jutikliai
- 14.10 Termistoriai
- 14.11 30GX ventiliatoriaus išdėstymas
- 15 PRIEŽIŪRA
- 16 Trikčių šalinimas
- 17 Atsisiųsti instrukciją
- 18 Kitomis kalbomis

ĮVADAS
Prieš pradedant naudoti 30HXC ir 30GX įrenginius, visi, dalyvaujantys paleidžiant, eksploatuojant ir prižiūrint, turėtų būti gerai susipažinę su šiomis instrukcijomis ir kitais reikalingais darbo duomenimis. Ši knyga suteikia apžvalgą, kad galėtumėte susipažinti su valdymo sistema prieš atlikdami paleidimo procedūras. Šiame vadove procedūros išdėstytos tokia seka, kokios reikia tinkamam įrenginio paleidimui ir eksploatavimui.
SAUGOS NUOSTATOS
30HXC ir 30GX skysčių aušintuvai suprojektuoti taip, kad užtikrintų saugų ir patikimą aptarnavimą, kai jie naudojami pagal projektines specifikacijas. Eksploatuojant šią įrangą, naudokite gerą nuovoką ir saugos priemones, kad išvengtumėte įrangos ir turto sugadinimo arba personalo sužalojimo.
Būtinai supraskite ir laikykitės procedūrų bei saugos priemonių, pateiktų įrenginio instrukcijose, taip pat išvardytų šiame vadove.
NEIŠLEISKITE šaltnešio apsauginių vožtuvų pastato viduje. Išleidimo iš apsauginio vožtuvo anga turi būti nukreipta į lauką. Šaltnešio kaupimasis uždaroje erdvėje gali išstumti deguonį ir sukelti uždusimą arba sprogimą.
UŽTIKRINKITE tinkamą ventiliaciją, ypač uždarose ir žemose erdvėse. Didelės koncentracijos garų įkvėpimas yra kenksmingas ir gali sukelti širdies ritmo sutrikimus, sąmonės netekimą arba mirtį. Garai yra sunkesni už orą ir sumažina deguonies kiekį, reikalingą kvėpavimui. Produktas dirgina akis ir odą. Skilimo produktai yra pavojingi.
NENAUDOKITE DEGUONIES linijoms išvalyti arba įrenginiui suslėgti jokiais tikslais. Deguonies dujos smarkiai reaguoja su aliejumi, tepalais ir kitomis įprastomis medžiagomis.
NIEKADA NEVIRŠYKITE nurodyto bandymo slėgio, PATIKRINKITE leistiną bandymo slėgį patikrindami instrukcijų literatūrą ir projektinius slėgius ant įrangos vardinės lentelės.
NENAUDOKITE oro nuotėkiui patikrinti. Naudokite tik šaltnešį arba sausą azotą.
NEUŽDARYKITE jokio saugos įtaiso.
ĮSITIKINKITE, kad visi slėgio mažinimo įtaisai yra tinkamai sumontuoti prieš pradedant eksploatuoti bet kurį įrenginį.
NENAUDOKITE SUVIRINIMO ARBA PJOVIMO LIEPSNA jokioms šaltnešio linijoms ar indams, kol visas šaltnešis (skystis ir garai) nebus pašalintas iš aušintuvo. Garų pėdsakai turėtų būti išstumti sausu oru azotu, o darbo vieta turėtų būti gerai vėdinama. Šaltnešis, kontaktuodamas su atvira liepsna, išskiria toksiškas dujas.
NEDIRBKITE su įjungta įranga, nebent esate kvalifikuotas elektrikas.
NEDIRBKITE SU elektros komponentais, įskaitant valdymo skydelius, jungiklius, reles ir t. t., kol nebūsite tikri, kad VISA ENERGIJA IŠJUNGTA ir liekamoji įtampa negali nutekėti iš kondensatorių ar kietojo kūno komponentų.
SERVISO METU UŽRAKINKITE ATIDARYTUS IR PAŽYMĖKITE elektros grandines. JEI DARBAS NUTRAUKIAMAS, prieš tęsdami darbą patikrinkite, ar visos grandinės yra išjungtos.
NEIŠTRAUKITE šaltnešio sifonu.
VENKITE IŠSIPILTI skystą šaltnešį ant odos arba patekti į akis. NAUDOKITE APSAUGINIUS AKINIUS. Nuplaukite bet kokius išsiliejusius skysčius nuo odos muilu ir vandeniu. Jei skystas šaltnešis patenka į akis,
NEDELSIANT PLAUKITE AKIS vandeniu ir kreipkitės į gydytoją.
NIEKADA NENAUDOKITE atviros liepsnos ar gyvo garo šaltnešio talpyklai. Gali susidaryti pavojingas perteklinis slėgis. Jei reikia pašildyti šaltnešį, naudokite tik šiltą vandenį.
NEPAKARTOTINAI NAUDOKITE vienkartinių (negrąžinamų) balionų ir nebandykite jų pripildyti. Tai yra PAVOJINGA IR NETEISĖTA. Kai balionai ištuštėja, išleiskite likusį dujų slėgį, atlaisvinkite apykaklę ir atsukite bei išmeskite vožtuvo kotą. NEDEGINTI.
PATIKRINKITE ŠALTNEŠIO TIPĄ prieš pildami šaltnešį į įrenginį. Netinkamo šaltnešio įvedimas gali sugadinti arba sutrikdyti šio įrenginio veikimą.
NEBANDYKITE NUIMTI jungčių, komponentų ir t. t., kol įrenginys yra po slėgiu arba veikia. Prieš atjungdami šaltnešio jungtį, įsitikinkite, kad slėgis yra 0 kPa.
ATIDŽIAI APŽIŪRĖKITE visus apsaugos įtaisus, BENT KARTĄ PER METUS. Jei įrenginys veikia korozinėje aplinkoje, apžiūrėkite įtaisus dažniau.
NEBANDYKITE TAISYTI ARBA ATNAUJINTI jokio apsaugos įtaiso, kai vožtuvo korpuse ar mechanizme randama korozijos ar pašalinių medžiagų (rūdžių, purvo, apnašų ir t. t.). Pakeiskite įtaisą.
NEMONTUOKITE apsaugos įtaisų nuosekliai arba atgal.
NELIPKITE ant šaltnešio linijų. Sulaužytos linijos gali plakti ir išleisti šaltnešį, sukeldamos kūno sužalojimus.
NELIPKITE per įrenginį. Naudokite platformą arba pastolius.
NAUDOKITE MECHANINĘ ĮRANGĄ (kraną, keltuvą ir t. t.) sunkiems komponentams kelti arba perkelti. Net jei komponentai yra lengvi, naudokite mechaninę įrangą, kai yra paslydimo arba pusiausvyros praradimo rizika.
ŽINOKITE, kad tam tikri automatinio paleidimo įrenginiai GALI ĮJUNGTI AUŠINIMO BOKŠTO VENTILIATORIŲ ARBA SIURBLIUS. Atidarykite atjungiklį prieš aušinimo bokšto ventiliatorius arba siurblius.
NAUDOKITE tik remonto arba atsargines dalis, atitinkančias originalios įrangos kodo reikalavimus.
NEIŠLEISKITE ARBA NENUSUNKITE vandens dėžių, kuriose yra pramoninių sūrymų, be kompetentingos institucijos leidimo.
NEATLAISVINKITE vandens dėžės varžtų, kol vandens dėžė nebus visiškai ištuštinta.
NEATLAISVINKITE sandarinimo riebokšlio veržlės, prieš patikrindami, ar veržlė tinkamai įsukta.
PERIODIŠKAI APŽIŪRĖKITE visus vožtuvus, jungtis ir vamzdynus, ar nėra korozijos, rūdžių, nuotėkių ar pažeidimų.
ĮRENGKITE DRENAŽO jungtį vėdinimo linijoje šalia kiekvieno slėgio mažinimo įtaiso, kad nesikauptų kondensatas arba lietaus vanduo.
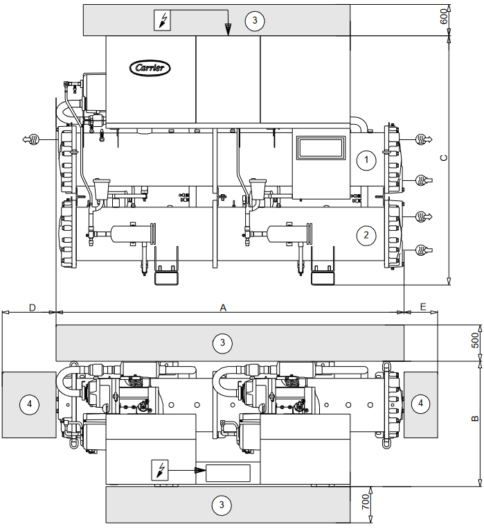
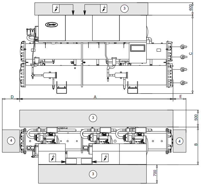
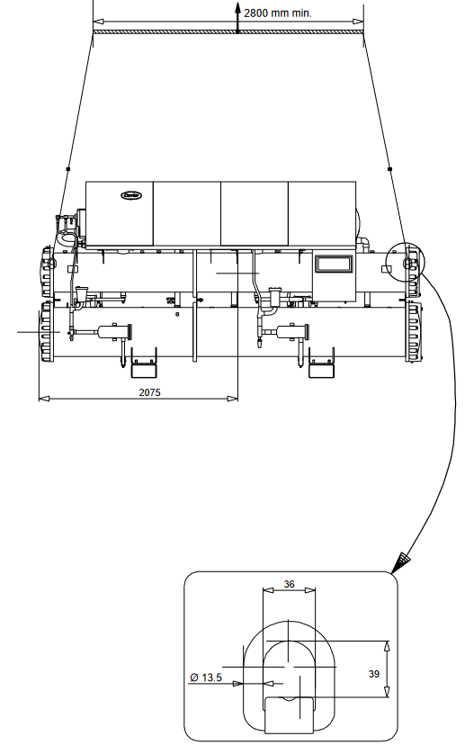
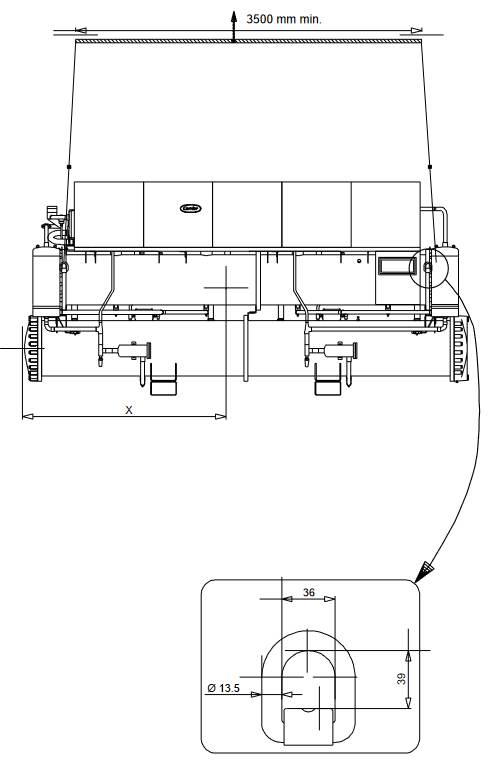
MATMENYS, TARPAI, SVORIO PASKIRSTYMAS
30HXC 080-190
30HXC080
30HXC090
30HXC100
30HXC110

- Garintuvas
- Kondensatorius
- Tarpai, reikalingi eksploatavimui ir priežiūrai
- Tarpai, reikalingi šilumokaičio vamzdžių išėmimui. Tarpai D ir E gali būti kairėje arba dešinėje pusėje.
Vandens įleidimas
Vandens išleidimas
Maitinimo šaltinis
kg: bendras darbinis svoris
| A mm | B mm | C mm | D mm | E mm | kg | |
| 30HXC080 30HXC090 30HXC100 |
2705 | 950 | 1850 | 2360 | 1000 | 2447 2462 2504 |
| 30HXC110 | 2705 | 950 | 1900 | 2360 | 1000 | 2650 |
| 30HXC120 30HXC130 30HXC140 30HXC155 |
3535 | 950 | 1875 | 3220 | 1000 | 2846 2861 2956 2971 |
| 30HXC175 30HXC190 |
3550 | 950 | 2000 | 3220 | 1000 | 3283 3438 |
PASTABA: Projektuodami įrengimą, vadovaukitės sertifikuotais matmenų brėžiniais, pateiktais kartu su įrenginiu.
30HXC 200-375

- Garintuvas
- Kondensatorius
- Tarpai, reikalingi eksploatavimui ir priežiūrai
- Tarpai, reikalingi šilumokaičio vamzdžių išėmimui. Tarpai D ir E gali būti kairėje arba dešinėje pusėje.
Vandens įleidimas
Vandens išleidimas
Maitinimo šaltinis
kg: bendras darbinis svoris
| A mm | B mm | C mm | D mm | E mm | kg | |
| 30HXC200 | 3975 | 980 | 2035 | 3620 | 1000 | 4090 |
| 30HXC230 30HXC260 30HXC285 |
3995 | 980 | 2116 | 3620 | 1000 | 4705 4815 4985 |
| 30HXC310 30HXC345 30HXC375 |
4490 | 980 | 2163 | 4120 | 1000 | 5760 5870 6105 |
PASTABA: Projektuodami įrengimą, vadovaukitės sertifikuotais matmenų brėžiniais, pateiktais kartu su įrenginiu.
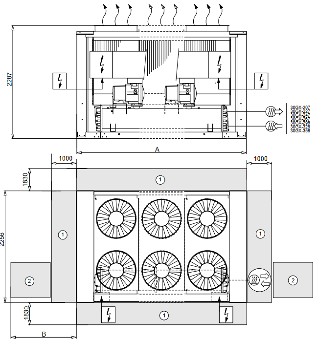
30GX 082-182
30GX-082
30GX-092
30GX-102
30GX-112
30GX-122
30GX-132
30GX-152
30GX-162
30GX-182


- Tarpai, reikalingi eksploatavimui ir priežiūrai
- Tarpai, reikalingi šilumokaičio vamzdžių išėmimui. Tarpai gali būti kairėje arba dešinėje pusėje.
Vandens įleidimas
Vandens išleidimas
Maitinimo šaltinis
Oro išleidimas - neuždenkite
kg: bendras darbinis svoris
| A mm | B mm | kg | |
| 30GX082 30GX092 30GX102 |
2970 | 2215 | 3116 3157 3172 |
| 30GX112 30GX122 30GX132 |
3427 | 2045 | 3515 3531 3633 |
| 30GX152 30GX162 |
4342 | 2835 | 3920 3936 |
| 30GX182 | 5996 | 1820 | 4853 |
Kelių aušintuvų įrengimas


Pastabos:
- Įrenginys turi turėti tarpus oro srautui, kaip nurodyta toliau:
Viršus: jokiu būdu neribokite - Jei įrengiami keli aušintuvai (iki keturių įrenginių), atitinkamas tarpas tarp jų turėtų būti padidintas nuo 1830 iki 2000 mm, atsižvelgiant į šoninę erdvę.
- Tarpai reikalingi aušintuvo vamzdžių išėmimui.
PASTABA: Projektuodami įrengimą, vadovaukitės sertifikuotais matmenų brėžiniais, pateiktais kartu su įrenginiu.
30GX 207-358
30GX-207
30GX-227
30GX-247
30GX-267
30GX-298
30GX-328
30GX-358

- Tarpai, reikalingi eksploatavimui ir priežiūrai
- Tarpai, reikalingi šilumokaičio vamzdžių išėmimui. Tarpai gali būti kairėje arba dešinėje pusėje.
Vandens įleidimas
Vandens išleidimas
Maitinimo šaltinis
Oro išleidimas - neuždenkite
kg: bendras darbinis svoris
| A mm | B mm | kg | |
| 30GX207 30GX227 |
5996 | 2895 | 5540 5570 |
| 30GX247 30GX267 |
6911 | 2470 | 6134 6365 |
| 30GX298 | 7826 | 2220 | 7354 |
| 30GX328 30GX358 |
8741 | 1250 | 7918 8124 |
Kelių aušintuvų įrengimas


Pastabos:
- Įrenginys turi turėti tarpus oro srautui, kaip nurodyta toliau:
Viršus: jokiu būdu neribokite - Jei įrengiami keli aušintuvai (iki keturių įrenginių), atitinkamas tarpas tarp jų turėtų būti padidintas nuo 1830 iki 2000 mm, atsižvelgiant į šoninę erdvę.
- Tarpai reikalingi aušintuvo vamzdžių išėmimui.
PASTABA: Projektuodami įrengimą, vadovaukitės sertifikuotais matmenų brėžiniais, pateiktais kartu su įrenginiu.
FIZINIAI DUOMENYS 30HXC
| 30HXC | 080 | 090 | 100 | 110 | 120 | 130 | 140 | 155 | 175 | 190 | 200 | 230 | 260 | 285 | 310 | 345 | 375 | |
| Net cooling capacity (Neto vėsinimo galia) | kW | 292 | 321 | 352 | 389 | 426 | 464 | 514 | 550 | 607 | 663 | 716 | 822 | 918 | 996 | 1119 | 1222 | 1326 |
| Operating weight (Darbinis svoris) | kg | 2447 | 2462 | 2504 | 2650 | 2846 | 2861 | 2956 | 2971 | 3283 | 3438 | 4090 | 4705 | 4815 | 4985 | 5760 | 5870 | 6105 |
| Refrigerant (Šaltnešis) Circuit A/B (A/B grandinė) |
HFC-134a | |||||||||||||||||
| kg | 39/36 | 39/36 | 37/32 | 38/38 | 57/55 | 59/50 | 56/50 | 59/52 | 58/61 | 60/70 | 110/58 | 118/63 | 120/75 | 120/75 | 108/110 | 110/110 | 110/120 | |
| Oil (Tepalas) Circuit A/B (A/B grandinė) |
Polyolester oil CARRIER SPEC: PP 47-32 | |||||||||||||||||
| l | 15/15 | 15/15 | 15/15 | 15/15 | 15/15 | 15/15 | 15/15 | 15/15 | 15/15 | 15/15 | 30/15 | 30/15 | 30/15 | 30/15 | 30/30 | 30/30 | 30/30 | |
| Compressors (Kompresoriai) | Hermetic twin-screw Power3 | |||||||||||||||||
| Circ. A, nom. size per compressor** (A grandinė, nominalus dydis vienam kompresoriui**) | 39 | 46 | 46 | 56 | 56 | 66 | 80 | 80 | 80 | 80+ | 66/56 | 80/56 | 80/80 | 80+/80+ | 80/66 | 80/80 | 80+/80+ | |
| Circ. B, nom. size per compressor** (B grandinė, nominalus dydis vienam kompresoriui**) | 39 | 39 | 46 | 46 | 56 | 56 | 56 | 66 | 80 | 80+ | 66 | 80 | 80 | 80+ | 80/66 | 80/80 | 80+/80+ | |
| Control type (Valdymo tipas) | PRO-DIALOG Plus control | |||||||||||||||||
| Number of capacity steps (Galios pakopų skaičius) | 6 | 6 | 6 | 6 | 6 | 6 | 6 | 6 | 6 | 6 | 8 | 8 | 8 | 8 | 10 | 10 | 10 | |
| Minimum capacity (Minimali galia) | % | 19 | 19 | 21 | 19 | 21 | 19 | 17 | 19 | 21 | 21 | 14 | 14 | 14 | 14 | 10 | 10 | 10 |
| Evaporator (Garintuvas) | Shell and tube type, with internally finned copper tubes (Korpuso ir vamzdžių tipo, su vidiniais briaunuotais variniais vamzdeliais) | |||||||||||||||||
| Net water volume (Neto vandens tūris) | l | 65 | 65 | 73 | 87 | 81 | 81 | 91 | 91 | 109 | 109 | 140 | 165 | 181 | 181 | 203 | 229 | 229 |
| Water connections (Vandens jungtys) | Factory-supplied flat flange, to be welded on site (Gamykloje tiekiamas plokščias flanšas, kuris turi būti privirintas vietoje) | |||||||||||||||||
| Inlet and outlet (Įėjimas ir išėjimas) | in. | 4 | 4 | 4 | 5 | 5 | 5 | 5 | 5 | 5 | 5 | 6 | 6 | 6 | 6 | 8 | 8 | 8 |
| Drain and vent (NPT) (Nusausinimas ir ventiliacija (NPT)) | in. | 3/8 | 3/8 | 3/8 | 3/8 | 3/8 | 3/8 | 3/8 | 3/8 | 3/8 | 3/8 | 3/8 | 3/8 | 3/8 | 3/8 | 3/8 | 3/8 | 3/8 |
| Max. water-side operating pressure (Maks. darbinis slėgis vandens pusėje) | kPa | 1000 | 1000 | 1000 | 1000 | 1000 | 1000 | 1000 | 1000 | 1000 | 1000 | 1000 | 1000 | 1000 | 1000 | 1000 | 1000 | 1000 |
| Condensers (Kondensatoriai) | Shell and tube type, with internally finned copper tubes (Korpuso ir vamzdžių tipo, su vidiniais briaunuotais variniais vamzdeliais) | |||||||||||||||||
| Net water volume (Neto vandens tūris) | l | 58 | 58 | 58 | 58 | 92 | 92 | 110 | 110 | 132 | 132 | 162 | 208 | 208 | 208 | 251 | 251 | 251 |
| Water connections (Vandens jungtys) | Factory-supplied flat flange, to be welded on site (Gamykloje tiekiamas plokščias flanšas, kuris turi būti privirintas vietoje) | |||||||||||||||||
| Inlet and outlet (Įėjimas ir išėjimas) | in. | 5 | 5 | 5 | 5 | 5 | 5 | 5 | 5 | 6 | 6 | 6 | 6 | 6 | 6 | 8 | 8 | 8 |
| Drain and vent (NPT) (Nusausinimas ir ventiliacija (NPT)) | in. | 3/8 | 3/8 | 3/8 | 3/8 | 3/8 | 3/8 | 3/8 | 3/8 | 3/8 | 3/8 | 3/8 | 3/8 | 3/8 | 3/8 | 3/8 | 3/8 | 3/8 |
| Max. water-side operating pressure (Maks. darbinis slėgis vandens pusėje) | kPa | 1000 | 1000 | 1000 | 1000 | 1000 | 1000 | 1000 | 1000 | 1000 | 1000 | 1000 | 1000 | 1000 | 1000 | 1000 | 1000 | 1000 |
* Standardised Eurovent conditions: evaporator entering/leaving water temperatures = 12°C/7°C, condenser water entering/leaving water temperatures = 30°C/35°C Net cooling capacity: Gross cooling capacity minus the water pump heat against the internal evaporator pressure drop. ** The compressor size corresponds to the nominal capacity in tons (1 ton = 3.517 kW). (Standartizuotos Eurovent sąlygos: vandens temperatūra įeinant/išeinant iš garintuvo = 12°C/7°C, vandens temperatūra įeinant/išeinant iš kondensatoriaus = 30°C/35°C Neto vėsinimo galia: bendra vėsinimo galia atėmus vandens siurblio šilumą prieš vidinį garintuvo slėgio kritimą. ** Kompresoriaus dydis atitinka nominalią galią tonomis (1 tona = 3,517 kW).)
ELEKTROS DUOMENYS 30HXC
| 30HXC | 080 | 090 | 100 | 110 | 120 | 130 | 140 | 155 | 175 | 190 | 200 | 230 | 260 | 285 | 310 | 345 | 375 | |
| Maitinimo grandinė | ||||||||||||||||||
| Nominali maitinimo įtampa* | V-ph-Hz | 400-3-50 | ||||||||||||||||
| Įtampos diapazonas | V | 360-440 | ||||||||||||||||
| Valdymo grandinės maitinimas | Valdymo grandinė maitinama per gamykloje įmontuotą transformatorių | |||||||||||||||||
| Nominali įėjimo galia* | kW | 59 | 67 | 74 | 83 | 88 | 99 | 112 | 123 | 135 | 146 | 156 | 179 | 201 | 219 | 245 | 274 | 298 |
| Nominali suvartojama srovė* | A | 98 | 111 | 124 | 139 | 148 | 166 | 186 | 204 | 226 | 242 | 259 | 291 | 335 | 367 | 408 | 456 | 498 |
| Maks. įėjimo galia** | kW | 76 | 83 | 91 | 101 | 111 | 121 | 135 | 145 | 158 | 181 | 187 | 214 | 237 | 272 | 290 | 316 | 362 |
| Grandinė A | kW | - | - | - | - | - | - | - | - | - | - | 121 | 135 | 158 | 181 | 145 | 158 | 181 |
| Grandinė B | kW | - | - | - | - | - | - | - | - | - | - | 66 | 79 | 79 | 91 | 145 | 158 | 181 |
| „Cosine phi“, įrenginys esant pilnai apkrovai | 0.87 | 0.87 | 0.87 | 0.87 | 0.87 | 0.87 | 0.87 | 0.87 | 0.87 | 0.87 | 0.87 | 0.87 | 0.87 | 0.87 | 0.87 | 0.87 | 0.87 | |
| Maks. suvartojama srovė (Un - 10%)*** | A | 138 | 152 | 166 | 184 | 202 | 221 | 245 | 264 | 288 | 330 | 341 | 389 | 432 | 495 | 528 | 576 | 660 |
| Grandinė A | A | - | - | - | - | - | - | - | - | - | - | 221 | 245 | 288 | 330 | 264 | 288 | 330 |
| Grandinė B | A | - | - | - | - | - | - | - | - | - | - | 120 | 144 | 144 | 165 | 264 | 288 | 330 |
| Maksimali suvartojama srovė (Un)*** | A | 125 | 138 | 151 | 167 | 184 | 201 | 223 | 240 | 262 | 300 | 310 | 354 | 393 | 450 | 480 | 524 | 600 |
| Grandinė A | A | - | - | - | - | - | - | - | - | - | - | 201 | 223 | 262 | 300 | 240 | 262 | 300 |
| Grandinė B | A | - | - | - | - | - | - | - | - | - | - | 109 | 131 | 131 | 150 | 240 | 262 | 300 |
| Maks. paleidimo srovė, standartinis įrenginys (Un)**** | A | 172 | 197 | 209 | 235 | 252 | 283 | 318 | 335 | 357 | 420 | 806 | 938 | 977 | 1156 | 1064 | 1108 | 1306 |
| Grandinė A | A | - | - | - | - | - | - | - | - | - | - | 697 | 807 | 846 | 1006 | 824 | 846 | 1006 |
| Grandinė B | A | - | - | - | - | - | - | - | - | - | - | 605 | 715 | 715 | 856 | 824 | 846 | 1006 |
| Maks. paleidimo srovės / maks. suvartojamos srovės santykis, įrenginys | 1.37 | 1.42 | 1.39 | 1.41 | 1.37 | 1.41 | 1.43 | 1.40 | 1.36 | 1.40 | 2.60 | 2.65 | 2.49 | 2.57 | 2.22 | 2.12 | 2.18 | |
| Maks. paleidimo srovės / maks. suvartojamos srovės santykis, grandinė A | - | - | - | - | - | - | - | - | - | - | 3.47 | 3.62 | 3.23 | 3.35 | 3.43 | 3.23 | 3.35 | |
| Maks. paleidimo srovės / maks. suvartojamos srovės santykis, grandinė B | - | - | - | - | - | - | - | - | - | - | 5.55 | 5.46 | 5.46 | 5.71 | 3.43 | 3.23 | 3.35 | |
| Maks. paleidimo srovė - sumažinta paleidimo srovė (Un) **** | A | std. | std. | std. | std. | std. | std. | std. | std. | std. | std. | 601 | 643 | 682 | 760 | 769 | 813 | 910 |
| Grandinė A | A | std. | std. | std. | std. | std. | std. | std. | std. | std. | std. | 492 | 512 | 551 | 610 | 529 | 551 | 610 |
| Grandinė B | A | std. | std. | std. | std. | std. | std. | std. | std. | std. | std. | 330 | 370 | 370 | 385 | 529 | 551 | 610 |
| Maks. paleidimo srovė - sumažinta paleidimo srovė / maks. suvartojamos srovės santykis, įrenginys | std. | std. | std. | std. | std. | std. | std. | std. | std. | std. | 1.94 | 1.82 | 1.74 | 1.69 | 1.60 | 1.55 | 1.52 | |
| Grandinė A | std. | std. | std. | std. | std. | std. | std. | std. | std. | std. | 2.45 | 2.30 | 2.10 | 2.03 | 2.20 | 2.10 | 2.03 | |
| Grandinė B | std. | std. | std. | std. | std. | std. | std. | std. | std. | std. | 3.03 | 2.83 | 2.83 | 2.57 | 2.20 | 2.10 | 2.03 | |
| Trifazė trumpojo jungimo srovė | kA | 25 | 25 | 25 | 25 | 25 | 25 | 25 | 25 | 25 | 25 | N/A | N/A | N/A | N/A | N/A | N/A | N/A |
| Grandinė A | kA | - | - | - | - | - | - | - | - | - | - | 25 | 25 | 25 | 25 | 25 | 25 | 25 |
| Grandinė B | kA | - | - | - | - | - | - | - | - | - | - | 15 | 15 | 15 | 15 | 25 | 25 | 25 |
| Kliento budėjimo galia, įrenginys arba grandinė A, skirta garintuvo vandens siurblio jungtims† | kW | 8 | 8 | 8 | 11 | 11 | 11 | 15 | 15 | 15 | 15 | 15 | 18 | 18 | 30 | 30 | 30 | 30 |
* Standartinės „Eurovent“ sąlygos: į garintuvą įtekančio / ištekančio vandens temperatūra 12 °C ir 7 °C. Į kondensatorių įtekančio / ištekančio vandens temperatūra 30 °C / 35 °C.
** Įėjimo galia, kompresorius, esant įrenginio veikimo riboms (į garintuvą įtekančio / ištekančio vandens temperatūra = 15 °C / 10 °C, į kondensatorių įtekančio / ištekančio vandens temperatūra = 40 °C / 45 °C) ir nominali įtampa 400 V (duomenys pateikti įrenginio vardinėje plokštelėje).
*** Didžiausia įrenginio darbinė srovė esant didžiausiai įrenginio įėjimo galiai.
**** Didžiausia momentinė paleidimo srovė (mažiausio (-ių) kompresoriaus (-ių) didžiausia darbinė srovė + didžiausio kompresoriaus užrakto srovė arba sumažinta paleidimo srovė)
† Srovės ir galios įvesties reikšmės neįtrauktos į aukščiau pateiktas vertes.
N/A Nepasiekiama
Kompresoriai
| Nuoroda | Dydis | I nom. | MHA | LRA | LRA (Y) | LRA (S) 1 cp. | LRA (S) 2 cp. |
| 06NW2146S7N | 39 | 48 | 69 | 344 | 109 | 125 | - |
| 06NW2174S7N | 46 | 58 | 83 | 423 | 134 | 154 | - |
| 06NW2209S7N | 56 | 71 | 101 | 506 | 160 | 260 | 350 |
| 06NW2250S7N | 66 | 87 | 120 | 605 | 191 | 330 | 400 |
| 06NW2300S5N | 80 | 104 | 144 | 715 | 226 | 370 | 420 |
| 06NW2300S5E | 80+ | 111 | 165 | 856 | 270 | 385 | 460 |
Legenda:
| 06NW | Kompresorius, skirtas vandeniu aušinamiems įrenginiams |
| N | Neekonomizuotas kompresorius |
| E | Ekonomizuotas kompresorius |
| INOM | Vidutinė kompresoriaus suvartojama srovė esant „Eurovent“ sąlygoms |
| MHA | Privalo išlaikyti amperus (didžiausia darbinė srovė) esant 360 V |
| LRA | Užrakto srovė paleidžiant tiesiogiai |
| LRA (Y) | Užrakto srovė esant sumažintai srovei (paleidimo režimas žvaigždė / trikampis) |
| LRA (S) 1 cp. | Paleidimas sumažinta srove su elektroniniu starteriu (paleidimo trukmė ne daugiau kaip 3 sekundės) vienam kompresoriui grandinėje |
| LRA (S) 2 cp. | Paleidimas sumažinta srove su elektroniniu starteriu (paleidimo trukmė ne daugiau kaip 3 sekundės) dviem kompresoriams grandinėje |
ELEKTROS DUOMENYS ĮRENGINIAMS SU AUKŠTA KONDENSACIJOS TEMPERATŪRA
30HXC 150 ir 150A parinktys
| 30HXC | 080 | 090 | 100 | 110 | 120 | 130 | 140 | 155 | 175 | 190 | 200 | 230 | 260 | 285 | 310 | 345 | 375 | |
| Maitinimo grandinė | ||||||||||||||||||
| Nominali maitinimo įtampa* | V-ph-Hz | 400-3-50 | ||||||||||||||||
| Įtampos diapazonas | V | 360-440 | ||||||||||||||||
| Valdymo grandinės maitinimas | Valdymo grandinė maitinama per gamykloje įmontuotą transformatorių | |||||||||||||||||
| Maks. įėjimo galia** | kW | 104 | 117 | 131 | 145 | 159 | 174 | 194 | 211 | 230 | 263 | 271 | 310 | 345 | 395 | 422 | 460 | 526 |
| A grandinė | kW | - | - | - | - | - | - | - | - | - | - | 175 | 195 | 230 | 263 | 211 | 230 | 263 |
| B grandinė | kW | - | - | - | - | - | - | - | - | - | - | 96 | 115 | 115 | 132 | 211 | 230 | 263 |
| Maks. suvartojama srovė (Un - 10%)*** | A | 190 | 215 | 240 | 265 | 290 | 320 | 355 | 385 | 420 | 480 | 495 | 564 | 630 | 720 | 770 | 840 | 960 |
| A grandinė | A | - | - | - | - | - | - | - | - | - | - | 320 | 355 | 420 | 480 | 385 | 420 | 480 |
| B grandinė | A | - | - | - | - | - | - | - | - | - | - | 175 | 210 | 210 | 240 | 385 | 420 | 480 |
| Maksimali suvartojama srovė (Un)*** | A | 173 | 195 | 218 | 241 | 264 | 291 | 323 | 350 | 382 | 436 | 450 | 514 | 573 | 655 | 700 | 764 | 873 |
| A grandinė | A | - | - | - | - | - | - | - | - | - | - | 291 | 323 | 382 | 436 | 350 | 382 | 436 |
| B grandinė | A | - | - | - | - | - | - | - | - | - | - | 159 | 191 | 191 | 218 | 350 | 382 | 436 |
| Maks. paleidimo srovė, standartinis įrenginys (Un)**** | A | 277 | 312 | 335 | 379 | 402 | 435 | 519 | 546 | 578 | 618 | 1251 | 1549 | 1608 | 1701 | 1735 | 1799 | 1920 |
| A grandinė | A | - | - | - | - | - | - | - | - | - | - | 1092 | 1358 | 1417 | 1483 | 1385 | 1417 | 1483 |
| B grandinė | A | - | - | - | - | - | - | - | - | - | - | 960 | 1226 | 1226 | 1265 | 1385 | 1417 | 1483 |
| Maks. paleidimo srovės / maks. suvartojamos srovės santykis, įrenginys | 1.61 | 1.60 | 1.54 | 1.57 | 1.52 | 1.49 | 1.61 | 1.56 | 1.51 | 1.42 | 2.78 | 3.02 | 2.81 | 2.60 | 2.48 | 2.36 | 2.20 | |
| Maks. paleidimo srovės / maks. suvartojamos srovės santykis, A grandinė | - | - | - | - | - | - | - | - | - | - | 3.75 | 4.21 | 3.71 | 3.40 | 3.96 | 3.71 | 3.40 | |
| Maks. paleidimo srovės / maks. suvartojamos srovės santykis, B grandinė | - | - | - | - | - | - | - | - | - | - | 6.03 | 6.42 | 6.42 | 5.80 | 3.96 | 3.71 | 3.40 | |
| Maks. paleidimo srovė - sumažinta paleidimo srovė (Un) **** | A | stand. | stand. | stand. | stand. | stand. | stand. | stand. | stand. | stand. | stand. | N/A | N/A | N/A | N/A | N/A | N/A | N/A |
| Trifazė trumpojo jungimo srovė | kA | 25 | 25 | 25 | 25 | 25 | 25 | 25 | 25 | 25 | 25 | N/A | N/A | N/A | N/A | N/A | N/A | N/A |
| A grandinė | kA | - | - | - | - | - | - | - | - | - | - | 25 | 25 | 25 | 25 | 25 | 25 | 25 |
| B grandinė | kA | - | - | - | - | - | - | - | - | - | - | 15 | 15 | 15 | 15 | 25 | 25 | 25 |
| Kliento budėjimo režimo galia, įrenginys arba A grandinė, skirta garintuvo vandens siurblio jungtims† | kW | 8 | 8 | 8 | 11 | 11 | 11 | 15 | 15 | 15 | 15 | 15 | 18 | 18 | 30 | 30 | 30 | 30 |
** Įėjimo galia, kompresorius, esant įrenginio veikimo riboms (į garintuvą įtekančio/ištekančio vandens temperatūra = 15°C/10°C, į kondensatorių įtekančio/ištekančio vandens temperatūra = 40°C/45°C) ir nominali 400 V įtampa (duomenys pateikti įrenginio duomenų lentelėje).
*** Maksimali įrenginio veikimo srovė esant maksimaliai įrenginio įėjimo galiai.
**** Didžiausia momentinė paleidimo srovė (mažiausio (-ių) kompresoriaus (-ių) didžiausia veikimo srovė + didžiausio kompresoriaus užrakto srovė arba sumažinta paleidimo srovė)
† Srovės ir galios įėjimai neįtraukti į aukščiau pateiktas vertes.
N/A Neprieinama
30HXC 080-375 įrenginiai, skirti aukštai kondensacijos temperatūrai, yra tiesiogiai gaunami iš standartinių modelių. Jų taikymo sritis yra tokia pati kaip ir standartinių įrenginių, tačiau leidžia veikti esant kondensatoriaus ištekančio vandens temperatūrai iki 63°C. PRO-DIALOG valdiklis siūlo visus standartinių įrenginių privalumus, taip pat kondensatoriaus ištekančio vandens temperatūros valdymą.
Pagrindiniai pakeitimai:
- 30GX kompresorių naudojimas
- Elektros komponentų modifikavimas, kad jie veiktų su kompresoriais, skirtais aukštai kondensacijos temperatūrai.
- Šilumokaičių modifikavimas, kad atitiktų slėgio kodo reikalavimus (jei reikia).
150 parinktis
Šie įrenginiai yra skirti tradicinėms vandeniu aušinamų įrenginių reikmėms, tačiau aukštesnei kondensatoriaus ištekančio vandens temperatūrai nei 45°C.
Kaip ir standartiniai įrenginiai, jie yra aprūpinti kondensatoriaus įtekančio ir ištekančio vandens jutikliais, sumontuotais ant vamzdyno.
Galima valdyti įrenginį prie kondensatoriaus vandens išleidimo angos, tam reikia gamyklinio konfigūracijos pakeitimo ir šildymo/vėsinimo įleidimo atbulinės eigos įtaiso naudojimo.
150A parinktis
Šie įrenginiai yra skirti vandens-vandens šilumos siurbliams.
Jie gamykloje sukonfigūruoti kaip šilumos siurbliai (šildymo/vėsinimo valdymas priklauso nuo nuotolinio atbulinės eigos įtaiso). Kondensatorius turi tokią pačią šiluminę izoliaciją kaip ir garintuvas.
Techninė informacija
Visa informacija yra identiška standartinių 30HXC įrenginių informacijai, išskyrus šias pastraipas.
Pasirinkimas
Šio tipo įrenginiams nėra nominalių sąlygų. Pasirinkimas atliekamas naudojant dabartinį elektroninį katalogą.
Matmenys
Jie yra identiški standartinių 30HXC įrenginių matmenims. Vienintelis skirtumas yra įeinančios lauko laidų jungties skersmuo, aprašytas skyriuje "Rekomenduojamas pasirinkimas". Prieš tęsdami laidų prijungimą, peržiūrėkite šių įrenginių matmenų brėžinius.
Kompresorius
Žr. 30GX kompresorių lentelę.
Parinktys ir priedai
Visos standartiniams 30HXC įrenginiams prieinamos parinktys yra suderinamos, išskyrus:
| 5 parinktis, sūraus vandens įrenginys | Specialus įrenginys |
| 25 parinktis, švelnus paleidimas, 30HXC 200-375 įrenginiai | Neprieinama |
Dėmesio:
Jei įrenginiai turi du skirtingus veikimo režimus - vieną su aukšta kondensacijos temperatūra, o kitą su žema kondensacijos temperatūra - ir perėjimas atliekamas įrenginiui veikiant, temperatūra neturi keistis daugiau nei 3 K per minutę. Tais atvejais, kai tai neįmanoma, rekomenduojama naudoti įrenginio paleidimo/sustabdymo jungiklį (nuotolinis paleidimas/sustabdymas galimas standartiniams įrenginiams).
FIZINIAI DUOMENYS 30GX
| 30GX | 082 | 092 | 102 | 112 | 122 | 132 | 152 | 162 | 182 | 207 | 227 | 247 | 267 | 298 | 328 | 358 | ||
| Grynoji vėsinimo galia | kW | 285 | 309 | 332 | 388 | 417 | 450 | 505 | 536 | 602 | 687 | 744 | 810 | 910 | 1003 | 1103 | 1207 | |
| Darbinis svoris | kg | 3116 | 3157 | 3172 | 3515 | 3531 | 3633 | 3920 | 3936 | 4853 | 5540 | 5570 | 6134 | 6365 | 7354 | 7918 | 8124 | |
| Šaltnešio kiekis | HFC-134a | |||||||||||||||||
| A/B grandinė | kg | 55/55 | 58/50 | 54/53 | 55/53 | 60/57 | 63/60 | 75/69 | 75/75 | 80/80 | 130/85 | 130/85 | 155/98 | 170/104 | 162/150 | 162/165 | 175/175 | |
| Alyva | Poliesterinė alyva CARRIER SPEC: PP 47-32 | |||||||||||||||||
| A/B grandinė | l | 20/20 | 20/20 | 20/20 | 20/20 | 20/20 | 20/20 | 20/20 | 20/20 | 20/20 | 40/20 | 40/20 | 40/20 | 40/20 | 40/40 | 40/40 | 40/40 | |
| Kompresoriai | Hermetiški dviejų sraigtų Power3 | |||||||||||||||||
| A grandinė, nom. dydis vienam kompresoriui** | 46 | 46 | 56 | 56 | 66 | 66 | 80 | 80 | 80+ | 66/56 | 80/66 | 80/80 | 80+/80+ | 80/80 | 80/80 | 80+/80+ | ||
| B grandinė, nom. dydis vienam kompresoriui** | 39 | 46 | 46 | 56 | 56 | 66 | 66 | 80 | 80+ | 80 | 80 | 80 | 80+ | 66/66 | 80/802 | 80+/80+ | ||
| Valdymo tipas | PRO-DIALOG Plus valdymas | |||||||||||||||||
| Galingumo pakopų skaičius | 6 | 6 | 6 | 6 | 6 | 6 | 6 | 6 | 6 | 8 | 8 | 8 | 8 | 10 | 10 | 10 | ||
| Minimalus galingumas | % | 19 | 21 | 19 | 21 | 19 | 21 | 19 | 21 | 21 | 16 | 14 | 14 | 14 | 9 | 10 | 10 | |
| Garintuvas | Korpuso ir vamzdžių tipo, su viduje briaunuotais variniais vamzdeliais | |||||||||||||||||
| Grynasis vandens tūris | l | 65 | 73 | 73 | 87 | 87 | 101 | 91 | 91 | 109 | 140 | 140 | 165 | 181 | 203 | 229 | 229 | |
| Vandens jungtys | Gamykloje tiekiamas plokščias flanšas, kuris turi būti privirintas vietoje | |||||||||||||||||
| Įleidimo ir išleidimo anga | in. | 4 | 4 | 4 | 5 | 5 | 5 | 5 | 5 | 5 | 6 | 6 | 6 | 6 | 8 | 8 | 8 | |
| Drenažas ir ventiliacija (NPT) | in. | 3/8 | 3/8 | 3/8 | 3/8 | 3/8 | 3/8 | 3/8 | 3/8 | 3/8 | 3/8 | 3/8 | 3/8 | 3/8 | 3/8 | 3/8 | 3/8 | |
| Maks. darbinis slėgis vandens pusėje | kPa | 1000 | 1000 | 1000 | 1000 | 1000 | 1000 | 1000 | 1000 | 1000 | 1000 | 1000 | 1000 | 1000 | 1000 | 1000 | 1000 | |
| Kondensatoriai | Variniai vamzdeliai ir aliuminio briaunos | |||||||||||||||||
| Ventiliatoriai | Ašinis FLYING BIRD 2 ventiliatorius su besisukančiu gaubtu | |||||||||||||||||
| Kiekis | 4 | 4 | 4 | 6 | 6 | 6 | 8 | 8 | 8 | 10 | 10 | 12 | 12 | 14 | 16 | 16 | ||
| Greitis | r/s | 15.8 | 15.8 | 15.8 | 15.8 | 15.8 | 15.8 | 15.8 | 15.8 | 15.8 | 15.8 | 15.8 | 15.8 | 15.8 | 15.8 | 15.8 | 15.8 | |
| Bendras oro srautas | l/s | 21110 | 21110 | 21110 | 31660 | 31660 | 31660 | 42220 | 42220 | 42220 | 52770 | 52770 | 63330 | 63330 | 73880 | 84440 | 84440 | |
* Standartizuotos Eurovent sąlygos: į garintuvą įtekančio/ištekančio vandens temperatūra = 12°C/7°C, lauko oro temperatūra = 35°C Grynoji vėsinimo galia: bendroji vėsinimo galia atėmus vandens siurblio šilumą nuo vidinio garintuvo slėgio kritimo.
** Kompresoriaus dydis atitinka nominalų galingumą tonomis (1 tona = 3,517 kW).
ELEKTROS DUOMENYS 30GX
| 30HXC | 082 | 092 | 102 | 112 | 122 | 132 | 152 | 162 | 182 | 207 | 227 | 247 | 267 | 298 | 328 | 358 | ||
| Maitinimo grandinė | ||||||||||||||||||
| Nominali maitinimo įtampa* | V-ph-Hz | 400-3-50 | ||||||||||||||||
| Įtampos diapazonas | V | 360-440 | ||||||||||||||||
| Valdymo grandinės maitinimas | Valdymo grandinė maitinama per gamykloje įmontuotą transformatorių | |||||||||||||||||
| Nominali įėjimo galia* | kW | 98 | 109 | 123 | 133 | 150 | 166 | 179 | 196 | 214 | 246 | 281 | 292 | 332 | 364 | 394 | 449 | |
| Nominali suvartojama srovė* | A | 180 | 200 | 223 | 256 | 273 | 290 | 326 | 352 | 388 | 449 | 492 | 528 | 582 | 642 | 704 | 776 | |
| Maks. įėjimo galia** | kW | 127 | 141 | 154 | 175 | 191 | 207 | 234 | 253 | 286 | 319 | 355 | 380 | 429 | 462 | 506 | 572 | |
| A grandinė | kW | - | - | - | - | - | - | - | - | - | 193 | 228 | 253 | 286 | 253 | 253 | 286 | |
| B grandinė | kW | - | - | - | - | - | - | - | - | - | 127 | 127 | 127 | 143 | 209 | 253 | 286 | |
| Cos phi, įrenginys esant pilnai apkrovai | 0.85 | 0.85 | 0.85 | 0.85 | 0.85 | 0.85 | 0.86 | 0.86 | 0.86 | 0.86 | 0.86 | 0.86 | 0.86 | 0.86 | 0.86 | 0.86 | ||
| Maks. suvartojama srovė (Un - 10%)*** | A | 237 | 262 | 287 | 323 | 353 | 383 | 429 | 464 | 524 | 585 | 650 | 696 | 786 | 847 | 928 | 1048 | |
| A grandinė | A | - | - | - | - | - | - | - | - | - | 353 | 418 | 464 | 524 | 464 | 464 | 524 | |
| B grandinė | A | - | - | - | - | - | - | - | - | - | 232 | 232 | 232 | 262 | 383 | 464 | 524 | |
| Maksimali suvartojama srovė (Un)*** | A | 217 | 240 | 263 | 297 | 324 | 351 | 394 | 426 | 480 | 537 | 596 | 639 | 721 | 777 | 852 | 961 | |
| A grandinė | A | - | - | - | - | - | - | - | - | - | 324 | 383 | 426 | 480 | 426 | 426 | 480 | |
| B grandinė | A | - | - | - | - | - | - | - | - | - | 213 | 213 | 213 | 240 | 351 | 426 | 480 | |
| Maks. paleidimo srovė, standartinis įrenginys**** (Un) | A | 334 | 357 | 401 | 435 | 468 | 495 | 590 | 622 | 662 | 1338 | 1631 | 1674 | 1767 | 1812 | 1887 | 2008 | |
| A grandinė*** | A | - | - | - | - | - | - | - | - | - | 1125 | 1418 | 1461 | 1527 | 1461 | 1461 | 1527 | |
| B grandinė*** | A | - | - | - | - | - | - | - | - | - | 1248 | 1248 | 1248 | 1287 | 1152 | 1461 | 1527 | |
| Maks. paleidimo srovės / maks. suvartojamos srovės santykis, įrenginys | 1.54 | 1.49 | 1.53 | 1.47 | 1.44 | 1.41 | 1.50 | 1.46 | 1.38 | 2.49 | 2.74 | 2.62 | 2.45 | 2.33 | 2.22 | 2.09 | ||
| Maks. paleidimo srovės / maks. suvartojamos srovės santykis, A grandinė | - | - | - | - | - | - | - | - | - | 3.47 | 3.70 | 3.43 | 3.18 | 3.43 | 3.43 | 3.18 | ||
| Maks. paleidimo srovės / maks. suvartojamos srovės santykis, B grandinė | - | - | - | - | - | - | - | - | - | 5.86 | 5.86 | 5.86 | 5.36 | 3.28 | 3.43 | 3.18 | ||
| Maks. paleidimo srovė - sumažinta paleidimo srovė (Un) **** | A | stand. | stand. | stand. | stand. | stand. | stand. | stand. | stand. | stand. | 878 | 955 | 998 | 1102 | 1136 | 1211 | 1343 | |
| A grandinė | A | stand. | stand. | stand. | stand. | stand. | stand. | stand. | stand. | stand. | 665 | 742 | 785 | 862 | 785 | 785 | 862 | |
| B grandinė | A | stand. | stand. | stand. | stand. | stand. | stand. | stand. | stand. | stand. | 572 | 572 | 572 | 622 | 692 | 785 | 862 | |
| Maks. paleidimo srovė - sumažinta paleidimo srovė / maks. suvartojamos srovės santykis, įrenginys | stand. | stand. | stand. | stand. | stand. | stand. | stand. | stand. | stand. | 1.64 | 1.60 | 1.56 | 1.53 | 1.46 | 1.42 | 1.40 | ||
| A grandinė | stand. | stand. | stand. | stand. | stand. | stand. | stand. | stand. | stand. | 2.05 | 1.94 | 1.84 | 1.79 | 1.84 | 1.84 | 1.79 | ||
| B grandinė | stand. | stand. | stand. | stand. | stand. | stand. | stand. | stand. | stand. | 2.69 | 2.69 | 2.69 | 2.39 | 1.97 | 1.84 | 1.79 | ||
| Trifazė trumpojo jungimo sulaikymo srovė | kA | 25 | 25 | 25 | 25 | 25 | 25 | 25 | 25 | 25 | N/A | N/A | N/A | N/A | N/A | N/A | N/A | |
| A grandinė | kA | - | - | - | - | - | - | - | - | - | 25 | 25 | 25 | 25 | 25 | 25 | 25 | |
| B grandinė | kA | - | - | - | - | - | - | - | - | - | 25 | 25 | 25 | 25 | 25 | 25 | 25 | |
| Kliento budėjimo galia, įrenginys arba A grandinė, skirta garintuvo vandens siurblio jungtims† | kW | 4 | 4 | 4 | 5.5 | 5.5 | 5.5 | 7.5 | 7.5 | 7.5 | 7.5 | 9 | 9 | 9 | 15 | 15 | 15 | |
* Standartinės Eurovent sąlygos: Į garintuvą įtekančio / ištekančio vandens temperatūra 12°C ir 7°C. Lauko oro temperatūra 35°C.
** Įėjimo galia, kompresorius ir ventiliatorius, esant įrenginio veikimo riboms (į garintuvą įtekančio / ištekančio vandens temperatūra = 15°C / 10°C, lauko oro temperatūra = 46°C) ir nominali įtampa 400 V (duomenys pateikti įrenginio vardinėje lentelėje).
*** Maksimali įrenginio darbinė srovė esant maksimaliai įrenginio įėjimo galiai.
**** Didžiausia momentinė paleidimo srovė (mažiausio (-ių) kompresoriaus (-ių) maksimali darbinė srovė + ventiliatoriaus srovė + užrakto rotoriaus srovė arba sumažinta didžiausio kompresoriaus paleidimo srovė).
† Srovės ir galios įėjimai neįtraukti į aukščiau pateiktas vertes
N/A Neprieinama
Kompresoriai
| Nuoroda | Dydis | I nom. | MHA | LRA | LRA (Y) | LRA (S) 1 cp. | LRA (S) 2 cp. |
| 06NA2146S7N | 39 | 70 | 95 | 605 | 191 | 220 | - |
| 06NA2174S7N | 46 | 90 | 120 | 715 | 226 | 260 | - |
| 06NA2209S7N | 56 | 113 | 145 | 856 | 270 | 330 | 420 |
| 06NA2250S7N | 66 | 130 | 175 | 960 | 303 | 380 | 500 |
| 06NA2300S5N | 80 | 156 | 210 | 1226 | 387 | 445 | 550 |
| 06NA2300S5E | 80+ | 174 | 240 | 1265 | 400 | 460 | 600 |
Legenda:
| 06NA | Kompresorius oru aušinamiems įrenginiams |
| N | Neekonomiškas kompresorius |
| E | Ekonomiškas kompresorius |
| INOM | Vidutinė kompresoriaus suvartojama srovė esant Eurovent sąlygoms |
| MHA | Privaloma išlaikyti amperus (maksimali darbinė srovė) esant 360 V |
| LRA | Užrakto rotoriaus srovė paleidžiant tiesiogiai |
| LRA (Y) | Užrakto rotoriaus srovė esant sumažintai srovei (paleidimo režimas žvaigždė / trikampis) |
| LRA (S) 1 cp. | Paleidimas sumažinta srove su elektroniniu starteriu (paleidimo trukmė ne daugiau kaip 3 sekundės) vienam kompresoriui grandinėje |
| LRA (S) 2 cp. | Paleidimas sumažinta srove su elektroniniu starteriu (paleidimo trukmė ne daugiau kaip 3 sekundės) dviem kompresoriams grandinėje |
TAIKYMO DUOMENYS
Įrenginio veikimo diapazonas
| Garintuvas | Minimum (Minimumas) | Maximum (Maksimumas) | |
| Į garintuvą patenkančio vandens temperatūra | °C | 6.8* | 21 |
| Iš garintuvo išeinančio vandens temperatūra | °C | 4** | 15 |
| Kondensatorius (aušinamas vandeniu) | Minimum (Minimumas) | Maximum (Maksimumas) | |
| Į kondensatorių patenkančio vandens temperatūra | °C | 20*** | 42 |
| Iš kondensatoriaus išeinančio vandens temperatūra | °C | 25 | 45 |
| Lauko aplinkos veikimo temperatūra 30HXC | °C | 6 | 40 |
| Kondensatorius (aušinamas oru) | Minimum (Minimumas) | Maximum (Maksimumas) | |
| Lauko aplinkos veikimo temperatūra | °C | 0 | 46 |
| Galimas statinis slėgis | kPa | 0 |
Pastabos:
* Jei reikia, kad įrenginys veiktų žemesnėje nei 6,8°C temperatūroje, kreipkitės į "Carrier s.a.", kad parinktų įrenginį naudojant "Carrier" elektroninį katalogą.
** Jei reikia, kad įrenginys veiktų žemesnėje nei 4°C temperatūroje, įrenginiuose reikia naudoti antifrizą.
*** Vandeniu aušinamiems įrenginiams (30HXC), veikiantiems visu pajėgumu ir žemesnėje nei 20°C kondensatoriaus įeinančio vandens temperatūroje, reikia naudoti galvos slėgio reguliatorių su analoginiais vandens valdymo vožtuvais (žr. pastraipą apie galvos slėgio reguliavimą).
Laikinais veikimo režimais (paleidimo ir dalinės apkrovos) įrenginys gali veikti, kai į kondensatorių patenka 13°C oro temperatūra.
Minimalus atšaldyto vandens srautas
Minimalus atšaldyto vandens srautas parodytas lentelėje kitame puslapyje. Jei srautas yra mažesnis už nurodytą, garintuvo srautas gali būti recirkuliuojamas, kaip parodyta diagramoje. Mišinio, išeinančio iš garintuvo, temperatūra niekada neturi būti mažesnė nei 2,8 K už atšaldyto vandens įeinančią temperatūrą.

MAŽIAUSIAM ATŠALDYTO VANDENS SRAUTO GREIČIUI
Maksimalus atšaldyto vandens srautas
Maksimalus atšaldyto vandens srautas yra ribojamas maksimalaus leistino slėgio kritimo garintuve. Jis pateikiamas lentelėje kitame puslapyje. Jei srautas viršija maksimalią vertę, galimi du sprendimai:
- Pasirinkite nestandartinį garintuvą su vienu vandens pratekėjimu mažiau, kuris leis didesnį maksimalų vandens srauto greitį.
- Apeikite garintuvą, kaip parodyta diagramoje, kad gautumėte aukštesnį temperatūrų skirtumą su mažesniu garintuvo srauto greičiu.

MAKSIMALIAM ATŠALDYTO VANDENS SRAUTO GREIČIUI
Kintamo srauto garintuvas
Kintamas garintuvo srautas gali būti naudojamas standartiniuose 30HXC ir 30GX aušintuvuose. Aušintuvai palaiko pastovią išeinančio vandens temperatūrą bet kokiomis srauto sąlygomis. Kad taip atsitiktų, minimalus srauto greitis turi būti didesnis už minimalų srautą, nurodytą leistinų srauto greičių lentelėje, ir neturi skirtis daugiau nei 10 % per minutę. Jei srauto greitis keičiasi greičiau, sistemoje turėtų būti ne mažiau kaip 6,5 litro vandens vienam kW, o ne 3,25 l/kW.
Sistemos minimalus vandens tūris
Nepriklausomai nuo sistemos, minimali vandens kontūro talpa nurodoma pagal formulę:
Talpa = Cap (kW) x N Litrai
| Taikymas | N |
| Normalus oro kondicionavimas | 3.25 |
| Proceso tipo aušinimas | 6.5 |
Kur Cap yra nominali sistemos aušinimo galia (kW) esant nominalioms įrengimo veikimo sąlygoms.
Šis tūris yra būtinas stabiliai veiklai ir tiksliam temperatūros valdymui.
Dažnai būtina į grandinę įdėti buferinę vandens talpyklą, kad būtų pasiektas reikiamas tūris. Pati talpykla turi būti su vidinėmis pertvaromis, kad būtų užtikrintas tinkamas skysčio (vandens arba sūrymo) maišymas. Žr. toliau pateiktus pavyzdžius.
PASTABA: Kompresorius neturi būti paleidžiamas iš naujo daugiau nei 6 kartus per valandą.


Aušintuvo srautas (l/s)
| 30HXC | Min.* | Max.** | ||
| 080-090 | 5.7 | 22.7 | ||
| 100 | 6.0 | 24.1 | ||
| 110 | 6.9 | 27.5 | ||
| 120-130 | 8.3 | 33.0 | ||
| 140-155 | 10.0 | 39.5 | ||
| 175-190 | 10.7 | 42.7 | ||
| 200 | 13.4 | 53.7 | ||
| 230 | 13.4 | 60.6 | ||
| 260-285 | 17.0 | 68.1 | ||
| 310 | 19.4 | 77.8 | ||
| 345-375 | 21.3 | 85.3 | ||
| 30GX | Min.* | Max.** | ||
| 082 | 5.7 | 22.7 | ||
| 092-102 | 6.0 | 24.1 | ||
| 112-122 | 6.9 | 27.5 | ||
| 132 | 8.4 | 33.7 | ||
| 152-162 | 10.0 | 39.9 | ||
| 182 | 10.7 | 42.7 | ||
| 207-227 | 13.4 | 53.7 | ||
| 247 | 15.1 | 60.6 | ||
| 267 | 17.0 | 68.1 | ||
| 298 | 19.4 | 77.8 | ||
| 328-358 | 21.3 | 85.3 | ||
* Pagrįsta vandens greičiu 0,9 m/s.
** Pagrįsta vandens greičiu 3,6 m/s.
Kondensatoriaus srautas (l/s)
| 30HXC | Min.* Uždaras ciklas | Atviras ciklas | Max.** |
| 080-110 | 2.5 | 7.5 | 29.9 |
| 120-130 | 3.1 | 9.3 | 37.3 |
| 140-155 | 3.8 | 11.4 | 45.5 |
| 175-190 | 4.6 | 13.8 | 55.2 |
| 200 | 5.0 | 14.9 | 59.6 |
| 230-285 | 6.7 | 20.1 | 80.3 |
| 310-375 | 7.3 | 22.0 | 88.0 |
* Pagrįsta vandens greičiu 0,3 m/s uždarame cikle ir 0,9 m/s atvirame cikle.
** Pagrįsta vandens greičiu 3,6 m/s
Garintuvo slėgio kritimo kreivė

- 30HXC 080-090/30GX 082
- 30HXC 100/30GX 092-102
- 30HXC 110/30GX 112-122
- 30GX 132
- 30HXC 120-130
- 30HXC 140-155/30GX 152-162
- 30HXC 175-190/30GX 182
- 30HXC 200/30GX 207-227
- 30HXC 230/30GX 247
- 30HXC 260-285/30GX 267
- 30HXC 310/30GX 298
- 30HXC 345-375/30GX 328-358
Kondensatoriaus slėgio kritimo kreivė

- 30HXC 080-090-100-110
- 30HXC 120-130
- 30HXC 140-155
- 30HXC 175-190
- 30HXC 200
- 30HXC 230-260-285
- 30HXC 310-345-375
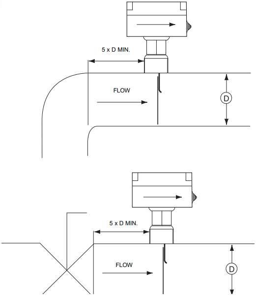
Srauto valdikliai
Aušintuvo srauto jungiklis ir atšaldyto vandens siurblio blokavimas
Būtina įrengti aušintuvo srauto jungiklį ir prijungti atšaldyto vandens siurblio blokavimą prie 30HXC ir 30GX. Nesilaikant šios instrukcijos, "Carrier" garantija negalios.
Aušintuvo srauto jungiklio valdiklis yra gamykloje tiekiamas ir prijungtas prie 30HXC ir 30GX įrenginių.
Montuodami vadovaukitės gamintojo instrukcijomis.
Srauto jungiklis gali būti montuojamas horizontalioje arba vertikalioje vamzdžio dalyje su kylančiu skysčio srautu. Jo negalima naudoti, kai skysčio srautas yra žemyn.
Montuokite vamzdžio dalyje, kurioje yra tiesus ruožas, kurio ilgis yra bent penki vamzdžio skersmenys kiekvienoje srauto jungiklio pusėje. Nemontuokite šalia vožtuvų, alkūnių ar angų. Mentė niekada neturi liesti vamzdžio ar bet kokio vamzdžio susiaurėjimo. Įsukite srauto jungiklį į vietą taip, kad plokščia mentės dalis būtų stačiu kampu į srautą. Rodyklės ant dangtelio ir apačioje, korpuso viduje, turi rodyti srauto kryptį. Jungiklis turi būti sumontuotas taip, kad gnybtai būtų lengvai pasiekiami, kad būtų galima lengvai prijungti laidus.
Gnybtai 34 ir 35 yra skirti atšaldyto vandens siurblio blokavimui (atšaldyto vandens siurblio kontaktoriaus pagalbiniam kontaktui) įrengti vietoje.
(Vamzdžio jungtis: 1" NPT)

Kondensatoriaus srauto jungiklis (30HXC)
Kondensatoriaus srauto jungiklis yra vietoje įrengiamas įrenginys.
ĮDIEGIMAS
Gautos įrangos patikrinimas
- Apžiūrėkite įrenginį, ar nėra pažeidimų ar trūkstamų dalių. Jei pastebėjote pažeidimų arba jei siunta neišsami, nedelsdami pateikite pretenziją siuntų įmonei.
- Patvirtinkite, kad gautas įrenginys yra tas, kurį užsakėte. Palyginkite duomenų lentelės duomenis su užsakymu.
- Patvirtinkite, kad visi užsakyti priedai, skirti montuoti vietoje, buvo pristatyti, yra pilni ir nepažeisti.
- Nelaikykite įrenginių vietoje, kurioje jie yra veikiami oro sąlygų, nes valdymo mechanizmas ir elektroniniai prietaisai yra jautrūs.
Įrenginio perkėlimas ir pastatymas
Perkėlimas
Neišimkite slydimo blokų, padėklų ar apsauginės pakuotės, kol įrenginys nebus galutinėje padėtyje. Perkelkite aušintuvą naudodami vamzdžius arba ritinėlius arba pakelkite jį naudodami tinkamo pajėgumo stropus.
(30HXC)
Naudokite tik stropus tam skirtose kėlimo vietose, kurios yra pažymėtos ant įrenginio, aušintuvo šilumokaičio viršuje. Tvirtinimas nuo šilumokaičio apačios sukels nesaugų įrenginio pakėlimą. Galite susižaloti arba sugadinti įrenginį. Laikykitės tvirtinimo instrukcijų, pateiktų sertifikuotame matmenų brėžinyje, pateiktame kartu su įrenginiu.
Pastatymas
Visada žiūrėkite skyrių "Matmenys ir tarpai", kad įsitikintumėte, jog yra pakankamai vietos visoms jungtims ir aptarnavimo operacijoms. Apie svorio centro koordinates, įrenginio tvirtinimo angų padėtį ir svorio paskirstymo taškus žiūrėkite sertifikuotame matmenų brėžinyje, pateiktame kartu su įrenginiu.
Rekomenduojame šiuos aušintuvus montuoti rūsyje arba ant žemės. Jei vienas iš jų turi būti sumontuotas virš žemės lygio, pirmiausia patikrinkite, ar leidžiama grindų apkrova yra pakankama ir ar grindys yra pakankamai tvirtos ir lygios. Jei reikia, sustiprinkite ir išlyginkite grindis.
Kai aušintuvas yra galutinėje vietoje, nuimkite slydimo blokus ir kitus įrenginius, naudojamus jam perkelti. Išlyginkite įrenginį naudodami gulsčiuką ir pritvirtinkite įrenginį prie grindų arba cokolių varžtais. Šių įrenginių veikimas gali būti sutrikdytas, jei jie nėra lygūs ir saugiai pritvirtinti prie savo tvirtinimo elementų. Jei reikia, naudokite izoliacines trinkeles po įrenginiu, kad padėtumėte izoliuoti vibraciją.
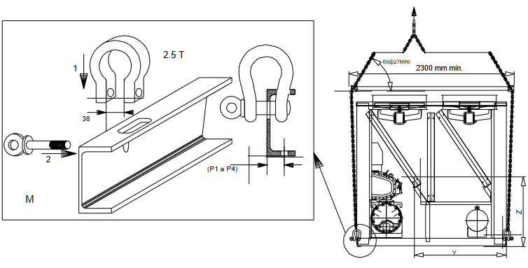
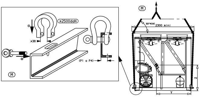
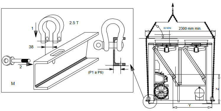
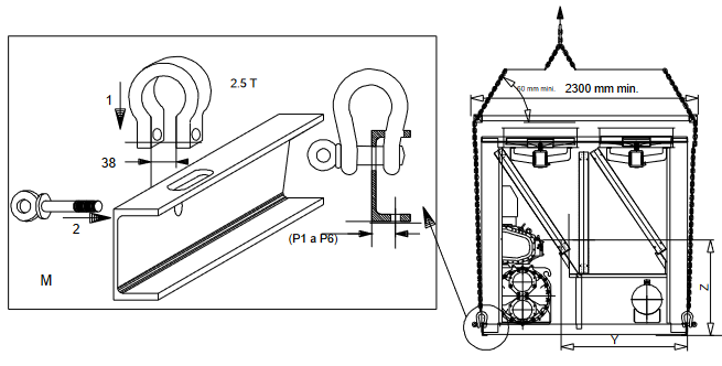
KĖLIMO INSTRUKCIJOS
30HXC 080-190
Ši diagrama pateikiama tik informaciniais tikslais. Žiūrėkite "sertifikuotus brėžinius".

- IŠSKYRUS 30HXC 190
X mm Y mm Z mm 30HXC080
30HXC090
30HXC1001345 402 903 30HXC110 1368 397 935 30HXC120
30HXC130
30HXC140
30HXC1551731 392 879 30HXC175 1703 386 947 30HXC190 1705 398 955


PASTABA
Kai visos kėlimo ir pozicionavimo operacijos bus baigtos, rekomenduojama pataisyti visus paviršius, nuo kurių buvo pašalinti dažai ant kėlimo ąsų.
30HXC 200-285
Ši diagrama pateikiama tik informaciniais tikslais. Žiūrėkite "sertifikuotus brėžinius".


30HXC 310-375


| X mm | Y mm | Z mm | |
| 30HXC310 | 2195 | 425 | 1085 |
| 30HXC345 | 2195 | 425 | 1085 |
| 30HXC375 | 2205 | 435 | 1025 |
PASTABA
Kai visos kėlimo ir pozicionavimo operacijos bus baigtos, rekomenduojama pataisyti visus paviršius, nuo kurių buvo pašalinti dažai ant kėlimo ąsų.
30GX 082-162
Ši diagrama pateikiama tik informaciniais tikslais. Žiūrėkite "sertifikuotus brėžinius".



| X mm | Y mm | Z mm | PTkg | |
| 30GX082 | 1440 | 1460 | 900 | 3115 |
| 30GX092 | 1440 | 1460 | 900 | 3156 |
| 30GX102 | 1440 | 1460 | 900 | 3170 |
| 30GX112 | 1650 | 1460 | 900 | 3574 |
| 30GX122 | 1650 | 1460 | 900 | 3527 |
| 30GX132 | 1650 | 1460 | 900 | 3634 |
| 30GX152 | 2155 | 1430 | 900 | 3938 |
| 30GX162 | 2155 | 1430 | 900 | 3954 |
30GX 182



| X mm | Y mm | Z mm | PTkg | |
| 30GX182 | 3030 | 1370 | 875 | 4853 |
PASTABA
Kai visos kėlimo ir pozicionavimo operacijos bus baigtos, rekomenduojama pataisyti visus paviršius, nuo kurių buvo pašalinti dažai ant kėlimo ąsos.
30GX 207-267
Ši diagrama pateikiama tik informaciniais tikslais. Žiūrėkite "sertifikuotus brėžinius".



| X mm | Y mm | Z mm | PTkg | |
| 30GX207 | 2870 | 1440 | 890 | 5536 |
| 30GX227 | 2870 | 1440 | 890 | 5572 |
| 30GX247 | 3320 | 1430 | 927 | 6131 |
| 30GX267 | 3300 | 1420 | 886 | 6363 |
30GX 298-358



| X mm | Y mm | Z mm | PTkg | |
| 30GX298 | 3630 | 1420 | 890 | 7353 |
| 30GX328 | 4360 | 1455 | 920 | 7840 |
| 30GX358 | 4360 | 1445 | 930 | 8045 |
PASTABA
Kai visos kėlimo ir pozicionavimo operacijos bus baigtos, rekomenduojama pataisyti visus paviršius, nuo kurių buvo pašalinti dažai ant kėlimo ąsų.
Vamzdžių jungtys
Apie visų vandens įleidimo ir išleidimo jungčių dydžius ir padėtis žiūrėkite sertifikuotuose matmenų brėžiniuose. Vandens vamzdžiai neturi perduoti jokios radialinės ar ašinės jėgos šilumokaičiams ar jokios vibracijos vamzdynams ar pastatui.
Vandens tiekimas turi būti išanalizuotas ir, jei reikia, įmontuoti atitinkami filtravimo, apdorojimo, valdymo įtaisai, izoliavimo ir nuorinimo vožtuvai bei grandinės. Pasitarkite su vandens apdorojimo specialistu arba atitinkama literatūra šia tema.
Eksploatavimo atsargumo priemonės
Vandens grandinė turėtų būti suprojektuota taip, kad būtų kuo mažiau alkūnių ir horizontalių vamzdžių atkarpų skirtinguose lygiuose. Reikėtų atlikti šiuos pagrindinius patikrinimus (taip pat žiūrėkite tipinės hidraulinės grandinės iliustraciją žemiau).
- Atkreipkite dėmesį į šilumokaičių vandens įleidimo ir išleidimo angas.
- Visuose aukščiausiuose vandens grandinės taškuose įmontuokite rankinius arba automatinius oro išleidimo vožtuvus.
- Norėdami palaikyti slėgį sistemoje, naudokite išsiplėtimo kamerą arba išsiplėtimo/slėgio mažinimo vožtuvą.
- Įmontuokite vandens termometrus ir manometrus tiek įeinančiose, tiek išeinančiose vandens jungtyse šalia garintuvo.
- Visuose žemiausiuose taškuose įmontuokite išleidimo vožtuvus, kad būtų galima išleisti visą grandinę. Prieš paleisdami aušintuvą, išleidimo linijoje prijunkite uždarymo vožtuvą.
- Įmontuokite uždarymo vožtuvus ir manometrus šalia garintuvo, įeinančiose ir išeinančiose vandens linijose.
- Įmontuokite aušintuvo srauto jungiklį.
- Naudokite lanksčias jungtis, kad sumažintumėte vibracijos perdavimą vamzdynams.
- Po patikrinimo, ar nėra nuotėkių, izoliuokite visus vamzdynus, kad sumažintumėte šilumos nuotėkius ir išvengtumėte kondensacijos.
- Uždenkite izoliaciją garų barjeru.
Garintuvo ir kondensatoriaus jungtys
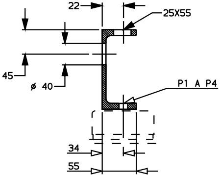
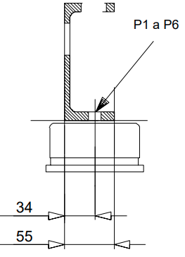
Garintuvas ir kondensatorius yra daugiatubiai korpuso ir vamzdžių tipo su nuimamomis vandens dėžėmis, kad būtų lengviau valyti vamzdžius.
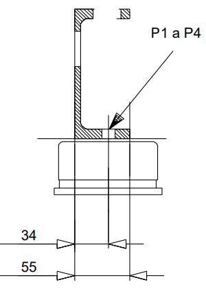
Prieš prijungdami vandens jungtis, priveržkite abiejų galvučių varžtus iki mažesnio parodyto sukimo momento, laikydamiesi aprašyto metodo. Priveržkite poromis ir nurodyta seka pagal varžto dydį (žiūrėkite lentelę), naudodami sukimo momento vertę, esančią žemame nurodyto diapazono gale.
Prieš privirindami vamzdžius prie flanšo, nuimkite gamykloje tiekiamą plokščią flanšą nuo vandens dėžės. Jei nenuimsite flanšo, galite sugadinti jutiklius ir izoliaciją.
PASTABA
Rekomenduojame išleisti sistemą ir atjungti vamzdynus, kad įsitikintumėte, jog galvučių, prie kurių prijungti vamzdynai, varžtai yra tinkamai ir vienodai priveržti.
Apsauga nuo užšalimo
Garintuvo ir vandeniu aušinamo kondensatoriaus apsauga
Jei aušintuvas arba vandens vamzdynai yra zonoje, kurioje aplinkos temperatūra gali nukristi žemiau 0°C, rekomenduojama įpilti antifrizo tirpalo, kad apsaugotumėte įrenginį ir vandens vamzdynus iki 8 K žemesnės temperatūros nei žemiausia temperatūra. Naudokite tik antifrizo tirpalus, patvirtintus naudoti šilumokaičiuose. Jei sistema nėra apsaugota antifrizo tirpalu ir nebus naudojama šaltu oru, būtina išleisti aušintuvą ir lauko vamzdynus. Žala dėl užšalimo garantijai netaikoma.
Vandens dėžės priveržimo seka

Legenda
- 1 seka: 1 2 3 4
2 seka: 5 6 7 8
3 seka: 9 10 11 12 - Priveržimo sukimo momentas
Varžto dydis M16 - 171 - 210 Nm
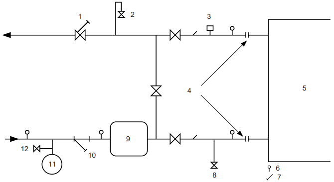
Tipinė hidraulinės grandinės schema

Legenda
- Valdymo vožtuvas
- Oro išleidimo anga
- Srauto jungiklis
- Lanksti jungtis
- Šilumokaitis
- Slėgio atšaka
- Termostato mova
- Drenažas
- Buferinė talpykla
- Filtras
- Išsiplėtimo talpykla
- Pripildymo vožtuvas
ELEKTROS CHARAKTERISTIKOS
- 30HXC 080-190 ir 30GX 082-182 turi tik vieną maitinimo atjungimo / izoliavimo jungiklį.
- 30HXC 200-375 ir 30GX 207-358 turi du maitinimo atjungimo / izoliavimo jungiklius.
- Valdymo dėžutėje standartiškai yra:
- Paleidikliai ir variklių apsaugos įtaisai kiekvienam kompresoriui ir ventiliatoriams
- Valdymo komponentai
- Jungtys vietoje:
Visos pagrindinio maitinimo jungtys ir elektros instaliacija turi būti atliekamos pagal vietoje taikomas direktyvas. - 30HXC ir 30GX yra suprojektuoti taip, kad būtų lengviau laikytis šių direktyvų. 30HXC ir 30GX elektros įrangos projektavimas atitinka Europos standartą EN 60204-1 (mašinų sauga - mašinų elektros įranga - 1 dalis: bendrosios taisyklės).
Standartas EN 60204-1 yra gera priemonė reaguojant į Mašinų direktyvos § 1.5.1 reikalavimus. Norminė rekomendacija IEC 364 paprastai pripažįstama atitinkančia įrengimo reglamento reikalavimus.
Standarto EN 60204-1 B priedas gali būti naudojamas apibūdinti elektros charakteristikas, kuriomis veikia mašinos.
30HXC
- Standartinio 30HXC veikimo sąlygos aprašytos žemiau:
- Aplinkos sąlygos(1). Aplinkos klasifikacija aprašyta standarte IEC 364 § 3:
- Aplinkos temperatūros diapazonas: + 6°C iki + 40°C, klasifikacija AA4
- Drėgmės diapazonas (nekondensuojantis)
50% santykinis drėgnis esant 40°C
90% santykinis drėgnis esant 20°C - Aukštis - 2000 m(1)
- Skirta montuoti patalpose
- Vandens buvimas: klasifikacija AD2(1) (galimi vandens lašeliai)
- Kietųjų dalelių buvimas: klasifikacija AE2(1) (nereikšmingų dalelių buvimas)
- Korozinių medžiagų ir teršalų buvimas, klasifikacija AF1 (nereikšmingas)
- Vibracija, smūgis: klasifikacija AG2, AH2 Personalo kompetencija: klasifikacija BA4(1) (personalas, kvalifikuotas pagal IEC 364).
- Aplinkos sąlygos(1). Aplinkos klasifikacija aprašyta standarte IEC 364 § 3:
(1) Apsaugos standartas, reikalingas atsižvelgiant į šią klasifikaciją, yra IP21B (pagal etaloninį dokumentą IEC 529). Visi 30HXC turi IP23C apsaugos standartą ir todėl atitinka šį apsaugos reikalavimą.
30GX
- 30GX veikimo sąlygos aprašytos žemiau:
- Aplinkos sąlygos(2). Aplinkos klasifikacija aprašyta standarte EN 60721:
- Skirta montuoti lauke(2)
- Aplinkos temperatūros diapazonas: - 18°C iki + 46°C, klasifikacija 4K3(2)
- Aukštis 2000 m(2)
- Kietųjų dalelių buvimas: klasifikacija 4S2 (nereikšmingų dalelių buvimas)
- Korozinių medžiagų ir teršalų buvimas, klasifikacija 4C2 (nereikšmingas)
- Vibracija, smūgis: klasifikacija 4M2
- Aplinkos sąlygos(2). Aplinkos klasifikacija aprašyta standarte EN 60721:
Personalo kompetencija: klasifikacija BA4(2) (personalas, kvalifikuotas pagal IEC 364).
(2) Apsaugos standartas, reikalingas atsižvelgiant į šią klasifikaciją, yra IP43BW (pagal etaloninį dokumentą IEC 529). Visi 30GX turi IP45CW apsaugos standartą ir todėl atitinka šį apsaugos reikalavimą.
30HXC/GX
- Maitinimo dažnio svyravimas: ± 2 Hz
- Apsauga nuo viršsrovių maitinimo laidams nėra tiekiama kartu su įrenginiu.
- Gamykloje sumontuotas atjungimo / izoliavimo jungiklis yra "a" tipo izoliatorius. (EN60204-1 § 5.3.2).
PASTABA: Jei tam tikri įrengimo aspektai reikalauja kitokių charakteristikų nei išvardytos aukščiau (arba čia nepaminėtos charakteristikos), susisiekite su savo "Carrier" atstovu.
Maitinimo šaltinis
Maitinimo šaltinis turi atitikti specifikaciją, nurodytą aušintuvo vardinėje lentelėje. Maitinimo įtampa turi būti nurodytame elektros duomenų lentelės diapazone.
Dėl jungčių žiūrėkite laidų schemas.
Aušintuvo veikimas su netinkama maitinimo įtampa arba per dideliu fazių disbalansu yra piktnaudžiavimas, kuris panaikins "Carrier" garantiją. Jei fazių disbalansas viršija 2% įtampai arba 10% srovei, nedelsdami susisiekite su vietiniu elektros energijos tiekėju ir įsitikinkite, kad aušintuvas neįjungiamas, kol nebus imtasi korekcinių priemonių.
Įtampos fazių disbalansas (%):
100 x maks. nuokrypis nuo vidutinės įtampos
Vidutinė įtampa
Pavyzdys:
Esant 400 V - 3 ph - 50 Hz maitinimui, buvo išmatuotos šios atskiros fazių įtampos:
AB = 406 V; BC = 399; AC = 394 V
| Vidutinė įtampa | = (406 + 399 + 394)/3 = 1199/3 |
| = 399.7 sakykime 400 V |
Apskaičiuokite maksimalų nuokrypį nuo 400 V vidurkio:
(AB) = 406 - 400 = 6
(BC) = 400 - 399 = 1
(CA) = 400 - 394 = 6

Maksimalus nuokrypis nuo vidurkio yra 6 V. Didžiausias procentinis nuokrypis yra:
100 x 6/400 = 1.5 %
Tai yra mažiau nei leistini 2% ir todėl yra priimtina.
REKOMENDUOJAMI LAIDŲ SKERSPJŪVIAI
Laido dydį nustato montuotojas, atsižvelgdamas į kiekvienos įrengimo vietos ypatybes ir taisykles. Toliau pateikiama tik orientacinė informacija, ir "Carrier" jokiu būdu neprisiima atsakomybės. Baigus nustatyti laido dydį, montuotojas, naudodamasis sertifikuotu matmenų brėžiniu, turi užtikrinti lengvą prijungimą ir nustatyti visus būtinus pakeitimus vietoje.
Jungtys, standartiniu būdu numatytos lauko tiekiamiems maitinimo įvadiniams kabeliams prie bendrojo atjungiklio / izoliatoriaus jungiklio, yra skirtos laidų skaičiui ir tipui, nurodytam toliau esančioje lentelėje.
Skaičiavimai pagrįsti maksimalia įrenginio srove (žr. elektros duomenų lenteles).
Projektuojant naudojami šie standartizuoti įrengimo metodai pagal IEC 364, 52C lentelę:
- 30HX įrenginiams, įrengtiems pastato viduje: Nr. 13: perforuotas horizontalus kabelių kanalas ir Nr. 41: uždaras kanalas.
- 30GX įrenginiams, įrengtiems pastato išorėje: Nr. 17: pakabinamos oro linijos ir Nr. 61: užkastas kanalas su 20 % galios sumažinimo koeficientu.
Skaičiavimas pagrįstas PVC arba XLPE izoliuotais kabeliais su vario arba aliuminio šerdimi. Didžiausia temperatūra yra 40 °C 30HX įrenginiams ir 46 °C 30GX įrenginiams.
Nurodytas laido ilgis apriboja įtampos kritimą iki < 5%.
| Unit (Įrenginys) | Min. (mm2) by phase (Min. (mm2) pagal fazę) | Wire type (Laido tipas) | L (m) | Max. (mm2) by phase (Maks. (mm2) pagal fazę) | Wire type (Laido tipas) | L (m) |
| 30HX 080 | 1 x 35 | XLPE Cu | 140 | 1 x 120 | PVC Al | 260 |
| 30HX 090 | 1 x 50 | XLPE Cu | 160 | 1 x 120 | PVC Al | 260 |
| 30HX 100 | 1 x 50 | XLPE Cu | 160 | 1 x 95 | XLPE Al | 195 |
| 30HX 110 | 1 x 70 | XLPE Cu | 170 | 1 x 120 | XLPE Al | 205 |
| 30HX 120/130 | 1 x 70 | XLPE Cu | 170 | 1 x 150 | XLPE Al | 210 |
| 30HX 140 | 1 x 95 | XLPE Cu | 180 | 1 x 185 | XLPE Al | 220 |
| 30HX 155 | 1 x 95 | XLPE Cu | 180 | 1 x 240 | XLPE Al | 225 |
| 30HX 175 | 1 x 120 | XLPE Cu | 185 | 1 x 240 | XLPE Al | 225 |
| 30HX 190 | 1 x150 | XLPE Cu | 190 | 2 x 95 | XLPE Al | 195 |
| 30HX 200 ckt A | 1 x 70 | XLPE Cu | 170 | 2 x120 | PVC Al | 325 |
| 30HX 230 ckt A | 1 x 95 | XLPE Cu | 180 | 2 x 120 | PVC Al | 325 |
| 30HX 260 ckt A | 1 x 120 | XLPE Cu | 185 | 1 x 240 | XLPE Al | 225 |
| 30HX 285 ckt A | 1 x 150 | XLPE Cu | 190 | 2 x 150 | XLPE Al | 265 |
| 30HX 200 ckt B | 1 x 35 | XLPE Cu | 140 | 1 x 95 | PVC Al | 250 |
| 30HX 230 ckt B | 1 x 35 | XLPE Cu | 140 | 1 x 120 | PVC Al | 260 |
| 30HX 260 ckt B | 1 x 35 | XLPE Cu | 140 | 1 x 120 | PVC Al | 260 |
| 30HX 285 ckt B | 1 x 50 | XLPE Cu | 160 | 2 x 70 | PVC Al | 285 |
| 30HX 310 ckt A & B | 1 x 95 | XLPE Cu | 180 | 1 x 240 | XLPE Al | 225 |
| 30HX 345 ckt A & B | 1 x 120 | XLPE Cu | 185 | 1 x 240 | XLPE Al | 225 |
| 30HX 375 ckt A & B | 1 x 150 | XLPE Cu | 190 | 2 x 150 | XLPE Al | 265 |
| 30GX 082 | 1 x 95 | XLPE Cu | 190 | 2 x 185 | PVC Al | 420 |
| 30GX 092 | 1 x 120 | XLPE Cu | 195 | 2 x 185 | PVC Al | 420 |
| 30GX 102 | 1 x 120 | XLPE Cu | 195 | 2 x 240 | PVC Al | 450 |
| 30GX 112 | 1 x 150 | XLPE Cu | 200 | 2 x 150 | XLPE Al | 300 |
| 30GX 122 | 1 x 185 | XLPE Cu | 205 | 2 x 185 | XLPE Al | 315 |
| 30GX 132 | 1 x 185 | XLPE Cu | 205 | 2 x 240 | XLPE Al | 330 |
| 30GX 152 | 1 x 240 | XLPE Cu | 205 | 3x 185 | XLPE CU | 430 |
| 30GX 162 | 2 x 95 | XLPE Cu | 190 | 3x 240 | XLPE CU | 440 |
| 30GX 182 | 2 x 120 | XLPE Cu | 200 | 3x 240 | XLPE CU | 440 |
| 30GX 207 ckt A | 1 x 185 | XLPE Cu | 205 | 3x 185 | XLPE Al | 445 |
| 30GX 227 ckt A | 1 x 240 | XLPE Cu | 205 | 3x 240 | XLPE Al | 470 |
| 30GX 247/298/328 ckt A | 2 x 120 | XLPE Cu | 225 | 3x 185 | XLPE CU | 490 |
| 30HX 267/358 ckt A | 2 x 150 | XLPE Cu | 230 | 3x 240 | XLPE CU | 505 |
| 30GX 207/227/247 ckt B | 1 x 95 | XLPE Cu | 190 | 2 x 240 | PVC Al | 560 |
| 30HX 267 ckt B | 1 x 120 | XLPE Cu | 200 | 2 x 185 | XLPE AL | 395 |
| 30GX 298 ckt B | 1 x 185 | XLPE Cu | 205 | 3x 240 | XLPE AL | 470 |
| 30GX 328 ckt B | 2 x 120 | XLPE Cu | 225 | 3x 185 | XLPE CU | 490 |
| 30GX 358 ckt B | 2 x 150 | XLPE Cu | 230 | 3x 240 | XLPE CU | 505 |
Prieš prijungiant pagrindinius maitinimo kabelius (L1 - L2 - L3) prie gnybtų bloko, būtina patikrinti teisingą 3 fazių eiliškumą prieš tęsiant prijungimą prie gnybtų bloko arba pagrindinio atjungimo/izoliavimo jungiklio.
Lauko valdymo laidai
Norėdami sužinoti apie lauko valdymo laidus šioms funkcijoms, žiūrėkite Valdiklių IOM ir sertifikuotą laidų schemą, pateiktą kartu su įrenginiu:
- Garintuvo siurblio blokavimas (privalomas)
- Nuotolinis įjungimo/išjungimo jungiklis
- Kondensatoriaus srauto jungiklis (tiekiamas vietoje, tik 30HXC)
- Nuotolinis šildymo/vėsinimo jungiklis
- Išorinis galios apribojimo jungiklis 1
- Nuotolinis dvigubas nustatytasis taškas
- Avarinis pranešimas pagal grandinę
- Garintuvo siurblio valdymas
- Kondensatoriaus siurblio valdymas (tik 30HXC)
- Nuotolinis nustatytojo taško atstatymas arba lauko oro temperatūros jutiklio atstatymas (0–10 V)
Rekomenduojami laidų skerspjūviai įrenginiams su aukšta kondensacijos temperatūra (400 V – 3 fazės – 50 Hz)
| Įrenginys, parinktys 150 + 150A 400 V – 3 fazės – 50 Hz | Min. (mm2) vienai fazei | Laido tipas | L (m) | Maks. (mm2) vienai fazei | Laido tipas | L (m) |
| 30HXC 080 OPT. 150 | 1 x 50 | XLPE Cu | 150 | 2 x 70 | PVC Al | 230 |
| 30HXC 090 OPT. 150 | 1 x 70 | XLPE Cu | 160 | 2 x 95 | PVC Al | 260 |
| 30HXC 100 OPT. 150 | 1 x 70 | XLPE Cu | 160 | 2 x 95 | PVC Al | 250 |
| 30HXC 110 OPT. 150 | 1 x 95 | XLPE Cu | 170 | 2 x 120 | PVC Al | 265 |
| 30HXC 120 OPT. 150 | 1 x 120 | XLPE Cu | 180 | 2 x 120 | XLPE Al | 205 |
| 30HXC 130 OPT. 150 | 1 x 120 | XLPE Cu | 160 | 2 x 120 | XLPE Al | 210 |
| 30HXC 140 OPT. 150 | 1 x 150 | XLPE Cu | 175 | 2 x 120 | XLPE Al | 205 |
| 30HXC 155 OPT. 150 | 1 x 185 | XLPE Cu | 185 | 2 x 150 | XLPE Al | 215 |
| 30HXC 175 OPT. 150 | 1 x 240 | XLPE Cu | 185 | 2 x 150 | XLPE Al | 210 |
| 30HXC 190 OPT. 150 | 2 x 95 | XLPE Cu | 175 | 2 x 240 | XLPE Al | 220 |
| 30HXC 200 OPT. 150 circ. A | 1 x 120 | XLPE Cu | 170 | 2 x 150 | XLPE Al | 270 |
| 30HXC 230 OPT. 150 circ. A | 1 x 150 | XLPE Cu | 180 | 2 x 185 | XLPE Al | 270 |
| 30HXC 260 OPT. 150 circ. A | 1 x 185 | XLPE Cu | 180 | 2 x 240 | XLPE Al | 295 |
| 30HXC 285 OPT. 150 circ. A | 1 x 240 | XLPE Cu | 170 | 2 x 185 | XLPE Cu | 265 |
| 30HXC 310 OPT. 150 circ. A | 1 x 185 | XLPE Cu | 180 | 2 x 240 | XLPE Al | 300 |
| 30HXC 345 OPT. 150 circ. A | 1 x 185 | XLPE Cu | 170 | 2 x 240 | XLPE Al | 280 |
| 30HXC 375 OPT. 150 circ. A | 1 x 240 | XLPE Cu | 170 | 2 x 185 | XLPE Cu | 265 |
| 30HXC 200 OPT. 150 circ. B | 1 x 35 | XLPE Cu | 125 | 2 x 95 | PVC Al | 320 |
| 30HXC 230 OPT. 150 circ. B | 1 x 50 | XLPE Cu | 140 | 2 x 95 | PVC Al | 310 |
| 30HXC 260 OPT. 150 circ. B | 1 x 50 | XLPE Cu | 140 | 2 x 95 | PVC Al | 310 |
| 30HXC 285 OPT. 150 circ. B | 1 x 70 | XLPE Cu | 160 | 2 x 120 | PVC Al | 325 |
| 30HXC 310 OPT. 150 circ. B | 1 x 150 | XLPE Cu | 180 | 2 x 185 | XLPE Al | 275 |
| 30HXC 345 OPT. 150 circ. B | 1 x 185 | XLPE Cu | 185 | 2 x 240 | XLPE Al | 305 |
| 30HXC 375 OPT. 150 circ. B | 1 x 185 | XLPE Cu | 160 | 2 x 240 | XLPE Al | 280 |
PAGRINDINIAI SISTEMOS KOMPONENTAI IR VEIKIMO DUOMENYS
Pavarų dviejų sraigtų kompresorius
- 30HXC ir 30GX įrenginiuose naudojami 06N pavarų dviejų sraigtų kompresoriai
- 06NA naudojami 30GX (oro aušinimo kondensavimo įrenginiuose)
- 06NW naudojami 30HXC (vandens aušinimo kondensavimo įrenginiuose)
- Nominalus našumas svyruoja nuo 39 iki 80 tonų. Ekonomiški arba neekonomiški modeliai naudojami priklausomai nuo 30HXC ir 30GX įrenginio dydžio.
Alyvos filtras
06N sraigtiniame kompresoriuje yra integruotas alyvos filtras kompresoriaus korpuse. Šį filtrą galima pakeisti vietoje.
Šaltnešis
06N sraigtinis kompresorius yra specialiai sukurtas naudoti tik R134 a sistemoje.
Tepalas
06N sraigtiniam kompresoriui leidžiama naudoti šį tepalą.
CARRIER MATERIAL SPEC PP 47-32
Alyvos tiekimo solenoidinis vožtuvas
Alyvos tiekimo solenoidinis vožtuvas yra standartinė kompresoriaus dalis, skirta atjungti kompresorių nuo alyvos srauto, kai kompresorius neveikia.
Alyvos solenoidą galima pakeisti vietoje.
Įsiurbimo ir ekonomizatoriaus tinkleliai
Siekiant padidinti kompresoriaus patikimumą, tinklelis buvo įtrauktas kaip standartinė funkcija į kompresoriaus įsiurbimo ir ekonomizatoriaus įvadus.
Iškrovimo sistema
06N sraigtinis kompresorius turi iškrovimo sistemą, kuri yra standartinė visuose kompresoriuose. Šią iškrovimo sistemą sudaro du iškrovimo etapai, kurie sumažina kompresoriaus našumą nukreipiant iš dalies suspaustas dujas atgal į įsiurbimą.
Garintuvas
30HXC ir 30GX aušintuvuose naudojamas užtvindytas garintuvas. Vanduo cirkuliuoja vamzdeliuose, o šaltnešis yra išorėje, korpuse. Vienas indas naudojamas abiem šaltnešio kontūrams aptarnauti. Yra centrinis vamzdžių lakštas, kuris atskiria du šaltnešio kontūrus. Vamzdeliai yra 3/4 colio skersmens variniai, su patobulintu paviršiumi viduje ir išorėje. Yra tik vienas vandens kontūras, ir, priklausomai nuo aušintuvo dydžio, gali būti du arba trys vandens praėjimai. Vėsesnis skysčio lygio jutiklis užtikrina optimizuotą srauto valdymą.
Aušintuvo viršuje yra du įsiurbimo vamzdžiai, po vieną kiekviename kontūre. Kiekvienas iš jų turi privirintą flanšą, o kompresorius montuojamas ant flanšo.
Kondensatorius ir alyvos separatorius (30HXC)
30HXC aušintuve naudojamas indas, kuris yra kombinuotas kondensatorius ir alyvos separatorius. Jis montuojamas žemiau aušintuvo. Išleidžiamos dujos palieka kompresorių ir teka per išorinį duslintuvą į alyvos separatorių, kuris yra viršutinė indo dalis. Jis patenka į separatoriaus viršų, kur pašalinama alyva, o tada teka į apatinę indo dalį, kur dujos kondensuojasi ir atšaldomos. Vienas indas naudojamas abiem šaltnešio kontūrams aptarnauti. Yra centrinis vamzdžių lakštas, kuris atskiria du šaltnešio kontūrus. Vamzdeliai yra 3/4 colio arba 1 colio skersmens variniai, su patobulintu paviršiumi viduje ir išorėje. Yra tik vienas vandens kontūras su dviem vandens praėjimais.
Alyvos separatorius (30GX)
Oro aušinamuose įrenginiuose alyvos separatorius yra slėginis indas, kuris montuojamas po išoriniais vertikaliais kondensatoriaus ritėmis. Išleidžiamos dujos patenka į separatoriaus viršų, kur didžioji dalis alyvos atskiriama ir nuteka į apačią. Tada dujos teka per vielos tinklo ekraną, kur likusi alyva atskiriama ir nuteka į apačią.
Elektroninis išsiplėtimo įrenginys (EXD)
Mikroprocesorius valdo EXD per EXV valdymo modulį. EXD bus arba EXV, arba ekonomizatorius. Abiejuose šiuose įrenginiuose yra linijinis pavaros žingsninis variklis. Aukšto slėgio skystas šaltnešis patenka į vožtuvą per apačią. Orifiso mazgo viduje yra keletas kalibruotų angų. Kai šaltnešis praeina pro angą, slėgis sumažėja ir šaltnešis pereina į 2 fazių būseną (skystis ir garai). Norint valdyti šaltnešio srautą skirtingomis veikimo sąlygomis, įvorė juda aukštyn ir žemyn virš angos, taip keičiant efektyvų išsiplėtimo įrenginio srauto plotą. Įvorę judina linijinis žingsninis variklis. Žingsninis variklis juda žingsniais ir yra tiesiogiai valdomas procesoriaus modulio. Kai žingsninis variklis sukasi, judesys perduodamas į linijinį judesį per pagrindinį sraigtą. Per žingsninį variklį ir pagrindinius sraigtus gaunama 1500 atskirų judesio žingsnių. Didelis žingsnių skaičius ir ilgas eiga užtikrina labai tikslų šaltnešio srauto valdymą. Kiekvienas kontūras turi skysčio lygio jutiklį, sumontuotą vertikaliai į aušintuvo korpuso viršų. Lygio jutiklį sudaro mažas elektrinis varžos šildytuvas ir trys termistoriai, sujungti nuosekliai ir išdėstyti skirtinguose aukščiuose korpuso viduje. Šildytuvas suprojektuotas taip, kad termistoriai rodytų maždaug 93,3 °C sausame ore. Kai šaltnešio lygis aušintuve pakyla, artimiausio termistoriaus (-ių) varža labai pasikeis. Šis didelis varžos skirtumas leidžia valdikliui tiksliai palaikyti nurodytą lygį. Lygio jutiklis stebi šaltnešio skysčio lygį aušintuve ir siunčia šią informaciją į PSIO-1. Pradinio paleidimo metu EXV padėtis yra nulinė. Po to mikroprocesorius tiksliai seka vožtuvo padėtį, kad galėtų naudoti šią informaciją kaip įvestį kitoms valdymo funkcijoms. Jis tai daro inicijuodamas EXV paleidžiant. Procesorius siunčia pakankamai uždarymo impulsų į vožtuvą, kad perkeltų jį iš visiškai atidaryto į visiškai uždarytą, tada nustato padėties skaitiklį į nulį. Nuo šio momento, iki inicijavimo, procesorius skaičiuoja bendrą atidarytų ir uždarytų žingsnių skaičių, kurį jis nusiuntė į kiekvieną vožtuvą.
Ekonomizatorius
Ekonomizatoriai įrengiami 30HXC 190, 285 ir 375 bei 30GX 182, 267 ir 358.
Ekonomizatorius pagerina tiek aušintuvo našumą, tiek efektyvumą, taip pat užtikrina kompresoriaus variklio aušinimą. Ekonomizatoriaus viduje yra tiek linijinis EXV žingsninis variklis, tiek plūdinis vožtuvas. EXV valdo PIC, kad palaikytų norimą skysčio lygį aušintuve (kaip tai daroma neekonominiuose aušintuvuose). Plūdinis vožtuvas palaiko skysčio lygį ekonomizatoriaus apačioje. Skystas šaltnešis tiekiamas iš kondensatoriaus į ekonomizatoriaus apačią. Kai šaltnešis praeina pro EXV, jo slėgis sumažinamas iki tarpinio lygio, apie 500 kPa. Šis slėgis palaikomas ekonomizatoriaus korpuse. Tada šaltnešis teka per plūdinį vožtuvą, jo slėgis dar labiau sumažinamas iki šiek tiek didesnio nei slėgis aušintuve. Našumo padidėjimas pasiekiamas, kai dalis šaltnešio, praeinančio pro EXV, išgaruoja, toliau atšaldydamas skystį, kuris palaikomas ekonomizatoriaus apačioje. Šis padidėjęs atšaldymas suteikia papildomo našumo. Kadangi tam pasiekti nereikia jokios papildomos galios, mašinos efektyvumas taip pat pagerėja. Garai, kurie išgaruoja, pakils į ekonomizatorių, kur pateks į kompresorių ir bus naudojami pagal poreikį variklio aušinimui. Praėję per variklio apvijas, šaltnešis vėl patenka į ciklą tarpinėje suspaudimo ciklo angoje.
Alyvos siurbliai
30GX/HXC sraigtiniuose aušintuvuose kiekvienam kontūrui naudojamas vienas išoriškai sumontuotas išankstinio tepimo alyvos siurblys. Šis siurblys veikia kaip paleidimo sekos dalis.
DĖMESIO:
Ritės darbinė temperatūra gali siekti 80 °C. Tam tikromis laikinomis sąlygomis (ypač paleidžiant esant žemai lauko temperatūrai arba žemai kondensatoriaus kontūro temperatūrai) alyvos siurblys gali būti vėl įjungtas.
30GX įrenginiuose siurbliai montuojami ant pagrindo bėgių alyvos separatoriaus pusėje. Siurbliai montuojami ant 30HXC įrenginių kondensatorių laikiklio. Kai reikia paleisti kontūrą, valdikliai pirmiausia įjungs alyvos siurblį, kad kompresorius paleistų su tinkamu tepimu. Jei siurblys sukūrė pakankamą alyvos slėgį, kompresoriui bus leista paleisti. Kai kompresorius paleis, alyvos siurblys bus išjungtas. Jei siurblys negalėjo sukurti pakankamo alyvos slėgio, valdiklis sugeneruos aliarmą.
Variklio aušinimo vožtuvai
Kompresoriaus variklio apvijų temperatūra valdoma iki optimalios nustatytosios vertės. Valdiklis tai pasiekia cikliškai įjungdamas variklio aušinimo solenoidinį vožtuvą, kad skystas šaltnešis tekėtų per variklio apvijas pagal poreikį. Įrenginiuose, kuriuose yra ekonomizatoriai, išgaravusios dujos palieka ekonomizatoriaus viršų ir nuolat teka į variklio apvijas. Visas šaltnešis, naudojamas variklio aušinimui, vėl patenka į rotorius per angą, esančią pusiaukelėje palei suspaudimo ciklą, ir yra suspaudžiamas iki išleidimo slėgio.
Jutikliai
Įrenginiai naudoja termistorius (įskaitant du variklio temperatūros termistorius) ir du lygio termistorius bei slėgio keitiklius, kad stebėtų ir valdytų sistemos veikimą.
Termistoriai
Garintuvo ištekančio skysčio
Ši temperatūra naudojama ištekančio garintuvo skysčio (vandens arba sūrymo) temperatūrai matuoti. Temperatūra naudojama ištekančio skysčio temperatūros valdymui ir apsaugai nuo aušintuvo užšalimo. Jis yra garintuvo skysčio antgalyje.
Garintuvo įtekančio skysčio
Šis jutiklis naudojamas garintuvo įtekančio skysčio temperatūrai matuoti. Jis yra įtekančiame garintuvo antgalyje. Jis naudojamas automatiniam temperatūros kompensavimui ištekančio skysčio temperatūros valdymui su įtekančio skysčio kompensavimu.
Išleidžiamų dujų temperatūra (A ir B kontūrai)
Šis jutiklis naudojamas išleidžiamų dujų temperatūrai matuoti ir išleidimo temperatūros perkaitimui valdyti. Jis yra ant kiekvieno kontūro išleidimo vamzdžio (30HXC) arba ant alyvos separatoriaus viršaus (30GX).
DĖMESIO: Termostato įvorės nėra.
Variklio temperatūra
Kompresoriaus apsaugos modulis (CPM) stebi variklio temperatūrą. Termistoriaus gnybtai yra kompresoriaus jungiamojoje dėžutėje.
Garintuvo skysčio lygis (A ir B kontūrai)
Garintuvo skysčio lygio termistorius naudojamas optimizuotam srauto valdymui garintuve užtikrinti. Jis įrengtas garintuvo viršuje.
Kondensatoriaus įtekančio skysčio (30HXC)
Šis jutiklis naudojamas vandeniu aušinamų kondensatorių įtekančio skysčio temperatūrai matuoti. Jis yra bendroje skysčio linijoje, įtekančioje į kondensatorius (įrengtas vietoje). Šilumos mašinose jį naudoja našumo valdymo rutina. Vandeniu aušinamuose kondensatoriuose jis naudojamas tik kondensatoriaus skysčio temperatūrai stebėti.
Kondensatoriaus ištekančio skysčio (pasirinktinai 30HXC)
Šis jutiklis naudojamas vandeniu aušinamų kondensatorių ištekančio skysčio temperatūrai matuoti. Jis yra bendroje skysčio linijoje, ištekančioje iš kondensatorių (įrengtas vietoje). Šilumos mašinose jį naudoja našumo valdymo rutina. Vandeniu aušinamuose kondensatoriuose jis naudojamas tik kondensatoriaus skysčio temperatūrai stebėti.
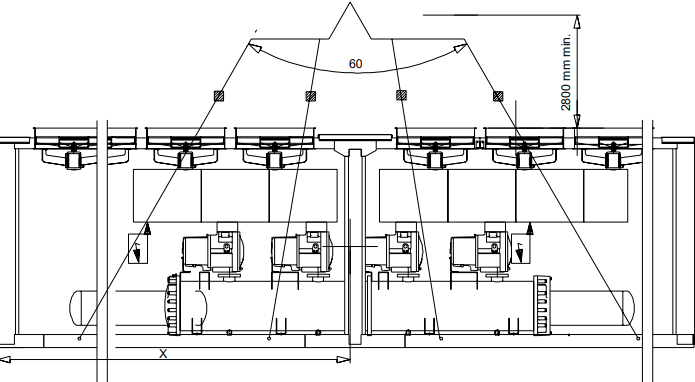
30GX ventiliatoriaus išdėstymas

GX082/102

GX112/132

GX152/162

GX182

GX207/227

GX247/267

GX298

GX328/358
PRIEŽIŪRA
Šaltnešio įkrovimas - įkrovos papildymas
Šie įrenginiai skirti naudoti tik su R-134a.
NENAUDOKITE JOKIO KITO šaltnešio šiuose įrenginiuose.
Pridedant arba pašalinant įkrovą, visą laiką cirkuliuokite vandenį per kondensatorių (HX) ir aušintuvą, kad išvengtumėte užšalimo. Užšalimo pažeidimai laikomi piktnaudžiavimu ir gali anuliuoti „Carrier“ garantiją.
NEPERKRAUKITE sistemos. Perkrovimas lemia didesnį išleidimo slėgį, didesnį aušinimo skysčio suvartojimą, galimą kompresoriaus pažeidimą ir didesnį energijos suvartojimą.
Mažos įkrovos indikacija 30HXC sistemoje
PASTABA
Norint patikrinti, ar 30HXC sistemoje nėra mažo šaltnešio įkrovos, reikia atsižvelgti į keletą veiksnių. Mirksintis skysčio linijos stebėjimo stiklas nebūtinai rodo nepakankamą įkrovą. Yra daug sistemos sąlygų, kai mirksintis stebėjimo stiklas atsiranda normaliai veikiant. 30HXC matavimo įtaisas sukurtas tinkamai veikti tokiomis sąlygomis.
- Įsitikinkite, kad grandinė veikia esant pilnos apkrovos sąlygoms. Norėdami patikrinti, ar A grandinė yra visiškai apkrauta, vadovaukitės Valdiklių vadove aprašyta procedūra.
- Gali prireikti naudoti rankinio valdymo funkciją, kad grandinė būtų priversta veikti esant pilnos apkrovos sąlygoms. Tokiu atveju žr. rankinio valdymo funkcijos naudojimo instrukcijas Valdiklių vadove.
- Kai grandinė veikia esant pilnos apkrovos sąlygoms, patikrinkite, ar aušintuvo išleidžiamo skysčio temperatūra yra 6 °C ± 1,5 ribose.
- Esant tokiai būklei, stebėkite šaltnešį skysčio linijos stebėjimo stikle. Jei stebėjimo stiklas yra skaidrus ir nėra mirksėjimo požymių, grandinė yra tinkamai įkrauta. Praleiskite likusius veiksmus.
- Jei atrodo, kad šaltnešis mirksi, grandinė greičiausiai yra mažai įkrauta. Patikrinkite tai patikrindami EXV padėtį (žr. Valdiklių IOM).
- Jei EXD atidarymo padėtis yra didesnė nei 60 %, o skysčio linijos stebėjimo stiklas mirksi, grandinė yra mažai įkrauta. Vadovaukitės įkrovos papildymo procedūra.
Norėdami papildyti įkrovą į 30HXC sistemas
- Įsitikinkite, kad įrenginys veikia esant pilnos apkrovos sąlygoms ir kad aušintuvo išleidžiamo skysčio temperatūra yra 5,6–7,8 °C ribose.
- Esant šioms veikimo sąlygoms, patikrinkite skysčio linijos stebėjimo stiklą. Jei stebėjimo stiklas yra skaidrus, įrenginys turi pakankamai įkrovos. Jei stebėjimo stiklas mirksi, patikrinkite EXD procentinę atidarymo vertę. Jei ji didesnė nei 60 %, pradėkite papildyti įkrovą.
PASTABA
Mirksintis skysčio linijos stebėjimo stiklas esant kitoms nei aukščiau nurodytoms veikimo sąlygoms nebūtinai rodo mažą šaltnešio įkrovą.
- Įpilkite 2,5 kg skystos įkrovos į garintuvą naudodami įkrovimo vožtuvą, esantį garintuvo viršuje.
- Stebėkite EXD procentinę atidarymo vertę. Pridedant įkrovą, EXD turėtų pradėti užsidaryti. Leiskite įrenginiui stabilizuotis. Jei EXD procentinė atidarymo vertė išlieka didesnė nei 60 %, o stebėjimo stikle vis dar yra burbuliukų, įpilkite dar 2,5 kg skystos įkrovos.
- Leiskite įrenginiui stabilizuotis ir vėl patikrinkite EXD procentinę atidarymo vertę. Toliau pilkite po 2,5 kg skysto šaltnešio įkrovos ir leiskite įrenginiui stabilizuotis prieš tikrindami EXD padėtį.
- Kai EXD procentinė atidarymo vertė yra 40–60 % ribose, patikrinkite skysčio linijos stebėjimo stiklą. Lėtai įpilkite pakankamai papildomos skystos įkrovos, kad užtikrintumėte skaidrų stebėjimo stiklą. Tai turėtų būti daroma lėtai, kad neperkrauti įrenginio.
- Patikrinkite, ar įkrovos pakanka, toliau veikdami esant pilnai apkrovai, kai garintuvo išleidžiamo skysčio temperatūra yra 6 °C ± 1,5. Patikrinkite, ar šaltnešis nemirksi skysčio linijos stebėjimo stikle. EXD procentinė atidarymo vertė turėtų būti tarp 40 ir 60 %. Aušintuvo lygio indikatorius turėtų būti 1,5–2,5 ribose.
Mažos įkrovos indikacija 30GX sistemose
- Įsitikinkite, kad grandinė veikia esant pilnos apkrovos sąlygoms ir kad kondensacijos temperatūra yra 50 °C ± 1,5. Norėdami patikrinti, ar A grandinė yra visiškai apkrauta, vadovaukitės procedūra, aprašyta Valdiklių IOM.
- Gali prireikti naudoti rankinio valdymo funkciją, kad grandinė būtų priversta veikti esant pilnos apkrovos sąlygoms. Tokiu atveju žr. rankinio valdymo funkcijos naudojimo instrukcijas (procedūra Valdiklių IOM).
- Kai grandinė veikia esant pilnos apkrovos sąlygoms, patikrinkite, ar aušintuvo išleidžiamo skysčio temperatūra yra 6 °C ± 1,5 ribose.
- Išmatuokite oro temperatūrą, patenkančią į kondensatoriaus rites. Išmatuokite skysčio temperatūrą po trišakio, kur susijungia dvi ritės skysčio linijos. Skysčio temperatūra turėtų būti 8,3 °C aukštesnė už oro temperatūrą, patenkančią į rites. Jei skirtumas yra didesnis ir stebėjimo stiklas mirksi, grandinė yra neįkrauta. Pereikite prie 5 veiksmo.
- Įpilkite 2,5 kg skystos įkrovos į aušintuvą naudodami įkrovimo vožtuvą, esantį aušintuvo viršuje.
- Leiskite sistemai stabilizuotis ir vėl patikrinkite skysčio temperatūrą. Pakartokite 5 veiksmą, jei reikia, leisdami sistemai stabilizuotis tarp kiekvieno įkrovos papildymo. Lėtai pilkite įkrovą, kai stebėjimo stiklas pradeda skaidrėti, kad neperkrauti.
Patapos temperatūra, lauko oro temperatūra (pasirinktinai)
Šios temperatūros naudojamos atitinkamai patalpos arba lauko oro temperatūrai matuoti, kad būtų galima nustatyti atstatymo valdymą pagal lauko oro arba patalpos temperatūros atstatymo parinktis.
Slėgio keitikliai
Išleidimo slėgis (A ir B grandinės)
Ši įvestis naudojama kiekvienos įrenginio grandinės aukšto slėgio pusei matuoti.
Ji naudojama slėgiui tiekti, kad pakeistų išleidimo slėgio matuoklį ir valdytų galvos slėgį.
Siurbimo slėgis (A ir B grandinės)
Ši įvestis naudojama žemo slėgio įrenginio pusei matuoti. Ji naudojama slėgiui tiekti, kad pakeistų siurbimo slėgio matuoklį.
Alyvos slėgis (kiekvienas kompresorius)
Ši įvestis naudojama kiekvieno įrenginio kompresoriaus alyvos slėgiui matuoti. Ji yra kiekvieno kompresoriaus alyvos slėgio prievade.
Ekonomizatoriaus slėgis (A ir B grandinės)
Ši įvestis naudojama kompresoriui tiekiamam alyvos slėgio skirtumui stebėti.
Alyvos įkrovimas - mažo alyvos kiekio papildymas
Alyvos įkrovos papildymas 30HX/GX sistemoms
- Jei 30HXC/GX įrenginys nuolat išsijungia dėl mažo alyvos lygio, tai gali rodyti nepakankamą alyvos įkrovą. Tai taip pat gali reikšti, kad alyva yra atgaunama iš žemo slėgio sistemos pusės.
- Pradėkite veikdami įrenginį esant pilnai apkrovai valandą su puse.
- Paveikus 1–1/2 valandos, leiskite įrenginiui iš naujo paleisti ir veikti normaliai. Jei mažo alyvos lygio signalai išlieka, įrenginys turi mažą alyvos įkrovą. Įpilkite alyvos į alyvos separatorių naudodami alyvos įkrovimo vožtuvą, esantį kondensatoriaus apačioje (30HXC) arba alyvos separatoriaus apačioje (30GX).
NEPILKITE alyvos jokioje kitoje vietoje, nes gali sutrikti netinkamas įrenginio veikimas.
- Įsitikinkite, kad įrenginys neveikia, kai pilate alyvą, nes tai palengvins alyvos įkrovimo procesą. Kadangi sistemoje yra slėgis net ir tada, kai įrenginys neveikia, reikės naudoti tinkamą siurblį (rankinį arba elektrinį siurblį), kad į sistemą įpiltumėte alyvos.
- Naudodami tinkamą siurblį, į sistemą įpilkite 2 litrus poliolesterio alyvos (CARRIER SPEC: PP47-32). Įsitikinkite, kad alyvos lygio saugos jungiklis NĖRA sujungtas trumpikliu, ir leiskite įrenginiui iš naujo paleisti ir veikti normaliai.
- Jei mažo alyvos lygio problemos išlieka, įpilkite dar 1 arba 2 litrus alyvos. Jei į sistemą reikia įpilti daugiau nei 4 litrus alyvos, susisiekite su savo „Carrier“ platintojo aptarnavimo skyriumi.
Perkeliant šaltnešio įkrovą į saugojimo įrenginį, alyva gali būti pernešama, kai įrenginys neveikia. Pirmiausia pakartotinai panaudokite visą perkeltą šaltnešio kiekį. Išleidę alyvą, įpilkite tik išleistą kiekį (per didelis alyvos įkrovimas gali pabloginti tinkamą įrenginio veikimą).
Integruoto alyvos filtro keitimas
Integruotas alyvos filtras 06N sraigtiniame kompresoriuje yra skirtas užtikrinti aukštą filtravimo lygį (3 µ), reikalingą ilgam guolių tarnavimo laikui. Kadangi sistemos švara yra labai svarbi patikimam sistemos veikimui, alyvos linijoje prie alyvos separatoriaus išleidimo angos taip pat yra išankstinis filtras (7 µ).
Pakaitinio integruoto alyvos filtro elemento dalies numeris yra:
„Carrier“ dalies numeris (įskaitant filtrą ir O žiedą): 06NA 660016S
Filtro keitimo grafikas
Filtras turėtų būti patikrintas po pirmųjų 500 veikimo valandų ir kas 2000 valandų vėliau. Filtras turėtų būti pakeistas bet kuriuo metu, kai slėgio skirtumas per filtrą viršija 2,1 baro.
Slėgio kritimą per filtrą galima nustatyti išmatavus slėgį prie filtro aptarnavimo prievado ir alyvos slėgio prievado. Šių dviejų slėgių skirtumas bus slėgio kritimas per filtrą, atbulinį vožtuvą ir solenoidinį vožtuvą. Slėgio kritimas per atbulinį vožtuvą ir solenoidinį vožtuvą yra maždaug 0,4 baro, kuris turėtų būti atimtas iš dviejų alyvos slėgio matavimų, kad būtų gautas alyvos filtro slėgio kritimas. Alyvos filtro slėgio kritimas turėtų būti patikrintas po kiekvieno atvejo, kai kompresorius išjungiamas dėl mažo alyvos slėgio saugos.
Filtro keitimo procedūra
- Šie veiksmai apibūdina tinkamą integruoto alyvos filtro keitimo metodą.
- Išjunkite ir užblokuokite kompresorių.
- Rankiniu būdu priverskite veikti alyvos solenoidinį vožtuvą, kad vidinis vožtuvo užraktas būtų prispaustas prie jo lizdo.
- Uždarykite alyvos filtro aptarnavimo vožtuvą. Išleiskite slėgį iš filtro ertmės per filtro aptarnavimo prievadą.
- Nuimkite alyvos filtro kištuką. Nuimkite seną alyvos filtrą.
- Prieš montuodami naują alyvos filtrą, "sutepkite" O žiedą alyva. Įdėkite filtrą ir pakeiskite kištuką.
Prieš uždarydami tepimo alyvos sistemą, pasinaudokite proga pakeisti ir išankstinį filtrą. - Kai baigsite, išsiurbkite orą iš filtro ertmės per filtro aptarnavimo prievadą. Atidarykite filtro aptarnavimo vožtuvą. Nuimkite visus kompresoriaus blokavimo įtaisus, kompresorius yra paruoštas grįžti į darbą.
Kompresoriaus keitimas
Kompresoriaus sukimosi valdymas
Teisingas kompresoriaus sukimas yra vienas iš svarbiausių taikymo aspektų. Atvirkštinis sukimas, net ir labai trumpą laiką, pažeidžia kompresorių.
Apsaugos nuo atvirkštinio sukimosi schema turi sugebėti nustatyti sukimosi kryptį ir sustabdyti kompresorių per 300 milisekundžių. Atvirkštinis sukimas dažniausiai įvyksta, kai pažeidžiami laidai, jungiantys kompresoriaus gnybtus.
Norint sumažinti atvirkštinio sukimosi galimybę, reikia taikyti šią procedūrą. Iš naujo prijunkite maitinimo kabelius prie kompresoriaus gnybto kaiščio taip, kaip buvo prijungta iš pradžių.
Keičiant kompresorių, kartu su kompresoriumi pateikiamas žemo slėgio jungiklis. Šis žemo slėgio jungiklis turėtų būti laikinai įrengtas kaip griežta saugos priemonė aukšto slėgio kompresoriaus dalyje. Šio jungiklio tikslas yra apsaugoti kompresorių nuo bet kokių laidų klaidų prie kompresoriaus gnybto kaiščio. Elektrinis jungiklio kontaktas būtų sujungtas nuosekliai su aukšto slėgio jungikliu. Jungiklis liks vietoje, kol kompresorius nebus paleistas ir nebus patikrinta sukimosi kryptis; šiuo metu jungiklis bus pašalintas.
Jungiklis, kuris buvo pasirinktas atvirkštiniam sukimuisi aptikti, yra „Carrier“ dalies numeris HK01CB001. Jis yra prieinamas kaip „Kompresoriaus montavimo paketo“ dalis (dalies Nr. 06NA 660 013). Šis jungiklis atidaro kontaktus, kai slėgis nukrenta žemiau 50 mm vakuumo. Jungiklis yra rankinio atstatymo tipo, kurį galima atstatyti, kai slėgis vėl pakyla virš 70 kPa. Labai svarbu, kad jungiklis būtų rankinio atstatymo tipo, kad kompresorius neįsijungtų trumpais ciklais atvirkštine kryptimi.
Trikčių šalinimas
Norėdami diagnozuoti ir ištaisyti EXD / ekonomizatoriaus problemas, atlikite toliau nurodytus veiksmus.
30HXC/GX įrenginiuose su ekonomizatoriais patikrinkite, ar burbuliatoriaus vamzdelio (ekonomizatoriaus apačioje) vožtuvas yra atidarytas. Pirmiausia patikrinkite EXD variklio veikimą (žr. procedūrą Valdiklių IOM). Turėtumėte pajusti, kaip pavara juda, uždėję ranką ant EXD arba ekonomizatoriaus korpuso (pavara yra maždaug nuo pusės iki dviejų trečdalių atstumo nuo ekonomizatoriaus korpuso apačios). Turėtumėte pajusti stiprų beldimą iš pavaros, kai ji pasiekia savo eigos viršų (galima išgirsti, jei aplinka yra gana tyli). Pavara turėtų belstis, kai pasiekia savo eigos apačią. Jei manoma, kad vožtuvas neveikia tinkamai, susisiekite su savo „Carrier“ aptarnavimo skyriumi, kad atliktų tolesnius patikrinimus:
- išvesties signalai EXD modulyje
- laidų jungtys (tęstinumas ir tvirtas sujungimas visuose kaiščių gnybtuose)
- EXD variklio apvijų varža.


Aplinkosaugos valdymo sistemos patvirtinimas
Užsakymo Nr.: 13173-76, 03 1999 - Pakeičia Nr.: 13173-76, 1998 m. kovas
Gamintojas pasilieka teisę keisti bet kokias gaminio specifikacijas be įspėjimo.
Gamintojas: Carrier s.a., Montluel, Prancūzija.
Atspausdinta Nyderlanduose ant popieriaus be chloro.

Atsisiųsti instrukciją
Čia galite atsisiųsti visą pdf instrukcijos versiją, kurioje gali būti papildomų saugos instrukcijų, garantijos informacijos, FCC taisyklių ir kt.
Atsisiųsti Carrier 30HXC/30GX sraigtinio kompresoriaus vadovas