Carrier 30HXC/30GX Vidalı Kompresör Kılavuzu
- 1 GİRİŞ
- 2 GÜVENLİK HUSUSLARI
- 3 BOYUTLAR, BOŞLUKLAR, AĞIRLIK DAĞILIMI
- 4 FİZİKSEL VERİLER 30HXC
- 5 30HXC ELEKTRİKSEL VERİLERİ
- 6 YÜKSEK YOĞUŞMA SICAKLIKLARINA SAHİP ÜNİTELER İÇİN ELEKTRİKSEL VERİLER
- 7 FİZİKSEL VERİLER 30GX
- 8 ELEKTRİKSEL VERİLER 30GX
-
9
UYGULAMA VERİLERİ
- 9.1 Ünite çalışma aralığı
- 9.2 Minimum soğutulmuş su akışı
- 9.3 Maksimum soğutulmuş su akışı
- 9.4 Değişken akışlı evaporatör
- 9.5 Sistem minimum su hacmi
- 9.6 Soğutucu akış hızı (l/s)
- 9.7 Kondenser akış hızı (l/s)
- 9.8 Evaporatör basınç düşüş eğrisi
- 9.9 Kondenser basınç düşüş eğrisi
- 9.10 Akış Kontrol Cihazları
- 10 MONTAJ
- 11 KALDIRMA TALİMATLARI
- 12 ELEKTRİKSEL ÖZELLİKLER
- 13 ÖNERİLEN KABLO KESİTLERİ
- 14 ANA SİSTEM BİLEŞENLERİ VE ÇALIŞMA VERİLERİ
- 15 BAKIM
- 16 Sorun Giderme
- 17 Kılavuzu indir
- 18 Diğer Dillerde

GİRİŞ
30HXC ve 30GX ünitesinin ilk çalıştırılmasından önce, devreye alma, çalıştırma ve bakımla ilgilenenlerin bu talimatlara ve diğer gerekli iş verilerine iyice aşina olması gerekir. Bu kitap, başlatma prosedürlerini gerçekleştirmeden önce kontrol sistemine aşina olabilmeniz için bir genel bakış sunar. Bu kılavuzdaki prosedürler, makinenin doğru şekilde başlatılması ve çalıştırılması için gereken sırayla düzenlenmiştir.
GÜVENLİK HUSUSLARI
30HXC ve 30GX sıvı soğutucuları, tasarım spesifikasyonları dahilinde çalıştırıldığında güvenli ve güvenilir hizmet sağlamak üzere tasarlanmıştır. Bu ekipmanı çalıştırırken, ekipman ve mülke zarar vermemek veya personelin yaralanmasını önlemek için iyi muhakeme ve güvenlik önlemleri kullanın.
Makine talimatlarında yer alan prosedürleri ve güvenlik önlemlerini ve ayrıca bu kılavuzda listelenenleri anladığınızdan ve uyguladığınızdan emin olun.
Bir bina içinde soğutucu akışkan tahliye vanalarını HAVALANDIRMAYIN. Tahliye vanasından çıkan çıkış dışarıya havalandırılmalıdır. Kapalı bir alanda soğutucu akışkanın birikmesi oksijenin yerini alabilir ve boğulmaya veya patlamalara neden olabilir.
ÖZELLİKLE kapalı ve alçak tavanlı alanlar için yeterli havalandırma SAĞLAYIN. Yüksek konsantrasyonlarda buharın solunması zararlıdır ve kalp düzensizliklerine, bilinç kaybına veya ölüme neden olabilir. Buhar havadan ağırdır ve solunum için mevcut oksijen miktarını azaltır. Ürün göz ve cilt tahrişine neden olur. Ayrışma ürünleri tehlikelidir.
Hatları temizlemek veya bir makineye herhangi bir amaçla basınç uygulamak için OKSİJEN KULLANMAYIN. Oksijen gazı, yağ, gres ve diğer yaygın maddelerle şiddetli bir şekilde reaksiyona girer.
Belirtilen test basınçlarını ASLA AŞMAYIN, talimat literatürünü ve ekipman isim plakasındaki tasarım basınçlarını kontrol ederek izin verilen test basıncını DOĞRULAYIN.
Kaçak testi için hava KULLANMAYIN. Yalnızca soğutucu akışkan veya kuru nitrojen kullanın.
Herhangi bir güvenlik cihazını KAPATMAYIN.
Herhangi bir makineyi çalıştırmadan önce tüm basınç tahliye cihazlarının doğru şekilde takıldığından EMİN OLUN.
Soğutucudan (sıvı ve buhar) tüm soğutucu akışkan boşaltılana kadar herhangi bir soğutucu akışkan hattını veya kabını KAYNAK VEYA ALEVLE KESMEYİN. Buhar izleri kuru hava nitrojen ile yer değiştirmeli ve çalışma alanı iyi havalandırılmalıdır. Açık alevle temas eden soğutucu akışkan zehirli gazlar üretir.
Nitelikli bir elektrikçi değilseniz, enerjili ekipman üzerinde ÇALIŞMAYIN.
TÜM GÜCÜN KAPALI olduğundan ve kapasitörlerden veya katı hal bileşenlerinden artık voltajın sızabileceğinden emin olana kadar kontrol panelleri, anahtarlar, röleler vb. dahil olmak üzere elektrikli bileşenler üzerinde ÇALIŞMAYIN.
Servis sırasında elektrik devrelerini AÇIK KİLİTLEYİN VE ETİKETLEYİN. ÇALIŞMA KESİLİRSE, çalışmaya devam etmeden önce tüm devrelerin enerjisinin kesildiğini kontrol edin.
Soğutucu akışkanı SİFONLAMAYIN.
Cilde sıvı soğutucu akışkan DÖKMEMEYE veya gözlere kaçırmamaya DİKKAT EDİN. GÜVENLİK GÖZLÜĞÜ KULLANIN. Ciltteki dökülmeleri sabun ve suyla yıkayın. Gözlere sıvı soğutucu akışkan kaçarsa,
HEMEN GÖZLERİ suyla YIKAYIN ve bir doktora danışın.
Soğutucu akışkan kabına asla açık alev veya canlı buhar UYGULAMAYIN. Tehlikeli aşırı basınç meydana gelebilir. Soğutucu akışkanı ısıtmak gerekirse, yalnızca ılık su kullanın.
Tek kullanımlık (iade edilemeyen) silindirleri YENİDEN KULLANMAYIN veya bunları yeniden doldurmaya ÇALIŞMAYIN. Bu TEHLİKELİ VE YASAKTIR. Silindirler boşaltıldığında, kalan gaz basıncını boşaltın, bileziği gevşetin ve valf gövdesini söküp atın. YAKMAYIN.
Makineye soğutucu akışkan eklemeden önce SOĞUTUCU AKIŞKAN TÜRÜNÜ KONTROL EDİN. Yanlış soğutucu akışkanın verilmesi bu makineye zarar verebilir veya arızalanmasına neden olabilir.
Makine basınç altındayken veya makine çalışırken bağlantı parçalarını, bileşenleri vb. SÖKMEYE ÇALIŞMAYIN. Soğutucu akışkan bağlantısını kesmeden önce basıncın 0 kPa olduğundan emin olun.
Tüm tahliye cihazlarını DİKKATLİCE İNCELEYİN, EN AZ YILDA BİR KEZ. Makine aşındırıcı bir ortamda çalışıyorsa, cihazları daha sık aralıklarla inceleyin.
Valf gövdesi veya mekanizması içinde korozyon veya yabancı madde (pas, kir, tortu vb.) birikimi bulunduğunda herhangi bir tahliye cihazını TAMİR ETMEYE VEYA YENİDEN KOŞULLANDIRMAYA ÇALIŞMAYIN. Cihazı değiştirin.
Tahliye cihazlarını seri veya ters olarak takmayın.
Soğutucu akışkan hatlarına BASMAYIN. Kırık hatlar etrafa savrulabilir ve kişisel yaralanmaya neden olarak soğutucu akışkan salabilir.
Bir makinenin üzerine TIRMANMAYIN. Platform veya iskele kullanın.
Ağır bileşenleri kaldırmak veya taşımak için MEKANİK EKİPMAN (vinç, kaldırma tertibatı vb.) KULLANIN. Bileşenler hafif olsa bile, kayma veya dengenizi kaybetme riski olduğunda mekanik ekipman kullanın.
Belirli otomatik başlatma düzenlemelerinin KULE FANINI VEYA POMPALARI DEVREYE SOKABİLECEĞİNİN FARKINDA OLUN. Kule fanlarının veya pompaların önündeki bağlantıyı açın.
Yalnızca orijinal ekipmanın kod gereksinimlerini karşılayan onarım veya yedek parçalar KULLANIN.
Yetkili bir kuruluşun izni olmadan endüstriyel tuzlu sular içeren su kutularını HAVALANDIRMAYIN VEYA BOŞALTMAYIN.
Su kutusu tamamen boşaltılana kadar su kutusu cıvatalarını GEVŞETMEYİN.
Somunun pozitif bir dişli bağlantısı olup olmadığını kontrol etmeden önce bir salmastra somununu GEVŞETMEYİN.
Tüm valfleri, bağlantı parçalarını ve boruları korozyon, pas, sızıntı veya hasar açısından PERİYODİK OLARAK İNCELEYİN.
Yoğuşma veya yağmur suyu birikmesini önlemek için her basınç tahliye cihazının yakınındaki havalandırma hattında bir TAHLİYE bağlantısı SAĞLAYIN.
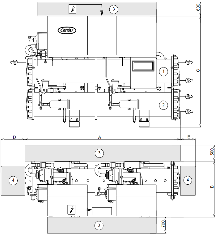
BOYUTLAR, BOŞLUKLAR, AĞIRLIK DAĞILIMI
30HXC 080-190
30HXC080
30HXC090
30HXC100
30HXC110

- Evaporatör
- Kondenser
- Çalışma ve bakım için gerekli boşluklar
- Isı eşanjörü borusu sökülmesi için gerekli boşluklar. D ve E boşlukları sol veya sağ tarafta olabilir.
Su girişi
Su çıkışı
Güç kaynağı
kg: toplam çalışma ağırlığı
| A mm | B mm | C mm | D mm | E mm | kg | |
| 30HXC080 30HXC090 30HXC100 |
2705 | 950 | 1850 | 2360 | 1000 | 2447 2462 2504 |
| 30HXC110 | 2705 | 950 | 1900 | 2360 | 1000 | 2650 |
| 30HXC120 30HXC130 30HXC140 30HXC155 |
3535 | 950 | 1875 | 3220 | 1000 | 2846 2861 2956 2971 |
| 30HXC175 30HXC190 |
3550 | 950 | 2000 | 3220 | 1000 | 3283 3438 |
NOT: Bir kurulum tasarlarken, üniteyle birlikte verilen sertifikalı boyut çizimlerine bakın.
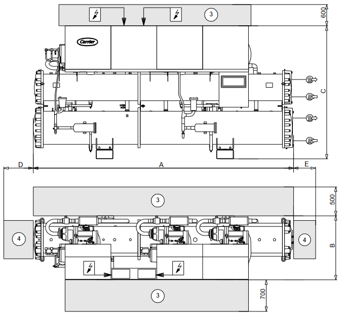
30HXC 200-375

- Evaporatör
- Kondenser
- Çalışma ve bakım için gerekli boşluklar
- Isı eşanjörü borusu sökülmesi için gerekli boşluklar. D ve E boşlukları sol veya sağ tarafta olabilir.
Su girişi
Su çıkışı
Güç kaynağı
kg: toplam çalışma ağırlığı
| A mm | B mm | C mm | D mm | E mm | kg | |
| 30HXC200 | 3975 | 980 | 2035 | 3620 | 1000 | 4090 |
| 30HXC230 30HXC260 30HXC285 |
3995 | 980 | 2116 | 3620 | 1000 | 4705 4815 4985 |
| 30HXC310 30HXC345 30HXC375 |
4490 | 980 | 2163 | 4120 | 1000 | 5760 5870 6105 |
NOT: Bir kurulum tasarlarken, üniteyle birlikte verilen sertifikalı boyut çizimlerine bakın.
30GX 082-182
30GX-082
30GX-092
30GX-102
30GX-112
30GX-122
30GX-132
30GX-152
30GX-162
30GX-182


- Çalışma ve bakım için gerekli boşluklar
- Isı eşanjörü borusu sökülmesi için gerekli boşluklar. Boşluklar sol veya sağ tarafta olabilir.
Su girişi
Su çıkışı
Güç kaynağı
Hava çıkışı - engellemeyin
kg: toplam çalışma ağırlığı
| A mm | B mm | kg | |
| 30GX082 30GX092 30GX102 |
2970 | 2215 | 3116 3157 3172 |
| 30GX112 30GX122 30GX132 |
3427 | 2045 | 3515 3531 3633 |
| 30GX152 30GX162 |
4342 | 2835 | 3920 3936 |
| 30GX182 | 5996 | 1820 | 4853 |
Çoklu chiller kurulumu


Notlar:
- Ünitenin hava akışı için aşağıdaki gibi boşlukları olmalıdır:
Üst: hiçbir şekilde kısıtlamayın - Çoklu chiller durumunda (dört üniteye kadar), aralarındaki ilgili boşluk, yan alan gereksinimi için 1830'dan 2000 mm'ye çıkarılmalıdır.
- Soğutucu borusu sökülmesi için boşluklar gereklidir.
NOT: Bir kurulum tasarlarken, üniteyle birlikte verilen sertifikalı boyut çizimlerine bakın.
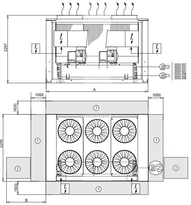
30GX 207-358
30GX-207
30GX-227
30GX-247
30GX-267
30GX-298
30GX-328
30GX-358

- Çalışma ve bakım için gerekli boşluklar
- Isı eşanjörü borusu sökülmesi için gerekli boşluklar. Boşluklar sol veya sağ tarafta olabilir.
Su girişi
Su çıkışı
Güç kaynağı
Hava çıkışı - engellemeyin
kg: toplam çalışma ağırlığı
| A mm | B mm | kg | |
| 30GX207 30GX227 |
5996 | 2895 | 5540 5570 |
| 30GX247 30GX267 |
6911 | 2470 | 6134 6365 |
| 30GX298 | 7826 | 2220 | 7354 |
| 30GX328 30GX358 |
8741 | 1250 | 7918 8124 |
Çoklu chiller kurulumu


Notlar:
- Ünitenin hava akışı için aşağıdaki gibi boşlukları olmalıdır:
Üst: hiçbir şekilde kısıtlamayın - Çoklu chiller durumunda (dört üniteye kadar), aralarındaki ilgili boşluk, yan alan gereksinimi için 1830'dan 2000 mm'ye çıkarılmalıdır.
- Soğutucu borusu sökülmesi için boşluklar gereklidir.
NOT: Bir kurulum tasarlarken, üniteyle birlikte verilen sertifikalı boyut çizimlerine bakın.
FİZİKSEL VERİLER 30HXC
| 30HXC | 080 | 090 | 100 | 110 | 120 | 130 | 140 | 155 | 175 | 190 | 200 | 230 | 260 | 285 | 310 | 345 | 375 | |
| Net soğutma kapasitesi (Net cooling capacity) | kW | 292 | 321 | 352 | 389 | 426 | 464 | 514 | 550 | 607 | 663 | 716 | 822 | 918 | 996 | 1119 | 1222 | 1326 |
| Çalışma ağırlığı (Operating weight) | kg | 2447 | 2462 | 2504 | 2650 | 2846 | 2861 | 2956 | 2971 | 3283 | 3438 | 4090 | 4705 | 4815 | 4985 | 5760 | 5870 | 6105 |
| Soğutucu akışkan (Refrigerant) Devre A/B (Circuit A/B) |
HFC-134a | |||||||||||||||||
| kg | 39/36 | 39/36 | 37/32 | 38/38 | 57/55 | 59/50 | 56/50 | 59/52 | 58/61 | 60/70 | 110/58 | 118/63 | 120/75 | 120/75 | 108/110 | 110/110 | 110/120 | |
| Yağ (Oil) Devre A/B (Circuit A/B) |
Polyolester oil CARRIER SPEC: PP 47-32 | |||||||||||||||||
| l | 15/15 | 15/15 | 15/15 | 15/15 | 15/15 | 15/15 | 15/15 | 15/15 | 15/15 | 15/15 | 30/15 | 30/15 | 30/15 | 30/15 | 30/30 | 30/30 | 30/30 | |
| Kompresörler (Compressors) | Hermetik çift vidalı Power3 | |||||||||||||||||
| Çev. A, kompresör başına nominal boyut** (Circ. A, nom. size per compressor**) | 39 | 46 | 46 | 56 | 56 | 66 | 80 | 80 | 80 | 80+ | 66/56 | 80/56 | 80/80 | 80+/80+ | 80/66 | 80/80 | 80+/80+ | |
| Çev. B, kompresör başına nominal boyut** (Circ. B, nom. size per compressor**) | 39 | 39 | 46 | 46 | 56 | 56 | 56 | 66 | 80 | 80+ | 66 | 80 | 80 | 80+ | 80/66 | 80/80 | 80+/80+ | |
| Kontrol tipi (Control type) | PRO-DIALOG Plus kontrol | |||||||||||||||||
| Kapasite adımı sayısı (Number of capacity steps) | 6 | 6 | 6 | 6 | 6 | 6 | 6 | 6 | 6 | 6 | 8 | 8 | 8 | 8 | 10 | 10 | 10 | |
| Minimum kapasite (Minimum capacity) | % | 19 | 19 | 21 | 19 | 21 | 19 | 17 | 19 | 21 | 21 | 14 | 14 | 14 | 14 | 10 | 10 | 10 |
| Evaporatör (Evaporator) | İçten kanatlı bakır borulu, gövde ve boru tipi (Shell and tube type, with internally finned copper tubes) | |||||||||||||||||
| Net su hacmi (Net water volume) | l | 65 | 65 | 73 | 87 | 81 | 81 | 91 | 91 | 109 | 109 | 140 | 165 | 181 | 181 | 203 | 229 | 229 |
| Su bağlantıları (Water connections) | Fabrikada tedarik edilen yassı flanş, sahada kaynaklanacak (Factory-supplied flat flange, to be welded on site) | |||||||||||||||||
| Giriş ve çıkış (Inlet and outlet) | in. | 4 | 4 | 4 | 5 | 5 | 5 | 5 | 5 | 5 | 5 | 6 | 6 | 6 | 6 | 8 | 8 | 8 |
| Tahliye ve havalandırma (NPT) (Drain and vent (NPT)) | in. | 3/8 | 3/8 | 3/8 | 3/8 | 3/8 | 3/8 | 3/8 | 3/8 | 3/8 | 3/8 | 3/8 | 3/8 | 3/8 | 3/8 | 3/8 | 3/8 | 3/8 |
| Maks. su tarafı çalışma basıncı (Max. water-side operating pressure) | kPa | 1000 | 1000 | 1000 | 1000 | 1000 | 1000 | 1000 | 1000 | 1000 | 1000 | 1000 | 1000 | 1000 | 1000 | 1000 | 1000 | 1000 |
| Kondenserler (Condensers) | İçten kanatlı bakır borulu, gövde ve boru tipi (Shell and tube type, with internally finned copper tubes) | |||||||||||||||||
| Net su hacmi (Net water volume) | l | 58 | 58 | 58 | 58 | 92 | 92 | 110 | 110 | 132 | 132 | 162 | 208 | 208 | 208 | 251 | 251 | 251 |
| Su bağlantıları (Water connections) | Fabrikada tedarik edilen yassı flanş, sahada kaynaklanacak (Factory-supplied flat flange, to be welded on site) | |||||||||||||||||
| Giriş ve çıkış (Inlet and outlet) | in. | 5 | 5 | 5 | 5 | 5 | 5 | 5 | 5 | 6 | 6 | 6 | 6 | 6 | 6 | 8 | 8 | 8 |
| Tahliye ve havalandırma (NPT) (Drain and vent (NPT)) | in. | 3/8 | 3/8 | 3/8 | 3/8 | 3/8 | 3/8 | 3/8 | 3/8 | 3/8 | 3/8 | 3/8 | 3/8 | 3/8 | 3/8 | 3/8 | 3/8 | 3/8 |
| Maks. su tarafı çalışma basıncı (Max. water-side operating pressure) | kPa | 1000 | 1000 | 1000 | 1000 | 1000 | 1000 | 1000 | 1000 | 1000 | 1000 | 1000 | 1000 | 1000 | 1000 | 1000 | 1000 | 1000 |
* Standartlaştırılmış Eurovent koşulları: evaporatör giriş/çıkış suyu sıcaklıkları = 12°C/7°C, kondenser suyu giriş/çıkış suyu sıcaklıkları = 30°C/35°C Net soğutma kapasitesi: Brüt soğutma kapasitesi eksi dahili evaporatör basınç düşüşüne karşı su pompası ısısı. (Standardised Eurovent conditions: evaporator entering/leaving water temperatures = 12°C/7°C, condenser water entering/leaving water temperatures = 30°C/35°C Net cooling capacity: Gross cooling capacity minus the water pump heat against the internal evaporator pressure drop.) ** Kompresör boyutu, ton cinsinden nominal kapasiteye karşılık gelir (1 ton = 3,517 kW). (The compressor size corresponds to the nominal capacity in tons (1 ton = 3.517 kW).)
30HXC ELEKTRİKSEL VERİLERİ
| 30HXC | 080 | 090 | 100 | 110 | 120 | 130 | 140 | 155 | 175 | 190 | 200 | 230 | 260 | 285 | 310 | 345 | 375 | |
| Güç devresi | ||||||||||||||||||
| Nominal güç kaynağı* | V-ph-Hz | 400-3-50 | ||||||||||||||||
| Voltaj aralığı | V | 360-440 | ||||||||||||||||
| Kontrol devresi beslemesi | Kontrol devresi, fabrikada takılan transformatör aracılığıyla sağlanır | |||||||||||||||||
| Nominal güç girişi* | kW | 59 | 67 | 74 | 83 | 88 | 99 | 112 | 123 | 135 | 146 | 156 | 179 | 201 | 219 | 245 | 274 | 298 |
| Nominal akım çekimi* | A | 98 | 111 | 124 | 139 | 148 | 166 | 186 | 204 | 226 | 242 | 259 | 291 | 335 | 367 | 408 | 456 | 498 |
| Maks. güç girişi** | kW | 76 | 83 | 91 | 101 | 111 | 121 | 135 | 145 | 158 | 181 | 187 | 214 | 237 | 272 | 290 | 316 | 362 |
| Devre A | kW | - | - | - | - | - | - | - | - | - | - | 121 | 135 | 158 | 181 | 145 | 158 | 181 |
| Devre B | kW | - | - | - | - | - | - | - | - | - | - | 66 | 79 | 79 | 91 | 145 | 158 | 181 |
| Kosinüs fi, tam yükte birim | 0.87 | 0.87 | 0.87 | 0.87 | 0.87 | 0.87 | 0.87 | 0.87 | 0.87 | 0.87 | 0.87 | 0.87 | 0.87 | 0.87 | 0.87 | 0.87 | 0.87 | |
| Maks. akım çekimi (Un - 10%)*** | A | 138 | 152 | 166 | 184 | 202 | 221 | 245 | 264 | 288 | 330 | 341 | 389 | 432 | 495 | 528 | 576 | 660 |
| Devre A | A | - | - | - | - | - | - | - | - | - | - | 221 | 245 | 288 | 330 | 264 | 288 | 330 |
| Devre B | A | - | - | - | - | - | - | - | - | - | - | 120 | 144 | 144 | 165 | 264 | 288 | 330 |
| Maksimum akım çekimi (Un)*** | A | 125 | 138 | 151 | 167 | 184 | 201 | 223 | 240 | 262 | 300 | 310 | 354 | 393 | 450 | 480 | 524 | 600 |
| Devre A | A | - | - | - | - | - | - | - | - | - | - | 201 | 223 | 262 | 300 | 240 | 262 | 300 |
| Devre B | A | - | - | - | - | - | - | - | - | - | - | 109 | 131 | 131 | 150 | 240 | 262 | 300 |
| Maks. kalkış akımı, std. ünite (Un)**** | A | 172 | 197 | 209 | 235 | 252 | 283 | 318 | 335 | 357 | 420 | 806 | 938 | 977 | 1156 | 1064 | 1108 | 1306 |
| Devre A | A | - | - | - | - | - | - | - | - | - | - | 697 | 807 | 846 | 1006 | 824 | 846 | 1006 |
| Devre B | A | - | - | - | - | - | - | - | - | - | - | 605 | 715 | 715 | 856 | 824 | 846 | 1006 |
| Maks. kalkış akımı/maks. akım çekme oranı, ünite | 1.37 | 1.42 | 1.39 | 1.41 | 1.37 | 1.41 | 1.43 | 1.40 | 1.36 | 1.40 | 2.60 | 2.65 | 2.49 | 2.57 | 2.22 | 2.12 | 2.18 | |
| Maks. kalkış akımı/maks. akım çekme oranı, devre A | - | - | - | - | - | - | - | - | - | - | 3.47 | 3.62 | 3.23 | 3.35 | 3.43 | 3.23 | 3.35 | |
| Maks. kalkış akımı/maks. akım çekme oranı, devre B | - | - | - | - | - | - | - | - | - | - | 5.55 | 5.46 | 5.46 | 5.71 | 3.43 | 3.23 | 3.35 | |
| Maks. kalkış akımı - azaltılmış akım başlangıcı (Un) **** | A | std. | std. | std. | std. | std. | std. | std. | std. | std. | std. | 601 | 643 | 682 | 760 | 769 | 813 | 910 |
| Devre A | A | std. | std. | std. | std. | std. | std. | std. | std. | std. | std. | 492 | 512 | 551 | 610 | 529 | 551 | 610 |
| Devre B | A | std. | std. | std. | std. | std. | std. | std. | std. | std. | std. | 330 | 370 | 370 | 385 | 529 | 551 | 610 |
| Maks.kalkış akımı - red. akım başlangıcı/ maks. akım çekme oranı, ünite | std. | std. | std. | std. | std. | std. | std. | std. | std. | std. | 1.94 | 1.82 | 1.74 | 1.69 | 1.60 | 1.55 | 1.52 | |
| Devre A | std. | std. | std. | std. | std. | std. | std. | std. | std. | std. | 2.45 | 2.30 | 2.10 | 2.03 | 2.20 | 2.10 | 2.03 | |
| Devre B | std. | std. | std. | std. | std. | std. | std. | std. | std. | std. | 3.03 | 2.83 | 2.83 | 2.57 | 2.20 | 2.10 | 2.03 | |
| Üç fazlı kısa devre tutma akımı | kA | 25 | 25 | 25 | 25 | 25 | 25 | 25 | 25 | 25 | 25 | N/A | N/A | N/A | N/A | N/A | N/A | N/A |
| Devre A | kA | - | - | - | - | - | - | - | - | - | - | 25 | 25 | 25 | 25 | 25 | 25 | 25 |
| Devre B | kA | - | - | - | - | - | - | - | - | - | - | 15 | 15 | 15 | 15 | 25 | 25 | 25 |
| Müşteri bekleme kapasitesi, ünite veya devre A, evaporatör suyu pompası bağlantıları için† | kW | 8 | 8 | 8 | 11 | 11 | 11 | 15 | 15 | 15 | 15 | 15 | 18 | 18 | 30 | 30 | 30 | 30 |
* Standart Eurovent koşulları: Evaporatöre giren/çıkan su sıcaklığı 12°C ve 7°C. Kondensere giren/çıkan su sıcaklığı 30°C/35°C.
** Güç girişi, kompresör, ünite çalışma sınırlarında (evaporatöre giren/çıkan su sıcaklığı = 15°C/10°C, kondensere giren/çıkan su sıcaklığı = 40°C/45°C) ve 400 V nominal voltaj (ünite isim plakasında verilen veriler).
*** Maksimum ünite güç girişinde maksimum ünite çalışma akımı.
**** Maksimum anlık kalkış akımı (en küçük kompresör(ler)in maksimum çalışma akımı + en büyük kompresörün kilitli rotor akımı veya azaltılmış kalkış akımı)
† Akım ve güç girişleri yukarıdaki değerlere dahil değildir.
N/A Mevcut değil
Kompresörler
| Referans | Boyut | I nom. | MHA | LRA | LRA (Y) | LRA (S) 1 cp. | LRA (S) 2 cp. |
| 06NW2146S7N | 39 | 48 | 69 | 344 | 109 | 125 | - |
| 06NW2174S7N | 46 | 58 | 83 | 423 | 134 | 154 | - |
| 06NW2209S7N | 56 | 71 | 101 | 506 | 160 | 260 | 350 |
| 06NW2250S7N | 66 | 87 | 120 | 605 | 191 | 330 | 400 |
| 06NW2300S5N | 80 | 104 | 144 | 715 | 226 | 370 | 420 |
| 06NW2300S5E | 80+ | 111 | 165 | 856 | 270 | 385 | 460 |
Açıklama:
| 06NW | Su soğutmalı üniteler için kompresör |
| N | Ekonomize edilmemiş kompresör |
| E | Ekonomize edilmiş kompresör |
| INOM | Eurovent koşullarında kompresörün ortalama akım çekimi |
| MHA | 360 V'ta tutulması gereken amper (maksimum çalışma akımı) |
| LRA | Şebeke üzerinden çalıştırma ile kilitli rotor akımı |
| LRA (Y) | Azaltılmış akımda kilitli rotor akımı (yıldız/üçgen başlatma modu) |
| LRA (S) 1 cp. | Devre başına bir kompresör için elektronik starter ile azaltılmış akımla başlatma (başlatma süresi maksimum 3 saniye) |
| LRA (S) 2 cp. | Devre başına iki kompresör için elektronik starter ile azaltılmış akımla başlatma (başlatma süresi maksimum 3 saniye) |
YÜKSEK YOĞUŞMA SICAKLIKLARINA SAHİP ÜNİTELER İÇİN ELEKTRİKSEL VERİLER
30HXC 150 ve 150A Seçenekleri
| 30HXC | 080 | 090 | 100 | 110 | 120 | 130 | 140 | 155 | 175 | 190 | 200 | 230 | 260 | 285 | 310 | 345 | 375 | |
| Güç devresi | ||||||||||||||||||
| Nominal güç kaynağı* | V-ph-Hz | 400-3-50 | ||||||||||||||||
| Voltaj aralığı | V | 360-440 | ||||||||||||||||
| Kontrol devresi beslemesi | Kontrol devresi, fabrikada takılan transformatör aracılığıyla sağlanır. | |||||||||||||||||
| Maks. güç girişi** | kW | 104 | 117 | 131 | 145 | 159 | 174 | 194 | 211 | 230 | 263 | 271 | 310 | 345 | 395 | 422 | 460 | 526 |
| A Devresi | kW | - | - | - | - | - | - | - | - | - | - | 175 | 195 | 230 | 263 | 211 | 230 | 263 |
| B Devresi | kW | - | - | - | - | - | - | - | - | - | - | 96 | 115 | 115 | 132 | 211 | 230 | 263 |
| Maks. çekilen akım (Un - 10%)*** | A | 190 | 215 | 240 | 265 | 290 | 320 | 355 | 385 | 420 | 480 | 495 | 564 | 630 | 720 | 770 | 840 | 960 |
| A Devresi | A | - | - | - | - | - | - | - | - | - | - | 320 | 355 | 420 | 480 | 385 | 420 | 480 |
| B Devresi | A | - | - | - | - | - | - | - | - | - | - | 175 | 210 | 210 | 240 | 385 | 420 | 480 |
| Maksimum çekilen akım (Un)*** | A | 173 | 195 | 218 | 241 | 264 | 291 | 323 | 350 | 382 | 436 | 450 | 514 | 573 | 655 | 700 | 764 | 873 |
| A Devresi | A | - | - | - | - | - | - | - | - | - | - | 291 | 323 | 382 | 436 | 350 | 382 | 436 |
| B Devresi | A | - | - | - | - | - | - | - | - | - | - | 159 | 191 | 191 | 218 | 350 | 382 | 436 |
| Maks. kalkış akımı, std. ünite (Un)**** | A | 277 | 312 | 335 | 379 | 402 | 435 | 519 | 546 | 578 | 618 | 1251 | 1549 | 1608 | 1701 | 1735 | 1799 | 1920 |
| A Devresi | A | - | - | - | - | - | - | - | - | - | - | 1092 | 1358 | 1417 | 1483 | 1385 | 1417 | 1483 |
| B Devresi | A | - | - | - | - | - | - | - | - | - | - | 960 | 1226 | 1226 | 1265 | 1385 | 1417 | 1483 |
| Maks. kalkış akımı/maks. akım çekme oranı, ünite | 1.61 | 1.60 | 1.54 | 1.57 | 1.52 | 1.49 | 1.61 | 1.56 | 1.51 | 1.42 | 2.78 | 3.02 | 2.81 | 2.60 | 2.48 | 2.36 | 2.20 | |
| Maks. kalkış akımı/maks. akım çekme oranı, A devresi | - | - | - | - | - | - | - | - | - | - | 3.75 | 4.21 | 3.71 | 3.40 | 3.96 | 3.71 | 3.40 | |
| Maks. kalkış akımı/maks. akım çekme oranı, B devresi | - | - | - | - | - | - | - | - | - | - | 6.03 | 6.42 | 6.42 | 5.80 | 3.96 | 3.71 | 3.40 | |
| Maks. kalkış akımı - azaltılmış akım başlangıcı (Un) **** | A | std. | std. | std. | std. | std. | std. | std. | std. | std. | std. | N/A | N/A | N/A | N/A | N/A | N/A | N/A |
| Üç fazlı kısa devre tutma akımı | kA | 25 | 25 | 25 | 25 | 25 | 25 | 25 | 25 | 25 | 25 | N/A | N/A | N/A | N/A | N/A | N/A | N/A |
| A Devresi | kA | - | - | - | - | - | - | - | - | - | - | 25 | 25 | 25 | 25 | 25 | 25 | 25 |
| B Devresi | kA | - | - | - | - | - | - | - | - | - | - | 15 | 15 | 15 | 15 | 25 | 25 | 25 |
| Müşteri bekleme kapasitesi, ünite veya A devresi, evaporatör suyu pompası bağlantıları için† | kW | 8 | 8 | 8 | 11 | 11 | 11 | 15 | 15 | 15 | 15 | 15 | 18 | 18 | 30 | 30 | 30 | 30 |
** Güç girişi, kompresör, ünite çalışma sınırlarında (evaporatör suyu giriş/çıkış sıcaklığı = 15°C/10°C, kondenser giriş/çıkış suyu sıcaklığı = 40°C/45°C) ve 400 V nominal voltajda (ünite isim plakasında verilen veriler).
*** Maksimum ünite güç girişinde maksimum ünite çalışma akımı.
**** Maksimum anlık kalkış akımı (en küçük kompresör(ler)in maksimum çalışma akımı + en büyük kompresörün kilitli rotor akımı veya azaltılmış kalkış akımı)
† Akım ve güç girişleri yukarıdaki değerlere dahil değildir.
N/A Mevcut değil
Yüksek yoğuşma sıcaklıkları için 30HXC 080-375 üniteleri doğrudan standart modellerden türetilmiştir. Uygulama aralıkları standart ünitelerle aynıdır, ancak 63°C'ye kadar kondenser çıkış suyu sıcaklıklarında çalışmaya izin verir. PRO-DIALOG kontrolü, standart ünitelerin tüm avantajlarını ve kondenser çıkış suyu sıcaklığının kontrolünü sunar.
Ana değişiklikler şunlardır:
- 30GX kompresörlerinin kullanımı
- Yüksek yoğuşma sıcaklıkları için kompresörlerle çalışmak üzere elektrik bileşenlerinin modifikasyonu.
- Basınç kodu gereksinimlerini karşılamak için ısı eşanjörlerinin modifikasyonu (gerekirse).
Seçenek 150
Bu üniteler, su soğutmalı üniteler için geleneksel uygulamalar için tasarlanmıştır, ancak 45°C'den daha yüksek kondenser çıkış suyu sıcaklıkları için.
Standart üniteler gibi, borulara takılan kondenser giriş ve çıkış suyu sensörleri ile donatılmıştır.
Makineyi kondenser suyu çıkışında kontrol etmek mümkündür, bu da bir fabrika yapılandırma değişikliği ve bir ısıtma/soğutma giriş yön değiştirme cihazının kullanılmasını gerektirir.
Seçenek 150A
Bu üniteler, sudan suya ısı pompaları için tasarlanmıştır.
Fabrikada ısı pompaları olarak yapılandırılmıştır (uzaktan yön değiştirme cihazının bir fonksiyonu olarak ısıtma/soğutma kontrolü). Kondenser, evaporatör ile aynı olan termal yalıtımı içerir.
Teknik bilgi
Aşağıdaki paragraflar dışında tüm bilgiler standart 30HXC üniteleriyle aynıdır.
Seçim
Bu ünite tipi için nominal koşullar yoktur. Seçim, mevcut elektronik katalog kullanılarak yapılır.
Boyutlar
Bunlar standart 30HXC üniteleriyle aynıdır. Tek fark, "Önerilen seçim" bölümünde açıklanan gelen saha kablolama bağlantısının çapındadır. Kablolamaya geçmeden önce bu ünitelerin boyut çizimlerine bakın.
Kompresör
30GX kompresör tablosuna bakın.
Seçenekler ve aksesuarlar
Standart 30HXC üniteleri için mevcut olan tüm seçenekler uyumludur, ancak:
| Seçenek 5, tuzlu su ünitesi | Özel ünite |
| Seçenek 25, yumuşak başlangıç, 30HXC 200-375 üniteleri | Mevcut değil |
Dikkat:
Ünitelerin iki farklı çalışma modu varsa - biri yüksek yoğuşma sıcaklığı ve diğeri düşük yoğuşma sıcaklığı ile - ve geçiş ünite çalışırken yapılıyorsa, sıcaklık dakikada 3 K'den fazla değişmemelidir. Bunun mümkün olmadığı durumlarda, bir ünite başlatma/durdurma anahtarından geçilmesi önerilir (standart üniteler için uzaktan başlatma/durdurma mevcuttur).
FİZİKSEL VERİLER 30GX
| 30GX | 082 | 092 | 102 | 112 | 122 | 132 | 152 | 162 | 182 | 207 | 227 | 247 | 267 | 298 | 328 | 358 | ||
| Net soğutma kapasitesi | kW | 285 | 309 | 332 | 388 | 417 | 450 | 505 | 536 | 602 | 687 | 744 | 810 | 910 | 1003 | 1103 | 1207 | |
| Çalışma ağırlığı | kg | 3116 | 3157 | 3172 | 3515 | 3531 | 3633 | 3920 | 3936 | 4853 | 5540 | 5570 | 6134 | 6365 | 7354 | 7918 | 8124 | |
| Soğutucu akışkan şarjı | HFC-134a | |||||||||||||||||
| A/B Devresi | kg | 55/55 | 58/50 | 54/53 | 55/53 | 60/57 | 63/60 | 75/69 | 75/75 | 80/80 | 130/85 | 130/85 | 155/98 | 170/104 | 162/150 | 162/165 | 175/175 | |
| Yağ | Poliolester yağı CARRIER SPEC: PP 47-32 | |||||||||||||||||
| A/B Devresi | l | 20/20 | 20/20 | 20/20 | 20/20 | 20/20 | 20/20 | 20/20 | 20/20 | 20/20 | 40/20 | 40/20 | 40/20 | 40/20 | 40/40 | 40/40 | 40/40 | |
| Kompresörler | Hermetik çift vidalı Power3 | |||||||||||||||||
| A Devresi, kompresör başına nom. boyut** | 46 | 46 | 56 | 56 | 66 | 66 | 80 | 80 | 80+ | 66/56 | 80/66 | 80/80 | 80+/80+ | 80/80 | 80/80 | 80+/80+ | ||
| B Devresi, kompresör başına nom. boyut** | 39 | 46 | 46 | 56 | 56 | 66 | 66 | 80 | 80+ | 80 | 80 | 80 | 80+ | 66/66 | 80/802 | 80+/80+ | ||
| Kontrol tipi | PRO-DIALOG Plus kontrolü | |||||||||||||||||
| Kapasite adımı sayısı | 6 | 6 | 6 | 6 | 6 | 6 | 6 | 6 | 6 | 8 | 8 | 8 | 8 | 10 | 10 | 10 | ||
| Minimum kapasite | % | 19 | 21 | 19 | 21 | 19 | 21 | 19 | 21 | 21 | 16 | 14 | 14 | 14 | 9 | 10 | 10 | |
| Evaporatör | İçten kanatlı bakır borulara sahip kabuk ve boru tipi | |||||||||||||||||
| Net su hacmi | l | 65 | 73 | 73 | 87 | 87 | 101 | 91 | 91 | 109 | 140 | 140 | 165 | 181 | 203 | 229 | 229 | |
| Su bağlantıları | Fabrikada sağlanan düz flanş, sahada kaynaklanacak | |||||||||||||||||
| Giriş ve çıkış | inç | 4 | 4 | 4 | 5 | 5 | 5 | 5 | 5 | 5 | 6 | 6 | 6 | 6 | 8 | 8 | 8 | |
| Drenaj ve havalandırma (NPT) | inç | 3/8 | 3/8 | 3/8 | 3/8 | 3/8 | 3/8 | 3/8 | 3/8 | 3/8 | 3/8 | 3/8 | 3/8 | 3/8 | 3/8 | 3/8 | 3/8 | |
| Maks. su tarafı çalışma basıncı | kPa | 1000 | 1000 | 1000 | 1000 | 1000 | 1000 | 1000 | 1000 | 1000 | 1000 | 1000 | 1000 | 1000 | 1000 | 1000 | 1000 | |
| Kondenserler | Bakır borular ve alüminyum kanatlar | |||||||||||||||||
| Fanlar | Dönen örtüye sahip eksenel FLYING BIRD 2 fanı | |||||||||||||||||
| Miktar | 4 | 4 | 4 | 6 | 6 | 6 | 8 | 8 | 8 | 10 | 10 | 12 | 12 | 14 | 16 | 16 | ||
| Hız | d/d | 15.8 | 15.8 | 15.8 | 15.8 | 15.8 | 15.8 | 15.8 | 15.8 | 15.8 | 15.8 | 15.8 | 15.8 | 15.8 | 15.8 | 15.8 | 15.8 | |
| Toplam hava akışı | l/s | 21110 | 21110 | 21110 | 31660 | 31660 | 31660 | 42220 | 42220 | 42220 | 52770 | 52770 | 63330 | 63330 | 73880 | 84440 | 84440 | |
* Standartlaştırılmış Eurovent koşulları: evaporatör giriş/çıkış suyu sıcaklıkları = 12°C/7°C, dış hava sıcaklığı = 35°C Net soğutma kapasitesi: Su pompası ısısının dahili evaporatör basınç düşüşüne karşı brüt soğutma kapasitesi.
** Kompresör boyutu, ton cinsinden nominal kapasiteye karşılık gelir (1 ton = 3.517 kW).
ELEKTRİKSEL VERİLER 30GX
| 30HXC | 082 | 092 | 102 | 112 | 122 | 132 | 152 | 162 | 182 | 207 | 227 | 247 | 267 | 298 | 328 | 358 | ||
| Güç devresi | ||||||||||||||||||
| Nominal güç kaynağı* | V-ph-Hz | 400-3-50 | ||||||||||||||||
| Voltaj aralığı | V | 360-440 | ||||||||||||||||
| Kontrol devresi beslemesi | Kontrol devresi, fabrikada takılan transformatör aracılığıyla sağlanır | |||||||||||||||||
| Nominal güç girişi* | kW | 98 | 109 | 123 | 133 | 150 | 166 | 179 | 196 | 214 | 246 | 281 | 292 | 332 | 364 | 394 | 449 | |
| Nominal akım çekimi* | A | 180 | 200 | 223 | 256 | 273 | 290 | 326 | 352 | 388 | 449 | 492 | 528 | 582 | 642 | 704 | 776 | |
| Maks. güç girişi** | kW | 127 | 141 | 154 | 175 | 191 | 207 | 234 | 253 | 286 | 319 | 355 | 380 | 429 | 462 | 506 | 572 | |
| Devre A | kW | - | - | - | - | - | - | - | - | - | 193 | 228 | 253 | 286 | 253 | 253 | 286 | |
| Devre B | kW | - | - | - | - | - | - | - | - | - | 127 | 127 | 127 | 143 | 209 | 253 | 286 | |
| Tam yükte kosinüs phi, birim | 0.85 | 0.85 | 0.85 | 0.85 | 0.85 | 0.85 | 0.86 | 0.86 | 0.86 | 0.86 | 0.86 | 0.86 | 0.86 | 0.86 | 0.86 | 0.86 | ||
| Maks. akım çekimi (Un - 10%)*** | A | 237 | 262 | 287 | 323 | 353 | 383 | 429 | 464 | 524 | 585 | 650 | 696 | 786 | 847 | 928 | 1048 | |
| Devre A | A | - | - | - | - | - | - | - | - | - | 353 | 418 | 464 | 524 | 464 | 464 | 524 | |
| Devre B | A | - | - | - | - | - | - | - | - | - | 232 | 232 | 232 | 262 | 383 | 464 | 524 | |
| Maksimum akım çekimi (Un)*** | A | 217 | 240 | 263 | 297 | 324 | 351 | 394 | 426 | 480 | 537 | 596 | 639 | 721 | 777 | 852 | 961 | |
| Devre A | A | - | - | - | - | - | - | - | - | - | 324 | 383 | 426 | 480 | 426 | 426 | 480 | |
| Devre B | A | - | - | - | - | - | - | - | - | - | 213 | 213 | 213 | 240 | 351 | 426 | 480 | |
| Maks. kalkış akımı, std. ünite**** (Un) | A | 334 | 357 | 401 | 435 | 468 | 495 | 590 | 622 | 662 | 1338 | 1631 | 1674 | 1767 | 1812 | 1887 | 2008 | |
| Devre A*** | A | - | - | - | - | - | - | - | - | - | 1125 | 1418 | 1461 | 1527 | 1461 | 1461 | 1527 | |
| Devre B*** | A | - | - | - | - | - | - | - | - | - | 1248 | 1248 | 1248 | 1287 | 1152 | 1461 | 1527 | |
| Maks. kalkış akımı/maks. akım çekme oranı, ünite | 1.54 | 1.49 | 1.53 | 1.47 | 1.44 | 1.41 | 1.50 | 1.46 | 1.38 | 2.49 | 2.74 | 2.62 | 2.45 | 2.33 | 2.22 | 2.09 | ||
| Maks. kalkış akımı/maks. akım çekme oranı, devre A | - | - | - | - | - | - | - | - | - | 3.47 | 3.70 | 3.43 | 3.18 | 3.43 | 3.43 | 3.18 | ||
| Maks. kalkış akımı/maks. akım çekme oranı, devre B | - | - | - | - | - | - | - | - | - | 5.86 | 5.86 | 5.86 | 5.36 | 3.28 | 3.43 | 3.18 | ||
| Maks. kalkış akımı - azaltılmış akım başlangıcı (Un) **** | A | std. | std. | std. | std. | std. | std. | std. | std. | std. | 878 | 955 | 998 | 1102 | 1136 | 1211 | 1343 | |
| Devre A | A | std. | std. | std. | std. | std. | std. | std. | std. | std. | 665 | 742 | 785 | 862 | 785 | 785 | 862 | |
| Devre B | A | std. | std. | std. | std. | std. | std. | std. | std. | std. | 572 | 572 | 572 | 622 | 692 | 785 | 862 | |
| Maks.kalkış akımı - kırm. akım başlangıcı/ maks. akım çekme oranı, ünite | std. | std. | std. | std. | std. | std. | std. | std. | std. | 1.64 | 1.60 | 1.56 | 1.53 | 1.46 | 1.42 | 1.40 | ||
| Devre A | std. | std. | std. | std. | std. | std. | std. | std. | std. | 2.05 | 1.94 | 1.84 | 1.79 | 1.84 | 1.84 | 1.79 | ||
| Devre B | std. | std. | std. | std. | std. | std. | std. | std. | std. | 2.69 | 2.69 | 2.69 | 2.39 | 1.97 | 1.84 | 1.79 | ||
| Üç fazlı kısa devre tutma akımı | kA | 25 | 25 | 25 | 25 | 25 | 25 | 25 | 25 | 25 | N/A | N/A | N/A | N/A | N/A | N/A | N/A | |
| Devre A | kA | - | - | - | - | - | - | - | - | - | 25 | 25 | 25 | 25 | 25 | 25 | 25 | |
| Devre B | kA | - | - | - | - | - | - | - | - | - | 25 | 25 | 25 | 25 | 25 | 25 | 25 | |
| Müşteri bekleme kapasitesi, ünite veya çev. A, evaporatör suyu pompası bağlantıları için† | kW | 4 | 4 | 4 | 5.5 | 5.5 | 5.5 | 7.5 | 7.5 | 7.5 | 7.5 | 9 | 9 | 9 | 15 | 15 | 15 | |
* Standart Eurovent koşulları: Evaporatöre giren/çıkan su sıcaklığı 12°C ve 7°C. Dış hava sıcaklığı 35°C.
** Güç girişi, kompresör ve fan, ünite çalışma sınırlarında (evaporatör suyu giriş/çıkış sıcaklığı = 15°C/10°C, dış hava sıcaklığı = 46°C) ve 400 V nominal voltajda (ünite isim plakasında verilen veriler).
*** Maksimum ünite güç girişinde maksimum ünite çalışma akımı.
**** Maksimum anlık kalkış akımı (en küçük kompresör(ler)in maksimum çalışma akımı + fan akımı + kilitli rotor akımı veya en büyük kompresörün azaltılmış kalkış akımı).
† Akım ve güç girişleri yukarıdaki değerlere dahil değildir
N/A Mevcut değil
Kompresörler
| Referans | Boyut | I nom. | MHA | LRA | LRA (Y) | LRA (S) 1 cp. | LRA (S) 2 cp. |
| 06NA2146S7N | 39 | 70 | 95 | 605 | 191 | 220 | - |
| 06NA2174S7N | 46 | 90 | 120 | 715 | 226 | 260 | - |
| 06NA2209S7N | 56 | 113 | 145 | 856 | 270 | 330 | 420 |
| 06NA2250S7N | 66 | 130 | 175 | 960 | 303 | 380 | 500 |
| 06NA2300S5N | 80 | 156 | 210 | 1226 | 387 | 445 | 550 |
| 06NA2300S5E | 80+ | 174 | 240 | 1265 | 400 | 460 | 600 |
Açıklama:
| 06NA | Hava soğutmalı üniteler için kompresör |
| N | Ekonomize edilmemiş kompresör |
| E | Ekonomize edilmiş kompresör |
| INOM | Eurovent koşullarında kompresörün ortalama akım çekimi |
| MHA | 360 V'ta amper tutması gerekir (maksimum çalışma akımı) |
| LRA | Şebeke üzerinden çalıştırma ile kilitli rotor akımı |
| LRA (Y) | Azaltılmış akımda kilitli rotor akımı (yıldız/üçgen başlatma modu) |
| LRA (S) 1 cp. | Devre başına bir kompresör için elektronik marş motoru ile azaltılmış akımla çalıştırma (çalıştırma süresi maksimum 3 saniye) |
| LRA (S) 2 cp. | Devre başına iki kompresör için elektronik marş motoru ile azaltılmış akımla çalıştırma (çalıştırma süresi maksimum 3 saniye) |
UYGULAMA VERİLERİ
Ünite çalışma aralığı
| Evaporatör | Minimum (En Düşük) | Maximum (En Yüksek) | |
| Evaporatöre giren su sıcaklığı | °C | 6.8* | 21 |
| Evaporatörden çıkan su sıcaklığı | °C | 4** | 15 |
| Kondenser (su soğutmalı) | Minimum (En Düşük) | Maximum (En Yüksek) | |
| Kondensere giren su sıcaklığı | °C | 20*** | 42 |
| Kondenserden çıkan su sıcaklığı | °C | 25 | 45 |
| Dış ortam çalışma sıcaklığı 30HXC | °C | 6 | 40 |
| Kondenser (hava soğutmalı) | Minimum (En Düşük) | Maximum (En Yüksek) | |
| Dış ortam çalışma sıcaklığı | °C | 0 | 46 |
| Mevcut statik basınç | kPa | 0 |
Notlar:
* 6.8°C'den daha düşük sıcaklıkta çalışma gerektiren uygulamalar için, Carrier elektronik kataloğunu kullanarak ünite seçimi için Carrier s.a. ile iletişime geçin.
** 4°C'den daha düşük sıcaklıkta çalışma gerektiren uygulamalar için, üniteler antifriz kullanımını gerektirir.
*** Tam yükte ve 20°C'nin altında kondenser giriş suyu sıcaklığında çalışan su soğutmalı üniteler (30HXC), analog su kontrol vanaları ile bir kafa basıncı kontrolü kullanımını gerektirir (kafa basıncı kontrolü paragrafına bakın).
Geçici çalışma modlarında (başlangıç ve kısmi yükte) ünite, 13°C'lik bir kondenser giriş hava sıcaklığı ile çalışabilir.
Minimum soğutulmuş su akışı
Minimum soğutulmuş su akışı, bir sonraki sayfadaki tabloda gösterilmektedir. Akış bundan daha azsa, evaporatör akışı şemada gösterildiği gibi yeniden sirküle edilebilir. Evaporatörden çıkan karışımın sıcaklığı, soğutulmuş su giriş sıcaklığından asla 2,8 K'den daha düşük olmamalıdır.

MİNİMUM SOĞUTULMUŞ SU AKIŞ HIZI İÇİN
Maksimum soğutulmuş su akışı
Maksimum soğutulmuş su akışı, evaporatördeki izin verilen maksimum basınç düşüşü ile sınırlıdır. Bir sonraki sayfadaki tabloda verilmiştir. Akış maksimum değeri aşarsa, iki çözüm mümkündür:
- Daha yüksek bir maksimum su akış hızına izin verecek bir su geçişi daha az olan standart olmayan bir evaporatör seçin.
- Daha düşük bir evaporatör akış hızı ile daha yüksek bir sıcaklık farkı elde etmek için evaporatörü şemada gösterildiği gibi atlayın.

MAKSİMUM SOĞUTULMUŞ SU AKIŞ HIZI İÇİN
Değişken akışlı evaporatör
Değişken evaporatör akışı, standart 30HXC ve 30GX chiller'lerinde kullanılabilir. Chiller'ler, tüm akış koşullarında sabit bir çıkış suyu sıcaklığını korur. Bunun gerçekleşmesi için, minimum akış hızı, izin verilen akış hızları tablosunda verilen minimum akıştan daha yüksek olmalı ve dakika başına %10'dan fazla değişmemelidir. Akış hızı daha hızlı değişirse, sistem 3,25 l/kW yerine kW başına minimum 6,5 litre su içermelidir.
Sistem minimum su hacmi
Sistem ne olursa olsun, su döngüsü minimum kapasitesi aşağıdaki formülle verilir:
Kapasite = Kap (kW) x N Litre
| Uygulama | N |
| Normal klima | 3.25 |
| Proses tipi soğutma | 6.5 |
Burada Kap, kurulumun nominal çalışma koşullarında nominal sistem soğutma kapasitesidir (kW).
Bu hacim, istikrarlı çalışma ve doğru sıcaklık kontrolü için gereklidir.
Gerekli hacmi elde etmek için devreye genellikle bir tampon su tankı eklemek gerekir. Tankın kendisi, sıvının (su veya tuzlu su) uygun şekilde karışmasını sağlamak için dahili olarak bölmeli olmalıdır. Aşağıdaki örneklere bakın.
NOT: Kompresör bir saatte 6 defadan fazla yeniden başlamamalıdır.


Soğutucu akış hızı (l/s)
| 30HXC | Min.* | Max.** | ||
| 080-090 | 5.7 | 22.7 | ||
| 100 | 6.0 | 24.1 | ||
| 110 | 6.9 | 27.5 | ||
| 120-130 | 8.3 | 33.0 | ||
| 140-155 | 10.0 | 39.5 | ||
| 175-190 | 10.7 | 42.7 | ||
| 200 | 13.4 | 53.7 | ||
| 230 | 13.4 | 60.6 | ||
| 260-285 | 17.0 | 68.1 | ||
| 310 | 19.4 | 77.8 | ||
| 345-375 | 21.3 | 85.3 | ||
| 30GX | Min.* | Max.** | ||
| 082 | 5.7 | 22.7 | ||
| 092-102 | 6.0 | 24.1 | ||
| 112-122 | 6.9 | 27.5 | ||
| 132 | 8.4 | 33.7 | ||
| 152-162 | 10.0 | 39.9 | ||
| 182 | 10.7 | 42.7 | ||
| 207-227 | 13.4 | 53.7 | ||
| 247 | 15.1 | 60.6 | ||
| 267 | 17.0 | 68.1 | ||
| 298 | 19.4 | 77.8 | ||
| 328-358 | 21.3 | 85.3 | ||
* 0.9 m/s'lik su hızına dayanmaktadır.
** 3.6 m/s'lik su hızına dayanmaktadır.
Kondenser akış hızı (l/s)
| 30HXC | Min.* Kapalı devre (Closed loop) | Açık devre (Open loop) | Max.** |
| 080-110 | 2.5 | 7.5 | 29.9 |
| 120-130 | 3.1 | 9.3 | 37.3 |
| 140-155 | 3.8 | 11.4 | 45.5 |
| 175-190 | 4.6 | 13.8 | 55.2 |
| 200 | 5.0 | 14.9 | 59.6 |
| 230-285 | 6.7 | 20.1 | 80.3 |
| 310-375 | 7.3 | 22.0 | 88.0 |
* Kapalı devrede 0.3 m/s ve açık devrede 0.9 m/s su hızına dayanmaktadır.
** 3.6 m/s'lik su hızına dayanmaktadır.
Evaporatör basınç düşüş eğrisi

- 30HXC 080-090/30GX 082
- 30HXC 100/30GX 092-102
- 30HXC 110/30GX 112-122
- 30GX 132
- 30HXC 120-130
- 30HXC 140-155/30GX 152-162
- 30HXC 175-190/30GX 182
- 30HXC 200/30GX 207-227
- 30HXC 230/30GX 247
- 30HXC 260-285/30GX 267
- 30HXC 310/30GX 298
- 30HXC 345-375/30GX 328-358
Kondenser basınç düşüş eğrisi

- 30HXC 080-090-100-110
- 30HXC 120-130
- 30HXC 140-155
- 30HXC 175-190
- 30HXC 200
- 30HXC 230-260-285
- 30HXC 310-345-375
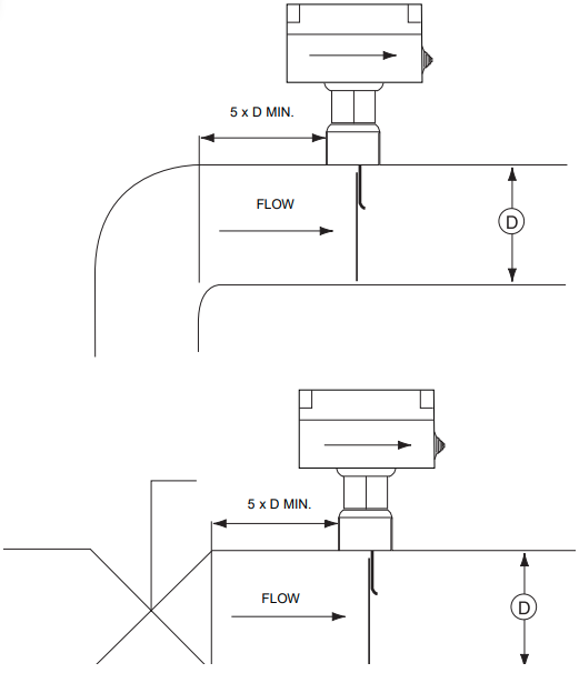
Akış Kontrol Cihazları
Soğutucu akış anahtarı ve soğutulmuş su pompası kilidi
30HXC ve 30GX ünitelerinde soğutucu akış anahtarının takılması ve soğutulmuş su pompası kilidinin bağlanması zorunludur. Bu talimata uyulmaması Carrier garantisini geçersiz kılacaktır.
Soğutucu akış anahtarı kontrol cihazı, 30HXC ve 30GX ünitelerinde fabrikada tedarik edilir ve kablolanır.
Kurulum için üreticinin talimatlarını izleyin.
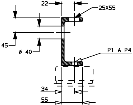
Akış anahtarı yatay bir boruya veya yukarı doğru sıvı akışı olan dikey bir boruya monte edilebilir. Sıvı akışı aşağı doğru olduğunda kullanılmamalıdır.
Akış anahtarının her iki tarafında en az beş boru çapı kadar düz bir bölümün olduğu bir boru bölümüne monte edin. Vanaların, dirseklerin veya deliklerin yakınına yerleştirmeyin. Palet asla boruya veya borudaki herhangi bir kısıtlamaya dokunmamalıdır. Akış anahtarını, paletin düz kısmı akışa dik açılarda olacak şekilde yerine vidalayın. Kapaktaki ve alttaki, kasanın içindeki oklar akış yönünü göstermelidir. Anahtar, terminallere kolay kablolama için erişilebilir olacak şekilde monte edilmelidir.
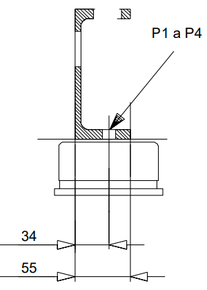
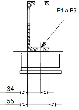
34 ve 35 numaralı terminaller, soğutulmuş su pompası kilidinin (soğutulmuş su pompası kontaktörünün yardımcı kontağı) sahada kurulumu için sağlanmıştır.
(Boru bağlantısı: 1" NPT)

Kondenser akış anahtarı (30HXC)
Kondenser akış anahtarı, sahada kurulan bir cihazdır.
MONTAJ
Alınan ekipmanı kontrol edin
- Ünitede hasar veya eksik parça olup olmadığını inceleyin. Hasar tespit edilirse veya sevkiyat tamamlanmamışsa, derhal nakliye şirketiyle bir talepte bulunun.
- Alınan ünitenin sipariş edilen ünite olduğunu doğrulayın. Tip etiketi verilerini siparişle karşılaştırın.
- Yerinde kurulum için sipariş edilen tüm aksesuarların teslim edildiğini ve eksiksiz ve hasarsız olduğunu doğrulayın.
- Hassas kontrol mekanizması ve elektronik cihazlar nedeniyle üniteleri hava koşullarına maruz kalan bir alanda saklamayın.
Üniteyi taşıma ve yerleştirme
Taşıma
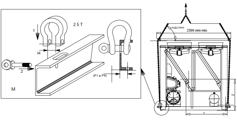
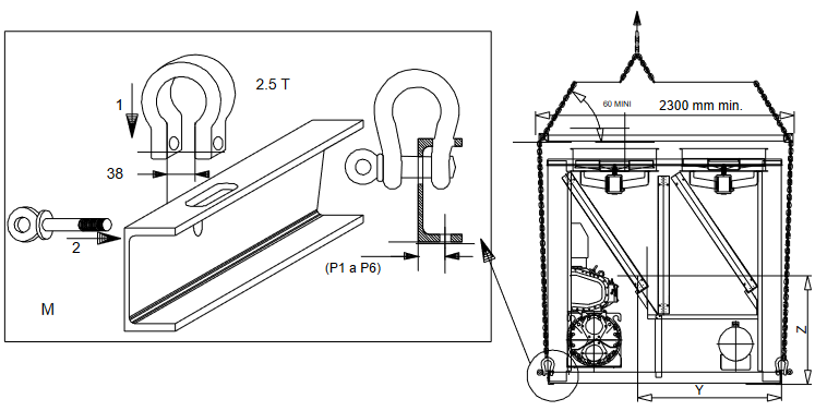
Ünite son konumuna gelene kadar kızakları, paletleri veya koruyucu ambalajı çıkarmayın. Soğutucuyu tüpler veya makaralar kullanarak hareket ettirin veya doğru kapasitede sapanlar kullanarak kaldırın.
(30HXC)
Sadece ünitede, soğutucu ısı eşanjörünün üstünde işaretlenmiş olan belirlenmiş kaldırma noktalarında sapan kullanın. Isı eşanjörünün altından yapılan bağlantılar ünitenin güvenli olmayan bir şekilde kaldırılmasına neden olur. Kişisel yaralanma veya ünitede hasar meydana gelebilir. Üniteyle birlikte verilen sertifikalı boyut çiziminde verilen bağlama talimatını izleyin.
Yerleştirme
Tüm bağlantılar ve servis işlemleri için yeterli alan olduğundan emin olmak için daima "Boyutlar ve boşluklar" bölümüne bakın. Ağırlık merkezi koordinatları, ünite montaj deliklerinin konumu ve ağırlık dağılımı noktaları için, üniteyle birlikte verilen sertifikalı boyut çizimine bakın.
Bu soğutucuların bir bodrum katına veya zemin seviyesine kurulmasını öneririz. Zemin seviyesinin üzerine kurulacaksa, öncelikle izin verilen zemin yüklemesinin yeterli olup olmadığını ve zeminin yeterince güçlü ve düz olup olmadığını kontrol edin. Gerekirse, zemini güçlendirin ve düzeltin.
Soğutucuyu son konumuna getirdikten sonra, hareket ettirmeye yardımcı olmak için kullanılan kızakları ve diğer cihazları çıkarın. Bir su terazisi kullanarak üniteyi düzeltin ve üniteyi zemine veya kaideye cıvatalayın. Bu ünitelerin çalışması, düz olmadıkları ve montajlarına güvenli bir şekilde sabitlenmedikleri takdirde bozulabilir. Gerekirse, titreşim yalıtımına yardımcı olmak için ünitenin altına yalıtım pedleri kullanın.
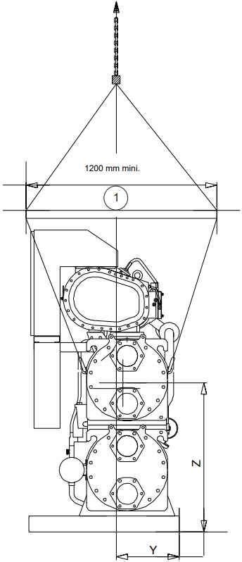
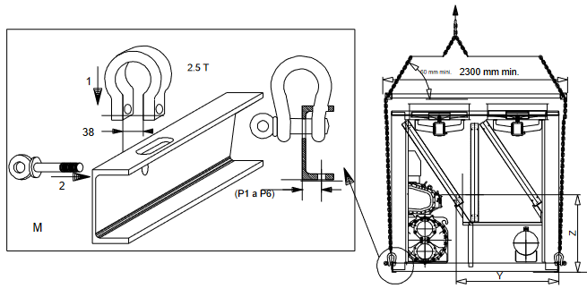
KALDIRMA TALİMATLARI
30HXC 080-190
Bu şema sadece bilgilendirme amaçlı gösterilmiştir. "Sertifikalı çizimlere" bakın.

- 30HXC 190 HARİÇ
X mm Y mm Z mm 30HXC080
30HXC090
30HXC1001345 402 903 30HXC110 1368 397 935 30HXC120
30HXC130
30HXC140
30HXC1551731 392 879 30HXC175 1703 386 947 30HXC190 1705 398 955


NOT
Tüm kaldırma ve konumlandırma işlemleri bittiğinde, kaldırma pabuçlarında boyanın çıkarıldığı tüm yüzeylere rötuş yapılması önerilir.
30HXC 200-285
Bu şema sadece bilgilendirme amaçlı gösterilmiştir. "Sertifikalı çizimlere" bakın.


30HXC 310-375


| X mm | Y mm | Z mm | |
| 30HXC310 | 2195 | 425 | 1085 |
| 30HXC345 | 2195 | 425 | 1085 |
| 30HXC375 | 2205 | 435 | 1025 |
NOT
Tüm kaldırma ve konumlandırma işlemleri bittiğinde, kaldırma pabuçlarında boyanın çıkarıldığı tüm yüzeylere rötuş yapılması önerilir.
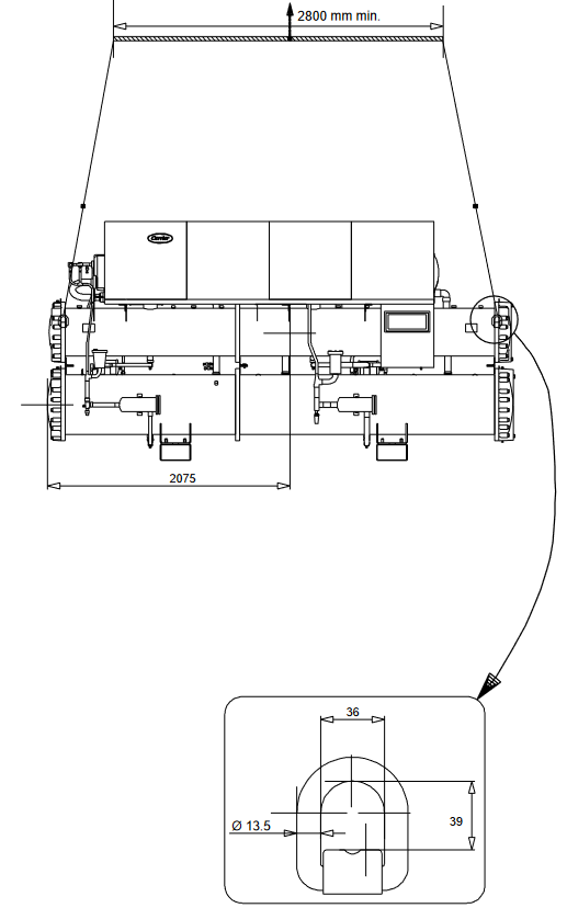
30GX 082-162
Bu şema sadece bilgilendirme amaçlı gösterilmiştir. "Sertifikalı çizimlere" bakın.



| X mm | Y mm | Z mm | PTkg | |
| 30GX082 | 1440 | 1460 | 900 | 3115 |
| 30GX092 | 1440 | 1460 | 900 | 3156 |
| 30GX102 | 1440 | 1460 | 900 | 3170 |
| 30GX112 | 1650 | 1460 | 900 | 3574 |
| 30GX122 | 1650 | 1460 | 900 | 3527 |
| 30GX132 | 1650 | 1460 | 900 | 3634 |
| 30GX152 | 2155 | 1430 | 900 | 3938 |
| 30GX162 | 2155 | 1430 | 900 | 3954 |
30GX 182



| X mm | Y mm | Z mm | PTkg | |
| 30GX182 | 3030 | 1370 | 875 | 4853 |
NOT
Tüm kaldırma ve konumlandırma işlemleri bittiğinde, kaldırma pabucunda boyanın çıkarıldığı tüm yüzeylere rötuş yapılması önerilir.
30GX 207-267
Bu şema sadece bilgilendirme amaçlı gösterilmiştir. "Sertifikalı çizimlere" bakın.



| X mm | Y mm | Z mm | PTkg | |
| 30GX207 | 2870 | 1440 | 890 | 5536 |
| 30GX227 | 2870 | 1440 | 890 | 5572 |
| 30GX247 | 3320 | 1430 | 927 | 6131 |
| 30GX267 | 3300 | 1420 | 886 | 6363 |
30GX 298-358



| X mm | Y mm | Z mm | PTkg | |
| 30GX298 | 3630 | 1420 | 890 | 7353 |
| 30GX328 | 4360 | 1455 | 920 | 7840 |
| 30GX358 | 4360 | 1445 | 930 | 8045 |
NOT
Tüm kaldırma ve konumlandırma işlemleri bittiğinde, kaldırma pabuçlarında boyanın çıkarıldığı tüm yüzeylere rötuş yapılması önerilir.
Boru bağlantıları
Tüm su giriş ve çıkış bağlantılarının boyutları ve konumları için sertifikalı boyut çizimlerine bakın. Su boruları, ısı eşanjörlerine herhangi bir radyal veya eksenel kuvvet veya boru tesisatına veya binaya herhangi bir titreşim iletmemelidir.
Su kaynağı analiz edilmeli ve gerektiğinde uygun filtreleme, arıtma, kontrol cihazları, izolasyon ve tahliye vanaları ve devreleri oluşturulmalıdır. Bir su arıtma uzmanına veya konuyla ilgili uygun literatüre danışın.
Çalıştırma önlemleri
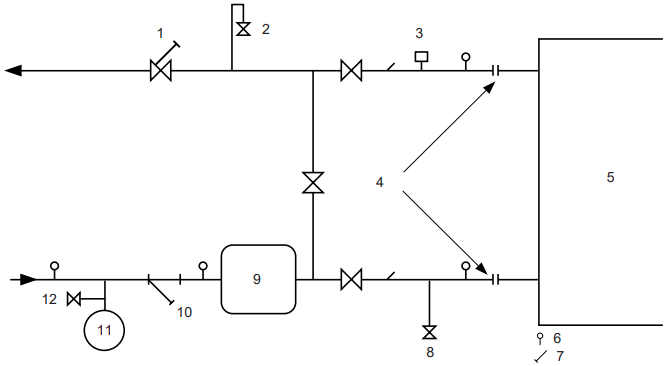
Su devresi, en az sayıda dirsek ve farklı seviyelerde yatay boru hatlarına sahip olacak şekilde tasarlanmalıdır. Aşağıdaki temel kontroller yapılmalıdır (aşağıdaki tipik bir hidrolik devrenin resmine de bakın).
- Isı eşanjörlerinin su giriş ve çıkışlarını not edin.
- Su devresindeki tüm yüksek noktalara manuel veya otomatik hava tahliye vanaları takın.
- Sistemdeki basıncı korumak için bir genleşme odası veya bir genleşme/tahliye vanası kullanın.
- Evaporatöre yakın, giren ve çıkan su bağlantılarına su termometreleri ve basınç göstergeleri takın.
- Tüm devrenin boşaltılmasına izin vermek için tüm alçak noktalara tahliye vanaları takın. Soğutucuyu çalıştırmadan önce tahliye hattına bir stop valfi bağlayın.
- Evaporatöre yakın, giren ve çıkan su hatlarına stop vanaları ve basınç göstergeleri takın.
- Soğutucu akış anahtarı takın.
- Boru tesisatına titreşim iletimini azaltmak için esnek bağlantılar kullanın.
- Hem termal sızıntıları azaltmak hem de yoğuşmayı önlemek için sızıntı testi yapıldıktan sonra tüm boru tesisatını yalıtın.
- Yalıtımı bir buhar bariyeri ile örtün.
Evaporatör ve kondenser bağlantıları
Evaporatör ve kondenser, tüplerin temizlenmesini kolaylaştırmak için çıkarılabilir su kutularına sahip çok tüplü kabuk ve tüp tipindedir.
Su bağlantılarını yapmadan önce, her iki kafadaki cıvataları, açıklanan yöntemi izleyerek gösterilen daha düşük torka sıkın. Verilen aralığın alt ucundaki bir tork değeri kullanarak cıvata boyutuna göre belirtilen çiftler ve sırayla sıkın (bkz. tablo).
Boru tesisatını flanşa kaynak yapmadan önce fabrikada verilen düz flanşı su kutusundan çıkarın. Flanşın çıkarılmaması sensörlere ve yalıtıma zarar verebilir.
NOT
Boru tesisatının bağlandığı kafaların cıvatalarının doğru ve eşit şekilde sıkıldığından emin olmak için sistemi boşaltmanızı ve boru tesisatını ayırmanızı öneririz.
Donmaya karşı koruma
Evaporatör ve su soğutmalı kondenser koruması
Soğutucu veya su borularının ortam sıcaklığının 0°C'nin altına düşebileceği bir alanda bulunması durumunda, üniteyi ve su borularını en düşük sıcaklığın 8 K altına kadar korumak için bir antifriz çözeltisi eklenmesi önerilir. Sadece ısı eşanjörü görevi için onaylanmış antifriz çözeltileri kullanın. Sistem bir antifriz çözeltisi ile korunmuyorsa ve dondurucu hava koşullarında kullanılmayacaksa, soğutucunun ve dış boruların boşaltılması zorunludur. Donmadan kaynaklanan hasarlar garanti kapsamında değildir.
Su kutusu sıkma sırası

Gösterge
- Sıra 1: 1 2 3 4
Sıra 2: 5 6 7 8
Sıra 3: 9 10 11 12 - Sıkma torku
Cıvata boyutu M16 - 171 - 210 Nm
Tipik hidrolik devre şeması

Gösterge
- Kontrol vanası
- Hava tahliye
- Akış anahtarı
- Esnek bağlantı
- Isı eşanjörü
- Basınç musluğu
- Termostat manşonu
- Tahliye
- Tampon tankı
- Filtre
- Genleşme tankı
- Dolum vanası
ELEKTRİKSEL ÖZELLİKLER
- 30HXC 080-190 ve 30GX 082-182'de yalnızca bir adet güç ayırma/izolasyon anahtarı bulunur.
- 30HXC 200-375 ve 30GX 207-358'de iki adet güç ayırma/izolasyon anahtarı bulunur.
- Kontrol kutusu standart olarak aşağıdakileri içerir:
- Her kompresör ve fan için marş motorları ve motor koruma cihazları
- Kontrol bileşenleri
- Sahada bağlantılar:
Tüm ana bağlantılar ve elektrik tesisatı, sahaya uygulanan direktiflere uygun olarak yapılmalıdır. - 30HXC ve 30GX, bu direktiflere uyumu kolaylaştırmak için tasarlanmıştır. 30HXC ve 30GX için elektrik ekipmanının mühendisliği, Avrupa standardı EN 60204-1'i (makine güvenliği - makinelerin elektrikli ekipmanı - Bölüm 1: genel kurallar) dikkate alır.
Standart EN 60204-1, Makine Direktifi § 1.5.1'in gerekliliklerine yanıt vermenin iyi bir yoludur. Normatif öneri IEC 364, genellikle kurulum düzenlemesinin gerekliliklerini karşıladığı kabul edilir.
Standart EN 60204-1'in Ek B'si, makinelerin çalıştığı elektriksel özellikleri tanımlamak için kullanılabilir.
30HXC
- Standart bir 30HXC için çalışma koşulları aşağıda açıklanmıştır:
- Çevre koşulları(1). Çevre sınıflandırması, IEC 364 standardı § 3'te açıklanmıştır:
- Ortam sıcaklığı aralığı: + 6°C ila + 40°C, AA4 sınıflandırması
- Nem aralığı (yoğuşmasız)
40°C'de %50 bağıl nem
20°C'de %90 bağıl nem - Rakım - 2000 m(1)
- İç mekan kurulumu için
- Su varlığı: AD2 sınıflandırması(1) (su damlacıkları olasılığı)
- Katı madde varlığı: AE2 sınıflandırması(1) (önemsiz partiküllerin varlığı)
- Aşındırıcı ve kirletici maddelerin varlığı, AF1 sınıflandırması (ihmal edilebilir)
- Titreşim, şok: AG2, AH2 sınıflandırması Personelin yeterliliği: BA4 sınıflandırması(1) (IEC 364'e göre kalifiye personel).
- Çevre koşulları(1). Çevre sınıflandırması, IEC 364 standardı § 3'te açıklanmıştır:
(1) Bu sınıflandırma ile ilgili olarak gerekli olan koruma standardı IP21B'dir (IEC 529 referans belgesine göre). Tüm 30HXC'ler IP23C koruma standardına sahiptir ve bu nedenle bu koruma gereksinimini karşılar.
30GX
- 30GX için çalışma koşulları aşağıda açıklanmıştır:
- Çevre koşulları(2). Çevre sınıflandırması, EN 60721 standardında açıklanmıştır:
- Dış mekan kurulumu için(2)
- Ortam sıcaklığı aralığı: - 18°C ila + 46°C, 4K3 sınıflandırması(2)
- Rakım 2000 m(2)
- Katı madde varlığı: 4S2 sınıflandırması (önemsiz partiküllerin varlığı)
- Aşındırıcı ve kirletici maddelerin varlığı, 4C2 sınıflandırması (ihmal edilebilir)
- Titreşim, şok: 4M2 sınıflandırması
- Çevre koşulları(2). Çevre sınıflandırması, EN 60721 standardında açıklanmıştır:
Personelin yeterliliği: BA4(2) sınıflandırması (IEC 364'e göre kalifiye personel).
(2) Bu sınıflandırma ile ilgili olarak gerekli olan koruma standardı IP43BW'dir (IEC 529 referans belgesine göre). Tüm 30GX'ler IP45CW koruma standardına sahiptir ve bu nedenle bu koruma gereksinimini karşılar.
30HXC/GX
- Güç kaynağı frekansındaki dalgalanma: ± 2 Hz
- Güç kaynağı iletkenleri için aşırı akım koruması cihazla birlikte verilmez.
- Fabrikada takılan ayırma/izolasyon anahtarı "a" tipi bir izolatördür. (EN60204-1 § 5.3.2).
NOT: Bir kurulumun belirli yönleri yukarıda listelenenlerden (veya burada bahsedilmeyen özelliklerden) farklı özellikler gerektiriyorsa, Carrier temsilcinizle iletişime geçin.
Güç kaynağı
Güç kaynağı, soğutucu akışkan isim plakasındaki spesifikasyona uygun olmalıdır. Besleme gerilimi, elektrik verileri tablosunda belirtilen aralıkta olmalıdır.
Bağlantılar için kablo şemalarına bakın.
Soğutucu akışkanın uygunsuz bir besleme gerilimi veya aşırı faz dengesizliği ile çalıştırılması, Carrier garantisini geçersiz kılacak bir suistimal teşkil eder. Gerilim için faz dengesizliği %2'yi veya akım için %10'u aşarsa, derhal yerel elektrik tedarikinizle iletişime geçin ve düzeltici önlemler alınana kadar soğutucu akışkanın açılmadığından emin olun.
Gerilim faz dengesizliği (%):
100 x ortalama gerilimden maksimum sapma
Ortalama gerilim
Örnek:
400 V - 3 ph - 50 Hz'lik bir beslemede, bireysel faz gerilimleri aşağıdaki gibi ölçülmüştür:
AB = 406 V; BC = 399; AC = 394 V
| Ortalama gerilim | = (406 + 399 + 394)/3 = 1199/3 |
| = 399.7 yaklaşık 400 V |
400 V ortalamasından maksimum sapmayı hesaplayın:
(AB) = 406 - 400 = 6
(BC) = 400 - 399 = 1
(CA) = 400 - 394 = 6

Ortalamadan maksimum sapma 6 V'tur. En büyük yüzde sapma şudur:
100 x 6/400 = %1.5
Bu, izin verilen %2'den azdır ve bu nedenle kabul edilebilir.
ÖNERİLEN KABLO KESİTLERİ
Kablo boyutlandırması, kurulumu yapan kişinin sorumluluğundadır ve her kurulum sahasına uygulanan özelliklere ve düzenlemelere bağlıdır. Aşağıdakiler yalnızca bir kılavuz olarak kullanılmalıdır ve Carrier'ı hiçbir şekilde sorumlu tutmaz. Kablo boyutlandırması tamamlandıktan sonra, sertifikalı boyut çizimini kullanarak, kurulumu yapan kişi kolay bağlantı sağlandığından emin olmalı ve sahada gerekli olabilecek değişiklikleri tanımlamalıdır.
Genel ayırıcı/izolatör anahtarına sahada sağlanan güç giriş kabloları için standart olarak sağlanan bağlantılar, aşağıdaki tabloda listelenen kabloların sayısı ve türü için tasarlanmıştır.
Hesaplamalar, maksimum makine akımına (elektriksel veri tablolarına bakın) dayanmaktadır.
Tasarım için, IEC 364, tablo 52C'ye göre aşağıdaki standartlaştırılmış kurulum yöntemleri kullanılmaktadır:
- Bina içine kurulan 30HX üniteleri için: No.13: delikli yatay kablo kanalı ve No. 41: kapalı kanal.
- Bina dışına kurulan 30GX üniteleri için: No.17: asılı havai hatlar ve No. 61: %20'lik bir düşürme katsayısı ile gömülü kanal.
Hesaplama, bakır veya alüminyum çekirdekli PVC veya XLPE yalıtımlı kablolara dayanmaktadır. Maksimum sıcaklık, 30HX üniteleri için 40°C ve 30GX üniteleri için 46°C'dir.
The given wire length limits the voltage drop to < 5% (verilen tel uzunluğu voltaj düşüşünü < %5 ile sınırlar).
| Unit (Birim) | Min. (mm2) by phase (faza göre Min. (mm2)) | Wire type (Kablo tipi) | L (m) | Max. (mm2) by phase (faza göre Max. (mm2)) | Wire type (Kablo tipi) | L (m) |
| 30HX 080 | 1 x 35 | XLPE Cu | 140 | 1 x 120 | PVC Al | 260 |
| 30HX 090 | 1 x 50 | XLPE Cu | 160 | 1 x 120 | PVC Al | 260 |
| 30HX 100 | 1 x 50 | XLPE Cu | 160 | 1 x 95 | XLPE Al | 195 |
| 30HX 110 | 1 x 70 | XLPE Cu | 170 | 1 x 120 | XLPE Al | 205 |
| 30HX 120/130 | 1 x 70 | XLPE Cu | 170 | 1 x 150 | XLPE Al | 210 |
| 30HX 140 | 1 x 95 | XLPE Cu | 180 | 1 x 185 | XLPE Al | 220 |
| 30HX 155 | 1 x 95 | XLPE Cu | 180 | 1 x 240 | XLPE Al | 225 |
| 30HX 175 | 1 x 120 | XLPE Cu | 185 | 1 x 240 | XLPE Al | 225 |
| 30HX 190 | 1 x150 | XLPE Cu | 190 | 2 x 95 | XLPE Al | 195 |
| 30HX 200 ckt A | 1 x 70 | XLPE Cu | 170 | 2 x120 | PVC Al | 325 |
| 30HX 230 ckt A | 1 x 95 | XLPE Cu | 180 | 2 x 120 | PVC Al | 325 |
| 30HX 260 ckt A | 1 x 120 | XLPE Cu | 185 | 1 x 240 | XLPE Al | 225 |
| 30HX 285 ckt A | 1 x 150 | XLPE Cu | 190 | 2 x 150 | XLPE Al | 265 |
| 30HX 200 ckt B | 1 x 35 | XLPE Cu | 140 | 1 x 95 | PVC Al | 250 |
| 30HX 230 ckt B | 1 x 35 | XLPE Cu | 140 | 1 x 120 | PVC Al | 260 |
| 30HX 260 ckt B | 1 x 35 | XLPE Cu | 140 | 1 x 120 | PVC Al | 260 |
| 30HX 285 ckt B | 1 x 50 | XLPE Cu | 160 | 2 x 70 | PVC Al | 285 |
| 30HX 310 ckt A & B | 1 x 95 | XLPE Cu | 180 | 1 x 240 | XLPE Al | 225 |
| 30HX 345 ckt A & B | 1 x 120 | XLPE Cu | 185 | 1 x 240 | XLPE Al | 225 |
| 30HX 375 ckt A & B | 1 x 150 | XLPE Cu | 190 | 2 x 150 | XLPE Al | 265 |
| 30GX 082 | 1 x 95 | XLPE Cu | 190 | 2 x 185 | PVC Al | 420 |
| 30GX 092 | 1 x 120 | XLPE Cu | 195 | 2 x 185 | PVC Al | 420 |
| 30GX 102 | 1 x 120 | XLPE Cu | 195 | 2 x 240 | PVC Al | 450 |
| 30GX 112 | 1 x 150 | XLPE Cu | 200 | 2 x 150 | XLPE Al | 300 |
| 30GX 122 | 1 x 185 | XLPE Cu | 205 | 2 x 185 | XLPE Al | 315 |
| 30GX 132 | 1 x 185 | XLPE Cu | 205 | 2 x 240 | XLPE Al | 330 |
| 30GX 152 | 1 x 240 | XLPE Cu | 205 | 3x 185 | XLPE CU | 430 |
| 30GX 162 | 2 x 95 | XLPE Cu | 190 | 3x 240 | XLPE CU | 440 |
| 30GX 182 | 2 x 120 | XLPE Cu | 200 | 3x 240 | XLPE CU | 440 |
| 30GX 207 ckt A | 1 x 185 | XLPE Cu | 205 | 3x 185 | XLPE Al | 445 |
| 30GX 227 ckt A | 1 x 240 | XLPE Cu | 205 | 3x 240 | XLPE Al | 470 |
| 30GX 247/298/328 ckt A | 2 x 120 | XLPE Cu | 225 | 3x 185 | XLPE CU | 490 |
| 30HX 267/358 ckt A | 2 x 150 | XLPE Cu | 230 | 3x 240 | XLPE CU | 505 |
| 30GX 207/227/247 ckt B | 1 x 95 | XLPE Cu | 190 | 2 x 240 | PVC Al | 560 |
| 30HX 267 ckt B | 1 x 120 | XLPE Cu | 200 | 2 x 185 | XLPE AL | 395 |
| 30GX 298 ckt B | 1 x 185 | XLPE Cu | 205 | 3x 240 | XLPE AL | 470 |
| 30GX 328 ckt B | 2 x 120 | XLPE Cu | 225 | 3x 185 | XLPE CU | 490 |
| 30GX 358 ckt B | 2 x 150 | XLPE Cu | 230 | 3x 240 | XLPE CU | 505 |
Ana güç kablolarını (L1 - L2 - L3) terminal bloğuna bağlamadan önce, terminal bloğuna veya ana ayırıcı/izolatör anahtarına bağlantıya geçmeden önce 3 fazın doğru sırasını kontrol etmek zorunludur.
Saha kontrol kabloları
Aşağıdaki özelliklerin saha kontrol kabloları için Kontroller IOM'sine ve üniteyle birlikte verilen sertifikalı kablo şemasına bakın:
- Evaporatör pompası kilidi (zorunlu)
- Uzaktan açma/kapama anahtarı
- Kondenser akış anahtarı (sahada tedarik edilir, yalnızca 30HXC)
- Uzaktan ısıtma/soğutma anahtarı
- Talep limiti harici anahtarı 1
- Uzaktan çift ayar noktası
- Devreye göre alarm raporu
- Evaporatör pompa kontrolü
- Kondenser pompa kontrolü (yalnızca 30HXC)
- Uzaktan ayar noktası sıfırlama veya dış hava sıcaklık sensörü sıfırlama (0-10 V)
Yüksek yoğuşma sıcaklıklarına sahip üniteler için önerilen tel kesitleri (400 V - 3 ph - 50 Hz)
| Ünite, seçenekler 150 + 150A 400 V - 3 ph - 50 Hz | Faz başına Min. (mm2) | Tel tipi | L (m) | Faz başına Maks. (mm2) | Tel tipi | L (m) |
| 30HXC 080 OPT. 150 | 1 x 50 | XLPE Cu | 150 | 2 x 70 | PVC Al | 230 |
| 30HXC 090 OPT. 150 | 1 x 70 | XLPE Cu | 160 | 2 x 95 | PVC Al | 260 |
| 30HXC 100 OPT. 150 | 1 x 70 | XLPE Cu | 160 | 2 x 95 | PVC Al | 250 |
| 30HXC 110 OPT. 150 | 1 x 95 | XLPE Cu | 170 | 2 x 120 | PVC Al | 265 |
| 30HXC 120 OPT. 150 | 1 x 120 | XLPE Cu | 180 | 2 x 120 | XLPE Al | 205 |
| 30HXC 130 OPT. 150 | 1 x 120 | XLPE Cu | 160 | 2 x 120 | XLPE Al | 210 |
| 30HXC 140 OPT. 150 | 1 x 150 | XLPE Cu | 175 | 2 x 120 | XLPE Al | 205 |
| 30HXC 155 OPT. 150 | 1 x 185 | XLPE Cu | 185 | 2 x 150 | XLPE Al | 215 |
| 30HXC 175 OPT. 150 | 1 x 240 | XLPE Cu | 185 | 2 x 150 | XLPE Al | 210 |
| 30HXC 190 OPT. 150 | 2 x 95 | XLPE Cu | 175 | 2 x 240 | XLPE Al | 220 |
| 30HXC 200 OPT. 150 circ. A | 1 x 120 | XLPE Cu | 170 | 2 x 150 | XLPE Al | 270 |
| 30HXC 230 OPT. 150 circ. A | 1 x 150 | XLPE Cu | 180 | 2 x 185 | XLPE Al | 270 |
| 30HXC 260 OPT. 150 circ. A | 1 x 185 | XLPE Cu | 180 | 2 x 240 | XLPE Al | 295 |
| 30HXC 285 OPT. 150 circ. A | 1 x 240 | XLPE Cu | 170 | 2 x 185 | XLPE Cu | 265 |
| 30HXC 310 OPT. 150 circ. A | 1 x 185 | XLPE Cu | 180 | 2 x 240 | XLPE Al | 300 |
| 30HXC 345 OPT. 150 circ. A | 1 x 185 | XLPE Cu | 170 | 2 x 240 | XLPE Al | 280 |
| 30HXC 375 OPT. 150 circ. A | 1 x 240 | XLPE Cu | 170 | 2 x 185 | XLPE Cu | 265 |
| 30HXC 200 OPT. 150 circ. B | 1 x 35 | XLPE Cu | 125 | 2 x 95 | PVC Al | 320 |
| 30HXC 230 OPT. 150 circ. B | 1 x 50 | XLPE Cu | 140 | 2 x 95 | PVC Al | 310 |
| 30HXC 260 OPT. 150 circ. B | 1 x 50 | XLPE Cu | 140 | 2 x 95 | PVC Al | 310 |
| 30HXC 285 OPT. 150 circ. B | 1 x 70 | XLPE Cu | 160 | 2 x 120 | PVC Al | 325 |
| 30HXC 310 OPT. 150 circ. B | 1 x 150 | XLPE Cu | 180 | 2 x 185 | XLPE Al | 275 |
| 30HXC 345 OPT. 150 circ. B | 1 x 185 | XLPE Cu | 185 | 2 x 240 | XLPE Al | 305 |
| 30HXC 375 OPT. 150 circ. B | 1 x 185 | XLPE Cu | 160 | 2 x 240 | XLPE Al | 280 |
ANA SİSTEM BİLEŞENLERİ VE ÇALIŞMA VERİLERİ
Dişli çift vidalı kompresör
- 30HXC ve 30GX üniteleri 06N dişli çift vidalı kompresörler kullanır
- 06NA, 30GX'te (hava soğutmalı kondenser uygulaması) kullanılır
- 06NW, 30HXC'de (su soğutmalı kondenser uygulaması) kullanılır
- Nominal kapasiteler 39 ila 80 ton arasında değişir. Ekonomili veya ekonomisiz modeller, 30HXC ve 30GX ünite boyutuna bağlı olarak kullanılır.
Yağ Filtresi
06N vidalı kompresör, kompresör gövdesinde entegre bir yağ filtresine sahiptir. Bu filtre sahada değiştirilebilir.
Soğutucu Akışkan
06N vidalı kompresör, yalnızca R134 a sisteminde kullanılmak üzere özel olarak tasarlanmıştır.
Yağlayıcı
06N vidalı kompresörün aşağıdaki yağlayıcı ile kullanılması onaylanmıştır.
CARRIER MATERIAL SPEC PP 47-32
Yağ Besleme Solenoid Valfi
Kompresör çalışmadığında kompresörü yağ akışından izole etmek için kompresörde standart olarak bir yağ besleme solenoid valfi bulunur.
Yağ solenoidi sahada değiştirilebilir.
Emiş ve Ekonomizör Ekranları
Kompresörün güvenilirliğini artırmak için, kompresörün emiş ve ekonomizör girişlerine standart bir özellik olarak bir ekran dahil edilmiştir.
Boşaltma Sistemi
06N vidalı kompresör, tüm kompresörlerde standart olan bir boşaltma sistemine sahiptir. Bu boşaltma sistemi, kısmen sıkıştırılmış gazı tekrar emişe yönlendirerek kompresör kapasitesini azaltan iki aşamalı bir boşaltmadan oluşur.
Evaporatör
30HXC ve 30GX chiller'ları, sulu bir evaporatör kullanır. Su borularda dolaşır ve soğutucu akışkan kabuğun dışındadır. Her iki soğutucu akışkan devresine de hizmet etmek için bir kap kullanılır. İki soğutucu akışkan devresini ayıran bir merkez boru sacı vardır. Borular, içi ve dışı geliştirilmiş yüzeye sahip 3/4" çapında bakırdır. Sadece bir su devresi vardır ve chiller'ın boyutuna bağlı olarak iki veya üç su geçişi olabilir. Daha soğuk bir sıvı seviye sensörü, optimize edilmiş akış kontrolü sağlar.
Soğutucunun üst kısmında, her devrede bir tane olmak üzere iki emiş borusu bulunur. Her birine kaynaklanmış bir flanş vardır ve kompresör flanşa monte edilir.
Kondenser ve yağ ayırıcı (30HXC)
30HXC chiller, kombine kondenser ve yağ ayırıcı olan bir kap kullanır. Soğutucunun altına monte edilmiştir. Deşarj gazı kompresörden çıkar ve kabın üst kısmı olan yağ ayırıcıya harici bir susturucu aracılığıyla akar. Yağın uzaklaştırıldığı ayırıcının üst kısmına girer ve ardından gazın yoğunlaştığı ve aşırı soğutulduğu kabın alt kısmına akar. Her iki soğutucu akışkan devresine de hizmet etmek için bir kap kullanılır. İki soğutucu akışkan devresini ayıran bir merkez boru sacı vardır. Borular, içi ve dışı geliştirilmiş yüzeye sahip 3/4" veya 1" çapında bakırdır. İki su geçişli sadece bir su devresi vardır.
Yağ ayırıcı (30GX)
Hava soğutmalı ünitelerde, yağ ayırıcı dış dikey kondenser bataryalarının altına monte edilmiş bir basınçlı kaptır. Deşarj gazı ayırıcının üst kısmından girer ve burada yağın çoğu ayrılır ve dibe doğru akar. Daha sonra gaz, kalan yağın ayrıldığı ve dibe doğru aktığı bir tel örgü ekrandan geçer.
Elektronik Genleşme Cihazı (EXD)
Mikroişlemci, EXD'yi EXV kontrol modülü aracılığıyla kontrol eder. EXD, bir EXV veya bir Ekonomizör olacaktır. Bu cihazların her ikisinin içinde de doğrusal bir aktüatörlü step motor bulunur. Yüksek basınçlı sıvı soğutucu akışkan, valfe alttan girer. Orifis tertibatının içinde bir dizi kalibre edilmiş yuva bulunur. Soğutucu akışkan orifisten geçerken basınç düşer ve soğutucu akışkan 2 fazlı bir duruma (sıvı ve buhar) dönüşür. Farklı çalışma koşulları için soğutucu akışkan akışını kontrol etmek için manşon orifis üzerinde yukarı ve aşağı hareket ederek genleşme cihazının etkin akış alanını değiştirir. Manşon, doğrusal bir step motor tarafından hareket ettirilir. Step motor artışlarla hareket eder ve doğrudan işlemci modülü tarafından kontrol edilir. Step motor döndükçe hareket, kılavuz vida tarafından doğrusal harekete aktarılır. Step motor ve kılavuz vidalar aracılığıyla 1500 ayrı hareket adımı elde edilir. Çok sayıda adım ve uzun strok, soğutucu akışkan akışının çok hassas bir şekilde kontrol edilmesini sağlar. Her devrede, soğutucu kabuğunun üst kısmına dikey olarak monte edilmiş bir sıvı seviye sensörü bulunur. Seviye sensörü, küçük bir elektrik dirençli ısıtıcıdan ve kuyunun gövdesinin içinde farklı yüksekliklerde konumlandırılmış seri olarak bağlanmış üç termistörden oluşur. Isıtıcı, termistörlerin kuru havada yaklaşık 93,3°C okuyacak şekilde tasarlanmıştır. Soğutucudaki soğutucu akışkan seviyesi yükseldikçe, en yakın termistör(ler)in direnci büyük ölçüde değişecektir. Bu büyük direnç farkı, kontrolün belirtilen bir seviyeyi doğru bir şekilde korumasını sağlar. Seviye sensörü, soğutucudaki soğutucu akışkan sıvı seviyesini izler ve bu bilgiyi PSIO-1'e gönderir. İlk çalıştırmada, EXV konumu sıfırdadır. Bundan sonra, mikroişlemci bu bilgiyi diğer kontrol fonksiyonları için girdi olarak kullanmak için valf konumunu doğru bir şekilde takip eder. Bunu, EXV'leri başlangıçta başlatarak yapar. İşlemci, valfi tamamen açıktan tamamen kapalıya hareket ettirmek için valfe yeterli sayıda kapanma darbesi gönderir, ardından konum sayacını sıfıra sıfırlar. Bu noktadan itibaren, başlatmaya kadar, işlemci her bir valfe gönderdiği toplam açık ve kapalı adım sayısını sayar.
Ekonomizör
Ekonomizörler 30HXC 190, 285 ve 375 ve 30GX 182, 267 ve 358'e kurulur.
Ekonomizör, hem chiller kapasitesini hem de verimliliğini artırır ve ayrıca kompresör motoru soğutması sağlar. Ekonomizörün içinde hem doğrusal bir EXV step motoru hem de bir şamandıra valfi bulunur. EXV, soğutucudaki istenen sıvı seviyesini korumak için PIC tarafından kontrol edilir (Ekonomisiz chiller'lar için yapıldığı gibi). Şamandıra valfi, ekonomizörün alt kısmında bir sıvı seviyesini korur. Sıvı soğutucu akışkan, kondenserden ekonomizörün altına beslenir. Soğutucu akışkan EXV'den geçerken basıncı yaklaşık 500 kPa'lık bir ara seviyeye düşürülür. Bu basınç, ekonomizör kabuğunun içinde korunur. Ardından, soğutucu akışkan şamandıra valfinden akar, basıncı soğutucudaki basıncın biraz üzerine düşürülür. Performanstaki artış, EXV'den geçen soğutucu akışkanın bir kısmının buharlaşarak ekonomizörün alt kısmında tutulan sıvıyı daha da aşırı soğutmasıyla gerçekleşir. Aşırı soğutmada meydana gelen bu artış, ek kapasite sağlar. Bunu başarmak için ek güç gerekmediğinden, makinenin verimliliği de artar. Buharlaşan buhar, ekonomizöre yükselecek ve burada kompresöre geçerek motor soğutması sağlamak için gerektiği gibi kullanılacaktır. Motor sargılarının üzerinden geçtikten sonra, soğutucu akışkan sıkıştırma döngüsünde ara bir portta döngüye yeniden girer.
Yağ pompaları
30GX/HXC vidalı chiller'lar, devre başına harici olarak monte edilmiş bir ön yağlama yağı pompası kullanır. Bu pompa, çalıştırma dizisinin bir parçası olarak çalıştırılır.
DİKKAT:
Bataryanın çalışma sıcaklığı 80°C'ye ulaşabilir. Bazı geçici koşullarda (özellikle düşük dış sıcaklıkta veya düşük kondenser döngü sıcaklığında çalıştırma sırasında) yağ pompası yeniden etkinleştirilebilir.
30GX ünitelerinde, pompalar ünitenin yağ ayırıcı tarafındaki taban raylarına monte edilmiştir. Pompalar, 30HXC ünitelerinin kondenserlerindeki bir brakete monte edilmiştir. Bir devrenin başlatılması gerektiğinde, kontroller önce yağ pompasını enerjilendirecek, böylece kompresör doğru yağlama ile başlayacaktır. Pompa yeterli yağ basıncı oluşturduysa, kompresörün çalışmasına izin verilecektir. Kompresör çalıştıktan sonra, yağ pompası kapatılacaktır. Pompa yeterli yağ basıncı oluşturamadıysa, kontrol bir alarm üretecektir.
Motor soğutma valfleri
Kompresör motoru sargı sıcaklıkları optimum ayar noktasına göre kontrol edilir. Kontrol, motor soğutma solenoid valfini gerektiği gibi motor sargılarının üzerinden sıvı soğutucu akışkanın akmasına izin verecek şekilde çevirerek bunu gerçekleştirir. Ekonomizörlerle donatılmış ünitelerde, flaş gazı ekonomizörün üst kısmından ayrılır ve sürekli olarak motor sargılarına akar. Motor soğutması için kullanılan tüm soğutucu akışkanlar, sıkıştırma döngüsünün ortasında bulunan bir porttan rotorlara yeniden girer ve deşarj basıncına kadar sıkıştırılır.
Sensörler
Üniteler, sistem çalışmasını izlemek ve kontrol etmek için termistörler (iki motor sıcaklığı termistörü dahil) ve iki seviye termistörü ve basınç dönüştürücüleri kullanır.
Termistörler
Evaporatörden çıkan sıvı
Bu sıcaklık, çıkan evaporatör sıvı sıcaklığını (su veya tuzlu su) ölçmek için kullanılır. Sıcaklık, çıkan sıvı sıcaklığı kontrolü ve soğutucu donmasına karşı koruma için kullanılır. Evaporatör sıvı nozülünde bulunur.
Evaporatöre giren sıvı
Bu sensör, evaporatöre giren sıvı sıcaklığını ölçmek için kullanılır. Giren evaporatör nozülünde bulunur. Giren sıvı kompanzasyonu ile çıkan sıvı sıcaklığı kontrolü için otomatik sıcaklık kompanzasyonu sağlamak için kullanılır.
Deşarj gazı sıcaklığı (A ve B devreleri)
Bu sensör, deşarj gazı sıcaklığını ölçmek ve deşarj sıcaklığı aşırı ısınmasını kontrol etmek için kullanılır. Her devrenin deşarj borusunda (30HXC) veya yağ ayırıcının üstünde (30GX) bulunur.
DİKKAT: Termostat manşonu yoktur.
Motor sıcaklığı
Kompresör Koruma Modülü (CPM), motor sıcaklığını izler. Termistör terminalleri kompresör bağlantı kutusunda bulunur.
Evaporatör sıvı seviyesi (A ve B devreleri)
Evaporatör sıvı seviyesi termistörü, evaporatörde optimize edilmiş akış kontrolü sağlamak için kullanılır. Evaporatörün üst kısmına monte edilmiştir.
Kondensere giren sıvı (30HXC)
Bu sensör, su soğutmalı kondenserlere giren sıvının sıcaklığını ölçmek için kullanılır. Kondenserlere giren ortak sıvı hattında bulunur (sahada monte edilir). Isı Makinelerinde kapasite kontrol rutini tarafından kullanılır. Su soğutmalı kondenserlerde yalnızca kondenser sıvı sıcaklığının izlenmesi için kullanılır.
Kondenserden çıkan sıvı (30HXC'de isteğe bağlı)
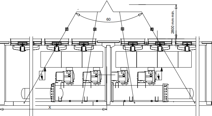
Bu sensör, su soğutmalı kondenserlerden çıkan sıvının sıcaklığını ölçmek için kullanılır. Kondenserlerden çıkan ortak sıvı hattında bulunur (sahada monte edilir). Isı Makinelerinde kapasite kontrol rutini tarafından kullanılır. Su soğutmalı kondenserlerde yalnızca kondenser sıvı sıcaklığının izlenmesi için kullanılır.
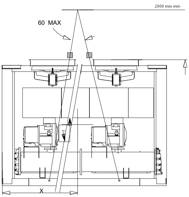
30GX fan düzenlemesi

GX082/102

GX112/132

GX152/162

GX182

GX207/227

GX247/267

GX298

GX328/358
BAKIM
Soğutucu akışkan şarjı - şarj ekleme
Bu üniteler yalnızca R-134a ile kullanım için tasarlanmıştır.
Bu ünitelerde BAŞKA soğutucu akışkan KULLANMAYIN.
Şarj eklerken veya çıkarırken, donmayı önlemek için her zaman kondenserden (HX) ve soğutucudan su geçirin. Donma hasarı kötüye kullanım olarak kabul edilir ve Carrier garantisini geçersiz kılabilir.
Sistemi AŞIRI ŞARJ ETMEYİN. Aşırı şarj, daha yüksek soğutma sıvısı tüketimi, olası kompresör hasarı ve daha yüksek güç tüketimi ile daha yüksek deşarj basıncına neden olur.
30HXC sisteminde düşük şarj göstergesi
NOT
Bir 30HXC'de düşük soğutucu akışkan şarjını kontrol etmek için çeşitli faktörler dikkate alınmalıdır. Yanıp sönen bir sıvı hattı gözetleme camı, mutlaka yetersiz şarj göstergesi değildir. Normal çalışma sırasında yanıp sönen bir gözetleme camının meydana geldiği birçok sistem durumu vardır. 30HXC ölçüm cihazı, bu koşullar altında düzgün çalışacak şekilde tasarlanmıştır.
- Devrenin tam yük koşulunda çalıştığından emin olun. A devresinin tam olarak yüklendiğini kontrol etmek için Kontroller kılavuzunda açıklanan prosedürü izleyin.
- Devreyi tam yük koşuluna zorlamak için Manuel Kontrol özelliğini kullanmak gerekebilir. Bu durumda, Kontroller kılavuzundaki Manuel Kontrol özelliğini kullanma talimatlarına bakın.
- Devre tam yükte çalışırken, soğutucu çıkış sıvısı sıcaklığının 6°C ± 1,5 aralığında olduğunu doğrulayın.
- Bu koşulda, sıvı hattı gözetleme camındaki soğutucu akışkanı gözlemleyin. Gözetleme camı açıksa ve yanıp sönme belirtisi yoksa, devre yeterince şarj edilmiştir. Kalan adımları atlayın.
- Soğutucu akışkanın yanıp sönüyor gibi görünmesi durumunda, devrede muhtemelen düşük şarj vardır. EXV konumunu kontrol ederek bunu doğrulayın (bkz. Kontroller IOM).
- EXD'nin açılma konumu %60'tan büyükse ve sıvı hattı gözetleme camı yanıp sönüyorsa, devrede düşük şarj vardır. Şarj ekleme prosedürünü izleyin.
30HXC sistemlerine şarj eklemek için
- Ünitenin tam yükte çalıştığından ve soğutucu çıkış sıvısı sıcaklığının 5,6 7,8°C aralığında olduğundan emin olun.
- Bu çalışma koşullarında, sıvı hattı gözetleme camını kontrol edin. Gözetleme camı açıksa, ünitede yeterli şarj vardır. Gözetleme camı yanıp sönüyorsa, EXD Yüzde Açık değerini kontrol edin. Bu değer %60'tan büyükse, şarj eklemeye başlayın.
NOT
Yukarıda belirtilenler dışındaki çalışma koşullarında yanıp sönen bir sıvı hattı gözetleme camı, mutlaka düşük soğutucu akışkan şarjı göstergesi değildir.
- Evaporatörün üstünde bulunan şarj valfini kullanarak evaporatöre 2,5 kg sıvı şarj ekleyin.
- EXD Yüzde Açık değerini gözlemleyin. Şarj eklendikçe EXD kapanmaya başlamalıdır. Ünitenin dengelenmesine izin verin. EXD Yüzde Açık %60'ın üzerinde kalırsa ve gözetleme camında hala kabarcıklar varsa, 2,5 kg ek sıvı şarj ekleyin.
- Ünitenin dengelenmesine izin verin ve EXD Yüzde Açık değerini tekrar kontrol edin. Bir seferde 2,5 kg sıvı soğutucu akışkan şarjı eklemeye devam edin ve EXD konumunu kontrol etmeden önce ünitenin dengelenmesine izin verin.
- EXD Yüzde Açık %40 - 60 aralığında olduğunda, sıvı hattı gözetleme camını kontrol edin. Berrak bir gözetleme camı sağlamak için yavaşça yeterli miktarda ek sıvı şarj ekleyin. Üniteyi aşırı şarj etmekten kaçınmak için bu yavaşça yapılmalıdır.
- 6°C ± 1,5 evaporatör çıkış sıvısı sıcaklığında tam yükte çalışmaya devam ederek yeterli şarjı doğrulayın. Soğutucu akışkanın sıvı hattı gözetleme camında yanıp sönmediğini kontrol edin. EXD Yüzde Açık %40 ile %60 arasında olmalıdır. Soğutucu seviye göstergesi 1,5 - 2,5 aralığında olmalıdır.
30GX sistemlerinde düşük şarj göstergesi
- Devrenin tam yük koşulunda çalıştığından ve yoğuşma sıcaklığının 50°C ± 1,5 olduğundan emin olun. A devresinin tam olarak yüklendiğini kontrol etmek için Kontroller IOM'deki prosedürü izleyin.
- Devreyi tam yük koşuluna zorlamak için Manuel Kontrol özelliğini kullanmak gerekebilir. Bu durumda, Manuel Kontrol işlevini kullanma talimatlarına bakın (Kontroller IOM'deki prosedür).
- Devre tam yükte çalışırken, soğutucu çıkış sıvısı sıcaklığının 6°C ± 1,5 aralığında olduğunu doğrulayın.
- Kondenser bataryalarına giren hava sıcaklığını ölçün. İki batarya sıvı hattının birleştiği T'den sonraki sıvı sıcaklığını ölçün. Sıvı sıcaklığı, bataryalara giren hava sıcaklığının 8,3°C üzerinde olmalıdır. Fark bundan fazlaysa ve gözetleme camı yanıp sönüyorsa, devre şarjsızdır. 5. adıma geçin.
- Soğutucunun üstünde bulunan şarj valfini kullanarak soğutucuya 2,5 kg sıvı şarj ekleyin.
- Sistemin dengelenmesine izin verin ve ardından sıvı sıcaklığını tekrar kontrol edin. Her şarj eklemesi arasında sistemin dengelenmesine izin vererek gerektiği gibi 5. adımı tekrarlayın. Aşırı şarjdan kaçınmak için gözetleme camı berraklaşmaya başladıkça yavaşça şarj ekleyin.
Oda sıcaklığı, dış hava sıcaklığı (isteğe bağlı)
Bu sıcaklıklar, Dış Hava veya Oda Sıcaklığı sıfırlama seçeneklerine dayalı olarak sıfırlama kontrolü için sırasıyla odanın sıcaklığını veya dış hava sıcaklığını ölçmek için kullanılır.
Basınç dönüştürücüler
Deşarj basıncı (A ve B devreleri)
Bu giriş, ünitenin her bir devresinin yüksek taraf basıncını ölçmek için kullanılır.
Deşarj basınç göstergesinin yerini almak ve kafa basıncını kontrol etmek için basıncı sağlamak için kullanılır.
Emiş basıncı (A ve B devreleri)
Bu giriş, ünitenin alçak taraf basıncını ölçmek için kullanılır. Emiş basınç göstergesinin yerini almak için basıncı sağlamak için kullanılır.
Yağ basıncı (her kompresör)
Bu giriş, ünitenin her bir kompresörünün yağ basıncını ölçmek için kullanılır. Her kompresörün yağ basıncı portunda bulunur.
Ekonomizer basıncı (A ve B devreleri)
Bu giriş, kompresöre sağlanan yağ basıncı farkını izlemek için kullanılır.
Yağ şarjı - düşük yağ yeniden şarjı
30HX/GX sistemlerine yağ şarjı eklenmesi
- 30HXC/GX ünitesi Düşük Yağ Seviyesi nedeniyle tekrar tekrar kapanıyorsa, bu yetersiz yağ şarjı göstergesi olabilir. Ayrıca, sadece yağın sistemin alçak tarafından geri kazanılma sürecinde olduğu anlamına da gelebilir.
- Üniteyi bir buçuk saat tam yükte çalıştırarak başlayın.
- 1-1/2 saat çalıştıktan sonra ünitenin yeniden başlamasına ve normal şekilde çalışmasına izin verin. Düşük Yağ Seviyesi alarmları devam ederse, ünitede düşük yağ şarjı vardır. Kondenserin (30HXC) altındaki veya yağ ayırıcısının (30GX) altındaki yağ şarj valfini kullanarak yağ ayırıcıya yağ ekleyin.
Başka bir yerden yağ EKLEMEYİN, aksi takdirde ünitenin yanlış çalışmasına neden olabilir.
- Yağ eklerken ünitenin çalışmadığından emin olun, çünkü bu yağ şarj işlemini kolaylaştıracaktır. Ünite çalışmıyorken bile sistem basınç altında olduğundan, sisteme yağ eklemek için uygun bir pompa (el veya elektrikli pompa) kullanmak gerekecektir.
- Uygun bir pompa kullanarak sisteme 2 litre Polyolester yağı ekleyin (CARRIER SPEC: PP47-32). Yağ seviyesi emniyet anahtarının KÖPRÜLENMEDİĞİNDEN emin olun ve ünitenin yeniden başlamasına ve normal şekilde çalışmasına izin verin.
- Düşük yağ seviyesi sorunları devam ederse, 1 veya 2 litre daha yağ ekleyin. Sisteme 4 litreden fazla yağ eklemek gerekirse, Carrier distribütör servis departmanınızla iletişime geçin.
Soğutucu akışkan şarjını bir depolama ünitesine aktarırken, ünite çalışmıyorken yağ da taşınabilir. Öncelikle aktarılan soğutucu akışkan miktarını yeniden kullanın. Yağı boşalttıktan sonra, yalnızca boşaltılan miktarı yeniden şarj edin (aşırı yağ şarjı ünitenin doğru çalışmasını engelleyebilir).
Entegre yağ filtresi değişimi
06N vidalı kompresördeki entegre yağ filtresinin, uzun yatak ömrü için gereken yüksek düzeyde filtreleme (3 µ) sağlaması belirtilmiştir. Sistem temizliği güvenilir sistem çalışması için kritik olduğundan, yağ ayırıcı çıkışındaki yağ hattında bir de ön filtre (7 µ) bulunmaktadır.
Yedek entegre yağ filtresi elemanı parça numarası şudur:
Carrier parça numarası (filtre ve O-ring dahil): 06NA 660016S
Filtre değişim programı
Filtre, ilk 500 saatlik çalışmadan sonra ve ardından her 2000 saatte bir kontrol edilmelidir. Filtre üzerindeki basınç farkı 2,1 barı aştığında filtre herhangi bir zamanda değiştirilmelidir.
Filtre üzerindeki basınç düşüşü, filtre servis portundaki ve yağ basıncı portundaki basıncı ölçülerek belirlenebilir. Bu iki basınç arasındaki fark, filtre, çek valf ve solenoid valf üzerindeki basınç düşüşü olacaktır. Çek valf ve solenoid valf üzerindeki basınç düşüşü yaklaşık 0,4 bardır ve yağ filtresi basınç düşüşünü vermek için iki yağ basıncı ölçümünden çıkarılmalıdır. Kompresörün düşük yağ basıncı emniyeti nedeniyle kapatıldığı her durumda yağ filtresi basınç düşüşü kontrol edilmelidir.
Filtre değişim prosedürü
- Aşağıdaki adımlar, entegre yağ filtresini değiştirmenin doğru yöntemini özetlemektedir.
- Kompresörü kapatın ve kilitleyin.
- İç valf kepengini yuvasına bastırmak için yağ solenoid valfinin çalışmasını manuel olarak zorlayın.
- Yağ filtresi servis valfini kapatın. Filtre servis portu aracılığıyla filtre boşluğundaki basıncı boşaltın.
- Yağ filtresi tapasını çıkarın. Eski yağ filtresini çıkarın.
- Yeni yağ filtresini takmadan önce, o-ringi yağ ile "yağlayın". Filtreyi takın ve tapayı değiştirin.
Yağlama yağı sistemini kapatmadan önce, ön filtreyi de değiştirme fırsatını değerlendirin. - Tamamlandığında, filtre servis portu aracılığıyla filtre boşluğunu boşaltın. Filtre servis valfini açın. Herhangi bir kompresör kilitleme cihazını çıkarın, kompresör çalışmaya dönmeye hazırdır.
Kompresör değişimi
Kompresör dönüş kontrolü
Doğru kompresör dönüşü, en kritik uygulama hususlarından biridir. Ters dönüş, çok kısa bir süre için bile kompresöre zarar verir.
Ters dönüş koruma şeması, dönüş yönünü belirleyebilmeli ve kompresörü 300 milisaniye içinde durdurabilmelidir. Ters dönüş, en çok kompresör terminallerine giden kablolar bozulduğunda meydana gelir.
Ters dönüş olasılığını en aza indirmek için aşağıdaki prosedür uygulanmalıdır. Güç kablolarını kompresör terminal pinine orijinal kablolamasına göre yeniden bağlayın.
Kompresörün değiştirilmesi için, kompresörle birlikte bir düşük basınç anahtarı bulunur. Bu düşük basınç anahtarı, kompresörün yüksek basınçlı kısmına geçici olarak sert bir emniyet olarak takılmalıdır. Bu anahtarın amacı, kompresör terminal pinindeki herhangi bir kablolama hatasına karşı kompresörü korumaktır. Anahtarın elektrik kontağı, yüksek basınç anahtarıyla seri olarak kablolanacaktır. Anahtar, kompresör çalıştırılana ve dönüş yönü doğrulanana kadar yerinde kalacaktır; bu noktada anahtar çıkarılacaktır.
Ters dönüşü algılamak için seçilen anahtar, Carrier parça numarası HK01CB001'dir. "Kompresör kurulum paketi"nin (parça No. 06NA 660 013) bir parçası olarak mevcuttur. Bu anahtar, basınç 50 mm vakumun altına düştüğünde kontakları açar. Anahtar, basınç bir kez daha 70 kPa'nın üzerine çıktıktan sonra sıfırlanabilen manuel sıfırlama tipidir. Kompresörün ters yönde kısa devre yapmasını önlemek için anahtarın manuel sıfırlama tipi olması kritik öneme sahiptir.
Sorun Giderme
EXD/Ekonomizer sorunlarını teşhis etmek ve düzeltmek için aşağıdaki adımları izleyin.
Ekonomizerli 30HXC/GX ünitelerinde, kabarcık tüpünün (Ekonomizerin altı) valfinin açık olduğunu doğrulayın. Önce EXD motor çalışmasını kontrol edin (Kontroller IOM'deki prosedüre bakın). EXD veya ekonomizer gövdesine elinizi koyarak aktüatörün hareket ettiğini hissedebilmelisiniz (aktüatör, ekonomizer kabuğunun altından yaklaşık yarısı ila üçte ikisi yukarıda bulunur). Strokunun tepesine ulaştığında aktüatörden sert bir vurma sesi gelmelidir (çevre nispeten sessizse duyulabilir). Aktüatör, strokunun dibine ulaştığında vurmalıdır. Valfin düzgün çalışmadığına inanılıyorsa, daha fazla kontrol için Carrier servis departmanınızla iletişime geçin:
- EXD modülündeki çıkış sinyalleri
- kablo bağlantıları (tüm pin terminallerinde süreklilik ve sıkı bağlantı)
- EXD motor sargılarının direnci.


Çevre Yönetim Sistemi Onayı
Sipariş No: 13173-76, 03 1999 - No'nun yerine geçer: 13173-76, Mart 1998
Üretici, herhangi bir ürün spesifikasyonunu önceden bildirimde bulunmaksızın değiştirme hakkını saklı tutar.
Üretici: Carrier s.a., Montluel, Fransa.
Hollanda'da klorsuz kağıda basılmıştır.

Kılavuzu indir
Burada kılavuzun tam PDF sürümünü indirebilirsiniz, ek güvenlik talimatları, garanti bilgileri, FCC kuralları vb. içerebilir.
Carrier 30HXC/30GX Vidalı Kompresör Kılavuzu indir