Príručka pre skrutkový kompresor Carrier 30HXC/30GX
- 1 ÚVOD
- 2 BEZPEČNOSTNÉ POKYNY
- 3 ROZMERY, VÔLE, ROZLOŽENIE HMOTNOSTI
- 4 FYZIKÁLNE ÚDAJE 30HXC
- 5 ELEKTRICKÉ ÚDAJE 30HXC
- 6 ELEKTRICKÉ ÚDAJE PRE JEDNOTKY S VYSOKÝMI KONDENZAČNÝMI TEPLOTAMI
- 7 FYZIKÁLNE ÚDAJE 30GX
- 8 ELEKTRICKÉ ÚDAJE 30GX
-
9
APLIKAČNÉ ÚDAJE
- 9.1 Prevádzkový rozsah jednotky
- 9.2 Minimálny prietok chladenej vody
- 9.3 Maximálny prietok chladenej vody
- 9.4 Výparník s premenlivým prietokom
- 9.5 Minimálny objem vody v systéme
- 9.6 Prietok chladiča (l/s)
- 9.7 Prietok kondenzátora (l/s)
- 9.8 Krivka tlakovej straty výparníka
- 9.9 Krivka tlakovej straty kondenzátora
- 9.10 Regulátory prietoku
- 10 INŠTALÁCIA
- 11 POKYNY NA ZDVIHANIE
- 12 ELEKTRICKÉ CHARAKTERISTIKY
- 13 ODPORÚČANÉ PRIEREZY VODIČOV
-
14
HLAVNÉ KOMPONENTY SYSTÉMU A PREVÁDZKOVÉ ÚDAJE
- 14.1 Prevodový dvojrotorový skrutkový kompresor
- 14.2 Výparník
- 14.3 Kondenzátor a odlučovač oleja (30HXC)
- 14.4 Odlučovač oleja (30GX)
- 14.5 Elektronické expanzné zariadenie (EXD)
- 14.6 Ekonomizér
- 14.7 Olejové čerpadlá
- 14.8 Ventily chladenia motora
- 14.9 Senzory
- 14.10 Termistory
- 14.11 Usporiadanie ventilátorov 30GX
- 15 ÚDRŽBA
- 16 Riešenie problémov
- 17 Stiahnuť návod
- 18 V iných jazykoch

ÚVOD
Pred prvým spustením jednotiek 30HXC a 30GX by sa mali osoby zapojené do spúšťania, prevádzky a údržby dôkladne oboznámiť s týmito pokynmi a ďalšími potrebnými údajmi o práci. Táto kniha poskytuje prehľad, aby ste sa mohli oboznámiť s riadiacim systémom pred vykonaním postupov spúšťania. Postupy v tejto príručke sú usporiadané v poradí potrebnom pre správne spustenie a prevádzku stroja.
BEZPEČNOSTNÉ POKYNY
Kvapalinové chladiče 30HXC a 30GX sú navrhnuté tak, aby poskytovali bezpečnú a spoľahlivú prevádzku pri prevádzke v rámci konštrukčných špecifikácií. Pri prevádzke tohto zariadenia používajte zdravý úsudok a bezpečnostné opatrenia, aby ste predišli poškodeniu zariadenia a majetku alebo zraneniu osôb.
Uistite sa, že rozumiete a dodržiavate postupy a bezpečnostné opatrenia uvedené v pokynoch pre stroj, ako aj tie, ktoré sú uvedené v tejto príručke.
NEODVÁDZAJTE poistné ventily chladiva v budove. Výstup z poistného ventilu musí byť odvetraný vonku. Nahromadenie chladiva v uzavretom priestore môže vytlačiť kyslík a spôsobiť zadusenie alebo výbuchy.
ZAISTITE dostatočné vetranie, najmä v uzavretých priestoroch a priestoroch s nízkou výškou stropu. Vdychovanie vysokých koncentrácií výparov je škodlivé a môže spôsobiť nepravidelnosti srdca, bezvedomie alebo smrť. Výpary sú ťažšie ako vzduch a znižujú množstvo kyslíka dostupného na dýchanie. Produkt spôsobuje podráždenie očí a pokožky. Produkty rozkladu sú nebezpečné.
NEPOUŽÍVAJTE KYSLÍK na preplachovanie potrubí alebo na natlakovanie stroja na akýkoľvek účel. Plynný kyslík prudko reaguje s olejom, tukom a inými bežnými látkami.
NIKDY NEPREKRAČUJTE špecifikované skúšobné tlaky, OVERTE si prípustný skúšobný tlak kontrolou inštruktážnej literatúry a konštrukčných tlakov na výrobnom štítku zariadenia.
NEPOUŽÍVAJTE vzduch na testovanie tesnosti. Používajte iba chladivo alebo suchý dusík.
NEUZATVÁRAJTE ŽIADNE bezpečnostné zariadenie.
PRED prevádzkou akéhokoľvek stroja SA UISTITE, že sú všetky pretlakové zariadenia správne nainštalované.
NEZVARUJTE ANI NEPOUŽÍVAJTE PLAMEŇ na žiadnom potrubí alebo nádobe s chladivom, kým nie je z chladiča odstránené všetko chladivo (kvapalné aj plynné). Zvyšky výparov by sa mali nahradiť suchým vzduchovým dusíkom a pracovný priestor by mal byť dobre vetraný. Chladivo v kontakte s otvoreným plameňom produkuje toxické plyny.
NEPRACUJTE na zariadeniach pod napätím, pokiaľ nie ste kvalifikovaný elektrikár.
NEPRACUJTE NA elektrických komponentoch, vrátane ovládacích panelov, spínačov, relé atď., kým si nie ste istí, že JE VYPNUTÉ VŠETKO NAPÁJANIE a zvyškové napätie môže unikať z kondenzátorov alebo polovodičových komponentov.
POČAS SERVISU UZAMKNITE OTVORENÉ A OZNAČTE elektrické obvody. AK JE PRÁCA PRERUŠENÁ, pred pokračovaním v práci skontrolujte, či sú všetky obvody odpojené.
NEODSÁVAJTE chladivo.
ZABRÁŇTE ROZLIATIU kvapalného chladiva na pokožku alebo jeho vniknutiu do očí. POUŽÍVAJTE OCHRANNÉ OKULIARE. Všetky rozliate látky umyte z pokožky mydlom a vodou. Ak sa kvapalné chladivo dostane do očí,
OKAMŽITE VYPLÁCHNITE OČI vodou a vyhľadajte lekára.
NIKDY NEPOUŽÍVAJTE otvorený plameň alebo živú paru na nádobu s chladivom. Môže to viesť k nebezpečnému pretlaku. Ak je potrebné chladivo zohriať, používajte iba teplú vodu.
NEPOUŽÍVAJTE OPAKOVANE jednorazové (nevratné) fľaše ani sa ich nepokúšajte doplniť. Je to NEBEZPEČNÉ A NEZÁKONNÉ. Keď sú fľaše vyprázdnené, vypustite zvyškový tlak plynu, uvoľnite objímku a odskrutkujte a zlikvidujte driek ventilu. NESPAĽUJTE.
PRED pridaním chladiva do stroja SKONTROLUJTE TYP CHLADIVA. Zavedenie nesprávneho chladiva môže spôsobiť poškodenie alebo poruchu tohto stroja.
NEPOKÚŠAJTE SA ODSTRAŇOVAŤ tvarovky, komponenty atď., kým je stroj pod tlakom alebo kým je stroj v chode. Pred prerušením pripojenia chladiva sa uistite, že je tlak na 0 kPa.
STAROSTLIVO SKONTROLUJTE všetky poistné zariadenia, ASPOŇ RAZ ZA ROK. Ak stroj pracuje v korozívnom prostredí, kontrolujte zariadenia v kratších intervaloch.
NEPOKÚŠAJTE SA OPRAVOVAŤ ALEBO REPASOVAŤ žiadne poistné zariadenie, ak sa v telese alebo mechanizme ventilu zistí korózia alebo nahromadenie cudzieho materiálu (hrdza, nečistoty, vodný kameň atď.). Vymeňte zariadenie.
NEINŠTALUJTE poistné zariadenia sériovo alebo dozadu.
NESTÚPAJTE na potrubia s chladivom. Zlomené potrubia sa môžu švihnúť a uvoľniť chladivo, čo spôsobí zranenie osôb.
NEŠPLHAJTE sa cez stroj. Používajte plošinu alebo lešenie.
NA zdvíhanie alebo premiestňovanie ťažkých komponentov POUŽÍVAJTE MECHANICKÉ ZARIADENIA (žeriav, kladkostroj atď.). Aj keď sú komponenty ľahké, používajte mechanické zariadenia, ak hrozí pošmyknutie alebo strata rovnováhy.
UPOZORŇUJEME, že niektoré automatické štartovacie zariadenia MÔŽU ZAPNÚŤ VENTILÁTOR VEŽE ALEBO ČERPADLÁ. Otvorte odpojovač pred ventilátormi veže alebo čerpadlami.
POUŽÍVAJTE iba opravné alebo náhradné diely, ktoré spĺňajú požiadavky predpisov pre pôvodné vybavenie.
BEZ POVOLENIA kompetentného orgánu NEODVETRÁVAJTE ANI NEVYPÚŠŤAJTE vodné boxy obsahujúce priemyselné soľanky.
NEUVOLŇUJTE skrutky vodného boxu, kým nie je vodný box úplne vypustený.
NEUVOLŇUJTE maticu upchávky, kým neskontrolujete, či má matica pozitívne zaskrutkovanie závitu.
PERIODICKY KONTROLUJTE všetky ventily, tvarovky a potrubia, či nie sú skorodované, hrdzavé, netesné alebo poškodené.
ZAISTITE ODTOKOVÉ pripojenie vo vetracom potrubí v blízkosti každého pretlakového zariadenia, aby sa zabránilo hromadeniu kondenzátu alebo dažďovej vody.
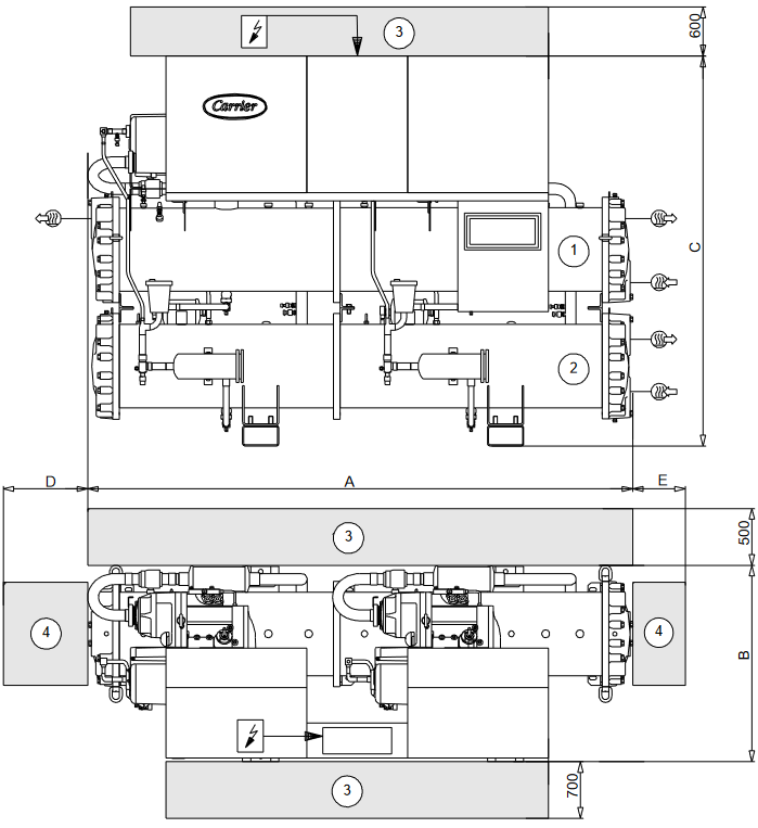
ROZMERY, VÔLE, ROZLOŽENIE HMOTNOSTI
30HXC 080-190
30HXC080
30HXC090
30HXC100
30HXC110

- Výparník
- Kondenzátor
- Vôle potrebné na prevádzku a údržbu
- Vôle potrebné na odstránenie trubice výmenníka tepla. Vôle D a E môžu byť na ľavej alebo pravej strane.
Vstup vody
Výstup vody
Napájanie
kg: celková prevádzková hmotnosť
| A mm | B mm | C mm | D mm | E mm | kg | |
| 30HXC080 30HXC090 30HXC100 |
2705 | 950 | 1850 | 2360 | 1000 | 2447 2462 2504 |
| 30HXC110 | 2705 | 950 | 1900 | 2360 | 1000 | 2650 |
| 30HXC120 30HXC130 30HXC140 30HXC155 |
3535 | 950 | 1875 | 3220 | 1000 | 2846 2861 2956 2971 |
| 30HXC175 30HXC190 |
3550 | 950 | 2000 | 3220 | 1000 | 3283 3438 |
POZNÁMKA: Pri navrhovaní inštalácie sa riaďte certifikovanými výkresmi rozmerov dodanými s jednotkou.
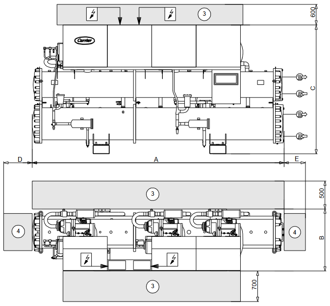
30HXC 200-375

- Výparník
- Kondenzátor
- Vôle potrebné na prevádzku a údržbu
- Vôle potrebné na odstránenie trubice výmenníka tepla. Vôle D a E môžu byť na ľavej alebo pravej strane.
Vstup vody
Výstup vody
Napájanie
kg: celková prevádzková hmotnosť
| A mm | B mm | C mm | D mm | E mm | kg | |
| 30HXC200 | 3975 | 980 | 2035 | 3620 | 1000 | 4090 |
| 30HXC230 30HXC260 30HXC285 |
3995 | 980 | 2116 | 3620 | 1000 | 4705 4815 4985 |
| 30HXC310 30HXC345 30HXC375 |
4490 | 980 | 2163 | 4120 | 1000 | 5760 5870 6105 |
POZNÁMKA: Pri navrhovaní inštalácie sa riaďte certifikovanými výkresmi rozmerov dodanými s jednotkou.
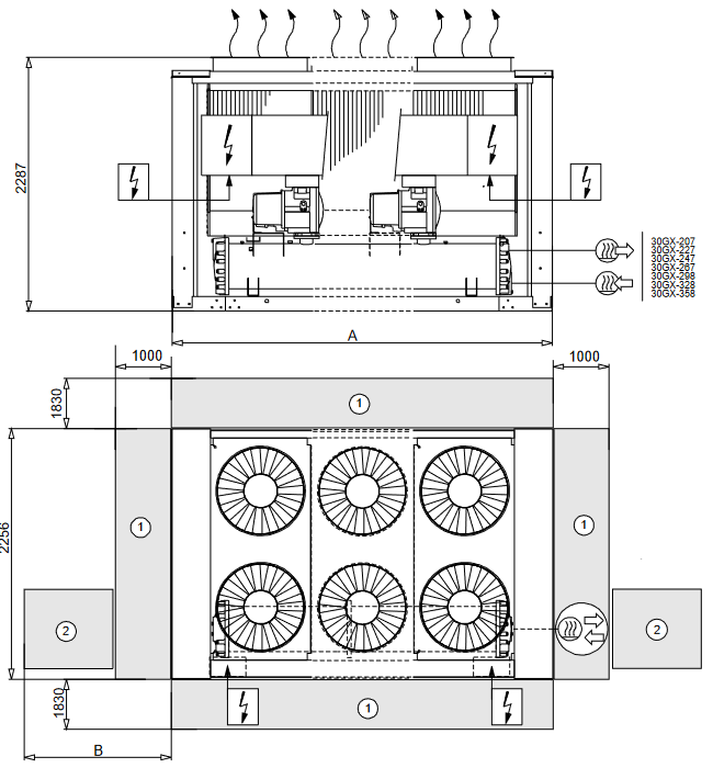
30GX 082-182
30GX-082
30GX-092
30GX-102
30GX-112
30GX-122
30GX-132
30GX-152
30GX-162
30GX-182


- Vôle potrebné na prevádzku a údržbu
- Vôle potrebné na odstránenie trubice výmenníka tepla. Vôle môžu byť na ľavej alebo pravej strane.
Vstup vody
Výstup vody
Napájanie
Výstup vzduchu - neblokujte
kg: celková prevádzková hmotnosť
| A mm | B mm | kg | |
| 30GX082 30GX092 30GX102 |
2970 | 2215 | 3116 3157 3172 |
| 30GX112 30GX122 30GX132 |
3427 | 2045 | 3515 3531 3633 |
| 30GX152 30GX162 |
4342 | 2835 | 3920 3936 |
| 30GX182 | 5996 | 1820 | 4853 |
Inštalácia viacerých chladičov


Poznámky:
- Jednotka musí mať vôle pre prúdenie vzduchu nasledovne:
Vrch: nijako neobmedzujte - V prípade viacerých chladičov (až štyri jednotky) by sa mala príslušná vôľa medzi nimi zväčšiť z 1830 na 2000 mm pre požiadavku na bočný priestor.
- Sú potrebné vôle na odstránenie trubice chladiča.
POZNÁMKA: Pri navrhovaní inštalácie sa riaďte certifikovanými výkresmi rozmerov dodanými s jednotkou.
30GX 207-358
30GX-207
30GX-227
30GX-247
30GX-267
30GX-298
30GX-328
30GX-358

- Vôle potrebné na prevádzku a údržbu
- Vôle potrebné na odstránenie trubice výmenníka tepla. Vôle môžu byť na ľavej alebo pravej strane.
Vstup vody
Výstup vody
Napájanie
Výstup vzduchu - neblokujte
kg: celková prevádzková hmotnosť
| A mm | B mm | kg | |
| 30GX207 30GX227 |
5996 | 2895 | 5540 5570 |
| 30GX247 30GX267 |
6911 | 2470 | 6134 6365 |
| 30GX298 | 7826 | 2220 | 7354 |
| 30GX328 30GX358 |
8741 | 1250 | 7918 8124 |
Inštalácia viacerých chladičov


Poznámky:
- Jednotka musí mať vôle pre prúdenie vzduchu nasledovne:
Vrch: nijako neobmedzujte - V prípade viacerých chladičov (až štyri jednotky) by sa mala príslušná vôľa medzi nimi zväčšiť z 1830 na 2000 mm pre požiadavku na bočný priestor.
- Sú potrebné vôle na odstránenie trubice chladiča.
POZNÁMKA: Pri navrhovaní inštalácie sa riaďte certifikovanými výkresmi rozmerov dodanými s jednotkou.
FYZIKÁLNE ÚDAJE 30HXC
| 30HXC | 080 | 090 | 100 | 110 | 120 | 130 | 140 | 155 | 175 | 190 | 200 | 230 | 260 | 285 | 310 | 345 | 375 | |
| Čistý chladiaci výkon | kW | 292 | 321 | 352 | 389 | 426 | 464 | 514 | 550 | 607 | 663 | 716 | 822 | 918 | 996 | 1119 | 1222 | 1326 |
| Prevádzková hmotnosť | kg | 2447 | 2462 | 2504 | 2650 | 2846 | 2861 | 2956 | 2971 | 3283 | 3438 | 4090 | 4705 | 4815 | 4985 | 5760 | 5870 | 6105 |
| Chladivo Okruh A/B |
HFC-134a | |||||||||||||||||
| kg | 39/36 | 39/36 | 37/32 | 38/38 | 57/55 | 59/50 | 56/50 | 59/52 | 58/61 | 60/70 | 110/58 | 118/63 | 120/75 | 120/75 | 108/110 | 110/110 | 110/120 | |
| Olej Okruh A/B |
Polyolesterový olej CARRIER SPEC: PP 47-32 | |||||||||||||||||
| l | 15/15 | 15/15 | 15/15 | 15/15 | 15/15 | 15/15 | 15/15 | 15/15 | 15/15 | 15/15 | 30/15 | 30/15 | 30/15 | 30/15 | 30/30 | 30/30 | 30/30 | |
| Kompresory | Hermetický dvojzávitovkový Power3 | |||||||||||||||||
| Obv. A, nom. veľkosť na kompresor** | 39 | 46 | 46 | 56 | 56 | 66 | 80 | 80 | 80 | 80+ | 66/56 | 80/56 | 80/80 | 80+/80+ | 80/66 | 80/80 | 80+/80+ | |
| Obv. B, nom. veľkosť na kompresor** | 39 | 39 | 46 | 46 | 56 | 56 | 56 | 66 | 80 | 80+ | 66 | 80 | 80 | 80+ | 80/66 | 80/80 | 80+/80+ | |
| Typ ovládania | PRO-DIALOG Plus control (ovládanie) | |||||||||||||||||
| Počet stupňov výkonu | 6 | 6 | 6 | 6 | 6 | 6 | 6 | 6 | 6 | 6 | 8 | 8 | 8 | 8 | 10 | 10 | 10 | |
| Minimálny výkon | % | 19 | 19 | 21 | 19 | 21 | 19 | 17 | 19 | 21 | 21 | 14 | 14 | 14 | 14 | 10 | 10 | 10 |
| Výparník | Plášťový a rúrkový typ, s vnútorne rebrovanými medenými rúrkami | |||||||||||||||||
| Čistý objem vody | l | 65 | 65 | 73 | 87 | 81 | 81 | 91 | 91 | 109 | 109 | 140 | 165 | 181 | 181 | 203 | 229 | 229 |
| Vodné prípojky | Plochá príruba dodávaná z výroby, na zvarenie na mieste | |||||||||||||||||
| Vstup a výstup | in. | 4 | 4 | 4 | 5 | 5 | 5 | 5 | 5 | 5 | 5 | 6 | 6 | 6 | 6 | 8 | 8 | 8 |
| Vypúšťanie a odvzdušnenie (NPT) | in. | 3/8 | 3/8 | 3/8 | 3/8 | 3/8 | 3/8 | 3/8 | 3/8 | 3/8 | 3/8 | 3/8 | 3/8 | 3/8 | 3/8 | 3/8 | 3/8 | 3/8 |
| Max. prevádzkový tlak na strane vody | kPa | 1000 | 1000 | 1000 | 1000 | 1000 | 1000 | 1000 | 1000 | 1000 | 1000 | 1000 | 1000 | 1000 | 1000 | 1000 | 1000 | 1000 |
| Kondenzátory | Plášťový a rúrkový typ, s vnútorne rebrovanými medenými rúrkami | |||||||||||||||||
| Čistý objem vody | l | 58 | 58 | 58 | 58 | 92 | 92 | 110 | 110 | 132 | 132 | 162 | 208 | 208 | 208 | 251 | 251 | 251 |
| Vodné prípojky | Plochá príruba dodávaná z výroby, na zvarenie na mieste | |||||||||||||||||
| Vstup a výstup | in. | 5 | 5 | 5 | 5 | 5 | 5 | 5 | 5 | 6 | 6 | 6 | 6 | 6 | 6 | 8 | 8 | 8 |
| Vypúšťanie a odvzdušnenie (NPT) | in. | 3/8 | 3/8 | 3/8 | 3/8 | 3/8 | 3/8 | 3/8 | 3/8 | 3/8 | 3/8 | 3/8 | 3/8 | 3/8 | 3/8 | 3/8 | 3/8 | 3/8 |
| Max. prevádzkový tlak na strane vody | kPa | 1000 | 1000 | 1000 | 1000 | 1000 | 1000 | 1000 | 1000 | 1000 | 1000 | 1000 | 1000 | 1000 | 1000 | 1000 | 1000 | 1000 |
* Štandardizované podmienky Eurovent: vstupné/výstupné teploty vody výparníka = 12°C/7°C, vstupné/výstupné teploty vody kondenzátora = 30°C/35°C Čistý chladiaci výkon: Hrubý chladiaci výkon mínus teplo vodného čerpadla proti vnútornému poklesu tlaku výparníka. ** Veľkosť kompresora zodpovedá nominálnemu výkonu v tonách (1 tona = 3,517 kW).
ELEKTRICKÉ ÚDAJE 30HXC
| 30HXC | 080 | 090 | 100 | 110 | 120 | 130 | 140 | 155 | 175 | 190 | 200 | 230 | 260 | 285 | 310 | 345 | 375 | |
| Napájací obvod | ||||||||||||||||||
| Nominálne napájanie* | V-ph-Hz | 400-3-50 | ||||||||||||||||
| Rozsah napätia | V | 360-440 | ||||||||||||||||
| Napájanie riadiaceho obvodu | Riadiaci obvod je napájaný cez továrensky nainštalovaný transformátor | |||||||||||||||||
| Nominálny príkon* | kW | 59 | 67 | 74 | 83 | 88 | 99 | 112 | 123 | 135 | 146 | 156 | 179 | 201 | 219 | 245 | 274 | 298 |
| Nominálny odoberaný prúd* | A | 98 | 111 | 124 | 139 | 148 | 166 | 186 | 204 | 226 | 242 | 259 | 291 | 335 | 367 | 408 | 456 | 498 |
| Max. príkon** | kW | 76 | 83 | 91 | 101 | 111 | 121 | 135 | 145 | 158 | 181 | 187 | 214 | 237 | 272 | 290 | 316 | 362 |
| Obvod A | kW | - | - | - | - | - | - | - | - | - | - | 121 | 135 | 158 | 181 | 145 | 158 | 181 |
| Obvod B | kW | - | - | - | - | - | - | - | - | - | - | 66 | 79 | 79 | 91 | 145 | 158 | 181 |
| Cosínus fí, jednotka pri plnom zaťažení | 0.87 | 0.87 | 0.87 | 0.87 | 0.87 | 0.87 | 0.87 | 0.87 | 0.87 | 0.87 | 0.87 | 0.87 | 0.87 | 0.87 | 0.87 | 0.87 | 0.87 | |
| Max. odoberaný prúd (Un - 10%)*** | A | 138 | 152 | 166 | 184 | 202 | 221 | 245 | 264 | 288 | 330 | 341 | 389 | 432 | 495 | 528 | 576 | 660 |
| Obvod A | A | - | - | - | - | - | - | - | - | - | - | 221 | 245 | 288 | 330 | 264 | 288 | 330 |
| Obvod B | A | - | - | - | - | - | - | - | - | - | - | 120 | 144 | 144 | 165 | 264 | 288 | 330 |
| Maximálny odoberaný prúd (Un)*** | A | 125 | 138 | 151 | 167 | 184 | 201 | 223 | 240 | 262 | 300 | 310 | 354 | 393 | 450 | 480 | 524 | 600 |
| Obvod A | A | - | - | - | - | - | - | - | - | - | - | 201 | 223 | 262 | 300 | 240 | 262 | 300 |
| Obvod B | A | - | - | - | - | - | - | - | - | - | - | 109 | 131 | 131 | 150 | 240 | 262 | 300 |
| Max. rozbehový prúd, štand. jednotka (Un)**** | A | 172 | 197 | 209 | 235 | 252 | 283 | 318 | 335 | 357 | 420 | 806 | 938 | 977 | 1156 | 1064 | 1108 | 1306 |
| Obvod A | A | - | - | - | - | - | - | - | - | - | - | 697 | 807 | 846 | 1006 | 824 | 846 | 1006 |
| Obvod B | A | - | - | - | - | - | - | - | - | - | - | 605 | 715 | 715 | 856 | 824 | 846 | 1006 |
| Max. rozbehový prúd/max. pomer odoberaného prúdu, jednotka | 1.37 | 1.42 | 1.39 | 1.41 | 1.37 | 1.41 | 1.43 | 1.40 | 1.36 | 1.40 | 2.60 | 2.65 | 2.49 | 2.57 | 2.22 | 2.12 | 2.18 | |
| Max. rozbehový prúd/max. pomer odoberaného prúdu, obvod A | - | - | - | - | - | - | - | - | - | - | 3.47 | 3.62 | 3.23 | 3.35 | 3.43 | 3.23 | 3.35 | |
| Max. rozbehový prúd/max. pomer odoberaného prúdu, obvod B | - | - | - | - | - | - | - | - | - | - | 5.55 | 5.46 | 5.46 | 5.71 | 3.43 | 3.23 | 3.35 | |
| Max. rozbehový prúd - znížený rozbeh prúdu (Un) **** | A | std. | std. | std. | std. | std. | std. | std. | std. | std. | std. | 601 | 643 | 682 | 760 | 769 | 813 | 910 |
| Obvod A | A | std. | std. | std. | std. | std. | std. | std. | std. | std. | std. | 492 | 512 | 551 | 610 | 529 | 551 | 610 |
| Obvod B | A | std. | std. | std. | std. | std. | std. | std. | std. | std. | std. | 330 | 370 | 370 | 385 | 529 | 551 | 610 |
| Max. rozbehový prúd - červený. rozbeh prúdu/ max. pomer odoberaného prúdu, jednotka | std. | std. | std. | std. | std. | std. | std. | std. | std. | std. | 1.94 | 1.82 | 1.74 | 1.69 | 1.60 | 1.55 | 1.52 | |
| Obvod A | std. | std. | std. | std. | std. | std. | std. | std. | std. | std. | 2.45 | 2.30 | 2.10 | 2.03 | 2.20 | 2.10 | 2.03 | |
| Obvod B | std. | std. | std. | std. | std. | std. | std. | std. | std. | std. | 3.03 | 2.83 | 2.83 | 2.57 | 2.20 | 2.10 | 2.03 | |
| Trojfázový skratový prúd | kA | 25 | 25 | 25 | 25 | 25 | 25 | 25 | 25 | 25 | 25 | N/A | N/A | N/A | N/A | N/A | N/A | N/A |
| Obvod A | kA | - | - | - | - | - | - | - | - | - | - | 25 | 25 | 25 | 25 | 25 | 25 | 25 |
| Obvod B | kA | - | - | - | - | - | - | - | - | - | - | 15 | 15 | 15 | 15 | 25 | 25 | 25 |
| Pohotovostná kapacita zákazníka, jednotka alebo obvod A, pre pripojenia čerpadla na odparovanie vody† | kW | 8 | 8 | 8 | 11 | 11 | 11 | 15 | 15 | 15 | 15 | 15 | 18 | 18 | 30 | 30 | 30 | 30 |
* Štandardné podmienky Eurovent: Vstupná/výstupná teplota vody z výparníka 12°C a 7°C. Vstupná/výstupná teplota vody z kondenzátora 30°C/35°C.
** Príkon, kompresor, pri prevádzkových limitoch jednotky (vstupná/výstupná teplota vody z výparníka = 15°C/10°C, vstupná/výstupná teplota vody z kondenzátora = 40°C/45°C) a nominálne napätie 400 V (údaje uvedené na štítku jednotky).
*** Maximálny prevádzkový prúd jednotky pri maximálnom príkone jednotky.
**** Maximálny okamžitý rozbehový prúd (maximálny prevádzkový prúd najmenšieho kompresora(ov) + prúd zablokovaného rotora alebo znížený rozbehový prúd najväčšieho kompresora)
† Prúdové a výkonové vstupy nie sú zahrnuté vo vyššie uvedených hodnotách.
N/A Nie je k dispozícii
Kompresory
| Referencia | Veľkosť | I nom. | MHA | LRA | LRA (Y) | LRA (S) 1 cp. | LRA (S) 2 cp. |
| 06NW2146S7N | 39 | 48 | 69 | 344 | 109 | 125 | - |
| 06NW2174S7N | 46 | 58 | 83 | 423 | 134 | 154 | - |
| 06NW2209S7N | 56 | 71 | 101 | 506 | 160 | 260 | 350 |
| 06NW2250S7N | 66 | 87 | 120 | 605 | 191 | 330 | 400 |
| 06NW2300S5N | 80 | 104 | 144 | 715 | 226 | 370 | 420 |
| 06NW2300S5E | 80+ | 111 | 165 | 856 | 270 | 385 | 460 |
Legenda:
| 06NW | Kompresor pre vodou chladené jednotky |
| N | Neekonomizovaný kompresor |
| E | Ekonomizovaný kompresor |
| INOM | Priemerný odber prúdu kompresora pri podmienkach Eurovent |
| MHA | Must hold amperes (maximálny prevádzkový prúd) pri 360 V |
| LRA | Prúd zablokovaného rotora s priamym spustením |
| LRA (Y) | Prúd zablokovaného rotora pri zníženom prúde (režim spúšťania hviezda/trojuholník) |
| LRA (S) 1 cp. | Spustenie so zníženým prúdom s elektronickým štartérom (doba spustenia max. 3 sekundy) pre jeden kompresor na obvod |
| LRA (S) 2 cp. | Spustenie so zníženým prúdom s elektronickým štartérom (doba spustenia max. 3 sekundy) pre dva kompresory na obvod |
ELEKTRICKÉ ÚDAJE PRE JEDNOTKY S VYSOKÝMI KONDENZAČNÝMI TEPLOTAMI
Mož;nosti 30HXC 150 a 150A
| 30HXC | 080 | 090 | 100 | 110 | 120 | 130 | 140 | 155 | 175 | 190 | 200 | 230 | 260 | 285 | 310 | 345 | 375 | |
| Napájací obvod | ||||||||||||||||||
| Nominálne napájanie* | V-ph-Hz | 400-3-50 | ||||||||||||||||
| Rozsah napätia | V | 360-440 | ||||||||||||||||
| Napájanie riadiaceho obvodu | Riadiaci obvod je napájaný prostredníctvom transformátora nainštalovaného vo výrobe | |||||||||||||||||
| Max. príkon** | kW | 104 | 117 | 131 | 145 | 159 | 174 | 194 | 211 | 230 | 263 | 271 | 310 | 345 | 395 | 422 | 460 | 526 |
| Obvod A | kW | - | - | - | - | - | - | - | - | - | - | 175 | 195 | 230 | 263 | 211 | 230 | 263 |
| Obvod B | kW | - | - | - | - | - | - | - | - | - | - | 96 | 115 | 115 | 132 | 211 | 230 | 263 |
| Max. odoberaný prúd (Un - 10%)*** | A | 190 | 215 | 240 | 265 | 290 | 320 | 355 | 385 | 420 | 480 | 495 | 564 | 630 | 720 | 770 | 840 | 960 |
| Obvod A | A | - | - | - | - | - | - | - | - | - | - | 320 | 355 | 420 | 480 | 385 | 420 | 480 |
| Obvod B | A | - | - | - | - | - | - | - | - | - | - | 175 | 210 | 210 | 240 | 385 | 420 | 480 |
| Maximálny odoberaný prúd (Un)*** | A | 173 | 195 | 218 | 241 | 264 | 291 | 323 | 350 | 382 | 436 | 450 | 514 | 573 | 655 | 700 | 764 | 873 |
| Obvod A | A | - | - | - | - | - | - | - | - | - | - | 291 | 323 | 382 | 436 | 350 | 382 | 436 |
| Obvod B | A | - | - | - | - | - | - | - | - | - | - | 159 | 191 | 191 | 218 | 350 | 382 | 436 |
| Max. rozbehový prúd, štand. jednotka (Un)**** | A | 277 | 312 | 335 | 379 | 402 | 435 | 519 | 546 | 578 | 618 | 1251 | 1549 | 1608 | 1701 | 1735 | 1799 | 1920 |
| Obvod A | A | - | - | - | - | - | - | - | - | - | - | 1092 | 1358 | 1417 | 1483 | 1385 | 1417 | 1483 |
| Obvod B | A | - | - | - | - | - | - | - | - | - | - | 960 | 1226 | 1226 | 1265 | 1385 | 1417 | 1483 |
| Max. rozbehový prúd/max. pomer odoberaného prúdu, jednotka | 1.61 | 1.60 | 1.54 | 1.57 | 1.52 | 1.49 | 1.61 | 1.56 | 1.51 | 1.42 | 2.78 | 3.02 | 2.81 | 2.60 | 2.48 | 2.36 | 2.20 | |
| Max. rozbehový prúd/max. pomer odoberaného prúdu, obvod A | - | - | - | - | - | - | - | - | - | - | 3.75 | 4.21 | 3.71 | 3.40 | 3.96 | 3.71 | 3.40 | |
| Max. rozbehový prúd/max. pomer odoberaného prúdu, obvod B | - | - | - | - | - | - | - | - | - | - | 6.03 | 6.42 | 6.42 | 5.80 | 3.96 | 3.71 | 3.40 | |
| Max. rozbehový prúd - znížený rozbeh prúdu (Un) **** | A | std. | std. | std. | std. | std. | std. | std. | std. | std. | std. | N/A | N/A | N/A | N/A | N/A | N/A | N/A |
| Trojfázový skratový prúd | kA | 25 | 25 | 25 | 25 | 25 | 25 | 25 | 25 | 25 | 25 | N/A | N/A | N/A | N/A | N/A | N/A | N/A |
| Obvod A | kA | - | - | - | - | - | - | - | - | - | - | 25 | 25 | 25 | 25 | 25 | 25 | 25 |
| Obvod B | kA | - | - | - | - | - | - | - | - | - | - | 15 | 15 | 15 | 15 | 25 | 25 | 25 |
| Pohotovostná kapacita zákazníka, jednotka alebo obvod A, pre pripojenia čerpadla odparovacej vody† | kW | 8 | 8 | 8 | 11 | 11 | 11 | 15 | 15 | 15 | 15 | 15 | 18 | 18 | 30 | 30 | 30 | 30 |
** Príkon, kompresor, pri prevádzkových limitoch jednotky (teplota vody vstupujúcej/vystupujúcej z výparníka = 15°C/10°C, teplota vody vstupujúcej/vystupujúcej z kondenzátora = 40°C/45°C) a nominálne napätie 400 V (údaje uvedené na výrobnom štítku jednotky).
*** Maximálny prevádzkový prúd jednotky pri maximálnom príkone jednotky.
**** Maximálny okamžitý rozbehový prúd (maximálny prevádzkový prúd najmenšieho kompresora(ov) + prúd zablokovaného rotora alebo znížený rozbehový prúd najväčšieho kompresora)
† Prúd a príkon nie sú zahrnuté vo vyššie uvedených hodnotách.
N/A Nie je k dispozícii
Jednotky 30HXC 080-375 pre vysoké kondenzačné teploty sú priamo odvodené od štandardných modelov. Ich rozsah použitia je rovnaký ako u štandardných jednotiek, ale umožňuje prevádzku pri teplotách vody vystupujúcej z kondenzátora až do 63°C. Ovládanie PRO-DIALOG ponúka všetky výhody štandardných jednotiek, plus riadenie teploty vody vystupujúcej z kondenzátora.
Hlavné úpravy sú:
- Použitie kompresorov 30GX
- Úprava elektrických komponentov pre prevádzku s kompresormi pre vysoké kondenzačné teploty.
- Úprava výmenníkov tepla tak, aby spĺňali požiadavky tlakových noriem (ak je to potrebné).
Možnosť 150
Tieto jednotky sú určené pre tradičné aplikácie pre vodou chladené jednotky, ale pre vyššie teploty vody vystupujúcej z kondenzátora ako 45°C.
Podobne ako štandardné jednotky sú vybavené snímačmi teploty vody vstupujúcej a vystupujúcej z kondenzátora, ktoré sú nainštalované na potrubí.
Je možné riadiť stroj na výstupe vody z kondenzátora, čo si vyžaduje zmenu konfigurácie vo výrobe a použitie reverzného zariadenia vstupu vykurovania/chladenia.
Možnosť 150A
Tieto jednotky sú určené pre tepelné čerpadlá voda-voda.
Sú z výroby nakonfigurované ako tepelné čerpadlá (riadenie vykurovania/chladenia ako funkcia diaľkového reverzného zariadenia). Kondenzátor obsahuje tepelnú izoláciu, ktorá je identická s izoláciou výparníka.
Technické informácie
Všetky informácie sú identické s informáciami pre štandardné jednotky 30HXC, s výnimkou nasledujúcich odsekov.
Výber
Pre tento typ jednotky neexistujú žiadne nominálne podmienky. Výber sa vykonáva pomocou aktuálneho elektronického katalógu.
Rozmery
Sú identické s rozmermi štandardných jednotiek 30HXC. Jediný rozdiel je v priemere prichádzajúceho poľného káblového pripojenia, ktorý je popísaný v kapitole "Odporúčaný výber" (Recommended selection). Pred pokračovaním v zapojení si pozrite rozmerové výkresy týchto jednotiek.
Kompresor
Pozri tabuľku kompresorov 30GX.
Možnosti a príslušenstvo
Všetky možnosti dostupné pre štandardné jednotky 30HXC sú kompatibilné, okrem:
| Možnosť 5, soľanková jednotka | Špeciálna jednotka |
| Možnosť 25, mäkký štart, jednotky 30HXC 200-375 | Nie je k dispozícii |
Pozor: (Attention:)
Ak majú jednotky dva rôzne prevádzkové režimy - jeden s vysokou kondenzačnou teplotou a druhý s nízkou kondenzačnou teplotou - a prechod sa uskutočňuje počas prevádzky jednotky, teplota sa nesmie meniť o viac ako 3 K za minútu. V prípadoch, keď to nie je možné, odporúča sa prejsť prepínačom štart/stop jednotky (diaľkový štart/stop je k dispozícii pre štandardné jednotky).
FYZIKÁLNE ÚDAJE 30GX
| 30GX | 082 | 092 | 102 | 112 | 122 | 132 | 152 | 162 | 182 | 207 | 227 | 247 | 267 | 298 | 328 | 358 | ||
| Čistý chladiaci výkon | kW | 285 | 309 | 332 | 388 | 417 | 450 | 505 | 536 | 602 | 687 | 744 | 810 | 910 | 1003 | 1103 | 1207 | |
| Prevádzková hmotnosť | kg | 3116 | 3157 | 3172 | 3515 | 3531 | 3633 | 3920 | 3936 | 4853 | 5540 | 5570 | 6134 | 6365 | 7354 | 7918 | 8124 | |
| Náplň chladiva | HFC-134a | |||||||||||||||||
| Obvod A/B | kg | 55/55 | 58/50 | 54/53 | 55/53 | 60/57 | 63/60 | 75/69 | 75/75 | 80/80 | 130/85 | 130/85 | 155/98 | 170/104 | 162/150 | 162/165 | 175/175 | |
| Olej | Polyolesterový olej CARRIER SPEC: PP 47-32 | |||||||||||||||||
| Obvod A/B | l | 20/20 | 20/20 | 20/20 | 20/20 | 20/20 | 20/20 | 20/20 | 20/20 | 20/20 | 40/20 | 40/20 | 40/20 | 40/20 | 40/40 | 40/40 | 40/40 | |
| Kompresory | Hermetický dvojzávitovkový Power3 | |||||||||||||||||
| Obv. A, nom. veľkosť na kompresor** | 46 | 46 | 56 | 56 | 66 | 66 | 80 | 80 | 80+ | 66/56 | 80/66 | 80/80 | 80+/80+ | 80/80 | 80/80 | 80+/80+ | ||
| Obv. B, nom. veľkosť na kompresor** | 39 | 46 | 46 | 56 | 56 | 66 | 66 | 80 | 80+ | 80 | 80 | 80 | 80+ | 66/66 | 80/802 | 80+/80+ | ||
| Typ riadenia | Riadenie PRO-DIALOG Plus | |||||||||||||||||
| Počet stupňov výkonu | 6 | 6 | 6 | 6 | 6 | 6 | 6 | 6 | 6 | 8 | 8 | 8 | 8 | 10 | 10 | 10 | ||
| Minimálny výkon | % | 19 | 21 | 19 | 21 | 19 | 21 | 19 | 21 | 21 | 16 | 14 | 14 | 14 | 9 | 10 | 10 | |
| Výparník | Typ s plášťom a rúrkou, s vnútorne rebrovanými medenými rúrkami | |||||||||||||||||
| Čistý objem vody | l | 65 | 73 | 73 | 87 | 87 | 101 | 91 | 91 | 109 | 140 | 140 | 165 | 181 | 203 | 229 | 229 | |
| Vodné pripojenia | Plochá príruba dodávaná z výroby, ktorá sa má zvariť na mieste | |||||||||||||||||
| Vstup a výstup | in. | 4 | 4 | 4 | 5 | 5 | 5 | 5 | 5 | 5 | 6 | 6 | 6 | 6 | 8 | 8 | 8 | |
| Odtok a odvzdušnenie (NPT) | in. | 3/8 | 3/8 | 3/8 | 3/8 | 3/8 | 3/8 | 3/8 | 3/8 | 3/8 | 3/8 | 3/8 | 3/8 | 3/8 | 3/8 | 3/8 | 3/8 | |
| Max. prevádzkový tlak na strane vody | kPa | 1000 | 1000 | 1000 | 1000 | 1000 | 1000 | 1000 | 1000 | 1000 | 1000 | 1000 | 1000 | 1000 | 1000 | 1000 | 1000 | |
| Kondenzátory | Medené rúrky a hliníkové rebrá | |||||||||||||||||
| Ventilátory | Axiálny ventilátor FLYING BIRD 2 s rotujúcim krytom | |||||||||||||||||
| Množstvo | 4 | 4 | 4 | 6 | 6 | 6 | 8 | 8 | 8 | 10 | 10 | 12 | 12 | 14 | 16 | 16 | ||
| Rýchlosť | r/s | 15.8 | 15.8 | 15.8 | 15.8 | 15.8 | 15.8 | 15.8 | 15.8 | 15.8 | 15.8 | 15.8 | 15.8 | 15.8 | 15.8 | 15.8 | 15.8 | |
| Celkový prietok vzduchu | l/s | 21110 | 21110 | 21110 | 31660 | 31660 | 31660 | 42220 | 42220 | 42220 | 52770 | 52770 | 63330 | 63330 | 73880 | 84440 | 84440 | |
* Štandardizované podmienky Eurovent: teploty vody vstupujúcej/vystupujúcej z výparníka = 12°C/7°C, teplota vonkajšieho vzduchu = 35°C Čistý chladiaci výkon: Hrubý chladiaci výkon mínus teplo vodného čerpadla proti vnútornému poklesu tlaku vo výparníku.
** Veľkosť kompresora zodpovedá nominálnemu výkonu v tonách (1 tona = 3,517 kW).
ELEKTRICKÉ ÚDAJE 30GX
| 30HXC | 082 | 092 | 102 | 112 | 122 | 132 | 152 | 162 | 182 | 207 | 227 | 247 | 267 | 298 | 328 | 358 | ||
| Napájací obvod | ||||||||||||||||||
| Nominálne napájanie* | V-ph-Hz | 400-3-50 | ||||||||||||||||
| Rozsah napätia | V | 360-440 | ||||||||||||||||
| Napájanie riadiaceho obvodu | Riadiaci obvod je napájaný cez továrensky nainštalovaný transformátor | |||||||||||||||||
| Nominálny príkon* | kW | 98 | 109 | 123 | 133 | 150 | 166 | 179 | 196 | 214 | 246 | 281 | 292 | 332 | 364 | 394 | 449 | |
| Nominálny odoberaný prúd* | A | 180 | 200 | 223 | 256 | 273 | 290 | 326 | 352 | 388 | 449 | 492 | 528 | 582 | 642 | 704 | 776 | |
| Max. príkon** | kW | 127 | 141 | 154 | 175 | 191 | 207 | 234 | 253 | 286 | 319 | 355 | 380 | 429 | 462 | 506 | 572 | |
| Obvod A | kW | - | - | - | - | - | - | - | - | - | 193 | 228 | 253 | 286 | 253 | 253 | 286 | |
| Obvod B | kW | - | - | - | - | - | - | - | - | - | 127 | 127 | 127 | 143 | 209 | 253 | 286 | |
| Cosínus fí, jednotka pri plnom zaťažení | 0.85 | 0.85 | 0.85 | 0.85 | 0.85 | 0.85 | 0.86 | 0.86 | 0.86 | 0.86 | 0.86 | 0.86 | 0.86 | 0.86 | 0.86 | 0.86 | ||
| Max. odoberaný prúd (Un - 10%)*** | A | 237 | 262 | 287 | 323 | 353 | 383 | 429 | 464 | 524 | 585 | 650 | 696 | 786 | 847 | 928 | 1048 | |
| Obvod A | A | - | - | - | - | - | - | - | - | - | 353 | 418 | 464 | 524 | 464 | 464 | 524 | |
| Obvod B | A | - | - | - | - | - | - | - | - | - | 232 | 232 | 232 | 262 | 383 | 464 | 524 | |
| Maximálny odoberaný prúd (Un)*** | A | 217 | 240 | 263 | 297 | 324 | 351 | 394 | 426 | 480 | 537 | 596 | 639 | 721 | 777 | 852 | 961 | |
| Obvod A | A | - | - | - | - | - | - | - | - | - | 324 | 383 | 426 | 480 | 426 | 426 | 480 | |
| Obvod B | A | - | - | - | - | - | - | - | - | - | 213 | 213 | 213 | 240 | 351 | 426 | 480 | |
| Max. rozbehový prúd, štand. jednotka**** (Un) | A | 334 | 357 | 401 | 435 | 468 | 495 | 590 | 622 | 662 | 1338 | 1631 | 1674 | 1767 | 1812 | 1887 | 2008 | |
| Obvod A*** | A | - | - | - | - | - | - | - | - | - | 1125 | 1418 | 1461 | 1527 | 1461 | 1461 | 1527 | |
| Obvod B*** | A | - | - | - | - | - | - | - | - | - | 1248 | 1248 | 1248 | 1287 | 1152 | 1461 | 1527 | |
| Max. pomer rozbehového prúdu/max. odoberaného prúdu, jednotka | 1.54 | 1.49 | 1.53 | 1.47 | 1.44 | 1.41 | 1.50 | 1.46 | 1.38 | 2.49 | 2.74 | 2.62 | 2.45 | 2.33 | 2.22 | 2.09 | ||
| Max. pomer rozbehového prúdu/max. odoberaného prúdu, obvod A | - | - | - | - | - | - | - | - | - | 3.47 | 3.70 | 3.43 | 3.18 | 3.43 | 3.43 | 3.18 | ||
| Max. pomer rozbehového prúdu/max. odoberaného prúdu, obvod B | - | - | - | - | - | - | - | - | - | 5.86 | 5.86 | 5.86 | 5.36 | 3.28 | 3.43 | 3.18 | ||
| Max. rozbehový prúd - znížený rozbeh prúdu (Un) **** | A | std. | std. | std. | std. | std. | std. | std. | std. | std. | 878 | 955 | 998 | 1102 | 1136 | 1211 | 1343 | |
| Obvod A | A | std. | std. | std. | std. | std. | std. | std. | std. | std. | 665 | 742 | 785 | 862 | 785 | 785 | 862 | |
| Obvod B | A | std. | std. | std. | std. | std. | std. | std. | std. | std. | 572 | 572 | 572 | 622 | 692 | 785 | 862 | |
| Max.rozbehový prúd - zníž. rozbeh prúdu/ max. pomer odoberaného prúdu, jednotka | std. | std. | std. | std. | std. | std. | std. | std. | std. | 1.64 | 1.60 | 1.56 | 1.53 | 1.46 | 1.42 | 1.40 | ||
| Obvod A | std. | std. | std. | std. | std. | std. | std. | std. | std. | 2.05 | 1.94 | 1.84 | 1.79 | 1.84 | 1.84 | 1.79 | ||
| Obvod B | std. | std. | std. | std. | std. | std. | std. | std. | std. | 2.69 | 2.69 | 2.69 | 2.39 | 1.97 | 1.84 | 1.79 | ||
| Trojfázový skratový prúd | kA | 25 | 25 | 25 | 25 | 25 | 25 | 25 | 25 | 25 | N/A | N/A | N/A | N/A | N/A | N/A | N/A | |
| Obvod A | kA | - | - | - | - | - | - | - | - | - | 25 | 25 | 25 | 25 | 25 | 25 | 25 | |
| Obvod B | kA | - | - | - | - | - | - | - | - | - | 25 | 25 | 25 | 25 | 25 | 25 | 25 | |
| Pohotovostná kapacita zákazníka, jednotka alebo obvod A, pre pripojenia čerpadla odparovacej vody† | kW | 4 | 4 | 4 | 5.5 | 5.5 | 5.5 | 7.5 | 7.5 | 7.5 | 7.5 | 9 | 9 | 9 | 15 | 15 | 15 | |
* Štandardné podmienky Eurovent: Vstupná/výstupná teplota vody z výparníka 12°C a 7°C. Teplota vonkajšieho vzduchu 35°C.
** Príkon, kompresor a ventilátor, pri prevádzkových limitoch jednotky (vstupná/výstupná teplota vody z výparníka = 15°C/10°C, teplota vonkajšieho vzduchu = 46°C) a nominálne napätie 400 V (údaje uvedené na štítku jednotky).
*** Maximálny prevádzkový prúd jednotky pri maximálnom príkone jednotky.
**** Maximálny okamžitý rozbehový prúd (maximálny prevádzkový prúd najmenšieho kompresora(ov) + prúd ventilátora + prúd zablokovaného rotora alebo znížený rozbehový prúd najväčšieho kompresora).
† Prúdové a výkonové vstupy nie sú zahrnuté vo vyššie uvedených hodnotách
N/A Nie je k dispozícii
Kompresory
| Referencia | Veľkosť | I nom. | MHA | LRA | LRA (Y) | LRA (S) 1 cp. | LRA (S) 2 cp. |
| 06NA2146S7N | 39 | 70 | 95 | 605 | 191 | 220 | - |
| 06NA2174S7N | 46 | 90 | 120 | 715 | 226 | 260 | - |
| 06NA2209S7N | 56 | 113 | 145 | 856 | 270 | 330 | 420 |
| 06NA2250S7N | 66 | 130 | 175 | 960 | 303 | 380 | 500 |
| 06NA2300S5N | 80 | 156 | 210 | 1226 | 387 | 445 | 550 |
| 06NA2300S5E | 80+ | 174 | 240 | 1265 | 400 | 460 | 600 |
Legenda:
| 06NA | Kompresor pre vzduchom chladené jednotky |
| N | Neekonomizovaný kompresor |
| E | Ekonomizovaný kompresor |
| INOM | Priemerný odber prúdu kompresora pri podmienkach Eurovent |
| MHA | Musí udržať ampéry (maximálny prevádzkový prúd) pri 360 V |
| LRA | Prúd zablokovaného rotora pri štarte napriamo |
| LRA (Y) | Prúd zablokovaného rotora pri zníženom prúde (režim spúšťania hviezda/trojuholník) |
| LRA (S) 1 cp. | Spustenie so zníženým prúdom s elektronickým štartérom (doba spustenia max. 3 sekundy) pre jeden kompresor na obvod |
| LRA (S) 2 cp. | Spustenie so zníženým prúdom s elektronickým štartérom (doba spustenia max. 3 sekundy) pre dva kompresory na obvod |
APLIKAČNÉ ÚDAJE
Prevádzkový rozsah jednotky
| Výparník | Minimum | Maximum | |
| Vstupná teplota vody do výparníka | °C | 6.8* | 21 |
| Výstupná teplota vody z výparníka | °C | 4** | 15 |
| Kondenzátor (chladený vodou) | Minimum | Maximum | |
| Vstupná teplota vody do kondenzátora | °C | 20*** | 42 |
| Výstupná teplota vody z kondenzátora | °C | 25 | 45 |
| Prevádzková teplota okolitého prostredia 30HXC | °C | 6 | 40 |
| Kondenzátor (chladený vzduchom) | Minimum | Maximum | |
| Prevádzková teplota vonkajšieho prostredia | °C | 0 | 46 |
| Dostupný statický tlak | kPa | 0 |
Poznámky:
* Pre aplikácie vyžadujúce prevádzku pri teplote nižšej ako 6,8 °C kontaktujte spoločnosť Carrier s.a. pre výber jednotky pomocou elektronického katalógu Carrier.
** Pre aplikácie vyžadujúce prevádzku pri teplote nižšej ako 4 °C, jednotky vyžadujú použitie nemrznúcej zmesi.
*** Vodou chladené jednotky (30HXC) pracujúce pri plnom zaťažení a pod 20 °C vstupnej teploty vody do kondenzátora vyžadujú použitie regulácie tlaku hlavy s analógovými vodnými regulačnými ventilmi (pozri odsek o regulácii tlaku hlavy).
V dočasných prevádzkových režimoch (spúšťanie a pri čiastočnom zaťažení) môže jednotka pracovať so vstupnou teplotou vzduchu do kondenzátora 13 °C.
Minimálny prietok chladenej vody
Minimálny prietok chladenej vody je uvedený v tabuľke na nasledujúcej strane. Ak je prietok menší, prietok výparníkom sa môže recirkulovať, ako je znázornené na diagrame. Teplota zmesi opúšťajúcej výparník nesmie byť nikdy o menej ako 2,8 K nižšia ako vstupná teplota chladenej vody.

PRE MINIMÁLNY PRIETOK CHLADENEJ VODY
Maximálny prietok chladenej vody
Maximálny prietok chladenej vody je obmedzený maximálnym povoleným poklesom tlaku vo výparníku. Je uvedený v tabuľke na nasledujúcej strane. Ak prietok prekročí maximálnu hodnotu, sú možné dve riešenia:
- Vyberte neštandardný výparník s jedným menej priechodmi vody, ktorý umožní vyšší maximálny prietok vody.
- Obíďte výparník, ako je znázornené na diagrame, aby ste dosiahli vyšší teplotný rozdiel pri nižšom prietoku výparníkom.

PRE MAXIMÁLNY PRIETOK CHLADENEJ VODY
Výparník s premenlivým prietokom
Premenlivý prietok výparníkom je možné použiť v štandardných chladičoch 30HXC a 30GX. Chladiče udržiavajú konštantnú výstupnú teplotu vody za všetkých prietokových podmienok. Aby sa tak stalo, minimálny prietok musí byť vyšší ako minimálny prietok uvedený v tabuľke prípustných prietokov a nesmie sa meniť o viac ako 10 % za minútu. Ak sa prietok mení rýchlejšie, systém by mal obsahovať minimálne 6,5 litra vody na kW namiesto 3,25 l/kW.
Minimálny objem vody v systéme
Nech je systém akýkoľvek, minimálna kapacita vodného okruhu je daná vzorcom:
Kapacita = Cap (kW) x N Litrov
| Aplikácia | N |
| Bežná klimatizácia | 3.25 |
| Chladenie procesného typu | 6.5 |
Kde Cap je nominálny chladiaci výkon systému (kW) pri nominálnych prevádzkových podmienkach inštalácie.
Tento objem je potrebný pre stabilnú prevádzku a presnú reguláciu teploty.
Často je potrebné pridať do okruhu vyrovnávaciu nádrž na vodu, aby sa dosiahol požadovaný objem. Samotná nádrž musí byť vnútorne vybavená prepážkami, aby sa zabezpečilo správne premiešanie kvapaliny (voda alebo soľanka). Pozrite si príklady nižšie.
POZNÁMKA: Kompresor sa nesmie reštartovať viac ako 6-krát za hodinu.


Prietok chladiča (l/s)
| 30HXC | Min.* | Max.** | ||
| 080-090 | 5.7 | 22.7 | ||
| 100 | 6.0 | 24.1 | ||
| 110 | 6.9 | 27.5 | ||
| 120-130 | 8.3 | 33.0 | ||
| 140-155 | 10.0 | 39.5 | ||
| 175-190 | 10.7 | 42.7 | ||
| 200 | 13.4 | 53.7 | ||
| 230 | 13.4 | 60.6 | ||
| 260-285 | 17.0 | 68.1 | ||
| 310 | 19.4 | 77.8 | ||
| 345-375 | 21.3 | 85.3 | ||
| 30GX | Min.* | Max.** | ||
| 082 | 5.7 | 22.7 | ||
| 092-102 | 6.0 | 24.1 | ||
| 112-122 | 6.9 | 27.5 | ||
| 132 | 8.4 | 33.7 | ||
| 152-162 | 10.0 | 39.9 | ||
| 182 | 10.7 | 42.7 | ||
| 207-227 | 13.4 | 53.7 | ||
| 247 | 15.1 | 60.6 | ||
| 267 | 17.0 | 68.1 | ||
| 298 | 19.4 | 77.8 | ||
| 328-358 | 21.3 | 85.3 | ||
* Založené na rýchlosti vody 0,9 m/s.
** Založené na rýchlosti vody 3,6 m/s.
Prietok kondenzátora (l/s)
| 30HXC | Min.* Uzavretý okruh (Closed loop) | Otvorený okruh (Open loop) | Max.** |
| 080-110 | 2.5 | 7.5 | 29.9 |
| 120-130 | 3.1 | 9.3 | 37.3 |
| 140-155 | 3.8 | 11.4 | 45.5 |
| 175-190 | 4.6 | 13.8 | 55.2 |
| 200 | 5.0 | 14.9 | 59.6 |
| 230-285 | 6.7 | 20.1 | 80.3 |
| 310-375 | 7.3 | 22.0 | 88.0 |
* Založené na rýchlosti vody 0,3 m/s v uzavretom okruhu a 0,9 m/s v otvorenom okruhu.
** Založené na rýchlosti vody 3,6 m/s
Krivka tlakovej straty výparníka

- 30HXC 080-090/30GX 082
- 30HXC 100/30GX 092-102
- 30HXC 110/30GX 112-122
- 30GX 132
- 30HXC 120-130
- 30HXC 140-155/30GX 152-162
- 30HXC 175-190/30GX 182
- 30HXC 200/30GX 207-227
- 30HXC 230/30GX 247
- 30HXC 260-285/30GX 267
- 30HXC 310/30GX 298
- 30HXC 345-375/30GX 328-358
Krivka tlakovej straty kondenzátora

- 30HXC 080-090-100-110
- 30HXC 120-130
- 30HXC 140-155
- 30HXC 175-190
- 30HXC 200
- 30HXC 230-260-285
- 30HXC 310-345-375
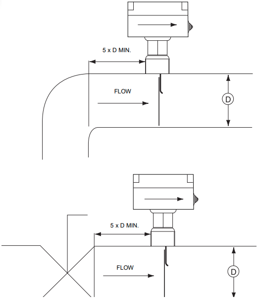
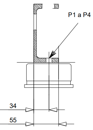
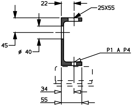
Regulátory prietoku
Spínač prietoku chladiča a blokovanie čerpadla chladenej vody
Je povinné nainštalovať spínač prietoku chladiča a tiež pripojiť blokovanie čerpadla chladenej vody na jednotkách 30HXC a 30GX. Nedodržanie tohto pokynu spôsobí stratu záruky Carrier.
Regulátor spínača prietoku chladiča je z výroby dodávaný a zapojený na jednotkách 30HXC a 30GX.
Pri inštalácii postupujte podľa pokynov výrobcu.
Spínač prietoku môže byť namontovaný v horizontálnom potrubí alebo vo vertikálnom potrubí so stúpajúcim prietokom kvapaliny. Nemal by sa používať, keď prietok kvapaliny smeruje nadol.
Namontujte ho do úseku potrubia, kde je priamy úsek s dĺžkou najmenej päť priemerov potrubia na každej strane spínača prietoku. Neumiestňujte ho v blízkosti ventilov, kolien alebo otvorov. Lopatka sa nikdy nesmie dotýkať potrubia alebo akéhokoľvek zúženia v potrubí. Naskrutkujte spínač prietoku do polohy tak, aby plochá časť lopatky bola v pravom uhle k prietoku. Šípky na kryte a v spodnej časti, vo vnútri puzdra, musia smerovať v smere prietoku. Spínač by mal byť namontovaný tak, aby boli svorky prístupné pre jednoduché zapojenie.
Svorky 34 a 35 sú určené na inštaláciu blokovania čerpadla chladenej vody (pomocný kontakt stýkača čerpadla chladenej vody) v teréne.
(Pripojenie potrubia: 1" NPT)

Spínač prietoku kondenzátora (30HXC)
Spínač prietoku kondenzátora je zariadenie inštalované v teréne.
INŠTALÁCIA
Skontrolujte prijaté vybavenie
- Skontrolujte jednotku, či nie je poškodená alebo či nechýbajú nejaké časti. Ak zistíte poškodenie alebo ak je zásielka nekompletná, okamžite podajte reklamáciu prepravnej spoločnosti.
- Uistite sa, že prijatá jednotka je tá, ktorú ste si objednali. Porovnajte údaje na štítku s objednávkou.
- Uistite sa, že všetko príslušenstvo objednané pre inštaláciu na mieste bolo doručené, je kompletné a nepoškodené.
- Neukladajte jednotky v priestore vystavenom poveternostným vplyvom kvôli citlivému ovládaciemu mechanizmu a elektronickým zariadeniam.
Premiestňovanie a umiestňovanie jednotky
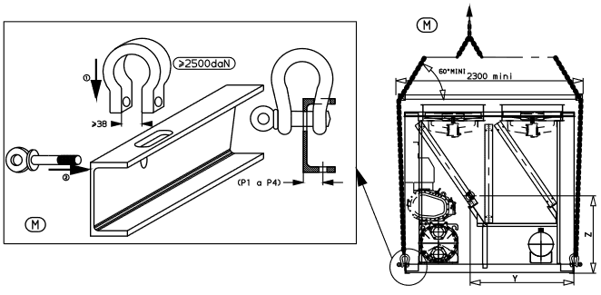
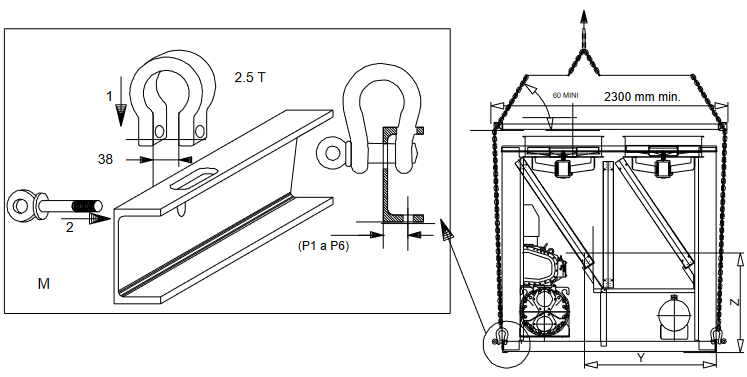
Premiestňovanie
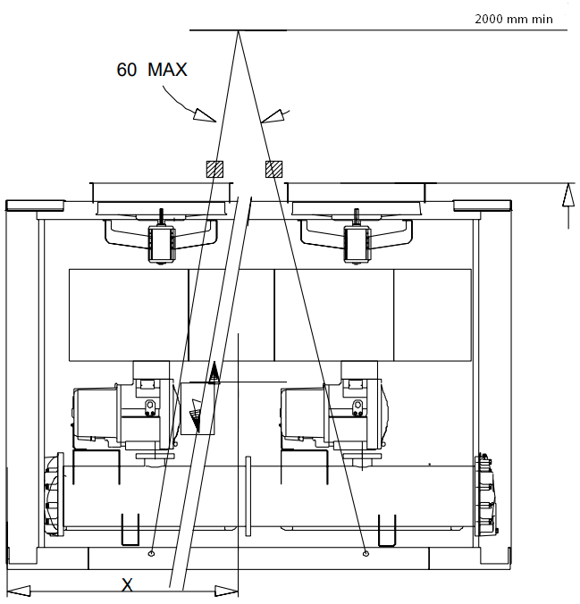
Neodstraňujte lyžiny, palety alebo ochranné obaly, kým jednotka nie je v konečnej polohe. Premiestnite chladič pomocou rúrok alebo valčekov, alebo ho zdvihnite pomocou popruhov so správnou nosnosťou.
(30HXC)
Používajte popruhy iba v určených zdvíhacích bodoch, ktoré sú označené na jednotke, na vrchu výmenníka tepla chladiča. Upevnenie zo spodnej časti výmenníka tepla spôsobí nebezpečné zdvíhanie jednotky. Môže dôjsť k zraneniu osôb alebo poškodeniu jednotky. Dodržiavajte pokyny na upevnenie uvedené na certifikovanom rozmerovom výkrese dodanom s jednotkou.
Umiestnenie
Vždy sa riaďte kapitolou "Rozmery a priestory", aby ste sa uistili, že je dostatok priestoru pre všetky pripojenia a servisné operácie. Súradnice ťažiska, polohu montážnych otvorov jednotky a body rozloženia hmotnosti nájdete na certifikovanom rozmerovom výkrese dodanom s jednotkou.
Odporúčame, aby boli tieto chladiče inštalované buď v suteréne, alebo na úrovni terénu. Ak má byť jeden inštalovaný nad úrovňou terénu, najskôr skontrolujte, či je prípustné zaťaženie podlahy dostatočné a či je podlaha dostatočne pevná a rovná. V prípade potreby podlahu spevnite a vyrovnajte.
Keď je chladič na svojom konečnom mieste, odstráňte lyžiny a ďalšie zariadenia, ktoré sa používali na jeho premiestnenie. Vyrovnajte jednotku pomocou vodováhy a priskrutkujte jednotku k podlahe alebo podstavcu. Prevádzka týchto jednotiek môže byť narušená, ak nie sú vyrovnané a bezpečne pripevnené k svojim upevneniam. V prípade potreby použite pod jednotkou izolačné podložky, ktoré pomôžu pri izolácii vibrácií.
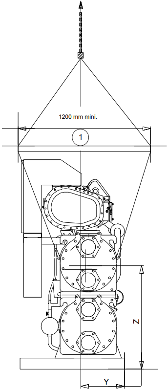
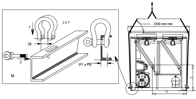
POKYNY NA ZDVIHANIE
30HXC 080-190
Tento diagram je zobrazený len pre informáciu. Pozrite si "certifikované výkresy".

- OKREM 30HXC 190
X mm Y mm Z mm 30HXC080
30HXC090
30HXC1001345 402 903 30HXC110 1368 397 935 30HXC120
30HXC130
30HXC140
30HXC1551731 392 879 30HXC175 1703 386 947 30HXC190 1705 398 955


POZNÁMKA
Po dokončení všetkých operácií zdvíhania a polohovania sa odporúča opraviť všetky povrchy, na ktorých bola odstránená farba na zdvíhacích okách.
30HXC 200-285
Tento diagram je zobrazený len pre informáciu. Pozrite si "certifikované výkresy".


30HXC 310-375


| X mm | Y mm | Z mm | |
| 30HXC310 | 2195 | 425 | 1085 |
| 30HXC345 | 2195 | 425 | 1085 |
| 30HXC375 | 2205 | 435 | 1025 |
POZNÁMKA
Po dokončení všetkých operácií zdvíhania a polohovania sa odporúča opraviť všetky povrchy, na ktorých bola odstránená farba na zdvíhacích okách.
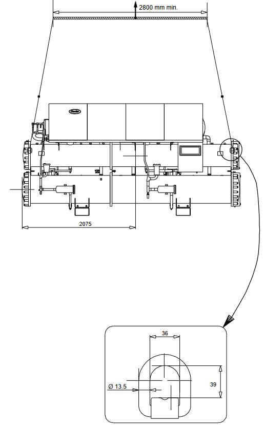
30GX 082-162
Tento diagram je zobrazený len pre informáciu. Pozrite si "certifikované výkresy".



| X mm | Y mm | Z mm | PTkg | |
| 30GX082 | 1440 | 1460 | 900 | 3115 |
| 30GX092 | 1440 | 1460 | 900 | 3156 |
| 30GX102 | 1440 | 1460 | 900 | 3170 |
| 30GX112 | 1650 | 1460 | 900 | 3574 |
| 30GX122 | 1650 | 1460 | 900 | 3527 |
| 30GX132 | 1650 | 1460 | 900 | 3634 |
| 30GX152 | 2155 | 1430 | 900 | 3938 |
| 30GX162 | 2155 | 1430 | 900 | 3954 |
30GX 182



| X mm | Y mm | Z mm | PTkg | |
| 30GX182 | 3030 | 1370 | 875 | 4853 |
POZNÁMKA
Po dokončení všetkých operácií zdvíhania a polohovania sa odporúča opraviť všetky povrchy, na ktorých bola odstránená farba na zdvíhacom oku.
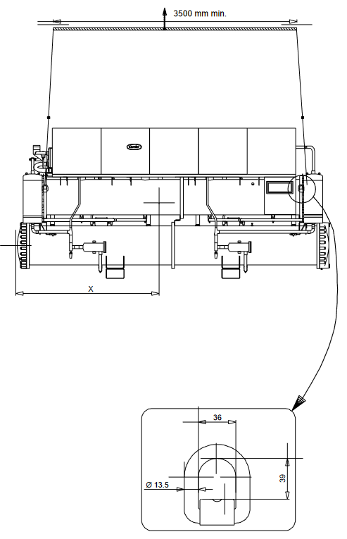
30GX 207-267
Tento diagram je zobrazený len pre informáciu. Pozrite si "certifikované výkresy".



| X mm | Y mm | Z mm | PTkg | |
| 30GX207 | 2870 | 1440 | 890 | 5536 |
| 30GX227 | 2870 | 1440 | 890 | 5572 |
| 30GX247 | 3320 | 1430 | 927 | 6131 |
| 30GX267 | 3300 | 1420 | 886 | 6363 |
30GX 298-358



| X mm | Y mm | Z mm | PTkg | |
| 30GX298 | 3630 | 1420 | 890 | 7353 |
| 30GX328 | 4360 | 1455 | 920 | 7840 |
| 30GX358 | 4360 | 1445 | 930 | 8045 |
POZNÁMKA
Po dokončení všetkých operácií zdvíhania a polohovania sa odporúča opraviť všetky povrchy, na ktorých bola odstránená farba na zdvíhacích okách.
Potrubné pripojenia
Veľkosti a polohy všetkých pripojení prívodu a odvodu vody nájdete na certifikovaných rozmerových výkresoch. Vodovodné potrubia nesmú prenášať žiadnu radiálnu alebo axiálnu silu na výmenníky tepla ani žiadne vibrácie na potrubie alebo budovu.
Prívod vody musí byť analyzovaný a podľa potreby musia byť zabudované vhodné filtračné, úpravné, riadiace zariadenia, izolačné a odvzdušňovacie ventily a okruhy. Poraďte sa s odborníkom na úpravu vody alebo s príslušnou literatúrou na túto tému.
Prevádzkové opatrenia
Vodný okruh by mal byť navrhnutý tak, aby mal čo najmenší počet kolien a vodorovných úsekov potrubia v rôznych úrovniach. Mali by sa vykonať nasledujúce základné kontroly (pozri aj obrázok typického hydraulického okruhu nižšie).
- Všimnite si vstupy a výstupy vody z výmenníkov tepla.
- Nainštalujte manuálne alebo automatické odvzdušňovacie ventily vo všetkých najvyšších bodoch vodného okruhu.
- Použite expanznú komoru alebo expanzný/poistný ventil na udržanie tlaku v systéme.
- Nainštalujte vodné teplomery a tlakomery do vstupných aj výstupných vodovodných prípojok v blízkosti výparníka.
- Nainštalujte vypúšťacie ventily vo všetkých najnižších bodoch, aby sa umožnilo vypustenie celého okruhu. Pred spustením chladiča pripojte uzatvárací ventil do vypúšťacieho potrubia.
- Nainštalujte uzatváracie ventily a tlakomery, v blízkosti výparníka, do vstupných a výstupných vodovodných potrubí.
- Nainštalujte prietokový spínač chladiča.
- Použite flexibilné pripojenia na zníženie prenosu vibrácií na potrubie.
- Po otestovaní tesnosti izolujte všetky potrubia, aby ste znížili tepelné straty a zabránili kondenzácii.
- Izoláciu zakryte parozábranou.
Pripojenia výparníka a kondenzátora
Výparník a kondenzátor sú viacrúrkové plášťové a rúrkové typy s odnímateľnými vodnými komorami na uľahčenie čistenia rúrok.
Pred vykonaním vodovodných prípojok utiahnite skrutky v oboch hlavách na nižší krútiaci moment, ako je uvedené, podľa opísanej metódy. Uťahujte v pároch a v poradí uvedenom podľa veľkosti skrutky (pozri tabuľku) pomocou hodnoty krútiaceho momentu na dolnom konci uvedeného rozsahu.
Pred zváraním potrubia k prírube odstráňte z vodnej komory plochú prírubu dodanú z výroby. Ak neodstránite prírubu, môže dôjsť k poškodeniu snímačov a izolácie.
POZNÁMKA
Odporúčame vypustiť systém a odpojiť potrubie, aby ste sa uistili, že skrutky hláv, ku ktorým je pripojené potrubie, sú správne a rovnomerne utiahnuté.
Ochrana proti zamrznutiu
Ochrana výparníka a vodou chladeného kondenzátora
Ak sa chladič alebo vodovodné potrubie nachádza v oblasti, kde môže okolitá teplota klesnúť pod 0 °C, odporúča sa pridať nemrznúcu zmes na ochranu jednotky a vodovodného potrubia na teplotu 8 K pod najnižšiu teplotu. Používajte iba nemrznúce zmesi schválené pre použitie vo výmenníkoch tepla. Ak systém nie je chránený nemrznúcou zmesou a nebude sa používať počas mrazivého počasia, je povinné vypustenie chladiča a vonkajšieho potrubia. Na poškodenie spôsobené zamrznutím sa nevzťahuje záruka.
Poradie uťahovania vodnej komory

Legenda
- Postupnosť 1: 1 2 3 4
Postupnosť 2: 5 6 7 8
Postupnosť 3: 9 10 11 12 - Uťahovací moment
Veľkosť skrutky M16 - 171 - 210 Nm
Typická schéma hydraulického okruhu

Legenda
- Regulačný ventil
- Odvzdušňovací ventil
- Prietokový spínač
- Flexibilné pripojenie
- Výmenník tepla
- Tlaková prípojka
- Puzdro termostatu
- Odtok
- Vyrovnávacia nádrž
- Filter
- Expanzná nádrž
- Napúšťací ventil
ELEKTRICKÉ CHARAKTERISTIKY
- 30HXC 080-190 a 30GX 082-182 majú iba jeden vypínač/odpojovač napájania.
- 30HXC 200-375 a 30GX 207-358 majú dva vypínače/odpojovače napájania.
- Ovládacia skrinka štandardne obsahuje:
- Štartéry a zariadenia na ochranu motora pre každý kompresor a ventilátory
- Ovládacie komponenty
- Pripojenia na mieste:
Všetky pripojenia k elektrickej sieti a elektrické inštalácie musia byť vykonané v súlade so smernicami platnými pre dané miesto. - 30HXC a 30GX sú navrhnuté tak, aby uľahčili dodržiavanie týchto smerníc. Konštrukcia elektrického zariadenia pre 30HXC a 30GX zohľadňuje európsku normu EN 60204-1 (bezpečnosť strojov - elektrické zariadenia strojov - časť 1: všeobecné pravidlá).
Norma EN 60204-1 je dobrým prostriedkom na splnenie požiadaviek smernice o strojových zariadeniach § 1.5.1. Normatívne odporúčanie IEC 364 je všeobecne uznávané ako spĺňajúce požiadavky inštalačného predpisu.
Príloha B normy EN 60204-1 sa môže použiť na opis elektrických charakteristík, za ktorých stroje pracujú.
30HXC
- Prevádzkové podmienky pre štandardný 30HXC sú opísané nižšie:
- Podmienky prostredia(1). Klasifikácia prostredia je opísaná v norme IEC 364 § 3:
- Rozsah teplôt okolia: + 6°C až + 40°C, klasifikácia AA4
- Rozsah vlhkosti (bez kondenzácie)
50% relatívnej vlhkosti pri 40°C
90% relatívnej vlhkosti pri 20°C - Nadmorská výška - 2000 m(1)
- Pre vnútornú inštaláciu
- Prítomnosť vody: klasifikácia AD2(1) (možnosť kvapiek vody)
- Prítomnosť pevných látok: klasifikácia AE2(1) (prítomnosť nevýznamných častíc)
- Prítomnosť korozívnych látok a kontaminantov, klasifikácia AF1 (zanedbateľná)
- Vibrácie, otrasy: klasifikácia AG2, AH2 Kompetencia personálu: klasifikácia BA4(1) (personál kvalifikovaný v súlade s IEC 364).
- Podmienky prostredia(1). Klasifikácia prostredia je opísaná v norme IEC 364 § 3:
(1) Požadovaná norma ochrany s ohľadom na túto klasifikáciu je IP21B (v súlade s referenčným dokumentom IEC 529). Všetky 30HXC majú normu ochrany IP23C, a preto spĺňajú túto požiadavku na ochranu.
30GX
- Prevádzkové podmienky pre 30GX sú opísané nižšie:
- Podmienky prostredia(2). Klasifikácia prostredia je opísaná v norme EN 60721:
- Pre vonkajšiu inštaláciu(2)
- Rozsah teplôt okolia: - 18°C až + 46°C, klasifikácia 4K3(2)
- Nadmorská výška 2000 m(2)
- Prítomnosť pevných látok: klasifikácia 4S2 (prítomnosť nevýznamných častíc)
- Prítomnosť korozívnych látok a kontaminantov, klasifikácia 4C2 (zanedbateľná)
- Vibrácie, otrasy: klasifikácia 4M2
- Podmienky prostredia(2). Klasifikácia prostredia je opísaná v norme EN 60721:
Kompetencia personálu: klasifikácia BA4(2) (personál kvalifikovaný v súlade s IEC 364).
(2) Požadovaná norma ochrany s ohľadom na túto klasifikáciu je IP43BW (v súlade s referenčným dokumentom IEC 529). Všetky 30GX majú normu ochrany IP45CW, a preto spĺňajú túto požiadavku na ochranu.
30HXC/GX
- Kolísanie frekvencie napájania: ± 2 Hz
- Nadprúdová ochrana pre vodiče napájania nie je súčasťou zariadenia.
- Z výroby namontovaný vypínač/odpojovač je izolátor typu "a". (EN60204-1 § 5.3.2).
POZNÁMKA: Ak si konkrétne aspekty inštalácie vyžadujú iné charakteristiky, ako sú uvedené vyššie (alebo charakteristiky, ktoré tu nie sú uvedené), kontaktujte svojho zástupcu spoločnosti Carrier.
Napájanie
Napájanie musí zodpovedať špecifikácii na výrobnom štítku chladiča. Napájacie napätie musí byť v rozsahu uvedenom v tabuľke elektrických údajov.
Pripojenia nájdete v schémach zapojenia.
Prevádzka chladiča s nesprávnym napájacím napätím alebo nadmernou fázovou nevyváženosťou predstavuje zneužitie, ktoré zruší platnosť záruky spoločnosti Carrier. Ak fázová nevyváženosť prekročí 2 % pre napätie alebo 10 % pre prúd, okamžite kontaktujte miestneho dodávateľa elektrickej energie a uistite sa, že chladič nie je zapnutý, kým sa neprijmú nápravné opatrenia.
Fázová nevyváženosť napätia (%):
100 x max. odchýlka od priemerného napätia
Priemerné napätie
Príklad:
Pri napájaní 400 V - 3 ph - 50 Hz boli namerané jednotlivé fázové napätia:
AB = 406 V; BC = 399; AC = 394 V
| Priemerné napätie | = (406 + 399 + 394)/3 = 1199/3 |
| = 399,7 povedzme 400 V |
Vypočítajte maximálnu odchýlku od priemeru 400 V:
(AB) = 406 - 400 = 6
(BC) = 400 - 399 = 1
(CA) = 400 - 394 = 6

Maximálna odchýlka od priemeru je 6 V. Najväčšia percentuálna odchýlka je:
100 x 6/400 = 1,5 %
Toto je menej ako povolené 2 %, a preto je to prijateľné.
ODPORÚČANÉ PRIEREZY VODIČOV
Za určenie veľkosti vodičov je zodpovedný inštalatér a závisí to od charakteristík a predpisov platných pre každé miesto inštalácie. Nasledujúce informácie slúžia len ako usmernenie a spoločnosť Carrier za ne v žiadnom prípade nenesie zodpovednosť. Po dokončení určenia veľkosti vodičov pomocou certifikovaného rozmerového výkresu musí inštalatér zabezpečiť jednoduché pripojenie a definovať všetky úpravy potrebné na mieste.
Pripojenia, ktoré sú štandardne k dispozícii pre napájacie káble dodávané na mieste do všeobecného odpojovača/izolačného spínača, sú určené pre počet a typ vodičov uvedených v tabuľke nižšie.
Výpočty sú založené na maximálnom prúde stroja (pozri tabuľky s elektrickými údajmi).
Pre návrh sa používajú nasledujúce štandardizované spôsoby inštalácie v súlade s normou IEC 364, tabuľka 52C:
- Pre jednotky 30HX inštalované vo vnútri budovy: č. 13: perforovaný horizontálny káblový žľab a č. 41: uzavretý žľab.
- Pre jednotky 30GX inštalované mimo budovy: č. 17: zavesené vzdušné vedenia a č. 61: zakopaný žľab s redukčným koeficientom 20.
Výpočet je založený na kábloch s izoláciou z PVC alebo XLPE s medeným alebo hliníkovým jadrom. Maximálna teplota je 40 °C pre jednotky 30HX a 46 °C pre jednotky 30GX.
Daná dĺžka vodiča obmedzuje pokles napätia na < 5 %.
| Unit (jednotka) | Min. (mm2) by phase (na fázu) | Wire type (typ vodiča) | L (m) | Max. (mm2) by phase (na fázu) | Wire type (typ vodiča) | L (m) |
| 30HX 080 | 1 x 35 | XLPE Cu | 140 | 1 x 120 | PVC Al | 260 |
| 30HX 090 | 1 x 50 | XLPE Cu | 160 | 1 x 120 | PVC Al | 260 |
| 30HX 100 | 1 x 50 | XLPE Cu | 160 | 1 x 95 | XLPE Al | 195 |
| 30HX 110 | 1 x 70 | XLPE Cu | 170 | 1 x 120 | XLPE Al | 205 |
| 30HX 120/130 | 1 x 70 | XLPE Cu | 170 | 1 x 150 | XLPE Al | 210 |
| 30HX 140 | 1 x 95 | XLPE Cu | 180 | 1 x 185 | XLPE Al | 220 |
| 30HX 155 | 1 x 95 | XLPE Cu | 180 | 1 x 240 | XLPE Al | 225 |
| 30HX 175 | 1 x 120 | XLPE Cu | 185 | 1 x 240 | XLPE Al | 225 |
| 30HX 190 | 1 x150 | XLPE Cu | 190 | 2 x 95 | XLPE Al | 195 |
| 30HX 200 ckt A | 1 x 70 | XLPE Cu | 170 | 2 x120 | PVC Al | 325 |
| 30HX 230 ckt A | 1 x 95 | XLPE Cu | 180 | 2 x 120 | PVC Al | 325 |
| 30HX 260 ckt A | 1 x 120 | XLPE Cu | 185 | 1 x 240 | XLPE Al | 225 |
| 30HX 285 ckt A | 1 x 150 | XLPE Cu | 190 | 2 x 150 | XLPE Al | 265 |
| 30HX 200 ckt B | 1 x 35 | XLPE Cu | 140 | 1 x 95 | PVC Al | 250 |
| 30HX 230 ckt B | 1 x 35 | XLPE Cu | 140 | 1 x 120 | PVC Al | 260 |
| 30HX 260 ckt B | 1 x 35 | XLPE Cu | 140 | 1 x 120 | PVC Al | 260 |
| 30HX 285 ckt B | 1 x 50 | XLPE Cu | 160 | 2 x 70 | PVC Al | 285 |
| 30HX 310 ckt A & B | 1 x 95 | XLPE Cu | 180 | 1 x 240 | XLPE Al | 225 |
| 30HX 345 ckt A & B | 1 x 120 | XLPE Cu | 185 | 1 x 240 | XLPE Al | 225 |
| 30HX 375 ckt A & B | 1 x 150 | XLPE Cu | 190 | 2 x 150 | XLPE Al | 265 |
| 30GX 082 | 1 x 95 | XLPE Cu | 190 | 2 x 185 | PVC Al | 420 |
| 30GX 092 | 1 x 120 | XLPE Cu | 195 | 2 x 185 | PVC Al | 420 |
| 30GX 102 | 1 x 120 | XLPE Cu | 195 | 2 x 240 | PVC Al | 450 |
| 30GX 112 | 1 x 150 | XLPE Cu | 200 | 2 x 150 | XLPE Al | 300 |
| 30GX 122 | 1 x 185 | XLPE Cu | 205 | 2 x 185 | XLPE Al | 315 |
| 30GX 132 | 1 x 185 | XLPE Cu | 205 | 2 x 240 | XLPE Al | 330 |
| 30GX 152 | 1 x 240 | XLPE Cu | 205 | 3x 185 | XLPE CU | 430 |
| 30GX 162 | 2 x 95 | XLPE Cu | 190 | 3x 240 | XLPE CU | 440 |
| 30GX 182 | 2 x 120 | XLPE Cu | 200 | 3x 240 | XLPE CU | 440 |
| 30GX 207 ckt A | 1 x 185 | XLPE Cu | 205 | 3x 185 | XLPE Al | 445 |
| 30GX 227 ckt A | 1 x 240 | XLPE Cu | 205 | 3x 240 | XLPE Al | 470 |
| 30GX 247/298/328 ckt A | 2 x 120 | XLPE Cu | 225 | 3x 185 | XLPE CU | 490 |
| 30HX 267/358 ckt A | 2 x 150 | XLPE Cu | 230 | 3x 240 | XLPE CU | 505 |
| 30GX 207/227/247 ckt B | 1 x 95 | XLPE Cu | 190 | 2 x 240 | PVC Al | 560 |
| 30HX 267 ckt B | 1 x 120 | XLPE Cu | 200 | 2 x 185 | XLPE AL | 395 |
| 30GX 298 ckt B | 1 x 185 | XLPE Cu | 205 | 3x 240 | XLPE AL | 470 |
| 30GX 328 ckt B | 2 x 120 | XLPE Cu | 225 | 3x 185 | XLPE CU | 490 |
| 30GX 358 ckt B | 2 x 150 | XLPE Cu | 230 | 3x 240 | XLPE CU | 505 |
Pred pripojením hlavných napájacích káblov (L1 - L2 - L3) na svorkovnicu je nevyhnutné skontrolovať správne poradie 3 fáz pred pokračovaním v pripojení na svorkovnicu alebo hlavný odpojovač/izolačný spínač.
Zapojenie ovládania v teréne
Informácie o zapojení ovládania v teréne pre nasledujúce funkcie nájdete v dokumente Controls IOM a v certifikovanej schéme zapojenia, ktorá je súčasťou jednotky:
- Blokovanie čerpadla výparníka (povinné)
- Diaľkový vypínač
- Spínač prietoku kondenzátora (dodáva sa v teréne, len 30HXC)
- Diaľkový prepínač vykurovania/chladenia
- Externý spínač obmedzenia dopytu 1
- Diaľkové duálne nastavenie bodu
- Hlásenie alarmu podľa okruhu
- Ovládanie čerpadla výparníka
- Ovládanie čerpadla kondenzátora (len 30HXC)
- Diaľkový reset nastaveného bodu alebo reset snímača vonkajšej teploty vzduchu (0 – 10 V)
Odporúčané prierezy vodičov pre jednotky s vysokými teplotami kondenzácie (400 V – 3 ph – 50 Hz)
| Jednotka, možnosti 150 + 150A 400 V – 3 ph – 50 Hz | Min. (mm2) na fázu | Typ vodiča | L (m) | Max. (mm2) na fázu | Typ vodiča | L (m) |
| 30HXC 080 OPT. 150 | 1 x 50 | XLPE Cu | 150 | 2 x 70 | PVC Al | 230 |
| 30HXC 090 OPT. 150 | 1 x 70 | XLPE Cu | 160 | 2 x 95 | PVC Al | 260 |
| 30HXC 100 OPT. 150 | 1 x 70 | XLPE Cu | 160 | 2 x 95 | PVC Al | 250 |
| 30HXC 110 OPT. 150 | 1 x 95 | XLPE Cu | 170 | 2 x 120 | PVC Al | 265 |
| 30HXC 120 OPT. 150 | 1 x 120 | XLPE Cu | 180 | 2 x 120 | XLPE Al | 205 |
| 30HXC 130 OPT. 150 | 1 x 120 | XLPE Cu | 160 | 2 x 120 | XLPE Al | 210 |
| 30HXC 140 OPT. 150 | 1 x 150 | XLPE Cu | 175 | 2 x 120 | XLPE Al | 205 |
| 30HXC 155 OPT. 150 | 1 x 185 | XLPE Cu | 185 | 2 x 150 | XLPE Al | 215 |
| 30HXC 175 OPT. 150 | 1 x 240 | XLPE Cu | 185 | 2 x 150 | XLPE Al | 210 |
| 30HXC 190 OPT. 150 | 2 x 95 | XLPE Cu | 175 | 2 x 240 | XLPE Al | 220 |
| 30HXC 200 OPT. 150 circ. A | 1 x 120 | XLPE Cu | 170 | 2 x 150 | XLPE Al | 270 |
| 30HXC 230 OPT. 150 circ. A | 1 x 150 | XLPE Cu | 180 | 2 x 185 | XLPE Al | 270 |
| 30HXC 260 OPT. 150 circ. A | 1 x 185 | XLPE Cu | 180 | 2 x 240 | XLPE Al | 295 |
| 30HXC 285 OPT. 150 circ. A | 1 x 240 | XLPE Cu | 170 | 2 x 185 | XLPE Cu | 265 |
| 30HXC 310 OPT. 150 circ. A | 1 x 185 | XLPE Cu | 180 | 2 x 240 | XLPE Al | 300 |
| 30HXC 345 OPT. 150 circ. A | 1 x 185 | XLPE Cu | 170 | 2 x 240 | XLPE Al | 280 |
| 30HXC 375 OPT. 150 circ. A | 1 x 240 | XLPE Cu | 170 | 2 x 185 | XLPE Cu | 265 |
| 30HXC 200 OPT. 150 circ. B | 1 x 35 | XLPE Cu | 125 | 2 x 95 | PVC Al | 320 |
| 30HXC 230 OPT. 150 circ. B | 1 x 50 | XLPE Cu | 140 | 2 x 95 | PVC Al | 310 |
| 30HXC 260 OPT. 150 circ. B | 1 x 50 | XLPE Cu | 140 | 2 x 95 | PVC Al | 310 |
| 30HXC 285 OPT. 150 circ. B | 1 x 70 | XLPE Cu | 160 | 2 x 120 | PVC Al | 325 |
| 30HXC 310 OPT. 150 circ. B | 1 x 150 | XLPE Cu | 180 | 2 x 185 | XLPE Al | 275 |
| 30HXC 345 OPT. 150 circ. B | 1 x 185 | XLPE Cu | 185 | 2 x 240 | XLPE Al | 305 |
| 30HXC 375 OPT. 150 circ. B | 1 x 185 | XLPE Cu | 160 | 2 x 240 | XLPE Al | 280 |
HLAVNÉ KOMPONENTY SYSTÉMU A PREVÁDZKOVÉ ÚDAJE
Prevodový dvojrotorový skrutkový kompresor
- Jednotky 30HXC a 30GX používajú prevodové dvojrotorové skrutkové kompresory 06N
- 06NA sa používajú na 30GX (aplikácia s chladením vzduchom)
- 06NW sa používajú na 30HXC (aplikácia s chladením vodou)
- Nominálne kapacity sa pohybujú od 39 do 80 ton. V závislosti od veľkosti jednotky 30HXC a 30GX sa používajú modely s alebo bez ekonomizéra.
Olejový filter
Skrutkový kompresor 06N má olejový filter integrovaný v telese kompresora. Tento filter je vymeniteľný v teréne.
Chladivo
Skrutkový kompresor 06N je špeciálne navrhnutý na použitie iba v systéme R134 a.
Mazivo
Skrutkový kompresor 06N je schválený na použitie s nasledujúcim mazivom.
ŠPECIFIKÁCIA MATERIÁLU CARRIER PP 47-32
Elektromagnetický ventil prívodu oleja
Elektromagnetický ventil prívodu oleja je štandardnou súčasťou kompresora, aby sa kompresor izoloval od prúdenia oleja, keď kompresor nepracuje.
Olejový solenoid je vymeniteľný v teréne.
Sacie a ekonomizérové sitá
Na zvýšenie spoľahlivosti kompresora bolo do sacích a ekonomizérových vstupov kompresora štandardne zabudované sito.
Systém odľahčenia
Skrutkový kompresor 06N má systém odľahčenia, ktorý je štandardnou súčasťou všetkých kompresorov. Tento systém odľahčenia pozostáva z dvoch stupňov odľahčenia, ktoré znižujú výkon kompresora presmerovaním čiastočne stlačeného plynu späť do sania.
Výparník
Chladiče 30HXC a 30GX používajú zaplavený výparník. Voda cirkuluje v trubiciach a chladivo je na vonkajšej strane v plášti. Na obsluhu oboch chladivových okruhov sa používa jedna nádoba. K dispozícii je stredová trubková doska, ktorá oddeľuje dva chladivové okruhy. Rúrky sú medené s priemerom 3/4" so zdokonaleným povrchom zvnútra aj zvonka. K dispozícii je iba jeden vodný okruh a v závislosti od veľkosti chladiča môžu byť dva alebo tri priechody vody. Snímač hladiny chladnejšej kvapaliny poskytuje optimalizované riadenie prietoku.
V hornej časti chladiča sú dve sacie rúrky, jedna v každom okruhu. Každá z nich má k sebe privarenú prírubu a na prírubu sa montuje kompresor.
Kondenzátor a odlučovač oleja (30HXC)
Chladič 30HXC používa nádobu, ktorá je kombináciou kondenzátora a odlučovača oleja. Je namontovaný pod chladičom. Vypúšťaný plyn opúšťa kompresor a preteká cez vonkajší tlmič do odlučovača oleja, ktorý je hornou časťou nádoby. Vstupuje do hornej časti odlučovača, kde sa odstraňuje olej, a potom prúdi do spodnej časti nádoby, kde sa plyn kondenzuje a podchladzuje. Na obsluhu oboch chladivových okruhov sa používa jedna nádoba. K dispozícii je stredová trubková doska, ktorá oddeľuje dva chladivové okruhy. Rúrky sú medené s priemerom 3/4" alebo 1" so zdokonaleným povrchom zvnútra aj zvonka. K dispozícii je iba jeden vodný okruh s dvoma priechodmi vody.
Odlučovač oleja (30GX)
V jednotkách s chladením vzduchom je odlučovač oleja tlaková nádoba, ktorá je namontovaná pod vonkajšími vertikálnymi kondenzátorovými cievkami. Vypúšťaný plyn vstupuje do hornej časti odlučovača, kde sa väčšina oleja oddeľuje a odteká na dno. Plyn potom preteká cez sito z drôteného pletiva, kde sa zvyšný olej oddeľuje a odteká na dno.
Elektronické expanzné zariadenie (EXD)
Mikroprocesor riadi EXD prostredníctvom riadiaceho modulu EXV. EXD bude buď EXV, alebo Economizer. Vnútri oboch týchto zariadení je lineárny krokový motor. Vysokotlakové kvapalné chladivo vstupuje do ventilu cez spodnú časť. Vo vnútri zostavy otvoru sú umiestnené série kalibrovaných otvorov. Keď chladivo prechádza cez otvor, tlak klesá a chladivo sa mení na 2-fázový stav (kvapalina a para). Na riadenie prietoku chladiva pre rôzne prevádzkové podmienky sa objímka pohybuje hore a dole nad otvorom, čím sa mení efektívna prietoková plocha expanzného zariadenia. Objímka sa pohybuje lineárnym krokovým motorom. Krokový motor sa pohybuje v prírastkoch a je riadený priamo procesorovým modulom. Keď sa krokový motor otáča, pohyb sa prenáša na lineárny pohyb pomocou vodiacej skrutky. Prostredníctvom krokového motora a vodiacich skrutiek sa dosiahne 1500 diskrétnych krokov pohybu. Veľký počet krokov a dlhý zdvih majú za následok veľmi presné riadenie prietoku chladiva. Každý okruh má snímač hladiny kvapaliny namontovaný vertikálne do hornej časti plášťa chladiča. Snímač hladiny pozostáva z malého elektrického odporového ohrievača a troch termistorov zapojených do série umiestnených v rôznych výškach vo vnútri telesa studne. Ohrievač je navrhnutý tak, aby termistory odčítali približne 93,3 °C v suchom vzduchu. Keď hladina chladiva stúpa v chladiči, odpor najbližšieho termistora (termistorov) sa výrazne zmení. Tento veľký rozdiel v odpore umožňuje riadiacemu systému presne udržiavať špecifikovanú úroveň. Snímač hladiny monitoruje hladinu kvapalného chladiva v chladiči a odosiela tieto informácie do PSIO-1. Pri prvom spustení je poloha EXV na nule. Potom mikroprocesor presne sleduje polohu ventilu, aby tieto informácie použil ako vstup pre ostatné riadiace funkcie. Robí to inicializáciou EXV pri spustení. Procesor vysiela do ventilu dostatok zatváracích impulzov, aby ho presunul z úplne otvorenej do úplne zatvorenej polohy, a potom resetuje počítadlo polohy na nulu. Od tohto bodu až do inicializácie procesor počíta celkový počet otvorených a zatvorených krokov, ktoré odoslal do každého ventilu.
Ekonomizér
Ekonomizéry sú inštalované na 30HXC 190, 285 a 375 a 30GX 182, 267 a 358.
Ekonomizér zlepšuje kapacitu aj účinnosť chladiča a zároveň zabezpečuje chladenie motora kompresora. Vnútri ekonomizéra sa nachádza lineárny krokový motor EXV a plavákový ventil. EXV je riadený PIC na udržiavanie požadovanej hladiny kvapaliny v chladiči (ako sa to robí pre chladiče bez ekonomizéra). Plavákový ventil udržiava hladinu kvapaliny v spodnej časti ekonomizéra. Kvapalné chladivo je dodávané z kondenzátora do spodnej časti ekonomizéra. Keď chladivo prechádza cez EXV, jeho tlak sa zníži na strednú úroveň približne 500 kPa. Tento tlak sa udržiava vo vnútri plášťa ekonomizéra. Ďalej chladivo preteká cez plavákový ventil, jeho tlak sa ďalej znižuje na hodnotu mierne nad tlakom v chladiči. Zvýšenie výkonu sa dosiahne, keď sa časť chladiva prechádzajúceho cez EXV odparí na paru, čím sa ďalej podchladí kvapalina, ktorá sa udržiava v spodnej časti ekonomizéra. Toto zvýšenie podchladenia poskytuje dodatočnú kapacitu. Keďže na dosiahnutie tohto cieľa nie je potrebný žiadny dodatočný výkon, zlepšuje sa aj účinnosť stroja. Para, ktorá sa odparí, vystúpi do ekonomizéra, kde prejde do kompresora a použije sa podľa potreby na zabezpečenie chladenia motora. Po prechode cez vinutia motora sa chladivo opäť dostane do cyklu v strednom porte v kompresnom cykle.
Olejové čerpadlá
Skrutkové chladiče 30GX/HXC používajú jedno externe namontované predmazávacie olejové čerpadlo na okruh. Toto čerpadlo sa prevádzkuje ako súčasť postupnosti spúšťania.
POZOR:
Prevádzková teplota cievky môže dosiahnuť 80 °C. Za určitých dočasných podmienok (najmä počas spúšťania pri nízkej vonkajšej teplote alebo nízkej teplote kondenzátorového okruhu) sa môže olejové čerpadlo reaktivovať.
Na jednotkách 30GX sú čerpadlá namontované na základných koľajniciach na strane odlučovača oleja jednotky. Čerpadlá sú namontované na konzole na kondenzátoroch jednotiek 30HXC. Keď sa vyžaduje spustenie okruhu, riadiace systémy najprv zapnú olejové čerpadlo, aby sa kompresor spustil so správnym mazaním. Ak čerpadlo vytvorilo dostatočný tlak oleja, kompresor sa bude môcť spustiť. Po spustení kompresora sa olejové čerpadlo vypne. Ak čerpadlo nedokázalo vytvoriť dostatočný tlak oleja, riadiaci systém vygeneruje alarm.
Ventily chladenia motora
Teploty vinutia motora kompresora sú riadené na optimálnu nastavenú hodnotu. Riadiaci systém to dosahuje cyklovaním elektromagnetického ventilu chladenia motora, aby sa podľa potreby umožnilo prúdenie kvapalného chladiva cez vinutia motora. Na jednotkách vybavených ekonomizérmi opúšťa odparený plyn hornú časť ekonomizéra a nepretržite prúdi do vinutia motora. Všetko chladivo použité na chladenie motora sa vracia do rotorov cez port umiestnený v polovici kompresného cyklu a je stlačené na výtlačný tlak.
Senzory
Jednotky používajú termistory (vrátane dvoch termistorov teploty motora) a dva termistory hladiny a tlakové prevodníky na monitorovanie a riadenie prevádzky systému.
Termistory
Kvapalina opúšťajúca výparník
Táto teplota sa používa na meranie teploty kvapaliny opúšťajúcej výparník (voda alebo soľanka). Teplota sa používa na riadenie teploty kvapaliny opúšťajúcej výparník a na ochranu pred zamrznutím chladiča. Nachádza sa v dýze kvapaliny výparníka.
Kvapalina vstupujúca do výparníka
Tento snímač sa používa na meranie teploty kvapaliny vstupujúcej do výparníka. Nachádza sa v dýze vstupujúcej do výparníka. Používa sa na zabezpečenie automatickej teplotnej kompenzácie pre riadenie teploty kvapaliny opúšťajúcej výparník s kompenzáciou vstupujúcej kvapaliny.
Teplota vypúšťaného plynu (okruhy A a B)
Tento snímač sa používa na meranie teploty vypúšťaného plynu a riadenie prehriatia teploty vypúšťania. Nachádza sa na výtlačnom potrubí každého okruhu (30HXC) alebo na hornej časti odlučovača oleja (30GX).
POZOR: Neexistuje žiadna objímka termostatu.
Teplota motora
Modul ochrany kompresora (CPM) monitoruje teplotu motora. Svorky termistora sa nachádzajú v spojovacej skrinke kompresora.
Hladina kvapaliny vo výparníku (okruhy A a B)
Termistor hladiny kvapaliny vo výparníku sa používa na zabezpečenie optimalizovaného riadenia prietoku vo výparníku. Je nainštalovaný v hornej časti výparníka.
Kvapalina vstupujúca do kondenzátora (30HXC)
Tento snímač sa používa na meranie teploty kvapaliny vstupujúcej do vodou chladených kondenzátorov. Nachádza sa v spoločnom potrubí kvapaliny vstupujúcom do kondenzátorov (inštalované v teréne). Na tepelných strojoch sa používa rutinou riadenia kapacity. Na vodou chladených kondenzátoroch sa používa iba na monitorovanie teploty kvapaliny kondenzátora.
Kvapalina opúšťajúca kondenzátor (voliteľné na 30HXC)
Tento snímač sa používa na meranie teploty kvapaliny opúšťajúcej vodou chladené kondenzátory. Nachádza sa v spoločnom potrubí kvapaliny opúšťajúcom kondenzátory (inštalované v teréne). Na tepelných strojoch sa používa rutinou riadenia kapacity. Na vodou chladených kondenzátoroch sa používa iba na monitorovanie teploty kvapaliny kondenzátora.
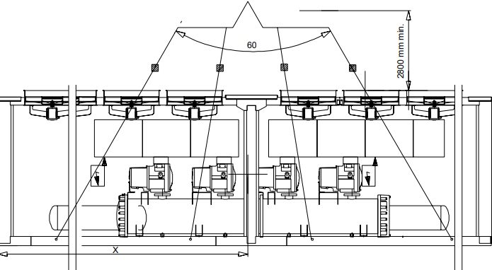
Usporiadanie ventilátorov 30GX

GX082/102

GX112/132

GX152/162

GX182

GX207/227

GX247/267

GX298

GX328/358
ÚDRŽBA
Plnenie chladiva - doplnenie náplne
Tieto jednotky sú navrhnuté na použitie iba s R-134a.
NEPOUŽÍVAJTE ŽIADNE INÉ chladivo v týchto jednotkách.
Pri dopĺňaní alebo odstraňovaní náplne neustále cirkulujte vodu cez kondenzátor (HX) a chladič, aby ste predišli zamrznutiu. Poškodenie mrazom sa považuje za nesprávne použitie a môže viesť k strate záruky Carrier.
NEPREPLŇUJTE systém. Preplnenie vedie k vyššiemu výtlačnému tlaku s vyššou spotrebou chladiacej kvapaliny, možným poškodením kompresora a vyššou spotrebou energie.
Indikácia nízkej náplne v systéme 30HXC
POZNÁMKA
Na kontrolu nízkej náplne chladiva v 30HXC je potrebné zvážiť niekoľko faktorov. Blikajúci priezorník kvapalinového potrubia nemusí nevyhnutne znamenať nedostatočnú náplň. Existuje mnoho systémových podmienok, pri ktorých sa blikajúci priezorník vyskytuje počas normálnej prevádzky. Dávkovacie zariadenie 30HXC je navrhnuté tak, aby správne fungovalo za týchto podmienok.
- Uistite sa, že okruh beží pri plnom zaťažení. Ak chcete skontrolovať, či je okruh A plne zaťažený, postupujte podľa postupu opísaného v príručke ovládacích prvkov.
- Môže byť potrebné použiť funkciu Manual Control (manuálne ovládanie) na vynútenie okruhu do stavu plného zaťaženia. V takom prípade si pozrite pokyny na používanie funkcie Manual Control (manuálne ovládanie) v príručke ovládacích prvkov.
- Keď okruh beží pri plnom zaťažení, overte, či je teplota kvapaliny vystupujúcej z chladiča v rozsahu 6 °C ± 1,5.
- Za týchto podmienok sledujte chladivo v priezorníku kvapalinového potrubia. Ak je priezorník čistý a nejaví žiadne známky blikania, okruh je dostatočne naplnený. Preskočte zvyšné kroky.
- Ak sa zdá, že chladivo bliká, okruh má pravdepodobne nízku náplň. Overte to kontrolou polohy EXV (pozri Controls IOM).
- Ak je poloha otvorenia EXD väčšia ako 60 % a ak priezorník kvapalinového potrubia bliká, okruh má nízku náplň. Postupujte podľa postupu pridávania náplne.
Pridanie náplne do systémov 30HXC
- Uistite sa, že jednotka beží pri plnom zaťažení a že teplota kvapaliny vystupujúcej z chladiča je v rozsahu 5,6 7,8 °C.
- Za týchto prevádzkových podmienok skontrolujte priezorník kvapalinového potrubia. Ak je priezorník čistý, jednotka má dostatočnú náplň. Ak priezorník bliká, skontrolujte EXD Percent Open (percento otvorenosti EXD). Ak je táto hodnota väčšia ako 60 %, začnite dopĺňať náplň.
POZNÁMKA
Blikajúci priezorník kvapalinového potrubia pri iných prevádzkových podmienkach, ako sú uvedené vyššie, nemusí nevyhnutne znamenať nízku náplň chladiva.
- Pridajte 2,5 kg tekutej náplne do výparníka pomocou plniaceho ventilu umiestneného na vrchu výparníka.
- Sledujte hodnotu EXD Percent Open (percento otvorenosti EXD). EXD by sa mal začať zatvárať, keď sa pridáva náplň. Nechajte jednotku stabilizovať. Ak EXD Percent Open (percento otvorenosti EXD) zostáva nad 60 % a v priezorníku sú stále bubliny, pridajte ďalších 2,5 kg tekutej náplne.
- Nechajte jednotku stabilizovať a znova skontrolujte EXDPercent Open (percento otvorenosti EXD). Pokračujte v pridávaní 2,5 kg tekutej náplne chladiva naraz a pred kontrolou polohy EXD nechajte jednotku stabilizovať.
- Keď je EXD Percent Open (percento otvorenosti EXD) v rozsahu 40 – 60 %, skontrolujte priezorník kvapalinového potrubia. Pomaly pridávajte dostatok tekutej náplne, aby ste zabezpečili čistý priezorník. Toto by sa malo robiť pomaly, aby ste predišli preplneniu jednotky.
- Overte dostatočnú náplň pokračovaním v prevádzke pri plnom zaťažení s teplotou kvapaliny vystupujúcej z výparníka 6 °C ± 1,5. Skontrolujte, či chladivo nebliká v priezorníku kvapalinového potrubia. EXD Percent Open (percento otvorenosti EXD) by mal byť medzi 40 a 60 %. Ukazovateľ hladiny chladiča by mal byť v rozsahu 1,5 – 2,5.
Indikácia nízkej náplne v systémoch 30GX
- Uistite sa, že okruh beží pri plnom zaťažení a že kondenzačná teplota je 50 °C ± 1,5. Ak chcete skontrolovať, či je okruh A plne zaťažený, postupujte podľa postupu v Controls IOM.
- Môže byť potrebné použiť funkciu Manual Control (manuálne ovládanie) na vynútenie okruhu do stavu plného zaťaženia. V takom prípade si pozrite pokyny na používanie funkcie Manual Control (manuálne ovládanie) (postup v Controls IOM).
- Keď okruh beží pri plnom zaťažení, overte, či je teplota kvapaliny vystupujúcej z chladiča v rozsahu 6 °C ± 1,5.
- Zmerajte teplotu vzduchu vstupujúceho do kondenzátorových cievok. Zmerajte teplotu kvapaliny za T-kusom, kde sa spájajú dve kvapalinové potrubia cievky. Teplota kvapaliny by mala byť o 8,3 °C vyššia ako teplota vzduchu vstupujúceho do cievok. Ak je rozdiel väčší a priezorník bliká, okruh je nenabitý. Prejdite na krok 5.
- Pridajte 2,5 kg tekutej náplne do chladiča pomocou plniaceho ventilu umiestneného v hornej časti chladiča.
- Nechajte systém stabilizovať a potom znova skontrolujte teplotu kvapaliny. Opakujte krok 5 podľa potreby a medzi jednotlivými pridaním náplne nechajte systém stabilizovať. Pomaly pridávajte náplň, keď sa priezorník začne čistiť, aby ste predišli preplneniu.
Teplota priestoru, teplota vonkajšieho vzduchu (voliteľné)
Tieto teploty sa používajú na meranie teploty priestoru alebo teploty vonkajšieho vzduchu, v uvedenom poradí, na účely riadenia resetovania na základe možností resetovania teploty vonkajšieho vzduchu alebo teploty priestoru.
Prevodníky tlaku
Výtlačný tlak (okruhy A & B)
Tento vstup sa používa na meranie vysokotlakovej strany každého okruhu jednotky.
Používa sa na poskytnutie tlaku na nahradenie manometra výtlačného tlaku a na riadenie tlaku hlavy.
Sací tlak (okruhy A & B)
Tento vstup sa používa na meranie tlaku nízkotlakovej strany jednotky. Používa sa na poskytnutie tlaku na nahradenie manometra sacieho tlaku.
Tlak oleja (každý kompresor)
Tento vstup sa používa na meranie tlaku oleja každého kompresora jednotky. Nachádza sa na olejovom tlakovom porte každého kompresora.
Tlak ekonomaizéra (okruhy A & B)
Tento vstup sa používa na monitorovanie rozdielu tlaku oleja dodávaného do kompresora.
Plnenie oleja - dopĺňanie nízkej hladiny oleja
Pridanie olejovej náplne do systémov 30HX/GX
- Ak sa jednotka 30HXC/GX opakovane vypína z dôvodu nízkej hladiny oleja (Low oilLevel), môže to znamenať nedostatočnú náplň oleja. Mohlo by to tiež jednoducho znamenať, že olej sa práve získava z nízkotlakovej strany systému.
- Začnite spustením jednotky pri plnom zaťažení na jednu a pol hodiny.
- Po 1-1/2 hodine prevádzky nechajte jednotku reštartovať a normálne bežať. Ak alarmy nízkej hladiny oleja (Low Oil Level) pretrvávajú, jednotka má nízku náplň oleja. Pridajte olej do odlučovača oleja pomocou olejového plniaceho ventilu v spodnej časti kondenzátora (30HXC) alebo v spodnej časti odlučovača oleja (30GX).
Nepridávajte olej na žiadnom inom mieste, pretože to môže viesť k nesprávnej prevádzke jednotky.
- Uistite sa, že jednotka pri pridávaní oleja nebeží, pretože to uľahčí proces plnenia oleja. Pretože je systém pod tlakom, aj keď jednotka nebeží, bude potrebné použiť vhodné čerpadlo (ručné alebo elektrické čerpadlo) na pridanie oleja do systému.
- Pomocou vhodného čerpadla pridajte do systému 2 litre oleja Polyolester (ŠPECIFIKÁCIA CARRIER: PP47-32). Uistite sa, že bezpečnostný spínač hladiny oleja NIE JE premostený, a nechajte jednotku reštartovať a normálne bežať.
- Ak problémy s nízkou hladinou oleja pretrvávajú, pridajte ďalší 1 alebo 2 litre oleja. Ak je potrebné pridať do systému viac ako 4 litre oleja, kontaktujte servisné oddelenie vášho distribútora Carrier.
Pri prenose náplne chladiva do skladovacej jednotky sa môže olej preniesť, keď jednotka nefunguje. Najskôr znova použite množstvo preneseného chladiva. Po vypustení oleja doplňte iba vypustené množstvo (nadmerná náplň oleja môže narušiť správnu prevádzku jednotky).
Výmena integrovaného olejového filtra
Integrovaný olejový filter v skrutkovom kompresore 06N je špecifikovaný tak, aby poskytoval vysokú úroveň filtrácie (3 µ), ktorá je potrebná pre dlhú životnosť ložísk. Keďže čistota systému je kritická pre spoľahlivú prevádzku systému, v olejovom potrubí na výstupe z odlučovača oleja je aj predfilter (7 µ).
Číslo dielu náhradnej vložky integrovaného olejového filtra je:
Číslo dielu Carrier (vrátane filtra a O-krúžku): 06NA 660016S
Harmonogram výmeny filtra
Filter by sa mal skontrolovať po prvých 500 hodinách prevádzky a potom každých 2000 hodín. Filter by sa mal vymeniť kedykoľvek, keď tlakový rozdiel na filtri presiahne 2,1 baru.
Pokles tlaku na filtri je možné určiť meraním tlaku na servisnom porte filtra a na olejovom tlakovom porte. Rozdiel medzi týmito dvoma tlakmi bude pokles tlaku na filtri, spätnom ventile a solenoidovom ventile. Pokles tlaku na spätnom ventile a solenoidovom ventile je približne 0,4 baru, čo by sa malo odčítať od dvoch meraní tlaku oleja, aby sa získal pokles tlaku olejového filtra. Pokles tlaku olejového filtra by sa mal skontrolovať po každom vypnutí kompresora z dôvodu nízkeho tlaku oleja.
Postup výmeny filtra
- Nasledujúce kroky popisujú správny spôsob výmeny integrovaného olejového filtra.
- Vypnite a zablokujte kompresor.
- Manuálne vynúťte prevádzku olejového solenoidového ventilu, aby ste pritlačili vnútornú uzávierku ventilu na jej sedlo.
- Zatvorte servisný ventil olejového filtra. Odvzdušnite tlak z dutiny filtra cez servisný port filtra.
- Odstráňte zátku olejového filtra. Odstráňte starý olejový filter.
- Pred inštaláciou nového olejového filtra "namažte" O-krúžok olejom. Nainštalujte filter a vymeňte zátku.
Pred uzavretím systému mazacieho oleja využite príležitosť na výmenu aj predfiltra. - Po dokončení evakuujte dutinu filtra cez servisný port filtra. Otvorte servisný ventil filtra. Odstráňte všetky blokovacie zariadenia kompresora, kompresor je pripravený na návrat do prevádzky.
Výmena kompresora
Riadenie otáčania kompresora
Správne otáčanie kompresora je jednou z najkritickejších aplikačných úvah. Reverzné otáčanie, dokonca aj na veľmi krátku dobu, poškodzuje kompresor.
Schéma ochrany proti reverznému otáčaniu musí byť schopná určiť smer otáčania a zastaviť kompresor do 300 milisekúnd. Reverzné otáčanie sa najpravdepodobnejšie vyskytne vždy, keď sa naruší zapojenie svoriek kompresora.
Na minimalizáciu možnosti reverzného otáčania sa musí použiť nasledujúci postup. Znova zapojte napájacie káble do kolíka svorky kompresora tak, ako boli pôvodne zapojené.
Na výmenu kompresora je ku kompresoru priložený nízkotlakový spínač. Tento nízkotlakový spínač by sa mal dočasne nainštalovať ako pevná poistka na vysokotlakovú časť kompresora. Účelom tohto spínača je chrániť kompresor pred akýmikoľvek chybami zapojenia na kolíku svorky kompresora. Elektrický kontakt spínača by bol zapojený sériovo s vysokotlakovým spínačom. Spínač zostane na svojom mieste, kým sa kompresor nespustí a neoverí sa smer otáčania; v tomto bode sa spínač odstráni.
Spínač, ktorý bol vybraný na detekciu reverzného otáčania, je číslo dielu Carrier HK01CB001. Je k dispozícii ako súčasť "Inštalačného balíka kompresora" (číslo dielu 06NA 660 013). Tento spínač otvára kontakty, keď tlak klesne pod 50 mm vákua. Spínač je typ s manuálnym resetom, ktorý je možné resetovať po tom, čo tlak opäť stúpne nad 70 kPa. Je kritické, aby bol spínač typ s manuálnym resetom, aby sa predišlo krátkemu cyklovaniu kompresora v opačnom smere.
Riešenie problémov
Pri diagnostike a odstraňovaní problémov s EXD/ekonomaizérom postupujte podľa nasledujúcich krokov.
Na jednotkách 30HXC/GX s ekonomaizérmi overte, či je otvorený ventil pre bublinkovú trubicu (spodná časť ekonomaizéra). Najskôr skontrolujte činnosť motora EXD (pozri postup v Controls IOM). Mali by ste byť schopní cítiť pohyb ovládača priložením ruky na telo EXD alebo ekonomaizéra (ovládač sa nachádza približne v jednej polovici až dvoch tretinách cesty nahor od spodnej časti plášťa ekonomaizéra). Mali by ste cítiť silné klepanie vychádzajúce z ovládača, keď dosiahne hornú časť svojho zdvihu (dá sa počuť, ak je okolie relatívne tiché). Ovládač by mal klepať, keď dosiahne spodnú časť svojho zdvihu. Ak sa domnievate, že ventil nefunguje správne, kontaktujte servisné oddelenie Carrier pre ďalšie kontroly:
- výstupné signály na module EXD
- káblové pripojenia (kontinuita a tesné pripojenie na všetkých kolíkových svorkách)
- odpor vinutia motora EXD.


Schválenie systému environmentálneho manažérstva
Číslo objednávky: 13173-76, 03 1999 - Nahrádza číslo: 13173-76, marec 1998
Výrobca si vyhradzuje právo zmeniť akékoľvek špecifikácie produktu bez predchádzajúceho upozornenia.
Výrobca: Carrier s.a., Montluel, Francúzsko.
Vytlačené v Holandsku na papieri bez chlóru.

Stiahnuť návod
Tu si môžete stiahnuť úplnú verziu návodu vo formáte pdf, môže obsahovať ďalšie bezpečnostné pokyny, informácie o záruke, pravidlá FCC atď.
Stiahnuť Príručka pre skrutkový kompresor Carrier 30HXC/30GX