Manuale del compressore a vite Carrier 30HXC/30GX
- 1 INTRODUZIONE
- 2 CONSIDERAZIONI SULLA SICUREZZA
- 3 DIMENSIONI, SPAZI LIBERI, DISTRIBUZIONE DEL PESO
- 4 DATI FISICI 30HXC
- 5 DATI ELETTRICI 30HXC
- 6 DATI ELETTRICI PER UNITÀ CON ALTE TEMPERATURE DI CONDENSAZIONE
- 7 DATI FISICI 30GX
- 8 DATI ELETTRICI 30GX
-
9
DATI APPLICATIVI
- 9.1 Intervallo operativo dell'unità
- 9.2 Flusso minimo di acqua refrigerata
- 9.3 Flusso massimo di acqua refrigerata
- 9.4 Evaporatore a flusso variabile
- 9.5 Volume minimo di acqua del sistema
- 9.6 Portata del refrigeratore (l/s)
- 9.7 Portata del condensatore (l/s)
- 9.8 Curva di perdita di carico dell'evaporatore
- 9.9 Curva di perdita di carico del condensatore
- 9.10 Regolatori di flusso
- 10 INSTALLAZIONE
- 11 ISTRUZIONI DI SOLLEVAMENTO
- 12 CARATTERISTICHE ELETTRICHE
- 13 SEZIONI DEI CAVI RACCOMANDATE
-
14
COMPONENTI PRINCIPALI DEL SISTEMA E DATI DI FUNZIONAMENTO
- 14.1 Compressore a vite gemella con ingranaggi
- 14.2 Evaporatore
- 14.3 Condensatore e separatore d'olio (30HXC)
- 14.4 Separatore d'olio (30GX)
- 14.5 Dispositivo di espansione elettronico (Electronic Expansion Device) (EXD)
- 14.6 Economizzatore
- 14.7 Pompe dell'olio
- 14.8 Valvole di raffreddamento del motore
- 14.9 Sensori
- 14.10 Termistori
- 14.11 Disposizione delle ventole 30GX
- 15 MANUTENZIONE
- 16 Risoluzione dei problemi
- 17 Scarica manuale
- 18 In altre lingue

INTRODUZIONE
Prima dell'avvio iniziale delle unità 30HXC e 30GX, le persone coinvolte nell'avvio, nel funzionamento e nella manutenzione devono avere una conoscenza approfondita di queste istruzioni e di altri dati di lavoro necessari. Questo libro fornisce una panoramica per consentirti di familiarizzare con il sistema di controllo prima di eseguire le procedure di avvio. Le procedure in questo manuale sono disposte nella sequenza richiesta per un corretto avvio e funzionamento della macchina.
CONSIDERAZIONI SULLA SICUREZZA
I refrigeratori di liquidi 30HXC e 30GX sono progettati per fornire un servizio sicuro e affidabile quando vengono utilizzati entro le specifiche di progettazione. Quando si utilizza questa apparecchiatura, usare buon senso e precauzioni di sicurezza per evitare danni alle apparecchiature e alle proprietà o lesioni al personale.
Assicurarsi di comprendere e seguire le procedure e le precauzioni di sicurezza contenute nelle istruzioni della macchina, nonché quelle elencate in questa guida.
NON SFOGARE le valvole di sicurezza del refrigerante all'interno di un edificio. L'uscita dalla valvola di sicurezza deve essere sfogata all'esterno. L'accumulo di refrigerante in uno spazio chiuso può spostare l'ossigeno e causare asfissia o esplosioni.
FORNIRE un'adeguata ventilazione, soprattutto per gli spazi chiusi e con soffitti bassi. L'inalazione di alte concentrazioni di vapore è dannosa e può causare irregolarità cardiache, perdita di coscienza o morte. Il vapore è più pesante dell'aria e riduce la quantità di ossigeno disponibile per la respirazione. Il prodotto causa irritazione agli occhi e alla pelle. I prodotti di decomposizione sono pericolosi.
NON UTILIZZARE OSSIGENO per spurgare le tubazioni o per pressurizzare una macchina per qualsiasi scopo. L'ossigeno gassoso reagisce violentemente con olio, grasso e altre sostanze comuni.
NON SUPERARE MAI le pressioni di prova specificate, VERIFICARE la pressione di prova ammissibile controllando la documentazione di istruzioni e le pressioni di progetto sulla targhetta dell'apparecchiatura.
NON UTILIZZARE aria per i test di tenuta. Utilizzare solo refrigerante o azoto secco.
NON ESCLUDERE alcun dispositivo di sicurezza.
ASSICURARSI che tutti i dispositivi di scarico della pressione siano installati correttamente prima di utilizzare qualsiasi macchina.
NON SALDARE O TAGLIARE A FIAMMA alcuna linea o recipiente del refrigerante fino a quando tutto il refrigerante (liquido e vapore) non è stato rimosso dal refrigeratore. Le tracce di vapore devono essere spostate con azoto secco e l'area di lavoro deve essere ben ventilata. Il refrigerante a contatto con una fiamma libera produce gas tossici.
NON lavorare su apparecchiature sotto tensione a meno che tu non sia un elettricista qualificato.
NON LAVORARE su componenti elettrici, inclusi pannelli di controllo, interruttori, relè, ecc., fino a quando non sei sicuro che TUTTA L'ALIMENTAZIONE SIA SPENTA e la tensione residua possa fuoriuscire da condensatori o componenti a stato solido.
BLOCCARE APERTI E ETICHETTARE i circuiti elettrici durante la manutenzione. SE IL LAVORO VIENE INTERROTTO, verificare che tutti i circuiti siano diseccitati prima di riprendere il lavoro.
NON sifonare il refrigerante.
EVITARE DI VERSARE refrigerante liquido sulla pelle o di farlo entrare negli occhi. UTILIZZARE OCCHIALI DI SICUREZZA. Lavare eventuali fuoriuscite dalla pelle con acqua e sapone. Se il refrigerante liquido entra negli occhi,
LAVARE IMMEDIATAMENTE GLI OCCHI con acqua e consultare un medico.
NON APPLICARE MAI una fiamma libera o vapore vivo al contenitore del refrigerante. Può derivarne una pericolosa sovrapressione. Se è necessario riscaldare il refrigerante, utilizzare solo acqua tiepida.
NON RIUTILIZZARE bombole usa e getta (non restituibili) o tentare di ricaricarle. È PERICOLOSO E ILLEGALE. Quando le bombole sono vuote, evacuare la pressione del gas rimanente, allentare il collare e svitare ed eliminare lo stelo della valvola. NON INCENERIRE.
CONTROLLARE IL TIPO DI REFRIGERANTE prima di aggiungere refrigerante alla macchina. L'introduzione del refrigerante sbagliato può causare danni o malfunzionamenti a questa macchina.
NON TENTARE DI RIMUOVERE raccordi, componenti, ecc., mentre la macchina è sotto pressione o mentre la macchina è in funzione. Assicurarsi che la pressione sia a 0 kPa prima di interrompere il collegamento del refrigerante.
ISPEZIONARE ACCURATAMENTE tutti i dispositivi di scarico, ALMENO UNA VOLTA ALL'ANNO. Se la macchina funziona in un'atmosfera corrosiva, ispezionare i dispositivi a intervalli più frequenti.
NON TENTARE DI RIPARARE O RICONDizionARE alcun dispositivo di scarico quando si riscontra corrosione o accumulo di materiale estraneo (ruggine, sporco, scaglie, ecc.) all'interno del corpo o del meccanismo della valvola. Sostituire il dispositivo.
NON installare dispositivi di scarico in serie o all'indietro.
NON CALPESTARE le tubazioni del refrigerante. Le tubazioni rotte possono oscillare e rilasciare refrigerante, causando lesioni personali.
NON scavalcare una macchina. Utilizzare una piattaforma o un'impalcatura.
UTILIZZARE ATTREZZATURE MECCANICHE (gru, paranco, ecc.) per sollevare o spostare componenti pesanti. Anche se i componenti sono leggeri, utilizzare attrezzature meccaniche quando c'è il rischio di scivolare o perdere l'equilibrio.
ESSERE CONSAPEVOLI che alcune disposizioni di avvio automatico POSSONO INSERIRE LA VENTOLA DELLA TORRE O LE POMPE. Aprire il sezionatore davanti alle ventole della torre o alle pompe.
UTILIZZARE solo parti di riparazione o di ricambio che soddisfino i requisiti del codice dell'apparecchiatura originale.
NON SFOGARE O SCARICARE le casse d'acqua contenenti salamoie industriali senza l'autorizzazione di un ente competente.
NON ALLENTARE i bulloni della cassa d'acqua fino a quando la cassa d'acqua non è stata completamente svuotata.
NON ALLENTARE un dado del premistoppa prima di aver verificato che il dado abbia un innesto filettato positivo.
ISPEZIONARE PERIODICAMENTE tutte le valvole, i raccordi e le tubazioni per corrosione, ruggine, perdite o danni.
FORNIRE un collegamento di DRENAGGIO nella linea di sfiato vicino a ciascun dispositivo di scarico della pressione per evitare un accumulo di condensa o acqua piovana.
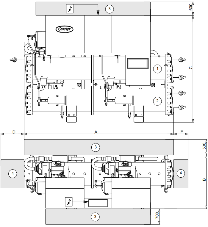
DIMENSIONI, SPAZI LIBERI, DISTRIBUZIONE DEL PESO
30HXC 080-190
30HXC080
30HXC090
30HXC100
30HXC110

- Evaporatore
- Condensatore
- Spazi liberi necessari per il funzionamento e la manutenzione
- Spazi liberi necessari per la rimozione dei tubi dello scambiatore di calore. Gli spazi liberi D ed E possono essere a sinistra o a destra.
Ingresso acqua
Uscita acqua
Alimentazione
kg: peso operativo totale
| A mm | B mm | C mm | D mm | E mm | kg | |
| 30HXC080 30HXC090 30HXC100 |
2705 | 950 | 1850 | 2360 | 1000 | 2447 2462 2504 |
| 30HXC110 | 2705 | 950 | 1900 | 2360 | 1000 | 2650 |
| 30HXC120 30HXC130 30HXC140 30HXC155 |
3535 | 950 | 1875 | 3220 | 1000 | 2846 2861 2956 2971 |
| 30HXC175 30HXC190 |
3550 | 950 | 2000 | 3220 | 1000 | 3283 3438 |
NOTA: fare riferimento ai disegni dimensionali certificati forniti con l'unità, quando si progetta un'installazione.
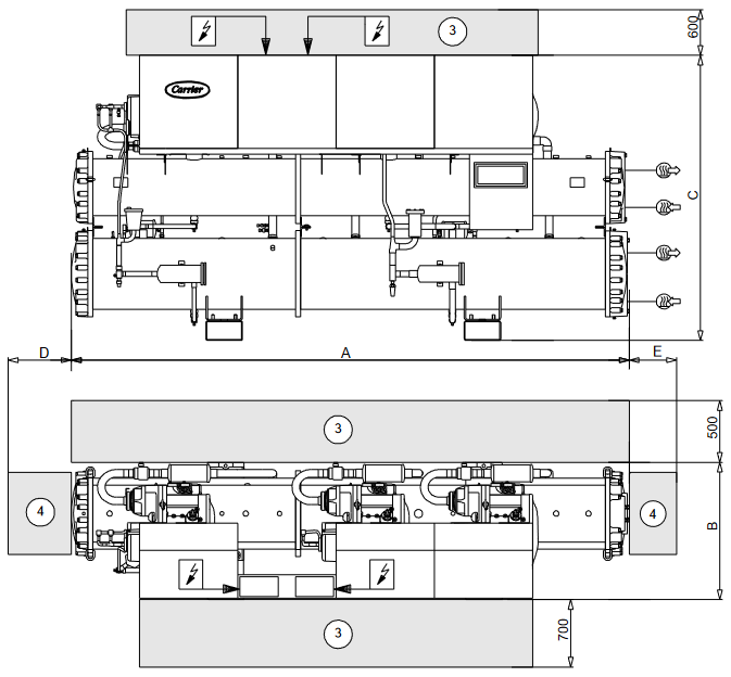
30HXC 200-375

- Evaporatore
- Condensatore
- Spazi liberi necessari per il funzionamento e la manutenzione
- Spazi liberi necessari per la rimozione dei tubi dello scambiatore di calore. Gli spazi liberi D ed E possono essere a sinistra o a destra.
Ingresso acqua
Uscita acqua
Alimentazione
kg: peso operativo totale
| A mm | B mm | C mm | D mm | E mm | kg | |
| 30HXC200 | 3975 | 980 | 2035 | 3620 | 1000 | 4090 |
| 30HXC230 30HXC260 30HXC285 |
3995 | 980 | 2116 | 3620 | 1000 | 4705 4815 4985 |
| 30HXC310 30HXC345 30HXC375 |
4490 | 980 | 2163 | 4120 | 1000 | 5760 5870 6105 |
NOTA: fare riferimento ai disegni dimensionali certificati forniti con l'unità, quando si progetta un'installazione.
30GX 082-182
30GX-082
30GX-092
30GX-102
30GX-112
30GX-122
30GX-132
30GX-152
30GX-162
30GX-182


- Spazi liberi necessari per il funzionamento e la manutenzione
- Spazi liberi necessari per la rimozione dei tubi dello scambiatore di calore. Gli spazi liberi possono essere a sinistra o a destra.
Ingresso acqua
Uscita acqua
Alimentazione
Uscita aria - non ostruire
kg: peso operativo totale
| A mm | B mm | kg | |
| 30GX082 30GX092 30GX102 |
2970 | 2215 | 3116 3157 3172 |
| 30GX112 30GX122 30GX132 |
3427 | 2045 | 3515 3531 3633 |
| 30GX152 30GX162 |
4342 | 2835 | 3920 3936 |
| 30GX182 | 5996 | 1820 | 4853 |
Installazione di più refrigeratori


Note:
- L'unità deve avere spazi liberi per il flusso d'aria come segue:
Superiore: non limitare in alcun modo - In caso di più refrigeratori (fino a quattro unità), il rispettivo spazio libero tra loro deve essere aumentato da 1830 a 2000 mm per il requisito di spazio laterale.
- Sono necessari spazi liberi per la rimozione dei tubi del refrigeratore.
NOTA: fare riferimento ai disegni dimensionali certificati forniti con l'unità, quando si progetta un'installazione.
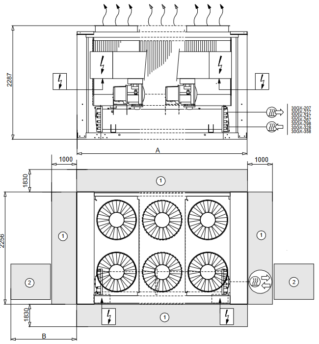
30GX 207-358
30GX-207
30GX-227
30GX-247
30GX-267
30GX-298
30GX-328
30GX-358

- Spazi liberi necessari per il funzionamento e la manutenzione
- Spazi liberi necessari per la rimozione dei tubi dello scambiatore di calore. Gli spazi liberi possono essere a sinistra o a destra.
Ingresso acqua
Uscita acqua
Alimentazione
Uscita aria - non ostruire
kg: peso operativo totale
| A mm | B mm | kg | |
| 30GX207 30GX227 |
5996 | 2895 | 5540 5570 |
| 30GX247 30GX267 |
6911 | 2470 | 6134 6365 |
| 30GX298 | 7826 | 2220 | 7354 |
| 30GX328 30GX358 |
8741 | 1250 | 7918 8124 |
Installazione di più refrigeratori


Note:
- L'unità deve avere spazi liberi per il flusso d'aria come segue:
Superiore: non limitare in alcun modo - In caso di più refrigeratori (fino a quattro unità), il rispettivo spazio libero tra loro deve essere aumentato da 1830 a 2000 mm per il requisito di spazio laterale.
- Sono necessari spazi liberi per la rimozione dei tubi del refrigeratore.
NOTA: fare riferimento ai disegni dimensionali certificati forniti con l'unità, quando si progetta un'installazione.
DATI FISICI 30HXC
| 30HXC | 080 | 090 | 100 | 110 | 120 | 130 | 140 | 155 | 175 | 190 | 200 | 230 | 260 | 285 | 310 | 345 | 375 | |
| Potenza frigorifera netta | kW | 292 | 321 | 352 | 389 | 426 | 464 | 514 | 550 | 607 | 663 | 716 | 822 | 918 | 996 | 1119 | 1222 | 1326 |
| Peso operativo | kg | 2447 | 2462 | 2504 | 2650 | 2846 | 2861 | 2956 | 2971 | 3283 | 3438 | 4090 | 4705 | 4815 | 4985 | 5760 | 5870 | 6105 |
| Refrigerante Circuito A/B |
HFC-134a | |||||||||||||||||
| kg | 39/36 | 39/36 | 37/32 | 38/38 | 57/55 | 59/50 | 56/50 | 59/52 | 58/61 | 60/70 | 110/58 | 118/63 | 120/75 | 120/75 | 108/110 | 110/110 | 110/120 | |
| Olio Circuito A/B |
Olio di poliestere CARRIER SPEC: PP 47-32 | |||||||||||||||||
| l | 15/15 | 15/15 | 15/15 | 15/15 | 15/15 | 15/15 | 15/15 | 15/15 | 15/15 | 15/15 | 30/15 | 30/15 | 30/15 | 30/15 | 30/30 | 30/30 | 30/30 | |
| Compressori | Power3 ermetico a doppia vite | |||||||||||||||||
| Circ. A, dimensione nom. per compressore** | 39 | 46 | 46 | 56 | 56 | 66 | 80 | 80 | 80 | 80+ | 66/56 | 80/56 | 80/80 | 80+/80+ | 80/66 | 80/80 | 80+/80+ | |
| Circ. B, dimensione nom. per compressore** | 39 | 39 | 46 | 46 | 56 | 56 | 56 | 66 | 80 | 80+ | 66 | 80 | 80 | 80+ | 80/66 | 80/80 | 80+/80+ | |
| Tipo di controllo | Controllo PRO-DIALOG Plus | |||||||||||||||||
| Numero di stadi di capacità | 6 | 6 | 6 | 6 | 6 | 6 | 6 | 6 | 6 | 6 | 8 | 8 | 8 | 8 | 10 | 10 | 10 | |
| Capacità minima | % | 19 | 19 | 21 | 19 | 21 | 19 | 17 | 19 | 21 | 21 | 14 | 14 | 14 | 14 | 10 | 10 | 10 |
| Evaporatore | Tipo a fascio tubiero, con tubi di rame alettati internamente | |||||||||||||||||
| Volume netto d'acqua | l | 65 | 65 | 73 | 87 | 81 | 81 | 91 | 91 | 109 | 109 | 140 | 165 | 181 | 181 | 203 | 229 | 229 |
| Collegamenti acqua | Flangia piatta fornita in fabbrica, da saldare in loco | |||||||||||||||||
| Entrata e uscita | in. | 4 | 4 | 4 | 5 | 5 | 5 | 5 | 5 | 5 | 5 | 6 | 6 | 6 | 6 | 8 | 8 | 8 |
| Scarico e sfiato (NPT) | in. | 3/8 | 3/8 | 3/8 | 3/8 | 3/8 | 3/8 | 3/8 | 3/8 | 3/8 | 3/8 | 3/8 | 3/8 | 3/8 | 3/8 | 3/8 | 3/8 | 3/8 |
| Massima pressione operativa lato acqua | kPa | 1000 | 1000 | 1000 | 1000 | 1000 | 1000 | 1000 | 1000 | 1000 | 1000 | 1000 | 1000 | 1000 | 1000 | 1000 | 1000 | 1000 |
| Condensatori | Tipo a fascio tubiero, con tubi di rame alettati internamente | |||||||||||||||||
| Volume netto d'acqua | l | 58 | 58 | 58 | 58 | 92 | 92 | 110 | 110 | 132 | 132 | 162 | 208 | 208 | 208 | 251 | 251 | 251 |
| Collegamenti acqua | Flangia piatta fornita in fabbrica, da saldare in loco | |||||||||||||||||
| Entrata e uscita | in. | 5 | 5 | 5 | 5 | 5 | 5 | 5 | 5 | 6 | 6 | 6 | 6 | 6 | 6 | 8 | 8 | 8 |
| Scarico e sfiato (NPT) | in. | 3/8 | 3/8 | 3/8 | 3/8 | 3/8 | 3/8 | 3/8 | 3/8 | 3/8 | 3/8 | 3/8 | 3/8 | 3/8 | 3/8 | 3/8 | 3/8 | 3/8 |
| Massima pressione operativa lato acqua | kPa | 1000 | 1000 | 1000 | 1000 | 1000 | 1000 | 1000 | 1000 | 1000 | 1000 | 1000 | 1000 | 1000 | 1000 | 1000 | 1000 | 1000 |
* Condizioni Eurovent standardizzate: temperature dell'acqua in entrata/uscita dell'evaporatore = 12°C/7°C, temperature dell'acqua in entrata/uscita del condensatore = 30°C/35°C Potenza frigorifera netta: Potenza frigorifera lorda meno il calore della pompa dell'acqua contro la caduta di pressione interna dell'evaporatore. ** La dimensione del compressore corrisponde alla capacità nominale in tonnellate (1 tonnellata = 3,517 kW).
DATI ELETTRICI 30HXC
| 30HXC | 080 | 090 | 100 | 110 | 120 | 130 | 140 | 155 | 175 | 190 | 200 | 230 | 260 | 285 | 310 | 345 | 375 | |
| Circuito di potenza | ||||||||||||||||||
| Alimentazione nominale* | V-ph-Hz | 400-3-50 | ||||||||||||||||
| Intervallo di tensione | V | 360-440 | ||||||||||||||||
| Alimentazione del circuito di controllo | Il circuito di controllo è alimentato tramite il trasformatore installato in fabbrica | |||||||||||||||||
| Potenza nominale assorbita* | kW | 59 | 67 | 74 | 83 | 88 | 99 | 112 | 123 | 135 | 146 | 156 | 179 | 201 | 219 | 245 | 274 | 298 |
| Corrente nominale assorbita* | A | 98 | 111 | 124 | 139 | 148 | 166 | 186 | 204 | 226 | 242 | 259 | 291 | 335 | 367 | 408 | 456 | 498 |
| Potenza massima assorbita** | kW | 76 | 83 | 91 | 101 | 111 | 121 | 135 | 145 | 158 | 181 | 187 | 214 | 237 | 272 | 290 | 316 | 362 |
| Circuito A | kW | - | - | - | - | - | - | - | - | - | - | 121 | 135 | 158 | 181 | 145 | 158 | 181 |
| Circuito B | kW | - | - | - | - | - | - | - | - | - | - | 66 | 79 | 79 | 91 | 145 | 158 | 181 |
| Cosfi, unità a pieno carico | 0.87 | 0.87 | 0.87 | 0.87 | 0.87 | 0.87 | 0.87 | 0.87 | 0.87 | 0.87 | 0.87 | 0.87 | 0.87 | 0.87 | 0.87 | 0.87 | 0.87 | |
| Corrente massima assorbita (Un - 10%)*** | A | 138 | 152 | 166 | 184 | 202 | 221 | 245 | 264 | 288 | 330 | 341 | 389 | 432 | 495 | 528 | 576 | 660 |
| Circuito A | A | - | - | - | - | - | - | - | - | - | - | 221 | 245 | 288 | 330 | 264 | 288 | 330 |
| Circuito B | A | - | - | - | - | - | - | - | - | - | - | 120 | 144 | 144 | 165 | 264 | 288 | 330 |
| Corrente massima assorbita (Un)*** | A | 125 | 138 | 151 | 167 | 184 | 201 | 223 | 240 | 262 | 300 | 310 | 354 | 393 | 450 | 480 | 524 | 600 |
| Circuito A | A | - | - | - | - | - | - | - | - | - | - | 201 | 223 | 262 | 300 | 240 | 262 | 300 |
| Circuito B | A | - | - | - | - | - | - | - | - | - | - | 109 | 131 | 131 | 150 | 240 | 262 | 300 |
| Corrente massima di spunto, unità std. (Un)**** | A | 172 | 197 | 209 | 235 | 252 | 283 | 318 | 335 | 357 | 420 | 806 | 938 | 977 | 1156 | 1064 | 1108 | 1306 |
| Circuito A | A | - | - | - | - | - | - | - | - | - | - | 697 | 807 | 846 | 1006 | 824 | 846 | 1006 |
| Circuito B | A | - | - | - | - | - | - | - | - | - | - | 605 | 715 | 715 | 856 | 824 | 846 | 1006 |
| Corrente massima di spunto/rapporto corrente massima assorbita, unità | 1.37 | 1.42 | 1.39 | 1.41 | 1.37 | 1.41 | 1.43 | 1.40 | 1.36 | 1.40 | 2.60 | 2.65 | 2.49 | 2.57 | 2.22 | 2.12 | 2.18 | |
| Corrente massima di spunto/rapporto corrente massima assorbita, circuito A | - | - | - | - | - | - | - | - | - | - | 3.47 | 3.62 | 3.23 | 3.35 | 3.43 | 3.23 | 3.35 | |
| Corrente massima di spunto/rapporto corrente massima assorbita, circuito B | - | - | - | - | - | - | - | - | - | - | 5.55 | 5.46 | 5.46 | 5.71 | 3.43 | 3.23 | 3.35 | |
| Corrente massima di spunto - avviamento a corrente ridotta (Un) **** | A | std. | std. | std. | std. | std. | std. | std. | std. | std. | std. | 601 | 643 | 682 | 760 | 769 | 813 | 910 |
| Circuito A | A | std. | std. | std. | std. | std. | std. | std. | std. | std. | std. | 492 | 512 | 551 | 610 | 529 | 551 | 610 |
| Circuito B | A | std. | std. | std. | std. | std. | std. | std. | std. | std. | std. | 330 | 370 | 370 | 385 | 529 | 551 | 610 |
| Corrente massima di spunto - rapporto avviamento a corrente ridotta/corrente massima assorbita, unità | std. | std. | std. | std. | std. | std. | std. | std. | std. | std. | 1.94 | 1.82 | 1.74 | 1.69 | 1.60 | 1.55 | 1.52 | |
| Circuito A | std. | std. | std. | std. | std. | std. | std. | std. | std. | std. | 2.45 | 2.30 | 2.10 | 2.03 | 2.20 | 2.10 | 2.03 | |
| Circuito B | std. | std. | std. | std. | std. | std. | std. | std. | std. | std. | 3.03 | 2.83 | 2.83 | 2.57 | 2.20 | 2.10 | 2.03 | |
| Corrente di tenuta di cortocircuito trifase | kA | 25 | 25 | 25 | 25 | 25 | 25 | 25 | 25 | 25 | 25 | N/A | N/A | N/A | N/A | N/A | N/A | N/A |
| Circuito A | kA | - | - | - | - | - | - | - | - | - | - | 25 | 25 | 25 | 25 | 25 | 25 | 25 |
| Circuito B | kA | - | - | - | - | - | - | - | - | - | - | 15 | 15 | 15 | 15 | 25 | 25 | 25 |
| Capacità di standby del cliente, unità o circ. A, per i collegamenti della pompa dell'acqua dell'evaporatore† | kW | 8 | 8 | 8 | 11 | 11 | 11 | 15 | 15 | 15 | 15 | 15 | 18 | 18 | 30 | 30 | 30 | 30 |
* Condizioni Eurovent standard: Temperatura dell'acqua in ingresso/uscita dell'evaporatore 12°C e 7°C. Temperatura dell'acqua in ingresso/uscita del condensatore 30°C/35°C.
** Potenza assorbita, compressore, ai limiti operativi dell'unità (temperatura dell'acqua in ingresso/uscita dell'evaporatore = 15°C/10°C, temperatura dell'acqua in ingresso/uscita del condensatore = 40°C/45°C) e una tensione nominale di 400 V (dati riportati sulla targhetta dell'unità).
*** Corrente operativa massima dell'unità alla potenza massima assorbita dall'unità.
**** Corrente di spunto istantanea massima (corrente operativa massima del compressore(i) più piccolo(i) + corrente di rotore bloccato o corrente di avviamento ridotta del compressore più grande)
† Corrente e potenza assorbite non incluse nei valori sopra indicati.
N/A Non disponibile
Compressori
| Reference | Size | I nom. | MHA | LRA | LRA (Y) | LRA (S) 1 cp. | LRA (S) 2 cp. |
| 06NW2146S7N | 39 | 48 | 69 | 344 | 109 | 125 | - |
| 06NW2174S7N | 46 | 58 | 83 | 423 | 134 | 154 | - |
| 06NW2209S7N | 56 | 71 | 101 | 506 | 160 | 260 | 350 |
| 06NW2250S7N | 66 | 87 | 120 | 605 | 191 | 330 | 400 |
| 06NW2300S5N | 80 | 104 | 144 | 715 | 226 | 370 | 420 |
| 06NW2300S5E | 80+ | 111 | 165 | 856 | 270 | 385 | 460 |
Legenda:
| 06NW | Compressore per unità raffreddate ad acqua |
| N | Compressore non economizzato |
| E | Compressore economizzato |
| INOM | Assorbimento medio di corrente del compressore in condizioni Eurovent |
| MHA | Must hold amperes (corrente operativa massima) a 360 V |
| LRA | Corrente di rotore bloccato con avviamento diretto |
| LRA (Y) | Corrente di rotore bloccato a corrente ridotta (modalità di avviamento stella/triangolo) |
| LRA (S) 1 cp. | Avviamento con corrente ridotta con starter elettronico (durata di avviamento 3 secondi max.) per un compressore per circuito |
| LRA (S) 2 cp. | Avviamento con corrente ridotta con starter elettronico (durata di avviamento 3 secondi max.) per due compressori per circuito |
DATI ELETTRICI PER UNITÀ CON ALTE TEMPERATURE DI CONDENSAZIONE
Opzioni 30HXC 150 e 150A
| 30HXC | 080 | 090 | 100 | 110 | 120 | 130 | 140 | 155 | 175 | 190 | 200 | 230 | 260 | 285 | 310 | 345 | 375 | |
| Circuito di potenza | ||||||||||||||||||
| Alimentazione nominale* | V-ph-Hz | 400-3-50 | ||||||||||||||||
| Intervallo di tensione | V | 360-440 | ||||||||||||||||
| Alimentazione del circuito di controllo | Il circuito di controllo è alimentato tramite il trasformatore installato in fabbrica | |||||||||||||||||
| Potenza assorbita massima** | kW | 104 | 117 | 131 | 145 | 159 | 174 | 194 | 211 | 230 | 263 | 271 | 310 | 345 | 395 | 422 | 460 | 526 |
| Circuito A | kW | - | - | - | - | - | - | - | - | - | - | 175 | 195 | 230 | 263 | 211 | 230 | 263 |
| Circuito B | kW | - | - | - | - | - | - | - | - | - | - | 96 | 115 | 115 | 132 | 211 | 230 | 263 |
| Corrente massima assorbita (Un - 10%)*** | A | 190 | 215 | 240 | 265 | 290 | 320 | 355 | 385 | 420 | 480 | 495 | 564 | 630 | 720 | 770 | 840 | 960 |
| Circuito A | A | - | - | - | - | - | - | - | - | - | - | 320 | 355 | 420 | 480 | 385 | 420 | 480 |
| Circuito B | A | - | - | - | - | - | - | - | - | - | - | 175 | 210 | 210 | 240 | 385 | 420 | 480 |
| Corrente massima assorbita (Un)*** | A | 173 | 195 | 218 | 241 | 264 | 291 | 323 | 350 | 382 | 436 | 450 | 514 | 573 | 655 | 700 | 764 | 873 |
| Circuito A | A | - | - | - | - | - | - | - | - | - | - | 291 | 323 | 382 | 436 | 350 | 382 | 436 |
| Circuito B | A | - | - | - | - | - | - | - | - | - | - | 159 | 191 | 191 | 218 | 350 | 382 | 436 |
| Corrente di spunto massima, unità std. (Un)**** | A | 277 | 312 | 335 | 379 | 402 | 435 | 519 | 546 | 578 | 618 | 1251 | 1549 | 1608 | 1701 | 1735 | 1799 | 1920 |
| Circuito A | A | - | - | - | - | - | - | - | - | - | - | 1092 | 1358 | 1417 | 1483 | 1385 | 1417 | 1483 |
| Circuito B | A | - | - | - | - | - | - | - | - | - | - | 960 | 1226 | 1226 | 1265 | 1385 | 1417 | 1483 |
| Corrente di spunto massima/rapporto corrente massima assorbita, unità | 1.61 | 1.60 | 1.54 | 1.57 | 1.52 | 1.49 | 1.61 | 1.56 | 1.51 | 1.42 | 2.78 | 3.02 | 2.81 | 2.60 | 2.48 | 2.36 | 2.20 | |
| Corrente di spunto massima/rapporto corrente massima assorbita, circuito A | - | - | - | - | - | - | - | - | - | - | 3.75 | 4.21 | 3.71 | 3.40 | 3.96 | 3.71 | 3.40 | |
| Corrente di spunto massima/rapporto corrente massima assorbita, circuito B | - | - | - | - | - | - | - | - | - | - | 6.03 | 6.42 | 6.42 | 5.80 | 3.96 | 3.71 | 3.40 | |
| Corrente di spunto massima - avviamento a corrente ridotta (Un) **** | A | std. | std. | std. | std. | std. | std. | std. | std. | std. | std. | N/A | N/A | N/A | N/A | N/A | N/A | N/A |
| Corrente di tenuta al cortocircuito trifase | kA | 25 | 25 | 25 | 25 | 25 | 25 | 25 | 25 | 25 | 25 | N/A | N/A | N/A | N/A | N/A | N/A | N/A |
| Circuito A | kA | - | - | - | - | - | - | - | - | - | - | 25 | 25 | 25 | 25 | 25 | 25 | 25 |
| Circuito B | kA | - | - | - | - | - | - | - | - | - | - | 15 | 15 | 15 | 15 | 25 | 25 | 25 |
| Capacità di standby del cliente, unità o circ. A, per collegamenti pompa acqua evaporatore† | kW | 8 | 8 | 8 | 11 | 11 | 11 | 15 | 15 | 15 | 15 | 15 | 18 | 18 | 30 | 30 | 30 | 30 |
** Potenza assorbita, compressore, ai limiti operativi dell'unità (temperatura acqua entrante/uscente evaporatore = 15°C/10°C, temperatura acqua entrante/uscente condensatore = 40°C/45°C) e una tensione nominale di 400 V (dati riportati sulla targa dati dell'unità).
*** Corrente operativa massima dell'unità alla potenza assorbita massima dell'unità.
**** Corrente di spunto istantanea massima (corrente operativa massima del compressore(i) più piccolo(i) + corrente di rotore bloccato o corrente di avviamento ridotta del compressore più grande)
† Corrente e potenza assorbite non incluse nei valori sopra.
N/A Non disponibile
Le unità 30HXC 080-375 per alte temperature di condensazione derivano direttamente dai modelli standard. Il loro campo di applicazione è lo stesso delle unità standard, ma consente il funzionamento a temperature dell'acqua in uscita dal condensatore fino a 63°C. Il controllo PRO-DIALOG offre tutti i vantaggi delle unità standard, oltre al controllo della temperatura dell'acqua in uscita dal condensatore.
Le principali modifiche sono:
- Uso di compressori 30GX
- Modifica dei componenti elettrici per funzionare con compressori per alte temperature di condensazione.
- Modifica degli scambiatori di calore per soddisfare i requisiti del codice di pressione (se necessario).
Opzione 150
Queste unità sono progettate per applicazioni tradizionali per unità raffreddate ad acqua, ma per temperature dell'acqua in uscita dal condensatore più elevate di 45°C.
Come le unità standard, sono dotate di sensori di temperatura dell'acqua in entrata e in uscita dal condensatore, installati sulla tubazione.
È possibile controllare la macchina all'uscita dell'acqua del condensatore, richiedendo una modifica della configurazione in fabbrica e l'uso di un dispositivo di inversione dell'ingresso di riscaldamento/raffreddamento.
Opzione 150A
Queste unità sono progettate per pompe di calore acqua-acqua.
Sono configurate in fabbrica come pompe di calore (controllo riscaldamento/raffreddamento in funzione del dispositivo di inversione remoto). Il condensatore incorpora un isolamento termico identico a quello dell'evaporatore.
Informazioni tecniche
Tutte le informazioni sono identiche a quelle delle unità 30HXC standard, ad eccezione dei seguenti paragrafi.
Selezione
Non ci sono condizioni nominali per questo tipo di unità. La selezione viene effettuata utilizzando il catalogo elettronico corrente.
Dimensioni
Queste sono identiche a quelle delle unità 30HXC standard. L'unica differenza è nel diametro del collegamento del cablaggio di campo in entrata, descritto nel capitolo "Selezione raccomandata". Fare riferimento ai disegni dimensionali per queste unità, prima di procedere con il cablaggio.
Compressore
Vedere la tabella dei compressori 30GX.
Opzioni e accessori
Tutte le opzioni disponibili per le unità 30HXC standard sono compatibili, tranne:
| Opzione 5, unità a salamoia | Unità speciale |
| Opzione 25, avviamento graduale, unità 30HXC 200-375 | Non disponibile |
Attenzione:
Se le unità hanno due diverse modalità operative - una con alta temperatura di condensazione e l'altra con bassa temperatura di condensazione - e la transizione viene effettuata con l'unità in funzione, la temperatura non deve variare di più di 3 K al minuto. Nei casi in cui ciò non sia possibile, si raccomanda di passare attraverso un interruttore di avvio/arresto dell'unità (avvio/arresto remoto disponibile per le unità standard).
DATI FISICI 30GX
| 30GX | 082 | 092 | 102 | 112 | 122 | 132 | 152 | 162 | 182 | 207 | 227 | 247 | 267 | 298 | 328 | 358 | ||
| Capacità di raffreddamento netta | kW | 285 | 309 | 332 | 388 | 417 | 450 | 505 | 536 | 602 | 687 | 744 | 810 | 910 | 1003 | 1103 | 1207 | |
| Peso operativo | kg | 3116 | 3157 | 3172 | 3515 | 3531 | 3633 | 3920 | 3936 | 4853 | 5540 | 5570 | 6134 | 6365 | 7354 | 7918 | 8124 | |
| Carica di refrigerante | HFC-134a | |||||||||||||||||
| Circuito A/B | kg | 55/55 | 58/50 | 54/53 | 55/53 | 60/57 | 63/60 | 75/69 | 75/75 | 80/80 | 130/85 | 130/85 | 155/98 | 170/104 | 162/150 | 162/165 | 175/175 | |
| Olio | Olio di poliolestere CARRIER SPEC: PP 47-32 | |||||||||||||||||
| Circuito A/B | l | 20/20 | 20/20 | 20/20 | 20/20 | 20/20 | 20/20 | 20/20 | 20/20 | 20/20 | 40/20 | 40/20 | 40/20 | 40/20 | 40/40 | 40/40 | 40/40 | |
| Compressori | Power3 ermetico a doppia vite | |||||||||||||||||
| Circ. A, dimensione nom. per compressore** | 46 | 46 | 56 | 56 | 66 | 66 | 80 | 80 | 80+ | 66/56 | 80/66 | 80/80 | 80+/80+ | 80/80 | 80/80 | 80+/80+ | ||
| Circ. B, dimensione nom. per compressore** | 39 | 46 | 46 | 56 | 56 | 66 | 66 | 80 | 80+ | 80 | 80 | 80 | 80+ | 66/66 | 80/802 | 80+/80+ | ||
| Tipo di controllo | Controllo PRO-DIALOG Plus | |||||||||||||||||
| Numero di gradini di capacità | 6 | 6 | 6 | 6 | 6 | 6 | 6 | 6 | 6 | 8 | 8 | 8 | 8 | 10 | 10 | 10 | ||
| Capacità minima | % | 19 | 21 | 19 | 21 | 19 | 21 | 19 | 21 | 21 | 16 | 14 | 14 | 14 | 9 | 10 | 10 | |
| Evaporatore | Tipo a fascio tubiero, con tubi di rame alettati internamente | |||||||||||||||||
| Volume netto d'acqua | l | 65 | 73 | 73 | 87 | 87 | 101 | 91 | 91 | 109 | 140 | 140 | 165 | 181 | 203 | 229 | 229 | |
| Collegamenti dell'acqua | Flangia piatta fornita in fabbrica, da saldare in loco | |||||||||||||||||
| Entrata e uscita | in. | 4 | 4 | 4 | 5 | 5 | 5 | 5 | 5 | 5 | 6 | 6 | 6 | 6 | 8 | 8 | 8 | |
| Scarico e sfiato (NPT) | in. | 3/8 | 3/8 | 3/8 | 3/8 | 3/8 | 3/8 | 3/8 | 3/8 | 3/8 | 3/8 | 3/8 | 3/8 | 3/8 | 3/8 | 3/8 | 3/8 | |
| Pressione operativa massima lato acqua | kPa | 1000 | 1000 | 1000 | 1000 | 1000 | 1000 | 1000 | 1000 | 1000 | 1000 | 1000 | 1000 | 1000 | 1000 | 1000 | 1000 | |
| Condensatori | Tubi di rame e alette di alluminio | |||||||||||||||||
| Ventole | Ventola assiale FLYING BIRD 2 con mantello rotante | |||||||||||||||||
| Quantità | 4 | 4 | 4 | 6 | 6 | 6 | 8 | 8 | 8 | 10 | 10 | 12 | 12 | 14 | 16 | 16 | ||
| Velocità | r/s | 15.8 | 15.8 | 15.8 | 15.8 | 15.8 | 15.8 | 15.8 | 15.8 | 15.8 | 15.8 | 15.8 | 15.8 | 15.8 | 15.8 | 15.8 | 15.8 | |
| Portata d'aria totale | l/s | 21110 | 21110 | 21110 | 31660 | 31660 | 31660 | 42220 | 42220 | 42220 | 52770 | 52770 | 63330 | 63330 | 73880 | 84440 | 84440 | |
* Condizioni Eurovent standardizzate: temperature dell'acqua in entrata/uscita dell'evaporatore = 12°C/7°C, temperatura dell'aria esterna = 35°C Capacità di raffreddamento netta: capacità di raffreddamento lorda meno il calore della pompa dell'acqua contro la caduta di pressione interna dell'evaporatore.
** La dimensione del compressore corrisponde alla capacità nominale in tonnellate (1 tonnellata = 3,517 kW).
DATI ELETTRICI 30GX
| 30HXC | 082 | 092 | 102 | 112 | 122 | 132 | 152 | 162 | 182 | 207 | 227 | 247 | 267 | 298 | 328 | 358 | ||
| Circuito di alimentazione | ||||||||||||||||||
| Alimentazione nominale* | V-ph-Hz | 400-3-50 | ||||||||||||||||
| Intervallo di tensione | V | 360-440 | ||||||||||||||||
| Alimentazione del circuito di controllo | Il circuito di controllo è alimentato tramite il trasformatore installato in fabbrica | |||||||||||||||||
| Potenza nominale assorbita* | kW | 98 | 109 | 123 | 133 | 150 | 166 | 179 | 196 | 214 | 246 | 281 | 292 | 332 | 364 | 394 | 449 | |
| Corrente nominale assorbita* | A | 180 | 200 | 223 | 256 | 273 | 290 | 326 | 352 | 388 | 449 | 492 | 528 | 582 | 642 | 704 | 776 | |
| Potenza massima assorbita** | kW | 127 | 141 | 154 | 175 | 191 | 207 | 234 | 253 | 286 | 319 | 355 | 380 | 429 | 462 | 506 | 572 | |
| Circuito A | kW | - | - | - | - | - | - | - | - | - | 193 | 228 | 253 | 286 | 253 | 253 | 286 | |
| Circuito B | kW | - | - | - | - | - | - | - | - | - | 127 | 127 | 127 | 143 | 209 | 253 | 286 | |
| Cosfi, unità a pieno carico | 0.85 | 0.85 | 0.85 | 0.85 | 0.85 | 0.85 | 0.86 | 0.86 | 0.86 | 0.86 | 0.86 | 0.86 | 0.86 | 0.86 | 0.86 | 0.86 | ||
| Corrente massima assorbita (Un - 10%)*** | A | 237 | 262 | 287 | 323 | 353 | 383 | 429 | 464 | 524 | 585 | 650 | 696 | 786 | 847 | 928 | 1048 | |
| Circuito A | A | - | - | - | - | - | - | - | - | - | 353 | 418 | 464 | 524 | 464 | 464 | 524 | |
| Circuito B | A | - | - | - | - | - | - | - | - | - | 232 | 232 | 232 | 262 | 383 | 464 | 524 | |
| Corrente massima assorbita (Un)*** | A | 217 | 240 | 263 | 297 | 324 | 351 | 394 | 426 | 480 | 537 | 596 | 639 | 721 | 777 | 852 | 961 | |
| Circuito A | A | - | - | - | - | - | - | - | - | - | 324 | 383 | 426 | 480 | 426 | 426 | 480 | |
| Circuito B | A | - | - | - | - | - | - | - | - | - | 213 | 213 | 213 | 240 | 351 | 426 | 480 | |
| Corrente massima di spunto, unità std.**** (Un) | A | 334 | 357 | 401 | 435 | 468 | 495 | 590 | 622 | 662 | 1338 | 1631 | 1674 | 1767 | 1812 | 1887 | 2008 | |
| Circuito A*** | A | - | - | - | - | - | - | - | - | - | 1125 | 1418 | 1461 | 1527 | 1461 | 1461 | 1527 | |
| Circuito B*** | A | - | - | - | - | - | - | - | - | - | 1248 | 1248 | 1248 | 1287 | 1152 | 1461 | 1527 | |
| Corrente massima di spunto/rapporto corrente massima assorbita, unità | 1.54 | 1.49 | 1.53 | 1.47 | 1.44 | 1.41 | 1.50 | 1.46 | 1.38 | 2.49 | 2.74 | 2.62 | 2.45 | 2.33 | 2.22 | 2.09 | ||
| Rapporto corrente massima di spunto/corrente massima assorbita, circuito A | - | - | - | - | - | - | - | - | - | 3.47 | 3.70 | 3.43 | 3.18 | 3.43 | 3.43 | 3.18 | ||
| Rapporto corrente massima di spunto/corrente massima assorbita, circuito B | - | - | - | - | - | - | - | - | - | 5.86 | 5.86 | 5.86 | 5.36 | 3.28 | 3.43 | 3.18 | ||
| Corrente massima di spunto - avviamento a corrente ridotta (Un) **** | A | std. | std. | std. | std. | std. | std. | std. | std. | std. | 878 | 955 | 998 | 1102 | 1136 | 1211 | 1343 | |
| Circuito A | A | std. | std. | std. | std. | std. | std. | std. | std. | std. | 665 | 742 | 785 | 862 | 785 | 785 | 862 | |
| Circuito B | A | std. | std. | std. | std. | std. | std. | std. | std. | std. | 572 | 572 | 572 | 622 | 692 | 785 | 862 | |
| Corrente massima di spunto - rapporto corrente massima assorbita/avviamento a corrente ridotta, unità | std. | std. | std. | std. | std. | std. | std. | std. | std. | 1.64 | 1.60 | 1.56 | 1.53 | 1.46 | 1.42 | 1.40 | ||
| Circuito A | std. | std. | std. | std. | std. | std. | std. | std. | std. | 2.05 | 1.94 | 1.84 | 1.79 | 1.84 | 1.84 | 1.79 | ||
| Circuito B | std. | std. | std. | std. | std. | std. | std. | std. | std. | 2.69 | 2.69 | 2.69 | 2.39 | 1.97 | 1.84 | 1.79 | ||
| Corrente di tenuta al cortocircuito trifase | kA | 25 | 25 | 25 | 25 | 25 | 25 | 25 | 25 | 25 | N/A | N/A | N/A | N/A | N/A | N/A | N/A | |
| Circuito A | kA | - | - | - | - | - | - | - | - | - | 25 | 25 | 25 | 25 | 25 | 25 | 25 | |
| Circuito B | kA | - | - | - | - | - | - | - | - | - | 25 | 25 | 25 | 25 | 25 | 25 | 25 | |
| Capacità di standby del cliente, unità o circ. A, per i collegamenti della pompa dell'acqua dell'evaporatore† | kW | 4 | 4 | 4 | 5.5 | 5.5 | 5.5 | 7.5 | 7.5 | 7.5 | 7.5 | 9 | 9 | 9 | 15 | 15 | 15 | |
* Condizioni Eurovent standard: Temperatura dell'acqua in entrata/uscita dell'evaporatore 12°C e 7°C. Temperatura dell'aria esterna 35°C.
** Potenza assorbita, compressore e ventilatore, ai limiti operativi dell'unità (temperatura dell'acqua in entrata/uscita dell'evaporatore = 15°C/10°C, temperatura dell'aria esterna = 46°C) e una tensione nominale di 400 V (dati riportati sulla targhetta dell'unità).
*** Corrente operativa massima dell'unità alla potenza massima assorbita dall'unità.
**** Corrente di spunto istantanea massima (corrente operativa massima del compressore(i) più piccolo(i) + corrente del ventilatore + corrente di rotore bloccato o corrente di avviamento ridotta del compressore più grande).
† Corrente e potenza assorbite non incluse nei valori sopra indicati
N/A Non disponibile
Compressori
| Riferimento | Dimensione | I nom. | MHA | LRA | LRA (Y) | LRA (S) 1 cp. | LRA (S) 2 cp. |
| 06NA2146S7N | 39 | 70 | 95 | 605 | 191 | 220 | - |
| 06NA2174S7N | 46 | 90 | 120 | 715 | 226 | 260 | - |
| 06NA2209S7N | 56 | 113 | 145 | 856 | 270 | 330 | 420 |
| 06NA2250S7N | 66 | 130 | 175 | 960 | 303 | 380 | 500 |
| 06NA2300S5N | 80 | 156 | 210 | 1226 | 387 | 445 | 550 |
| 06NA2300S5E | 80+ | 174 | 240 | 1265 | 400 | 460 | 600 |
Legenda:
| 06NA | Compressore per unità raffreddate ad aria |
| N | Compressore non economizzato |
| E | Compressore economizzato |
| INOM | Assorbimento di corrente medio del compressore in condizioni Eurovent |
| MHA | Must hold amperes (corrente operativa massima) a 360 V |
| LRA | Corrente di rotore bloccato con avviamento diretto |
| LRA (Y) | Corrente di rotore bloccato a corrente ridotta (modalità di avviamento stella/triangolo) |
| LRA (S) 1 cp. | Avviamento con corrente ridotta con avviatore elettronico (durata di avviamento 3 secondi max.) per un compressore per circuito |
| LRA (S) 2 cp. | Avviamento con corrente ridotta con avviatore elettronico (durata di avviamento 3 secondi max.) per due compressori per circuito |
DATI APPLICATIVI
Intervallo operativo dell'unità
| Evaporatore | Minimo | Massimo | |
| Temperatura dell'acqua in ingresso all'evaporatore | °C | 6.8* | 21 |
| Temperatura dell'acqua in uscita dall'evaporatore | °C | 4** | 15 |
| Condensatore (raffreddato ad acqua) | Minimo | Massimo | |
| Temperatura dell'acqua in ingresso al condensatore | °C | 20*** | 42 |
| Temperatura dell'acqua in uscita dal condensatore | °C | 25 | 45 |
| Temperatura operativa ambiente esterna 30HXC | °C | 6 | 40 |
| Condensatore (raffreddato ad aria) | Minimo | Massimo | |
| Temperatura operativa ambiente esterna | °C | 0 | 46 |
| Pressione statica disponibile | kPa | 0 |
Note:
* Per applicazioni che richiedono il funzionamento a meno di 6.8°C, contattare Carrier s.a. per la selezione dell'unità utilizzando il catalogo elettronico Carrier.
** Per applicazioni che richiedono il funzionamento a meno di 4°C, le unità richiedono l'uso di antigelo.
*** Le unità raffreddate ad acqua (30HXC) che funzionano a pieno carico e al di sotto dei 20°C di temperatura dell'acqua in ingresso al condensatore richiedono l'uso di un controllo della pressione di mandata con valvole di controllo dell'acqua analogiche (vedere il paragrafo sul controllo della pressione di mandata).
Nelle modalità operative temporanee (avvio e a carico parziale) l'unità può funzionare con una temperatura dell'aria in ingresso al condensatore di 13°C.
Flusso minimo di acqua refrigerata
Il flusso minimo di acqua refrigerata è mostrato nella tabella nella pagina successiva. Se il flusso è inferiore a questo, il flusso dell'evaporatore può essere ricircolato, come mostrato nel diagramma. La temperatura della miscela che lascia l'evaporatore non deve mai essere inferiore di 2.8 K rispetto alla temperatura dell'acqua refrigerata in ingresso.

PER IL FLUSSO MINIMO DI ACQUA REFRIGERATA
Flusso massimo di acqua refrigerata
Il flusso massimo di acqua refrigerata è limitato dalla massima perdita di carico consentita nell'evaporatore. È fornito nella tabella nella pagina successiva. Se il flusso supera il valore massimo, sono possibili due soluzioni:
- Selezionare un evaporatore non standard con un passaggio d'acqua in meno che consentirà una portata d'acqua massima più elevata.
- Bypassare l'evaporatore come mostrato nel diagramma per ottenere una differenza di temperatura più elevata con una portata dell'evaporatore inferiore.

PER IL FLUSSO MASSIMO DI ACQUA REFRIGERATA
Evaporatore a flusso variabile
Il flusso variabile dell'evaporatore può essere utilizzato nei refrigeratori standard 30HXC e 30GX. I refrigeratori mantengono una temperatura dell'acqua in uscita costante in tutte le condizioni di flusso. Affinché ciò accada, la portata minima deve essere superiore alla portata minima indicata nella tabella delle portate consentite e non deve variare di oltre il 10% al minuto. Se la portata cambia più rapidamente, il sistema deve contenere un minimo di 6.5 litri di acqua per kW invece di 3.25 l/kW.
Volume minimo di acqua del sistema
Qualunque sia il sistema, la capacità minima del circuito dell'acqua è data dalla formula:
Capacità = Cap (kW) x N Litri
| Applicazione | N |
| Normale condizionamento dell'aria | 3.25 |
| Raffreddamento di tipo processo | 6.5 |
Dove Cap è la capacità di raffreddamento nominale del sistema (kW) alle condizioni operative nominali dell'installazione.
Questo volume è necessario per un funzionamento stabile e un controllo preciso della temperatura.
È spesso necessario aggiungere un serbatoio dell'acqua tampone al circuito per raggiungere il volume richiesto. Il serbatoio deve essere internamente deflettato per garantire una corretta miscelazione del liquido (acqua o salamoia). Fare riferimento agli esempi seguenti.
NOTA: Il compressore non deve riavviarsi più di 6 volte in un'ora.


Portata del refrigeratore (l/s)
| 30HXC | Min.* | Max.** | ||
| 080-090 | 5.7 | 22.7 | ||
| 100 | 6.0 | 24.1 | ||
| 110 | 6.9 | 27.5 | ||
| 120-130 | 8.3 | 33.0 | ||
| 140-155 | 10.0 | 39.5 | ||
| 175-190 | 10.7 | 42.7 | ||
| 200 | 13.4 | 53.7 | ||
| 230 | 13.4 | 60.6 | ||
| 260-285 | 17.0 | 68.1 | ||
| 310 | 19.4 | 77.8 | ||
| 345-375 | 21.3 | 85.3 | ||
| 30GX | Min.* | Max.** | ||
| 082 | 5.7 | 22.7 | ||
| 092-102 | 6.0 | 24.1 | ||
| 112-122 | 6.9 | 27.5 | ||
| 132 | 8.4 | 33.7 | ||
| 152-162 | 10.0 | 39.9 | ||
| 182 | 10.7 | 42.7 | ||
| 207-227 | 13.4 | 53.7 | ||
| 247 | 15.1 | 60.6 | ||
| 267 | 17.0 | 68.1 | ||
| 298 | 19.4 | 77.8 | ||
| 328-358 | 21.3 | 85.3 | ||
* Basato su una velocità dell'acqua di 0,9 m/s.
** Basato su una velocità dell'acqua di 3,6 m/s.
Portata del condensatore (l/s)
| 30HXC | Min.* Circuito chiuso (Closed loop) | Circuito aperto (Open loop) | Max.** |
| 080-110 | 2.5 | 7.5 | 29.9 |
| 120-130 | 3.1 | 9.3 | 37.3 |
| 140-155 | 3.8 | 11.4 | 45.5 |
| 175-190 | 4.6 | 13.8 | 55.2 |
| 200 | 5.0 | 14.9 | 59.6 |
| 230-285 | 6.7 | 20.1 | 80.3 |
| 310-375 | 7.3 | 22.0 | 88.0 |
* Basato su una velocità dell'acqua di 0,3 m/s in un circuito chiuso e 0,9 m/s in un circuito aperto.
** Basato su una velocità dell'acqua di 3,6 m/s
Curva di perdita di carico dell'evaporatore

- 30HXC 080-090/30GX 082
- 30HXC 100/30GX 092-102
- 30HXC 110/30GX 112-122
- 30GX 132
- 30HXC 120-130
- 30HXC 140-155/30GX 152-162
- 30HXC 175-190/30GX 182
- 30HXC 200/30GX 207-227
- 30HXC 230/30GX 247
- 30HXC 260-285/30GX 267
- 30HXC 310/30GX 298
- 30HXC 345-375/30GX 328-358
Curva di perdita di carico del condensatore

- 30HXC 080-090-100-110
- 30HXC 120-130
- 30HXC 140-155
- 30HXC 175-190
- 30HXC 200
- 30HXC 230-260-285
- 30HXC 310-345-375
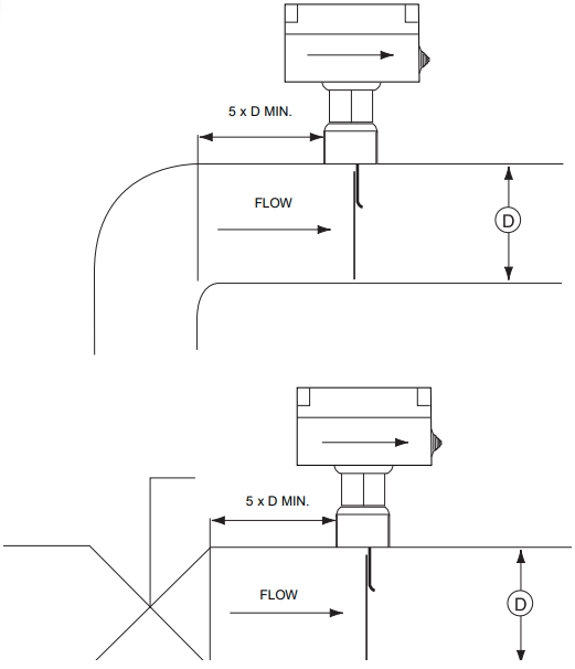
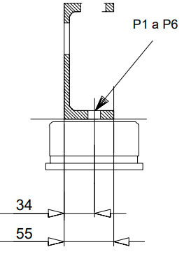
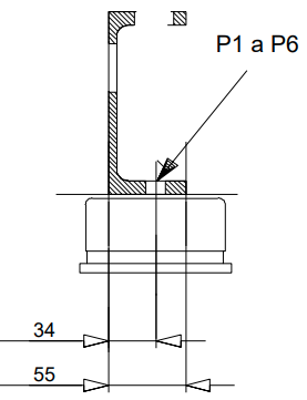
Regolatori di flusso
Pressostato di flusso del refrigeratore e interblocco della pompa dell'acqua refrigerata
È obbligatorio installare il pressostato di flusso del refrigeratore e collegare l'interblocco della pompa dell'acqua refrigerata sulle unità 30HXC e 30GX. La mancata osservanza di questa istruzione invaliderà la garanzia Carrier.
Il regolatore del pressostato di flusso del refrigeratore è fornito e cablato in fabbrica sulle unità 30HXC e 30GX.
Seguire le istruzioni del produttore per l'installazione.
Il pressostato di flusso può essere montato in un tubo orizzontale o in un tubo verticale con flusso di liquido verso l'alto. Non deve essere utilizzato quando il flusso di liquido è verso il basso.
Montare in una sezione di tubo dove c'è un tratto rettilineo di almeno cinque diametri di tubo su ogni lato del pressostato di flusso. Non posizionare in prossimità di valvole, gomiti o orifizi. La paletta non deve mai toccare il tubo o qualsiasi ostruzione nel tubo. Avvitare il pressostato di flusso in posizione in modo che la parte piatta della paletta sia ad angolo retto rispetto al flusso. Le frecce sul coperchio e nella parte inferiore, all'interno della custodia, devono puntare nella direzione del flusso. L'interruttore deve essere montato in modo che i terminali siano accessibili per un facile cablaggio.
I terminali 34 e 35 sono previsti per l'installazione sul campo di un interblocco della pompa dell'acqua refrigerata (contatto ausiliario del contattore della pompa dell'acqua refrigerata).
(Collegamento del tubo: 1" NPT)

Pressostato di flusso del condensatore (30HXC)
Il pressostato di flusso del condensatore è un dispositivo installato sul campo.
INSTALLAZIONE
Verifica dell'attrezzatura ricevuta
- Ispezionare l'unità per danni o parti mancanti. Se si rilevano danni o se la spedizione è incompleta, presentare immediatamente un reclamo alla compagnia di spedizioni.
- Verificare che l'unità ricevuta sia quella ordinata. Confrontare i dati della targhetta con l'ordine.
- Verificare che tutti gli accessori ordinati per l'installazione in loco siano stati consegnati, siano completi e non danneggiati.
- Non immagazzinare le unità in un'area esposta alle intemperie a causa del meccanismo di controllo sensibile e dei dispositivi elettronici.
Spostamento e posizionamento dell'unità
Spostamento
Non rimuovere le slitte, i pallet o l'imballaggio protettivo fino a quando l'unità non si trova nella sua posizione finale. Spostare il refrigeratore utilizzando tubi o rulli, oppure sollevarlo, utilizzando funi di sollevamento della capacità corretta.
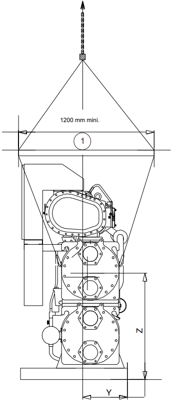
(30HXC)
Utilizzare le funi di sollevamento solo nei punti di sollevamento designati che sono contrassegnati sull'unità, sulla parte superiore dello scambiatore di calore del refrigeratore. L'imbracatura dalla parte inferiore dello scambiatore di calore farà sollevare l'unità in modo non sicuro. Possono verificarsi lesioni personali o danni all'unità. Seguire le istruzioni di imbracatura fornite sul disegno dimensionale certificato fornito con l'unità.
Posizionamento
Fare sempre riferimento al capitolo "Dimensioni e ingombri" per verificare che ci sia spazio sufficiente per tutti i collegamenti e le operazioni di assistenza. Per le coordinate del baricentro, la posizione dei fori di montaggio dell'unità e i punti di distribuzione del peso, fare riferimento al disegno dimensionale certificato fornito con l'unità.
Si consiglia di installare questi refrigeratori in un seminterrato o al piano terra. Se si intende installarne uno sopra il livello del suolo, verificare innanzitutto che il carico ammissibile del pavimento sia adeguato e che il pavimento sia sufficientemente resistente e livellato. Se necessario, rinforzare e livellare il pavimento.
Con il refrigeratore nella sua posizione finale, rimuovere le slitte e altri dispositivi utilizzati per facilitarne lo spostamento. Livellare l'unità utilizzando una livella a bolla e imbullonare l'unità al pavimento o al plinto. Il funzionamento di queste unità potrebbe essere compromesso se non sono livellate e fissate saldamente ai loro supporti. Se necessario, utilizzare cuscinetti isolanti sotto l'unità per facilitare l'isolamento dalle vibrazioni.
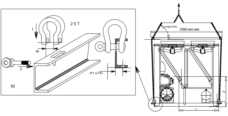
ISTRUZIONI DI SOLLEVAMENTO
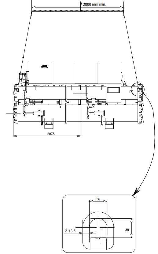
30HXC 080-190
Questo schema è mostrato solo a scopo informativo. Fare riferimento ai "disegni certificati".

- ECCETTO 30HXC 190
X mm Y mm Z mm 30HXC080
30HXC090
30HXC1001345 402 903 30HXC110 1368 397 935 30HXC120
30HXC130
30HXC140
30HXC1551731 392 879 30HXC175 1703 386 947 30HXC190 1705 398 955


NOTA
Al termine di tutte le operazioni di sollevamento e posizionamento, si consiglia di ritoccare tutte le superfici in cui la vernice è stata rimossa sulle alette di sollevamento.
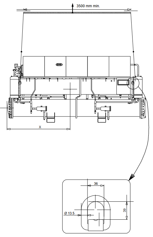
30HXC 200-285
Questo schema è mostrato solo a scopo informativo. Fare riferimento ai "disegni certificati".


30HXC 310-375


| X mm | Y mm | Z mm | |
| 30HXC310 | 2195 | 425 | 1085 |
| 30HXC345 | 2195 | 425 | 1085 |
| 30HXC375 | 2205 | 435 | 1025 |
NOTA
Al termine di tutte le operazioni di sollevamento e posizionamento, si consiglia di ritoccare tutte le superfici in cui la vernice è stata rimossa sulle alette di sollevamento.
30GX 082-162
Questo schema è mostrato solo a scopo informativo. Fare riferimento ai "disegni certificati".



| X mm | Y mm | Z mm | PTkg | |
| 30GX082 | 1440 | 1460 | 900 | 3115 |
| 30GX092 | 1440 | 1460 | 900 | 3156 |
| 30GX102 | 1440 | 1460 | 900 | 3170 |
| 30GX112 | 1650 | 1460 | 900 | 3574 |
| 30GX122 | 1650 | 1460 | 900 | 3527 |
| 30GX132 | 1650 | 1460 | 900 | 3634 |
| 30GX152 | 2155 | 1430 | 900 | 3938 |
| 30GX162 | 2155 | 1430 | 900 | 3954 |
30GX 182



| X mm | Y mm | Z mm | PTkg | |
| 30GX182 | 3030 | 1370 | 875 | 4853 |
NOTA
Al termine di tutte le operazioni di sollevamento e posizionamento, si consiglia di ritoccare tutte le superfici in cui la vernice è stata rimossa sull'aletta di sollevamento
30GX 207-267
Questo schema è mostrato solo a scopo informativo. Fare riferimento ai "disegni certificati".



| X mm | Y mm | Z mm | PTkg | |
| 30GX207 | 2870 | 1440 | 890 | 5536 |
| 30GX227 | 2870 | 1440 | 890 | 5572 |
| 30GX247 | 3320 | 1430 | 927 | 6131 |
| 30GX267 | 3300 | 1420 | 886 | 6363 |
30GX 298-358



| X mm | Y mm | Z mm | PTkg | |
| 30GX298 | 3630 | 1420 | 890 | 7353 |
| 30GX328 | 4360 | 1455 | 920 | 7840 |
| 30GX358 | 4360 | 1445 | 930 | 8045 |
NOTA
Al termine di tutte le operazioni di sollevamento e posizionamento, si consiglia di ritoccare tutte le superfici in cui la vernice è stata rimossa sulle alette di sollevamento.
Collegamenti delle tubazioni
Fare riferimento ai disegni dimensionali certificati per le dimensioni e le posizioni di tutti i collegamenti di ingresso e uscita dell'acqua. I tubi dell'acqua non devono trasmettere alcuna forza radiale o assiale agli scambiatori di calore o vibrazioni alle tubazioni o all'edificio.
L'alimentazione dell'acqua deve essere analizzata e devono essere integrati, se necessario, filtraggio, trattamento, dispositivi di controllo, valvole e circuiti di isolamento e spurgo. Consultare uno specialista del trattamento delle acque o la letteratura appropriata sull'argomento.
Precauzioni operative
Il circuito dell'acqua deve essere progettato per avere il minor numero di curve e tratti di tubi orizzontali a diversi livelli. È necessario eseguire i seguenti controlli di base (vedere anche l'illustrazione di un tipico circuito idraulico di seguito).
- Annotare gli ingressi e le uscite dell'acqua degli scambiatori di calore.
- Installare valvole di spurgo dell'aria manuali o automatiche in tutti i punti alti del circuito dell'acqua.
- Utilizzare una camera di espansione o una valvola di espansione/sicurezza per mantenere la pressione nel sistema.
- Installare termometri dell'acqua e manometri sia nei collegamenti dell'acqua in entrata che in uscita vicino all'evaporatore.
- Installare valvole di scarico in tutti i punti bassi per consentire lo scarico dell'intero circuito. Collegare una valvola di intercettazione nella linea di scarico prima di azionare il refrigeratore.
- Installare valvole di intercettazione e manometri, vicino all'evaporatore, nelle linee dell'acqua in entrata e in uscita.
- Installare il flussostato del refrigeratore.
- Utilizzare collegamenti flessibili per ridurre la trasmissione delle vibrazioni alle tubazioni.
- Isolare tutte le tubazioni, dopo aver verificato la presenza di perdite, sia per ridurre le perdite termiche sia per prevenire la condensa.
- Coprire l'isolamento con una barriera al vapore.
Collegamenti dell'evaporatore e del condensatore
L'evaporatore e il condensatore sono del tipo a fascio tubiero multi-tubo con scatole d'acqua rimovibili per facilitare la pulizia dei tubi.
Prima di effettuare i collegamenti dell'acqua, serrare i bulloni in entrambe le testate alla coppia inferiore indicata, seguendo il metodo descritto. Serrare a coppie e nella sequenza indicata in base alle dimensioni del bullone (vedere la tabella) utilizzando un valore di coppia all'estremità inferiore dell'intervallo indicato.
Rimuovere la flangia piatta fornita dalla fabbrica dalla scatola dell'acqua prima di saldare i tubi alla flangia. La mancata rimozione della flangia potrebbe danneggiare i sensori e l'isolamento.
NOTA
Si consiglia di scaricare il sistema e scollegare le tubazioni per garantire che i bulloni delle testate a cui sono collegate le tubazioni siano serrati correttamente e uniformemente.
Protezione antigelo
Protezione dell'evaporatore e del condensatore raffreddato ad acqua
Se il refrigeratore o le tubazioni dell'acqua si trovano in un'area in cui la temperatura ambiente può scendere al di sotto di 0 °C, si consiglia di aggiungere una soluzione antigelo per proteggere l'unità e le tubazioni dell'acqua fino a una temperatura di 8 K inferiore alla temperatura più bassa. Utilizzare solo soluzioni antigelo approvate per il servizio di scambiatori di calore. Se il sistema non è protetto da una soluzione antigelo e non verrà utilizzato durante le condizioni meteorologiche di gelo, è obbligatorio scaricare il refrigeratore e le tubazioni esterne. I danni dovuti al congelamento non sono coperti dalla garanzia.
Sequenza di serraggio della scatola dell'acqua

Legenda
- Sequenza 1: 1 2 3 4
Sequenza 2: 5 6 7 8
Sequenza 3: 9 10 11 12 - Coppia di serraggio
Dimensione bullone M16 - 171 - 210 Nm
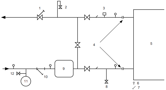
Schema tipico del circuito idraulico

Legenda
- Valvola di controllo
- Sfiato dell'aria
- Flussostato
- Collegamento flessibile
- Scambiatore di calore
- Presa di pressione
- Manicotto del termostato
- Scarico
- Serbatoio di accumulo
- Filtro
- Vaso di espansione
- Valvola di riempimento
CARATTERISTICHE ELETTRICHE
- I modelli 30HXC 080-190 e 30GX 082-182 hanno un solo interruttore di sezionamento/isolamento di alimentazione.
- I modelli 30HXC 200-375 e 30GX 207-358 hanno due interruttori di sezionamento/isolamento di alimentazione.
- La scatola di controllo incorpora di serie i seguenti elementi:
- Dispositivi di avviamento e protezione del motore per ciascun compressore e le ventole
- Componenti di controllo
- Collegamenti in loco:
Tutti i collegamenti alla rete elettrica e l'installazione elettrica devono essere eseguiti in conformità alle direttive applicabili al sito. - I modelli 30HXC e 30GX sono progettati per facilitare la conformità a queste direttive. La progettazione delle apparecchiature elettriche per i modelli 30HXC e 30GX tiene conto della norma europea EN 60204-1 (sicurezza del macchinario - equipaggiamento elettrico delle macchine - Parte 1: regole generali).
La norma EN 60204-1 è un buon mezzo per rispondere ai requisiti della Direttiva Macchine § 1.5.1. La raccomandazione normativa IEC 364 è generalmente riconosciuta come conforme ai requisiti del regolamento di installazione.
L'allegato B della norma EN 60204-1 può essere utilizzato per descrivere le caratteristiche elettriche in base alle quali operano le macchine.
30HXC
- Le condizioni operative per un modello 30HXC standard sono descritte di seguito:
- Condizioni ambientali(1). La classificazione ambientale è descritta nella norma IEC 364 § 3:
- Intervallo di temperatura ambiente: da + 6°C a + 40°C, classificazione AA4
- Intervallo di umidità (senza condensa)
50% rh a 40°C
90% rh a 20°C - Altitudine - 2000 m(1)
- Per installazione interna
- Presenza di acqua: classificazione AD2(1) (possibilità di gocce d'acqua)
- Presenza di solidi: classificazione AE2(1) (presenza di particolato insignificante)
- Presenza di corrosivi e contaminanti, classificazione AF1 (trascurabile)
- Vibrazioni, urti: classificazione AG2, AH2 Competenza del personale: classificazione BA4(1) (personale qualificato in conformità alla norma IEC 364).
- Condizioni ambientali(1). La classificazione ambientale è descritta nella norma IEC 364 § 3:
(1) Lo standard di protezione richiesto rispetto a questa classificazione è IP21B (in conformità con il documento di riferimento IEC 529). Tutti i modelli 30HXC hanno uno standard di protezione di IP23C e pertanto soddisfano questo requisito di protezione.
30GX
- Le condizioni operative per 30GX sono descritte di seguito:
- Condizioni ambientali(2). La classificazione ambientale è descritta nella norma EN 60721:
- Per installazione esterna(2)
- Intervallo di temperatura ambiente: da - 18°C a + 46°C, classificazione 4K3(2)
- Altitudine 2000 m(2)
- Presenza di solidi: classificazione 4S2 (presenza di particolato insignificante)
- Presenza di corrosivi e contaminanti, classificazione 4C2 (trascurabile)
- Vibrazioni, urti: classificazione 4M2
- Condizioni ambientali(2). La classificazione ambientale è descritta nella norma EN 60721:
Competenza del personale: classificazione BA4(2) (personale qualificato in conformità alla norma IEC 364).
(2) Lo standard di protezione richiesto rispetto a questa classificazione è IP43BW (in conformità con il documento di riferimento IEC 529). Tutti i modelli 30GX hanno uno standard di protezione di IP45CW e pertanto soddisfano questo requisito di protezione.
30HXC/GX
- Fluttuazione della frequenza di alimentazione: ± 2 Hz
- La protezione da sovracorrente per i conduttori di alimentazione non viene fornita con il dispositivo.
- L'interruttore di sezionamento/isolamento montato in fabbrica è un isolatore di tipo "a" (EN60204-1 § 5.3.2).
NOTA: se particolari aspetti di un'installazione richiedono caratteristiche diverse da quelle sopra elencate (o caratteristiche non menzionate qui), contattare il rappresentante Carrier.
Alimentazione elettrica
L'alimentazione deve essere conforme alle specifiche riportate sulla targhetta del refrigeratore. La tensione di alimentazione deve rientrare nell'intervallo specificato nella tabella dei dati elettrici.
Per i collegamenti, fare riferimento agli schemi elettrici.
Il funzionamento del refrigeratore con una tensione di alimentazione impropria o uno squilibrio di fase eccessivo costituisce un abuso che invaliderà la garanzia Carrier. Se lo squilibrio di fase supera il 2% per la tensione o il 10% per la corrente, contattare immediatamente il fornitore di energia elettrica locale e assicurarsi che il refrigeratore non venga acceso fino a quando non siano state adottate misure correttive.
Squilibrio di fase della tensione (%):
100 x deviazione massima dalla tensione media
Tensione media
Esempio:
Su un'alimentazione a 400 V - 3 ph - 50 Hz, le singole tensioni di fase sono state misurate come:
AB = 406 V; BC = 399; AC = 394 V
| Tensione media | = (406 + 399 + 394)/3 = 1199/3 |
| = 399,7 diciamo 400 V |
Calcolare la deviazione massima dalla media di 400 V:
(AB) = 406 - 400 = 6
(BC) = 400 - 399 = 1
(CA) = 400 - 394 = 6

La deviazione massima dalla media è di 6 V. La maggiore deviazione percentuale è:
100 x 6/400 = 1,5 %
Questo è inferiore al 2% consentito ed è quindi accettabile.
SEZIONI DEI CAVI RACCOMANDATE
Il dimensionamento dei cavi è responsabilità dell'installatore e dipende dalle caratteristiche e dalle normative applicabili a ciascun sito di installazione. Quanto segue deve essere utilizzato solo come linea guida e non rende Carrier in alcun modo responsabile. Dopo che il dimensionamento dei cavi è stato completato, utilizzando il disegno dimensionale certificato, l'installatore deve garantire una facile connessione e definire eventuali modifiche necessarie in loco.
I collegamenti forniti di serie per i cavi di ingresso dell'alimentazione forniti sul campo all'interruttore generale di sezionamento/isolamento sono progettati per il numero e il tipo di cavi, elencati nella tabella sottostante.
I calcoli si basano sulla corrente massima della macchina (vedere le tabelle dei dati elettrici).
Per la progettazione vengono utilizzati i seguenti metodi di installazione standardizzati, in conformità con la norma IEC 364, tabella 52C:
- Per le unità 30HX installate all'interno dell'edificio: N. 13: canalina portacavi orizzontale perforata e N. 41: canalina chiusa.
- Per le unità 30GX installate all'esterno dell'edificio: N. 17: linee aeree sospese e N. 61: canalina interrata con un coefficiente di declassamento del 20.
Il calcolo si basa su cavi isolati in PVC o XLPE con anima in rame o alluminio. La temperatura massima è di 40 °C per le unità 30HX e di 46 °C per le unità 30GX.
La lunghezza del cavo specificata limita la caduta di tensione a < 5%.
| Unit (Unità) | Min. (mm2) by phase (per fase) | Wire type (Tipo di cavo) | L (m) | Max. (mm2) by phase (per fase) | Wire type (Tipo di cavo) | L (m) |
| 30HX 080 | 1 x 35 | XLPE Cu | 140 | 1 x 120 | PVC Al | 260 |
| 30HX 090 | 1 x 50 | XLPE Cu | 160 | 1 x 120 | PVC Al | 260 |
| 30HX 100 | 1 x 50 | XLPE Cu | 160 | 1 x 95 | XLPE Al | 195 |
| 30HX 110 | 1 x 70 | XLPE Cu | 170 | 1 x 120 | XLPE Al | 205 |
| 30HX 120/130 | 1 x 70 | XLPE Cu | 170 | 1 x 150 | XLPE Al | 210 |
| 30HX 140 | 1 x 95 | XLPE Cu | 180 | 1 x 185 | XLPE Al | 220 |
| 30HX 155 | 1 x 95 | XLPE Cu | 180 | 1 x 240 | XLPE Al | 225 |
| 30HX 175 | 1 x 120 | XLPE Cu | 185 | 1 x 240 | XLPE Al | 225 |
| 30HX 190 | 1 x150 | XLPE Cu | 190 | 2 x 95 | XLPE Al | 195 |
| 30HX 200 ckt A | 1 x 70 | XLPE Cu | 170 | 2 x120 | PVC Al | 325 |
| 30HX 230 ckt A | 1 x 95 | XLPE Cu | 180 | 2 x 120 | PVC Al | 325 |
| 30HX 260 ckt A | 1 x 120 | XLPE Cu | 185 | 1 x 240 | XLPE Al | 225 |
| 30HX 285 ckt A | 1 x 150 | XLPE Cu | 190 | 2 x 150 | XLPE Al | 265 |
| 30HX 200 ckt B | 1 x 35 | XLPE Cu | 140 | 1 x 95 | PVC Al | 250 |
| 30HX 230 ckt B | 1 x 35 | XLPE Cu | 140 | 1 x 120 | PVC Al | 260 |
| 30HX 260 ckt B | 1 x 35 | XLPE Cu | 140 | 1 x 120 | PVC Al | 260 |
| 30HX 285 ckt B | 1 x 50 | XLPE Cu | 160 | 2 x 70 | PVC Al | 285 |
| 30HX 310 ckt A & B | 1 x 95 | XLPE Cu | 180 | 1 x 240 | XLPE Al | 225 |
| 30HX 345 ckt A & B | 1 x 120 | XLPE Cu | 185 | 1 x 240 | XLPE Al | 225 |
| 30HX 375 ckt A & B | 1 x 150 | XLPE Cu | 190 | 2 x 150 | XLPE Al | 265 |
| 30GX 082 | 1 x 95 | XLPE Cu | 190 | 2 x 185 | PVC Al | 420 |
| 30GX 092 | 1 x 120 | XLPE Cu | 195 | 2 x 185 | PVC Al | 420 |
| 30GX 102 | 1 x 120 | XLPE Cu | 195 | 2 x 240 | PVC Al | 450 |
| 30GX 112 | 1 x 150 | XLPE Cu | 200 | 2 x 150 | XLPE Al | 300 |
| 30GX 122 | 1 x 185 | XLPE Cu | 205 | 2 x 185 | XLPE Al | 315 |
| 30GX 132 | 1 x 185 | XLPE Cu | 205 | 2 x 240 | XLPE Al | 330 |
| 30GX 152 | 1 x 240 | XLPE Cu | 205 | 3x 185 | XLPE CU | 430 |
| 30GX 162 | 2 x 95 | XLPE Cu | 190 | 3x 240 | XLPE CU | 440 |
| 30GX 182 | 2 x 120 | XLPE Cu | 200 | 3x 240 | XLPE CU | 440 |
| 30GX 207 ckt A | 1 x 185 | XLPE Cu | 205 | 3x 185 | XLPE Al | 445 |
| 30GX 227 ckt A | 1 x 240 | XLPE Cu | 205 | 3x 240 | XLPE Al | 470 |
| 30GX 247/298/328 ckt A | 2 x 120 | XLPE Cu | 225 | 3x 185 | XLPE CU | 490 |
| 30HX 267/358 ckt A | 2 x 150 | XLPE Cu | 230 | 3x 240 | XLPE CU | 505 |
| 30GX 207/227/247 ckt B | 1 x 95 | XLPE Cu | 190 | 2 x 240 | PVC Al | 560 |
| 30HX 267 ckt B | 1 x 120 | XLPE Cu | 200 | 2 x 185 | XLPE AL | 395 |
| 30GX 298 ckt B | 1 x 185 | XLPE Cu | 205 | 3x 240 | XLPE AL | 470 |
| 30GX 328 ckt B | 2 x 120 | XLPE Cu | 225 | 3x 185 | XLPE CU | 490 |
| 30GX 358 ckt B | 2 x 150 | XLPE Cu | 230 | 3x 240 | XLPE CU | 505 |
Prima di collegare i cavi di alimentazione principali (L1 - L2 - L3) alla morsettiera, è imperativo verificare l'ordine corretto delle 3 fasi prima di procedere al collegamento alla morsettiera o all'interruttore principale/sezionatore.
Cablaggio dei controlli sul campo
Fare riferimento all'IOM dei controlli e allo schema elettrico certificato fornito con l'unità per il cablaggio dei controlli sul campo delle seguenti funzioni:
- Interblocco pompa evaporatore (obbligatorio)
- Interruttore on/off remoto
- Flussostato del condensatore (fornito sul campo, solo 30HXC)
- Interruttore remoto caldo/freddo
- Interruttore esterno limite di richiesta 1
- Doppio set point remoto
- Segnalazione allarme per circuito
- Controllo pompa evaporatore
- Controllo pompa condensatore (solo 30HXC)
- Reset del set point remoto o reset del sensore di temperatura dell'aria esterna (0-10 V)
Sezioni di cavo raccomandate per unità con temperature di condensazione elevate (400 V - 3 ph - 50 Hz)
| Unità, opzioni 150 + 150A 400 V - 3 ph - 50 Hz | Min. (mm2) per fase | Tipo di cavo | L (m) | Max. (mm2) per fase | Tipo di cavo | L (m) |
| 30HXC 080 OPT. 150 | 1 x 50 | XLPE Cu | 150 | 2 x 70 | PVC Al | 230 |
| 30HXC 090 OPT. 150 | 1 x 70 | XLPE Cu | 160 | 2 x 95 | PVC Al | 260 |
| 30HXC 100 OPT. 150 | 1 x 70 | XLPE Cu | 160 | 2 x 95 | PVC Al | 250 |
| 30HXC 110 OPT. 150 | 1 x 95 | XLPE Cu | 170 | 2 x 120 | PVC Al | 265 |
| 30HXC 120 OPT. 150 | 1 x 120 | XLPE Cu | 180 | 2 x 120 | XLPE Al | 205 |
| 30HXC 130 OPT. 150 | 1 x 120 | XLPE Cu | 160 | 2 x 120 | XLPE Al | 210 |
| 30HXC 140 OPT. 150 | 1 x 150 | XLPE Cu | 175 | 2 x 120 | XLPE Al | 205 |
| 30HXC 155 OPT. 150 | 1 x 185 | XLPE Cu | 185 | 2 x 150 | XLPE Al | 215 |
| 30HXC 175 OPT. 150 | 1 x 240 | XLPE Cu | 185 | 2 x 150 | XLPE Al | 210 |
| 30HXC 190 OPT. 150 | 2 x 95 | XLPE Cu | 175 | 2 x 240 | XLPE Al | 220 |
| 30HXC 200 OPT. 150 circ. A | 1 x 120 | XLPE Cu | 170 | 2 x 150 | XLPE Al | 270 |
| 30HXC 230 OPT. 150 circ. A | 1 x 150 | XLPE Cu | 180 | 2 x 185 | XLPE Al | 270 |
| 30HXC 260 OPT. 150 circ. A | 1 x 185 | XLPE Cu | 180 | 2 x 240 | XLPE Al | 295 |
| 30HXC 285 OPT. 150 circ. A | 1 x 240 | XLPE Cu | 170 | 2 x 185 | XLPE Cu | 265 |
| 30HXC 310 OPT. 150 circ. A | 1 x 185 | XLPE Cu | 180 | 2 x 240 | XLPE Al | 300 |
| 30HXC 345 OPT. 150 circ. A | 1 x 185 | XLPE Cu | 170 | 2 x 240 | XLPE Al | 280 |
| 30HXC 375 OPT. 150 circ. A | 1 x 240 | XLPE Cu | 170 | 2 x 185 | XLPE Cu | 265 |
| 30HXC 200 OPT. 150 circ. B | 1 x 35 | XLPE Cu | 125 | 2 x 95 | PVC Al | 320 |
| 30HXC 230 OPT. 150 circ. B | 1 x 50 | XLPE Cu | 140 | 2 x 95 | PVC Al | 310 |
| 30HXC 260 OPT. 150 circ. B | 1 x 50 | XLPE Cu | 140 | 2 x 95 | PVC Al | 310 |
| 30HXC 285 OPT. 150 circ. B | 1 x 70 | XLPE Cu | 160 | 2 x 120 | PVC Al | 325 |
| 30HXC 310 OPT. 150 circ. B | 1 x 150 | XLPE Cu | 180 | 2 x 185 | XLPE Al | 275 |
| 30HXC 345 OPT. 150 circ. B | 1 x 185 | XLPE Cu | 185 | 2 x 240 | XLPE Al | 305 |
| 30HXC 375 OPT. 150 circ. B | 1 x 185 | XLPE Cu | 160 | 2 x 240 | XLPE Al | 280 |
COMPONENTI PRINCIPALI DEL SISTEMA E DATI DI FUNZIONAMENTO
Compressore a vite gemella con ingranaggi
- Le unità 30HXC e 30GX utilizzano compressori a vite gemella con ingranaggi 06N
- Gli 06NA sono utilizzati sui 30GX (applicazione di condensazione raffreddata ad aria)
- Gli 06NW sono utilizzati sui 30HXC (applicazione di condensazione raffreddata ad acqua)
- Le capacità nominali variano da 39 a 80 tonnellate. I modelli economizzati o non economizzati sono utilizzati a seconda delle dimensioni dell'unità 30HXC e 30GX.
Filtro dell'olio
Il compressore a vite 06N ha un filtro dell'olio integrato nell'alloggiamento del compressore. Questo filtro è sostituibile sul campo.
Refrigerante
Il compressore a vite 06N è appositamente progettato per essere utilizzato solo in un sistema R134 a.
Lubrificante
Il compressore a vite 06N è approvato per l'uso con il seguente lubrificante.
CARRIER MATERIAL SPEC PP 47-32
Elettrovalvola di alimentazione dell'olio
Un'elettrovalvola di alimentazione dell'olio è di serie sul compressore per isolare il compressore dal flusso d'olio quando il compressore non è in funzione.
L'elettrovalvola dell'olio è sostituibile sul campo.
Filtri di aspirazione ed economizzatore
Per aumentare l'affidabilità del compressore, è stato incorporato un filtro come caratteristica standard negli ingressi di aspirazione ed economizzatore del compressore.
Sistema di scarico
Il compressore a vite 06N ha un sistema di scarico che è standard su tutti i compressori. Questo sistema di scarico è costituito da due fasi di scarico che diminuiscono la capacità del compressore reindirizzando il gas parzialmente compresso verso l'aspirazione.
Evaporatore
I refrigeratori 30HXC e 30GX utilizzano un evaporatore allagato. L'acqua circola nei tubi e il refrigerante è all'esterno nel mantello. Un recipiente viene utilizzato per servire entrambi i circuiti del refrigerante. C'è una piastra tubiera centrale che separa i due circuiti del refrigerante. I tubi sono in rame da 3/4" di diametro con una superficie migliorata all'interno e all'esterno. C'è solo un circuito dell'acqua e, a seconda delle dimensioni del refrigeratore, potrebbero esserci due o tre passaggi dell'acqua. Un sensore di livello del liquido più freddo fornisce un controllo ottimizzato del flusso.
Nella parte superiore del refrigeratore si trovano i due tubi di aspirazione, uno in ogni circuito. Ognuno ha una flangia saldata ad esso e il compressore è montato sulla flangia.
Condensatore e separatore d'olio (30HXC)
Il refrigeratore 30HXC utilizza un recipiente che è una combinazione di condensatore e separatore d'olio. È montato sotto il refrigeratore. Il gas di scarico lascia il compressore e fluisce attraverso un silenziatore esterno fino al separatore d'olio, che è la parte superiore del recipiente. Entra nella parte superiore del separatore dove l'olio viene rimosso, e poi fluisce verso la parte inferiore del recipiente, dove il gas viene condensato e sottoraffreddato. Un recipiente viene utilizzato per servire entrambi i circuiti del refrigerante. C'è una piastra tubiera centrale che separa i due circuiti del refrigerante. I tubi sono in rame da 3/4" o 1" di diametro con superficie migliorata all'interno e all'esterno. C'è solo un circuito dell'acqua con due passaggi dell'acqua.
Separatore d'olio (30GX)
Nelle unità raffreddate ad aria, il separatore d'olio è un recipiente a pressione che è montato sotto le batterie del condensatore verticale esterno. Il gas di scarico entra nella parte superiore del separatore dove gran parte dell'olio si separa e drena verso il basso. Il gas poi fluisce attraverso un filtro a rete metallica dove l'olio rimanente viene separato e drena verso il basso.
Dispositivo di espansione elettronico (Electronic Expansion Device) (EXD)
Il microprocessore controlla l'EXD attraverso il modulo di controllo EXV. L'EXD sarà un EXV o un economizzatore. All'interno di entrambi questi dispositivi c'è un motore passo-passo attuatore lineare. Il refrigerante liquido ad alta pressione entra nella valvola attraverso il fondo. Una serie di fessure calibrate si trovano all'interno del gruppo orifizio. Quando il refrigerante passa attraverso l'orifizio, la pressione scende e il refrigerante cambia in una condizione bifase (liquido e vapore). Per controllare il flusso di refrigerante per diverse condizioni operative, il manicotto si muove su e giù sopra l'orifizio, cambiando così l'area di flusso effettiva del dispositivo di espansione. Il manicotto è mosso da un motore passo-passo lineare. Il motore passo-passo si muove a incrementi ed è controllato direttamente dal modulo processore. Quando il motore passo-passo ruota, il movimento viene trasferito in movimento lineare dalla vite madre. Attraverso il motore passo-passo e le viti madri, si ottengono 1500 passi discreti di movimento. L'elevato numero di passi e la lunga corsa si traducono in un controllo molto preciso del flusso di refrigerante. Ogni circuito ha un sensore di livello del liquido montato verticalmente nella parte superiore del mantello del refrigeratore. Il sensore di livello è costituito da un piccolo riscaldatore a resistenza elettrica e tre termistori cablati in serie posizionati a diverse altezze all'interno del corpo del pozzo. Il riscaldatore è progettato in modo che i termistori leggano circa 93,3°C in aria secca. Quando il livello del refrigerante sale nel refrigeratore, la resistenza del termistore(i) più vicino cambierà notevolmente. Questa grande differenza di resistenza consente al controllo di mantenere accuratamente un livello specificato. Il sensore di livello monitora il livello del liquido refrigerante nel refrigeratore e invia queste informazioni al PSIO-1. All'avvio iniziale, la posizione dell'EXV è a zero. Successivamente, il microprocessore tiene traccia accuratamente della posizione della valvola per utilizzare queste informazioni come input per le altre funzioni di controllo. Lo fa inizializzando gli EXV all'avvio. Il processore invia un numero sufficiente di impulsi di chiusura alla valvola per spostarla da completamente aperta a completamente chiusa, quindi reimposta il contatore di posizione a zero. Da questo punto in poi, fino all'inizializzazione, il processore conta il numero totale di passi aperti e chiusi che ha inviato a ciascuna valvola.
Economizzatore
Gli economizzatori sono installati su 30HXC 190, 285 e 375 e 30GX 182, 267 e 358.
L'economizzatore migliora sia la capacità che l'efficienza del refrigeratore, oltre a fornire il raffreddamento del motore del compressore. All'interno dell'economizzatore ci sono sia un motore passo-passo lineare EXV che una valvola a galleggiante. L'EXV è controllato dal PIC per mantenere il livello del liquido desiderato nel refrigeratore (come viene fatto per i refrigeratori NonEconomizzati). La valvola a galleggiante mantiene un livello del liquido nella parte inferiore dell'economizzatore. Il refrigerante liquido viene fornito dal condensatore alla parte inferiore dell'economizzatore. Quando il refrigerante passa attraverso l'EXV, la sua pressione viene ridotta a un livello intermedio di circa 500 kPa. Questa pressione viene mantenuta all'interno del mantello dell'economizzatore. Successivamente, il refrigerante fluisce attraverso la valvola a galleggiante, la sua pressione viene ulteriormente ridotta a leggermente superiore alla pressione nel refrigeratore. L'aumento delle prestazioni si realizza quando parte del refrigerante che passa attraverso l'EXV lampeggia in vapore, sottoraffreddando ulteriormente il liquido che viene mantenuto nella parte inferiore dell'economizzatore. Questo aumento del sottoraffreddamento fornisce capacità aggiuntiva. Poiché non è richiesta alcuna potenza aggiuntiva per realizzare questo, anche l'efficienza della macchina migliora. Il vapore che lampeggia salirà all'economizzatore dove passa al compressore e viene utilizzato secondo necessità per fornire il raffreddamento del motore. Dopo essere passato sopra gli avvolgimenti del motore, il refrigerante rientra nel ciclo in una porta intermedia nel ciclo di compressione.
Pompe dell'olio
I refrigeratori a vite 30GX/HXC utilizzano una pompa dell'olio di pre-lubrificazione montata esternamente per circuito. Questa pompa viene azionata come parte della sequenza di avvio.
ATTENZIONE:
La temperatura di esercizio della batteria può raggiungere gli 80°C. In determinate condizioni temporanee (soprattutto durante l'avvio a bassa temperatura esterna o bassa temperatura del circuito del condensatore) la pompa dell'olio può essere riattivata.
Sulle unità 30GX, le pompe sono montate sulle guide di base sul lato del separatore d'olio dell'unità. Le pompe sono montate su una staffa sui condensatori delle unità 30HXC. Quando un circuito deve avviarsi, i controlli ecciteranno prima la pompa dell'olio in modo che il compressore si avvii con la corretta lubrificazione. Se la pompa ha accumulato una pressione dell'olio sufficiente, il compressore potrà avviarsi. Una volta che il compressore si è avviato, la pompa dell'olio verrà spenta. Se la pompa non è stata in grado di accumulare una pressione dell'olio sufficiente, il controllo genererà un allarme.
Valvole di raffreddamento del motore
Le temperature degli avvolgimenti del motore del compressore sono controllate al punto di riferimento ottimale. Il controllo realizza questo ciclando l'elettrovalvola di raffreddamento del motore per consentire al refrigerante liquido di fluire attraverso gli avvolgimenti del motore secondo necessità. Sulle unità dotate di economizzatori, il gas flash lascia la parte superiore dell'economizzatore e fluisce continuamente verso gli avvolgimenti del motore. Tutto il refrigerante utilizzato per il raffreddamento del motore rientra nei rotori attraverso una porta situata a metà del ciclo di compressione e viene compresso alla pressione di scarico.
Sensori
Le unità utilizzano termistori (inclusi due termistori di temperatura del motore) e due termistori di livello e trasduttori di pressione per monitorare e controllare il funzionamento del sistema.
Termistori
Fluido uscente dall'evaporatore
Questa temperatura viene utilizzata per misurare la temperatura del fluido uscente dall'evaporatore (acqua o salamoia). La temperatura viene utilizzata per il controllo della temperatura del fluido uscente e per proteggere dal congelamento del refrigeratore. Si trova nell'ugello del fluido dell'evaporatore.
Fluido entrante nell'evaporatore
Questo sensore viene utilizzato per misurare la temperatura del fluido entrante nell'evaporatore. Si trova nell'ugello dell'evaporatore entrante. Viene utilizzato per fornire la compensazione automatica della temperatura per il controllo della temperatura del fluido uscente con compensazione del fluido entrante.
Temperatura del gas di scarico (circuiti A e B)
Questo sensore viene utilizzato per misurare la temperatura del gas di scarico e controllare il surriscaldamento della temperatura di scarico. Si trova sul tubo di scarico di ogni circuito (30HXC) o sulla parte superiore del separatore d'olio (30GX).
ATTENZIONE: Non c'è manicotto termostatico.
Temperatura del motore
Il modulo di protezione del compressore (Compressor Protection Module) (CPM) monitora la temperatura del motore. I terminali del termistore si trovano nella scatola di giunzione del compressore.
Livello del liquido dell'evaporatore (circuiti A e B)
Il termistore del livello del liquido dell'evaporatore viene utilizzato per fornire un controllo ottimizzato del flusso nell'evaporatore. È installato nella parte superiore dell'evaporatore.
Fluido entrante nel condensatore (30HXC)
Questo sensore viene utilizzato per misurare la temperatura del fluido che entra nei condensatori raffreddati ad acqua. Si trova nella linea del fluido comune che entra nei condensatori (installato sul campo). Sulle macchine termiche viene utilizzato dalla routine di controllo della capacità. Sui condensatori raffreddati ad acqua viene utilizzato solo per il monitoraggio della temperatura del fluido del condensatore.
Fluido uscente dal condensatore (opzionale su 30HXC)
Questo sensore viene utilizzato per misurare la temperatura del fluido che esce dai condensatori raffreddati ad acqua. Si trova nella linea del fluido comune che esce dai condensatori (installato sul campo). Sulle macchine termiche viene utilizzato dalla routine di controllo della capacità. Sui condensatori raffreddati ad acqua viene utilizzato solo per il monitoraggio della temperatura del fluido del condensatore.
Disposizione delle ventole 30GX

GX082/102

GX112/132

GX152/162

GX182

GX207/227

GX247/267

GX298

GX328/358
MANUTENZIONE
Carica del refrigerante - aggiunta di carica
Queste unità sono progettate per l'uso esclusivo con R-134a.
NON UTILIZZARE ALTRI refrigeranti in queste unità.
Quando si aggiunge o si rimuove la carica, far circolare sempre acqua attraverso il condensatore (HX) e il refrigeratore per evitare il congelamento. I danni da congelamento sono considerati abuso e possono invalidare la garanzia Carrier.
NON SOVRACCARICARE il sistema. La sovraccarica provoca una pressione di scarico più elevata con un maggiore consumo di fluido di raffreddamento, possibili danni al compressore e un maggiore consumo di energia.
Indicazione di carica bassa su un sistema 30HXC
NOTA
Per verificare la presenza di una carica di refrigerante bassa su un 30HXC, è necessario considerare diversi fattori. Un indicatore di livello del liquido lampeggiante non è necessariamente un'indicazione di carica insufficiente. Ci sono molte condizioni di sistema in cui un indicatore di livello lampeggiante si verifica durante il normale funzionamento. Il dispositivo di misurazione 30HXC è progettato per funzionare correttamente in queste condizioni.
- Assicurarsi che il circuito funzioni a pieno carico. Per verificare se il circuito A è completamente carico, seguire la procedura descritta nel manuale dei controlli.
- Potrebbe essere necessario utilizzare la funzione "Manual Control" (Controllo manuale) per forzare il circuito in una condizione di pieno carico. In questo caso, consultare le istruzioni per l'uso della funzione "Manual Control" (Controllo manuale) nel manuale dei controlli.
- Con il circuito in funzione a pieno carico, verificare che la temperatura del fluido in uscita dal refrigeratore sia compresa tra 6°C ± 1,5.
- In questa condizione, osservare il refrigerante nell'indicatore di livello del liquido. Se l'indicatore di livello è trasparente e non presenta segni di lampeggiamento, il circuito è caricato in modo adeguato. Saltare i passaggi rimanenti.
- Se il refrigerante sembra lampeggiare, è probabile che il circuito sia scarico. Verificare questo controllando la posizione dell'EXV (vedere Controls IOM).
- Se la posizione di apertura dell'EXD è superiore al 60% e se l'indicatore di livello del liquido lampeggia, il circuito è scarico. Seguire la procedura per l'aggiunta di carica.
Per aggiungere carica ai sistemi 30HXC
- Assicurarsi che l'unità funzioni a pieno carico e che la temperatura del fluido in uscita dal refrigeratore sia compresa tra 5,6 e 7,8°C.
- In queste condizioni operative, controllare l'indicatore di livello del liquido. Se l'indicatore di livello è trasparente, l'unità ha una carica sufficiente. Se l'indicatore di livello lampeggia, controllare la percentuale di apertura dell'EXD. Se questa è superiore al 60%, iniziare ad aggiungere carica.
NOTA
Un indicatore di livello del liquido lampeggiante in condizioni operative diverse da quelle sopra menzionate non è necessariamente un'indicazione di carica di refrigerante bassa.
- Aggiungere 2,5 kg di carica liquida nell'evaporatore utilizzando la valvola di carica situata sulla parte superiore dell'evaporatore.
- Osservare il valore della percentuale di apertura dell'EXD. L'EXD dovrebbe iniziare a chiudersi man mano che viene aggiunta la carica. Lasciare stabilizzare l'unità. Se la percentuale di apertura dell'EXD rimane superiore al 60% e sono ancora presenti bolle nell'indicatore di livello, aggiungere altri 2,5 kg di carica liquida.
- Lasciare stabilizzare l'unità e controllare nuovamente la percentuale di apertura dell'EXD. Continuare ad aggiungere 2,5 kg di carica di refrigerante liquido alla volta e lasciare stabilizzare l'unità prima di controllare la posizione dell'EXD.
- Quando la percentuale di apertura dell'EXD è compresa tra il 40 e il 60%, controllare l'indicatore di livello del liquido. Aggiungere lentamente una quantità sufficiente di carica liquida aggiuntiva per garantire un indicatore di livello trasparente. Questa operazione deve essere eseguita lentamente per evitare di sovraccaricare l'unità.
- Verificare una carica adeguata continuando a funzionare a pieno carico con una temperatura del fluido in uscita dall'evaporatore di 6°C ± 1,5. Verificare che il refrigerante non lampeggi nell'indicatore di livello del liquido. La percentuale di apertura dell'EXD deve essere compresa tra il 40 e il 60%. L'indicatore di livello del refrigeratore deve essere compreso tra 1,5 e 2,5.
Indicazione di carica bassa sui sistemi 30GX
- Assicurarsi che il circuito funzioni a pieno carico e che la temperatura di condensazione sia di 50°C ± 1,5. Per verificare se il circuito A è completamente carico, seguire la procedura nel Controls IOM.
- Potrebbe essere necessario utilizzare la funzione "Manual Control" (Controllo manuale) per forzare il circuito in una condizione di pieno carico. In questo caso, consultare le istruzioni per l'uso della funzione "Manual Control" (Controllo manuale) (procedura nel Controls IOM).
- Con il circuito in funzione a pieno carico, verificare che la temperatura del fluido in uscita dal refrigeratore sia compresa tra 6°C ± 1,5.
- Misurare la temperatura dell'aria in entrata nelle batterie del condensatore. Misurare la temperatura del liquido dopo il raccordo a T dove si uniscono le due linee del liquido della batteria. La temperatura del liquido deve essere di 8,3°C superiore alla temperatura dell'aria in entrata nelle batterie. Se la differenza è maggiore e l'indicatore di livello lampeggia, il circuito è scarico. Passare al punto 5.
- Aggiungere 2,5 kg di carica liquida nel refrigeratore utilizzando la valvola di carica situata nella parte superiore del refrigeratore.
- Lasciare stabilizzare il sistema e quindi ricontrollare la temperatura del liquido. Ripetere il punto 5 secondo necessità, lasciando stabilizzare il sistema tra ogni aggiunta di carica. Aggiungere lentamente la carica quando l'indicatore di livello inizia a diventare trasparente per evitare il sovraccarico.
Temperatura ambiente, temperatura dell'aria esterna (opzionale)
Queste temperature vengono utilizzate per misurare rispettivamente la temperatura dell'ambiente o la temperatura dell'aria esterna per il controllo del reset in base alle opzioni di reset della temperatura dell'aria esterna o dell'ambiente.
Trasduttori di pressione
Pressione di scarico (circuiti A e B)
Questo ingresso viene utilizzato per misurare la pressione del lato alta di ciascun circuito dell'unità.
Viene utilizzato per fornire la pressione per sostituire il manometro della pressione di scarico e per controllare la pressione di mandata.
Pressione di aspirazione (circuiti A e B)
Questo ingresso viene utilizzato per misurare la pressione del lato bassa dell'unità. Viene utilizzato per fornire la pressione per sostituire il manometro della pressione di aspirazione.
Pressione dell'olio (ogni compressore)
Questo ingresso viene utilizzato per misurare la pressione dell'olio di ciascun compressore dell'unità. Si trova sulla porta della pressione dell'olio di ciascun compressore.
Pressione dell'economizzatore (circuiti A e B)
Questo ingresso viene utilizzato per monitorare il differenziale di pressione dell'olio fornito al compressore.
Carica dell'olio - ricarica dell'olio basso
Aggiunta di carica dell'olio ai sistemi 30HX/GX
- Se l'unità 30HXC/GX si spegne ripetutamente per "Low oil Level" (Livello olio basso), questo potrebbe essere un'indicazione di carica dell'olio inadeguata. Potrebbe anche significare semplicemente che l'olio è in fase di recupero dal lato bassa del sistema.
- Iniziare facendo funzionare l'unità a pieno carico per un'ora e mezza.
- Dopo aver funzionato per 1 ora e mezza, consentire all'unità di riavviarsi e funzionare normalmente. Se gli allarmi "Low Oil Level" (Livello olio basso) persistono, l'unità ha una carica dell'olio bassa. Aggiungere olio al separatore dell'olio, utilizzando la valvola di carica dell'olio nella parte inferiore del condensatore (30HXC) o nella parte inferiore del separatore dell'olio (30GX).
NON aggiungere olio in nessun altro punto, poiché potrebbe causare un funzionamento improprio dell'unità.
- Assicurarsi che l'unità non sia in funzione quando si aggiunge olio, poiché ciò renderà più semplice il processo di carica dell'olio. Poiché il sistema è sotto pressione anche quando l'unità non è in funzione, sarà necessario utilizzare una pompa adatta (pompa manuale o elettrica) per aggiungere olio al sistema.
- Utilizzando una pompa adatta, aggiungere 2 litri di olio di poliestere al sistema (CARRIER SPEC: PP47-32). Assicurarsi che l'interruttore di sicurezza del livello dell'olio NON sia ponticellato e consentire all'unità di riavviarsi e funzionare normalmente.
- Se i problemi di livello dell'olio basso persistono, aggiungere altri 1 o 2 litri di olio. Se è necessario aggiungere più di 4 litri di olio al sistema, contattare il reparto assistenza del distributore Carrier.
Quando si trasferisce la carica di refrigerante in un'unità di stoccaggio, l'olio può essere trasportato insieme quando l'unità non è in funzione. Riutilizzare innanzitutto la quantità di refrigerante trasferita. Dopo aver scaricato l'olio, ricaricare solo la quantità scaricata (una carica di olio in eccesso può compromettere il corretto funzionamento dell'unità).
Sostituzione del filtro dell'olio integrale
Un filtro dell'olio integrale nel compressore a vite 06N è specificato per fornire un elevato livello di filtrazione (3 µ) necessario per una lunga durata dei cuscinetti. Poiché la pulizia del sistema è fondamentale per un funzionamento affidabile del sistema, è presente anche un prefiltro (7 µ) nella linea dell'olio all'uscita del separatore dell'olio.
Il codice del ricambio dell'elemento filtrante dell'olio integrale è:
Codice Carrier (compresi filtro e O-ring): 06NA 660016S
Programma di sostituzione del filtro
Il filtro deve essere controllato dopo le prime 500 ore di funzionamento e successivamente ogni 2000 ore. Il filtro deve essere sostituito ogni volta che il differenziale di pressione attraverso il filtro supera i 2,1 bar.
La caduta di pressione attraverso il filtro può essere determinata misurando la pressione alla porta di servizio del filtro e alla porta della pressione dell'olio. La differenza tra queste due pressioni sarà la caduta di pressione attraverso il filtro, la valvola di ritegno e l'elettrovalvola. La caduta di pressione attraverso la valvola di ritegno e l'elettrovalvola è di circa 0,4 bar, che deve essere sottratta dalle due misurazioni della pressione dell'olio per fornire la caduta di pressione del filtro dell'olio. La caduta di pressione del filtro dell'olio deve essere controllata dopo ogni occasione in cui il compressore viene spento per una sicurezza di bassa pressione dell'olio.
Procedura di sostituzione del filtro
- I seguenti passaggi descrivono il metodo corretto per la sostituzione del filtro dell'olio integrale.
- Spegnere e bloccare il compressore.
- Forzare manualmente il funzionamento dell'elettrovalvola dell'olio, al fine di premere l'otturatore della valvola interna sulla sua sede.
- Chiudere la valvola di servizio del filtro dell'olio. Scaricare la pressione dalla cavità del filtro attraverso la porta di servizio del filtro.
- Rimuovere il tappo del filtro dell'olio. Rimuovere il vecchio filtro dell'olio.
- Prima di installare il nuovo filtro dell'olio, "ingrassare" l'o-ring con olio. Installare il filtro e sostituire il tappo.
Prima di chiudere il sistema dell'olio lubrificante, cogli l'occasione per sostituire anche il prefiltro. - Al termine, evacuare la cavità del filtro attraverso la porta di servizio del filtro. Aprire la valvola di servizio del filtro. Rimuovere eventuali dispositivi di blocco del compressore, il compressore è pronto per tornare in funzione.
Sostituzione del compressore
Controllo della rotazione del compressore
La corretta rotazione del compressore è una delle considerazioni applicative più importanti. La rotazione inversa, anche per un periodo molto breve, danneggia il compressore.
Lo schema di protezione dalla rotazione inversa deve essere in grado di determinare la direzione di rotazione e arrestare il compressore entro 300 millisecondi. La rotazione inversa è più probabile che si verifichi ogni volta che il cablaggio ai terminali del compressore viene disturbato.
Per ridurre al minimo la possibilità di rotazione inversa, è necessario applicare la seguente procedura. Ricollegare i cavi di alimentazione al pin del terminale del compressore come originariamente cablati.
Per la sostituzione del compressore, con il compressore è incluso un pressostato di bassa pressione. Questo pressostato di bassa pressione deve essere temporaneamente installato come sicurezza rigida sulla parte ad alta pressione del compressore. Lo scopo di questo interruttore è proteggere il compressore da eventuali errori di cablaggio al pin del terminale del compressore. Il contatto elettrico dell'interruttore sarebbe cablato in serie con il pressostato di alta pressione. L'interruttore rimarrà in posizione fino a quando il compressore non sarà stato avviato e la direzione di rotazione non sarà stata verificata; a questo punto, l'interruttore verrà rimosso.
L'interruttore che è stato selezionato per rilevare la rotazione inversa è il codice Carrier HK01CB001. È disponibile come parte del "Compressor installation package" (pacchetto di installazione del compressore) (codice 06NA 660 013). Questo interruttore apre i contatti quando la pressione scende al di sotto di 50 mm di vuoto. L'interruttore è di tipo a riarmo manuale che può essere ripristinato dopo che la pressione è aumentata nuovamente sopra i 70 kPa. È fondamentale che l'interruttore sia di tipo a riarmo manuale per impedire al compressore di effettuare brevi cicli nella direzione inversa.
Risoluzione dei problemi
Seguire i passaggi seguenti per diagnosticare e correggere i problemi di EXD/Economizzatore.
Sulle unità 30HXC/GX con economizzatori, verificare che la valvola per il tubo del gorgogliatore (parte inferiore dell'economizzatore) sia aperta. Controllare prima il funzionamento del motore EXD (vedere la procedura nel Controls IOM). Dovresti essere in grado di sentire l'attuatore muoversi appoggiando la mano sul corpo dell'EXD o dell'economizzatore (l'attuatore si trova a circa metà o due terzi della distanza dal fondo del guscio dell'economizzatore). Dovresti sentire un forte colpo provenire dall'attuatore quando raggiunge la sommità della sua corsa (può essere udito se l'ambiente circostante è relativamente silenzioso). L'attuatore dovrebbe bussare quando raggiunge il fondo della sua corsa. Se si ritiene che la valvola non funzioni correttamente, contattare il reparto assistenza Carrier per ulteriori controlli su:
- segnali di uscita sul modulo EXD
- collegamenti dei cavi (continuità e collegamento stretto a tutti i terminali dei pin)
- resistenza degli avvolgimenti del motore EXD.


Approvazione del sistema di gestione ambientale
Numero d'ordine: 13173-76, 03 1999 - Sostituisce il numero: 13173-76, marzo 1998
Il produttore si riserva il diritto di modificare le specifiche di qualsiasi prodotto senza preavviso.
Produttore: Carrier s.a., Montluel, Francia.
Stampato nei Paesi Bassi su carta senza cloro.

Scarica manuale
Qui puoi scaricare la versione completa in PDF del manuale, può contenere ulteriori istruzioni di sicurezza, informazioni sulla garanzia, regole FCC, ecc.
Scarica Manuale del compressore a vite Carrier 30HXC/30GX