Εγχειρίδιο συμπιεστή κοχλία Carrier 30HXC/30GX
- 1 ΕΙΣΑΓΩΓΗ
- 2 ΘΕΜΑΤΑ ΑΣΦΑΛΕΙΑΣ
- 3 ΔΙΑΣΤΑΣΕΙΣ, ΑΠΟΣΤΑΣΕΙΣ, ΚΑΤΑΝΟΜΗ ΒΑΡΟΥΣ
- 4 ΦΥΣΙΚΑ ΔΕΔΟΜΕΝΑ 30HXC
- 5 ΗΛΕΚΤΡΙΚΑ ΔΕΔΟΜΕΝΑ 30HXC
- 6 ΗΛΕΚΤΡΙΚΑ ΔΕΔΟΜΕΝΑ ΓΙΑ ΜΟΝΑΔΕΣ ΜΕ ΥΨΗΛΕΣ ΘΕΡΜΟΚΡΑΣΙΕΣ ΣΥΜΠΥΚΝΩΣΗΣ
- 7 ΦΥΣΙΚΑ ΔΕΔΟΜΕΝΑ 30GX
- 8 ΗΛΕΚΤΡΙΚΑ ΔΕΔΟΜΕΝΑ 30GX
-
9
ΔΕΔΟΜΕΝΑ ΕΦΑΡΜΟΓΗΣ
- 9.1 Εύρος λειτουργίας μονάδας
- 9.2 Ελάχιστη ροή ψυχρού νερού
- 9.3 Μέγιστη ροή ψυχρού νερού
- 9.4 Εξατμιστής μεταβλητής ροής
- 9.5 Ελάχιστος όγκος νερού συστήματος
- 9.6 Ρυθμός ροής ψύκτη (l/s)
- 9.7 Ρυθμός ροής συμπυκνωτή (l/s)
- 9.8 Καμπύλη πτώσης πίεσης εξατμιστή
- 9.9 Καμπύλη πτώσης πίεσης συμπυκνωτή
- 9.10 Ελεγκτές ροής
- 10 ΕΓΚΑΤΑΣΤΑΣΗ
- 11 ΟΔΗΓΙΕΣ ΑΝΥΨΩΣΗΣ
- 12 ΗΛΕΚΤΡΙΚΑ ΧΑΡΑΚΤΗΡΙΣΤΙΚΑ
- 13 ΣΥΝΙΣΤΩΜΕΝΕΣ ΔΙΑΤΟΜΕΣ ΚΑΛΩΔΙΩΝ
-
14
ΚΥΡΙΑ ΣΥΣΤΑΤΙΚΑ ΣΥΣΤΗΜΑΤΟΣ ΚΑΙ ΔΕΔΟΜΕΝΑ ΛΕΙΤΟΥΡΓΙΑΣ
- 14.1 Κοχλιοφόρος συμπιεστής με γρανάζια
- 14.2 Εξατμιστής
- 14.3 Συμπυκνωτής και διαχωριστής λαδιού (30HXC)
- 14.4 Διαχωριστής λαδιού (30GX)
- 14.5 Ηλεκτρονική συσκευή διαστολής (EXD)
- 14.6 Economizer
- 14.7 Αντλίες λαδιού
- 14.8 Βαλβίδες ψύξης κινητήρα
- 14.9 Αισθητήρες
- 14.10 Θερμίστορ
- 14.11 Διάταξη ανεμιστήρα 30GX
- 15 ΣΥΝΤΗΡΗΣΗ
- 16 Αντιμετώπιση προβλημάτων
- 17 Λήψη εγχειριδίου
- 18 Σε άλλες γλώσσες

ΕΙΣΑΓΩΓΗ
Πριν από την αρχική εκκίνηση των μονάδων 30HXC και 30GX, όσοι εμπλέκονται στην εκκίνηση, τη λειτουργία και τη συντήρηση θα πρέπει να είναι πλήρως εξοικειωμένοι με αυτές τις οδηγίες και άλλα απαραίτητα δεδομένα εργασίας. Αυτό το βιβλίο παρέχει μια επισκόπηση, ώστε να εξοικειωθείτε με το σύστημα ελέγχου πριν εκτελέσετε τις διαδικασίες εκκίνησης. Οι διαδικασίες σε αυτό το εγχειρίδιο είναι διατεταγμένες με τη σειρά που απαιτείται για τη σωστή εκκίνηση και λειτουργία του μηχανήματος.
ΘΕΜΑΤΑ ΑΣΦΑΛΕΙΑΣ
Οι υγροψύκτες 30HXC και 30GX έχουν σχεδιαστεί για να παρέχουν ασφαλή και αξιόπιστη λειτουργία όταν λειτουργούν εντός των προδιαγραφών σχεδιασμού. Όταν χειρίζεστε αυτόν τον εξοπλισμό, χρησιμοποιήστε καλή κρίση και προφυλάξεις ασφαλείας για να αποφύγετε ζημιές στον εξοπλισμό και την περιουσία ή τραυματισμό του προσωπικού.
Βεβαιωθείτε ότι κατανοείτε και ακολουθείτε τις διαδικασίες και τις προφυλάξεις ασφαλείας που περιέχονται στις οδηγίες του μηχανήματος, καθώς και αυτές που αναφέρονται σε αυτόν τον οδηγό.
ΜΗΝ ΕΚΤΟΝΩΝΕΤΕ τις βαλβίδες εκτόνωσης ψυκτικού εντός ενός κτιρίου. Η έξοδος από τη βαλβίδα εκτόνωσης πρέπει να αερίζεται σε εξωτερικό χώρο. Η συσσώρευση ψυκτικού σε έναν κλειστό χώρο μπορεί να εκτοπίσει το οξυγόνο και να προκαλέσει ασφυξία ή εκρήξεις.
ΠΑΡΕΧΕΤΕ επαρκή αερισμό, ειδικά για κλειστούς χώρους και χώρους με χαμηλό ύψος. Η εισπνοή υψηλών συγκεντρώσεων ατμών είναι επιβλαβής και μπορεί να προκαλέσει καρδιακές αρρυθμίες, απώλεια αισθήσεων ή θάνατο. Οι ατμοί είναι βαρύτεροι από τον αέρα και μειώνουν την ποσότητα οξυγόνου που είναι διαθέσιμη για αναπνοή. Το προϊόν προκαλεί ερεθισμό στα μάτια και το δέρμα. Τα προϊόντα αποσύνθεσης είναι επικίνδυνα.
ΜΗ ΧΡΗΣΙΜΟΠΟΙΕΙΤΕ ΟΞΥΓΟΝΟ για να καθαρίσετε σωληνώσεις ή να ασκήσετε πίεση σε ένα μηχάνημα για οποιονδήποτε σκοπό. Το αέριο οξυγόνο αντιδρά βίαια με λάδι, γράσο και άλλες κοινές ουσίες.
ΠΟΤΕ ΜΗΝ ΥΠΕΡΒΑΙΝΕΤΕ τις καθορισμένες πιέσεις δοκιμής, ΕΠΑΛΗΘΕΥΣΤΕ την επιτρεπόμενη πίεση δοκιμής ελέγχοντας τη βιβλιογραφία οδηγιών και τις πιέσεις σχεδιασμού στην πινακίδα του εξοπλισμού.
ΜΗ ΧΡΗΣΙΜΟΠΟΙΕΙΤΕ αέρα για δοκιμή διαρροών. Χρησιμοποιήστε μόνο ψυκτικό ή ξηρό άζωτο.
ΜΗΝ ΑΠΟΜΟΝΩΝΕΤΕ με βαλβίδα καμία συσκευή ασφαλείας.
ΒΕΒΑΙΩΘΕΙΤΕ ότι όλες οι συσκευές εκτόνωσης πίεσης είναι σωστά εγκατεστημένες πριν από τη λειτουργία οποιουδήποτε μηχανήματος.
ΜΗΝ ΣΥΓΚΟΛΛΑΤΕ Ή ΚΟΒΕΤΕ ΜΕ ΦΛΟΓΑ καμία σωλήνωση ή δοχείο ψυκτικού μέχρι να αφαιρεθεί όλο το ψυκτικό (υγρό και αέριο) από τον ψύκτη. Τα ίχνη ατμών πρέπει να εκτοπιστούν με ξηρό αέρα αζώτου και ο χώρος εργασίας πρέπει να αερίζεται καλά. Το ψυκτικό σε επαφή με μια ανοιχτή φλόγα παράγει τοξικά αέρια.
ΜΗΝ εργάζεστε σε εξοπλισμό υπό τάση, εκτός εάν είστε εξειδικευμένος ηλεκτρολόγος.
ΜΗΝ ΕΡΓΑΖΕΣΤΕ σε ηλεκτρικά εξαρτήματα, συμπεριλαμβανομένων των πινάκων ελέγχου, διακοπτών, ρελέ κ.λπ., έως ότου βεβαιωθείτε ότι ΟΛΗ Η ΙΣΧΥΣ ΕΙΝΑΙ ΑΠΕΝΕΡΓΟΠΟΙΗΜΕΝΗ και η υπολειπόμενη τάση μπορεί να διαρρεύσει από πυκνωτές ή εξαρτήματα στερεάς κατάστασης.
ΚΛΕΙΔΩΣΤΕ ΑΝΟΙΚΤΑ ΚΑΙ ΕΠΙΣΗΜΑΝΕΤΕ ηλεκτρικά κυκλώματα κατά τη διάρκεια της συντήρησης. ΕΑΝ Η ΕΡΓΑΣΙΑ ΔΙΑΚΟΠΕΙ, ελέγξτε ότι όλα τα κυκλώματα είναι απενεργοποιημένα πριν συνεχίσετε την εργασία.
ΜΗΝ αναρροφάτε ψυκτικό.
ΑΠΟΦΥΓΕΤΕ ΤΗΝ ΔΙΑΡΡΟΗ υγρού ψυκτικού στο δέρμα ή την είσοδό του στα μάτια. ΧΡΗΣΙΜΟΠΟΙΗΣΤΕ ΓΥΑΛΙΑ ΑΣΦΑΛΕΙΑΣ. Πλύνετε τυχόν διαρροές από το δέρμα με σαπούνι και νερό. Εάν υγρό ψυκτικό εισέλθει στα μάτια,
ΞΕΠΛΥΝΕΤΕ ΑΜΕΣΩΣ ΤΑ ΜΑΤΙΑ με νερό και συμβουλευτείτε έναν γιατρό.
ΠΟΤΕ ΜΗΝ ΕΦΑΡΜΟΖΕΤΕ μια ανοιχτή φλόγα ή ζωντανό ατμό σε δοχείο ψυκτικού. Μπορεί να προκύψει επικίνδυνη υπερπίεση. Εάν είναι απαραίτητο να θερμάνετε το ψυκτικό, χρησιμοποιήστε μόνο ζεστό νερό.
ΜΗΝ ΕΠΑΝΑΧΡΗΣΙΜΟΠΟΙΕΙΤΕ κυλίνδρους μιας χρήσης (μη επιστρεφόμενους) ή προσπαθήσετε να τους ξαναγεμίσετε. ΕΙΝΑΙ ΕΠΙΚΙΝΔΥΝΟ ΚΑΙ ΠΑΡΑΝΟΜΟ. Όταν οι κύλινδροι αδειάσουν, εκκενώστε την υπόλοιπη πίεση αερίου, χαλαρώστε το κολάρο και ξεβιδώστε και απορρίψτε το στέλεχος της βαλβίδας. ΜΗΝ ΤΟΥΣ ΚΑΙΤΕ.
ΕΛΕΓΞΤΕ ΤΟΝ ΤΥΠΟ ΨΥΚΤΙΚΟΥ πριν προσθέσετε ψυκτικό στο μηχάνημα. Η εισαγωγή του λάθους ψυκτικού μπορεί να προκαλέσει ζημιά ή δυσλειτουργία σε αυτό το μηχάνημα.
ΜΗΝ ΠΡΟΣΠΑΘΗΣΕΤΕ ΝΑ ΑΦΑΙΡΕΣΕΤΕ εξαρτήματα, στοιχεία κ.λπ., ενώ το μηχάνημα βρίσκεται υπό πίεση ή ενώ το μηχάνημα λειτουργεί. Βεβαιωθείτε ότι η πίεση είναι στα 0 kPa πριν διακόψετε τη σύνδεση ψυκτικού.
ΕΠΙΘΕΩΡΗΣΤΕ ΠΡΟΣΕΚΤΙΚΑ όλες τις συσκευές εκτόνωσης, ΤΟΥΛΑΧΙΣΤΟΝ ΜΙΑ ΦΟΡΑ ΤΟ ΧΡΟΝΟ. Εάν το μηχάνημα λειτουργεί σε διαβρωτική ατμόσφαιρα, επιθεωρήστε τις συσκευές σε πιο συχνά διαστήματα.
ΜΗΝ ΠΡΟΣΠΑΘΗΣΕΤΕ ΝΑ ΕΠΙΣΚΕΥΑΣΕΤΕ Ή ΝΑ ΑΝΑΚΑΤΑΣΚΕΥΑΣΕΤΕ καμία συσκευή εκτόνωσης όταν διαπιστωθεί διάβρωση ή συσσώρευση ξένου υλικού (σκουριά, βρωμιά, άλατα κ.λπ.) μέσα στο σώμα ή τον μηχανισμό της βαλβίδας. Αντικαταστήστε τη συσκευή.
ΜΗΝ εγκαθιστάτε συσκευές εκτόνωσης σε σειρά ή ανάποδα.
ΜΗΝ ΠΑΤΑΤΕ πάνω στις σωληνώσεις ψυκτικού. Οι σπασμένες σωληνώσεις μπορεί να χτυπήσουν και να απελευθερώσουν ψυκτικό, προκαλώντας σωματικό τραυματισμό.
ΜΗΝ σκαρφαλώνετε πάνω από ένα μηχάνημα. Χρησιμοποιήστε πλατφόρμα ή σκαλωσιά.
ΧΡΗΣΙΜΟΠΟΙΗΣΤΕ ΜΗΧΑΝΙΚΟ ΕΞΟΠΛΙΣΜΟ (γερανό, ανυψωτικό κ.λπ.) για να σηκώσετε ή να μετακινήσετε βαριά εξαρτήματα. Ακόμη και αν τα εξαρτήματα είναι ελαφριά, χρησιμοποιήστε μηχανικό εξοπλισμό όταν υπάρχει κίνδυνος ολίσθησης ή απώλειας της ισορροπίας σας.
ΝΑ ΓΝΩΡΙΖΕΤΕ ότι ορισμένες αυτόματες ρυθμίσεις εκκίνησης ΜΠΟΡΟΥΝ ΝΑ ΕΝΕΡΓΟΠΟΙΗΣΟΥΝ ΤΟ ΑΝΕΜΙΣΤΗΡΑ ΤΟΥ ΠΥΡΓΟΥ Ή ΤΙΣ ΑΝΤΛΙΕΣ. Ανοίξτε τον αποσυνδέτη μπροστά από τους ανεμιστήρες του πύργου ή τις αντλίες.
ΧΡΗΣΙΜΟΠΟΙΗΣΤΕ μόνο ανταλλακτικά επισκευής ή αντικατάστασης που πληρούν τις απαιτήσεις κώδικα του αρχικού εξοπλισμού.
ΜΗΝ ΕΚΤΟΝΩΝΕΤΕ Ή ΑΠΟΧΕΤΕΥΕΤΕ υδατοστεγανά κουτιά που περιέχουν βιομηχανικές άλμες, χωρίς την άδεια ενός αρμόδιου φορέα.
ΜΗΝ ΧΑΛΑΡΩΝΕΤΕ τα μπουλόνια του υδατοστεγανού κουτιού έως ότου το υδατοστεγανό κουτί έχει αποστραγγιστεί πλήρως.
ΜΗΝ ΧΑΛΑΡΩΝΕΤΕ ένα παξιμάδι στεγανοποίησης πριν ελέγξετε ότι το παξιμάδι έχει θετική εμπλοκή σπειρώματος.
ΕΠΙΘΕΩΡΕΙΤΕ ΠΕΡΙΟΔΙΚΑ όλες τις βαλβίδες, τα εξαρτήματα και τις σωληνώσεις για διάβρωση, σκουριά, διαρροές ή ζημιές.
ΠΑΡΕΧΕΤΕ ΜΙΑ ΣΥΝΔΕΣΗ ΑΠΟΧΕΤΕΥΣΗΣ στη γραμμή εξαερισμού κοντά σε κάθε συσκευή εκτόνωσης πίεσης για να αποτρέψετε τη συσσώρευση συμπυκνωμάτων ή βρόχινου νερού.
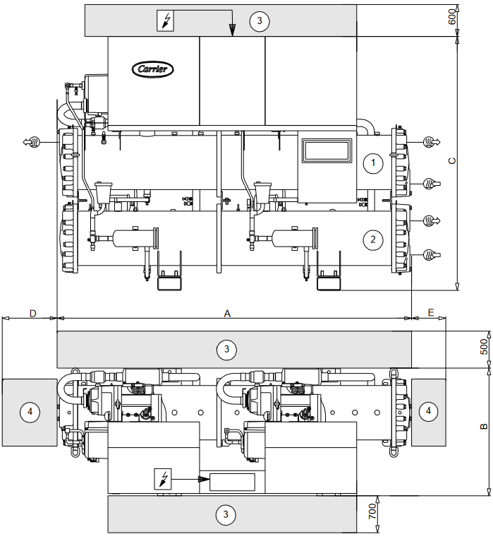
ΔΙΑΣΤΑΣΕΙΣ, ΑΠΟΣΤΑΣΕΙΣ, ΚΑΤΑΝΟΜΗ ΒΑΡΟΥΣ
30HXC 080-190
30HXC080
30HXC090
30HXC100
30HXC110

- Εξατμιστής
- Συμπυκνωτής
- Απαιτούμενες αποστάσεις για λειτουργία και συντήρηση
- Απαιτούμενες αποστάσεις για την αφαίρεση των σωλήνων του εναλλάκτη θερμότητας. Οι αποστάσεις D και E μπορούν να βρίσκονται είτε στην αριστερή είτε στη δεξιά πλευρά.
Είσοδος νερού
Έξοδος νερού
Παροχή ρεύματος
kg: συνολικό βάρος λειτουργίας
| A mm | B mm | C mm | D mm | E mm | kg | |
| 30HXC080 30HXC090 30HXC100 |
2705 | 950 | 1850 | 2360 | 1000 | 2447 2462 2504 |
| 30HXC110 | 2705 | 950 | 1900 | 2360 | 1000 | 2650 |
| 30HXC120 30HXC130 30HXC140 30HXC155 |
3535 | 950 | 1875 | 3220 | 1000 | 2846 2861 2956 2971 |
| 30HXC175 30HXC190 |
3550 | 950 | 2000 | 3220 | 1000 | 3283 3438 |
ΣΗΜΕΙΩΣΗ: Ανατρέξτε στα πιστοποιημένα σχέδια διαστάσεων που παρέχονται με τη μονάδα, κατά το σχεδιασμό μιας εγκατάστασης.
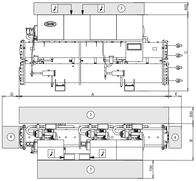
30HXC 200-375

- Εξατμιστής
- Συμπυκνωτής
- Απαιτούμενες αποστάσεις για λειτουργία και συντήρηση
- Απαιτούμενες αποστάσεις για την αφαίρεση των σωλήνων του εναλλάκτη θερμότητας. Οι αποστάσεις D και E μπορούν να βρίσκονται είτε στην αριστερή είτε στη δεξιά πλευρά.
Είσοδος νερού
Έξοδος νερού
Παροχή ρεύματος
kg: συνολικό βάρος λειτουργίας
| A mm | B mm | C mm | D mm | E mm | kg | |
| 30HXC200 | 3975 | 980 | 2035 | 3620 | 1000 | 4090 |
| 30HXC230 30HXC260 30HXC285 |
3995 | 980 | 2116 | 3620 | 1000 | 4705 4815 4985 |
| 30HXC310 30HXC345 30HXC375 |
4490 | 980 | 2163 | 4120 | 1000 | 5760 5870 6105 |
ΣΗΜΕΙΩΣΗ: Ανατρέξτε στα πιστοποιημένα σχέδια διαστάσεων που παρέχονται με τη μονάδα, κατά το σχεδιασμό μιας εγκατάστασης.
30GX 082-182
30GX-082
30GX-092
30GX-102
30GX-112
30GX-122
30GX-132
30GX-152
30GX-162
30GX-182


- Απαιτούμενες αποστάσεις για λειτουργία και συντήρηση
- Απαιτούμενες αποστάσεις για την αφαίρεση των σωλήνων του εναλλάκτη θερμότητας. Οι αποστάσεις μπορούν να βρίσκονται είτε στην αριστερή είτε στη δεξιά πλευρά.
Είσοδος νερού
Έξοδος νερού
Παροχή ρεύματος
Έξοδος αέρα - μην εμποδίζετε
kg: συνολικό βάρος λειτουργίας
| A mm | B mm | kg | |
| 30GX082 30GX092 30GX102 |
2970 | 2215 | 3116 3157 3172 |
| 30GX112 30GX122 30GX132 |
3427 | 2045 | 3515 3531 3633 |
| 30GX152 30GX162 |
4342 | 2835 | 3920 3936 |
| 30GX182 | 5996 | 1820 | 4853 |
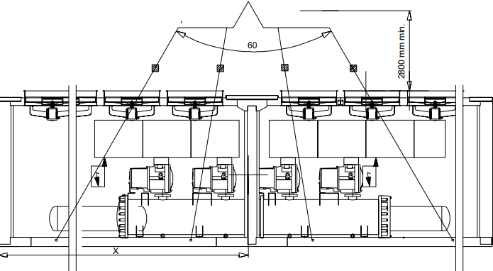
Εγκατάσταση πολλαπλών ψυκτών


Σημειώσεις:
- Η μονάδα πρέπει να έχει αποστάσεις για τη ροή του αέρα ως εξής:
Κορυφή: μην περιορίζετε με κανέναν τρόπο - Σε περίπτωση πολλαπλών ψυκτών (έως τέσσερις μονάδες), η αντίστοιχη απόσταση μεταξύ τους θα πρέπει να αυξηθεί από 1830 σε 2000 mm για την απαίτηση πλευρικού χώρου.
- Απαιτούνται αποστάσεις για την αφαίρεση των σωλήνων του ψυγείου.
ΣΗΜΕΙΩΣΗ: Ανατρέξτε στα πιστοποιημένα σχέδια διαστάσεων που παρέχονται με τη μονάδα, κατά το σχεδιασμό μιας εγκατάστασης.
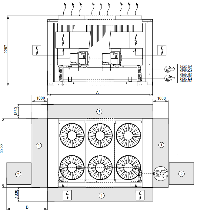
30GX 207-358
30GX-207
30GX-227
30GX-247
30GX-267
30GX-298
30GX-328
30GX-358

- Απαιτούμενες αποστάσεις για λειτουργία και συντήρηση
- Απαιτούμενες αποστάσεις για την αφαίρεση των σωλήνων του εναλλάκτη θερμότητας. Οι αποστάσεις μπορούν να βρίσκονται είτε στην αριστερή είτε στη δεξιά πλευρά.
Είσοδος νερού
Έξοδος νερού
Παροχή ρεύματος
Έξοδος αέρα - μην εμποδίζετε
kg: συνολικό βάρος λειτουργίας
| A mm | B mm | kg | |
| 30GX207 30GX227 |
5996 | 2895 | 5540 5570 |
| 30GX247 30GX267 |
6911 | 2470 | 6134 6365 |
| 30GX298 | 7826 | 2220 | 7354 |
| 30GX328 30GX358 |
8741 | 1250 | 7918 8124 |
Εγκατάσταση πολλαπλών ψυκτών


Σημειώσεις:
- Η μονάδα πρέπει να έχει αποστάσεις για τη ροή του αέρα ως εξής:
Κορυφή: μην περιορίζετε με κανέναν τρόπο - Σε περίπτωση πολλαπλών ψυκτών (έως τέσσερις μονάδες), η αντίστοιχη απόσταση μεταξύ τους θα πρέπει να αυξηθεί από 1830 σε 2000 mm για την απαίτηση πλευρικού χώρου.
- Απαιτούνται αποστάσεις για την αφαίρεση των σωλήνων του ψυγείου.
ΣΗΜΕΙΩΣΗ: Ανατρέξτε στα πιστοποιημένα σχέδια διαστάσεων που παρέχονται με τη μονάδα, κατά το σχεδιασμό μιας εγκατάστασης.
ΦΥΣΙΚΑ ΔΕΔΟΜΕΝΑ 30HXC
| 30HXC | 080 | 090 | 100 | 110 | 120 | 130 | 140 | 155 | 175 | 190 | 200 | 230 | 260 | 285 | 310 | 345 | 375 | |
| Net cooling capacity (Καθαρή ψυκτική ικανότητα) | kW | 292 | 321 | 352 | 389 | 426 | 464 | 514 | 550 | 607 | 663 | 716 | 822 | 918 | 996 | 1119 | 1222 | 1326 |
| Operating weight (Βάρος λειτουργίας) | kg | 2447 | 2462 | 2504 | 2650 | 2846 | 2861 | 2956 | 2971 | 3283 | 3438 | 4090 | 4705 | 4815 | 4985 | 5760 | 5870 | 6105 |
| Refrigerant (Ψυκτικό) Circuit A/B (Κύκλωμα A/B) |
HFC-134a | |||||||||||||||||
| kg | 39/36 | 39/36 | 37/32 | 38/38 | 57/55 | 59/50 | 56/50 | 59/52 | 58/61 | 60/70 | 110/58 | 118/63 | 120/75 | 120/75 | 108/110 | 110/110 | 110/120 | |
| Oil (Λάδι) Circuit A/B (Κύκλωμα A/B) |
Polyolester oil CARRIER SPEC: PP 47-32 | |||||||||||||||||
| l | 15/15 | 15/15 | 15/15 | 15/15 | 15/15 | 15/15 | 15/15 | 15/15 | 15/15 | 15/15 | 30/15 | 30/15 | 30/15 | 30/15 | 30/30 | 30/30 | 30/30 | |
| Compressors (Συμπιεστές) | Hermetic twin-screw Power3 | |||||||||||||||||
| Circ. A, nom. size per compressor** (Κύκλωμα A, ονομ. μέγεθος ανά συμπιεστή**) | 39 | 46 | 46 | 56 | 56 | 66 | 80 | 80 | 80 | 80+ | 66/56 | 80/56 | 80/80 | 80+/80+ | 80/66 | 80/80 | 80+/80+ | |
| Circ. B, nom. size per compressor** (Κύκλωμα B, ονομ. μέγεθος ανά συμπιεστή**) | 39 | 39 | 46 | 46 | 56 | 56 | 56 | 66 | 80 | 80+ | 66 | 80 | 80 | 80+ | 80/66 | 80/80 | 80+/80+ | |
| Control type (Τύπος ελέγχου) | PRO-DIALOG Plus control | |||||||||||||||||
| Number of capacity steps (Αριθμός βαθμίδων χωρητικότητας) | 6 | 6 | 6 | 6 | 6 | 6 | 6 | 6 | 6 | 6 | 8 | 8 | 8 | 8 | 10 | 10 | 10 | |
| Minimum capacity (Ελάχιστη χωρητικότητα) | % | 19 | 19 | 21 | 19 | 21 | 19 | 17 | 19 | 21 | 21 | 14 | 14 | 14 | 14 | 10 | 10 | 10 |
| Evaporator (Εξατμιστής) | Shell and tube type, with internally finned copper tubes (Τύπου κελύφους και σωλήνα, με εσωτερικά πτερυγιοφόρους χάλκινους σωλήνες) | |||||||||||||||||
| Net water volume (Καθαρός όγκος νερού) | l | 65 | 65 | 73 | 87 | 81 | 81 | 91 | 91 | 109 | 109 | 140 | 165 | 181 | 181 | 203 | 229 | 229 |
| Water connections (Συνδέσεις νερού) | Factory-supplied flat flange, to be welded on site (Επίπεδη φλάντζα που παρέχεται από το εργοστάσιο, για συγκόλληση επί τόπου) | |||||||||||||||||
| Inlet and outlet (Είσοδος και έξοδος) | in. | 4 | 4 | 4 | 5 | 5 | 5 | 5 | 5 | 5 | 5 | 6 | 6 | 6 | 6 | 8 | 8 | 8 |
| Drain and vent (NPT) (Αποστράγγιση και εξαερισμός (NPT)) | in. | 3/8 | 3/8 | 3/8 | 3/8 | 3/8 | 3/8 | 3/8 | 3/8 | 3/8 | 3/8 | 3/8 | 3/8 | 3/8 | 3/8 | 3/8 | 3/8 | 3/8 |
| Max. water-side operating pressure (Μέγ. πίεση λειτουργίας στην πλευρά του νερού) | kPa | 1000 | 1000 | 1000 | 1000 | 1000 | 1000 | 1000 | 1000 | 1000 | 1000 | 1000 | 1000 | 1000 | 1000 | 1000 | 1000 | 1000 |
| Condensers (Συμπυκνωτές) | Shell and tube type, with internally finned copper tubes (Τύπου κελύφους και σωλήνα, με εσωτερικά πτερυγιοφόρους χάλκινους σωλήνες) | |||||||||||||||||
| Net water volume (Καθαρός όγκος νερού) | l | 58 | 58 | 58 | 58 | 92 | 92 | 110 | 110 | 132 | 132 | 162 | 208 | 208 | 208 | 251 | 251 | 251 |
| Water connections (Συνδέσεις νερού) | Factory-supplied flat flange, to be welded on site (Επίπεδη φλάντζα που παρέχεται από το εργοστάσιο, για συγκόλληση επί τόπου) | |||||||||||||||||
| Inlet and outlet (Είσοδος και έξοδος) | in. | 5 | 5 | 5 | 5 | 5 | 5 | 5 | 5 | 6 | 6 | 6 | 6 | 6 | 6 | 8 | 8 | 8 |
| Drain and vent (NPT) (Αποστράγγιση και εξαερισμός (NPT)) | in. | 3/8 | 3/8 | 3/8 | 3/8 | 3/8 | 3/8 | 3/8 | 3/8 | 3/8 | 3/8 | 3/8 | 3/8 | 3/8 | 3/8 | 3/8 | 3/8 | 3/8 |
| Max. water-side operating pressure (Μέγ. πίεση λειτουργίας στην πλευρά του νερού) | kPa | 1000 | 1000 | 1000 | 1000 | 1000 | 1000 | 1000 | 1000 | 1000 | 1000 | 1000 | 1000 | 1000 | 1000 | 1000 | 1000 | 1000 |
* Standardised Eurovent conditions: evaporator entering/leaving water temperatures = 12°C/7°C, condenser water entering/leaving water temperatures = 30°C/35°C Net cooling capacity: Gross cooling capacity minus the water pump heat against the internal evaporator pressure drop. ** The compressor size corresponds to the nominal capacity in tons (1 ton = 3.517 kW). (Τυποποιημένες συνθήκες Eurovent: θερμοκρασίες εισερχόμενου/εξερχόμενου νερού εξατμιστή = 12°C/7°C, θερμοκρασίες εισερχόμενου/εξερχόμενου νερού συμπυκνωτή = 30°C/35°C Καθαρή ψυκτική ικανότητα: Μεικτή ψυκτική ικανότητα μείον τη θερμότητα της αντλίας νερού έναντι της εσωτερικής πτώσης πίεσης του εξατμιστή. ** Το μέγεθος του συμπιεστή αντιστοιχεί στην ονομαστική χωρητικότητα σε τόνους (1 τόνος = 3,517 kW).)
ΗΛΕΚΤΡΙΚΑ ΔΕΔΟΜΕΝΑ 30HXC
| 30HXC | 080 | 090 | 100 | 110 | 120 | 130 | 140 | 155 | 175 | 190 | 200 | 230 | 260 | 285 | 310 | 345 | 375 | |
| Power circuit (Κύκλωμα ισχύος) | ||||||||||||||||||
| Nominal power supply* (Ονομαστική παροχή ρεύματος*) | V-ph-Hz | 400-3-50 | ||||||||||||||||
| Voltage range (Εύρος τάσης) | V | 360-440 | ||||||||||||||||
| Control circuit supply (Παροχή κυκλώματος ελέγχου) | The control circuit is supplied via the factory-installed transformer (Το κύκλωμα ελέγχου τροφοδοτείται μέσω του εργοστασιακά εγκατεστημένου μετασχηματιστή) | |||||||||||||||||
| Nominal power input* (Ονομαστική ισχύς εισόδου*) | kW | 59 | 67 | 74 | 83 | 88 | 99 | 112 | 123 | 135 | 146 | 156 | 179 | 201 | 219 | 245 | 274 | 298 |
| Nominal current drawn* (Ονομαστική κατανάλωση ρεύματος*) | A | 98 | 111 | 124 | 139 | 148 | 166 | 186 | 204 | 226 | 242 | 259 | 291 | 335 | 367 | 408 | 456 | 498 |
| Max. power input** (Μέγ. ισχύς εισόδου**) | kW | 76 | 83 | 91 | 101 | 111 | 121 | 135 | 145 | 158 | 181 | 187 | 214 | 237 | 272 | 290 | 316 | 362 |
| Circuit A (Κύκλωμα A) | kW | - | - | - | - | - | - | - | - | - | - | 121 | 135 | 158 | 181 | 145 | 158 | 181 |
| Circuit B (Κύκλωμα B) | kW | - | - | - | - | - | - | - | - | - | - | 66 | 79 | 79 | 91 | 145 | 158 | 181 |
| Cosine phi, unit at full load (Συντελεστής ισχύος, μονάδα σε πλήρες φορτίο) | 0.87 | 0.87 | 0.87 | 0.87 | 0.87 | 0.87 | 0.87 | 0.87 | 0.87 | 0.87 | 0.87 | 0.87 | 0.87 | 0.87 | 0.87 | 0.87 | 0.87 | |
| Max. current drawn (Un - 10%)*** (Μέγ. κατανάλωση ρεύματος (Un - 10%)***) | A | 138 | 152 | 166 | 184 | 202 | 221 | 245 | 264 | 288 | 330 | 341 | 389 | 432 | 495 | 528 | 576 | 660 |
| Circuit A (Κύκλωμα A) | A | - | - | - | - | - | - | - | - | - | - | 221 | 245 | 288 | 330 | 264 | 288 | 330 |
| Circuit B (Κύκλωμα B) | A | - | - | - | - | - | - | - | - | - | - | 120 | 144 | 144 | 165 | 264 | 288 | 330 |
| Maximum current drawn (Un)*** (Μέγιστη κατανάλωση ρεύματος (Un)***) | A | 125 | 138 | 151 | 167 | 184 | 201 | 223 | 240 | 262 | 300 | 310 | 354 | 393 | 450 | 480 | 524 | 600 |
| Circuit A (Κύκλωμα A) | A | - | - | - | - | - | - | - | - | - | - | 201 | 223 | 262 | 300 | 240 | 262 | 300 |
| Circuit B (Κύκλωμα B) | A | - | - | - | - | - | - | - | - | - | - | 109 | 131 | 131 | 150 | 240 | 262 | 300 |
| Max. starting current, std. unit (Un)**** (Μέγ. ρεύμα εκκίνησης, τυπική μονάδα (Un)****) | A | 172 | 197 | 209 | 235 | 252 | 283 | 318 | 335 | 357 | 420 | 806 | 938 | 977 | 1156 | 1064 | 1108 | 1306 |
| Circuit A (Κύκλωμα A) | A | - | - | - | - | - | - | - | - | - | - | 697 | 807 | 846 | 1006 | 824 | 846 | 1006 |
| Circuit B (Κύκλωμα B) | A | - | - | - | - | - | - | - | - | - | - | 605 | 715 | 715 | 856 | 824 | 846 | 1006 |
| Max. starting current/max. current draw ratio, unit (Μέγ. ρεύμα εκκίνησης/μέγ. αναλογία κατανάλωσης ρεύματος, μονάδα) | 1.37 | 1.42 | 1.39 | 1.41 | 1.37 | 1.41 | 1.43 | 1.40 | 1.36 | 1.40 | 2.60 | 2.65 | 2.49 | 2.57 | 2.22 | 2.12 | 2.18 | |
| Max. starting current/max. current draw ratio, circuit A (Μέγ. ρεύμα εκκίνησης/μέγ. αναλογία κατανάλωσης ρεύματος, κύκλωμα A) | - | - | - | - | - | - | - | - | - | - | 3.47 | 3.62 | 3.23 | 3.35 | 3.43 | 3.23 | 3.35 | |
| Max. starting current/max. current draw ratio, circuit B (Μέγ. ρεύμα εκκίνησης/μέγ. αναλογία κατανάλωσης ρεύματος, κύκλωμα B) | - | - | - | - | - | - | - | - | - | - | 5.55 | 5.46 | 5.46 | 5.71 | 3.43 | 3.23 | 3.35 | |
| Max. starting current - reduced current start (Un) **** (Μέγ. ρεύμα εκκίνησης - μειωμένη εκκίνηση ρεύματος (Un) ****) | A | std. | std. | std. | std. | std. | std. | std. | std. | std. | std. | 601 | 643 | 682 | 760 | 769 | 813 | 910 |
| Circuit A (Κύκλωμα A) | A | std. | std. | std. | std. | std. | std. | std. | std. | std. | std. | 492 | 512 | 551 | 610 | 529 | 551 | 610 |
| Circuit B (Κύκλωμα B) | A | std. | std. | std. | std. | std. | std. | std. | std. | std. | std. | 330 | 370 | 370 | 385 | 529 | 551 | 610 |
| Max.starting current - red. current start/ max. current draw ratio, unit (Μέγ. ρεύμα εκκίνησης - κόκκινο. εκκίνηση ρεύματος/ μέγ. αναλογία κατανάλωσης ρεύματος, μονάδα) | std. | std. | std. | std. | std. | std. | std. | std. | std. | std. | 1.94 | 1.82 | 1.74 | 1.69 | 1.60 | 1.55 | 1.52 | |
| Circuit A (Κύκλωμα A) | std. | std. | std. | std. | std. | std. | std. | std. | std. | std. | 2.45 | 2.30 | 2.10 | 2.03 | 2.20 | 2.10 | 2.03 | |
| Circuit B (Κύκλωμα B) | std. | std. | std. | std. | std. | std. | std. | std. | std. | std. | 3.03 | 2.83 | 2.83 | 2.57 | 2.20 | 2.10 | 2.03 | |
| Three-phase short circuit holding current (Τριφασικό ρεύμα συγκράτησης βραχυκυκλώματος) | kA | 25 | 25 | 25 | 25 | 25 | 25 | 25 | 25 | 25 | 25 | N/A | N/A | N/A | N/A | N/A | N/A | N/A |
| Circuit A (Κύκλωμα A) | kA | - | - | - | - | - | - | - | - | - | - | 25 | 25 | 25 | 25 | 25 | 25 | 25 |
| Circuit B (Κύκλωμα B) | kA | - | - | - | - | - | - | - | - | - | - | 15 | 15 | 15 | 15 | 25 | 25 | 25 |
| Customer standby capacity, unit or circ. A, for evaporatorwater pump connections† (Εφεδρική χωρητικότητα πελάτη, μονάδα ή circ. A, για συνδέσεις αντλίας νερού εξατμιστή†) | kW | 8 | 8 | 8 | 11 | 11 | 11 | 15 | 15 | 15 | 15 | 15 | 18 | 18 | 30 | 30 | 30 | 30 |
* Standard Eurovent conditions: Evaporator entering/leaving water temperature 12°C and 7°C. Condenser entering/leaving water temperature 30°C/35°C. (Τυπικές συνθήκες Eurovent: Θερμοκρασία εισερχόμενου/εξερχόμενου νερού εξατμιστή 12°C και 7°C. Θερμοκρασία εισερχόμενου/εξερχόμενου νερού συμπυκνωτή 30°C/35°C.)
** Power input, compressor, at unit operating limits (evaporator water entering/leaving temperature = 15°C/10°C, condenser entering/leaving water temperature = 40°C/45°C) and a nominal voltage of 400 V (data given on the unit name plate). (Ισχύς εισόδου, συμπιεστής, στα όρια λειτουργίας της μονάδας (θερμοκρασία εισερχόμενου/εξερχόμενου νερού εξατμιστή = 15°C/10°C, θερμοκρασία εισερχόμενου/εξερχόμενου νερού συμπυκνωτή = 40°C/45°C) και ονομαστική τάση 400 V (δεδομένα που αναγράφονται στην πινακίδα της μονάδας).)
*** Maximum unit operating current at maximum unit power input. (Μέγιστο ρεύμα λειτουργίας μονάδας στη μέγιστη ισχύ εισόδου μονάδας.)
**** Maximum instantaneous starting current (maximum operating current of the smallest compressor(s) + locked rotor current or reduced starting current of the largest compressor) (Μέγιστο στιγμιαίο ρεύμα εκκίνησης (μέγιστο ρεύμα λειτουργίας του μικρότερου(ων) συμπιεστή(ών) + ρεύμα μπλοκαρισμένου ρότορα ή μειωμένο ρεύμα εκκίνησης του μεγαλύτερου συμπιεστή))
† Current and power inputs not included in the values above. (Οι είσοδοι ρεύματος και ισχύος δεν περιλαμβάνονται στις παραπάνω τιμές.)
N/A Not available (Μη διαθέσιμο)
Συμπιεστές
| Reference (Αναφορά) | Size (Μέγεθος) | I nom. | MHA | LRA | LRA (Y) | LRA (S) 1 cp. | LRA (S) 2 cp. |
| 06NW2146S7N | 39 | 48 | 69 | 344 | 109 | 125 | - |
| 06NW2174S7N | 46 | 58 | 83 | 423 | 134 | 154 | - |
| 06NW2209S7N | 56 | 71 | 101 | 506 | 160 | 260 | 350 |
| 06NW2250S7N | 66 | 87 | 120 | 605 | 191 | 330 | 400 |
| 06NW2300S5N | 80 | 104 | 144 | 715 | 226 | 370 | 420 |
| 06NW2300S5E | 80+ | 111 | 165 | 856 | 270 | 385 | 460 |
Legend: (Υπόμνημα:)
| 06NW | Compressor for water-cooled units (Συμπιεστής για μονάδες ψύξης με νερό) |
| N | Non-economized compressor (Μη οικονομικός συμπιεστής) |
| E | Economized compressor (Οικονομικός συμπιεστής) |
| INOM | Average current draw of the compressor at Eurovent conditions (Μέση κατανάλωση ρεύματος του συμπιεστή σε συνθήκες Eurovent) |
| MHA | Must hold amperes (maximum operating current) at 360 V (Πρέπει να συγκρατεί αμπέρ (μέγιστο ρεύμα λειτουργίας) στα 360 V) |
| LRA | Locked rotor current with across-the-line start (Ρεύμα μπλοκαρισμένου ρότορα με εκκίνηση απευθείας στη γραμμή) |
| LRA (Y) | Locked rotor current at reduced current (star/delta start-up mode) (Ρεύμα μπλοκαρισμένου ρότορα σε μειωμένο ρεύμα (λειτουργία εκκίνησης αστέρα/τριγώνου)) |
| LRA (S) 1 cp. | Start-up with reduced current with electronic starter (start-up duration 3 seconds max.) for one compressor per circuit (Εκκίνηση με μειωμένο ρεύμα με ηλεκτρονικό εκκινητή (διάρκεια εκκίνησης 3 δευτερόλεπτα μέγ.) για έναν συμπιεστή ανά κύκλωμα) |
| LRA (S) 2 cp. | Start-up with reduced current with electronic starter (start-up duration 3 seconds max.) for two compressors per circuit (Εκκίνηση με μειωμένο ρεύμα με ηλεκτρονικό εκκινητή (διάρκεια εκκίνησης 3 δευτερόλεπτα μέγ.) για δύο συμπιεστές ανά κύκλωμα) |
ΗΛΕΚΤΡΙΚΑ ΔΕΔΟΜΕΝΑ ΓΙΑ ΜΟΝΑΔΕΣ ΜΕ ΥΨΗΛΕΣ ΘΕΡΜΟΚΡΑΣΙΕΣ ΣΥΜΠΥΚΝΩΣΗΣ
30HXC 150 και 150A Επιλογές
| 30HXC | 080 | 090 | 100 | 110 | 120 | 130 | 140 | 155 | 175 | 190 | 200 | 230 | 260 | 285 | 310 | 345 | 375 | |
| Κύκλωμα ισχύος | ||||||||||||||||||
| Ονομαστική παροχή ρεύματος* | V-ph-Hz | 400-3-50 | ||||||||||||||||
| Εύρος τάσης | V | 360-440 | ||||||||||||||||
| Παροχή κυκλώματος ελέγχου | Το κύκλωμα ελέγχου τροφοδοτείται μέσω του εργοστασιακά εγκατεστημένου μετασχηματιστή | |||||||||||||||||
| Μέγ. ισχύς εισόδου** | kW | 104 | 117 | 131 | 145 | 159 | 174 | 194 | 211 | 230 | 263 | 271 | 310 | 345 | 395 | 422 | 460 | 526 |
| Κύκλωμα A | kW | - | - | - | - | - | - | - | - | - | - | 175 | 195 | 230 | 263 | 211 | 230 | 263 |
| Κύκλωμα B | kW | - | - | - | - | - | - | - | - | - | - | 96 | 115 | 115 | 132 | 211 | 230 | 263 |
| Μέγ. ρεύμα που καταναλώνεται (Un - 10%)*** | A | 190 | 215 | 240 | 265 | 290 | 320 | 355 | 385 | 420 | 480 | 495 | 564 | 630 | 720 | 770 | 840 | 960 |
| Κύκλωμα A | A | - | - | - | - | - | - | - | - | - | - | 320 | 355 | 420 | 480 | 385 | 420 | 480 |
| Κύκλωμα B | A | - | - | - | - | - | - | - | - | - | - | 175 | 210 | 210 | 240 | 385 | 420 | 480 |
| Μέγιστο ρεύμα που καταναλώνεται (Un)*** | A | 173 | 195 | 218 | 241 | 264 | 291 | 323 | 350 | 382 | 436 | 450 | 514 | 573 | 655 | 700 | 764 | 873 |
| Κύκλωμα A | A | - | - | - | - | - | - | - | - | - | - | 291 | 323 | 382 | 436 | 350 | 382 | 436 |
| Κύκλωμα B | A | - | - | - | - | - | - | - | - | - | - | 159 | 191 | 191 | 218 | 350 | 382 | 436 |
| Μέγ. ρεύμα εκκίνησης, std. μονάδα (Un)**** | A | 277 | 312 | 335 | 379 | 402 | 435 | 519 | 546 | 578 | 618 | 1251 | 1549 | 1608 | 1701 | 1735 | 1799 | 1920 |
| Κύκλωμα A | A | - | - | - | - | - | - | - | - | - | - | 1092 | 1358 | 1417 | 1483 | 1385 | 1417 | 1483 |
| Κύκλωμα B | A | - | - | - | - | - | - | - | - | - | - | 960 | 1226 | 1226 | 1265 | 1385 | 1417 | 1483 |
| Μέγ. ρεύμα εκκίνησης/μέγ. αναλογία κατανάλωσης ρεύματος, μονάδα | 1.61 | 1.60 | 1.54 | 1.57 | 1.52 | 1.49 | 1.61 | 1.56 | 1.51 | 1.42 | 2.78 | 3.02 | 2.81 | 2.60 | 2.48 | 2.36 | 2.20 | |
| Μέγ. ρεύμα εκκίνησης/μέγ. αναλογία κατανάλωσης ρεύματος, κύκλωμα A | - | - | - | - | - | - | - | - | - | - | 3.75 | 4.21 | 3.71 | 3.40 | 3.96 | 3.71 | 3.40 | |
| Μέγ. ρεύμα εκκίνησης/μέγ. αναλογία κατανάλωσης ρεύματος, κύκλωμα B | - | - | - | - | - | - | - | - | - | - | 6.03 | 6.42 | 6.42 | 5.80 | 3.96 | 3.71 | 3.40 | |
| Μέγ. ρεύμα εκκίνησης - εκκίνηση μειωμένου ρεύματος (Un) **** | A | std. | std. | std. | std. | std. | std. | std. | std. | std. | std. | N/A | N/A | N/A | N/A | N/A | N/A | N/A |
| Τριφασικό ρεύμα συγκράτησης βραχυκυκλώματος | kA | 25 | 25 | 25 | 25 | 25 | 25 | 25 | 25 | 25 | 25 | N/A | N/A | N/A | N/A | N/A | N/A | N/A |
| Κύκλωμα A | kA | - | - | - | - | - | - | - | - | - | - | 25 | 25 | 25 | 25 | 25 | 25 | 25 |
| Κύκλωμα B | kA | - | - | - | - | - | - | - | - | - | - | 15 | 15 | 15 | 15 | 25 | 25 | 25 |
| Εφεδρική χωρητικότητα πελάτη, μονάδα ή circ. A, για συνδέσεις αντλίας νερού εξατμιστή† | kW | 8 | 8 | 8 | 11 | 11 | 11 | 15 | 15 | 15 | 15 | 15 | 18 | 18 | 30 | 30 | 30 | 30 |
** Ισχύς εισόδου, συμπιεστής, στα όρια λειτουργίας της μονάδας (θερμοκρασία εισόδου/εξόδου νερού εξατμιστή = 15°C/10°C, θερμοκρασία εισόδου/εξόδου νερού συμπυκνωτή = 40°C/45°C) και ονομαστική τάση 400 V (δεδομένα που αναγράφονται στην πινακίδα της μονάδας).
*** Μέγιστο ρεύμα λειτουργίας μονάδας στη μέγιστη ισχύ εισόδου της μονάδας.
**** Μέγιστο στιγμιαίο ρεύμα εκκίνησης (μέγιστο ρεύμα λειτουργίας του μικρότερου(ων) συμπιεστή(ων) + ρεύμα μπλοκαρισμένου ρότορα ή μειωμένο ρεύμα εκκίνησης του μεγαλύτερου συμπιεστή)
† Οι τρέχουσες και οι εισροές ισχύος δεν περιλαμβάνονται στις παραπάνω τιμές.
N/A Μη διαθέσιμο
Οι μονάδες 30HXC 080-375 για υψηλές θερμοκρασίες συμπύκνωσης προέρχονται απευθείας από τα τυπικά μοντέλα. Το εύρος εφαρμογής τους είναι το ίδιο με αυτό των τυπικών μονάδων, αλλά επιτρέπει τη λειτουργία σε θερμοκρασίες νερού εξόδου συμπυκνωτή έως 63°C. Το στοιχείο ελέγχου PRO-DIALOG προσφέρει όλα τα πλεονεκτήματα των τυπικών μονάδων, καθώς και τον έλεγχο της θερμοκρασίας νερού εξόδου συμπυκνωτή.
Οι κύριες τροποποιήσεις είναι:
- Χρήση συμπιεστών 30GX
- Τροποποίηση των ηλεκτρικών εξαρτημάτων για λειτουργία με συμπιεστές για υψηλές θερμοκρασίες συμπύκνωσης.
- Τροποποίηση των εναλλακτών θερμότητας για την κάλυψη των απαιτήσεων του κώδικα πίεσης (εάν είναι απαραίτητο).
Επιλογή 150
Αυτές οι μονάδες έχουν σχεδιαστεί για παραδοσιακές εφαρμογές για μονάδες με ψύξη νερού, αλλά για υψηλότερες θερμοκρασίες νερού εξόδου συμπυκνωτή από 45°C.
Όπως και οι τυπικές μονάδες, είναι εξοπλισμένες με αισθητήρες νερού εισόδου και εξόδου συμπυκνωτή, εγκατεστημένους στην σωλήνωση.
Είναι δυνατός ο έλεγχος του μηχανήματος στην έξοδο νερού συμπυκνωτή, απαιτώντας μια αλλαγή διαμόρφωσης εργοστασίου και τη χρήση μιας συσκευής αναστροφής εισόδου θέρμανσης/ψύξης.
Επιλογή 150A
Αυτές οι μονάδες έχουν σχεδιαστεί για αντλίες θερμότητας νερού-νερού.
Είναι εργοστασιακά διαμορφωμένες ως αντλίες θερμότητας (έλεγχος θέρμανσης/ψύξης ως συνάρτηση της απομακρυσμένης συσκευής αναστροφής). Ο συμπυκνωτής ενσωματώνει θερμομόνωση που είναι πανομοιότυπη με αυτή του εξατμιστή.
Τεχνικές πληροφορίες
Όλες οι πληροφορίες είναι πανομοιότυπες με αυτές των τυπικών μονάδων 30HXC, εκτός από τις ακόλουθες παραγράφους.
Επιλογή
Δεν υπάρχουν ονομαστικές συνθήκες για αυτόν τον τύπο μονάδας. Η επιλογή γίνεται χρησιμοποιώντας τον τρέχοντα ηλεκτρονικό κατάλογο.
Διαστάσεις
Αυτές είναι πανομοιότυπες με αυτές των τυπικών μονάδων 30HXC. Η μόνη διαφορά είναι στη διάμετρο της εισερχόμενης σύνδεσης καλωδίωσης πεδίου, που περιγράφεται στο κεφάλαιο "Συνιστώμενη επιλογή". Ανατρέξτε στα σχέδια διαστάσεων για αυτές τις μονάδες, πριν προχωρήσετε στην καλωδίωση.
Συμπιεστής
Δείτε τον πίνακα συμπιεστών 30GX.
Επιλογές και αξεσουάρ
Όλες οι επιλογές που είναι διαθέσιμες για τις τυπικές μονάδες 30HXC είναι συμβατές, εκτός από:
| Επιλογή 5, μονάδα άλμης | Ειδική μονάδα |
| Επιλογή 25, ομαλή εκκίνηση, μονάδες 30HXC 200-375 | Μη διαθέσιμο |
Προσοχή:
Εάν οι μονάδες έχουν δύο διαφορετικούς τρόπους λειτουργίας - έναν με υψηλή θερμοκρασία συμπύκνωσης και τον άλλο με χαμηλή θερμοκρασία συμπύκνωσης - και η μετάβαση γίνεται με τη μονάδα σε λειτουργία, η θερμοκρασία δεν πρέπει να ποικίλλει περισσότερο από 3 K ανά λεπτό. Σε περιπτώσεις όπου αυτό δεν είναι δυνατό, συνιστάται να περάσετε από έναν διακόπτη εκκίνησης/διακοπής μονάδας (απομακρυσμένη εκκίνηση/διακοπή διαθέσιμη για τυπικές μονάδες).
ΦΥΣΙΚΑ ΔΕΔΟΜΕΝΑ 30GX
| 30GX | 082 | 092 | 102 | 112 | 122 | 132 | 152 | 162 | 182 | 207 | 227 | 247 | 267 | 298 | 328 | 358 | ||
| Καθαρή ψυκτική ικανότητα | kW | 285 | 309 | 332 | 388 | 417 | 450 | 505 | 536 | 602 | 687 | 744 | 810 | 910 | 1003 | 1103 | 1207 | |
| Βάρος λειτουργίας | kg | 3116 | 3157 | 3172 | 3515 | 3531 | 3633 | 3920 | 3936 | 4853 | 5540 | 5570 | 6134 | 6365 | 7354 | 7918 | 8124 | |
| Γέμιση ψυκτικού | HFC-134a | |||||||||||||||||
| Κύκλωμα A/B | kg | 55/55 | 58/50 | 54/53 | 55/53 | 60/57 | 63/60 | 75/69 | 75/75 | 80/80 | 130/85 | 130/85 | 155/98 | 170/104 | 162/150 | 162/165 | 175/175 | |
| Λάδι | Λάδι πολυεστέρα CARRIER SPEC: PP 47-32 | |||||||||||||||||
| Κύκλωμα A/B | l | 20/20 | 20/20 | 20/20 | 20/20 | 20/20 | 20/20 | 20/20 | 20/20 | 20/20 | 40/20 | 40/20 | 40/20 | 40/20 | 40/40 | 40/40 | 40/40 | |
| Συμπιεστές | Ερμητικός διπλού κοχλία Power3 | |||||||||||||||||
| Circ. A, ονομ. μέγεθος ανά συμπιεστή** | 46 | 46 | 56 | 56 | 66 | 66 | 80 | 80 | 80+ | 66/56 | 80/66 | 80/80 | 80+/80+ | 80/80 | 80/80 | 80+/80+ | ||
| Circ. B, ονομ. μέγεθος ανά συμπιεστή** | 39 | 46 | 46 | 56 | 56 | 66 | 66 | 80 | 80+ | 80 | 80 | 80 | 80+ | 66/66 | 80/802 | 80+/80+ | ||
| Τύπος ελέγχου | Έλεγχος PRO-DIALOG Plus | |||||||||||||||||
| Αριθμός βημάτων χωρητικότητας | 6 | 6 | 6 | 6 | 6 | 6 | 6 | 6 | 6 | 8 | 8 | 8 | 8 | 10 | 10 | 10 | ||
| Ελάχιστη χωρητικότητα | % | 19 | 21 | 19 | 21 | 19 | 21 | 19 | 21 | 21 | 16 | 14 | 14 | 14 | 9 | 10 | 10 | |
| Εξατμιστής | Τύπου κελύφους και σωλήνα, με εσωτερικά πτερυγιοφόρους χάλκινους σωλήνες | |||||||||||||||||
| Καθαρός όγκος νερού | l | 65 | 73 | 73 | 87 | 87 | 101 | 91 | 91 | 109 | 140 | 140 | 165 | 181 | 203 | 229 | 229 | |
| Συνδέσεις νερού | Εργοστασιακά παρεχόμενη επίπεδη φλάντζα, για συγκόλληση επί τόπου | |||||||||||||||||
| Είσοδος και έξοδος | in. | 4 | 4 | 4 | 5 | 5 | 5 | 5 | 5 | 5 | 6 | 6 | 6 | 6 | 8 | 8 | 8 | |
| Αποστράγγιση και εξαέρωση (NPT) | in. | 3/8 | 3/8 | 3/8 | 3/8 | 3/8 | 3/8 | 3/8 | 3/8 | 3/8 | 3/8 | 3/8 | 3/8 | 3/8 | 3/8 | 3/8 | 3/8 | |
| Μέγ. πίεση λειτουργίας στην πλευρά του νερού | kPa | 1000 | 1000 | 1000 | 1000 | 1000 | 1000 | 1000 | 1000 | 1000 | 1000 | 1000 | 1000 | 1000 | 1000 | 1000 | 1000 | |
| Συμπυκνωτές | Χάλκινοι σωλήνες και πτερύγια αλουμινίου | |||||||||||||||||
| Ανεμιστήρες | Αξονικός ανεμιστήρας FLYING BIRD 2 με περιστρεφόμενο κάλυμμα | |||||||||||||||||
| Ποσότητα | 4 | 4 | 4 | 6 | 6 | 6 | 8 | 8 | 8 | 10 | 10 | 12 | 12 | 14 | 16 | 16 | ||
| Ταχύτητα | r/s | 15.8 | 15.8 | 15.8 | 15.8 | 15.8 | 15.8 | 15.8 | 15.8 | 15.8 | 15.8 | 15.8 | 15.8 | 15.8 | 15.8 | 15.8 | 15.8 | |
| Συνολική ροή αέρα | l/s | 21110 | 21110 | 21110 | 31660 | 31660 | 31660 | 42220 | 42220 | 42220 | 52770 | 52770 | 63330 | 63330 | 73880 | 84440 | 84440 | |
* Τυποποιημένες συνθήκες Eurovent: θερμοκρασίες νερού εισόδου/εξόδου εξατμιστή = 12°C/7°C, θερμοκρασία εξωτερικού αέρα = 35°C Καθαρή ψυκτική ικανότητα: Μεικτή ψυκτική ικανότητα μείον τη θερμότητα της αντλίας νερού έναντι της εσωτερικής πτώσης πίεσης του εξατμιστή.
** Το μέγεθος του συμπιεστή αντιστοιχεί στην ονομαστική χωρητικότητα σε τόνους (1 τόνος = 3,517 kW).
ΗΛΕΚΤΡΙΚΑ ΔΕΔΟΜΕΝΑ 30GX
| 30HXC | 082 | 092 | 102 | 112 | 122 | 132 | 152 | 162 | 182 | 207 | 227 | 247 | 267 | 298 | 328 | 358 | ||
| Ηλεκτρικό κύκλωμα | ||||||||||||||||||
| Ονομαστική παροχή ρεύματος* | V-ph-Hz | 400-3-50 | ||||||||||||||||
| Εύρος τάσης | V | 360-440 | ||||||||||||||||
| Παροχή κυκλώματος ελέγχου | Το κύκλωμα ελέγχου τροφοδοτείται μέσω του εργοστασιακά εγκατεστημένου μετασχηματιστή | |||||||||||||||||
| Ονομαστική ισχύς εισόδου* | kW | 98 | 109 | 123 | 133 | 150 | 166 | 179 | 196 | 214 | 246 | 281 | 292 | 332 | 364 | 394 | 449 | |
| Ονομαστική κατανάλωση ρεύματος* | A | 180 | 200 | 223 | 256 | 273 | 290 | 326 | 352 | 388 | 449 | 492 | 528 | 582 | 642 | 704 | 776 | |
| Μέγ. ισχύς εισόδου** | kW | 127 | 141 | 154 | 175 | 191 | 207 | 234 | 253 | 286 | 319 | 355 | 380 | 429 | 462 | 506 | 572 | |
| Κύκλωμα A | kW | - | - | - | - | - | - | - | - | - | 193 | 228 | 253 | 286 | 253 | 253 | 286 | |
| Κύκλωμα B | kW | - | - | - | - | - | - | - | - | - | 127 | 127 | 127 | 143 | 209 | 253 | 286 | |
| Συντελεστής ισχύος (Cosine phi), μονάδα σε πλήρες φορτίο | 0.85 | 0.85 | 0.85 | 0.85 | 0.85 | 0.85 | 0.86 | 0.86 | 0.86 | 0.86 | 0.86 | 0.86 | 0.86 | 0.86 | 0.86 | 0.86 | ||
| Μέγ. κατανάλωση ρεύματος (Un - 10%)*** | A | 237 | 262 | 287 | 323 | 353 | 383 | 429 | 464 | 524 | 585 | 650 | 696 | 786 | 847 | 928 | 1048 | |
| Κύκλωμα A | A | - | - | - | - | - | - | - | - | - | 353 | 418 | 464 | 524 | 464 | 464 | 524 | |
| Κύκλωμα B | A | - | - | - | - | - | - | - | - | - | 232 | 232 | 232 | 262 | 383 | 464 | 524 | |
| Μέγιστη κατανάλωση ρεύματος (Un)*** | A | 217 | 240 | 263 | 297 | 324 | 351 | 394 | 426 | 480 | 537 | 596 | 639 | 721 | 777 | 852 | 961 | |
| Κύκλωμα A | A | - | - | - | - | - | - | - | - | - | 324 | 383 | 426 | 480 | 426 | 426 | 480 | |
| Κύκλωμα B | A | - | - | - | - | - | - | - | - | - | 213 | 213 | 213 | 240 | 351 | 426 | 480 | |
| Μέγ. ρεύμα εκκίνησης, std. μονάδα**** (Un) | A | 334 | 357 | 401 | 435 | 468 | 495 | 590 | 622 | 662 | 1338 | 1631 | 1674 | 1767 | 1812 | 1887 | 2008 | |
| Κύκλωμα A*** | A | - | - | - | - | - | - | - | - | - | 1125 | 1418 | 1461 | 1527 | 1461 | 1461 | 1527 | |
| Κύκλωμα B*** | A | - | - | - | - | - | - | - | - | - | 1248 | 1248 | 1248 | 1287 | 1152 | 1461 | 1527 | |
| Μέγ. ρεύμα εκκίνησης/μέγ. αναλογία κατανάλωσης ρεύματος, μονάδα | 1.54 | 1.49 | 1.53 | 1.47 | 1.44 | 1.41 | 1.50 | 1.46 | 1.38 | 2.49 | 2.74 | 2.62 | 2.45 | 2.33 | 2.22 | 2.09 | ||
| Μέγ. ρεύμα εκκίνησης/μέγ. αναλογία κατανάλωσης ρεύματος, κύκλωμα A | - | - | - | - | - | - | - | - | - | 3.47 | 3.70 | 3.43 | 3.18 | 3.43 | 3.43 | 3.18 | ||
| Μέγ. ρεύμα εκκίνησης/μέγ. αναλογία κατανάλωσης ρεύματος, κύκλωμα B | - | - | - | - | - | - | - | - | - | 5.86 | 5.86 | 5.86 | 5.36 | 3.28 | 3.43 | 3.18 | ||
| Μέγ. ρεύμα εκκίνησης - εκκίνηση με μειωμένο ρεύμα (Un) **** | A | std. | std. | std. | std. | std. | std. | std. | std. | std. | 878 | 955 | 998 | 1102 | 1136 | 1211 | 1343 | |
| Κύκλωμα A | A | std. | std. | std. | std. | std. | std. | std. | std. | std. | 665 | 742 | 785 | 862 | 785 | 785 | 862 | |
| Κύκλωμα B | A | std. | std. | std. | std. | std. | std. | std. | std. | std. | 572 | 572 | 572 | 622 | 692 | 785 | 862 | |
| Μέγ.ρεύμα εκκίνησης - κόκκινο. εκκίνηση ρεύματος/ μέγ. αναλογία κατανάλωσης ρεύματος, μονάδα | std. | std. | std. | std. | std. | std. | std. | std. | std. | 1.64 | 1.60 | 1.56 | 1.53 | 1.46 | 1.42 | 1.40 | ||
| Κύκλωμα A | std. | std. | std. | std. | std. | std. | std. | std. | std. | 2.05 | 1.94 | 1.84 | 1.79 | 1.84 | 1.84 | 1.79 | ||
| Κύκλωμα B | std. | std. | std. | std. | std. | std. | std. | std. | std. | 2.69 | 2.69 | 2.69 | 2.39 | 1.97 | 1.84 | 1.79 | ||
| Τριφασικό ρεύμα βραχυκυκλώματος | kA | 25 | 25 | 25 | 25 | 25 | 25 | 25 | 25 | 25 | N/A | N/A | N/A | N/A | N/A | N/A | N/A | |
| Κύκλωμα A | kA | - | - | - | - | - | - | - | - | - | 25 | 25 | 25 | 25 | 25 | 25 | 25 | |
| Κύκλωμα B | kA | - | - | - | - | - | - | - | - | - | 25 | 25 | 25 | 25 | 25 | 25 | 25 | |
| Εφεδρική χωρητικότητα πελάτη, μονάδα ή circ. A, για συνδέσεις αντλίας νερού εξατμιστή† | kW | 4 | 4 | 4 | 5.5 | 5.5 | 5.5 | 7.5 | 7.5 | 7.5 | 7.5 | 9 | 9 | 9 | 15 | 15 | 15 | |
* Τυπικές συνθήκες Eurovent: Θερμοκρασία νερού εισόδου/εξόδου εξατμιστή 12°C και 7°C. Θερμοκρασία εξωτερικού αέρα 35°C.
** Ισχύς εισόδου, συμπιεστής και ανεμιστήρας, στα όρια λειτουργίας της μονάδας (θερμοκρασία νερού εισόδου/εξόδου εξατμιστή = 15°C/10°C, θερμοκρασία εξωτερικού αέρα = 46°C) και ονομαστική τάση 400 V (δεδομένα που αναγράφονται στην πινακίδα της μονάδας).
*** Μέγιστο ρεύμα λειτουργίας μονάδας στη μέγιστη ισχύ εισόδου της μονάδας.
**** Μέγιστο στιγμιαίο ρεύμα εκκίνησης (μέγιστο ρεύμα λειτουργίας του μικρότερου(ων) συμπιεστή(ών) + ρεύμα ανεμιστήρα + ρεύμα κλειδωμένου ρότορα ή μειωμένο ρεύμα εκκίνησης του μεγαλύτερου συμπιεστή).
† Οι τρέχουσες και οι εισροές ισχύος δεν περιλαμβάνονται στις παραπάνω τιμές
N/A Δεν είναι διαθέσιμο
Συμπιεστές
| Αναφορά | Μέγεθος | I nom. | MHA | LRA | LRA (Y) | LRA (S) 1 cp. | LRA (S) 2 cp. |
| 06NA2146S7N | 39 | 70 | 95 | 605 | 191 | 220 | - |
| 06NA2174S7N | 46 | 90 | 120 | 715 | 226 | 260 | - |
| 06NA2209S7N | 56 | 113 | 145 | 856 | 270 | 330 | 420 |
| 06NA2250S7N | 66 | 130 | 175 | 960 | 303 | 380 | 500 |
| 06NA2300S5N | 80 | 156 | 210 | 1226 | 387 | 445 | 550 |
| 06NA2300S5E | 80+ | 174 | 240 | 1265 | 400 | 460 | 600 |
Υπόμνημα:
| 06NA | Συμπιεστής για μονάδες αερόψυκτες |
| N | Μη οικονομικός συμπιεστής |
| E | Οικονομικός συμπιεστής |
| INOM | Μέση κατανάλωση ρεύματος του συμπιεστή σε συνθήκες Eurovent |
| MHA | Πρέπει να διατηρεί αμπέρ (μέγιστο ρεύμα λειτουργίας) στα 360 V |
| LRA | Ρεύμα κλειδωμένου ρότορα με εκκίνηση across-the-line |
| LRA (Y) | Ρεύμα κλειδωμένου ρότορα σε μειωμένο ρεύμα (λειτουργία εκκίνησης αστέρα/δέλτα) |
| LRA (S) 1 cp. | Εκκίνηση με μειωμένο ρεύμα με ηλεκτρονικό εκκινητή (διάρκεια εκκίνησης 3 δευτερόλεπτα μέγ.) για έναν συμπιεστή ανά κύκλωμα |
| LRA (S) 2 cp. | Εκκίνηση με μειωμένο ρεύμα με ηλεκτρονικό εκκινητή (διάρκεια εκκίνησης 3 δευτερόλεπτα μέγ.) για δύο συμπιεστές ανά κύκλωμα |
ΔΕΔΟΜΕΝΑ ΕΦΑΡΜΟΓΗΣ
Εύρος λειτουργίας μονάδας
| Εξατμιστής | Ελάχιστο | Μέγιστο | |
| Θερμοκρασία εισερχόμενου νερού στον εξατμιστή | °C | 6.8* | 21 |
| Θερμοκρασία εξερχόμενου νερού από τον εξατμιστή | °C | 4** | 15 |
| Συμπυκνωτής (με ψύξη νερού) | Ελάχιστο | Μέγιστο | |
| Θερμοκρασία εισερχόμενου νερού στον συμπυκνωτή | °C | 20*** | 42 |
| Θερμοκρασία εξερχόμενου νερού από τον συμπυκνωτή | °C | 25 | 45 |
| Εξωτερική θερμοκρασία περιβάλλοντος λειτουργίας 30HXC | °C | 6 | 40 |
| Συμπυκνωτής (με ψύξη αέρα) | Ελάχιστο | Μέγιστο | |
| Εξωτερική θερμοκρασία περιβάλλοντος λειτουργίας | °C | 0 | 46 |
| Διαθέσιμη στατική πίεση | kPa | 0 |
Σημειώσεις:
* Για εφαρμογή που απαιτεί λειτουργία σε λιγότερο από 6.8°C, επικοινωνήστε με την Carrier s.a. για επιλογή μονάδας χρησιμοποιώντας τον ηλεκτρονικό κατάλογο της Carrier.
** Για εφαρμογή που απαιτεί λειτουργία σε λιγότερο από 4°C, οι μονάδες απαιτούν τη χρήση αντιψυκτικού.
*** Οι μονάδες με ψύξη νερού (30HXC) που λειτουργούν σε πλήρες φορτίο και κάτω από 20°C θερμοκρασία εισερχόμενου νερού στον συμπυκνωτή απαιτούν τη χρήση ελέγχου πίεσης κεφαλής με αναλογικές βαλβίδες ελέγχου νερού (δείτε την παράγραφο για τον έλεγχο πίεσης κεφαλής).
Σε προσωρινούς τρόπους λειτουργίας (εκκίνηση και σε μερικό φορτίο) η μονάδα μπορεί να λειτουργήσει με θερμοκρασία εισερχόμενου αέρα στον συμπυκνωτή 13°C.
Ελάχιστη ροή ψυχρού νερού
Η ελάχιστη ροή ψυχρού νερού εμφανίζεται στον πίνακα στην επόμενη σελίδα. Εάν η ροή είναι μικρότερη από αυτή, η ροή του εξατμιστή μπορεί να ανακυκλωθεί, όπως φαίνεται στο διάγραμμα. Η θερμοκρασία του μείγματος που εξέρχεται από τον εξατμιστή δεν πρέπει ποτέ να είναι μικρότερη από 2.8 K χαμηλότερη από τη θερμοκρασία εισερχόμενου ψυχρού νερού.

ΓΙΑ ΕΛΑΧΙΣΤΗ ΠΑΡΟΧΗ ΨΥΧΡΟΥ ΝΕΡΟΥ
Μέγιστη ροή ψυχρού νερού
Η μέγιστη ροή ψυχρού νερού περιορίζεται από τη μέγιστη επιτρεπόμενη πτώση πίεσης στον εξατμιστή. Παρέχεται στον πίνακα στην επόμενη σελίδα. Εάν η ροή υπερβαίνει τη μέγιστη τιμή, είναι δυνατές δύο λύσεις:
- Επιλέξτε έναν μη τυπικό εξατμιστή με ένα λιγότερο πέρασμα νερού, το οποίο θα επιτρέψει μια υψηλότερη μέγιστη παροχή νερού.
- Παρακάμψτε τον εξατμιστή όπως φαίνεται στο διάγραμμα για να επιτύχετε μια υψηλότερη διαφορά θερμοκρασίας με χαμηλότερη παροχή εξατμιστή.

ΓΙΑ ΜΕΓΙΣΤΗ ΠΑΡΟΧΗ ΨΥΧΡΟΥ ΝΕΡΟΥ
Εξατμιστής μεταβλητής ροής
Μπορεί να χρησιμοποιηθεί εξατμιστής μεταβλητής ροής σε τυπικούς ψύκτες 30HXC και 30GX. Οι ψύκτες διατηρούν μια σταθερή θερμοκρασία εξερχόμενου νερού υπό όλες τις συνθήκες ροής. Για να συμβεί αυτό, η ελάχιστη παροχή πρέπει να είναι υψηλότερη από την ελάχιστη ροή που δίνεται στον πίνακα των επιτρεπόμενων παροχών και δεν πρέπει να ποικίλλει περισσότερο από 10% ανά λεπτό. Εάν η παροχή αλλάζει πιο γρήγορα, το σύστημα θα πρέπει να περιέχει τουλάχιστον 6.5 λίτρα νερού ανά kW αντί για 3.25 l/kW.
Ελάχιστος όγκος νερού συστήματος
Όποιο και αν είναι το σύστημα, η ελάχιστη χωρητικότητα του βρόχου νερού δίνεται από τον τύπο:
Χωρητικότητα = Cap (kW) x N Λίτρα
| Εφαρμογή | N |
| Κανονικός κλιματισμός | 3.25 |
| Ψύξη τύπου διεργασίας | 6.5 |
Όπου Cap είναι η ονομαστική χωρητικότητα ψύξης του συστήματος (kW) στις ονομαστικές συνθήκες λειτουργίας της εγκατάστασης.
Αυτός ο όγκος είναι απαραίτητος για σταθερή λειτουργία και ακριβή έλεγχο θερμοκρασίας.
Συχνά είναι απαραίτητο να προστεθεί μια δεξαμενή νερού buffer στο κύκλωμα για να επιτευχθεί ο απαιτούμενος όγκος. Η ίδια η δεξαμενή πρέπει να είναι εσωτερικά φραγμένη για να εξασφαλιστεί η σωστή ανάμειξη του υγρού (νερό ή άλμη). Ανατρέξτε στα παραδείγματα παρακάτω.
ΣΗΜΕΙΩΣΗ: Ο συμπιεστής δεν πρέπει να επανεκκινείται περισσότερες από 6 φορές σε μία ώρα.


Ρυθμός ροής ψύκτη (l/s)
| 30HXC | Min.* | Max.** | ||
| 080-090 | 5.7 | 22.7 | ||
| 100 | 6.0 | 24.1 | ||
| 110 | 6.9 | 27.5 | ||
| 120-130 | 8.3 | 33.0 | ||
| 140-155 | 10.0 | 39.5 | ||
| 175-190 | 10.7 | 42.7 | ||
| 200 | 13.4 | 53.7 | ||
| 230 | 13.4 | 60.6 | ||
| 260-285 | 17.0 | 68.1 | ||
| 310 | 19.4 | 77.8 | ||
| 345-375 | 21.3 | 85.3 | ||
| 30GX | Min.* | Max.** | ||
| 082 | 5.7 | 22.7 | ||
| 092-102 | 6.0 | 24.1 | ||
| 112-122 | 6.9 | 27.5 | ||
| 132 | 8.4 | 33.7 | ||
| 152-162 | 10.0 | 39.9 | ||
| 182 | 10.7 | 42.7 | ||
| 207-227 | 13.4 | 53.7 | ||
| 247 | 15.1 | 60.6 | ||
| 267 | 17.0 | 68.1 | ||
| 298 | 19.4 | 77.8 | ||
| 328-358 | 21.3 | 85.3 | ||
* Βασίζεται σε ταχύτητα νερού 0.9 m/s.
** Βασίζεται σε ταχύτητα νερού 3.6 m/s.
Ρυθμός ροής συμπυκνωτή (l/s)
| 30HXC | Min.* Κλειστού βρόχου (Closed loop) | Ανοιχτού βρόχου (Open loop) | Max.** |
| 080-110 | 2.5 | 7.5 | 29.9 |
| 120-130 | 3.1 | 9.3 | 37.3 |
| 140-155 | 3.8 | 11.4 | 45.5 |
| 175-190 | 4.6 | 13.8 | 55.2 |
| 200 | 5.0 | 14.9 | 59.6 |
| 230-285 | 6.7 | 20.1 | 80.3 |
| 310-375 | 7.3 | 22.0 | 88.0 |
* Βασίζεται σε ταχύτητα νερού 0.3 m/s σε κλειστό βρόχο και 0.9 m/s σε ανοιχτό βρόχο.
** Βασίζεται σε ταχύτητα νερού 3.6 m/s
Καμπύλη πτώσης πίεσης εξατμιστή

- 30HXC 080-090/30GX 082
- 30HXC 100/30GX 092-102
- 30HXC 110/30GX 112-122
- 30GX 132
- 30HXC 120-130
- 30HXC 140-155/30GX 152-162
- 30HXC 175-190/30GX 182
- 30HXC 200/30GX 207-227
- 30HXC 230/30GX 247
- 30HXC 260-285/30GX 267
- 30HXC 310/30GX 298
- 30HXC 345-375/30GX 328-358
Καμπύλη πτώσης πίεσης συμπυκνωτή

- 30HXC 080-090-100-110
- 30HXC 120-130
- 30HXC 140-155
- 30HXC 175-190
- 30HXC 200
- 30HXC 230-260-285
- 30HXC 310-345-375
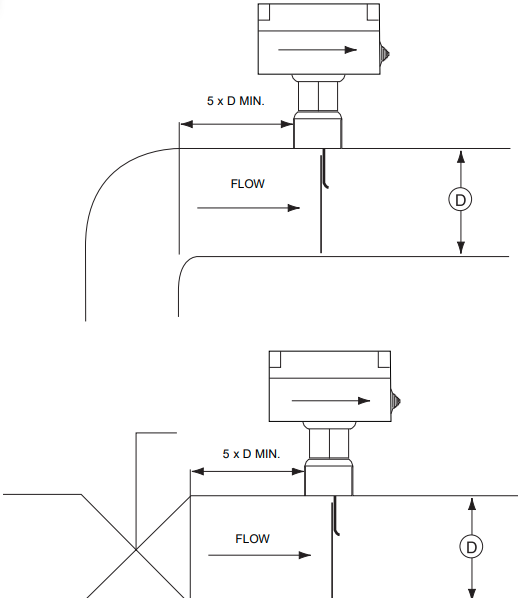
Ελεγκτές ροής
Διακόπτης ροής ψύκτη και αλληλοσύνδεση αντλίας ψυχρού νερού
Είναι υποχρεωτικό να εγκατασταθεί διακόπτης ροής ψύκτη και επίσης να συνδεθεί η αλληλοσύνδεση της αντλίας ψυχρού νερού στις μονάδες 30HXC και 30GX. Η μη τήρηση αυτής της οδηγίας θα ακυρώσει την εγγύηση της Carrier.
Ο ελεγκτής διακόπτη ροής ψύκτη παρέχεται και συνδέεται εργοστασιακά στις μονάδες 30HXC και 30GX.
Ακολουθήστε τις οδηγίες του κατασκευαστή για την εγκατάσταση.
Ο διακόπτης ροής μπορεί να τοποθετηθεί σε οριζόντιο ή κάθετο σωλήνα με ανοδική ροή υγρού. Δεν πρέπει να χρησιμοποιείται όταν η ροή του υγρού είναι καθοδική.
Τοποθετήστε σε ένα τμήμα σωλήνα όπου υπάρχει μια ευθεία διαδρομή τουλάχιστον πέντε διαμέτρων σωλήνα σε κάθε πλευρά του διακόπτη ροής. Μην τοποθετείτε κοντά σε βαλβίδες, γωνίες ή στομίες. Το πτερύγιο δεν πρέπει ποτέ να αγγίζει τον σωλήνα ή οποιονδήποτε περιορισμό στον σωλήνα. Βιδώστε τον διακόπτη ροής στη θέση του έτσι ώστε το επίπεδο μέρος του πτερυγίου να είναι σε ορθή γωνία προς τη ροή. Τα βέλη στο κάλυμμα και στο κάτω μέρος, μέσα στη θήκη, πρέπει να δείχνουν προς την κατεύθυνση της ροής. Ο διακόπτης πρέπει να τοποθετηθεί έτσι ώστε οι ακροδέκτες να είναι προσβάσιμοι για εύκολη καλωδίωση.
Οι ακροδέκτες 34 και 35 παρέχονται για την επιτόπια εγκατάσταση μιας αλληλοσύνδεσης αντλίας ψυχρού νερού (βοηθητική επαφή του επαφέα της αντλίας ψυχρού νερού).
(Σύνδεση σωλήνα: 1" NPT)

Διακόπτης ροής συμπυκνωτή (30HXC)
Ο διακόπτης ροής συμπυκνωτή είναι μια συσκευή που εγκαθίσταται στο πεδίο.
ΕΓΚΑΤΑΣΤΑΣΗ
Έλεγχος του εξοπλισμού που παραλήφθηκε
- Ελέγξτε τη μονάδα για ζημιές ή ελλείποντα μέρη. Εάν εντοπιστεί ζημιά ή εάν η αποστολή είναι ελλιπής, υποβάλετε αμέσως αξίωση στην εταιρεία μεταφορών.
- Επιβεβαιώστε ότι η μονάδα που παραλήφθηκε είναι αυτή που παραγγέλθηκε. Συγκρίνετε τα δεδομένα της πινακίδας με την παραγγελία.
- Επιβεβαιώστε ότι όλα τα αξεσουάρ που παραγγέλθηκαν για εγκατάσταση επί τόπου έχουν παραδοθεί και είναι πλήρη και άθικτα.
- Μην αποθηκεύετε τις μονάδες σε περιοχή εκτεθειμένη στις καιρικές συνθήκες λόγω του ευαίσθητου μηχανισμού ελέγχου και των ηλεκτρονικών συσκευών.
Μετακίνηση και τοποθέτηση της μονάδας
Μετακίνηση
Μην αφαιρείτε τις βάσεις στήριξης, τις παλέτες ή την προστατευτική συσκευασία μέχρι η μονάδα να βρεθεί στην τελική της θέση. Μετακινήστε το ψύκτη χρησιμοποιώντας σωλήνες ή κυλίνδρους ή σηκώστε τον, χρησιμοποιώντας ιμάντες της σωστής χωρητικότητας.
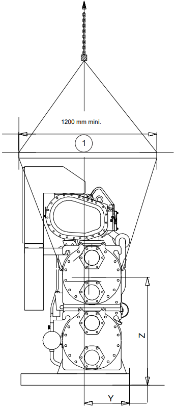
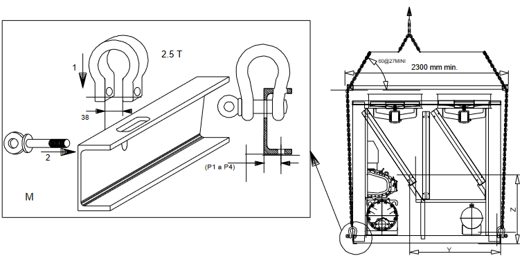
(30HXC)
Χρησιμοποιείτε ιμάντες μόνο στα καθορισμένα σημεία ανύψωσης που είναι σημειωμένα στη μονάδα, στην κορυφή του εναλλάκτη θερμότητας ψύκτη. Η ανάρτηση από το κάτω μέρος του εναλλάκτη θερμότητας θα προκαλέσει την ανύψωση της μονάδας με μη ασφαλή τρόπο. Μπορεί να προκληθεί σωματικός τραυματισμός ή ζημιά στη μονάδα. Ακολουθήστε τις οδηγίες ανάρτησης που δίνονται στο πιστοποιημένο σχέδιο διαστάσεων που παρέχεται με τη μονάδα.
Τοποθέτηση
Ανατρέχετε πάντα στο κεφάλαιο "Διαστάσεις και αποστάσεις" για να επιβεβαιώσετε ότι υπάρχει επαρκής χώρος για όλες τις συνδέσεις και τις εργασίες συντήρησης. Για τις συντεταγμένες του κέντρου βάρους, τη θέση των οπών στερέωσης της μονάδας και τα σημεία κατανομής βάρους, ανατρέξτε στο πιστοποιημένο σχέδιο διαστάσεων που παρέχεται με τη μονάδα.
Συνιστούμε να εγκατασταθούν αυτοί οι ψύκτες είτε σε υπόγειο είτε στο ισόγειο. Εάν πρόκειται να εγκατασταθεί ένας πάνω από το επίπεδο του εδάφους, ελέγξτε πρώτα ότι η επιτρεπόμενη φόρτιση δαπέδου είναι επαρκής και ότι το δάπεδο είναι αρκετά ισχυρό και επίπεδο. Εάν είναι απαραίτητο, ενισχύστε και ισοπεδώστε το δάπεδο.
Με τον ψύκτη στην τελική του θέση, αφαιρέστε τις βάσεις στήριξης και άλλες συσκευές που χρησιμοποιούνται για να βοηθήσουν στη μετακίνησή του. Ισοπεδώστε τη μονάδα χρησιμοποιώντας ένα αλφάδι και βιδώστε τη μονάδα στο δάπεδο ή στο βάθρο. Η λειτουργία αυτών των μονάδων μπορεί να επηρεαστεί εάν δεν είναι επίπεδες και δεν είναι σταθερά στερεωμένες στις βάσεις τους. Εάν απαιτείται, χρησιμοποιήστε μαξιλάρια απομόνωσης κάτω από τη μονάδα για να βοηθήσετε στην απομόνωση των κραδασμών.
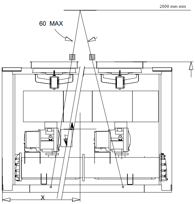
ΟΔΗΓΙΕΣ ΑΝΥΨΩΣΗΣ
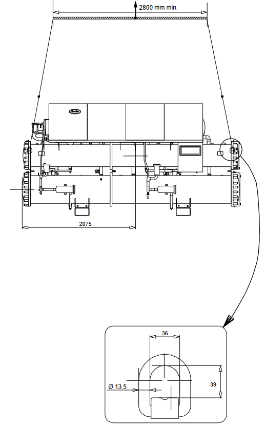
30HXC 080-190
Αυτό το διάγραμμα εμφανίζεται μόνο για ενημέρωση. Ανατρέξτε στα "πιστοποιημένα σχέδια".

- ΕΚΤΟΣ ΑΠΟ 30HXC 190
X mm Y mm Z mm 30HXC080
30HXC090
30HXC1001345 402 903 30HXC110 1368 397 935 30HXC120
30HXC130
30HXC140
30HXC1551731 392 879 30HXC175 1703 386 947 30HXC190 1705 398 955


ΣΗΜΕΙΩΣΗ
Όταν ολοκληρωθούν όλες οι εργασίες ανύψωσης και τοποθέτησης, συνιστάται να διορθώσετε όλες τις επιφάνειες όπου έχει αφαιρεθεί η βαφή στις γλωττίδες ανύψωσης.
30HXC 200-285
Αυτό το διάγραμμα εμφανίζεται μόνο για ενημέρωση. Ανατρέξτε στα "πιστοποιημένα σχέδια".


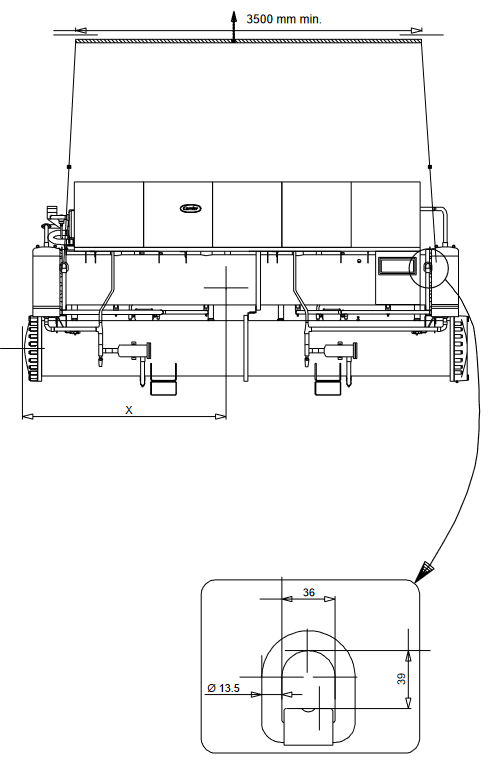
30HXC 310-375


| X mm | Y mm | Z mm | |
| 30HXC310 | 2195 | 425 | 1085 |
| 30HXC345 | 2195 | 425 | 1085 |
| 30HXC375 | 2205 | 435 | 1025 |
ΣΗΜΕΙΩΣΗ
Όταν ολοκληρωθούν όλες οι εργασίες ανύψωσης και τοποθέτησης, συνιστάται να διορθώσετε όλες τις επιφάνειες όπου έχει αφαιρεθεί η βαφή στις γλωττίδες ανύψωσης.
30GX 082-162
Αυτό το διάγραμμα εμφανίζεται μόνο για ενημέρωση. Ανατρέξτε στα "πιστοποιημένα σχέδια".



| X mm | Y mm | Z mm | PTkg | |
| 30GX082 | 1440 | 1460 | 900 | 3115 |
| 30GX092 | 1440 | 1460 | 900 | 3156 |
| 30GX102 | 1440 | 1460 | 900 | 3170 |
| 30GX112 | 1650 | 1460 | 900 | 3574 |
| 30GX122 | 1650 | 1460 | 900 | 3527 |
| 30GX132 | 1650 | 1460 | 900 | 3634 |
| 30GX152 | 2155 | 1430 | 900 | 3938 |
| 30GX162 | 2155 | 1430 | 900 | 3954 |
30GX 182



| X mm | Y mm | Z mm | PTkg | |
| 30GX182 | 3030 | 1370 | 875 | 4853 |
ΣΗΜΕΙΩΣΗ
Όταν ολοκληρωθούν όλες οι εργασίες ανύψωσης και τοποθέτησης, συνιστάται να διορθώσετε όλες τις επιφάνειες όπου έχει αφαιρεθεί η βαφή στη γλωττίδα ανύψωσης
30GX 207-267
Αυτό το διάγραμμα εμφανίζεται μόνο για ενημέρωση. Ανατρέξτε στα "πιστοποιημένα σχέδια".



| X mm | Y mm | Z mm | PTkg | |
| 30GX207 | 2870 | 1440 | 890 | 5536 |
| 30GX227 | 2870 | 1440 | 890 | 5572 |
| 30GX247 | 3320 | 1430 | 927 | 6131 |
| 30GX267 | 3300 | 1420 | 886 | 6363 |
30GX 298-358



| X mm | Y mm | Z mm | PTkg | |
| 30GX298 | 3630 | 1420 | 890 | 7353 |
| 30GX328 | 4360 | 1455 | 920 | 7840 |
| 30GX358 | 4360 | 1445 | 930 | 8045 |
ΣΗΜΕΙΩΣΗ
Όταν ολοκληρωθούν όλες οι εργασίες ανύψωσης και τοποθέτησης, συνιστάται να διορθώσετε όλες τις επιφάνειες όπου έχει αφαιρεθεί η βαφή στις γλωττίδες ανύψωσης.
Συνδέσεις σωληνώσεων
Ανατρέξτε στα πιστοποιημένα σχέδια διαστάσεων για τα μεγέθη και τις θέσεις όλων των συνδέσεων εισόδου και εξόδου νερού. Οι σωλήνες νερού δεν πρέπει να μεταδίδουν καμία ακτινική ή αξονική δύναμη στους εναλλάκτες θερμότητας ή οποιονδήποτε κραδασμό στις σωληνώσεις ή στο κτίριο.
Η παροχή νερού πρέπει να αναλυθεί και να ενσωματωθούν κατάλληλα φίλτρα, επεξεργασία, συσκευές ελέγχου, βαλβίδες απομόνωσης και εξαέρωσης και κυκλώματα, όπως είναι απαραίτητο. Συμβουλευτείτε είτε έναν ειδικό επεξεργασίας νερού είτε την κατάλληλη βιβλιογραφία για το θέμα.
Προφυλάξεις λειτουργίας
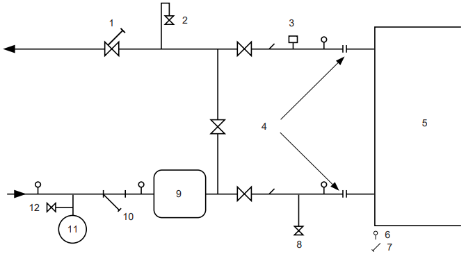
Το κύκλωμα νερού θα πρέπει να σχεδιαστεί ώστε να έχει τον μικρότερο αριθμό γωνιών και οριζόντιων διαδρομών σωλήνων σε διαφορετικά επίπεδα. Θα πρέπει να γίνουν οι ακόλουθοι βασικοί έλεγχοι (δείτε επίσης την εικόνα ενός τυπικού υδραυλικού κυκλώματος παρακάτω).
- Σημειώστε τις εισόδους και τις εξόδους νερού των εναλλακτών θερμότητας.
- Εγκαταστήστε χειροκίνητες ή αυτόματες βαλβίδες εξαέρωσης σε όλα τα ψηλά σημεία του κυκλώματος νερού.
- Χρησιμοποιήστε έναν θάλαμο διαστολής ή μια βαλβίδα εκτόνωσης/ανακούφισης για να διατηρήσετε την πίεση στο σύστημα.
- Εγκαταστήστε θερμόμετρα νερού και μανόμετρα τόσο στις εισερχόμενες όσο και στις εξερχόμενες συνδέσεις νερού κοντά στον εξατμιστή.
- Εγκαταστήστε βαλβίδες αποστράγγισης σε όλα τα χαμηλά σημεία για να επιτρέψετε την αποστράγγιση ολόκληρου του κυκλώματος. Συνδέστε μια βαλβίδα διακοπής στη γραμμή αποστράγγισης πριν θέσετε σε λειτουργία τον ψύκτη.
- Εγκαταστήστε βαλβίδες διακοπής και μανόμετρα, κοντά στον εξατμιστή, στις εισερχόμενες και εξερχόμενες γραμμές νερού.
- Εγκαταστήστε διακόπτη ροής ψύκτη.
- Χρησιμοποιήστε εύκαμπτες συνδέσεις για να μειώσετε τη μετάδοση κραδασμών στις σωληνώσεις.
- Μονώστε όλες τις σωληνώσεις, αφού ελέγξετε για διαρροές, τόσο για να μειώσετε τις θερμικές διαρροές όσο και για να αποτρέψετε τη συμπύκνωση.
- Καλύψτε τη μόνωση με ένα φράγμα υδρατμών.
Συνδέσεις εξατμιστή και συμπυκνωτή
Ο εξατμιστής και ο συμπυκνωτής είναι τύπου πολλαπλών σωλήνων και κελύφους με αφαιρούμενα κιβώτια νερού για να διευκολύνεται ο καθαρισμός των σωλήνων.
Πριν κάνετε συνδέσεις νερού, σφίξτε τα μπουλόνια και στις δύο κεφαλές στη χαμηλότερη ροπή που εμφανίζεται, ακολουθώντας τη μέθοδο που περιγράφεται. Σφίξτε κατά ζεύγη και ακολουθήστε τη σειρά που υποδεικνύεται ανάλογα με το μέγεθος του μπουλονιού (βλ. πίνακα) χρησιμοποιώντας μια τιμή ροπής στο κάτω άκρο του εύρους που δίνεται.
Αφαιρέστε την επίπεδη φλάντζα που παρέχεται από το εργοστάσιο από το κιβώτιο νερού πριν συγκολλήσετε σωληνώσεις στη φλάντζα. Η αποτυχία αφαίρεσης της φλάντζας μπορεί να προκαλέσει ζημιά στους αισθητήρες και στη μόνωση.
ΣΗΜΕΙΩΣΗ
Συνιστούμε να αποστραγγίσετε το σύστημα και να αποσυνδέσετε τις σωληνώσεις για να διασφαλίσετε ότι τα μπουλόνια των κεφαλών στις οποίες συνδέονται οι σωληνώσεις είναι σωστά και ομοιόμορφα σφιγμένα.
Προστασία από πάγωμα
Προστασία εξατμιστή και συμπυκνωτή ψυχόμενου με νερό
Εάν ο ψύκτης ή οι σωληνώσεις νερού βρίσκονται σε περιοχή όπου η θερμοκρασία περιβάλλοντος μπορεί να πέσει κάτω από 0°C, συνιστάται να προσθέσετε ένα αντιψυκτικό διάλυμα για να προστατεύσετε τη μονάδα και τις σωληνώσεις νερού σε θερμοκρασία 8 K κάτω από τη χαμηλότερη θερμοκρασία. Χρησιμοποιείτε μόνο αντιψυκτικά διαλύματα, εγκεκριμένα για χρήση σε εναλλάκτες θερμότητας. Εάν το σύστημα δεν προστατεύεται από αντιψυκτικό διάλυμα και δεν θα χρησιμοποιηθεί κατά τη διάρκεια των συνθηκών παγετού, η αποστράγγιση του ψύκτη και των εξωτερικών σωληνώσεων είναι υποχρεωτική. Ζημιές λόγω παγώματος δεν καλύπτονται από την εγγύηση.
Σειρά σύσφιξης του κιβωτίου νερού

Υπόμνημα
- Σειρά 1: 1 2 3 4
Σειρά 2: 5 6 7 8
Σειρά 3: 9 10 11 12 - Ροπή σύσφιξης
Μέγεθος μπουλονιού M16 - 171 - 210 Nm
Τυπικό διάγραμμα υδραυλικού κυκλώματος

Υπόμνημα
- Βαλβίδα ελέγχου
- Αεραγωγός
- Διακόπτης ροής
- Εύκαμπτη σύνδεση
- Εναλλάκτης θερμότητας
- Σύνδεση πίεσης
- Θήκη θερμοστάτη
- Αποστράγγιση
- Δεξαμενή αποθήκευσης
- Φίλτρο
- Δοχείο διαστολής
- Βαλβίδα πλήρωσης
ΗΛΕΚΤΡΙΚΑ ΧΑΡΑΚΤΗΡΙΣΤΙΚΑ
- Τα 30HXC 080-190 και 30GX 082-182 έχουν μόνο έναν διακόπτη αποσύνδεσης/απομόνωσης ρεύματος.
- Τα 30HXC 200-375 και 30GX 207-358 έχουν δύο διακόπτες αποσύνδεσης/απομόνωσης ρεύματος.
- Το κουτί ελέγχου ενσωματώνει τα ακόλουθα ως στάνταρ:
- Εκκινητές και συσκευές προστασίας κινητήρα για κάθε συμπιεστή και τους ανεμιστήρες
- Στοιχεία ελέγχου
- Συνδέσεις επί τόπου:
Όλες οι συνδέσεις ρεύματος και η ηλεκτρική εγκατάσταση πρέπει να πραγματοποιούνται σύμφωνα με τις οδηγίες που ισχύουν για τον χώρο. - Τα 30HXC και 30GX έχουν σχεδιαστεί για να διευκολύνουν τη συμμόρφωση με αυτές τις οδηγίες. Η μηχανική του ηλεκτρικού εξοπλισμού για τα 30HXC και 30GX λαμβάνει υπόψη το ευρωπαϊκό πρότυπο EN 60204-1 (ασφάλεια μηχανημάτων - ηλεκτρικός εξοπλισμός μηχανών - Μέρος 1: γενικοί κανόνες).
Το πρότυπο EN 60204-1 είναι ένα καλό μέσο για να ανταποκριθείτε στις απαιτήσεις της Οδηγίας για τα Μηχανήματα § 1.5.1. Η κανονιστική σύσταση IEC 364, αναγνωρίζεται γενικά ότι πληροί τις απαιτήσεις του κανονισμού εγκατάστασης.
Το Παράρτημα Β του προτύπου EN 60204-1 μπορεί να χρησιμοποιηθεί για να περιγράψει τα ηλεκτρικά χαρακτηριστικά υπό τα οποία λειτουργούν οι μηχανές.
30HXC
- Οι συνθήκες λειτουργίας για ένα τυπικό 30HXC περιγράφονται παρακάτω:
- Περιβαλλοντικές συνθήκες(1). Η περιβαλλοντική ταξινόμηση περιγράφεται στο πρότυπο IEC 364 § 3:
- Εύρος θερμοκρασίας περιβάλλοντος: + 6°C έως + 40°C, ταξινόμηση AA4
- Εύρος υγρασίας (χωρίς συμπύκνωση)
50% rh στους 40°C
90% rh στους 20°C - Υψόμετρο - 2000 m(1)
- Για εσωτερική εγκατάσταση
- Παρουσία νερού: ταξινόμηση AD2(1) (πιθανότητα σταγονιδίων νερού)
- Παρουσία στερεών: ταξινόμηση AE2(1) (παρουσία ασήμαντων σωματιδίων)
- Παρουσία διαβρωτικών και ρύπων, ταξινόμηση AF1 (αμελητέα)
- Δόνηση, κλονισμός: ταξινόμηση AG2, AH2 Αρμοδιότητα προσωπικού: ταξινόμηση BA4(1) (προσωπικό με τα προσόντα σύμφωνα με το IEC 364).
- Περιβαλλοντικές συνθήκες(1). Η περιβαλλοντική ταξινόμηση περιγράφεται στο πρότυπο IEC 364 § 3:
(1) Το πρότυπο προστασίας που απαιτείται σε σχέση με αυτή την ταξινόμηση είναι IP21B (σύμφωνα με το έγγραφο αναφοράς IEC 529). Όλα τα 30HXC έχουν ένα πρότυπο προστασίας IP23C και επομένως πληρούν αυτή την απαίτηση προστασίας.
30GX
- Οι συνθήκες λειτουργίας για το 30GX περιγράφονται παρακάτω:
- Περιβαλλοντικές συνθήκες(2). Η περιβαλλοντική ταξινόμηση περιγράφεται στο πρότυπο EN 60721:
- Για εξωτερική εγκατάσταση(2)
- Εύρος θερμοκρασίας περιβάλλοντος: - 18°C έως + 46°C, ταξινόμηση 4K3(2)
- Υψόμετρο 2000 m(2)
- Παρουσία στερεών: ταξινόμηση 4S2 (παρουσία ασήμαντων σωματιδίων)
- Παρουσία διαβρωτικών και ρύπων, ταξινόμηση 4C2 (αμελητέα)
- Δόνηση, κλονισμός: ταξινόμηση 4M2
- Περιβαλλοντικές συνθήκες(2). Η περιβαλλοντική ταξινόμηση περιγράφεται στο πρότυπο EN 60721:
Αρμοδιότητα προσωπικού: ταξινόμηση BA4(2) (προσωπικό με τα προσόντα σύμφωνα με το IEC 364).
(2) Το πρότυπο προστασίας που απαιτείται σε σχέση με αυτή την ταξινόμηση είναι IP43BW (σύμφωνα με το έγγραφο αναφοράς IEC 529). Όλα τα 30GX έχουν ένα πρότυπο προστασίας IP45CW και επομένως πληρούν αυτή την απαίτηση προστασίας.
30HXC/GX
- Διακύμανση στη συχνότητα τροφοδοσίας: ± 2 Hz
- Η προστασία υπερέντασης για τους αγωγούς τροφοδοσίας δεν παρέχεται με τη συσκευή.
- Ο εργοστασιακά τοποθετημένος διακόπτης αποσύνδεσης/απομόνωσης είναι ένας απομονωτής τύπου "a". (EN60204-1 § 5.3.2).
ΣΗΜΕΙΩΣΗ: Εάν συγκεκριμένες πτυχές μιας εγκατάστασης απαιτούν χαρακτηριστικά διαφορετικά από αυτά που αναφέρονται παραπάνω (ή χαρακτηριστικά που δεν αναφέρονται εδώ) επικοινωνήστε με τον αντιπρόσωπο της Carrier.
Τροφοδοσία ρεύματος
Η τροφοδοσία ρεύματος πρέπει να συμμορφώνεται με τις προδιαγραφές στην πινακίδα του ψύκτη. Η τάση τροφοδοσίας πρέπει να είναι εντός του εύρους που καθορίζεται στον πίνακα ηλεκτρικών δεδομένων.
Για συνδέσεις ανατρέξτε στα ηλεκτρικά σχέδια.
Η λειτουργία του ψύκτη με ακατάλληλη τάση τροφοδοσίας ή υπερβολική ανισορροπία φάσεων συνιστά κατάχρηση που θα ακυρώσει την εγγύηση της Carrier. Εάν η ανισορροπία φάσεων υπερβαίνει το 2% για την τάση ή το 10% για το ρεύμα, επικοινωνήστε αμέσως με την τοπική σας εταιρεία παροχής ηλεκτρικής ενέργειας και βεβαιωθείτε ότι ο ψύκτης δεν είναι ενεργοποιημένος έως ότου ληφθούν διορθωτικά μέτρα.
Ανισορροπία φάσης τάσης (%):
100 x μέγ. απόκλιση από τη μέση τάση
Μέση τάση
Παράδειγμα:
Σε μια τροφοδοσία 400 V - 3 ph - 50 Hz, οι μεμονωμένες τάσεις φάσης μετρήθηκαν ως:
AB = 406 V; BC = 399; AC = 394 V
| Μέση τάση | = (406 + 399 + 394)/3 = 1199/3 |
| = 399,7 ας πούμε 400 V |
Υπολογίστε τη μέγιστη απόκλιση από τον μέσο όρο των 400 V:
(AB) = 406 - 400 = 6
(BC) = 400 - 399 = 1
(CA) = 400 - 394 = 6

Η μέγιστη απόκλιση από τον μέσο όρο είναι 6 V. Η μεγαλύτερη ποσοστιαία απόκλιση είναι:
100 x 6/400 = 1,5 %
Αυτό είναι μικρότερο από το επιτρεπόμενο 2% και επομένως είναι αποδεκτό.
ΣΥΝΙΣΤΩΜΕΝΕΣ ΔΙΑΤΟΜΕΣ ΚΑΛΩΔΙΩΝ
Η επιλογή του μεγέθους των καλωδίων είναι ευθύνη του εγκαταστάτη και εξαρτάται από τα χαρακτηριστικά και τους κανονισμούς που ισχύουν για κάθε τοποθεσία εγκατάστασης. Τα παρακάτω πρέπει να χρησιμοποιούνται μόνο ως οδηγός και δεν καθιστούν την Carrier σε καμία περίπτωση υπεύθυνη. Αφού ολοκληρωθεί η επιλογή του μεγέθους των καλωδίων, χρησιμοποιώντας το πιστοποιημένο διαστασιολογικό σχέδιο, ο εγκαταστάτης πρέπει να διασφαλίσει την εύκολη σύνδεση και να καθορίσει τυχόν τροποποιήσεις που είναι απαραίτητες επί τόπου.
Οι συνδέσεις που παρέχονται ως στάνταρ για τα καλώδια εισόδου ρεύματος που παρέχονται από τον πελάτη στον γενικό διακόπτη αποσύνδεσης/απομόνωσης έχουν σχεδιαστεί για τον αριθμό και τον τύπο των καλωδίων, που αναφέρονται στον παρακάτω πίνακα.
Οι υπολογισμοί βασίζονται στο μέγιστο ρεύμα του μηχανήματος (βλ. πίνακες ηλεκτρικών δεδομένων).
Για τον σχεδιασμό χρησιμοποιούνται οι ακόλουθες τυποποιημένες μέθοδοι εγκατάστασης, σύμφωνα με το IEC 364, πίνακας 52C:
- Για μονάδες 30HX που είναι εγκατεστημένες μέσα στο κτίριο: Αρ. 13: διάτρητος οριζόντιος αγωγός καλωδίων και Αρ. 41: κλειστός αγωγός.
- Για μονάδες 30GX που είναι εγκατεστημένες έξω από το κτίριο: Αρ. 17: εναέρια καλώδια ανάρτησης και Αρ. 61: υπόγειος αγωγός με συντελεστή υποβάθμισης 20.
Ο υπολογισμός βασίζεται σε καλώδια με μόνωση PVC ή XLPE με πυρήνα χαλκού ή αλουμινίου. Η μέγιστη θερμοκρασία είναι 40°C για μονάδες 30HX και 46°C για μονάδες 30GX.
Το δεδομένο μήκος καλωδίου περιορίζει την πτώση τάσης σε < 5%.
| Unit (Μονάδα) | Min. (mm2) by phase (ελάχιστο (mm2) ανά φάση) | Wire type (Τύπος καλωδίου) | L (m) | Max. (mm2) by phase (μέγιστο (mm2) ανά φάση) | Wire type (Τύπος καλωδίου) | L (m) |
| 30HX 080 | 1 x 35 | XLPE Cu | 140 | 1 x 120 | PVC Al | 260 |
| 30HX 090 | 1 x 50 | XLPE Cu | 160 | 1 x 120 | PVC Al | 260 |
| 30HX 100 | 1 x 50 | XLPE Cu | 160 | 1 x 95 | XLPE Al | 195 |
| 30HX 110 | 1 x 70 | XLPE Cu | 170 | 1 x 120 | XLPE Al | 205 |
| 30HX 120/130 | 1 x 70 | XLPE Cu | 170 | 1 x 150 | XLPE Al | 210 |
| 30HX 140 | 1 x 95 | XLPE Cu | 180 | 1 x 185 | XLPE Al | 220 |
| 30HX 155 | 1 x 95 | XLPE Cu | 180 | 1 x 240 | XLPE Al | 225 |
| 30HX 175 | 1 x 120 | XLPE Cu | 185 | 1 x 240 | XLPE Al | 225 |
| 30HX 190 | 1 x150 | XLPE Cu | 190 | 2 x 95 | XLPE Al | 195 |
| 30HX 200 ckt A | 1 x 70 | XLPE Cu | 170 | 2 x120 | PVC Al | 325 |
| 30HX 230 ckt A | 1 x 95 | XLPE Cu | 180 | 2 x 120 | PVC Al | 325 |
| 30HX 260 ckt A | 1 x 120 | XLPE Cu | 185 | 1 x 240 | XLPE Al | 225 |
| 30HX 285 ckt A | 1 x 150 | XLPE Cu | 190 | 2 x 150 | XLPE Al | 265 |
| 30HX 200 ckt B | 1 x 35 | XLPE Cu | 140 | 1 x 95 | PVC Al | 250 |
| 30HX 230 ckt B | 1 x 35 | XLPE Cu | 140 | 1 x 120 | PVC Al | 260 |
| 30HX 260 ckt B | 1 x 35 | XLPE Cu | 140 | 1 x 120 | PVC Al | 260 |
| 30HX 285 ckt B | 1 x 50 | XLPE Cu | 160 | 2 x 70 | PVC Al | 285 |
| 30HX 310 ckt A & B | 1 x 95 | XLPE Cu | 180 | 1 x 240 | XLPE Al | 225 |
| 30HX 345 ckt A & B | 1 x 120 | XLPE Cu | 185 | 1 x 240 | XLPE Al | 225 |
| 30HX 375 ckt A & B | 1 x 150 | XLPE Cu | 190 | 2 x 150 | XLPE Al | 265 |
| 30GX 082 | 1 x 95 | XLPE Cu | 190 | 2 x 185 | PVC Al | 420 |
| 30GX 092 | 1 x 120 | XLPE Cu | 195 | 2 x 185 | PVC Al | 420 |
| 30GX 102 | 1 x 120 | XLPE Cu | 195 | 2 x 240 | PVC Al | 450 |
| 30GX 112 | 1 x 150 | XLPE Cu | 200 | 2 x 150 | XLPE Al | 300 |
| 30GX 122 | 1 x 185 | XLPE Cu | 205 | 2 x 185 | XLPE Al | 315 |
| 30GX 132 | 1 x 185 | XLPE Cu | 205 | 2 x 240 | XLPE Al | 330 |
| 30GX 152 | 1 x 240 | XLPE Cu | 205 | 3x 185 | XLPE CU | 430 |
| 30GX 162 | 2 x 95 | XLPE Cu | 190 | 3x 240 | XLPE CU | 440 |
| 30GX 182 | 2 x 120 | XLPE Cu | 200 | 3x 240 | XLPE CU | 440 |
| 30GX 207 ckt A | 1 x 185 | XLPE Cu | 205 | 3x 185 | XLPE Al | 445 |
| 30GX 227 ckt A | 1 x 240 | XLPE Cu | 205 | 3x 240 | XLPE Al | 470 |
| 30GX 247/298/328 ckt A | 2 x 120 | XLPE Cu | 225 | 3x 185 | XLPE CU | 490 |
| 30HX 267/358 ckt A | 2 x 150 | XLPE Cu | 230 | 3x 240 | XLPE CU | 505 |
| 30GX 207/227/247 ckt B | 1 x 95 | XLPE Cu | 190 | 2 x 240 | PVC Al | 560 |
| 30HX 267 ckt B | 1 x 120 | XLPE Cu | 200 | 2 x 185 | XLPE AL | 395 |
| 30GX 298 ckt B | 1 x 185 | XLPE Cu | 205 | 3x 240 | XLPE AL | 470 |
| 30GX 328 ckt B | 2 x 120 | XLPE Cu | 225 | 3x 185 | XLPE CU | 490 |
| 30GX 358 ckt B | 2 x 150 | XLPE Cu | 230 | 3x 240 | XLPE CU | 505 |
Πριν από τη σύνδεση των κύριων καλωδίων τροφοδοσίας (L1 - L2 - L3) στο μπλοκ ακροδεκτών, είναι επιτακτική η ανάγκη να ελέγξετε τη σωστή σειρά των 3 φάσεων πριν προχωρήσετε στη σύνδεση στο μπλοκ ακροδεκτών ή στον κύριο διακόπτη αποσύνδεσης/απομόνωσης.
Καλωδίωση ελέγχου πεδίου
Ανατρέξτε στο Controls IOM και στο πιστοποιημένο διάγραμμα καλωδίωσης που παρέχεται με τη μονάδα για την καλωδίωση ελέγχου πεδίου των ακόλουθων χαρακτηριστικών:
- Εντοπισμός αλληλοκλειδώματος αντλίας εξατμιστή (υποχρεωτικό)
- Απομακρυσμένος διακόπτης ενεργοποίησης/απενεργοποίησης
- Διακόπτης ροής συμπυκνωτή (παρέχεται από το πεδίο, μόνο 30HXC)
- Απομακρυσμένος διακόπτης θέρμανσης/ψύξης
- Εξωτερικός διακόπτης ορίου ζήτησης 1
- Απομακρυσμένο διπλό σημείο ρύθμισης
- Αναφορά συναγερμού ανά κύκλωμα
- Έλεγχος αντλίας εξατμιστή
- Έλεγχος αντλίας συμπυκνωτή (μόνο 30HXC)
- Επαναφορά απομακρυσμένου σημείου ρύθμισης ή επαναφορά αισθητήρα θερμοκρασίας εξωτερικού αέρα (0-10 V)
Συνιστώμενες διατομές καλωδίων για μονάδες με υψηλές θερμοκρασίες συμπύκνωσης (400 V - 3 ph - 50 Hz)
| Μονάδα, επιλογές 150 + 150A 400 V - 3 ph - 50 Hz | Ελάχ. (mm2) ανά φάση | Τύπος καλωδίου | L (m) | Μέγ. (mm2) ανά φάση | Τύπος καλωδίου | L (m) |
| 30HXC 080 OPT. 150 | 1 x 50 | XLPE Cu | 150 | 2 x 70 | PVC Al | 230 |
| 30HXC 090 OPT. 150 | 1 x 70 | XLPE Cu | 160 | 2 x 95 | PVC Al | 260 |
| 30HXC 100 OPT. 150 | 1 x 70 | XLPE Cu | 160 | 2 x 95 | PVC Al | 250 |
| 30HXC 110 OPT. 150 | 1 x 95 | XLPE Cu | 170 | 2 x 120 | PVC Al | 265 |
| 30HXC 120 OPT. 150 | 1 x 120 | XLPE Cu | 180 | 2 x 120 | XLPE Al | 205 |
| 30HXC 130 OPT. 150 | 1 x 120 | XLPE Cu | 160 | 2 x 120 | XLPE Al | 210 |
| 30HXC 140 OPT. 150 | 1 x 150 | XLPE Cu | 175 | 2 x 120 | XLPE Al | 205 |
| 30HXC 155 OPT. 150 | 1 x 185 | XLPE Cu | 185 | 2 x 150 | XLPE Al | 215 |
| 30HXC 175 OPT. 150 | 1 x 240 | XLPE Cu | 185 | 2 x 150 | XLPE Al | 210 |
| 30HXC 190 OPT. 150 | 2 x 95 | XLPE Cu | 175 | 2 x 240 | XLPE Al | 220 |
| 30HXC 200 OPT. 150 circ. A | 1 x 120 | XLPE Cu | 170 | 2 x 150 | XLPE Al | 270 |
| 30HXC 230 OPT. 150 circ. A | 1 x 150 | XLPE Cu | 180 | 2 x 185 | XLPE Al | 270 |
| 30HXC 260 OPT. 150 circ. A | 1 x 185 | XLPE Cu | 180 | 2 x 240 | XLPE Al | 295 |
| 30HXC 285 OPT. 150 circ. A | 1 x 240 | XLPE Cu | 170 | 2 x 185 | XLPE Cu | 265 |
| 30HXC 310 OPT. 150 circ. A | 1 x 185 | XLPE Cu | 180 | 2 x 240 | XLPE Al | 300 |
| 30HXC 345 OPT. 150 circ. A | 1 x 185 | XLPE Cu | 170 | 2 x 240 | XLPE Al | 280 |
| 30HXC 375 OPT. 150 circ. A | 1 x 240 | XLPE Cu | 170 | 2 x 185 | XLPE Cu | 265 |
| 30HXC 200 OPT. 150 circ. B | 1 x 35 | XLPE Cu | 125 | 2 x 95 | PVC Al | 320 |
| 30HXC 230 OPT. 150 circ. B | 1 x 50 | XLPE Cu | 140 | 2 x 95 | PVC Al | 310 |
| 30HXC 260 OPT. 150 circ. B | 1 x 50 | XLPE Cu | 140 | 2 x 95 | PVC Al | 310 |
| 30HXC 285 OPT. 150 circ. B | 1 x 70 | XLPE Cu | 160 | 2 x 120 | PVC Al | 325 |
| 30HXC 310 OPT. 150 circ. B | 1 x 150 | XLPE Cu | 180 | 2 x 185 | XLPE Al | 275 |
| 30HXC 345 OPT. 150 circ. B | 1 x 185 | XLPE Cu | 185 | 2 x 240 | XLPE Al | 305 |
| 30HXC 375 OPT. 150 circ. B | 1 x 185 | XLPE Cu | 160 | 2 x 240 | XLPE Al | 280 |
ΚΥΡΙΑ ΣΥΣΤΑΤΙΚΑ ΣΥΣΤΗΜΑΤΟΣ ΚΑΙ ΔΕΔΟΜΕΝΑ ΛΕΙΤΟΥΡΓΙΑΣ
Κοχλιοφόρος συμπιεστής με γρανάζια
- Οι μονάδες 30HXC και 30GX χρησιμοποιούν κοχλιοφόρους συμπιεστές 06N
- Οι 06NA χρησιμοποιούνται σε 30GX (εφαρμογή συμπύκνωσης με ψύξη αέρα)
- Οι 06NW χρησιμοποιούνται σε 30HXC (εφαρμογή συμπύκνωσης με ψύξη νερού)
- Οι ονομαστικές χωρητικότητες κυμαίνονται από 39 έως 80 τόνους. Χρησιμοποιούνται μοντέλα με ή χωρίς εξοικονόμηση ανάλογα με το μέγεθος της μονάδας 30HXC και 30GX.
Φίλτρο λαδιού
Ο κοχλιοφόρος συμπιεστής 06N διαθέτει ένα ενσωματωμένο φίλτρο λαδιού στο περίβλημα του συμπιεστή. Αυτό το φίλτρο αντικαθίσταται στο πεδίο.
Ψυκτικό
Ο κοχλιοφόρος συμπιεστής 06N είναι ειδικά σχεδιασμένος για χρήση μόνο σε σύστημα R134 a.
Λιπαντικό
Ο κοχλιοφόρος συμπιεστής 06N είναι εγκεκριμένος για χρήση με το ακόλουθο λιπαντικό.
CARRIER MATERIAL SPEC PP 47-32
Ηλεκτρομαγνητική βαλβίδα παροχής λαδιού
Μια ηλεκτρομαγνητική βαλβίδα παροχής λαδιού είναι στάνταρ στον συμπιεστή για να απομονώνει τον συμπιεστή από τη ροή λαδιού όταν ο συμπιεστής δεν λειτουργεί.
Το ηλεκτρομαγνητικό λάδι αντικαθίσταται στο πεδίο.
Φίλτρα αναρρόφησης & εξοικονόμησης
Για να αυξηθεί η αξιοπιστία του συμπιεστή, ένα φίλτρο έχει ενσωματωθεί ως στάνταρ χαρακτηριστικό στις εισόδους αναρρόφησης και εξοικονόμησης του συμπιεστή.
Σύστημα εκφόρτωσης
Ο κοχλιοφόρος συμπιεστής 06N διαθέτει ένα σύστημα εκφόρτωσης που είναι στάνταρ σε όλους τους συμπιεστές. Αυτό το σύστημα εκφόρτωσης αποτελείται από δύο στάδια εκφόρτωσης που μειώνουν τη χωρητικότητα του συμπιεστή ανακατευθύνοντας μερικώς συμπιεσμένο αέριο πίσω στην αναρρόφηση.
Εξατμιστής
Οι ψύκτες 30HXC και 30GX χρησιμοποιούν έναν πλημμυρισμένο εξατμιστή. Το νερό κυκλοφορεί στους σωλήνες και το ψυκτικό βρίσκεται στο εξωτερικό στο κέλυφος. Ένα δοχείο χρησιμοποιείται για την εξυπηρέτηση και των δύο κυκλωμάτων ψυκτικού. Υπάρχει ένα κεντρικό φύλλο σωλήνων που χωρίζει τα δύο κυκλώματα ψυκτικού. Οι σωλήνες είναι χάλκινοι διαμέτρου 3/4" με μια βελτιωμένη επιφάνεια μέσα και έξω. Υπάρχει μόνο ένα κύκλωμα νερού και ανάλογα με το μέγεθος του ψύκτη, μπορεί να υπάρχουν δύο ή τρεις διαδρομές νερού. Ένας αισθητήρας στάθμης υγρού ψύκτη παρέχει βελτιστοποιημένο έλεγχο ροής.
Στην κορυφή του ψύκτη βρίσκονται οι δύο σωλήνες αναρρόφησης, ένας σε κάθε κύκλωμα. Κάθε ένας έχει μια φλάντζα συγκολλημένη σε αυτόν και ο συμπιεστής τοποθετείται στη φλάντζα.
Συμπυκνωτής και διαχωριστής λαδιού (30HXC)
Ο ψύκτης 30HXC χρησιμοποιεί ένα δοχείο που είναι ένας συνδυασμός συμπυκνωτή και διαχωριστή λαδιού. Είναι τοποθετημένο κάτω από τον ψύκτη. Το αέριο εκκένωσης αφήνει τον συμπιεστή και ρέει μέσω ενός εξωτερικού σιγαστήρα στον διαχωριστή λαδιού, ο οποίος είναι το άνω τμήμα του δοχείου. Εισέρχεται στην κορυφή του διαχωριστή όπου αφαιρείται το λάδι και στη συνέχεια ρέει στο κάτω τμήμα του δοχείου, όπου το αέριο συμπυκνώνεται και υποψύχεται. Ένα δοχείο χρησιμοποιείται για την εξυπηρέτηση και των δύο κυκλωμάτων ψυκτικού. Υπάρχει ένα κεντρικό φύλλο σωλήνων που χωρίζει τα δύο κυκλώματα ψυκτικού. Οι σωλήνες είναι χάλκινοι διαμέτρου 3/4" ή 1" με βελτιωμένη επιφάνεια μέσα και έξω. Υπάρχει μόνο ένα κύκλωμα νερού με δύο διαδρομές νερού.
Διαχωριστής λαδιού (30GX)
Στις μονάδες με ψύξη αέρα, ο διαχωριστής λαδιού είναι ένα δοχείο πίεσης που είναι τοποθετημένο κάτω από τα εξωτερικά κατακόρυφα πηνία συμπυκνωτή. Το αέριο εκκένωσης εισέρχεται στην κορυφή του διαχωριστή όπου μεγάλο μέρος του λαδιού διαχωρίζεται και στραγγίζει στο κάτω μέρος. Στη συνέχεια, το αέριο ρέει μέσω ενός πλέγματος σύρματος όπου το υπόλοιπο λάδι διαχωρίζεται και στραγγίζει στο κάτω μέρος.
Ηλεκτρονική συσκευή διαστολής (EXD)
Ο μικροεπεξεργαστής ελέγχει το EXD μέσω της μονάδας ελέγχου EXV. Το EXD θα είναι είτε ένα EXV είτε ένας Economizer. Μέσα και στις δύο αυτές συσκευές υπάρχει ένας γραμμικός ενεργοποιητής βηματικού κινητήρα. Το υγρό ψυκτικό υψηλής πίεσης εισέρχεται στη βαλβίδα μέσω του κάτω μέρους. Μια σειρά από βαθμονομημένες σχισμές βρίσκονται μέσα στο συγκρότημα στομίου. Καθώς το ψυκτικό διέρχεται από το στόμιο, η πίεση πέφτει και το ψυκτικό αλλάζει σε μια κατάσταση 2 φάσεων (υγρό και ατμός). Για να ελεγχθεί η ροή ψυκτικού για διαφορετικές συνθήκες λειτουργίας, το χιτώνιο κινείται πάνω και κάτω πάνω από το στόμιο, αλλάζοντας έτσι την αποτελεσματική περιοχή ροής της συσκευής διαστολής. Το χιτώνιο κινείται από έναν γραμμικό βηματικό κινητήρα. Ο βηματικός κινητήρας κινείται σε αυξήσεις και ελέγχεται απευθείας από τη μονάδα επεξεργαστή. Καθώς ο βηματικός κινητήρας περιστρέφεται, η κίνηση μεταφέρεται σε γραμμική κίνηση από την κύρια βίδα. Μέσω του βηματικού κινητήρα και των κύριων βιδών, λαμβάνονται 1500 διακριτά βήματα κίνησης. Ο μεγάλος αριθμός βημάτων και η μεγάλη διαδρομή έχουν ως αποτέλεσμα τον πολύ ακριβή έλεγχο της ροής ψυκτικού. Κάθε κύκλωμα έχει έναν αισθητήρα στάθμης υγρού τοποθετημένο κάθετα στην κορυφή του κελύφους του ψύκτη. Ο αισθητήρας στάθμης αποτελείται από έναν μικρό ηλεκτρικό θερμαντήρα αντίστασης και τρία θερμίστορ συνδεδεμένα σε σειρά τοποθετημένα σε διαφορετικά ύψη μέσα στο σώμα του πηγαδιού. Ο θερμαντήρας έχει σχεδιαστεί έτσι ώστε τα θερμίστορ να διαβάζουν περίπου 93,3°C σε ξηρό αέρα. Καθώς η στάθμη του ψυκτικού αυξάνεται στον ψύκτη, η αντίσταση του πλησιέστερου θερμίστορ(ων) θα αλλάξει σημαντικά. Αυτή η μεγάλη διαφορά αντίστασης επιτρέπει στον έλεγχο να διατηρεί με ακρίβεια μια καθορισμένη στάθμη. Ο αισθητήρας στάθμης παρακολουθεί τη στάθμη του υγρού ψυκτικού στον ψύκτη και στέλνει αυτές τις πληροφορίες στο PSIO-1. Κατά την αρχική εκκίνηση, η θέση EXV είναι στο μηδέν. Μετά από αυτό, ο μικροεπεξεργαστής παρακολουθεί με ακρίβεια τη θέση της βαλβίδας προκειμένου να χρησιμοποιήσει αυτές τις πληροφορίες ως είσοδο για τις άλλες λειτουργίες ελέγχου. Το κάνει αυτό αρχικοποιώντας τα EXV κατά την εκκίνηση. Ο επεξεργαστής στέλνει αρκετούς παλμούς κλεισίματος στη βαλβίδα για να τη μετακινήσει από πλήρως ανοιχτή σε πλήρως κλειστή και, στη συνέχεια, επαναφέρει τον μετρητή θέσης στο μηδέν. Από αυτό το σημείο και μετά, μέχρι την αρχικοποίηση, ο επεξεργαστής μετρά τον συνολικό αριθμό ανοιχτών και κλειστών βημάτων που έχει στείλει σε κάθε βαλβίδα.
Economizer
Οι economizers είναι εγκατεστημένοι σε 30HXC 190, 285 και 375 και 30GX 182, 267 και 358.
Ο economizer βελτιώνει τόσο τη χωρητικότητα όσο και την απόδοση του ψύκτη, καθώς και παρέχει ψύξη του κινητήρα του συμπιεστή. Μέσα στον economizer υπάρχουν ένας γραμμικός βηματικός κινητήρας EXV και μια βαλβίδα φλοτέρ. Το EXV ελέγχεται από το PIC για να διατηρεί την επιθυμητή στάθμη υγρού στον ψύκτη (όπως γίνεται για τους ψύκτες NonEconomized). Η βαλβίδα φλοτέρ διατηρεί μια στάθμη υγρού στο κάτω μέρος του economizer. Το υγρό ψυκτικό παρέχεται από τον συμπυκνωτή στο κάτω μέρος του economizer. Καθώς το ψυκτικό διέρχεται από το EXV, η πίεσή του μειώνεται σε ένα ενδιάμεσο επίπεδο περίπου 500 kPa. Αυτή η πίεση διατηρείται μέσα στο κέλυφος του economizer. Στη συνέχεια, το ψυκτικό ρέει μέσω της βαλβίδας φλοτέρ, η πίεσή του μειώνεται περαιτέρω σε ελαφρώς πάνω από την πίεση στον ψύκτη. Η αύξηση της απόδοσης πραγματοποιείται όταν μέρος του ψυκτικού που διέρχεται από το EXV εξατμίζεται σε ατμό, υποψύχοντας περαιτέρω το υγρό που διατηρείται στο κάτω μέρος του economizer. Αυτή η αύξηση της υποψύξης παρέχει επιπλέον χωρητικότητα. Δεδομένου ότι δεν απαιτείται επιπλέον ισχύς για την επίτευξη αυτού, η απόδοση του μηχανήματος βελτιώνεται επίσης. Ο ατμός που εξατμίζεται θα ανέβει στον economizer όπου περνά στον συμπιεστή και χρησιμοποιείται όπως απαιτείται για να παρέχει ψύξη του κινητήρα. Αφού περάσει πάνω από τις περιελίξεις του κινητήρα, το ψυκτικό εισέρχεται ξανά στον κύκλο σε μια ενδιάμεση θύρα στον κύκλο συμπίεσης.
Αντλίες λαδιού
Οι ψύκτες με κοχλία 30GX/HXC χρησιμοποιούν μία εξωτερικά τοποθετημένη αντλία λαδιού προ-λίπανσης ανά κύκλωμα. Αυτή η αντλία λειτουργεί ως μέρος της ακολουθίας εκκίνησης.
ΠΡΟΣΟΧΗ:
Η θερμοκρασία λειτουργίας του πηνίου μπορεί να φτάσει τους 80°C. Σε ορισμένες προσωρινές συνθήκες (ειδικά κατά την εκκίνηση σε χαμηλή εξωτερική θερμοκρασία ή χαμηλή θερμοκρασία βρόχου συμπυκνωτή) η αντλία λαδιού μπορεί να ενεργοποιηθεί ξανά.
Στις μονάδες 30GX, οι αντλίες είναι τοποθετημένες στις ράγες βάσης στην πλευρά του διαχωριστή λαδιού της μονάδας. Οι αντλίες είναι τοποθετημένες σε ένα στήριγμα στους συμπυκνωτές των μονάδων 30HXC. Όταν απαιτείται να ξεκινήσει ένα κύκλωμα, τα χειριστήρια θα ενεργοποιήσουν πρώτα την αντλία λαδιού, έτσι ώστε ο συμπιεστής να ξεκινήσει με σωστή λίπανση. Εάν η αντλία έχει δημιουργήσει επαρκή πίεση λαδιού, θα επιτραπεί η εκκίνηση του συμπιεστή. Μόλις ξεκινήσει ο συμπιεστής, η αντλία λαδιού θα απενεργοποιηθεί. Εάν η αντλία δεν μπόρεσε να δημιουργήσει αρκετή πίεση λαδιού, το χειριστήριο θα δημιουργήσει έναν συναγερμό.
Βαλβίδες ψύξης κινητήρα
Οι θερμοκρασίες των περιελίξεων του κινητήρα του συμπιεστή ελέγχονται στο βέλτιστο σημείο ρύθμισης. Το χειριστήριο το επιτυγχάνει αυτό κυκλοφορώντας την ηλεκτρομαγνητική βαλβίδα ψύξης του κινητήρα για να επιτρέψει στο υγρό ψυκτικό να ρέει κατά μήκος των περιελίξεων του κινητήρα όπως απαιτείται. Στις μονάδες που είναι εξοπλισμένες με economizers, το αέριο flash αφήνει την κορυφή του economizer και ρέει συνεχώς στις περιελίξεις του κινητήρα. Όλο το ψυκτικό που χρησιμοποιείται για την ψύξη του κινητήρα εισέρχεται ξανά στους ρότορες μέσω μιας θύρας που βρίσκεται στα μέσα του κύκλου συμπίεσης και συμπιέζεται στην πίεση εκκένωσης.
Αισθητήρες
Οι μονάδες χρησιμοποιούν θερμίστορ (συμπεριλαμβανομένων δύο θερμίστορ θερμοκρασίας κινητήρα) και δύο θερμίστορ στάθμης και μετατροπείς πίεσης για την παρακολούθηση και τον έλεγχο της λειτουργίας του συστήματος.
Θερμίστορ
Ρευστό εξόδου εξατμιστή
Αυτή η θερμοκρασία χρησιμοποιείται για τη μέτρηση της θερμοκρασίας του ρευστού εξόδου του εξατμιστή (νερό ή άλμη). Η θερμοκρασία χρησιμοποιείται για τον έλεγχο της θερμοκρασίας του ρευστού εξόδου και για την προστασία από το πάγωμα του ψύκτη. Βρίσκεται στο ακροφύσιο ρευστού του εξατμιστή.
Ρευστό εισόδου εξατμιστή
Αυτός ο αισθητήρας χρησιμοποιείται για τη μέτρηση της θερμοκρασίας του ρευστού εισόδου του εξατμιστή. Βρίσκεται στο ακροφύσιο εισόδου του εξατμιστή. Χρησιμοποιείται για την παροχή αυτόματης αντιστάθμισης θερμοκρασίας για τον έλεγχο της θερμοκρασίας του ρευστού εξόδου με αντιστάθμιση ρευστού εισόδου.
Θερμοκρασία αερίου εκκένωσης (κυκλώματα A & B)
Αυτός ο αισθητήρας χρησιμοποιείται για τη μέτρηση της θερμοκρασίας του αερίου εκκένωσης και τον έλεγχο της υπερθέρμανσης της θερμοκρασίας εκκένωσης. Βρίσκεται στον σωλήνα εκκένωσης κάθε κυκλώματος (30HXC) ή στην κορυφή του διαχωριστή λαδιού (30GX).
ΠΡΟΣΟΧΗ: Δεν υπάρχει χιτώνιο θερμοστάτη.
Θερμοκρασία κινητήρα
Η μονάδα προστασίας συμπιεστή (CPM) παρακολουθεί τη θερμοκρασία του κινητήρα. Οι ακροδέκτες θερμίστορ βρίσκονται στο κουτί διακλάδωσης του συμπιεστή.
Στάθμη υγρού εξατμιστή (κυκλώματα A & B)
Το θερμίστορ στάθμης υγρού εξατμιστή χρησιμοποιείται για την παροχή βελτιστοποιημένου ελέγχου ροής στον εξατμιστή. Είναι εγκατεστημένο στην κορυφή του εξατμιστή.
Ρευστό εισόδου συμπυκνωτή (30HXC)
Αυτός ο αισθητήρας χρησιμοποιείται για τη μέτρηση της θερμοκρασίας του ρευστού που εισέρχεται στους συμπυκνωτές με ψύξη νερού. Βρίσκεται στην κοινή γραμμή ρευστού που εισέρχεται στους συμπυκνωτές (εγκατεστημένο στο πεδίο). Στα μηχανήματα θέρμανσης χρησιμοποιείται από τη ρουτίνα ελέγχου χωρητικότητας. Στους συμπυκνωτές με ψύξη νερού χρησιμοποιείται μόνο για την παρακολούθηση της θερμοκρασίας του ρευστού του συμπυκνωτή.
Ρευστό εξόδου συμπυκνωτή (προαιρετικό στο 30HXC)
Αυτός ο αισθητήρας χρησιμοποιείται για τη μέτρηση της θερμοκρασίας του ρευστού που εξέρχεται από τους συμπυκνωτές με ψύξη νερού. Βρίσκεται στην κοινή γραμμή ρευστού που εξέρχεται από τους συμπυκνωτές (εγκατεστημένο στο πεδίο). Στα μηχανήματα θέρμανσης χρησιμοποιείται από τη ρουτίνα ελέγχου χωρητικότητας. Στους συμπυκνωτές με ψύξη νερού χρησιμοποιείται μόνο για την παρακολούθηση της θερμοκρασίας του ρευστού του συμπυκνωτή.
Διάταξη ανεμιστήρα 30GX

GX082/102

GX112/132

GX152/162

GX182

GX207/227

GX247/267

GX298

GX328/358
ΣΥΝΤΗΡΗΣΗ
Γέμισμα ψυκτικού υγρού - προσθήκη γέμισης
Αυτές οι μονάδες έχουν σχεδιαστεί για χρήση μόνο με R-134a.
ΜΗ ΧΡΗΣΙΜΟΠΟΙΗΣΕΤΕ ΚΑΝΕΝΑ ΑΛΛΟ ψυκτικό υγρό σε αυτές τις μονάδες.
Όταν προσθέτετε ή αφαιρείτε γέμιση, κυκλοφορήστε νερό μέσω του συμπυκνωτή (HX) και του ψύκτη συνεχώς για να αποφύγετε την κατάψυξη. Η ζημιά από κατάψυξη θεωρείται κατάχρηση και μπορεί να ακυρώσει την εγγύηση της Carrier.
ΜΗΝ ΥΠΕΡΓΕΜΙΖΕΤΕ το σύστημα. Η υπερφόρτωση έχει ως αποτέλεσμα υψηλότερη πίεση εκκένωσης με υψηλότερη κατανάλωση ψυκτικού υγρού, πιθανή ζημιά στον συμπιεστή και υψηλότερη κατανάλωση ενέργειας.
Ένδειξη χαμηλής γέμισης σε ένα σύστημα 30HXC
ΣΗΜΕΙΩΣΗ
Για να ελέγξετε για χαμηλή γέμιση ψυκτικού υγρού σε ένα 30HXC, πρέπει να ληφθούν υπόψη αρκετοί παράγοντες. Ένα φλας γυαλί ελέγχου υγρής γραμμής δεν είναι απαραίτητα ένδειξη ανεπαρκούς γέμισης. Υπάρχουν πολλές συνθήκες συστήματος όπου ένα φλας γυαλί ελέγχου εμφανίζεται υπό κανονική λειτουργία. Η συσκευή μέτρησης 30HXC έχει σχεδιαστεί για να λειτουργεί σωστά υπό αυτές τις συνθήκες.
- Βεβαιωθείτε ότι το κύκλωμα λειτουργεί σε συνθήκες πλήρους φορτίου. Για να ελέγξετε εάν το κύκλωμα Α είναι πλήρως φορτωμένο, ακολουθήστε τη διαδικασία που περιγράφεται στο εγχειρίδιο Controls.
- Μπορεί να είναι απαραίτητο να χρησιμοποιήσετε τη λειτουργία Manual Control (Χειροκίνητος Έλεγχος) για να αναγκάσετε το κύκλωμα σε συνθήκες πλήρους φορτίου. Εάν συμβαίνει αυτό, ανατρέξτε στις οδηγίες για τη χρήση της λειτουργίας Manual Control (Χειροκίνητος Έλεγχος) στο εγχειρίδιο Controls.
- Με το κύκλωμα να λειτουργεί σε πλήρες φορτίο, βεβαιωθείτε ότι η θερμοκρασία του υγρού εξόδου του ψύκτη είναι στην περιοχή 6°C ± 1,5.
- Σε αυτήν την κατάσταση, παρατηρήστε το ψυκτικό υγρό στο γυαλί ελέγχου υγρής γραμμής. Εάν υπάρχει ένα καθαρό γυαλί ελέγχου και δεν υπάρχουν σημάδια αναλαμπής, τότε το κύκλωμα είναι επαρκώς φορτισμένο. Παραλείψτε τα υπόλοιπα βήματα.
- Εάν το ψυκτικό υγρό φαίνεται να αναβοσβήνει, το κύκλωμα είναι πιθανώς χαμηλό σε γέμιση. Επαληθεύστε το ελέγχοντας τη θέση EXV (δείτε Controls IOM).
- Εάν η θέση ανοίγματος του EXD είναι μεγαλύτερη από 60% και εάν το γυαλί ελέγχου υγρής γραμμής αναβοσβήνει, τότε το κύκλωμα είναι χαμηλό σε γέμιση. Ακολουθήστε τη διαδικασία για την προσθήκη γέμισης.
Για να προσθέσετε γέμιση στα συστήματα 30HXC
- Βεβαιωθείτε ότι η μονάδα λειτουργεί σε πλήρες φορτίο και ότι η θερμοκρασία του υγρού εξόδου του ψύκτη είναι στην περιοχή 5,6 7,8°C.
- Σε αυτές τις συνθήκες λειτουργίας, ελέγξτε το γυαλί ελέγχου υγρής γραμμής. Εάν υπάρχει ένα καθαρό γυαλί ελέγχου, τότε η μονάδα έχει επαρκή γέμιση. Εάν το γυαλί ελέγχου αναβοσβήνει, τότε ελέγξτε το EXD Percent Open (Ποσοστό Ανοίγματος EXD). Εάν αυτό είναι μεγαλύτερο από 60%, τότε ξεκινήστε να προσθέτετε γέμιση.
ΣΗΜΕΙΩΣΗ
Ένα φλας γυαλί ελέγχου υγρής γραμμής σε συνθήκες λειτουργίας διαφορετικές από αυτές που αναφέρονται παραπάνω δεν είναι απαραίτητα ένδειξη χαμηλής γέμισης ψυκτικού υγρού.
- Προσθέστε 2,5 kg υγρής γέμισης στον εξατμιστή χρησιμοποιώντας τη βαλβίδα γέμισης που βρίσκεται στην κορυφή του εξατμιστή.
- Παρατηρήστε την τιμή EXD Percent Open (Ποσοστό Ανοίγματος EXD). Το EXD θα πρέπει να αρχίσει να κλείνει καθώς προστίθεται γέμιση. Αφήστε τη μονάδα να σταθεροποιηθεί. Εάν το EXD Percent Open (Ποσοστό Ανοίγματος EXD) παραμένει πάνω από 60% και υπάρχουν ακόμα φυσαλίδες στο γυαλί ελέγχου, προσθέστε επιπλέον 2,5 kg υγρής γέμισης.
- Αφήστε τη μονάδα να σταθεροποιηθεί και ελέγξτε ξανά το EXD Percent Open (Ποσοστό Ανοίγματος EXD). Συνεχίστε να προσθέτετε 2,5 kg υγρής γέμισης ψυκτικού υγρού κάθε φορά και αφήστε τη μονάδα να σταθεροποιηθεί πριν ελέγξετε τη θέση EXD.
- Όταν το EXD Percent Open (Ποσοστό Ανοίγματος EXD) είναι στην περιοχή 40 - 60%, ελέγξτε το γυαλί ελέγχου υγρής γραμμής. Προσθέστε αργά αρκετή επιπλέον υγρή γέμιση για να εξασφαλίσετε ένα καθαρό γυαλί ελέγχου. Αυτό θα πρέπει να γίνει αργά για να αποφευχθεί η υπερφόρτωση της μονάδας.
- Επαληθεύστε την επαρκή γέμιση συνεχίζοντας να λειτουργείτε σε πλήρες φορτίο με θερμοκρασία υγρού εξόδου εξατμιστή 6°C ± 1,5. Ελέγξτε ότι το ψυκτικό υγρό δεν αναβοσβήνει στο γυαλί ελέγχου υγρής γραμμής. Το EXD Percent Open (Ποσοστό Ανοίγματος EXD) θα πρέπει να είναι μεταξύ 40 και 60%. Ο δείκτης στάθμης ψύκτη θα πρέπει να είναι στην περιοχή 1,5 - 2,5.
Ένδειξη χαμηλής γέμισης σε συστήματα 30GX
- Βεβαιωθείτε ότι το κύκλωμα λειτουργεί σε συνθήκες πλήρους φορτίου και ότι η θερμοκρασία συμπύκνωσης είναι 50°C ± 1,5. Για να ελέγξετε εάν το κύκλωμα Α είναι πλήρως φορτωμένο, ακολουθήστε τη διαδικασία στο Controls IOM.
- Μπορεί να είναι απαραίτητο να χρησιμοποιήσετε τη λειτουργία Manual Control (Χειροκίνητος Έλεγχος) για να αναγκάσετε το κύκλωμα σε συνθήκες πλήρους φορτίου. Εάν συμβαίνει αυτό, ανατρέξτε στις οδηγίες για τη χρήση της λειτουργίας Manual Control (Χειροκίνητος Έλεγχος) (διαδικασία στο Controls IOM).
- Με το κύκλωμα να λειτουργεί σε πλήρες φορτίο, βεβαιωθείτε ότι η θερμοκρασία του υγρού εξόδου του ψύκτη είναι στην περιοχή 6°C ± 1,5.
- Μετρήστε τη θερμοκρασία του αέρα που εισέρχεται στα πηνία του συμπυκνωτή. Μετρήστε τη θερμοκρασία του υγρού μετά το ταφ όπου ενώνονται οι δύο γραμμές υγρού του πηνίου. Η θερμοκρασία του υγρού θα πρέπει να είναι 8,3°C πάνω από τη θερμοκρασία του αέρα που εισέρχεται στα πηνία. Εάν η διαφορά είναι μεγαλύτερη από αυτή και το γυαλί ελέγχου αναβοσβήνει, το κύκλωμα είναι αφόρτιστο. Προχωρήστε στο βήμα 5.
- Προσθέστε 2,5 kg υγρής γέμισης στον ψύκτη χρησιμοποιώντας τη βαλβίδα γέμισης που βρίσκεται στην κορυφή του ψύκτη.
- Αφήστε το σύστημα να σταθεροποιηθεί και στη συνέχεια ελέγξτε ξανά τη θερμοκρασία του υγρού. Επαναλάβετε το βήμα 5 όπως απαιτείται, αφήνοντας το σύστημα να σταθεροποιηθεί μεταξύ κάθε προσθήκης γέμισης. Προσθέστε αργά γέμιση καθώς το γυαλί ελέγχου αρχίζει να καθαρίζει για να αποφύγετε την υπερφόρτωση.
Θερμοκρασία χώρου, θερμοκρασία εξωτερικού αέρα (προαιρετικό)
Αυτές οι θερμοκρασίες χρησιμοποιούνται για τη μέτρηση της θερμοκρασίας του χώρου ή της θερμοκρασίας του εξωτερικού αέρα αντίστοιχα για έλεγχο επαναφοράς με βάση τις επιλογές επαναφοράς θερμοκρασίας εξωτερικού αέρα ή χώρου.
Αισθητήρια πίεσης
Πίεση εκκένωσης (κυκλώματα A & B)
Αυτή η είσοδος χρησιμοποιείται για τη μέτρηση της πίεσης υψηλής πλευράς κάθε κυκλώματος της μονάδας.
Χρησιμοποιείται για να παρέχει την πίεση για να αντικαταστήσει το μανόμετρο πίεσης εκκένωσης και να ελέγχει την πίεση κεφαλής.
Πίεση αναρρόφησης (κυκλώματα A & B)
Αυτή η είσοδος χρησιμοποιείται για τη μέτρηση της πίεσης της χαμηλής πλευράς της μονάδας. Χρησιμοποιείται για να παρέχει την πίεση για να αντικαταστήσει το μανόμετρο πίεσης αναρρόφησης.
Πίεση λαδιού (κάθε συμπιεστής)
Αυτή η είσοδος χρησιμοποιείται για τη μέτρηση της πίεσης λαδιού κάθε συμπιεστή της μονάδας. Βρίσκεται στη θύρα πίεσης λαδιού κάθε συμπιεστή.
Πίεση Economizer (κυκλώματα A & B)
Αυτή η είσοδος χρησιμοποιείται για την παρακολούθηση της διαφορικής πίεσης λαδιού που παρέχεται στον συμπιεστή.
Γέμισμα λαδιού - επαναγέμισμα χαμηλού λαδιού
Προσθήκη γέμισης λαδιού σε συστήματα 30HX/GX
- Εάν η μονάδα 30HXC/GX απενεργοποιείται επανειλημμένα στο Low oilLevel (Χαμηλή Στάθμη Λαδιού), αυτό μπορεί να είναι ένδειξη ανεπαρκούς γέμισης λαδιού. Θα μπορούσε επίσης να σημαίνει απλώς ότι το λάδι βρίσκεται στη διαδικασία ανάκτησης από τη χαμηλή πλευρά του συστήματος.
- Ξεκινήστε εκτελώντας τη μονάδα σε πλήρες φορτίο για μία ώρα και μισή.
- Αφού τρέξετε για 1-1/2 ώρες, αφήστε τη μονάδα να επανεκκινήσει και να τρέξει κανονικά. Εάν οι συναγερμοί Low Oil Level (Χαμηλή Στάθμη Λαδιού) εξακολουθούν να υπάρχουν, η μονάδα έχει χαμηλή γέμιση λαδιού. Προσθέστε λάδι στον διαχωριστή λαδιού, χρησιμοποιώντας τη βαλβίδα γέμισης λαδιού στο κάτω μέρος του συμπυκνωτή (30HXC) ή στο κάτω μέρος του διαχωριστή λαδιού (30GX).
ΜΗΝ προσθέτετε λάδι σε οποιαδήποτε άλλη θέση, καθώς μπορεί να προκύψει ακατάλληλη λειτουργία της μονάδας.
- Βεβαιωθείτε ότι η μονάδα δεν λειτουργεί όταν προσθέτετε λάδι, καθώς αυτό θα διευκολύνει τη διαδικασία γέμισης λαδιού. Επειδή το σύστημα βρίσκεται υπό πίεση ακόμη και όταν η μονάδα δεν λειτουργεί, θα είναι απαραίτητο να χρησιμοποιήσετε μια κατάλληλη αντλία (χειροκίνητη ή ηλεκτρική αντλία) για να προσθέσετε λάδι στο σύστημα.
- Χρησιμοποιώντας μια κατάλληλη αντλία, προσθέστε 2 λίτρα λαδιού Polyolester στο σύστημα (CARRIER SPEC: PP47-32). Βεβαιωθείτε ότι ο διακόπτης ασφαλείας στάθμης λαδιού ΔΕΝ είναι βραχυκυκλωμένος και αφήστε τη μονάδα να επανεκκινήσει και να τρέξει κανονικά.
- Εάν τα προβλήματα χαμηλής στάθμης λαδιού εξακολουθούν να υπάρχουν, προσθέστε άλλα 1 ή 2 λίτρα λαδιού. Εάν είναι απαραίτητο να προσθέσετε περισσότερα από 4 λίτρα λαδιού στο σύστημα, επικοινωνήστε με το τμήμα σέρβις του διανομέα σας Carrier.
Κατά τη μεταφορά της γέμισης ψυκτικού υγρού σε μια μονάδα αποθήκευσης, λάδι μπορεί να μεταφερθεί μαζί όταν η μονάδα δεν λειτουργεί. Επαναχρησιμοποιήστε πρώτα απ 'όλα την ποσότητα του ψυκτικού υγρού που μεταφέρθηκε. Μετά την αποστράγγιση του λαδιού, επαναφορτίστε μόνο την ποσότητα που αποστραγγίστηκε (μια υπερβολική γέμιση λαδιού μπορεί να επηρεάσει τη σωστή λειτουργία της μονάδας).
Αλλαγή ενσωματωμένου φίλτρου λαδιού
Ένα ενσωματωμένο φίλτρο λαδιού στον κοχλιοφόρο συμπιεστή 06N καθορίζεται για να παρέχει ένα υψηλό επίπεδο φιλτραρίσματος (3 µ) που απαιτείται για μεγάλη διάρκεια ζωής των εδράνων. Καθώς η καθαριότητα του συστήματος είναι κρίσιμη για την αξιόπιστη λειτουργία του συστήματος, υπάρχει επίσης ένα προφίλτρο (7 µ) στη γραμμή λαδιού στην έξοδο του διαχωριστή λαδιού.
Ο αριθμός ανταλλακτικού του ενσωματωμένου στοιχείου φίλτρου λαδιού είναι:
Αριθμός ανταλλακτικού Carrier (συμπεριλαμβανομένου του φίλτρου και του O-ring): 06NA 660016S
Πρόγραμμα αλλαγής φίλτρου
Το φίλτρο θα πρέπει να ελέγχεται μετά τις πρώτες 500 ώρες λειτουργίας και κάθε 2000 ώρες στη συνέχεια. Το φίλτρο θα πρέπει να αντικαθίσταται ανά πάσα στιγμή όταν η διαφορική πίεση στο φίλτρο υπερβαίνει τα 2,1 bar.
Η πτώση πίεσης στο φίλτρο μπορεί να προσδιοριστεί μετρώντας την πίεση στη θύρα σέρβις φίλτρου και στη θύρα πίεσης λαδιού. Η διαφορά σε αυτές τις δύο πιέσεις θα είναι η πτώση πίεσης στο φίλτρο, την αντεπίστροφη βαλβίδα και την ηλεκτρομαγνητική βαλβίδα. Η πτώση πίεσης στην αντεπίστροφη βαλβίδα και την ηλεκτρομαγνητική βαλβίδα είναι περίπου 0,4 bar, η οποία θα πρέπει να αφαιρεθεί από τις δύο μετρήσεις πίεσης λαδιού για να δοθεί η πτώση πίεσης του φίλτρου λαδιού. Η πτώση πίεσης του φίλτρου λαδιού θα πρέπει να ελέγχεται μετά από κάθε περίπτωση που ο συμπιεστής απενεργοποιείται σε μια ασφάλεια χαμηλής πίεσης λαδιού.
Διαδικασία αλλαγής φίλτρου
- Τα ακόλουθα βήματα περιγράφουν τη σωστή μέθοδο αλλαγής του ενσωματωμένου φίλτρου λαδιού.
- Τερματίστε και αποκλείστε τον συμπιεστή.
- Αναγκάστε χειροκίνητα τη λειτουργία της ηλεκτρομαγνητικής βαλβίδας λαδιού, προκειμένου να πιέσετε το εσωτερικό κλείστρο της βαλβίδας στη θέση του.
- Κλείστε τη βαλβίδα σέρβις φίλτρου λαδιού. Αποστραγγίστε την πίεση από την κοιλότητα του φίλτρου μέσω της θύρας σέρβις φίλτρου.
- Αφαιρέστε το βύσμα του φίλτρου λαδιού. Αφαιρέστε το παλιό φίλτρο λαδιού.
- Πριν εγκαταστήσετε το νέο φίλτρο λαδιού, "λιπάνετε" το o-ring με λάδι. Εγκαταστήστε το φίλτρο και αντικαταστήστε το βύσμα.
Πριν κλείσετε το σύστημα λαδιού λίπανσης, εκμεταλλευτείτε την ευκαιρία να αντικαταστήσετε και το προφίλτρο. - Όταν ολοκληρωθεί, εκκενώστε την κοιλότητα του φίλτρου μέσω της θύρας σέρβις φίλτρου. Ανοίξτε τη βαλβίδα σέρβις φίλτρου. Αφαιρέστε τυχόν συσκευές αποκλεισμού συμπιεστή, ο συμπιεστής είναι έτοιμος να επιστρέψει σε λειτουργία.
Αντικατάσταση συμπιεστή
Έλεγχος περιστροφής συμπιεστή
Η σωστή περιστροφή του συμπιεστή είναι μία από τις πιο κρίσιμες παραμέτρους εφαρμογής. Η αντίστροφη περιστροφή, ακόμη και για πολύ μικρή διάρκεια, καταστρέφει τον συμπιεστή.
Το σύστημα προστασίας από αντίστροφη περιστροφή πρέπει να είναι ικανό να προσδιορίσει την κατεύθυνση της περιστροφής και να σταματήσει τον συμπιεστή μέσα σε 300 χιλιοστά του δευτερολέπτου. Η αντίστροφη περιστροφή είναι πιο πιθανό να συμβεί κάθε φορά που διαταράσσεται η καλωδίωση στους ακροδέκτες του συμπιεστή.
Για να ελαχιστοποιηθεί η πιθανότητα αντίστροφης περιστροφής, πρέπει να εφαρμοστεί η ακόλουθη διαδικασία. Επανασυνδέστε τα καλώδια τροφοδοσίας στον ακροδέκτη του συμπιεστή όπως ήταν αρχικά συνδεδεμένα.
Για την αντικατάσταση του συμπιεστή, ένας διακόπτης χαμηλής πίεσης περιλαμβάνεται με τον συμπιεστή. Αυτός ο διακόπτης χαμηλής πίεσης θα πρέπει να εγκατασταθεί προσωρινά ως σκληρή ασφάλεια στο τμήμα υψηλής πίεσης του συμπιεστή. Ο σκοπός αυτού του διακόπτη είναι να προστατεύσει τον συμπιεστή από τυχόν σφάλματα καλωδίωσης στον ακροδέκτη του συμπιεστή. Η ηλεκτρική επαφή του διακόπτη θα συνδεθεί σε σειρά με τον διακόπτη υψηλής πίεσης. Ο διακόπτης θα παραμείνει στη θέση του έως ότου ο συμπιεστής έχει ξεκινήσει και η κατεύθυνση της περιστροφής έχει επαληθευτεί. σε αυτό το σημείο, ο διακόπτης θα αφαιρεθεί.
Ο διακόπτης που έχει επιλεγεί για την ανίχνευση αντίστροφης περιστροφής είναι ο αριθμός ανταλλακτικού Carrier HK01CB001. Είναι διαθέσιμος ως μέρος του "Πακέτου εγκατάστασης συμπιεστή" (αριθμός ανταλλακτικού 06NA 660 013). Αυτός ο διακόπτης ανοίγει τις επαφές όταν η πίεση πέσει κάτω από 50 mm κενού. Ο διακόπτης είναι ένας τύπος χειροκίνητης επαναφοράς που μπορεί να επαναφερθεί αφού η πίεση έχει ανέβει ξανά πάνω από 70 kPa. Είναι κρίσιμο ο διακόπτης να είναι ένας τύπος χειροκίνητης επαναφοράς για να αποτρέψει τον συμπιεστή από βραχυκύκλωμα προς την αντίστροφη κατεύθυνση.
Αντιμετώπιση προβλημάτων
Ακολουθήστε τα παρακάτω βήματα για να διαγνώσετε και να διορθώσετε προβλήματα EXD/Economizer.
Σε μονάδες 30HXC/GX με economizers, βεβαιωθείτε ότι η βαλβίδα για το σωλήνα φυσαλίδων (κάτω μέρος του Economizer) είναι ανοιχτή. Ελέγξτε πρώτα τη λειτουργία του κινητήρα EXD (δείτε τη διαδικασία στο Controls IOM). Θα πρέπει να μπορείτε να αισθανθείτε τον ενεργοποιητή να κινείται τοποθετώντας το χέρι σας στο σώμα του EXD ή του economizer (ο ενεργοποιητής βρίσκεται περίπου στο ένα ήμισυ έως τα δύο τρίτα της διαδρομής από το κάτω μέρος του κελύφους του economizer). Θα πρέπει να νιώσετε ένα δυνατό χτύπημα από τον ενεργοποιητή όταν φτάσει στην κορυφή της διαδρομής του (μπορεί να ακουστεί εάν το περιβάλλον είναι σχετικά ήσυχο). Ο ενεργοποιητής θα πρέπει να χτυπήσει όταν φτάσει στο κάτω μέρος της διαδρομής του. Εάν πιστεύεται ότι η βαλβίδα δεν λειτουργεί σωστά, επικοινωνήστε με το τμήμα σέρβις της Carrier για περαιτέρω ελέγχους σε:
- σήματα εξόδου στην ενότητα EXD
- συνδέσεις καλωδίων (συνέχεια και σφιχτή σύνδεση σε όλους τους ακροδέκτες ακίδων)
- αντίσταση των περιελίξεων του κινητήρα EXD.


Έγκριση Συστήματος Περιβαλλοντικής Διαχείρισης
Αριθμός Παραγγελίας: 13173-76, 03 1999 - Αντικαθιστά τον Αριθμό: 13173-76, Μάρτιος 1998
Ο κατασκευαστής διατηρεί το δικαίωμα να αλλάξει οποιεσδήποτε προδιαγραφές προϊόντος χωρίς προειδοποίηση.
Κατασκευαστής: Carrier s.a., Montluel, France.
Τυπωμένο στην Ολλανδία σε χαρτί χωρίς χλώριο.

Λήψη εγχειριδίου
Εδώ μπορείτε να κατεβάσετε την πλήρη έκδοση pdf του εγχειριδίου, μπορεί να περιέχει πρόσθετες οδηγίες ασφαλείας, πληροφορίες εγγύησης, κανόνες FCC κ.λπ.
Λήψη Εγχειρίδιο συμπιεστή κοχλία Carrier 30HXC/30GX