Sharp BP-20M22, BP-20M24, BP-20M31 Manual

CONFIGURATION
System Configurations
Parts marked with "" are important for maintaining the safety of the set. Be sure to replace these parts with specified ones for maintaining the safety and performance of the set.
- 22cpm/24cpm MODEL machine

- 28cpm/31cpm MODEL machine
![Sharp - BP-20M22 - System Configurations - Step 2 System Configurations - Step 2]()
MAIN UNIT
Unpacking
- Unpacking
OC Model
- Remove the packing box.
![]()
- Remove cushioning material and plastic bags.
![]()
500sheets x 1 Standard Model
- Remove the packing box.
![]()
- Remove cushioning material and plastic bags.
![]()
500sheets x 2 Standard Model
- Remove the packing box.
![]()
- Remove cushioning material and plastic bags.
![]()
- Fixing tape and protection material
OC Model

500sheets x 1 Standard Model

500sheets x 2 Standard Model

- Packed items check
![Sharp - BP-20M22 - MAIN UNIT - Unpacking - Step 1 MAIN UNIT - Unpacking - Step 1]()
| No. | Parts name | Quantity | Remark |
| 1 | AC cord | 1 | |
| 2 | Developer | 1 | BP-20M22/ 20M24/ |
| 3 | Toner cartridge | 1 | 21M22 only |
| 2 | Developer | No | BP-20M28/ 20M31 only |
| 3 | Toner cartridge | No | |
| 4 | Manual | 1 | |
| 5 | CD-ROM | 1 | Asia only |
| 6 | Starting guide | 1 | |
| 7 | Protection sheet | 1 | |
| 8 | Glass cleaner | 1 |
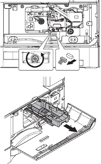
- Lock release
(1) RSPF cushioning material release.
- Remove RSPF cushioning material.
![Sharp - BP-20M22 - CONFIGURATION - Unpacking - Step 2 CONFIGURATION - Unpacking - Step 2]()
(2) Scanner (2/3 mirror unit) lock release
- Remove the optical unit fixing screw, and remove the note label.
![]()
- Attache the protection sheet.
![]()
- The fixing screw is required when transporting The machine. Keep it in The tray.
![Sharp - BP-20M22 - MAIN UNIT - Unpacking - Step 3 MAIN UNIT - Unpacking - Step 3]()
(3) Tray rotation plate lock release
- Pull out the tray, and remove the rotation plate fixing material and the tray note label.
250-SHEET PAPER FEED TRAY
![Sharp - BP-20M22 - MAIN UNIT - Unpacking - Step 4 MAIN UNIT - Unpacking - Step 4]()
500-SHEET PAPER FEED TRAY
Attach the removed fixing material to the position shown in the figure for storage.(500-Sheet Paper Feed Tray only)
![Sharp - BP-20M22 - MAIN UNIT - Unpacking - Step 5 MAIN UNIT - Unpacking - Step 5]()
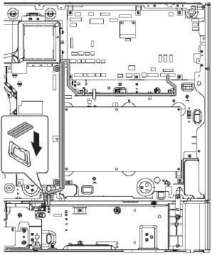
(4) Removal of the drum protection sheet.
- Open the right door and pull out the transfer spacer from side door unit.
Installation
<Note before installation>
* When connecting the main unit with the optional paper drawer, first unpack and install the paper drawer, then unpack the main unit and securely place the main unit on the paper drawer before installing the main unit.
- Developer installation
Be careful not to put fingerprints or oil dirt on the roller surface. Do not hold the case adjacent to the DV roller strongly.
- Open the bypass tray, and open the side cover.
- Open the front cover.
![Sharp - BP-20M22 - MAIN UNIT - Installation - Step 2 MAIN UNIT - Installation - Step 2]()
- Remove the connector.
Loosen the fixing screw of the developing unit, and pull out the developing unit.
![Sharp - BP-20M22 - MAIN UNIT - Installation - Step 3 MAIN UNIT - Installation - Step 3]()
- Remove the screws.
![Sharp - BP-20M22 - MAIN UNIT - Installation - Step 4 MAIN UNIT - Installation - Step 4]()
- Remove the DV top cover.
![Sharp - BP-20M22 - MAIN UNIT - Installation - Step 5 MAIN UNIT - Installation - Step 5]()
- While rotating the MG roller in the arrow direction, supply the developer into the developer tank evenly so as not to overflow.
* Shake the developer bag enough before opening it.
![Sharp - BP-20M22 - MAIN UNIT - Installation - Step 6 MAIN UNIT - Installation - Step 6]()
- Attach the DV top cover.
![Sharp - BP-20M22 - MAIN UNIT - Installation - Step 7 MAIN UNIT - Installation - Step 7]()
- Tighten the screws.
![Sharp - BP-20M22 - MAIN UNIT - Installation - Step 8 MAIN UNIT - Installation - Step 8]()
* Check that the DV seal is free from the developer. If developer is attached to the DV seal, clean it.
* After supplying developer, do not tilt or shake the developer cartridge.
* Check that the both ends of the DV seals are not put in the developer cover. - Attach the developing unit to the main unit.
![Sharp - BP-20M22 - MAIN UNIT - Installation - Step 9 MAIN UNIT - Installation - Step 9]()
- Secure the developing unit with the screw. Connect the harness of the developing unit to the machine.
![Sharp - BP-20M22 - MAIN UNIT - Installation - Step 10 MAIN UNIT - Installation - Step 10]()
SIMULATION
General and purpose
The simulation mode has the following functions, to display the machine operating status, identify the trouble position and causes in an earlier stage and to efficiently setup and adjust the machine for improved serviceability.
- Various adjustments Various adjustments
- Setting of the specifications and functions
- Canceling troubles
- Operation check
- Counters check, setting clear
- Machine operating conditions (histories) data check, clear
- Various (adjustments, setting, operation, counters, etc) data transport.
The operating procedures and displays depend on the design of the operation panel of the machine.
Starting the simulation
- Entering the simulation mode
- Machine in Copy mode: [#] key -> [*] key -> [C] key -> [*] key -> Ready for input of main code of simulation.
![Sharp - BP-20M22 - SIMULATION - Starting the simulation - Step 1 SIMULATION - Starting the simulation - Step 1]()
- Entering a main code with the 10-key -> START key ON.
- Entering a sub code with the 10-key -> START key ON.
- Select an item with arrow key.
- The machine enters the mode corresponding to the selected item.
Press [START] key to start the simulation operation,
To cancel the current simulation mode and change the main code and the sub code, press [STOP] key.
- Machine in Copy mode: [#] key -> [*] key -> [C] key -> [*] key -> Ready for input of main code of simulation.
- Canceling the simulation mode to return to the normal mode
- Press [CA] key.
Do not turn OFF the power when the machine is in the simulation mode.
If the power switch should be turned OFF in the simulation mode, a malfunction may result. In this case, turn OFF/ON the main power source.
- Press [CA] key.
- Toner cartridge installation
- Remove the new toner cartridge from the box. Grasp the cartridge on both sides and shake it horizontally four or five times.
![]()
- Insert the toner cartridge along the guides until it locks in place while pushing the lock release lever If there is any dirt or dust on the toner cartridge, remove it before installing the cartridge.
![Sharp - BP-20M22 - SIMULATION - Starting the simulation - Step 2 SIMULATION - Starting the simulation - Step 2]()
- Remove the new toner cartridge from the box. Grasp the cartridge on both sides and shake it horizontally four or five times.
- Toner density reference control level setting
- With the front cover open, turn ON the machine power and enter SIM25-02.
NOTE: When the machine is not in the simulation mode, if the front cover is closed and the machine power is turned ON, F2-40 trouble code will occur due to non-execution of SIM25-02 for the initial setting time only. Therefore, if F2-40 trouble code occur due to non-execution of SIM25-02, execute SIM25-02 according to regular procedure (based on C-I,2,3) again for the initial setting time only.
* It is necessary to install the toner cartridge to start this simulation. - Close the front cabinet.
- After selecting K with "I" of the "10" key, Press [START] key, and execute SIM25-02.
NOTE: It takes about 2 minutes to execute SIM25-02 completely.
During execution of this simulation, the front cover must not be opened and the machine power must not be turned OFF. - Confirm that "COMPLETE" is displayed. [Confirmation items]
- COMPLETE is displayed.
- There is no error (EE-EL, EE-EU, EE-EC) display.
- Check that there is no abnormal noise in process un.
- With the front cover open, turn ON the machine power and enter SIM25-02.
- Tray setup
(1) Default Tray Setting
- Press the [SPECIAL FUNCTION] key.
![Sharp - BP-20M22 - SIMULATION - Starting the simulation - Step 3 SIMULATION - Starting the simulation - Step 3]()
- Select "System Settings" with the [
] key and press the [OK] key. - Enter the administrator PIN code with the numeric keys. "00000"
- " * " appears for each digit that you enter.
- The mode selection screen appears.
- Select the [COPY] with the [
] key. - Press the [OK] key.
- Select the [Default Tray Setting] with the [
] key. - Press the [OK] key and follow the instructions in the setting screen.
- Select the desired tray with the [
] key. - Press the [OK] key.
(2) Changing the paper size setting of a tray
- Press the [SPECIAL FUNCTION] key.
- Press the [
] key to select "Paper Size Set" - Press the [
] key to select the paper tray for which the paper size is being changed. - Press the [
] key and press the [
] keys to select the paper size. - Press the [OK] key.
(3) Changing the paper type of a tray
- Press the [SPECIAL FUNCTION] key.
- Press the [
] key to select "Paper Type Set" - Select the tray with the [
] key, and press the [OK] key. - Select the desired paper type and press the [OK] key.
(4) Tray size setup
- Pull out the paper tray. Gently pull the tray out until it stops. If paper remains in the tray, remove it.
- Adjust the guide plates A and B by squeezing their lock levers and sliding them to match the vertical and horizontal dimensions of the paper to be loaded. The paper guide plates A and B can slide, slide each guide plate while squeezing lock lever.
![Sharp - BP-20M22 - SIMULATION - Starting the simulation - Step 5 SIMULATION - Starting the simulation - Step 5]()
Note: Remove the divider plate. Move the divider plate all the way over to the paper feed opening side (right side), and pull up to remove. Insert the removed divider plate into A.

- Specification setup
Use simulation 26-6 to set the machines destination.
| SIM | No. | Content |
| 26 | 6 | Used to set the destination. |
After completion of destination settings, change the set values to customize the following settings.
| SIM | No. | Content |
| 26 | 5 | Used to set the count mode Of the total counter and the maintenance counter. |
| 18 | Used to set YES/NO Of the toner save mode. |
Image quality check
- Execution items
Execute the following items.
| No. | Item | SIM |
| 1 | Copy gray balance and density check | - |
| 2 | Printer gray balance/density check | 64-5 |
When there are defects in a picture by the contents mentioned above, you carry out the following contents, and confirm a picture.
| No. | Item | SIM |
| 3 | Copy gray balance adjustment (Manual adjustment) | 46-16 |
| 4 | Printer gray balance adjustment (Manual adjustment) | 67-25 |
| 5 | Print/scan image off-center, lead edge position adjustment | 50-10 |
- Description
(1) Copy gray balance and density check Method 1
Take a copy of gray test chart (UKOG-0162FCZZ) to verify whether gray balance / density is appropriate.
- Points to note for verification of density for black and while copy mode
Use gray test chart (UKOG-0162FCZZ), set Exposure to "3" in Text/ Printed Photo mode and take a copy to verify density. All the gray balance adjustments in user adjustment mode should be set to default (center).
Verification using a test chart for gray (UKOG-0162FCZZ)
Check whether following conditions are satisfied when verifying the density of a test chart for gray for copy.
![Sharp - BP-20M22 - SIMULATION - Image quality check - Step 1 SIMULATION - Image quality check - Step 1]()
(2) Printer gray balance/density check Method
Execute SIM 64-5 to print the print test pattern.

Print density should change gradually from lighter to darker. Make sure that the density does not shift oppositely. The density level of all colors should be equal.
(3) Copy gray balance adjustment (Manual adjustment)
This is to adjust density of each level for B/W copy.
This adjustment is required in the following case:
- Density of auto B/W copy is not appropriate.
- Enter Simulation 46-16 mode.
- Select the density level (point) for adjustment using the [
] keys. Enter adjustment value using the numeric keys.
| Item | Display | Description | Minimum value | Maximum value | Default value |
| K | POINTI K- POINT17 K | Point 1 - Point 17 | 1 | 255 | 128 |
- Press [OK] key (to store the set value). Increase the adjustment value to increase the density, decrease the value to decrease the density.
- Pressing [Start] key will print out the adjusting pattern. Although it is possible to verify the density at each density level (point) referring to this pattern, it is better to take a copy and verify the result.
- Take a copy and verify the result of the adjustment. Switch between the simulation mode and copy mode back and forth to make an adjustment referring to the actual copy image. Repeat this procedure until the copy image is satisfied.
(4) Printer gray balance adjustment (Manual adjustment)
- Enter Simulation 67-25 mode.
- Select the color using [10] key.
- Enter adjustment value using [10] key. And Press [OK] key. The range of adjustment value available is 1 to 255. Increase the adjustment value to increase the density, decrease the value to decrease the density.
Repeat the steps 2) to 3) until the adjustment is satisfactory.
(Refer to the section for verification of color balance and density for print)
![Sharp - BP-20M22 - SIMULATION - Image quality check - Step 2 SIMULATION - Image quality check - Step 2]()
(5) Print/scan image off-center, lead edge position adjustment
- Print image magnification adjustment (Main scanning direction)
- Enter Simulation 50-10 mode.
- Load A4 (Ilx8.5) or A3 (Ilx17) paper into a paper tray.
- Select the paper tray with the paper loaded in the step 2) using the [T II keys.
- Press [Start] key. Check pattern will be printed.
- Verify whether the dimension of the printed check pattern is 240±1.2mm.
![]()
Perform the step below if the result is not satisfactory: - Change setting item 1: BK-MAG.
The length will change by 0.1 mm by changing the value by one. Increase the value to increase the magnification toward main scanning direction for BK image. Decrease the value to decrease the magnification. Repeat the steps 2) to 6) until satisfactory result is obtained
- Print image position adjustment (Main scanning direction, sub scanning direction)
Note
Make sure that following item is in proper condition prior to the adjustment:
- ADJ 3-A Print image magnification adjustment (Main scanning direction)
- Enter Simulation 50-10 mode.
- Load A4 (Ilx8.5) or A3 (Ilx17) paper into a paper tray.
- Press [Start] key. Check pattern will be printed
- Verify the image on the check pattern and see whether the items below are at standard value.
| Description | Standard adjustment value | |
| X | Void area on lead edge | 4.0±1.Omm |
| Y | Void area on trail edge | 1.0mm to 5.0mm |
| Z1/Z2 | Void area on front / rear | Total 4.0±2.0mm |

* The void for Z1 and Z2 should be 1 mm or more on both sides. Perform the step below if the result is not satisfactory:
- Change adjustment value, press [Start] key and print out the check pattern.
Repeat the steps 3) to 6) until the conditions listed in step 5) is satisfied.
The dimension will change by approx. 0.1 mm by changing the value by one.
Main scanning direction: The print position moves toward rear side as the adjustment value increases.
Sub scanning direction: The print position moves toward trail edge of paper transport direction as the adjustment value increases.
| No. | Item | Target tray | |
| Print position toward main scanning direction | 4 | MAIN-MFT | Manual feed tray |
| 5 | MAIN-CSI | Tray 1 | |
| 6 | MAIN-CS2 | Tray 2 | |
| 7 | MAIN-CS3 | Tray 3 | |
| 8 | MAIN-CS4 | Tray 4 | |
| 9 | MAIN-ADU | Side-2 for duplex printing | |
| Print position toward sub scanning direction | 10 | SUB-MFT | Manual feed tray |
| 11 | SUB-CSI | Tray 1 | |
| 12 | SUB-CS2 | Tray 2 | |
| 13 | SUB-CS3 | Tray 3 | |
| 14 | SUB-CS4 | Tray 4 | |
| 15 | SUB-ADU | Side-2 for duplex printing | |
| Main scanning direction | 2 | MAIN-STD | All trays |
| Print position toward sub scanning direction | 3 | SUB-STD | All trays |
Note
The setting items "2: MAIN-STD" and "3: SUB-STD" are to change all print positions.
Execute them if adjustment of all trays is necessary after replacement of LSU etc.
(500-Sheet Paper Feed Tray only)
If the above procedure does not give a satisfactory adjustment result, make the following adjustment.
- Loosen the paper feed tray off-center adjustment screws (2 pcs.) at the center section of the lift plate of the paper feed tray, and change the gear unit position in the front/rear frame direction.
Repeat the adjustment procedures from 3).
![Sharp - BP-20M22 - SIMULATION - Image quality check - Step 4 SIMULATION - Image quality check - Step 4]()
BP-CS11 (500-SHEET PAPER FEED TRAY), BP-DE11 (STAND/2x500 SHEET PAPER DRAWER)
Unpacking
- Packed items check
BP-CS11

BP-DE11

| NO. | Name | Quantity |
| 1 | Fixing screws (M3x6 S-tyte) | 2 |
| 2 | Fixing screws (M4x8 S-tyte) | 4 |
| 3 | Fixing screws (M4x12 P-tyte) | 6 |
| 4 | Size indication label | 1 |
| 5 | Edge holder | 1 |
| 6 | Plate | 4 |
| 7 | Harness cover | 1 |
| 8 | Connection Drive unit | 1 |
| 9 | Fixing screws (M4x12 P-tyte) | 10 |
| 10 | Plate | 4 |
| II | Size indication label | 2 |
| 12 | Harness | 1 |
| 13 | Fixing screws (M3x6 S-tyte) | 1 |
- Removal of the fixing tape and protection material
- Removal of the 500 sheet paper feed tray.
BP-CS11
![Sharp - BP-20M22 - BP-CS11/BP-DE11 - Unpacking - Step 3 BP-CS11/BP-DE11 - Unpacking - Step 3]()
- Removal of the stand/2x500 sheet paper drawer.
BP-DE11
![Sharp - BP-20M22 - BP-CS11/BP-DE11 - Unpacking - Step 4 BP-CS11/BP-DE11 - Unpacking - Step 4]()
- Removal of the 500 sheet paper feed tray.
- Removal of the fixing tape and protection material
- Remove the 500 sheet paper feed tray from the polyethylene bag, and remove the fixing tape and the protection material.
![Sharp - BP-20M22 - BP-CS11/BP-DE11 - Unpacking - Step 5 BP-CS11/BP-DE11 - Unpacking - Step 5]()
Since Rear cabinet has not been screwed, remove the tape and keep the Rear cabinet out of reach.
![Sharp - BP-20M22 - BP-CS11/BP-DE11 - Unpacking - Step 6 BP-CS11/BP-DE11 - Unpacking - Step 6]()
- Remove the 500 sheet paper feed tray from the polyethylene bag, and remove the fixing tape and the protection material.
- Remove the stand/2x500 sheet paper drawer from the polyethylene bag, and remove the fixing tape and the protection material.
![Sharp - BP-20M22 - BP-CS11/BP-DE11 - Unpacking - Step 7 BP-CS11/BP-DE11 - Unpacking - Step 7]()
Since Rear cabinet has not been screwed, remove the tape and keep the Rear cabinet out of reach.
![Sharp - BP-20M22 - BP-CS11/BP-DE11 - Unpacking - Step 8 BP-CS11/BP-DE11 - Unpacking - Step 8]()
Installation
<Precautions for installation>
Before execution of installation, check to confirm that the data lamp under it are not lighted or blinking.
- Turn off the power of the main unit
- Check to confirm that the operation panel is turned OFF, and then turn OFF the power switch.
- Disconnect the power plug from the power outlet.
- Install the main unit to the BP-CS11 (BP-20M22/BP-20M24/BP-20M24L)
Use man power of two persons to lift the main unit.
![Sharp - BP-20M22 - BP-CS11/BP-DE11 - Installation - Step 1 BP-CS11/BP-DE11 - Installation - Step 1]()
Gently place main unit onto the optional Cassette, aligning and inserting the 3 locating bosses of optional tray into the locating holes on the bottom of the main unit.
![Sharp - BP-20M22 - BP-CS11/BP-DE11 - Installation - Step 2 BP-CS11/BP-DE11 - Installation - Step 2]()
Note
The main unit can not be attached directly to BP-DE11 with BP- 20M22/BP-20M24/BP-20M24L.
- Remove the tray of the main unit.
![Sharp - BP-20M22 - BP-CS11/BP-DE11 - Installation - Step 3 BP-CS11/BP-DE11 - Installation - Step 3]()
- Remove the Rear cover of BP-CS11
![Sharp - BP-20M22 - BP-CS11/P-DE11 - Installation - Step 4 BP-CS11/P-DE11 - Installation - Step 4]()
- Place the main unit in BP-CS11.
Pay attention to the position of the boss which is the connection part of BP-CS11.
* BP-DE11 can not be attached to the main unit.
![]()
Lower the main body straight.
![]()
- Pull out the tray of BP-CS11.
![Sharp - BP-20M22 - BP-CS11/BP-DE11 - Installation - Step 5 BP-CS11/BP-DE11 - Installation - Step 5]()
- Remove the screws and the rear cover.
![Sharp - BP-20M22 - BP-CS11/BP-DE11 - Installation - Step 6 BP-CS11/BP-DE11 - Installation - Step 6]()
- Align the left and right connecting plates with the screw holes on the body and fasten them with screws.
![Sharp - BP-20M22 - BP-CS11/BP-DE11 - Installation - Step 7 BP-CS11/BP-DE11 - Installation - Step 7]()
- Attach the Edge holder to the main frame.
![Sharp - BP-20M22 - BP-CS11/BP-DE11 - Installation - Step 8 BP-CS11/BP-DE11 - Installation - Step 8]()
- Remove the screws.
Be careful of different screws on the top and bottom.
![Sharp - BP-20M22 - BP-CS11/BP-DE11 - Installation - Step 9 BP-CS11/BP-DE11 - Installation - Step 9]()
- Pass the harness of BP-CS11 to the Edge holder.
![Sharp - BP-20M22 - BP-CS11/BP-DE11 - Installation - Step 10 BP-CS11/BP-DE11 - Installation - Step 10]()
- Pass the harness of BP-CS11 to the Harness cover. Then, bent and hook the Harness cover as shown in the figure to cover the harness.
![Sharp - BP-20M22 - BP-CS11/BP-DE11 - Installation - Step 11 BP-CS11/BP-DE11 - Installation - Step 11]()
- Fix the harness cover that covers the harness to the high-voltage PWB with the screws.
![Sharp - BP-20M22 - BP-CS11/BP-DE11 - Installation - Step 12 BP-CS11/BP-DE11 - Installation - Step 12]()
- Pass the harness of BP-CS11 to the wire saddles and connect the harness to the MFPC PWB as shown in the figure.
Then, fix the wire saddles to the machine as shown in the figure.
![Sharp - BP-20M22 - BP-CS11/BP-DE11 - Installation - Step 13 BP-CS11/BP-DE11 - Installation - Step 13]()
- Fix the connection drive unit to the main unit with the screw.
Note
Be careful not to bite the harness when installing.
![Sharp - BP-20M22 - BP-CS11/BP-DE11 - Installation - Step 14 BP-CS11/BP-DE11 - Installation - Step 14]()
- Return the rear cover to the main unit and the BP-CS11.
![Sharp - BP-20M22 - BP-CS11/BP-DE11 - Installation - Step 15 BP-CS11/BP-DE11 - Installation - Step 15]()
- Return the tray to the main unit.
![Sharp - BP-20M22 - BP-CS11/BP-DE11 - Installation - Step 16 BP-CS11/BP-DE11 - Installation - Step 16]()
- Attach the size display sheet to the tray and return the tray to the BP-CS11.
![]()
- After installing the desk, make adjustments.
- Install the BP-CS11 to the BP-DE11 (BP-20M22/BP-20M24/BP- 20M24L)
Note
The main unit can not be attached directly to BP-DE11 with 20M22/BP-20M24/BP-20M24L.- Place BP-CS11 on BP-DE11.
![]()
- Remove BP-CS11 tray and BP-DE11 upper tray.
![]()
- Align the left and right connecting plates with the screw holes on the body and fasten them with screws. Fix the BP-CS11 and the BP-DE11 with screws.
![Sharp - BP-20M22 - BP-CS11/BP-DE11 - Installation - Step 17 BP-CS11/BP-DE11 - Installation - Step 17]()
- Cut the area shown in the following figure. (BP-CS11).
![Sharp - BP-20M22 - BP-CS11/BP-DE11 - Installation - Step 18 BP-CS11/BP-DE11 - Installation - Step 18]()
- Place BP-CS11 on BP-DE11.
- Place the main unit in BP-CS11 and BP-DE11.
*Reference: lnstall the main unit to the BP-CS11 (BP-20M22/ BP-20M24/BP-20M24L)
![Sharp - BP-20M22 - BP-CS11/BP-DE11 - Installation - Step 19 BP-CS11/BP-DE11 - Installation - Step 19]()
- Pass the round terminal through the hole. Attach the round terminal with the screw.
(Packed items No. 13)
![]()
- Connect the harness to the Desk control PWB as shown in the figure.
![]()
- Pass the harness through the hole.
![]()
- Connect the harness to the main body MFPC PWB and perform wire processing.
(The main body side has the same path as BP-CS11)
![]()
- Return the rear cover to the main unit, the BP-CS11I and the BP- DE11.
![Sharp - BP-20M22 - BP-CS11/BP-DE11 - Installation - Step 20 BP-CS11/BP-DE11 - Installation - Step 20]()
- Return the tray to the main unit, the BP-CS11 and the BP-DE11.
![Sharp - BP-20M22 - BP-CS11/BP-DE11 - Installation - Step 21 BP-CS11/BP-DE11 - Installation - Step 21]()
- Attach the size display sheet to the tray and return the tray to the BP-CS11 and the BP-DE11.
![]()
- After installing the desk, make adjustments.
![Sharp - BP-20M22 - BP-CS11/BP-DE11 - Installation - Step 22 BP-CS11/BP-DE11 - Installation - Step 22]()
- Install the main unit to the BP-DE11
(BP-20M28/BP-20M31 & BP-21M22 (Only for Thailand))
Use man power of two persons to lift the main unit.
![Sharp - BP-20M22 - BP-CS11/BP-DE11 - Installation - Step 23 BP-CS11/BP-DE11 - Installation - Step 23]()
Gently place main unit onto the optional Cassette, aligning and inserting the 3 locating bosses of optional tray into the locating holes on the bottom of the main unit.
- The installation method is the same as B.
- The harness connection method is the same as C.
*The harness cover is attached to the main body. - After installing the desk, make adjustments.
BP-DS12/DS13 (HIGH STAND/LOW STAND)
Unpacking
Unpack the package, and check to confirm that all the parts are provided.


| NO. | Name | Quantity | |
| BP-DS13 | BP-DS12 | ||
| 1 | Fixing screws (M4x10 S-tyte) | 2 | 4 |
| 2 | Fixing screws (M4x10 P-tyte) | 4 | 4 |
| 3 | Fixing plate Front L | No | 1 |
| 4 | Fixing plate Front R | No | 1 |
| 5 | Fixing plate Rear | 2 | 2 |
Installation
Note
The connection with the main unit is the same as below.
- Remove the tray of the BP-CS11 or Main unit.
- Put the BP-CS11 or Main unit on the Stand. Fit the positioning pins of the Stand (2 places) with the positioning holes of the BP-CS11.
![Sharp - BP-20M22 - BP-DS12/DS13 (HIGH/LOW STAND) - Intallation - Step 2 BP-DS12/DS13 (HIGH/LOW STAND) - Intallation - Step 2]()
- Fix the Stand with the BP-CS11 by the Fixing screw.
![Sharp - BP-20M22 - BP-DS12/DS13 (HIGH/LOW STAND) - Installation - Step 3 BP-DS12/DS13 (HIGH/LOW STAND) - Installation - Step 3]()
![Sharp - BP-20M22 - BP-DS12/DS13 (HIGH/LOW STAND) - Installation - Step 4 BP-DS12/DS13 (HIGH/LOW STAND) - Installation - Step 4]()
- Fix the tray of BP-CS11.
![Sharp - BP-20M22 - BP-DS12/DS13 (HIGH/LOW STAND) - Installation - Step 5 BP-DS12/DS13 (HIGH/LOW STAND) - Installation - Step 5]()
- Fix the rear cover of the BP-CS11.
![Sharp - BP-20M22 - BP-DS12/DS13 (HIGH/LOW STAND) - Installation - Step 6 BP-DS12/DS13 (HIGH/LOW STAND) - Installation - Step 6]()
- Rotate the adjusters to fix the machine to the floor surface not to move the machine. Connect to BP-DS13
Connect to BP-DS13
![Sharp - BP-20M22 - BP-DS12/DS13 (HIGH/LOW STAND) - Installation - Step 7 BP-DS12/DS13 (HIGH/LOW STAND) - Installation - Step 7]()
Connect to BP-DS12
![Sharp - BP-20M22 - BP-DS12/DS13 (HIGH/LOW STAND) - Installation - Step 8 BP-DS12/DS13 (HIGH/LOW STAND) - Installation - Step 8]()
Download manual
Here you can download full pdf version of manual, it may contain additional safety instructions, warranty information, FCC rules, etc.
Download Sharp BP-20M22, BP-20M24, BP-20M31 Manual



























] key and press the [OK] key.
] key and press the [


] keys. Enter adjustment value using the numeric keys.















































